Отчет о преддипломной стажировке в кафе
Тема 1
День 1. Ознакомление с предприятием:
Общество с ограниченной ответственностью «Стратегия» обладает правами юридического лица; имеет обособленное имущество; самостоятельный баланс; расчетный счет в банке; угловой штамп; печать со своим наименованием.
Предприятие осуществляет свою деятельность в соответствии с законодательством РФ, другими нормативными актами, регулирующими деятельность предприятия и настоящим уставом.
Приобретает от своего имени личные имущественные и неимущественные права и исполняет обязанности; выступает истцом и ответчиком в судах, вправе совершать любые не противоречащие законодательству сделки. Отвечает по своим обязательствам имуществом предприятия.
Юридический адрес: г. Ростов-на-Дону, ул. Стрелковая 18/2
Фактический адрес: г. Ростов-на-Дону, ул. Борко 1а.
Предметом деятельности предприятия является:
• Осуществления производства и реализации кулинарной, кондитерской продукции, п/ф в соответствии с утвержденными технологическими требованиями, действующими в общественном питании.
• Осуществление иных видов в производственно-хозяйственной, снабженческо-сбытовой, товароведной, коммерческой деятельности незапрещенных законодательством РФ.
Предприятие в своей хозяйственной деятельности преследует достижение следующих целей:
Предоставление услуг питания населению;
Обеспечение предприятия квалификационными кадрами;
Развитие и укрепление материально-технической базы;
Улучшение использования фондов;
Обеспечение максимальных, технико-экономических, производственных показателей с меньшими затратами.
Предприятие возглавляет генеральный директор, который является учредителем и организатором данного предприятия.
Услуги организации потребления продукции, обслуживания.
- Организация и обслуживание торжеств и ритуальных мероприятий
- Организация питания и обслуживания участников конференций, совещаний, культурно - массовых мероприятий и т.д.
- Услуги по организации досуга:
- Организация музыкального обслуживания
- Упаковывание продукции в контейнеры
- Вызов такси
Все вышеперечисленные услуги имеют сертификаты соответствия.
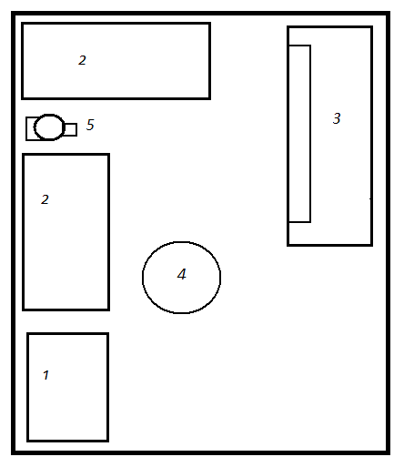
Состав производственных помещений.
Доготовочные цеха:
• холодный и горячий.
Заготовочные цеха
• овощной и мясной
Вспомогательные цеха:
Моечная столовой посуды
Моечная кухонной посуды
Состав складских помещений:
Помещения с охлаждаемыми камерами для хранения мясной и молочной продукции.
Кладовая суточного запаса сырья.
Общая кладовая для хранения покупной продукции.
Состав торговой группы помещений.
Торговый зал -60 посадочных мест.
Банкет зал-35 посадочных мест
По типу оказываемых услуг - кафе.
По характеру производства - с полным циклом производства. По ассортименту реализуемой продукции - универсальное.
По месту расположения - в жилом районе.
Кафе предназначено для питания и проведения досуга посетителей, по методу обслуживания - обслуживание официантами и барменами.
Кафе имеет 3 зала вместимостью:
20 посадочных мест в зале с баром,
35 посадочных мест банкетный зал,
60 посадочных мест в торговом зале.
Обслуживаемый контингент - люди от среднего до высокого достатка. Время работы производства с 7-00, время работы кафе с 09-00 до 19-00.
Предоставляемые услуги:
Услуга питания
Услуга питания кафе
Услуги организации досуга.
Схема предприятия.

Для лучшей организации производства, все группы помещений связаны между собой.
На предприятии общественного питания кафе «Колхоз» должны быть использованы следующие требования к компоновке помещений:
Взаимное расположение основных групп помещений обеспечивает кротчайшие связи между ними без пересечения потоков посетителей и обслуживающего персонала, пересечения чистой и использованной посуды.
Компоновка торговых помещений проходит по ходу движения посетителей.
Все производственные и складские помещения должны быть не сквозными. С улицы должен располагаться вход в торговые помещения; со стороны хозяйственного двора вход в производственные и бытовые помещения.
Компоновка всех групп помещений должна отвечать требованиям СНиПА, санитарных и противопожарных требований.
Кафе «Колхоз» не отвечает всем выше перечисленным требованиям. На нем имеются следующие несоответствия:
Административно-бытовые помещения перемешиваются с производственными помещениями.
В зал с барной стойкой проникает воздух из горячего цеха.
Взаимное расположение основных групп помещений не обеспечивает удобную связь между ними.
Проход из горячего цеха в банкетный зал лежит через вестибюль, что недопустимо, т.к. блюда уже прошли тепловую обработку, следует готовую продукцию переносить накрытой.
Материально-техническая база предприятия соответствует типу предприятия и требованиям, предъявляемым к данному типу производства.
Предприятие обеспечено следующим оборудованием и инвентарем:
В горячем и холодном цехах:
- котел пищеварочный КПЭ-60
-привод универсальный ПУ -0,6
-электропечь ПЭСБМ-2м 2шт.
-конвекционный шкаф,
-столы производственные СП-1200 4шт.
- весы PH-IОц13ц,
-овощерезка настольная Mouline,
-ванны моечные ВМ-IБ 2шт
2) Мясной цех.
-мясорубка МИМ-1 05,
-холодильный шкаф ШХ-О,4.
-тол производственный СП-1050 длиной 1,05-2 шт.
-весы настольные ВНЦ-2,
-колода для рубки мяса,
-ванна моечная ВН-1Б-2шт.
3) Мучной цех.
-электропекарные шкафы ШПЭСМ-3 2шт.
- тестомесильная машина ТММ-1м с тремя дежами,
-стол производственный СП-1200 2шт.
- стеллажи железные 2шт.
-ванны моечные ВМ-IБ 2шт.
4) Кладовая суточного запаса сырья.
- стеллажи
- весы напольные
5) Моечная столовой посуды.
- Ванны моечные ВМСМ - 1
- Стеллаж для посуды
- Шкаф для хранения посуды ШП - 1
- Стол производственный
6) Моечная кухонной посуды.
- Ванны моечные BMCM-l
- Стеллаж для посуды
7) Бар
- Длина барной стойки – 3м.
- Кассовый аппарат
- Электрический чайник
- Кофеварка «Экспрессо – капучино»
- Микроволновая печь
- Мерная посуда для спиртных напитков
-Смесительная установка для молочных коктейлей.
Анализ материально-технической базы на предприятии
Изучив структуру помещений кафе, можно сделать следующий вывод: нужно добавить на производство кухонный инвентарь, так как во время наплыва большого количества гостей наблюдается нехватка кухонной посуды и инвентаря. Так же не нужно в горячем цехе устанавливать конвекционный шкаф такого типа, так как он предназначен для большого объема выпускаемой продукции и не экономичен для такого предприятия, еще и потому, что в меню нет такого ассортимента блюд, приготовляемых в комби – печах.
Перспективы развития кафе «Колхоз»
Кафе имеет огромные возможности для дальнейшего развития благодаря удачному расположению в административно – жилой зоне рядом с рынком.
Предложения:
Реализовывать продукцию собственного производства в обеденное время на территории рынка по оптимальной цене, предлагая комплексные обед.
Расширить ассортимент сладких блюд и организовать с 16 до 17 часов вечера «счастливый час», т.к. в это время родители забирают детей из расположенного рядом детского сада и школы.
Провести маркетинговые исследования и улучшить рекламную деятельность.
Ознакомление со структурой, характером, организацией производства. Изучение ассортимента, перечня выпускаемой продукции. Выявление идентифицирующих признаков
В данном предприятии организована цеховая структура, которая включает следующие цеха: горячий, холодный, мучной, мясной. В каждом цехе организованы рабочие места, оснащенные всем необходимым оборудованием и инвентарем. Имеются следующие помещения: склад, кладовая суточного запаса сырья, моечная столовой посуды, моечная кухонной посуды, торговый зал, бар.
По производственной структуре кафе «Колхоз» относится к предприятию с полным циклом производства, работающем на сырье.
Вид обслуживания: реализация продукции через торговый зал, а так же через барную стойку с помощью бармена, а в торговом зале официантами. Используются классические формы и методы обслуживания посетителей.
Ассортимент выпускаемой продукции
Холодные блюда (16 наименований);
Первые блюда (3 наименования);
Вторые горячие блюда (6 наименований);
Горячие напитки (10 наименований);
Холодные напитки (8 наименований);
Мучные изделия (10 наименований).
Ознакомление с меню кафе.
В кафе «Колхоз» меню составляется на месяц без учета сезона. Меню разнообразно, в нем представлен широкий ассортимент блюд из рыбы, птицы, свежих овощей, бобовых и круп.
Анализ меню.
Анализ меню холодных блюд.
При составлении меню были допущены следующие ошибки:
Неправильная последовательность расположения блюд в меню – нарушен порядок очередности групп блюд.
Графа «Выход» в меню может запутать посетителя.
В остальном меню соответствует требованиям: ассортимент блюд удовлетворяет требования, количество соответствует нормативным требованиям.
Первые блюда.
Предприятию необходимо разнообразить ассортимент первых блюд до 5-6 наименований. Добавить борщи, рассольники, суп из бобовых. Разнообразить набор продуктов для приготовления первых блюд.
Вторые блюда
Ассортимент вторых блюд разнообразен и соответствует требованиям, предъявляемым к составлению меню, но присутствует нарушения правил последовательности записи блюд.
Ознакомление с формами и методами обслуживания
В кафе применяется метод обслуживания официантами, барменом, что обеспечивает быстрое обслуживание посетителей и расчет с ними.
Вся необходимая информация представлена для посетителей в меню, с указанием названия блюда, его выхода и ценой. Реализация кулинарной продукции производится по следующим формам обслуживания: обслуживание производят официанты через зал с барной стойкой, торговый и банкетный залы. Современные формы обслуживания не используются.
Расчет с гостями
Бланк счета заполняется в двух экземплярах. В нем указывается название кафе, фамилия официанта, дату обслуживания, наименование и количество заказанных блюд, стоимость одной порции и сумма всех заказанных порций одноименных блюд, напитков. Оформление счета производится официантом, свободным от обслуживания. Перед подачей счета для его оплаты официант выясняет у гостя, не будет дан дополнительный заказ и попросить разрешение на подготовку счета для оплаты.
Анализ соответствия кафе требованиям ГОСТР 50762-95 «Общественное питание. Классификация предприятий»
Идентифицирующие признаки, определяющие тип предприятия, их соответствие требованиям ГОСТР-50762-95 «Общественное питание. Классификация предприятий».
Тип предприятия - Кафе - соответствует требованиям данного стандарта.
Соблюдаются следующие требования к предприятию общественного питания:
- безопасность жизни и здоровья потребителей
- правила производства и реализации, утвержденные постановлением
Правительства РФ от 13.04.93 N2332
- санитарные и технологические нормы
- пожарной и электробезопасности.
- выполняются требования нормативных документов по безопасности услуг.
- площадки с мусоросборниками удалены от окон и дверей помещений предприятия не менее чем на 20 метров.
- на предприятии предусмотрены аварийные выходы, лестницы, инструкции о действиях в аварийной ситуации, система оповещения и средства защиты от пожара.
- предприятие имеет вывеску с указанием его типа, информацию о режиме работы, об оказываемых услугах.
|
Требования к предприятию. |
В наличие |
Соответствие |
|
Требования к архитектурной планировке и оформлении П.О.П. |
||
|
1. Оформление залов и помещений для посетителей. |
||
|
1.1.Использование оригинальных, декоративных элементов (светильники, драпировка). |
На предприятиях используется оригинальное оформление стен и оконных проемов |
Соответствует. |
|
1.2Использование декоративных элементов, создающих единство стиля. |
Цветовая система зала поддерживается в едином стиле. |
Соответствует. |
|
2. Микроклимат, система вентиляции, обеспечения допустимых параметров температуры и влажности. |
Допустимая температура +16…+20 Влажность: 76% |
Полностью соответствует нормам. |
|
Требование к мебели, посуде, приборам. |
||
|
1. Мебель |
||
|
1.1. Стандартная облегченная мебель. |
Стулья и столы, а так же серванты в торговом зале сделаны из дерева. |
Мебель слишком громоздкая, из тяжелых пород дерева, «Морально» устаревшая. |
|
1.2.Полиэфирное покрытие столов. |
На предприятии используются деревянные столы, покрытые скатертями. |
Это превышает требования. |
|
2. Столовая посуда и приборы. |
Используется посуда с логотипом предприятия. |
Соответствует. |
|
2.1.Полуфарфорово-фаянсовая посуда. |
Белая посуда с эмблемой предприятия. |
Используется. |
|
2.2.Посуда из спрессованного стекла. |
Имеется небольшое количество. |
Используется. |
|
3. Столовое белье. |
Применяются скатерти бардового и белого цветов, банкетные скатерти. |
В наличии, используются. |
|
3.1. Бумажные салфетки |
Различной цветовой гаммы. |
Широко используются. |
|
Требования к оформлению меню, прейскурантов, ассортименту кулинарной продукции на предприятии. |
||
|
1.Меню и прейскуранты с эмблемой. |
Меню используется с эмблемой кафе. |
Оформление соответствует нормам. |
|
1.1. На национальном и русском языке. |
В нашем кафе не используется ин. язык. |
Только на русском языке. Удовлетворяет требованиям частично. |
|
1.2. Машинописный способ набора. |
Меню напечатано и заламинировано. |
Соответствует требованиям. |
|
2.Ассортимент |
||
|
2.1.Разнообразный ассортимент блюд и напитков (в т.ч. фирменных и заказных блюд) |
Ассортимент фирменных блюд разнообразен и соотв. Требованиям. |
Соответствует. |
|
Требования к методам обслуживания потребителей, к форме одежды. |
||
|
1. Методы обслуживания потребителей. |
Обслуживание официантами и барменами. |
|
|
1.1.Обслуживание официантами, барменами, метрдотелями. |
На предприятии не высокая оборачиваемость, поэтому штат сотрудников не большой. |
Только барменами и официантами. |
|
2. Одежда и обувь. |
Соответствие. |
|
|
2.1. Наличие санитарной одежды. |
Одежда чистая, отвечает санитарным требованиям, 2 комплекта, обувь закрытая. |
Отвечает всем требованиям. |
Анализ меню и оформления залов
Внимательно изучив и проанализировав меню, можно сделать вывод, что в данном предприятии необходимо добавить несколько наименований первых блюд, т.к. 3 первых блюда недостаточно для того, чтобы посетитель мог выбрать понравившееся ему блюдо.
Так же необходимо добавить несколько наименований безалкогольных прохладительных напитков.
Предложения
В кафе необходимо заменить громоздкую деревянную мебель, на мебель более облегченной конструкции.
Так же предлагаю изменить оформление меню на красный твердый переплет с названием предприятия, т.к. официанты предлагают посетителям меню в формате А-4 без логотипов и эмблем.
Следует добавить в оформление торговых залов живые цветы и декоративные элементы.
Правила внутреннего распорядка
Начало работы производства с 8-00ч.
Начало работы кафе 9-00ч.
Соблюдение всех правил личной гигиены.
Соблюдение норм и правил техники безопасности.
Перед походом в туалет или на улицу сними санитарную одежду.
Не входить на производство без санитарной одежды.
После рабочего дня тщательно проводить влажную уборку своего рабочего места 1%: раствором хлорной извести.
Каждую первую субботу месяца проводится генеральная уборка.
Кафе заканчивает работу в 19-00ч.
организация производство общественный питание
Организация охраны труда и противопожарной безопасности
В кафе «Колхоз» для организации охраны труда на производстве на специальном стенде расположены правила охраны труда. На всех приборах и оборудовании, находящемся под напряжением, висят предупредительные таблички об электрической опасности. Для организации противопожарной безопасности в кафе используется противопожарная сигнализация с кнопками тревоги и висит пожарный щит. Рядом расположен план эвакуации в случае опасности.
Руководством предприятия ведется журнал по технике безопасности. Раз в полгода проводится инструктаж по технике безопасности, противопожарной безопасности.
|
Требования к предприятию |
Фактически в наличии |
Соответствие |
|
Механическое оборудование |
||
|
Привод универсальный с комплектом сменных механизмов 1 шт. |
Универсальный привод – 0,6 1 шт. |
Соответствует |
|
Машина взбивальная 1 шт. |
Нет в наличии |
Не соответствует |
|
Машина хлеборезательная 1 шт. |
Нет в наличии |
Не соответствует |
|
Смесительная установка для молочных коктейлей 1 шт. |
Смесительная установка для молочных коктейлей СУМК-30Q 1 шт. |
Соответствует |
|
Холодильное оборудование |
||
|
Шкаф холодильный среднетемпературный 1 шт. |
Шкаф холодильный среднетемпературный ШХС-0,71М1 1 шт. |
Соответствует |
|
Прилавок холодильный среднетемпературный с открытой охлаждаемой наприлавочной емкостью |
Нет в наличии |
Не соответствует |
|
Прилавок холодильный низкотемпературный |
Нет в наличии |
Не соответствует |
|
Охладитель напитков |
Нет в наличии |
Не соответствует |
|
Тепловое оборудование |
||
|
Плита электрическая одноконфорочная 2 шт. |
Электрическая плита ПЭ-0,51-01 трехконфорочная 1 шт. |
Соответствует |
|
Устройство варочное электрическое |
Нет в наличии |
Не соответствует |
|
Шкаф жарочный электрический |
Шкаф жарочный ШЖЭ-0,51 |
Соответствует |
|
Сковорода электрическая |
Нет в наличии |
Не соответствует |
|
Фритюрница электрическая |
Электрическая фритюрница ФЭ-0,1 |
Соответствует |
|
Кофеварка электрическая в комплекте с кофемолкой |
Кофемашина «Экспрессо-капучино» |
Соответствует |
|
Водонагреватель электрический |
Нет в наличии |
Не соответствует |
|
Нормы оснащения столовой посудой, столовыми приборами и кухонном инвентаре. |
||
|
Бак для пищевых отходов 2 шт. |
В наличии 2 шт. |
Соответствует |
|
Ведро 4 шт. |
В наличии 4 шт. |
Соответствует |
|
Веселка 5 шт. |
В наличии 3 шт. |
Не соответствует |
|
Взбивалка портативная 1шт. |
В наличии 1 шт. |
Соответствует |
|
Вилка поварская 3 шт. |
В наличии 2 шт. |
Не соответствует |
|
Держатель для кухонных ножей 2 шт. |
В наличии 2 шт. |
Соответствует |
|
Грохот 4 шт. |
В наличии 4 шт. |
Соответствует |
|
Доска разделочная 3 шт. |
В наличии 3 шт. |
Соответствует |
|
Держатель для разливных ложек 2 шт. |
В наличии 2 шт. на 9 ложек |
Соответствует |
|
Кастрюли 1,5-2,3 л. 10 шт. |
В наличии 10 шт. |
Соответствует |
|
Кастрюли 4-6 л. 12 шт. |
В наличии 7 шт. |
Не соответствует |
|
Кастрюли 8-10 л. 10 шт. |
В наличии 6 шт. |
Не соответствует |
|
Котел 20-30 л. 2 шт. |
Не имеется |
Не соответствует |
|
Консервовскрыватель 2 шт. |
В наличии 2 шт. |
Соответствует |
|
Лимоновыжималка 2 шт. |
В наличии 2 шт. |
Соответствует |
|
Ложка разливная 500 мл. 6 шт. |
В наличии 6 шт. |
Соответствует |
|
Ложки порционные для сахара 2 шт. |
В наличии 2 шт. |
Соответствует |
|
Нож для карбования и резки овощей 2 шт. |
В наличии 2 шт. |
Соответствует |
|
Ножи поварской тройки 9 шт. |
В наличии 9 шт. |
Соответствует |
|
Противень 9 шт. |
В наличии 9 шт. |
Соответствует |
|
Сковороды без ручек 170-250 мм. 8 шт. |
В наличии 8 шт. |
Соответствует |
|
Сковороды с ручкой 210 мм. 8 шт. |
В наличии 8 шт. |
Соответствует |
|
Скалки для теста разные 3 шт. |
В наличии 3 шт. |
Соответствует |
|
Ступка с пестиком 1 шт. |
В наличии 1 шт. |
Соответствует |
|
Тяпка для отбивания мяса 2 шт. |
В наличии 2 шт. |
Соответствует |
|
Штопор 2 шт. |
В наличии 2 шт. |
Соответствует |
|
Шумовка 3 шт. |
В наличии 3 шт. |
Соответствует |
Идентификационные признаки материально-технической базы
Потребность в столовой посуде, в столовых приборах, мебели и кухонном инвентаре рассчитаны по «Нормам оснащения предприятий общественного питания посудой, столовыми приборами и инвентарем».
Тема 2. Организация работы производства. Стажировка в качестве заведующего производством, его заместителя, начальника цеха.
Должностная инструкция директора предприятия общественного питания. Должностные обязанности
Осуществлять руководство производственно-хозяйственной деятельностью предприятия. Организует работу и эффективное взаимодействие цехов, участков и других производственных подразделений, направляет их деятельность на обеспечение высокого качества обслуживания потребителей. Организует своевременное снабжение продовольственными товарами и материальными ресурсами.
Обеспечивать контроль над точным учетом товара, материальных ценностей, экономным их использованием. Разрабатывает мероприятия по предупреждению хищений и порчи товарно-материальных ценностей. Обеспечивает выполнение планов и заданий, высокий уровень хозяйственно финансовой деятельности, эффективности производства, внедрение новой техники и технологии, прогрессивных форм обслуживания, разработку мероприятий по использованию внутренних резервов повышения производительности труда. Организует подбор и расстановку работников с учетом их квалификации и опыта работы, рационального разделения труда, проводит работу по внедрению опыта работы передовых предприятий общественного питания. Организует планирование, учет, составление и своевременное представление отчетности о хозяйственной деятельности, работ по развитию и укреплению хозяйственного расчета, правильному применению форм и систем оплаты труда и материального стимулирования. Организует контроль над качеством приготовления пищи, соблюдения правил торговли и ценообразования, состояний трудовой и производственной дисциплины, требований по охране труда и технике безопасности, санитарно-техническим состоянием, обеспечивает соблюдение законности.
Директор обязан знать
Руководящие материалы, определяющие направление развития общественного питания и пути его совершенствования в новых условиях. Постановления, указы, распоряжения и другие нормативные материалы, организацию и управление предприятия в условиях хозрасчета; правила и режим работы; задачи и функции подразделений; права и обязанности работников; планирование и экономику общественного питания; передовой опыт организаций общественного питания; правила и нормы по охране труда и технике безопасности, производственной санитарии и гигиены, противопожарной защиты, основы трудового законодательства.
Требования к заведующему производством (начальнику цеха)
Требования к заведующему производством (начальнику цеха), в соответствии с ОСТ 28-1-95 «Общественное питание. Требования к производственному персоналу».
- Заведующий производством (начальник цеха) должен иметь высшее или среднее профессиональное образование и опыт практической работы.
- Знать основы организации производственных цехов и производства в целом.
- четко организовывать производственную деятельность подчиненных, осуществлять рациональную организацию производственного процесса, подбор и расстановку кадров.
- знать технологии производства продукции общественного питания, требования к качеству блюд, санитарные правила для ПОП.
- Уметь пользоваться сборниками рецептур блюд, знать порядок составления меню, калькуляцию блюд и, цены на них, методику определения норм отходов и потерь сырья, обладать навыками составления технологических карт.
- знать основные положения документов по сертификации услуг ОП.
- знать требования нормативных и технологических документов на основное сырье, пищевые продукты и продукцию ОП.
- знать основные критерии безопасности кулинарной продукции и не допускать использование сырья и пищевых продуктов содержащие опасные для здоровья вещества химического и биологического происхождения.
- знать современные виды механического, теплового и холодильного оборудования, принципы его работы, технические характеристики и условия эксплуатации, виды инвентаря, посуды, весоизмерительные приборы.
- осуществлять постоянный контроль над технологическими режимами и рецептурами блюд, за соблюдением производственным персоналом санитарных требований и правил личной гигиены.
- осознавать необходимость полностью отвечать за последствия своих действий и принимаемых решений при выполнении должностных функций.
Требования, предъявляемые к шеф-повару
Должен иметь высшее или среднее профессиональное образование и опыт практической работы, знать основы трудового законодательства РФ, основные положения Закона РФ «О защите прав потребителей» Правила производства и реализации продукции (услуг) общественного питания, отраслевые руководящие документы, касающиеся его профессиональной деятельности.
Знать основы организации производства в целом. Быть способным организовать производственную деятельность подчиненных, осуществлять рациональную организацию технологического процесса, подбор и расстановку кадров. Уметь пользоваться сборниками рецептур блюд, знать порядок составления меню, учет и отчетность, калькуляцию блюд и цены на них, методику и определение норм отходов И.потерь сырья методику разработки рецептур на новые и фирменные блюда, обладать навыками по разработке стандартов предприятия, технических условий и составление технологических карт. Знать основные положения по сертификации услуг общественного питания, ГОСТы, ОСТы, ТУ и др. Знать последовательность технологического процесса, режимы и способ обработки сырья и полуфабрикатов. Знать основные критерии безопасности кулинарной продукции и не допускать использование сырья и пищевых продуктов, содержащих потенциально опасные для здоровья вещества химического и биологического происхождения. Знать иностранные языки и профессиональную терминологию в необходимом объеме. Знать современные виды механического, теплового и холодильного оборудования, принципы его работы, технические характеристики и условия эксплуатации, а также виды тары, инвентаря, посуды, весоизмерительных приборов. Знать и уметь применять в практической деятельности методы контроля качества продукции и услуг. Осуществлять постоянный контроль за соблюдением технологических режимов и рецептур блюд за соблюдением персоналом санитарных требований и правил личной гигиены. Уметь работать с людьми, создавать благоприятные условия для проявления инициативы и активности у подчиненных, воспитывать деловые качества. Осваивать и использовать новые методы в работе, уметь перестраивать работу в соответствии с новыми требованиями. Осознавать необходимость полностью отвечать за последствия своих действий и принимаемых решений при выполнении должностных функций.
При поставке товаров и сырья шеф- повар проверяет органолептическим способом качество, сверяет количество и наименования привезенного сырья.
К поварам в кафе "Колхоз" предъявляются следующие требования:
Повар должен иметь начальное или среднее профессиональное образование, знать рецептуры и технологию приготовления блюд и кулинарных изделий, в том числе совместимость и взаимозаменяемость продуктов, изменения, происходящие в процессе кулинарной обработки сырья. Знать товароведную характеристику сырья, в том числе новых и нетрадиционных видов, приемы и последовательность технологических операций при его кулинарной обработке. Соблюдать санитарно-гигиенические требования при производстве кулинарной продукции и не допускать использование сырья и пищевых продуктов, содержащих потенциально опасные для здоровья вещества химического и биологического происхождения. Уметь пользоваться сборниками рецептур, стандартами предприятия, технологическими картами при изготовлении блюд и кулинарных изделий. Знать особенности приготовления и подачи кулинарных блюд и блюд иностранных кухонь. Обладать навыками по изготовлению и подаче блюд с проведением заключительных операций приготовления в зале на виду у потребителей. Осознавать ответственность за выполняемую работу.
Организация материальной ответственности в кафе
В кафе «Колхоз» сосредоточены большие запасы товарно-материальных ценностей и денежных средств. За все ценности находящиеся в организации должна быть установлена материальная ответственность.
Материальная ответственность - полная.
Полная материальная ответственность за ценности возникает по договору о материальной ответственности, а также по разовой доверенности за ценности, полученные работником под отчет.
Договор заключается с работниками общественного питания, непосредственно связанными с приемом, хранением, обработкой, продажей, отпуском, перевозкой ценностей.
Администрация кафе заключает договор о полной материальной ответственности. Договор заключается с лицами, достигшими 18 летнего возраста в письменной форме на основании типового договора о полной индивидуальной материальной ответственности или типового договора о коллективной материальной ответственности.
Договор заключается с лицами, занимающими должности или выполняющими работы, предусмотренные в специальном перечне, утвержденном в особом порядке.
Договор о материальной ответственности не заключают с учениками, практикантами, выпускниками специальных учебных заведении, не имеющих опыта работы с материальными ценностями, в течение первого года их работы.
Договор материальной ответственности предусматривает взаимные обязательства сторон. Администрация кафе обязана обеспечить исправное состояние весоизмерительного оборудования, систем сигнализации и запоров, надлежащие условия хранения товара и организации труда; своевременный и правильный учет движения и остатков товаров и других ценностей. Материально ответственные лица обязаны обеспечить сохранность ценностей, правильно осуществлять их прием, хранение, продажу, и отпуск товаров участвовать, в инвентаризации.
Бригадная материальная ответственность вводится в том случае, когда невозможно разграничить ответственность каждого работника, и обязательно с согласия всех членов бригады. Договор заключается со всеми членами бригады.
Полная материальная ответственность работников предполагает их обязанность полностью возместить ущерб, причиненный организации.
Администрация кафе «Колхоз» привлекает к материальной ответственности работников только после тщательной проверки причин возникновения недостачи с учетом письменных объяснений материально ответственных лиц.
В кафе материально ответственные лица несут ответственность за недостачу, порчу, хищение материальных ценностей в размере их продажной стоимости. При бригадной материальной ответственности обычно каждый член бригады возмещает материальный ущерб пропорционально его окладу, и фактически проработанному времени в межинвентаризационный период. В том случае, когда доказана вина конкретного члена бригады, остальные члены бригады освобождаются от возмещения ущерба.
В данном предприятии заключен договор о полной индивидуальной ответственности.
Ознакомление со структурой производства
В кафе «Колхоз» применяется цеховая структура производства, но так как предприятие малой мощности, то некоторые цеха объединены. Например, холодный цех с горячим, мясной с рыбным. Кафе «Колхоз» относится к предприятиям с полным циклом производства.
В холодном цехе:
Для приготовления салатов и винегретов, нарезки гастрономических, мясных и рыбных продуктов, порционирования и оформления блюд. Приготовления бутербродов - производится на универсальных рабочих местах последовательно в соответствии с производственной программой.
Для приготовления салатов и винегретов используют ванны для промывки свежих овощей. Нарезают сырье и вареные овощи на разных разделочных досках с разной маркировкой «ОС» или «ОВ», применяются ножи поварской тройки.
Для приготовления закусок из гастрономических продуктов, для нарезки продуктов используются гастрономические ножи, для контроля выхода массы порции используют электронные цифровые весы.
При приготовлении бутербродов хлеб и продукты нарезают ручным способом, используя гастрономические, сырные, хлебные ножи, специальные приспособления.
Горячий цех:
В горячем цехе рабочие места организуются по виду тепловой обработки: рабочие места для жарения и пассерования продуктов, п\ф; рабочие места для варки, тушения, припускания продуктов; рабочие места для приготовления гарниров и каш.
Для приготовления вторых блюд, гарниров, соусов, горячих напитков устанавливают оборудование: кухонные плиты, жарочный шкаф и.т.д.
Мясной цех
Предусматривает обработку мяса, птицы, рыбы в одном помещении. Учитывая специфический запах рыбных продуктов, необходимо организовать разделенные потоки обработки мяса и рыбы. Кроме разделенного оборудования выделяются отдельно инструмент, тара, разделочные доски, маркированные для обработки рыбы и мяса.
Овощной цех
Предусматривает механическую обработку овощей и корнеплодов. Цех должен иметь удобную связь с холодным и горячими цехами, в· которых завершается выпуск готовой продукции.
Моечная кухонной посуды
Предназначена для мытья кухонной посуды, кухонного и раздаточного инвентаря, инструментов.
Хлеборезка
Предусматривается для хранения, нарезки и отпуска хлеба и хлебобулочных изделий.
Моечная столовой посуды
Предназначена для мытья столовой посуды после использования.
Ознакомление с используемой на производстве нормативной и технологической документацией. Перечень нормативных документов
ФЗ РФ «О качестве и безопасности пищевых продуктов»/ Утв. 0201.2000 фз-29
2. Правила оказания услуг общественного питания (Постановление правительства РФ от 15.08.97 № 1036 с изменениями и дополнениями от 21.06.2001 № 389)
3. Сборник рецептур блюд и кулинарных изделий для предприятий общественного питания. - М.: Хлебпродинформ, 1996, 1997. Сборник технологических нормативов.
4. Сборник рецептур блюд и кулинарных изделий национальных кухонь народов России. - М., МП «Вика», 1992
ГОСТ 50647-94 «Общественное питание. Термины и определения»
6. ГОСТ Р 50763-95 «Общественное питание. Кулинарная продукция реализуемая, населению. Общи технические условия».
7. ГОСТ Р 50763-95 «Общественное питание. Классификация предприятий».
Нормативная документация кафе «Колхоз»
Для производства в кафе «Колхоз» имеются следующие документы.
Сборник рецептур блюд и кулинарных изделий наряду с действующими в отрасли стандартами и техническими условиями являются основными нормативно-технологическими документами. Для предприятий общественного питания применяется сборник 1994 года. В сборнике приводится рецептуры, технология приготовления блюд, а также нормы расхода сырья, выхода п\ф и готовой продукции, рекомендации по взаимозаменяемости продуктов. В рецептурах указанно: наименование продуктов входящих в блюдо, нормы вложения продуктов массой Брутто и Нетто, выход отдельных готовых продуктов и блюда в целом.
В каждом сборнике в ведении указанны кондиции всех видов сырья и продуктов. Сборником рецептур блюд руководствуются при составлении калькуляционных карт.
Технологические карты
Эти карты составляются на каждое блюдо, кулинарное или кондитерское изделие на основании сборника рецептур блюд применяемого на данном предприятии.
В технологических картах указывается: наименование блюда, номер и вариант рецептуры, нормы вложения сырья массой нетто на 1 порцию, а также дается расчет на определенное количество порций или изделий, указывается выход блюда.
В картах также производится краткое описание технологического процесса приготовления блюда и его оформления, требования к качеству блюда, коэффициенты трудоемкости блюда. Технологические карты устанавливаются по установленной форме, подписываются директором, заведующим производством и калькулятором, хранятся в картотеке зав. производством.
В общественном питании используется принцип нормативной калькуляции, т.е. расход сырья на определенное блюдо строго нормирован.
Калькуляция составляется в калькуляционных картах установленной формы. Калькуляцию можно составить на 1 блюдо или 100 блюд.
В калькуляционной карточке предусмотрено несколько граф, в которых записывают продажную цену каждый раз, когда происходит изменение сырьевого состава и цен на сырье и продукты.
Правильность исчисленной в калькуляционной карточке продажной цены подтверждаются подписями заведующего производством, лица составившего калькуляционную карточку, и утверждается руководителем организации.
Способ расчета продажной цены:
Цена приобретения + единая наценка или продажная цена + торговая надбавка + наценка => стоимость набора продуктов по продажной цене, а продажная цена равна стоимости сырьевого набора.
Оперативное планирование работы производства
Сущность оперативного планирования заключается в составлении программы предприятия. Вопросами планирования производственной программы занимается заведующий производством. В кафе «Колхоз» разрабатывается товарооборота на месяц, на основании этого плана составляется производственная программа на день.
Оперативное планирование работы производства включает в себя следующие этапы:
• составление планового меню на неделю, декаду, на его основе разработку плана-меню отражающего дневную производственную программу предприятия; составление и утверждение меню.
• расчет потребности в продуктах для приготовления блюд, предусмотренных планом меню, и составления требования накладной на сырье.
• оформление требования накладной на отпуск продуктов из кладовой на производство и получение сырья.
• получение сырья для изготовления п\ф. Распределение сырья между цехами и определение задания поварам в соответствии с планом-меню.
План меню
|
№ по сборнику рецептур |
Наименование блюд и закусок |
Кол-во блюд |
Выпуск блюд партиями |
Ответственный за приготовление блюд повар |
||
|
К 11 |
К 13 |
К 15 |
||||
|
50 52 63 190 171 178 544 680 685 500 773 775 800 |
1 холодные блюда Салат из свежей капусты Салат из огурцов Салат «столичный» Всего 2 первые блюда Суп лапша домашняя Рассольник ленинградский Солянка сборная рыбная Всего 3 вторые блюда Судак жаренный, с луком фри Котлета «Колхозная» Лангет Пельмени отварные Всего 4 гарнир Картофель отварной Картофель жаренный Макароны отварные Всего |
120 135 135 385 170 200 125 495 120 100 75 140 435 120 90 100 310 |
30 35 35 60 70 40 30 25 20 40 30 25 25 |
55 60 55 80 90 60 70 55 40 55 65 50 50 |
35 40 40 30 40 25 20 20 15 45 25 15 25 |
Иванова ―/― ―/― Кузьменко ―/― ―/― Красилов ―/― ―/― ―/― Кузьменко ―/― ―/― |
Директор ________________(подпись)
Заведующий производством_______________(подпись)
Составление вариантов меню для банкетов с учетом характера мероприятия. Составление меню для банкета с частичным обслуживанием официантами. Тематика – свадьба.
При составлении меню учтен характер праздника.
В праздничном меню указано: ассортимент закусок и блюд, количество порций, для того чтобы разнообразить ассортимент закусок, рекомендуется на каждого участника банкета заказывать по 1\3 порции.
Время провидения банкета с 15:00 до 24:00. Количество приглашенных гостей 32 человека.
При оформлении заказа с заказчиком была согласованна дата проведения банкета, время начала и окончания обслуживания, примерное меню и предварительная стоимость заказа. После приема заказа с заказчиком банкета было согласованно оформление банкетного зала, расстановка столов и стульев.
После оформления заказа, заказчик вносит не менее 50%суммы от стоимости проведения банкета.
|
Наименование блюд |
Количество порций |
|
Холодные закуски |
|
|
Канапе с бужениной и окороком |
20шт. |
|
Волованы с семгой и кетой |
20шт. |
|
Грибы, маринованные с луком |
20 |
|
Салат рыбный деликатесный |
32 |
|
Салат мясной |
32 |
|
Морепродукты под майонезом |
16 |
|
Ассорти мясное |
10 |
|
Вторые блюда |
|
|
Грибы в сметанном соусе |
32 |
|
Котлеты по-киевски |
32 |
|
Картофельное пюре |
32 |
|
Десерт |
|
|
Фрукты |
24 |
|
Мороженное с вином |
32 |
|
Горячие напитки |
|
|
Кофе « нескафе голд» |
32 |
|
Чай «ахмад» |
32 |
|
Холодные напитки |
|
|
Сок апельсиновый «Моя семья» |
32 |
|
Сок клюквенный «Моя семья» |
32 |
|
Шампанское «Советское» |
|
|
Красное крепкое вино «Изобелла» |
|
|
Коньяк «Моссковский» |
|
|
Водка «Березка» |
|
|
Хлеб |
|
|
Ржаной, пшеничный. |
32 |
Разработка ассортимента блюд и напитков для «салат-баров» (в зависимости от возможности предприятия)
«Салат – бар» на предприятиях используется для быстрого и при небольшом количестве рабочего персонала обслуживания наибольшего числа потребителей.
Бар оборудуют стойкой с открытой витриной – холодильником, где установлены емкости (вазочки с объемом 200 мл), наполненные компонентами салатов и заправками для них. Рядом располагают табличку с ценой, выходом салата и перечнем входящих в него продуктов.
В кафе «Колхоз» не применяется услуга по организации «салат - бара».
«Салат – бар» - это современный вид обслуживания посетителей, а в кафе «Колхоз» в основном используются классические формы обслуживания.
Работа со сборником рецептур блюд
Сборник рецептур блюд и кулинарных изделий для предприятий общественного питания регламентирует: нормы вложения сырья по массе брутто в граммах, отходы при первичной обработке сырья в процентах к нормам брутто, нормы вложения продуктов по массе нетто: потери при тепловой обработке в процентах к норме нетто и массе полуфабриката, нормы выхода готовых изделий, массу продуктов готовой продукции, массу (в граммах) каждого блюда в целом.
Расход специй, соли и зелени в каждой рецептуре не указан, а во вводной части соответствующих разделов Сборника рецептур даны нормы этих продуктов на одно блюдо.
Нормы вложения продуктов массой брутто указанны в рецептурах на сырье основной кондиции: домашней птицы – полупотрошеной, субпродуктов – мороженных, свинины – мясной, картофеля - с отходами при тепловой обработке в период с 1 сентября по 1 ноября – 25%.
В этом случае, когда для приготовления блюд используется сырье других кондиций, необходимо помнить что нормы вложения массой брутто увеличиваются или уменьшаются. В этом случае расход продуктов определяется по таблицам расхода сырья, выхода полуфабрикатов и готовых изделий или на основании расчетов по нормам отходов, которые указанны в приложении к сборнику. Норма вложения сырья определяется по колонке брутто. В сборниках приведены нормы взаимозаменяемости отдельных видов сырья.
Расчет сырья
В кафе «Колхоз» расчет количества сырья и продуктов, нужных для приготовления блюд, производится на основании меню (плана-меню) и Сборника рецептур блюд и кулинарных изделий – 1996 года.
Для производства мучных кондитерских изделий и кулинарных изделий расчет сырья производится отдельно.
Для получения продуктов из кладовой на основании этих расчетов составляется требования – накладная. Далее заведующий производством дает задание бригадирам цехов или работников по выполнению на следующий день производственной программы и отпускает им продукты. Причем в первую очередь выдает продукты, поступившие раньше, в начале сухие продукты, затем из охлаждаемой камеры и в последнюю очередь – картофель, овощи.
Участие в получении продуктов и сырья со складов. Распределение продуктов по цехам. Состав задания поварам
Получение продуктов со склада
Из складских помещений предприятий общественного питания отпуск осуществляется на производство, в филиалы, буфеты по требованиям, составленным материально-ответственным лицом. На основании требования составляет требования – накладные, которые подписываются главным бухгалтером и руководителем предприятия, а после отпуска товаров – заведующим складом и получившим товар материально ответственным лицом.
При получении продуктов со склада проверяется соответствие их требованиям накладным по ассортименту, массе, качеству, а так же исправность тары.
Перед отпуском кладовщик вскрывает тару, проверяет качество товаров, производит их сортировку и зачистку. При отпуске продуктов кладовщику проверяет очередность: товары, поступившие раньше, отпускаются в первую очередь, вначале сухие продукты, затем из охлаждаемых камер и в последнюю очередь картофель, овощи.
Кладовщик обязан подготовить мерную тару, весоизмерительное оборудование, инвентарь, инструмент.
При получении продуктов материально ответственное лицо должно убедится в исправности весов, проверить все тары, качество продукции, сроки реализации отпускаемых товаров, проследить за точностью взвешивания и записью в накладной.
Приемка товаров по качеству проводится органолептически (по виду, цвету, запаху, вкусу). При этом проверяют соответствие стандартам, ТУ. Качества, где указываются дата изготовления, срок реализации, название фирмы; гигиенические сертификаты.
Распределение сырья по цехам, составление заданий поварам
Заведующий производством дает задание работникам по выполнению производственной программы на следующий день и отпускает им продукты. Например, повару холодного цеха дается примерно следующая выписка из меню (плана-меню)
Задание поварам
|
Наименование блюд по плану - меню |
Общий выпуск блюд в день |
Количество блюд (порций) и время их выпуска |
||
|
К 11ч. |
К 13ч. |
К 15ч. |
||
|
Салат из свежей капусты Салат из огурцов и помидоров Салат «Столичный» |
120 135 130 |
30 60 40 |
55 40 55 |
35 35 35 |
|
Всего |
385 |
130 |
150 |
105 |
В задании указывается наименование блюд и количество, график выпуска их партиями. Работникам овощного, мясного цеха кафе «Колхоз» дается заказ на выпуск полуфабрикатов. При выполнении заданий повара должны учитывать сезонность овощей и кондицию сырья. Для перерасчетов используют следующие формулы:
Масса нетто * 100
1)Масса брутто =100 - % отходов
2) масса масса_брутто_*_(100_-_%_отходов)
Нетто = 100
Кафе «Колхоз» начинает работу с 9:00 утра, поэтому полуфабрикаты заготавливаются за 2 часа до открытия торгового зала.
Задание по приготовлению блюд и кулинарных изделий является дневным планом работы каждого работника. На основании задания заведующий производством осуществляет расстановку поваров по участкам работы и контролирует выполнение производственного задания.
В конце рабочего дня повара отчитываются перед заведующим производством о качестве выпускаемых полуфабрикатов или готовых блюд согласно полученному заданию и фактической реализации блюд. Материально ответственные лица ведут оперативный учет движения сырья и готовой продукции и следят за расходом продуктов, обеспечивают соблюдение норм вложения сырья в соответствии с технологическими картами или Сборником рецептур блюд.
Ознакомление и анализ эффективности товародвижения в предприятии
Каждое предприятие должно повышать эффективность товародвижения.
Товародвижение – это транспортировка товаров от мест их производства до мест их потребления. В данном предприятии применяется смешанная форма снабжения: транзитная и складская.
При транзитной форме снабжения предполагает прямые связи «поставщик – предприятие», минуя промежуточные оптовые базы. Эта форма используется для поставки скоропортящихся и крупногабаритных товаров. Для не скоропортящихся продуктов используется складская форма снабжения.
Важную роль в процессе товародвижения играет транспорт. Транспортная организация в процессе транспортировки товаров должна обеспечивать:
- сохранность груза при транспортировке;
- своевременную доставку груза;
- соблюдение правил загрузки и транспортировки товара;
- эффективное использование транспортных средств.
Для перевозки продовольственных товаров используется специализированный транспорт, имеющий маркировку «Продукты», кузова таких машин изнутри обшиваются оцинкованным железом или листовым алюминием. На каждую машину должен быть выдан санитарный паспорт, выданный учреждением санитарно – эпидемиологической службы.
Схема товародвижения молока на 1 рабочий день
Предприятие
изготовителя => Склад, хранение на => транспортировка на
ООО агрокомплекс предприятии спец. машине к
Выселковский поставщику
Передача на склад транспортировка на
=>предприятия => место хранения и размещение =>
на складе предприятия
=>распределение по цехам => реализация в торговый зал.
и переработка
Ознакомление с организацией труда на производстве
Одним из главных направлений организации труда является разработка рациональных форм разделения и кооперации труда, которые в наибольшей мере соответствовали бы технике, культурному и техническому уровню работников.
Разделение труда между работниками производства является технологическим - первичная обработка сырья, тепловая обработка продуктов, приготовление холодных блюд.
Требования к производственному персоналу полностью соответствует ОСТам 28-1-95 «Общие требования к производственному персоналу». Заведующий производством осуществляет контроль за:
- работой в цехах (график выхода на работу)
- правильностью эксплуатации оборудования
- соблюдение производственной и технологической дисциплины ( наблюдения за работниками, предоставление работникам технологических карт, проведение инструктажа)
- нормами выхода полуфабрикатов и готовой кулинарной продукции
- соблюдение норм и правил личной гигиены
- нормы охраны труда и техники безопасности.
Контроль качества выпускаемой продукции, который осуществляется на нашем предприятии это внешние и внутренние проверки, а также брокераж готовой продукции, за качество которой отвечает зав. производством.
Внешний контроль осуществляется со стороны органов местной администрации, санэпидемнадзора, торговой инспекции и др. оценки по качеству пищи предприятия заносятся в контрольный журнал, бракеражный журнал. При обнаружении составляется акт проверки в двух экземплярах, один экземпляр остается на предприятии.
Внутренний контроль осуществляется администрацией предприятия: директор, зав. производством и их заместители, начальники цехов, а также повара – бригадиры. Контроль за качеством пищи называется брокеражем готовой продукции. В нашем кафе имеется бракеражная комиссия, которая проводит оценку качества блюд в следующем порядке.
Оценку качества блюд осуществляют в такой последовательности. Вначале пробуют блюда, имеющие слабовыраженные вкус и запах, затем более острые, сладкие блюда дегустируют в последнюю очередь. Каждый из пяти показателей качества блюд (внешний вид, вкус, цвет, запах, консистенция) оценивается по пятибалльной системе. Средняя оценка выводится как среднеарифметическая, с точностью до одного знака после запятой.
Результаты проверки качества кулинарной продукции записывается в бракеражный журнал до начала её реализации и заверяется подписями бракеражной комиссии.
Участие в составлении графика выхода на работу.
В кафе применяется линейный и одновременно суммированный график выхода на работу. Это объясняет своей спецификой работы кафе. Весь рабочий персонал выходит на работу одновременно.
Ознакомление с порядком отпуска готовой продукции с производства. Оформление сопроводительной документации
Качество готовых блюд, кулинарных и кондитерских изделий зависит от качества поступающего сырья и п\ф, правильного хранения.
Важнейшим условием выпуска блюд высокого качества является четкое соблюдение работниками норм закладки сырья и осуществления технологического процесса в строгом соответствии с установленными требованиями. Этому способствует также на рабочих местах у поваров наличие технологических карт. Повышение качества пищи зависит от квалификации поваров, чувства ответственности за порученное дело.
Одним из путей повышения качества пищи является организация брокеража. На данном предприятии брокераж пищи не ведется, не составляется бракеражная комиссия, отсутствует бракеражный журнал.
Качество блюд и кулинарных изделий оценивают по органолептическим показателям и в зависимости от них дают оценку «хорошо», «отлично», «удовлетворительно», «неудовлетворительно».
В кафе «Колхоз» отпускают готовую продукцию с производства на лоток, буфет. Отпускающий продукцию зав. производством составляет накладную, в которой указывается номер, дата, организация отправитель и организация получатель, наименование товара, единица измерения, количество, цена, сумма.
Подписывают накладную лица отпустившие товар. С обратной стороны ставится штамп удостоверения качества на кулинарную, мучную и кондитерскую продукцию. В штампе указывают, что продукция согласно накладной № соответствует ГОСТ Р.50763-95 «Общественное питание. Кулинарная продукция , реализуемая населению» и Сборник рецептур.
Предприятие изготовитель имеет сертификат соответствия на услуги, дату изготовления и срок реализации продукции, количество продукции, подпись директора организации. Накладная выписывается в двух экземплярах. Один отдается организации получателю, а другой остается у зав. производства и служит документом строгой отчетности.
Составление отчета по работе производства за день
В конце рабочего дня зав. производством отчитывается перед бухгалтерией. В бухгалтерию он сдает: меню, накладные, товарный отчет, кассовый чек и квитанции к приходному ордену, акт о реализации.
День 15.
Участие в работе инвентаризационной комиссии
В ходе проведения инвентаризации можно выявить изменения и недостатки.
В кафе инвентаризация проходит раз в месяц. Для проведения инвентаризации назначается комиссия. В состав комиссии входит: бухгалтер, зав. производством и повар. Перед началом инвентаризации материально ответственное лицо дает расписку о том, что весь товар оприходован. В ходе инвентаризации составляется инвентаризационная опись. В нее вносят фактические остатки товаров и тары на складе. После снятия остатков, ее подписывают материально ответственное лицо и члены комиссии. Если обнаружена недостача в пределах нормы естественной убыли, то ее списывают на виновных лиц.
Персонал должен знать современные виды механического, теплового и холодильного оборудования, принципы его работы, технические характеристики условия эксплуатации, а также виды тары, инвентаря, посуды, весоизмерительных приборов. Знать и уметь применять в практической деятельности методы контроля качества продукции и услуг.
Если на производстве остается не пригодная для дальнейшего использования продукция, полуфабрикаты (например, с истекшим сроком реализации, с признаками порчи и т.п.), то их оформляют на списание с реализации. В конце недели в кафе проводится инвентаризация и по ее итогам составляется акт о списании непригодной для дальнейшего использования кухонной посуды, инвентаря, производственных средств и др.
Санитарные требования к личной гигиене:
• У каждого работника заведена медицинская кишка;
• Каждый работник должен приходить на работу в чистой одежде и обуви;
• Перед началом работы тщательно мыть руки;
• Надевать чистую санитарную одежду;
• При посещении туалета снимать санитарную одежду;
• Запрещается наносить ювелирные украшения, покрывать ногти лаком, курить на рабочем месте;
• Каждый работник 1 раз в год должен проходить сан. минимум.
В целях охраны труда и техники безопасности на предприятии зав. производством ведет журнал техники безопасности. В журнале имеется инструкция по охране труда и технике безопасности для отдельных видов работников.
Анализ технологического процесса на предприятии
Проанализировав технологический процесс на предприятии можно сказать, что он организован весьма удачно. Блюда, приготовляемые на предприятии всегда очень высокого качества. Производственный персонал кафе профессионален, производственное оборудование новое, хорошего качества. Технологии приготовления прогрессивны, экономичны и удобны.
Для лучшей эффективности работа производства необходимо усовершенствовать график выхода на работу сотрудников кафе. Возможно внедрение новых блюд, регулярное обновление ассортимента.
Участие в подготовке и проведении выставок – продаж кулинарных и кондитерских изделий, дегустаций, презентаций
В кафе «Колхоз» не проводятся, и не подготавливаются выставки – продаж кулинарных и кондитерских изделий, дегустаций, презентаций, такая услуга не предоставляется.
|
Ф.И.О. |
Разряд повара |
1 |
2 |
3 |
4 |
5 |
6 |
7 |
8 |
9 |
10 |
11 |
12 |
13 |
14 |
15 |
16 |
17 |
18 |
19 |
20 |
21 |
22 |
23 |
24 |
25 |
26 |
27 |
28 |
29 |
30 |
31 |
||
|
1 |
Иванова Г.Я. |
VI |
В |
В |
В |
8/19 |
8-19 |
8/19 |
В |
В |
В |
8/19 |
8/19 |
8/19 |
В |
В |
В |
8/19 |
8/19 |
8/19 |
В |
В |
В |
8/19 |
8/19 |
8/19 |
В |
В |
В |
8/19 |
8/19 |
8/19 |
В |
165 |
|
2 |
Красилов И.В. |
V |
В |
В |
В |
8/19 |
8/19 |
8/19 |
В |
В |
В |
8/19 |
8/19 |
8/19 |
В |
В |
В |
8/19 |
8/19 |
8/19 |
В |
В |
В |
8/19 |
8/19 |
8/19 |
В |
В |
В |
8/19 |
8/19 |
8/19 |
В |
165 |
|
3 |
Иващенко Е.А. |
IV |
В |
В |
В |
8/19 |
8/19 |
8/19 |
В |
В |
В |
8/19 |
8/19 |
8/19 |
В |
В |
В |
8/19 |
8/19 |
8/19 |
В |
В |
В |
8/19 |
8/19 |
8/19 |
В |
В |
В |
8/19 |
8/19 |
8/19 |
В |
165 |
|
4 |
Кузьменко Т.К. |
III |
В |
В |
В |
8/19 |
8/19 |
8/19 |
В |
В |
В |
8/19 |
8/19 |
8/19 |
В |
В |
В |
8/19 |
8/19 |
8/19 |
В |
В |
В |
8/19 |
8/19 |
8/19 |
В |
В |
В |
8/19 |
8/19 |
8/19 |
В |
165 |
|
5 |
Тополь С.И. |
VI |
8/19 |
8 / 19 |
8/19 |
В |
В |
В |
8/19 |
8/19 |
8/19 |
В |
В |
В |
8/19 |
8/19 |
8/19 |
В |
В |
В |
8/19 |
8/19 |
8/19 |
В |
В |
В |
8/19 |
8/19 |
8/19 |
В |
В |
В |
165 |
|
|
6 |
Сердюк П.К. |
V |
8/19 |
8/19 |
8 / 19 |
В |
В |
В |
8/19 |
8/19 |
8/19 |
В |
В |
В |
8/19 |
8/19 |
8/19 |
В |
В |
В |
8/19 |
8/19 |
8/19 |
В |
В |
В |
8/19 |
8/19 |
8/19 |
В |
В |
В |
165 |
|
|
7 |
Пешко И.В. |
IV |
8/19 |
8/19 |
8/19 |
В |
В |
В |
8/19 |
8/19 |
8/19 |
В |
В |
В |
8/19 |
8/19 |
8/19 |
В |
В |
В |
8/19 |
8/19 |
8/19 |
В |
В |
В |
8/19 |
8/19 |
8/19 |
В |
В |
В |
165 |
|
|
8 |
Харченко А.В. |
III |
8/19 |
8/19 |
8/19 |
В |
В |
В |
8/19 |
8/19 |
8/19 |
В |
В |
В |
8/19 |
8/19 |
8/19 |
В |
В |
В |
8/19 |
8/19 |
8/19 |
В |
В |
В |
8/19 |
8/19 |
8/19 |
В |
В |
В |
165 |
График выхода на работу поваров. Июнь 2008 год. Утверждаю директор ________________
Зав производством ____________
В июне месяце переработка составила 5 часов.
Каждому работнику за переработанное время
была проведена доплата к заработной плате
Тема 3
Работа в качестве дублера администратора зала
К администратору торгового зала предъявляются следующие требования
Обеспечивать работу по эффективному и культурному обслуживанию посетителей кафе «Колхоз». Созданию для них комфортных условий. Осуществляет контроль над сохранностью материальных ценностей. Консультирует посетителей по вопросам наличия имеющихся в кафе услуг. Принимает меры к предотвращению и ликвидации конфликтных ситуаций. Рассматривает претензии, связанные с неудовлетворительным обеспечением посетителей, и проводит соответствующие организационно-технические мероприятия. Осуществляет контроль над рациональным оформлением помещений, следит за обновлением и состоянием рекламы в помещениях и на здании. Обеспечивает чистоту и порядок в помещениях и на прилегающих к ним или зданию территориях. Контролирует соблюдение работниками организации трудовой деятельности и производственной дисциплины, правил и норм охраны труда, техники безопасности, требований производственной санитарии и гигиены. Информирует руководство кафе об имеющихся недостатках в обслуживании посетителей, принимает меры к их ликвидации. Осуществляет контроль над исполнением указаний руководства работниками организации.
Осуществляет операции по приему, учету, выдачи и хранению денежных средств и ценных бумаг с обязательным соблюдением правил, обеспечивающих их сохранность. Оформляет документ и получает в соответствии с установленным порядком денежные средства.
Ведет на основании приходных и расходных документов кассовую книгу. Сверяет фактическое наличие денежных сумм и ценных бумаг с книжным остатком. Составляет кассовую отчетность.
Выполняет работу по обеспечению организации кадрами требуемых профессий, специальностей и квалификации. Изучает личный состав кафе «Колхоз» и его подразделений, установленную документацию по учетам кадров, связанную с приемом, переводом, трудовой деятельностью и увольнением работников, а также расстановку работников, их деловые качества с целью подбора их на замещение вакантных должностей. Участвует в организации работы квалификационных и аттестационных комиссий и в оформлении их решений. Анализирует движение кадров и принимает участие в разработке мероприятий по устранению их текучести. Организует профессиональное обучение и повышение квалификаций. Участвует в работе по профессиональной ориентации, а также в разработке учебно-методической документации (учебных планов и программ, пособий и т.д.) Ведет учет работы по подготовке и повышению квалификации кадров, анализирует качественные показатели результатов обучения и его эффективность. Принимает меры по соблюдению трудовой дисциплины и правил трудового распорядка в организации.
Администратор непосредственно включает:
а) TV - в момент начала работы кафе для посетителей
б) Кондиционеры (несанкционированное вмешательство в работу кондиционеров влечет штраф!)
Администратор обязан знать:
постановления, распоряжения, приказы, другие руководящие и нормативные документы вышестоящих и других органов, касающихся работы организации; структуру управления организацией, права и обязанности работников организации и режим их работы; правила и методы организации процесса обслуживания посетителей; ассортимент реализуемых услуг; основы маркетинга; правила приема, выдачи и хранения денежных средств и ценных бумаг; порядок оформления приходных и расходных документов; лимиты остатков кассовой наличности, установленной для организации; правила обеспечения их сохранности; порядок ведения кассовой книги, составления кассовой отчетности; правила эксплуатации электронно-вычислительной техники; принципы планировки и оформления помещений, основы эстетики, этики, психологии и обслуживания посетителей; вопросы подготовки и повышения квалификации кадров, перспективы развития организации; положения о работе аттестационных и квалификационных комиссий; порядок принятия на работу; формы, виды и методы профессиональной ориентации и обучения; разработку учебных планов и программ; порядок ведения отчетности по кадрам; основы экономики, организации труда и управления; законодательство о труде и охране труда РФ; правила внутреннего трудового распорядка; правила и нормы охраны труда, техники безопасности, производственной санитарии и пожарной защиты. Администратор должен четко исполнять:
а) график и контроль над его исполнением.
б) контроль над выполнением поставленных задач в соответствии с порядком работы сотрудника
в) учет и контроль поступающих денежных средств.
г) безопасность и своевременное решение возникших проблемных ситуаций путем скоординированной работы администратора, охранника, использования устройства оповещения и автоматического вызова органов внутренних дел.
Требования к исполнению служебных обязанностей:
1. Начало рабочего дня.
а) открытие смены на рабочих страницах
В течение рабочего дня производится приходование денежных средств (на основании закрытия смен) от официантов.
В конце рабочего дня.
а) производится закрытие рабочего дня и выгрузка смены.
б) данные по отчетам закрытия рабочего дня являются данными для составления дневного отчета.
в) Отчет заносится в тетрадь администратора и состоит из:
1. фиксации персональных сумм по официантам.
2. итогового результата, состоящего из компьютерного отчета по данному числу, подкрепленного в тетрадь.
3. а так же отчетов по регистраторам наличного и безналичного прихода (касса, банковский терминал), которые подкрепляются в тетрадь, являясь составляющим полного отчета за день.
4. Все это заверяется подписью администратора смены и является обязательным ежедневным условием работы.
Обслуживающий персонал работает по следующему графику: два рабочих дня и два дня выходных, время работы с 9:00 до 24:00 (если банкет), перерыв не фиксирован и составляет один час. Так же вместе с графиком составляется таблица, в которой отмечаются все штрафы, которые получил сотрудник за месяц работы, их сумма затем вычитается из зарплаты.
Администратор руководит работой обслуживающего персонала.
Требования, предъявляемые к бармену кафе «Колхоз»:
Бармен обязан приходить на работу в строго установленное графиком время. Знать наличие напитков в баре и содержание винной карты, а так лее блюд в меню, их цены, классификацию, порядок подачи блюд и основы технологии их приготовления, а так же сочетаемость с иными видами пищевой продукции. Работать так, чтобы затрачивать как можно меньше усилий для поддержания порядка за рабочим местом. Работать быстро, правильно организовывая свой труд, не допуская суеты. Быть наблюдательным, держать в поле зрения всю барную стойку и зал, замечать каждую мелочь, предугадывать события. Проявлять отзывчивость, готовность помочь гостю, без специальной просьбы. Помнить заказ во всех деталях, стараться запомнить привычки и вкусы постоянных посетителей кафе «Колхоз». Уметь слушать и поддержать разговор, соблюдая дистанцию. Соблюдать правила обслуживания потребителей и правила поведения в кафе, быть вежливым предупредительным, внимательным. Знать свой бар, расположение бутылок, оборудования, посуды. Содержать в чистоте рабочее место - барную стойку, оборудование бара, посуду. Соблюдать условия хранения портящихся продуктов (вино, сироп, сигары...).
В случае порчи перечисленных выше продуктов, стоимость испорченного продукта в денежном эквиваленте вычитается из зарплаты бармена, по вине которого произошла порча. Не допускать использование столовой посуды, приборов и столового белья с какими-либо дефектами. Вовремя предупреждать (официанта, администратора) об отсутствии какого-либо вида продукции или посуды в баре. Проявлять аккуратность - иметь опрятный внешний вид (причёска, ногти, одежда). Находиться на рабочем месте в форменной одежде, которая должна быть чистой, а обувь начищенной, соблюдать правила личной гигиены. Заранее предупреждать руководство о возможной задержке или не выходе на работу.
Бармен не должен:
Отдавать официантам и клиентам напитки и коктейли, неудовлетворительные по качеству или оформлению. Есть, пить, курить, «лежать», жевать жевательную резинку за стойкой. Использовать системы аудио - видео воспроизведения. Отлучаться во время обслуживания на длительное время без видимых на то причин, в противном случае ставить администратора в известность.
Уделять всё своё внимание кому-либо из посетителей, в ущерб остальным клиентам. Обсчитывать посетителей. Должен всегда отдавать сдачу. Громко разговаривать, использовать в разговоре сленговые и нецензурные выражения. Обсуждать с гостями проблемы вашей работы, жаловаться на сотрудников. Говорить, что у Вас нет заказанного напитка, быть готовым предложить равноценный или близкий по вкусовым качествам напиток.
Требования, предъявляемые к официантам:
Официант обязан приходить на работу в строго установленное графиком время, выполнять указания метрдотеля о порядке обслуживания посетителей кафе; соблюдать правила обслуживания и правила поведения в кафе, быть вежливым, предупредительным, внимательным; знать наличие блюд, напитков в меню и их цены, порядок подачи блюд и основы технологии их приготовления; рекомендовать посетителям фирменные блюда и напитки; находиться на работе в форменной одежде, которая всегда должна быть чистой и выглаженной, обувь вычищенной; соблюдать правила личной гигиены; тщательно подготавливать столы к приему посетителей и свое рабочее место, постоянно поддерживать порядок на столах в течение рабочей смены; своевременно и правильно сервировать столы, а также убирать использованную посуду и приборы, соблюдая определенные технические приёмы; пользоваться при обслуживании только чистыми,, хорошо проглаженными салфетками и скатертями; содержать в чистоте подсобные столы и серванты; доброжелательно встречать приглашенных администратором зала посетителей, приветствовать их помогать разместиться за столом, предлагать меню, точно и быстро исполнять заказ с соблюдением правил техники обслуживания; не допускать пользование столовой посудой, приборами и столовым бельем с какими-либо дефектами (щербины, трещины, пятна, дырочки и др.); знать порядок и технику обслуживания приемов и банкетов; своевременно информировать метрдотеля или директора ресторана обо всех замечаниях и пожеланиях потребителей.
Официант осуществляет операции по приему, учету, выдачи и хранению денежных средств и ценных бумаг с обязательным соблюдением правил, обеспечивающих их сохранность. Оформляет документ и получает в соответствии с установленным порядком денежные средства.
Официант не должен:
использовать бланки незарегистрированных счетов, а также передавать свои бланки другому официанту; заполнять бланки счетов без указания наименования блюд или барной продукции;
Официанту категорически запрещается: рассаживать гостей за неподготовленные столы; разбирать жалобы и претензии без метрдотеля или дирекции; собираться группами, курить, сидеть, есть, громко разговаривать в зале, облокачиваться на сервант колонны, стены и т.д.; ставить таблички «стол заказан» без ведома руководителей предприятия или метрдотеля; получать от повара блюда неудовлетворительные по качеству или оформлению; отлучаться во время обслуживания на длительное время без разрешения метрдотеля.
По отношению к любому посетителю кафе «Колхоз» официант должен быть гостеприимным, предупредительным и корректным. Если потребитель обратился с просьбой к официанту, который его не обслуживает, официант обязан выслушать и исполнить просьбу, а если это невозможно сделать самому, сообщить о ней официанту, обслуживающему данного потребителя. Если потребитель чем-то недоволен, возмущен и высказывает это в резком тоне, официант должен проявить особую сдержанность и тактичность. Официант должен работать так, что бы не привлекать внимание присутствующих в зале, не мешать их беседе: не греметь посудой и приборами, не подзывать громко товарищей по работе. В случае, когда работающий рядом товарищ взял подготовленную и нужную в данный момент посуду, официант не вступает с ним в пререкания, а берет другую. Официант должен поддерживать отношения товарищества взаимопомощи с коллегами по работе. Официант должен воспитывать в себе вежливость по отношению к потребителю: подавая что-либо, говорить «пожалуйста», «извините». Если потребитель уронил салфетку или прибор, следует сначала подать чистый, а потом поднять то, что упало. Подавать чистые предметы надо на маленьком подносе или тарелке. Приборы подаются ручками, обращенными к потребителю.
Правила личной гигиены официанта.
Официант находится в непрерывном контакте с посетителями. Официант как бы создает психологическую атмосферу в зале, от которой у посетителей складывается впечатление о кафе «Колхоз».
Многое зависит от внешних данных официанта, его манеры держаться. Хорошо, если у официанта приветливое выражение лица и аккуратная прическа, оптимальный (средний) рост, правильная осанка. Эти природные данные, так же как и хороший слух, правильная дикция - уже залог положительного отношения к нему посетителей. Особенностью работы официанта заключается в том, что он подает к столу блюда, а иногда и сам их раскладывает. И здесь необходимо соблюдать правила личной гигиены:
прическа должна быть простой и аккуратной; волосы не должны падать на глаза; во время обслуживания не рекомендуется пользоваться расческой или поправлять прическу т.к. волосы могут попасть в блюдо;
необходимо каждый вечер и утро чистить зубы и прополаскивать полость рта антисептической жидкостью
перед работой следует принимать душ и бриться;
женщинам-официанткам не следует злоупотреблять косметическими средствами, пользоваться крепкими духами, носить крупные украшения (кольца, перстни и т.п.);
Приходить на работу нужно в чистой одежде, прежде чем приступить к обслуживанию, следует принять душ, тщательно вымыть руки с мылом и щеткой;
Руки нужно мыть даже после перерыва в работе — по мере необходимости;
для вытирания рук лучше использовать электрополотенце или (при его отсутствии) индивидуальные салфетки разового пользования;
Нельзя выходить в форменной одежде из рабочих помещений или выполнять в ней другую работу по ресторану (участвовать в разгрузке транспорта и т.д.)
Руки официанта должны быть объектом его особого внимания т. к. он имеет дело с пищей — получает блюда на раздаче, перекладывает их на глазах у посетителя из одной посуды в другую. Люди невольно обращают внимание на его руки, ногти (они должны быть чистыми, коротко подстриженными)
Все работники общественного питания должны регулярно проходить медосмотр. Цель медосмотров - не допустить к работе лиц с заболеваниями, которые могут передаваться через продукты питания и быть опасными как для здоровья посетителей, так и для самих работников.
Требования, предъявляемые к охране кафе:
Охрана обязана постоянно находиться на наружном входе кафе (прилегающая территория) и внутреннем входе (непосредственно возле входной двери). Быть одетой в форму установленного образца с фирменной символикой «Анюта». Быть оснащенной рацией, радиотелефоном, фонариком, средствами защиты: газовым пистолетом, электрошоком, газовым баллончиком. Все оборудование должно находиться в исправном, рабочем состоянии. Охранник должен быть в аккуратном, подтянутом виде, знать свои должностные обязанности, иметь навыки общения с посетителями в обычных и нестандартных ситуациях. Подчиняться администратору, четко выполнять его требования, не вступать в конфликт с посетителями.
Охрана должна быть заметной, находиться постоянно на виду. Вежливо приветствовать посетителей кафе, не проявлять никаких эмоций. Обращать внимание на приезжающих посетителей и автомобили, вести запись номеров. В случаях, вызывающих подозрение, докладывать администратору и диспетчеру в офисе. Охранник должен постоянно находиться в движении и перемещаться, но в непосредственной близости от входа. К административному составу и непосредственному начальству обращаться по имени отчеству. На телефонные звонки отвечать в установленной форме: «Добрый день (вечер, ночь, утро) «Колхоз». Интересоваться именем абонента и передавать звонок, предварительно согласовав желание разговаривать с тем, кому звонят.
Требования, предъявляемые к посудомойщице:
Приходить на работу в строго установленное графиком время. Выполнять прямые функциональные обязанности, связанные с санитарно-гигиенической обработкой посуды. Выполнять все распоряжения Администратора. Поддерживать чистоту на рабочем месте. Соблюдать правила личной гигиены. Быть одетой в форму установленного образца с фирменной символикой «Колхоз». Вовремя проходить медосмотр.
Должна знать: правила внутреннего трудового распорядка постановления, распоряжения, приказы, другие руководящие и нормативные документы вышестоящих и других органов, касающиеся работы организации.
Правила и нормы охраны труда, техники безопасности, производственной санитарии и противопожарной защиты.
Требования, предъявляемые к мастеру чистоты:
Приходить на работу в строго установленное графиком время. Поддерживать в течение дня чистоту в зале, кухне, служебных помещениях и прилегающей к кафе территории.
Ознакомление с порядком подготовки зала к обслуживанию
Ежедневная подготовка зала включает:
уборку полов
обметание пыли
протирания мебели, оборудования
расстановка мебели
предварительная сервировка столов
личная подготовка персонала к работе
После уборки помещение проветривают.
В течение дня проводят небольшие местные уборки уборщица. Один раз в месяц в кафе «Колхоз» проводят санитарный день.
Торговый зал ежедневно подготавливается к обслуживанию.
Санитарно-гигиеническая уборка торгового зала производится ежедневно. При уборке удаляют пыль с мебели, светильников, батарей и т.п. моется пол. После каждой уборки помещение проветривается. В течение дня при необходимости небольшую уборку осуществляет уборщица. Один раз в месяц проводится санитарный день для проведения генеральной уборки с дезинфекцией всех помещений, инвентаря и оборудования.
После окончания уборки официанты подготавливают зал к работе, расставляют приборы со специями, производят предварительную сервировку.
Перед работой зала администратор собирает весь обслуживающий персонал и проводит инструктаж, так же он проверяет внешний вид работников. Если в предыдущий рачий день были какие-то не стандартные или конфликтные ситуации, то он выявляет их причину, проводит разъяснительную работу по этому поводу.
В процессе обслуживания официант помогает посетителю в выборе мест, в выборе блюд и напитков, затем он принимает заказ. По этому заказу выписывают заказ на барную продукцию и отдают бармену, другой заказ на производство. Затем официант получает продукцию и относит её посетителю. По мере потребления блюд посетителем официант убирает со стола использованную посуду и приборы. В конце обслуживания выписывается два счета. Один счет официант подписывает и отдаёт посетителю, другой прилагает к отчету вместе с чеком. В счете указывают название предприятия, фамилию официанта, дату обслуживания, наименование и количество блюд и барной продукции, стоимость всего заказа и цену каждого наименования. Если заказчик отказался, от какого либо блюда, то напротив него ставится прочерк. Все счета пронумерованы и подлежат отчету.
Конфликтные ситуации на предприятии общественного питания
Конфликтные ситуации нередко возникают в процессе работы, они очень отрицатель сказываются на сотрудниках и могут вызывать чрезмерное физическое и психологическое напряжение. Возникновение таких ситуаций необходимо сводить к минимуму.
Конфликты между производственным и обслуживающим персоналом возникают в процессе выполнения заказов. Основные причины, приводящие к конфликту это нарушение технологии приготовления и оформления блюд, норм общения и поведения.
Для того, что бы не возникали конфликты между посетителями и обслуживающим персоналом, необходимо чтобы последние обладали такими качествами как умение общаться с людьми, создание доброжелательного контакта с ними, знание приёмов обслуживания и норм этикета, иметь достаточный уровень профессиональной подготовки, соблюдение правила личной гигиены.
Общение с людьми является одной из специфик работы предприятий общественного питания, и основным принципом данного общения является уважение, доброжелательность и внимательное отношение, как к посетителям, так и к своим коллегам.
В зале установлена стерео система и играет музыка, она не громкая располагающая к общению и отдыху.
Наблюдая работу обслуживающего персонала можно отметить профессионализм. Зал всегда чистый, столы протертые, пол вымыт. Официанты и бармен приветливы, работают согласно своим инструкциям, внешний вид поддерживают на должном уровне.
Сервировка столов в кафе «Колхоз»
За два часа до открытия официанты получают необходимую для сервировки столовую посуду, приборы и столовое белье в соответствии с количеством столов.
Перед сервировкой официанты протирают (полируют) посуду и приборы полотенцами. Одновременно подготавливают приборы со специями. На подсобном столе подготавливают вазочки с цветами. Столы покрывают скатертями.
Сервируют столы не нарушая последовательности: 1.Тарелки 2. Приборы 3. стекло.
В кафе «Колхоз» предварительная сервировка столов заключается в накрытии столов и расстановки вазочек в центре стола, это используется, потому что оборачиваемость зала не высокая и посуда бы стояла не накрытая, пылилось, на нее могли садится насекомые по этому стол сервируют посудой, приборами, хрусталем по приходу посетителя.
Кафе «Колхоз» можно предложить следующий вид сервировки.

1-специи
2-пирожковая тарелка
3-льняная салфетка
4-столовые приборы
5-фужер для воды
6-бокал для вина
7-рюмка
8-закусочная тарелка
9-салфетка
Ознакомление с меню, картой вин и коктейлей
Меню - это перечень закусок, блюд, напитков, мучных изделий, имеющихся в продаже на данный день, с указанием выхода и цены.
В кафе «Колхоз» используются следующие виды меню:
- со свободным выбором блюд
- скомплектованных обедов (завтраков)
- банкетное меню.
Карта вин - перечень алкогольных напитков, пива, безалкогольных напитков.
Так же в карте вин включены табачные изделия, кондитерские изделия (шоколад).
Карта – коктейлей начинается с коктейлей – апперетивов, способствующих возбуждению аппетита, затем напитки дня, фирменные коктейли.
Оформление меню зависит от типа и класса предприятия.
В кафе «Колхоз» меню напечатано типографическим способом, на русском языке, твердой обложки нет, заламинировано.
Термин «Кейтеринг» в переводе с английского языка означает действие предприятия, поставляющего продукцию, напитки, посуду для организации банкета вне ресторана.
В кафе «Колхоз» не производится организация обслуживания вне кафе. Данная услуга не предоставляется.
Ознакомление с порядком обслуживания потребителей в торговом зале
Обслуживание складывается из следующих элементов:
- встреча и размещение гостей,
- прием и оформление заказа,
- передача заказа на производство,
- получение и подача заказных блюд,
- расчет с клиентом.
Потребителей у входа встречает официант. Он приветствует гостей и предлагает места за столом. Затем он предлагает меню с левой стороны, левой рукой. Подождав несколько минут, официант дает время ознакомится с ассортиментом блюд, потом, подойдя к столу, принимает заказ. Официант записывает заказ в бланк счетов, приняв заказ, официант его выполняет (берет в сервизной посуду, передает заказ в горячий и холодные цеха). Потом последовательно подает блюда и напитки. В конце обслуживания производится расчет с потребителями (выписывается счет).
Ознакомление с организацией обслуживания специальных мероприятий
В кафе «Колхоз» не производится обслуживание специальных мероприятий: по типу «шведский стол», конференций, организация питания иностранных туристов, гостей на высшем уровне, только организация обслуживания школьного летнего лагеря с предоставлением комплексного завтрака и обеда.
Сомелье – человек ответственный за подачу вин и напитков. Участвует в разработке карты - вин, он несет ответственность за закупку вин.
Должность сомелье в кафе «Колхоз» нет.
Анализ и предложения
В процессе обслуживания необходимо изменить следующее:
- усовершенствовать рабочий график для того, чтобы не было переработок;
- разнообразить организацию досуга посетителей;
- более четко организовать рабочий процесс;
- организовать зал для некурящих;
- увеличить количество растений
в зале для курящих.
Требования к
персоналу соответствуют стандартам.
Тема №4
Организация управление. Стажировка в качестве стажера руководителя предприятия
День 17. изучение прав и обязанностей руководителя предприятия. Ознакомление со структурой штата предприятия, принципами подбора и расстановки кадров, формами найма и порядком увольнения
Директор осуществляет руководство производственно-хозяйственной деятельности, организует работу и эффективное взаимодействие цехов, направляет их деятельность на обеспечение высокого качества обслуживания потребителей. В структуру штата предприятия входят: директор, зам. директора, главный бухгалтер, зав. производством, производственный персонал, персонал склада.
Зав. производством осуществляет руководство производственно хозяйственной деятельности предприятия, проводит работу по совершенствованию рабочих мест, повышает мастерство поваров и кондитеров. Зав, складом обеспечивает прием, хранение и отпуск товарно-материальных ценностей, по их размещению, с учетом наиболее рационального использования складских площадей, облегчения и ускорения потока необходимых материалов, инвентаря.
Бухгалтер выполняет работу по различным участкам бухгалтерского учета, осуществляет прием, и контроль первичной документации осуществляет их первичную обработку, отражает связанные с движением денежных средств товарно-материальных ценностей, производит начисление и перечисление платежей, заработной платы рабочим и служащим.
Подбором кадров занимается «отдел кадров» МУП по ОШ и СП. После предварительной беседы работника направляют в кафе для собеседования. При принятии на работу потенциальный работник предъявляет такие документы как автобиографию, паспорт, характеристику, диплом об образовании, заявление о приеме на работу. Увольнение оформляется заявлением об увольнение и выписывается приказ.
Форма оплаты включает только оклад, никаких поощрений не предусмотрено.
В сложившихся рыночных отношениях анализ рабочего дня сделать очень сложно. Есть определенный график, но от факторов, не зависящих от данного предприятия. Таких как слабое финансирование или его полное отсутствие, карантин учебных заведениях, спонтанность заказов, строить его очень сложно. Приходя на работу, директор осуществляет контроль организации работы пр5едприятия, заключает мелкие одноразовые договора с поставщиками, делает заявку в трест на сырье, на товары, предметы материально-технического оснащения, договаривается о способах доставки товаров с треста и поставок сырья на филиалы.
Личностно-деловые качества определяются опытом и управленческими способностями. Опыт - профессиональное мастерство, которое во многом зависит от стажа работы. В организации управление директор работает около 37лет, из которых директором кафе «»-18 лет. Она стремится привести предприятие к успеху и осознает, что не сможет добиться этого в одиночку без взаимодействия коллектива. Стремится преодолевать трудности на своем пути, четко ставя вопросы и решая их, быть трудолюбивой и работоспособной.
На МУП по ОШ и СП постоянно совершенствуют мастерство работников. Директор участвовала в семинаре состоявшийся в городе Сочи 1998года.
Информационное обеспечение представляет собой совокупность сведений о состояние и динамики объекта управления, необходимых для принятия и реализации управленческих решений. Эта информация о выполнение хозяйственных основных функций, о потребление блюд и напитков, анализа спроса, организационная информация.
Из технических средств используемых в кафе - простые орудия и приспособления, телефон. В тресте фирмы имеется компьютер, ксерокс, факс. В кафе «Колхоз» применяются две формы поставок товаров:
Транзитная форма поставки (прямая связь, « поставщик - кафе»)
Складская форма поставки (наличие промежуточного звена, т.е. главного склада столовой №20)
Для скоропортящихся продуктов в кафе используют транзитную форму поставок, а для не скоропортящихся - складскую.
Доставка товаров в кафе «Колхоз» ведется централизованным и децентрализованным способами. В основном используют централизованный способ доставки, т.е. поставщики своими силами и средствами поставляют товар или на главный склад, или на склад кафе. Этот способ позволяет кафе снизить транспортные услуги. Децентрализованный способ поставки, т.е. использование своего транспорта, кафе, использует только для того, чтобы перевозить товары с главного склада на склад кафе. Способами доставки, тесно связаны и маршруты завоза продуктов. Так как в кафе в основном используется централизованный метод доставки продуктов, то соответственно осуществляется по кольцевым маршрутам, потому что поставщики, кроме кафе «Колхоз» поставляют товары и в школы, входящие, как и кафе «Колхоз» в состав главной фирмы по организации школьного и студенческого питания. Договор - поставщики является основным документом, определяющий права и обязанности сторон по поставкам всех видов продукции, как кафе «Колхоз» так и других предприятий. Перед заключением договора кафе представляет заказ поставщику на поставку развернутого ассортимента товаров. В основном это происходит по телефону - когда кафе само ищет поставщиков определенного вида товаров, а чаще всего поставщики связываются сами с кафе, т.е. поставщик сам находит покупателя для своего товара. В договоре отражаются:
Имена поставщика и заказчика;
Предмет договора;
Порядок поставок и расчетов;
Ответственность сторон;
Форс-мажор;
Срок действия договора, прочие условия.
Реквизиты сторон, росписи и печати.
Так как МУП занимается обслуживанием и питанием учебных заведений, рекламную кампанию проводят очень слабо. Кафе через телевизионные и радио программы предлагает услуги предоставления зала в аренду и обслуживания на дом. Поставить рекламный щит возле остановки или базара не разрешают, в целях экономия это не целесообразно.
Участвуя в конкурсах МУП, выиграл у конкурентов права на обслуживания учебных заведений Советского района. Предприятия общественного питания типа кафе в близи кафе «Колхоз» не расположена. В основном кафе занимается доставкой сырья и товаров для учебных заведений. Конкурентов у фирмы и кафе нет.
Выписываются газеты и журналы: «Смак», «Питание и общество», «Кулинария», «Гастроном», «Ресторанные ведомости», директор кафе подчеркивает для себя нововведение в общественное питание.
Каждую неделю генеральный директор фирмы собирает у себя совещание. На нем присутствуют работники треста фирмы и директор кафе. В ходе совещания происходит обмен информации, вырабатывают и выносят на обсуждение варианты управленческих решений и принимаются решения,
Изучение работы руководителя предприятия по созданию работоспособного коллектива и повышению профессионального мастерства работников производства.
Перед наступлением каждой смены за один час до открытия кафе руководитель предприятия производит общее собрание работников предприятия. Обсуждаются выговоры и недостачи прошлой смены, обсуждение работы заступающей смены, каждую последнюю субботу месяца проводятся общее собрание работников кафе.
Так же во время рабочего дня руководитель периодически проходит по производственным помещениям и проверяет работу работников предприятия, делает выговоры или указания.
Ознакомление с техническими средствами управления, имеющимися на предприятии, с организацией рабочего места руководителя.
К техническим средствам управления относятся канцелярские товары, кассовые аппараты, факсы, компьютеры и.т.д.
На рабочем месте руководителя стоят компьютер, факс и принтер. В специальных пластмассовых поддонах разложена вся документация, которая необходима руководителю данного предприятия, есть сейф, ключи находятся у руководителя, разъясняются и уточняются задачи по реализации решений, по итогам выполнения решений и оценки их результатов. В заключение совещания ген. директор подводит его результат. По результатам совещания составляют директивный документ, в котором отражают принятое решение. На следующий день директор кафе собирает у себя заведующих производства учебных заведений и кафе и доводит до них итог совещания проводимого ген. директором, своевременное и качественное выполнение подчиненными решений и распоряжений, требует от директора контроля за исполнением поручений. Это приучает подчиненных к дисциплине и четкости в работе. Контроль должен быть непрерывным, комплексным, действительным. Правильная организация личной работы предполагает владение такими основными видами труда директора, как работа с документами, осуществление служебных конфликтов, бесед с посетителями, телефонные разговоры, проведение совещаний, контроль исполнений.
Формы оплаты труда, формы поощрений.
Форма оплаты труда в кафе "Колхоз" почасовая, работнику выплачивается зарплата за фактически отработанные часы за месяц. Заработная плата выплачивается ежемесячно каждое 26 число текущего месяца.
Поощрения официантам выплачиваются следующим образом: поощрение в виде 20% прибавки к заработной плате получает тот работник, по итогам месяца которого выходит самая большая касса.
Также поощрения в дни рождений работников выплачиваются в размере, согласованном с руководителем предприятия.
Так же есть праздничные надбавки.
Порядок доведения принятых решений до использования.
Все принятые решения оформляются приказами, которые подписываются директором. На совещании директор оглашает приказ и назначает ответственного для его исполнения, после его выполнения сотрудник должен отчитаться перед директором о проделанной работе.
Различные виды информации, используемые руководителем в работе.
В работу руководителя используется следующие виды информации: газеты с объявлениями, каталоги различных фирм, прайс-листы, рекламные листовка, экономический и бухгалтерский вид информации.
Ознакомление с техническими средствами управления, имеющимися на предприятии, с организацией рабочего места руководителя.
К техническим средствам управления относятся канцелярские товары, кассовые аппараты, факсы, компьютеры и т.д.
На рабочем месте руководителя стоят компьютер, факс и принтер.
В специальных пластмассовых поддонах разложена вся документация которая необходима руководителю данного предприятия, есть сейф, ключи находятся у руководителя предприятия, бухгалтера и главного технолога.
1-стулья
2-компьютер
3-телефон
4-рабочий стол
5-шкаф с сейфом
Ознакомление и анализ организации рекламной деятельности в кафе «Колхоз»
В кафе «Колхоз» используется наружная реклама представленная вывеской предприятия, оформленная мерцающими огнями. На витринных стеклах нарисован перечень предлагаемых кафе блюд. Иногда руководство размещает рекламу своего предприятия в газетах города. В рекламной деятельности кафе «Колхоз» не используются другие методы рекламы (ТV, радио), в том числе и современные (sms-реклама, Интернет, флаера).
Анализ
Кафе «Колхоз» срочно требуется разработать рекламную политику предприятия.
Изучить современные виды рекламы. Использовать радио рекламу, видеорекламу, раздавать флаера. Сделать современной наружную рекламу предприятия.
Выявление основных конкурентов предприятия кафе «Колхоз»
Основным конкурентом предприятия в реализации продукции на территории рынка являются частные предприниматели. Которые выигрывают за счет более низких цен.
При исследовании близ лежащей территории вокруг кафе в радиусе 300м. выявило, что других предприятий общественного питания способных составить конкуренцию - нет.
Ознакомление с работой руководителя по изучению зарубежного опыта.
Ознакомление руководителя кафе «Колхоз» с зарубежным опытом аналогичных предприятий происходит через средства массовой информации, а так же печать (зарубежная литература). Другие средства, такие как служебные командировки, взаимные контакты и т. д. руководителем не используются.
Порядок осуществления контроля внутреннего и внешнего контроля за деятельностью кафе «Колхоз»
В кафе «Колхоз» осуществляется контроль внутренний со стороны руководства кафе и внешний со стороны служб надзора за качеством деятельности предприятия.
Внешний контроль осуществляется не чаще чем 1 раз в год от каждого органа надзора. Внутренний контроль осуществляется постоянно руководством кафе (директором, заведующим производством).
Анализ эффективности использования рабочего времени руководители кафе «Колхоз».
Индивидуальный план руководителя.
|
№ п/п |
Содержание работ |
Время |
Ошибка |
|
|
планируемое |
фактическое |
|||
|
1 |
Производственное совещание с Руководителями различных подразделений. |
15 мин. |
20 мин. |
Задержка зав производства, прием товара |
|
2 |
Обход предприятие и осмотр работоспособности коллектива |
15 мин |
15 мин |
нет |
|
3 |
Встреча с директором МУП |
30 мин |
40 мин |
Изменение времени проведения встречи |
|
4 |
Встреча с новыми поставщиками, подписание договоров поставки |
30 мин |
40 мин |
Опоздание поставщиков |
|
5 |
Работа с документами |
120 мин |
120 мин |
Нет |
|
6 |
Перерыв |
60 мин |
60 мин |
Нет |
|
Посещение филиалов |
||||
|
7 |
35 мин |
40 мин |
Решение проблем с поставкой товара |
|
|
8 |
35 мин |
40 мин |
||
|
9 |
35 мин |
40 мин |
||
|
10 |
35 мин |
40 мин |
Изучив рабочее время руководителя кафе «Колхоз» можно сделать вывод, что все время распределено очень грамотно, нагрузка не превышает допустимые нормы. Работает руководитель по 8 часов в день.
Директор осуществляет руководство производственно-хозяйственной деятельности, организует работу и эффективное взаимодействие цехов, направляет их деятельность на обеспечение высокого качества обслуживания потребителей.
В структуру штата предприятия входят: директор, зам.директора, главный бухгалтер, зав. производством, производственный персонал, персонал склада.
Схема структуры управления предприятием

Зав.производством осуществляет руководство производственно хозяйственной деятельности предприятия, проводит работу по совершенствованию рабочих мест, повышает мастерство поваров и кондитеров. Зав, складом обеспечивает прием, хранение и отпуск товарно-материальных ценностей, по их размещению, с учетом наиболее рационального использования складских площадей, облегчения и ускорения потока необходимых материалов, инвентаря.
Бухгалтер выполняет работу по различным участкам бухгалтерского учета, осуществляет прием, и контроль первичной документации осуществляет их первичную обработку, отражает связанные с движением денежных средств
|
№ п/п |
Наименование должностей |
Разряд |
Количество сотрудников |
Оклад |
За год |
|
1 |
Директор |
1 |
20 т.р |
240 т.р |
|
|
2 |
Зав. производством |
6 |
1 |
15 т.р |
180 т.р |
|
3 |
Повар |
5 |
5 |
12 т.р |
144 т.р |
|
4 |
5 |
10 т.р |
120 т.р |
||
|
3 |
4 |
8 т.р |
96 т.р |
||
|
4 |
Кух рабочая |
2 |
2 |
6 т.р |
72 т.р |
|
5 |
Посудомойщица |
2 |
5 т.р |
60 т.р |
|
|
6 |
Уборщица |
2 |
4 т.р |
48 т.р |
|
|
7 |
Администратор торгового зала |
5 |
1 |
12 т.р |
144 т.р |
|
8 |
официант |
4 |
6 |
10 т.р |
120 т.р |
Горячий цех
1,5,8,9,16 – стол производственный.
2 – шайзер
3- микроволновая печь
4 – котел
6 – мясорубка
10 – ванны
11 – стеллаж металлический
12 – овощерезка
13 – холодильник
14 – электрическая сковорода
15 – электроплиты
17 – весы настольные
Анализ
Горячий цех кафе «Колхоз» отвечает нормам оснащения. В нем используется современное оборудование (шайзер, микроволновая печь). Но нет отдельно выделенной технологической линии холодного цеха. Оборудование и производственные столы располагаются неудобно и препятствуют быстрому передвижению, происходит перекрещивание технологических процессов.
Предложение: произвести перепланировку горячего цеха, отдельно выделив зону для работы холодного цеха.
Схема мучного цеха:

1 – стол производственный
2 – стеллаж металлический
3 – электропекарные шкафы ШПЭСМ – 3
4 – тестомесильная машина
5 – моечные ванны
Схема мясного цеха

1 – ванна
2 – рабочие столы
3 – холодильный шкаф
4 - разрубочный стол
5 – универсальный привод МИМ - 105
Схема овощного цеха.

1 – ванна моечная
2 – картофелечистка
3 – охлаждаемый шкаф
4 – стол производственный
5 – весы напольные
6 - подтоварник