Використання диференціаційного навчання при вивченні креслення на прикладі теми: "Нанесення розмірів" у 8 класі
Вступ
З метою розвитку мислення учнів, їхніх пізнавальних інтересів і здібностей необхідно приділяти особливу увагу глибокому розумінню матеріалу, який вивчається на уроках. Так, особлива роль повинна приділятися роботі з основними фізичними термінами і поняттями, що є їх змістовними значеннями і визначають розуміння викладеного матеріалу. Актуальність і необхідність проведення такої роботи на уроках зумовлена існуванням того факту, що “…словниковий запас більшості учнів бідний: вони оперують дуже обмеженою кількістю термінів”, не можуть відтворювати основні поняття теми, роз'ясняти, що вони означають і не завжди розуміють зміст матервалу, що вивчається.
Реалізація цих завдань може здійснюватись лише за умови здійснення особистісно орієнтованого навчання, виховання і розвитку.
Мета роботи: проаналізувати використання диференціаційного навчання при вивченні креслення на прикладі теми: „Нанесення розмірів” у 8 класі.
Основні завдання:
дати хараткеристику диференціального навчання та його особливостей;
проаналізувати методика проведення уроків з виконання диференціального підходу;
навести розробку уроку на прикладі теми: „Нанесення розмірів”.
Розділ 1. Диференціальне навчання, його особливості
1.1 Поняття про диференційоване навчання
Необхідність диференціації виникає від наявних у людей розходжень. В умовах класно-визначеної системи без введення диференціації процес навчання організується однаково для всіх учнів і виявляється по-різному ефективний для них. Загальні інтелектуальні здібності учнів різні, різна в них і навченість: одні можуть дуже швидко засвоїти новий матеріал, іншим потрібно набагато більше часу, більше число повторень для закріплення його, для одних переважніше слуховое сприйняття нової інформації, для інших зорове.
Диференціація навчання дозволяє організувати навчальний процес на основі обліку індивідуальних особливостей особистості, забезпечити засвоєння всіма учнями змісту навчання, що може бути різним для різних учнів, але з обов'язковим для усіх виділенням інваріантної частини. При цьому кожна група учнів, що має подібні індивідуальні особливості, йде своїм шляхом. Процес навчання в умовах диференціації стає максимально наближеним до пізнавальних потреб учнів, їх індивідуальних особливостей.
Таким чином, ціль диференціації процесу навчання - забезпечити кожному учневі умови для максимального розвитку його здібностей, схильностей, задоволення пізнавальних потреб і інтересів у процесі засвоєння їм змісту загального утворення.
У розумінні диференціації можна виділити три основних аспекти:
1. Облік індивідуальних особливостей учнів.
2. Групування учнів на підставі цих особливостей.
3. Варіативність навчального процесу в групах.
Перший аспект - облік індивідуальних особливостей учнів характерний і для диференціації, і для індивідуалізації. Специфіка диференційованого навчання - облік індивідуальних особливостей, властивим групам учнів, і організація варіативного навчального процесу в цих групах.
Індивідуалізація - це граничний варіант диференціації, коли навчальний процес будується з урахуванням особливостей не груп, а кожного окремо узятого учня.
Під диференціацією розуміють спосіб організації навчального процесу, при якому враховуються індивідуально-типологічні особливості особистості (здібності, інтереси, схильності, особливості інтелектуальної діяльності і т.д.). Диференціація характеризується створенням груп учнів, у яких елементи дидактичної системи (мета, зміст, методи, форми, результати) розрізняються.
У сучасній педагогічній літературі часто зустрічається поняття варіативності.
Якщо зміни змісту обумовлені індивідуально-типологічними особливостями учнів, правомірно говорити про диференційоване навчання. У даному випадку кожна група учнів засвоює інваріантний зміст, збагачений фрагментами, що необхідні саме для цієї групи.
Якщо зміни змісту навчання пов'язані з перевагами вчителя, методиста, їх поглядами на навчальний предмет, то мова йде про варіативність в утворенні, але не про диференціацію.
Класно-урочна система потребує вдосконалення навчального процесу диференціацією завдань і методики навчання залежно від можливостей учнів. Навчально-виховний процес, що враховує типові індивідуальні особливості учнів, прийнято називати диференційованим, а навчання за таких умов — диференційованим навчанням.
Диференційоване навчання у практичній діяльності вчителя може виражатися в тому, що всі учні отримують завдання однакової складності, але слабшим з них під час їх виконання надають індивідуальну допомогу, або слабшим учням дають окремі, посильні для них завдання. Інколи учням пропонують легкі завдання, згодом ускладнюють додатковим завданням, яке вони виконують відповідно до своїх можливостей. Загалом диференціювати завдання за змістом можна за кількістю завдань, за ступенем їх складності, за ступенем самостійності виконання. Складніший і ефективніший вид диференційованого навчання — його здійснення в умовах поділу класу на групи залежно від рівня навчальних можливостей учнів. У практиці такого поділу використовують методику Ю. Бабанського, який увів поняття реальних навчальних можливостей учнів, їх зміст визначають такі критерії: а) психологічні компоненти (здатність до аналізу, синтезу, порівняння, вміння виділити суттєве, робити узагальнення; раціональність, самостійність, гнучкість, темп мислення, спостережливість, логічність мовлення, пам'ять, увага); б) навички навчальної праці (самоконтроль, планування, темп обчислень, письма, читання, організованість у навчальній роботі, дотримання розпорядку дня; в) окремі компоненти вихованості (наполегливість у навчанні, старанність, свідома навчальна дисципліна, громадська активність, ставлення до навчання, учителів, однокласників); г) позашкільний вплив сім'ї, однолітків; ґ) біологічні компоненти (фізична працездатність, стан здоров'я, дефекти мовлення, слуху, зору).
З урахуванням цих критеріїв учнів за їх навчальними можливостями можна умовно поділити на такі групи:
Учні з дуже високими навчальними можливостями — характеризуються здатністю швидко засвоювати матеріал, вільно вирішувати завдання, з інтересом самостійно працювати, потребують завдань підвищеної складності.
Учні з високим рівнем навчальних можливостей — мають міцні знання, володіють навичками самостійної роботи, не поступаються першій групі в засвоєнні матеріалу, але не завжди старанно закріплюють вивчене, бо їм не властива висока працездатність, потребують корекції їхньої роботи, періодичного контролю навчальної діяльності.
Учні з середніми навчальними можливостями — характеризуються здатністю нормально вчитися, окремим притаманна висока виучуваність за низької навчальної працездатності, іншим — середня виучуваність за середньої працездатності, потребують оперативної підтримки й допомоги педагога.
Учні з низькими навчальними можливостями — мають низький рівень виучуваності або навчальної працездатності, потребують спеціального підходу педагога.
Формуючи тимчасові групи, слід пам'ятати: учні не повинні здогадуватися про причину їх поділу на групи, щоб не травмувати їхнього самолюбства; до групи може входити 4— 6 учнів; група може бути гомогенна (однорідна) — з учнів, що мають однаковий рівень навчальних можливостей, або гетерогенна (змішана); найефективніша група змішана, але продуктивність її роботи низька; комплекти груп можна змінювати залежно від мети; комплект може складатися з учнів таких груп: 4, 3, 2 і 1; 4, 3, 2 і 2; 3, 3, 2 і 2.
Структура уроку, на якому здійснюють диференційоване навчання, передбачає таку послідовність структурних елементів: підготовка учнів до заняття; постановка вчителем завдання й усвідомлення його учнями; попередні роздуми, дискусія про шляхи вирішення завдання; виконання дій, вирішення завдання; оцінювання результатів навчально-пізнавальної діяльності. Оскільки подібні компоненти уроку розглядалися під час розкриття структури уроків різних типів, нема потреби характеризувати структурні компоненти групового заняття.
Позитивним у диференційованому навчанні є те, що: а) воно дає можливість ставити перед учнями навчальні завдання, що передбачають пошук; б) створюються передумови для використання комплексних розумових дій; в) навчальні завдання розв'язуються у процесі спілкування членів групи, що сприяє вихованню колективізму, формуванню комунікативних якостей, поділу праці між членами групи; г) учитель здійснює керівництво навчальним процесом опосередковано.
Комплектування груп учнів може бути однорідне і неоднорідне. У неоднорідному класі навчаються учні з різними здібностями. Фактично для викладання у такому класі від учителя вимагається «потрійна» підготовка (розумово відсталих, як правило, навчають окремо). Він повинен розподіляти свій час між трьома групами учнів і не може приділити час лише одній із них. Останніми роками ці недоліки усувають за допомогою програмованого навчання, індивідуалізації навчання та навчання за допомогою комп'ютера.
У диференціальному навчанні існують поряд з позитивними і деякі негативні аспекти. Позитивним є те, що виключаються невиправдані і недоцільні для суспільства зрівнялівка й усереднення дітей, у вчителя з'являється можливість допомагати слабкому; приділяти увагу сильному, допомогти йому швидше і глибше просуватися в навчанні. Негативні аспекти: з'являється соціально-економічна нерівність; слабкі позбавляються можливості тягтися за більш сильними, одержувати від них допомогу, змагатися з ними; знижується рівень самооцінки.
1.2 Основні види диференційованого навчання
Конкретні прояви диференціації називають формами диференційованого навчання, що можуть бути об'єднані у види і реалізуватися на різних рівнях.
Види диференціації визначаються, виходячи з тих індивідуально-типологічних особливостей учнів, що у даному випадку враховуються.
Традиційно виділяються наступні види диференційованого навчання: за загальними і спеціальними здібностях, за інтересами, за майбутньою професією.
Постановка в центр навчально-виховного процесу особистості учня привели до посилення ролі психофізіологічних особливостей людини в диференціації: виділенню груп учнів із сильною, слабкою нервовою системою, що переважає типом пам'яті, рівнем розвитку довільної уваги і т.д.
Зупинимося більш докладно на підставах диференціації, що покладені в основу виділення видів диференційованого навчання. За своїм характером підстави диференціації можна підрозділити на особистісні і соціальні.
Так, у диференціації за загальними, спеціальними здібностями, індивідуальними психофізіологічними особливостями, інтересами учнів підставами є особистісні фактори.
Важливо відзначити, що розподіл на види диференціації, узагалі говорячи, є умовним, тому що в деяких формах диференціації враховується не одна група індивідуально-типологічних особливостей, а декілька.
Диференціація за проектованою професією враховує й особистісні фактори (наявність визначених схильностей і здібностей учнів), і соціальні (престижність визначених професій у суспільстві),
Диференціація може здійснюватися на різних рівнях. Так, наприклад, Рональд Де Гроот виділив три рівні.
1-й мікрорівень, коли різний підхід здійснюється до окремих груп дітей всередині класу. Цей рівень диференціації іноді називається внутрішньою або внутрішньокласовою.
2-й мезорівень - рівень школи, коли диференціація здійснюється всередині школи між окремими класами, профілями, напрямками.
3-й макрорівень - диференціація між школами, створення різних типів шкіл. 2-й і 3-й рівень являють собою диференціацію зовнішню.
Охарактеризуємо коротко виділені форми диференціації. Почнемо з диференціації за загальними здібностями.
На мікрорівні даний вид диференціації представлений завданнями різного рівня складності, дозуванням допомоги вчителю, рівневої диференціацією. Сюди ж можна віднести групову роботу в рамках моделі повного засвоєння знань. Характерною її ознакою є право і можливість учня вибирати той рівень вивчення будь-якого предмета (але не нижче базового), що він вважає для себе необхідним і достатнім. При цьому вчитель чітко виділяє зміст навчального матеріалу, що учні повинні засвоїти, займаючись на тому або іншому рівні, і перед початком вивчення чергової теми знайомить учнів з результатами, яких вони повинні досягти. Відзначимо, що в основі даної форми диференціації лежать не тільки загальні здібності учнів, але і їх інтереси. Учень може вибрати мінімальний рівень вивчення предмета не тому, що не може вивчити його глибше, а тому, що його інтереси лежать в іншій пізнавальній області.
Формою внутрішньої диференціації є і групова робота учнів по моделі повного засвоєння знань. Після вивчення теми на рівні базового змісту матеріалу і здачі заліку, виявляються дві групи учнів: учні, які засвоїли матеріал - з ними організується робота з розширення вивченого матеріалу, і учні, які не засвоїли - з ними проводиться робота з усунення пробілів, що з'явилися, у знаннях.
Розглянемо диференціацію за загальними здібностями учнів, реалізовану на мезорівні. До форм цього виду диференціації відносяться гуманітарні, загальноосвітні, корекційно-розвиваючі класи, а також класи різного рівня навчання.
Класи різного рівня навчання розділяються на класи підвищеного, середнього і зниженого рівня.
Диференціація за індивідуально-фізіологічними особливостями на мікрорівні припускає облік цих особливостей у навчальному процесі. Учитель може врахувати швидкість протікання нервових процесів в учня і не квапити учня, врахувати переважаючий вид пам'яті учнів і виклад матеріалу будувати з орієнтацією на нього. Можна врахувати силу нервової системи учня, і для учня зі слабкою нервовою системою передбачити заходи, що попереджають стомлення, яка при інтенсивній розумовій діяльності настає дуже швидко.
Диференціація за інтересами і проектованою професією на мікрорівні припускає виконання учнями на уроках і в позаурочній діяльності творчих дослідницьких завдань, пов'язаних з інтересами, проектованою професією учнів. Це може бути групова робота над дослідницькими проектами, виготовлення моделей, макетів, постановка досвідів, експериментів.
У диференціації за інтересах на мезорівні виділяються класи з поглибленим вивчанням окремих предметів і профільні класи, що від перших відрізняються тим, що поглиблено вивчається ряд взаємозалежних предметів (наприклад, у математичному класі математика, інформатика), уводяться спецпредмети, спецкурси, що відповідають профілю навчання.
Диференціація за індивідуальними здібностями передбачає розходження учнів за здібностями, до тих або інших предметів: одні учні мають схильності до гуманітарних предметів, інші - до точних наук; одні - до історичних, інші - до біологічних і т.д.
Якщо звернутися до практики формування диференційованих класів за інтересами учнів, то можна помітити, що враховуються не тільки інтереси і бажання учнів, але і їх здібності до вивчення даних дисциплін. Спроба орієнтуватися тільки на інтерес учнів приводить до неможливості поглибленого вивчення профілюючих предметів у профільних класах.
Звернемося тепер до диференціації за проектованою професією учнів. Якщо на мікрорівні цю форму можна було об'єднати з диференціацією за інтересами, то на мезорівні виділяються класи, спрофільовані на певний вищий навчальний заклад, ліцейські класи, групові заняття в школі з підготовки у вуз.
1.3 Характеристика основних форм диференціації
Найпоширенішою формою внутрішньокласової диференціації є виконання учнями завдань різного рівня складності. При цьому ускладнення може відбуватися за рахунок залучення пройденого матеріалу, коли учням необхідно встановити близькі або далекі зв'язки між різними фрагментами змісту. Ускладнення завдань може відбуватися і за рахунок ускладнення видів роботи, посилення рівня творчої діяльності, необхідної при виконанні завдання. Наприклад, на найпростішому рівні учням пропонується прочитати параграф у підручнику, переказати його, виділивши основні думки; на більш складному рівні - прочитати параграф, скласти план і питання до нього, на самому складному рівні - прочитати параграф, дати анотацію і рецензію на нього.
Учителями використовуються різноманітні способи включення диференційованих завдань у навчальний процес, які можна об'єднати в дві групи: перша - учитель може дати завдання кожному учню, друга - учні можуть самі вибрати завдання. До самостійного вибору завдання учнів треба готувати. На першому етапі вчитель розповідає про складності кожного завдання, радить учню, яке завдання вибрати; на другому етапі - розповідає про складності завдань, але вибирають самі учні. Учитель коректує їх вибір. На заключному етапі учні самі розподіляють складність завдання і самі здійснюють вибір. Така робота сприяє формуванню адекватної самооцінки відповідного рівня домагань учнів. Завдання для добровільного виконання можуть знаходити і пропонувати самі учні. Серед диференційованих завдань широко поширені завдання різної спрямованості: завдання, що усувають пробіли в знаннях, і завдання, що враховують в учнів відповідні попередні знання з теми. Формою внутрішньокласової диференціації є дозування допомоги вчителю учням, що включає тимчасове полегшення завдань (розбивка тексту або фрагментування на самостійні частини - порції), завдання з письмовою інструкцією (наприклад, із указівкою послідовності дій), роботи з підготовчими вправами (кожна підготовча вправа являє собою етап виконання основного), роботи з наочним підкріпленням малюнком, кресленням.
Виконуючи завдання з дозованою допомогою, учень одержує конверт із необхідними інструктивними матеріалами, до яких він може звернутися, а може і не звернутися в процесі виконання завдання. У даному випадку обсяг дозованої допомоги визначає сам учень.
Формою внутрішньокласової диференціації за загальними здібностями учнів є рівнева диференціація, розроблена В.В. Фірсовим, В.А. Орловим, В.М. Монаховим.
Автори виходять з того, що в процесі навчання вчителі завжди орієнтувалися на максимум змісту навчального матеріалу. Якщо учень цілком засвоював цей максимум його знання оцінювалися 5 балами, якщо були незначні пробіли або неточності - 4 балами і т.д. Сумлінний учень орієнтований був саме на максимум знань і намагався його засвоїти. Це, природно, викликало перевантаження учня, тому що він ставив собі мету засвоїти максимум знань зі всіх предметів.
Автори ідеї вівневої диференціації запропонували перейти в процесі навчання від орієнтації на максимум змісту до орієнтації на мінімум. При цьому необхідним є чітке визначення того мінімуму, яким повинен опанувати учень, без якого він не зможе рухатися далі у вивченні даного предмета. Це - мінімальний рівень, рівень загальних вимог, що задається явно у вигляді переліку понять, законів, закономірностей, що учень повинен знати; у вигляді питань, на які учень повинен уміти відповісти; у вигляді зразків типових задач, що учень повинен уміти вирішувати. Визначається також зміст, який необхідно засвоїти учню і на підвищених рівнях.
Кожен учень одержує право і можливість самостійно визначати, на якому рівні він засвоїть навчальний матеріал. Єдина умова - цей рівень повинен бути не нижче рівня обов'язкової підготовки. Учитель пояснює матеріал на рівні, більш високому, ніж мінімальний. При цьому вчитель чітко виділяє зміст навчального матеріалу, що учні повинні засвоїти, займаючись на тому або іншому рівні, і перед початком вивчення чергової теми знайомити учнів з результатами, яких вони повинні досягти.
Якщо учень бажає вивчати певний предмет на рівні обов'язкових вимог, а інший - на підвищеному рівні (причому не тільки бажає, але і здатний це робити) то таку можливість він повинен одержати. Таким чином, в рівневій диференціації враховуються не тільки інтелектуальні здібності учня, але і його інтереси.
Характерно, що при введенні рівневої диференціації в практику навчання, з'ясувалося, що деякі учні, що мають здібності до вивчення певного предмета, не хотіли вибирати рівень вище обов'язкового Така ж картина спостерігалася й у відношенні інших предметів, тобто не можна було сказати, що учень вивчає один предмет на мінімальному рівні, для того, щоб інший вивчити поглиблено. Інтереси таких учнів лежали в позашкільній сфері: могли визначатися спортом, спілкуванням із друзями, захопленням музикою.
Формою внутрішньої диференціації є і групова робота учнів по моделі повного засвоєння знань. Модель повного засвоєння знань припускає чітку постановку цілей в освітній діяльності: що учні - повинні знати, що вміти, які цінності повинні в них формуватися в ході навчання. Причому, дуже важлива технологічність цілей: їх досягнення повинно бути перевірено, тобто повинен існувати інструментарій перевірки .
Після вивчення теми на рівні базового змісту матеріалу і здачі заліку, у ході якого і визначається досягнення поставлених цілей, клас поділяється на дві групи: перша - учні, що засвоїли тему, з ними організується розширене і поглиблене вивчання матеріалу, і друга група не засвоїли тему, з цими учнями проводиться додаткова робота з засвоєння змісту.
У першій групі може бути організована робота з рішення задач підвищеної складності, виконанню нестандартних, творчих завдань, обговорення наукових проблем, знайомство з додатковою літературою. Такій роботі можуть бути присвячені одне-два заняття.
В другій групі йде відпрацьовування знань, способів дій, що недостатньо засвоєні. До такого відпрацьовування можуть підключатися й учні першої групи як консультанти, помічники учителя.
Розділ 2. Методика проведення уроків з виконання диференціального підходу на прикладі теми: „Нанесення розмірів”
2.1 Нанесення розмірів на кресленнях
Питання, пов'язані із забезпеченням креслення необхідними розмірами, продумуються у процесі визначення кількості та змісту зображень, але безпосередньо вирішуються, коли зображення деталі виконані. При цьому слід розрізняти терміни «Проставлення» і «нанесення» розмірів.
Проставлення розмірів розуміється як їх призначення на кресленні деталі для її виготовлення урахуванням конструктивних і технологічних умов.
Нанесення розмірів слід розуміти в сенсі: в яких положеннях і в яких місцях креслення наносити виносні та розмірні лінії, яким чином вписувати розмірні числа, знаки і букви.
ГОСТ 2.307-68, що встановлює загальні правила нанесення розмірів і умовних знаків перед ними, стосується лише геометричній сторони питання вводить одноманітність в техніку нанесення розмірів; Проставлення (призначення) розмірів може бути стандартизована, тому що пов'язана зрізною і постійно вдосконалює технологію виготовлення деталей і виробів.
При виконанні ескізів і креслень деталей спочатку вирішується питання простановки (призначення) розмірів, потім наносяться виносні та розмірні лінії і в останню чергу, коли ескіз перевірений і виправлений, провадиться обмір деталі і вписуються розмірні числа.
Процес простановки (призначення) розмірів починається з вибору певних поверхонь, ліній або точок деталі, які називаються базами. Бази і відповідно розміри можуть бути конструктивними і технологічними.
Конструктивною базою називають сукупність поверхонь, ліній або точок, здатну самостійно деталі у виробі або в складальної одиниці.
Деталь може мати кілька конструктивних баз і розмір того чи іншого елементу деталі повинен бути заданий від тієї конструктивної бази, з якої він пов'язаний у виробі. Від конструктивних баз наносяться, як правило, розміри, визначають розташування сполучених поверхонь деталі.
Технологічною базою називають сукупність поверхонь, ліній або точок, щодо яких витримують розміри елементів деталі при її обробці. Від технологічних баз вказують вільні не спряжені розміри.
У деталях (виробах, складальних одиницях) розмірними базами можуть служити: площині, з яких починається обробка деталі (наприклад, торцеві), і площині, якими ця деталь стикається з іншого деталлю; прямі лінії: осі симетрії або будь-які взаємно перпендикулярні лінії, що виникають на кресленні як проекції реальних елементів деталі; точки: центри кіл або характерні точки інших кривих ліній, у які проектуються поверхні тих чи інших елементів форми деталі.
Для того щоб на кресленні зручніше представляти, а при виготовленні деталі з цього кресленням можна було точніше витримувати і контролювати розміри, вводять допоміжні бази, орієнтуючи їх від основних баз.
Вибір розмірних баз фіксується на ескізі позначеннями шорсткості тих поверхні, які безпосередньо прийняті за бази чи елементи яких, проектують в лінії і точки, можуть бути прийняті за «приховані» розмірні бази. Така рекомендація пояснюється тим, що до базових поверхонь звичайно пред'являються підвищені вимоги щодо їх шорсткості.
Усі зображення креслення дають уявлення про форму деталі й не дають змоги робити висновок про її розміри. Тому нанесення розмірів на креслення – одна з найважливіших і відповідальних стадій його виконання.
Відповідно до ЄСКД існують такі основні вимоги до нанесення розмірів на кресленнях:
1) розміри на кресленнях зазначають за допомогою розмірних ліній та розмірних чисел;
2) лінійні розміри та їх граничні відхилення вказують на кресленнях у міліметрах без позначення одиниці. В тексті на полі креслення, в пояснювальних записках і технічних умовах обов'язково зазначають одиниці. Якщо лінійні розміри на кресленні задано не в міліметрах, а, наприклад, у сантиметрах, метрах, то одиницю вказують безпосередньо біля розміру або в технічних вимогах. Кутові розміри та граничні відхилення зазначають у градусах, мінутах і секундах з позначенням одиниці (5°; 30°12'; 45°18'3"; 30° ± Г; 12° ± 1').
Не допускається застосовувати для розмірних чисел прості дроби, за винятком розмірів, указаних у дюймах;
3) кожний розмір зазначають на кресленні тільки один раз і на тому зображенні, де даний елемент деталі показано найбільш ясно; не допускається наносити розміри у вигляді замкненого розмірного ланцюга, тобто сукупності розмірів, що утворюють замкнений контур, за винятком випадків, коли один із розмірів ланцюга вказано у вигляді довідкового без граничних відхилень. На будівельних кресленнях розміри наносять у вигляді замкненого ланцюга;
4) не рекомендується проставляти на кресленні розміри невидного контуру, зображеного штриховими лініями.
Розмірні та виносні лінії. Розміри на кресленнях зазначають розмірними числами і розмірними лініями. Під час нанесення розміру прямолінійного відрізка розмірну лінію проводять паралельно цьому відрізку, а виносні лінії – перпендикулярно до розмірних.
Розмірні лінії проводять суцільною тонкою лінією та обмежують вузькими стрілками у вигляді гострих кутів. Розміри елементів стрілок розмірних ліній вибирають залежно від товщини s суцільної основної лінії та креслять стрілки приблизно однаковими на всьому кресленні. Стрілки мають впиратися вістрям у відповідні лінії контуру – виносні, осьові та ін.
Наносячи розмір кута, розмірну лінію проводять у вигляді дуги з центром у його вершині, а виносні лінії – радіально.
Під час нанесення розміру дуги кола розмірну лінію проводять концентричне дузі, виносні лінії – паралельно бісектрисі кута, а над розмірним числом ставлять знак . Допускається розташовувати виносні лінії розміру дуги радіально, а якщо є ще концентричні дуги, необхідно вказувати, якої дуги стосується розмір.
Відстань між паралельними розмірними лініями, а також відстань від розмірних ліній до паралельних їм ліній контуру, осьових, центрових, виносних мають знаходитися в межах 6 .10 мм.
Розмірні лінії по можливості не повинні перетинатися між собою.
Виносні лінії проводять, як правило, перпендикулярно до розмірних, причому вони мають виходити за кінці стрілок розмірних ліній на 1 .5 мм.
Розмірні лінії допускається проводити з обривом і зі стрілкою тільки біля одного кінця в таких випадках:
1) при зазначенні розмірів симетричного предмета або симетрично розташованих елементів, якщо їх вигляд чи розріз зображено тільки до осі симетрії або з обривом; при цьому розмірну лінію обривають далі осі чи лінії обриву предмета;
2) при зазначенні розміру діаметра кола незалежно від того, як зображено коло – повністю або частково; при цьому розмірну лінію обривають далі центра кола.
Якщо довжина розмірної лінії недостатня для розміщення на ній стрілок, то її продовжують за виносні лінії (або за контурні, осьові, центрові), а стрілки наносять зовні, спрямувавши вістря до відповідних ліній. При нестачі місця для стрілок на розмічальних лініях, розташованих ланцюжком, стрілки допускається заміняти засічками, які наносять під кутом 45° до розмірних ліній, або чіткими точками.
При нестачі місця для стрілок через близько розташовану контурну або виносну лінію останню допускається переривати.
Якщо потрібно показати координати вершини кута, що скругляється, або центра дуги скруглення, то виносні лінії проводять від точки перетину сторін кута, який скругляється, чи центра дуги скруглення .
Розмірні числа. Їх на кресленнях треба проставляти чітко та ясно. При цьому необхідно додержуватися таких вимог:
1. Розмірні числа слід наносити над розмірною лінією якомога ближче до її середини.
2. Наносячи кілька паралельних або концентричних розмірних ліній на невеликій відстані одну від одної, розмірні числа над ними рекомендується розташовувати в шаховому порядку.
3. Кутові розміри слід наносити так. У зоні, розташованій вище горизонтальної осьової лінії, розмірні числа треба поміщати над розмірними лініями з боку їх опуклості, а в зоні, що знаходиться нижче горизонтальної осьової лінії, – з боку вгнутості розмірних ліній. В заштрихованій зоні наносити розмірні лінії не рекомендується. В цьому разі розмірні числа слід указувати на горизонтально нанесених поличках. Для кутів малих розмірів при нестачі місця розмірні числа потрібно поміщати на поличках ліній-виносок у будь-якій зоні.
4. Розмірні числа та граничні відхилення не допускається розділяти або перетинати будь-якими лініями креслення. Не допускається розривати лінію контуру для нанесення розмірного числа та наносити розмірні числа в місцях перетину розмірних, осьових і центрових ліній. У місці нанесення розмірного числа осьові, центрові лінії та лінії штрихування треба переривати.
Умовні знаки. Діаметри. Циліндричні поверхні позначаються на кресленнях умовним знаком Ø, що має вигляд кола, перетятого прямою лінією. Висота та нахил останньої відповідають висоті й нахилу розмірних чисел. Нанесення знака діаметра дає змогу іноді уникати зайвої проекції зображуваної деталі.
Знак діаметра наноситься над розмірною лінією, перед розмірним числом.
Розмір діаметра циліндричної поверхні рекомендується наносити між твірними. Розміщення його по колу допускається тільки в разі необхідності.
Розміри кількох однакових елементів виробу, як правило, наносять один раз із зазначенням на полиці лінії-виноски кількості цих елементів.
Наносячи розміри елементів, рівномірно розташованих по колу виробу (наприклад, отворів), замість кутових розмірів, що визначають взаємне розташування елементів, зазначають тільки їх кількість.
Розміри двох симетрично розташованих елементів виробу (крім отворів) наносять один раз без зазначення їх кількості, групуючи, як правило, в одному місці всі розміри. Кількість однакових отворів завжди вказують повністю, а їх розміри – тільки один раз.
Радіуси. Перед розмірним числом, що вказує значення радіуса, наноситься велика літера R латинського алфавіту, її висота та висота розмірного числа мають бути однаковими. У разі проведення кількох розмірних ліній радіусів з одного центра вони не повинні розташовуватися на одній прямій.
Якщо радіуси скруглень, згинів на всьому кресленні однакові або який-небудь радіус переважає, то замість нанесення розмірів цих радіусів безпосередньо на зображення в технічних вимогах рекомендується робити такі записи, як "Радіуси скруглень 4 мм", "Внутрішні радіуси згинів 10 мм", "Невказані радіуси 8 мм" тощо.
Конусність і похил. Перед розмірним числом, що характеризує конусність, наносять знак , гострий кут якого має бути спрямований у бік вершини конуса. Перед розмірним числом, яке визначає похил, наносять знак <, гострий кут якого має бути спрямований у бік похилу.
Фаска. Для позначення фасок з кутом 45° застосовують умовний напис, в якому перша цифра вказує довжину катета фаски у міліметрах, а друга – значення кута, наприклад 2 х 45°. Розміри фасок під іншими кутами зазначають за загальними правилами – лінійними та кутовими розмірами або двома лінійними розмірами.
Масштаби. Масштабом зображення називають відношення розмірів предмета, виконаних на кресленні без спотворення його зображення, до їх номінальних значень.
Типові помилки при нанесенні розмірів
розміри нанесені в сантиметрах, а не в міліметрах;
на кресленні, виконаному в масштабі, замість натуральних розмірів їх нанесено зменшеними або збільшеними;
розміри розрізу або перерізу не відповідають розмірам відповідних елементів просторової форми, перетнутої січною площиною;
розміри деталі, нанесені на ескізі, не відповідають її справжнім розмірам;
розміри зображень деталі на робочому кресленні (з урахуванням масштабу) не відповідають справжнім розмірам деталі;
розмірні лінії є продовженням суцільних товстих основних ліній;
розмір різьби зображено не за її більшим діаметром, а діаметр різьби не відповідає позначенню різьби;
учень не знає розмірів креслярських шрифтів, приблизних співвідношень між шириною і висотою літер, розмірами елементів літер і цифр, відстанями між буквами, словами і рядками;
лінійні і кутові розміри нанесено в незручним для їх читання місцях, під кутом 30о відповідно до вертикальної та горизонтальної ліній;
нерівномірно розподілено розміри між трьома виглядами;
на зображеннях просторової форми повторно нанесено той самий розмір.
2.2. Розробка уроку на тему: „Нанесення розмірів”
Мета: Вивчити основні правила і норми нанесення розмірів на кресленні; навчитися наносити розміри на проекції предметів різних форм; розвивати просторове мислення (уявлення про форму предметів).
Устаткування: креслярські інструменти, зошит, підручник.
Завдання: розвиток творчого мислення, виховання пізнавального інтересу до предмета, формування самостійності, акуратності, навчити правильно наносити розміри на креслення.
Зміст уроку:
І. Організаційний момент
Перевірка наявності необхідних креслярського приладдя, половина зошитового листка для фронтального опитування. На листку у верхньому правому куті написані: Прізвище, клас. Учні готові для початку уроку.
ІІ. Фронтальне опитування попереднього матеріалу
Учні відповідають на питання письмово на приготовлених аркушах (половина), позначаючи № (номер) питанняи(питання не записують) один по одному. Питання записані на дошці.
Питання:
1. Що називається кресленням?
2. Що таке стандарт ЕСКД?
3. Які розміри має лист формату А4?
4. Яке призначення суцільної тонкої лінії? Яка її товщина?
5. Яке маркування олівця для проведення суцільної тонкої лінії?
6. Накреслити горизонтально суцільну тонку лінію.
Через 5 хвилин учитель пропонує здати листочки на перевірку.
ІІІ. Корекція знань по опитуванню
Для з'ясування помилок і неточностей, допущених при опитуванні, на уроці, після здачі аркушів, учитель викладає правильні відповіді:
1) Креслення - це документ, що містить зображення предмета, виробу (або архітектурного спорудження) і інші дані (розміри, масштаб, технічні вимоги), необхідні для його виготовлення (будівництва) і контролю.
2) Стандарт ЕСКД - це нормативний документ, що встановлює єдиного правила виконання й оформлення конструкторських документів для всіх галузей промисловості (єдина система конструкторської документації), затверджений Державним комітетом зі стандартизації.
3) А4 - розміри сторін 210x297.
4) Суцільна тонка лінія призначена для нанесення розмірних і виносних ліній, штрихування, ліній-винесень, ліній побудови. Товщина S/3 до S/2.
5) Олівці для проведення суцільної тонкої лінії повинні бути твердими T, 2T, 3T.
6)
Суцільна
тонка і Суцільна товста основна
4. Постановка цілей.
На попередніх заняттях ви навчилися виконувати найпростіші креслення за допомогою основних ліній, що допомогло відробити побудови по програмі Компас - Графік, засвоїли алгоритми побудови відрізків і кутів. Виконували лінії креслення, що допоможуть нам вичерчувати більш складні креслення і нанесення розмірів. Мета сьогоднішнього заняття - навчитися виконувати креслення на основі базових алгоритмів та наносити розміри.
V. Виклад нового матеріалу.
Розвиток технічної графіки останнім часом показав, що графічні зображення, до яких відноситься креслення, можуть бути виконані машинним способом за допомогою спеціальних програм комп'ютерного забезпечення. Це значно спрощує виконання креслень і прискорює розробку проектно-конструкторської документації, але необхідно виконувати деякі умови.
Вивчення нової теми
Одиниці виміру. Існує два види розмірів: кутові і лінійні. На практиці використовуються лінійні, тому що вони проставляються в міліметрах без позначення (мм) розміру і характеризують довжину, ширину, висоту, товщину, діаметр, радіус різних частин зображуваного предмета. Кутові розміри вказуються в градусах, хвилинах і секундах з позначенням одиниць виміру (6°, 5', 10") і характеризують величину кута.

При нанесенні розмірів, насамперед, треба визначити необхідність кожного розміру на кресленні. Загальна кількість розмірів повинна бути мінімальною, але достатньою для виготовлення і контролю. Наносити зайві розміри або повторювати їх на кресленні не варто.


Підставлені розміри повинні забезпечити не тільки можливість побудови зображення, але і виготовлення того, що зображено.
Стандартом установлені правила нанесення розмірів. Лінія, використовувана для виконання розмірів - суцільна тонка.
Виносні лінії. При нанесенні розмірів для вказівки границь виміру, і виносу розміру за контур зображення, проводять прямі. Лінії, що називають виносними. Їх варто проводити перпендикулярно прямолінійному відрізку елемента деталі, розмір якого вказують. Лінії, в основному, розташовують поза контуром зображення виду (проекції) предмета.
Виносні лінії, що виходять за стрілки, повинні бути рівними від 2 до 5 мм і однаковими на всьому кресленні.
Виносні лінії допускається проводити від лінії невидимого контуру тільки при нагоді, якщо відпадає необхідність виконувати додаткове зображення.

Розмірні лінії. Для визначення границі виміру частин, форми предмета проводять як пряму лінію, так і дуги окружності, над якими надписують розміри, називають розмірними лініями.
Ці лінії зображують суцільними і проводять паралельно прямолінійному відрізкові елемента деталі, розмір якого вказується. Розмірні лінії проводять між виносними лініями, осьовими, іноді допускається проводити безпосередньо до ліній видимого контуру.
По можливості варто уникати перетинання розмірних і виносних ліній.

Не допускається використання ліній контуру, осьових, центрових, а так само виносних ліній у якості розмірних.
Стрілки. Розмірні лінії, що упираються у виносні, осьові, контурні обмежують стрілками. Форма стрілки представляє визначену геометричну фігуру, що має задані параметри.

Ці параметри зберігаються на всьому кресленні, обраного формату. (Величина стрілок повинна бути однакової на всьому листі).
Якщо неможливо розмістити стрілки на кінцях розмірної лінії, то їх розміщують із зовнішньої сторони виносних.
При недоліку місця на розмірній лінії, стрілки можна замінити зарубками (під кутом 45° до розмірної лінії), або крапками. Допускається переривати контурну або виносну лінію, що обмежує місце положення стрілки.

Розмірні числа. Надписані числа, що показують розміри над розмірними лініями називаються розмірними числами. Існує спосіб нанесення розмірних чисел на кресленні, що допомагає визначити величину вимірюваного відрізка. Він дозволяє провести пряму лінію без розриву і надписати число над нею. Розмірні числа не слід розділяти або перетинати якими б те ні було лініями креслення.
Цифри розмірних чисел при різних нахилах розмірних ліній варто розташовувати як показано на малюнку, уникаючи проведення розмірних ліній у межах кутів 30° і числа виносяться на лінії-винесення горизонтально.

Розмірне число наносять ближче до середини.
При відсутності додаткових зображень (проекцій) визначальну форму предмета перед розмірним числом наносять знак ((квадрат), якщо сторони елемента деталі плоскі грані. Знак ((діаметр), якщо елемент складається з тіл обертання, знак R (радіус) при округлених кутах (сполученнях).



Класифікація розмірів. Для забезпечення читання розмірів, що вказуються на кресленнях, їх можна розбити з погляду визначення величини й ув'язування елементів на сім груп розмірів: габаритні, конструктивні, координуючі, технологічні, визначаючі форму деталі, настановні і приєднувальні.
Габаритні розміри - найбільші розміри деталі по ширині, висоті, довжині. В основному ці розміри використовуються для вибору заготовки деталі, контролю розмірів у випадку установки деталі в пристрій.
Розміри, що визначають форму - визначають лінійні, кутові, заокруглення, що характеризують форму елементів деталі.
Способи нанесення розмірів. Установлено два способи нанесення розмірів: координатний і ланцюговий.
Координатний - нанесення розмірів від однієї сторони (основної бази) або драбинкою, при цьому способі розміри дають чітка побудова предмета.

Ланцюговий - нанесення розмірів ланцюжком (один за іншим), але цей спосіб виключає один розмір (частини деталі, несхильний обробці) і тут потрібний довідковий розмір.

Відстань між рівнобіжними розмірними лініями вибирають одну для всього креслення від 6 до 10 мм.
Товщина плоскої деталі позначається буквою s з наступною вказівкою розмірного числа. Довжина виробу позначається малою буквою латинського алфавіту - L (ель).

Іноді на кресленнях наносять довідкові розміри.
Довідковими - називають розміри , щоне піддаються контролеві. На кресленні вони відрізняються знаком *. Над основним написом роблять запис:
*- розмір для довідок.

VІ. Закріплення матеріалу
Для закріплення нового матеріалу використаємо диференційований підхід. Клас ділимо на кілька груп. Перша група (слабкі діти) на картках отримує запитання:
1) На підставі чого можна судити про величину деталі? (розміри).
2) У яких одиницях виміру виражають розміри на кресленнях? (у мм, градусах, хвилинах, секундах).
3) Яку відстань залишають між контуром зображення і розмірних ліній? (від 6 до 10 мм).
4) На скількох мм повинні виступати выносные лінії за кінці стрілок? (від 2 до 5 мм).
5) Які розміри називаються габаритними? (найбільші розміри предмета по довжині, висоті, ширині).
6) Якими знаками позначаються довжина, товщина, квадрат, радіус, діаметр, розмір для довідок.
Друга група (середнього рівня успішності учні):
Завдання: зробити креслення для виготовлення молотка. Нанести всі відповідні розміри.
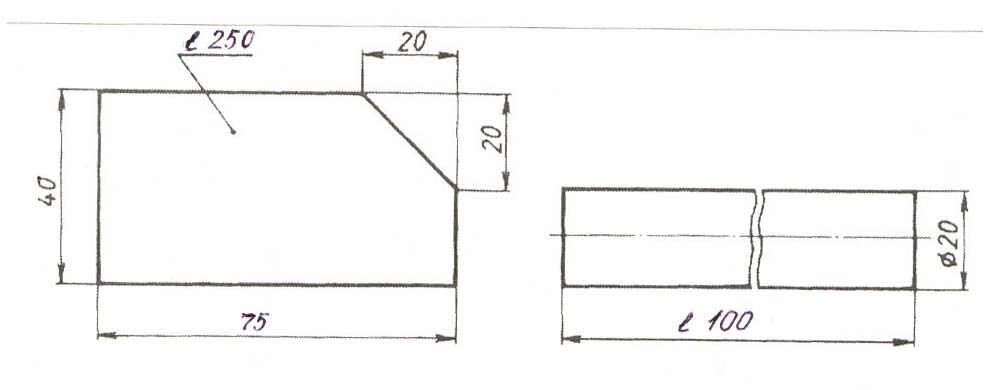
Третя група (високого рівня успішності учні)
Завдання: Побудувати креслення деталі, зображеної на малюнку, з нанесенням всіх необхідних розмірів.

VІІ. Підведення підсумків уроку
Висновки
Навчально-виховний процес, що враховує типові індивідуальні особливості учнів, прийнято називати диференційованим. А навчання за таких умов – диференційованим навчанням
Диференційоване навчанням - вид навчання, що базується на принципі диференціації та педагогічній технології диференційованого навчання, яке передбачає створення різних умов навчання для різних шкіл, класів, груп з метою врахування як індивідуальних особливостей, так і домінуючих особливостей їх контингентів.
Диференційоване навчання на уроці потребує ґрунтовної підготовки педагога, певних умінь. Необхідно вивчати індивідуальні особливості учнів, розподілити їх за групами, розмістити ці групи; підібрати консультантів; розробити заняття в деяких; чітко сформулювати основні й додаткові запитання, визначити час на їх виконання; продумати систему оперативного контролю; поєднувати індивідуальну, групову і фронтальну роботу, продумати власну педагогічну діяльність на заняття; підготувати необхідні дидактичні матеріали.
Позитивним у деференційованому навчанні є те, що воно дає можливість ставити перед учнями навчальні завдання що передбачають пошук; створюються передумови для використання комплексних розумових дій; навчальні завдання розв’язуються у процесі спілкування членів групи, що сприяє вихованню колективізму, формуванню комунікативних якостей, поділу праці між членами групи; учитель здійснює керівництво навчальним процесом опосередковано.
Види диференціації визначаються, виходячи з тих індивідуально-типологічних особливостей учнів, що у даному випадку враховуються. Традиційно виділяються наступні види диференційованого навчання: за загальними і спеціальними здібностях, за інтересами, за майбутньою професією.
Найпоширенішою формою внутрішньокласової диференціації є виконання учнями завдань різного рівня складності. При цьому ускладнення може відбуватися за рахунок залучення пройденого матеріалу, коли учням необхідно встановити близькі або далекі зв'язки між різними фрагментами змісту. Ускладнення завдань може відбуватися і за рахунок ускладнення видів роботи, посилення рівня творчої діяльності, необхідної при виконанні завдання.
В роботі розглядаються вимоги до нанесення розмірів, методичні аспекти нанесення розмірів, типові помилки, які можуть допускати учні при нанесенні розмірів. В роботі наведена розробка уроку з теми „Нанесення розмірів з урахування форми предмета”.
Список використаної літератури
Василевская А.М., Пономарева Р.А. Развитие технического творческого мышления у подростков и юношества. – К.: Вища школа, 1982. – 144 с.
Вінасевич І. Структурні компоненти технічних здібностей школярів. // Трудова підготовка в закладах освіти. – 2007. - № 4. – С. 26-29.
Гетта В. Розвиток технічного мислення учнів: стратегія і тактика. // Трудова підготовка в закладах освіти. – 2005. - № 1. – С. 47-50
Гольдин И.И. Формирование в процессе проблемного обучения рациональных способов решения конструктивно-технических задач. — О проблемном обучении, 1969, вып. 2, С. 9 — 20.
Гриценко Л. Методи і методичні прийоми формування системи понять шкільного предмета “Креслення” в учнів 8–9-х класів // Збірник наукових праць Полтавського державного педагогічного університету імені В.Г. Короленка. – Випуск 5/6 (26–27). – Полтава, 2002. – С. 163–168.
Гриценко Л. Технічні засоби навчання та посібники як один із шляхів активізації розумової діяльності учнів в процесі оволодіння основами графічної грамоти // Розвиток особистості в системах трудової та професійної підготовки молоді. Матеріали Всеукраїнської науково-практичної конференції. – Кривий Ріг: Видавництво “І.В.І.”. – Жовтень, 2002. – С. 114–117.
Гриценко Л. Формування в учнів понять про розрізи в процесі навчання креслення // Технічна та художня творчість у трудовій підготовці молоді – Херсон: Видавництво ХДУ, 2003. – С. 46–51.
Гриценко Л. Шляхи активізації навчального процесу при вивченні графічних дисциплін // Педагогічна майстерність як сучасна технологія розвитку особистості вчителя / Матеріали Всеукраїнської науково-практичної конференції 4–6 березня 2002 р. – Полтава: АСМІ, 2002. – С.94–98.
Гунська Л. Розвиток творчих здібностей на уроках трудового навчання. // Трудове навчання. – 2008. - № 12 (грудень). – С. 5 – 8.
Дидактика производственного обучения/ /Под ред. О. Ф. Федоровой. — М.: Высшая школа, 1973. — 418 с.
Зыкова В.И. Опыт формирования интеллектуальных умений у старших школьников при решении практических задач. — Вопросы психологии, 1966, № 3, с. 117 - 129.
Ительсон П.Б. Основы методики профессионального обучения школьников. — М.: Учпедгиз, 1968. — 230 с.
Калошина И.П. Проблемы формирования технического мышления. – М., 1974. – 185 с.
Качнев В.И. Развитие конструкторско-технологичаских знаний, умений у подростков в процессе трудового обучения. — Советская педагогика, 1963, № 10, с. 61 - 69.
Ковальский М.И. Производственное обучение учащихся средней школы. - М.: Изд-во АПН РСФСР, 1963.
Кохан Л.М. Вплив технічної творчої діяльності учнів у гуртках на вибір професії. Технічна творчість у школі. – К., 1974.
Кудрявцев Т.В. Внедрение принципа проблемности в обучение. — М.: Высшая школа, 1968. - 65 с.
Кудрявцев Т.В. Психология технического мышления. — М.: Просвещение, 1975. - 303 с.
Кудрявцев Т.В., Якиманская И.С. Развитие технического мышления учащихся. — М.: Высшая школа, 1964. — 88 с.
Левитов Н.Д. О психологических компонентах технической деятельности. — Вопросы психологии, 1958, № 6, с. 181 — 190.
Михайлов А.А, Техническое творчество школьников. - М.: Просвещение, 1969. - 207 с.
Пирьов Г.Д. Понимание и гипотеза в процессе решения технических задач. — Вопросы психологии, 1975, № 1, с. 20 — 29.
Психология решения учащимися производственно-технических задач. — М.: Просвещение, 1965. — 254 с.
Рубинштейн С.Л. Проблемы общей психологии. — М.: Педагогика, 1973. - 428 с.
Секей Л. Продуктивные процессы в обучении и мышлении. — В кн.; Психология мышления. М.: Прогресс, 1963, с. 366 — 386.
Сорокин Н. Развитие технического мышления учащихся. - Профессионально-техническое обучение, 1969, № 2, с. 9 – 12.
Страхов И. С. Психология труда. - М.: Учпедгиз, 1963. - 240 с.
Тхоржевський В.С. Методика трудового навчання: Навч. посібник. – К., 1995. – 280 с.
Тхоржевський В.С. Суть технічної творчості та її значення для всебічного розвитку особистості. // Тхоржевський В.С. Методика трудового і професійного навчання: Ч.1. – К., 2001. – С. 136 - 142.
Федорова О.Ф. Некоторые вопросы активизации учащихся в процессе теоретического и производственного обучения. — М.: Высшая школа, 1970. -300 с.
Хімчук Л. Формування технічного мислення в учнів початкової школи у позашкільній діяльності .// Обдарована дитина. – 2006. - № 5. – С. 7-11.
Чебышвва В. В. Психология трудового обучения. — М.: Просвещение, 1969. - 303 с.
Шведов А. Активизация учащихся на уроках производственного обучения. — Профессионально-техническое образование, 1965, №2,с. 8 — 10.
Якиманская И.С. Формирование интеллектуальных умений в процессе производственного обучения. — М.: Высшая школа, 1979. — 88 с.
Якубовський З. Розвиток творчих здібностей учнів за допомогою різнорівневих карток-завдань. // Трудова підготовка в закладах освіти. – 2001. - № 2. – С. 11 – 14.
Яровий І.М., Рябінцев В.М. Розв`язування технічних задач – засіб розвитку творчої активності учнів. Технічна творчість учнів у школі. – К., 1974. – С. 55 – 61.