Нормирование основных деталей и узлов
Курсовая работа по дисциплине:
Нормирование точности
Тема Курсового проекта
Нормирование основных деталей и узлов
Задание№1
1.Посадка с зазором:

мм
мм
мм
мм
мм
мм
мм
мм
мм
мм
мм
мм
мм
мм
Графическое изображение посадки с зазором рис.1

2.Переходная посадка

мм


мм
мм
мм
мм
мм
мм
мм
мм
мм
мм
мм
мм
мм
мм
мм
мм
мм
мм
мм
мм

мм




Графическое изображение переходной посадки рис.2.

Графическое изображение вероятности натяга рис.3.

2.1 Расчитываем усилие запрессовки F>з> и разность температур Δt втулки, и вала для переходной посадки




2.2 Расчитываем усилие запрессовки F>з> и разность температур Δt втулки, и вала для переходной посадки.




3.Посадка с натягом

мм


мм
мм
мм
мм
мм
мм
мм
мм
мм
мм
мм
Графическое изображение посадки с натягом рис.3.

3.1 Расчитываем усилие запрессовки F>з> и разность температур Δt втулки, и вала для посадки c натягом




Задание №2
1. Выбор посадки с зазором. Номинальный размер Ø120 мм. Требуется выбрать посадку, в которой обеспечивается наибольший зазор – 0,180мм, и наименьший зазор – 0,005мм:
1.1 По табл.7 ГОСТ 25347- 82 определяем поле допуска вала. Оно соответствует значению h8, у которого es = 0, ei =-0,054мм.
1.2 По табл.8 ГОСТ 25347- 82 определяем поле допуска отверстия. Оно соответствует значению Н8, у которого ES = 0,054мм, EI =0.
1.3 В результате определения полей допусков вала и отверстия получаем
D>max> =Ø 120,054мм; D>min> =Ø 120мм
d>max> =Ø120; d>min> =Ø 119,946мм
TD=Td=0,054мм
Возможный S>max>=0,108мм (заданный 0,180мм);
Возможный S>min>=0 (заданный 0,005мм).
1.4 Выбирается посадка, соответствующая заданному условию:
Ø120H8/h8
1.5 Графическое изображение подобранной посадки

2. Выбор переходной посадки. Номинальный размер Ø100 мм. Требуется выбрать посадку, в которой обеспечивается наибольший зазор – 0,012мм, и наибольший натяг – 0,045мм:
2.1 По табл.7 ГОСТ 25347- 82 определяем поле допуска вала. Оно соответствует значению n6,, у которого es = 0,045мм, ei =0,023мм.
2.2 По табл.8 ГОСТ 25347- 82 определяем поле допуска отверстия. Оно соответствует значению Н5, у которого ES = 0,015мм, EI =0.
2.3 В результате определения полей допусков вала и отверстия получаем
D>max> =Ø 100.015мм; D>min> =Ø 100мм
d>max> =Ø100.045мм ; d>min> =Ø 100.023мм
TD=0,015мм; Td=0,022мм
Возможный N>max>=0,045мм (заданный 0,045мм);
Возможный S>max>=0,008мм (заданный 0,012мм).
2.4 Выбирается посадка, соответствующая заданному условию:
Ø100H5/n6
2.5 Графическое изображение заданной и подобранной посадки рис.6.

3. Выбор посадки с натягом. Номинальный размер Ø200мм. Требуется выбрать посадку, в которой обеспечивается наибольший натяг – 0,160мм, и наименьший натяг – 0,050мм:
3.1 По табл.7 ГОСТ 25347- 82 определяем поле допуска вала. Оно соответствует значению s7, у которого es = 0,168мм, ei =0,122мм.
3.2 По табл.8 ГОСТ 25347- 82 определяем поле допуска отверстия. Оно соответствует значению Н7, у которого ES = 0,046мм, EI =0.
3.3 В результате определения полей допусков вала и отверстия получаем
D>max> =Ø 200.046мм; D>min> =Ø 200мм
d>max> =Ø 200.168мм; d>min> =Ø 200.122мм
TD=0,046мм; Td=0,046мм
Возможный N>max>=0,168мм (заданный 0,160мм);
Возможный N>min>=0,076мм (заданный 0,050мм).
3.4 Выбирается посадка, соответствующая заданному условию:
Ø200H7/s7
3.5 Графическое изображение заданной и подобранной посадки рис.7.

Задание №3
Пронормировать по точности отверстия под болтовое и шпилечное соединение для следующих данных L>1>=100мм,> > L>2>=100мм,> >d=5мм, D=100 мм, α>1>=90°, α>2 >=70°, α>3>=100°. Смоделировать соединения. Произвести анализ собираемости. Оформить эскизы на детали в двух вариантах: используя позиционные допуски и допуски на позиционные размеры.
Моделируем соединение двух плит по заданным параметрам.
Выбираем диаметры сквозных отверстий под крепёжные детали и соответствующие им наименьшие (гарантированные) зазоры по ГОСТ 11284-75. Выбираем 1-й ряд D=5,3 мм.
Выбираем предельные отклонения размеров координирующих оси отверстия. Система прямоугольных координат. Соединение типа А(болтовое). ГОСТ 14140-81, таблица №3. Коэффициент используемого зазора К=1.Предельные отклонения ±δL=0,22.
Выполняем сборку соединения.
Выполняем анализ зазоров в сборке и составляем отчет №1.
Отчет №1
Выполняется анализ зазоров -
Дата и время: 27-Nov-2006 21:37:45
Часть: D:\styd\31302\Itkinin\lab 3\coedinenie A.prt
Имя анализа зазора: SET1
Версия: 1
Режим: По твердому телу
Файл сообщения
Резюме --
Всего объектов: 6
Всего пар: 15
Проверенные пары: 15
Исключенные пары: 0
Объекты изменились после последнего 6
Пары изменились после последнего зап15
Всего пересечений: ****** 9 ******
Общее число истинных пересечений 0
Всего условных пересечений: 0
Всего пересечений касания: 9
Общее число пересечений вложенности 0
Всего новых пересечений: 9
Новые настоящие пересечения 0
Новые условные пересечения 0
Новые касания 9
Новые пересечения вложенности: 0
Полное время анализа: 0:00:00
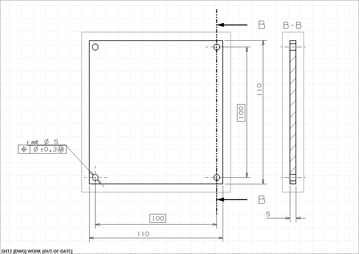
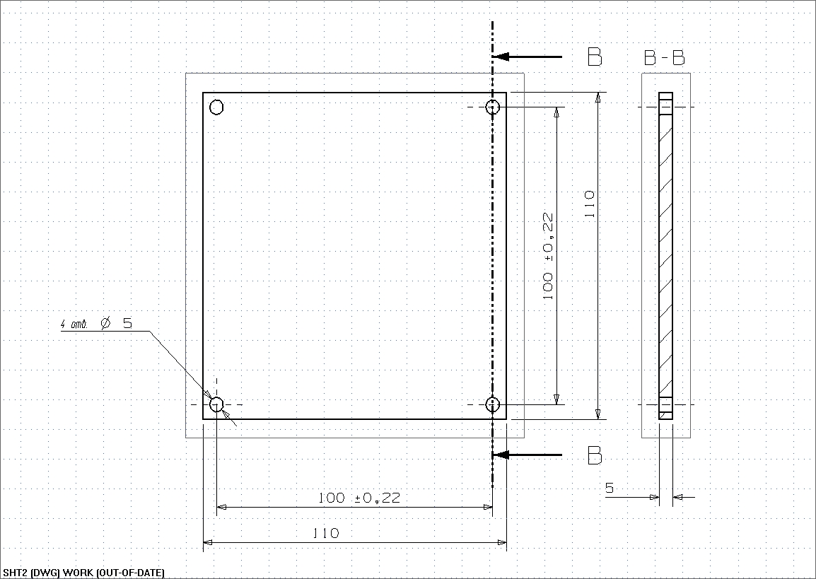
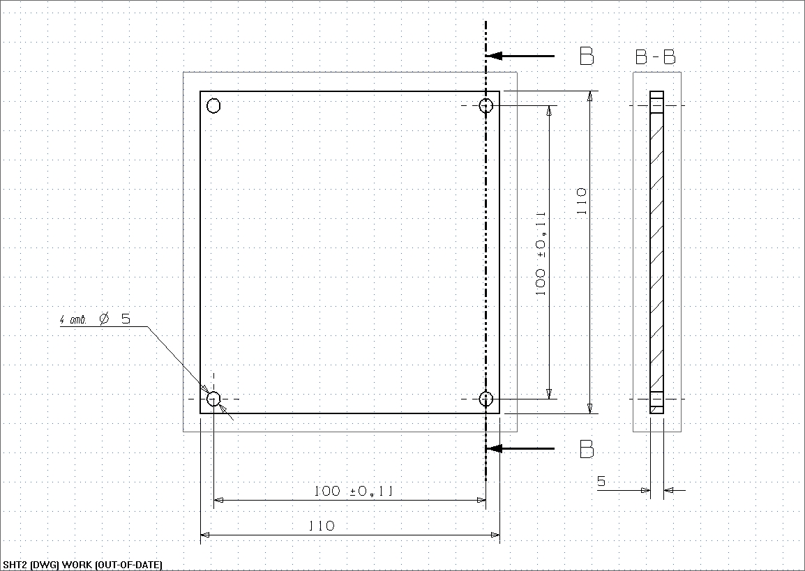
Эскиз детали плита с использованием позиционного допуска.

Эскиз детали плита с использованием допусков на позиционные размеры.

Моделируем соединение двух плит по заданным параметрам.
Выбираем диаметры сквозных отверстий под крепёжные детали и соответствующие им наименьшие (гарантированные) зазоры по ГОСТ 11284-75. Выбираем 1-й ряд D=5,3 мм.
Выбираем предельные отклонения размеров координирующих оси отверстия. Система прямоугольных координат. Соединение типа В(шпилечное). ГОСТ 14140-81, таблица №4. Коэффициент используемого зазора К=1.Предельные отклонения ±δL=0,11.
Выполняем сборку соединения.
Выполняем анализ зазоров в сборке и составляем отчет №2.
Отчет №2
Выполняется анализ зазоров --
Дата и время: 7-Dec-2006 19:50:27
Часть: D:\styd\31302\Itkinin\lab 3\coedinenie B(plita).prt
Имя анализа зазора: SET3
Версия: 1
Режим: По твердому телу
Файл сообщения:
Резюме --
Всего объектов: 6
Всего пар: 15
Проверенные пары: 15
Исключенные пары: 0
Объекты изменились после последнего 6
Пары изменились после последнего зап15
Всего пересечений: ****** 5 ******
Общее число истинных пересечений 0
Всего условных пересечений: 0
Всего пересечений касания: 5
Общее число пересечений вложенности 0
Всего новых пересечений: 5
Новые настоящие пересечения 0
Новые условные пересечения 0
Новые касания 5
Новые пересечения вложенности: 0
Полное время анализа: 0:00:00
Эскиз детали диск с использованием допусков на позиционные размеры.

Моделируем соединение дисков по заданным параметрам.
Выбираем диаметры сквозных отверстий под крепёжные детали и соответствующие им наименьшие (гарантированные) зазоры по ГОСТ 11284-75. Выбираем 1-й ряд D=5,3 мм. Выбираем предельные отклонения размеров координирующих оси отверстия. Система полярных координат. Соединение типа А(болтовое). ГОСТ 14140-81, таблица №5. Коэффициент используемого зазора К=0,8.Предельные отклонения ±δR=0,16. Выбираем предельные отклонения центрального угла между осями двух любых отверстий ±δα>∑>(ГОСТ 14140-81,таблица №7).> >Выполняем сборку соединения.
Выполняем анализ зазоров в сборке и составляем отчет №3.
Отчет №3
Выполняется анализ зазоров --
Дата и время: 16-Dec-2006 16:56:37
Часть: D:\styd\31302\Itkinin\lab 3\coedinenie A(disk)\cborka .prt
Имя анализа зазора: SET7
Версия: 1
Режим: По твердому телу
Файл сообщения:
Резюме --
Всего объектов: 6
Всего пар: 15
Проверенные пары: 15
Исключенные пары: 0
Объекты изменились после последнего 6
Пары изменились после последнего зап15
Всего пересечений: ****** 8 ******
Общее число истинных пересечений 0
Всего условных пересечений: 0
Всего пересечений касания: 8
Общее число пересечений вложенности 0
Всего новых пересечений: 8
Новые настоящие пересечения 0
Новые условные пересечения 0
Новые касания 8
Новые пересечения вложенности: 0
Полное время анализа: 0:00:00
Эскиз детали диск с использованием позиционного допуска.

Эскиз детали диск с использованием допусков на позиционные размеры.

Моделируем соединение дисков по заданным параметрам
Соответствующие им наименьшие (гарантированные) зазоры по ГОСТ 11284-75. Выбираем 1-й ряд D=5,3 мм. Выбираем предельные отклонения размеров координирующих оси отверстия. Система полярных координат. Соединение типа В (шпилечное). ГОСТ 14140-81, таблица №9. Коэффициент используемого зазора К=1.Предельные отклонения ±δR=0,11. Выбираем предельные отклонения центрального угла между осями двух любых отверстий ±δα>∑>(ГОСТ 14140-81,таблица №10). Выполняем сборку соединения. Выполняем анализ зазоров в сборке и составляем отчет №4.
Отчет №4
Выполняется анализ зазоров --
Дата и время: 16-Dec-2006 11:54:40
Часть D:\styd\31302\Itkinin\lab 3\coedinenie B(disk)\cborka.prt
Имя анализа зазора: SET4
Версия: 1
Режим: По твердому телу
Файл сообщения:
Резюме --
Всего объектов: 6
Всего пар: 15
Проверенные пары: 15
Исключенные пары: 0
Объекты изменились после последнего 6
Пары изменились после последнего зап15
Всего пересечений: ****** 4 ******
Общее число истинных пересечений 0
Всего условных пересечений: 0
Всего пересечений касания: 4
Общее число пересечений вложенности 0
Всего новых пересечений: 4
Новые настоящие пересечения 0
Новые условные пересечения 0
Новые касания 4
Новые пересечения вложенности: 0
Полное время анализа: 0:00:00
Эскиз детали диск с использованием допусков на позиционные размеры.

Задание №4
Для гладкого цилиндрического
соединения D>H>=130
мм, работающего при температуре t=180
0C,
пронормировать по точности диаметральные
размеры втулки и вала при нормальной
температуре, если при эксплуатационной
температуре посадка характеризуется
следующими параметрами: зазор 0,05
50% ; гильза- чугун; поршень – алюминий.
>
>мм>
>
>
>мм
>
>мм
>
>мм
мм
мм
мм
мм
мм
мм
мм
>
>мм
>
>мм
>
>мм
В результате расчёта получаем
следующую посадку:
Требуемая точность не является достижимой. Достижимая точность по IT5, поэтому требуемая точность соединения будет обеспечиваться селективной сборкой. Для получения равных размерных групп верхнее предельное отклонение отверстия увеличиваем на 1мкм (таб.1). В данном примере число размерных групп превышает нормальное количество, поэтому рекомендуется сократить число размерных групп, которое не должно превышать 3-5.
Эскизы размерных групп гладкого цилиндрического соединения изображены на (рис.8), поршня и отверстия на (рис.9а,б).

Таблица 1.
|
Размерная группа |
Диаметры отверстия, мм |
Диаметры вала, мм |
||
|
min |
max |
min |
max |
|
|
1 |
130,000 |
130,002 |
129,846 |
129,848 |
|
2 |
130,002 |
130,004 |
129,848 |
129,850 |
|
3 |
130,004 |
130,006 |
129,850 |
129,852 |
|
4 |
130,006 |
130,008 |
129,852 |
129,854 |
|
5 |
130,008 |
130,010 |
129,854 |
129,856 |
|
6 |
130,010 |
130,012 |
129,856 |
129,858 |
|
7 |
130,012 |
130,014 |
129,858 |
129,860 |
|
8 |
130,014 |
130,016 |
129,860 |
129,862 |
|
9 |
130,016 |
130,018 |
129,862 |
129,864 |
|
10 |
130,018 |
130,02 |
129,864 |
129,866 |
Задание №5
1) По ГОСТ 333-59 выбираем роликоподшипники конические. d=45мм, D=85мм, T>max>=21мм, C>1>=16, r =0,8мм.
Выбрать посадку циркуляционного нагруженного внутреннего кольца роликоподшипника конического № 7209 класса точности 0 на вращающийся сплошной вал. Радиальная реакция опоры R=3000 kH. Нагрузка ударная, перегрузка 200%. Осевой нагрузки нет.


мм.
Из таблицы по найденному значению интенсивности нагрузки выбираем соответствующие поля допусков. Поле допуска вала k6, поле допуска отверстия Н7 (местное нагружение кольца табл.4.89 ГОСТ 512-73).
2) Подбираем посадки шпонок.
По ГОСТ 23360-78 выбираем основные размеры
шпонок: для диаметра 38 мм Шпонка
ГОСТ 23360-78.
для диаметра 60 мм Шпонка
ГОСТ 23360-78.
Предельные отклонения по ширине b ГОСТ 26360-78:
Паз- N9
Ширина шпонки- h9
Ширина паза на валу- P9
Ширина паза во втулке- D10
3) Выявить размерную цепь.
Δt>в>> >=80°-20°=60°С
α>в >=12·10-6 1/град
Δl>в>= Δt>в >· α>в >· l>в>=60°·100·12·10-6=72 мкм
Δt>к >=40°-20°=20°С
α>к >=9·10-6 1/град
Δl>к>= Δt>к >· α>к >· l>к>=20°·227·9·10-6=41 мкм
Δl>в>- Δl>к>=72-41=31мкм
S>min>=e>0>+31=40+31=71мкм
Δ не должен превышать 1 мм.
В результате вычисления мы получили интервал значений, в которых находится значение Δ, но с целью экономической целесообразности данный интервал принимаем равным от 0,1 до 0,9 мм.
ТΔ=Δ>max> – Δ>min> =0,9-0,1=0,8 мм
ТА>i>> >=TΔ/n=0,8-(2-0,120)/7=0,08 мм
Вычисляем размер регулировочного элемента А>8 >, а сборку будем осуществлять пригонкой.
Δ>min>= (А>1>-0,08)-(( А>2 >+0,08/2)+ А>3> +А>4> +А>5 >+ А>6>+> >А>7> +А>8>+ (А>9>+0,08/2))=(279- -0,08)> >–((26-0,04)+67+21+5+105+> >А>8 >+(20+0,04))
Отсюда, А>8>=25,74 мм.
Δ>min>=0,1 мм
Δ>max>> >0,9 мм
При рассчитанных размерах, образуется размерная цепь обеспечивающая осевой зазор в подшипниковом узле Δ= Δ>min>> … >Δ>max>> >. Сборка обеспечивается по методу полной взаимозаменяемости. Расчет размерной цепи осуществлялся по методу равных допусков.> >
Results after 5012 simulations.
Last
Measurement Nominal Minimum Maximum Variation Stability Change
------------------ ---------- ---------- ---------- ---------- --------- ------
Measurement 1 0.4500 0.4500 0.6200 0.1000 High 12
Measurement 2 0.4500 0.4500 0.6200 0.1000 High 12
Графическое изображение размерной цепи рис.10.

Эскиз вала рис.11.

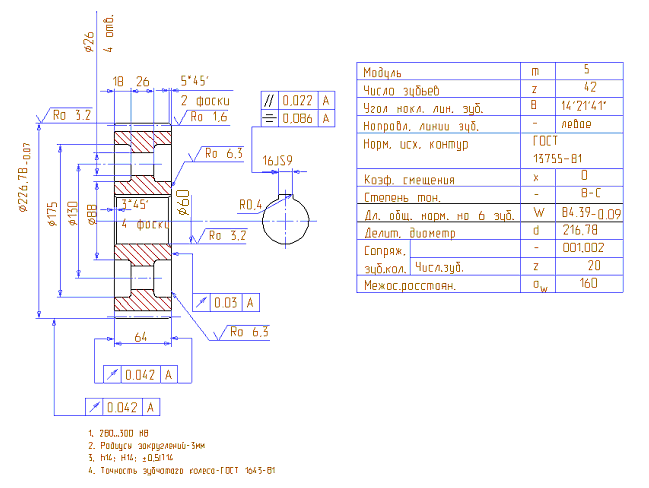
Эскиз зубчатого колеса рис.12.

Задание №6
Выполнить эскизы прямобочного шлицевого соединения, пронормировать по точности для всех трёх методов центрирования. Расшифровать обозначения.
По ГОСТ 1139-80 выбираем прямобочное шлицевое соединение для диаметра 38мм. Выбираем прямобочное шлицевое соединение для средней серии.
Обозначение прямобочного шлицевого соединения при центрировании по:
внутреннему диаметру: d-8*32 H7/e8*38H12/a11*6D9/f8 (исполнение С)
наружнему диаметру: D-8*32 *38H8/h7*6F10/h9 (исполнение В)
по ширине: b-8*32 *38H12/a11*6D9/h8 (исполнение В)
Эскизы прямобочного шлицевого соединения рис.13.
Задание №7
Выполнить эскизы эвольвентного шлицевого вала, пронормировать по точности для всех трёх методов центрирования. Расшифровать обозначения.
По ГОСТ 6033-80 выбираем эвольвентный шлицевый вал для диаметра 38мм.
Обозначение эвольвентного шлицевого вала при центрировании по:
1) внутреннему диаметру: i 38*1,25* 7H/6g*9H/9h
2) наружнему диаметру и посадкой 7H/6g, с посадкой по нецентрирующим поверхностям зубьев 9H/9h: 38*g6*1,25* 9h
3)по боковой поверхности зубьев и посадкой 9H/9g : 38*1,25* 9g
Эскизы эвольвентного шлицевого вала рис.14.


Список литературы
Нормирование точности в машиностроении: Учеб. для машиностроит. спец. Вузов./Под ред. Ю.М. Соломенцева.-2-е изд., испр. и доп.-М.: Высш. шк.; Издательский центр «Академия», 2001.-335 с.: ил.
Детали машин. Проектирование: Справочное учебно-методическое пособие / Л.В. Курмаз, А.Т. Скойбеда. – 2-е изд., испр.: М.: Высш. шк.,2005. – 309 с.: ил.
3. Допуски и посадки. Справочник. В 2-х ч. Ч. 2/Под ред. В.Д. Мягкова. 5- е изд., перераб. и доп. Л.: Машиностроение. Ленингр. отд-ние. 1978-с. 545-1032, ил.