Объемно–планировочные и конструктивные решения канифольно-терпентинного цеха
Учреждение образования "БЕЛОРУССКИЙ ГОСУДАРСТВЕННЫЙ ТЕХНОЛОГИЧЕСКИЙ УНИВЕРСИТЕТ"
Факультет ТОВ
Кафедра Химическая переработка древесины
Специальность Химическая технология переработки древесины
Специализация ТЛХП
ПОЯСНИТЕЛЬНАЯ ЗАПИСКА
КУРСОВОЙ РАБОТЫ
по дисциплине Основы проектирования предприятия
Тема Объемно-планировочные и конструктивные решения канифольно-терпентинного цеха
Исполнитель
Студентка 4 курса группы 6/ Слаута Т. Е.
Руководитель
К.т.н., доцент Болтовский В.С.
Минск 2008
Реферат
Пояснительная записка __с., 17 рис., 2 табл., 5 источников, 1 прил.
Объемно-планировочное решение, конструктивное решение, канифольно-терпентинный цех, взрывопожарная опасность, категория помещения, параметры здания, оборудование.
Целью курсовой работы является создание объемно-планировочных и конструктивных решений канифольно-терпентинного цеха; категорирование помещений и зданий по взрывопожарной и пожарной опасности; описание основных взрывоопасных свойств веществ, материалов и особенностей технологического процесса; определение категории цеха. Так же при выполнении курсового работы мы будем рассматривать конструктивные основные схемы и объемно - планировочные параметры здания; охарактеризуем конструктивные основные элементы здания; нами будут оговорены правила и требования по размещению оборудования и построены необходимые планы и разрезы здания с размещением оборудования.
Графическая часть включает: необходимые планы и разрезы здания с размещением оборудования - 2 листа А1.
Содержание
Введение
1. Аналитический обзор
1.1 Категорирование помещений и зданий по взрывопожарной и пожарной опасности (согласно НПБ 5-2005)
1.2 Характеристика взрывопожароопасных свойств веществ, материалов и особенностей технологического процесса; определение категории помещения (здания) отделения (цеха)
1.3 Конструктивные схемы и объемно-планировочные параметры здания
1.4 Характеристика основных конструктивных элементов здания
Фундаменты стаканного типа из железобетона
1.5 Правила и требования по размещению оборудования
2. Объемно - планировочные и конструктивные решения цеха (отделения) с размещением оборудования
2.1 Конструктивная схема и объёмно-планировочные параметры цеха
2.2 Основные конструктивные элементы
2.3 Компоновка оборудования
Заключение
Список использованных источников
Введение
Одной из важнейших отраслей промышленности является химическая промышленность. Этой отрасли народного хозяйства принадлежит ведущее положение в ускорении научно-технического прогресса, повышении эффективности общественного производства. Продукты химической промышленности используются практически во всех отраслях народного хозяйства: в машиностроении, строительстве, сельском хозяйстве - и в быту. Кроме того, продукты химической отрасли оказываются незаменимыми и открывают огромные возможности для развития таких перспективных направлений науки и техники, как радиотехника, электроника, космическая промышленность.
Ускорение развития химической промышленности в нашей стране требует научного решения многочисленных и разнообразных проблем, связанных с проектированием, строительством и эксплуатацией химических заводов. Особое внимание должно быть уделено разработке новых высокоинтенсивных автоматизированных химических аппаратов и машин.
В настоящее время лесохимия превратилась в важную отрасль народного хозяйства.
Она имеет огромные возможности как потребитель широчайшего ассортимента сырья. В качестве исходного сырья для получения химических продуктов могут быть использованы живица и баррас, пневый осмол, древесная зелень и прочие виды природных ресурсов.
Перед лесохимией в условиях рыночной экономики возникают новые задачи: повышение рентабельности предприятий химической отрасли; снижение себестоимости продукции; разработка и создание новейших технологии, позволяющим получать целевой продукт наилучшего качества; создание безотходных производств.
Увеличение объемов производства клеев происходит главным образом за счет реконструкции и технического перевооружения предприятий. Происходят некоторые изменения в технологии, в оборудовании, намечаются перспективы изменения ассортимента клеев. Разрабатываются новые технологические схемы производства их. Все производства лесохимической промышленности должны иметь такие технологические схемы, в которых полностью исключено загрязнение окружающей среды.
Объём производства укрепленных клеев должен увеличиваться. Эта задача решается путём технического перевооружения и реконструкции цехов, их расширения, а также путём строительства цехов большой производительности.
Строительство, как отрасль народного хозяйства, занимает одно из первых мест в нашей стране.
Грандиозные масштабы промышленного строительства с использованием индустриальных унифицированных конструкций и деталей достигнуты благодаря внедрению типового проектирования, стандартизации оборудования, применению новых строительных материалов, осуществлению комплексной механизации производства строительно-монтажных работ. Индустриальные методы являются средством для ускорения строительства, снижения его стоимости и повышения качества.
При проектировании и реконструкции лесохимических предприятий необходимо учитывать последние достижения техники и технологии переработки древесины. Особое внимание надо уделять вопросам разработки и создания малоотходной и безотходной ресурсосберегающей технологии, обеспечивающей высокое качество продукции, повышение производительности труда с учётом требований технологии.
Целью моей курсовой работы является разработка объемно - планировочного и конструктивного решения канифольно-терпентинного цеха.
1. Аналитический обзор
1.1 Категорирование помещений и зданий по взрывопожарной и пожарной опасности (согласно НПБ 5-2005)
Настоящие нормы пожарной безопасности Республики Беларусь "Категорирование помещений, зданий и наружных установок по взрывопожарной и пожарной опасности НПБ 5-2005"устанавливают методику расчета категорий помещений, зданий (или частей зданий между противопожарными стенами пожарных отсеков) производственного, складского назначения, наружных установок по взрывопожарной и пожарной опасности в зависимости от количества и взрывопожароопасных свойств находящихся (обращающихся) в них веществ и материалов с учетом особенностей технологических процессов размещенных в ней производств.
По взрывопожарной и пожарной опасности помещения и здания подразделяются на категории А, Б, В1-В4, Г1, Г2 и Д, а наружные установки - на А>н, >Б>н>, В>н>, Г>н>, Д>н>.
Категории помещений по взрывопожарной и пожарной опасности принимаются в соответствии с таблицей 1.1.
Таблица 1.1 - Категории помещений по взрывопожарной и пожарной опасности
|
Категория помещений |
Характеристика веществ и материалов, находящихся (обращающихся) в помещении |
|
1 |
2 |
|
А (взрывопожароопасная) |
Горючие газы (ГГ.), легковоспламеняющиеся жидкости (ЛВЖ), с температурой вспышки не более 280С в таком количестве, что могут образовывать взрывопожарные парогазовоздушные смеси, при воспламенении которых развивается избыточное расчетное давление взрыва, превышающее 5кПа. Вещества и материалы, способные взрываться и гореть при взаимодействии с водой, кислородом воздуха или друг с другом в таком количестве, что избыточное расчетное давление взрыва в помещении превышает 5 кПа. |
|
Б (взрывопожароопасная) |
Горючие пыли или волокна, ЛВЖ с температурой вспышки более 280С, горючие жидкости (ГЖ) в таком количестве, что могут образовывать взрывоопасные пылевоздушные или паровоздушные смеси, при воспламенении которых развивается расчетное избыточное давление взрыва в помещении, превышающее 5кПа. |
|
Д |
Негорючие вещества и материалы в холодном состоянии |
|
В1-В4 (пожароопасные) |
ГЖ и трудногорючие жидкости, твердые горючие и трудногорючие вещества и материалы (в том числе пыли и волокна), вещества и материалы, способные при взаимодействии с водой, кислородом воздуха или друг с другом только гореть, при условии, что помещения, в которых они имеются в наличии или обращаются, не относятся к категориям А или Б |
|
Г1 |
Процессы, связанные со сжиганием в качестве топлива ГГ. и ЛВЖ |
|
Г2 |
Негорючие вещества и материалы в горячем раскаленном или расплавленном состоянии, процесс обработки, которых сопровождается выделением лучистого тепла, искр и пламени. Процессы, связанные со сжиганием в качестве топлива ГЖ, а также твердых горючих веществ и материалов |
Здание относится к категории А, если в нём суммарная площадь помещений категории А превышает 5 % площади всех помещений, или 200 м2.
Допускается не относить здание к категории. А, если суммарная площадь помещений категории А в здании не превышает 25 % суммарной площади всех размещенных в нём помещений (но не более 1000 м2) и эти помещения оборудуются установками автоматического пожаротушения.
Здание относится к категории Б, если одновременно выполнены два условия:
1) здание не относится к категории А;
2) суммарная площадь помещений категории А и Б превышает 5% суммарной площади всех помещений, или 200 м2.
Допускается не относить здание к категории Б, если суммарная площадь помещений категорий А и Б в здании не превышает 25 % суммарной площади всех размещённых в нём помещений (но не более 1000 м2) и эти помещения оборудуются установками автоматического пожаротушения.
Здание относится к категории В (В1-В4), если одновременно выполнены два условия:
1) здание не относится к категориям А или Б;
2) суммарная площадь помещений категорий А, Б и В превышает 5% (10%, если в здании отсутствуют помещения категорий А и Б) суммарной площади всех помещений.
Допускается не относить здание к категории В, если суммарная площадь помещений категорий А, Б и В в здании не превышает 25 % суммарной площади всех размещенных в нем помещений (но не более 3500 м2) и эти помещения оборудуются установками автоматического пожаротушения.
Здание относится к категории Г (Г1-Г2), если одновременно выполнены
два условия:
1) здание не относится к категориям А, Б или В;
2) суммарная площадь помещений категорий А, Б, В и Г превышает 5 % суммарной площади всех помещений.
Допускается не относить здание к категории Г, если суммарная площадь помещений категорий А, Б, В и Г в здании не превышает 25 % суммарной площади всех размещенных в нём помещений (но не более 5000 м2).
Здание относится к категории Д, если оно не относится к категориям А, Б, В или Г.
Категории наружных установок по пожарной опасности принимаются в соответствии с таблицей 1.2.
Таблица 1.2 - Категории наружных установок по пожарной опасности
|
Категория наружной установки |
Критерии отнесения наружной установки к той или иной категории по пожарной опасности |
|
А>н> |
Установка
относится к категории А>н>, если
в ней присутствуют (хранятся,
перерабатываются, транспортируются)
горючие газы; легковоспламеняющиеся
жидкости с температурой вспышки не
более 28 |
|
Б>н> |
Установка
относится к категории Б>н>, если
в ней присутствуют (хранятся,
перерабатываются, транспортируются)
горючие пыли и/или волокна
легковоспламеняющиеся жидкости с
температурой вспышки более 28°С;
горючие жидкости при условии, что
величина индивидуального риска при
возможном сгорании пыле - и/или
паровоздушных смесей с образованием
волн давления превышает 10 |
|
В>н> |
Установка
относится к категории В>н>, если
в ней присутствуют (хранятся,
перерабатываются, транспортируются)
горючие и/или трудногорючие жидкости;
твердые горючие и/или трудногорючие
вещества и/или материалы (в том числе
пыли и/или волокна); вещества и или
материалы, способные при взаимодействии
с водой, кислородом воздуха и/или друг
с другом гореть; не реализуются
критерии, позволяющие отнести установку
к категориям А>н> или Б>н>,
при условии, что величина индивидуального
риска при возможном сгорании указанных
веществ и/или материалов превышает
10 |
|
Г>н> |
Установка относится к категории Г>н>, если в ней присутствуют (хранятся, перерабатываются, транспортируются) негорючие вещества и/или материалы в горячем, раскаленном и/или расплавленном состоянии, процесс обработки которых сопровождается выделением лучистого тепла, искр и/или пламени, а также горючие газы, жидкости и/или твердые вещества, которые сжигаются или утилизируются в качестве топлива. |
|
Д>н> |
Установка относится к категории Д>н>, если в ней присутствуют (хранятся, перерабатываются, транспортируются) в основном негорючие вещества и/или материалы в холодном состоянии и по перечисленным выше критериям она не относится к категориям А>н>, Б>н>, В>н>, Г>н>. |
1.2 Характеристика взрывопожароопасных свойств веществ, материалов и особенностей технологического процесса; определение категории помещения (здания) отделения (цеха)
Новые технологические процессы часто основываются на применении высоких давлений, температур, а обращающиеся в них химические вещества являются пожароопасными и взрывоопасными. Поэтому при проектировании и эксплуатации химических производств необходимо учитывать пожароопасные и взрывоопасные свойства сырья, полуфабрикатов и готовой продукции. Знание этих свойств важно также при определении области и условий использования химических веществ и материалов в народном хозяйстве.
При оценке пожарной опасности вещества необходимо изучить его свойства, выявить возможность их изменения с течением времени и при использовании в определенных условиях. В особенности это важно учитывать при контакте вещества с другими активными веществами, длительном нагреве, облучении и при других внешних воздействиях, в результате которых могут измениться его физико-химические свойства.
Оценку пожарной опасности вещества или материала следует проводить, как правило, при лабораторных исследованиях свойств вещества. Как исключение отдельные показатели можно уточнить на стадии опытного производства.
Ответственность за современную и правильную оценку пожарной опасности вещества возлагается на организацию, рекомендующую данное вещество или материал для использования в народном хозяйстве.
Проектировать промышленные и опытно-промышленные производства и склады, а также объекты транспорта могут только при наличии данных о пожарной опасности веществ и материалов, применяемых в строительстве и обращающихся в производстве.
Оценке пожарной опасности подлежат:
индивидуальные химические вещества и соединения в чистом виде и в виде технического продукта, выпускаемого по стандарту или техническим условиям;
смеси индивидуальных химических веществ определенного состава или определенной рецептуры, самостоятельно обращающиеся в народном хозяйстве и выпускаемые в соответствии со стандартом или техническими условиями;
природные и искусственные материалы, не представляющие определенных химических соединений, но имеющие утвержденный стандарт или технические условия;
технические промежуточные и побочные продукты, а также отходы производства, которые могут выделяться в виде самостоятельных фракций и накапливаться, создавая пожарную опасность.
Живица - горючая смолянистая масса, смесь смоляных кислот со скипидаром и резинатами.
Свойства и пожарная опасность непостоянны. Т>всп>=42-44◦С, температура воспламенения - 182◦С, температура самовоспламенения - 335◦С.
Тушить при крупных проливах - пена, порошок ПСБ - 3; в помещении - объемное тушение; небольшие очаги - порошок ПСБ - 3, СО>2>.
Канифоль - горючее твердое аморфное вещество. Ее получают путем полной отгонки скипидара. Канифольная пыль с воздухом образует взрывчатую смесь.
Плотность канифоли колеблется в пределах от 1,070 до 1,085 г/см3. Температура размягчения - 54-58◦С, температура самовоспламенения - 440◦С, нижний концентрационный предел распространения пламени - 55 г/м3, максимальное давление взрыва - 565 кПа, средняя скорость нарастания взрыва - 13 Мпа/с, максимальная - 51,6 Мпа/с.
При горении 1 кг канифоли выделяет 9074-9171 ккал тепла. Горит канифоль ровным коптящим пламенем. Теплота плавления 15,8 ккал/кг. Она в обычных условиях не летуча. Тушить тонко распыленной водой со смачивателем и пеной.
Скипидар - горючая маслянистая легковоспламеняющаяся жидкость, при хранении на свету окисляется с выделением липкого смолистого осадка.
Плотность живичного скипидара при 20◦С 0,855-0,863 г/см3. Начальная температура кипения - 165◦С, Т>всп>=44◦С, температура самовоспламенения - 262◦С, температурный предел распространения пламени: нижний - 42◦С, верхний - 102◦С.
Скрытая теплота испарения скипидара составляет 68-70 ккал/кг. Удельная теплоемкость 0,45-0,47 ккал/кг ◦С. Скипидар легко перегоняется с водяным паром.
Тушить при крупных проливах - пена, порошок ПСБ - 3; в помещении - объемное тушение; небольшие очаги - порошок ПСБ - 3, СО>2>.
Вещества, применяемые при производстве скипидара и канифоли, являются пожароопасными. В соответствии с этим наш цех относится к категории Б.
1.3 Конструктивные схемы и объемно-планировочные параметры здания
Большое значение имеют правильно запроектированные объмно-планировочные и конструктивные решения промышленных зданий, так как от них в значительной степени зависят возможности расположения технологического оборудования, уровень организации производственных процессов, комплексной механизации и автоматизации любого предприятия. При проектировании необходимо предвидеть развитие предприятия на достаточно длительную перспективу.
Современные производственные здания проектируют и сооружают по двум конструктивным схемам:
каркасные с самонесущими стенами (не несущими стенами) или здания с полным каркасом;
с неполным (внутренним) каркасом и несущими стенами.
Наиболее часто применяют схемы зданий с полным каркасом с применением унифицированных сборных конструкций. В таких зданиях несущим элементом конструкции является каркас из внутренних элементов - колонн жестко закрепленных в фундамент и горизонтальных элементов каркаса - балок междуэтажных перекрытий (ригелей), а также несущих элементов покрытия (балок, ферм, арок).
В каркасном здании с самонесущими стенами колонны обозначают пересечением двух взаимно перпендикулярных продольных и поперечных разбивочных осевых линий. Систему продольных и поперечных осей по рядам колонн называют сеткой колонн. В зданиях с неполным каркасом - оси по центру стены. На чертежах оси маркируют по длинной стороне цифрами слева направо, по короткой (торец) стороне - буквами русского алфавита. При назначении технологических нагрузок всегда следует иметь в виду, что преуменьшение нагрузок приводит к недостаточной несущей способности строительных конструкций, и значит, к более высокой их стоимости.
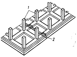
Конструктивная схема каркасного здания с самонесущими стенами.

Рисунок 1.1

а)

б)
1-столбчатые фундаменты; 2-фонарь; 3-самонесущие стены; 4-колонны; 5-пол; 6-фундаментная балка.
Рисунок 1.2
Конструктивная схема здания с неполным каркасом и несущими стенами.

Рисунок 1.3

1-несущая стена; 2-ленточный фундамент.
Рисунок 1.4
Разбивочные оси создаются в процессе проектирования зданий и сооружений. Эти оси определяют координаты отдельных элементов, деталей и конструкций на плане любого здания или сооружения. Разбивку и привязку зданий и сооружений на местности перед началом строительства выполняют, начиная с вынесением разбивочных осей, а на их основе всех размеров элементов и конструкций в натуральную величину. Законченные строительством объекты навсегда сохраняют маркировку разбивочных осей. Места расположения конструктивных элементов по отношению к разбивочным осям указывают марки соответствующих осей.
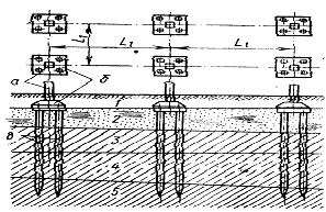
Основными объемно-планировочными параметрами зданий являются шаг, пролет, и высота.
Шаг - это расстояние между разбивочными осями, определяющими членение здания на планировочные элементы или расположение вертикальных несущих конструкций здания. Величину шага обычно принимают 6 или 12 м. Может быть большей, но обязательно кратной 3; 6 м включительно до 24 м: 6,9,12,18,24.
Пролет - это расстояние между разбивочными осями несущих стен или отдельных опор (колонн) в направлении соответствующему пролету основных несущих конструкций покрытия (балок, ферм) или перекрытия (в многоэтажных зданиях), то есть это расстояния между опорами зданий и сооружений, перекрываемые балками, фермами или другими пролетными конструкциями. Различают пролеты:
расчетный (расстояние между разбивочными осями, центрами опор или осями геометрической схемы несущей конструкции)
в свету (расстояние между внутренними гранями несущих опор).
Высота этажа - расстояние от чистого пола нижележащего этажа до чистого пола вышележащего этажа, включая сюда и конструктивную толщину междуэтажного перекрытия. В многоэтажных промышленных зданиях принимается в расчетах высота каждого этажа.

Рисунок 1.5
Высота помещения изменяется в значительных пределах, но не менее трех метров и ее следует назначать кратной 0.6 м для одноэтажных каркасных зданий при высоте до 6 м и кратной 1.2 - от 6 до 12 м. Высота вспомогательных зданий 3.3 м.
Длина зданий, проектируемых на основе габаритных схем, может быть любая, кратная принятому шагу колонн (для многопролетных зданий - шагу колонн в средних рядах); при этом здания большой длины должны разрезаться поперечными температурными швами.
Одноэтажные производственные здания проектируют как с фонарями, так и без них. Они могут быть однопролетными и многопролетными, бескрановыми и с подвесными или мостовыми кранами, со скатной или плоской кровлей. Величину пролета одноэтажных производственных зданий принимают обычно от 12м до 36 м. Размер пролетов назначают кратным 6 м, в некоторых случаях допускаются пролеты кратные 3 м. Одноэтажные производственные здания чаще всего строят каркасными, элементы из сборного железобетона, можно из стали в зависимости от величины и характера крановой нагрузки, основных объемно-планировочных параметров, внутреннего режима помещения цеха. Одноэтажные здания без мостовых кранов и оборудованные кранами грузоподъемностью от 0.25т. до 5 т. проектируют шириной пролета 6,9,12,18,24,30,36 м. Шаг колонн 6 и 12м, высота от пола до низа несущей конструкции покрытия от 3 от до 6 м, от 6м до 18 м через 1.2м.
Здания с мостовыми кранами грузоподъемностью от 10 до 20 т.: пролеты 9,12,18 м, шаг колонн 6 м, высота 6-9.6.
Здания с мостовыми кранами с грузоподъемностью от 10 до 50т.: пролеты 18,24,39,36 м, шаг 6 или 12 м, высота от 8.4 до 18м через 1.2 м.
В одноэтажных зданиях наиболее часто применяют сетку колонн 18×12 м и 24×12 м.
Многоэтажные здания, как и одноэтажные, проектируют и строят преимущественно каркасными по тем же принципам. Особенность многоэтажных зданий:
предусматривается устройство вертикального пролета для перемещения людей и грузов;
меньше сетка колонн, которая препятствует иногда рациональному размещению технологического оборудования;
Типовые конструкции многоэтажных зданий с балочными перекрытиями разработаны для схем зданий со следующими объемно-планировочными параметрами:
сетка колонн 6×6 м или 9×6м: 2 пролета - 3 и 4 этажа, а при 3-10 пролетах (междуэтажное перекрытие) - 3-5 этажей. Высота этажей 3.6; 4.8; 6 м. Возможна высота первого этажа 6м, а остальные 4.8м или высота первого этажа 7.2 м, а остальных 6 м;
сетка колонн 9×6 м: не менее 2-х пролетов - 3-4 этажа. Высота этажей 3.6 м или 4.8 м, или 6 м. Возможно, такое сочетание - первый этаж 6м, остальные 4.8м или высота первого этажа 7.2м, а остальные 6м.
сетка колонн 6×6: трехпролетные во всех этажах, кроме верхнего - однопролетного, шириной пролета 18м, оборудованного мостовым краном или подвесным транспортом. Число этажей 3-5. Высота верхнего этажа 10.8м (с мостовым краном), при подвесном транспорте - 7.2м. Остальных - 4.8м и 6м.
сетка колонн 9×6: двухпролетные во всех этажах, кроме верхнего однопролетного, шириной пролета 18м, оборудованного подвесным транспортом. Число этажей 3-4. Высота верхнего этажа - 7.2м, остальных 6м.
сетка колонн 12×6: 2-5 пролетов - 3-5 этажей. Высота первого этажа 6м, остальные 4.8м или высота первого этажа 7.2м, остальные 6м.
с безбалочными перекрытиями с сеткой колонн 6×6.
в целях более рациональной организации технологического процесса и увеличения универсальности многоэтажных производственных зданий разработаны каркасы пролетом 12м с этажами в межферменном пространстве. Рекомендуют для производств кондиционирования воздуха и развитой системы санитарно-бытового обслуживания.
Если многоэтажные и одноэтажные здания сооружают на одной площадке, то, как правило, они имеют единую сетку колонн. В зависимости от полезных нагрузок (массы оборудования и людей) на междуэтажное перекрытие рекомендуется применять сети колонн 12x6 м при нагрузке до 100 МПа, а 9x6 м - до 150 МПа и 6x6 м - при 200 и 250 МПа.
При проектировании химических предприятий следует стремиться максимально, объединять отдельные производства в крупные корпуса, если это решение не противоречит специальным нормам и требованиям по технологическим, санитарно - техническим и противопожарным условиям. Блокирование отдельных производств под одной крышей целесообразно осуществлять одновременно с укрупнением технологических агрегатов и применением комплексной автоматизации всех технологических процессов, которые входят в состав цеха или предприятия. Блокированию в одном крупном здании подлежит весь комплекс цехов и служб предприятия, включая в себя основные и подсобные цехи, склады, распределительные и маслопункты, подсобные помещения, конторы, административно - бытовые помещения, лаборатории и другие объекты.
1.4 Характеристика основных конструктивных элементов здания
Основным материалом для несущих конструкций одноэтажных и многоэтажных промышленных зданий является сборный железобетон. Стальные конструкции могут быть запроектированы лишь для высоких многоярусных зданий, в которых необходимо смонтировать тяжеловесное технологическое оборудование, а также для разборных этажерок в зданиях павильонного типа, расположенных самостоятельно и в некоторых других случаях.
Для химических предприятий с очень агрессивной средой (заводы серной и соляной кислоты, производства по переработке калийных солей, минеральных удобрений и др.) целесообразно применять в качестве несущих элементов зданий деревянные клееные конструкции, так как их масса в 5 раз меньше железобетонных, а приведенные затраты на изготовление на 30-40% сокращаются по сравнению с железобетонными и стальными конструкциями. Срок службы деревянных клееных конструкций в 4-5 раз больше, чем у сборного железобетона.
Фундаменты и фундаментные балки. В зависимости от характера действующих на фундамент усилий, несущей способности и глубины промерзания грунтов, наличия грунтовых вод, коммуникаций, подвалов, массы оборудования и его габаритов с учетом типа промышленного здания, требований экономики и капитальности проектируют фундаменты: ленточные (балочные); столбчатые (отдельно стоящие), свайные и сплошные-в виде монолитной железобетонной плиты под всей площадью здания или сооружения.
Ленточные фундаменты устраивают в слабых или просадочных грунтах при тяжелых временных нагрузках. Их выполняют из сборного или монолитного железобетона. Сборные ленточные фундаменты в настоящее время делают из крупных бетонных, и железобетонных блоков-подушек различных размеров, которые определяют расчетом или принимаются типовые (рисунок1.6-1.7).
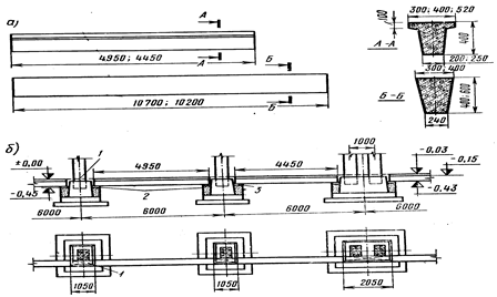
Столбчатые фундаменты наиболее распространены для каркасных одноэтажных и многоэтажных промышленных зданий. Для каждой колонны каркаса проектируют отдельный фундамент с подколонниками стаканного типа, а стены возводят с опорой на фундаментные балки. На рисунке 1.9 показан сборный железобетонный башмак стаканного типа.
Сборный железобетонный фундамент столбчатой конструкции состоит из нескольких элементов: подколонника со стаканом для установки колонны, опорной фундаментной плиты и бетонного столбика для опирания фундаментных балок.
Железобетонные подколонники для колонн с поперечным сечением ствола их от 400х400 до 600х1900 мм имеют следующие размеры: высоту от 1200 до 2700 мм, ширину и длину оголовка в плане от 900х900 до 1200х2500 мм и соответственно основания в плане от 1500х1500 до 2900х4100мм (рис.1.10, а). Сборные опорные фундаменты железобетонных плит проектируют с размерами сторон - от 1900х2500 до 2900х4700 мм, а монолитные - от 4700х5100 до 6900 х8100 мм, с высотой их от 300 до 900 мм (рис.1.10, б)
Размеры стакана подколонника в плане делают больше сечения колонны поверху - на 10мм и понизу - на 100 мм, а глубину гнезда не меньше наибольшего размера поперечного сечения колонны. Толщину днища стакана из расчета на продавливание принимают не менее 200 мм, а его стенок - 200-250 мм.
Ленточный фундамент.

1-колонна; 2-монолитный ленточный фундамент
Рисунок 1.6
Ленточный фундамент для несущих стен.

1 - железобетонная подушка; 2 - фундаментные бетонные блоки; 3-гидроизоляция; 4 - кирпичная стена (размеры блоков, подушки, стены и глубина заложения подошвы фундамента приняты условно)
Рисунок 1.7
После монтажа колонны в проектное положение зазор между стенками стакана подколонника и поверхностью колонны заделывают бетоном марки 200 на мелком гравии.
Верхнюю грань фундамента независимо от глубины заложения подошвы его всегда размещают на 150 мм ниже уровня отметки чистого пола цеха.
Это позволяет вести строительные работы самоходными монтажными кранами после засыпки котлованов, не повреждая верхней части фундамента.
Сплошной монолитный фундамент.

1-колонны; 2-монолитная железобетонная плита.
Рисунок 1.8
Сборный железобетонный башмак стаканного типа.

1 - песчаная подготовка; 2 - башмак; 3 - бетонный столбик; 4 - фундаментная балка; 5-гидроизоляция; 6-стена; 7-колонна; 8 - гнездо (стакан) для колонны
Рисунок 1.9
Свайные фундаменты проектируют в случаях залегания у поверхности земли относительно слабых слоев грунта, водонасыщенных или с высоким расположением уровня грунтовых вод. Железобетонные сваи для фундаментов промышленных зданий обычно выпускают квадратного или круглого (трубчатого) сечения. При небольшом давлении на свайные фундаменты применяют сваи длиной 4-7 м с сечением 200х250 мм, а при длине 6-10 м 800х350 мм.
После забивки свай в проектное положение головные части их выравниваются и связываются монолитным или сборным железобетонным ростверком, который одновременно служит подколенником (рисунок 1.11).
Фундаменты стаканного типа из железобетона.

а - подколенники; б - плиты
Рисунок 1.10
Для сосредоточенных нагрузок от колонн каркаса сваи располагают кустами с расстоянием между их центрами не менее 3 толщин сваи.
Мощные трубчатые сваи диаметром 500-700 мм можно погружать на глубину до 30-40 м, при этом они выдерживают нагрузку 100-200 т и более. Трубчатая (оболочковая) свайная опора позволяет непосредственно опирать колонну промышленного здания без устройства ростверка (рисунок 1.11).
Схема свайного основания.

1 - насыпной грунт; 2 - слабый грунт; 3,4 - грунты средней плотности; 5 - плотный грунт; а - колонны; б - ростверки; в - сваи.
Рисунок 1.11
Трубчатая свайная опора.

1 - железобетонная трубчатая свая; 2 - железобетонный башмак; 3 - железобетонная колонна.
Рисунок 1.12
Возведение свайных фундаментов сокращает сроки строительства, трудоемкость, снижает до минимума объем земляных работ без отрывки котлована с применением механизации рядом с существующими зданиями и сооружениями, т.е. дает возможность строить экономично даже в тех условиях, когда несущая способность грунтов позволяет создавать ленточные или столбчатые фундаменты.
Фундамент на свайном основании.

1 - железобетонный башмак; 2 - бетонный ростверк; 3 - железобетонные сваи.
Рисунок 1.13
Сплошные фундаменты применяют при неблагоприятных геологических и гидрогеологических условиях площадки строительства. Конструктивно их выполняют так, что они образуют сплошную железобетонную плиту под всем зданием или сооружением толщиной от 500 до 1500 мм.
Фундаментные балки (рандбалки) служат для опирания само несущих или навесных стен по периметру промышленного здания.
Укладку железобетонных фундаментных балок выполняют по обрезам фундамента между подколонниками или их опирают на специальные бетонные столбики, которые бетонируют на месте при установке колонн каркаса (рисунок 1.14).
Железобетонные фундаментные балки.

а - типы балок; б - опирание на бетонные столбики или уступы фундаментов; 1-бетонирование по месту; 2 - бетонный столбик; 3 - цементный раствор
Рисунок 1.14
Применение фундаментных балок облегчает прокладку под стенами различных коммуникаций, тоннелей, каналов и других устройств. Фундаментную балку укладывают так, чтобы верхняя грань ее была выше поверхности грунта, но всегда ниже уровня чистого пола здания (отметка - 0,03 м). В этом случае при просадке отмостки фундаментная балка защищает конструкцию пола снаружи и не охлаждает зимой здание через возможные неплотности, поэтому проектирование панельных стен без фундаментных балок разрешается только в неотапливаемых зданиях.
При шаге колонн 6 м железобетонные фундаментные балки выпускают таврового сечения высотой 400 мм с шириной полки 300, 400 и 520 мм при длине 4950 мм. Если шаг колони 12 м, то фундаментные балки проектируют трапециевидного сечения высотой 400 и 600 мм с шириной поверху 300 и 400 мм, а по низу - 240 мм при длине 10700 мм. Фундаментные балки, примыкающие к температурному шву и торцевым стенам, делают короче на 500 мм.
Для защиты стен от переувлажнения по верхней грани фундаментных балок наклеивают гидроизоляцию, которая состоит из одного двух слоев рубероида на битумной мастике. Под фундаментной балкой отрывают траншею глубиной до 0,7 м с заполнением ее шлаком, крупнозернистым песком или кирпичным щебнем, что предотвращает выпирание стен в пучинистых грунтах при замерзании их или избыточном увлажнении. Для отвода талых и дождевых вод от фундаментов по периметру всех промышленных зданий делают отмостку из асфальта или бетона шириной 0,9-1,5 м с уклоном от стены 3-5%.
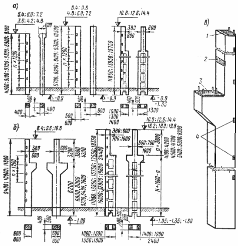
Для одноэтажных производственных зданий химической промышленности применяют унифицированные колонны из сборного железобетона заводского изготовления (рисунок 1.15). Колонны имеют квадратное прямоугольное или двухветвевое сечение. Их проектируют для промышленных зданий, не оборудованных мостовыми кранами и предназначенных под крановую нагрузку. При высоте пролета до 9,6 м в промышленных зданиях колонны делают сплошного сечения, если высота более 9,6 м, - из двух ветвей, которые по высоте связываются горизонтальными распорками через 1,5-3,0 м.
Колонны квадратного и прямоугольного сечения имеют следующие унифицированные размеры: 400х400, 400х600, 400х800, 500х500, 500х600 и 500х800 мм. У колонн двухветвевого сечения размеры приняты следующие: 400х1000, 500х1000, 500х1300.500х1400, 500х1550.600х1400, 600х1900 и 600х2400 мм.
В железобетонных колоннах (только в крайних) имеются стальные закладные элементы с анкерными болтами для крепления ферм, вертикальных связей, подкрановых балок и стеновых панелей. Заделку в стакан фундамента квадратных и прямоугольных колонн в зданиях без мостовых кранов производят на 750 мм. в зданиях с мостовыми кранами-на 850 мм, а для двухветвевых колонн при отметке оголовка 10.8 м-на 900 м и если отметка верха оголовка более 10,8 м, то глубина заделки-1200 мм (отметка низа колонны - 1,35 м). Колонны, многоэтажных зданиий сборного железобетона имеют два вида сечений-400 х400и 400х600 мм (типовое решение).
Ригели перекрытий многоэтажных промышленных зданий для пролетов 6 и 9 м имеют одинаковую высоту сечения 800 мм и отличаются между собой только процентом армирования каркаса. Основными несущими элементами перекрытий являются ребристые железобетонные плиты номинальной длиной 6 м шириной 1,5 м, а доборные-0,75 м.
Стыки колонн проектируют выше перекрытия на 600 мм через два этажа и выполняют посредством приварки стержней к стальным головкам, а затем их замоноличивают по арматурной сетке.
В настоящее время колонны прямоугольного сечения применяют для промышленных зданий без мостовых кранов высотой до 9,6 м включительно и для зданий, оборудованных мостовыми кранами при высоте до 10,8 м включительно, а колонны двухветвевого сечения для всех зданий с высотами от 10,8 до 18 м.
При больших нагрузках на перекрытие, наличии провисающего оборудования и возможного в перспективе изменения технологического процесса, а также на взрывоопасных производствах железобетонные плиты перекрытий и покрытий опираются поверху ригелей.
Типы железобетонных колонн.

А - для зданий без мостовых кранов; б - то же, с мостовыми кранами; в - закладовые элементы колонны; 1 - оголовок из листа 8х300х400 и два болта М 20х130; 2 - упор подкрановой балки - 8х200х400; 3 - опора подкрановой балки - 8х400х550 и четыре болта М 20х150; 4 - элементы из уголков 63х5х200 для крепления стеновых панелей.
Рисунок 1.15
Если верхний этаж многоэтажных промышленных зданий проектируют однопролетным с целью устройства подвесных или мостовых кранов или по технологическим условиям, то для покрытия верхнего этажа применяют те же несущие.
Для покрытий промышленных зданий в качестве несущего настила наиболее часто применяют железобетонные ребристые плиты длиной 6 и 12 м при их ширине 3 и 1,5 м.
Железобетонные балки и фермы. Железобетонные балки применяют для пролетов от 6 до 18 м в покрытиях промышленных зданий с односкатным, двухскатным и плоским профилем кровли. В двухскатных балках покрытий запроектирован ломаный верхний пояс с уклоном скатов 1: 11. В целях снижения массы балок, а также для создания возможности смонтировать под покрытием трубопроводы, воздуховоды и другие инженерные коммуникации в вертикальных стенках балок делают сквозные отверстия различной геометрической фермы. Балки с пролетом более 12 м крайне громоздки и имеют большую массу, поэтому для облегчения транспортировки их расчленяют на отдельные сборные элементы с последующей сборкой и применением напряженной пучковой или прядевой арматуры. После натяжения арматуры закладные трубки в отдельных элементах балки заполняют жидким цементным раствором, который предохраняет стальную арматуру от коррозии.
При пролетах 6 и 9 м балки изготовляют таврового сечения и имеют высоту на опоре от 550 до 790 мм а для пролётов 12 и 18 м поперечное сечение их - двутавровое с высотой на опоре от 790 до 1490 мм.
B верхнем поясе балок закладывают стальные пластинки, к которым прикрепляют сваркой прогоны или панели покрытия. На нижнем поясе и стенке также устанавливают закладные устройства для закрепления путей подвесного транспорта. Опорные части балок имеют стальные листы с вырезами для крепления их к колоннам.
Железобетонные фермы предназначены для покрытий промышленных здании с пролетами 18, 24, 30 м, но, в отдельных случаях могут перекрывать пролеты в 36 м и более.
В зависимости от условий строительства, возможности транспортировки и способа изготовления фермы могут быть цельными либо расчлененными на полуфермы или на отдельные блоки длиной до 6 м.
Железобетонные фермы по расходу металла экономичнее стальных конструкций, но значительно тяжелее их, что затрудняет перевозку и усложняет монтажные работы. Геометрическая схема фермы определяет очертание ее верхнего и нижнего поясов, а также расположение раскосов и стоек.
В настоящее время выпускают следующие типы железобетонных ферм, применяемых в промышленном строительстве: сегментные, арочные, треугольные, трапециевидные и с параллельными поясами. Для изготовления ферм применяется бетон высоких марок 300-500 с предварительным напряжением арматуры в нижних растянутых поясах. Раскосы в решетчатых фермах значительно усложняют использование межферменного пространства при монтаже инженерных коммуникаций и воздуховодов. Поэтому целесообразнее применять безраскосные фермы Виренделя с параллельными поясами или арочные (рисунок 1.17). Треугольные и трапециевидные фермы применяют реже.
Железобетонные стропильные фермы обычно устанавливают с шагом 6 или 12 м. В случае расположения колонн в промышленных зданиях с шагом 12-24 м, увеличивать шаг стропильных ферм более 6 м нецелесообразно при необходимости устройства подвесных потолков, а также при креплении подъемно транспортного оборудования (кошки, тали, подвесные краны, краны-штабелеры) к нижнему поясу фермы.
В этом случае по колоннам вдоль промышленного здания устанавливают подстропильные конструкции, на которые опираются стропильные фермы или балки
Пространственная жесткость и неизменяемость системы покрытий с железобетонными фермами обеспечивается за счет приварки настилов к стальным закладным элементам в верхних поясах ферм, в результате чего в плоскости покрытия создается жесткий диск.
Железобетонные балки покрытий.

а - для скатных покрытий; б - для плоских покрытий; в - деталь крепления балки к колонне; 1 - закладной элемент колонны; 2 - опорный лист балки (фермы)
Рисунок 1.16
Безраскосные фермы.

а-с параллельными поясами; б-арочная; 1-настил по верхнему поясу; 2 - настил по нижнему поясу; 3 - ферма
Рисунок 1.17
Крепление ферм к колоннам и к подстропильным конструкциям выполняют анкерными болтами с последующей сваркой закладных торных деталей.
Ограждающие конструкции покрытий выполняют в зависимости от эксплуатационного режима промышленного здания, поэтому их проектируют невентилируемыми, частично вентилируемыми и вентилируемыми.
Стены и перегородки. Стены из железобетонных и ячеистобетонных панелей обладают высокой индустриальностью, улучшают качество и снижают массу зданий, трудоемкость их на 30-40% меньше, чем у стен из кирпича. Для промышленных отапливаемых зданий выпускают однослойные, двухслойные и трехслойные панели. Длина панелей 6 и 12 м, высота основных типов панелей 1,2 и 1,8 м, толщину их в целях унификации форм стальной опалубки принимают 200, 240 и 300 мм. При необходимости изготовляют доборные панели высотой 0,9 и 1,5 м. На заполнение простенков применяют стеновые панели длиной 3; 1,5; 0,75 м.
Для стен неотапливаемых промышленных зданий применяют железобетонные ребристые и часторебристые панели длиной 6 и 12 м, высотой 0,9; 1,2; 1,8 и 2,4 м, толщиной ребер 100 мм (часторебристых), 120 мм (ребристых с шагом колонн 6 м) и 300 мм (ребристых для шага 12 м).
Стены из асбестоцементных листов целесообразно применять в неотапливаемых промышленных цехах с избыточными тепловыделениями или на взрывоопасных производствах.
Асбестоцементные стеновые панели выпускают двух видов - асбестопенопластовые и асбестодеревянные.
Асбестопенопластовые панели выполняют из плоских асбестоцементных листов в сочетании с легкими плитными утеплителями в виде жесткого несгораемого или трудно сгораемого пенопласта с воздушной прослойкой, пеностекла, цементного фибролита и других материалов. Толщина асбестоцементного листа - 8 мм, а всей панели-136 мм. Соединение отдельных элементов панели осуществляют на клею, и винтах с промазкой гидроизолирующей мастикой. Панели монтируют на опорные столики из оцинкованной листовой стали.
Окна и фонари. Конструктивные решения по заполнению оконных проемов в промышленных зданиях зависят от особенностей технологии производства, температурно-влажностного режима и экономических соображений. В настоящее время заполнение оконных проемов проектируют с железобетонными, металлическими и деревянными переплетами, а также применяют ограждения производственных зданий сплошными светопрозрачными панелями из стекложелезобетона, стеклопластика и стеклопрофилита.
Железобетонные переплеты целесообразно применять в цехах с повышенной и высокой влажностью воздуха, они огнестойки, не подвержены загниванию и коррозии, менее металлоемки по сравнению со стальными конструкциями окон и дешевле в эксплуатации. Железобетонные переплеты комплектуют без оконных коробок нужной ширины и высоты восьми типоразмеров: высота первых четырех - 1085 мм, четырех других-1185 мм, а ширина их для обоих типов-1490, 1990, 2985 и 3985 мм.
Стекла в железобетонных переплетах закрепляют в четверти глубиной 12мм посредством оцинкованных кляммер (полоски 70х8 мм толщиной в 1 мм) к полкам горбылей и обвязки с последующим применением оконной замазки. Железобетонные открываемые переплеты заключают в стальные коробки или выполняют в виде ленточных фрамуг-створок.
Стальные переплеты применяют из специальных прокатных профилей в горячих цехах, а также в зданиях с нормальным температурно-влажностным режимом. Допускается их применение и в зданиях при повышенной влажности воздуха.
Проектные размеры стальных переплетов приняты по ширине 1395 и 1860 мм при высоте их 1176 и 2352 мм.
Двери промышленных зданий. Двери промышленных зданий по назначению делят: на эвакуационные, транспортные (для провоза изделий, полуфабриката и небольшого по габаритам оборудования) и запасные; по местоположению-на наружные и внутренние; по степени огнестойкости-на сгораемые и огнестойкие (для брандмауэрных стен); по способу открывания-на распашные (одно-и двупольные) и откатные (в одну или две стороны); по материалам-на деревянные, металлические, стеклянные и из синтетических материалов. Номинальные размеры дверных проемов принимают: по ширине - I; 1,5; 3 м, по высоте-1,8; 2; 2,3; 2,4 м. Конструктивные размеры дверных проемов увеличивают на толщину шва и для однопольных дверей следующие: 765х2430 и 1015х2430 мм, а для двупольных - 1515х2430 и 2015х2430 мм.
Коробки деревянных дверей выполняют из брусков 74х47 мм, а стальных дверей-из уголков 75х5 мм с полотнами из листовой стали толщиной 2 мм. Полотна стеклянных дверей размером 853х2300 мм изготавливают из стекла с обромлениеем из алюминиевого профиля и обналичкой из пластмассы.
Ворота промышленных зданий устраивают для проезда напольных средств транспорта (автомобилей, автопогрузчиков, тягачей, тракторов, электрокарой подвижного состава железных дорог узкой и нормальной колеи) Типовые ворота промышленных зданий имеют следующие размеры (ширина высота): для проезда электрокар, автомобилей различной грузоподъемности, вагонеток, автопогрузчиков-3,6х3; 3,6х3,6: и 4х4,2 м, а для пропуска железнодорожного транспорта нормальной колеи-4,8х5,4 м.
В зависимости от производственной необходимости, габаритов, транспорта, герметичности притворов, скорости действия, наличия свободного места для эксплуатации и других требований применяют различные конструктивные типы ворот, которые отличаются между собой только способами открывания и закрывания их. Наиболее часто применяют ворота трех основных типов: распашные (или створные), раздвижные и подъемные. Ворота выполняют деревянными, деревометаллическими и стальными. Часто в полотнах ворот предусматривают калитки для удобства эксплуатации и прохода людей.
Для того чтобы до минимума сократить тепло потери цехов зимой, в последнее время в промышленных зданиях применяют ворота с полотнами из резины или прозрачного упругого пластика, которые натягивают на раму. Автоматические воздушно тепловые завесы, в проемах ворот также защищают работающих от воздействия холодного наружного воздуха.
Полы промышленных зданий. Стоимость конструкции полов составляет 12-15% от полной стоимости промышленного здания. Выбор типа и конструкций полов промышленных зданий зависит от специфики технологического процесса производства с учетом условий их эксплуатации.
Полы в одноэтажных зданиях устраивают непосредственно по грунту, а в многоэтажных - по железобетонным плитам между этажных перекрытии. Конструкция пола состоит из покрытия (чистый пол), прослойки, стяжки, гидроизоляции и основания. Покрытие-это верхний слой пола (одежда), материал которого дает наименование различным типам полов. Проектируют покрытия на сплошных и штучных материалов. Прослойка является соединительным (клеевым) слоем между покрытием и стяжкой пола. Стяжка-выравнивающий слой под покрытием пола. Она образует жесткую корку с ровной поверхностью под покрытие поливинилацетатных и паркетных полов, а также для покрытий из рулонных и листовых материалов с созданием требуемого уклона по железобетонным плитам перекрытий.
Гидроизоляцию применяют в конструкции полов в тех случаях когда пол подвергается воздействию сточных или грунтовых вод, а также агрессивных производственных жидкостей.
Основанием для полов являются уплотненный верхний слой грунта в одноэтажных цехах и железобетонные плиты перекрытий в многоэтажных зданиях. При устройстве пола на грунте применяют подстилающий слой (подготовку) различной толщины.
В одном здании не рекомендуется устраивать полы разных типов, это затрудняет их устройство и эксплуатацию.
Химически стойкие полы должны отвечать повышенным требованиям. В конструкцию такого пола входят коррозионно-стойкие материалы и гидроизоляция из полиизобутилена, поливиниловой или полиэтиленовой пленки. Наиболее устойчивые полы против воздействия высоких температур и различных кислот делают из керамических материалов (клинкер, кирпич и керамические плитки). Бетонные и цементные полы применяют в цехах, где на конструкцию пола действуют щелочи, минеральные масла и вода. На производствах с агрессивным воздействием кислот и щелочей покрытие пола выполняют из асфальтобетона. В последнее время хорошо зарекомендовали себя полы из шлакоситалла.
На взрывоопасных производствах для покрытий полов применяют материалы, которые не создают искрения при ударе, а также от возникновения разрядов статического электричества и других факторов (асфальтобетон с наполнителем из известняка).
Лестницы и лифты. Лестницы промышленных зданий и подсобно-вспомогательных помещений по назначению делят: на входные (основные) и второстепенные - для сообщения между этажами и для эвакуации людей; служебные (цеховые) - для обслуживания оборудования и механизмов; пожарные (при высоте здания более 10 м; аварийные - для эвакуации людей в случае аварии.
Основные и второстепенные лестницы проектируют в отдельных замкнутых помещениях (шахтах), огражденных стенами, степень не сгораемости которых должна соответствовать степени огнестойкости основных несущих конструкций промышленного здания.
По конструкции проектируют следующие типы лестниц: сборные железобетонные с отдельными маршами и площадками; сборные железобетонные из штучных ступеней по стальным или железобетонным косоурам; с железобетонными маршами и площадками, выполненными монолитно; со стальными косоурами, проступями и площадками (служебные, аварийные, и пожарные). Стальные лестницы устанавливают внутри цехов и снаружи промышленных зданий с шириной марша не менее 0,7-0,8 м.
1.5 Правила и требования по размещению оборудования
В промышленных зданиях размеры помещений определяют в зависимости от габаритов оборудования, площади, занимаемой людьми в процессе их труда, а также посредством подсчета необходимых площадей для подхода к рабочим местам, проезда напольного безрельсового транспорта, ремонта оборудования, эвакуационных цеховых проходов и таких функциональных факторов, как кратность воздухообмена, освещенность рабочих мест и др.
В зону технологического обслуживания оборудования входят размеры рабочих проходов между смежным оборудованием, что обеспечивает безопасное выполнение рабочих операций. Размеры этой зоны указывает завод-изготовитель в зависимости от площади, необходимой для выполнения работы в соответствующей рабочей позе. Так, если рабочий выполняет работу стоя или с небольшим наклоном к оборудованию, то зону обслуживания принимают 0,65-0,75 м, при большом наклоне ее увеличивают до 0,9 м. Определяя площадь зоны обслуживания оборудования, необходимо предусмотреть места для размещения сырья, полуфабрикатов и готовой продукции, свободный доступ к приборам и механизмам, а также обеспечить удобство и безопасность выполнения всех операций по их обслуживанию.
Зона ремонта включает в себя необходимую площадь для выполнения ремонтных работ ремонтникам, а также площадь для монтажа и демонтажа оборудования. Ремонтники могут работать лежа, загораживая частями тела проход или зону обслуживания, поэтому ширину зоны ремонта проектируют больше зоны обслуживания, учитывая при этом и размеры применяемого инструмента. Иногда функциональный процесс требует предусматривать площадку для извлечения из технологического оборудования отдельных деталей, узлов и механизмов большого габарита, а также для складирования деталей и узлов на полу в непосредственной близости или для размещения тележек и других средств при транспортировании их из цеха. В отдельных случаях необходимо предусмотреть место для слесарного верстака или специального ремонтного приспособления рядом с оборудованием.
Зону ремонта при выполнении ремонтником работ стоя с очень большим наклоном к оборудованию или стоя с наклоном в пол-оборота принимают 0,7-1м, если сидя на корточках или на стуле, то 0,65-0,90 м.
Зоны технологического обслуживания и ремонта следует располагать по периметру оборудования на уровне до 2 м от пола. В случае необходимости располагать зону технологического обслуживания оборудования на высоте свыше 2м, следует проектировать специальные площадки с постоянной лестницей к ним. На одной стороне таких площадок устраивают свободный проход шириной не менее 0,7 м. Настил на площадках обслуживания проектируют из листовой рифленой или перфорированной стали, литых плит из чугуна с сетчатой или ребристой поверхностью. По периметру площадок обслуживания устраивают ограждение высотой 1 м с заделкой на 15 см снизу сплошной бортовой обшивкой.
Служебные лестницы на площадке обслуживания выполняют с поручнями, ступени должны иметь нескользкую опорную поверхность. Ширину марша принимают 0,5-0,6 м, высоту подступенка - 250-280 мм, угол наклона к полу 60-70°. Допускается угол наклона лестницы к полу до 50°, если при таком решении не увеличиваются габариты оборудования и не затрудняется обслуживание его.
Ввиду того что техническое обслуживание, профилактический ремонт и чистку оборудования, как правило, осуществляют в разное время, целесообразно площади рабочей и ремонтной зон полностью или частично совмещать в одну зону.
Ширину свободного прохода между оборудованием определяют с учетом высоты выступающих элементов соседних агрегатов. Это проход не используют для обслуживания и ремонта оборудования но он нужен для переходов рабочего с одного участка агрегата на другой. Если выступающие части оборудования находятся на высоте до 0,5 м, ширина свободного прохода должна быть не менее 0,5 м, при высоте этих частей 0,5-0,9 м-0,6 м, при высоте их 0,7-0,9 м ширина увеличивается на 0,1 м при длине более 5-6 м
Монтажный разрыв между оборудованием устраивают только в том случае, если между соседними агрегатами не требуется зоны технологического обслуживания и ремонта. В зависимости от условий монтажа и демонтажа оборудования монтажный разрыв принимают 0,1-0,4 м и более.
При установке в рабочем проходе приборов и вспомогательного оборудования на стене проход увеличивают, не менее чем на 0,2 м. При отсутствии приборов и вспомогательного оборудования свободный проход между смежным оборудованием или между агрегатом и стеной должен быть не менее 0,8 м.
Разрыв между оборудованием и колонной при наличии фиксированного рабочего места против колонны равен ширине зоны технологического обслуживания или зоны ремонта для данного участка агрегата.
Разрыв между оборудованием и колонной должен быть не менее 0,1 м.
Если необходимо создать свободный проход между колонной и оборудованием, то разрыв между ними составляет не менее 0,6 м. Ширину второстепенных проходов, используемых для ремонта, осмотра и смазки оборудования, принимают не менее 0,8 м, минимальную высоту прохода до нижних граней конструктивных элементов и вентиляционных коробов воздуховодов - не менее 1,9 м.
2. Объемно - планировочные и конструктивные решения цеха (отделения) с размещением оборудования
2.1 Конструктивная схема и объёмно-планировочные параметры цеха
Канифольно-терпентиновый цех располагается в отдельно стоящем здании.
По пространственному расположению несущих элементов остова здание представляет собой каркасный тип с самонесущими стенами, образованный колоннами, установленными на фундамент, несущими элементами покрытий. Наружные стены пристройки кирпичные, ширина 510 мм, ширина внутренних стен 250 мм. Стены здания панельные толщиной 300мм, ленточное остекление.
Здание проектируем как однопролетное четырехэтажное, прямоугольной формы, бескрановое. Размер здания в плане 61000×18000 мм. Для каждой колонны каркаса проектируем отдельный фундамент с подколонниками стаканного типа, а стены возводим на фундаментные балки.
Междуэтажное перекрытие балочное с плитами размером 1,5 на 6м, высота плит 0,4 м, и ригелями прямоугольного сечения размером 300 на 800 мм, покрытие пола цементно-бетонное. Легкосбрасываемое покрытие крыши состоит из железобетонных плит длиной 6 м и волнистых асбестоцементных листов.
2.2 Основные конструктивные элементы
Принимаем унифицированные колонны, из сборного железобетона заводского изготовления, сплошного прямоугольного сечения колонны имеют стальные закидные элементы, сетка колонн 66м. Железобетонные балки применяют в покрытии зданий. В целях снижения массы балок, а так же для возможности смонтировать инженерные коммуникации в вертикальных стенах делаем отверстия разной геометрической формы. Опорные части балок имеют стальные листы с вырезами для крепления их к колоннам. Окна проектируем с деревянными переплетами в здании с температурно-влажностным режимом. Полы устанавливаем непосредственно по грунту, покрытия применяем из сплошных материалов.
2.3 Компоновка оборудования
Оборудование устанавливается в последовательности соответствующей технологическому процессу. Размещаем оборудование на расстоянии позволяющим ремонт или замену оборудования. Между оборудованием проектируем ширину свободного прохода для обслуживания и ремонта оборудования. Ширина свободного прохода равна 0,6 м.
Заключение
В данной курсовой работе рассмотрены объёмно - планировочные и конструктивные решения канифольно-терпентинного цеха. Она состоит из введения, двух разделов, заключения, списка используемой литературы, а так же графической части (план и разрез помещения канифольно-терпентинного цеха с размещением оборудования на 2-х форматах А1).
В первом разделе содержатся основные сведения о категорировании помещений, зданий по взрывопожарной и пожарной опасности, характеристика взрывопожароопасных свойств веществ, материалов и особенностей технологического процесса; определение категории помещения (здания) отделения (цеха), конструктивные схемы и объемно - планировочные параметры здания, характеристика основных конструктивных элементов зданий, правила и требования по размещения оборудования.
Второй раздел посвящён вопросам объемно - планировочные и конструктивные решения цеха (отделения) с размещением оборудования.
Список использованных источников
1. Елкин В.А. и др. Оборудование и проектирование предприятий гидролизной и лесохимической промышленности. - М., 1991. - 310 с.
2. Макаревич В.А. Строительное проектирование химических предприятий. - М., 1977. - 208 с.
3. Трепененков А.И. Альбом строительных конструкций и деталей промышленных зданий. - М.: Стройиздат, 1980. - 284 с.
4. Цыгальницкий В.М. Охрана труда и техника безопасности в микробиологических производствах. - Л.: Химия, 1990. - 112 с.
5. НПБ 5-2005 ”Категорирование помещений, зданий и наружных установок по взрывопожарной и пожарной опасности”. - 32 с.
С;
вещества и/или материалы, способные
гореть при взаимодействии с водой,
кислородом воздуха и/или друг с другом,
при условии, что величина индивидуального
риска при возможном сгорании указанных
веществ с образованием волн давления
превышает 10
6
в год на расстоянии 30 м от наружной
установки.
в год на расстоянии 30 м от наружной
установки.