Расчет стандартных посадок для подшипников скольжения, червячного колеса и вала
Содержание
1. Исходные данные
2. Постановка задачи
3. Задание:
4. Расчет и выбор посадок подшипников скольжения.
4.1 Теоретические сведения
4.2 Расчет и выбор посадок подшипников скольжения
5. Расчет и выбор посадок с натягом для соединения зубчатого венца со ступицей
6. Расчет и выбор переходных посадок для соединения червячного колеса с валом
7. Размерный анализ
8. Расчет параметрического ряда
9. Вывод
1. Исходные данные
Исходными данными являются:
конструкция механизма, задаваемая сборочным чертежом;
номинальные размеры деталей, подлежащих расчёту соединений, определяемые по сборочному чертежу с учётом масштаба изображения; масштаб изображения в свою очередь определяется заданием одного из размеров – диаметра шейки вала в подшипнике скольжения с заданным обозначением;
нагрузочные параметры и условия работы;
диапазон и число членов параметрического ряда механизма;
материал зубчатого венца – бронза, ступицы червячного колеса – чугун.
2. Постановка задачи
Совершенство конструкции машин и механизмов во многом зависит от обоснованности решений по вопросам характера соединений (посадки) и точности геометрических параметров деталей, которые непосредственно влияют на надежность, мощность, производительность и другие эксплуатационные показатели машин и механизмов в целом. Вместе с тем требования по точности размеров деталей влияют на производительность и экономичность процессов их обработки при изготовлении. Поэтому решения по указанным вопросам должны быть обоснованными и учитывать как требования по качеству изделий, так и технические требования. В теории взаимозаменяемости разработаны расчетные методы обоснования таких решений, применяемые в курсовой работе. Вместе с методическими указаниями студенту выдаются два чертежа-копии – сборочный чертеж механизма и чертеж детали.
3. Задание:
1. Рассчитать и выбрать посадки для следующих соединений заданного на чертеже механизма:
соединение вала червячного колеса с отверстием вкладыша подшипника скольжения или соединения подшипника качения по внутреннему кольцу с валом червяка и наружного кольца с отверстием в корпусе;
соединение зубчатого венца червячного колеса со ступицей;
соединение червячного колеса с валом.
2. Рассчитать допуски заданной ниже размерной цепи, участвующей в обеспечении допуска на смещение средней плоскости червячного колеса: выявить производные размерные цепи.
Допуск на смещение средней плоскости червячного зацепления задать в технических требованиях на сборочном чертеже.
3. На чертеже вала червячного колеса задать допуски:
на размеры (условными обозначениями);
на отклонения расположения поверхностей (отклонение от соосности опорных поверхностей вала относительно посадочной поверхности вала под червячное колесо);
на отклонения формы поверхностей (отклонение от круглости опорных и посадочных поверхностей вала);
на шероховатость.
4. Рассчитать и построить на основе предпочтительных чисел параметрический ряд по мощности механизмов данного типа.
Ниже приведены методические указания по решению поставленных задач.
|
Вариант № |
12 |
|
Диаметр вала в подшипнике скольжения, мм |
90 |
|
Частота вращения вала, об/мин |
2500 |
|
Нагрузка на подшипник Р>I>, Н |
500 |
|
Характер нагрузки – перегрузка, % |
300 |
|
Марка смазки |
И – 20А |
|
Крутящий
момент на червячном колесе М>кр>,
Н |
470 |
|
Условное обозначение подшипника качения |
318 |
|
Степень точности передачи по ГОСТ 3675 - 81 |
8 |
|
Диапазон параметрического ряда, кВт |
4 – 16 |
|
Число значений в ряду |
12 |
4. Расчет и выбор посадок подшипников скольжения
4.1 Теоретические сведения
Исходное условие расчета интервала функциональных зазоров – необходимость обеспечения режима жидкостного трения. Это условие может быть записано в виде:
(1)
где
-
наименьшая толщина слоя смазки в
подшипнике;
-
наименьшая толщина слоя смазки,
обеспечивающая режим жидкостного
трения, т.е. надежное расклинивание
поверхностей вала и вкладыша в процессе
вращения.
Принимают:

где
высота неровностей шероховатости
поверхностей вала и вкладыша;
коэффициент
запаса, обычно
.
С учетом существующих методов
обработки и функциональных требований
к шероховатости поверхностей трения
подшипников скольжения можно принять
для поверхностей вкладышей (отверстий)
значение параметра
в пределах от 1,5 до 6,3 мкм., для поверхностей
вала – от 0,1 до 5,0 мкм.
Расчет наименьшего и наибольшего
функциональных зазоров -
и
,
при которых исходное условие
удовлетворяется, ведется методом
последовательных приближений:
задаются ориентировочными
значениями
и
;
если соотношение (1) не выполняется,
ориентировочные значения зазоров
необходимо изменить:
- в сторону увеличения,
-
в сторону уменьшения, и вновь проверяется
соотношение (1). Процесс приближения
повторяется до тех пор, пока условие
жидкостного трения не будет выполнено.
для каждого из них вычисляется
и проверяется соотношение (1);
Другой путь - уменьшение
шероховатости в разумных пределах. На
первом этапе
и
принимаются из следующих соображений.
В пределе чисто геометрически

Но это соответствует неустановившемуся режиму работы, т. к. слой смазки лишен клиновидной формы. Обязательно должен быть эксцентриситет во взаимном положении вала и вкладыша.


Рис.1 зависимость

Поэтому на первом этапе можно принять:

мкм.
(предельное значение зазора, за которым
расчетные зависимости не соблюдаются).
Действительная толщина слоя смазки при заданных зазорах определяется по выражению, получаемому из геометрических соотношений:

где вместо
подставляется проверяемое значение
зазора.
Относительный эксцентриситет
определяется по зависимости, связывающей
с коэффициентом нагруженности подшипника
и с относительными размерами подшипника
.
При этом:

где
среднее
давление в подшипнике, Па.;

где
– нагрузка,
и
– длина и номинальный диаметр подшипника;
- относительный зазор,
.
Угловая скорость вращения вала (рад/с):

где
-
число оборотов вала в минуту;
-
динамическая вязкость смазки, (Па
с):

где
-
динамическая вязкость смазки при 50С,
-
температура смазки.
Можно принять:
при

После определения границ интервала
функциональных зазоров
приступают к выбору стандартной посадки.
Посадка выбирается по системе ЕСДП. Условия выбора посадки могут быть сформулированы следующим образом:
Целесообразность соблюдения принципа предпочтительности;
,
где S
– зазоры стандартной посадки (необходимое
условие);
С целью обеспечения наибольшего
запаса на износ посадка по зазору должна
быть близкой к нижней границе
функциональных зазоров -
;
Должны быть учтены особенности применения посадок системы отверстия и посадок системы вала.
4.2 Расчет и выбор посадок подшипников скольжения
По таблице для смазочного масла
И – 20А находим значение динамической
вязкости при температуре
:
Па
с;
При расчете предельных значений функционального зазора принимаем:
температуру смазки при S>наим.ф.>
– 100
С;
температуру смазки при S>наиб.ф>
– 50
С.
Тогда динамическая вязкость смазки:
- при наименьшем функциональном зазоре
>
>
=0,015
(50/100)3=1,88
10-3
Па
с;
- при наибольшем функциональном зазоре
0,02
(50/50)3=0,02
Па
с.
Угловая скорость вращения вала в подшипнике:
=3,14
2500/30=261,6
рад/с.
Среднее давление в подшипнике:
=500/(0,1053
0,09)=5,28
104
Па.
Наименьшая толщина слоя смазки в подшипнике, обеспечивающая режим жидкостного трения, т.е. надежное расклинивание поверхностей вала и вкладыша в процессе вращения:
.
Принимаем:
при условии обработки цапфы вала шлифованием R>z>>1>=1,6 мкм;
при условии обработки вкладыша тонким растачиванием R>z>>2>=3,2 мкм;
поправку на отклонение в условиях работы от заданных h>a>=2 мкм
коэффициент запаса k=2.
Тогда
2(1,6+3,2+2)=13,6
мкм.
Наименьший функциональный зазор
S>нм.ф.=>3
13,6=40,8
мкм.
Принимаем в качестве наибольшего функционального зазора S>наиб.ф.>=400 мкм (предельное значение зазора, за которым расчетные зависимости не соблюдаются).
Произведем проверочный расчет.
Для этого необходимо найти величину относительного зазора:
.
Найдем коэффициент нагруженности подшипника при зазоре, равном S>наиб.ф>:
=
.
Учитывая то, что нагрузка на
подшипник мала (500 Н), а также то, что
,
,
методом экстраполяции, исходя из таблицы
1 методических указаний, вычисляем
,
который получается приблизительно
равен 0,015.
Тогда
=
=20,1
мкм;
20,1>13,6
Коэффициент нагруженности при зазоре, равном 400 мкм:
Величина относительного зазора:
;
0,1989;
Таким же методом вычисляем
,
получим:
.
Тогда h>наим>=(400/2)
(1-0,15)=170 мкм
170>13,6
Таким образом, определен интервал функциональных зазоров:
S>нм.ф.>=40,8 мкм
S>нб.ф.>=400 мкм
Из числа рекомендуемых посадок, приведенных в приложении стандарта ГОСТ 25347 – 82 “ЕСДП”. Поля допусков и рекомендуемые посадки, выписываем предпочтительные посадки системы отверстия, зазоры которых удовлетворяют соотношению (1):
,
,
,
,
Из этих посадок выбираем посадку
–
,
обеспечивающую наибольший запас на
износ.
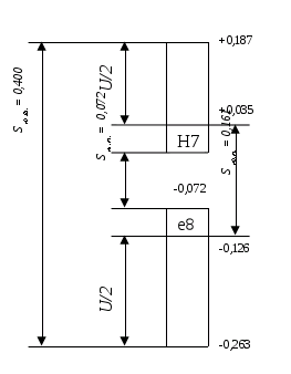
Поле допуска отверстия – Н7(+0,035).
Поле допуска вала – е8
.
Наименьший зазор:
мм;
Наибольший зазор:
мм;
Запас на износ:
И=0,400-0,161=0,239мм.


Изобразим схему расположения полей допусков с указанием их обозначений и предельных отклонений:

5. Расчет и выбор посадок с натягом для соединения зубчатого венца со ступицей
Цель расчёта –
определение интервала функциональных
натягов
в соединении зубчатого венца со ступицей
червячного колеса редуктора.
Исходные данные:
Номинальный диаметр соединения

Длина соединения

Диаметр отверстия в ступице

Диаметр зубчатого венца под
вкладышем

Крутящий момент

Наименьший функциональный натяг
определяется как наименьший расчетный
натяг
,
рассчитываемый из условия передачи
заданного крутящего момента
.
При этом в полученный результат вводим
две поправки:
,
где
- поправка на смятие неровностей
сопрягаемых поверхностей,
- поправка на возможное ослабление
натяга, обусловленное неравномерным
расширением материалов соединяемых
деталей при нагреве в процессе работы
механизма.

где
- коэффициент трения при относительном
вращении деталей, равный 0,2;
- модули упругости материала зубчатого
венца и ступицы
,
- коэффициенты Лямэ для зубчатого венца
и ступицы, определяемые по формулам:

где
- коэффициенты Пуассона (для чугуна
,
а для бронзы
),
,
.
Подставляем полученные значения и находим наименьший расчётный натяг:
.
Для определения наименьшего функционального натяга необходимо рассчитать значение поправок.
Поправка, учитывающая смятие неровностей контактных поверхностей при сборке для материалов с различными механическими свойствами рассчитывается по следующей формуле:
где
- высота неровностей поверхности
отверстия и вала (
,
);
- коэффициенты, учитывающие высоту
смятия неровностей втулки и вала (при
механической заприсовке при нормальной
температуре со смазочным материалом
,
).
.
Вследствие отличия рабочих температур деталей от температуры при сборке, а также различия температурных коэффициентов линейного расширения материалов, натяг в соединении может меняться. Следовательно, требуется ввести поправку. Учитывая равенство рабочих температур соединяемых деталей, формула поправки имеет вид:
где
- номинальный диаметр соединения;
- рабочая температура деталей;
- температура при сборке соединения;
- температурные коэффициенты линейного
расширения деталей (спр. данные).
.
Тогда
.
Определим наибольший функциональный
натяг


где
- поправка, учитывающая неравномерность
распределения удельного давления по
длине соединения, равная 0,7;

где
- допускаемое удельное давление,
принимаемое по менее прочной детали –
зубчатому венцу.
где
- предел текучести материала деталей
при растяжении (
).
.


Таким образом, определен интервал функциональных интервалов:


Стандартная посадка выбирается из системы ЕСДП (Единая система допусков и посадок), приведенной в справочной литературе или непосредственно в стандарте - ГОСТ 25347-82.
Условия выбора посадки с натягом:
Посадка выбирается по возможности из числа предпочтительных или рекомендуемых посадок основного отверстия (системы отверстия);
,
где
- натяг выбираемой посадки;
Из числа посадок с натягом, удовлетворяющих второму условию, выбирается посадка с наибольшим натягом.
Часть допуска натяга
,
идущая в запас прочности при сборке
соединения (технологический запас
прочности), всегда должна быть меньше
части допуска
,
обеспечивающей запас прочности соединения
при эксплуатации, так как она обусловлена
лишь возможным понижением прочности
материала деталей и повышением усилий
запрессовки, возникающим вследствие
перекосов соединяемых деталей, колебания
коэффициента трения и температуры. Для
соединения ступицы и венца червячного
колеса, втулок подшипников скольжения,
предпочтительной посадкой является
посадка
.
Но в нашем случае характер нагрузки –
перегрузка 300%, поэтому выбираем посадку
.



где
и
- наименьший и наибольший натяги выбранной
стандартной посадки.
Расположение полей допусков выбранной посадки имеет вид:


Рис.
2. Схема полей допусков посадки

6. Расчет и выбор переходных посадок для соединения червячного колеса с валом
Переходные посадки используют в неподвижных разъемных соединениях для центрирования сменных деталей или деталей, которые при необходимости могут передвигаться вдоль вала. Эти посадки характеризуются малыми зазорами и натягами, что, как правило, позволяет собирать детали при небольших усилиях. Для гарантии неподвижности одной детали относительно другой соединения дополнительно крепят шпонками, топорными винтами и другими крепёжными средствами.
Переходные посадки предусмотрены только в квалитетах 4-8. Точность вала в этих посадках должна быть на один квалитет выше точности соединения.
Возможность обеспечения
высокой точности центрирования
сопрягаемых деталей и относительная
легкость сборки соединений - характерные
особенности переходных посадок. Таким
требованиям должно отвечать соединение
червячного колеса с валом. Здесь
погрешность центрирования соединения,
определяемая допустимым зазором,
увеличивает фактическое значение одного
из показателей точности червячной
передачи – радиального биения зубчатого
венца червячного колеса
,
которое ограничивается допуском
.
Выбор переходных посадок определяется требуемыми точностью центрирования и легкостью сборки и разборки соединения. Точность центрирования определяется радиальным биением втулки на валу (или вала во втулке), возникающем при зазоре и одностороннем смещении вала в отверстии.
Расчет переходных посадок
заключается в определении интервала
функциональных, т.е. допустимых по
условию работы, зазоров (натягов):
.
При этом: наибольший зазор
определяется из условия обеспечения
заданной точности центрирования
соединения;
Погрешности формы и расположения поверхностей сопрягаемых, смятие неровностей, а также износ деталей при повторных сборках и разборках приводят к увеличению радиального биения, поэтому для компенсации указанных погрешностей, а также для создания запаса точности, наибольший допускаемый зазор в соединении необходимо определять по формуле:

где
- допуск радиального биения сопряженной
с валом детали,
- коэффициент запаса точности,

для 8 степени точности при диаметре
червячного колеса
равен
,
тогда:


где
- значение стандартной случайной
величины, распределенной по нормальному
закону и удовлетворяющей условию.
Легкость сборки и разборки соединений с переходными посадки, а также характер этих посадок определяются вероятностью получения в них зазоров и натягов.
при

Здесь P – вероятность зазора в соединении, количественно характеризующая требование к легкости сборки.
.

По расчётным значениям выбирается стандартная посадка из условия:
, т.е.
,
где
- значение зазора (натяга) выбранной
стандартной посадки, которая не должна
быть точнее 6-го квалитета.
При высоких требованиях к точности центрирования, а также при больших (особенно ударных) нагрузках и вибрациях назначают посадки с большим средним натягом, т.е. H/n, H,m. Чем чаще требуется разборка (сборка) узла и чем она сложнее и опаснее в смысле повреждения других деталей соединения (особенно подшипников качения), тем меньше должен быть натяг в соединении, т.е. следует назначать переходные посадки H/k, H/j>s>.
Поле допуска отверстия H8 (+64)




7. Размерный анализ
Размерный анализ заключается в выявлении размерных цепей и в расчете допусков размеров, входящих в их состав.
Для червячной передачи 8-ой
степени точности с модулем
при межосевом расстоянии равным:
,
По ГОСТ 3675-81 в разделе «Нормы
точности контактирования» находим
.



Номинальные размеры:
;
;
;
;
- замыкающий размер
- увеличивающие звенья. Звено
- уменьшающее.
Допуск замыкающего звена:
.
В зависимости от номинальных размеров составляющих звеньев находим значение единиц допусков:

При расчете по методу максимума – минимума число единиц допуска получается равным:
.
Это значение соответствует,
примерно, 9-му квалитету точности. Пусть
резервным звеном является звено
,
тогда:
;
;
;
Находим отклонение резервного
звена
:
;
;
Верхнее отклонение звена
:
.
Нижнее отклонение:
.
По расчетным отклонениям звена
.
Расчёты, найденные для звеньев отклонения не приведут к выходу размера замыкающего звена за пределы заданного допуска.
8. Расчет параметрического ряда
Расчет имеет целью установить и обозначить параметрический ряд редукторов. Параметрические ряды механизмов и машин устанавливаются на основе рядов предпочтительных чисел. Система предпочтительных чисел оформлена стандартом и основана на рекомендации ИСО.
Стандартизируемый параметр – мощность, кВт
Диапазон параметрического ряда – 4-16 кВт
Число членов ряда – 12.
Определяем расчетное значение знаменателя геометрической прогрессии параметрического ряда:

Расчетному значению знаменателя
наиболее близко соответствует стандартный
ряд предпочтительных чисел
со знаменателем
.
Так как полного совпадения нет, то число членов параметрического ряда в указанном диапазоне будет несколько отличаться от заданного.
Таким образом, по таблице получаем следующие значения мощностей в параметрическом ряду:
50,00; 56,00; 63,00; 71,00; 80,00; 90,00; 100,00; 112,00; 125,00; 140,0; 160; 180,00; 200,00 кВт.
9. Вывод:
В ходе курсового проекта были выбраны стандартные посадки из системы ЕСДП (Единая система допусков и посадок) для соединения:
подшипника скольжения и цапфы вала;
венца червячного колеса и его ступицы;
ступица червячного колеса и вала.
Был сделан размерный анализ (который заключался в выявлении размерных цепей и в расчете допусков размеров входящих в их состав) и обозначен параметрический ряд редукторов.