Різання матеріалів, верстати та інструменти
“Різання матеріалів, верстати та інструменти”
Завдання № 1
Вимоги, що ставляться до матеріалів, з яких виготовляють різальний інструмент (привести марки найбільш вживаних матеріалів з легованих сталей, твердих сплавів, мінералокерамічних і синтетичних матеріалів).
В сучасному машинобудуванні застосовують велику кількість найрізноманітніших різальних інструментів.
Продуктивність різального інструменту значною мірою залежить від фізико-механічних властивостей матеріалу з якого його виготовлено. Наприклад, при роботі різцем із швидкорізальної сталі продуктивність у 3 – 5 разів вища, ніж при роботі різцем з вуглецевої інструментальної сталі.
У процесі різання різальна частина інструменту зазнає великого тиску, тертя і нагрівання. Ці режими роботи зумовлюють ряд вимог, яким повинні відповідати матеріали, призначені для виготовлення різального інструменту.
Робоча частина різального інструменту повинна перш за все виготовлятися з матеріалу з високою твердістю. Різання можливе тільки тоді, коли твердість матеріалу інструменту у кілька разів перевищує твердість оброблюваного матеріалу. Матеріал для різальних інструментів повинен бути теплостійким, тобто зберігати свої різальні властивості, зокрема твердість, при високих температурах.
Матеріал з якого виготовляється різальний інструмент повинен мати високі механічні характеристики та відповідну в'язкість.
Під впливом тертя, що виникає під час різання, різальна частина інструменту спрацьовується і він затуплюється. Чим швидше відбувається спрацювання, тим нижча стійкість інструменту. Тому інструментальні матеріали мають бути стійкими проти спрацювання.
Матеріал, який застосовують для виготовлення різального інструменту, повинен також бути недефіцитним і мати низьку вартість.
Різні металорізальні інструменти працюють не в однакових умовах. Знімають, наприклад, різні стружки по товщині з різними швидкостями. Багато інструментів у процесі роботи нагріваються до високої температури, а деякі залишаються маже холодними. На різальні інструменти діють різні по величині сили тертя об оброблюваний матеріал, тому відповідний матеріал для виготовлення інструменту вибирають залежно від умов його роботи.
Для виготовлення різального інструменту застосовують вуглецеву інструментальну, леговану інструментальну і швидкорізальну сталі, тверді сплави, мінералокерамічні і абразивні матеріали, алмази.
З легованих сталей найбільшого застосування у виробництві металорізального інструменту набули хромисті (9Х, Х), хромокременисті (6ХС, 9ХС), хромовольфрамові (ХВ5, 4Х8В2) і хромовольфрамомарганцевисті (ХВГ, 9ХВГ) сталі. З них виготовляють мітчики, плашки, свердла, розвертки, різці, протяжки, фрези ті інший різальний інструмент.
Інструментальні леговані сталі з підвищеним вмістом вольфраму, хрому, ванадію, кобальту і молібдену називаються швидкорізальними. Найбільш поширеними швидкорізальними сталями, які використовують для виготовлення різального інструменту є Р18, Р9, Р12, Р6М5, Р18Ф2, Р9К5, Р9Ф5, Р10К5Ф5.
Застосування твердих сплавів дає можливість збільшити швидкість різання у 8 – 10 разів порівняно з швидкорізальними сталями.
Металорізальні тверді сплави, які застосовують для виготовлення різального інструменту поділяють на три групи:
а) вольфрамові (ВК2, ВК4, ВК6, ВК8 та ін.);
б) титановольфрамові (Т30К4, Т15К6, Т14К8 та ін.);
в) титанотанталовольфрамові (ТТ7К12, ТТ7К15, ТТ20К9 та ін.).
Основу мінералокерамічних сплавів становить спечкний окис алюмінію (Al2O3). Найкращі марки міералокерамічних інструментальних матеріалів, які мають високі різальні властивості – це Цм-332 та ВОК-60.
Абразивні матеріали, які використовують, в основному, для остаточної обробки деталей машин, поділяються на природні і штучні.
Із штучних абразивних матеріалів тепер найпоширеніші електрокорунд, карбід кремнію, карбід бору, алмаз. Залежно від процентного вмісту карбіду кремнію розрізняють карбід кремнію зелений, з вмістом не менш як 97% SiC, і карбід кремнію чорний, з вмістом SiC до 95%. Карбід кремнію зелений використовують в основному для заточування твердосплавного і мінералькерамічного різального інструменту.
Завдання №2
Проводиться зовнішнє точіння
деталі різцем з головним кутом в плані
,
глибиною різання t = 4мм. Визначити
величину активної частини різальної
кромки різця.

Дано:
;
t = 4мм.

Знайти: b - ?
Розв'язування.
Активною частиною різальної кромки різця при зовнішньому точінні деталі буде ширина зрізуваного шару b, яка визначається за формулою:
;

Відповідь: b = 4,62 мм.
Завдання № 3
За приведеними німими кінематичними схемами головного руху металорізальних верстатів згідно свого варіанту показати способи закріплення на валах елементів приводу (шківи, шестерні, муфти та ін.) та визначити:
а) групу верстата;
б) можливе число ступенів частоти обертання шпинделя;
в) найбільшу і найменшу частоту обертання шпинделя верстата за хвилину;
г) описати роботу коробки швидкостей по приведеній схемі.

Розв'язування.
а) верстат відноситься до першої групи (токарна).
б) можливе число ступенів
частоти обертання шпинделя:
.
в) 1. найбільша частота обертання шпинделя верстата за хвилину:

2. найменша частота обертання шпинделя верстата за хвилину:

г) обертання шпинделя передається від електродвигуна (N = 4,5 кВт;
n = 1440 хв-1) через клинопасову
передачу
на вал ІІ; з вала ІІ на вал ІІІ передача
руху йде через блок шестерень Б1 і
шестерні вала ІІІ, при цьому будуть такі
варіанти передачі руху 41 – 26 або 39 –
31. На валу IV знаходяться два подвійні
блоки шестерень Б2 і Б3, шестерні, яких
входячи в зачеплення з нерухомими
шестернями вала ІІІ, надають валу IV
чотири різні частоти обертання: 19 – 38,
14 – 44, 26 – 32,
31 – 25. На валу VI знаходиться
кулачкова одностороння муфта М. При
включенні муфти М, рух з вала IV на вал
шпинделя VI передається через клинопасову
передачу
.
Якщо муфта М виключена, тоді передача
руху йде: з вала IV на вал V через клинопасову
передачу
і зубчасті колеса
;
з вала V на вал шпинделя VI обертання
передається через зубчасті колеса 20 –
80.
Завдання № 4
Згідно свого варіанта заданої деталі, розробити маршрутний технологічний процес виготовлення деталі з вибором заготовки відповідно заданому кресленню і виду виробництва. Завдання виконується в слідуючому порядку:
Подати креслення деталі в масштабі 1:1 на форматі А4 або А3.
Розробити маршрутний технологічний процес виготовлення деталі з вибором заготовки відповідно до заданого креслення і виду виробництва.
Вибрати типи верстатів, інструменти і пристрої для виготовлення деталі.
Розрахувати режими різання для однієї операції.
Матеріал заготовки: сталь 45, виробництво дрібносерійне.
Вибір заготовки
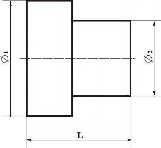
Так як виробництво дрібносерійне, то економічно вигідно отримувати заготовки для виготовлення даної деталі (зубчасте колесо) у виді поковок.
Розміри поковки: Ø1 = 314 мм; Ø2 = 204 мм; L = 108 мм.

Маршрутний технологічний процес виготовлення деталі.
05. Заготівельна.
Поковка: розміри Ø1 = 314 мм; Ø2 = 204 мм; L = 108 мм.
10. Токарна.
Обладнання: Токарно-гвинторізальний верстат мод. 16К50П.
Установити, закріпити і зняти заготовку за Ø1 = 314 мм в трьохкулачковому патроні.
Підрізати торець в розмір L = 105 мм; Ø2 = 204 мм (чорнова обробка).
Підрізати торець в розмір L = 104 мм; Ø2 = 204 мм (чистова обробка).
Інструмент: різець підрізний з пластиною із твердого сплаву Т5К10.
Проточити зовнішню циліндричну поверхню з Ø2 = 204 мм до Ø 200 мм на довжині L = 50 мм.
Проточити фаску на ободі Ø 200 мм, 3×45
Інструмент: різець прохідний відігнутий з пластиною із твердого сплаву Т5К10.
15. Токарна.
Обладнання: Токарно-гвинторізальний верстат мод. 16К50П.
Установити, закріпити і зняти заготовку за Ø = 200 мм в трьохкулачковому патроні.
Підрізати торець в розмір L = 101 мм; Ø1 = 314 мм (чорнова обробка).
Підрізати торець в розмір L = 100 мм; Ø1 = 314 мм (чистова обробка).
Інструмент: різець підрізний з пластиною із твердого сплаву Т5К10.
Проточити зовнішню циліндричну поверхню з Ø = 314 мм до Ø 310 мм на довжині L = 50 мм.
Проточити фаску на торці Ø 310 мм; 1×45 мм.
Проточити фаску на Ø 310 мм; 1×45 мм із сторони хвостовика.
Інструмент: різець прохідний відігнутий з пластиною із твердого сплаву Т5К10.
Свердлити отвір в розмір Ø 24 мм; L = 100 мм.
Інструмент: свердло спіральне Ø 24 мм.
Розточити центральний отвір наскрізь з Ø 24 мм до Ø 145 мм; L = 100 мм.
Проточити в центральному отворі фаску 1×45 мм.
Інструмент: різець розточний для обробки наскрізних отворів з пластиною із твердого сплаву Т5К10.
20. Токарна.
Обладнання: Токарно-гвинторізальний верстат мод. 16К50П.
Установити, закріпити і зняти заготовку за Ø = 310 мм в трьохкулачковому патроні.
Проточити фаску в центральному отворі 1×45 мм.
Інструмент: різець розточний для обробки наскрізних отворів з пластиною із твердого сплаву Т5К10.
25. Протягувальна.
Обладнання: горизонтально-протяжний верстат мод. 7Б55.
Установити, закріпити і зняти заготовку в захватах верстата.
Протягнути шпоночний паз в розмір b = 28H9 мм, де b – ширина паза;
t = 6,5 мм.
Інструмент: протяжка плоска: z = 23; b = 28 мм.
30. Свердлильна.
Обладнання: вертикально-свердлильний верстат мод. 2Н135.
Установити, закріпити і зняти заготовку в захватах верстата.
Свердлити два глухі отвори в розмір Ø 16 мм; l = 25 мм.
Інструмент: Свердло спіральне для обробки глухих отворів Ø 16 мм.
Зняти фаски на обох отворах 1×45 мм.
Інструмент: Свердло спіральне Ø 20 мм.
35. Зубо-фрезерна.
Обладнання: зубофрезерувальний верстат мод. 5К324.
Установити, закріпити і зняти заготовку на оправці верстата.
Фрезерувати зуби: m = 3; z =
100;
;
L = 50 мм; Dc = 300 мм,
де Dс – діаметр ділильного кола.
Інструмент: черв'ячна фреза підвищеної точності класу АА (ГОСТ93-24-60), матеріал фрези Р18, m = 3; d = 40 мм; Dс = 112 мм.
40. Термічна.
Обладнання: електропіч.
Відпустити заготовку з наступним гартуванням.
45. Контрольна.
Розрахунок режимів різання.
15. Токарна.
Обладнання: Токарно-гвинторізальний верстат мод. 16К50П.
Установити, закріпити і зняти заготовку за Ø = 200 мм в трьохкулачковому патроні.
Перехід 4. Проточити зовнішню циліндричну поверхню з Ø = 314 мм до Ø 310 мм на довжині L = 50 мм.
Вибираємо токарний прохідний відігнутий різець з пластиною із твердого сплаву Т5К10: В×Н = 16×25 мм.
Геометричні параметри
різальної частини різця:
[ 4, С. 188, 190 ]. Довжина різця 150 мм.
Глибина різання:

Назначаємо по табл. [ 4 ] подачу:
S = 0,7 …1,2 мм/об.
Коректуємо по паспорту верстата S = 0,7 мм/об.
Вибираємо по табл. [ 4 ] період стійкості різця: Т = 60 хв.
Визначаємо швидкість різання, допустиму різцем:
м/хв.
Постійний коефіцієнт
беремо з табл. [ 4, С. 422 ], а також показники
степенів
:
=
340 (при S > 0,7 мм/об);

загальний
поправочний коефіцієнт.

Поправочні коефіцієнти вибираємо з табл. 9 – 13 [ 4 ].


м/хв.
Визначаємо число обертів шпинделя верстата:
об/хв.
Коректуємо по паспорту
верстата:
об/хв.
Тоді
м/хв.
Силу різання Рz визначаємо по формулі:
(кгс).
[ 4, С. 429 ].

,
табл. [ 4 ];


кгс.
Потужність різання визначаємо за формулою:
кВт.
Потрібна потужність електродвигуна верстата:
кВт.
Машинний час визначаємо за формулою:
;

хв.
Література
Різання матеріалів, верстати та інструменти під ред. О.І. Гедвило 1980 р.
М.Е. Егоров «Технология машиностроения» 1965 г. – М. «Высшая школа».
С.А. Картавов «Технология машиностроения». – К. 1984 г.
А.Н. Малов и др. «Справочник технолога машиностроителя» т.2. – 1972 г.
В.В. Лоскутов «Шлифование металлов». – 1979 г.
А.М. Кучер «Металлорежущие станки». – 1965 г.