Розмірні ланцюги
Зміст
1. Розмірні ланцюги
1.1 Основні терміни та визначення
2. Рішення плоских розмірних ланцюгів
2.1 Метод повної взаємозамінності
2.2 Розрахунок розмірного ланцюга методом регулювання
2.3 Розрахунок розмірного ланцюга методом припасування
Література
1. Розмірні ланцюги
1.1 Основні терміни та визначення
Підвищення якості машин значною мірою залежить від допусків, які передбачені на відносний рух, а також на положення поверхонь і осей деталей (складальних одиниць) з урахуванням їх службового призначення. Точність при конструюванні, виготовленні, експлуатації і ремонті машин та їх складених частин досягається за рахунок використання теорії розмірних ланцюгів, її основних закономірностей, положень і розрахунків.
При цьому уточнюється зв'язок між розмірами деталей машин та їх складових частин; визначаються норми точності і технічні умови на складальні одиниці і машину в цілому, встановлюється послідовність операцій обробки і величини припуску на обробку, визначаються спрацьовані ланки (деталі) розмірних ланцюгів і вибираються способи їх відновлення; назначаються технічні і вимірювальні бази поверхонь деталей; встановлюється послідовність складання складальних одиниць і машин в цілому.
Похибки і зміна розмірів складових ланок впливають на розміри замикаючої ланки, що відбивається на працездатність машин і обладнання. Тому, щоб забезпечити нормальну роботу механізмів, під час ремонту машин і обладнання, насамперед, необхідно відновлювати точність розмірних ланцюгів.
Теорія розмірних ланцюгів в СРСР була розроблена Балакшиним Б.С., Бородачевим А А. і Дунаєвим П.Ф.
Основні терміни і визначення розмірних ланцюгів встановлені ГОСТ 16319-80.
Розмірним ланцюгом називають сукупність розмірів, які створюють замкнутий контур і безпосередньо беруть участь у вирішенні поставленого завдання. Замкнутість розмірного контуру - необхідна умова для складання і аналізу розмірних ланцюгів. Проте на робочих кресленнях розміри слід проставляти у вигляді незамкнутих ланцюгів; не проставляти замикаючі ланки, тому що обробки вона не потребує. Розміри, що створюють розмірний ланцюг, називають ланками розмірних ланцюгів.
Розмірні ланцюги класифікують за місцем виробу - детальні, складальні; розміщенням - лінійні, кутові, площинні, просторові, застосуванням - конструкторські, технологічні, вимірювальні.
Розмірні ланцюги, ланки яких є лінійні розміри, називаються лінійними.
Розмірні ланцюги називають площинними, якщо їх ланки розташовані в одній чи кількох паралельних площинах.
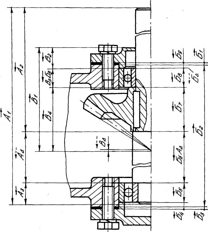
Ескіз складальної одиниці та схеми лінійних розмірних ланцюгів зображені на рис. 1.1.

Рис. 1.1.Ескіз складальної одиниці та схеми розмірних ланцюгів
Розміри А>1> А>2>, Б>1>, Б>2> і т.д., що утворюють розмірний ланцюг, називають складовими розмірами або ланками.
Ланки А>Δ>> , >Б>Δ> , В>Δ> , зміна точності яких є результатом зміни складових ланок, називаються замикальними ланками.
Замикальний розмір одержують останнім в процесі обробки, складання чи вимірювання. Його значення і точність залежать від значень і точності складових ланок ланцюга.
Складові ланки поділяються на збільшувальні і зменшувальні.
Збільшувальними ланками розмірного ланцюга називають ланки, із збільшенням яких замикальна ланка збільшується і навпаки.
Зменшувальними ланками розмірного ланцюга називають ланки, із збільшенням яких замикальна ланка зменшується і навпаки.
Так, на рис. 1.1, збільшувальними ланками є розміри А>1> ,Б>2 >, В>1>, а розміри А>2>-А>3>, Б>4>-Б>9>, В>2> –В>4> зменшувальними, а А>Δ>>, >Б>Δ >, В>Δ> -замикальні ланки.
Для зручності рішення складають схему розмірного ланцюга, яка є графічним безмасштабним зображенням (рис. 1.1). Для безпомилкового визначення збільшувальних і зменшувальних ланок над буквеним позначенням замикальної ланки рекомендується ставити стрілку гострим кінцем вліво, а потім над всіма складальними ланками стрілки проставляють так, як би вони показували прийнятий напрямок руху в замкненому контурі ланцюга потоку будь якого середовища. Ланки, напрямок стрілок яких співпадає з напрямком стрілки замикальної ланки (вліво), являються зменшувальними – А>2 ,>Б>4, >В>2>; ланки зі стрілками, які направлені в протилежний бік (праворуч), є збільшувальними – А>1>, Б>2>, В>1>.
Розмірні ланцюги використовують для рішення двох типів задач: прямої і оберненої. Пряма задача заключається в позначенні номінальних розмірів і полів допусків складальних ланок по завданим граничним розмірам замикальної ланки. Номінальні розміри складальних ланок, як правило, визначають попередньо на основі розрахунків або з конструктивних зображень. Прямі задачі типові при рішенні конструкторських розмірних ланцюгів.
Обернена задача заключається в визначенні номінального розміру і граничних відхилень замикальної ланки по відомим номіналам і граничним відхиленням складальних ланок. Обернена задача, в випадковості, дозволяє перевірити правильність рішення прямої задачі.
Розмірні ланцюги можливо вирішувати декількома методами (ГОСТ 16320-80).
1. Повної взаємозамінності (метод максимуму - мінімуму) - потрібна точність замикальної ланки розмірного ланцюга досягається у всіх без виключення об'єктів при включенні в її склад ланок без вибору, підбору або будь якого припасування. Метод виходить із припущення, що в одному розмірному ланцюзі одночасно можуть бути всі ланки з граничними значеннями, причому в будь-якому із двох найбільш несприятливих злук (всі збільшувальні ланки з верхніми граничними розмірами, а зменшувальні -з нижніми, або навпаки).
2. Неповної взаємозамінності (імовірний метод) - потрібна точність замикальної ланки розмірного ланцюга в умовах безприпасувальної збірки досягається не у всіх, а лише у достатньо більшої зарані обумовленої їх частини. Цей метод застосовують, коли економічно доцільно зазначити більш широкі допуски на складальні ланки в припущенні, що їх дійсні розміри будуть групуватися в більш вузьких межах по одному із імовірних законів, і процент ризику виходу відхилень замикальної ланки за межи поля допуску не перевищує зарані прийнятого значення.
Рішення високоточних конструкторських ланцюгів можливе шляхом введення в їх склад ланки-компенсатора. Коли для досягнення потрібної точності замикальної ланки з компенсатора кожного об'єкта усувають зайвий в даному випадку шар матеріалу, то це метод припасування. Коли обумовлена можливість змінювати дійсний розмір компенсатора без зняття матеріалу (підбором із ряду зарані виготовлених або переміщенням з наступною (фіксацією), то це метод регулювання.
Можливе також застосування метода групової взаємозамінності, при котрому точність замикальної ланки досягається за рахунок включення в розмірний ланцюг окремих складальних ланок, які попередньо сортують по дійсним розмірам на групи.
2. Рішення плоских розмірних ланцюгів
2.1 Метод повної взаємозамінності
Розглянемо основні співвідношення і порядок розрахунку розмірних ланцюгів з паралельними ланками за методом повної взаємозамінності (максимум-мнімум).
Рішення прямої задачі має такий вигляд.
Номінальний розмір замикальної ланки:
(1.1)
де n і р - число відповідно збільшувальних і зменшувальних ланок, тобто n+р=m-1. Тут m-загальне число ланок.
Із вираження (1.1) слідує,
що номінальний розмір замикальної ланки
дорівнює різниці суми номінальних
розмірів збільшувальних
і зменшувальних
ланок.
Рівняння граничних розмірів замикальної ланки має вигляд:
(1.2)
Рівняння граничних відхилень розміру замикальної ланки має вигляд:
(1.3)
Тут
,
- відповідно верхнє та нижнє граничні
відхилення замикальної ланки;
,
- відповідно верхнє та нижнє граничні
відхилення збільшувальної ланки;
,
- відповідно верхнє та нижнє граничні
відхилення зменшувальної ланки.
У цих рівняннях нижні і верхні відхилення збільшувальних і зменшувальних розмірів беруть зі своїми знаками.
Допуск замикальної ланки дорівнює:
(14)
тобто допуск замикальної ланки дорівнює сумі абсолютних значень допусків складових ланок.
З цього рівняння можна зробити висновок: чим більше деталей у складальному ланцюзі, тим з більшою точністю треба обробляти їх для забезпечення заданої точності складання.
В інженерній практиці більш широко застосовується метод повної взаємозамінності, особливо в дрібносерійному та ремонтному виробництві.
Обернена задача вирішується у такій послідовності.
Визначають допуск замикальної ланки за заданими граничними відхиленнями цієї ланки:
=
-
=
-
.
(1.5)
Визначають середній квалітет розмірного ланцюга за середнім числом одиниць допуску.
(1.6)
де
-
сума допусків
складових ланок, допуски яких задані;
-
сума одиниць допусків складових ланок,
допуски яких визначаються (табл 1.1).
При цьому квалітет
визначають за величиною числа одиниць
допуску
(табл. 1.2).
Таблиця 1.1 Значення одиниць допуску
|
Інтервал розмірів, мм |
і, мкм |
Інтервал розмірів, мм |
і, мкм |
|
До 3 |
0,60 |
Понад 315 до 400 |
3,60 |
|
Понад 3до 6 |
0,75 |
Понад 400 до 500 |
4,00 |
|
Понад 6 до 10 |
0,90 |
Понад 500 до 630 |
4,40 |
|
Понад 10 до 18 |
1,10 |
Понад 630 до 800 |
5,00 |
|
Понад 18 до 30 |
1,30 |
Понад 800 до 1000 |
5,60 |
|
Понад 30 до 50 |
1,60 |
Понад 1000 до 1250 |
6,60 |
|
Понад 50 до 80 |
1,90 |
Понад 1250 до 1600 |
7,80 |
|
Понад 80 до 120 |
2,20 |
Понад 1600 до 2000 |
9,20 |
|
Понад 120 до 180 |
2,50 |
Понад 2000 до2500 |
11,00 |
|
Понад 180 до 250 |
2,90 |
Понад 2500 до 3150 |
13,50 |
|
Понад 250 до 315 |
3,20 |
Таблиця 1.2 Значення допуску для квалітетів від 5 до 14
|
Позначення допуску |
ІТ5 |
ІТ6 |
ІТ7 |
ІТ8 |
ІТ9 |
|
Значення допуску |
7-і |
10-і |
16-і |
25-і |
40-і |
|
Позначення допуску |
ІТ10 |
ІТ11 |
ІТ12 |
ІТ13 |
ІТ14 |
|
Значення допуску |
64-і |
100-і |
160-і |
250-і |
400-і |
Визначають суму допусків усіх складових ланок
=
(1.7)
Порівняємо допуск
замикаючої ланки з визначеною сумою
допусків усіх складових ланок. Якщо
=
,то
допуски усіх ланок назначені правильно.
Коли


>
,>то допуск
однієї з ланок (коригований) слід
визначити додатково.
Встановлюємо граничні
відхилення складових ланок (крім ланок
із заданими відхиленнями). При визначенні
граничних відхилень складових ланок
часто користуються координатою середини
поля допуску
>
>і половиною
допуску ТА>і>/2.
Граничні відхилення визначають також
за технологічними правилами: для розмірів
охоплювальних поверхонь (діаметр отвору,
ширина паза та інші) відхилення назначають,
як для основного отвору Н
(
= 0); для розмірів охоплюваних поверхонь
(діаметр вала, товщина виступу та інші)
відхилення назначають як для основного
вала h
(
=
0). Для таких розмірів, як глибина отвору,
ширина виступу, між осьова відстань
граничні відхилення приймають симетричним
±
IT/2.
Часто, враховуючи конструктивно-експлуатаційні вимоги, коригують допуски складових ланок так, щоб задовольнялася умова (1.4).
Коли


,
то з числа складових ланок визначають
коригуючу ланку. Її граничні відхилення
визначають за формулою (1.3).
Пзревіряють правильність розрахунку розмірного ланцюга за формулою (1.4).
При розрахунках розмірних ланцюгів із застосуванням положень теорії імовірності визначають число одиниць допуску за формулою:
(1.8)
Для визначення граничних відхилень в розрахунок вводять середнє відхилення, тобто середину поля допуску
,
(1.9)
де
і
підставляються
зі своїми знаками.
Тоді граничні відхилення і-ої ланки
=
+
;
=
-
.
(1.10)
Аналогічні формули для замикальної ланки:
=
+
;
=
-
.
(1.11)
Співвідношення між середніми відхиленнями замикального та складальними ланками має вигляд:
=
(1.12)
Приклад 1. Розрахунок детального розмірного ланцюга ступінчастого вала (див. рис. 1.1, ланцюг А). Номінальні значення ланок. :А>1>=200 мм (збільшувальна), А>2>=115 мм, А>3 >=15 мм (зменшувальні), А>Δ>-замикальна.
Номінальне значення замикальної ланки:
А>Δ> = А>1> - (А>2>+ А>3>) = 200 - (115 + 15) = 70 мм.
Визначаємо допуск
замикальної ланки по 14 квалітету, тоді
=740
мкм (СТ РЕВ
144-88). Приймаємо
симетричні граничні відхилення
А>Δ> =70±0,37 мм.
Визначаємо квалітет розмірного ланцюга:
1)число одиниць допуску [формула (1.6)]:
= 740/(2,9 + 2,2 +1,1)
= 120 од. допуску;
2)обираємо квалітет
за значенням
—11
квалітет (
=100
од. доп.).
Визначаємо допуски складових ланок по табл.3.7 СТ СЗВ 145-88 [ 3 ]:
=290
мкм;
=220
мкм;
=
110 мкм.
Визначаємо суму допусків усіх складових ланок:
=
=
290 + 220 + 110 = 620 мкм,
що менше допуску замикальної ланки.
Приймаємо допуск ланки А>2> по 12 кваттету і зменшуємо його на 10 мкм.
Усі розрахунки зводимо в табл. 1.3.
Таблиця 1.3
|
А>іном> |
і, мкм |
ТА>і> ,мкм |
А>і> ,мм (прийнято) |
|
А>1> |
2,90 |
290 |
200H21(+0,290) |
|
А>2> |
2,20 |
110 |
115H21>(-0,110)> |
|
А>3> |
1,10 |
220 340 ІТ11 ІТ12 |
|
|
А>Δ> |
— |
740 |
70±0,370 |
Визначаємо відхилення складових ланок:
А>1>> >= 200(+0,290), А>3>=115>(-0,110)> , А>Δ>>=>70±0,370.
Ланка А>2>> >вибрана коригованою. Її граничні відхилення визначаємо по формулі (1.3).
=
-
-
;
+0,370=+0,290-
-(-0,110);
=+0,030
мм.
=
-
-
;
-0,370=0-
-0;
=+0,370
мм.
Допуск другої ланки
=
-
=+0,370
- 0,030 = =+0,340 мм.
Перевіряємо виконання умови (1.4):
ТА>Δ>
= 0,740 мм;
=
0,290 + 0,340 + 0,110 = 0,740 мм.
2.2 Розрахунок розмірного ланцюга методом регулювання
При цьому методі необхідна точність замикальної ланки досягається введенням в ланцюг компенсуючої ланки К чи регулюючого пристрою для того, щоб зміною розміру К (без знімання шару металу) чи його положення одержати замикальний розмір, який буде знаходитися у встановлених межах.
Співвідношення між допусками замикальної ланки, складових і можливим зменшенням розміру компенсуючої ланки має вигляд:
(2.1.)
Необхідна компенсація
(2.2)
Компенсуюча ланка може входити в ланцюг як збільшувальний чи зменшувальний розмір.
Якщо К є збільшувальним, то при найбільших значеннях збільшувальних ланок треба поставити компенсатор найменшої величини. Якщо К є зменшувальним, то при найбільших значеннях зменшувальних ланок треба поставити компенсатор найбільшої величини.
Виходячи із цього, формули для визначення номінальних і граничних розмірів К мають вигляд:
для К збільшувальної ланки

(2.3)
д
ля
К
зменшувальної ланки

(2.4)
Формула для визначення відхилень К має вигляд для К - збільшувальної ланки
(2.5)
для К - зменшувальної ланки
(2.6)
Кількість прокладок розраховують за формулою з округленням до цілого числа:
n = (
/
)
+ 1. (2.7)
Товщина змінних прокладок дорівнює (з округленням в бік зменшення):
.
(2.8)
Приклад 2. Розглянемо приклад розрахунку розмірного ланцюга Б.
Номінальні розміри ланок, мм: Б>2>=140, Б>4>=5, Б>5>=15, Б>6>А>Δ>=70, Б>8>=15, Б>9>=5.
Зазор (між правою кришкою і внутрішнім кільцем підшипника кочення) може змінюватись від 0,5 до 1,5 мм. Припускаючи, що номінальний розмір зазору 1 мм, одержимо S = 1 ± 0,5 мм.
Сумарна величина Б>1> і Б>3> є компенсатором. У даному ланцюгові К – збільшувальна ланка, так само як і Б>2>, решта ланок – зменшувальні.
Знаходимо номінальну величину К за формулою (2.3):
1=140-(5+15+70+35+15+5)+К,
тоді К=145-140+1=6 мм.
Розподіляємо номінальний розмір К так, щоб Б>1 >= 3 мм, Б>3 >= 3 мм.
Приймаємо, що виготовлення деталей, які входять до даного редуктору, провадиться за 11 квалітетом. Визначивши величини дропусків за табл. 3.19 і 3.20 СТ СЭВ 145-88 [3], поставимо граничні відхилення в тіло деталі, тобто по ходу обробки спряжених поверхонь.
Ланки Б>5> і Б>8>, ширина кілець підшипника і граничні відхилення за ГОСТ 520-89 становлять Δ>в>=0, Δ>н>=-120 мкм. Тоді Б>5>=Б>8>=15>-0,120>.
Дані для розрахунку розташовуємо в табл. 2.1.
Таблиця 2.1
|
Розміри |
Номінальний розмір, мм |
Ланка в ланцюгу |
Відхилення, мкм |
Допуск, мкм |
|
|
Δ>в> |
Δ>н> |
||||
|
Б>1> |
3 |
К |
розраховуються |
||
|
Б>2> |
140 |
Збільш. |
0 |
-250 |
250 |
|
Б>3> |
3 |
К |
розраховуються |
||
|
Б>4> |
5 |
Зменш. |
+75 |
0 |
75 |
|
Б>5> |
15 |
Те ж |
0 |
-120 |
120 |
|
Б>6> |
70 |
–"– |
+370 |
-370 |
740 |
|
Б>7> |
35 |
–"– |
0 |
-160 |
160 |
|
Б>8> |
15 |
–"– |
0 |
-120 |
120 |
|
Б>9> |
5 |
–"– |
+75 |
0 |
75 |
|
Б>Δ> |
1 |
Замик. |
+500 |
-500 |
1000 |
Підрахуємо величини, необхідні для розрахунків (табл. 2.1);
=1000мкм;
=1540
мкм;




Граничні відхилення компенсатора (для К-збільшуючого) одержимо за формулою (2.4):
+500=0-(-120-370-160-120)+
,
тоді
=
-270 мкм;
-500=-250-(+75+370+75)+
,
тоді
=+270 мкм.
Перевіряємо величину
:
=270-(-270)=540
мкм;
за формулою (2.1) :
1000=1540-540.
Отже, К>max>=6,270 мкм; K>min>> >=5,730 мм.
Приймемо, що Б>1>>min>= 3 мм = S>1>; Б>3>>min>= 2,8 мм = S>2>.
Число змінних прокладок визначаємо за формулою (2.7):
n = (
/
)
+ 1 = (540/1000) = 1,54.
Приймаємо S=2 прокладки.
Товщину прокладок визначаємо за формулою (2.8):
=
540/2=270 мкм = 0,270 мм.
Приймаємо товщину прокладки S=0,30 мм.
Перевіряємо розрахунок компенсотора за формулою:

тобто
6,40 >
6,27 мм.
2.3 Розрахунок розмірного ланцюга методом припасування
У складальної одиниці (рис. 1.1, ланцюг В) розбіжність ділильних конусів колеса і шестерні нормується величиною граничного осьового зміщення зубчатого вінця (ГОСТ 1758-86): f>дм>= ± ±0,048 мм (R>m>=70 мм, δ>2>= 52º, m = 3,5 мм, степінь точності 10-9-8 ГОСТ 1758-86) для конічної передачі.
Дано, мм: В>1 >= 85, В>2> = 18, В>3>Б>8> = 15>(-0,120)> , В>Δ> = f>дм>.
Номінальний розмір замикальної ланки дорівнює :
В>Δ >= В>1 >– (В>2 >+ В>3>Б>8> + В>4>) = 85 – (18 + 15 + 62) = 0.
Таким чином, В>Δ> = ± 0,048 мм.
Допуск ТВ>Δ> = 0,048 – ( - 0,0480) = 0,096 мм.
Визначаємо середню точність розмірного ланцюга за формулою (1.6):

Отже, при допуску ТВ>Δ> = 96 мкм вирішити цей розмірний ланцюг методом повної взаємозамінності неможливо. Необхідно в ланцюг ввести компенсатор. Оскільки вводити в будь-який механізм зайві деталі небажано, призначаємо в ролі компенсатора ланку В>2>, в позначенні якого в зв’язку з цим індекс 2 замінимо на к.
Прийнявши для розмірів ланок економічно припустимий 11 квалітет, визначаємо по ньому для усіх складових ланок, крім компенсуючого, стандартні допуски в “тіло” деталей:
Одержимо: В>1 >= 85H11(+,22); В>3>Б>8>> >= 15h11>(-0,12)>; В>4> = 62h11>(-0,19)>.
Тоді виробничий допуск замикальної ланки Т’>Δ> розширюється:
Т’>Δ>> >= ТВ>1> + ТВ>3> + ТВ>4> = 0,22 + 0,12 + 0,19 = 0,53 мм.
Найбільша розрахункова компенсація:
V>к> = Т’>Δ> - Т>Δ> = 0,530 – 0,096 = 0,434 мм.
Відхилення замикальної ланки, одержане без участі компенсуючої ланки, знайдемо за формулами (1.3):
Δ’>в>В>Δ> = +0,22 – ( -0,12 – 0,19) = 0,530 мм (треба +0,048 мм);
Δ’>н>В>Δ> = 0 – 0 = 0 (треба -0,048).
За розрахунковими (із штрихом) і заданими відхиленнями замикальної ланки знаходимо відхилення компенсуючої ланки (В>2> = В>к >- зменшувальна ланка) за формулою (2.6):
Δ’>в>К = Δ’>в>В>Δ> - Δ>в>В>Δ >= 0,530 – (+0,048) = 0,482 мм;
Δ’>в>К = Δ’>н>В>Δ> - Δ>н>В>Δ> = 0 – (-0,048) = + 0,048 мм.
Розмір компенсатора для припасування визначається його найбільшою величиною (18 + 0,482 = 18,482 мм), оскільки в інших випадках він буде припасовуватись.
Для приготування компенсатора на нього треба призначити допустимий допуск так, щоб його найменший граничний розмір був не менше 18,482 мм. Тоді:
В>к>
= 18,482>(-0,11)>
чи В>к>
=
мм.
Література
1.ГОСТ 16319-80.Цепи размерные М.: Издательство стандартов, 1982.-29 с. Группа Г02.
2. ГОСТ 1б319-80.Цепи размерные. Расчет плоских размерньк цепей. М.: Издательство стандартов, 1982.- 29 с. ГруппаГ02.
З.Единая система допусков и посадок СЗВ в машиностроении и приборостроении: Справочник: В 2 т. -2- изд., перераб. и доп. –М.: Машиностроение, 1989. Т. 1.-263 с., ил.
4.ГОСТ 25346-82 (СТ СЗВ 145-75). Единая система допусков и посадок. Общие положення, ряды допусков и основных отклонений. М.: Издательство стандартов, 1982.-24 с. Группа Г12.
5. ГОСТ 25347-82 (СТ СЗВ 144-75). Единая система допусков и посадок. Поля допусков и рекомендуемые посадки. М.: Издательство стандартов, 1982.-51 с. Группа Г12.
6. ДСТУ 2500-94. Основні норми взаємозамінності. Єдина система допусків та посадок. Терміни та визначення. Позначення і загальні норми. Видання офіційне. К.: Держстандарт України, 1994.-51 с., іл.
7.Методические указания к курсовой работе по дисциплине «Взаимозаменяемость, стандартизация и технические измерения» для студентов специальности №1512 «Механизация сельского хазяйства». Одесса, 1988.-23 с> >ил. Разработал Г. А. Иванов.
8.Допуски и посадки. Справочник. В 2-ч/В.Д. Мягков, М.А. Палей,А Б. Романов, В. А Брагинский. - 6-е изд., перераб. и доп. -Л: Машиностроение, Ленинр. отд-ние, 1983. Ч. 2. 448 с., ил.
9.Дунаев П.Ф., Леликов О.П. Расчет допусков размеров.-М.: Машиностроение, 1981.-189 с, ил.
10. Размерный анализ конструкций: Справочник /С.Г.Бондаренко, О.Н. Чередников, В.П. Губий, Т.М. Игнатцев; Под общ. ред. канд. техн. наук С.Г. Бондаренко. - К: Техника, 1989-150 с., ил.
11.Сірий І.С., Колісник В.С. Взаємозамінність, стандартизація і технічні вимірювання. – К.: Урожай, 1995.-264 с. ISBN 5-337-01622-9.
