Технические измерения
4
. Технические
измерения
4.1. Линейные измерения
Меры длины концевые плоскопараллельные. Широко используются плоскопараллельные концевые меры длины в форме прямоугольного параллелепипеда с двумя плоскими взаимно параллельными измерительными поверхностями. Меры выпускаются по ГОСТу 9038 - 90 из стали марок X, ШХ15, ХГ, 12ХГ и из твердого сплава, а также из кварца классов точности 00; 01; 0; 1; 2; 3. Допуски на размер в зависимости от класса точности находятся в пределах от 0,06 до 1 мкм, а на плоскостность – от 0,05 до 1 мкм. Шероховатость измерительных поверхностей должна быть Rz 0,063 мкм.
За длину l концевой меры принимают длину перпендикуляра, опущенного из данной точки измерительной поверхности концевой меры на ее противоположную поверхность (рис. 4.1, а). Наибольшая по абсолютному значению разность между длиной меры в любой точке и ее номинальной длиной, которая маркируется на боковой поверхности меры (рис. 4.1, 6), составляет отклонение длины меры. Разность между наибольшей и наименьшей длинами определяет отклонение от плоскопараллельности.
Меры поставляются в наборах и россыпью по заказам. Градация: 0,001; 0,005; 0,01; 0,5; 1; 10; 25; 50; 100 мм. Используя свойство притираемости, обеспечивающее прочное сцепление концевых мер, их можно собирать в различные блоки (рис. 4.1, б). Блок следует составлять из возможно меньшего количества мер. Для закрепления блоков мер и удобного пользования при наружных и внутренних измерениях, для проведения точных разметочных работ выпус-
каются наборы принадлежностей к плоскопараллельным концевым мерам типа ПК-1, ПКО-1, ПК-2 и ПК-3 (ГОСТ 4119 - 76).
По допустимой погрешности измерения, допуску на плоскопараллельность и результатам поверки определяют разряд меры. По ГОСТу 166 – 75 предусмотрено пять разрядов (1, 2, 3, 4, 5).
В некоторых случаях измерительные поверхности концевых мер длины выполнены цилиндрическими или сферическими.
Меры длины штриховые. К штриховым мерам длины относятся: брусковые (ГОСТ 12069 - 90), ленточные рулетки (ГОСТ 7502 - 98), линейки измерительные металлические (ГОСТ 427-- 75), складные металлические метры, объект-микрометры, стеклянные штриховые линейки и шкалы.
Брусковые штриховые меры длины применяются для непосредственных измерений в качестве шкал приборов и станков, а также как образцовые для поверки измерительных приборов линейных измерительных преобразователей. Брусковые меры выполняются одно- и многозначными. Однозначные меры имеют два штриха, расстояние между которыми определяет длину меры, многозначные - шкалу штрихов с деци-, санти- и миллиметровыми интервалами. Некоторые меры имеют интервалы между штрихами 0,1 или 0,2 мм. В этом случае в комплект входят лупы с увеличением не менее 7х. Меры изготовляются из инвара, оптического стекла и стали.
По ГОСТу 12069 – 90 предусмотрено девять типов поперечного сечения брусковых мер классов точности 0, 1, 2, 3, 4, 5.
В зависимости от условий аттестации штриховые меры длины могут быть 1, 2 и 3-го разрядов.
Измерительные металлические рулетки выполняются из инвара, нержавеющей стали и светлополированной стальной ленты длиной 1, 2, 5, 10, 20, 30, 40, 50, 75, 100 м. Они выпускаются 2-го и 3-го классов точности. Допускаемые отклонения действительной длины миллиметровых делений рулеток должны быть не более ±0,15 и ±0,20 мм, сантиметровых - не более ±0,20 и ±0,30 мм, дециметровых и метровых - не более ±0,30 и ±0,40 мм для 2-го и 3-го классов точности соответственно.
Измерительные металлические линейки изготовляются из стальной пружинной термообработанной ленты со светлополированной поверхностью длиной до 1 м и с ценой деления 1 мм.
Складные металлические метры изготовляются длиной 1 м и состоят из 10 стальных упругих пластин, соединенных шарнирно. Металлические измерительные линейки должны иметь отклонения между любыми штрихами не более ±0,10 мм для линеек длиной до 300; ±0,15 мм - для линеек длиной от 300 до 500 мм и ±0,20 мм - для линеек длиной от 500 до 1000 мм.
Объект-микрометры вставляются в микроскопы для определения увеличения. Они представляют собой металлическую оправу длиной 76, шириной 76 и толщиной 2 мм. В центр оправы вклеена стеклянная пластина со шкалой, имеющей интервалы между делениями 0,01.
Стеклянные штриховые линейки имеют пять интервалов по 25 мм общей длиной 125 мм. Интервал 60 - 61 мм имеет 10 делений через 0,1 мм.
Ширина штрихов - 0,006 мм; допускаемое отклонение на расстоянии между любыми штрихами ± 0,002 мм; точность аттестации не ниже 0,0005 мм.
Линейка применяется для поверки инструментальных микроскопов.
Шкалы стеклянные. Существуют несколько типов: штриховые, шкалы с крестом, шкалы с крестом и контрольными штрихами. Стеклянные шкалы применяют для поверки измерительных микроскопов, компараторов и проекторов.
Штангенинструменты представляют собой две измерительные губки, одна из которых связана с направляющей штангой, имеющей основную шкалу, а другая - с подвижной рамкой, не-сущей нониус. Принцип действия нониуса осно-
ван на совмещении штрихов основной шкалы и шкалы нониуса. К штангенинструментам относятся штангенциркули, штангенрейсмасы (штангенвысотомеры), штангенглубиномеры, штангензубомеры.
Штангенциркули выпускаются нескольких типов: ШЦ-1 - двусторонние с глубиномером (рис. 4.2, а); ШЦТ-I – односторонние из твердого сплава; ШЦ-II - двусторонние (рис. 4.2, б); ШЦ-III - односторонние (рис. 4.2, в).
Фирмами "Теза" (Швейцария), "Маузер" (ФРГ) и рядом других зарубежных фирм выпускается штангенциркуль со стрелочным отсчетным устройством с ценой деления 0,01 и 0,02 мм (рис. 4.3).
Глубиномер 3 и рамка 2 жестко связаны с зубчатой рейкой 4, передающей движение через трибку 6 стрелке 1 отсчетного устройства 5.
Штангенрейсмасы и штангенглубиномеры. Штангенрейсмасы (штангенвысотомеры) (рис. 4.4, а) предназначены для измерения высот и разметочных работ. Штангенглубиномеры (рис. 4.4, 6) предусмотрены для измерения глубин отверстий и пазов, а также для измерения выступов.
Микрометрические приборы. К микрометрическим приборам относятся микрометры гладкие (рис. 4.5, а), рычажные (рис.
4.5, д), зубомерные (см. рис. 4.49, V), нутромеры (рис. 4.6), глубиномеры (рис. 4.7). Некоторыми зарубежными фирмами выпускаются микрометры с цифровым отсчетом (рис. 4.5, г). Существует также ряд специальных измерительных средств, оснащенных микрометрической головкой.
У микрометрических нутромеров (рис. 4.6) в микрометрическую головку запрессована неподвижная пятка 1; подвижная пятка 6 соединена с микровинтом 5, который крепится в исходном положении стопором 4. Пятки выполнены из твердого сплава и имеют сферические поверхности. К нутромерам с диапазоном измерения от 150 до 6000 мм прикладываются удлинители, которые навинчиваются на резьбу стебля 3, защищенную колпачком 2.
Рычажно-зубчатые приборы. К ним относятся: головки измерительные; скобы с отсчетным устройством; глубиномеры, стенкомеры, толщиномеры и нутромеры индикаторные. На базе измерительных головок создано большое количество различных специальных измерительных приспособлений и приборов.
Рычажно-зубчатые измерительные головки в большинстве случаев имеют общий принцип построения. Технические характеристики приведены в [42].
На рис. 4.8, а приведена кинематическая схема индикатора часового типа ИЧ-2, а на рис. 4.9 - рычажно-зубчатая измерительная головка 1ИГ. Существуют индикаторные головки с цифровым (электронным) отсчетом показаний (рис. 4.10).
Приборы с рычажно-зубчатыми механизмами. Рычажно-зубчатые головки и механизмы применяются в качестве отсчетных устройств в универсальных измерительных приборах в многомерных и переналаживаемых приспособлениях, на станках.
По ГОСТу 11098 - 75 выпускаются скобы с отсчетным устройством типа СИ, оснащенные измерительными головками, и типа СР - со встроенным в корпус отсчетным устройством. По ГОСТу 11358 – 89 выпускаются индикаторные толщиномеры настольного типа ТН и ручные – типа ТР; по ГОСТу 7661 – 67 изготавливаются глубиномеры; по ГОСТу 11358 – 89 –стенкомеры; по ГОСТу 868 – 82, ГОСТу 9244 – 75 – индикиторные нутромеры.
На рис 4.11, а приведена схема индикаторного нутромера для измерения отверстий свыше 18 мм. Внутри трубки 5 перемещается шток 4, на который через рычаг 3 действует подвижная пятка, контактируемая с измеряемым кольцом 7, вторая пятка 6 - неподвижная. Шток 4 соединен со штоком измерительной головки 2. В нутромерах для измерения диаметров отверстий менее 18 мм нижний конец штока 4 выполнен в виде конуса, который действует на подвижные пятки, шарики или подпружиненные сферические поверхности разжимной цанги 8 (рис. 4.11, б).
Пружинные измерительные приборы. В пружинных приборах используются упругие передаточные
(измерительные) механизмы, не имеющие пар с внешним трением. Применение плоских пружин и мембран взамен обычных опор скольжения и вращения обеспечивает их надежную работу в условиях скопления пыли и большой влажности. В пружинных передачах приборов для преобразования малых перемещений измерительного наконечника в значительно большие перемещения указателя используют плоские, прямые, изогнутые или скрученные упругие металлические ленты. Цена деления шкал измерительных головок находится в пределах 0,02 – 10 мкм.
В настоящее время отечественной промышленностью выпускаются микрокаторы типа ИГП, микаторы типа ИПМ, миникаторы типа ИРП и оптикаторы типа 15301.
Базовой моделью пружинных приборов является измерительная пружинная головка (микрокатор) типа ИГП (рис. 4.12). Принцип действия микрокатора основан на зависимости между растяжением тонкой скрученной металлической ленты 5 и поворотом ее среднего сечения со стрелкой 17 относительно продольной оси и относительно шкалы.
С принципиальными схемами остальных пружинных приборов и их метрологическими характеристиками можно познакомиться в [42].
Оптико-механические приборы широко применяют в производственных лабораториях, а также в цеховых условиях при изготовлении изделий, требующих точных линейных и угловых измерений. Оптико-механические приборы разнообразны по конструктивному выполнению и принципу действия. К таким приборам относятся: рычажно-оптические, проекционные и измерительные микроскопы и машины, длиномеры, интерференционные приборы. Повышение точности отсчета и измерений этих приборов достигается либо сочетанием механических передаточных механизмов с оптическим автоколлимационным устройством (оптиметры), либо благодаря значительному увеличению измеряемых объектов или шкал (микроскопы, проекторы и др.), либо измерением параметров интерференционных картин.
Инструментальные и универсальные микроскопы предназначены для измерения длин, углов, элементов резьб, зубчатых передач, конусов и различных профилей изделий. Методы измерений - проекционный и осевого сечения в прямоугольных и полярных координатах.
Инструментальные микроскопы разделяются на малые (рис. 4.13, а) ММИ (малый микроскоп инструментальный) и большие (рис. 4.13, б).
Цена деления микрометрического устройства - 0,005 мм. Цена деления окулярной мерной головки - 1' и 3'. Пределы измерения угловых размеров 0 - 360о.
Наибольшую точность и пределы измерения в продольном направлении до 200 мм и в поперечном - до 100 мм имеют универсальные микроскопы УИМ-21 (рис. 4.15, а), УИМ-23 (рис. 4.15, б) и УИМ-24.
Оптиметры предназначены для линейных измерений контактным относительным методом. В их схеме используется принцип автоколлимации, оптического и механического рычага. Основным узлом оптиметра является трубка с ценой деления шкалы 0,001 мм, пределом измерения ±0,1 мм, увеличение 960х . Механическая часть прибора преобразует перемещение измерительного стержня в угловое перемещение зеркала, а оптическая трубка создает изображение шкалы, которое смещается относительно его исходного положения в зависимости от угла поворота зеркала. Оптиметры выпускают (в зависимости от установки трубки) с вертикальным и горизонтальным расположением оси (рис. 4.16).
Микролюкс, микрозил и оптотест являются разновидностями оптико-механических приборов, в которых используются механические и оптические рычаги в сочетании с качающимся зеркалом или указателем [34].
Вертикальный оптический длиномер ИЗВ предназначен для наружных линейных измерений по шкале (абсолютным методом) от 0 до 100 мм и от 0 до 250 мм. Цена деления шкалы 1 мм. Цена наименьшего деления микроскопа со спиральным нониусом 0,001 мм. Увеличение отсчетного микроскопа 62х. Измерительная сила 1,2 - 2,5 Н.
Для точных наружных и внутренних линейных измерений больших длин, расстояний между осями непосредственно по точным линейным шкалам (абсолютным методом) или сравнением с образцовыми мерами (относительным методом) применяют измерительные машины. Измерительные машины ИЗМ подразделяют по верхним пределам измерения: до 1000 мм (ИЗМ-1), до 2000 мм (ИЗМ-2), до 4000 мм (ИЗМ-4) и до 6000 мм (ИЗМ-6). Пределы измерения внутренних размеров от 13,5 до 150 мм. Цена деления шкал: метровой - 100 мм, стомиллиметровой - 0,1 мм, трубки оптиметра - 0,001 мм. Увеличение трубки оптиметра – 960х.
Характерной особенностью развития современной измерительной техники является переход от экранных к цифровым отсчетным устройствам.
Пневматические приборы могут реагировать на изменение зазора между деталью и выходным соплом, а также на непосредственное изменение диаметра. Они могут быть низкого (до 0,5 МПа) и высокого (свыше 0,5 МПа) избыточного давления, манометрического и ротаметрического типа, дифференциального и недифференциального исполнения.
Дифференциальные средства менее чувствительны к колебаниям давления и обладают лучшими метрологическими возможностями. На рис. 4.17 представлена схема пневматического дифференциального прибора манометрического типа. От пневмосети воздух через фильтр 1, стабилизатор давления 2 с манометром 3 и входные сопла 4 и 10 поступает к выходным соплам 6 и 9, установленным над измеряемыми деталями 7 и 8. Чувствительным элементом является дифференциальный манометр 5, показания которого зависят от разности зазоров S1 и S2 и, следовательно, от разности d1 и d2. Если одно из сопл, например 10, заменяется вентилем противодавления 11, через который воздух выходит в атмосферу, производится измерение одного размера, например d1. По такой схеме созданы приборы моделей 318 и 319. В приборе имеется дополнительный оптический рычаг, в качестве манометра использованы сильфоны.
Схема ротаметрического прибора высокого давления дана на рис. 4.18. Воздух через вентиль 1 и блок 2 фильтра со стабилизатором давления поступает к конической трубке 3, в которой находится поплавок 8, и к вентилю 7 параллельного пропуска воздуха. Пройдя коническую трубку 3 и дроссель 4, потоки объединяются и по раздельным каналам поступают к измерительной оснастке 5 и вентилю 6, через который воздух выходит в атмосферу. В зависимости от размера детали меняется положение поплавка 8 в трубке 3, на которой нанесена шкала. По данной схеме построены длиномеры модели 320.
В длиномерах низкого давления (рис. 4.19) чувствительным элементом является водяной манометр 4, соединенный с водяным стабилизатором давления 3. При изменении зазора между оснасткой 6 и измеряемой деталью меняется положение водяного столба в манометре 4 относительно шкалы 5. Воздух к оснастке 6 поступает через кран 1, блок фильтра со стабилиза-
тором давления 2 и входное сопло 7. Аналогичная схема для длиномеров модели 330.
Технические характеристики пневматических приборов приведены в [42]. В комплект вместе с пневматическими приборами входят пробки пневматические (ГОСТ 14864 - 78) и кольца установочные (ГОСТ 14865 - 78). Для очистки и стабилизации воздуха выпускаются фильтры, стабилизаторы давления и блоки фильтров со стабилизаторами.
4.2. Угловые измерения
Во многих изделиях машиностроения применяют узлы и детали, качество работы которых зависит от точности их угловых размеров. Такими узлами и размерами являются, например, подшипники с коническими роликами, направляющие типа "ласточкин хвост", концы шпинделей металлорежущих станков, концы инструментов, углы оптических призм и т. д.
Величину угла при измерении определяют следующими методами:
сравнением с жесткой мерой (угловые меры, угольники, шаблоны, конические калибры, многогранные призмы);
сравнением со штриховой мерой (различные виды круговых и секторных шкал, гониометры);
тригонометрическими методами (по значениям линейных размеров).
Жесткие угловые меры предназначены для передачи размера плоского угла от эталонов к образцовым и рабочим угловым мерам, поверки и градуировки угломерных приборов и специальных угловых мер (шаблонов), а также для непосредственного измерения угловых изделий.
По ГОСТу 2875 - 88 "Меры плоского угла призматические. Общие технические условия" предусмотрено пять типов угловых мер (рис. 4.20): меры типа 1 выполнены со срезанной вершиной угла и имеют малые (до 9о) значения рабочих углов; меры типа 2 имеют острую вершину рабочего угла, охватывают диапазон от 10 до 79о; меры типа 3 выполнены с четырьмя рабочими углами в диапазоне 80 – 100о; меры типа 4 - призматические с равномерным угловым шагом; меры типа 5 – с тремя рабочими углами: = 15о, = 30о, = 45о.
Угловые меры изготавливают из высококачественных сталей, а меры типа 1 могут изготовляться из кварцевого и оптического стекла.
По ГОСТу 2875 – 88 для угловых мер 1, 2 и 3 типов установлены классы точности 0, 1 и 2 с допусками на изготовление соответственно 3, 10, 30; для типа 4 – классы точности 00, 0, 1 и 2; для типа 5 – класс точности 1. Образцовые меры аттестуются по 2, 3 и 4-му разрядам в зависимости от погрешности аттеста-
ции, которая соответственно не должна превышать 1, 3, 6.
Угольники служат для проверки взаимной перпендикулярности поверхностей и имеют угол 90о. Существует два вида угольников: лекальные, обеспечивающие контакт по линии (для этого одной из сторон придана форма кромки с радиусом закругления 0,1 – 0,3 мм); с плоскими рабочими поверхностями.
Стандартом предусмотрены три класса точности (0, 1, 2) угольников. Они выпускаются: в виде прямоугольника (рис. 4.21, а ), угловые (рис.4.21, б ) и цилиндрические (рис. 4.21, в).
Несовпадение сторон угольника и измеряемого угла определяют визуально по просвету между стороной угольника и деталью или с помощью щупа.
Сравнение с жесткой мерой широко применяют при контроле конических сопряжений. В этом случае жесткой мерой является конический калибр. При этом проверяются как диаметр (по осевому смещению), так и угол конуса (по краске).
Механические угломеры предназначены для контактных измерений углов. Выпускается три типа угломеров: УН – с отсчетом по нониусу 2 или 5 (рис. 4.22); УМ – с отсчетом по нониусу 2 или 5 (рис. 4.23); УГ - с отсчетом по нониусу 10 упрощенной конструкции; УО – оптический угломер (рис. 4.24).
Гониометры (рис. 4.25) являются наиболее точными оптическими приборами для бесконтактного измерения углов и предназначены для измерения углов между плоскими гранями, хорошо отражающими световые лучи. Измерение углов возможно как на непрозрачных, так и на прозрачных телах.
Делительные головки применяются для измерения углов при использовании устройств, фиксирующих требуемое угловое положение граней или других элементов детали. Отсчетные устройства делительных головок бывают как механическими (лимб с нониусом), так и оптическими рис. 4.26).
Уровни служат для измерения малых угловых отклонений от горизонтальной плоскости. Наиболее распространены в промышленности жидкостные уровни. Они относятся к гониометрическим средствам измерений, так как имеют угловую шкалу, нанесенную на дуге окружности. Чувствительным элементом таких уровней является стеклянная ампула с жидкостью.
Эти приборы предназначены как для измерения углов отклонения от горизонтали (природного эталона), так и для установки поверхности изделия в заданном относительно горизонтали положении.
Выпускаются брусковые и рамные уровни с ценой деления ампул 4", 10", 20", 30", которые на приборе представлены в радианной мере (0,1 мм/м соответствует 20"). В некоторых приборах ампула применяется не для измерения отклонений углов, а для определения горизонтального положения узла прибора, в который она встроена.
В микрометрических уровнях показания снимают по микрометрическому винту, перемещающему ампулу. Микрометрические уровни выпускаются типа 1 с ценой деления 2" и типа 2 с ценой деления 20" (рис. 4.27).
Промышленностью выпускаются индуктивные уровни с ценой деления 2 – 20", гидростатические уровни. Для измерения углов можноиспользовать круговые измерительные преобразователи типа "Индуктосин", "Оптосин" (круговые перемещения преобразуются в электрический сигнал), а также кольцевые оптические квантовые генераторы.
Средства измерений, основанные на тригонометрическом методе. Типичными примерами реализации тригонометрических методов измерений углов являются измерения с помощью так называемых синусных линеек и координатные методы.
Синусная линейка (рис. 4.28) представляет собой простую схему: два круглых цилиндрических ролика одинакового диаметра укреплены на концах столика так, чтобы их оси были параллельными. Расстояние L между осями роликов имеет жесткий допуск и точно аттестовано. Это расстояние при установке синусной линейки на требуемый угол имитирует гипотенузу прямоугольного треугольника. Катет этого треугольника h воспроизводится блоком плоскопараллельных концевых мер, подкладываемым под один из роликов (см. рис. 4.28). Рабочим углом установленной синусной линейки является угол 1, отличающийся от расчетного на погрешность установки.
При измерении на синусной линейке (рис. 4.29) размер h блока мер, который надо подставить под ролик, чтобы наклонить столик на такой же угол , какой должно иметь измеряемое изделие, определяют из уравнения
h = Lsin. Затем блок подставляют под ролик, к которому направлена вершина измеряемого угла.
Измерение угла заключается в определении отклонения в положениях I и II от указанной параллельности, что делают чаще всего с помощью контактной измерительной головки (оптиметра, пружинной головки и т. д.), укрепленной на универсальной стойке.
Стандартные синусные линейки изготовляют трех типов: без опорной плиты (тип I); с опорной плитой (тип II) и двухнаклонные во взаимно перпендикулярных направлениях (тип III). Линейки каждого типа имеют два класса точности: 1 и 2.
Синусную линейку можно применять и для измерения внутренних углов, например, конусных отверстий. Для этого необходимо иметь рычаг, вводимый в измеряемое отверстие.
Использование роликов и шариков для измерения наружных и внутренних конусов. При известных диаметрах шариков и роликов, а также высоте h блока плоскопараллельных концевых мер измеряют размеры l1 и l2 (рис. 4.30) и рассчитывают искомый угол конуса.

По схеме, приведенной на рис 4.30, а, угол определяется по формуле
, а по схеме, приведенной на рис 4.30, б, –
по формуле
.
По такому же принципу измеряют конусность с помощью двух калиброванных колец с заранее известными диаметрами D, d и толщиной h (рис. 4.30, в). Расстояние Н измеряют после надевания колец на конус.
Угол рассчитывают по формуле
.
4.3. Альтернативный метод контроля изделий
Альтернатива (от лат. alter - один из двух) означает "каждая из исключающих друг друга возможностей".
Контроль по альтернативному признаку - это контроль по качественному признаку, в ходе которого каждую проверенную единицу продукции относят к категории годных или дефектных. При этом методе устанавливается факт соответствия контролируемого параметра контрольному нормативу.
Альтернативный контроль может быть: элементным или комплексным; одно- и многомерным; неавтоматическим, механизированным, полуавтоматическим, автоматическим; пассивным или активным.
Альтернативный контроль осуществляется измерительными средствами, специально предназначенными для этой цели.
На схеме (рис. 4.31) приведена классификация средств и методов альтернативной проверки годности параметров изделий. При альтернативной проверке наиболее широко используются калибры. Большинство видов и конструкций калибров стандартизовано.
4.3.1. Калибры для гладких цилиндрических деталей
Для контроля гладких цилиндрических изделий типа валов и втулок, особенно в крупносерийном и массовом производстве, широко применяют предельные гладкие калибры (ГОСТ 2216 - 84). Калибры для валов называются скобами, а для отверстий - пробками. Комплект калибров состоит из проходного и непроходного (рис. 4.32, а).
Годность деталей с допуском от IТ6 до IТ17, особенно при массовом и крупносерийном производствах, наиболее часто проверяют предельными калибрами. Комплект рабочих предельных калибров для контроля размеров гладких цилиндрических деталей состоит из проходного калибра ПР (им контролируют предельный размер, соответствующий максимуму материала проверяемого объекта) и непроходного калибра НЕ (им контролируют предельный размер, соответствующий минимуму материала проверяемого объекта).
Альтернативная проверка годности геометрических параметров изделий
Меры
Измерительные устройства
С постоянным зна-
чением: плоскопа-
раллельные концевые меры, угловые меры, набор принадлеж-
ностей
Калибры
С переменным значением: штри-
ховой метр, рулетка, масштабная ли-
нейка, лимб
Простей-шие
Уни-версаль-ные
Спе-циальные
Виды проверки: Однопредельная, двухпредельная, элементная, ком-
плексная
Типы калибров: нормальные, пре-
дельные, конт-рольные, устано-
вочные, специальные
Щупы
Линейки лекальные
Угольники лекальные
Штангенин-
струменты
Измерительные приборы шкальные с указателями пределов сортировки или годности
Приборы активного контроля
Преобразователи и датчики
Измерительные приборы
Измерительные приспособления
Измерительные установки и системы
Полуавтоматы и автоматы
Рис. 4.31. Классификация средств и методов альтернативной проверки годности параметров изделий
Деталь считают годной, если проходной калибр (проходная сторона калибра) под действием собственного веса или усилия, примерно равного ему, проходит, а непроходной калибр (непроходная сторона) не проходит по контролируемой поверхности детали. В этом случае действительный размер детали находится между заданными предельными размерами.
Рабочие калибры ПР и НЕ предназначены для контроля изделий в процессе их изготовления. Этими калибрами пользуются рабочие и контролеры ОТК завода-изготовителя, причем в последнем случае применяют частично изношенные калибры ПР и новые калибры НЕ.
Для установки регулируемых калибров-скоб и контроля нерегулируемых калибров-скоб применяют контрольные калибры К—И, которые являются непроходными и служат для изъятия из эксплуатации вследствие износа проходных рабочих скоб. Несмотря на малый допуск контрольных калибров, они все же искажают установленные поля допусков на изготовление и износ рабочих калибров, поэтому контрольные калибры по возможности не следует применять. Целесообразно, особенно в мелкосерийном производстве, контрольные калибры заменять концевыми мерами или использовать универсальные измерительные приборы.
Валы и отверстия с допуском IТ5 и точнее не рекомендуется проверять калибрами, так как они вносят большую погрешность измерения. Такие детали проверяют универсальными измерительными средствами.
Для снижения затрат на калибры стремятся увеличить их износостойкость. Так, износостойкость калибров, оснащенных твердым сплавом, в 50—150 раз выше по сравнению с износостойкостью стальных калибров и в 25—40 раз выше по сравнению с износостойкостью хромированных калибров при повышении стоимости калибров только в 3—5 раз.
Для контроля валов используют главным образом скобы. Наиболее распространены односторонние двухпредельные скобы. Применяют также регулируемые скобы, которые можно настраивать на разные размеры, что позволяет компенсировать износ и использовать одну скобу для измерения размеров, лежащих в определенном интервале. Регулируемые скобы по сравнению с жесткими имеют меньшую точность и надежность, поэтому их чаще применяют для контроля изделий квалитета 8 и грубее.
При конструировании предельных калибров для гладких, резьбовых и других деталей следует соблюдать принцип подобия Тейлора, согласно которому проходные калибры по форме должны являться прототипом сопрягаемой детали с длиной, равной длине соединения (т. е. калибры для валов должны иметь форму колец), и контролировать размеры во всей длине соединения с учетом погрешностей формы деталей. Непроходные калибры должны иметь малую измерительную длину и контакт, приближающийся к точечному, чтобы проверять только собственно размер детали. Таким образом, изделие считают годным, когда погрешности размера, формы и расположения поверхностей находятся в поле допуска.
На практике приходится отступать от принципа Тейлора вследствие неудобств контроля, например, проходным кольцом, так как это требует многократного снятия детали, закрепленной в центрах станка. Вместо контроля проходными кольцами применяют многократный контроль проходными скобами с широкими измерительными поверхностями, а вместо штихмасов — непроходные калибры-пробки с малой (значительно меньше, чем у проходной пробки) шириной измерительных поверхностей.
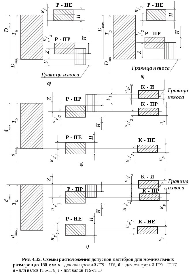
Допуски калибров. Схемы расположения полей допусков калибров приведены на рис. 4.33 и 4.34 со следующими обозначениями: d (D) – номинальный размер изделия; dmin (Dmin) – наименьший предельный размер изделия; dmax (Dmax) – наибольший предельный размер изделия; Т – допуск изделия.
По ГОСТу 24853 - 81 на гладкие калибры устанавлены следующие допуски на изготовление: Н – допуск на изготовление калибров для отверстия (за исключением калибров со сферическими измерительными поверхностями); НS – допуск на изготовление калибров со сферическими измерительными поверхностями для отверстия; Н1 – допуск на изготовление калибров для вала; НР – допуск на изготовление контрольного калибра для скобы; Z – отклонение середины поля допуска на изготовление проходного калибра для отверстия относительно наименьшего предельного размера изделия; Z1 – отклонение середины поля допуска на изготовление проходного калибра для вала относительно наибольшего предельного размера изделия; у – допустимый выход размера изношенного проходного калибра для отверстия за границу поля допуска изделия; у1 – допустимый выход размера изношенного проходного калибра для вала за границу поля допуска изделия; - величина для компенсации погрешности контроля калибрами отверстий с размерами свыше 180 мм; 1 – величина для компенсации погрешности контроля калибрами валов с размерами свыше 180 мм.
Для проходных калибров, которые в процессе контроля изнашиваются, кроме допуска на изготовление, предусматривается допуск на износ.
Для размеров до 500 мм износ калибров ПР с допуском до IТ8 включительно может выходить за границу поля допуска детали на величину y для пробок и y1 - для скоб; для калибров ПР с допусками от IТ9 до IТ17 износ ограничивается проходным пределом, т. е. y = 0 и y1 = 0.


Следует отметить, что поле допуска на износ отражает средней возможный износ калибра.
Для всех проходных калибров поля допусков Н (НS) и Н1 сдвинуты внутрь поля допуска изделия на величину Z для калибров-пробок и Z1 - для калибров-скоб.
При номинальных размерах свыше 180 мм поле допуска непроходного калибра также сдвигается внутрь поля допуска детали на величину для пробок и 1 - для скоб, создавая так называемую зону безопасности, введенную для компенсации погрешности контроля калибрами соответственно отверстий и валов размером свыше 180 мм. Поле допуска калибров НЕ для размеров до 180 мм симметрично относительно верхнего отклонения детали для пробок и относительно нижнего — для скоб, т. е. = 0 и
1 = 0.
Сдвиг полей допусков калибров и границ износа их проходных сторон внутрь поля допуска детали позволяет устранить возможность искажения характера посадок и гарантировать получение размеров годных деталей в пределах установленных полей допусков.
На рис.4.35 приведены схемы нестандартных конструкций калибров. Калибр для проверки формы заданного профиля представлен на рис. 4.35, а. Нормальный калибр 1 используется в сочетании с гладким двухпредельным калибром-пробкой 2. На рис. 4.35, б представлен вариант проверки зазора С между калибром 2 и деталью 1. На рис. 4.35, в дана схема использования специального стрелочного калибра для контроля глубины детали 1. По просвету С контролируется мальтийский крест калибром, приведённым на рис. 4.35, г. Для контроля перпендикулярности с использованием щупа приведён калибр на рис. 4.35, д.
4.3.2. Контроль размеров высоты и глубины [42]
По ГОСТу 25346 - 89 все элементы деталей разделяются на три группы: валы, отверстия и элементы, не относящиеся ни к валам, ни к отверстиям. Размеры высоты и глубины относятся к третьей группе.
На размеры высоты и глубины могут назначаться любые поля допусков, но, как правило, для них назначаются квалитеты не точнее 11-го и чаще симметричные поля допусков (Js, J).
Контроль размеров высоты и глубины можно производить универсальными измерительными средствами либо двухпредельными калибрами. В серийном производстве, как правило, используются калибры. Конструкции и принципы действия таких калибров приведены на рис. 4.36. В данных калибрах используются следующие методы: "световой щели" (или "на просвет") - на калибрах, показанных на рис. 4.36, а, б, в; "надвигания" - на калибрах рис. 4.36, г, д, е; "осязания" - на калибрах рис. 4.36, ж, з; "по рискам" - на рис. 4.36, и, к.
Конструкции, размеры и допуски калибров для контроля высоты и глубины устанавливает ГОСТ 2534-77 "Калибры предельные для глубин и высот уступов. Допуски". По этому госстандарту стандартизованы конструкции калибров типов, изображённых на рис. 4.36, а - е.
Предельные стороны калибров обозначаются буквами Б (большая) и М (меньшая). Каждая из сторон калибров (Б и М) должна иметь лезвиеподобную грань для уменьшения погрешностей контро-
ля (см. рис. 4.36, а, б, в) вследствие неровностей на обработанных поверхностях и плоскую грань (направляющую), улучшающую условия оценки величины просвета. При контроле размеров уступов плоских деталей удобны калибры, изображённые на рис. 4.36, г, д. При контроле уступов на точёных деталях удобны калибры (рис. 4.36, е, з). Для контроля размеров глубин целесообразно использовать калибры типов, представленных на рис. 4.36, ж, к. Калибрами по методу "световой щели" контролируются допуски не менее 0,06 мм.
4.3.3. Контроль конусов и углов
Калибры для контроля конусов и углов могут основываться на сравнительном либо тригонометрическом методе измерения углов. На рис. 4.37 приведены схемы, разъясняющие принципы построения и использования сравнительного и тригонометрического методов при контроле. На рис. 4.37, а изображена схема сравнительного контроля (измерения) угла детали 1 с помощью угловой меры 3 с использованием щупа 2. Контроль гладких конических изделий конусными калибрами производится по относительному осевому перемещению Zк изделия и калибра в пределах осевого допуска (разность между верхним и нижним осевыми отклонениями проверяемого конуса).
Конструкция калибра на рис. 4.37, б позволяет использовать одновременно контроль сравнительным и тригонометрическим методами; Zк - расстояние, равное допуску базорасстояния проверяемого конуса. Сущность использования для контроля тригонометрического метода можно понять, анализируя рис. 4.37, в, г, д.
К
Рис. 4.36. Стандартизованные типы
калибров для конусов
онусный калибр-пробка (см. рис. 4.37, в) входит в деталь, имеющую конус, годный по углу и о диаметрам. На рис. 4.37, г, д конические поверхности не отвечают заданным требованиям.
Проверяемая деталь смещается в осевом
направлении вследствие того, что больший
диаметр конуса оказался больше наибольшего
предельного размера, а угол конуса -
меньше наименьшего предельного угла
(см. рис. 4.37, г). На рис. 4.37, д проверяемая
деталь смещается в противопол





ожном
направлении вследствие того, что больший
диаметр оказался меньше, чем наименьший
предельный размер, а угол конуса - больше,
чем наибольший предельный размер.
Соответствие угла конуса допуску
дополнительно проверяют "на краску".
Д




ля
контроля гладких конических поверхностей
по ГОСТу 2849 - 94 стандартизо-ваны два типа
калибров: тип 1 – без лапки и тип 2 - с
лапкой (рис. 4.38). Комплект калибров
состоит из калибра-пробки, калибра-втулки
и контркалибра-пробки. Калибр-втулка
припасовывается к парному с ним калибру
контрольным калибром по краске;
толщина слоя краски для разных конусов колеблется в пределах от 2 до 5 мкм. Пятно контакта должно быть не менее 90%.
Контроль и измерение углов и конусов универсальными средствами изложен в п. 4.2.
4.4. Измерения формы и расположения поверхностей
Проверка отклонений формы поверхностей в большинстве случаев производится путём измерения на универсальных или специальных измерительных приборах. Однако в ряде случаев оказывается целесообразным использовать методы альтернативной проверки и, в частности, применять калибры специальной конструкции (см. рис.4.35, а, б).
Типы, конструкции и точность изготовления измерительных поверхностей таких калибров не стандартизованы. Принцип их конструирования и использования основывается на выполнении основного положения об отклонении формы, которое представляет собой наибольшее расстояние между точками реальной поверхности и соответствующими точками прилегающей поверхности, определяемое по нормали к прилегающей поверхности.
Для контроля прямолинейности оси поверхностей большой протяжённости используются калибры, сконструированные по принципу калибров расположения. Они представляют собой контрдеталь размером, соответствующим размеру проходного калибра с количеством материала, уменьшенным на величину допуска прямолинейности. Так, номинальный размер проходной пробки для контроля зависимого допуска прямолинейности dн = dПР.изн - TF ,
где dПР.изн - размер полностью изношенной проходной пробки для контроля отверстия; TF - допуск прямолинейности оси отверстия.
Длина такого проходного калибра не должна быть меньше длины соединения.
Для измерения отклонения от прямолинейности используют линейки поверочные типа ЛД, ЛТ и ЛЧ; для измерения плоскостности - линейки поверочные типа ШП, ШД, ШМ и УТ. Линейки изготовляют по ГОСТу 8026 - 92: линейки типа ЛД, ЛТ и ЛЧ - из стали марок Х и ШХ 15; типа ШП и ШД - из стали марок У7 и 50 и типа ШМ и УТ - из серого чугуна. Согласно ТУ 2-034-806 - 76 линейки выпускаются хромированными. Освоен выпуск линеек поверочных из твердокаменных пород.
Для измерения плоскостности по ГОСТу 10905 - 86 выпускаются чугунные поверочные плиты и по ТУ 2-034-802 - 74 - плиты поверочные из твердокаменных пород (гранита, диорита, диабаза и габбро).
Измерение прямолинейности поверхностей с помощью лекальных линеек можно производить "на просвет" и методом линейных отклонений. В первом случае ребро лекальной линейки помещают на поверяемую поверхность и на глаз оценивают просвет между ними. Невооруженным глазом можно обнаружить просвет в 1 - 2 мкм. Во втором случае линейку укладывают на две опоры равного размера, расположенные на поверяемой поверхности, и определяют расстояние между поверяемой и рабочей поверхностями линейки с помощью щупов, концевых мер длины или специальными приборами с отсчетным устройством.
Для измерения прямолинейности вертикальных поверхностей широко используется метод натянутой струны [21].
Шаброванные плиты типа ШМ широко применяют в качестве образцовых поверхностей при оценке неплоскостности по методу "пятен на краску". Критерием хорошей плоскостности является равномерное распределение окрашенных пятен (краска – берлинская лазурь или сажа) по всей поверхности [21].
Плоскостность можно измерить сферометром и карусельным плоскомером.
Сферометр (рис. 4.39) состоит из корпуса 1 с тремя жесткими опорами 2, 3 и 4, образующими исходную плоскость. В центре корпуса помещен микрометрический винт 5 (отсчетное устройство).
Карусельный плоскомер (рис. 4.40) имеет измерительную головку 1, которая закреплена на передвижной консоли 2, размещенной на колонке
3. Колонка 3 имеет возможность поворачиваться в кронштейне 5, который, в свою очередь, поворачивается вокруг колонки 4, связанной с основанием 6. Перед началом измерения, регулируя винты 7, добиваются, чтобы показания головки 1 в трех базовых точках, определяющих исходную плоскость, были равны нулю. Затем, вращая кронштейн 5 и колонку 3, можно измерять плоскостность в любой точке измеряемой поверхности 8 в радиусе r.
Проверка отклонений расположения может осуществляться универсальными измерительными средствами либо калибрами расположения.
Нашли применение системы одноэтапного и двухэтапного контроля расположения с помощью комплексных калибров.
Конструкции калибров могут быть различными и определяются конструкцией детали и положением контролируемых поверхностей. Калибры могут быть цельными и составными.
Расчёт размеров комплексных калибров для одноэтапной, наиболее распространённой схемы контроля, осуществляется в соответствии с
ГОСТом 16085-80.
4.5. Контроль и измерение шероховатости
При контроле и измерении шероховатости поверхностей пользуются методом визуальной оценки, контактными и бесконтактными профильными методами, к которым относятся: методы светового сечения, теневой проекции, микроинтерференционный и растровый методы. В тех случаях, когда не представляется возможным непосредственно измерить шероховатость поверхности, с измеряемой поверхности снимают слепок и определяют параметры шероховатости поверхности по слепку.
При визуальной оценке поверяемую поверхность сравнивают с образцами шероховатости поверхности, которые выпускают по ГОСТу 9378 - 93 (ИСО 2632-1 – 85 и ИСО 2632-2 - 85). Образцы шероховатости изготовляют плоскими или цилиндрическими с поверхностью сравнения не менее 30х30 мм. На каждом образце наносят номинальное значение параметра Ra в микрометрах. По требованию заказчика вместе с параметром Ra может быть нанесено действительное значение параметра Rz как справочное. Образцы шероховатости комплектуются в наборы или изготовляются отдельными образцами по видам обработки и материалам, из которых они изготовлены. Сравниваемые поверхности и образцы шероховатости должны иметь тот же вид обработки и материал.
Сравнение поверхностей детали и образца невооруженным глазом дает удовлетворительные результаты только для грубых поверхностей (приблизительно от Ra = 0,6 - 0,8 мкм и более). Точность при визуальной оценке шероховатости может быть повышена в случае применения лупы или микроскопов сравнения, например, микроскопа модели МС-48. В некоторых случаях можно производить сравнение поверяемой поверхности с поверхностью специально изготовленных образцовых деталей.
К приборам, которые производят измерение контактным профильным методом, относятся профилографы и профилометры. Профилографы регистрируют координаты профиля поверхности на записывающем приборе. Профилометры измеряют параметры шероховатости и фиксируют их на шкале. В России профилографы и профилометры выпускаются по ГОСТу 19300 - 86 заводом "Калибр". В некоторых моделях профилографы и профилометры объединены в одном приборе. В качестве щупа в них используется острозаточенная алмазная игла, перемещающаяся по неровностям. Механические колебания иглы преобразуются в электрический сигнал. Радиус кривизны вершины иглы выбирается из ряда 2+2; 5± 1; 10±2,5 мкм.
Отечественной промышленностью освоен ряд моделей профилометров и профилографов: модели 201 и 252 для лабораторных условий, а модели 253, 283 и др. – для цеховых условий.
На рис. 4.41 представлен общий вид профилометра для измерения в цеховых условиях модели 283. На основании 7 закреплена колонка, на которой расположен привод 3 с измерительным преобразователем 2. На рычаге преобразователя закреплена алмазная ощупывающая игла 1. На основании 7 также располагаются различные приспособления для установки и ориентации деталей, подлежащих измерению (например, призма 8). Сигнал от преобразователя усиливается, проходит фильтры отсечек шага, детектируется, интегрируется и фиксируется стрелочным прибором 6. Показывающий стрелочный прибор расположен на передней панели электронного блока 4, на котором размещены также тумблер включения прибора в сеть, сигнальные лампы движения преобразователя по измеряемой поверхности, переключатели 5 диапазонов измерения и кнопка хода пуска преобразователя.
Профилографы и профилометры выпускают также зарубежные фирмы: "Рэнк Тэйлор Гобсон" (Англия) выпускает прибор "Тэлисурф-4" с компьютером, обеспечивающий автоматическую поверку увеличений, калибровку и хранение в оперативной памяти информации о профиле поверхности, что позволяет определять за один проход значения всех параметров шероховатости, а также приборы типа "Суртроник-3" для измерения параметра Ra в цеховых условиях и типа "Телисурф-10" для высокоточных измерений различных параметров шероховатости; фирма "Мицутойо" (Япония) выпускает прибор типа "Сурфтест З", предназначенный для измерения параметра Ra и записи профиля в прямоугольной системе координат на бумажную ленту; фирма "Хоммельверке" (ФРГ) выпускает профилометр-профилограф типа "Хоммель-Тестер Т10" для лабораторных условий, профилометр типа "Хоммель-Тестер Р5" с пьезоэлектрическим преобразователем и батарейным питанием для цеховых условий, а также профилометр-профилограф типа "Хоммель-Тестер Т2" для работы в цеховых и лабораторных условиях.
Бесконтактный контроль параметров шероховатости осуществляют с помощью приборов светового сечения типа МИС-11 и ПСС-2, микроинтерферометров типа МИИ-4 и имерсионно-репликовых микроинтерферометров МИИ-10, МИИ-9, МИИ-11, МИИ-12, растровых измерительных микроскопов типа ОРИМ-1 и др.).
В бесконтактных приборах (типа ПСС-2 и МИС-11), принцип действия которых основан на измерении параметров проекции светового сечения исследуемой поверхности с помощью наклонно направленного к ней светового пучка (рис. 4.42, а), световой луч проходит через диафрагму 1 с узкой щелью и конденсор 2 и проецирует световую полоску поверхности 3 объективом 4 в фокальную плоскость окуляра 5. Высоту микронеровностей измеряют с помощью окуляра-микрометра (рис. 4.42, б).
Принцип действия приборов теневого сечения аналогичен принципу действия приборов светового сечения. В приборах теневого сечения рассматривается тень, искривленная неровностями поверхности. Тень создается ножом, прикладываемым к поверяемой поверхности.
Принцип действия интерферометров основан на использовании явления интерференции света, отраженного от образцовой и исследуемой поверхностей. Форма образующихся интерференционных полос зависит от вида и высоты (до 1 мкм) неровностей контролируемой поверхности.
Принцип действия растровых микроскопов основан на явлении образования муаровых полос при наложении изображений элементов двух периодических структур (направленных следов обработки и дифракционной решетки). При наличии неровностей муаровые полосы искривляются. Высоту микронеровностей определяют по степени искривления муаровых полос.
4.6. Контроль и измерение резьбы [50, 35]
Точность резьбы можно контролировать дифференцированным (контроль каждого параметра в отдельности) и комплексным (контроль расположения контура резьбы в предписанном поле допуска) методами. Метод контроля каждого параметра резьбы в отдельности (среднего диаметра, шага и угла профиля) трудоемок, поэтому его применяют для точных резьб: ходовых винтов, резьбовых калибров, метчиков и т. п. Иногда по результатам контроля отдельных параметров судят (после вычислений) о комплексном параметре, например, о приведенном среднем диаметре резьбы. Комплексный контроль резьб выполняют либо с помощью предельных калибров, либо с помощью проекторов и шаблонов с предельными контурами.
4.6.1. Контроль резьбы калибрами
В систему калибров входят рабочие гладкие и резьбовые проходные (Р-ПР) и непроходные (Р-НЕ) калибры, а также контркалибры (КПР-ПР, КНЕ-ПР, У-ПР, КНЕ-НЕ, КИ-НЕ, У-НЕ) для проверки и регулирования (установки) рабочих резьбовых скоб и колец.
Свинчиваемость рабочего резьбового проходного калибра с резьбой или вхождение на нее скобы означает, что приведенный средний, наименьший внутренний для болта и наибольший наружный для гайки диаметры не выходят за проходные предельные значения. Непроходными резьбовыми калибрами контролируют только собственно средний диаметр резьбы — в случае годности резьбы они не должны свинчиваться с проверяемой резьбой более, чем на два оборота.
Резьбу гаек проверяют с помощью предельных резьбовых калибров — пробок, резьбу болтов — жесткими или регулируемыми резьбовыми кольцами или скобами.
Проходные резьбовые калибры (ПР) имеют полный профиль и длину свинчивания. Они являются как бы прототипами сопрягаемых деталей. Ими контролируют приведенный средний диаметр и одновременно наибольший внутренний диаметр наружной резьбы и наименьший наружный диаметр внутренней резьбы. Непроходные резьбовые калибры (НЕ) имеют укороченный профиль и служат для проверки собственно среднего диаметра резьбы - наименьшего для болта и наибольшего для гайки.
Наружный диаметр наружной резьбы и внутренний диаметр внутренней резьбы контролируют гладкими калибрами или универсальными средствами измерений.
Резьбовые и гладкие калибры для метрической резьбы цилиндрической и конической, трубной цилиндрической, соединяемой с трубной конической, изготовляются по ГОСТу 24939 – 81.
Износ калибра-кольца контролируется контрольным калибром-пробкой К-И. Калибр-скоба Р-ПР устанавливается по контркалибру-пробке У-ПР, а Р-НЕ – по контркалибру-пробке У-НЕ.
Допуски резьбовых калибров. Расположение полей допусков среднего диаметра калибров для контроля наружной резьбы показано на рис. 4.43, а, внутренней — на рис. 4.43, б. Допуски и величины, определяющие положение полей допусков и предел износа калибров, регламентируются по ГОСТу 24997 - 81. Допуски всех контркалибров, приведенных на рис. 2.43, одинаковы и равны ТСР.
Обозначения: ТPL - допуск наружного и среднего диаметра резьбового проходного и непроходного калибров-пробок; ТR - допуск внутреннего и среднего диаметра резьбового проходного и непроходного калибров-колец; WGO - величина среднедопустимого износа резьбовых проходных калибров-пробок и калибров-колец; WNG - величина среднедопустимого износа резьбовых непроходных калибров-пробок и калибров-колец; F1 - расстояние между линией среднего диаметра и вершиной укороченного профиля резьбы; ZPL - расстояние от середины поля допуска ТP резьбового проходного калибра-пробки до проходного (нижнего) предела среднего диаметра внутренней резьбы; ZR – расстояние от середины поля допуска TR резьбового проходного калибра до верхнего предела среднего диаметра наружной резьбы.
4.6.2. Дифференцированный (поэлементный) контроль параметров резьбы
Все основные параметры резьбы (собственно средний диаметр, наружный и внутренний диаметры, шаг и угол профиля) можно контролировать с помощью универсальных или специализированных контрольных средств. При этом контролируемый параметр измеряют многократно, что позволяет путем последующей обработки результатов по известным методикам уменьшить влияние погрешностей других параметров резьбы.
Средний диаметр наружной резьбы контролируют с помощью универсальных средств без дополнительных приспособлений или с использованием резьбовых вставок, ножей, проволочек, роликов, а для внутренней резьбы — еще и шариков или оттисков.
Для малых образующих резьб при измерении среднего диаметра применяют метод трех, двух или одной проволочки (рис. 4.44), закладываемых во впадины резьбы. Таким образом, контрольное средство позволяет измерить некоторый размер М, зависящий от среднего диаметра резьбы d2 и диаметра dп проволочек (рис. 4.45). Для уменьшения влияния погрешностей угла профиля выбирают проволочки наивыгоднейшего диаметра dп. н, который обеспечивает их касание со впадиной резьбы по линии среднего диаметра dп. н = 0,5P/cos/2. Тогда
.
Для метрической резьбы ( = 60°) d2 = M - 3dп. н + 0,866P.
Для измерения размера М используют длиномеры, оптиметры, микрометры (рис. 4.46) и т. п. Для повышения точности измерения учитывают погрешности диаметра проволочек, шага, угла профиля, угла подъема резьбы, деформации витков и др. При небольшом числе витков применяют метод двух проволочек, тогда
d2 = M - 3dп. н + 0,866P – P2/[8(M - dп. н)] .
Для контроля резьб с D > 100 мм применяют одну проволочку.
В цеховых условиях и при ремонте используют микрометры с резьбовыми вставками (рис. 4.47). Погрешность этого метода 0,025 - 0,2 мм.
Шаг резьбы измеряют с помощью универсальных или специальных средств. Из универсальных средств используют главным образом микроскопы.
Средний диаметр внутренних резьб измеряют с помощью штихмасов с резьбовыми вставками, индикаторных приборов с раздвижными
полупробками или сферических вставок, а также путем получения оттисков и отливок с последующим их измерением универсальными средствами.
Оиз вариантов измерения среднего диаметра индикаторным нутромером с измерительными головками. Для этого на нижнюю часть трубки нутромера надевается резьбовая пробка 2, в которой расположены сферические вставки 1, раздвигаемые конусом 3, связанным через шток нутромера с измерительной головкой.
Измерение среднего диаметра шариками или шариковыми наконечниками аналогично измерению проволочками. При этом используют горизонтальные и вертикальные оптиметры, индикаторы и т. п. Все параметры внутренней резьбы можно также измерять с помощью специального микроскопа ИЗК-59 (приспособление к УИМ).
4.7. Измерение и контроль зубчатых колес и передач [50]
Приборы для технологического контроля используют в цеховых условиях для контроля изделий и наладки зубообрабатывающего оборудования. Типы, основные параметры и нормы точности приборов для измерения цилиндрических зубчатых колес регламентированы ГОСТом 5368 - 81, ГОСТом 8137 - 81, ГОСТом 10387 - 81 и др.
Кинематическую погрешность зубчатых колес 1 и 6 в однопрофильном зацеплении Fir контролируют, например, на приборах со стеклянными лимбами 2 и 5, имеющими радиальные штрихи с ценой деления 2 (схема I на рис. 4.49). Перемещение штрихов вызывает импульсы тока в фотодиодах. Сдвиг фаз импульсов, вызванный кинематической погрешностью в зубчатой паре и несогласованностью вращения зубчатых колес, определяется фазометром 3 и записывается самописцем 4.
Относительно просты приборы для измерений колебаний межцентрового расстояния F"ir за оборот в двухпрофильном зацеплении (схема II на рис. 4.49). Эти приборы имеют оправки 4 и 5, на которые насаживают контролируемое 6 и образцовое 3 зубчатые колеса. Оправка 5 расположена на неподвижной каретке 7, положение которой может изменяться лишь при настройке на требуемое межцентровое расстояние. Оправка 4 расположена на подвижной каретке 2, которая поджимается пружиной так, что зубчатая пара 3 - 6 находится всегда в плотном соприкосновении по обеим сторонам профилей зубьев. При вращении зубчатой пары вследствие неточностей ее изготовления измерительное межосевое расстояние изменяется, что фиксируется отсчетным или регистрирующим прибором 1.
Накопленную погрешность шага и k шагов можно контролировать на приборе (схема III на рис. 4.49), в котором при непрерывном вращении зубчатого колеса 5 в электронный блок 2 поступают импульсы от кругового фотоэлекрического преобразователя 4, установленного на одной оси с измерительным колесом, и от линейного фотоэлектрического преобразователя 1, выдающего командный импульс при заданном положении зуба (при максимуме отраженного потока). При появлении командного импульса самописец 3 фиксирует ординату погрешностей шага колеса.
Радиальное биение зубчатого венца Frr колеса 1 контролируют на биениемерах (схема IV на рис. 4.49), имеющих модульные профильные
I |
II |
III |
|
|
МЦ- 160М, МЦ-400Б, Э, МЦ-320М, МЦМ-630, БВ-5050, БВ-5029, БВ-5077 |
БВ-5015, БВ-5028, ШМ-1-,2, БВ-5056, БВ-5035, БВ-5059 |
IV |
V |
VI |
|
25003, Б- 10М, БВ-5015, БВ-5050, БВ-5060, БВ-5061 |
Б В-4047—25, БВ-5045, БВ-5046, 22202, БВ-5015, БВ-5081, БВ-5082 и др. |
МЭК-2, КН-6М, КН-7 |
наконечники 2 с углом конуса 40° для контроля наружных зубчатых колес (для контроля внутренних зубчатых колес наконечники имеют сферическую форму). Разность положений наконечников, определяемая с помощью каретки 4 и индикатора 3, характеризует биение зубчатого венца.
Колебание длины общей нормали L - FvWr контролируют на приборах, имеющих два наконечника с параллельными плоскостями и в зависимости от требуемой точности отсчетное нониусное, микрометрическое 2 или индикаторное устройство. Нормалемеры микрометрические (схема V на рис. 4.49) имеют тарельчатые измерительные наконечники, вводимые во впадины зубьев колеса 1. Особенностью контроля длины общей нормали является отсутствие необходимости базирования колеса по его оси.
Погрешность обката Fcr обычно выявляют на кинематомерах, позволяющих установить несогласованность движения режущего инструмента (фрезы) и заготовки зубчатого колеса (стола станка) при зубообразовании. Так, на зубофрезерных станках (схема VI на рис. 4.49) преобразователь 1 выдает импульсы, характеризующие угловое положение стола станка, а преобразователь 2 — импульсы, характеризующие положение шпинделя. Блок 3 служит для приведения масштаба импульсов высокоскоростного звена 2 к масштабу тихоходного звена 1 станка. После сравнения импульсов в устройстве 4 разность фаз, пропорциональная погрешности углового положения шпинделя относительно стола станка, регистрируется самописцем 5.
Плавность работы зубчатых колес можно выявлять при контроле местной кинематической погрешности, циклической погрешности колеса и передачи на приборах для измерения кинематической точности, в частности путем определения ее гармонических составляющих на автоматических анализаторах. С помощью поэлементных методов контролируют шаг зацепления, погрешность профиля и отклонения шага. Шаг зацепления fpbr контролируют с помощью накладных шагомеров (схема I на рис. 4.50), снабженных тангенциальными наконечниками 2 и 3 и дополнительным (поддерживающим) наконечником 1. Измерительный наконечник 3 подвешен на плоских пружинах. При контроле зубчатого венца перемещение измерительного наконечника фиксируется встроенным отсчетным устройством 4. При настройке положение наконечников 1 и 2 можно менять с помощью винтов 5.
Погрешность профиля ffr выявляют на эвольвентомерах, сопоставляя теоретическую эвольвенту, воспроизводимую прибором, с реальной эвольвентой контролируемого зуба. В приборе типа БВ-5062 (схема II на рис. 4.50) теоретическая эвольвента воспроизводится образцовым сектором 1, расположенным на одной оси с контролируемым колесом. В качестве линейки обката служит каретка 3, которая связана с сектором с помощью охватывающей его ленты 2. Радиус основной окружности меняют при настройке путем изменения положения упора 4, находящегося на измерительной каретке 5. Микроскоп 6 служит для настройки прибора на требуемый радиус основной окружности.
Для измерения отклонений шага fptr от среднего значения по колесу используют накладные приборы (схема III на рис. 4.50), с помощью которых шаг Рt определяют как расстояние между базовым 2 и измерительным 3 наконечниками. На измеряемом колесе 4 прибор устанавливают по упорным наконечникам 1 и 5. При измерении сравнивают значения всех шагов с первоначальным шагом, отсчитываемым по шкале головки 6.

|
I |
II |
|
21802, 21702, 21703, БВ-5070 и др. |
КЭУМ, БВ-5057, БВ-5062, БВ-5078 и др. |
|
Рис. 4.50. Приборы для контроля плавности работы III |
|
ШМ-1, БВ-5079 |
Полнота контакта. Размеры пятна контакта определяют либо по следам приработки после некоторого периода работы передачи на контрольно-обкатных станках и приспособлениях, либо по следам краски, оставившей отпечаток на парном колесе. С помощью поэлементных методов измеряют осевой шаг по нормали, отклонение направления зуба, погрешность формы и расположения контактной линии и др. Так, на приборе БВ-5028 (схема I на рис. 4.51) можно контролировать несколько параметров зубчатых колес — отклонения контактной линии Fkr, осевого шага Fpxnr и погрешности шага. Каретка с измерительным наконечником 1, предварительно установленным на угол наклона контактной линии, перемещается по направляющей 3. При согласованном движении каретки и вращении контролируемого зубчатого колеса 2 наконечник 1 воспринимает непрямолинейность и отклонения от направления этой линии, которые фиксируются самописцем. Отклонение осевого шага воспринимается измерительным наконечником тогда, когда последний перпендикулярен винтовой линии.
Поворот зубчатого колеса на осевой шаг осуществляют с помощью микроскопа с оптическим диском. При измерении отклонений от направления зуба Fr прямозубых колес на приборах, у которых существует каретка с точными продольными направляющими, измерительный наконечник перемещают вдоль оси измеряемого колеса. При контроле косозубых колес винтовую линию, воспроизводимую в приборе в результате поворота колеса и продольного перемещения измерительного узла или, как в ходомере БВ-5034 (схема II на рис. 4.51), продольного перемещения стола 1 вместе с проверяемым колесом 4, сравнивают с реальной эвольвентой. Согласованность поступательного и вращательного движений колеса обеспечивают с помощью наклонной линейки и охватывающих шпиндель 3 лент, концы которых закреплены на поперечной каретке 2. Измерительный узел
I |
II |
|
БВ-5028 и др. |
БВ-5034, БВ-5075 и др. |
Рис. 4.51. Приборы для контроля полноты контакта
5, установленный на станине, можно настраивать на необходимые параметры зубчатого колеса. Микроскоп 6 позволяет осуществлять точную установку линейки 7 на заданный угол.Боковой зазор между неработающими профилями зубьев в собранной передаче можно контролировать с помощью набора щупов, c помощью заложенной между зубьями свинцовой проволочки или методом люфтования. В последнем случае одно из зубчатых колес медленно вращается, а второе при этом совершает высокочастотные колебания, амплитуда которых характеризует боковой зазор. В реальном зубчатом колесе боковой зазор образуется в результате утонения зуба при смещении исходного режущего контура ЕHr на зуб колеса. Это смещение измеряют на тангенциальных зубомерах (схема I на рис. 4.52), имеющих два базовых щупа 1 и 2, измерительный наконечник 3 и показывающий прибор 4. Перед измерением зубомер настраивают на заданный модуль по ролику расчетного диаметра.
С помощью тангенциальных зубомеров
контролируют, по существу, положение
постоянной хорды а – а относительно
линии выступов b - b, а с помощью кромочных
зубомеров измеряют толщину зуба S
(параметр Ecr) на заданном расстоянии h
от линии выступов (схема II на рис. 4.52).
Эти зубомеры имеют нониусные,
микрометрические или индикаторные
отсчетные устройства. В нониусных
штангензубомерах требуемое положение
постоянной хорды, т. е. координирующей
губки 4, устанавливают с п
омощью
нониусной пары 1 - 2, а измерения хорды
осуществляют с помощью нониусной пары
7 - 6 путем введения измерительных
наконечников 3 и 5 во впадины зубчатого
венца.



|
НЦ 23500 - 23800 |
БВ-5016к, БВ-5017к, ШЗ-18, ШЗ-36, ЗИМ-16 и др. |
Рис. 4.52. Приборы для контроля бокового зазора
Существуют различные приборы для контроля цилиндрических, конических, червячных, червяков и прочих колес станкового и накладного типов, разделяемых по классам точности на три группы: А, АВ и В. Интенсивно разрабатываются полуавтоматические и автоматические приборы, в том числе приборы активного контроля, использующие экранную оптику, цифровой отсчет, запись результатов измерения, машинную обработку результатов, управление производственным процессом и т. п.
4.8. Измерения с помощью цифровых измерительных приборов
В настоящее время расширяется разработка и применение в промышленности электронных цифровых вычислительных машин, в которых требуемые действия выполняются электронными счетчиками и управляющими схемами.
По своим эксплуатационным свойствам цифровые электроизмерительные приборы характеризуются высокой точностью измерения, быстродействием, автоматизацией измерения и удобством регистрации результатов измерения.
Цифровое отсчетное устройство может быть придано к средству измерения, содержащему электронную часть прибора, или как комплекс измерительных средств может быть непосредственно придано (встроено) в металлообрабатывающее оборудование.
Например [35], к микроскопу инструментальному БМИ-1Ц придано устройство цифровое пересчетное УЦП-1м. Электронная часть прибора будет содержать преобразователь электронно-оптический в координатах Х и У и устройство цифровое пересчетное.
Преобразователь электронно-оптический предназначен для преобразования реверсивных линейных перемещений в пропорциональное им число электрических импульсов. Преобразователь включает в себя механическую и электронно-оптическую системы. Основой механической системы является узел микровинта с приводом для вращения. Микровинт преобразует круговое вращение в продольное перемещение.
Цифровое отсчетное устройство (ЦОУ) для оснащения универсальных металлорежущих станков (рис. 4.53) контролирует перемещение рабочих органов станка (суппорта, каретки, стола и т. п.) и в наглядной форме на цифровом табло показывает их положение относительно выбранного начала координат. В соответствии с показаниями на цифровом табло станочник обрабатывает деталь до получения нужных размеров, управляя станком, как и обычно, вручную.
Цифровое устройство установлено на отсчетные барабаны микрометрических винтов поперечного и продольного перемещения стола. Оно состоит (рис. 4.53) из круглого реостатного преобразователя 1, механизма 2 сброса показаний на нуль, счетчика 3 перемещений целых миллиметров и цифрового прибора 4, по которому отсчитывают доли миллиметра с дискретностью 0,001 мм. Для преобразования линейных перемещений в цифровой отсчет
служит проволочный реостат сопротивлением 10 кОм, выбранный из расчета, что каждые 10 Ом соответствуют 0,001 мм линейного перемещения при шаге микрометрического винта 1 мм. В качестве цифрового отсчетного устройства взят цифровой килоомметр, серийно выпускаемый отечественной промышленностью.
Устройство цифровое пересчетное (рис. 4.54) включает в себя устройство управления, реверсивный счетчик, счетчик, переключатели и источники питания. Предустановка любого пятиразрядного десятичного числа со знаками (+) или (-) осуществляется с помощью переключателя "Предустановка". При нажатии кнопки "Запись" импульсы с устройства управления поступают одновременно на входы счетчика и реверсивного счетчика и через дешифратор на табло индицируются числа. При помощи вращения привода механической системы передаются числа с оптико-механического преобразователя. Цифровое отсчетное устройство (ЦОУ) для оснащения универсальных металлорежущих станков (рис. 4.55) контролирует перемещение рабочих органов станка (суппорта, каретки, стола и т. п.) и в наглядной форме на цифровом табло показывает их положение относительно выбранного начала координат. В соответствии с показаниями на цифровом табло станочник обрабатывает деталь до получения нужных размеров, управляя станком, как и обычно, вручную.
Цифровое отсчетное устройство на базе выпускаемых датчиков и электронных блоков имеет основные характеристики: цена отсчета от 0,001 до 0,02 мм; наибольшая скорость контролируемого перемещения при цене отсчета 0,01 - 15 м/мин при цене отсчета 0,001 мм - 1,5 м/мин; наибольшая величина контролируемого перемещения не больше 1 м при цене отсчета 0,001 мм и не более 10 м при цене отсчета 0,01 мм.
4.9. Измерение электрических и магнитных величин
По системе SI единицы электрических и магнитных величин, применяемые в Российской Федерации, приведены в табл. 4.1.
Таблица 4.1
Единицы электрических и магнитных величин
|
Величина |
Наименование |
Обозначение |
Величина |
Наименование |
Обозначение |
||
|
Рус-ское |
Меж-дуна-род-ное |
Рус-ское |
Меж-дуна-род-ное |
||||
|
Сила электри-ческого тока, магнитодвижущая сила |
Ампер |
А |
А |
Электричекая постоянная, абсолютная диэлектрическая проницаемость, диэлектрическая восприимчивость |
Фарад на метр |
Ф/м |
F/m |
|
Линейная плот-ность электри-ческого тока, напряженность магнитного поля |
Ампер на метр |
А/м |
A/m |
Магнитная индукция, плотность магнитного поля |
Тесла |
Тл |
Т |
|
Поверхностная плотность электрического тока |
Ампер на ква-дратный метр |
А/м2 |
А/m2 |
Индуктивность, взаимная индуктивность, магнитная проводимость |
Генри |
Гн |
Н |
|
Магнитный момент |
Ампер- квадратный метр |
Ам2 |
Аm2 |
Магнитное сопротивление |
Генри в ми-нус первой степе-ни |
Гн-1 |
Н-1 |
|
Количество электричества, электрический заряд, поток электрического смещения |
Кулон |
Кл |
С |
Магнитная постоянная, абсолютная магнитная проницаемость |
Генри на метр |
Гн/м |
Н/ m |
|
Линейная плот-ность электри-ческого заряда |
Кулон на метр |
Кл/м |
С/m |
Магнитный поток |
Вебер |
Вб |
Wb |
|
Электрическое смещение, поверхностная плотность электрического заряда |
Кулон на квадратный метр |
Кл/м2 |
С/m2 |
Электрическая проводимость |
Си-менс |
См |
S |
|
Объемная плотность электрического заряда |
Кулон на куб. метр |
Кл/м3 |
С/m3 |
Удельная электрическая проводимость |
Си- менс на метр |
См/м |
S/m |
|
Момент электрического диполя |
Кулон-метр |
Клм |
Сm |
Электрическое сопротивление |
Ом |
Ом |
|
|
Напряжение, потенциал, раз-ность потенци-алов, электро-движущая сила |
Вольт |
В |
V |
Удельное электрическое сопротивление |
Ом-метр |
Омм |
m |
|
Напряженность электрического поля |
Вольт на метр |
В/м |
V/m |
Мощность: активная, реактивная, полная |
Ватт |
Вт |
W |
|
Электрическая емкость |
Фарад |
Ф |
F |
Электроизмерительные приборы подразделяются (рис.4.56) на: электромеханические (магнитоэлектрической системы, электродинамические, электромагнитные с подвижным магнитом, индукционной системы, электромагнитные); электротермические (с нагреваемой нитью, биметаллические, термоэлектрические преобразователи).
4.9.1. Электромеханические измерительные приборы
Приборы магнитоэлектрической системы (рис. 4.56) могут работать на постоянном токе, а при использовании дополнительных преобразований — и на переменном.
|
Наименование |
Приборы магнитно-электрической системы |
Электродинамические приборы |
Электродинамические приборы (с замкнутой магнитной цепью) |
|
Принципиальная схема |
|||
|
Символическое изображение |
|||
|
Принципиальная схема |
|||
|
Символическое изображение |
Рис. 4.56. Электроизмерительные приборы: ЕМ – измерительные приборы;
QM – приборы для измерения отношений [46]
В однородном магнитном поле постоянного магнита располагается на опорах рамка, которая может вращаться. Ток, проходящий через витки этой рамки, имеет направление, перпендикулярное направлению магнитных линий поля.
Электрический ток подается через два пружинных элемента (ленточные растяжки, спиральные пружины), которые одновременно создают механический противодействующий момент.
Электродинамические измерительные приборы основаны на принципе взаимодействия токов. Они могут применяться для измерений как на переменном, так и на постоянном токе.
Электродинамический измерительный прибор с замкнутой магнитной цепью (см. рис. 4.56) работает как прибор магнитоэлектрической системы, но с той разницей, что вместо постоянного магнита используется электромагнит.
В электродинамическом измерительном приборе без ферромагнитного сердечника (см. рис. 4.56) полностью отсутствуют ферромагнитные элементы. При возбуждении магнитного поля принцип действия прибора такой же, как у прибора с замкнутой магнитной цепью.
Электромагнитные измерительные приборы с подвижным магнитом также основаны на магнитоэлектрическом принципе. Они могут быть использованы для измерений на постоянном токе, а с дополнительными преобразователями — и на переменном токе. В поле неподвижной катушки находится вращающийся постоянный магнит (магнитная игла, диск или полый цилиндр), который устанавливается в направлении постоянного внешнего поля (например, магнитного поля Земли). При прохождении тока вращающийся магнит перемещается в направлении результирующего поля, образуемого направляющим полем и полем катушки.
Прибор с подвижным магнитом представляет собой обращенный измерительный прибор магнитоэлектрической системы, т.е. катушка и постоянный магнит меняются местами.
Электроизмерительные приборы индукционной системы могут применяться только для измерений на переменном токе. Во вращающемся магнитном поле располагается подвижный замкнутый проводник (барабан или диск). В результате наведения вихревых токов подвижный проводник перемещается в направлении вращающегося магнитного поля.
Электромагнитные измерительные приборы (см. рис. 4.56) могут быть использованы для измерений на постоянном и переменном токе. Важнейшими типами этих приборов являются приборы с плоской и круглой катушками. В приборах с плоской катушкой внутри катушки возбуждения находится эксцентрично закрепленная подвижная ферромагнитная пластина, ось поворота которой расположена перпендикулярно оси катушки возбуждения. При протекании электрического тока пластинка под воздействием электромагнитного поля перемещается в катушке, т. е. поворачивается вокруг своей оси. В приборе с круглой катушкой внутри катушки возбуждения находятся неподвижная и подвижная ферромагнитные пластинки, причем ось поворота последней параллельна оси катушки. При протекании электрического тока пластинки намагничиваются в одинаковом направлении и, следовательно, отталкиваются друг от друга. При этом подвижная пластинка поворачивается в направлении меньшей ширины неподвижной пластинки.
Электростатические измерительные приборы могут быть использованы для измерений как на постоянном, так и на переменном токе. Измерительный прибор состоит из конденсатора, электроды которого закреплены так, что имеется возможность, прикладывая электрическое напряжение, получать механическое усилие, действующее в направлении увеличения емкости. Изменение емкости может осуществляться путем изменения либо эффективной площади электродов, либо расстояния между электродами.
4.9.2. Электротермические измерительные приборы
Измерительные приборы с нагреваемой нитью (см. рис. 4.56) позволяют проводить измерения на постоянном или переменном токе. В зависимости от силы тока, протекающего через проволоку, изменяются температура и длина проводника.
Биметаллические приборы также основаны на термоэлектрическом принципе измерения. Они используются для измерений на постоянном и переменном токе. Биметаллическая полоска нагревается непосредственно измеряемым током или с помощью изолированной обмотки. Спиралеобразная, укрепленная с одной стороны биметаллическая полоска нагревается и искривляется в зависимости от силы измеряемого тока вследствие различных коэффициентов линейного расширения обоих металлов.
Термоэлектрические преобразователи могут быть использованы для измерений на постоянном и переменном токе. Они наиболее предпочтительны для измерений высокочастотных токов. Термоэлектрические преобразователи состоят из проволоки, которая нагревается протекающим через нее измеряемым током. В середине проволоки помещается измерительный участок термоэлемента. Возникающая термоЭДС пропорциональна температуре нагрева.
4.10. Информационно-измерительные системы и измерительно-вычислительные комплексы
Большинство измерительных и управляющих систем, а также измерительно-вычислительных комплексов, используемых в управлении технологическими процессами и в научных исследованиях, оперируют информацией, представленной в виде кодов (чисел). Это обстоятельство предопределило быстрое развитие измерительных преобразователей различных физических величин и прежде всего электрических в коды, что обеспечивает возможность непосредственной связи вычислительной или управляющей цифровой машины с объектами измерения или управления. Эти устройства получили название аналого-цифровых измерительных преобразователей (АЦП).
Почти одновременно с АЦП появились цифровые измерительные приборы (ЦИП), отличающиеся от АЦП тем, что они имеют отсчетное устройство и вырабатывают измерительную информацию в удобной для восприятия человеком форме десятичных чисел. Грань между ЦИП и АЦП в большой мере условная, так как для расширения функциональных возможностей в ЦИП обычно предусматривают вывод электрических сигналов (кода), соответствующих показанию отсчетного устройства, а в АЦП предусматривают простейшее отсчетное устройство для обеспечения возможности визуального считывания его выходного кода.
Цифровые измерительные устройства являются одним из наиболее совершенных средств измерений. Наибольшее распространение получили ЦИУ для измерения электрических величин (напряжения, силы тока и сопротивления), а также ЦИУ для измерения временных параметров сигналов (частоты, периода, длительности импульсов и интервалов времени). В последнее время широкое распространение получают ЦИУ для измерения неэлектрических величин (например, температуры), основанные на использовании ЦИУ для измерения электрических величин в сочетании с первичным измерительным преобразователем. ЦИУ являются единственным видом измерительных устройств, обеспечивающих непосредственную связь и передачу измерительной информации от объекта измерений в вычислительную или управляющую вычислительную машину при автоматизации производственных процессов и научных исследований.
Массовость выпускаемой продукции при все возрастающих требованиях к ее качеству в условиях экономической оптимизации привела к необходимости создания автоматических систем управления технологическим процессом (АСУТП). При этом необходимо отметить, что в условиях АСУТП контроль органически связан с процессом производства и является его неотъемлемой частью.
Координатно-измерительные машины [35]. Современная техника обработки отличается высокими скоростями и производительностью. Чтобы привести в соответствие темпы производства и контроля, разработаны измерительные машины. Координатно-измерительные машины предназначены в первую очередь для контроля, а не для решения определенных задач измерения.
В последнее время расширены задачи контроля. Если раньше при контроле выявляли только брак изделий по размерам, то в настоящее время появляется возможность определить и исключить источник ошибок. В освоении нового изделия при серийном производстве необходим своевременный, быстрый и безупречный контроль первого изделия, что осуществляется на координатно-измерительных машинах.
Отличительным признаком координатно-измерительных машин является возможность дать измерения координатных значений в цифровой форме. Координатно-измерительные машины изготавливают трех- и двухкоординатными. На трехкоординатных (см. рис. 4.57) можно проводить измерения в трех координатах: X, Y, Z; двухкоординатные машины служат для измерения в двух взаимно перпендикулярных направлениях одной плоскости - координаты Х и Y.
Измерительная часть машины представляет собой преобразователь перемещения измерительной головки, несущей измерительный наконечник, в цифровой код. Число, зафиксированное счетчиком на цифровом табло, соответствует расстоянию, на которое перемещается шкала между двумя последовательными измерениями.
Преимущество координатно-измерительной машины перед обычными средствами измерений заключается в том, что она позволяет производить измерения деталей сложной геометрической формы. Машины снабжают специально разработанными ЭВМ, с помощью которых сравнивают действительные размеры и взаимное расположение поверхностей с теоретическим.
Полученные отклонения регистрируются в графической или закодированной форме и могут быть использованы для внесения автоматической коррекции через ЭВМ в числовое программное управление на обрабатываемом станке.
Создание новых трехкоординатных измерительных приборов идет по линии усовершенствования универсальных микроскопов.
Растущее производство микропроцессоров и микроЭВМ создало предпосылки для широкого использования их в системах программного управления движением автоматизированных устройств - металлообрабатывающих станков, роботов-манипуляторов, чертежно-графических автоматов, оперативных устройств визуального отображения информации.
4.11. Автоматизация системы контроля и управления сбором данных
4.11.1. Задачи и разновидности автоматизированных систем контроля
Вопросы автоматизации систем контроля относятся к автометрии, в которой рассматриваются теоретические основы проектирования автоматических измерительных и контрольных и измерительно-информационных систем.
Автоматизированная система метрологического обеспечения (АСМО) предназначена для решения основных задач управления производственно-хозяйственной деятельностью метрологической службы предприятия, связанных с планированием, контролем, анализом и регулированием метрологической информации.
АСМО базируется на экономико-математических методах с применением вычислительной техники и может рассматриваться как подсистема управления качеством продукции, включающая техническое, программное, информационное и организационное обеспечение.
Автоматизированная система метрологического обеспечения осуществляет: метрологический контроль за измерительной техникой (полный учет средств измерений предприятия; перспективное и оперативное планирование поверочной деятельности; анализ метрологических характеристик средств измерений; аттестацию нестандартизованных средств измерений; контроль, в том числе инспекционный, за выполнением поверочных работ); метрологический контроль за испытательной техникой (учет и аттестация средств испытаний; планирование и контроль выполнения этих планов; проведение профилактических и регламентных работ и др.); метрологическую экспертизу технической документации (учет технической документации; планирование и контроль выполнения планов проведения экспертиз; информационное обеспечение при проведении экспертиз технической и технологической документации); координацию и планирование метрологической деятельности (календарное и перспективное планирование поверенной деятельности; контроль выполнения требований нормативно-технической документации при изготовлении изделий; разработка мероприятий по метрологическому обеспечению производства; хозяйственно-техническая деятельность по метрологическому обеспечению и др.); регулирование деятельности по метрологическому обеспечению производства (осуществление выработки управляющих воздействий на отдельные подразделения предприятия с целью эффективного внедрения планов метрологического обеспечения).
На производстве все больше уделяется внимания механизации и автоматизации процесса измерения, что связано с автоматизацией процессов производства современных машин, повышением их качества, точности и надежности и сокращением времени и стоимости измерений и контроля. Контроль изделий осуществляется как простейшими устройствами и приспособлениями, так и сложными контрольными автоматами.
По степени автоматизации устройства контроля размеров делят на механизированные приспособления, полуавтоматические системы, автоматические системы и самонастраивающиеся (адаптивные) автоматические системы.
Механизированные приспособления применяют для одновременной или последовательной проверки нескольких размеров сложных деталей в серийном и массовом производстве. В таких приспособлениях операцию загрузки и съема деталей осуществляют вручную.
В полуавтоматических системах часть операций (загрузка, а иногда и сортировка) выполняются вручную, а все остальные операции автоматически.
Контрольные автоматические системы (все процессы полностью автоматизированы) широко применяют для контроля деталей по разным параметрам (размерам, твердости, массе, сложным профилям в виде резьбы или зубьев колес и т. п.). Контрольные автоматы дороги и сложны; их в основном применяют для сортировки деталей массового производства (поршневых пальцев, шариков и роликов и др.) по размерам на группы при селективной сборке, при 100 %-ном контроле наиболее ответственных деталей, когда пропуск бракованных деталей недопустим или когда в технологическом процессе выборочный контроль недопустим.
Прогрессивным направлением является создание универсальных автоматов из типовых узлов для контроля однотипных деталей. Например, автомат БВ-8008 для контроля поршневых пальцев диаметром от 15 до 60 мм; автомат БВ-8009 для контроля поршней разных двигателей диаметром от 15 до 60 мм; автомат БВ-8010 для контроля прямозубых и косозубых колес с диаметрами от 80 до 320 мм и модулями 1 - 7 мм. Автомат СК-9 для контроля бокового и радиального биения собранного радиального шарикового подшипника с размерами подшипников: по внутреннему диаметру от 35 до 85 мм, наружному от 80 до 150 мм и по высоте от 18 до 31 мм. Производительность контрольного автомата для поршневых пальцев - до 700 шт/ч, а автомата для подшипников - 600 шт/ч.
По воздействию на технологический процесс различают пассивные и активные автоматические средства контроля размеров.
Пассивные фиксируют размеры деталей, разделяя их на годные и брак (исправимый и неисправимый), или сортируют их на группы при селективной сборке. На ход технологического процесса они не влияют.
Активные средства контролируют размеры деталей в процессе изготовления и по результатам контроля подают команду на изменение режимов обработки, на включение станка или на подналадку системы СПИД (станок — приспособление — инструмент — деталь). Наличие обратной связи позволяет по результатам контроля управлять точностью технологического процесса и тем самым предупреждать появление брака. Заводы заинтересованы в устройствах для автоматического контроля деталей в процессе их обработки, чтобы предупредить брак и облегчить работу рабочих и контролеров. Отечественными заводами выпускаются измерительные устройства для активного контроля.
В самонастраивающихся автоматических системах автоматизированы циклы работы и настройки, а также системы, которые могут приспосабливаться к изменяющимся условиям среды.
4.11.2. Измерительные преобразователи
Действие автоматизированных приспособлений, контрольных автоматов и средств активного контроля основано на использовании различного рода измерительных преобразователей. Измерительный преобразователь как составной элемент входит в датчик, который является самостоятельным устройством, и кроме преобразователя содержит измерительный шток, рычаг с наконечником, передающий механизм, элементы настройки и др. Остальные элементы электрической цепи измерительной (контрольной) системы конструктивно оформляют в виде отдельного устройства (электронного блока, или электронного реле). Наибольшее распространение получили измерительные (контрольные) средства с электроконтактными, пневмоэлектроконтактными, индуктивными, емкостными, фотоэлектрическими, радиоизотопными, механотронными, реостатными, фазовыми, струнными, вибрационно-частотными и электронными преобразователями.
Основные требования к измерительным преобразователям:
1. Объективность и достоверность измерительной информации о состоянии контролируемого объекта.
2. Измерительная информация о состоянии контролируемой физической величины должна выдаваться без каких-либо промежуточных преобразований непосредственно в ЭВМ, статанализатор, цифропечатающие машины и другие подобные устройства.
3. Измерительная система должна обеспечивать возможность быстрой перестройки при смене технологических процессов и быть унифицированной при измерении различных физических параметров при незначительных изменениях отдельных блоков этой системы.
4. Измерительная система должна иметь метрологические характеристики, обеспечивающие требуемую точность и надежность контроля и высокую производительность.
5. Измерительная система должна обладать возможностью дистанционного измерения, быть простой и надежной при настройке и проверке в условиях эксплуатации.
Приборы с электроконтактными преобразователями [50]. В электроконтактных преобразователях определенное изменение контролируемой величины приводит к замыканию (размыканию) электрических контактов цепей, управляющих исполнительными элементами системы.
Различают преобразователи предельные - для контроля предельных размеров деталей и амплитудные - для контроля амплитуды изменяющегося линейного параметра (отклонения формы, погрешности положения и т. п.). В предельном электроконтактном преобразователе (рис.4.58, а и б) изменение контролируемой величины передается через измерительный шток 1 к подвижным контактам 2 и 6, расположенным на рычаге 4. Регулируемые контакты 3 и 5, один из которых работает на размыкание, другой - на замыкание, настраивают с помощью микрометрических пар со шкальными устройствами. В амплитудном преобразователе (рис. 4.58, в) измерительный стержень 1 жестко скреплен с фрикционной пластиной 2, которая поджимается пластинчатой пружиной к подшипнику 3. Подшипник несет на себе рычаг 4 с контактами 5 и 9. Механический контакт 8 является нерегулируемым и служит упором, который при ходе стержня вниз и проскальзывании фрикционной пары 2 - 3 обеспечивает установку нуля отсчета
контролируемой амплитуды. При ходе стержня 1 вверх и недопустимо большой амплитуде электрические контакты 5 и 6 замыкаются. Рычаг 10 с винтом 7 служит для арретирования измерительного стержня. При необходимости отсчета размера может быть установлена индикаторная головка 11.
Недостатками приборов с электроконтактными преобразователями являются низкая надежность контактных пар, невысокая чувствительность, малое число команд, малые пределы измерений, релейный (пороговый) выходной сигнал.
Приборы с пневмоэлектроконтактными преобразователями [50]. В пневматических приборах используют зависимость либо между площадью S продольного канала воздухопровода и расходом сжатого воздуха при постоянном давлении р (ротаметры), или между давлением р и расходом Q воздуха (манометры). При бесконтактном методе измерения в качестве заслонки измерительного сопла 1 используют контролируемое изделие D (рис. 4.59, а). Изменение высоты изделия приводит к изменению зазора и, следовательно, контролируемого расхода воздуха, протекающего через измерительное сопло диаметром d2. При контактных методах (рис. 4.59, б—д) с измерительным наконечником 3 механически связана заслонка 2, которая также может иметь конусную, параболическую или сферическую форму.
Для увеличения диапазона измерения применяют эжекторные сопла (рис. 4.59, е), в которых воздух под постоянным давлением р поступает в измерительное сопло диаметром d2 через входное сопло диаметром d1. При этом в полости A возникает разряжение.
Для автоматизации процесса измерения выпускают отсчетно-командные устройства (рис. 4.60) с сильфонными преобразователями, в которых сжатый воздух под давлением 0,32 - 0,6 МПа после фильтра-стабилизатора 1 через входные сопла 19, 20 и 18 поступает в сильфоны 3 и
17. Сильфон 17 соединен с соплом 21 измерительного узла, а сильфон 3 - с настроечным соплом 2 противодавления. Сильфоны связаны между собой планкой 15, подвешенной на плоских пружинах 4 и 16. Планка 15 через рычажно-зубчатую передачу связана с отсчетным устройством 9 и электрическими контактами 5 и 6, 14 и 13. Контакты, подвешенные на пружинах 12, настраивают с помощью кулачков 11. По их положению и положению указателей 7 и 10 определяют интервал настройки. При измерении размера детали давление в сильфоне 17 изменяется, планка 15 смещается в сторону, замыкая контакты 5 и 6. Контакты 8 служат для исключения срабатывания при снятии сопла 21.
Пневматические приборы надежны, имеют измерительные сопла малых размеров, которые могут быть расположены в труднодоступных местах и легко позволяют получать сумму и разность сигналов.. Недостатки пневматических приборов - инерционность, небольшой диапазон показаний, необходимость сложной очистки и подготовки воздуха.
Струнные преобразователи [16]. В связи с развитием цифровой вычислительной техники, созданием электронных цифровых управляющих машин наиболее удобной формой представления информации от преобразователя является кодо-импульсная, а также частотно-импульсная модуляция. К таким преобразователям относится струнный.
В струнных преобразователях измеряемая
величина преобразуется в изменение
частоты собственных поперечных колебаний
тонкой натянутой струны
,
где F0 – сила натяжения струны; - плотность материала струны; S – площадь поперечного сечения струны; mс – масса струны; l – длина струны.
Струна, помещенная в поле постоянных магнитов, и электронный усилитель с положительной обратной связью образуют автогенератор, в котором поддерживаются незатухающие колебания струны на частоте, почти равной частоте ее собственных колебаний. Воздействуя на натяжение, деформацию или массу mc струны, можно построить унифицированную систему преобразователей, позволяющих измерять различные физические величины: линейное и угловое перемещение, температуру, давление, силу, электрический ток и напряжение и др.
Разработано несколько унифицированных конструкций преобразователей, на базе которых создана унифицированная информационно-измерительная
система метрологического обеспечения (УИИС МО) технологических процессов (рис. 4.61), с помощью которой можно измерять различные физические величины. На схеме - информационно-измери-тельные преобразователи (ИИП): L - линейных перемещений в частоту; t - температуры; р – давления; ЭП – электронный преобразователь.
Н
Рис. 4.61. Схема УИИМ МО
технологического процесса
а практике применяют струнные преобразователи двух типов: однострунные усилия (рис. 4.62, а), перемещения (рис. 4.62,6), температуры (рис. 4.62, в) и дифференциальные (рис. 4.63), предназначенные для измерения линейных перемещений, силы или веса, давления, температуры окружающей среды и поверхностей объектов малой площади. Кроме того, эти преобразователи могут применяться для измерения: толщины напыленного слоя, угловых размеров и перемещений, постоянного и переменного тока, напряжения.Основные недостатки однострунных преобразователей - нелинейность характеристики и смещение начального уровня - могут быть существенно уменьшены, если использовать дифференциальную схему. При этом измеряемый параметр воздействует на две идентичные струны, увеличивая частоту одной из них и уменьшая частоту другой.
Применительно к измерению перемещений, деформаций и размеров следует отметить ряд несомненных преимуществ цифровой информационно-измерительной системы со струнными преобразователями по сравнению с существующими устройствами аналогичного назначения:
возможность преобразования сигнала в цифровую и аналоговую форму;
информация об измеряемой величине выдается в форме кода, что позволяет стыковать рассматриваемые устройства с ЭВМ и статанализаторами и на этой базе осуществлять автоматизацию управления технологическими процессами;
высокое быстродействие системы и возможность поверки метрологических характеристик устройства с использованием образцового электрон цифровая индикация результатов измерения в натуральных единицах повышает производительность контрольных операций, объективность контроля и дает возможность с помощью цифропечатающих устройств документально регистрировать результаты измерения;
но-счетного частотомера, являющегося в настоящее время широко распространенным и доступным прибором;
полученная в форме кода информация об измеряемой физической величине без искажений может передаваться на значительные расстояния.
Приборы с индуктивными преобразователями [50]. В этих приборах изменение контролируемой величины преобразуется в изменение индуктивности электрической цепи в соответствии с формулой
,
где L и - индуктивность и число витков катушки; li, Si, и i - зазор, площадь и магнитная проницаемость участка i магнитной цепи (в том числе ферромагнитных и воздушных участков).
Конструкции индуктивных преобразователей основаны на зависимости индуктивности от зазора l между подвижной частью (якорем, связанным с измерительным наконечником) и сердечником (рис. 4.64, а, в) либо от площади S их перекрытия (рис. 4.64, б, г). Индуктивные преобразователи могут быть построены по простой (рис. 4.64, а, б) или дифференциальной (рис.4.64, в, г) схеме. Преобразователи с изменяющимся зазором используют для контроля малых перемещений (0,1 - 5000 мкм); преобразователи с изменяющейся площадью, имеющие большую линейность характеристики, используют для контроля перемещений 0,5 - 15 мм.
Преимуществами индуктивны датчиков являются - малые габариты, аналоговая форма выдаваемого сигнала, высокое передаточное отношение и широкие возможности по передаче, запоминанию и проведению различного рода математических преобразований и вычислений на ЭВМ. Однако эти приборы сложнее и дороже электроконтактных и пневматических.
Приборы с емкостными преобразователями
[50]. В этих приборах изменение контролируемой
величины преобразуется в изменение
электрической емкости С электрической
цепи обычно в соответствии с формулой
,
где - диэлектрическая проницаемость, Ф/м; S - площадь перекрытия обкладок конденсатора, см2; l —расстояние между обкладкaми, мм.
Следовательно, возможно создание трех видов емкостных преобразователей: с изменяющимся параметром , S или l.
На рис. 4.65 показаны схемы простых и дифференциальных преобразователей. Емкостные преобразователи обладают высокой линейностью выходной характеристики, высокой чувствительностью, малыми измерительными усилиями.
Их специальные конструкции позволяют обеспечить большой диапазон показаний. Однако емкостные преобразователи очень чувствительны к изменяющимся внешним условиям (колебаниям температуры, влажности и т. д.), что ограничивает область их применения.
Приборы с фотоэлектрическими
преобразователями [50]. В этих приборах
изменение контролируемой величины
вызывает изменение cветотехнической
характеристики, которое регистрируется
фотоэлементами. Световой поток Ф,
попадающий на фотоэлемент, определяют
по формуле
,
где I - сила света источника; S - площадь входного зрачка системы; r - расстояние от объектива системы до источника света; - угол падения пучка света на светочувствительную поверхность.
В соответствии с приведенной формулой выпускают датчики четырех типов, основанные на изменении: площади S (рис. 4.66, а) входного зрачка (световой поток перекрывается либо заслонкой, связанной с деталью D, либо кромкой самой детали); расстояния r от источника света до оточувствительной поверхности (световой поток изменяется путем перемещения источника света или фотоприемника, вызванного изменением контролируемой величины); силы света I (рис. 4.66, б) источника (световой поток изменяется при изменении отражательной способности контролируемой поверхности); угла наклона к светочувствительной поверхности.
Приборы, использующие электронные
преобразователи (механо-троны).
Радиоэлектронные преобразователи
основаны на зависимости характеристик
электронной лампы от геометрического
расположения ее элементов (катодов,
анодов, сеток и т. п.) Наибольшее
распространение получили механотроны
в виде двойных диодов с механическим
управлением (рис. 4.67). Контролируемое
изделие поворачивает на угол
стержень 1, закрепленный на эластичной
мембране 2. На другом конце стержня
имеются аноды 3, перемещающиеся при
контроле относительно катода 4. Анодный
ток определяют по формуле
,
где k — постоянный коэффициент; Uа — анодное напряжение (Uа = соnst); lа.к - расстояние между анодом и катодом.
Таким образом, механотрон выполняет функции преобразователя и первой электронной лампы усилителя. Эти приборы характеризуются высокой чувствительностью, безынерционностью, малыми измерительным усилием и габаритами. Так, для механотронов типа 6МХ диапазон измерений составляет от ±0,1 до ±1 мм, чувствительность 3 - 100 мкА/мкм, измерительное усилие 0,015 - 0,4 Н, анодное напряжение 5 - 15 В. Недостаток механотронов - невысокая долговечность (1000 - 4000 ч).
4.11.3. Измерительные роботы [7]
Автоматизация в крупносерийном производстве экономически выгодна на основе специализированных автоматических линий. Для мелко- и среднесерийного производства при частой сменяемости выпускаемых изделий более выгодно идти по пути создания безлюдной технологии и использования перепрограммируемых промышленных роботов. Но в этом случае часто требуется точное позиционирование, например, контролируемых деталей. Серийно выпускаемые роботы обеспечивают точность позиционирования 0,1 мм.
Точность позиционирования определяет, например, выполнение тех контрольных операций деталей, зазоры между калибром и деталью в которых соизмеримы с этой точностью. При меньших допусках в захватном устройстве монтируется специальная головка или в системе управления манипулятором используются корректирующие обратные связи с датчиком очувствления, установленным на захватном устройстве или позиционере, где закреплена основная деталь.
Главная функция измерительного робота (ИР) — захват и перемещение предмета (детали, измерительного средства) на требуемую позицию в соориентированном положении и в нужный момент времени. На основе использования ИР можно:
осуществлять метрологические процессы, которые по условиям производства невозможны с участием человека (токсичная, запыленная, загазованная, взрывоопасная среда, высокий уровень радиации рабочего пространства, сверхвысокие быстродействия, монотонные и тяжелые операции и т. п.);
достичь высокой производительности контроля в условиях быстрой сменяемости производства (гибкого автоматизированного производства), сокращения сроков обучения метрологическим приемам при выпуске новой продукции.
Робот может осуществлять:
качественную оценку состава рабочей среды;
установить присутствие определенных объектов, их счет, возможное расположение, дать качественную оценку, сортировку;
оценку значения параметров имеющихся или изготовляемых предметов (деталей);
определение правильности функционирования отдельных объектов или их частей.
Роботы первого поколения предназначены только для перемещения грузов различной массы.
Роботы второго поколения являются уже "очувствленными". Для "очувствления" они снабжены различными датчиками, выдающими информацию о состоянии рук, предметов и среды. После преобразования сигналы обрабатываются в ЭВМ и позволяют осуществить управление исполнительными устройствами с учетом фактических ситуаций. По сравнению с роботами первого поколения они обладают повышенной маневренностью, имеют большее число сложных программ и позволяют управлять оборудованием, автоматизировать контроль сборки и другие процессы в производстве с частым изменением условий.
Роботы третьего поколения (интегральные роботы) имеют искусственный интеллект, высокую степень восприятия и распознавания обстановки, способность выработки решений автоматического планирования и контроля операций. Эти роботы могут изменять свои действия (адаптироваться) под влиянием изменения окружающей среды или под воздействием команд от заданной программы. Они могут обрабатывать, собирать и испытывать отдельные виды изделий, управлять несколькими видами оборудования, контрольно-измерительными установками, следить за состоянием оборудования и ходом производства, осуществлять учет продукции на различных стадиях производства, выполнять некоторые конструкторские, исследовательские и лабораторные работы и т. п. Адаптивные роботы могут определять параметры объекта и окружающей среды, оценивать реальную картину, изменять последовательность действий.
Применение микропроцессорных систем контроля позволяет объединять приборы, выполняющие различные функции, в одну контрольно-измерительную систему. В результате совершенствования микропроцессоров и увеличения числа выполняемых ими функций стали появляться универсальные многофункциональные системы — мультиметры. Так, например, использование микропроцессоров в электрических мостовых контролирующих устройствах позволяет при контроле получить на выходе такого устройства одновременно данные о емкости, сопротивлении утечки, тангенсе угла потерь конденсатора и катушки индуктивности, активном и индуктивном сопротивлениях, а также добротности катушки индуктивности. Микропроцессор может управлять временем измерения, осуществлять выбор диапазона измерения, выполнять функции интерфейса. Кроме того, он может обеспечивать автоблокировку, самодиагностирование, статистический анализ, коррекцию ухода нуля, линеаризацию характеристик измерительных преобразователей.
4.12. Измерение температуры
Измерять температуру можно только косвенным путем, основываясь на зависимости от температуры таких физических свойств тел, которые поддаются непосредственному измерению. К ним относят длину, объем, плотность, термоЭДС, электрическое сопротивление и т. д. Вещества, характеризующиеся термометрическими свойствами, называют термометрическими.
4.12.1. Температурные шкалы и единицы тепловых величин
Установлено, что нет ни одного термометрического свойства, которое линейно изменяется с изменением температуры и не зависит от других факторов в широком интервале измерения температур.
Фарангейт (1715 г.), Реомюр (1776 г.), Цельсий (1742 г.) при построении шкал использовали две опорные, или реперные точки, представляющие собой температуры фазового равновесия чистых веществ, и наличие линейной связи между температурой и термометрическими свойствами жидкости.
Связь между шкалами Цельсия, Реомюра и Фарангейта можно представить соотношением toC = 1,25oR = (5/9)(toF – 32).
Создание температурной шкалы, не зависящей от термометрических свойств вещества (абсолютной шкалы), принадлежит Кельвину (1848 г.). Термодинамическая (абсолютная) шкала основана на втором законе термодинамики. В соответствии с этим законом коэффициент полезного действия тепловой машины, работающей по обратимому циклу Корно, определяется только температурами нагревателя и холодильника и не зависит от свойств вещества. Кельвиным для определения температуры было предложено использовать равенство Тн/Тх = Qн/Qх ,
где Тн, Тх – соответственно температура нагревателя и холодильника;
Qн, Qх – соответственно количество теплоты, полученное рабочим веществом от нагревателя и отданное холодильнику.
Кельвин – 1/273,16 часть термодинамической температуры тройной точки воды. Термодинамическая температура может быть также выражена в градусах Цельсия: t = Т – 273,15 К.
В настоящее время действует принятая на ХIII конференции по мерам и весам усовершенствованная шкала под названием "международная практическая температурная шкала 1968" (МПТШ – 68). Температуры МПТШ – 68 снабжаются индексами Т68 или t68.
МПТШ – 68 основывается на ряде воспроизводимых состояний равновесия (реперных точек) некоторых веществ – 11 основных и 27 вторичных реперных точек, охватывающих диапазон температур от 13,956 до 3660 К (от –259,194 до 3387 оС). Числовые значения температур по основным реперным точкам, приведенные в табл. 4.2, соответствуют термодинамической шкале и определены с помощью газовых термометров.
Таблица 4.2
Основные реперные точки МПТШ – 68
|
Состояние равновесия |
Температура |
Состояние равновесия |
Температура |
||
|
Т68 К |
t68, оС |
Т68 К |
t68, оС |
||
|
Тройная точка водорода |
13,81 |
-259,34 |
Точка кипения воды |
373,15 |
100 |
|
Точка кипения водорода |
20,28 |
-252,87 |
Точка затвердевания олова |
505,1181 |
231,9681 |
|
Точка кипения неона |
27,102 |
-246,048 |
Точка затвердевания цинка |
692,73 |
419,58 |
|
Тройная точка кислорода |
54,361 |
-218,789 |
Точка затвердевания серебра |
1235,08 |
961,93 |
|
Точка кипения кислорода |
90,188 |
-182,962 |
Точка затвердевания золота |
1337,58 |
1064,430 |
|
Тройная точка воды |
273,16 |
0,01 |
Газовые термометры бывают трех типов: постоянного объема, постоянного давления и постоянной температуры. В газовом термометре постоянного объема (рис.4.68) изменение температуры газа пропорционально изменению давления. Газовый термометр состоит из баллоны 1 и соединительной трубки 2, заполненных через вентиль 3 водородом, гелием или азотом (для высоких температур). Соединительная трубка 2 подсоединена к трубке 4 двухтрубного манометра, у которого трубку 5 можно перемещать вверх и вниз благодаря гибкому соединительному шлангу 6.
При измерении температуры объем системы,
заполненной газом, изменяется, и для
приведения его к первоначальному
значению трубку 5 вертикально перемещают
до тех пор, пока уровень ртути в трубке
4 не совпадет с осью Х-Х. При этом столб
ртути в трубке 5, отсчитанный от уровня
Х-Х, будет соответствовать давлению
газа Р в баллоне. Если при температуре
тройной точки воды Т0 давление газа в
баллоне равно Р0, то при измеренном
давлении Р искомая температура
.
Таблица 4.3
Единицы тепловых величин
|
Величина |
Наименование |
Обозначение |
|
|
Русское |
Меж-дуна-родное |
||
|
Температура |
Кельвин |
К |
K |
|
Количество теплоты |
Джоуль |
Дж |
J |
|
Теплоемкость, энтропия |
Джоуль на кельвин |
ДжК-1 |
JK-1 |
|
Тепловой поток |
Ватт |
Вт |
W |
|
Коэффициент теблообмена, коэффициент теплопередачи |
Ватт на квадратный метр-кельвин |
Втм-2К-1 |
Wm-2K-1 |
|
Коэффициент теплопроводности |
Ватт на метр-кельвин |
Втм-1К-1 |
Wm-1K-1 |
|
Температурный коэффициент линейного расширения |
Метр на метр-кельвин |
мм-1К-1 |
mm-1K-1 |
|
Температурный коэффициент объемного расширения |
Кубический метр на кубический метр-кельвин |
м3м-3К-1 |
m3m-3K-1 |
Интерполяция между реперными точками шкалы производится с помощью эталонных: платинового термометра сопротивления в интервале от 13,81 до 903,89 К; платинородий-платиновой термопары в интервале температур от 903, 89 до 1337,58 К; квазимонохроматического термометра с использованием закона излучения Планка при температуре свыше 1337,58 К.
По системе SI единицы некоторых тепловых величин, применяемые в Российской Федерации, приведены в табл. 4.3.
4.12.2. Механические контактные термометры
К механическим контактным термометрам относятся: дилатометрические, биметаллические, жидкостные стеклянные, жидкостные манометрические, конденсационные манометрические и газовые.
Дилатометрический термометр (рис. 4.69, а) выполняется в виде металлической трубки с большим температурным коэффициентом линейного расширения и стержня (например, фарфорового) с малым коэффициентом линейного расширения, скрепленных между собой.
Разность перемещений концов трубки и стержня, вызванная изменением температуры, воспринимается рачажно-зубчатой системой и передается на отсчетное устройство.
Биметаллический термометр (рис. 4.69, б) состоит из двухслойной металлической ленты с разными коэффициентами линейного расширения. Наибольшее распространение получили ленты из латуни и инвара. При изменении температуры лента изменяет форму, что передается на отсчетное устройство.
Жидкостный стеклянный термометр (рис. 4.69, в) имеет стеклянный баллон с капилляром, заполненный термометрической жидкостью. В связи с различием коэффициентов объемного расширения стеклянного баллона с капилляром и термометрической жидкости появляется возможность измерения температуры.
Жидкостный манометрический термометр (рис. 4.69, г) состоит из термобаллона, погружаемого в среду, температура которой подлежит измерению, соединительного металлического капилляра и упругого чувствительного элемента. Вся система заполнена термометрической жидкостью. При повышении температуры жидкость расширяется, что приводит к деформации упругого чувствительного элемента.
Конденсационный манометрический термометр (см. рис. 4.69, г) по конструкции повторяет жидкостный манометрический и отличается только тем, что его термобаллон частично заполняется низкокипящей жидкостью. Давление насыщенных паров над жидкостью, являющееся мерой температуры, преобразуется в перемещение упругого чувствительного элемента.
Газовый термометр рассмотрен в п 4.12.1 (см. рис. 4.68).
4.12.3. Электрические контактные термометры
Термометр сопротивления металлический (рис. 4.70, а) состоит из чувствительного элемента в виде терморезистора, защитного чехла и соединительной головки. Чувствительный элемент металлического термометра сопротивления выполняется в виде обмотки на каркасе из теплостойкого изоляционного материала.
О температуре судят по изменению электрического сопротивления его чувствительного элемента, падению напряжения на нем при постоянном токе или значению тока при постоянном напряжении.
Термометр сопротивления полупроводниковый (рис. 4.70, б) аналогичен металлическому, но его чувствительный элемент выполнен в виде шайбы или бусинки из полупроводникового материала с двумя электрическими выводами.
Термоэлектрический термометр состоит из термопары, защитного чехла и соединительной головки. Термопара служит чувствительным элементом и состоит из двух термоэлектродов из различных материалов. Один (холодный) спай термопары поддерживается при постоянной температуре. ТермоЭДС, развиваемая термопарой, является мерой температуры второго (горячего) спая. На рис. 4.70, в приведена схема стандартной термоэлектрической термопары, а на рис. 4.70, г – термопары в тонком чехле.
4.12.4. Пирометры излучения
Все физические тала, температура которых превышает абсолютный нуль, испускают тепловые лучи. Средства измерения, определяющие температуру тел по их тепловому излучению, называют пирометрами излучения, или пирометрами.
Тепловое излучение представляет собой электромагнитное излучение, испускаемое веществом за счет его внутренней энергии.
Ввиду того, что интенсивность теплового излучения резко убывает с уменьшением температуры тел, пирометры используются в основном для измерения температуры от 300 до 6000 °С и выше. Для измерения температур выше 3000°С методы пирометрии являются единственными, так как они не требуют непосредственного контакта датчика прибора с объектом измерения.
В качестве величин, характеризующих тепловое излучение тел, в пирометрии используется спектральная энергетическая светимость (интенсивность монохроматического излучения, или излучательность) Е*, полная энергетическая светимость (интегральная излучательность) Е*, а также спектральная энергетическая яркость В* (индекс * относится к абсолютно черному телу).
Пирометры, измеряющие яркостную температуру по спектральной яркости в видимой части спектра, называют оптическими и фотоэлектрическими.
Яркостной температурой Тя реального тела называют такую температуру абсолютно черного тела, при которой его спектральная яркость В*,Тя равна спектральной яркости реального тела В при его действительной температуре Т.
Приборы, измеряющие температуру по значению отношения энергетических яркостей в двух спектральных интервалах, называют цветовыми пирометрами, или пирометрами спектрального отношения.
Цветовой температурой Тц реального тела, имеющего истинную температуру Т, называется такая температура черного тела, при которой отношение его спектральных энергетических яркостей В*1Тц/В*2Тяц при длинах волн 1 и 2 равно отношению спектральных энергетических яркостей реального тела В1/В2 при тех же длинах волн.
Приборы, измеряющие температуру тела по интегральной излучательности, называют радиационными пирометрами, или пирометрами полного излучения. Если чувствительный элемент радиационного пирометра воспринимает интегральную излучательность не во всем диапазоне длин волн от 0 до , а в некотором ограниченном интервале длин волн от 1 до 2, то такой пирометр называют пирометром частичного излучения.
Радиационной температурой Тр реального тела, имеющего истинную температуру Т, называют такую температуру черного тела, при которой его интегральная излучательность Е* равна интегральной излучательности реального тела Е.
4.12.4.1. Приемники полного излучения
Приемники полного излучения отличаются тем, что их спектральная чувствительность постоянна в широком диапазоне длин волн от дальней инфракрасной области до ближней ультрафиолетовой. Их чувствительность не зависит от длины волны. Для увеличения поглощательной способности чувствительные поверхности приемников окрашивают в черный цвет. В длинноволновой области (начиная с 20 мкм) чувствительные поверхности приемника выполняются в виде незачерненных металлических слоев определенной толщины. Для уменьшения теплоотвода в среду приемник излучения помещают в вакуумированные или газонаполненные корпуса. Применяются следующие типы приемников полного излучения: термобатареи, болометры, тепловые быстродействующие индикаторы, пироэлектрические кристаллы и др.
Термобатареи выполняются на основе термопар, соединенных последовательно (до 20 термопар). Их горячие спаи располагаются на узком участке поверхности, на который фокусируется излучение. Термопары выполняются в виде тонкой фольги, проволоки или тонкой пленки, полученной методом испарения в вакууме.
Болометры — это термометры сопротивления, изготовленные либо из фольги проводящих материалов с температурным коэффициентом сопротивления R 10-3 К-1, либо из полупроводников (термисторов) с R 10-3 К-1. Чувствительная поверхность болометра из фольги для увеличения поглощающей способности зачерняется.
Схемы включения болометров требуют наличия источника питания.
Тепловые быстродействующие индикаторы выполняются в виде тонкослойной термопары или болометра, в которых активный слой имеет хороший тепловой контакт с основанием. Это дает возможность достичь сравнительно высокого быстродействия. Поэтому они используются в первую очередь для идентификации мощных сигналов, например, для регистрации высокочастотного модулированного лазерного излучения.
Пироэлектрические приемники излучения — это кристаллы с определенным видом симметрии, в которых в зависимости от изменения температуры проявляется эффект спонтанной поляризации. Поэтому данные приемники излучения не требуют дополнительных источников питания.
Сильнее всего пироэлектрические свойства проявляются в таких материалах, как монокристаллы и керамика титаната бария, монокристаллы триглицинсульфата и ниобата бария-стронция.
4.12.4.2. Фотоэлектрические приемники излучения
Спектральная чувствительность фотоэлектрических приемников излучения неодинакова для различных длин волн и наиболее велика в видимой и ближней инфракрасной областях спектра. По сравнению с приемниками полного излучения фотоэлектрические обладают большим быстродействием и имеют более протяженные светочувствительные поверхности.
Такие приемники могут быть с внутренним фотоэффектом (фотоэлементы, фотодиоды, фототранзисторы, фоторезисторы) и с внешним фотоэффектом (фотоэлементы с внешним фотоэффектом, фотоумножители).
Фотодиоды— это структура, в которой при поглощении фотона образуется пара электрон - дырка. Возникающая разность потенциалов является мерой потока излучения.
Фототранзисторы представляют собой структуру, базовая область которой может облучаться светом. Фототранзистор служит, таким образом, одновременно и усилителем фототока, поэтому по сравнению с фотодиодом он имеет на порядок большую чувствительность, однако меньшее быстродействие.
Фоторезисторы — это полупроводниковые элементы, меняющие свою электропроводность под действием излучения. Благодаря большой допускаемой мощности рассеяния с помощью фоторезисторов можно коммутировать большие токи, достаточные для переключения электромагнитных реле.
Фотоэлементы с внешним фотоэффектом выполняются обычно в виде стеклянного вакуумированного или газонаполненного баллона, внутри которого размещаются анод и катод в виде фоточувствительного слоя, нанесенного на внутреннюю поверхность баллона.
При освещении фотокатода освобождаются электроны, и при подключении анодного напряжения от внешнего источника возникает фототок, пропорциональный потоку излучения.
Фотоэлементы с внешним фотоэффектом обладают высоким внутренним сопротивлением и работают при больших разностях потенциалов, поэтому их выходные сигналы можно использовать непосредственно для управления исполнительными устройствами.
Фотоэлектронный умножитель (ФЭУ) — это устройство, содержащее в одном баллоне вакуумный фотоэлемент и вторичный электронный усилитель. Поток излучения освобождает из фотокатода электроны, которые разгоняются в электрическом поле и фокусируются на эмиттеры (диноды). При попадании каждого ускоренного электрона на динод освобождается от 5 до 10 новых электронов. Фотоумножители могут иметь 9 – 14 динодов и увеличивать общее число фотоэлектронов в 109 раз.
4.12.4.3. Пирометры
Все пирометры подразделяются на: пирометры полного излучения (пирометры с преломляющей и отражающей оптическими системами), квазимонохроматические пирометры (пирометры с исчезающей нитью и с оптическим клином), пирометры спектрального распределения (пирометры сравнения и спектрального отношения).
В пирометрах полного излучения используется не менее 90 % суммарного потока излучения источника. При измерении температуры реального тела пирометр полного излучения показывает не действительную, а так называемую радиационную температуру тела. При известном суммарном коэффициенте черноты тела возможен пересчет с радиационной температуры тела на его действительную температуру.
Недостатком пирометров полного излучения является то, что для определения действительной температуры необходимо знать коэффициенты черноты, а точность показаний пирометра зависит не только от стабильности коэффициента черноты, но и от поглощения излучения окружающей средой и оптической системой пирометра. Пирометры полного излучения удобно использовать поэтому не при измерении действительной температуры, а при измерениях разностей температур в неизменных условиях наблюдения.
В пирометрах с преломляющей оптической системой (рис. 4.71, а) излучение от объекта 1 через линзовый объектив 2 и диафрагму 3 поступает на приемник полного излучения 4. Для наводки на объект измерения служит окуляр 6 с дымчатым светофильтром 5 и диафрагмой 7. Отсчетным устройством является милливольтметр 8.
В пирометрах с отражающей оптической системой (рис. 4.71, б) излучение от объекта 1 попадает на приемник излучения 5 после прохождения через защитную полиэтиленовую пленку 2, диафрагму 3 и вогнутое зеркало 4. Для наводки на объект излучения служит зрительная труба 6, отсчет показаний производится по шкале милливольтметра 7. Полиэтиленовая пленка прозрачна для инфракрасного излучения и служит для защиты оптической системы пирометра от загрязнения и потоков воздуха.
Квазимонохроматические пирометры частичного излучения работают в узком диапазоне длин волн. При измерении устанавливается связь между действительной и яркостной температурой
В пирометрах с исчезающей нитью (рис. 4.72, а) в задней фокальной плоскости объектива 2 размещается нить лампы накаливания 3. Оператор 7 через окуляр 4, диафрагму 5 и фильтр 6 видит изображение нити лампы на фоне объекта 1. Наблюдение ведется в монохроматическом свете (обычно = 0,65 мкм), создаваемом фильтром из красного стекла. С помощью реостата силу тока через лампу накаливания изменяют до тех пор, пока спектральные интенсивности излучения нити лампы и объекта не станут равными друг другу. В этот момент изображение нити исчезает на фоне объекта. Миллиамперметр 8 можно проградуировать в градусах температуры.
Пирометр с оптическим круговым клином (рис. 4.72, б) является модификацией вышеописанного пирометра. В нем яркостную температуру нити лампы накаливания 3 поддерживают постоянной, а уравнивание яркостей осуществляется перемещением оптического клина 2, пропускающего больше или меньше света от объекта 1. По положению клина можно судить о яркостной температуре объекта.
Пирометры спектрального распределения основаны на использовании зависимости интенсивности спектрального излучения нагретых тел от температуры и длины волны излучения. Мерой температуры может быть цвет излучающего объекта или отношение спектральных интенсивностей на двух различных длинах волн.
Поскольку в большинстве случаев характер зависимости спектральной интенсивности излучения от длины волны приблизительно одинаков для черного тела и реальных излучателей, то и различие между цветовой и действительной температурами невелико.
В пирометрах сравнения (рис. 4.73, а) отношение спектральных интенсивностей оценивается субъективно по цветовому ощущению, создаваемому смесью двух монохроматических пучков. Излучение от объекта 1 через объектив 2, нейтральный оптический клин 3 и двойной светофильтр 4 направляется к фотометрическому кубику 5. Двойной светофильтр выполнен в виде двух клиньев (красного и зеленого), относительным перемещением которых можно изменять соотношение между интенсивностями красного и зеленого цветов. На фотометрический кубик поступает также излучение от лампы накаливания 12 через матовое стекло 11, красный и зеленый светофильтры 10 и объектив 9. Через окуляр 6 и диафрагму 7 наблюдатель 8 видит два участка, соответствующих излучению от объекта и лампы, окрашенных смесью зеленого и красного цветов с различным соотношением их интенсивностей. Взаимным смещением оптических клиньев двойного светофильтра уравнивают соотношение интенсивностей красного и зеленого цветов излучения объекта и излучения лампы накаливания. Для уравновешивания .соотношения цветов необходимо равенство яркостей излучения объекта и лампы. Этого добиваются изменением положения нейтрального оптического клина 3. После уравновешивания положения нейтрального клина определяют яркостную температуру; положение одного из клиньев двойного светофильтра 4 определяет цветовую температуру объекта.
Оператор, работающий с пирометром сравнения, должен, конечно, обладать хорошим цветоощущением. В пирометрах спектрального отношения (рис. 4.73, б) вводится модуляция светового потока. Световой поток, пройдя от измеряемого объекта 1 через объектив 2, прерывается обтюратором с двумя светофильтрами 4, пропускающими излучение на двух длинах волн (1 и 2), к фотоэлементу 5. Переменная составляющая выходного сигнала фотоэлемента усиливается усилителем 6 и подается на реверсивный двигатель 7, который перемещает уравновешивающий фильтр 3 до тех пор, пока не уравняются интенсивности излучения на обеих длинах волн. В положении равновесия перемещение фильтра является мерой измеряемой температуры.
Основное преимущество пирометров спектрального отношения заключается в независимости их показаний от излучательной способности объекта, а также от наличия дыма, пыли и испарений в пространстве между объектом и пирометром.
288

БВ-5033.
БВ-5053, БВ-936. БВ-5030, БВ-5058, УКМ-5 и др.

