Цех производства пивных дрожжей (работа 1)
Санкт-Петербургский Государственный Университет
Низкотемпературных и Пищевых Технологий
"Цех производства пивных дрожжей"
Работу выполнил студент
245 группы
Бокань Е.С
Работу приняла
Матвеева
Содержание
Введение
Состав пивных дрожжей
Производство сухих пивных дрожжей
Дрожжерастительные чаны
Дрожжегенератор
Сушка дрожжей
Вальцовые вакуум – сушилки
Уход за дрожжами
Заключение
Введение
Дрожжи — сборная группа одноклеточных грибов из различных классов (сумчатые, базидиальные, несовершенные). Широко распространены в природе, особенно там, где имеются сахаристые вещества (ягоды, фрукты, нектар цветов, молочные продукты и т.д.). В связи со способностью дрожжей производить спиртовое брожение сахаров их используют в хлебопечении, виноделии, пивоварении, спиртовом и глицериновом производстве, в молочной, медицинской и микробиологической промышленности, в производстве витаминов, для получения эргостерина (провитамин D2), нуклеиновых кислот, в сельском хозяйстве и т.п .Дрожжи содержат высококачественный белок, углеводы, богаты витаминами группы В. Жидкие пивные дрожжи улучшают секрецию желудка и поджелудочной железы, усиливают всасывание пищевых веществ в кишечнике, повышают сопротивляемость организма к инфекциям. Их назначают при анемиях, сахарном диабете, фурункулёзе, язвенной болезни, невралгиях и т.п., а также при необходимости повысить содержание белков в пищевом рационе. Употребляют также сухие медицинские дрожжи в таблетках. Основные химические продукты, производимые на основе дрожжей, витамины группы В: холин, тиамин (В1), пиридоксин (В6), пантотеновая кислота (В3), фолиевая кислота.
В свежем виде пивные дрожжи представляют собой нестойкий продукт, и разложение их при комнатной температуре начинается через несколько часов, а при температуре 30 С - через 20-30 минут.
Наилучший метод консервирования дрожжей - это сушка. В сухом виде (при содержании влаги около 10%) дрожжи сохраняются в течение длительного времени.
При получении кормовых дрожжей, сушке подвергаются необезгореченные дрожжи, но для получения пищевых и лечебных продуктов, дрожжи предварительно должны быть обезгоречены.
Необходимость переработки пивных дрожжей обусловлена огромной пищевой ценностью данного продукта.
Дрожжи являются более богатым источником белков, чем мясо. 1 кг сухих дрожжей дает 4520 ккал, в то время как 1 кг мяса средней жирности – 1720 ккал. Дрожжи содержат в достаточном количестве 5 из 6 основных аминокислот, из которых организм создает свой белок.
В дрожжах содержится глютатион, регулирующий процессы окисления и восстановления, и ряд других веществ, полезных для нормального обмена веществ в живом организме. Причем пивные дрожжи значительно богаче витаминами, чем пекарские.
Химический состав дрожжей и содержание в них витаминов и других биокатализаторов дают возможность использовать их в качестве материала для получения лечебных и питательных препаратов, а так же как хороший белковый корм для птиц и свиней.
Бродильная активность дрожжей характеризуется степенью сбраживания сусла (%) С= (Е-е)100/Е,
Пивные дрожжи в природе встречаются редко и при этом весьма отличаются от тех облагороженных дрожжей, что применяются для производства пива. Столетия селекционного отбора понадобились людям для выведения пригодных для этой цели штаммов. Всего известно не менее 500 типов дрожжей применяемых в пивоварении.
В производстве пива используют два разных вида дрожжей в зависимости от того, какую технику брожения и какой сорт пива предпочитают. Эти два вида: дрожжи верхового брожения, дрожжи низового брожения.
Дрожжи верхового брожения применяются при производстве, к примеру, портера, эля, стаута и большинства сортов пшеничного пива. Дрожжи низового брожения - при изготовлении лагерного пива и пива среднеевропейских сортов. Названия этих двух типов дрожжей произошли от способности дрожжей верхового брожения собираться в завершающей стадии брожения на поверхности пива, в то время как дрожжи низового брожения по окончании процесса опускаются на дно бродильной ёмкости. Разные типы дрожжей придают пиву различный вкус. Дрожжи верхового брожения формируют "шапку" на поверхности сусла, предпочитают температуры 14—25°C (поэтому верховое брожение также называются тёплым) и выдерживают более высокие концентрации спирта. Дрожжи низового (холодного) брожения имеют оптимум развития при 6—10°C и оседают на дно ферментёра.
Таблица №1. Химический состав и усвояемость пивных дрожжей
-
Показатели
Содержание, %
Усвояемость, %
Влажность
8 -12
-
Белковые вещества
43 - 55
90
Жир
2 - 3
81
Безазотистые экстрактивные вещества
25 - 35
75
Клетчатка
0,4 – 0,7
95
Зола
6 - 8
-
Таблица № 2. Содержание витаминов в пивных дрожжах
-
Витамины
Содержание в дрожжах из бродильни, мг/100г
В>1>
0,8
В>2>
5,0
РР
29,4
Е
2,0
В>6>
3,6
Состав пивных дрожжей
Белки, аминоксилоты (лизин, гистидин, аргинин, аспарагиновая кислота, треонин, серин, глутаминовая кислота, пролин, глицин, аланин, цистин, валин, изолейцин, лейцин, тирозин, фенилаланин), углеводы, витамины (В1 - тиамин, В2 - рибофлавин, В3 - пантотеновая кислота, В5 - никотиновая кислота, В6 - пиридоксин, Н - биотин, Вс - фолиевая кислота), минеральные вещества (железо, цинк, марганец, медь, калий, фосфор, сера).
Помимо уже умеющихся компонентов в пивные дрожжи по специальной технологии можно добавлять и другие компоненты, не свойственные изначальному составу пивных дрожжей. Таким образом получаются пивные дрожжи с цинком, пивные дрожжи с селеном и т.д.
Производство сухих пивных дрожжей

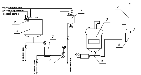
Рис. 2 Технологическая схема производства сухих пивных дрожжей:
1 – чан для дрожжевой суспензии; 2 – сетчатый цедильник; 3 – сепаратор; 4 – бак–накопитель; 5 –сушилка; 6 – пневмотранспорт;7 – циклон; 8 – сборник–накопитель продукта;
После периода главного брожения остаточные пивные дрожжи из бродильни передаются в чан, где разбавляются холодной водой в отношении 1:4 и выстаиваются при непрерывном перемешивании в течении 10 минут.
Полученная дрожжевая суспензия подаётся через сетчатый фильтр на сепаратор, где происходит разделение на промывочную воду, которая уходит в канализацию, и помытую дрожжевую суспензию, которая насосом подаётся в бак – накопитель. Затем, после опустошения чана дрожжевая суспензия подаётся обратно в чан, где к ней добавляется в пропорции 4:1 1% раствор NaCl. В солевом растворе дрожжевая суспензия выдерживается в течении 30 минут при постоянном перемешивании.
После обработки солевым раствором смесь подаётся на сепаратор, где отделяется солевой раствор, уносящийся в канализацию от обезгореченной дрожжевой суспензии, которая насосом подаётся в бак – накопитель. Далее смесь снова поступает в чан для помывки от солевого раствора водой в пропорции 1:4 в течении 10 минут, затем через сепаратор и насос обратно в бак – накопитель. Цикл промывки от соли повторяется 3 раза.
В конце промывки дрожжевая суспензия из бака – накопителя постепенно поступает для сушки в двухвальцовую вакуум – сушилку. На вальцах дрожжи высыхают при пониженном давлении и температуре 40 – 45Co. Толщина сходящей с вальцов плёнки сухих дрожжей согласно требованиям не должна превышать 0,1 – 0,2 мм.
Полученная тонкая плёнка дрожжей посредством шлюзового затвора попадают в пневматическую установку нагнетательного типа, которая подаёт сухие дрожжи в циклон, где после фильтрации они попадают в сборник для упаковки. При переноске продукта воздухом с температурой 10оС происходит одновременное его охлаждение и досушивание. Температура смеси воздуха с продуктом на входе в циклон равна ≈ 12оС.
Производство и переработка дрожжей
Установка предназначена для производства чистой массовой культуры дрожжей в любых количествах.
Установка переработки дрожжей
Дрожжевая комплексная установка переработки дрожжей предназначена для приёма и обработки снятых дрожжей для их дальнейшего использования в технологическом процессе, а также для товарного использования.
Дрожжерастительные чаны.
-
Назначение – для непрерывного выращивания чистой культуры дрожжей на сусле гидролизного производства.
Номинальный объем, м3 – 320
Производительность по приточному суслу; м3/час – 20-30
Расход воздуха, м3/час – до 5000
Давление воздуха, кг/см2 – избыточное до 0,6
Поверхность охлаждения рубашки диффузора, м2> >– 30
Температура, ˚С – плюс 36 - 38
Масса, кг – 19705

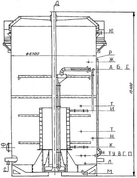
Чан дрожжерастительный объемом 320 метров куб.
Таблица штуцеров
|
Обозначение |
Наименование |
Кол-во |
Проход усл. Dу, мм |
Давление условное Ру |
|
|
кгс/см2 |
МПа |
||||
|
А |
Вход сусла |
1 |
100 |
10 |
1,0 |
|
Б |
Вход чистой культуры дрожжей |
|
50 |
10 |
1,0 |
|
В |
Вход дрожжевой суспензии |
1 |
150 |
10 |
1,0 |
|
Г |
Резервный |
1 |
150 |
10 |
1,0 |
|
Д |
Вход воздуха |
1 |
300 |
2,5 |
0,25 |
|
Е |
Вход воды |
1 |
80 |
10 |
1,0 |
|
Ж |
Вход питательных солей |
1 |
50 |
10 |
1,0 |
|
И |
Выход воды из змеевика |
1 |
80 |
10 |
1,0 |
|
К |
Вход воды в змеевик |
1 |
80 |
10 |
1,0 |
|
Л |
Карман для термометра |
1 |
1" |
- |
- |
|
М |
Слив в канализацию |
1 |
80 |
10 |
1,0 |
|
Н |
Вход аммиачной воды |
1 |
32 |
10 |
1,0 |
|
П |
Вход воды |
1 |
|
|
|
|
Р |
Для указателя уровня |
1 |
50 |
- |
- |
|
С |
В канализацию |
3 |
150 |
10 |
1,0 |
|
Т |
Для отбора проб |
4 |
3/4" |
- |
- |
|
У |
РН- отбор |
1 |
25 |
10 |
1,0 |
|
Ф |
Люк |
1 |
500 |
3 |
0,3 |
|
Ю |
Вход воды в коллектор |
1 |
100 |
10 |
1,0 |
Дрожжегенератор объемом 100 м.куб
Назначение – выращивание дрожжей
Объем, м3 – 100
Давление, МПа (кгс/см2) – атмосферное
Температура, ˚С – плюс 35…38
Среда – барда слабокислая, нетоксичная
Материал – сталь 12Х18Н10Т по ГОСТ 5632-72
Группа аппарата – 5б по ОСТ 26-291-87
Масса, кг – 7400
Таблица штуцеров
-
Обозначение
Наименование
Кол-во
Проход усл. Dу, мм
Давление условное Ру
кгс/см2
МПа
А
Дегазация
100
10
1,0
Б
Люк
500
1
0,1
В
Впуск кислоты
150
-
-
Г
Подача воздуха
100
Д
Возврат продукта
1
40
10
1,0
Е
Запасной
Ж
Сцеживание
70
И
Опорожнение
40
К
Замер температуры
2
20
Л
Отбор проб
М
Смотровое окно
1
50х300
-
-
Н
Люк
500
П
Люк
2
300х600
Р
Вход сусла
80
Ф
Дополнительный вход воды
1
65
10
1,0
С
Вход воды
Сушка дрожжей
Сушка является наиболее распространенным способом консервации дрожжей. Сухие дрожжи с содержанием 8—10% воды имеет неограниченный срок хранения, если хранить их в соответствующей упаковке и в сухом помещении. На пивоваренных заводах для сушки используют вальцовые сушилки. Это полые, чугунные цилиндры, обогреваемые паром. Цилиндр в горизонтальном положении погружен нижней частью кожуха в сборник с дрожжами и при вращении захватывает на свою поверхность дрожжи. Цилиндр обогревается паром от 0,3 до 0,35 МПа (3—3,5 атм) и на поверхности имеет температуру 130—135°С. Цилиндр вращается с частотой 6 об/мин и дрожжи высыхают за один оборот, т. е. за 8—10 с. Тонкая пленка сухих дрожжей соскабливается ножом раньше, чем соответствующая часть кожуха цилиндра снова погрузится в дрожжи. Сухие дрожжи попадают на шнек, с которого ссыпаются в мешки или отправляются дальше.
Вальцовые сушилки в зависимости от длины цилиндра имеют производительность от 50 до 600 кг жидких дрожжей в час. Они могут быть также двухвальцовыми. Размер сушилки следует выбирать так, чтобы жидкие дрожжи не хранились дольше чем 3 дня и чтобы аппарат использовался всю неделю в одну или две смены. Аппараты производительностью ниже чем 100 л/ч не экономичны. Обычно в сушилке перерабатываются дрожжи с нескольких пивоваренных заводов. Помещение, где сушатся дрожжи, должно содержаться в безупречной чистоте. Следует заботиться о том, чтобы сухие дрожжи не распылялись. Помещение не должно находиться вблизи производственных помещений пивоваренного завода потому, что старые, подвергшиеся автолизу дрожжи, при сушке издают сильный запах.

Вакуум-сушилки: а — одновальцовая; б — двухвальцовая; 1 — полый барабан (валец); 2 — корпус; 3 — корыто; 4 — распределительный валик; 5 — нож; 6 — шнек; 7 — приёмный колпак; 8 — сборник; 9 — вальцы; 10 — наклонные стенки.
Сушеные дрожжи пригодны для дальнейшей переработки, поскольку при сушке инактивируются только ферменты, а остальные биологически важные компоненты, главным образом витамины, сохраняются.
Для особых случаев, т. е. если следует сохранить ферменты и другие нестойкие вещества в первоначальном виде, дрожжи высушивают в распылительных сушилках.
Распылительная сушилка (рис. 76) —это сложное устройство, основная часть которого представляет собой хорошо изолированный цилиндр с коническим дном. В цилиндр снизу подается воздух, нагретый до температуры 144°С, и в противотоке дрожжи распыляются вращающимися форсунками при частоте вращения их 15 000 об/мин. Центробежной силой дрожжи распыляются в тонкий туман и быстро высушиваются. При удалении тепла за счет быстрого испарения дрожжи охлаждаются так, что температура на их поверхности не превышает 60°С. При этой температуре не изменяется ни содержание витаминов, ни состав белков. Такое сушильное устройство однако довольно дорого и его эксплуатация тоже дорога; поэтому его используют только для производства дорогих препаратов, например фармацевтических, и дополнительного питания.
Вальцовые вакуум- сушилки
Представляют собой обогреваемые изнутри медленно вращающиеся металлические вальцы. Количество оборотов вальца и его температура регулируются таким образом, чтобы жидкость, нанесенная тонким слоем, высушивалась прежде, чем валец успеет завершить полный оборот. Высушенный материал с вальца снимают скребком. Известно несколько конструкций сушилок этого типа.
Одновальцовая сушилка с погруженным вальцом (рис. 7ниже. )

Эта сушилка пригодна только для разведенных растворов или извлечений.
Одновальцовая сушилка с непогруженным вальцом (.рис. 71, б). Между вальцом и жидкостью имеется питающий валик, при помощи которого может регулироваться слой жидкости. Исключен перегрев. Эта сушилка рациональнее, чем предыдущая.
Двухвальцовая сушилка (рис. 71, в; 72). Вальцы вращаются в противоположные стороны. Высушиваемая жидкость подается в просвет между ними. Толщина слоя определяется расстоянием между вальцами. Внутри кожуха 8 вращаются два полых вальца 9, обогреваемых изнутри паром, поступающим по паропроводу 1. Одновременно пар подается в рубашку кожуха, благодаря чему предупреждаются охлаждение и конденсация паров на поверхности кожуха. Конденсат из вальцов и паровой рубашки выводится через конденсационный горшок в трубу 5. Вытяжка засасывается в сушилку из сборника 21 по трубопроводу 2 благодаря вакууму в линии 4. Высушенная корочка сухого экстракта снимается скребками 10, которые прижимаются к вальцам при помощи винтов 11. Сухой экстракт ссыпают в приемник 13. За процессом сушки наблюдают через смотровые стекла 12. Пары отсасывают из сушилки через трубу 4а. Вначале они поступают в пылеуловитель 14, а затем направляются в трубчатый конденсатор 15, охлаждаемый (как и пылеуловитель) холодной водой, поступающей из трубопровода 6. Теплая вода вытекает через трубу 7. За образованием конденсата наблюдают через смотровое стекло 12. Из сборника конденсатора 15 при помощи ротора 19 воздушного вакуум-насоса выкачивают воздух, который через предохранительный горшок выхлопа 17 попадает в мокро-воздушный насос 18, поршнем которого 20 воздух выбрасывается в атмосферу через патрубок 16. Охлаждающая насосы вода поступает из водопровода 6 и выводится по трубам 7. Сушильные вальцы в сушилке вращаются со скоростью 4-8 об/мин. Таким образом, продолжительность сушки колеблется в пределах 15-772 с. Производительность 40-50 кг/м2 в 1 ч при условии, что в сушилку подается предварительно упаренная вытяжка (30-50%).
Уход за дрожжами
Уже при съеме из чана дрожжи разделяются на семенные, предназначенные для дальнейшего разделения, и избыточные (отходы). Избыточные жидкие (или прессованные) дрожжи без обработки направляются для дальнейшего использования.
Прирост дрожжей и дрожжевой массы дрожжей типов S и P в сусле с разной экстр активностью приведен в табл. 21.
Зависимость прироста дрожжей и дрожжевой массы от типа дрожжей и экстрактивности сусла

Семенные дрожжи (ядро) можно сразу же после съема использовать для новой задачи. В этом случае их перемешивают с суслом, процеживают и используют для задачи. Утверждают, что этот процесс лучше всего отвечает их физиологическим свойствам и что их промывка и длительное хранение под водой ослабляют дрожжи. Однако на практике снятые дрожжи нельзя сразу же задавать и поэтому их хранят под водой на холоду. Отмечалось также, что промытые дрожжи более чистые, не содержат механических загрязнений, мертвых клеток и слизистых веществ, с поверхности клеток, клеточная оболочка их проницаема и сорбционные свойства лучше. Большинство пивоваров предпочитают задавать промытые дрожжи.
При промывке и хранении дрожжей обычно придерживаются простого и проверенного в практике процесса. Снятые семенные дрожжи разбавляют одинаковым объемом холодной воды, перемешивают скребком и процеживают через волосяное или металлическое сито в двух- или трехкратный объем холодной воды. После перемешивания дрожжи оставляют осесть и первую воду осторожно сливают, поскольку она еще содержит остатки экстракта. Дрожжи снова разбавляют холодной водой и основательно перемешивают. После второго перемешивания с водой дрожжи обычно уже чистые и хорошо оседают. При длительном хранении заменяют только воду с поверхности дрожжей, однако дрожжи с водой не перемешивают. Этот процесс называется промывкой дрожжей; при этом важно, чтобы дрожжи очистились наименьшим количеством воды, чтобы они не ослабли, и не было излишних потерь здоровых клеток. Вода для промывки должна быть холодной, т. е. ее температура должна быть ниже, чем температура перекачиваемого из чана пива, из которого были сняты дрожжи. Вода должна быть биологически чистой, и, кроме того, чтобы помешать быстрому изменению осмотического давления в дрожжевых клетках, лучше промывать дрожжи в жесткой воде. Поэтому для промывки и хранения дрожжей раньше использовали только артезианскую воду.
При значительном загрязнении дрожжей промывки недостаточно и поэтому используют другие различные способы. Для получения пива, содержащегося в снятых дрожжах, дрожжи сначала прессовали и потом снова разбавляли водой. Однако полученное пиво имеет плохие качества, оно терпкое, более интенсивно окрашено и имеет низкую кислотность.
По Люерсу, рН этого пива поднимается до 7,8 и если его прибавить к нормальному пиву, то в результате этого может повыситься его склонность к биологическим помутнениям. Промывка дрожжей в мойках разной конструкции имела свои недостатки. Требовалось большое количество промывной воды, здоровые клетки часто смывались промывной водой. Были попытки также добавлять к промывной воде различные химические реагенты, кислоты, основания или антибиотики для того, чтобы, с одной стороны, уничтожить загрязняющие микроорганизмы и, с другой — устранить из дрожжей слизистые вещества. Однако это вмешательство отрицательно влияло на дрожжи; ухудшало их агглютинирующие способности и снижало кислотные свойства. Эти процессы более подробно описаны в монографии Главачека и сотрудников "Пивные дрожжи". В настоящее время эти способы почти не применяются за исключением излишних дрожжей, предназначенных для непосредственного потребления населением.
Как правило, снятые дрожжи при хорошей организации производства транспортируют в специально предназначенное для этого помещение, которое должно находиться в бродильном отделении или поблизости, охлаждаться до температуры 4°С и хорошо проветриваться. Такое помещение обычно до потолка выложено плиткой, имеет асфальтовый пол без щелей и с достаточным уклоном к сборникам для отходов. В помещении находятся только ванны или резервуары другого типа для дрожжей; необходимые инструменты хранятся в другом помещении. Иногда здесь же находится алюминиевый танк с холодной водой для промывки дрожжей, который постоянно пополняется. Вместо деревянных ванн применяют опрокидывающиеся эмалированные, алюминиевые или из нержавеющей стали. Раньше эти ванны имели сдвоенное дно для охлаждения. Однако, если работают с охлажденной водой и температура помещения не выше 4°С, то дрожжи в ваннах уже не следует охлаждать.
Снятые дрожжи так же, как и при промывке, разбавляют холодной водой и процеживают через сито прямо в ванны. После осаждения дрожжей наклоном ванны вода сливается (может удаляться также темный слой с поверхности дрожжей) й дрожжи снова перемешиваются с холодной водой. Этот процесс можно повторять до тех пор, пока дрожжи не будут абсолютно чистыми, т. е. пока они не станут белыми и на поверхности не будет слоя грязи. После этого вода над дрожжами меняется один раз в день. Сохраняемые таким образом дрожжи в течение 4—6 дней не изменяют своих основных свойств и физиологического состояния.
На больших заводах транспортировка дрожжей и другие операции механизированы (рис. 71). Дрожжи из чанов откачивают непосредственно к месту хранения или выпускают вначале в специальные ванны и в них подвозят к насосу. Если дрожжи перекачивают непосредственно к месту хранения, то такая транспортировка более быстрая, чем при использовании ванн. Прежде чем дрожжи попадают в сборник, их очищают на вибрационном сите (рис. 72), находящемся прямо над ванной или резервуаром для дрожжей. Вибрационные сита электромагнитные и дрожжи перемещаются по их поверхности с одной стороны на другую. При использовании переменного тока с 50 периодами сито совершает 3000 колебаний в минуту и имеет размах около 1 мм. Отверстия сита имеют диаметр 0,4—0,6 мм. Жидкие дрожжи с содержанием! 35_90% воды при попадании на сито равномерно распределяются по всей его поверхности. Под влиянием вибрации они перемещаются по ситу, отделяются и процеживаются через него. Механические загрязнения постепенно перемещаются к противоположной стороне сита, где попадают в отходы. Вибрационное сито размером 400x500 мм имеет производительность 100 л/мин. Оно работает при незначительной подводимой мощности (0,15 кВт). Все сито изготовлено из нержавеющего материала и имеет устойчивую конструкцию; его можно легко разбирать и чистить.

Процеженные дрожжи улавливают в ванны или резервуары (чаны) соответствующей формы, чтобы они легко стекали из них. Эти резервуары должны быть достаточно большими, чтобы принять дрожжи одного типа из одного или нескольких чанов. Ванны бывают емкостью до 4 гл, чаны — до 10—12 гл. После перемешивания с водой дрожжи перекачивают в емкости, предназначенные для хранения дрожжей; в них они хранятся на холоду под водой, которая не меняется при кратковременном хранении. Насос для транспортировки дрожжей передвижной, чтобы его можно было перемешать от чана к чану. Конструкция насоса очень простая, чтобы он легко разбирался и очищался. Регулирование производительности обычно от 1 до 60 гл/ч должно быть точным, чтобы можно было определить количество транспортируемых дрожжей.


В помещении для хранения дрожжей имеется также прибор для переливания их. Часто отмеренное количества дрожжей перекачивают в специальный чан, где его перемешивают с необходимым объемом сусла и одновременно основательно продувают отфильтрованным воздухом. Аэрированную смесь дрожжей с суслом перекачивают в бродильный чан или чан предварительного сбраживания, или в трубопровод, по которому охлажденное сусло стекает в бродильные чаны. -
На рис. показана компоновка помещения для хранения дрожжей. На верхнем рисунке изображена система из трех емкостей для размножения дрожжей, а на нижнем – помещения, где находится вибрационное сито.
Заключение
За свою долгую историю, пиво не только приобрело всемирную популярность, но и обросло различными мифами и домыслами. Многие не верят, что в течении нескольких тысяч лет суть пивоварения не менялась и пиво по-прежнему остаётся чистым и полезным для здоровья продуктом. Дрожжи в пиве имеют очень большую ценность!!! Они очень полезные и придают пиву неповторимый вкус. Для изготовления дрожжей необходимо много дорогостоящего оборудования, но это того стоит, ведь пиво – всемирный напиток!!!
