Кинематический расчет привода (работа 1)
Содержание
1. Описание конструкции проектируемого привода
2. Кинематический расчет привода
2.1 Выбор электродвигателя привода
2.2 Назначение передаточных чисел
2.3 Расчет нагрузочных и кинематических характеристик
3. Расчет передач привода
3.1 Расчет зубчатой передачи
3.2 Расчет поликлинового ремня
4. Расчет и построение эпюр
4.1 Силы в зацеплении
4.2 Тихоходный вал
4.3 Быстроходный вал
5. Расчет валов на выносливость
5.1 Проверка на усталостную прочность быстроходного вала
5.2 Проверка на усталостную прочность тихоходного вала
6. Проверка подшипников качения на долговечность
6.1 Расчет долговечности подшипников 7207 быстроходного вала
6.2 Расчет долговечности подшипников 7209 тихоходного вала
7. Расчет элементов корпуса редуктора
8. Определение элементов зубчатых колес, шкивов
9. Подбор шпонок и проверочный расчет шпоночных соединений на прочность
10. Назначение посадок сопряжений деталей привода
11. Описание способа смазки передач и подшипников привода
11.1 Смазывание зубчатого зацепления
11.2 Смазывание подшипников
12. Описание порядка сборки редуктора привода
13. Список литературы
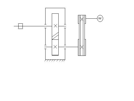
1. Описание конструкции проектируемого привода
Привод является неотъемлемой частью любой машины. Приводное устройство, разработанное в проекте, включает электродвигатель, вращение от которого посредством ременной передачи передаётся на редуктор и далее через муфту на другие устройства.
Из существующих типов электродвигателей выбирают преимущественно асинхронные электродвигатели трехфазного тока серии 4А.
Муфты используются для соединения концов валов или для соединения валов с расположенными на них деталями. Основное назначение муфт – передача вращающего момента без изменения его модуля и направления. Муфты могут выполнять другие функции: предохранять механизм от перегрузок, компенсировать несносность валов, разъединять или соединять валы во время работы.
Редуктором называют механизм, состоящий из зубчатых или червячных передач, выполненный в виде отдельного агрегата. Назначение редуктора – передача вращения от вала двигателя к валу рабочей машины, понижение угловой скорости и соответственно повышение вращающего момента ведомого вала по сравнению с ведущим. Редуктор проектируют либо для привода отдельной машины, либо по заданной нагрузке (моменту на выходном валу) и передаточному числу без указания конкретного назначения. Спроектированный в настоящем курсовом проекте редуктор:
Начальные данные:
Р>з >= 2 кВт;
n>з >= 60 об/мин;
Режим нагрузки – постоянный. Долговечность привода – 10000 часов. Редуктор с нижним расположением шестерни и горизонтальным расположением ременной передачи.

Соответствует условиям технического задания.
2. Кинематический расчет привода
2.1 Выбор электродвигателя привода
Общий коэффициент полезного действия (КПД) привода:

где
– КПД муфты,
=
0,98;
– КПД пары подшипников качения,
=
0,99;
– КПД зубчатой передачи,
=
0,97;
–
КПД клиноременной передачи,
=
0,93;
=
0,98·0,992·0,97·0,93
= 0,86
Расчетная требуемая мощность двигателя:
Р>т.р. >=
Р>з >/
где Р>з> –мощность электродвигателя, Р>з> =2 кВт;
Р>т.р. >= 2 / 0,885 = 2,33 кВт
Определяем требуемое число оборотов двигателя:
,
где
-
число оборотов двигателя,
-
передаточное число редуктора,
=4,
-
передаточное ременной передачи,
=3,
подбираем по таблице 5.5 приложения [1];
об/мин;
По данным таблицы 5.1 приложения [1] принимаем
электродвигатель 4А112МВ8У3, у которого:
-
мощность двигателя,
3
кВт,
-
синхронная частота вращения,
750
об/мин,
S – скольжение, S = 3.7%;
По формуле 5.7 приложения [1] определяем частоту вращения у нагруженного ротора:
n>дв>=n>с>(S-1) = 750(0.037-1) = 722.25 об/мин;
2.2 Назначение передаточных чисел
По формуле 5.1 приложения [1] определим общее передаточное число двигателя:
u>общ>=n>дв>/n>с>;
u>общ>=22.25 /60=12;
Уточняем передаточное число цепной передачи:
U>ц.п.>= u>общ>/u>ред.>;
U>ц.п.>=12/4=3;
Тогда получаем:
передаточное число редуктора
равно,
=4,
передаточное число ременной передачи, u>.ц.п.>= 3;
Расчет нагрузочных и кинематических характеристик
Силовые (мощность и вращающий момент) и кинематические (частота вращения и угловая скорость) параметры привода рассчитывают на валах из требуемой (расчетной) мощности двигателя и его номинальной частоты вращения при установившемся режиме.
Рассмотрим силовые и кинематические характеристики для каждого элемента привода
2.3 Расчет нагрузочных и кинематических характеристик
Ротор
электродвигателя:
P>2>=P>тр.>=2.33 кВт;
n>1>=n>дв>=722.25 об/мин;
ω>1>=π n>1>/30=(3.14*722.25)/30=75.6 с-1;
Т>1>=Р>1>/ ω>1>=2.33*103/75.6=30.82 Нм;
Быстроходный вал:
Р>2>=Р>1>*
*
=2.33*0.93*0.99=2.15
кВт;
n>2>=n>1>/u>ц.п>=722.25 /3=240.75 об/мин;
ω>2>=π*n>2>/30=3.14*240.75/30=25.2 с-1;
Т>2>=Р>2>/ ω>2>=2.15*103/25.2=85.32 Нм;
Тихоходный вал:
Р>3>=Р>2>*
*
=2.15*0.99*0.97=2.06
кВт;
n>3>=n>2>/ u>ред> =240.75/4=60 об/мин;
ω>3>=π* n>3>/30=3.14*60/30=6.3 с-1;
Т>3>=Р>3>/ ω>3>=2.06*103/6.3=327 Нм;
Вал рабочего органа:
Р>4>=Р>3>*
=2.06*0.98=2
кВт;
Т>4>=Р>4>/ ω>3>=2*103/6.3=320 Нм;
3. Расчет передач привода
3.1 Расчет зубчатой передачи
Выбор материала, вида термообработки и определение допускаемых напряжений зубчатых колес
В настоящее время основным материалом для изготовления зубчатых колес является сталь. В условиях индивидуального и мелкосерийного производства, предусмотренного техническими заданиями на курсовое проектирование, применяются колеса с твердостью материала не более 350 НВ. При этом обеспечивается чистовое нарезание зубьев после термообработки, высокая точность изготовления и хорошая прирабатываемость зубьев.
Для равномерного изнашивания зубьев и лучшей их прирабатываемости твердость шестерни НВ>1> назначают больше твердости колеса НВ>2>.
В зубчатых передачах марки сталей шестерни и колеса выбираем одинаковые. Для передачи, с косыми зубьями выбираем сталь марки 40ХН, с улучшенной термообработкой, с твердостью: для колеса – НВ 250, для шестерни – НВ 295 [3].
Допускаемые контактные напряжения, МПа:
,
где
–
предел контактной выносливости при
базовом числе циклов, по табл. 3.2 [1]
МПа;
МПа;
– коэффициент долговечности,
для длительной эксплуатации
=
,
где
N>HO>=15*106 – для шестерни;
N>HO>=24*106 – для колеса;
N>HE>>1>=60*n>2>*t=60*240.75*104=144.5*106 – для шестерни;
N>HE>>2>=60*n>3>*t=60*60*104=36*106 – для колеса;
=
=
0.89
– для шестерни;
=
=
0.98
– для колеса;
– коэффициент безопасности,
примем
=1,1.
МПа;
МПа;
Общее допускаемое контактное напряжение равно:
МПа;
Проектный расчет зубчатой передачи. Межосевое расстояние определяем по формуле 9.39[1], мм.:
;
где
;
;
;
148
мм;
По таблице 9.2[1] уточняем
160
мм;
Определяем модуль по таблице 9.1[1]:
m>n>=(0.01…0.02)*
=
0.02 * 160 = 3.2
по таблице m>n>=3;
Определяем ширину колеса и шестерни:
мм
– для колеса;
мм
– для шестерни;
Определяем угол наклона:
Sin(β)=π*m>n>/b>1>=3.14*3/64=0.147;
β=arcsin(0.147)=80;
Определяем общее число зубьев, шестерни и колеса:
Z>сум>
=2*
*cos(β)/
m>n>
=2*160*cos(80)/3=105;
Z>1>= Z>сум> /(u>ред>+1)=105/(4+1)=21;
Z>2>= Z>сум> - Z>1>=105-21=84;
Уточняем фактическое передаточное число:
u>ф.>=Z>2>/ Z>1>=84/21=4;
Δ=(u- u>ф.>)/ u>ф.>*100%=(4-4)/4*100%=0%;
Уточняем cos(β):
cos(β)=(
Z>1>+ Z>2>)*
m>n>
/2*
=(105*3)/2*160=0.99375;
Определяем диаметры колеса и шестерни по формуле 9.6[1]:
d>1>= m>n> * Z>1>/ cos(β)=3*21/0.99375=64 мм – для шестерни;
d>2>= m>n> * Z>2>/ cos(β)= 3*84/0.99375=256 мм – для колеса;
Проверим межосевое расстояние стр.146[1]:
=(
d>1>+d>2>)/2=(64+256)/2=159.5
мм;
Определим диаметры выступов и впадин шестерни и колеса по формуле 9.3[1]:
Шестерня:
d>выс>= d>1>+2* m>n>=64+3*2=70 мм;
d>вп>= d>1>-2.5* m>n>=64-3*2.5=56.5 мм;
Колесо:
d>выс>=d>2>+2* m>n>=256+3*2=262 мм;
d>вп>=d>2>-2.5* m>n>=256-3*2.5=248.5 мм;
Определим силы в зацеплении:
F>t>>1>=2*T>2>/d>1>=2*85.32/64=2.6 кН;
F>t>>2>=2*T>3>/d>2>=2*327/256=2.6 кН;
F>r>>1>= F>t>>1>*tg(α)/cos(β)=2.6*tg(200)/cos(80)=0.96 кН;
F>r2>= F>t2>*tg(α)/cos(β)=2.6*tg(200)/cos(80)=0.96 кН;
F>a1>= F>t1>*tg(β)= 2.6*tg(80)=0.37 кН;
F>a2>= F>t2>*tg(β)= 2.6*tg(80)=0.37 кН;
Определение скорости и степени скорости по таблице 9.9[1]:

Тогда:
м/с;
м/с;
S=9;
Проверочный расчет по формуле 9.42[1]:
;
275
1.88*cos(β)=1.88*cos(80)=1.74;

ε>a>=(1.88-3.2(1/z>1>+1/z>2>))cos(β);
ε>a>=(1.88-3.2(1/21+1/84)) cos(80)=1.68;
;

Коэффициенты
,
,
определяем по таблицам соответственно
9.12[1], 9.10[1], 9.13[1]:
=1.11;
=1.026;
=1.25;
K>H>=1.11*1.026*1.25=1.41075;
МПа;
Определяем погрешность:
Δ=
Расчет зубьев при изгибе по формуле 9.44[1]:
;
Y>F>>1> и Y>F>>2 >зависят от z>υ>=z/ cos3(β):
z>υ1>=z>1>/cos3(β)=21/ cos3(80)=21.62;
z>υ2>=z>2>/cos3(β)=84/ cos3(80)=87;
Тогда по таблице 9.10[1] Y>F>>1> и Y>F>>2 >соответственно равны:
Y>F>>1>=4.09;
Y>F>>2>=3.61;
Допускаемое напряжение определяем по формуле 9.14[1]:
;
Пределы изгибной выносливости определяем по таблице 9.8[1]:
HB;
HB;
,
,
определяем по [1] стр.152
=1;
=1.5;
=1.8;
МПа;
МПа;
Определим по колесу или по шестерне будем вести расчет:

Расчет ведем по меньшей из величин

так как
меньше то расчет ведем по шестерне,
тогда
;
;
;
;
;
;
МПа;
;
3.2 Расчёт цепной передачи
Выбираем цепь приводную роликовую
однорядную ПР (по ГОСТу 13568-75) и определяем
шаг цепи
,
мм:
;
где Т>1> – вращающий момент на ведущей звёздочке, Hм;
– число зубьев той же звездочки;
– допускаемое давление,
приходящееся на единицу проекции опорной
поверхности шарнира,
=26
H/мм2;
– коэффициент, учитывающий
условия монтажа и эксплуатации цепной
передачи;
Предварительно вычисляем величины, входящие в формулу
Коэффициент:

>где >
>,
>
>,
>
>,
>
>,
>
>,
>
>.>
;
- число зубьев ведущей звёздочки

Согласно [2], скорости 0,86 м/с соответствует допускаемое давление принимаем равным 26 Н/мм. V – число рядов цепи принимаем равным 1;
мм
мм.
Определяем число зубьев ведомой звёздочки:
.
Определяем фактическое передаточное
число
и проверяем его отклонение
от
заданного:


Определяем оптимальное межосевое расстояние а, мм :

- стандартный шаг цепи.
Тогда, межосевое расстояние в шагах:

Определяем число зубьев цепи
:


Уточняем межосевое расстояние
в шагах:


Определяем фактическое расстояние, мм:

Монтажное межосевое расстояние, мм:

Определяем длину цепи
,
мм:

Определяем диаметр звёздочек, мм:
– диаметр делительной окружности, мм:
– ведущей звёздочки:

– ведомой звёздочки:

– диаметр окружности выступов:
– ведущей звёздочки:

– ведомой звёздочки:

где
– коэффициент высоты зуба,
= 0.7;
– коэффициент числа зубьев ведущей и
ведомой звездочек;


– геометрическая характеристика
зацепления:

Диаметр окружности впадин, мм.:
– ведущей звёздочки:

– ведомой звёздочки:

Проверочный расчёт
Проверяем частоту вращения
меньшей звёздочки
,
:



Проверим число ударов цепи о
зубья звёздочек
,
:




Определяем фактическую скорость
цепи
,
:

Определяем окружную силу, передаваемую цепью, Н.:

Проверяем давление в шарнирах цепи, Н/мм2:

где
– площадь проекции опорной поверхности
шарнира,
=181.54
мм2;

Допускаемое давление в шарнирах
цепи
уточняем в соответствии с фактической
скоростью цепи [2]:
=27
Н/мм2.
26.5<27
Проверяем прочность цепи:

где
– допускаемый коэффициент, запаса
прочности для роликовых цепей;
– расчетный коэффициент запаса прочности;





>Выбираем допускаемый коэффициент запаса прочности из [2] для роликовых втулочных цепей ПР:>

Получаем:
7,5≤23.4
Определяем силу давления цепи на вал, Н.:

где
=1,375;
=263,22
Н;
=2822
Н;

4. Расчет и построение эпюр
4.1 Силы в зацеплении
Окружная сила, Н.:
– на шестерне:

– на колесе:


Радиальная, Н.:
– на шестерне:

– на колесе:

Осевая, Н.:
– на шестерне:


– на колесе:

Нагрузка на тихоходный вал со стороны муфты находится по формуле приложения[2], с 98, Н.:

Ременная находится по формуле приложения[2], с 98 , Н.:


4.2 Тихоходный вал
Построение эпюр:

Рис. 2
Расчет эпюр:
Так как используются конические
подшипники то точка приложения реакций
смещается на величину

Тогда длины принимают следующие значения L = 80; l>оп >= 146;
Составим уравнение моментов в вертикальной плоскости ∑М>4 >= 0;

∑М>2>> >= 0;

Строим эпюру (рис. 2) изгибающих моментов относительно вертикальной плоскости в характерных сечениях, Н·м.:



Составим уравнение моментов в горизонтальной плоскости: ∑М>4>=0;

∑М>2 >= 0;

Строим эпюру (рис. 2) изгибающих моментов относительно горизонтальной плоскости в характерных сечениях, Н·м.:
Н·м;
Н·м;
Строим эпюру крутящих моментов,
Н·м; Определяем
суммарные радиальные реакции, Н.:

Суммарные изгибающие моменты в наиболее нагруженных сечениях:
Н·м;
Н·м;
Н·м;
Определяем эквивалентные моменты:
Н·м;
Н·м;
Н·м;
4.3 Быстроходный вал
Построение эпюр:

Рис. 3
Опорные реакции:
Так как используются конические
подшипники то точка приложения реакций
смещается на величину

Тогда длины принимают следующие значения:
L = 66 мм; l>оп >= 98 мм;
Составим уравнение моментов в вертикальной плоскости: ∑М>3 >= 0;

∑М>1>=0;

Строим эпюру (рис. 3) изгибающих моментов относительно вертикальной плоскости в характерных сечениях, Н·м.:


Составим уравнение моментов в горизонтальной плоскости:
∑М>1>=0;



∑М>3>=0;


Строим эпюру (рис. 3) изгибающих моментов относительно оси y в характерных сечениях, Н·м.:


Строим эпюру крутящих моментов,

Определяем суммарные радиальные реакции, Н.:

Определяем суммарные изгибающие моменты в наиболее нагруженных сечениях, Н·м.:


Н·м;
Определяем эквивалентные моменты:
Н·м;
Н·м;
Н·м;
5. Расчет валов на выносливость
Проверочный расчет валов на прочность выполняют на совместное действие изгиба и кручение . При этом расчет отражает разновидности цикла напряжений изгиба и кручения , усталостные характеристики материалов , размеры , форму и состояние поверхности валов . Проверочный расчет проводится после завершения конструктивной компоновки и установления окончательных размеров валов . Цель расчета заключается в определении коэффициентов запаса прочности в опасных сечениях вала и сравнении их с допускаемыми S ≥ [S]. При высокой достоверности расчета [S]=2,5 . Будем производить расчет для опасных сечений каждого из валов .
5.1 Проверка на усталостную прочность быстроходного вала
Определяем напряжения в опасных сечениях вала по формулам приложения [2], с.255, Н/мм2:
а) нормальные напряжения изменяются
по симметричному циклу , при котором
амплитуда напряжений
равна расчетным напряжениям
изгиба
,
МПа:

,
где М– суммарный изгибающий момент в рассматриваемом сечении вала ,Н∙мм; W–осевой момент сопротивления сечения вала , W=4287,5мм2;
,
б) касательные напряжения
изменяются по от нулевому циклу , при
котором амплитуда цикла
равна половине расчетных напряжений
кручения
,
МПа :

где
–крутящий
момент, Н∙м; Полярный момент
инерции сопротивления сечения вала,
W>ρ>=8575
мм2;

Определяем коэффициент концентрации нормальных и касательных напряжений для расчетного сечения вала по формулам приложения [2], с.259:
;


где
и
– эффективные коэффициенты концентраций
напряжений,
/
=3,5
,
/
=2,5;

–
коэффициент влияния шероховатости ,
=1;
–
коэффициент влияния абсолютных размеров
поперечного сечения ;

в) Определяем пределы выносливости
в расчетном сечении валa
по формулам приложения [2], с.259, Н/мм2:

где–
и
=0,58
–
пределы выносливости гладких образцов
при симметричном цикле изгиба и кручения
, Н/мм2;





;
;
г) определяем коэффициенты запаса прочности по нормальным и касательным напряжениям :





д) определяем общий коэффициент запаса прочности в опасном сечении:


5.2 Проверка на усталостную прочность тихоходного вала
Определяем напряжения в опасных сечениях вала , Н/мм2:
а) нормальные напряжения изменяются
по симметричному циклу , при котором
амплитуда напряжений
равна расчетным напряжениям
изгиба
,
МПа:

,
где М– суммарный изгибающий момент в рассматриваемом сечении вала, Н∙мм; W–осевой момент сопротивления сечения вала, W = 9112,5мм2;
,
б) касательные напряжения
изменяются по от нулевому циклу , при
котором амплитуда цикла
равна половине расчетных напряжений
кручения
,
МПа :

где
–крутящий
момент , Н∙м;
>–>полярный
момент инерции сопротивления сечения
вала, W>ρ>>
>= 18225 мм2;

Определяем коэффициент концентрации нормальных и касательных напряжений для расчетного сечения вала :
;


где
и
– эффективные коэффициенты концентраций
напряжений,
/
=3,5
,
/
=2,5
;
–
коэффициент влияния шероховатости,
=1;
–
коэффициент влияния абсолютных размеров
поперечного сечения;

в) Определяем пределы выносливости
в расчетном сечении валa,
Н/мм2:

где–
и
=0,58
–
пределы выносливости гладких образцов
при симметричном цикле изгиба и кручения,
Н/мм2;



;
;
г) определяем коэффициенты запаса прочности по нормальным и касательным напряжениям :





д) определяем общий коэффициент запаса прочности в опасном сечении:


6. Проверка подшипников качения на долговечность
Проверочный расчет предварительно
выбранных подшипников выполняется
отдельно для быстроходного и тихоходного
вала. Пригодность подшипников определяется
сопоставлением расчетной динамической
грузоподъемности
,
Н., с базовой величиной
,
Н., или базовой долговечности
,
ч., с требуемой
,
ч., по условиям:

Требуемая долговечность подшипника
предусмотрена ГОСТ 16162– 93 и составляет
для зубчатых колес
≥
10000> >ч.
Расчетная динамическая
грузоподъемность
,
Н , и базовая долговечность
, ч , определяются по формулам приложения
[2], с. 128 :

где
– эквивалентная динамическая нагрузка,
Н; m
– показатель степени, m
= 3,33; n
– частота вращения соответствующего
вала, об/мин.
6.1 Расчет долговечности подшипников 7207 быстроходного вала
Исходные данные:
F>a>=
393 H; e = 0,37,
=3602
H ,
=503
Н,
=
1,2 ,
=
1 ,
=
1 ,
=
51 c-1,
Y=1,62, X=0,4, Cr=36200 H;
Проверим пригодность подшипников 7207 быстроходного вала конического редуктора, работающего с умеренными толчками и вибрационной нагрузкой.
Определяем осевые составляющие радиальных нагрузок:
Н
Н
По таблице 9.6 приложения [2], с.
136 определяем осевые нагрузки подшипников.
Так как
>
то
=
=1146
Н;
Н;
Определяем отношения :

По соотношению
и
выбираем соответствующую формулы для
определения
:
=1·
3602·1,2=4322,4 Н;
H;
Определяем динамическую
грузоподъемность по большей эквивалентной
нагрузке
:
Н;
Такое соотношение расчетной
и базовой
динамических
грузоподъемностей (22618<36200) вполне
приемлемо.
Определяем долговечность подшипника, ч :

Такое значение расчетной
вполне приемлемо.
6.2 Расчет долговечности подшипников 7209 тихоходного вала
Исходные данные:
R>a>=
393 H; C>r>=
42700 Н.;
e = 0,41,
=8096
H ,
=5555
Н,
=
1,2 ,
=
1 ,
=
1 ,
=
12,769 c-1
,Y=1,45, X=0,4, Cr=36200 H;
Проверим пригодность подшипников 7209 быстроходного вала конического редуктора, работающего с умеренными толчками и вибрационной нагрузкой.
Определяем осевые составляющие радиальных нагрузок:
Н;
Н;
По таблице 9.6 приложения [2], с.
136 определяем осевые нагрузки подшипников.
Так как
>
то
=
=
2854 Н;
Н;
Определяем отношения :

По соотношению
и
выбираем соответствующую формулы для
определения
:
=
1· 8096·1,2 = 9715,2 Н;
=
1· 5555·1,2 = 6666 H;
Определяем динамическую
грузоподъемность по большей эквивалентной
нагрузке
:
Н;
Такое соотношение расчетной
и базовой
динамических
грузоподъемностей (22440<42700) вполне
приемлемо. Определяем долговечность
подшипника, ч :

Такое значение расчетной
вполне приемлемо.
7. Расчет элементов корпуса редуктора
Корпус редуктора выполняем литым из чугуна марки СЧ 15 ГОСТ 1412-79.
Для удобства сборки корпус выполняем разборным. Плоскость разъема проходит через оси валов. Плоскость разъема для удобства обработки располагаем параллельно плоскости основания. Верхнюю поверхность крышки, служащую технологической базой для обработки плоскости разъем, также выполняем горизонтальной.
Для соединения корпуса и крышки редуктора по всему контуру плоскости разъема выполняем фланцы. Фланцы объединены с приливами для подшипников (бобышек).
Для соединения крышки с корпусом используются болты с наружной шестигранной головкой, диаметр которых принимаем М12.
Для предотвращения взаимного смещения корпусных деталей при растачивании отверстий под подшипники и обеспечения точного расположения их при повторных сборках, крышку фиксируем относительно корпуса двумя коническими штифтами.
Толщина стенок основания корпуса редуктора вычисляется по формуле приложения [7], с.154:

Принимаем
мм.
Толщину стенки крышки корпуса вычисляется по формуле приложения [7], с.158:
мм.
Принимаем
мм.
Для подъема и транспортировки крышки корпуса и сборного редуктора применяют проушины, отливая их заодно с крышкой. В верхней части крышки корпуса находится люк предназначенный не только для заливки масла, но и для осмотра зацепления подшипников. Люк закрывают крышкой.
Расстояние от края вращающегося
колеса до внутренней стенки корпуса
Расстояние между дном корпуса и
поверхностью шестерни
,
предназначенное для масла. Для замены
масла в нижней части корпуса находится
сливное отверстие.
Фундаментный фланец редуктора крепится к плите четырьмя болтами М16 с шестигранной головкой.
8. Определение элементов зубчатых колес, шкивов
Конструкция колес зависит главным образом от проектных размеров, материала, способа получения заготовки и масштаба производства. Зубчатые колеса состоят из обода, несущего зубья; ступицы, насаживаемой на вал, и диска, соединяющего обод со ступицей. Зубчатые цилиндрические стальные колеса при диаметрах до 500 мм. изготовляют ковкой или штамповкой. Шестерни конструируют в двух исполнениях: отдельно от вала (насадная шестерня), и за одно целое с валом (вал-шестерня). В таблице 3 представлены расчеты основных размеров зубчатого колеса.
Таблица 3
-
Параметры
Размеры
Диаметр ступицы колеса, мм.:

Длина ступицы, мм.:

Толщина обода цилиндрического колеса, мм.:

Шкивы ременных передач изготовляют чаще всего литыми из чугуна. Размеры основных конструктивных элементов шкивов приведены в таб. 4.
Таблица 4
-
Элементы шкива
Расчетные формулы
Вычисления
Ширина шкива
M=(z-1)e+2f
M=(9-1)∙4.8+2∙5.5=50 мм
Толщина обода шкива
H=1.6h
H=6∙1.6=9.6≈10 мм
Толщина диска шкива
C=1.2∙H
C=1.2∙10=12 мм
Диаметр ступицы шкива
=1.6∙d+10
=1.6∙30+10=58
ммДлинна ступицы шкива
L
=(1.5-2)dL
=2∙30=60
мм
В таблице 4 обозначены: z-число клиньев поликлинового ремня, e-шаг клиньев, f-расстояние от края обода шкива до первого клина.
9. Подбор шпонок и проверочный расчет шпоночных соединений на прочность
Для соединения вала с деталями, передающими вращение принимаем призматические шпонки со скруглёнными концами.
Материал шпонки — сталь 45.
Напряжение смятия узких граней шпонки не должно превышать допускаемого, т.е. должно удовлетворяться условие:

где
Т – предаваемый вращающий момент, Н·мм.;
d – диаметр вала в месте установки шпонки;
;
– рабочая длина шпонки;
–допускаемое напряжение смятия,
;
Рассчитаем шпонку для крепления шкива на быстроходном валу:



Рассчитаем шпонку для крепления зубчатого колеса на тихоходном валу:



Рассчитаем шпонку для крепления муфты на тихоходном валу:



10. Назначение посадок сопряжений деталей привода
Номинальным размером называют размер изделия, полученный по расчёту или выбранный по конструктивным соображениям. Изготовленные изделия всегда имеют некоторые отклонения от начального размера.
Для того, чтобы изделие отвечало своему целевому назначению, его размеры должны выдерживаться между двумя допустимыми предельными размерами, разность которых образует допуск.
Зону между наибольшими и наименьшими предельными размерами называют полем допуска.
К различным соединениям предъявляют неодинаковые требования к условиям точности. Поэтому система допусков содержит 19 квалитетов: 01, 0, 1, 2,…, 17 (в порядке убывания точности). Характер соединения деталей называют посадкой. Посадку характеризует разность размеров деталей до сборки. Посадки могут обеспечить в соединении зазор и натяг. Посадки характеризуются наибольшими зазорами Smax и натягом Nmax.
Деталь, у которой положение поля допуска остаётся без изменения и не зависит от вида посадки, называют основной деталью системы. Если этой деталью является отверстие, то соединение выполнено в системе отверстия.
Основные отклонения обозначают буквами латинского алфавита:
- для отверстий:--прописными А, В, С и т.д.
- для валов—строчными а, в, с и т.д.
Преимущественно назначают посадки в системе отверстия с основным отверстием Н, у которого ЕУ = 0.
Для посадок с зазором рекомендуют применять неосновные валы t, g, h; для переходных посадок—js, r, m, n; для посадок с натягом—h, r, s.
С учётом рекомендаций табл. 14.10., для соединения ступиц зубчатых колёс назначаем посадку Н7/r6, посадки распорных колец на вал E9/к6, посадку внутренних колец подшипников на вал К6, посадку наружных колец Н7, посадку манжет D11/d9.
Допуск формы и расположения поверхностей указываем условными обозначениями по ГОСТ 2.308-79.
Шероховатость поверхностей по ГОСТ 2788-73.
Ra — среднее арифметическое отклонение профиля.
Rz — высота неровностей профиля по 10 точкам.
Rmax — наибольшая высота неровностей профиля.
Параметр Ra является основным для деталей в машиностроении. Шероховатость Ra(мкм) рекомендуется:
1,6 — торцы валов для базирования;
3,2; 1,6 — поверхности рабочие на шпоночных пазах вала и ступицы;
0,8; 1,25 — поверхности валов под подшипники и ступицы зубчатых колёс, муфт, шкивов.
0,4; 0,63 — поверхности валов под резиновые манжеты;
6,3 — нерабочие поверхности.
11. Описание способа смазки передач и подшипников привода
11.1 Смазывание зубчатого зацепления
Так как у нас редуктор общего назначения и окружная скорость не превышает 12,5 м/с, то принимаем картерную смазку. Подберем масло для смазывания по формуле приложения [4], c.130.
υ=ω∙d/2 = 51∙0,064/2 = 1,78, м/с
Тогда по таблицам 8.1 и 8.3 выбираем масло индустриальное И-40 А.
Количество масла примерно 1 л. Контроль уровня масла осуществляется при помощи жезлового маслоуказателя. Для замены масла в корпусе предусмотрено сливное отверстие, закрываемое пробкой с цилиндрической резьбой. Внутренняя полость корпуса сообщается с внешней средой посредством установленной на крышку отдушины. Заливка масла осуществляется путем снятия крышки корпуса.
11.2 Смазывание подшипников
Для смазывания конических подшипников принимаем жидкие материалы. Смазывание происходит за счет смазывания зубчатых колес окунанием, разбрызгивания масла, образования масляного тумана и растекания масла по валам. Для этого полость подшипника выполняется открытой внутрь корпуса.
12. Описание порядка сборки редуктора привода
Детали выполняются по требованиям чертежей и технологических корт, перед сборкой детали должны быть проверены и приняты ОТК. Все детали, поступающие на сборку, не должны иметь заусенцев и пройти промывку от загрязнения.
Сборка редуктора производится в два этапа. Сначала формируются сборные единицы отдельных валов, а затем сборные детали с валами и подшипниками устанавливаем в соответствующие гнёзда расточек под подшипники в корпусе редуктора и закрываем крышкой редуктора, соединяем корпусные детали двумя штифтами, которые были установлены ещё до расточки гнёзд под подшипники. Установка этих штифтов гарантирует правильность сборки. Поверхности стыка корпуса и крышки редуктора перед сборкой покрывают пастой "Герметик". Корпусные детали должны быть очищены, промыты, высушены, и покрыты изнутри маслостойкой краской. Соединяются корпус с крышкой редуктора при помощи стяжных болтов, пружинных шайб и гаек, с соблюдением последовательности.
На ведомый вал насаживают конические подшипники, предварительно нагретые в масле до 80–100 оС; в ведомый вал закладывают шпонку и напрессовывают зубчатое колесо до упора в бурт вала, затем надевают распорное кольцо и устанавливают подшипники, предварительно нагретые в масле.
Ведущий вал-шестерня устанавливается в корпус через отверстие под подшипник.
Для нормальной работы подшипников следует обеспечить легкое и свободное вращение подвижных элементов подшипников и в тоже время отсутствие излишне больших зазоров. Это обеспечивается с помощью регулировки подшипников, для чего применяют наборы тонких металлических прокладок, устанавливаемых под фланцы крышек подшипников.
Собранные валы укладывают в корпус редуктора и надевают крышку корпуса, покрывая предварительно поверхности стыка крышки и корпуса спиртовым лаком. Для центровки устанавливают крышку на корпус с помощью двух конических штифтов; затягивают болты, крепящие крышку к корпусу.
После этого на ведомый вал надевают распорное кольцо, в
подшипниковые камеры закладывают пластичную смазку, ставят крышки подшипников с комплектом металлических прокладок для регулировки.
Перед постановкой сквозных крышек устанавливают манжеты, пропитанные горячим маслом. Проверяют проворачиванием валов отсутствие заклинивания подшипников и закрепляют крышки винтами.
Далее на конец ведомого вала в шпоночную канавку, устанавливают муфту и закрепляют ее торцовым креплением.
Устанавливают маслоуказатель, заливают в корпус масло и закрывают смотровое отверстие крышкой с прокладкой, закрепляют крышку болтами.
Собранный редуктор обкатывают и подвергают испытаниям, устанавливаемые техническими условиями.
Список литературы
1. А.В. Кузьмин, И.М. Чернин, Б.С. Козинцов. Расчеты деталей машин /Справочное пособие/. – Минск: Высшая школа, 1986 г.
2. Шейнблит А.Е. Курсовое проектирование деталей машин. – М.: Высшая школа, 1991 г.
3. Курсовое проектирование деталей машин / Чернявский С.А. и др./ – М.: Машиностроение, 1987 г.
4. Дунаев П.Ф., Леликов О.П. Конструирование узлов и деталей машин. М.: Высшая школа, 1984 г.
5. Кузьмин А.В. Расчеты деталей машин /Справочное пособие/. – Мн.: Высшая школа, 1986 г.
6. Прикладная механика /под. ред. проф. Скойбеды А.Т./ – Мн.: Высшая школа, 1997 г.
7. Дунаев П.Ф. Конструирование узлов и деталей машин. М.: Высшая школа, 1978 г.