Проектирование камеры хранения пищевых продуктов
Дипломная работа
Проектирование камеры сохранения пищевых продуктов
Харьков 2010
РЕФЕРАТ
Звіт з дипломної роботи: 58 сторінки, 15 малюнків, 1 таблиці, 4 джерел, 1 додаток
Ключові слова: КАМЕРА ОХОЛОДЖЕННЯ, ТЕПЛОІЗОЛЯЦІЯ, ТЕПЛООБМІННІ АПАРАТИ, ТЕПЛОПРИТОКІВ, ЕФЕКТИВНІСТЬ, ОСНАЩЕНОСТІ КАМЕРИ.
У даній роботі розглянуто проектування камери охолодження з розрахунком теплопритоків і підбором обладнання, і вибором найбільш ефективних параметрів. Проаналізовано різні види теплоізоляції і, залежно від теплопритоків тол ціни, та підбір обладнання.
Розглянуті методи теплових і конструктивних розрахунків, а також визначення деяких показників ефективності теплообмінних апаратів.
Виконано розрахунок теплопритоків в камеру охолодження, а також проведено аналіз розрахунку і вибір ефективної ізоляції, проведений розрахунок та підбір обладнання для цієї камери охолодження з обраної теплоізоляцією, проаналізовані два види повітроохолоджувачів, з метою знайти найефективніше співвідношення якісних показників і матеріальних витрат.
THE ABSTRACT
Report of term paper: 58 pages, 15 pictures, 1 tables, 4 information generators, 1 appendix
Keywords: CAMERA COOLING, INSULATION, HEAT EXCHANGERS, TEPLOPRYTOKIV, EFFICIENT, EQUIPPED CAMERAS.
This work is considered the design of the cooling chamber teploprytokiv calculation and selection of equipment, and choosing the most effective parameters. Analysis of various thermal, and depending on teploprytokiv toltsiny, and equipment selection.
The methods of thermal and structural calculations and to identify some performance heat exchangers.
Calculating teploprytokiv in the cooling chamber and the analysis of calculation and choice of effective isolation, conducted rachet and equipment selection for this camera cooling teploizolyatsyey selected and analyzed two types of industrial airin order to find nayeffektivnoe ratio of quality indicators and material costs.
РЕФЕРАТ
Отчет с дипломной работы: 58 страниц, 15 рисунков, 1 таблиц, 4 источников, 1 дополнение.
Ключевые слова: КАМЕРА ОХЛАЖДЕНИЯ, ТЕПЛОИЗОЛЯЦИЯ, ТЕПЛООБМЕННЫЕ АППАРАТЫ, ТЕПЛОПРИТОКИ, ЭФФЕКТИВНОСТЬ, ОСНАЩЕННОСТЬ КАМЕРЫ.
В данной работе рассмотрено проектирование камеры охлаждения с расчетом теплопритоков и подбором оборудования, и выбором наиболее эффективных параметров. Проанализированы различные виды теплоизоляции, и зависимости теплопритоков от толщины, и подбор оборудования.
Рассмотрены методы тепловых и конструктивных расчетов, а также определение некоторых показателей эффективности теплообменных аппаратов.
Выполнено расчет теплопритоков в камеру охлаждения, а также проведен анализ расчета и выбор эффективной изоляции, проведен расчет и подбор оборудования для данной камеры охлаждения с выбранной теплоизоляцией и проанализированы два вида воздухоохладителей, с целью найти найэффективное соотношение качественных показателей и материальных затрат.
СОДЕРЖАНИЕ
1 Аналитический обзор
1.1 Сборные холодильные камеры
1.2 Классификация холодильных камер
1.3 Теплоизоляционные материалы
1.3.1 Пенополистирол
1.3.2 Экструдированный пенополистирол
1.3.3 Вспененный полиэтилен
1.3.4 Вспученный перлит
1.3.5 Вермикулитовая теплоизоляция
1.3.6 КСВ
1.3.7 Пеностекло
1.3.8 Теплоизоляция из натуральной пробки
1.4 Вывод из литературного обзора
2 Постановка задачи
2.1 Расчет теплоизоляции для камеры хранения
2.2 >Расчет оборудования камеры хранения >>c>> оребренными батареями>
2.3 Расчет оборудования для камеры с подвесными воздухоохладителями.
2.4 Экономические затраты на строительство камеры хранения
Заключение
Список источников информации
АНАЛИТИЧЕСКИЙ ОБЗОР
Сборные холодильные камеры
Процесс обеспечения холодом достаточно сложный и энергоемкий, поэтому потери холода очень дорогостоящи. Сохранить низкую температуру в объеме — вот назначение Холодильной камеры. Затраты, обусловленные совершенством конструкции Холодильной камеры, использованием современных теплоизолирующих материалов, применением многократной герметизации холодильного объема, окупаются уже на этапе проектирования Холодильного агрегата, а в дальнейшем и в процессе эксплуатации. Чем качественнее теплоизоляция охлаждаемого помещения, тем меньше энергозатраты на производство холода.
Итак, проектирование Холодильной камеры начинается с обработки данных, полученных от Заказчика (см. Техническое задание). В зависимости от желания Заказчика, а также требований технологического процесса, Холодильная камера может быть: среднетемпературная (температура −5...+5°С), низкотемпературная (до −25°С) или шоковая заморозка (до −35°С).
Достижение оптимального решения включает в себя следующие задачи: определение используемого теплоизоляционного материала; разработка конструкции холодильной камеры; оснащение холодильным агрегатом. Возможные конструкции холодильных камер
При создании холодильной камеры мы используем широкий спектр строительных и теплоизоляционных материалов (пенопласт, мин-вата, панели ППУ и т. д.). Целесообразность использования того или иного материала, а также индивидуальные особенности охлаждаемого помещения, определяют следующие конструкции холодильных камер:
Cобираемые из сендвич-панелей
Сендвич-панель представляет собой панель из теплоизоляционного материала, с двух сторон покрытой кровельной оцинкованной сталью. По необходимости поверхности панели окрашиваются в требуемый цвет. Продольные торцы панелей имеют технологические сочленения, позволяя в сжатые сроки собрать камеру нужного размера. Технология сборки предполагает необходимую и достаточную герметичность внутреннего объема. Наполнитель панелей может быть различным (пенопласт, мин-вата, пенополиуретан).
По желанию Заказчика холодильная камера используется стационарно, либо предполагает возможность многократной сборки-разборки. При необходимости наши специалисты встроят камеру из ППУ-панелей в любое помещение, не требуя при этом технологических отступов от стен и выравнивания пола. Камера может оснащаться несущим металлическим каркасом, несколькими дверными проемами, усиленным полом, стеллажами, системой автоматической рециркуляции воздуха, экономичной системой освещения и т. д.
Данная конструкция камеры особенно актуальна для стационарных камер бывших в эксплуатации, но утративших свои теплоизоляционные свойства, а также для вновь создаваемых камер. Этот метод утепления помещений является хорошей альтернативой стационарным камерам из ППУ-панелей. Многослойная гидроизоляция и герметизация охлаждаемого объема, характерная этой конструкции, существенно продлевает срок службы камеры, препятствуя процессу поглощения влаги теплоизоляционным материалом. Тщательная сборка камеры и обработка материалов дератизирующим составом предотвращает преждевременное ухудшение её теплоизолирующих свойств. Внутренний каркас камеры формируется из листового материала (оцинкованная сталь, пищевой алюминий, гофро-лист, нержавейка), покрывающий слой тепло- и гидроизоляции. При проектировании конструкции камеры обеспечивается подбор материалов по теплоизолирующим свойствам, что исключает возможность конденсации влаги в толще стены и как следствие ухудшение теплоизоляционных характеристик.
В низкотемпературном исполнении холодильная камера оснащается подогреваемым компенсационным клапаном и подогревом двери, что исключает примерзание дверного уплотнителя. Двери имеют широкий диапазон размеров светового проема. С проемом под евро-поддон возможна комплектация откатными дверями, либо двухстворчатыми распашными. Сам световой проем оснащается шторой или тепловой завесой, во избежание существенных потерь холода во время погрузки-разгрузки камеры. В холодильных камерах, собранных из сендвич-панелей, где используются погрузочно-транспортные средства, настилается усиленный пол.

Рисунок 1.1 Камеры собираемые из сендвич-панелей

Рисунок 1.2 Теплоизоляция изнутри
Неотъемлемой частью холодильной камеры является Холодильный агрегат (см. Холодильные машины), который проектируется в соответствии с техническим заданием (см. Техническое задание). В стандартной комплектации агрегат адаптирован к условиям умеренного климата, имеет продуманную систему сервисной и запорной арматуры, позволяющей грамотно обслуживать холодильную машину, и в случае аварийной ситуации сохранять фреон в контуре.
Фреоновая магистраль непосредственного охлаждения (без системы маслоотделения) может иметь длину до 40 метров, что позволяет размещать машинное отделение в 30 метрах в длину, и 10 метрах в высоту. Использование дополнительной системы маслоотделения или рассольной системы, расширяет область, возможного расположения холодильной машины. Система охлаждения полностью автоматизированная, с возможностью регулировки температуры в широких пределах. На холодильные машины, работающие в непрерывном цикле, устанавливаются контроллеры, подключаемые к ПК (персональный компьютер). Такой подход к слежению и регистрации рабочих параметров установки обеспечивает бесперебойный технологический процесс, позволяет адаптировать холодильную машину к требованиям технологического процесса. Использование многолетнего опыта обслуживания и проектирования холодильных агрегатов, дает возможность комплектовать и задавать режим работы холодильной системы с учетом влажности воздуха в охлаждаемом объеме. Вместе с системой рециркуляции контроль влажности позволяет добиваться необходимой усушки продукта.

Рисунок 1.3 Эксплуатация xолодильной камеры
В процессе эксплуатации холодильной камеры происходит периодическая смена режимов работы (загрузка камеры, набор холода, оттайка и т. д.). Наши специалисты в каждом конкретном случае подбирают оптимальные характеристики работы холодильной машины. Тесное сотрудничество технического персонала с проектировочным отделом определяет контроль над всеми стадиями проведения монтажных работ и последующей работой агрегата.
Малые и средние холодильные камеры широко используют в различных отраслях пищевой индустрии, а также в сфере научных исследований и здравоохранения.
Применение новых материалов и технологий в производстве холодильного оборудования позволило создавать холодильные камеры практически для любых помещений, причем без особых проблем с точки зрения монтажа. Первоначально холодильные камеры изготавливали стандартных размеров, рассчитывали на определенные объемы и под определенное помещение. Сейчас фирмы-изготовители разрабатывают и производят сборные холодильные камеры практически любых размеров и конфигураций с оптимальным режимом работы.
Необходимость в проектировании нестандартных, оригинальных конструкций во многом объясняется тем, что в настоящее время продовольственные магазины или другие подобные помещения могут иметь любую геометрию торговых и подсобных площадей в зависимости от особенностей используемого помещения или желания владельца.
Для того чтобы максимально эффективно использовать пространство, холодильные камеры целесообразно собирать из отдельных стандартных панелей. Это более выгодно как с технической, так и с экономической точки зрения.
Стандартные панели типа “ сэндвич ” имеют трехслойную конструкцию с пенополиуретановой изоляцией. Из известных в настоящее время теплоизоляционных материалов пенополиуретан, используемый в производстве торгово-холодильного оборудования, имеет наименьший коэффициент теплопроводности: по теплоизоляционным свойствам он в 25 раз эффективнее силикатного кирпича, в 4,5 раза – керамзитного гравия, в 2 раза – плит из стекловолокна и минеральной ваты, в 1,5 … 1,7 раза – пенополистирола.
Обе стороны панели покрыты тонким стальным или алюминиевым листом толщиной от 0,5 до 0,8 мм. При использовании камеры для хранения пищевых продуктов применяют панели, внутренняя поверхность которых имеет гигиеническое полиэфирное покрытие.
1.2 Классификация холодильных камер
Совокупность холодильных установок, обеспечивающих условия для непрерывной холодильной обработки и хранения скоропортящихся продуктов на пути от мест их заготовки до мест потребления, называется холодильной цепью. Холодильная цепь слагается из звеньев, сочетание которых может быть различным в зависимости от вида сырья. Отдельные звенья цепи следующие: холодильные установки для обработки продукта и хранения его на производящем предприятии или плантации; холодильный транспорт для местных и дальних перевозок; холодильники различного назначения, включая торговое холодильное оборудование и бытовые холодильники.
Обычно холодильник — это промышленное предприятие (или его цех), в помещениях которого с помощью холодильной установки поддерживают определенные режимы, необходимые для обработки и хранения скоропортящихся продуктов. Холодильник состоит из технологического здания и компрессорного цеха с пристроенным к нему аппаратным отделением.
Холодильники классифицируют в зависимости от назначения, вида хранимых продуктов, вместимости и этажности. В зависимости от назначения холодильники разделяют на следующие основные типы: заготовительные, производственные, транспортно-экспедиционные, распределительные, перевалочные, торговые и бытовые. Кроме того, холодильники подразделяются на стационарные и транспортные. Рефрижераторный транспорт делится на железнодорожный, морской, речной и автомобильный.
Заготовительные холодильники предназначены для заготовки продукции в сельской местности либо непосредственно на плантациях. Они имеют холодильные установки большой мощности; вместимость камер хранения в таких холодильниках меньше вместимости камер охлаждения. К заготовительным холодильникам относят и станции предварительного охлаждения, преимущественно передвижные.
Производственные холодильники являются частью пищевых предприятий: мясо- и птицекомбинатов, молочных и консервных комбинатов. Почти вся вырабатываемая продукция подвергается холодильной обработке, поэтому производственные холодильники оборудуют мощными устройствами для охлаждения и замораживания,
Транспортно-экспедиционные холодильники обеспечивают грузовые операции на железнодорожных, водных и воздушных линиях.
Распределительные (многоцелевые, базисные) холодильники предназначены для равномерного обеспечения городов и промышленных центров сезонными продуктами питания в течение всего года, а также для создания резервного запаса продуктов. Эти холодильники характеризуются большой вместимостью камер хранения и малой производительностью устройств для охлаждения и замораживания. В том случае, если на распределительных холодильниках есть производственные цехи (фасовки масла, мороженого, твердой углекислоты, полуфабрикатов, кулинарные), такие предприятия называют хладокомбинатами.
Перевалочные холодильники предназначены для временного хранения продуктов при передаче их с одного звена холодильной цепи на другое. Для этих холодильников характерным является большой фронт грузовых работ.
Для осуществления внешних грузовых операций с двух продольных сторон холодильника устраивают специальные грузовые платформы для автомобильного и железнодорожного транспорта.
Торговое холодильное оборудование используют для кратковременного хранения продуктов в торговой сети, ресторанах, столовых. Эти холодильники малой вместимости. Водной камере допускается хранить продукты нескольких различных видов.
Бытовые холодильники служат для кратковременного хранения продуктов в домашних условиях и для производства небольшого количества льда. Они являются последним звеном непрерывной холодильной цепи.
Приведенная классификация холодильников носит условный характер.
В зависимости от ассортимента хранимых грузов различают универсальные и специализированные холодильники.
В универсальных холодильниках хранят смешанные грузы (мясо, рыба, фрукты, консервы и др.), в специализированных —однотипные.
В зависимости от вместимости холодильники условно классифицируют на крупные, средние и мелкие. Крупные холодильники имеют вместимость свыше 3000 т (к ним относятся универсальные, распределительные, специализированные холодильники). Вместимость средних холодильников составляет от 1000 до 3000 т (они могут быть универсальными или специализированными). Вместимость мелких холодильников не превышает 1000 т.
В зависимости от этажности различают одноэтажные и многоэтажные холодильники.
По конструкции холодильники относят к промышленным зданиям. Характерной особенностью их является то, что в камерах поддерживаются низкие температуры при высокой относительной влажности воздуха. Изменение температуры и относительной влажности воздуха вызывает постепенное ослабление структуры строительных и изоляционных материалов.
1.3 Теплоизоляционные материалы на рынке Украины
1.3.1 Пенополистирол (пенопласт)
Пенополистирол (ППС) представляет собой жесткий вспененный термопласт, содержащий многочисленные сплавившиеся гранулы. Каждая гранула состоит из большого числа молекул стирола, соединенных в длинные цепи полистирола, в пределах которых равномерно распределены микроскопичные (10-5,00 мкм) плотные полости, содержащие воздух. Технология позволяет получать вспененные термопласты с разными соотношениями воздуха и полистирола, а следовательно и плотностью. Широкий диапазон плотностей позволяет специально заложить определенные свойства, чтобы удовлетворить требования, предъявляемые к материалу конечными пользователями.
Пенополистирол характеризуется следующими свойствами: способностью к формированию в сложные формы; относительно высокой прочностью на сжатие при низкой плотности. Пенополистирол достигает предела упругости при сжатии 2%. Напряжения свыше указанного предела сказываются остаточной деформацией; низкой динамической жесткостью, обеспечивающей качественную звукоизоляцию от ударного шума; низкой теплопроводностью от 0,03 до 0,04 В/м К; низким коэффициентом теплового расширения, который в диапазоне температур от 20°С до 30°С составляет в среднем 0,6x10- 4(1/°К); невысокой плотностью материала - от 15 кг/м3 до 40 кг/м3. Изделия из пенополистирола маркируются в зависимости от плотности; стабильностью свойств в диапазоне температур от -180°С до +80°С; низкой диффузией водяных паров и водопоглощением; стойкостью к гниению и долговечностью при условии, что изделия из полистирола не подвергаются длительному воздействию УФ-лучей; стойкостью к агрессивным средам. Изделия из ППС обладают стойкостью к растворам кислот и щелочей, метанолу, водорастворимым краскам и адгезивам. Гипс, известь, цемент, силиконовые масла и не содержащий растворителей битум не нарушают структуру пенопласта. Парафиновое масло, растительные и животные жиры, дизельное топливо и вазелин могут воздействовать на поверхность пенопласта и обусловить усадку при длительном воздействии. Неустойчивы к органическим растворителям типа углеводородов, хлорированных углеводородов, кетонов и эфиров, присутствующих в большинстве лакокрасочных и адгезивных материалов; удовлетворительной огнестойкостью. Обычный пенополистирол входит в категорию ВЗ, т.е. считается легко воспламеняемым. При введении в исходное сырье антипиренов ППС переходит в категорию трудновоспламеняемых строительных материалов В1.
Благодаря перечисленному сочетанию физических свойств пенополистирол находит разнообразное применение в строительной промышленности.
Применять пенопласт – значит обеспечивать энергосбережение, минимизируя теплопотери. Вот почему пенопласт, благодаря исключительной мороза и влагоустойчивости, незаменим при утеплении подземных коммуникаций, фундаментов, подвалов, цокольных этажей, стен, кровель, полов.
ПСБ-C-15 — используется для утепления и звукоизоляции конструкций, которые не поддаются влиянию окружающей среды и механическим нагрузкам. Например, чердаки, межкомнатные перегородки, закладывается в кирпичную кладку, также может использоваться для утепления временных сооружений, вагонов и контейнеров.
ПСБ-C-25 — самая распространенная и универсальная марка пенопласта. Используется для утепления стен, крыш, полов. Чаще всего используется для утепления фасадов зданий методом «легкий мокрый».
ПСБ-С-35 — применяется при изготовлении многослойных панелей в т.ч. железобетонных, теплоизоляции фундаментов и подземных коммуникаций, а также во всех местах, где могут возникать значительные механические нагрузки.
К преимуществам пенополистирола можно отнести то, что это один из наиболее дешевых материалов, обладающий хорошими механическими и изоляционными свойствами и значительной конструкционной гибкостью. Процесс установки прост и не требует специализированных инструментов и специальной подготовки рабочих.
Производители пенополистирола и его использование в качестве теплоизоляционного материала
На украинском рынке теплоизоляционные изделия из пенопласта представлены отечественными и зарубежными производителями.
Крупнейшим производителем изделий из пенополистирола в Украине является ирпенский комбинат "Прогресс", выпускающий плиты ПСБС с размерами 1000x800x50(100) мм марок М-15, М-25, М-35. На беличском заводе "Теплозвукоизоляция" изготавливают плиты ППС (самозатухающие) марки М-25 следующих размеров: 1000x1000мм, 1000х2000мм, 1000хЗОООмм, 1000х4000мм, толщиной до 500 мм.
Немецкая фирма Saarpor поставляет пенопластовые плиты Polypron размером 1000x1000х5мм, рулонные материалы Isorol размером 10 х 0,5 м толщиной 2-4 мм и Clmarol - 12,5x1 м и 5x1 м толщиной 5мм для внутренней теплоизоляции стен. Такие изделия крепятся клеем, не содержащим растворителей.
Польской фирмой Izolacja Zdunska Wola предлагаются плиты из самогаснушего пенопласта (сырье фирмы Shell) марок М-15, М-20, М-30 размером 1000x500 и 1000x250 мм, толщиной от 20 до 200 мм, с различной формой торца.
Пенопласт используется в новых и старых зданиях для изоляции стен, крыш, полов и перекрытий. Конструктивная гибкость ППС обусловила его широкое применение в сборных изоляционных панелях.
Предпочтительным методом изоляции в новых зданиях является ввод материала в стенные полости. Обычно к поверхности внутренней стены крепится плита ППС шириной 4 см, в полости между наружной и внутренней стенами оставляется воздушный зазор, предотвращающий формирование мостика, по которому может передаваться влага.
Плиты ППС могут также крепиться непосредственно к наружной или внутренней поверхности стены. Обычно для наружных поверхностей применяется плита толщиной 5см, для внутренних - 2,5 см. При промерзании стен, смежных с коридором или мусоропроводом, удобно использовать рулонный материал Isorol или плиты Extrupor/Polypron фирмы Saarpor.
Плиты крепятся адгезивными составами или механически, а затем оштукатуриваются или обшиваются. Для ППС специально разработана технология нанесения различных наружных покрытий; одним из примеров является штукатурка, армированная щелочеупорным волокном.
Плиты ППС марки М-30 и толщиной 7 см подходят для систем "теплой крыши", когда поверх изоляционного материала укладывается водостойкий битумный слой. Выпускаются также плиты с битуминизированным внешним слоем.
Металлические или черепичные скатные крыши утепляют с тыльной стороны плитами ППС марки М-15 и толщиной 2,5-5см. В этом случае следует предусмотреть пароизолирующую прослойку.
Пенополистирол марок М-20, М-30 и М-35 является эффективным изолятором для полов. В зависимости от необходимой степени теплоизоляции для этой цели применяют плиты толщиной от 2 до 5 см.
Из ППС производят термоблоки - блоки пенополистирольной несъемной опалубки, из которых строят коттеджи по технологии "Термодом". Конструкция блока такова, что заливающийся в него бетон заполняет пустоты, образуя монолитную бетонную решетку. Пенополистирол выполняет функции утеплителя и опалубки одновременно.
В Украине такие блоки выпускают в г.Николаеве на немецкой производственной лини BASF из сырья фирм Shell и Basf.
Теплопроводность Пенополистирола от 0,04 до 0, 027 Вт/мС.
Влажность и водопоглощение Пенополистирола составляет 0,5-3% от объема. Диффузия водного пара в пенополистироле незначительна. Сорбционная влажность полистирола составляет 3-6% от массы.
На сегодняшний день используются трудновоспламеняемые и самозатухающие марки пенополистирола. Это достигается благодаря добавлению в состав полистирола антиперена. Если контакт с открытым пламенем прекращен, прекращается и горение пенопласта.
Отношение к температуре
Нижняя температурная граница использования пенополистирола в строительстве практически отсутствует. При температуре больше -70 оС материал начинает деформироваться. Но надо учесть тот факт, что в строительных конструкциях, где применяется пенопласт, такие температуры практически не встречаются.
Отношение к химическим средам и биологическому влиянию
Пенополистирол имеет высокую стойкость к разным веществам, включая морскую воду, солевые растворы, цемент и другое. Он не усваивается животными и микроорганизмами, и не создает питательной среды для грибков и бактерий.
Безопасность
Пенополистирол - экологически чистый материал. Он изготовлен из нефти путем определенных этапов технологического процесса и при очень экономном расходе натурального сырья. Для вспенивания полистирола - исходного материала - применяется водяной пар. Пенополистирол не содержит фторохлороводорода, а конечный продукт состоит на 93 % из закрытого в порах воздуха. Подтверждением его экологической чистоты является его применение для упаковки продуктов питания и в небольших количествах для изготовления детских игрушек.
Сроки службы
Важное качество пенополистирола - его долговечность. Он не изменяет своих теплоизоляционных свойств и размеров при длительном контакте с водой, при многоразовых влияний различных температур, а также при долговременной нагрузке. Исследования показывают, что этот изоляционный материал, который не стареет и сохраняет свои качества (коэффициент теплопроводимости, физико-технические параметры, геометрические формы). Иногда можно услышать мнение, что пенополистирол - нейстойкий материал, который "окисляется". Пенополистирол не является устойчивым по отношению к органическим растворителям (бензин, толуол, ацетон и другие). Отсюда миф о "исчезновении" пенополистирола по истечении определенного времени. Причиной такой ситуации может быть неправильно подобранные материалы для приклеивания пенополистирольных плит.
За последнее время развитие современного жилищного строительства в Украине требует все большего использования высококачественных и экологически чистых строительных материалов, которые должны отвечать европейским стандартам и нормам. В условиях энергетического кризиса и повышения стоимости энергоносителей, а также учитывая экономию денежных средств при строительстве новых зданий и сооружений как гражданского, так и промышленного строительства, а также при реконструкции или капитальном ремонте, наиболее актуальным вопросом является использование современных материалов с высокими изоляционными свойствами.
Пенополистирол незаменим для утепления подземных частей здания, фундаментов, стен подвалов, цокольных этажей, где применение других видов теплоизоляции недопустимо вследствие капиллярного поднятия грунтовых вод, и предохраняет гидроизоляцию от вредного воздействия окружающей среды. Об этом с полной уверенностью позволяют говорить его влагостойкие качества, а также его легкость и долговечность.
Пенополистирольные плиты почти невесомы, удобны при транспортировке и монтаже, долговечны и надежны. Гарантированный срок их эксплуатации в условиях Крайнего Севера составляет не менее 50 лет.
Закладка пенополистирола в наружные стены жилых домов позволяет в несколько раз снизить теплопотери, так как 12 см пенополистирола эквивалентны 2 м кирпичной стены и 4 м стены из железобетона. В пенополистироле сегодня остро нуждаются строительные объекты, расположенные в разных климато - географических зонах.
Пенополистирол - экологически чистый, нетоксичный тепло- и звукоизоляционный материал применяемый в строительстве на протяжении уже 40 лет и зарекомендовавший себя как наиболее экономичный, удобный в применении и обладающий низкой степенью теплопроводности и паропроницаемости.
Если сравнить показатели теплопроводности пенопласта полистирольного с другими материалами, то плита из пенополистирола толщиной 50 мм равноценна по теплоизоляционным свойствам минераловатному сухому слою в 110 мм, сухому пенобетону в 500 мм, из дерева в 195 мм и кирпичной кладке в 850 мм! Таким образом, использование этих плит вызывает экономию строительства и эксплуатационных затрат в 20-50 раз!

Рисунок 1.1 Пенополистирол
При производстве пенополистирола не используется вредный для атмосферы газ фреон. Пенополистирол относится к той группе пластмасс, которые при горении выделяют точно такие же газы, как и при сжигании древесины или пробки. Современные пенопласты производят в огнестойком исполнении. Влага не влияет на теплоизолирующие свойства этого материала и не вызывает образование в нем бактерий и плесени, что позволяет широко использовать Пенополистирол также и в пищевой промышленности.
1.3.2 Экструдированный пенополистирол
Разновидностью изделий на основе полистирола является изоляционный материал из экструдированного полистирола, имеющий нулевую капиллярность, высокую прочность на сжатие, теплопроводность 0,027-0,033 Вт/(м К).
По сравнению с ППС экструдированный пенополистирол дороже в 4-5 раз, но этому материалу отдается предпочтение, т.к. он обладает меньшей теплопроводностью. Изделия из экструдированного полистирола обладают большей прочностью, соответствуют жестким требованиям по водопоглощению экологичности.
Экструдированный полистирол характеризуется следующими свойствами:
плотность 25-45 кг/м3 ;
теплопроводность при температуре 10°С -0,033 В/м К;
предел прочности при сжатии: 0,15-0,7 Н/мм2;
водопоглощение по истечении 28 дней при переменной температуре 0,1-0,5% объема;
допустимая температура использования от - 50°С до +75°С;
не содержит фреонов, согласно Монреальскому протоколу.
неустойчив к УФ-излучению, требует защиты.
Экструдированный полистирол не совместим с органическими растворителями, смолами.
Производители изоляции из экструдированного пенополистирола
На рынке Украины теплоизоляционные материалы из экструдированного пенополистирола представлены несколькими крупными зарубежными концернами: Sirap Gema International S. А. (Бельгия), BASF (Германия), Dow Chemical (США).
Крупная бельгийская фирма Sirap Gema International S.A выпускает изоляционный материал под торговой маркой ISOFOAM.
Isofoam - окрашенный в желтый цвет экструдированный твердый полистирол, характеризующийся хорошими теплоизоляционными свойствами, очень низкой гигроскопичностью, высокой прочностью при сжатии, классом огнестойкости В1.
Плиты Isofoam имеют маркировку по типам Х2, ХЗ, Х4, XR, ХРН. В зависимости от марки плиты имеют различные характеристики: прочность, теплопроводность, плотность и т.д. Размеры плит: длина 1250 мм и 2500 мм, ширина 600 мм, толщина 20, 30, 40, 50, 60, 80, 100, 120 мм. Изделия могут быть выполнены с различным профилем края, который имеет следующую маркировку: I - гладкий торец, L - пазовые торцы, D - торец типа "шип и паз"
Аналогичный по качеству теплоизоляционный материал "Стиродур" и "Стиродур С" производит концерн BASF. Отличительная черта материала "Стиродур" - зеленый цвет и соответственно другая маркировка изделий.
"Стиродур" поставляется в виде плит стандартных типов. В основном в Украине пользуются спросом плиты типа 2800 плотностью 30 кг/м3 и 3035 плотностью 33 кг/м3, другие типы плит завозятся под заказ.
Плиты "Стиродур" имеют гладкую водоотталкивающую поверхность и отличаются друг от друга теплопроводными свойствами, плотностью, прочностью на сжатие.
Размеры представленных на рынке изделий: толщина от 20 до 200 мм, длина 1250 мм, 2500 мм, ширина 600 мм. Плиты предлагаются с ровными краями, уступчатым фальцем (тип S), в виде шипа и паза (тип N).
Совсем недавно на украинский рынок вышел американский концерн Dow Chemical, который производит теплоизоляционный материал STYROFOAM (завод в Венгрии), представляющий собой плиты из ЭП голубого цвета.
Плиты Styrofoam выпускаются, в зависимости от области их применения, нескольких видов: Perimate INS, Floormate, Styrofoam IB, Wallmate CW - для изоляции многослойных стен, Roofmate SL - для изоляции плоских кровель. В Украину завозятся два вида плит: Roofmate SL и Floormate.
Изделия отличаются друг от друга плотностью, теплопроводностью, формой края. Плиты производятся со стандартным типоразмером 1250x600 мм, только плиты Wallmate CW имеют размер 2500x600 мм. Толщина изделий варьируется в пределах от 20 до 160 мм, что определяется видом плит.
Стоимость изделий марки "Стиродур" от $350 за 1 м3 и выше. Теплоизоляционные плиты Isofoam и Styrofoam дешевле - от $200 за 1 м3. При закупке больших партий плит фирмами предусмотрены скидки.
Производство экструзионного ППС впервые в Украине осваивает Житомирский комбинат силикатных изделий.
Применение в строительстве
Спектр применения материалов этого класса почти не ограничен. Хорошие теплоизоляционные свойства, разнообразие видов, высокая прочность на сжатие, простота монтажа, отсутствие необходимости применения пароизоляционного слоя позволяют применять экструдированный полистирол в качестве изоляционного материала в наземном (стены, полы, потолки, крыши) и подземном строительстве, в транспорте, для холодильных камер, для теплоизоляции мостов и ледовых трасс, изготовления плит типа "сэндвич" и в качестве защитного слоя против промерзания почвы при строительстве автомобильных и железных дорог.
Легкие и прочные плиты из ЭП подходят для утепления разных типов кровель. При утеплении двускатных крыш теплоизоляция мостов холода достигается расположением материала над стропилом. Высокая прочность позволяет установить над теплоизоляционным слоем обрешетку. При устройстве эксплуатируемых кровель используют плиты "Стиродур" типа 3035S, Isofoam X3L и Roof-mate SL.
В ассортименте продукции марки Isofoam представлены профилированные теплоизоляционные плиты Stirobit, предназначенные для укладки на профнастил и шифер, и рулонный утеплитель Stirobit Roll, удобный при монтаже скатных кровель. Все эти плиты покрыты слоем гидроизоляции.
Утепление полых стен, как правило, осуществляют плитами Isofoam X2D, X3D, X3L, "Стиродур" 2800 и Wallmate CW, при этом не требуется дополнительная воздушная прослойка. В качестве внешней изоляции стен под облицовку рекомендуются плиты Isofoam XR, X2D, ХРН, "Стиродур" 2800 и Perimate INS. Теплоизоляционные плиты с выбитым вафельным узором ("Стиродур" 2800S и Isofoam ХРН) предназначены для применения под слой штукатурки и другие покрытия внутри жилых помещений.
Важным свойством плит "Стиродур", Isfoam и Styrofoam является то, что при контакте с землей они не теряют прочности и не впитывают воду. Это дает возможность использовать их для изоляции наружных подвальных стен зданий.
Хороший внешний вид, гладкая поверхность, малоподверженная загрязнению и легко моющаяся струей воды, делают плиты удобными для потолков спортзалов, складов.
Отличные прочностные характеристики позволяют использовать материал для изоляции любых видов полов Floormate, "Стиродур" 2800 и Isofoam X2L, X3L.
Например, для устройства полов на эксплуатируемых террасах и кровлях Isofoam предлагает плитный утеплитель, покрытый слоем гранитной крошки. Он имеет плотность 50 кг/м3 и размеры 600x600 мм.
Экструдированный полистирол также может использоваться для нанесения слоев других материалов: дерева, клеящихся волокнистых тканей и других искусственных материалов. Плиты с нанесенным слоем раствора, усиленные стеклотканью, можно использовать для облицовки кафелем, обшивки ванн, труб и т.д.
Важно отметить, что при покраске плит недопустимо использовать краски на растворителях. При пропитке деревянных частей, непосредственно соприкасающихся с материалом, следует избегать применения средств, содержащих смолы и растворители.

Рисунок 1.2 Экструдированный пенополистирол
Учитывая теплофизические свойства ЭП, широту и удобство применения, можно утверждать, что, несмотря на высокую стоимость, материал оправдывает затраты.
1.3.3 Вспененный полиэтилен
На рынке Украины представлены материалы и изделия на основе вспененного полиэтилена Gemafon и Thermaflex. Вспененный полиэтилен характеризуется закрытой пористой структурой, низким водопоглощением (менее 2%), теплопроводностью 0,045 Вт/м К, химической стойкостью к большинству строительных материалов. Он изготавливается без использования фреона и экологически безопасен.
Gemafon - мягкий рулонный материал, используемый в основном для акустической изоляции бетонных перекрытий под стяжкой, как выравнивающий слой под паркет или ковровое покрытие, для изоляции стыков с целью устранения акустических мостов, как компенсационный и разделяющий слой на плоских крышах, для изоляции окон, термоизоляции бетона зимой и др. Материал выпускается шириной 1500 мм, длиной от 50 м и толщиной от 3 мм.
Материал Gemafon STD по DIN 4104 относится к классу пожаробезопасности ВЗ, Gemafon FR по DIN 4102 - к классу В2.
Использование полотен Gemafon толщиной 3 мм позволяет снизить уровень шума на 18 дБ, а толщиной 5 мм - на 20 дБ.
Gemafon легко укладывается на жесткие поверхности, по нему можно ходить, не повреждая ячеистую структуру. Полотна материала накладываются внахлест, перекрывая друг друга на 10 см, что следует учитывать при расчете заказа.
Thermaflex FR/AC - эластичные оболочки и листы, предназначенные для изоляции трубопроводов систем водоснабжения, отопления, кондиционирования, а также систем с носителями холода.
Материал позволяет сохранять необходимую температуру воды, избегать потерь тепла при разводке теплоносителя по зданию, избегать образования конденсата на трубах с холодной водой. Изделия не намокают и могут использоваться повторно после устранения аварий.
Технические характеристики изделий: плотность 35-40 кг/м3, диапазон диаметров 6-114 мм, толщина изоляции 4-38 мм, рабочая температура от -85°С до +110°С, коэффициент теплопроводности в этом диапазоне от 0,033 до 0.038 Вт/м К.
Thermaflex обладает не только прекрасными изолирующими свойствами, но и высокой технологичностью. Легкий, эластичный, безвредный, он просто монтируется на трубопроводы и системы сложной конфигурации. Для малых диаметров труб изоляцию легко устанавливать на дуги и колена. Для оболочек большого диаметра или толщины при помощи монтажных средств (клея, лент) легко готовятся монтажные формы для установки на сложные участки трубопроводов. Ассортимент Thermaflex включает также изделия со специальными монтажными приспособлениями (пластиковый многоразовый замок-защелка), либо с различным ламинированием поверхности.
1.3.4 Вспученный перлит
Одним из широко используемых в строительстве утеплителей является вспученный перлит, который получают из природного перлита (месторождение Фогош) в результате его обработки при высокой температуре. Он обладает хорошими тепло- и звукоизоляционными свойствами, огнестоек, химически инертен и биостоек. Температура применения вспученного перлита в качестве теплоизоляционного материала от -200°С до +900°С, теплопроводность составляет 0,04-0,09 Вт/м К при насыпной плотности 75-250 кг/м3. Вспученный перлит выпускают на Калиновском заводе теплоизоляционных материалов "Стройперлит" (Киевская область) и др. предприятиях. Его производят в виде песка, порошка, щебня, которые применяют при производстве теплоизоляционных изделий и конструкций. На основе перлита выпускают стеновые панели из керамзитоперлитобетона, мелкозернистого перлитобетона, а для утепления кровель применяют битумоперлит, перлитофосфогелевые плиты. Производство таких изделий налажено на Броварском заводе строительных конструкций.
Основным недостатком вспученного перлита является то, что при содержании влаги в количестве 10 объемных процентов изолирующая способность уменьшается на 90%, т.к. перлиты содержат целлюлозу и очень гигроскопичны. Намокая, перлитовая изоляция превращается в песок, следовательно, она требует тщательной защиты от влаги.

Рисунок 1.3 Вспученный перлит
1.3.5 Вермикулитовая теплоизоляция
Вспученный вермикулит получают путем высокотемпературной обработки природного вермикулита. В результате этого процесса вермикулит превращается в легкий пористый материал, который используется для производства теплоизоляции.
Вспученный вермикулит, благодаря своим уникальным свойствам (низкая плотность, высокие звуке- и теплоизоляционные свойства, огнестойкость, кислото- и биостойкость), широко применяется в различных областях народного хозяйства (строительство, судо-, в гоно- и энергомашиностроение и т.д.). В Украине производство изделий на основе вермикулита ограничено; это связано с тем, что сырье поставляется из России. Вместе с тем, Украина располагает огромными запасами вермикулита, которые до недавнего времени были законсервированы.
Переработкой вермикулита занимается НПП "Вермикулит" (г. Киев). Выпускаются, в зависимости от плотности, три марки вспученного вермикулита 100, 150 и 200. Вермикулит, используемый как засыпной теплоизоляционный материал, имеет преимущества перед другими сыпучими или волокнистыми минеральными утеплителями. Если он уложен или засыпан в вертикальной полости, то в течение длительного времени практически не уплотняется, не перетирается в порошок, не дает усадки и обладает упругостью. Теплопроводность вспученного вермикулита по фракциям: для крупной - 0,098, средней -0,116, мелкой - 0,14 Вт/м К. Для теплоизоляции судов выпускают специальные вермиклитовые плиты. Кроме того, вермикулит является отличным сырьем для получения тонкого и супертонкого минерального волокна.

Рисунок 1.4 Вермикулит
1.3.6 КСВ
Совсем недавно разработано новое связующее вещество, которое в качестве полуфабриката может быть использовано для изготовления различных строительных материалов и изделий. Это вещество получают из кремнеземистого сырья природного или техногенного происхождения с высоким содержанием кремнезема (более 80%) и каустической соды, которые подвергаются специальной обработке. На основе КСВ - полуфабриката выпускается искусственный пористый материал кремнезит. Он может использоваться для производства теплоизоляционных плит, легких бетонов и блоков, а также в качестве теплоизоляционной засыпки. Материал в виде засыпки имеет размеры гранул до 5 мм, теплопроводность 0,05-0,06 Вт/м∙К, прочность на сжатие 0,45 – 0,75 МПа и насыпную плотность 130-160 кг/м3. Стоимость кубометра материала эквивалентна $30. Производство такого материала налаживается на киевском предприятии "Оболонь - КСВ" в Киеве. Ведутся работы по наладке производства плитного теплоизоляционного материала на основе КСВ, который долговечен, не горюч, позволяет изолировать поверхности с температурой до 700 °С. Технология производства КСВ - полуфабриката и изделий на его основе является экологически чистой и безвредной для здоровья человека.
1.3.7 Пеностекло
Компания " Будавтотранс " представила на украинский рынок новый высокоэффективный утеплитель FOAMGLAS производства фирмы Pittsburgh Corning Europe (Бельгия). Материал с уникальным сочетанием физико-механических и теплоизоляционных свойств прекрасно зарекомендовал себя во всех областях строительства.
FOAMGLAS - это ячеистое пеностекло, технология изготовления которого обеспечивает получение легкого прочного материала с закрытыми порами, чем обеспечивается его полная водо и пара непроницаемость. Благодаря этим качествам при использовании плит AMGLAS отпадает необходимость применения пароизоляционных пленок и гарантирована стабильность теплоизоляционных свойств в процессе эксплуатации.
Благодаря своей природе, утеплитель из пеностекла относится к группе негорючих материалов и имеет неограниченный срок службы, на протяжении которого сохраняются его теплоизоляционные свойства. Химический состав материала обеспечивает его защиту от грызунов, насекомых, бактерий, лишайников и мхов. Он устойчив к воздействию кислот и предохраняет от коррозии соседствующие с ним материалы. С точки зрения экологической безопасности это исключительно чистый материал, не содержащий фенолформальдегидных и других связующих.
Теплоизоляционный материал FOAMGLAS представляет собой жесткую высокопрочную плиту с постоянными физическими свойствами и коэффициентом термического расширения таким же, как у стали и бетона. Плиты выпускаются нескольких типоразмеров: 300 х мм, 450x600 мм и 600x1200 мм, а толщина варьируется в пределах от 30 до 150 мм. В зависимости от типа изделия плотность колеблется от 105 до 165 кг/м3, коэффициент теплопроводности изменяется от 0,037 до 0,048 Вт/м°С. Прочность на сжатие достигает 160 т/м2 Изоляция из вспененного стекла используется в широком диапазоне температур от – 260°С до + 730°С.
FOAMGLAS зарекомендовал себя как экономичный утеплитель, позволяющий значительно снизить трудозатраты при строительстве и материальные затраты в процессе эксплуатации объектов. Материал очень технологичен - легко монтируется и нарезается. Укладка плит производится на горизонтальные и вертикальные бетонные, металлические и деревянные поверхности. Изоляция приклеивается горячим битумом, клеевыми составами или крепится механически. При соблюдении технологии монтажа блоки FOAMGLAS обеспечивают полную однородность изоляции и отсутствие температурных мостиков холода. При механическом повреждении теплоизоляционного слоя требуется замена всего лишь поврежденного участка, а не всей изоляции, что значительно удешевляет ремонт.
Высокая эффективность и исключительные технические характеристики материала делают его незаменимым при организации эксплуатируемых и "зеленых" кровель. FOAMGLAS широко используется для теплоизоляции различных типов кровли, полов и потолков, фасадов новых и реконструируемых зданий, при строительстве зданий и сооружений с повышенной влажностью, таких как производственные помещения текстильной, табачной, пивоваренной промышленности, бассейнов и саун.

Рисунок 1.5 Пеностекло
1.3.8 Теплоизоляция из натуральной пробки
На украинском рынке представлены экологически чистые теплоизоляционные и отделочные материалы на основе натурального сырья - коры пробкового дуба. AMORIM GROUP (Португалия) - крупнейшая в мире корпоративная группа, занимающаяся переработкой, производством и экспортом изделий из натуральной пробки. Фирмы Ipocork, Exhocor и Wicanders, входящие в состав Amorim Group как фирмы-производители, представляют на рынке пробковые изоляционные панели и отделочные материалы из пробки.
Пробковые панели - экологически чистый природный изоляционный материал. Клетки, из которых состоит пробка (около 40 миллионов в каждом см3), сочетают минимальное количество твердого вещества и максимальное количество воздуха.
В качестве строительной изоляции применяют панели из вспученной натуральной пробки. Сырье сначала гранулируют, затем нагревают до 400°С и спрессовывают в блоки. Пробка содержит собственное клеящее вещество суберин, поэтому никакие дополнительные клеи не используют. Пробковые изоляционные панели относительно легкие - 110-130 кг/м3, устойчивы к сжатию (максимальное давление 10000 кг/м2), изгибу, паронепроницаемы, обладают высокой упругостью, не подвержены усадке, имеют теплопроводность 0,04 Вт/м К при 20°С, рабочие температуры от -200°С до +100°С. Длительное время (более 40 лет) сохраняют свои теплоизоляционные свойства и стабильность размеров. Пробка, помимо теплоизоляции, обеспечивает хорошую звукоизоляцию.
Важным качеством материала является его неподверженность гниению, плесени и повреждениям паразитами. Панели устойчивы к воздействию углеводорода, химически инертны, прекрасно защищают от механической вибрации, могут использоваться в контакте с битумом, устойчивы к ультрафиолетовому излучению. При горении не выделяют вредных веществ (хлора, цианидов и др.) и после пропитки огнестойкими составами относятся к классу В1.
Применяют пробковые панели при изоляции крыш, чердаков, мансард, внутренних и наружных стен, полов, холодильных камер. Панели удобны в монтаже, легко режутся, что обеспечивает точную пригонку при установке, экономию времени и денег.
Агломерированные блоки режут на панели размером 1000 х 500 мм, при этом толщина панели может быть от 10 мм до 320 мм по желанию заказчика, стоимость материала от $6 за 1 м2 в зависимости от толщины изделия.
Завершая обзор теплоизоляционных материалов, хочется надеяться, что он поможет Вам выбрать необходимый изоляционный материал, удовлетворяющий конструктивным требованиям, достаточно долговечный и доступный по стоимости.

Рисунок 1.6 Натуральная пробка
1.4 Вывод из литературного обзора
Таким образом из проведенной работы я определил какие бывают холодильные камеры и в чем их отличия. Узнал сколько разных видов теплоизоляции и в чем их различие которые представлены в таблице 1.1.
Таким образом из проведенного аналитического обзора я можно определить влияние утеплителя на холодильную камеру, определить оптимальные показатели холодильной камеры. Определить влияние улучшения теплоизоляции на холодильное оборудование, и на стоимость изготовления холодильной камеры.
Таблица 1.1 Параметры теплоизоляции
|
Наименование |
Теплопроводность, Вт/м∙К |
Содержание влаги в изоляции, % |
Допустимая температура использования, oC |
Плотность материала, кг/м3 |
Стоимость,кг |
Страна изготовитель |
|
Пенополистирол |
0,03 ÷ 0,04 |
0,5 ÷ 3 |
80 ÷ - 180 |
15 ÷ 40 |
460 |
Украина |
|
Экструдированный пенополистирол |
0,027 ÷ 0,033 |
0,1 ÷ 0,5 |
75 ÷ - 50 |
25 ÷ 45 |
350 |
Бельгия Украина |
|
Вспененный полиэтилен |
0,033÷ 0,098 |
2 |
110 ÷ - 85 |
35 ÷ 40 |
||
|
Вспученный перлит |
0,04 ÷ 0,09 |
10 |
900 ÷ - 200 |
75 ÷ 250 |
318 |
|
|
Вермикулит |
0,04 ÷ 0,062 |
400 |
1200 ÷ -260 |
90 ÷ 375 |
1530 |
Украина |
|
КСВ |
0,05 ÷ 0,06 |
700 ÷ - 100 |
130 ÷ 160 |
238 |
||
|
Пеностекло |
0,04 ÷ 0,08 |
0 ÷ 5 |
500 ÷ -200 |
90 ÷ 170 |
||
|
Натуральная пробка |
При t= 20 оС λ = 0,04 |
7 |
100 ÷ - 200 |
110 ÷ 130 |
50 |
|
|
Полиуретан |
0.019 ÷ 0.03 |
1,2 ÷ 2,1 |
150 ÷ - 150 |
18 ÷ 130 |
120 |
2 ПОСТАНОВКА ЗАДАЧИ
Рассчитать, подобрать и разместить охлаждающие приборы. В камере хранения пищевых продуктов в одноэтажном холодильнике.
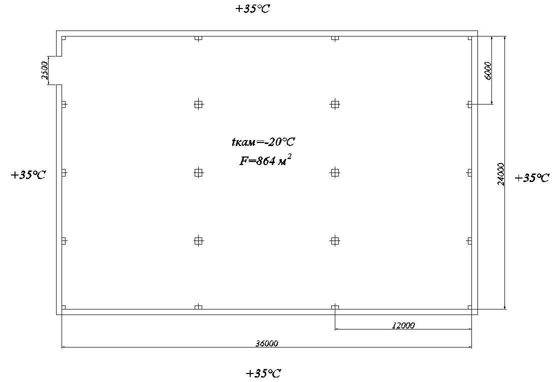
Температура камеры t>к >= - 20 оС, система охлаждения не посредственная. Площадь поверхности пола камеры F>с >= 864 м2, высота камеры h = 5 м.
При расчете оборудования камеры хранения мороженного мяса требуется определить тепловую нагрузку на холодильное оборудование без учета дополнительных теплопритоков от электродвигателей вентиляторов. Рассчитать оборудования камеры хранения нужно определить площадь поверхности воздухоохладителей, их число, установленную мощность электродвигателей вентиляторов, оснащенность камеры охлаждающими приборами, а также абсолютный и удельный расходы металла, идущего на оснащение камеры охлаждающими приборами, оббьем и массу жидкого хладагента, находящегося в охлаждающихся приборах, удельную установленную мощность, количество воздуха, подаваемого в камеру, кратность циркуляции. Схема камеры представлена на рисунке 2.1.

Рисунок 2.1 Планировка холодильной камеры
2.1 Расчет тепло изоляции для камеры хранения
Qогр - Количество тепла, проходящие через наружное ограждения камеры
(2.1)
где Тнар и Ткам. – температуры наружная и в камере соответственно К
F – площадь поверхности через которую происходит передача тепла м2
k – коэффициент теплопередачи Вт/м2 К.
Qпрод - Количество тепла поступающее в холодильную камеру при хранении продуктов (Вт.)
Qинф - Количество тепла поступающее за счёт инфильтрации окружающего воздуха при открывании дверей (Вт.)
(2.2)
где Тпом и Ткам. – температуры в помещении и в камере соответственно К
F1 – площадь поверхности через которую происходит инфильтрация м2
k1 – коэффициент теплопередачи Вт/м2 К.
Qвентиляции – количество тепла поступающего в камеру с свежим воздухом
>
>>(2.3)>
n – количество людей
V – оббьем воздуха необходимый на 1 человека
>ρ>> – плотность воздуха>
>c>> – теплоёмкость воздуха>
>Q>>раб – количество теплоты выделяемое рабочими в камере>
>
>>(2.4)>
>Q>>общ – количество тепла поступающее в камеру>
>
>>(2.5)>
>Проведен анализ нескольких видов теплоизоляции и построен график зависимости теплопритоков в зависимости от толщины теплоизоляции рисунок 2.2>
>2.2 Расчет оборудования камеры хранения >>c>> оребренными батареями>
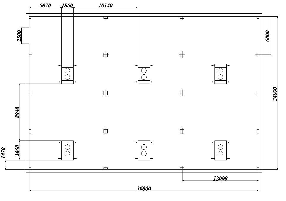
>Схема расположения оборудования приведена на рисунке 2.3>
>L>> – Длина потолочной батареи определяют по формуле>
>
>>(2.6)>
>где >>lc>>г – длинна головной секции (>>lc>>г=2,75 м)>
>l>>сх – длинна хвостовой секции (>>l>>сх=2,75 м)>
>l>>сс – длинна средней секции (>>l>>сс= 4,5 м)>
>n>> – число средних секций>
>F>> – теплопередающая площадь поверхности потолочной батареи>
>
>>2.7)>
Теплопередающая площадь поверхности секции зависит от длинны секции, шага оребрения и количества труб в секции. Потолочные батареи собираются из шеститрубных секций.
fc – теплопередающая поверхность головной секции (fc=17,5 м2 )
fcx – теплопередающая поверхность хвостовой секции (fcx =17,5 м2)
fcc - теплопередающая поверхность средней секции (fc=27 м2 )
Fs – суммарная теплопередающая площадь поверхности четырёх потолочных батарей.
>
>>(2.8)>
Q – количество теплоты отводимое потолочными батареями
>
>>(2.9)>

1– пристенная батарея,
2 – потолочная батарея
Рисунок 2.3 Размещение батарей в камере хранения
κ – коэффициенты теплопередачи потолочной батареи (κ=3,8 Вт/(м2 ∙К))
∆t – разница между температурами воздуха в камере и кипящего хладагента (∆t=10 Со)
Qg – тепловая нагрузка пристенных батарей
>
>>(2.10)>
Fp – теплопередающая поверхность пристенных батарей
>
>>(2.11)>
np – необходимое число секций
>
>>(2.12)>
fcz – площадь поверхности одной секции
Fp1 - теплопередающая поверхность пристенных батарей
>
>>(2.13)>
n1 – количество пристенных секций из формулы 1.12 округляем
Fb - общая теплопередающая поверхность пристенных и потолочных батарей
>
>>(2.14)>
an – оснащенность камеры охлаждающими приборами
>
>>(2.15)>
Gm(x) – абсолютный расход металла, идущий на оборудование охлаждающих приборов камеры находим по формуле 1.16
>
>>(2.16)>
gcx – масса хвостовой секции потолочной батареи (gcx = 105,6 кг)
gcg – масса головной секции потолочной батареи (gcg = 105,6 кг)
gcc – масса средней секции потолочной батареи (gcc = 162 кг)
g – масса секции пристенной батареи (g = 162 кг)
gm – удельный расход металла, отнесённый к 1 м2 строительной площади камеры
>
>>(2.17)>
Sплощадь – площадь поверхности пола камеры
Ltp – длинна труб потолочных батарей
>
>>(2.18)>
m – количество параллельных труб в потолочной батареи
npb – количество потолочных батарей
Ltpr – длинна труб пристенных батарей
>
>>(2.19)>
Lo – суммарная длинна труб батареи секций
>
>>(2.20)>
V – оббьем жидкого аммиака в охлаждающих приборах находиться по формуле 1.21
>
>>(2.21)>
ν – ёмкость отрезка 1 м трубы
κ – коэффициент заполнения труб батареи жидким аммиаком
Gam – масса жидкого аммиака
> >>
>>(2.22)>
где ρam – плотность жидкого аммиака при t>o>= – 30o C и р>а>= 675 кг/м3
2.3 Расчет оборудования для камеры с подвесными воздухоохладителями
Схема камеры с подвесными воздухоохладителями приведена на рисунке 2.4
Fbo – площадь поверхности воздухоохладителей находиться из зависимости и равняется
>
>>(2.23)>
где κ1 – коэффициент теплопередачи и равняется κ1 = 12 Вт/(м2∙К)
nbo – число воздухоохладителей в камере
>
>>(2.24)>
fbo – площадь поверхности принятого типа воздухоохладителя ВОП – 100 и равняется fbo=100 м2.
n21 – дополнительные воздухоохладителей для компенсации теплопритоковот работы электродвигателей вентиляторов
>
>>(2.25)>
Qbo – количество теплоты отводимое этими аппаратами
>
>>(2.26)>
Qd – действительный теплоприток в камеру
>
>>(2.27)>
n> двигателей> – число двигателей вентиляторов в одном воздухоохладителе
N – установленная мощность одного двигателя
a1n – Оснащенность камеры охлаждающими приборами

Рисунок 2.4 Размещение подвесных воздухоохладителей в камере хранения
>
>>(2.28)>
G1m – абсолютный расход металла, идущий на оборудование охлаждающих приборов камеры
>
>>(2.29)>
где gbo – масса одного воздухоохладителя gbo = 828 кг
g1m – удельный расход металла
>
>>(2.30)>
V1 – оббьем жидкого аммиака в воздухоохладителях определяем из уравнения
>
>>(2.31)>
νbo – вместимость одного воздухоохладителя νbo = 0,03 м3
κbo – коэффициент заполнения жидким аммиаком κbo = 0,5
Gam1 – масса жидкого аммиака в охлаждающих приборах
>
>>(2.32)>
S – удельная установочная мощность электродвигателей вентиляторов
>
>>(2.33)>
V0 – количество подаваемого в камеру воздуха находят из выражения
>
>>(2.34)>
ν ν – расход одного вентилятора м3 /с
V11 – кратность циркуляции ч-1
>
>>(2.35)>
2.4 Экономический затраты на строительство камеры хранения
Для строительства камеры хранения нужно просчитать ее стоимость. Которую будут составлять расходы на строительство самой холодильной камеры, холодильного оборудования.
Строительство холодильной камеры включает в себя расходы на материал (теплоизоляцию), двери для холодильной камеры, ленточные ПВХ завесы для уменьшения теплопритоков в камеру, на работу монтажной бригады.
Холодильное оборудование – стоимость теплообменников которые используются в холодильной камере, жидкого хладагента, на работу монтажной бригады.
S – расходы на строительство.
(2.36)
Где S>мат> – стоимость теплоизоляции
S>две> – стоимость холодильной двери
S1>мон> – зарплата рабочей бригады
S>обр> – стоимость оборудования для холодильной камеры
S>хла> – стоимость жидкого хладагента
S2>мон> –зарплата рабочей бригады на установку холодильного оборудования
S =44730+6000+4000+378600+ 618+65000 =498948 ~ 500000 гривень
ЗАКЛЮЧЕНИЕ
В проведенной дипломной работе было проанализировано холодильную камеру, точнее влияние качества теплоизоляции на два вида холодильного оборудования. Для того, чтобы определить оптимальные показатели для использования одного или другого вида воздухоохладителя.
При выборе теплоизоляции рассчитали теплопритоки в камеру в зависимости от толщины теплоизоляции представлены на рисунке 2.2.
По типовому расчету холодильного оборудования, проведен расчет двух видов испарителей: змеевикового и подвесного воздухоохладителя, для охлаждения воздуха в холодильной камере. Чтобы определить какой из представленных воздухоохладителей, целесообразней использовать в камере при определенной толщине теплоизоляции.
Поэтому произведен расчет и построен график зависимости на расход материала, для изготовления испарителей в данную холодильную камеру. График приведен на рисунке 3.1.
Из этого графика видно, что до толщины теплоизоляции 190 мм целесообразнее применять подвесные воздухоохладители, а свыше 190 мм выгодней использовать змеевиковые. Так как на них будут идти меньшие материальные затраты.

Рисунок 3.1 График зависимости расхода металла на изготовления испарителя
Gm(x,12) – подвесных воздухоохладителей
G1m(x,3.8) – змеевиковых воздухоохладителей
Построен график зависимости массы жидкого хладагента, находящегося в охлаждающих приборах камеры от толщины теплоизоляции и представленный на рисунке 3.2
По графику жидкого хладагента видно что подвесной в отличии от змеевикового требует меньшего количества хладагента. Но так как хладагент в отличии от оборудования дешевле, то он играет не очень существенную роль в материальных затратах.
Для того, чтобы быть полностью уверенным при выборе воздухоохладителя для камеры построен график себе стоимости показанный на рисунке 3.3 .

Рисунок 3.2 График зависимости массы жидкого хладагента от толщины теплоизоляции

Рисунок 3.3 График себе стоимости
СПИСОК ИСТОЧНИКОВ ИНФОРМАЦИИ
http://www.frostland.com.ua/pages/refrigirating-chambers/
М.М. Голянд - Сборник примеров и лабораторных работ по курсу холодильное технологическое оборудование, Москва: Легкая и пищевая промышленность, 1981г
Е.М. Костенко - Устройство, ремонт и обслуживание холодильного оборудования, Киев: Основа, 2004
http://www.vsv-group.com.ua/sendvich.htm
http://www.xiron.ru/content/view/19315/28/