Проектирование автомобильной газозаправочной станции сжиженным газом пропан-бутан
Дипломная работа
Проектирование автомобильной газозаправочной станции сжиженным газом пропан-бутан
Содержание
1. Введение
1.1 Характеристика автомобильной газозаправочной станции сжиженным газом пропан-бутан
1.1.1 Техническое описание
1.2 Характеристика генерального и ситуационного план
1.2.1 Основные технические решения
1.2.2 Техника безопасности
1.2.3 Противопожарные мероприятия
1.3 Нормативно-правовая база обеспечения пожарной безопасности автомобильной газозаправочной станции
1.4 Пожарно-техническая экспертиза автомобильной газозаправочной станции
1.4.1 Замечания по рабочему проекту
1.5 Задачи дипломного проектирования
2. Моделирование пожарной опасности
2.1 Пожароопасные свойства сжиженных углеводородных газов
2.2 Анализ возможных причин разгерметизации технологической системы
2.3 Расчет площади разлива сжиженных углеводородных газов в случае полной разгерметизации технологической системы
2.4 Расчет зоны взрывопожароопасных концентраций при испарении сжиженных углеводородных газов с площади розлива
2.5 Расчет избыточного давления взрыва при сгорании взрывоопасной газовоздушной смеси
2.6 Возможная обстановка при воздействии волн избыточного давления взрыва
2.7 Расчет опасных параметров при возникновении "огненного
шара"
2.8 Возможная обстановка на объекте при воздействии теплового излучения от "огненного шара"
2.9 Расчет тепловых нагрузок при пожаре разлива сжиженных углеводородных газов
2.10 Возможная обстановка на объекте при воздействии теплового излучения при пожаре розлива сжиженных углеводородных газов
3. Разработка противопожарных мероприятий
3.1 Мероприятия по обеспечению пожарной безопасности автомобильной газозаправочной станции
3.2 Анализ технических решений, направленных на совершенствование противопожарной защиты
3.3 Анализ тактико-технических возможностей пожарных подразделений
3.4 Обоснование исходных данных к конструкции сбросной
трубы
3.5 Характеристика состояния окружающей среды и экологического состояния автомобильной газозаправочной станции
3.6 Экономическая оценка эффективности применения
дренчерного орошения резервуара с СУГ
3.7 Гидравлический расчет дренчерной установки охлаждения резервуара с СУГ
Выводы
Литература
1. Введение
Современные тенденции развития автомобилестроения предполагают использование экологически чистых видов топлива. К таким видам топлива относятся и сжиженные углеводородные газы, в дальнейшем СУГ. В качестве топлива широко используется смесь пропан-бутан. В современных условиях топливного кризиса в России СУГ (пропан-бутан) с их низкой себестоимостью способны конкурировать с традиционными видами топлива, такими как бензин и дизельное топливо.
В настоящее время существует два способа хранения СУГ: наземное и подземное. При наземном способе хранения уровень хранимого в резервуаре продукта располагается выше уровня планировочных отметок площадки хранилища, а при подземном – ниже уровня планировочных отметок площадки емкости. Для наземного хранения СУГ применяют резервуары трех основных типов:
1. Работающие под высоким давлением;
2. Полуизотермические;
3. Изотермические.
Металлические наземные резервуары, работающие под высоким давлением, обычно используются для хранения небольших количеств СУГ с упругостью паров, не превышающих 1,8–2 мПа при температуре окружающей среды. При этом газ сжижают компремированием.
В полуизотермических резервуарах режим хранения СУГ поддерживается с помощью регулирования двух параметров – температуры и давления: температура хранимого продукта определяется заданным давлением насыщения, которое выбирается несколько выше атмосферного. Полуизотермический способ используется также при транспортировании СУГ в автомобильных и железнодорожных цистернах, а также в танкерах.
В изотермических резервуарах СУГ хранят под атмосферным давлением при температуре кипения. Сжижение газа, охлаждение его до температуры кипения и поддержание изотермического режима хранения достигается за счет холодильных установок. При выборе оптимальной технологии (способа) хранения СУГ важную роль играют два взаимосвязанных фактора:
объем хранилища;
скорость его заполнения продуктом.
В каждом конкретном случае выбор того или иного вида хранилища СУГ определяется и другими факторами, среди которых важное место отводится обеспечению взрыво- и пожаробезопасности.
Характеристика автомобильной газозаправочной станции
сжиженным газом пропан-бутан
Автомобильная газозаправочная станция на три топливо раздаточные колонки, расположена на 29 км Симферопольского шоссе, Московской области. Технологическая схема АГЗС предназначена для заправки баллонов топливной системы грузовых, специальных и легковых транспортных средств сжиженным углеводородным газом (пропан-бутан). Заправка автомобилей осуществляется при помощи газораздаточной колонки, отмеривающей в дм3 количество заправленного в баллон автомобиля газа.
Техническое описание
В состав АГЗС входит:
- один наземный одностенный резервуар, объемом 17,5 м3;
- три топливораздаточные колонки «ADAST», располагаемые на островках безопасности;
- два насоса: один для слива СУГ из автоцистерны в резервуар, второй для заправки газобаллонных автомобилей;
- навес;
- здание операторной (II степени огнестойкости);
- площадка АЦ СУГ;
- газонаполнительный пункт;
- молниеотвод.
Насосный агрегат установлен на несущих стальных рамах и представляют собой компактную эксплуатационную установку.
Станция установлена и заземлена согласно чертежам, предварительно переданным Потребителю.
1.2 Характеристика генерального и ситуационного плана
Строительство автомобильной газозаправочной станции (АГЗС), по адресу: Московская область 29 км Симферопольского шоссе, площадью застройки 0,175 га.
Площадка для АЦ не отгораживается железобетонной стеной. Въезд и выезд на площадку предусматривается раздельный. На въезде и выезде на площадку предусматриваются пандусы.
Наружное противопожарное водоснабжение обеспечивается за счет противопожарных резервуаров объемом 200 м3.
Камера под резервуар - наземное сооружение, высотой h=2,4м выполнено из сборных бетонных фундаментных блоков, покоится на монолитной железобетонной плите. Покрытие камеры - плоские асбестоцементные листы по стяжке из цементно-песчаного раствора. Изнутри свободное пространство камеры с установленным в нее металлическим резервуаром заполняется отфильтрованным песком.
С наружи поверхность блоков камеры отштукатуривается и окрашивается; выполняется декоративное оформление - ограждение из профлиста.
Операторская - отдельно стоящее мобильное здание размерами в плане 3,0x4,0 высотой 2,4м. Каркас здания металлический, из уголковых элементов, обшитый снаружи профильными стальными листами, изнутри - панелитом по внутреннему слою утеплителя (пеноизола).
Навес над раздаточной колонной - сооружение из металлических конструкций размерами в плане на металлических стойках из труб. Фундаменты под трубы - монолитные железобетонные стаканного типа. Покрытие и обрамление навеса - металлочерепица.
В соответствии с рабочим проектом принята следующая технoлогическая схема:
сжиженный углеводородный газ (СУГ) хранится в емкости (резервуаре) мод. ЦТА-10. Геометрическая вместимость резервуара составляет 17,6 куб.м.; фактическая вместимость цистерны при максимальном коэффициенте заполнения-0,85, составляет-14,96куб.м. Суммарное количество хранимого сжиженного газа составляет-14,96 куб.м;
Для площадки автоцистерны с СУГ, оборудованной отбортовкой, и технологическим колодцем, предусматривается аварийная вентиляция с искусственным побуждением (система В1) с основными и резервными вентиляторами взрывобезопасного исполнения. Запуск и остановка системы предусмотрена как вручную, так и в автоматическом режиме, а также дистанционно из операторской, что отражено в электротехнической части проекта. Для обеспечения равномерной подвижности отсасываемой паровоздушной смеси в любой точке площадки, предусматривается отсос ее через воздуховод равномерного всасывания, который располагается на уровне верхнего края отбортовки. Удаление паровоздушной смеси предусматривается через воздуховод с помощью факельного выброса, что обеспечивает удаление ее на более значительную высоту.
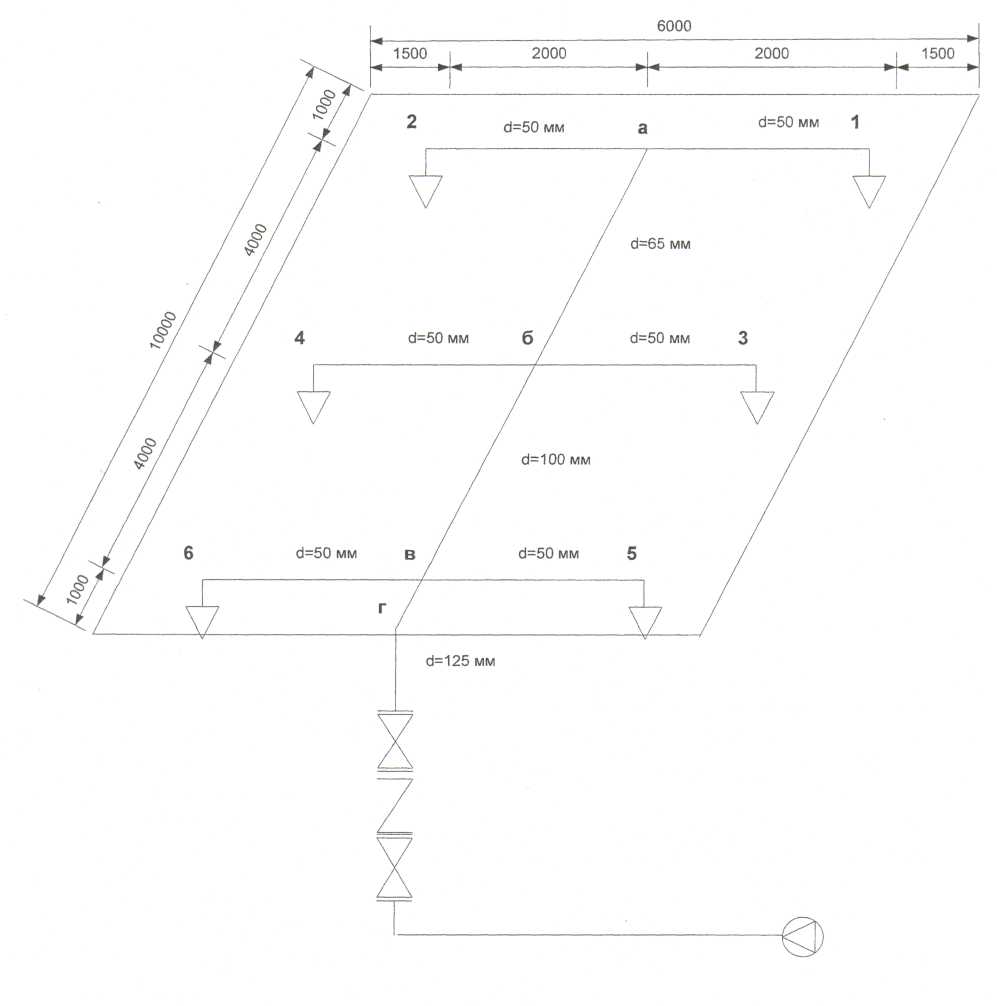
Сеть технологических трубопроводов автомобильной газозаправочной станции позволяет производить прием топлива из автоцистерны и раздачу их через колонки потребителям. От резервуара до газозаправочной колонки предусматривается подземная прокладка газопровода Дц 25x35; Дц 15x2,5 по ГОСТ 1050-88 на глубине 1,6 м. в лотках, на опорах с пролетом 1,5м по резиновым подушкам. Колонка подключена к резервуару посредством труб Дц 53x3,5; 42x3,0 по ГОСТ 50-88. Для защиты подземных газопроводов были применены защитные покрытия усиленного типа по ГОСТ 9.602-89 на основе битумной мастики. Для резервуара также была предусмотрена защита от коррозии, состоящая из покрытия весьма усиленного типа по ГОСТ 9.602-89, на основе битумной мастики.
Проектом предусмотрено по степени надежности электроснабжения АГЗС к III категории. Напряжение сети 380/220 В. Установленная мощность Р>уст>=12,785 кВт. Для распределения электроэнергии на станции принят распределительный пункт ПР 8501-1-292, установленный в операторской. Для заземления электроприемников станции используют нулевые жилы питающих кабелей и внешний контур заземления. Под навесом топливозаправочной устанавливаются светильники ВЗГ/ВЧА-200МС. Для наружного освещения станции применяются светильники РТУ-06-125-002 и РКУ-07-125-001-У1. Подвод питания к светильникам выполнен кабелем АВВГз и ВВГ, прокладываемым в траншее, трубах и по строительным конструкциям.
Заземлением корпусов светильников выполняется присоединением нулевого рабочего провода к винту заземления внутри светильника. Линия электроснабжения выполнена кабелем АВВ-1 сечением 4x25 мм2, проложенным в траншее, защищенным по всей длине глиняным кирпичом.
Молниезащита емкости хранения топлива выполнена стержневым молниеотводом, присоединенным к наружному контуру заземления в соответствии с РД 34.21.122-87. Высота стержневого молниеотвода равна 15м. Молниезащита топливораздаточной колонки осуществляется присоединением ее к наружному контуру заземления. На сооружении защиты газовой емкости предусматривается молниеприемная сетка с шагом ячеек 6x6 м.
Операторская имеет металлическую кровлю, поэтому в качестве молниеприемной сетки должна быть использована сама кровля. Токоотводы от металлической кровли и молниеприемной сетки должны быть соединены с наружным контуром заземления. Сопротивление заземления должно быть не более 4 Ом.
В проекте применен сигнализатор СТМ-10 Смоленского ПО «Аналитприбор». При повышении предельно допустимой концентрации сжиженных углеводородных газов срабатывает световая сигнализация и включаются вытяжные вентиляторы. Датчики газоанализатора устанавливаются в приямке на уровне 50-100 мм. от площадки и в колодце на уровне 50-100мм от дна. Трассы внешних соединений выполнены кабелем КВВГ, АКВВГ, проложенными в операторской открыто по стене с креплением скобами. Автомобильная газозаправочная станция оборудуется пожарной сигнализацией:
в помещении операторской монтируется прибор ППК.
извещатели дымовые пожарные ИП 215.
Техника безопасности.
На стационарной автомобильной газозаправочной станции производится заправка баллонов легковых и грузовых автомобилей одорированным сжиженным углеводородным газом, соответствующим ГОCT 20448-92 «Газы углеводородные сжиженные топливные для коммунально-бытового потребления» марок ПТ и СПБТ, пары которого могут образовывать с воздухом взрывоопасные смеси.
Факторы производственных опасностей воздействия на организм человека:
1. Наличие вредных веществ IV-гo класса опасности (пропана, бутана), обладающих наркотическим действием.
2. Обморожение открытых участков кожи при попадании на них углеводородных газов.
Наиболее опасными аварийными ситуациями на АГЗС могут быть:
разгерметизация гибкого шланга типа АЦТ8М-431-04-36-00 с условным проходом 40 мм и поступление сжиженного углеводородного газа на бетонированную площадку заправочной станции при заполнении баллонов автомобилей из колонки;
отключение электроэнергии;
неисправность оборудования:
а) неисправен предохранительный клапан (утечка рабочей среды через соединение золотник-седло клапана, клапан не срабатывает, при повышении давления газа в цистерне выше рабочего);
б) повреждено защитное стекло индикатора уровня и т.д.;
в) нарушение санитарного режима, представляющего опасность для людей и окружающей среды.
Во всех случаях возникновения аварийных ситуаций и образования взрывоопасных смесей должны быть приняты меры по их устранению.
Мероприятия, направленные на обеспечение безопасной эксплуатации АГЗС:
Автоцистерны со сжиженным углеводородным газом и заправляемые автомобили размещаются на открытых площадках заправочной станции.
Все электрооборудование и осветительная аппаратура, расположенные в зоне В-1г, имеют взрывозащищенное исполнение, соответствующее категории и группе взрывоопасных смесей.
Загрязненные маслами песок, снег и промасленная ветошь должны быть собраны в металлический ящик искронедающим совком и периодически вывезены на полигоны промышленных отходов.
По прибытии на площадку наполнения газобаллонных автомобилей водитель автоцистерны обязан:
а) заглушить двигатель автомобиля - тягача и вынуть ключ из замка зажигания;
б) заземлить автоцистерну и пост управления;
в) убедиться в отсутствии открытого огня;
г) под колеса автоцистерны поставить упор противооткатный.
Заправка газобаллонных автомобилей должна осуществляться согласно производственной инструкции.
Количество одновременно заправляемых автомобилей – один, остальные автомобили должны находиться на площадке для стоянки автомобилей, предусмотренной в проекте у въезда, за территорией АГЗС.
При наполнении баллонов газобаллонных автомобилей на АГЗС должны выполняться требования «Правил устройства и безопасной эксплуатации сосудов, работающих под давлением». Допускается заправка только баллонов газобаллонных автомобилей. Заправка других баллонов, в том числе и бытовых, категорически запрещается.
Ответственность за техническую исправность баллонов газобаллонных автомобилей и их освидетельствование несет владелец автомобиля.
Перед заправкой баллонов газобаллонных автомобилей оператор АГЗС обязан проверить в путевом листе водителя наличие штампа и подписи, подтверждающих исправность и пригодность баллонов к наполнению, а так же наличие у водителя удостоверения на право вождения газобаллонных автомобилей.
Запрещается заправлять СУГ в установленные на автомобилях баллоны, у которых:
а) истек срок периодического освидетельствования, ллоны подлежат освидетельствованию один раз в два года);
б) нет установленных надписей;
в) не исправлены вентили и клапаны;
г) ослаблено крепление баллона;
д) имеются утечки из различных соединений.
Наполнение баллонов автомобилей СУГ разрешается только при выключенном двигателе автомобиля. Включать двигатель разрешается только после отсоединения рукавов и установки заглушки на отключающее устройство.
Въезд на территорию АГЗС и заправка автомобилей, в которых находятся пассажиры, запрещаются. Во время операций по подготовке, заправке и окончания заправки автомобилей запрещается так же пребывание на территории АГЗС посторонних лиц и водителей, ожидающих заправку.
При заправке газобаллонных автомобилей СУГ необходимо соблюдать следующие правила безопасности:
а) не стучать металлическими предметами по арматуре и газопроводам, находящимся под давлением;
б) если двигатель заправленного газом автомобиля при пуске дает перебои (хлопки), его следует немедленно заглушить и откатить автомобиль на расстояние не менее 15м;
в) не подтягивать соединения на баллонах и коммуникациях;
г) не оставлять заправляемые автомобили без надзора;
д) не производить выброс СУГ из баллонов в атмосферу при переполнении;
е) не производить регулировку и ремонт газовой аппаратуры газобаллонных автомобилей на территории АГЗС;
ж) не наполнять автомобильные баллоны более 90% по объему;
з) не заправлять баллоны автомобилей при повышении давления системе автоцистерны выше 1,6 МПа (16кгс/см2);
и) не держать присоединенной наполнительную струбцину к наполнительному вентилю автомобиля, когда заправка его не производится;
к) не буксировать транспортные средства петлей аварийного выталкивания автоцистерны.
Запрещается эксплуатация и въезд автоцистерны на площадку АГЗС если:
истек срок очередного освидетельствования сосуда (цистерны);
поврежден корпус или днище сосуда (вмятины, нарушена окраска и так далее);
отсутствуют установление клейма и надписи;
отсутствует или неисправна арматура;
отсутствуют предупредительные надписи;
отсутствует паспорт на сосуд;
имеются утечки газа через соединения и арматуру;
неисправны предохранительные клапаны;
оборвана цепь заземления;
заземляющий трос со штырем-струбциной отсутствует или имеет повреждения;
отсутствуют огнетушители или истек срок их проверки (автоцистерна должна быть укомплектована двумя огнетушителями);
неисправна резьба на штуцерах и резинотканевых рукавах;
истек срок испытания резинотканевых рукавов, повреждены поверхность и их заземление;
неисправно крепление арматуры и трубопроводов;
поврежден индикатор уровня и КИП;
повышено давление в сосуде (цистерне) выше 1,6 МПа (16 кгс/см2);
отсутствует информационная табличка «Системы информации» об опасности, аптечка и знак аварийной остановки.
При наливе автоцистерны на «Базе сжиженного углеводородного газа» объем наливаемого топлива в цистерне не должен превышать 85% объема цистерны.
Противопожарные мероприятия.
Персональная ответственность за обеспечение пожарной безопасности АГЗС возлагается на ее руководителя. Руководитель АГЗС обязан:
а) обеспечить круглосуточную охрану АГЗС;
б) организовать изучение и выполнение правил пожарной безопасности всеми работниками АГЗС;
в) периодически проверять состояние пожарной безопасности, наличие и исправность технических средств борьбы с пожарами.
АГЗС обеспечивается следующими первичными средствами пожаротушения (ПСТ):
1) огнетушитель химически-воздушно-пенный (ОХВП-10) - 2 шт.;
2) ящик с песком (объем 0,5 м3) — 2 шт.;
3) лопата-2 шт.;
4) асбестовое полотно размером 1х2м - 2 шт.
Первичные средства пожаротушения и их количество приняты в соответствии с требованиями:
«Правил безопасности при эксплуатации газового хозяйства автомобильных заправочных станций сжиженного газа»;
«Инструкции» по эксплуатации и техническому обслуживанию заправочной автоцистерны для сжиженного газа.
«Правил пожарной безопасности в Российской Федерации 01-03»
«Норм пожарной безопасности. Автозаправочные станции. Требование пожарной безопасности. НПБ 111-98*»
Автоцистерна, доставляющая СУГ на площадку АГЗС, должна быть укомплектована двумя огнетушителями.
Первичные средства пожаротушения используются для локализации и ликвидации небольших загораний, а также пожаров в их начальной стадии развития.
Огнетушители должны быть опломбированы и должны иметь исправный раструб. Применять огнетушители без раструбов запрещается.
Огнетушители должны подвергаться наружному осмотру и перезарядке в соответствии с требованиями «Паспорта» на огнетушители.
Огнетушители, отправляемые на перезарядку, должны быть заменены на соответствующее количество заряженных огнетушителей.
При каждом ящике с песком должны находиться две металлические совковые лопаты. Ящики должны плотно закрываться крышками. На ящиках должна быть надпись: «Песок на случай пожара». Песок следует регулярно осматривать. При обнаружении увлажнения или комкования его необходимо просушить и просеять.
На видном месте в помещении пребывания обслуживающего персонала должна быть вывешена инструкция о порядке действия персонала при возникновении пожара и способы оповещения пожарной охраны.
В случае возникновения аварийной ситуации, связанной с разгерметизацией гибкого шланга и поступлении СУГ на бетонированную площадку, рабочим проектом предусмотрено автоматическое включение вентиляторов, срабатывающих от датчиков-сигнализаторов СТМ-10, реагирующих на повышение концентрации сжиженного газа в наиболее низких местах АГЗС:
- приямок бетонированной площадки;
- колодец сбора ливневых стоков с бетонной площадки.
Включение аварийной вентиляции позволяет резко снизить приземную концентрацию газа и не допустить условий возникновения пожара или взрыва. При повышении концентраций газа, кроме включения вентиляторов, включается световая сигнализация, указывающая на необходимость немедленного принятия мер персоналом.
1.3 Нормативно-правовая база обеспечения пожарной безопасности автомобильной газозаправочной станции
Обеспечение пожарной безопасности автомобильной газозаправочной станции происходит на основе следующих документов:
СНиП 21-01-97* Пожарная безопасность зданий и сооружений – М.: ГОСТстрой РФ, 2002.
НПБ 105-03 «Определение категорий помещений, зданий и наружных установок по взрывопожарной и пожарной опасности». – М.: ГУГПС МЧС РФ, 2003 г.
ГОСТ 12.1.004-91. Пожарная безопасность. Общие требования. – М.: Госстандарт России, 1991 г.
НПБ 111-98* «Автозаправочные станции. Требования пожарной безопасности». ГУГПС МЧС РФ, 2002 г.
Рекомендации по обеспечению пожарной безопасности объектов нефтепродуктообеспечения расположенных на селитебной территории: М., ВНИИПО МВД РФ, 1997 г.
Правила безопасности при эксплуатации газового хозяйства автомобильных заправочных станций сжиженного газа. Госгортехнадзор России. – М.: НПО ОБТ, 2001. - 220 с.
Обеспечение пожарной безопасности объектов хранения и переработки СУГ: Рекомендации. – М.: ВНИИПО, 1999. – 78 с.
ППБ 01-03 Правила пожарной безопасности в Российской Федерации. – М.: 2003;
Правила устройства электроустановок. – М.: Энергоатомиздат, 1985;
ГОСТ Р 12.3.047-98 Пожарная безопасность технологических процессов. Общие требования. Методы контроля. – М.: 1998.
1.4 Пожарно-техническая экспертиза газовой
автозаправочной станции
Противопожарная защита автомобильной газозаправочной станции сжиженного пропан - бутана, предусматривает 2 вида защиты: пассивная противопожарная защита и активная пожарная защита.
Пассивная пожарная защита включает в себя следующие мероприятия. Размещение оборудования на площадке выполнено с соблюдением противопожарных норм относительно друг друга и относительно окружающих зданий и сооружений.
Предусмотрена защита от статического электричества автоцистерны, заземляющим контуром.
Конструкция резервуаров АЦ снабжена КИПиА и предохранительными клапанами, позволяющими избежать переполнения резервуара СУГ и повышения давления, выше допустимого.
Электрооборудование выполняется во взрывозащищенном исполнении.
Активная пожарная защита состоит из средств обнаружения утечки сжиженного газа; средств предотвращающих образование взрывоопасной концентрации парового облака СУГ при аварийном проливе СУГ и средств локализации и тушения пожара при воспламенении пролитого сжиженного газа.
В табл. 1 приведены фактические расстояния от АГЗС с подземным одностенным резервуарам до объектов, к ней не относящихся.
Таблица 1
№п/п |
Наименование объектов,до которых определяетсярасстояние |
Фактическое |
Требу-емое |
Вывод |
|
1 |
2 |
3 |
4 |
5 |
|
1 |
Производственные, складские и административно-бытовые здания и сооружения промышленных предприятий: - от площадки для АЦ - от стенки резервуаров с СУГ - от корпуса ТРК - ПНБ |
73 83 68 58 |
80 80 80 80 |
Не соответствует Соответствует Не соответствует Не соответствует |
|
2 |
Лесные массивы: - хвойных и смешанных пород - лиственных пород |
отсутствует отсутствует |
60 40 |
Соответствует Соответствует |
|
3 |
Жилые и общественные здания: - от площадки для АЦ - от стенки резервуаров с СУГ - от корпуса ТРК - ПНБ |
80 90 75 70 |
100 100 100 100 |
Не соответствует Не соответствует Не соответствует Не соответствует |
|
4 |
Места массового пребывания людей |
отсутствует |
100 |
Соответствует |
|
5 |
Индивидуальные гаражи и открытые стоянки для автомобилей |
отсутствует |
50 |
Соответствует |
|
6 |
Торговые киоски |
отсутствует |
60 |
Соответствует |
|
7 |
Автомобильные дороги общей сети (край проезжей части): -I, II, III категории: - от площадки для АЦ - от стенки резервуаров с СУГ - от корпуса ТРК - ПНБ |
20,5 30 14,5 15 |
50 50 50 50 |
Не соответствует Не соответствует Не соответствует Не соответствует |
|
-IV, V категории |
отсутствует |
30 |
Соответствует |
|
|
Маршруты электрифицированного городского транспорта |
отсутствует |
50 |
Соответствует |
|
|
8 |
Железные дороги общей сети (до подошвы насыпи) |
отсутствует |
80 |
Соответствует |
|
9 |
Очистные канализационные сооружения и насосные станции не относящиеся к АЗС |
отсутствует |
100 |
Соответствует |
|
10 |
Технологические установки категорий А>н>, Б>н>, Г>н>, здания и сооружения с наличием радиоактивных и вредных веществ I и II классов опасности по ГОСТ 12.1.007-76* |
отсутствует |
100 |
Соответствует |
|
11 |
Линии электропередач, электроподстанции (в том числе трансформаторные подстанции) |
отсутствует |
по ПУЭ |
Соответствует |
|
12 |
Склады лесных материалов, торфа, волокнистых горючих веществ, сена, соломы, а также участки открытого залегания торфа |
отсутствует |
50 |
Соответствует |
Экспертиза расстояний между зданиями и сооружениями на территории автомобильной газозаправочной станции №2 (29 км) представлена в табл. 2.
Таблица 2
|
№ п\п |
Что проверяется Расстояния между зданиями и сооружениями на АГЗС. |
Предусмотрено в проекте (фактическое) |
Требуется по нормам (требуемое) |
|
|
1. |
Операторная – ТРК СУГ |
13 |
9 |
соответствует |
|
2. |
Операторная – резервуар СУГ |
35 |
9 |
соответствует |
|
3. |
ТРК – резервуар |
20 |
20 |
соответствует |
|
4. |
Площадка АЦ – операторная |
35 |
9 |
соответствует |
|
5. |
Площадка АЦ – ТРК |
20 |
20 |
соответствует |
|
6. |
Площадка АЦ – резервуар |
1,5 |
Не нормируется |
соответствует |
Результаты пожарно-технической экспертизы приведены в табл. 3.
Таблица 3
|
№ п/п |
Подлежит проверке |
Решения, принятые проектом |
Решения, установленные нормативными документами |
Вывод о соответствии требованиям норм |
|
1 |
Планировка АЗС |
Планировка территории АЗС исключает возможности растекания аварийных проливов топлива |
Планировка АЗС должна исключать возможность растекания аварийного пролива как по территории АЗС, так и за ее пределы (п.9 НПБ 111-98*) |
Соответствует |
|
2 |
Дренажные лотки |
На въезде и выезде с территории АЗС имеются дренажные лотки |
На въезде и выезде с территории АЗС необходимо выполнять пологие повышенные участки высотой не менее 0,2 м или дренажные лотки (п. 9 НПБ 111-98*) |
Соответствует |
|
3 |
Ограждение АЗС |
Решетка стальная, столбы железобетонные |
Ограждение АЗС должно быть продуваемым и выполнено из негорючих материалов (п.3. прил.6 НПБ 111-98*) |
Соответствует |
|
4 |
Движение по территории АЗС транспортных средств |
Предусмотрен раздельный въезд и выезд транспортных средств, движение предусмотрено одностороннее по наиболее короткому пути |
Движение транспортных средств по территории АЗС должно быть, как правило, односторонним. При этом должен быть предусмотрен раздельный въезд и выезд (п.17 НПБ 111-98*) |
Соответствует |
|
5 |
Озеленение территории |
Предусматривается озеленение территории. Номенклатура посадочного материала определяется при привязке площадки АЗС к конкретному участку с учетом п.18 НПБ 111-98* |
Озеленение территории АЗС кустарниками и деревьями, выделяющими при цветении хлопья, волокнистые вещества или опушенные семена не допускается (п.18 НПБ 111-98*) |
Соответствует |
|
6 |
Размещение на территории АЗС зданий |
На территории АЗС имеются здания операторной и пункт заправки бытовых баллонов |
На территории АЗС могут размещаться служебные и бытовые здания для персонала АЗС, а также допускается размещать здания для сервисного обслуживания транспортных средств (п. 20* НПБ 111-98*) |
Соответствует |
|
7 |
Размещение помещений категорий А и Б |
На территории АЗС отсутствуют помещения категорий А и Б |
На территории АЗС не допускается размещение помещений категории А и Б (за исключением помещений для перекачивания сжиженного углеводородного газа, которое относится к технологической системе АЗС (п.21* НПБ 111-98*) |
Соответствует |
|
8 |
Помещения для проведения огневых и сварочных работ. |
В зданиях АЗС не предусматриваются огневые и сварочные работы при эксплуатации |
В зданиях АЗС запрещается предусматривать помещения для проведения огневых и сварочных работ (п.27 НПБ 111-98*) |
Соответствует |
|
9 |
Покрытие территории АЗС |
Покрытие проездов, заправочных островков и площадок для АЦ выполнено из асфальтобетона и монолитного цементобетона. |
Покрытие проездов, заправочных островков и площадок для АЦ должно быть стойким к воздействию нефтепродуктов (п. 33 НПБ 111-98*) |
Соответствует |
|
10 |
Расположение транспортных средств |
Стоянки для автомобилей на территории АГЗС нет |
Расположение транспортных средств на площадке для их стоянки не должно препятствовать свободному выезду транспортных средств с ее территории (п.36 НПБ 111-98*) |
Соответствует |
|
11 |
Воздушные линии электропередач |
Воздушные линии электропередач на АЗС не предусмотрены |
Предусматривать на АЗС воздушные линии электропередач не допускается (п.42 НПБ 111-98*) |
Соответствует |
|
12 |
Помещения для технического обслуживания автомобилей |
Пункта техобслуживания автомобилей на АГЗС нет. |
Помещения для техобслуживания и мойки автомобилей, работающих на сжиженном или сжатом газе, должен предусматриваться в отдельном стоящем здании (п.9 прил. 6* НПБ 111-98*) |
Соответствует |
|
13 |
Площадка для АЦ с СУГ |
Площадка для АЦ с СУГ имеет отбортовку высотой 150 мм и имеет покрытие из монолитного цементобетона. Предусмотрена наружная система вытяжки паров СУГ с факельным выбросам на высоту 3 м от уровня площадки с автоматическими пуском от датчиков газосигнализаторов. |
Площадка должна быть оснащена таким образом, чтобы предотвратить растекание жидкой фазы за ее пределы с помощью отбортовки высотой не менее 150 мм; материал площадки должен исключать проникновение СУГ и его паров; должна быть наружная система отсоса паров СУГ с автоматическим запуском от датчиков газосигнализаторов, а остановка от пожарных извещателей (п. 14* прил. 6* НПБ 111-98*) |
Соответствует |
|
14 |
Расстояние от планировочной отметки до резервуара с СУГ |
Резервуары с СУГ расположены на глубине 0,5 м от планировочной отметки |
Резервуары для хранения СУГ должны располагаться подземно с обеспечением толщины засыпки грунтом не менее 0,5 м (п. 20.1* прил. 6* НПБ 111-98*) |
Соответствует |
|
15 |
Вместимость резервуаров для СУГ |
Единичная – 17,5 м3 полезная вместимость резервуара – 14,8 м3,при степени заполнении 85 % |
На АЗС, расположенных в черте населенных пунктов, общая вместимость резервуаров для СУГ не должна превышать 20 м3, единичная 10 м3 (п. 20.1* прил. 6* НПБ 111-98*) |
Не соответствует |
|
16 |
Трубопроводы с СУГ, проходящие в зоне возможного присутствия людей |
Трубопроводы с СУГ и их паров в зоне возможного присутствия (пребывания) людей расположены подземно, с автоблокировкой подачи СУГ и его паров в разгерметизированный участок трубопровода и его перекрытием, с прекращением всех операций на всех участках АЗС |
Трубопроводы СУГ и его паров, проходящие в зоне возможного присутствия водителей и пассажиров должны быть размещены подземно с возможностью безопасного перекрытия любой вероятной утечки СУГ или его паров в окружающую среду (п. 20.3* прил. 6* НПБ 111-98*) |
Соответствует |
|
17 |
Допустимый уровень заполнения резервуаров СУГ |
Автоматическая система (манометр, датчик измерения уровня типа ИСУ) при достижении 85%-ой степени заполнения резервуара блокирует работу насоса. |
Резервуары для хранения СУГ должны быть оснащены системой автоматического предотвращения предельного допустимого уровня их заполнения (85% их геомет. объема) (п. 20.8* прил. 6* НПБ 111-98*) |
Соответствует |
|
18 |
Наполнение резервуаров СУГ |
Резервуары СУГ заполняются только из АЦ и оснащены линией для их аварийного опорожнения в АЦ. |
Наполнение резервуаров СУГ должно быть предусмотрено только из АЦ, эти резервуары должны быть оснащены линией их аварийного опорожнения в АЦ (п. 20.8* прил. 6* НПБ 111-98*) |
Соответствует |
|
19 |
Контроль довзрывоопасных концентраций паров СУГ |
Контроль концентраций паров СУГ в технологическом блоке, в шахтах резервуаров, на площадке приема СУГ, у ТРК осуществляется газоанализаторами с автоблокировкой работы АЗС при достижении 10% от НКПР по парам СУГ. |
Технологические колодцы с оборудованием для СУГ, шахты резервуаров, площадок для АЦ с СУГ и заправочные островки должны быть оборудованы сигнализаторами довзрывоопасных концентраций с автоблокировкой прекращения операций на АЗС (п. 20.9 прил. 6* НПБ 111-98*) |
Соответствует |
|
20 |
Предотвращение поступление паров СУГ из трубопроводов в атмосферу |
На линиях паровой и жидкой фаз СУГ в непосредственной близости от места их соединения с АЦ и ТРК имеются шаровые краны. |
На трубопроводах ТС для паровой и жидкой среды СУГ в непосредственной близости от места их соединения с рукавами СУГ и заправочным устройством транспортных средств следует предусматриваться запорное устройство (п. 20.11* прил.6* НПБ 111-98*) |
Соответствует |
ВЫВОД:
1) Экспертиза генерального плана рассматриваемой автомобильной газозаправочной станции нарушений и отступлений от требований норм пожарной безопасности не выявила.
2) Экспертиза технологической части рассматриваемой автомобильной газозаправочной станции выявила следующие отступления от требований норм пожарной безопасности:
единичная вместимость резервуара для СУГ превышает нормативный уровень 14,8 м3, в место положенного объема 10 м3.
3) Экспертиза расположение АГЗС в ситуационном плане выявила следующие отступления от требований норм пожарной безопасности:
не соответствуют минимальные расстояния от границы АГЗС до автомобильной дороги (фактическое минимальное расстояние составляет 14,5 м требуемое по НПБ 111-98* - 50 м);
не соответствуют минимальные расстояния от границы АГЗС до производственного здания (фактическое минимальное расстояние составляет 65 м требуемое по НПБ 111-98* - 80 м);
не соответствуют минимальные расстояния от границы АГЗС до жилого здания (фактическое минимальное расстояние составляет 75 м требуемое по НПБ 111-98* - 100 м). Таким образом, для приведения проектируемой АГЗС к требуемому уровню пожарной безопасности, необходимо разработать дополнительные мероприятия позволяющие компенсировать несоответствия минимальные расстояния и разместить технологическое оборудование АГЗС на отведенных площадях застройки.
1.5 Задачи дипломного проектирования
Целью данного дипломного проекта является:
рассмотрение возможных аварийных ситуаций при эксплуатации автомобильной газозаправочной станции;
анализ пожарной опасности технологического процесса;
выработка противопожарных мероприятий позволяющих эксплуатировать АГЗС на отведенных площадях застройки.
2. Моделирование пожарной опасности
Специфика всякой аварии современного промышленного взрыво- и пожароопасного объекта представляется в обязательном прохождении ее некоторых характерных фаз:
Фаза инициирования аварии
В этот период установки переходит в нестабильное (предаварийное) состояние и вводится фактор неустойчивости. Такую ситуацию можно интерпретировать как наличие у установки "болевой точки", для которой незначительное отклонение от нормального режима эксплуатации способно вызвать крупную аварию и сопутствующие ей колоссальные разрушительные эффекты. Она наименее определена для новых установок и новых технологий -там, где полностью отсутствует опыт эксплуатации, и нет фактических данных о безопасности, т.е. отсутствует нормативная база для проектирования. На этой фазе существенно влияние человеческого фактора. Обстоятельный анализ статистических данных показывает, что свыше 60% аварий происходит из-за ошибок персонала, т.е. тоже отсутствует нормативная база, регламентирующая вопросы взрыво- и пожаробезопасности при эксплуатации технологического оборудования. Следовательно, основным фактором опасности является неконтролируемый выход продукта из оборудования.
Как показывают статистика и приведенные примеры, аварии возникают в основном при вводе в эксплуатацию и ремонте систем транспорта и хранения СУГ, а также вследствие не изученности причин резкого повышения давления в изотермических резервуарах.
Фаза развития аварии
Этот период характеризуется самопроизвольным выходом продукта и его разливом, процессом испарения, образованием облака взрывоопасных концентраций, контактом облака с источником зажигания. При этом в зависимости от массы испарившегося продукта развитие аварии может носить цепной характер, когда разрушительное действие инициирующего события многократно (иногда в сотни раз) усиливается вследствие вовлечения в процесс энергонасыщенных компонентов технологии. Для современных малоизученных технологий характерна неконтролируемость опасности как штатными системами обеспечения безопасности самого предприятия, так и специальными силами по борьбе с авариями и чрезвычайными ситуациями. Эта особенность объясняет во многом автономный характер протекания аварии, когда темп нарастания событий (темп выделения энергии, опасности) превышает штатные ила специально привлекаемые для нейтрализации разрушительных процессов возможности.
Большинство крупных аварий обусловлено воспламенением газовоздушной смеси, образующейся при утечке сжиженного газа. Если она длится продолжительное время, то создается бассейн испарения сжиженного газа, который может быть причиной взрыва и большого пожара.
Фаза выхода аварии за промышленное предприятие
В современных условиях высокой концентрации объектов, близкого соседства различных зданий и сооружений разрушительное действие аварии при выходе за территорию объекта вовлекает дополнительные опасности для других объектов в ходе процесса и увеличивает масштаб катастрофы. Если же при этом затрагивается население, то авария становится событием социальным и политическим.
Понимание специфики аварий, знание их особенностей и закономерностей позволяют выявить существо возникающих проблем. Для современного состояния проблемы взрыве- и пожаробезопасности характерна ограниченность знаний как в области дефектов и отклонений, накапливаемых под действием технологических нагрузок и способных вызвать аварийную ситуацию, так и в области их поведения под действием воздушных ударных волн, теплового излучения и других поражающих факторов, появляющихся в условиях аварий.
Для обеспечения безопасности необходимо выявление качественных и количественных закономерностей при исследовании взрыво- и пожароопасное™ технологии хранения СУГ.
На рисунке 1 представлены возможные варианты развития взрыво- и пожароопасных ситуаций.
2.1 Пожароопасные свойства сжиженных углеводородных газов
Сжиженные углеводородные газы получают из нефти или природного газа. Они обладают высокой плотностью паров, примерно в 1,5-2 раза превышающей плотность воздуха. Низкая температура кипения (пропан: Т>кип> = -42,06°С, бутан: Т>кип> = -0,5°С) не позволяет газам в нормальных условиях находиться в жидком состоянии, и они быстро испаряются.
Сжиженные газы обладают высоким коэффициентом объемного расширения, например, в 3,5 раза больше чем у керосина, поэтому при нагревании возможно быстрое повышение давления внутри резервуара и его разрыв. Вследствии высокой плотности и значительной диффузии газы стелятся по земле и могут в безветренную погоду в открытом пространстве локальные взрывоопасные концентрации. Большая скорость испарения СУГ и низкие концентрационные пределы распространения пламени (пропан: НКПР = 2,3%, ВКПР = 9,4%, бутан: НКПР=1,8%, ВКПР = 9,1%) обуславливают быстрый рост взрывоопасных концентраций в значительных объемах. Так, из одного литра бутана при t = -4°С с площади 1 м2 может образоваться взрывоопасная концентрация в течение 1,5 мин в объеме до 13 м2.
Основными компонентами автомобильного газового топлива являются пропан и бутан. Они обладают способностью растворять жир, масло, краску, разрушать резину. Поэтому уплотнения в магистралях низкого давления выполнены из бензо- и маслостойкой резины или синтетических материалов. На автомобильные газозаправочные станции поставляют летнюю и зимнюю смеси газов с различным содержанием пропана и бутана. В летний период 50±10% пропана, в зимний период 90±10%. Уменьшение количества пропана и увеличение бутана в летний период необходимо для ограничения роста давления в емкостях при положительных температурах окружающей среды. И, наоборот, в зимней смеси пропана больше чем бутана для сохранения необходимого давления и надежной работы технологической системы.
2.2 Анализ возможных причин разгерметизации технологической системы
Необходимым условием обеспечения эффективной и безопасной эксплуатации технологического оборудования является его прочность, под которой понимают способность конструкции воспринимать усилия рабочих нагрузок, не разрушаясь и не образуя пластических деформаций сверх установленных величин.
Наблюдаемые на практике повреждения технологического оборудования происходят:
в результате недостатков конструктивного характера (неправильный расчет, неудачный выбор материала) и дефектов изготовления (скрытые внутренние дефекты материала, некачественная подгонка и сварка);
нарушения принятых режимов работы;
отсутствие или неисправность средств защиты от перегрузок;
некачественного технического обслуживания и ремонта.
Возможны следующие основные комбинации нарушений, в результате которых возникают повреждения технологического оборудования:
превышение расчетных нагрузок при сохранении расчетной прочности оборудования;
снижение расчетной прочности оборудования при сохранении расчетных нагрузок;
одновременное нарушение расчетных нагрузок и расчетной прочности.
Причины повреждений технологического оборудования принято классифицировать следующим образом:
повреждение в результате механических воздействий;
повреждение в результате температурных воздействий;
повреждение в результате химических воздействий.
2.2.1 Разгерметизация в результате механических воздействий
Под механическими воздействиями обычно понимают такие воздействия, которые возникают в результате превышения расчетных нагрузок на оборудовании при сохранении его расчетной прочности. Наиболее характерным механическим воздействием является чрезмерное внутреннее давление, возникающее в аппарате при переполнении его СУГ. Такое явление может иметь место:
при нарушении технологического режима;
внешнее воздействие;
при неисправности контрольно-измерительных приборов и защит ной автоматики.
2.2.2 Разгерметизация в результате температурных воздействий
Повреждение технологического оборудования может произойти в результате:
образования не предусмотренных расчетом температурных перенапряжений в материале стенок резервуара и трубопроводов;
ухудшений механических характеристик материалов при низких или высоких температурах.
2.2.3 Разгерметизация в результате химических воздействий
Обращающаяся в технологическом процессе вещества (СУГ) и окружающая среда вступают в химическое взаимодействие с материалами, из которых изготовлено технологическое оборудование, вызывая его разрушение (коррозию). Разрушающему действию коррозии наиболее подвержены слабые места оборудования:
швы;
разъемные соединения;
прокладки;
места изгибов и поворотов труб.
2.3 Расчет площади розлива сжиженных углеводородных газов в случае полной разгерметизации технологической системы
2.3.1 Определение показателей, характеризующих
пожарную опасность аварийного розлива СУГ
Основными показателями, характеризующими пожарную опасность аварийного разлива СУГ, являются: площадь или зона разлива; коэффициент разлива, радиус зоны разлива; толщина слоя разлившейся жидкости.
Установлено, что площадь разлива жидкости F>ж >по поверхности твердых тел прямо пропорциональна объему разлившейся жидкости V>ж>:
F>ж >= ƒ V>ж.>
Коэффициент пропорциональности f в уравнении назван коэффициентом разлива жидкости. В СИ коэффициент разлива выражается в м2/м3 или м-1 и показывает значение площади разлива единицы объема данной жидкости.
Остальные показатели пожарной опасности аварийного разлива пожароопасной жидкости можно определить исходя из площади разлива.
Площадь разлива жидкости характеризуют диаметром или радиусом круга, эквивалентного (по площади) разлившейся жидкости. Такой параметр можно найти, приняв площадь разлива к площади круга и вычислив из этого равенства радиус.
Кроме того, важна толщина слоя разлившейся жидкости δ>ж>, которую определяют по формуле:
δ>ж >= 1/ƒ.
Значение коэффициента разлива пожароопасной жидкости определяется в соответствии с НПБ 107-97 «Определение категорий наружных установок по пожарной опасности», а именно:
f
=150,
если содержание (по массе) растворителей
составляет >70%;
f=100, если содержание (по массе) растворителей составляет ≤70%.
F>ж>=150·17,5=2625 м2.
При крупномасштабных авариях, например, связанных с полным разрушением наземных вертикальных стальных резервуаров («Рекомендации по обеспечению пожарной безопасности объектов нефтепродуктообеспечения, расположенных на селитебной территории»), коэффициент разлива или вернее уже затопления определяют исходя из расположения наземного резервуара на местности:

f=12 – при расположении на возвышенности;
f=5 – при расположении на поверхности, имеющей уклон, благоприятствующий разливу жидкости, но не более 1%.
Приведенную форму разлива жидкости при расположении резервуара в низине или на ровной поверхности (с уклоном до 1%) – в виде круга с радиусом:
R>ж>=
;

Допускается определять показатели, характеризующие пожарную опасность разлива пожароопасных жидкостей, по материалам реальных аварий при адекватности анализируемых ситуаций или в лабораторных условиях.
2.4 Расчет зоны взрывоопасных концентраций при испарении сжиженных углеводородных газов с площади разлива.
Основные положения
При функционировании технологического процесса возможны два варианта образования зон взрывоопасных концентраций на открытой технологической установке:
эксплуатационные взрывоопасные зоны, образующиеся при нормальном функционировании технологического аппарата;
аварийные взрывоопасные зоны, образующиеся в результате неконтролируемого поступления СУГ наружу из технологического аппарата.
2.4.1 Основы классификации взрывоопасных зон при нормальном функционировании технологического процесса
Размеры эксплуатационных взрывоопасных зон регламентированы «Правилами устройства электроустановок» (ПУЭ). Такие зоны принято классифицировать как взрывоопасные класса В-Iг у наружных установок. Взрывоопасные зоны у наружных установок ограничиваются по горизонтали и вертикали следующими размерами:
3м – от закрытых технологических аппаратов, содержащих горючие газы и ЛВЖ;
5м – от места выброса взрывоопасных и горючих веществ из предохранительных и дыхательных клапанов;
8м – от резервуаров с ЛВЖ газгольдеров, а при наличии обвалования – в пределах всей площади внутри обвалования;
20м – от мест открытого слива и налива ЛВЖ на эстакадах.
2.4.2 Определение размеров взрывоопасных зон при аварийном розливе СУГ на открытой площадке
При аварийном разливе СУГ взрывоопасные концентрации образуются только в том случае если,
t>р>>t>всп >;
где t>р> – температура СУГ, 0С; t>всп> – температура вспышки, 0С.
В нормативных документах по пожарной безопасности имеются два метода расчета размеров зон взрывоопасных паровоздушных смесей при испарении жидкости с поверхности разлива.
Первый метод, включенный в «Рекомендации по обеспечению пожар ной безопасности объектов нефтепродуктообеспечения, расположенных на селитебной территории», основан на проведенных исследованиях по изучению закономерностей распределения вредных веществ при кратковременном выделении из наземных источников в Главной геофизической обсерватории России.
Расчетная формула, заимствованная из работы В.М. Эльтермана "Охрана воздушной среды на химических и нефтехимических предприятиях" (М.: Химия, 1985), имеет вид:

,
м.
где R>звк> - горизонтальный размер зоны от границы источника испарения, ограничивающие область концентраций, превышающих нижний концентрационный предел распространения пламени, м; А - константа, равная 0,17 м-1; m>п >– масса паров, испарившаяся с открытой поверхности разлива, кг; φ>нп> - нижний концентрационный предел распространения пламени, кгм-3.
Связь между нижним концентрационным пределом распространения пламени, выраженным в кг·м-3 (φ>нп>), нижним концентрационным пределом распространения пламени, выраженным в % объемных (φ>нп>) описывается следующей формулой:
;
кг·м-3
где М - молекулярная масса, кг·кмоль-1, V>t> - мольный объем, равный при нормальных условиях 22,4 м3 ·кмоль-1.
Второй метод расчета горизонтальных размеров зон, ограничивающих газо- паровоздушные смеси с концентрацией горючего выше нижнего концентрационного предела распространения пламени, при аварийном поступлении горючих газов и паров не нагретых легковоспламеняющихся жидкостей в открытое пространство изложен в НПБ 105-03.
Размеры зоны, м, ограничивающие область концентраций, превышающих нижний концентрационный предел распространения пламени (φ>нп>), вычисляют по формулам:
для горючих газов (ГГ)
• радиус зоны:
;

• высота зоны:
;

• плотность газа при расчетной температуре:
;
;
где m>г> - масса поступивших в открытое пространство СУГ при аварийной ситуации, кг; ρ>г> - плотность СУГ при расчетной температуре и атмосферном давлении, кг·м-3, φ>нп> - нижний концентрационный предел распространения пламени, % объема.
При расчете за начало отсчета горизонтального размера зоны принимают внешние размеры аппарата. Для сжиженных углеводородных газов (СУГ) при отсутствии данных допускается рассчитывать удельную массу испарившегося СУГ (кг·м-2 ) из пролива при температуре Т>ж> ≤ Т>кип> по формуле:

где М - молекулярная масса СУГ, кг·моль-1; L>исп> - мольная теплота испарения СУГ, Дж·моль-1 ; Т>0> - начальная температура материала, на поверхность которого разливается СУГ, К; Т>ж> - начальная температура СУГ, К; λ>тв> -коэффициент теплопроводности материала, на поверхность которого разливается СУГ; τ - текущее время, сек, принимаемое равным времени полного испарения СУГ, но не более 3600 сек; α - коэффициент температуропроводности материала, на поверхность которого разливается
СУГ, м·сек-1; Re - число Рейнольдса; λ>в> - коэффициент теплопроводности воздуха, Вт·м-1 К-1; d - характерный размер пролива СУГ, м. Учитывая, что Т>0> Т>ж> =Т>ж> =310; К m>суг> = 0.
• Число Рейнольдса:

где U - скорость воздушного потока, м·сек-1; ν>в> - кинематическая вязкость воздуха, м2 ·сек-1.
• Коэффициент температуропроводности материала, на поверхность которого разливается СУГ, определяется по формуле:

где с>тв> - теплоемкость материала, на поверхность которого разливается СУГ, Дж·кг-1 ·К-1; ρ>тв> - плотность материала, на поверхность которого разливается СУГ, кг·м-3.
• Характерный размер пролива СУГ определяют по формуле:

где F>и> - площадь поверхности испарения, м2.
При температуре Т>ж> > Т>кип> дополнительно рассчитывается масса СУГ, испарившегося в окружающее пространство за счет перегрева.
• Масса СУГ, испарившегося в окружающее пространство в случае его перегрева:

где m>п> - масса вышедшего перегретого СУГ, кг; С>р> - удельная теплоемкость СУГ при температуре перегрева Т>а>, Дж·кг-1 ·К-1; Т>а> - температура перегретого СУГ в соответствии с технологическим регламентом в технологическом аппарате, К; Т>кип> - температура кипения СУГ, К; L>исп> - удельная теплота испарения СУГ, Дж·кг-1:
кг

2.5 Расчет избыточного давления взрыва при сгорании взрывоопасной газовоздушной смеси
Рассчитаем избыточное давление взрыва при сгорании взрывоопасной газовоздушной смеси. Расчет проводиться на основе ГОСТ Р 12.3.047-98.
2.5.1 Избыточное давление ΔР, кПа, развиваемое при сгорании газовоздушной смеси в открытом пространстве:

где Р>о> - атмосферное давление, кПа (допускается принимать равным 101 кПа); m>пр> - приведенная масса газа, кг; г - расстояние от геометрического центра газовоздушного облака, м.
2.5.2 Приведенная масса СУГ:



где Q>сг> - удельная теплота сгорания СУГ, Дж/кг; Z - коэффициент участия, который допускается принимать равным 0,1; Q>0> - константа равная 4,52-106 Дж/кг; m>г> - масса горючих СУГ поступившего в результате аварии в окружающее пространство, кг; α - степень заполнения емкости по обьему
(85%); ρ>суг> - плотность СУГ, кг/м3 ; V>PE>>3> - объем резервуара, м3 .
2.5.3 Импульс волны давления i, Па-сек:

где m>пр> - приведенная масса газа, кг; r - расстояние от геометрического центра газовоздушного облака, м.
Таблица 4
|
r, м |
m>г>, кг |
m>пр>, кг |
I, кПа·сек |
ΔР, кПа |
|
1 |
8871,28 |
9028,294 |
50188,57 |
4684556 |
|
50 |
8871,28 |
9028,294 |
1003,77 |
118,57 |
|
100 |
8871,28 |
9028,294 |
501,88 |
33,24 |
|
150 |
8871,28 |
9028,294 |
334,59 |
17,61 |
|
200 |
8871,28 |
9028,294 |
250,94 |
11,67 |
|
250 |
8871,28 |
9028,294 |
200,75 |
8,72 |
|
300 |
8871,28 |
9028,294 |
167,29 |
6,98 |
|
350 |
8871,28 |
9028,294 |
143,39 |
5,78 |
|
400 |
8871,28 |
9028,294 |
125,47 |
4,92 |
|
450 |
8871,28 |
9028,294 |
111,53 |
4,28 |
|
500 |
8871,28 |
9028,294 |
100,37 |
3,79 |
|
550 |
8871,28 |
9028,294 |
91,25 |
3,40 |
|
600 |
8871,28 |
9028,294 |
83,64 |
3,08 |
|
650 |
8871,28 |
9028,294 |
77,21 |
2,82 |
|
700 |
8871,28 |
9028,294 |
71,69 |
2,59 |
|
750 |
8871,28 |
9028,294 |
66,91 |
2,40 |
|
800 |
8871,28 |
9028,294 |
62,73 |
2,24 |
|
850 |
8871,28 |
9028,294 |
59,04 |
2,09 |
|
900 |
8871,28 |
9028,294 |
55,76 |
1,97 |
|
950 |
8871,28 |
9028,294 |
52,83 |
1,86 |
|
1000 |
8871,28 |
9028,294 |
50,19 |
1,76 |
|
1050 |
8871,28 |
9028,294 |
47,79 |
1,67 |
|
1100 |
8871,28 |
9028,294 |
45,62 |
1,59 |

Рис.2. Импульс волны давления при сгорании газовоздушной смеси на открытом пространстве, кПа·с.

Рис.3. Избыточное давление, развиваемое при сгорании газовоздушной смеси на открытом пространстве, кПа
2.6 Возможная обстановка при воздействии волны
избыточного давления взрыва
При сгорании газовоздушной смеси на открытом пространстве опасность будут представлять:
Волна давления при сгорании газовоздушной смеси в открытом пространстве (последствия воздействия избыточного давления представлены в таблице 5);
Осколки (части) разрушившихся резервуара и другого технологического оборудования.
Опасный параметр достигнет критических для человека значений в течении нескольких секунд. В таких условиях эвакуация обслуживающего персонала не возможна.
Таблица 5
|
Степень поражения |
Избыточное давление, кПа |
Расстояние от разрушающегося резервуара, м |
|
Полное разрушение зданий |
100-54 |
1-60 |
|
50% разрушение зданий |
53-29 |
61-85 |
|
Среднее повреждение зданий |
28-13 |
86-149 |
|
Умеренное повреждение зданий (повреждение внутренних перегородок, рам, дверей и т.п.) |
12-6 |
150-270 |
|
Нижний порог повреждений человека давлением |
5-4 |
271-370 |
|
Малые повреждения (разбита часть остекления) |
3 |
371-490 |
2.7 Расчет опасных параметров при возникновении "огненного шара"
Рассчитаем интенсивности теплового излучения и параметры волны давления, образующейся при возникновении "огненного шара". Расчет проводится на основе ГОСТ Р 12.3.047-98.
2.7.1 Интенсивность теплового излучения q (кВт·м-2)
для "огненного шара"
2.7.1.1 Угловой коэффициент облученности F>q>:

где Н - высота центра "огненного шара", м; D>s> - эффективный диаметр "огненного шара", м; r - расстояние от облучаемого объекта до точки на поверхности земли непосредственно под центром "огненного шара", м; эффективный диаметр "огненного шара"; величину Н допускается принимать равной D>s>/2
2.7.1.2 Масса горючего вещества в огненном шаре m, кг:

где ρ>см> - плотность смеси кг/м3, V>CM> - объем смеси.
ρ>см>=(0,5·585+0,5·601)=292,5+300,5=593 кг/м3
V>см>=α·V>рез>,
где объем резервуара V>рез>= 17,6 м3; коэффициент заполнения резервуара, α = 0,85.
V>см>=0,85·17,6=14,96 м3;
m=ρ>см>·V>см>=593·14,96=8871,28 кг
2.7.1.3 Эффективный диаметр "огненного шара":
D>s>=5.33·m0.327; D>s>=5.33·8871.280.327=104.16 м,
где D>s> - эффективный диаметр "огненного шара"; m - масса горючего вещества в "огненном шаре", кг.
2.7.1.4 Продолжительность существования "огненного шара" t>s>, сек
t>s>=0,92·m0,303; t>s>=0,92·8871,280,303=14,45 сек,
где t>s> - продолжительность существования "огненного шара", сек; m - масса горючего вещества в "огненном шаре", кг.
2.7.1.5 Высота центра "огненного шара"

где Н - высота центра "огненного шара", м; D>s> - эффективный диаметр "огненного шара".
2.7.1.6 Коэффициент пропускания атмосферы:

где г - расстояние от облучаемого объекта до точки на поверхности земли непосредственно под центром "огненного шара", м; Н - высота центра "огненного шара", м; D>s> - эффективный диаметр "огненного шара".
2.7.1.7 Интенсивность теплового излучения q, кВт м-2

где E>f> - среднеповерхностная плотность излучения пламени кВт·м-2 ; E>f> = 450 кВт·м2 (при отсутствии данных ); φ>q> - угловой коэффициент облученности, τ>пр> - коэффициент пропускания атмосферы.
Таблица 6
|
r, м |
t>с>, сек |
F>q> |
q, кВт·м2 |
t>пр> |
Q, Дж/м2 |
|
0 |
14,45 |
0,250 |
112,5 |
1,000 |
16,25 |
|
10 |
14,45 |
0,246 |
110,88 |
0,999 |
16,02 |
|
20 |
14,45 |
0,236 |
106,227 |
0,997 |
15,34 |
|
30 |
14,45 |
0,221 |
99,266 |
0,994 |
14,34 |
|
40 |
14,45 |
0,203 |
90,659 |
0,990 |
13,10 |
|
50 |
14,45 |
0,183 |
81,275 |
0,986 |
11,74 |
|
60 |
14,45 |
0,162 |
71,808 |
0,981 |
10,37 |
|
70 |
14,45 |
0,142 |
62,760 |
0,975 |
9,06 |
|
75 |
14,45 |
0,133 |
58,497 |
0,972 |
8,45 |
|
80 |
14,45 |
0,124 |
54,441 |
0,970 |
7,86 |
|
83 |
14,45 |
0,119 |
52,113 |
0,968 |
7,53 |
|
85 |
14,45 |
0,116 |
50,607 |
0,967 |
7,31 |
|
90 |
14,45 |
0,108 |
47,001 |
0,964 |
6,79 |
|
100 |
14,45 |
0,093 |
40,476 |
0,958 |
5,84 |
|
103 |
14,45 |
0,089 |
38,693 |
0,956 |
5,59 |
|
105 |
14,45 |
0,087 |
37,547 |
0,955 |
5,42 |
|
110 |
14,45 |
0,081 |
34,830 |
0,952 |
5,03 |
|
115 |
14,45 |
0,075 |
32,315 |
0,949 |
4,66 |
|
120 |
14,45 |
0,070 |
29,990 |
0,946 |
4,33 |
|
125 |
14,45 |
0,065 |
27,842 |
0,943 |
4,02 |
|
130 |
14,45 |
0,061 |
25,862 |
0,940 |
3,73 |
|
135 |
14,45 |
0,056 |
24,036 |
0,937 |
3,47 |
|
140 |
14,45 |
0,053 |
22,353 |
0,934 |
3,23 |
|
150 |
14,45 |
0,046 |
19,974 |
0,928 |
2,88 |
|
160 |
14,45 |
0,040 |
16,843 |
0,921 |
2,43 |
|
170 |
14,45 |
0,035 |
14,692 |
0,915 |
2,12 |
|
180 |
14,45 |
0,031 |
12,858 |
0,909 |
1,85 |

Рис.4. Интенсивность теплового излучения q, кВт·м-2 для «огненного шара»
Рис.5.
Доза теплового излучения при воздействии
«огненного шара» на человека, Дж/м2
2.7.2 Параметры волны давления при взрыве резервуара с СУГ
Так как разрыв резервуара с образованием "огненного шара", происходит совместно с образованием волн давления, то рассчитаем параметры волны давления.
2.7.2.1 Энергия, выделившаяся при изотропическом расширении среды в резервуаре Е>из>, Дж:
Е>из>=С>эфф>·m·( Т-Т>кип>);
Е>из> = 500·8871,28·(360 - 251,65) = 480601594 = 4,8·108 Дж;
Т>кип> = (-42,5 - 0,5)/2 + 273,15 = 251,65 К,
где m =8871,28 - масса СУГ в резервуаре; С>эфф> - константа, равная 500 Дж/(кг·К); Т>кип> - температура кипения СУГ при постоянном давлении.
2.7.2.2 Температура вещества в резервуаре с СУГ
в момент его взрыва, К:

р>к>=2 кПа;
А = (5,95547 + 6,00525)/2 =5 ,98036;
В = (968,098 + 813,864)/2 = 890,981;
С>а> = (248,116 + 242,555)/2 = 245,3355;
Т = 890,981/(5,98036 - lg2) + 273,15 = 360 К,
где А, В, С>а> - константы Антуана вещества; р>к> давление срабатывания предохранительного клапана.
2.7.2.3 Приведенная масса СУГ m>пр>, кг

где Q>0> - константа равная 4,52·106 Дж/кг; Е>из> - энергия, выделяющаяся при изоэнтропическом расширении среды, находящейся в резервуаре.
2.7.2.4 Величину импульса волны давления i, Па·сек

где m>пр> - приведенная масса газа, кг; r - расстояние от разрушающегося резервуара с СУГ, м.
2.7.2.5. Избыточное давление ΔР, кПа

где Р>0> - атмосферное давление, кПа (допускается принимать равным 101 кПа); m>пр> - приведенная масса газа, кг; r - расстояние от разрушающегося резервуара с СУГ, м.
Таблица 7
|
r, м |
Т>кип>, К |
Т, К |
Е>из>, Дж |
m, кг |
I, кПа |
ΔР, кПа |
|
1 |
251,65 |
360,3532 |
480601594 |
106,2 |
2673,9 |
60592,93 |
|
10 |
251,65 |
360,3532 |
480601594 |
106,2 |
267,39 |
157,156 |
|
14 |
251,65 |
360,3532 |
480601594 |
106,2 |
190,99 |
80,05 |
|
15 |
251,65 |
360,3532 |
480601594 |
106,2 |
178,26 |
70,27 |
|
20 |
251,65 |
360,3532 |
480601594 |
106,2 |
133,69 |
42,00 |
|
30 |
251,65 |
360,3532 |
480601594 |
106,2 |
89,13 |
21,86 |
|
34 |
251,65 |
360,3532 |
480601594 |
106,2 |
78,64 |
18,14 |
|
35 |
251,65 |
360,3532 |
480601594 |
106,2 |
76,39 |
17,39 |
|
40 |
251,65 |
360,3532 |
480601594 |
106,2 |
66,84 |
14,37 |
|
45 |
251,65 |
360,3532 |
480601594 |
106,2 |
59,42 |
12,21 |
|
47 |
251,65 |
360,3532 |
480601594 |
106,2 |
56,89 |
11,51 |
|
50 |
251,65 |
360,3532 |
480601594 |
106,2 |
53,47 |
10,59 |
|
55 |
251,65 |
360,3532 |
480601594 |
106,2 |
48,61 |
9,34 |
|
57 |
251,65 |
360,3532 |
480601594 |
106,2 |
46,91 |
8,92 |
|
60 |
251,65 |
360,3532 |
480601594 |
106,2 |
44,56 |
8,35 |
|
62 |
251,65 |
360,3532 |
480601594 |
106,2 |
43,12 |
8,01 |
|
65 |
251,65 |
360,3532 |
480601594 |
106,2 |
41,13 |
7,55 |
|
70 |
251,65 |
360,3532 |
480601594 |
106,2 |
38,19 |
6,88 |
|
74 |
251,65 |
360,3532 |
480601594 |
106,2 |
36,13 |
6,42 |
|
75 |
251,65 |
360,3532 |
480601594 |
106,2 |
35,65 |
6,32 |
|
80 |
251,65 |
360,3532 |
480601594 |
106,2 |
33,42 |
5,84 |
|
90 |
251,65 |
360,3532 |
480601594 |
106,2 |
29,71 |
5,07 |
|
100 |
251,65 |
360,3532 |
480601594 |
106,2 |
26,73 |
4,48 |
|
110 |
251,65 |
360,3532 |
480601594 |
106,2 |
24,30 |
4,00 |
|
115 |
251,65 |
360,3532 |
480601594 |
106,2 |
23,25 |
3,81 |
|
120 |
251,65 |
360,3532 |
480601594 |
106,2 |
22,28 |
3,62 |
Рис.6.
Избыточное давление, развиваемое при
взрыве резервуара с перегретым СУГ при
воздействии на него очага пожара, кПа

Рис.7. Импульс волны давления при взрыве резервуара с перегретым СУГ при воздействии на него очага пожара, кПа·с
2.8 Возможная обстановка на объекте при воздействии теплового излучения от "огненного шара"
При возникновении крупномасштабного диффузионного горения массы СУГ поднимающегося над поверхностью земли ("огненный шар") опасность будут представлять:
волна давления при сгорании газовоздушной смеси в открытом пространстве (последствия воздействия избыточного давления представлены в таблице 10);
тепловое излучение (последствия воздействия теплового излучения на окружающие материалы представлены в таблице 8, на человека в таблице 9);
быстрораспространяющееся открытое пламя;
резкое повышение температуры;
токсичность продуктов горения и термического разложения;
осколки (части) разрушившихся резервуаров.
Опасные параметры достигнут критических для человека значений в течение нескольких секунд. В таких условиях эвакуация обслуживающего персонала невозможна.
Таблица 8
|
Материалы |
q, кВт·м |
Расстояние от центра "огненного шара" r, м |
|
Древесина (сосна влажностью 12%) |
13,9 |
0-113 |
|
Древесно -стружечные плиты (плотность 417 кг·м3) |
8,3 |
0-135 |
|
Резина |
14,8 |
0-110 |
|
Рулонная кровля |
17,4 |
0-103 |
|
Сено, солома (при min влажности до 8%) |
7 |
0-140 |
Таблица 9
|
Степень поражения |
Доза теплового излучения, Дж/м2 |
Расстояние от центра “огненного шара” г, м |
|
Ожог 1-й степени |
1,2·105 |
101-125 |
|
Ожог 2-й степени |
2,2·105 |
86-100 |
|
Ожог 3-й степени |
3,2·105 |
85 |
Таблица 10
|
Степень поражения |
Избыточное давление, кПа |
Расстояние от разрушающегося резервуара, м |
|
Полное разрушение зданий |
100-54 |
1-14 |
|
50% разрушение зданий |
53-29 |
15-20 |
|
Среднее повреждение зданий |
28-13 |
21-34 |
|
Умеренное повреждение зданий (повреждение внутренних перегородок, рам, дверей и т.п.) |
12-6 |
35-62 |
|
Нижний порог повреждений человека давлением |
5-4 |
63-90 |
|
Малые повреждения (разбита часть остекления) |
3 |
91-115 |
2.9 Расчет тепловых нагрузок при пожаре разлива сжиженных углеводородных газов
2.9.1 Интенсивность теплового излучения пожара пролива СУГ

где E>f> - среднеповерхностная плотность излучения пламени кВт·м-2 ,
E>f>=43 кВт·м-2 (при d= 40 м); φ>q> -угловой коэффициент облученности; τ>пр> -коэффициент пропускания атмосферы;
2.9.2 Эффективный диаметр пролива d, м


где F - площадь пролива, м2.
2.9.3 Высота пламени Н, м


где m>выг> - удельная массовая скорость выгорания топлива, кг·м-2·сек-1; ρ>в> -
плотность окружающего воздуха, кгм-3 ; g = 9,81 м·сек-2 - ускорение свободного падения.
2.9.4 Угловой коэффициент облученности F>q>:

2.9.5 Коэффициенты облученности для вертикальной и горизонтальной площадок, соответственно φ>v>, φ>h>:






где r - расстояние от геометрического центра облучаемого объекта, м; Н -высота пламени, м.
2.9.6 Коэффициент пропускания атмосферы:

где г - расстояние от геометрического центра облучаемого объекта, м; d -эффективный диаметр пролива, м.
Значение средне поверхностной плотности теплового излучения пламени E>f> принимается на основе экспериментальных данных. Для некоторых жидких углеводородных топлив указанные данные приведены в таблице 7. Для диаметров очагов менее 10 м или более 50 м следует принимать величину E>f> такой же, как для очагов 10 и 50 м, соответственно. При отсутствии данных допускается принимать величину E>f> равной: 100 кВт·м-2 для СУГ и 40 кВт·м-2 для нефтепродуктов и для твердых материалов.
Среднеповерхностная плотность теплового излучения пламени и массовая скорость выгорания углеводородов приведены в таблице 11.
Таблица 11
|
Топливо |
E>f>, кВт·м 2 |
m>выг> кг ·м-2сек-1 |
||||
|
d=10м |
d=20м |
d=30м |
d=40м |
d=50м |
||
|
СПГ (метан) |
220 |
180 |
150 |
130 |
120 |
0,08 |
|
СУГ (пропан-бутан) |
80 |
63 |
50 |
43 |
40 |
0,10 |
|
Бензин |
60 |
47 |
35 |
28 |
25 |
0,06 |
|
Дизельное топливо |
40 |
32 |
25 |
21 |
18 |
0,04 |
|
Нефть |
25 |
19 |
15 |
12 |
10 |
0,04 |
Интенсивность теплового излучения q (кВт·м-2 ) для пожара пролива СУГ приведена в таблице 12 и на рисунке 8.
Таблица 12
|
r |
d |
F>q> |
t |
q |
|
5 |
7,0 |
0,358 |
0,998 |
28,639 |
|
10 |
7,0 |
0,121 |
0,995 |
9,661 |
|
15 |
7,0 |
0,056 |
0,991 |
4,509 |
|
20 |
7,0 |
0,030 |
0,988 |
2,411 |
|
30 |
7,0 |
0,011 |
0,981 |
0,884 |
|
40 |
7,0 |
0,005 |
0,974 |
0,405 |
|
50 |
7,0 |
0,002 |
0,967 |
0,215 |
|
60 |
7,0 |
0,0016 |
0,961 |
0,126 |
|
70 |
7,0 |
0,001 |
0,954 |
0,080 |
Рис.8.
Интенсивность теплового излучения при
пожаре пролива СУГ, кВт/м2
2.10 Возможная обстановка на объекте при воздействии
теплового излучения при пожаре разлива
сжиженных углеводородных газов
При возникновении пожара розлива СУГ опасность будут представлять:
• Тепловое излучение (последствия воздействия теплового излучения на окружающие материалы представлены в таблице 13);
Быстро распространяющееся открытое пламя;
Резкое повышение температуры;
Токсичность продуктов горения и термического разложения. Опасные параметры достигнут критических для человека значений в течение нескольких секунд. В таких условиях эвакуация обслуживающего персонала невозможна.
Таблица 13
|
Материалы |
q, кВт-м |
Расстояние от геометрического центра пролива г, м |
|
Древесина (сосна влажностью 12%) |
13,9 |
0-12 |
|
Древесно-стружечные плиты (плотность 417 кг·м-3 ) |
8,3 |
0-34 |
|
Резина |
14,8 |
0-11 |
|
Рулонная кровля |
17,4 |
0-9 |
|
Сено, солома (при min влажности до 8%) |
7 |
0-46 |
3. Разработка противопожарных мероприятий
3.1 Мероприятия по обеспечению пожарной безопасности автомобильной газозаправочной станции
3.1.1 Мероприятия по снижению категории пожарной опасности автомобильной газозаправочной станции сжиженным газом
(пропан-бутан)
В настоящее время отсутствует нормативная база, регламентирующая снижение категории пожарной опасности наружных установок.
Мероприятия по исключению источников зажигания
Необходимо выполнить следующие мероприятия:
Электроустановки должны быть смонтированы и эксплуатироваться в соответствии с Правилами устройства электроустановок (ПУЭ), правилами технической эксплуатации электроустановок потребителей (ПТЭ), Правилами техники безопасности при эксплуатации электроустановок потребителей (ПТБ) и другими нормативными документами (ППБ 01-03);
Электродвигатели, аппаратура управления, пускорегулирующая, контрольно-измерительная и защитная аппаратура, вспомогательное оборудование и проводки должны иметь исполнение и степень защиты, соответствующую классу зоны по ПУЭ, а также иметь аппараты защиты от токов короткого замыкания и перегрузок (ППБ 01-03);
Установить приказом противопожарный режим на территории авто мобильной газозаправочной станции сжиженным газом (ППБ 01-03);
АЗС следует оборудовать молниезащитой в соответствии с требованиями РД 34.21.122-87, но не ниже II категории (пункт 40 НПБ 111-98*);
Система заземления АЗС должна отвечать требованиям ПУЭ и Правил защиты от статического электричества в производствах химической, нефтехимической и нефтеперерабатывающей промышленности (пункт 41 НПБ 111-98*).
3.1.2 Технические мероприятия
Необходимо выполнить следующие мероприятия:
Технологические системы разместить таким образом, чтобы обеспечивались их целостность и работоспособность при воздействии на них возможных нагрузок (при движении и остановке транспортных средств, подвижках грунта и т.п.), определяемых проектом на АЗС (пункт 31 НПБ 111-98*);
Защитить от повреждения транспортными средствами. На АЗС для заправки крупногабаритной техники (грузовые автомобили, автобусы, строительная и сельскохозяйственная техника и т.п.) крепление защитных устройств к блокам и контейнерам хранения топлива не допускается (пункт 32 НПБ 111-98*);
На АЗС должны использоваться ТРК, обеспечивающие автоматическую блокировку подачи топлива при номинальном заполнении топливного бака транспортного средства. Топливораздаточные колонки рекомендуется оснащать устройствами, предотвращающими выход топлива при повреждении колонок (пункт 44 НПБ 111-98*);
Резервуары и трубопроводы для топлива и его паров должны сохра- нять герметичность в течение не менее 10 лет при соблюдении тре- бований ТЭД на технологические системы (пункт 45 НПБ 111-98*);
Резервуары для хранения топлива должны быть оборудованы системами контроля их герметичности (пункт 46 НПБ 111-98*);
Резервуары для хранения топлива должны быть оборудованы системами предотвращения их переполнения, обеспечивающими при достижении 90%-го заполнения резервуара автоматическую сигнализацию (световую и звуковую) персоналу АЗС, а при 95%-м заполнении - автоматическое прекращение наполнения резервуара не более, чем за 5 сек. Если технологической системой предусмотрено прекращение наполнения резервуара топливом только в автоматическом режиме, то допускается вместо указанной сигнализации предусматривать сигнализацию об автоматическом прекращении наполнения при достижении 95%-го заполнения резервуара (пункт НПБ111-98*);
Наполнение резервуаров топливом из АЦ должно осуществляться через трубопровод налива, проложенный подземно, и с исполь- зованием устройств, препятствующих распространению пламени по линии наполнения резервуара (пункт НПБ 11-98*);
Линии выдачи топлива следует оборудовать обратными клапанами, которые должны открываться давлением или разряжением, создаваемыми насосами этих линий, и герметично закрываться при обесточивании указанных насосов (пункт 64 НПБ 111-98*);
На АЗС следует предусматривать централизованное отключение электропитания. Технологические системы, наполнение резервуаров которых предусматривается посредством их насосного оборудова- ния, должны быть оснащены (независимо от автоматического выключения насосов) ручными выключателями электропитания этого оборудования, располагаемыми как в помещении оператор ной, так и у насосов или площадки для АЦ (пункт 72 НПБ 11-98*);
Помещения АЗС должны оборудоваться автоматической пожарной сигнализацией с НПБ 110-03 (пункт 96 НПБ 111-98*);
Между заправочными островками с СУГ, а также между ними и заправочными островками с другими видами топлива следует устраивать защитные экраны из негорючего материала (металл, бетон, кирпич) высотой не менее 2 м. Ширина защитных экранов должна превышать не менее чем на 0,5 м в обе стороны длину заправляемых транспортных средств, предусматриваемых проектом АЗС (пункт 13 НПБ 111-98*);
Запорная трубопроводная арматура, применяемая на технологическом оборудовании, в котором обращается сжатый природный газ и пары СУГ, должна быть выполнена по классу В, жидкая фаза СУГ - по классу А герметичности затворов по ГОСТ Р 50430 (пункт19.9 НПБ 111-98*);
Технологическая система должна обеспечивать возможность безопасного перекрытия любой вероятной утечки СУГ или их паров из резервуаров для хранения СУГ в окружающую среду, предот- вращающего образование за территорией АЗС локальных зон за- газованности с концентрацией указанных паров более 20% от ниж- него предела распространения пламени с вероятностью не выше 10-6 в год. Указанное требование допускается выполнять следующим образом:
Резервуары для хранения СУГ и их оснастка (патрубки, штуцеры, фланцы, заглушки и т.п.), имеющая сварные соединения, а также все разъемные соединения до первой запорной арматуры, обеспечи- вающей перекрытие места выхода СУГ и его паров из резервуаров, должны быть двустенными. Они должны быть оснащены системами постоянного контроля герметичности их межстенного пространства, обеспечивающими автоматическую сигнализацию (световым и звуковым сигналом) обслуживающему персоналу АЗС о разгермети- зации и автоматическое отключение компрессорного оборудования, прекращение операций по наполнению резервуаров топливом и выдаче его потребителю на всех технологических участках многотопливной АЗС (пункт 20.2 Приложения 6 НПБ 111-98*);
Резервуары для хранения СУГ должны быть оснащены системой автоматического предотвращения превышения предельно допустимого уровня их заполнения, 85% их геометрического объема (пункт 20.5 Приложения 6 НПБ 11-98*).
3.1.3 Мероприятия по обеспечению безопасности людей
Для обеспечения безопасности людей необходимо выполнение следующих мероприятий:
Во время перегрузки сжиженного газа следует приостановить заправку автомобилей и запретить пребывание в опасной зоне посторонним лицам;
Для заправки автомобиль может, подъехать только с водителем. Остальные пассажиры должны остаться вне опасной зоны. Перед местом заправки двигатель автомобиля необходимо выключить и затянуть ручной тормоз. Обслуживающий персонал должен проверить запись в Свидетельстве о регистрации транспортного средства относительно приспособления автомобиля к заправке газом. Затем должен проверить важность легализации баллона и техническое состояние установки (отсечки баллона от электро- проводки автомобиля). Если результаты выше проведенного контро- ля являются положительными, можно приступить к заправке;
АЗС должна быть оснащены телефонной или радиосвязью, а также системой громкоговорящей связи (пункт 43 НПБ 111-98*).
3.1.4 Мероприятия по ограничению распространения пожара
Необходимо выполнить следующие мероприятия ограничению распространения пожара:
Планировка АЗС с учетом размещения на ее территории зданий и сооружений должна исключать возможность растекания аварийного пролива топлива как по территории АЗС, так и за ее пределы (пункт 9 НПБ 111-98*). На въезде и выезде с территории АЗС необходимо выполнять пологие повышенные участки высотой не менее 0,2 м;
Площадка для автоцистерны с СУГ должна быть оснащена таким образом, чтобы исключить растекание пролива жидкой фазы СУГ за ее границы и образование взрывоопасных смесей за пределами АЗС за счет испарения СУГ с поверхности этого пролива. Указанное оснащение площадки для АЦ с СУТ допускается осуществлять следующим образом:
оборудовать отбортовкой, обеспечивающей предотвращение растекания СУГ за ее пределы при аварийной разгерметизации АЦ, высотой не менее 150 мм;
поверхность площадки (включая отбортовку) выполнить из твердых негорючих материалов, исключающих проникновение в них СУГ и его паров. Для въезда и выезда АЦ борта площадки должны быть оборудованы пандусами (пологими участками);
Оборудовать наружной системой отсоса паров СУГ, обеспечивающей подвижность паровоздушной среды (по горизонтали на уровне верхнего края отбортовки) в любой точке площадки не менее 2 м/сек и выброс паровоздушной среды через сбросную трубу. Совмещение указанной сбросной трубы со сбросной трубой для паров СУГ технологической системы АЗС определяется возможностью одновременного пожаробезопасного аварийного сброса паров СУГ из технологического оборудования и с площадки для АЦ. Приемные устройства системы должны быть расположены на уровне верхнего края отбортовки и защищены от попадания в них посторонних предметов, способных привести к нарушению параметров работы системы. Оборудование системы должно иметь взрывобезопасное и искробезопасное исполнение. Запуск и остановка системы должны быть обеспечены как в автоматическом режиме, так и вручную с площадки для АЦ и дистанционно из операторной АЗС. При этом автоматический запуск системы отсоса паров СУГ должен осуществляться от датчиков довзрывоопасных концентраций, а остановка - от пожарных извещателей (пункт 14 Приложения 6 НПБ 111-98*).
3.1.5 Мероприятия по обеспечению локализации и ликвидации
пожара на начальной стадии развития
В целях успешной локализации и ликвидации пожара на начальной стадии развития необходимо:
Обеспечить газозаправочную станцию сжиженным газом (пропан- бутан) необходимыми средствами в соответствии с таблицей 1 ППБ 01-03;
Изучить и отработать персоналом порядок действий при пожаре (ППБ 01-03).
3.1.6 Мероприятия по обеспечению успешного тушения пожара
подразделениями пожарной охраны.
Для обеспечения успешного тушения пожара подразделениями пожарной охраны необходимо:
АЗС должны быть оснащены телефонной или радиосвязью, а также системой громкоговорящей связи (пункт 43 НПБ 111-98*);
Наружное пожаротушение должно осуществляться не менее чем от двух пожарных гидрантов или от противопожарного водоема (водоемов) общей вместимостью не менее 100 м3, расположенных на расстоянии не более 200 м от АЗС. Расход воды на наружное пожаротушение определяется расчетом как суммарный расход воды, включающий в себя максимальное из значений расхода воды на пожаротушение зданий и общий расход воды на охлаждение надземных резервуаров. Расход воды на пожаротушение зданий АЗС определяется по СНиП 2.04.02-84 (для зданий сервисного обслужи- вания водителей и пассажиров, а также зданий для персонала АЗС - как для общественных зданий, для зданий сервисного обслуживания транспортных средств - как для производственных зданий). Общий расход воды на охлаждение надземных резервуаров следует принимать не менее 15 л/сек (пункт 94 НПБ 111-98*);
Для обеспечения охлаждения надземного (наземного) оборудования с СУГ на складской площадке и автоцистерны с СУГ в случае пожара следует предусматривать устройство систем водяного орошения, обеспечивающих равномерную подачу воды на поверхности указанного оборудования. Системы водяного орошения должны быть подключены к кольцевому противопожарному водопроводу АЗС с дистанционным пуском из помещения операторной. Размещение и конструктивное исполнение системы водяного орошения должно обеспечивать ее устойчивость к тепловому излучению пожара (пункт 24 Приложения 6 НПБ 111-98*).
3.2 Анализ технических решений, направленных на совершенствование противопожарной защиты
Выявлен ряд замечаний по рабочему проекту, связанных с привязкой автомобильной газозаправочной станции сжиженного пропан - бутана для заправки автомобилей сжиженным углеводородным газом, а именно:
применена наземная технология хранения СУГ;
отсутствует сбросная труба для сброса паров СУГ из технологической системы на случай возникновения аварийной ситуации;
площадка для установки передвижной емкости СУГ не имеет самостоятельного ограждения, которое обозначало бы территорию, закрытую для посторонних лиц и не оборудована системой отсоса паров СУГ, обеспечивающей подвижность паровоздушной среды в любой точке площадки и выброс паровоздушной среды через сбросную трубу;
отсутствие в проектной документации "Руководства по эксплуатации и техническому обслуживанию технологической системы газо- заправочного пункта сжиженного пропан - бутана".
отсутствует согласование с территориальными подразделениями ГПС для подачи воды на наружное пожаротушение и орошение посредством насосной станции пожаротушения от противопожарных водоемов или резервуаров общей вместимостью не менее 200 м3, расположенных от АЗС на расстоянии не более, чем 200 м.
3.2.1 Обоснование дополнительных мер противопожарной защиты при отступлении от действующих норм
В настоящее время имеется очень ограниченное число научных работ, посвященных проблеме взрыве- и пожаробезопасности технологического оборудования с СУГ, так как эти исследования с каждым днем приобретают высокую коммерческую стоимость.
Единственным систематизированным источником информации в области обеспечения взрыво- и пожаробезопасности резервуаров с СУГ является обзор «Взрыво- и пожаробезопасность изотермических резервуаров для сжиженных углеводородных газов», подготовленный ведущими специалистами по пожарной безопасности заместителем начальника ГПС МВД РФ генерал-майором внутренней службы Молчановым В.П. и профессором Академии ГПС МВД РФ полковником внутренней службы Сучковым В.П.
Основываясь на материалах данного исследования представляется возможным сформулировать характер опасности при отступлении от того или иного нормативного требования пожарной безопасности и используя материалы данного обзора предложить компенсирующие меры противопожарной защиты.
Отступление № 1 – Резервуар с СУГ установлен наземно.
Основная опасность связана с возможность разгерметизации резервуара с СУГ с последующим образованием «огненного шара». В частности об этой опасности и мерах противопожарной защиты в обзоре приведена следующая информация.
Поведение технологического оборудования в условиях пожара.
Описаны две серии огневых испытаний горизонтальных стальных резервуаров объемом 4,85 м3, рассчитанных на максимальное рабочее давление 0,16 мПа. В обеих сериях резервуары, заполненные СУГ, подвергались воздействию пламени жидкого топлива, налитого в лоток шириной 60 см, окружающего со всех сторон испытуемый резервуар.
В первой серии резервуары были незащищенными. Их нагрев в пламени происходил чрезвычайно быстро: через 2-6 мин срабатывал предохранительный клапан, а через 7-12 мин наблюдался взрыв резервуара с образованием «огненного шара» горящего СУГ. Давление при разрыве составляло 2,4 – 3,9 мПа, а температура стенок 420-460°С.
Вторая серия опытов проводилась с резервуарами, которые были теплоизолированы минеральным волокном при толщине слоя 100 мм с защитой теплоизоляции стальной обшивкой толщиной 1 мм. Между теплоизоляцией и обшивкой был оставлен воздушный зазор в 30 мм. В этой серии опытов в течение 90 мин воздействия пламени резервуар не получил повреждений, а давление в нем не превышало 1,5 мПа. Следует отметить, что для обеспечения герметичности, прокладки в предохранительном клапане были заменены более термостойкими материалами. Вместо пербутана исполь-зовали витон, а вместо полиамида – тефлон.
Отмечается, что в Великобритании, начиная с 1980 года Исполни-тельный комитет по здравоохранению и технике безопасности проводит работу по изучению эффективности различных способов противопожарной защиты резервуаров с СУГ. Проведенные огневые опыты показали, что наиболее надежным и экономичным способом является орошение поверхности резервуара струями воды при интенсивности орошения не менее 9,6 л/мин·м2. Опыты показали также, что попытка заменить водяное орошение теплоизоляцией оказалась безуспешной: при отсутствии орошения температура стенок резервуара при пожаре, хотя и медленнее, чем незащищенного, все же повышалась до опасных пределов, а в ряде случаев достигала 900°С.
Тип систем орошения зависит от вместимости резервуара. При вместимости до 56250 литров допускается использовать только орошение водой от ручных или лафетных стволов, доставляемых подразделениями пожарной охраны к месту пожара. При большей вместимости резервуар должен снабжаться стационарной системой водяного орошения. Для резервуаров вместимостью 112500 литров эта система должна быть автоматической. Такая же система должна быть на станции наполнения баллонов газом.
В Германии проведены огневые полигонные испытания с целью проверки эффективности существующих способов противопожарной защиты резервуаров со сжиженным газом. Огневому воздействию подвергались резервуары с огнезащитной облицовкой и орошаемые водой. В первом испытании опытный резервуар защищался двухслойным теплоизоляционным материалом из холстов минеральной ваты толщиной по 50 мм и наружным металлическим кожухом с воздушным зазором между ними в 30 мм. Во второй серии огневых испытаний резервуар орошался водой. В результате проведенных испытаний установлено, что при наличии слоя огнезащитной изоляции с коэффициентом теплопередачи не более 1,2 Вт/м-К при средней температуре 350 °С обеспечивается достаточная противопожарная защита резервуара со сжиженным пропаном в течение 90 мин. Способ защиты с применением оросительной установки, которая подает при орошении 100 л/мин2 час воды, оказался неэффективным. Доказано, что для эффективной защиты резервуара требуется орошение с подачей 400 л/м2 час воды (6,7 л/м2 мин). При таком орошении в процессе огневого воздействия, продолжавшегося 90 мин, давление в резервуаре сохранилось в допустимых пределах, а температура стенок не превышала 100°С. Обращается внимание, что при практическом применении способа защиты с водяным орошением требуется своевременное обнаружение возникшего загорания, с последующим немедленным автоматическим или ручным включением оросительной установки.
Отступление № 2 – Площадка для АЦ с СУГ не оборудована системой отсоса паров СУГ, обеспечивающей подвижность паровоздушной среды в любой точке площадки и выброс паровоздушной среды через сбросную трубу.
Основная опасность связана с возможность быстрого образования зон взрывоопасных концентраций на открытой площадке. В частности об этой опасности и мерах противопожарной защиты в обзоре приведена следующая информация.
3.2.2 Зоны взрывоопасных концентраций паровоздушной смеси
Газ, образующийся при испарении СУГ, не поднимается мгновенно вверх, а некоторое время до нагрева распространяется над поверхностью земли в виде облака. Хотя пары сжиженного газа бесцветны, облако будет белым из-за конденсации и замерзания водяных паров, содержащихся в воздухе. Диаметр облака обычно больше его высоты. Распространение облака воспламеняющегося пара зависит не только от скорости отбора тепла пролитым сжиженным газом, но и от типа и размера системы транспорта и хранения СУГ, а также от природных условий во время разлива (ветер, влажность, температура). Скорость проникновения пара в атмосферу не обязательно должна быть равна скорости его образования. Если пары СУГ попадают в атмосферу из-за преграды, которая значительно выше отметки земли, то тенденция к опусканию их до уровня земли существенно сокращается. Когда преграда достаточно высоко выдается в наземный пограничный слой атмосферы, пар сталкивается с более высокими скоростями ветра и быстрее рассеивается. Это значительно сокращает расстояние, на которое распространяется по ветру газовоздушная смесь взрывоопасной концентрации по сравнению с перемещающим ее испарением СУГ, пролитого в незащищенном пространстве или с преградой малой высоты.
Для обработки газовоздушной смеси широкое распространение в ряде стран, в частности в Японии, получили водяные завесы, создаваемые за счет напорного выброса вверх воды из трубопроводов через щелевые насадки в виде перекрывающихся веерных струй. Распыленная во взрывоопасное облако вода усиливает приток атмосферного воздуха и соответственно уменьшает концентрацию углеводородного газа.
Описаны опыты, проводившиеся с целью изучения возможности быстрого рассеивания в воздухе тяжелого горючего газа (пропана) при помощи водяной завесы. Пропан выпускали в воздух из квадратной ямы размером 1 х 1 м с расходом 2000 л/мин. Система вертикальной водяной завесы монтировалась на трубе, окружавшей место утечки и имевшей в плане форму квадрата со сторонами 3,5 х 3,5 м. На каждой стороне квадрата монтировали семь плоских вертикальных насадок с углом распыления воды 30° и по два аналогичных насадка с углом распыления 120°. Общий расход воды составлял 1200 л/мин при давлении 0,5 мПа. Опыты, проводившиеся при скорости ветра до 5 м/сек, показали высокую эффективность водяной завесы. Концентрация газа за пределами зоны защиты резко снижалась. Аналогичные опыты с установкой внутри зоны защиты щитов, ограничивающих растекание выходящего газа, также показали эффективность водяной завесы.
Многочисленные полевые испытания, проведенные специалистами фирмы "Эссо" показали, что при установке рядом друг с другом нескольких гидрощитов выходящих из экспериментального устройства сжиженный газ может отклоняться в более высокие слои воздуха, снижаться и рассеиваться. Эффект снижения значительно ниже концентрационного предела распространения пламени был подтвержден газоизмерительными приборами. Ни в одной точке измерения за водяным барьером газовоздушная смесь не достигла взрывоопасной концентрации.
3.2.3 Заключение
В целях обеспечения пожарной безопасности АГЗС должно быть:
Должны быть установлены скоростные клапаны - прерыватели потока, перед топливораздаточной колонкой и перед подключением к передвижной емкости с СУГ. Соединительные трубопроводы должны быть проложены подземно;
Резервуар для хранения СУГ должен быть оборудован дренчерной системой водяного орошения с интенсивностью подачи воды не менее 0,5 л/сек-м . Пуск системы охлаждения должен осуществляться от датчиков пожарной сигнализации и от кнопок дистанционного управления пожарными насосами;
• Площадка для установки передвижной емкости СУГ должна иметь самостоятельное ограждение, которое обозначало бы территорию, закрытую для посторонних лиц и оборудована системой отсоса паров СУГ, обеспечивающей подвижность газовоздушной среды в любой точке площадки и выброс газовоздушной среды через сбросную трубу.
3.3 Анализ тактико-технических возможностей пожарных подразделений
Схема водоснабжения
Наружное противопожарное водоснабжение обеспечивается за счет двух пожарных резервуаров объемом 200 м3, установленных на расстоянии не более 200 м противопожарного водоема (пруд).
3.3.1 Выписка из расписания выездов пожарных подразделений
на пожары
Выписка расписания выездов пожарных подразделений на пожаре приведена в таблице 14.
Таблица 14
|
№ вызова |
Наименование подразделений и типы автомобилей |
Численность боевого расчета, чел |
Время следования пожарных подразделений к месту пожара, мин |
|
1. |
ПЧ-5 |
||
|
АЦ-40(130)63А |
4 |
1 |
|
|
АЦ-40(375)Ц1 |
4 |
1 |
|
|
АЛ-30(131)Л21 |
1 |
1 |
|
|
2. |
ПЧ-6 |
||
|
АЦ-40(375)Ц1 |
3 |
5 |
|
|
АР-2(131)133 |
1 |
5 |
|
|
ПЧ-4 |
|||
|
АЦ-40(130)63А |
3 |
7 |
|
|
АВ-40(375Н)Ц50А |
2 |
7 |
|
|
АСО-12(66)90А |
1 |
7 |
|
|
ПЧ-29 |
|||
|
АЦ-40(130)63А |
4 |
10 |
|
|
АЛ-30(131)Л22 |
1 |
10 |
|
|
ПЧ-23 |
|||
|
АЦ-40(130)63А |
4 |
13 |
3.3.2 Определение возможной обстановки на пожаре к моменту введения сил и средств.
В результате короткого замыкания в электропроводке в 13 часов 18 минут произошло возгорание помещения операторской на автомобильной газозаправочной станции, расположенной на Симферопольском шоссе 29 км. Персонал АГЗС обнаружил возгорание и попытался ликвидировать пожар своими силами, но не справился. После того, как обслуживающий персонал покинул территорию АГЗС, была вызвана пожарная охрана. К моменту прибытия первого подразделения к месту возникновения пожара, помещение операторской было полностью охвачено пламенем. Площадь пожара на момент вызова ПО составила S>пож>=12 м2, а также была угроза повышения температуры стенок топливораздаточной колонки в результате воздействия теплового потока.
3.3.3 Расчет сил и средств:
1.определяем время свободного развития пожара.
t>св>=t>д.с.>+ t>сб>+ t>сл>+ t>б.р.>
где t>д.с >– время до сообщения в ПО = 8 мин.
t>сб >– время сбора личного состава ПО = 1 мин.
t>сл >– время следования ПО к месту пожара t>сл >= (L*60)/V>сл >= (0,5*60)/30 = 1 мин.
t>б.р >– время боевого развертывания = 2 мин.
t>св >= 8+1+1+2 = 12 мин.
2.определяем путь пройденный огнем за время свободного развития.
R=5V>л>+V>л>(t>св >-10)
Где V>л >– линейная скорость распространения огня = 0,7 м/мин.
R= 5*0,7+0,7*2=5 м.
3.определяем площадь пожара. Так как горение возникло в подсобном помещении на небольшом отдалении от боковых стен принимаем прямоугольную форму пожара.
S>п> = n*a*R>1>
Где n – число направлений распространения огня = 1
a – ширина помещения = 15 м.
S>п >= 1*15*5=75 м2.
4.определяем требуемый расход воды на тушение
Q>тр> = S>п >* J>тр>
Где J>тр >– требуемая интенсивность подачи огнетушащих веществ = 0,2 л/с*м2
Q>тр >= 75*0,2 = 15 л/с.
5.определяем требуемое количество стволов на тушение (локализацию):

Где q>ств> – расход одного ствола
ств.
«А»
6. определяем требуемое количество отделений :

Где
- количество стволов, подаваемых одним
отделением
отд.
3.4 Обоснование исходных данных к конструкции
сбросной трубы
3.4.1 Расчет концентраций горючего газа при сбросе из предохранительного клапана через сбросную трубу
Расчет проведен для условий, когда выброс осуществляется горизонтально в течение длительного времени при наихудших метеоусловиях (штиль), а максимальная приземная концентрация газа не превышает 50% нижнего предела распространения пламени (воспламенения). Для уменьшения приземной концентрации рекомендуется сбросной патрубок направлять вертикально вверх.
3.4.2 Величина приземной концентрации газа на различных расстояниях от предохранительного клапана

где М - количество сбрасываемого газа М = 20000 г/сек; V - секундный объем сбрасываемого газа при нормальном давлении V = 9,95 м3/сек; d - диаметр сбросного патрубка d = 0,05 м; X - горизонтальное расстояние от сбросного патрубка до места, в котором определяется концентрация, м; ρ>г>/ρ>в>-плотность сбрасываемого газа и окружающего воздуха, кг/м ; h - высота сбросного патрубка примем h>1> = 5 м, h>2> = 10 м h>3> = 2 м. Данные расчета представлены в таблице 15 и на рисунке 10.
Таблица 15
|
h> 1>, м |
h>2>, м |
h>3>, м |
Х,м |
С>1> г/м3 |
С>2>, г/м3 |
С>3>, г/м3 |
|
|
5 |
10 |
2 |
0,10 |
0,00 |
0,00 |
0,00 |
|
|
5 |
10 |
2 |
1,00 |
0,00 |
0,00 |
0,00 |
|
|
5 |
10 |
2 |
5,00 |
0,00 |
0,00 |
0,05 |
|
|
5 |
10 |
2 |
9,00 |
0,00 |
0,00 |
7,57 |
|
|
5 |
10 |
2 |
13,0 |
0,04 |
0,00 |
18,96 |
|
|
5 |
10 |
2 |
17,0 |
0,63 |
0,00 |
23,70 |
|
|
5 |
10 |
2 |
21,0 |
2,25 |
0,00 |
24,36 |
|
|
5 |
10 |
2 |
25,0 |
4,36 |
0,01 |
23,38 |
|
|
5 |
10 |
2 |
29,0 |
6,28 |
0,07 |
21,88 |
|
|
5 |
10 |
2 |
33,0 |
7,74 |
0,25 |
20,30 |
|
|
5 |
10 |
2 |
37,0 |
8,73 |
0,56 |
18,80 |
|
|
5 |
10 |
2 |
41,0 |
9,33 |
1,00 |
17,43 |
|
|
5 |
10 |
2 |
45,0 |
9,65 |
1,51 |
16,21 |
|
|
5 |
10 |
2 |
49,0 |
9,76 |
2,05 |
15,11 |
|
|
5 |
10 |
2 |
53,0 |
9,73 |
2,56 |
14,14 |
|
|
5 |
10 |
2 |
57,0 |
9,61 |
3,03 |
13,28 |
|
|
5 |
10 |
2 |
61,0 |
9,43 |
3,44 |
12,51 |
|
|
5 |
10 |
2 |
65,0 |
9,21 |
3,79 |
11,81 |
|
|
5 |
10 |
2 |
69,0 |
8,97 |
4,08 |
11,19 |
|
|
5 |
10 |
2 |
73,0 |
8,72 |
4,31 |
10,62 |
|
|
5 |
10 |
2 |
77,0 |
8,47 |
4,50 |
10,11 |
|
|
5 |
10 |
2 |
81,0 |
8,21 |
4,64 |
9,64 |
|
|
5 |
10 |
2 |
85,0 |
7,97 |
4,74 |
9,21 |
|
|
5 |
10 |
2 |
89,0 |
7,72 |
4,81 |
8,82 |
|
|
5 |
10 |
2 |
93,0 |
7,49 |
4,86 |
8,46 |
|
|
5 |
10 |
2 |
97,0 |
7,27 |
4,88 |
8,12 |
|
|
5 |
10 |
2 |
101,0 |
7,05 |
4,88 |
7,82 |
|
|
5 |
10 |
2 |
105,0 |
6,84 |
4,87 |
7,53 |
|
|
5 |
10 |
2 |
109,0 |
6,65 |
4,85 |
7,26 |
Рис.10.
Величина приземной концентрации газа
на различных расстояниях от
предохранительного клапана, г/м3
>3.4.3 Величина максимальной приземной концентрации газа>




где М - количество сбрасываемого газа, г/сек; V - секундный объем сбрасываемого газа при нормальном давлении, м3/сек; d - диаметр сбросного патрубка, м; р>г> / р>в> - плотность сбрасываемого газа и окружающего воздуха, кг/м3 ; h - высота сбросного патрубка, м.
3.4.4 Расстояние, на котором наблюдается максимальная приземная концентрация, составляет

,м
,м
,м
где h - высота сбросного патрубка; примем h>1> = 5 м, h>2> = 10 м Ь>3> = 2; Х>м> - расстояние, на котором наблюдается максимальная приземная концентрация.
3.4.5 Минимальная высота выброса
;
м,
где С>НКПР >- концентрация нижнего предела распространения пламени, г/м3; М - количество сбрасываемого газа М = 20000 г/сек; V - секундный объем сбрасываемого газа при нормальном давлении V = 9,95 м3/сек; ρ>г> /ρ>в>- плотность
сбрасываемого газа и окружающего воздуха, кг/м3 .
При расчете принимаем скорость выхода газа из сбросного патрубка 80 м/сек, опасной зоной считается круг радиусом Х>м>.
3.5 Характеристика состояния окружающей среды и экологического состояния автомобильной газозаправочной станции
Экологическую оценку автомобильной газозаправочной станции следует начать со сведений о продуктах обращающихся в технологическом процессе (таблица 16).
Таблица 16
|
Продукты |
Санитарно-гигиенические и экологические показатели |
|
|
ПДК среднесуточная, мг/м 3 |
ПДК максимальная разовая, мг/м3 |
|
|
Пропан-бутан* |
- |
200 |
При попадании в окружающую среду пожарную опасность будут представлять пропан и бутан. Экологическую опасность будут представлять лишь в небольшой мере, что связано с небольшим объемом выброса (7097,2кг СУГ) и тем, что СУГ в небольшой промежуток времени испарится в атмосферу (около 15 мин).
При аварийном режиме возможен выброс в атмосферу СУГ либо через сбросную трубу, либо непосредственно наружу при полном или частичном разрушении резервуара с СУГ. Для ограничения площади разлива СУГ предусмотрена отбортовка автомобильной газозаправочной станции.
Пожары занимают определенное место среди чрезвычайных ситуаций, приводящих к разрушению окружающей среды, так при пожаре на автомобильной газозаправочной станции к разрушению окружающей среды приведет не только процесс горения СУГ, но и его тушение (тушение СУГ возможно лишь воздушно механической пеной высокой кратности).
Источником загрязнения атмосферы являются возможное нарушение герметичности заправочных и сливных устройств, нарушение герметичности сосуда цистерны, поэтому основным условием по предотвращению вредных выбросов являются:
- испытание оборудования на прочность и плотность;
- применение на трубопроводах жидкой и паровой фаз обратных и скоростных клапанов;
- постоянный контроль оборудования обслуживающим персоналом, позволяющий своевременно обнаружить нарушения герметичности систем и принять меры по устранению его. В соответствии с принятой технологической схемой, разработанной Самарским филиалом ОАО «Оргэнергонефть», выбросы СУГ, имеющие при заправке автомобилей и срабатывании предохранительных клапанов, носят периодический характер, в минимальных дозах, не превышающих допустимых пределов.
Необходимо учесть, что резервуар, находящийся в «саркофаге» засыпанном песком имеет практически постоянную температуру, значительно ниже температуры окружающего воздуха. По этой причине вероятность выброса газа через предохранительные клапана очень мала.
Ухудшение природной среды будет проходить не только за счет попадания в нее вредных веществ:
продуктов горения;
горючих материалов;
огнетушащих веществ.
Стратегический подход к снижению или предотвращению пожаров на автомобильных газозаправочных станциях состоит в усилении противопожарной защиты объектов и совершенствовании способов и средств тушения.
3.5.1 Охрана поверхностных и подземных вод от загрязнений.
Постоянные сточные химзагрязненные воды на АГЗС отсутствуют. Имеют место периодические дождевые и талые воды, которые поступают с бетонированной площадки, выполненной с уклоном, обеспечивающим сток дождевых и талых вод с площадки через патрубок в специальный сборный колодец.
Откачка собранных стоков и вывоз их осуществляется специализированным автотранспортом в соответствии с договором, заключенным между ООО «ДИКЕЙ» и МУП «Спецавтокомбинат».
Бытовые стоки из выгребной ямы отдельно стоящего туалета также вывозятся с территории АГЗС специализированным автотранспортом МУП «Спецавтокомбинат».
Утечка масел из заправляемых автомобилей немедленно засыпается песком и вместе с промасленной ветошью собираются в контейнер с последующим вывозом на полигон промышленных отходов.
3.5.2 Охрана почвы
Постоянные твердые отходы на площадке АГЗС отсутствуют. К периодически скапливающимся твердым отходам можно отнести промасленную ветошь и песок, загрязненный маслом, которым засыпают утечки масла.
Загрязненные маслом песок и промасленная ветошь собираются в металлический ящик и вывозятся на полигон промышленных отходов, для чего Заказчик заключает договор с предприятиями, имеющими полигоны для захоронения промышленных отходов.
3.5.3 Эколого-экономическая оценка ущерба от загрязнения окружающей среды при пожаре или аварии на АГЗС.
Экономический ущерб от загрязнения окружающей среды при пожарах и авариях определяется по формуле:
,
руб.
где У>А>- экономический ущерб от загрязнения атмосферы;
У>П>- экономический ущерб от загрязнения почвы;
У>В>- экономический ущерб от загрязнения водных объектов.
Таким образом формула примет вид:
,
;
где
-
удельный экономический ущерб от
загрязнения природной среды равный
2,16 руб/усл.т. согласно индексации цен
на 2003 год;
10 – коэффициент, учитывающий аварийный характер выброса;
-
коэффициент, учитывающий экологическую
значимость и экологическое состояние
региона, где случилась авария или пожар
(составляет 1,1 (табл.6 [ ]));
m>i> – масса i-го загрязнителя, попавшего в окружающую среду, т;
1/ПДК>СС> – показатель относительной опасности вещества;
G>гор> – количество сгоревшего горючего.
Таблица 17
|
№ п/п |
Загрязнитель |
m т/т>гор> |
ПДК мг/м3 |
|
нефть |
|||
|
1. 2. 3. 4. 5. 6. 7. 8. 9. 10. |
Оксид углерода СО Оксиды азота NO>х> Оксиды серы SO>2> Сероводород Н>2>S Сажа С Синильная кислота НСN Формальдегид НСНО Органические кислоты СН>3>СООН Пятиокись ванадия Бензопирен |
3,11·10-1 1,51·10-2 1,20·10-3 1,00·10-3 1,47·10-3 1,00·10-3 5,33·10-4 5,33·10-4 1,00·10-6 6,1·10-8 |
3 0,06 0,05 0,008 0,05 0,01 0,03 0,04 0,002 1,0·10-6 |
,
где V>м> – массовая скорость выгорания, равная 0,045-0,053 кг/м3·с;
S>П> – площадь пожара, равная 38,5 м2;
τ>туш> – время тушения пожара 15 минут;
δ – коэффициент недожога 0,85.
т.
Определяем экономический ущерб от пожара:

Вывод: В результате аварии на АГЗС общий экономический ущерб составил 26,22 руб., так как ставки на причинение вреда атмосфере при пожарах не высоки и при рассмотрении мною расчетной аварии я не учитывал такие показатели, как ущерб, нанесенный почве и водоемам.
3.6 Экономическая оценка эффективности применения
дренчерного орошения резервуара с СУГ
3.6.1 Формулировка задач и выбор базы для сравнения
Стоимость автомобильной газозаправочной станции имеет балансовую стоимость 3,2 млн. рублей и отпускает в сутки продукции на 14400 рублей (все цены и коэффициенты, использованные при расчетах, были взяты на 2003 год.) Технологический процесс характеризуется повышенной пожарной опасностью, что связано с хранением и распределением СУГ.
Анализ статистических данных о пожарах на аналогичных объектах показывает, что ввиду быстрого нагрева резервуара с СУГ происходит резкий рост давления внутри с последующим образованием "огненного шара". Предполагается, что дополнительное введение дренчерного орошения резервуара с СУГ позволит уменьшить величину ущерба. Другими словами, можно сказать, что необходимо выявить экономическую целесообразность применения дренчерного орошения резервуара с СУГ.
Итак, рассмотрим два варианта защиты резервуара с СУГ:
первый, без применения дренчерного орошения резервуара с СУГ, когда объект защищен прочими средствами противопожарной защиты;
второй, новый вариант, когда к существующей защите добавляется дренчерное орошение резервуара с СУГ.
3.6.2 Определение величины основных экономических показателей
Основными показателями по каждому варианту защиты АГЗС являются:
капитальные вложения К>1> и К>2>, руб.;
эксплутационные расходы С>1> и С>2> руб./год;
ущерб от пожаров У>1> и У>2>, руб./год.
Расчет сравнительной экономической эффективности противопожарной защиты позволяет исключать одинаковые затраты, входящие в каждый из основных показателей. Такими одинаковыми затратами для данного объекта являются расходы на содержание противопожарной охраны и других средств противопожарной защиты. Определим основные показатели по каждому варианту.
3.6.2.1 Базовый вариант
Дополнительные капитальные и эксплутационные расходы отсутствуют, т.е. К>1> = 0 и С>1> = 0:
У=У>п>+У>к> ,
где У>п> - прямой ущерб от пожара, руб.; У>к> - косвенный ущерб от пожара, руб.
Прямой ущерб определяем на основании статистических данных о пожарах за 4 года на 23 существующих аналогичных объектах (N = 23), не оборудованных дренчерным орошением резервуара с СУГ. Распределение числа пожаров и ущерба по годам представлено в таблице 16.
Таблица 18
|
Годы Т>i> |
Число пожаров, n>i> |
Ущерб У>i>, руб |
|
2000 |
0 |
0 |
|
2001 |
1 |
1349624 |
|
2002 |
2 |
2924271 |
|
2003 |
1 |
1623919 |
;
руб,
где У>i> - ущерб от i-го пожара, тысяч руб.; Т>i> - i-ый год. Определяем косвенный ущерб от пожара:
У>к>=У>У-П.Р >+У>У.П >+У>П.Э> ;
108000+270000+139099,45=517099,45
руб.,
где У>у.п.р >- потери от условно-постоянных расходов, которые несет АГЗС при временном простое; У>у> >п> - упущенная прибыль из-за недоотпуска СУГ за время простоя; У>п> >э> - потеря эффективности дополнительных капитальных вложений, отвлекаемых на восстановление основных фондов, уничтоженных и поврежденных пожаром.
Потери от условно-постоянных расходов, которые понесет фирма при простое производства, определяют следующим образом:
;
;
;
;
руб.,
где Q>i> - производительность АГЗС 200 л/час; Ц>i> - себестоимость единицы продукции 5 руб., τ>пр> - время простоя суток; τ>пож> - время пожара суток; τ>лпп> -время ликвидации последствий пожара, подготовку и пуск АГЗС. Статистика показывает, что АГЗС простаивает 9 дней, то есть τ>пр> = 9 суток; К>у>.>п>.>р>. - коэффициент, учитывающий условно-постоянные затраты и заработную плату в себестоимости продукции; Н>ам> - процент амортизации в себестоимости продукции; Н>ЗП> - процент заработной платы в себестоимости продукции; Н>ПЗ> - процент прочих затрат в себестоимости продукции.
Упущенная прибыль из-за недовыпуска продукции за время простоя (τ>пр> = 9 суток):
;
руб.,
где R>с> - рентабельность продукции в процентах к ее себестоимости R>с> = 50 %; Ц>i> - себестоимость единицы продукции 5 руб.; τ>пр> - время простоя суток; Q>i> -производительность АГЗС 200 л/час.
Потери эффективности дополнительных капитальных вложений, отвлекаемых на восстановление уничтоженных пожаром основных фондов, определяем исходя из их степени повреждения:
;
руб.,
где
-
соответственно
нормативные коэффициенты экономической
эффективности капитальных вложений в
пассивные и активные фонды
=0,12 1/год,
=0,15 1/год;
К>ск>
, К>ОБ>
- соответственно
средние значения ущерба от одного пожара
по строительным конструкциям и
оборудованию, руб.
Из анализа значений прямого ущерба установлено, что средний ущерб от одного пожара по строительным конструкциям составляет 254430 рублей, а по оборудованию 723783 рублей.
Число пожаров за четыре года равно 4. Отсюда следует, что в год в среднем происходит 1 пожар, т.е. частота (вероятность) пожара будет равна:
;
1/год,
где N - число однородных объектов; n - среднее количество пожаров в год на однородных объектах.
Тогда среднегодовой ущерб по базовому варианту составит:
;
руб.,
Общий среднегодовой ущерб по базовому варианту составит:
;
руб.
3.6.2.2 Новый вариант
Капитальные вложения на устройство дренчерной защиты резервуара с СУГ согласно смете составляют К>2> = 24000. Выполним расчет эксплуатационных расходов на содержание этой установки по формуле:
,
руб./год.
Амортизационные отчисления составят:
;
руб./год,
где Н>ам> = 6% в год - норма амортизационных отчислений для АУП водных.
Затраты на текущий ремонт и техническое обслуживание дренчерного охлаждения резервуара с СУГ:
;
руб./год,
где Н>тр> = 4,5 % в год - норма отчислений на текущий ремонт и техническое обслуживание.
Затраты на содержание обслуживающего персонала составляют:
;
руб./год,
где Ч -
численность работников обслуживающего
персонала, чел.; З>осн>
-должностной оклад работника, руб./месяц;
К>доп>
= 1,2-1,3 - коэффициент, учитывающий различного
рода надбавки, дополнительную зарплату
и начисления по социальному страхованию;
κ = 0,185 - коэффициент, учитывающий долю
времени на обслуживание АУПТ.
Затраты на электроэнергию составят:
;
руб./год,
где N - установленная электрическая мощность, кВт; Ц>эл> - тариф за один кВт/час электроэнергии; Т>р> - годовой фонд работы установленной мощности, час; К>им> - коэффициент использования установленной мощности.
Эксплутационные расходы на содержание дренчерного охлаждения резервуара с СУГ:
;
руб./год
Определим ущерб от пожара по второму варианту. Внедрение дренчерного охлаждения резервуара с СУГ показало, что ущерб от пожара сокращается. Так в среднем при пожаре уничтожается и повреждается оборудования на 23451 рублей, а здания и сооружения практически не повреждаются. Простой в среднем составляет 2 суток.
24000+60000+3517,7=87517,7
руб.
где У>У-ПР> - потери от условно-постоянных расходов, которые несет АГЗС при временном простое; У>уп> - упущенная прибыль из-за недоотпуска СУГ за время простоя; У>ПЭ> - потеря эффективности дополнительных капитальных вложений, отвлекаемых на восстановление основных фондов, уничтоженных и поврежденных пожаром. Потери от условно-постоянных расходов, которые понесет фирма при простое производства, определяют выражением:
;
;
сут;
;
руб.,
где Q>i> - производительность АГЗС 200 л/час; Ц>i> - себестоимость единицы продукции 5 руб. τ>ПР> - время простоя суток; τ>пож> - время пожара суток; τ>Л.П.П.> -время ликвидации последствий пожара, подготовку и пуск АГЗС. Статистика показывает, что АГЗС простаивает 2 суток, то есть τ>пр> = 2 суток; К>У - П.Р.> -коэффициент, учитывающий условно-постоянные затраты и заработную плату в себестоимости продукции; Н>ам> - процент амортизации в себестоимости продукции; Н>З.П.> - процент заработной платы в себестоимости продукции; Н>П.З.> - процент прочих затрат в себестоимости продукции.
Упущенная прибыль из-за недовыпуска продукции за время простоя (τ>пр> = 2 суток):
;
руб.,
где R>С> - рентабельность продукции в процентах к ее себестоимости R>C> = 50%; Ц>i> - себестоимость единицы продукции 5 руб.; τ>пр> - время простоя суток; Q>i> -производительность АГЗС 200 л/час.
Потери эффективности дополнительных капитальных вложений, отвлекаемых на восстановление уничтоженных пожаром основных фондов, определяем исходя из их степени повреждения:
;
руб.,
где
- соответственно
нормативные коэффициенты экономической
эффективности капитальных вложений в
пассивные и активные фонды
=0,12 1/год,
=0,15 1/год;
К>ск>
, К>ОБ>
- соответственно
средние значения
ущерба от одного пожара по строительным конструкциям и оборудованию, руб.
Число пожаров за четыре года равно 4. Отсюда следует, что в год в среднем происходит 1 пожар, т.е. частота (вероятность) пожара будет равна:
;
1/год,
где N - число однородных объектов; n - среднее количество пожаров в год на однородных объектах.
С учетом прямого ущерба и частоты возникновения пожара среднегодовое значение ущерба составит:
;
руб.,

Для автоматических установок тушения пожаров водой вероятность выполнения задачи составляет Р>в.з.> = 0,79.
Тогда с учетом уровня эксплутационной надежности необходимо
скорректировать размер расчетного ущерба по второму варианту:
;
руб.,
где У>ср2> и У>ср1> - соответственно среднегодовая величина ущерба для объекта, при выполнении задачи и невыполнении задачи.
3.6.3 Сопоставление вариантов и определение экономического эффекта
Согласно действующей типовой методике лучшим является вариант, имеющий меньшую величину приведенных затрат П>i>:

;
где К>i> - капитальные вложения на противопожарную защиту по i-му варианту, руб.; Е>н> - нормативный коэффициент экономической эффективности
капитальных вложений, принимаемый в целом по народному хозяйству на уровне не ниже 0,12 1/год; C>i> - эксплутационные расходы на противопожарную защиту i-го варианта, руб./год; У>i> - среднегодовой ущерб от пожара по i-му варианту, противопожарной защиты руб./год; i - количество вариантов (I = 1,2,....n).
В нашем случае имеем следующие величины основных показателей по вариантам:
1 вариант К>1> = 0; С>1> = 0; У>1> = 86859 руб./год;
2 вариант К>2> = 24000; Е>н> =0,15 1/год; С>2>= 11671; У>2>= 22097,6. Определяем приведенные затраты по вариантам:
1 вариант П>1> =У>cp>>1> = У>1> = 86859 руб./год;
2 вариантП>2> = К>2>Е>Н>+С>2>+У>2>= 24000·0,15+ 11671+ 22097,6 = 373686. Приведенные затраты по 2 варианту меньше чем, по 1 варианту,
следовательно применение дренчерного орошение резервуара с СУГ.
Годовой экономический эффект Э>г> от применения дренчерного орошения резервуара с СУГ определяют как разность приведения затрат рассматриваемых вариантов:
Э>г>=П>1 >- П>2> ;
Э>г>=86859-37368,6 = 49490,4 руб.
Итак, годовой экономический эффект от применения дренчерного орошения резервуара с СУГ на одном объекте составит 49490,4 руб.
3.7 Гидравлический расчет дренчерной установки охлаждения
резервуара с СУГ
3.7.1 Определяем исходные данные для расчета
Размеры защищаемого участка 7 х 10 м. Длина подводящего трубопровода 10 м. Защищаемый объект и станция пожаротушения находятся на одной отметке. Насосы запитаны от водопровода с гарантированным напором в сети. Н>подв>= 12 м. Интенсивность орошения водой I>Н> = 0,5 л/сек-м (пункт 25 Приложения 6 НПБ 111-98). Площадь орошения дренчерным оросителем F>op> = 12м2.
3.7.2 Производим трассировку трубопроводов и оросителей на плане защищаемого объекта
Производим трассировку трубопроводов на плане защищаемого объекта. В результате получаем, что фактическая площадь орошения F>op> = 10м2.

Рис. 11 Трассировка трубопроводов и оросителей
3.7.3 Выбираем тип оросителя и его основные параметры
Для этого определим требуемый напор Н>1> и расход Q>1> на диктующем оросителе для двух типоразмеров и сравним полученные значения интенсивности орошения по следующим формулам:
;
.
где I>н>= 0,5 л/сек·м2 интенсивность орошения водой; F>op>=10 м - площадь орошения дренчерным оросителем; Н>1> - напор на диктующем оросителе, м; Q>1> - расход на диктующем оросителе, л/сек. Результаты расчета сведены в таблицу 17.
Таблица 17
|
Тип оросителя |
ДВНо15-01 |
ДВНо20-01 |
|
Н>MIN> |
10 |
10 |
|
К, л/(сек·м0,5) |
0,71 |
1,25 |
|
Н>ТРЕБ>, м |
50 |
16 |
|
Н>1>,м |
50 |
16 |
|
Q>1>, л/сек |
5 |
5 |
|
I>РАСЧ >, л/сек ·м 2 |
0,5 |
0,5 |
На основании полученных расчетов принимаем в установке дренчерные оросители типа ДВНо20-01.
3.7.4 Определяем диаметры трубопровода
• Определяем диаметр трубопровода на участке от первого до второго оросителя:
;

где V - скорость движения воды по трубам (рекомендуется V=3-5 м/сек), принимаем V=3 м/сек; Q>1> =Q>2> - расход на диктующем оросителе, л/сек.
Принимаем трубы стальные электросварные и по таблице 3 Приложения 6 [16] для d>y> = 50 мм определяем значение К>т> = 110.
• Определяем напор в точке "а":


• Определяем диаметр трубопровода на участке "а-б":


Принимаем трубы стальные электросварные и по таблице 3 Приложения 6 [16] для d>y>= 65 мм определяем значение К>Т> = 572.
• Определяем напор в точке "б":

• Определяем расход из оросителей 3 и 4:
>
>
>
>>
>>
>
• Определяем диаметр трубопровода на участке от третьего до четвертого оросителя:

где V - скорость движения воды по трубам (рекомендуется V = 3-5 м/сек), принимаем V = 3 м/сек; Q>1> = Q>2> - расход на диктующем оросителе, л/сек.
Принимаем трубы стальные электросварные и по таблице 3 Приложения 6 [16] для d>y> = 50 мм определяем значение К>т> = 110.
• Определяем диаметр трубопровода на участке "б-в":
;

Принимаем трубы стальные электросварные и по таблице 3 Приложения 6 [16] для d>y> = 100 мм определяем значение К>т> = 4322.
• Определяем напор в точке "в":

• Определяем расход из оросителей 5 и 6:




• Определяем диаметр трубопровода на участке от пятого до шестого оросителя:

Принимаем трубы стальные электросварные и по таблице 3 Приложения 6 [16] для d>y> = 50 мм определяем значение К>т> = 110.
• Определяем диаметр трубопровода на участке "в-г":


Принимаем трубы стальные электросварные и по таблице 3 Приложения 6 [16] для d>y> = 125 мм определяем значение К>т> = 13530.
• Определяем напор в точке "г":


Результаты расчета сведены в таблице 18
Таблица 18
|
Номер участка или точки |
Длина участка 1, м |
d>y>, мм |
К>т> |
Н, м |
Q, л/сек |
|
а |
- |
- |
- |
- |
- |
|
а-б |
4 |
65 |
572 |
- |
10,0 |
|
б |
- |
- |
- |
18,1 |
10,2 |
|
б-в |
4 |
100 |
4322 |
- |
20,2 |
|
в |
- |
- |
- |
18,5 |
10,3 |
|
в-г |
4 |
125 |
13530 |
- |
30,5 |
|
г |
- |
- |
- |
18,6 |
- |
3.7.5 Определяем требуемый напор у основного водопитателя
(на насосе):
;
м,
где h>лин> - суммарные потери напора в сети, м; h>КЛ> - потери напора в клапане узла управления принимаем в установке клапан КЗУ-100; z - разность отметок "диктующего" оросителя и оси напорного патрубка водопитателя.


м,
где h>ЛИН> - суммарные потери напора в сети, м; h>CT> - потери напора в стояке; h>ПОДВ> - потери напора в подводящем трубопроводе.
;

;
м,
где l>СТ> - длина стояка, м.
;
м,
;
м,
где h>ЛИН> - суммарные потери напора в сети, м; h>РАСПР> - потери напора в распределительных трубопроводах; h>CT> - потери напора в стояке; h>ПОДВ> -потери напора в подводящем трубопроводе; h>КЛ> - потери напора в клапане узла управления принимаем в установке клапан КЗУ-100; z - разность отметок "диктующего" оросителя и оси напорного патрубка водопитателя. Пользуясь таблицей Приложения 7 [17], выбираем насос К-90/35а.
3.7.6 Определяем фактическое значение напора и расхода воды в сети
Фактическое значение напора и расхода в сети, определяется точкой пересечения Q-H характеристик сети трубопроводов и основного насоса на их совмещенном графике.
Определяем сопротивление сети:
;
м·сек/л.
Задаваясь различными значениями расхода Q>i>, определяются значения потерь напора:
.
Результаты расчета потерь напора в сети представлены в таблице 19.
Таблица 19
|
Q>i>, л/сек |
0 |
8 |
4 |
20 |
30 |
32 |
40 |
50 |
60 |
|
h>i>, м |
0 |
0,64 |
1 |
4 |
9 |
10,24 |
16 |
25 |
36 |
Из совмещенного графика следует, что фактическое значение расхода в сети Q>Ф> = 34 л/сек, фактическое значение напора Н>ф> = 21 м.

Рис. 12 Совмещенная характеристика основного насоса
и сети трубопроводов установки
Выводы
Современные тенденции развития автомобилестроения предполагают использование экологически чистых видов топлива. К таким видам топлива относятся и сжиженные углеводородные газы. В качестве топлива широко используется смесь пропан-бутан. В России СУГ (пропан-бутан) с их низкой себестоимостью способны конкурировать с традиционными видами топлива, такими как бензин и дизельное топливо. Но следует отметить, что наземные технологии хранения СУГ в одностенных резервуарах пока мало изучены, а оборудование в своем большинстве импортного производства.
Проведена детальная пожарно-техническая экспертиза проекта АГЗС по 28 позициям.
По результатам расчетов рисков пожарной безопасности установлены следующие возможные события:
розлив СУГ на площади F>Ж>=2244 м2;
образование зоны ограничивающей область концентраций, превышающих нижний концентрационный предел распространения пламени (φ>нп>) с радиусом R>ЗВК>=171 м и высотой Н>ЗВК>=3,9 м;
сгорание газовоздушной смеси на открытом пространстве с образованием волны давления ΔР>30м>=360,63 кПа;
пожар розлива с воздействием теплового излучения на рядом расположенные объекты q>30м>=0,884 кВт/м2;
образование «огненного шара», который будет воздействовать на окружающие объекты тепловым излучением q>30м>=99,266 кВт/м2 и волной избыточного давления ΔР>30м>=21,86 кПа.
В дипломном проекте были разработаны следующие технические решения:
Устройство сбросной трубы (h>тр>=5м), для сброса газа из оборудования до его разгерметизации. При этом обеспечивается возможность прибытия и развертывания передвижной пожарной техники до того как пожар может принять крупные размеры;
Устройство дренчерного орошения резервуара с СУГ, мест расположения функционального оборудования и площадки для АЦ.
При выполнении вышеперечисленных технических решений АГЗС будет соответствовать требованиям норм.
Литература
1. ГОСТ Р 12.3.047-98 Пожарная безопасность технологических процессов. Общие требования. Методы контроля.- М.: 1998.
2. ГОСТ 12.1.004-91. Пожарная безопасность. Общие требования. – М.: Госстандарт России, 1991 г.
3. ГОСТ Р 51043-97 Установки водяного и пенного пожаротушения автоматические. Оросители спринклерные и дренчерные. Общие требования. Методы испытаний.
4. ППБ 01-03 Правила пожарной безопасности в Российской Федерации.- М.: 2003.
5. НПБ 111-98*. Автозаправочные станции. Требования пожарной безопасности. ГУГПС МЧС РФ, 2002 г.
6. НПБ 88-01 Установки пожаротушения и сигнализации. Нормы и правила проектирования.
7. НПБ 105-03 «Определение категорий помещений, зданий и наружных установок по взрывопожарной и пожарной опасности». – М.: ГУГПС МЧС РФ, 2003 г.
8. Пожаровзрывоопасность веществ и материалов и средства их тушения: Сирав изд.: в 2-х книгах / А.Н. Баратов, А.Я. Корольченко, Г.Н. Кравчук и др. –М.: Химия 1990.
9. Нефтеперерабатывающая и нефтехимическая промышленность. Обзорная информация. Серия: Транспорт и хранение нефтепродуктов и углеводородного сырья. Выпуск 3. Взрыво- и пожаробезопасность изотермических резервуаров для сжиженных углеводородных газов. В.П.Сучков, В.П.Молчанов.- М.: ЦНИИТ Энефтехим, 1993.
10. Иванников В.П., Клюс П.П. Справочник руководителя тушения пожара.- М.: Стройиздат, 1987.
11. Боевей устав пожарной охраны (Приложение №2 к приказу МВД России №257 от 05.07.95 года).
12. Наставление по газодымозащитной службе Государственной противопожарной службы МВД России. (Приложение №1 к приказу МВД России №234 от 30.04.96 года).
13. Л.К.Исаева. Экология пожаров, техногенных и природных катастроф.- М.: 2000.
14. Аболенцев Ю.И. Экономика противопожарной защиты. –М., ВИПТШ МВД СССР, 1986.
15. Методические указания к выполнению курсового проекта по дисциплине «Производственная и пожарная автоматика» Часть 2 «Пожарная автоматика».-М.: ВИПТШ МВД РФ, 1992.
16. Автозаправочные станции: Оборудование. Эксплуатация. Безопасность.: В.Г. Коваленко, А.С. Сафонов, А.И. Ушаков, В. Шергалис. – СПб.: НПИКЦ, 2003. – 280 с.