Проектирование станочных приспособлений
Министерство образования и науки Украины
Сумской государственный университет
Технология машиностроения
Обязательное домашнее задание
по дисциплине:
«Проектирование станочных приспособлений»
Выполнил: Куманцев А.О.
№ зачетки 03010058
Студент гр. ТМ-31
Проверил: Кушниров П.В.
Сумы 2007
Содержание
Введение
1.Обоснование необходимости создания приспособления.
2. Уточнение цели технологической операции
2.1 Определение количественных и качественных результатов выполнения операции
2.1.1 Точность размеров
2.1.2 Точность формы
2.1.3 Точность расположения поверхностей
2.1.4 Степень шероховатости обрабатываемых поверхностей
2.2 Выяснение количественных и качественных данных о заготовке, поступающей на операцию
2.2.1 Точность размеров
2.2.2 Точность формы
2.2.3 Точность расположения поверхностей
2.2.4 Степень шероховатости
3. Определение условий, в которых будет изготавливаться и эксплуатироваться проектируемое приспособление
4. Составление перечня реализуемых функций
5.Разработка и обоснование схемы базирования
5.1 Выбор установочной базы
5.2 Выбор двойной опорной базы
6. Построение функциональной структуры и общей компоновки приспособления
7. Разработка и обоснование схемы закрепления
7.1 Анализ структуры полей уравновешивающей сферы
7.2 Расчет сил закрепления и основных параметров приспособления
7.3. Определение силы закрепления
8. Расчет детали на прочность
9. Точностной расчет приспособления
10.Описание устройства и принципа действия приспособления
Список литературы
Приложение А. Чертёж приспособления
Введение
Интенсификация производства в машиностроении неразрывно связана с техническим перевооружением и модернизацией производства на базе применения новейших достижений науки и техники. Техническое перевооружение, подготовка производства новых видов продукции машиностроения и модернизация средств производства неизбежно включают процессы проектирования средств технологического оснащения и их изготовления.
В общем объёме средств технологического оснащения примерно
50 % составляют станочные приспособления. Применение станочных приспособлений позволяет:
1) надежно базировать и закреплять обрабатываемую деталь с сохранением её жесткости в процессе обработки;
2) стабильно обеспечивать высокое качество обрабатываемых деталей при минимальной зависимости качества от квалификации рабочего;
3) повысить производительность и облегчить условия труда рабочего в результате механизации приспособлений;
4) расширить технологические возможности используемого оборудования.
Для эффективного использования станков и станочных приспособлений предъявляется ряд требований.
Для обеспечения высокой точности обработки заготовок приспособления должны быть выполнены с высокой точностью. Погрешности базирования и закрепления должны быть сведены к минимуму. Конструкция приспособления не должна быть наиболее податливым звеном системы станок-приспособление-инструмент - деталь, чтобы использовать полную мощность станка на черновых операциях и обеспечивать высокую точность на чистовых операциях. Приспособление должно обеспечивать хорошую инструментальную доступность, т.е. возможность подхода инструмента к как можно большему количеству поверхностей заготовки. Приспособления должны обеспечивать сокращение времени зажима-разжима заготовки. Для сокращения времени переналадки станков приспособления должны обеспечивать возможность их быстрой смены или переналадки.
Обязательное домашнее задание содержит в себе: пояснительную записку, чертеж общего вида приспособления, спецификацию, чертеж обрабатываемой детали. Документация соответствует стандартам ЕСКД.
1 Обоснование необходимости создания приспособления. Выбор
системы приспособления
Требуется
спроектировать приспособление для
обработки четырех отверстий
под М6 и отверстия
(операция
130).
В настоящее время заготовка обрабатывается на сверлильно-фрезерном-расточном станке с ЧПУ 6904ВМФ2 с использованием прихватов и кондуктора. Применение специализированного приспособления (ПР), позволит снизить трудоемкость обработки на данной операции, уменьшить штучное время, повысить стабильность точностных параметров операции.
2 Уточнение цели технологической операции
2.1 Определение количественных и качественных результатов
выполнения операции
2.1.1 Точность размеров
Точность обработки – это соответствие обработанных поверхностей требованиям чертежа, которые ограничены четырьмя факторами:
соблюдение размерной точности;
соблюдение требований шероховатости поверхности;
соблюдение допусков формы и взаимного расположения поверхностей;
соблюдение требуемой твёрдости поверхностей.
Требуемая точность поверхностей достигается благодаря использованию достаточного количества стадий обработки, грамотному подбору оборудования, режущего инструмента, жёсткому закреплению деталей. По точности все поверхности детали можно условно разделить на три группы: грубые, средней точности и точные.
На
данной операции должны формироваться
четыре отверстия
под М6 и отверстие
.
4
отверстия М6-7Н располагаются под углом
90
,
что не указано на чертеже и на расстоянии
40
мм и 48
мм между собой. Эти размеры и допуски
на них поставлены не верно. Согласно
ГОСТ 25346-82 допуск на линейный размер 40
мм равен 390 мкм, что соответствует 13
квалитету точности. Также согласно ГОСТ
25346-82 допуск на линейный размер 48 мм
равен 160 мкм, что соответствует 11 квалитету
точности.
Шероховатость Ra под эти отверстия 3,2 мкм.
По ГОСТ 25346-82 для отв. М6-7Н Т=12 мкм.
Отверстие
расположено под углом 450
на
расстоянии R=20,5
мм относительно центра поверхности
мм.
На
чертеже указано отклонение
,
что согласно системе предельных
отклонений основных отверстий по ГОСТ
25346-82 в действительности отвечает ІТ
9, где Т=30 мкм.
Допуск на длину отв. М6-7Н на чертеже не указан. Берем его из технических требований по 14 квалитету из ГОСТ 25346-82. Для L=12 мм Т=430 мкм.
Допуск
на длину отв.
на чертеже тоже не указан. Берем его из
технических требований по 14 квалитету
из ГОСТ 25346-82. Для L=8
мм Т=360 мкм.
2.1.2 Точность формы
Поскольку допуск цилиндричности и круглости не оговорен в технических требованиях и на чертеже, то он может быть установлен в пределах допуска на размер по ГОСТ 25346-82:


По ГОСТ 25346-82 имеем Т=8 мкм, что соответствует 7 степени точности.
2.1.3 Точность расположения поверхностей
На
чертеже точность расположения
обрабатываемых отверстий не оговорена,
поэтому рассмотрим перпендикулярность
осей данных отверстий к оси
(база
В).
Для
отверстия
под резьбу М6 имеем длину 12 мм, тогда
Т>┴>=0,6*Т>12>=0,6*8=4,8мкм
По ГОСТ 25346-81, что соответствует 6 степени точности.
Для
отверстия
имеем
длину 8 мм, тогда
Т>┴>=0,6*Т>8>=0,6*16=9,6мкм
По ГОСТ 25346-81, ято соответствует 8 степени точности.
2.1.4 Степень шероховатости обрабатываемых поверхностей
Из чертежа детали видно, что параметры шероховатости отверстия следующие:
М6-7Н- Ra=3,2 мкм.
-
Ra=6,3
мкм
2.2 Выяснение количественных и качественных данных о заготовке, поступающей на операцию
На данную операцию заготовка поступает предварительно обработанными наружными и внутренними цилиндрическими поверхностями. Заготовка вполне жесткая, обрабатываемость ее удовлетворительная. Масса заготовки 1,8 кг. Материал сталь 38ХНЗМФА ГОСТ 4543-71. Имеются достаточно развитые поверхности, принимаемые за базовые, к которым можно отнести сквозное отверстие Ø45Н9(+0,062) и торцы. Уточним точностные параметры поверхностей которые могут быть базовыми.
2.2.1 Точность размеров
Диаметр отверстия Ø45 (+0,062), [ 1 ]. Т>Ø95> = 62 мкм. Длина отверстия меньше диаметра, что говорит о возможности использования его в качестве двойной опрной базы. Торцы Ø62/Ø45 являются развитыми, поэтому их можно использовать в качестве установочной базы.
2.2.2 Точность формы
Поскольку допуск цилиндричности и круглости не оговорен в технических требованиях и на чертеже, то он может быть установлен в пределах допуска на размер по ГОСТ 25346-82:


По ГОСТ 25346-82 имеем Т=8 мкм, что соответствует 7 степени точности.
Отклонение от плоскостности торца также не указывается на чертеже, принимаем его величину в пределах допуска на размер, что соответствует 14-й степени точности.
2.2.3 Точность расположения
На
чертеже точность расположения
обрабатываемых отверстий не оговорена,
поэтому рассмотрим перпендикулярность
осей данных отверстий к оси
(база
В).
Для
отверстия
под резьбу М6 имеем длину 12 мм, тогда
Т>┴>=0,6*Т>12>=0,6*8=4,8мкм
По ГОСТ 25346-81, что соответствует 6 степени точности.
Для
отверстия
имеем
длину 8 мм, тогда
Т>┴>=0,6*Т>8>=0,6*16=9,6мкм
По ГОСТ 25346-81, ято соответствует 8 степени точности.
2.2.4 Степень шероховатости
Из чертежа детали видно, что параметры шероховатости цилиндра и торца следующие: торца – Ra = 6,3 мкм; цилиндра Ra = 1,6 мкм. Это соответствует точностным требованиям к базовым поверхностям. В проектируемом приспособлении планируется обрабатывать заготовки с базовыми поверхностями
3 Определение условий, в которых будет изготавливаться и
эксплуатироваться проектируемое приспособление
Годовая программа выпуска определена в 400 шт. деталей. Такая программа с учетом трудоёмкости предполагает мелкосерийный тип производства. Поскольку такт выпуска детали при двухсменной работе равен 160 мин, то делаем заключение о низкой интенсивности использования приспособления. Заготовка будет обрабатываться на сверлильно-фрезерно-расточном станке с ЧПУ 6904ВМФ2.
Таблица 3.1 - Параметры станка сверлильно-фрезерно-расточного с ЧПУ 6904ВМФ2.
|
Параметр |
Значение |
|
Размеры рабочей поверхности стола, мм |
500х400 |
|
Расстояние от торца шпинделя до рабочей поверхости стола, мм |
65-555 |
|
Наибольшая масса обрабатываемого изделия, кг |
250 |
|
Наибольшее перемищение: 1) стола: - продольное - поперечное |
500 500 |
|
Наибольший диаметр: - сверления в стали - растачивания |
18 125 |
|
Частота вращения шпинделя, об/мин |
32-2000 |
|
Подача: - шпинделя - стола |
2,5-2500 2,5-2500 |
|
Скорость быстрого перемещения, мм/мин - стола - шпиндельной бабки |
5000 5000 |
|
Мощность эллектродвигателя, кВт |
4,5 |
|
Габаритные размеры: - длина - ширина - высота |
2790 2060 2000 |
|
Масса, кг |
5082 |
4.Составление перечня реализуемых функций
Перемещение и предварительная ориентация заготовки.
Базирование заготовки.
Закрепление заготовки.
Базирование приспособления на станке.
Закрепление приспособления на станке.
Подвод и отвод энергоносителя.
Образование исходной силы для закрепления.
Управление энергоносителем.
Замена установочных (зажимных) элементов.
Объединение функциональных узлов (корпус).
Обработка 4 отверстий М6-7Н и ø5Н9.
Поворот и фиксация шпиндельного блока и холостые ходы.
Создание безопасных условий труда.
Исходя из условий реализации этих функций и требований к результатам их реализации, разработчик осуществляет поиск прототипов из накопленного фонда технических решений. Предпочтение следует отдавать апробированным практикой стандартным техническим носителям функций. Разработка новых конструкций функциональных узлов требует специального обоснования.
5 Разработка и обоснование схемы базирования




Рисунок 5.1 – Возможные варианты базирования
5.1 Выбор главной базовой (установочной) поверхности
Из всего комплекса поверхностей, образующих заготовку, на главную базовую поверхность претендует торцевая поверхность ø62/ø45Н9- это левый торец, так как базирование по данному торцу уменьшает допуск на размер, соединяющий технологическую и измерительную базу (этот же торец), а значит и уменьшает погрешность базирования, по сравнению с базированием по другому торцу.
При базировании по данной поверхности погрешность базирования заготовки равна нулю, так как технологическая и измерительная базы совпадают.
Торец является установочной базой и лишает заготовку 3 степеней свободы (см. таблицы 6.1 и 6.2).
Таблица 6.1- Таблица соответствия Таблица 6.2 - Матрица связей
|
Связь |
Степень свободы |
|
|
1, 2, 3 |
III, V, IV |
УБ |
|
4, 5 |
I, II |
ДОБ |
|
6 |
VI |
Вак |
|
X |
Y |
Z |
||
|
L |
1 |
0 |
0 |
УБ |
|
|
0 |
1 |
1 |
|
|
L |
0 |
1 |
1 |
ДОБ |
|
|
0 |
0 |
0 |
|
|
L |
0 |
0 |
0 |
Вакансия |
|
|
0 |
0 |
0 |
|
|
|
1. |
2 |
2 |
5 связей |
5.2 Выбор двойной опорной базы
Функции двойной опорной базы может исполнять только одна поверхность цилиндрическая резьбовая М42х2-6Н, она лишает заготовку 2-х степеней свободы. Это отверстие точно обработано - ІТ 6; шероховатость поверхности -
Ra = 3,2 мкм.
Произведем окончательный анализ структуры связей, построив таблицу односторонних связей.
Таблица 5.1 - Таблица односторонних связей.
|
Индекс связи |
X |
X' |
Y |
Y’ |
Z |
Z’ |
>X> |
’>x> |
>Y> |
>Y>’ |
>Z> |
>Z>’ |
|
Реакция |
R |
R |
R |
R |
R |
R |
R |
R |
R |
Из табл. 5.1 видно, что на заготовку наложено 9 односторонних связей. Две из них Y и Z полные, а остальные неполные.
6 Построение функциональной структуры и общей компоновки приспособления

Рисунок 6.1 - Схема последовательной реализации функций

Рисунок 6.2 - Функциональная структура проектируемого приспособления.
7. Разработка и обоснование схемы закрепления
7.1. Анализ взаимодействия силовых полей с позиций уравновешенности системы: режущий инструмент – заготовка – приспособление - станок

Рисунок 7.1 – Структура поля уравновешивающих сил.
Таблица 7.1 - Таблица односторонних связей
|
Индекс связи |
x |
x |
y |
y |
z |
z |
>x> |
>x> |
>y> |
>y> |
>z> |
>z> |
|
|
Способ реализации |
Реакция |
R |
R |
R |
R |
R |
R |
R |
R |
R |
R |
||
|
Сила закрепления |
W |
||||||||||||
|
Сила трения |
Fтр |
Fтр |
7.2 Расчет сил закрепления и основных параметров приспособления
На
операции производится сверление 4
отверстий
под
М6 и отверстия
Н9
Из всех составляющих сил резания в дальнейших расчетах будут
использоваться только максимальные из них:
Р>0> = 2031 Н - осевая сила при сверлении отверстия в 5 под М6
Р>1>= 1524 Н - осевая сила при сверлении отверстия 5Н9
Коэффициент запаса прочности
Коэффициент запаса для определения силы закрепления:
К=К>о>хК>1>хК>2>хК>3>хК>4>хК>5>хК>6>=1 х 1.15x1 х 1.2x1 х 1=2.07,
где К>0> = 1.5 - коэффициент гарантированного запаса [2,с.85]
К>1> = 1 - коэффициент, учитывающий увеличение сил резания из-за случайных неровностей на обрабатываемых поверхностях по [2,с.85]
К>2> = 1.15 - коэффициент, учитывающий увеличение сил резания вследствие
затупления режущ его инструмента [2,с.84:табл.9]
К>3> = 1 - коэффициент, учитывающий увеличение сил резания при прерывистом резании [2,с.85]
К>4> = 1.2 - коэффициент, характеризующий постоянство силы закрепления [2,с.85]
К>5 >= 1 - коэффициент, характеризующий эргономику зажимных механизмов
[2,с.85]
К>6> = 1 - коэффициент, учитывающий тип постоянной опоры по [2, с. 85]
Принимаем коэффициент запаса К=2.5 [2,с.85].
7.3 Определение силы закрепления
Схема действия на заготовку сил представлена на рисунке 7,1. Силу закрепления определяем из условия непроворота, несдвига, неотрыва и неопрокидывания.
Условие непроворота. Момент от силы резания Р>0>:
М>1> = Р>0> х А = 2031 х 26 = 52806 Н мм
где А = 62/2 - 5 = 26 мм
Условие непроворота представлено для максимального момента М>1>:
М1 х К=f х W х С
Откуда сила закрепления:
Н
где К = 2.5 - коэффициент запаса
f= 0.15 - коэффициент трения по [15,с.98:табл.21]
С = (62/2 + 45/2) / 2 = 26,75 мм - радиус установки опор
Условие несдвига представлено для силы Р>0>:
Р>0>хК=f х W
Откуда сила закрепления:
Н
Условие неотрыва представлено также для силы Р>0>:
Р>0> х К=W
Откуда сила закрепления:
W=P>0>K=20312.5=5077,5 H
Условие неопрокидывания
Момент от силы резания Р>0>:
Мз=Р>1>(А - С)= 2031 (62 - 45)= 34527 Н-мм
Момент от силы резания Р>1>:
М>1>= Р>1> (Д - С)= 1524 (50- 32) = 27432 Н-мм
где Д= 50 мм - радиус расположения оси отверстия 5.
Условие неопрокидывания представлено для максимального момента Мз:
М3 х К=f x W x C
Откуда сила закрепления:
Н
Сила закрепления - максимальная из определенных выше W = 33850Н
В качестве привода станочного приспособления выбираем мембранную пневмокамеру одностороннего действия с резиновой мембраной
8 Расчет детали на прочность
Рассчитываю на прочность деталь шток, на которую одета прижимная шайба.Диаметр штока 16мм. Для того чтобы проверить выдержит ли шток растягивающую нагрузку, произведем расчет штока на растяжение. Материал штока - Сталь 45, предел прочности [] = 16 кН/см 2.

Рисунок 7.3 – Шток приспособления

Рассчитываю на прочность при растяжении резьбу M16 на штоке приспособления. Материал штока – Сталь 45.
Для того, чтобы при работе резьбу на штоке не сорвало, необходимо выполнение условия:
>р> []>р> (8.1)
Предел текучести для Стали 45 равен >т>=300 МПа [2].
[]>р>=0,6>т> (8.2)
[]>р>=0,6300 = 180 (МПа).
Опасным является сечение, ослабленное нарезкой.
Расчетный диаметр резьбы определяется по формуле:
d>р>=d – 0,94p
где: d – внешний диаметр резьбы, мм;
p – шаг резьбы, мм.
d>р>=16 – 0,942 = 14,12 (мм).
(8.3)
где: F–максимальная осевая сила, действующая на растягивание штока,Н.

МПа
Условие (8.1) выполняется (29,62 < 180), следовательно, резьба на штоке выдержит нагрузку.
9 Точностной расчет приспособления
С информационной точки зрения расчеты допусков на изготовление элементов приспособления представляют собой преобразование информации о точности обработки поверхностей детали на данной операции в точностные требования к приспособлению.
Прежде чем приступить к расчету точности, определим расчетные параметры, которые в большей мере влияют на достижение заданных допусков обрабатываемой детали. При обработке заданной детали на операции координатно – расточной к расчетным параметрам следует отнести допуск на диаметр наружной поверхности ø45Н9:Т>ø45> = 62 мкм.
Определим допустимую погрешность изготовления на параллельность установочной поверхности плиты:
,
где, Т - допуск на диаметр отверстия, Т >ø5> = 30 мкм (см. п. 2.1);
К>Т> - коэффициент, учитывающий возможное отступление от нормального распределения отдельных составляющих, принимаем К>Т>=1,5;
К>Т1> - коэффициент, принимаемый во внимание, когда погрешность базирования равна не нулю;
Е>Б> - погрешность базирования заготовки, Е>Б>=0 мкм (см. п. 5.2);
Е>З> - погрешность закрепления заготовки, т.к. привод механизированный и погрешность закрепления будет постоянной, то учитываем ее один раз при настройке станка, принимаем Е>З>=0;
Е>У> - погрешность установки приспособления на станке. Данная погрешность равна максимальному зазору H8/g9 между шпонкой и корпусом приспособления: Е>У>= S>max>= 105 мкм;
Е>П> - погрешность перекоса инструмента, Е>П>=0;
Е>И> - погрешность, возникающая вследствие износа установочных элементов; (принимаем Е>и> = 0);
К>Т2> - коэффициент, учитывающий вероятность появления погрешности обработки, принимаем К>Т2>=0,6;
- средняя экономическая точность обработки, по [2, с.151, таблица 7.1] при обработке отверстия экономическая достижимая точность - 9 квалитет, т.е. =62 мкм;
Е>ПОЗ> - погрешность позиционирования станка, по [3, с.7] Е>ПОЗ>=0 мкм.
При оговоренных условиях:
мкм.
С учетом полученных данных принимаем допуск параллельности Е>ПР>=100 мкм по [6, с.451, таблица 5] это соответствует 9 степени точности.
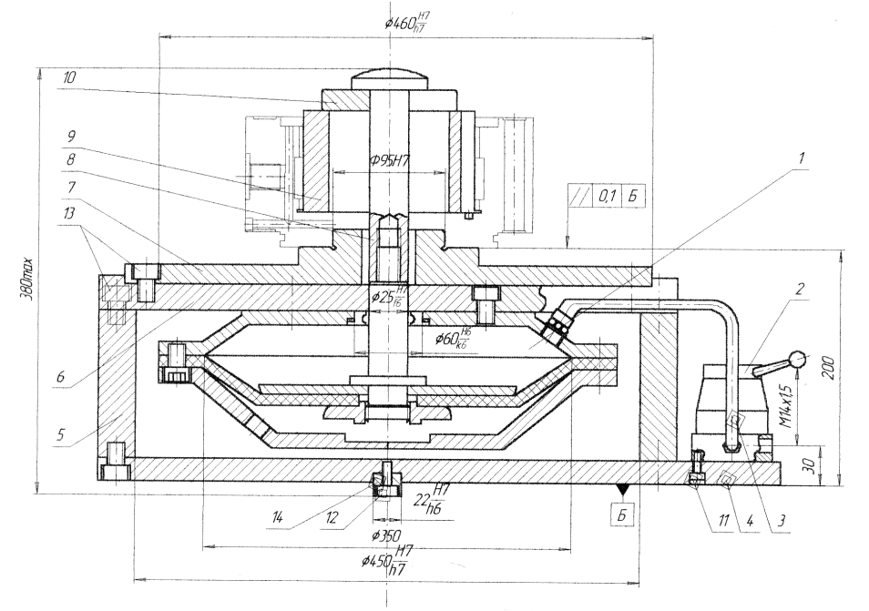
10 Описание устройства и принципа действия приспособления
Эксплуатация приспособления
Установить и закрепить приспособление на столе станке, установка происходит с помощью шпонки.
Подготовить базовые поверхности к установке заготовки.
Установить заготовку поворотом рукоятки распределительного крана 2 произвести закрепление заготовки с помощью прижимной гайки 8.
Обработать заготовку (просверлить отверстия 5 мм)
Поворотом рукоятки распределительного крана 2 в обратную сторону открепить заготовку.
Подготовить базовые поверхности приспособления к установке следующей заготовки.
В процессе эксплуатации приспособления выполнять пункты 1 - 7 технических требований. Приспособление хранить на деревянном основании. Воздействие атмосферных осадков и агрессивных сред недопустимо.
Список литературы
Справочник контролера машиностроительного завода. Допуски посадки, линейные измерения/ Под ред. А.И. Якушева – 3-е изд., перераб. И доп. – Машиностроение 1980. – 52 с.
Гжиров Р. И. Краткий справочник конструктора: Справочник – Л: Машиностроение, Ленингр. отд-ние, 1984. – 464 с., ил.
Справочник технолога машиностроителя. В 2-х т. Т. 2/ под ред. А. Г. Косиловой и Р. К. Мещерякова. – 4-е изд., перераб. и доп. – М.: Машиностроение, 1986. 496 с., ил.
Белоусов А. Л. Проектирование станочных приспособлений: Учебное пособие для учащихся техникумов. - 3-е изд., перераб. и доп. - М.: Высшая школа, 1980. - 240 с., ил.
Методические указания к выполнению контрольной работы по проектированию станочных приспособлений для студентов специальностей: 7.090202, 7.090203, 7.090204 для всех форм обучения / сост. Г.С.Чумаков, отв. за выпуск А.У. Захаркин Сумы 1997 г. – с. 34.
Горбацевич А. Ф., Шкред В. А. Курсовое проектирование по технологии машиностроения: [Учеб. пособие для машиностроит. спец. вузов]. – 4-е изд., перераб. и доп. – мн.: Выш. школа, 1983. – 256 с., ил.
6. Справочник технолога - машиностроителя. В 2-х т. Т. 1 / Под ред. А. Г. Косиловой и Р. К. Мещерякова. - 4-е изд., перераб. и доп. - М.: Машиностроение, 1986. - 496 с., ил.
7. Горошкин А.К., Приспособления для металлорежущих станков, справочник - 7 изд., перераб. и дополн. - М.: Машиностроение, 1979г.