Разработка проектно-конструкторской документации для изготовления женского жакета по образцам моделей
ФЕДЕРАЛЬНОЕ АГЕНСТВО ПО ОБРАЗОВАНИЮ
ВЛАДИВОСТОКСКИЙ ГОСУДАРСТВЕННЫЙ УНИВЕРСИТЕТ
ЭКОНОМИКИ И СЕРВИСА
ИНСТИТУТ СЕРВИСА, МОДЫ И ДИЗАЙНА
КАФЕДРА СЕРВИСА И МОДЫ
Лабораторная работа №1
Разработка проектно-конструкторской документации для изготовления женского жакета по образцам моделей
Студент
Гр КШ-05-01 ________Е. Г. Курбышева
Руководитель __________Т.П. Олейник
Владивосток, 2008
Конструкции изделия и разработки основных лекал
Линии сопрягаемых срезов должны плавно переходить от одной детали к другой в месте их соединения. При проверке сопряженности срезов шаблоны смежных деталей укладывают на плоскости, совмещая одноименные срезы на 3-8 см от проверяемой линии.
Характеристика лекал
Чертежи лекал деталей являются техническим документом, который определяет конструкцию, форму и размер деталей, технические условия на их обработку и раскрой. При разработке чертежей лекал деталей одежды необходимо учитывать факторы, которые определяют точность и надежность конструкции. К таким факторам относят:
Свойства материала;
Конфигурация и размещение линий членения изделия;
Методы обработки;
Оборудование.
1.5 Виды лекал
В зависимости от назначения различают лекала-оригиналы(или это может быть чертеж конструкции), лекала-эталоны, и рабочие лекала.
Лекала-оригиналы полностью соответствуют подлинному образцу модели изделия базисного размера.
Рабочий комплект лекал деталей может быть представлен рабочими чертежами или эталонами (в зависимости от мощности предприятия). Рабочий чертеж лекала это основной технический документ, в условиях производства по рабочим чертежам изготавливают два вида лекал:
Лекала-эталоны получают по лекалам-оригиналам путем градации их на все размеры и роста, рекомендованные в данной полнотно-возрастной группе. Они предназначены для изготовления образцов-эталонов швейных изделий и для проверки точности и качества рабочих лекал. Их выполняют из плотной бумаги.
Рабочие лекала изготавливают по лекалам-эталонам. Они предназначены для выполнения обмеловки, вырезки и проверки кроя, изготавливают из плотного картона.
Последовательность выполнения рабочих чертежей лекал
Для построения рабочих чертежей лекал каждую деталь в отдельности со всеми ее внутренними линиями и надсечками копируют с технического чертежа конструкции. Вокруг контура скопированных деталей, по перпендикуляру к линии контура, откладывают принятые технологические припуски, получая точки линий срезов деталей (внешних контуров лекал). Монтажные знаки переносят с линии шва на срез по нормали к линии шва.
После оформления первоочередных срезов проверяют сопрягаемость срезов второй очереди (горловины, проймы, низа изделия, низа и оката рукава и др.). для этого лекала смежных деталей складывают таким образом, что бы в области необходимого сопряжения совмещались линии стачивания одноименных срезов и точки ближайших монтажных знаков на этих линиях. Если в конфигурации срезов в области стыковки сложных лекал обнаруживается нежелательная угловатость, контуры сопрягаемых срезов уточняют с использованием лекальных кривых.
Концы срезов (углы лекал) деталей изделий на подкладке и без подкладки оформляют по-разному. Требования к изготовлению лекал без подкладки таковы, что ни одного миллиметра открытого среза в готовом изделии не должно оставаться не обметанным. Углы лекал оформляют с учетом положения срезов деталей в готовом изделии относительно линий соединяющих их швов, при этом часто получаются не удобные для раскроя контуры деталей, но требования к качеству швов не позволяют срезать нетехнологические выступы.
Завершается оформление лекал-эталонов нанесением на каждую деталь маркировочных данных: наименование изделия, номер детали, размер, наименование детали, количество деталей кроя, материал, фамилия конструктора, подпись, дата изготовления. На одной из основных деталей проводится спецификация всех деталей, выкраиваемых из основной ткани, с указанием количества лекал и количества деталей в крое. Для моделей с ассиметричным решением деталей лекало левой и правой сторон изделия строят отдельно. На лекалах указывают лицевую или изнаночную сторону, на деталях клеевых прокладок – клеящую сторону.
Градация лекал
Разработка новой модели одежды для промышленного изготовления ведется на базовый размер и рост в рекомендуемой для модели размерной и полнотной группе. Лекала деталей модели для остальных размеров и ростов получают техническим способом градации. Градацией лекал называют процесс построения лекал, подобных исходным. Сущность процесса градации заключается в увеличении или уменьшении линейных размеров исходных лекал по определенным правилам. Градация значительно ускоряет и упрощает процесс разработки лекал других размеров и ростов. Конструкцию одежды стабильного ассортимента допускается градировать также по полнотам. Построение чертежа градации вручную производят отдельно по размерам и ростам.
Градацию по размерам, как более сложную, выполняют в первую очередь, затем каждый полученный размер градируют по ростам.
Условно все способы градации лекал можно разделить на три группы: группировки, лучевой, пропорционально-расчетный.
Способ группировки относится к наиболее обоснованным. Он позволяет получить наиболее точные лекала по смежным размерам. Для каждой модели разрабатывают конструкции и лекала на два размера одного и того же роста: на базовый и больший или меньший в данной размеро-полнотной группе. Затем лекала двух размеров каждой детали совмещают по оси градации. Одноименные точки лекал соединяют между собой отрезками прямых. Эти отрезки делят на равные доли в соответствии с количеством промежуточных размеров. Зная величины и направления приращений в каждой конструктивной точке при переходе от базисного размера к большему, сохраняют их неизменными и получают положение этих точек для всех меньших размеров.
Лучевой способ используют для таких деталей, в которых оси градации совпадают с условными осями симметрии, в том случае, когда перемещение конструктивных точек происходит в радиальном направлении. При этом способе в детали из центра осей градации через все конструктивные точки проводят лучи-радиусы, на которых откладывают межразмерные приращения. Величины этих приращений определяют опытным путем, например способом группировки.
Пропорционально-расчетный способ градации лекал. Для каждой конструктивной точки в лекале определяют горизонтальное и вертикальное приращения. Величины этих приращений рассчитывают в зависимости от величин исходных горизонтальных и вертикальных приращений и расположения конструктивной точки относительно осей градации. Величины исходных горизонтальных и вертикальных приращений определяют в зависимости от межразмерных приращений соответствующих размерных признаков.
Экспериментальная часть
2.1 Технологические припуски
Технологические припуски по срезам рассчитываются в табличной форме, при изготовлении изделий по образцам и мелкими партиями. При составлении таблицы технологических припусков, необходимой для раскроя изделий по лекалам базовых конструкций, таблицу дополняют графой ПРИПУСК НА ПОДГОНКУ, но в данной работе это не требуется.
Таблица 1. Технологические припуски на швы.
|
Наименование детали |
Наименование шва |
Технологическая схема |
Технологический припуск |
|||||
|
На толщину ткани |
На шов |
На обрезку |
Общая величина |
|||||
|
В сгибе |
В шве |
На кант |
На ширину шва |
|||||
|
1 |
2 |
3 |
4 |
5 |
6 |
7 |
8 |
9 |
|
Спинка |
Средний Плечевой Боковой Проймы Срез низа Горловины Срез бочка |
- - - - - - - |
- - - - - - - |
- - - - - - - |
1,5 1,5 1,5 1,0 4,0 0,8 1,5 |
- - - - 2,0 - - |
1,5 1,5 1,5 1,0 6,0 0,8 1,5 |
|
|
Перед |
Плечевой Боковой Проймы Низа Горловинадо т. уступа лацкана Бочок Срез борта до т. перегиба Срез борта ниже т. перегиба |
- - - - - - 0,3 - |
- - - - - - 0,3 0,3 |
- - - - - - - 0,3 |
1,5 1,5 1,0 4,0 0,8 1,5 0,7 0,7 |
- - - 2,0 1,0 - 1,0 1,0 |
1,5 1,5 1,0 6,0 1,8 1,5 2,3 2,3 |
|
|
Рукав |
Верхняя половинка Локтевой Передний Низа Оката Нижняя половинка Локтевой Передний Низа Оката |
- - - - - - - - |
- - - - - - - - |
- - - - - - - - |
1,5 1,0 4,0 1,0 1,5 1,0 4,0 1,0 |
- - 2,0 - - - 2,0 - |
1,5 1,0 6,0 1,0 1,5 1,0 6,0 1,0 |

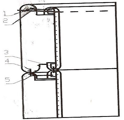
а б
Схема технологической обработки борта женского жакета:
а) на участке 1-ой бортовой петли; б) на участке ниже 1-ой бортовой петли

Структурная схема обработки воротника и соединение его с горловиной
2.2 Направление нитей основы на деталях
Направление нити основы на деталях одежды и допускаемые отклонения (в %) определяются в соответствии с техническими условиями на раскрой детали. В отдельных случаях, например, если используется косой крой, направление нитей основы на деталях устанавливают по модели. Для изделий в клетку и полоску на деталях втачного рукава нити основы целесообразно наносить так, чтобы в готовом изделии они располагались отвесно.
Таблица 2. Долевое направление нитей в деталях кроя и допускаемые отклонения от долевого направления
|
Наименование детали кроя |
Долевое направление нитей тканей в деталях кроя |
Допускаемое отклонение от долевого направления в тканях, % |
|
1 |
2 |
3 |
|
Перед |
Параллельно линии полузаноса от линии талии до линии низа (ниже верхней бортовой петли). На кокетке совпадает с направлением на переде. |
0-1 |
|
Спинка |
Параллельно среднему срезу спинки от линии талии до линии низа. |
0,5-2 |
|
Бочок |
Вдоль детали, совпадает с направлением на переде. |
0-1 |
|
Нижняя и верхняя половинки рукава |
Параллельно прямой линии, соединяющей концы переднего среза. |
3-6 |
|
Нижний воротник |
Параллельно линии раскепа |
0-1 |
2.3 Положение контрольных знаков
Монтажные надсечки наносятся на лекала деталей перпендикулярно срезам для правильного соединения деталей друг с другом. Обычно на срезах длиной более 40-50 см ставят не менее двух надсечек на расстоянии примерно 10 от конца срезов. На окате рукава и проймы наносится не менее четырех надсечек. Обязательны надсечки в точках пересечения линий швов со смежными деталями, например, на окате рукава для плечевого шва, на пройме для вершины локтевого шва рукава, на срезе стойки воротника для средней линии спинки и плечевого шва и т.п.
Дополнительно ставят надсечки для карманов, втачивания отдельных деталей и обозначения припусков на подгиб. Если две надсечки оказываются радом (одна для отделочной детали, другая из числа обязательных), оставляют надсечку для отделочной детали.
Таблица 3. Контрольные соединительные знаки.
|
Наименование детали |
Наименование среза |
Положение контрольного знака |
|
1 |
2 |
3 |
|
Перед |
Боковой Передний Срез проймы |
На уровне груди, талии, бедер, на расстоянии 8 см от нижнего среза. На уровне линии груди, талии, бедер. Соответствие точке П6. |
|
Спинка |
Срез проймы Боковой |
Соответствие точке П3. На уровне талии, бедер, 8 см от низа. |
|
Бочок |
Боковой Передний |
На уровне талии, бедер, на расстоянии 8 см от низа. |
|
Рукав, верхняя и нижняя половинки |
Локтевой Передний Срез оката |
На уровне высоты оката рукава и на 16 см выше линии низа На уровне 6-8 см от линии глубины оката, на уровне 6-8 см от среза низа Высшая точка оката рукава, соответствие точкам П3 и П6 с чертежа переда и спинки. |
|
Нижний воротник |
Срез втачивания в горловину |
Соответствие вершине горловины спинки. |
ТЕХНИЧЕСКОЕ ОПИСАНИЕ на образец-модель для изготовления одежды по индивидуальным заказам по образцам
Жакет женский
Рекомендуемые размеры:
Рост 164-176
Обхват груди 84-92
Полнотная группа – вторая
Описание базовой конструкции
Жакет женский малообъемной формы по силуэту приближен к полуприлегающей трапеции. Участок прилегания значительно завышен (на 11.0 см), объем по груди уменьшен, в то время как по бедрам он слегка увеличен. Линия плеча прямая, сокращенная на 2,0 см. Рукава втачные, спрямленные по форме, широкие, двухшовные. Головка рукава несколько увеличена в объеме. Низ рукава оформлен шлицей.
Застежка центральная, потайная на две петли и пуговицы.
Воротник отложной умеренной ширины, лацканы удлиненные, с высоким раскепом.
Спецификация деталей
|
Наименование деталей |
Количество деталей в комплекте лекал |
|
1 |
2 |
|
Спинка |
1 |
|
Перед |
1 |
|
Верхняя половинка рукава |
1 |
|
Нижняя половинка рукава |
1 |
|
Бочок |
1 |
|
Нижний воротник |
1 |
Расчеты основных участков конструкции
|
Наименование основного участка |
Расчетная формула |
|
1 |
2 |
|
Длина спинки от высшей точки плечевого среза и горловины до линии талии |
Дтс2+Пдтс=43,9+1=44,9 см |
|
Глубина проймы от высшей точки плечевого среза и горловины до уровня глубины проймы |
Впрз2+Пспр=21,4+3,5=24,9 см |
|
Расстояние от середины спинки на линии талии до конца плечевой линии |
Впк2+Пвпк=43,5+3=46,5 см |
|
Длина переда от высшей точки плечевого среза и горловины до линии талии |
Дтп2+Пдтп=44,2+2,3=46,5 см |
|
Ширина изделия под проймой от середины спинки до линии полузаноса переда |
Сг3+Пг=44,0+5,5=49,5 см |
|
Длина плечевого среза |
Шп=13,3 см |
|
Ширина рукава под проймой |
Оп+Поп=27,3+8,0=35,3 см |
Заключение
Любой проект проходит качественную предпроектную подготовку. Создание данного проекта прошло в несколько этапов – определение исходных данных, выполнение сопрягаемости срезов деталей, разработка рабочих чертежей лекал основных и производных деталей изделия, градация лекал по размерам и ростам, составление технического описания.
На первом этапе был проведен выбор исходных данных для проектирования, назначение и наименование проектируемого изделия. Были изучены модные тенденции по трендам: цвета, ассортимента, конструкции, материалов, аксессуаров и декора. Выполнена сопрягаемость срезов чертежей конструкции с последующим уточнением длины и конфигурации срезов.
На втором этапе разработаны рабочие чертежи лекал основных и производных деталей изделия, с указанием направления нитей основы, контрольными знаками и расчетами основных участков конструкции.
На третьем этапе выполнения проектно-конструкторской работы выполнена градация по размерам и ростам
На четвертом этапе составлено техническое описание
Конечный итог проекта представляет собой проектно-конструкторскую документацию на изготовление женского жакета по образцам моделей.
Список литературы
1. Тенденции моды 2008г., изд – во Институт индустрии моды, М
2. Силаева М.А. Пошив изделий по индивидуальным заказам. – Учеб. проф. обр. – 2 – е изд., стереотипное. – М. Изд. Центр «Академия», 2003. – 527 с.
3. Олейник Т.П., Гусева М.А., Данилова О.Н. Разработка лекал для изготовления одежды по заказам: Учеб. пособие. – Владивосток: Изд-во ВГУЭС, 2002. – 56с.
4. Мартынова А.И., Андреева Е.Г. Конструктивное моделирование одежды. – М.: Московская государственная академия легкой промышленности, 1999.
5. Олейник Т. П. Основы конструкторско-технологической подготовки производства : Конспект лекций. – Владивосток: Изд-во ВГУЭС, 2003. – 92с.