Розрахунок і проектування зубчато-пасового приводу
Міністерство освіти та науки України
Національний Технічний Університет “ХПІ”
Кафедра деталей машин і прикладної механіки
КУРСОВА РОБОТА
“Розрахунок і проектування
зубчато-пасового приводу”
Виконав: ст. групи
Перевірив:
Харків, 2006
1. Вибір електродвигуна
Вихідні дані:
= 4,5 кВт;
=
175 об/хв;
= 2,25.
1.1 Визначення загального ККД привода:
=
=
0,96
0,98
0,992
= 0,92;
де m – число пар підшипників.
1.2 Визначення необхідної потужності ЕД.:
=
(кВт).
1.3 Визначення частоти обертання двигуна в першому наближенні:
=
11
11
= 1925 (об/мин).
Використовуючи таблицю 2 [1], вибираємо електродвигун 4А100S4У3;
= 5,5 кВт;
= 1445 об/мин;
1.4 Розбиваємо загальне передатне відношення між передачами:
=
=
= 8,26;
=
;
=
2…4;
=2…5;
Приймаю
=
4,13 тоді:
=
=
=
2,0
1.5 Заповнюю таблицю 1:
Таблиця 1
|
№ |
Параметр |
Розмірність |
Вал ЕД |
Вхідний вал I |
Вихідний вал II |
|
1 |
N |
кВт |
4,9 |
4,65 |
4,5 |
|
2 |
n |
об/мин |
1445 |
722,5 |
175 |
|
3 |
T |
Hм |
32,4 |
61,46 |
245,6 |
|
4 |
D>min> |
мм |
32 |
30 |
45 |
=
=
=
;
=
=
0,96
0,99
4,9= 4,65 (кВт);
=
;
=
=
=
722,5; T = 9550
;
= 9550
= 32,4 (Hм);
=
9550
= 61,46 (Hм);
= 9550
=245,6 (Hм).
d
;
k = 5,7 ;d = 5,7
= 18,1 (мм);
d >I>
= 5,88
= 23 (мм); d >II>
= 5,88
= 36 (мм).
2. Розрахунок пасової передачі
Вихідні дані (із таблиці 1):N>1> = 4,9 кВт;
n>1> = 1445 об/мин;
U>p> = 2,0;
T>1>= 32,4 Hм.
2.1 По таблиці 2.12[1] вибираю перетин паса, використовуючи передостанній стовпець T>5>, так щоб значення Т>1> було більше. Виходячи з цього, вибираю нормальний тип паса – А;
b>p> = 11 мм; y>0> = 2,8 мм; h = 8 мм; d>pmin> = 90 мм; b>0> = 13 мм;q = 0,10 кг/м.
2.2 З метою підвищення довговічності приймаю мінімальний розрахунковий діаметр шківа не 90 мм, а наступне за ним стандартне значення, тобто: d>p1> = 100 мм.
2.3 Обчислюю розрахунковий діаметр відомого шківа:
d>p2> = d>p1> U>p>(1 – s ),де s = 0,02; d>p2> = 100 2,0(1-0,02) = 196 мм;
з таблиці 2,21 [1] вибираю найближче стандартне значення, тобто d>p2> = 200 мм.
2.4 Обчислюю колову швидкість паса:
7,56
(м/с).
2.5 Обчислюю міжосьову відстань пасової передачі в першому наближенні:

2.6 Визначаю розрахункову довжину паса в першому наближенні
Стандартна
довжина паса в першому наближенні: L>1
ст >=1000 мм
2.7 Визначаю довжину паса в другому наближенні з умови числа пробігів, що допускається:
Умова
довговічності не виконується
Приймаємо довжину паса з умов довговічності:
1,5
м Приймаємо стандартну довжину паса:
L>2ст>
= 1600 мм
2.8 Обчислюю міжосьову відстань, що відповідає другому стандартному значенню

(мм)
2.9 Визначаю мінімальну й максимальну міжосьові відстані, що відповідають вимогамексплуатації.
2.10 Обчислюю кут обхвату на ведучому шківі
>1 >=
180
–
60
180
–
60
>[>1>]
= 110
2.11 Визначаю еталонну довжину ременя, стор. 28 табл 2.15 [1]
L=1600 мм

2.12 По табл. 2.19 [1] визначаємо коефіцієнт C>L> методом інтерполяції.
C>L>=0,977
2.13 Вихідна потужність при d>p1> =100 мм та V>T> =7,5 м/с дорівнює (по табл. 2.15)
N>0 >= 1,275 кВт –методом інтерполяції
2.14 Коефіцієнт кута обхвату С>> визначаю по таблиці 2.18 [1] С>>> >= 0,97
2.15 Виправлення до обертального моменту на передатне відношення, табл. 2.20 [1]
T>u >= 1,1(Hм)
2.16 Виправлення до потужності: N>u >= 0,0001T>u >n>ед >= 0,00011,11445 = 0,16 кВт
2.17 Коефіцієнт режиму роботи (по табл. 2.8): C>p>=0,73
2.18 Визначаю допуск. потужність на один пас:
[N] = (N>0>C>L>C>>+N>u>)C>p >= (1,2750,9970,97+0,16)0,73 = 1,005 кВт
2.19 Визначаю
число пасів:

2.20 Коефіцієнт числа ременів стор.28 [1]: C>Z>=0,95
2.21 Дійсне число
пасів у передачі дорівнює:
приймаю
Z' = 5
2.22 Визначаю силу початкового натягу одного клинового паса по формулі:

2.23 Визначаю зусилля, що діє на вали передачі по формулі:

2.24 Розміри ободів шківів визначаю з таблиці 2.21
L>p>=11 мм; h=8,7 мм; b=3,3 мм;
e=150,3
мм; f=10
мм;>1>=34о
r=1,0 мм; h>lmin>=6 мм;>2>=38о
2.25 Зовнішні діаметри шківів визначаю по формулах:
(мм)
(мм)
2.26 Ширину обода шківів визначаю по формулі:
(мм)
3. Розрахунок зубчастої передачі
3.1. Вибір матеріалу й розрахунок допустимих напружень.
3.1.1 По таблиці 3.12[1] вибираємо характеристики матеріалу. Твердість колеса повинна бути на 30 – 40 одиниць НВ менше твердості шестірні.
|
№ |
Параметри |
Шестерня |
Колесо |
|
1 |
Марка стали |
Сталь 40Х |
Сталь 45 |
|
2 |
Твердість сердцевини |
245НВ |
200HB |
|
3 |
Твердість поверхні |
58HRC |
50HRC |
|
4 |
Термообробка |
Загартовування ТВЧ |
Нормализація |
|
5 |
> |
800 Мпа |
450 МПа |
|
6 |
> |
1000 МПА |
750 МПа |
3.1.2. Визначаю допустимі напруження згину для шестірні
=343
МПа
=600
МПа -межа витривалості (відповідає
базової кількості циклів навантаження)
-
Коефіцієнт безпеки
-
Коефіцієнт, що враховує засіб здобуття
заготовки
-
Коефіцієнт, що враховує обробку перехідної
кривої
-
Коефіцієнт, чутливості метала до
концентраторів напружень
=1,0
– Коефіцієнт, що враховує характер
прикладення навантаження у випадку
відсутності реверса
=1,0
- Коефіцієнт довговічності
3.1.3. Визначаю допустимі напруження згину для колеса.
=206
МПа

3.1.4. Визначаю допустимі напруження згину на шестірні, що діє при максимальних зусиллях.
МПа

3.1.5. Визначаю допустимі навантаження на колесо при дії максимального зусилля:
МПа
=
2500 МПа
3.1.6. Визначаю допустимі контактні навантаження для шестірні:
=945
МПа
=18HRC+150
- межа контактної витривалості
- коефіцієнт
довговічності
- коефіцієнт
безпеки
- коефіцієнт,
що враховує шороховатість поверхні
- коефіцієнт,
що враховує колову швидкість
3.1.7. Визначаю допустимі контактні навантаження для колеса:
=372
МПа

S>H3>=1.2; Z>R>=0.95;
K>HL2>=1.0; Z>v>=1.0;
3.1.8. Допустимі контактні навантаження


3.2 Проектний розрахунок зубчатої передачі.
3.2.1 Вихідні дані з таблиці №1 стовпець «Вхідний вал І»
N>1>
= 4,65 кВт n>1>
= 722,5
об/хв. T>1>
= 61,46 Hм
=
4,13
3.2.2
– коефіцієнт розподілу навантаження
між зубами.
3.2.3 Визначаю орієнтовно колову швидкість:
м/с
3.2.4 Приймаю коефіцієнт ширини вінця

3.2.5 Коефіцієнт розподілу навантаження по ширині вінця, береться по малюнку 3.14 [1]

3.2.6
–
коефіцієнт динамічності, визначається
по таблиці 3.16 методом
інтерполяції
3.2.7 Z>M>=275 МПа1/2 – коефіцієнт, що враховує механічні властивості матеріалу:
3.2.8 Z>H>=1,76cos
=1,76
– коефіцієнт, який враховує форму коліс,
що сполучаються.
3.2.9 Приймаємо кількість зубців першої шестерні Z>1>=21, тоді
Z>2>=Z>1>U>З>=86,73 приймаємо Z>2>=87
3.2.10
- коефіцієнт, що враховує сумарну довжину
контактних ліній
3.2.11 Визначаю наближене значення коефіцієнта торцевого перекриття

3.2.12 Підставляю отримані значення у вихідну формулу і визначаю мінімальний діаметр початкового кола шестірні:

3.2.11. Визначаю модуль зачеплення в першому наближенні:



Отриманий результат округляю у більшу сторону до найближчого стандартного значення по табл. 9, отже m=1.5
3.2.12
мм


Визначаю ширину вінця
b = >bd>> > d>1 >= 40.32мм
У результаті проведення проектувального розрахунку одержуємо:
Z>1 >= 21 m = 1.5 Z>2> = 87b>W >= 40.32 мм
3.3. Геометричний розрахунок зубчастої передачі.
3.3.1 Визначаю ділильний кут профілю в торцевому перетині:

3.3.2 Визначаю кут зачепленню передачі:
,
Приймаю X>1>
= X>2>
=0 , тобто корекція зубцюватої пари
відсутня

3.3.3 Визначаю міжосьову відстань:

мм
3.3.4 Обчислюю діаметри ділильного кола шестірні й колеса:
мм
мм
3.3.5 Обчислюємо діаметри вершин зубів шестірні й колеса
мм
мм
3.3.6 Обчислюю колові діаметри западин


3.3.7 Обчислюємо діаметри основних кіл шестірні й колеса
мм
мм
3.3.8. Кут профілю зуба в крапках на колах вершин:


3.3.9 Обчислюємо складові коефіцієнта торцевого перекриття:


3.3.10 Визначаю
коефіцієнт торцевого перекриття

3.3.11 Осьовий
крок перекриття дорівнює

3.3.12 Визначаю
коефіцієнт осьового перекриття

3.3.13 Сумарний
коефіцієнт перекриття

3.3.14 Еквівалентні числа зубів передачі


3.3.15 Визначаю
колову швидкість передачі V
=
м/с
3.4. Перевірочний розрахунок зубчастої передачі
3.4.1. Перевірочний розрахунок зубчастої передачі на контактну витривалість
В основу розрахунку покладена залежність:
МПа
деZ>M
>= 275 МПа1/2
Z>H
>= 1,76


МПа
>[
],
але перевищення не більше за 10%.
Умова не виконується.!!!!
3.4.2 Перевірка циліндричної зубцюватої пари на витривалість при вигині.
В основу розрахунку покладена залежність:

деК>A >=1.0 - коефіцієнт режиму роботи
–
коефіцієнт
розподілу навантаження між зубами при
вигині
- коефіцієнт
розподілу навантаження по ширині вінця
при
вигині. Визначається по мал. 3.14(д), стор. 73 для шостої схеми в
залежності
від
–
коефіцієнт
залежності при згині по табл. 3.16
– коефіцієнт
форми зуба
– коефіцієнт
форми зуба
–
коефіцієнт, що
враховує нахил зубів
коефіцієнт,
що враховує перекриття зубів
-
колова сила на ділильному колі
Усі складові підставляю у вихідну формулу і знаходжу:
МПа
МПа
МПа
МПа
Умова виконується.
3.4.3 Перевірочний розрахунок зубцюватої пари на міцність, при дії максимального навантаження.


Усі складові підставляю у вихідну формулу і знаходжу:
МПа
МПа
МПа
МПа
Умова виконується.
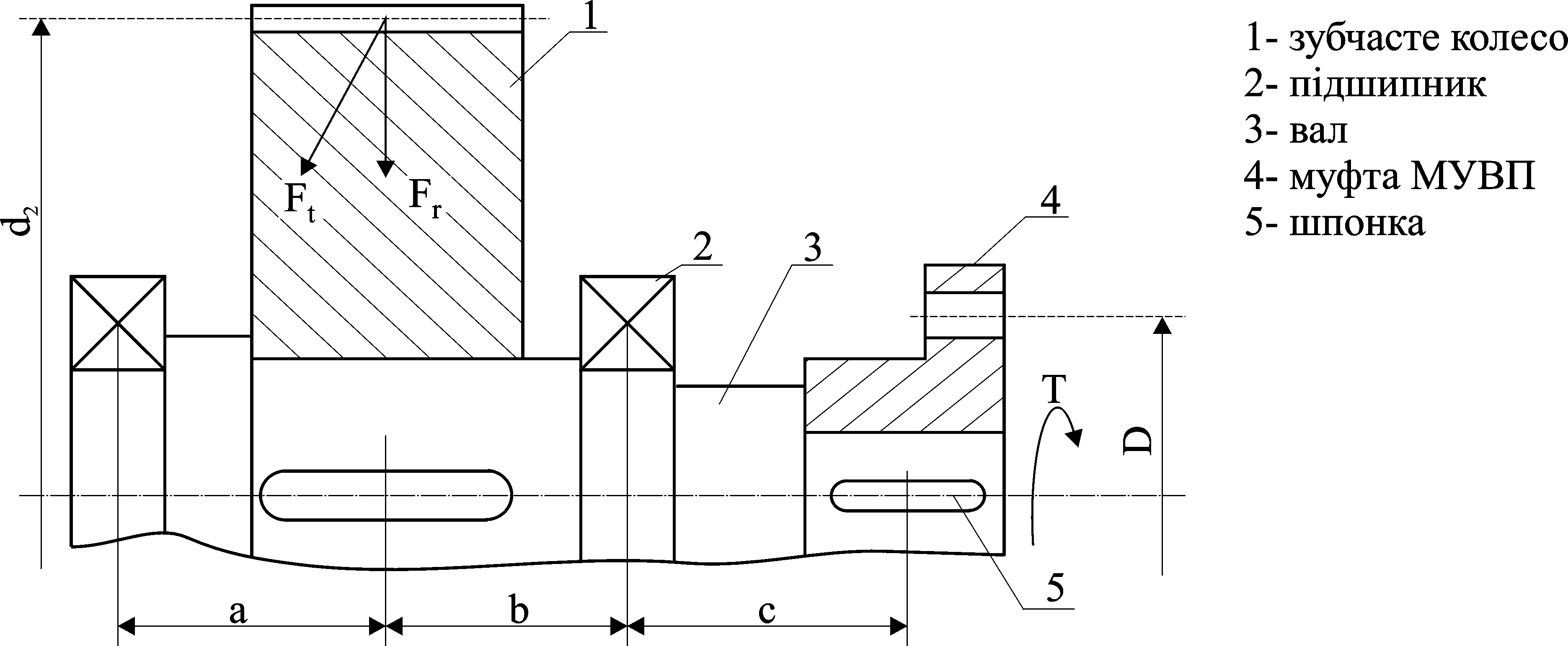
4. Розрахунок вихідного вала на міцність

4.1 Статичний розрахунок вала
Вихідні данні
N = 4.5 кВт
n = 175 об/хв
T = 245,6 Hм
D>min >= 45мм
D>2 >= 130.5мм
b>W >= 40.32мм
4.1.1 Визначаємо реакції зусиль у зачепленнях

4.1.2 Визначаємо діючі навантаження та вигибаючи моменти:
a = b = 80 мм





де:
- межа витривалості матеріалу при
симетричному циклі навантаження
- межа витривалості
матеріалу при віднульовому циклі
навантаження

4.1.3. Визначаємо розрахунковий діаметр вала в небезпечному січенні:
=
55 МПа
м
По таблиці 1 D>IImin >= 45 мм
Приймаємо D = 45 мм
У першому наближенні беремо СТ-45 у табл 5.1 стор.169
4.1.4 Визначаємо осьовий та радіальний моменти опору по табл 5.9 стор.183, користуючись лише діаметром вала.
W>o >=7800 мм3 W>p> = 16740 мм3
4.1.5 Коефіцієнт
перевантаження:

4.1.6 Визначаємо максимальні згінні та дотикові напруги
МПа
МПа
4.1.7 Визначаємо статичні запаси міцності вала
З таблиці 5.1[1] беремо характеристики сталі:
МПа
МПа


4.1.7 Загальний запас міцності


4.2 Розрахунок вала на витривалість
4.2.1 Визначаємо еквівалентну кількість циклів навантаження

Приймаємо базову кількість циклів навантаження

4.2.2 Визначаємо коефіцієнт довговічності

приймаємо

4.2.3 Визначаємо амплітудне та середнє значення навантаження
МПа

МПа
МПа
з таблиці 5.12 вибираємо значення коефіцієнтів концентраторів напруги для
шпоночного
паза
(табл.
5.1)

4.2.4 Визначаємо поправочні коефіцієнти в залежності від діаметра вала (із таблиці 5.16)

4.2.5 В залежності
від класу точності та марки матеріалу
по табл 5.14 знаходимо

4.2.6 Визначаємо дійсні коефіцієнти концентраторів напруги


4.2.7 Визначаємо запас міцності
з таблиці 5.1





4.2.8 Визначаємо загальний запас міцності


5. Розрахунок підшипників кочення
5.1 Розрахунок підшипника на статичну вантажопідйомність
Вихідні данні
з 4.1.2

5.1.1 Радіальна сила

5.1.2 Вибираємо підшипники котіння по внутрішньому діаметру, використовуючи середню серію (табл.15 стор.256)
Вибираємо підшипник № 309

5.1.3 Визначаємо вантажопідйомність підшипника

=0,6
– коефіцієнт радіального навантаження
5.2 Розрахунок підшипника на довговічність
5.2.1 Визначаємо еквівалентне динамічне навантаження

де
–
коефіцієнт радіального навантаження
–
коефіцієнт
обертання
–
температурний
коефіцієнт
–
коефіцієнт
безпеки
5.2.2 Вираховуємо строк роботи підшипника у годинах


6. Розрахунок з'єднань
6.1 Розрахунок шпоночних з'єднань
6.1.1 Вибираємо шпонки згідно з діаметром валу, користуючись табл.5.19 стор.190


6.1.2 Перевіряємо міцність на зім'яття
Мпа

м
м

Приймаємо

Приймаємо

6.2 Розрахунок нерівномірно навантажених болтів
6.2.1 Вираховуємо перекидаючий момент
Нм
де
=
61.46
Нм
- момент на швидкохідному валу
= 245.6
Нм
- момент на тихохідному валу
= 0 - момент сили
тяжіння
6.2.2 Використовуючи формулу 8.18 стор.228[1], визначаємо максимальне навантаження, що діє на болти.
Н
де
- кількість болтів по довжині редуктора
мм,
мм,
мм - відстань від осі фланцевих болтів
до першого другого та третього болта
6.2.3 Визначаємо розрахункове навантаження, що діє на болти.
Н
де
- коефіцієнт запасу щільності зтику
коефіцієнт
зовнішнього навантаження (табл.8.5
стор226)
6.2.4 По розрахунковому навантаженню визначаємо внутрішні діаметр болта.
м
де

де
- межа текучості
Приймаємо d = 10 мм.
7. Мастило
7.1 Кількість
рідкої змазки вибираємо з розрахунку0.35…..0.7
Кількість рідкої змазки визначаємо січенням внутрішньої порожнини редуктора та глибиною масляної ванни.
Для змащування закритих передач використовується рідка змазка типа машинної, в'язкістю 20-30 сантистокс.
Література
1. Н.Ф.Киркач, Р.А.Баласанян "Расчет и проектирование деталей машин", Харьков, "Основа" 1991.
>
>