Розрахунок режимів різання при обробці деталі "Шайба ступінчаста"
Міністерство освіти і науки України
Житомирський державний технологічний університет
Кафедра ТМ і КТС
Група
Контрольна робота
з курсу „Теорія різання”
ТЕМА: «Розрахунок режимів різання при обробці деталі – Шайба ступінчаста»
Виконав:
Перевірив:
Житомир
1. Вибір деталі та методів обробки
Обрана деталь (рис. 1) являє собою ступінчасту шайбу, виготовлену з сірого чавуну СЧ20, σ>в>=196 МПа = 19,6 кг/мм2; НВ 170…241.

Рис. 1. Шайба ступінчаста. Ескіз
Для подальших розрахунків призначимо наступні методи обробки:
обточування діаметру 113,3 мм (токарна операція);
фрезерування пазу 56,65 мм (фрезерна операція);
свердління отворів 1 і 3 (див. рис. 1) – (свердлильна операція);
зенкування фасок 2 і 4 (свердлильна операція);
зенкерування отворів 1 і 3 (свердлильна операція);
розвертання отворів 1 і 3 (свердлильна операція).
Для кожного виду обробки вибираємо різальні інструменти, керуючись рекомендаціями [1], виходячи із оброблюваного матеріалу та заданих початкових умов:
– для обточування діаметру 113,3 – токарний прохідний різець ГОСТ 18878–73 з пластинами з твердого сплаву ВК6 [с. 120, 1].
– для фрезерування пазу 56,65 мм – фреза торцева насадна ø125 ГОСТ 9473–80, матеріал твердосплавних пластин – ВК6, кількість зубів z =12, ширина B = 42 мм [табл. 94, с. 187, 1]; геометричні параметри фрези за ГОСТ 9473–80;
– для свердління отворів 1 і 3 – свердла ø18,5 і ø30 ГОСТ 10903–77 [табл. 42, с. 147, 1], матеріал – швидкорізальна сталь Р6М5;
– для зенкування фасок 2 і 4 – конічна зенковка ø22, матеріал – швидкорізальна сталь Р6М5;
– для зенкерування отворів 1 і 3 – зенкери ø19,9 і ø31,8 ГОСТ 12489–71, матеріал – швидкорізальна сталь Р6М5;
– для розвертання отворів 1 і 3 – розвертки ø20 і ø33 ГОСТ 1672–80, матеріал – швидкорізальна сталь Р6М5.
2. Виконання ескізів
Ескіз деталі наведений і п. 1 (рис. 1).
Ескізи різальних інструментів (свердла та торцевої фрези) подано на рис. 2 і 3.

Рис. 2. Свердло ø18,5. Ескіз.

Рис. 3. Торцева фреза. Ескіз.
3. Розрахунок режимів різання
Для токарної та фрезерної операції визначимо режими різання розрахунково-аналітичним способом, а для свердлильної – табличним способом.
3.1 Розрахунок режимів різання розрахунково-аналітичним методом
Токарна операція
Оскільки точність поверхні 113,3 після обробки не задана, приймемо для даної поверхні – чорнове точіння. Верстат 16К20. Призначимо глибину різання t = 1 мм. Розрахунок режиму різання будемо вести у такій послідовності:
1. Для чорнового точіння за [табл. 11, с.266, 1] при заданому діаметрі обробки –133,3 мм та глибині різання 1 мм рекомендується подача S = 0,3...0,4 мм/об.
Приймаємо подачу за паспортом верстата S = 0,35 мм/об.
2. Швидкості різання визначатимемо за формулами теорії різання, згідно [п. 3, с.265, 1]:
.
Період стійкості приймемо Т = 30 хв за [с.268, 1].
Значення коефіцієнтів та показників степені знаходимо за [табл. 17, с.270, 1]:
.
Швидкісний
коефіцієнт:
.
В цій формулі:
За
[табл. 1, с. 261, 1]:
,
За
[табл. 5, с.
263, 1]:
;
За
[табл. 6, с.
263, 1]:
.
Отже,
загальний швидкісний коефіцієнт:
.
Таким чином швидкість різання:
(м/хв);
3.
Розрахункова частота обертання шпинделя
визначається за наступною формулою:
,
розраховане значення уточнюємо за
паспортом верстата:
(об/хв);
об/хв;
4.
Уточнюємо значення швидкості різання:
.
(м/хв).
5. Визначаємо сили різання при обробці:
Величини тангенційної P>Z>, радіальної P>Y>> >і осьової P>X> складових сили різання визначаються за формулою:
.
За [табл. 22, с. 274, 1] знаходимо коефіцієнти для визначення складових сили різання:
;
;
.
Поправочний коефіцієнт на силу різання являє собою добуток наступних коефіцієнтів:
.
За [табл.9, с.264 і табл.23, с.275, 1] визначаються поправочні коефіцієнти для складових сили різання в залежності від:
- механічних властивостей матеріалу, що оброблюється:
;
Поправочні коефіцієнти що враховують вплив геометричних параметрів:
- головного кута в плані:
К>РφХ> = 1; К>РφУ> =1; К>РφZ> =1;
- переднього кута:
К>РγХ> = К>РγУ> = К>РγZ> =1,0;
- кута нахилу різальної кромки:
К>РλХ> = 1; К>РλУ> = 1; К>РλZ> = 1.
Складові сили різання:
(Н);
(Н);
(Н);
6. Потужність різання розраховують за формулою:
:
(кВт);
7. Визначення основного часу:
Основний технологічний час на перехід, підраховується за формулою згідно [р. ІІ , с. 55, 4]:
,
де l – довжина оброблюваної поверхні (за кресленням) = 44 мм;
l>1 >– величина на врізання і перебіг інструменту, що визначається за [4].
(хв);
Фрезерна операція
Оскільки точність поверхні 56,6 мм після обробки не задана, приймемо для даної поверхні – чорнове фрезерування. Верстат 6Р12. Призначимо глибину різання t = 1 мм.
Розрахунок режиму різання будемо вести у такій послідовності:
1. Визначаємо подачу:
Приймаємо подачу на зуб фрези s>z> в межах 0,14...0,24 мм/зуб за [табл. 33, с. 283, 1] в залежності від потужності верстата (5...10 кВт), оброблюваного та оброблюючого матеріалів. Враховуючи примітку до [табл. 33, с. 283, 1], оскільки ширина фрезерування більша 30 мм, зменшуємо табличне значення подачі на 30%:
s>z> ≈ 0,1 мм/зуб.
Тоді подача на оберт складе:
(мм/об).
2. Визначимо швидкість різання (колову швидкість фрези):
,
де D = 125 мм – діаметр фрези;
B = 56,65 мм – ширина фрезерування;
z = 12 – кількість зубів інструменту.
Значення коефіцієнта С>V> та показників степенів в цій формулі визначаємо за [табл. 39, с. 288, 1] в залежності від типу фрези, виду операції, матеріалу ріжучої частини:
С>V >= 445, q = 0,2, x = 0,15, y = 0,35, u = 0,2, p = 0, m = 0,32.
Т = 180 хв – період стійкості фрези за [табл. 40, с. 290, 1], взалежності від її діаметру;
Загальний поправочний коефіцієнт на швидкість різання:
,
В цій формулі:
За [табл. 1, с. 261, 1] поправочний коефіцієнт, що враховує вплив фізико-механічних властивостей оброблюваного матеріалу на швидкість різання для сірого чавуну:
,
де
– показник
степені, що визначається за [табл. 2, с.
262, 1].
За
[табл. 5, с. 263, 1] визначаємо поправочний
коефіцієнт, що враховує вплив стану
поверхні заготовки на швидкість різання
за:
.
За
[табл. 6, с.
263, 1] визначаємо поправочний коефіцієнт,
що враховує вплив інструментального
матеріалу на швидкість різання:
.
Отже, розрахункова швидкість різання:
(м/хв).
3. Розрахункова частота обертання інструменту:
(об/хв).
4. Хвилинна подача:
(мм/хв)
5.
Узгодимо за паспортними даними верстата
і остаточно приймемо фактичну частоту
обертання:
(об/хв).
Тоді
фактична хвилинна подача:
(мм/хв).
Уточнимо значення швидкості різання:
(м/хв).
6. Визначимо значення складових сили різання:
Знайдемо значення головної складової сили різання (при фрезеруванні – колова сила):
.
Значення коефіцієнта С>р> та показників степенів в цій формулі визначаємо за [табл. 41, с. 291, 1] в залежності від типу фрези, оброблюваного і оброблюючого матеріалів:
С>р >= 54,5, q = 1,0, x = 0,9, y = 0,74, u = 1,0, w= 0.
Поправочний
коефіцієнт на якість оброблюваного
матеріалу знаходимо в [табл. 9, с. 264, 1]:
.
Отже, колова сила дорівнює:
(Н).
Величини решти складових сили різання визначаємо із їх співвідношення з головною складовою – коловою силою за [табл. 42, с. 292, 1]:
Горизонтальна
сила (сила подачі):
(Н).
Вертикальна
сила:
(Н).
Радіальна
сила:
(Н).
Осьова
сила:
(Н).
7. Визначимо крутний момент на шпинделі:
(Н∙м).
8. Ефективна потужність різання:
(кВт)
9. Основний технологічний час згідно [п. ІІ , с. 190, 4]:
(хв),
де L – довжина шляху, що проходить інструмент в напрямку подачі;
l – довжина оброблюваної поверхні (за кресленням) = 113,3 мм;
l>1 >– величина на врізання і перебіг інструменту, що визначається за [дод. 4, арк. 6, с. 378, 4] в залежності від типу фрези (торцева), схеми її установки (несиметрична) й ширини фрезерування (за кресленням = 56,65 мм);
s>хв >– хвилинна подача фрези, визначена раніше;
3.2 Розрахунок режиму різання табличним методом
Свердлильна операція
Обробка проводиться на верстаті 2Н55.
Приймаємо попередньо:
по карті 46, с. 110, [4] подачу для свердління поверхонь 1 і 3
Для свердла Ø30 мм , група подач I – S=0,47–0,57 мм/об
Для свердла Ø18,5 мм , група подач I – S=0,34–0,43 мм/об
Узгоджуємо за верстатом:
S>1>=0,45 мм/об,
S>2>=0,315 мм/об.
По карті 58, с. 122, [4] подачу для зенкування поверхонь 1 і 3
Для зенкера Ø19,9 мм и зенкера Ø31,8 мм , група подач II – S=0,7 мм/об. Узгоджуємо за верстатом:
S>3>=S>4>=0,63 мм/об.
Для конічної зенковки (поверхні 2, 4) приймаємо аналогічно, як и для зенкера S=0,7 мм/об
Узгоджуємо за верстатом:
S>5>=S>6>=0,63 мм/об
По карті 62, с. 125, [4] подачу для розвертання поверхні 1
Для розверток Ø20 и Ø32, група подач III – S=1,9 мм/об.
Узгоджуємо за верстатом:
S>7>= S>8>= 1,8 мм/об
Швидкість різання попередньо визначаємо по карті 47, с. 111, [4], для свердління поверхонь 1 і 3.
Для обробки чавуну група твердості 170-255 НВ і подачі S=0,4:
При діаметрі свердла більше 20:V>1>=31 м/хв.
При діаметрі свердла до 20:V>2>=27 м/хв.
По карті 60, с. 123, [4], для зенкування поверхонь 1 і 3 для обробки чавуну група твердості 170-255 НВ, подачі S=0,75, зенкер суцільний Р6М5, глибина різання 1мм:
V>3>= V>4>=22 м/хв.
Приймаємо аналогічну швидкість різання для конічної зенковки (поверхні 2 і 4) :
V>5>=V>6>= 22 м/хв.
По карті 64, с. 127, [4], для розвертання поверхонь 1 і 3 для обробки чавуну група твердості 170-255 НВ, подачі S=2:
V>7>= V>8>= 5,8 м/хв.
Знаходимо частоти обертання шпинделя для кожної поверхні:
Поверхні 1, 3 свердління Ø18,5:
n>1>=1000V>1>/(d>1>)=1000*27/(3,14*18,5)=464,6 хв-1.
Приймаємо по верстату n>1>=400 хв-1.
Поверхня 1, розсвердлювання Ø30.
n>2>=1000V>2>/(d>2>)=1000*31/(3,14*30)=328,9 хв-1.
Приймаємо по верстату n>2>=315 хв-1.
Поверхня 3, зенкування Ø19,9.
n>3>=1000V>3>/(d>3>)=1000*22/(3,14*19,9)=351,9 хв-1.
Приймаємо по верстату n>3>=315 хв-1.
Поверхня 1, зенкування Ø31,8.
n>4>=1000V>4>/(d>4>)=1000*22/(3,14*31,8)=220,2 хв-1.
Приймаємо по верстату n>4>=200 хв-1.
Поверхня 2, зенкування фаски 2х45º конічною зенковкою.
n>5>=1000V>5>/(d>5>)=1000*22/(3,14*(32+2*2))=194,5 хв-1.
Приймаємо по верстату n>5>=200 хв-1.
Поверхня 4, зенкування фаски 1,6х45º конічною зенковкою.
n>6>=1000V>6>/(d>6>)=1000*22/(3,14*(20+2*1,6))=301,8 хв-1.
Приймаємо по верстату n>6>=315 хв-1.
Поверхня 1, розвертання Ø32Н7.
n>7>=1000V>7>/(d>7>)=1000*5,8/(3,14*32)=57,7 хв-1.
Приймаємо по верстату n=50 хв-1.
Поверхня 3, розвертання Ø20Н7.
n>8>=1000V>8>/(d>8>)=1000*5,8/(3,14*202)=92,3 хв-1.
Приймаємо по верстату n>8>=80 хв-1.
Результати розрахунків режимів різання зводимо в табл. 1.
Таблиця 1 Режими різання на свердлильній операції
|
Номер поверхні |
Зміст переходу |
Частота обертання шпинделя, хв-1 |
Подача, мм/об |
|
1 |
Свердління Ø18,5 |
400 |
0,315 |
|
Розсвердлювання Ø30 |
315 |
0,45 |
|
|
Зенкування Ø31,8 |
200 |
0,63 |
|
|
Розвертання Ø32Н7 |
50 |
1,8 |
|
|
2 |
Зенкування фаски 2*45º |
200 |
0,63 |
|
3 |
Свердління Ø18,5 |
400 |
0,315 |
|
Зенкування Ø19,9 |
315 |
0,63 |
|
|
Розвертання Ø20Н7 |
80 |
1,8 |
|
|
4 |
Зенкування фаски 1,6*45º |
315 |
0,63 |
4. Стислі відомості про інструментальні матеріали
Матеріал інструментів на свердлувальній операції (зенкерів, свердел, розверток, зенковки) – швидкорізальна сталь Р6М5.
Основні відомості щодо матеріалу свердла для обробки отворів визначимо згідно [с. 48, п. 3.4., 5].
Основним легуючим елементом швидкорізальних сталей є вольфрам (Р), який взаємодіє з вуглецем, завдяки чому сталь набуває високої твердості, температуро- і зносостійкості. Окрім того, сталь містить молібден (М), який є хімічним аналогом вольфраму. Легування молібденом сприяє підвищенню теплопровідності сталі. Вольфрамо-молібденові сталі більш пластичні і куються краще, ніж вольфрамові, мають нижчий бал карбідної неоднорідності.
До хімічного складу сталі Р6М5 входить 6% вольфраму (W) та 5% молібдену (Mo).
Сталь Р6М5 доцільно застосовувати при виготовленні інструментів, що використовуються при невеликих швидкостях різання, але з великими перерізами шару, що зрізається, тобто при важкому силовому режимі. Внаслідок високої пластичності сталь придатна для виготовлення інструментів методами пластичного деформування.
Основні властивості сталі Р6М5:
твердість: 62...64 HRC;
теплостійкість, θ: 620°С;
границя міцності на згин, σ>зг>: 2900...3100 МПа;
швидкості різання, v: 25...35 м/хв.
Матеріал твердосплавних пластин торцевої фрези та прохідногоо різця – вольфрамовий (однокарбідний) твердий сплав ВК6 [с. 50, п. 3.5., 5]. Основою твердого сплаву ВК6 є карбіди вольфраму (WC), що мають високу тугоплавкість і мікротвердість, їх зерна з’єднуються між собою кобальтом (Co). Чим більше в сплаві WC, тим вища твердість і теплостійкість і менша міцність сплаву. Твердий сплав ВК6 характеризується високою твердістю, теплостійкістю та швидкостями різання, проте має відносно низьку міцність на згин. Застосовується для чорнової і напівчистової обробки чавунів і кольорових сплавів.
Хімічний склад сплаву ВК6: 6% кобальту (Co), решта – 94% карбідів вольфраму (WC).
Основні властивості твердого сплаву ВК6:
твердість: 87...90 HRА;
теплостійкість, θ: 800...900 °С;
границя міцності на згин, σ>зг>: 1000...1200 МПа;
швидкості різання, v: 90...300 м/хв.
5. Встановлення взаємозв’язку елементів режиму різання та параметрів перерізу шару, що зрізається
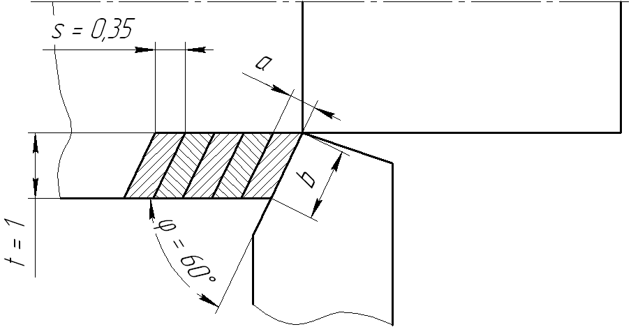
Точіння
На (рис. 4) зображені елементи різання при обточуванні заготовки прохідним різцем згідно [6]. Глибина різання рівна припуску на обробку на даному переході: t = 1 мм.
Подача на оберт заготовки встановлена у п.3. даної роботи і рівна S = 0,35 мм.
Товщина
шару, що зрізається, рівна:
(мм).
Ширина
шару, що зрізається:
(мм).

Рис. 4. Елементи різання при розточуванні
Торцеве фрезерування

а б
Рис. 5. Схеми зрізання припуску при торцевому фрезеруванні
На (рис. 5) зображені схеми зрізання припуску при фрезеруванні поверхні торцевою фрезою згідно [с. 228, 6]. На (рис 1, а) глибина різання t = 1 мм рівна припуску на обробку на заданому переході. В = 56,65 мм – ширина фрезерування (рівна ширині оброблюваного пазу). D = 125 мм – діаметр фрези.
Приймемо
для нашого випадку симетричне фрезерування
(рис. 5). Кут контакту торцевої фрези
.
Товщина шару, що зрізається, яка відповідає
кожному значенню кута
визначається співвідношенням
.
Ширина шару, що зрізається для торцевих
фрез рівна
,
де
– кут нахилу ріжучої кромки,
– головний кут в плані ріжучої кромки
зуба торцевої фрези.
Свердлильна операція

Рис. 6. Елементи різання при: а – свердлінні, б – розсвердлюванні (розвертанні, зенкеруванні)
При свердлуванні в суцільному матеріалі (рис. 6, а) глибина різання рівня половині оброблюваного діаметру (діаметру свердла):
(мм).
Щоб знайти подачу на зуб інструменту, слід розділити на кількість зубів знайдену в п. 3 подачу на оберт (кількість зубів для свердла –
2):
(мм/зуб).
Товщина шару, що зрізається, рівна:
(мм).
Ширина шару, що зрізається:
(мм).
При обробці попередньо обробленого отвору (розсвердлювання, зенкерування, розвертання) – рис. 6, б – глибина різання визначається так:
(мм).
Товщина шару і ширина шару, що зрізаються, визначаються аналогічно.
Література
1. Справочник технолога-машиностроителя. В 2-х т./ Под ред. А.Г. Косиловой и Р.К. Мещерякова. – 4-е изд., перераб. и доп. – М.: Машиностроение, 1985. – Т2 – 496 с.
2. Справочник технолога-машиностроителя. В 2-х т./ Под ред. А.Г. Косиловой и Р.К. Мещерякова. – 4-е изд., перераб. и доп. – М.: Машиностроение, 1985. – Т1 – 657 с.
3. Режимы резания металлов: Справочник / Под ред. Ю.В. Барановского. – М.: Машиностроение, 1972. – 364 с.
4. Общемашиностроительные нормативы режимов резания для технического нормирования работ на металлорежущих станках. Часть І. Токарные, карусельные, токарно-револьверные, алмазно-расточные, сверлильные, строгальные, долбежные и фрезерные станки. Изд. 2-е, М: Машиностроение, 1974. – 406 с.
5. Виговський Г.М. Теорія різання: Навч. посібн. – Житомир: ЖДТУ, 2006. – 250 с.
6. Грановский Г.И., Грановский В.Г. Резание металлов: Учебн. для вузов. – М.: Высш. шк., 1985. – 304 с.