Сопряжения с зазором и натягом
Задача 1
Вариант I
Дано: Ø24
Решение:
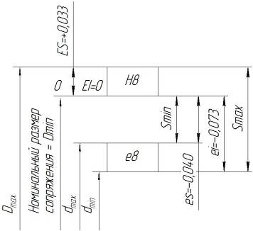
Заданное
сопряжение Ø24
выполнено в системе отверстия, посадка
с зазором.
|
Параметры сопряжения |
Для вала |
Для отверстия |
|
Номинальный размер, мм |
24 |
24 |
|
Квалитет |
8 |
8 |
|
Условное обозначение основного отклонения |
е |
Н |
|
Условное обозначение поля допуска |
е8 |
Н8 |
|
Верхнее отклонение, мм |
Еs = -0,040 |
ES = +0,033 |
|
Нижнее отклонение, мм |
Ei = -0,073 |
EI = 0 |
|
Наибольший предельный размер, мм |
d>max >= 23,960 |
D>max >= 24,033 |
|
Наименьший предельный размер, мм |
d>min> = 23,927 |
D>min >= 24,0 |
|
Допуск размера, мм |
Td = 0,033 |
TD = 0,033 |
Характеристики посадки с зазором.
Наибольший зазор:
S>max> = D>max> – d>min> = 24,033 – 23,927 = 0,106 мм
Наименьший зазор:
S>min> = D>min> – d >max> = 24,0 – 23,960 = 0,040 мм
Средний зазор:
S>m> = (S>max> + S>min>)/2 = (0,106+0,040)/2 = 0,073 мм
Допуск зазора:
T>S> = S>max> – S>min> = 0,106 – 0,040 = 0,066 мм
T>S> = T>D> + T>d> = 0,033 + 0,033 = 0,066 мм
Схема
расположения полей допусков для
сопряжения Ø24
:

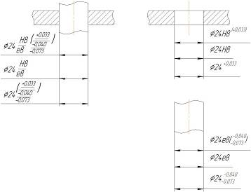
Обозначение предельных отклонений:
а) На сборочном чертеже: б) на рабочем чертеже:

Вариант II
Дано: Ø250
Решение:
Заданное
сопряжение Ø250
выполнено в системе отверстия, переходная
посадка.
|
Параметры сопряжения |
Для вала |
Для отверстия |
|
Номинальный размер, мм |
250 |
250 |
|
Квалитет |
7 |
8 |
|
Условное обозначение основного отклонения |
m |
Н |
|
Условное обозначение поля допуска |
m7 |
Н8 |
|
Верхнее отклонение, мм |
Еs = +0,063 |
ES = +0,072 |
|
Нижнее отклонение, мм |
Ei = +0,017 |
EI = 0 |
|
Наибольший предельный размер, мм |
d>max >= 250,063 |
D>max >= 250,072 |
|
Наименьший предельный размер, мм |
d>min> = 250,017 |
D>min >= 250,0 |
|
Допуск размера, мм |
Td = 0,046 |
TD = 0,072 |
Характеристики переходной посадки.
Наибольший зазор:
S>max> = D>max> – d>min> = 250,072 – 250,017 = 0,055 мм
Наибольший натяг:
N>max> = d>max> – D>min> = 250,063 – 250,0 = 0,063 мм
Средний зазор:
S>m> = (S>max> + S>min>)/2 = (0,055 – 0,063)/2 = -0,004 мм
Средний натяг:
N>m> = (N>max> + N>min>)/2 = (0,063 - 0,055)/2 = 0,004 мм
Допуск зазора:
T>S> = S>max> + N>max> = 0,055 + 0,063 = 0,118 мм
Допуск натяга:
T>N> = S>max> + N>max> = 0,055 + 0,063 = 0,118 мм
Схема
расположения полей допусков для
сопряжения Ø250
:

Обозначение предельных отклонений:
а) На сборочном чертеже: б) на рабочем чертеже:

Вариант III
Дано: Ø70
Решение:
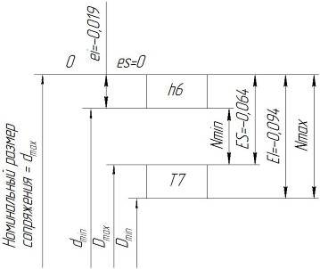
Заданное
сопряжение Ø70
выполнено в системе вала, посадка с
натягом.
|
Параметры сопряжения |
Для вала |
Для отверстия |
|
Номинальный размер, мм |
70 |
70 |
|
Квалитет |
6 |
7 |
|
Условное обозначение основного отклонения |
h |
T |
|
Условное обозначение поля допуска |
h6 |
T7 |
|
Верхнее отклонение, мм |
Еs = 0 |
ES = -0,064 |
|
Нижнее отклонение, мм |
Ei = -0,019 |
EI = -0,094 |
|
Наибольший предельный размер, мм |
d>max >= 70,0 |
D>max >= 69,936 |
|
Наименьший предельный размер, мм |
d>min> = 69,981 |
D>min >= 69,906 |
|
Допуск размера, мм |
Td = 0,019 |
TD = 0,030 |
Характеристики посадки с натягом.
Наибольший натяг:
N>max> = d>max> – D>min> = 70,0 – 69,906 = 0,094 мм
Наименьший натяг:
N>min> = d>min> – D>max> = 69,981 – 69,936 = 0,045 мм
Средний натяг:
N>m> = (N>max> + N>min>)/2 = (0,094+0,045)/2 = 0,0695 мм
Допуск натяга:
T>N> = N>max> – N>min> = 0,094 – 0,045 = 0,049 мм
T>N> = T>D> + T>d> = 0,019 + 0,030 = 0,049 мм
Схема
расположения полей допусков для
сопряжения Ø70
:

Обозначение предельных отклонений:
а) На сборочном чертеже: б) на рабочем чертеже:

Задача 2
Дано: подшипник №314; d = 70 мм; D = 150 мм; В = 35 мм; 6 класс точности; нормальный режим работы; вращается вал; корпус неподвижен.
Решение:
По табл. 4 определяем размеры подшипника качения№ 314: наружный диаметр наружного кольца D = 150 мм; диаметр отверстия внутреннего кольца d = 70 мм; ширина подшипника В = 35 мм.
Для указанных условий работы подшипника наружное кольцо испытывает местное нагружение, так как корпус неподвижный; внутреннее кольцо испытывает циркуляционное нагружение, так как вращается вал.
По табл. 6 при
нормальном режиме работы с учетом видов
нагружений для колец подшипника качения
шестого класса точности выбираем для
наружного кольца с корпусом посадку
Ø150
и для внутреннего кольца с валом –
посадку Ø70
.
По ГОСТ 25347-82 и ГОСТ 520-89 определяем предельные отклонения для вала, отверстия корпуса, для колец подшипника и строим схемы полей допусков для выбранных посадок.
Схема расположения полей допусков:
а) для внутреннего кольца с валом

N>max> = d>max> – D>min> = 70,030 – 69,988 = 0,042;
N>min> = d>min> – D>max> = 70,011 – 70,0 = 0,011;
N>m> = (N>max> + N>min>)/2 = (0,042 + 0,011)/2 = 0,0265;
T>N> = N>max> – N>min> = 0,042 – 0,011 = 0,031.
б) для наружного кольца с отверстием корпуса:

S>max> = D>max> – d>min> = 150,040 – 149,989 = 0,051;
S>min> = D>min> – d>max> = 150 – 150 = 0;
или N>max> = 0
S>m> = (S>max> + S>min>)/2 = (0,051 + 0)/2 = 0,0255;
T>S> = S>max> + N>max> = 0,051 + 0 = 0,051;
Обозначение посадок подшипника качения.

Задача 4
Дано: М18х1 -

Решение:
Номинальный профиль наружной и внутренней метрической резьбы.

Номинальный наружный диаметр наружной и внутренней резьбы: d = D = 18 мм.
Номинальный средний диаметр наружной и внутренней резьбы:
d>2> = D>2> = d – 1 + 0,35 = 18 – 1 + 0,35 = 17,35 мм.
Номинальный внутренний диаметр наружной и внутренней резьбы:
d>1> = D>1> = d – 2 + 0,918 = 18 – 2 + 0,918 = 16,918 мм.
Угол профиля α = 60°.
Резьбовое соединение с мелким шагом, Р = 1 мм.
2. Степени точности, условное обозначение основных отклонений и полей допусков для диаметров резьбы.
|
Виды резьбы |
Диаметры |
Степень точности |
Условное обозначение |
|
|
осн. отклон. |
поле допуска |
|||
|
наружная |
d |
6 |
h |
6h |
|
d>2> |
6 |
h |
6h |
|
|
d>1> |
- |
h |
- |
|
|
внутренняя |
D |
- |
G |
- |
|
D>2> |
6 |
G |
6G |
|
|
D>1> |
6 |
G |
6G |
По стандарту ГОСТ 16093-81 определяем предельные отклонения, рассчитываем предельные размеры, допуски диаметров резьбового соединения и строим схемы полей допусков для диаметров резьбы.
|
Номиналь-ные размеры диаметров, мм |
Резьба |
Предельное отклонение, мм |
Предельные размеры, мм |
Допуск, мм |
||
|
Верхнее |
Нижнее |
Наиб. |
Наим. |
|||
|
D(d)=18 |
внутр. |
- |
+0,026 |
- |
18,026 |
- |
|
наруж. |
0 |
-0,180 |
18 |
17,820 |
0,180 |
|
|
D>2>(d>2>)=17,35 |
внутр. |
+0,136 |
+0,026 |
17,486 |
17,376 |
0,110 |
|
наруж. |
0 |
-0,118 |
17,35 |
17,232 |
0,118 |
|
|
D>1>(d>1>)=16,918 |
внутр. |
+0,262 |
+0,026 |
17,18 |
16,944 |
0,236 |
|
наруж. |
0 |
- |
16,918 |
- |
- |
Схемы полей допусков:

Задача 5
Дано:
D-6х23
х28
х5
Решение.
Для данного шлицевого прямобочного соединения центрирующей поверхностью является поверхность по наружному диаметру D = 28 мм, количество зубьев Z = 6.
Условное обозначение шлицевого вала: D-6х23b12x28js6x5js7.
Условное обозначение шлицевого отверстия: D-6х23Н11x28Н7x5D9.
Шлицевое соединение неподвижное – втулка не перемещается относительно вала.
Центрирование по D используют в тех случаях, когда шлицевое соединение неподвижное или подвижное, работающее при небольших нагрузках. Требования к износостойкости деталей невысокие, поэтому шлицевую втулку не подвергают термообработке, что позволяет обработать ее протяжкой, обеспечивая высокую точность по D.
Эскиз поперечного сечения шлицевого прямобочного соединения.

Задача 6
Дано: 7-8-8-В
Решение.
Для заданного зубчатого колеса 7-8-8-В ГОСТ 1643-81 установлены следующие требования:
по кинематической норме точности – седьмая степень точности;
по норме плавности – восьмая степень точности;
по норме контакта – восьмая степень точности;
по норме бокового зазора – вид сопряжения В, который определяет j>nmin>, вид допуска – b и класс отклонений межосевого расстояния V; так как вид допуска и класс отклонений межосевого расстояния соответствуют виду сопряжения, то они не проставляются (по умолчанию).
Зубчатое колесо в данном случае работает в передаче общего назначения - 7, 8 степень точности. По нормам плавности и контакта не очень высокие требования к точности (8 степень точности).
На боковой зазор в зубчатой передаче установлено:
шесть видов сопряжений, которые обозначаются прописными буквами латинского алфавита Н, Е, D, C, B, A. Они определяют различные значения гарантированного бокового зазора (наименьшего предписанного бокового зазора). Виду сопряжения Н соответствует j>nmin> = 0, виду сопряжения А – наибольший гарантированный боковой зазор.
Восемь видов допусков Т>jn>, которые в порядке понижения точности обозначаются условно строчными буквами латинского алфавита h, d, c, b, a, z, y, x.
Шесть классов отклонений межосевого расстояния, обозначенные в порядке убывания точности римскими цифрами от I до VI.
Каждому виду сопряжения соответствует свой вид допуска и класс отклонений межосевого расстояния. Разрешается это соответствие нарушать.