Тепловая мобильная станция
Мобильная Тепловая Станция - это универсальный источник тепла, может работать в круглосуточном режиме и устанавливаться вне помещения. Важнейшими преимуществами МТС являются:
-компактность станции;
-возможность использования сыпучего и кускового топлива вперемешку по мере накопления;
-высокая производительность и экономичность при малом энергопотреблении;
-не требует помещения;
-легкость монтажа и перевозки.
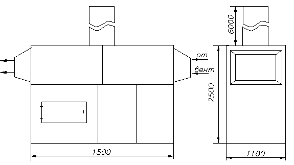
Схема МТС

Таблица
Технические характеристики МТС
|
Мощность МТС, кВт |
200 |
|
Количество топлива в сутки: -дрова, м3; -опилки, торф, тонн; -каменный уголь, тонн; |
3,0 1,25 0,78 |
|
Масса установки, тонн |
2,8 |
|
Габаритные размеры, м -длина -ширина -высота |
1,5 1,1 2,5 |
|
Радиальный вентилятор ВЦ - 14-46-5 №5, мощность, кВт |
18,5 |
3.2.1 Компоновка распределителя
Компоновка распределителя сводится к определению его габаритных размеров. Габаритные размеры распределителя будем определять исходя из его площади.
Определим площадь распределителя.
V
F> >= _____ (3.7)
где V - объемный расход воздуха, м3/ч;
-скорость агента сушки, м/с.
Скорость агента сушки в распределителе принимаем равной 5 м/с.
Тогда
10000*5
F> >= ____________ = 0,5 м2
3600
-Определим размеры сторон распределителя:
F> >= а*в (3.8)
где а и в - соответственно размеры сторон распределителя, м.
а = 1м; в = 0,5м.
Принцип работы распределителя заключается в следующем:
Распределитель предназначен для изменения направления агента сушки в рулоне. Изменение в рулоне направления движения теплоносителя в данной установке регулируется при помощи клапанов 2, установленных в распределителе 1. Крайнее левое положение клапанов обеспечивает подвод теплоносителя со стороны вершин, крайнее правое положение обеспечивает подвод теплоносителя со стороны комлей. Воздух в распределитель подается мобильной тепловой станцией УТПУ - 200А.
3.5 Аэродинамический расчет
Аэродинамический расчет включает в себя определение потерь давления в циркуляционном кольце движения агента сушки внутри сушилки.
-Определим потери давления в воздуховоде на нагнетание (рис. ):
Рнач>общ1> = P>1> + P>2> + P>р >(3.21)
Участок 1.
1.Скорость воздушного потока >1> = 11м/с;
2.Принимаем диаметр воздуховода d>1> = 0,355м;
3. По >1> и d >1 >находим R>1 >и Pg>1>. [15]:
R>1 >= 3,5 Па п >* >м
>1>2 112
Pg>1 >= _____ * = _____ *1,2 = 72,6 Па
2 2
4.Местные сопротивления:
-Два отвода под = 900; ч/d = 3; G = 0.24.
-Диффузор F>0>/F>1> = 0,8 G = 0,04
5. P>1 >= R>1> l>1 >+ Pg>1> (3.22)
Участок2.
Принимаем а>2> = 1м, в>2> = 0,3м.
Определяем площадь сечения воздуховода:
F>2> = 1 * 0,3 = 0,3м2.
Определяем скорость на выходе воздуховода:
V>2>
>2> = _____
F>2>
где V - объемный расход воздуха, м3/ч
F-площадь сечения воздуховода, м2.
10000 * 0.3
>2> = ________________ = 9 м/с
3600
Определим d >2 >>экв>:
По >2> и d >2 >находим R>2 >и Pg>2>.
R>2 >= 1,7 Па п >* >м
Н

R>1> + R>2 > 3,5 + 1.7
R >ср >= ------------- = ----------------- = 2.6 Па п>*>м
2 2
Количество окон n = 4 отверстия.
Определим количество воздуха, выходящего из каждого окна:
V 10000
V>ок> = ______ = __________ = 2500 м3/ч
n 4
V>ок> 2500 *0,057
>ок> = ----- = ---------------- = 12 м/с
F>ок> 3600
Определим потери давления на преодоление местных сопротивлений: -дроссельный клапан, при = 450 = 140
P>2 >= R>ср> * l>2 >+ Pg>2 >( ) (3.23)
P>2 >= 2,6*8 + 48,6*14 = 701,2 Па
Потери давления в распределителе принимаем P>р> = 100 Па.
Рнач>общ1> =33,2 + 701,2 + 100 = 834,4Па
-Определим потери давления в воздуховоде на всасывание (рис.3.)
(3.24)
-Определим сопротивление слоя высушивающего материала P>м> [14]
P>м> = 9,81*10-6(700 + 2,7 W>1>)*Р>с>2,465*>м>1,18*h*1,3 (3.25)
где - W>1> - начальная влажность рулона, %;
Р>с >- плотность рулона, кг/м3;
h - высота рулона, м.
P>м >= 9,81*10-6(700 + 2,7*30)*1212,465*0,81,18*1,1*1,3 = 1146,4 Па
-
Определим потери давления на участке 3
P>3 >= R>3>l>3> + Pg>3 > (3.26)
Принимаем а>3> = 1м, в>3> = 0,3м.
Определяем площадь сечения воздуховода:
F>3>= 1 * 0,3 = 0,3м2.
Определяем скорость на выходе воздуховода:
V>3>
>3> = _____
F>3>
Определим d >3 >>экв>:
П
V>3>
>3> = _____
F>3>
о >3> и d>3 >находим R>3 >и Pg>3>.R>3 >= 1,7 Па п >* >м
Pg>3>> >= 48,6 Па
Количество окон n = 4.
Определим потери давления на преодоление местных сопротивлений:
-выход из меньшего сечения в большее
F>0>/F>1> = 0,8 G = 0,04
P>3 >= 1,7*8 + 48,6*0,04 = 15,5Па
-Определим потери давления на участке 4:
P>4 >= R>4>l>4> + Pg>4 > (3.27)
1. Скорость воздушного потока >4> = 11м\с
Принимаем диаметр воздуховода d>4> = 0,355м.
По >4> и d>4 >находим R>4> и Pg>4>.
R>4> = 3,5 Па п*м, Pg>4> = 72,6 Па
Местные сопротивления:
диффузор F>0>/F>1> = 0,8 G = 0,04
P>4>> >= 3,5*1,5 + 72,6*0,04 = 8,2 Па
Потери давления в распределителе принимаем P>р> = 100Па
Полученные и известные величины подставляем в формулу (3.24):
Р>2>вс>общ> = 1,146 + 15,5 + 8,2 + 100 = 1270,1 Па
-Определим общие потери давления в сушильной установке:
Р>с.у.> = Р>общ1>нач + Р>общ2>вс (3.28)
Р>с.у.> = 834,4 + 1270,1 = 2104,5 Па.
Проверяем на преодоление сопротивлений вентилятор теплогенератора УТПУ 200 А.
Сопротивление, которое должен преодолеть вентилятор теплогенератора равно (рис )
Р>т> = P>р> + P>3 >+ P>4 >+ P>т >(3.29)
где P>р >- потери давления в распределителе, Па;
P>3> - потери давления на 3 участке СУ,Па;
P>4 >- потери давления на 4 участке СУ,Па;
P>т> - потери давления в теплогенераторе, Па.
Движение агента сушки осуществляется через рулон сверху вниз
Р>т> = P>т> + P>р> + P>1 >+ P>2 >(3.30)
где P>1> - потери давления на 1 участке, Па;
P>2 >- потери давления на 2 участке, Па;
Принимаем P>т> = 500Па по данным СКБТМ.
Р>т> = 500 + 100 + 33,2 + 701,2 = 1334,4 Па
Принимаем к вентилятору большее давление Р>т> = 1334,4 Па.
Окончательное давление вентилятора на преодоление сопротивления
теплогенератора УТПУ - 200А равно :
Р>b> = 1,1 * Р>т >= 1,1 * 1334,4 = 1467,8 Па.
Объёмный расход воздуха будет равен :
V>b> = 1,1*V = 1.1*10000 = 11000 м3/г
Используя значения Р>b>> >и V>b>> >из аэродинамических характеристик центробежного вентилятора ВЦ 14-46 №5 (работает с УТПУ -200 А), выясняем, что он преодолевает данное сопротивление при данном расходе.
2.Подбор вентилятора для отсоса агента сушки V = 11000м3/ г, должен преодолеть сопротивление равное (рис. 3)
Р>отс> = P>м> + P>2> + P>1 >+ P>р> (3.31)
где P>м> - потери давления через материал, Па;
P>2 >- потери давления на 2 участке СУ,Па;
P>1> - потери давления на 1 участке СУ Па.
P>р >- потери давления в распределителе, Па;
Р>отс> = 1146,4 + 701,2 + 33,2 + 100 = 1980,8 Па
Движение агента сушки осуществляется через рулон сверху вниз.
Р>отс> = P>м> + P>3> + P>4 >+ P>р> (3.32)
Р>отс> = 1146,4 + 15,5 + 8,2 + 100 = 1270,1 Па
Принимаем к вентилятору большее давление Р>отс> = 1980,8 Па
Окончательное давление вентилятора равно:
Р>отс>в = 1,1* Р>отс> = 1,1*1980,8 = 2178 Па
Объемный расход воздуха будет равен:
V>в> = 1,1*V = 1,1*10000 = 11000 м3/г.
По Р>отс>в и V>в> подбираем вентилятор марки: ВР-45-6,3
-расчет мощностей потребляемой вентиляторами, N>в>, кВт [14]:
Р>в> * V>в>
N>в> = __________
>в>> >
(3.33 )
где Р>в >- давление, создаваемое вентилятором с десятипроцентным запасом , Па;
V>в >- расход воздуха, м3/с;
>в> - коэффициент полезного действия вентилятора [15], принимаем >в>=0,46.
3*2178
N>в> = __________ = 14,2 кВт
0,46
-определим необходимую мощность электродвигателя N>gb>, кВт [14]:
N>в >* К>п>
N>gb> = __________
>пер>
(3.34)
где К>п> - коэффициент запаса мощности на пусковой момент. К>п> = 1,1 при N>b> 5,0 кВт.
>пер> - коэффициент полезного действия передачи,
>пер> = 0,95 клиноременная передачи.
14,2> >* 1,1
N>gb> = __________ = 16,2 кВт
0,95
Принимаем к вентилятору ВР-45-6,3 электродвигатель марки 4А 160 М4 с N>gb> = 18,5 кВт и частотой вращения >gb> = 1465 мин -1 [16].
-расчет мощности N>b>, кВт [14]:
Р>в> * V>в>
N>в> = __________
>в>> >
где >в> = 0,71 [16]; >b> = 1720 мин -1
1467,8*3
N>в> = __________ = 6,2 кВт
0,71
-необходимая мощность электродвигателя N>gb>>, >кВт [14]:
N>в >* К>п>
N>gb> = __________
>пер>
6,2> >* 1,1
N>gb> = __________ = 7 кВт
0,95
Принимаем к вентилятору ВЦ-14-46 №5 электродвигатель марки 4А132М6 с N>gb> = 7,5 кВт и частотой вращения >gb> = 970 мин -1. [16].
5.1.Расчет рыночной цены сушильной машины на стадии разработки
5.1.1Расчет цены затратным методом.
Рыночная цена проектируемой сушильной машины на стадии разработки будет вычисляться по следующей формуле:
Ц = с/с + Пр, руб (5.1)
где с/с - себестоимость материалов и комплектующих, руб;
Пр - прибыль от продажи машины, руб.
Прибыль (Пр) вычисляется исходя из необходимого уровня рентабельности.
Пр = с/с * R>пр >/100 (5.2)
где R>пр> - уровень рентабельности (рекомендуется принимать в пределах от 15 до 40 %)
5.1.2.Расчет себестоимости сушильной машины
Материальные затраты представлены в таблице 5.1., в которой содержатся материалы и комплектующие сушильной машины, а также их количество и стоимость за единицу.
ТАБЛИЦА 5.1.
Стоимость материалов и комплектующих изделий.
|
№ п/п |
Наименование материалов и комплектующих изделий |
кол- во |
Цена за еди -ницу материалов, руб. |
Стоимость, руб. |
|
|
Железо листовое 1,5 мм. |
72 лист. |
200 |
14400 |
|
|
Уголок металл. № 10 |
55 м. |
78,7 |
4328,5 |
|
|
Уголок металл. № 4 |
20 м. |
14,4 |
288 |
|
|
Болт М 8 ГОСТ 7805 - 70 |
15 кг. |
29 |
435 |
|
|
Болт М 16 ГОСТ 7805 - 70 |
10 кг. |
29 |
290 |
|
|
Болт М 20 ГОСТ 7805 - 70 |
5 кг. |
29 |
145 |
|
|
Гайка М 8 ГОСТ 5808 - 79 |
15 кг. |
29 |
435 |
|
|
Гайка М 16 ГОСТ 5808 - 79 |
10 кг. |
29 |
290 |
|
|
Гайка М 20 ГОСТ 5808 - 79 |
5 кг. |
29 |
145 |
|
|
Шайба - 8 ГОСТ 7519 - 78 |
15 кг. |
29 |
435 |
|
|
Шайба - 16 ГОСТ 7519 - 78 |
10 кг. |
29 |
290 |
|
ИТОГО : |
21481,5 |
Транспортные расходы принимаем в размере 15% от стоимости материалов и комплектующих из табл. 5.1.
Тр = 15%*С>мат> (5.3)
где Тр - транспортные расходы, руб;
С>мат> - стоимость материалов и комплектующих, руб.
Тр = 15*21481,5/100 = 3222,22 руб.
5.2 Расчет затрат на оплату труда основным производственным рабочим
ТАБЛИЦА 5.2.
Заработная плата основных производственных рабочих.
|
Профессия |
Числен - ность, чел. |
Часовая тарифная ставка руб./час. |
Затраты рабо-чего времени на 1 машину, час. |
Заработная плата по тарифу, руб. |
|
Изготовление |
||||
|
1.Слесарь 6 разр. |
4 |
16 |
160 |
10240 |
|
2.Сварщик 4 разр. |
1 |
17 |
160 |
2720 |
|
Монтаж |
||||
|
1.Слесарь 6 разр. |
4 |
16 |
70 |
4480 |
|
Итого : |
17440 |
Премии принимаем 30% от з/п по тарифу.
П = 30%*з/п >т>, руб (5.4)
П = 30 * 17440/100 = 5232 руб
Дополнительная з/п = 10% от основной з/п.
Дз/п = 10%*22672,2 руб = 2267,2 руб.
Затраты на оплату труда = Осн з/п + Д з/п
Затраты на оплату труда = 22672 + 2267,2 = 24939,2 руб.
5.3 расчет единого социального налога по основным производственным рабочим
СН = з/п * (СтСН/100), руб (5.5)
Социальный налог по основным производственным рабочим 35,6% плюс 4,2% - класс профессионального риска (металлургическое машиностроение 18 класс); [Федеральный закон «О страховых тарифах на обязательное социальное страхование от несчастных случаев на производстве и профессиональных заболеваний на 2001 г»], [Постановление от 27 мая 2000 г № 415 «О внесении дополнения в постановлении правительства РФ от 31 августа 1999 г №979»].
СН = 39,8 * 24939,2/100 = 9925,8 руб.
5.4 Расчет накладных расходов.
Накладные расходы берем 800 % от заработной платы основных производственных рабочих.
800*з/п
НР = __________ руб
100
800*24939,2
НР = _________________ руб = 199513,6 руб
100
С/с = С>мат> + Тр + з/п + СН + НР (5.7)
с/с = 21481,5 + 24939,2 + 9925,8 + 199513,6 = 259082,32 руб
R>пр> = 30%
Пр = 259082,32*30/100 = 77724,696 руб
Полученные и известные величины подставляем в формулу (5.1):
Ц = 259082,32 + 77724,696 = 336807,01 руб.