Расчет металлоконструкций
Министерство общего и профессионального образования Российской Федерации
Сочинский Государственный Университет Туризма и Курортного Дела
Институт туристского сервиса и инфраструктуры
Кафедра '' Строительные конструкции ''
Пояснительная записка
к курсовому проекту по дисциплине:
''Строительные конструкции''
Выполнил: студент IV курса
Группы 97 ЗГС
Дымченко И.В.
Проверил: Юрченко Е.Е.
Г. Сочи
Оглавление
Задание
Введение
Сбор нагрузок на 1 м2 поверхности покрытия
Определение усилий в элементах фермы
Подбор сечений
Расчёт сварных швов
Расчёт наружной стены
Расчёт монолитного внецентренного фундамента под пилястру
Расчёт прогона
Список использованной литературы
Введение
В курсовом проекте № 2 по дисциплине '' Строительные конструкции '' рассматривается одноэтажное здание выставочного павильона. Материал конструкции фермы – металлическая; пролёт фермы 240000000 м; стены здания кирпичные , толщиной 380мм расчётное сопротивление сжатию кладки R=1,7МПа; расстояние между осями В=6000мм
В курсовом проекте производится расчёты подбора сечений фермы, их проверка, расчёт сварных швов, расчёт каменных стен и монолитного внецентренно нагруженного ленточного фундамента, рассчитывается металлический прогон, его сечение, а также связи фермы.
Подбор сечений
|
Сжатая стойка |
N>3-14>= -62,14 |
|
Растянутая стойка |
N>5-12>= 81,20 |
|
Сжатый раскос |
N>6-12>= -60,08 |
|
Растянутый раскос |
N>8-10>= 256,22 |
|
Сжатый элемент верхнего пояса |
N>6-7>= -266,78 |
|
Растянутый элемент нижнего пояса |
N>12-13>= 253,09 |
Расчёт раскосов на сжатие:
N>6-12>= -60,08 А>п>треб= - 0,06008/(2500,950,67)= 0,00038= 3,8 см2
А>п>треб/2 = 1,9 см2 = А>с>
По сортаменту подбираем уголок L=505 мм
А>с>=4,8 см2 ; i>x> = 1,53см ; А = 9,6 см2 ; l = 5,43м
проверка на гибкость:

>х>=>у>=5,43/0,0153=354,9400 - верно
проверка на прочность:

62,58237
- верно
Расчёт стойки на сжатие:
N>3-14>= -62,14 А>п>треб= - 0,06214/(2500,950,67)= 0,00039= 3,9 см2
А>п>треб/2 = 1,95 см2 = А>с>
По сортаменту подбираем уголок L=505 мм
А>с>=4,8 см2 ; i>x> = 1,53см ; А = 9,6 см2 ; l = 2,33м
проверка на гибкость:

>х>=>у>=2,33/0,0153=152,29400 - верно
проверка на прочность:

64,73237
- верно
Расчёт элементов верхнего пояса на сжатие
. N>6-7 >= -266,78 А>п>треб= 0,26678/(2500,950,67)=0,001677= 16,77см2
А>п>треб/2 = 8,38 см2=А>с>
Уголок по сортаменту L=756 мм
i>x> =2,3см ; А>с>=8,78см2 ; А=17,56 см2 ; l = 4,22 м
проверка на прочность:

217,60237
- верно
проверка на гибкость:

>х>=>у>=4,22/0,0194=217,53400 - верно
Расчёт раскосов и элементов нижнего пояса на растяжение
1. N>8-10 >= 256,22 А>п>треб= 0,25622/(2500,95)=0,001078= 10,78см2
А>п>треб/2 = 5,39 см2=А>с>
Уголок по сортаменту L=635мм
i>x> =1,94см ; А>с>=6,13см2 ; А=12,26 см2 ; l = 4,12 м
проверка на прочность:

208,99237
- верно
проверка на гибкость:

>х>=>у>=4,12/0,0194=212,37400 - верно
2. N>12-13 >= 253,09 А>п>треб= 0,25309/(2500,95)=0,001066= 10,66см2
А>п>треб/2 = 5,33 см2=А>с>
Уголок по сортаменту L=635мм
i>x> =1,94см ; А>с>=6,13см2 ; А=12,26 см2 ; l = 4,0 м
проверка на прочность:

206,44237
- верно
проверка на гибкость:

>х>=>у>=4,0/0,0194=206,19400 - верно
3. N>5-12>= 81,20 А>п>треб= 0,08120/(2500,95)=0,00034= 3,4см2
А>п>треб/2 = 1,7 см2=А>с>
По сортаменту подбираем уголок L=505 мм
А>с>=4,8 см2 ; i>x> = 1,53см ; А = 9,6 см2 ; l = 5,0м
проверка на прочность:

84,58237
- верно
проверка на гибкость:

>х>=>у>=5,0/0,0153=326,80400 - верно
Составляем итоговую таблицу подобранного профиля:
|
Название элемента |
№ стержня, нагрузка |
Сечение , мм |
Площадь профиля , см2 |
|
Нижний пояс |
N>12-13>=253,09 |
635 |
6,13 |
|
Верхний пояс |
N>6-7>= -266,78 |
756 |
8,38 |
|
Стойка сжатия |
N>3-14>= -62,14 |
505 |
4,8 |
|
Раскос сжатия |
N>6-12>= -60,08 |
505 |
4,8 |
|
Раскос растяжения |
N>8-10>= 256,22 |
635 |
6,13 |
|
Стойка растяжения |
N>5-12>= 81,20 |
505 |
4,8 |
Расчёт сварных швов
у
обушка
у пера
N>12-13>= 0,50,7253,09=88,58 N>12-13>= 0,50,3253,09=37,96

обушок
перо
обушок
перо
N>6-7>= 0,50,7 -266,78=93,37 N>6-7>= 0,50,3 -266,78=40,02

обушок
перо
обушок
перо
N>3-14>= 0,50,7 -62,14=21,75 N>3-14>= 0,50,3 -62,14=9,32

обушок
перо
обушок
перо
N>6-12>=0,50,7 -60,08=21,03 N>6-12>=0,50,3 -60,08=9,01

обушок
перо
обушок
перо
N>8-10>=0,50,7256,22 =89,68 N>8-10>= 0,50,3 256,22 =38,43

обушок
перо
обушок
перо
N>5-12>= 0,50,7 81,20=28,42 N>5-12>= 0,50,3 81,20=12,18

обушок
перо
обушок
перо
Расчёт наружной стены
Расчёт пилястры наружной стены на нагрузку от опорной реакции
Шаг пилястры В=6м
Пролёт L=24м
Полная расчётная нагрузка на ферму g=2,26 кН/м2
Расчётное сопротивление сжатию кладки R=1,7МПа
Высота пилястры Н=8,4
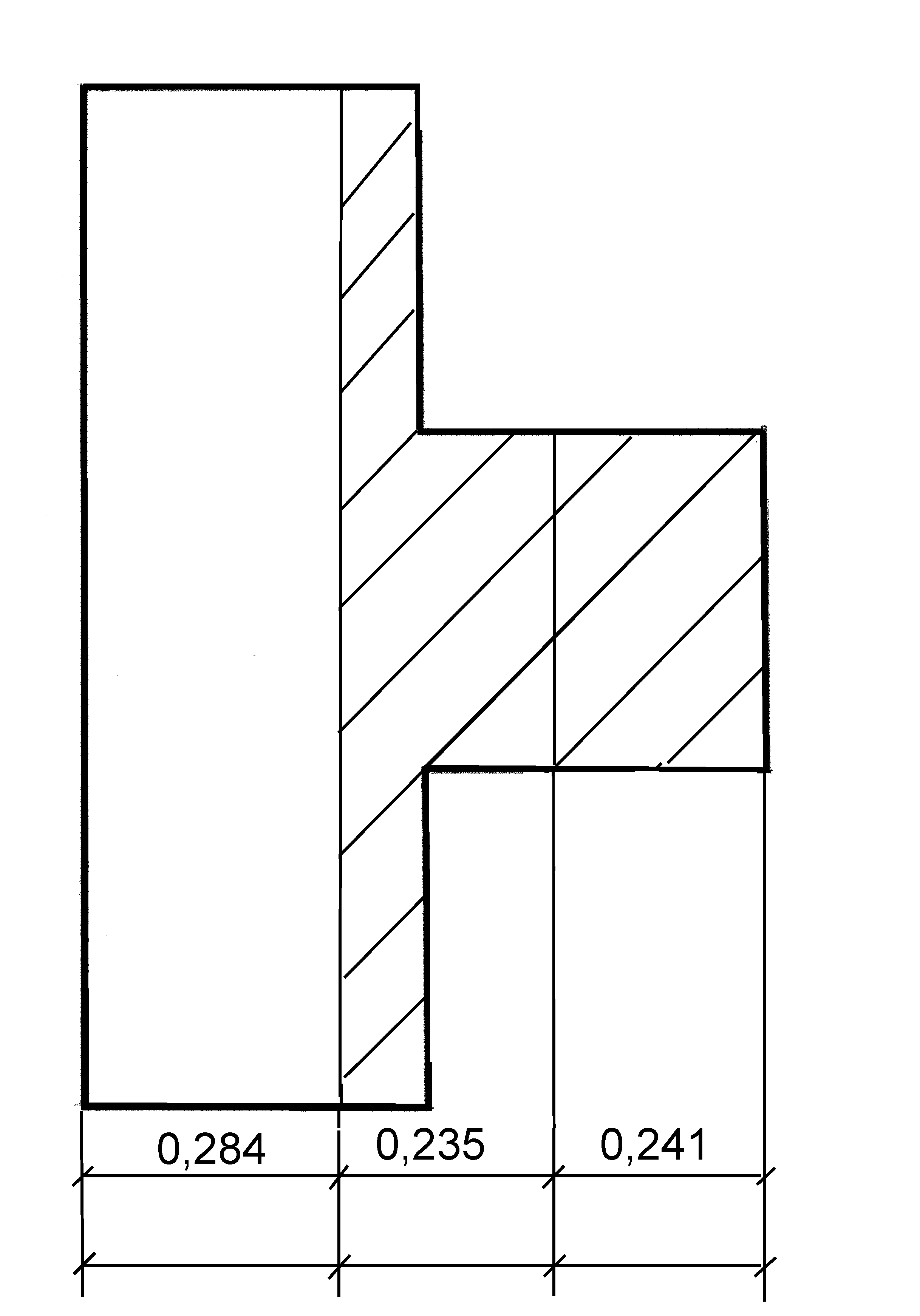
Геометрические размеры пилястры:

2. Определение нагрузок на пилястру
а) собственный вес столба:
G=0,380,38188,4=21,83кН
б) собственный вес стены:
Р=1,140,38188,4=65,50кН
в) опорные реакции покрытия фермы:
V=gBL/2=2,26624/2=162,72кН
г) сумма всех нагрузок:
21,83+65,50+162,72=250,05кН
собственный вес столба:
N=G+V=21,83+162,72=184,55кН
3.Определим геометрические характеристики сечений пилястры примыкающих стен:
определим центр тяжести расчётного сечения

4. Определим изгибающий момент от внецентренных нагрузок:
I>1>=h>1>/2=0,38/2=0,19
I>2>=h>1>+h>2>/2 =0,38+0,38/2=0,57
М>р>= - Р(I>c>-I>1>)=-65,50 (0,284 –0,19)=-6,16кН м
M>n>=N(I>2>-I>c>)=184,55(0,57-0,284)=52,78кН м
М= М>р>+ M>n>=6,16+52,78=58,94 кН м
5.Расчётный эксцентриситет от внецентренного действия нагрузок:


6. Определим высоты сжатой зоны расчётного сечения

Площадь сжатой зоны

Определим несущие способности участка стены и пилястры из условия:

где : mg=1 , так как местная сторона сечения h>20см
- коэффициент продольного изгиба, принимаем из таблицы зависимости от двух величин >h> и > >>I>
где:
h>c>-
высота сжатой зоны сечения
i – радиус инерции сечения
Для определения радиуса инерции выполним дополнительные вычисления

Расстояние центра тяжести от середины

Момент инерции

>1>=0,6 ; >2>=0,8


следовательно, несущая способность обеспечивается
VI. Расчёт монолитного внецентренного фундамента под пилястру
Исходные данные :
По данным расчёта пилястры принимаем значения
L>0>=0,235 м ; N>p>=301,07 кН ; М=58,94 кНм
Значение расчётного сопротивления грунта R>0>=300 кПа
Материал фундамента – бетон В-15, арматура АIII (К>s>=365 МПа)
Глубина заложения фундамента d=1,3 м
Определение предварительных размеров подошвы фундамента
Площадь сечения подошвы фундамента

где j=18 кН/м3
b/a=0,8
; a=b/0,8
;
1,2
ba=A ; b=a0,8=1,20,8=0,96
Проверка показывает результат, что глубина заложения фундамента 2 м,
аb1м , то необходимо учитывать нормативное сопротивление

Определение краевого давления на основание.
Определяем
вес грунта на уступах фундамента:

Эксцентриситет равнодействующей усилий от всех нагрузок:
,
так как
,
то краевое давление вычисляется по
формуле:

Расчет тела фундамента
Рабочую высоту фундамента у основания пилястры определяем из условия прочности на продавливание, (данные b>2> и h>2> взяты из расчета пилястры), р - максимальное из значений +р>1> и –р>2>

По конструктивным соображения величина h округляется в соответствие с модулю М 300, h=0,21м
Расчет рабочей арматуры сетки нижней плиты в направлении - а.
Требуемое сечение арматуры подбирается по формуле:


Шаг стержней принять 200 мм 36 мм
VII. Расчёт прогона
Исходные данные:
Прогоны рассматриваются как неразрезные балки, шаг прогонов - а, соответствует шагу узлов верхнего пояса ферм. Угол наклона прогона соответствует углу наклона верхнего пояса фермы.
Расчетная нагрузка на прогон:

Принимаем [24 А=30,6см2 , W>y>=31,6см3 , I>x>=2900 см4 , I>y>=208 см4
