Ремонт сельскохозяйственной техники
Годовой план, на 1988 год ремонтов и технического обслуживания машин.
|
Марки или названия машин |
Количество |
Ремонты и Т.О. |
Годовое количество ремонтов и Т.О. |
Трудоемкость, чел/час |
В том числе по кварталам |
||||||||
|
На 1 ремонт |
На весь ремонт |
I |
II |
III |
IV |
||||||||
|
Кол-во Р. и Т.О. |
Чел/час |
Кол-во чел. Р. и Т.О. |
Чел/час |
Кол-во Р. и Т.О. |
Чел/час |
Кол-во Р. и Т.О. |
Чел/час |
||||||
|
1 |
2 |
3 |
4 |
5 |
6 |
7 |
8 |
9 |
10 |
11 |
12 |
13 |
14 |
|
ДТ.-75 |
14 |
К.Р. Т.Р. С.О. Т.О.-3 Т.О.-2 Т.О.-1 |
3 7 28 14 84 336 |
337 236 25 20 8,5 2,3 |
1011 1652 700 280 672 772,8 |
1 2 - 1 10 40 |
337 472 - 20 85 92 |
1 1 14 4 26 101 |
337 236 350 80 221 232,3 |
- 1 - 6 33 134 |
- 236 - 120 280,5 308,2 |
1 3 14 3 15 61 |
337 708 250 60 127,3 140,3 |
|
МТ.3-80 |
15 |
К.Р. Т.Р. С.О. Т.О.-3 Т.О.-2 Т.О.-1 |
1 2 30 15 90 360 |
123 90 25 17 7 2,6 |
123 180 750 255 672 936 |
- - - 1 11 43 |
- - - 17 77 111,8 |
- 1 15 5 29 108 |
- 90 375 85 303 280,8 |
- - - 6 38 144 |
- - - 102 266 374,4 |
1 1 15 3 18 65 |
123 90 375 51 126 169 |
|
К-700 |
2 |
К.Р. Т.Р. С.О. Т.О.-3 Т.О.-2 Т.О.-1 |
- - 4 2 12 48 |
- - 27 24 13 2,7 |
- - 108 48 156 129,6 |
- - - - 1 5 |
- - - - 13 13,5 |
- - 2 - 4 15 |
- - 54 - 52 40,5 |
- - - 1 5 19 |
- - - 24 65 51,3 |
- 2 1 2 9 |
54 24 26 24,3 |
|
Т.-150 |
2 |
С.О. Т.О.-3 Т.О.-2 Т.О.-1 |
4 2 12 48 |
27 22 10 2,5 |
108 44 120 104,8 |
- - 1 5 |
- - 10 13 |
2 - 4 15 |
54 - 40 39 |
- 1 5 19 |
- 22 50 49,4 |
2 1 2 9 |
54 22 20 23,4 |
|
Т-40 |
2 |
С.О. Т.О.-3 Т.О.-2 Т.О.-1 |
4 2 12 48 |
25 17 7 2,6 |
100 34 84 124,8 |
- - 1 5 |
- - 7 13 |
2 - 4 15 |
50 - 32 39 |
- 1 5 19 |
- 17 35 33,8 |
2 1 2 9 |
50 17 14 23,4 |
|
Т-25 |
2 |
С.О. Т.О.-3 Т.О.-2 Т.-1 |
4 2 12 48 |
10 8 3 1 |
40 16 36 48 |
1 5 |
3 5 |
2 - 4 15 |
20 - 12 15 |
1 5 19 |
8 15 13 |
2 1 2 9 |
20 8 6 9 |
|
Автомобили до 2т |
7 |
К.Р. Т.Р. С.О. Т.О.-2 Т.О.-1 |
14 - 7 35 140 |
65 - 3 16,5 - |
910 189 21 577,5 |
4 - - 4 16 |
260 226 - 66 - |
3 - 7 10 42 |
195 567 21 125 - |
2 - - 14 56 |
130 759 231 |
5 - 7 7 26 |
325 340 21 115,5 |
|
Автомобили от 2т до 5т |
20 |
К.Р. Т.Р. С.О. Т.О.-2 Т.О.-1 |
5 - 20 100 400 |
95 - 3,8 16,9 - |
475 6000 76 1690 - |
1 - - 12 48 |
95 720 - 202,8 - |
1 - 20 30 120 |
95 2040 76 507 - |
1 - 40 160 |
95 1800 - 676 - |
2 - 20 18 72 |
190 1080 76 304,2 |
|
Автомобили от 5т до 8т |
5 |
К.Р. Т.Р. С.О. Т.О.-2 Т.О.-1 |
1 - 5 32 100 |
105 - 4,1 19,5 - |
105 2800 20,5 624 - |
- - - 3 12 |
- 336 - 58,5 - |
- - 5 10 30 |
- 840 20,5 195 - |
13 40 |
- 1120 - 253,5 - |
1 - 5 6 18 |
105 504 20,5 117 - |
|
Автомобили более 8т |
6 |
К.Р. Т.Р. С.О. Т.О.-2 Т.О.-1 |
1 - 6 35 120 |
160 - 5 24 - |
160 2520 30 840 - |
- - - 4 14 |
- 302 - 96 - |
- - 6 10 36 |
- 756 30 240 - |
- - - 14 48 |
- 1008 - 336 - |
1 - 6 7 22 |
160 454 30 168 - |
|
СК-5 |
19 |
К.Р. Т.Р. посто-2 |
4 8 19 |
330 202 15 |
1320 1616 285 |
2 1 - |
660 202 - |
- 12 - |
- 404 - |
- - - |
- - - |
2 5 19 |
666 1010 285 |
Введение
Рост машинотракторного парка сельского хозяйства при интенсификации его использования, предъявляет большие требования к дальнейшему развитию ремонтной базы сельского хозяйства, которая призвана обеспечить качество ремонта и обслуживания техники, постоянную работоспособность всего парка машин.
На ремонтно-технических предприятиях предусматривается, как привило проведение всех капитальных ремонтов и технических уходов машин. Все ремонтно-технические предприятия и мастерские хозяйств должны быть обеспечены современными металлорежущими станками, ремонтно-технологическим оборудованием, приборами, приспособлениями и инструментам. На ремонтно-технических предприятиях необходимо внедрять индустриальные методы ремонта, совершенствовать организацию труда, внедрять рекомендации по Н.О.Т. – все это обеспечивает высокое качество ремонта и высокую производительность труда.
В ремонтно-технических предприятиях должны быть четко налажены планирование, контроль и учет всех работ объектов, их загрузки. Ремонт машин необходимо производить с равномерной загрузкой в течение всего года. Главными направлениями в развитии ремонтной сазы сельского хозяйства являются:
Развитие специализации – создание ремонтных предприятий не только по ремонту тракторов, автомобилей, комбайнов их агрегатов и узлов, но и по ремонту свеклоуборочных, силосоуборочных машин и других сложных сельскохозяйственных машин.
Внедрение широкой кооперации между ремонтно-техническими предприятиями по ремонту агрегатов и машин, создание межобластных и межреспубликанских связей кооперирования по ремонту двигателей, тракторов, комбайнов и других объектов, а также восстановлению деталей.
Широкое внедрение агрегатного метода ремонта машин за счет внедрения механизированного инструмента, автоматизации отдельных технологических процессов. Техническое обслуживание машинно-тракторного парка осуществляется общими силами и с помощью районных ремонтно-технических предприятий на основе хозяйственных договоров. Применение современных средств технического обслуживания машинно-тракторного парка позволяет значительно улучшить условия труда механизаторов, повысить производительность пруда и снизить себестоимость ремонта.
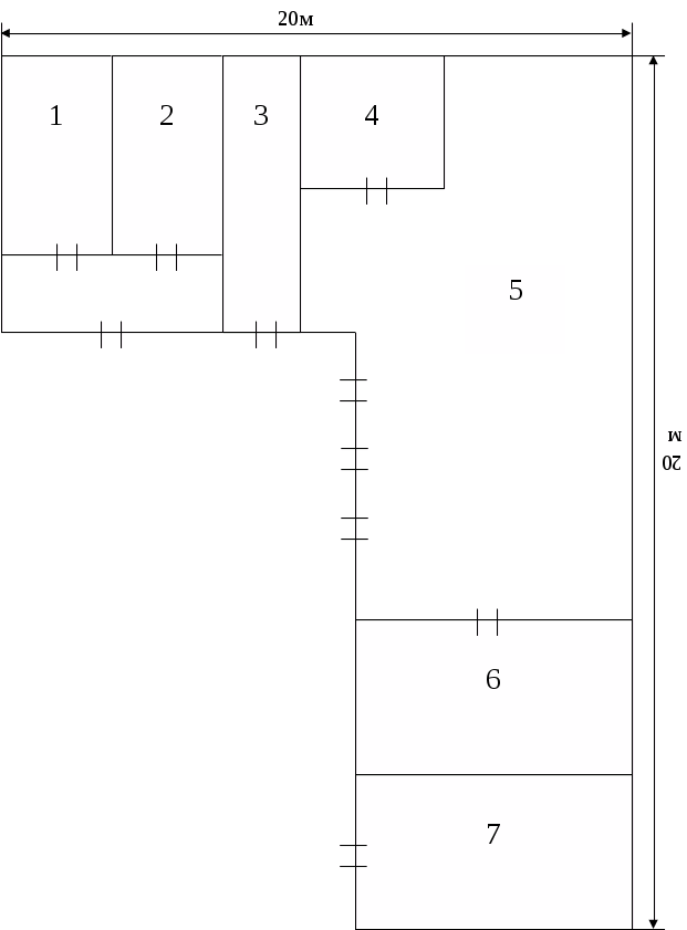
Схема М.Т.П. колхоза „Заря коммунизма“.

1 кузнечный цех
2 сварочный цех
3 гараж
4 моторный цех
5 мастерская
6 токарный цех
7 склад
Плановое задание
|
Тракторы |
Физических |
Объем работ на условных га |
|
К-700, К-701 Т-150к ДТ-75, Т-75 Т-25 Т-40 МТ3-82 МТ3-80 ЮМ3-6 МТ3-50 |
2 2 14 2 2 2 6 6 1 |
6000 5000 16000 600 3600 3000 9000 9000 1200 |
|
Итого |
38 |
54400 |
|
Автомобили грузовые, грузоподъёмность |
Физических |
Объём работ в т. т. км |
|
От 2 до 5 т От 5 до 8 т Более 8 т |
20 5 6 |
609 200 210 |
|
Итого |
31 |
1010 |
|
Автомобили легковые |
7 |
210 |
|
УАЗ-469 |
2 |
60 |
|
Комбайны зерноуборочные |
||
|
СКП-5, СК-5, СКК-5 СК-6 СКД-5, СК-6, КСК-100 КСС-2,6 КС-1,8 КПКУ-75 |
19 1 1 2 3 2 |
2660 140 109 200 300 200 |
Виды ремонтируемой техники
|
Тракторы |
Наличие на отчетную дату |
|
К-700, К-701 МТ-3, ЮМ3 Т-150К ДТ-75 |
2 14 2 23 |
|
Грузовые автомобили Зерноуборочные комбайны Тракторные прицепыТракторные косилки Грабли тракторные Пресс подборщик Силосоуборочные комбайны Самоходные комбайны КСК-100 Жатки валковые Зерноуборочные машины Плуги тракторные Сеялки тракторные В том числе кукурузные Культиваторы Машины для внесения в почву органических твердых и жидких удобрений Опрыскиватели и опылители Протравочные машины Электрифицированные насосные станции оросительных систем Дождевальная и поливочная машина и установки В том числе „Волжанка“ |
28 20 34 8 4 3 8 1 12 2 13 38 5 20 1 1 1 4 5 5 |
Расчетно-технологическая часть.
Для составления годового плана требуется определить количество капитальных, текущих ремонтов и Т.О.
Количество ремонтов определяется аналитическим методом по планируемой среднегодовой наработке на одну машину. Количество годовой наработки определяем по формуле:

где Вг – плановое годовое задание;
П – плановое годовое задание;
Ак – межремонтный интервал до капитального ремонта. Ульман: стр.362.
Межремонтная наработка до капитального ремонта установлена Постановлением Совета министров РСДНР от 16 июня 1976 года для тракторов каждой марки в зависимости от почвенно-климатической зоны.
Определяется количество капитальных ремонтов для ДТ-75
,
Ак = 62400 табл., № 1 стр. 19, Каминский Н.Б. „Курсовое проектирование ремонта машин“.

Определяем количество TO-3.2.1. по коэффициенту охвата ремонтом, который равен:
Т.О.-3 = 1,
Т.О.-2 = 6,
Т.О.-1 =24,
С.О. = 2,
Т.О.-3 = 14х1 = 14,
Т.О.-2 = 14х6 = 84,
Т.О. 1 = 14х24 = 336,
N CO = 14х2 = 28.
Определяем количество капитальных и текущих ремонтов М.Т.3-80-Ю.М.З. всех марок:
.
Определяем количество Т. ремонтов:
.
Определяем количество Т.О.-3.2.1. по коэффициенту охвата ремонтом, который равен:
Т.О.3 = 1,
Т.О.2 = 6,
Т.О.1 = 24,
С.О. –2,
Т.О.3 = 15х1 = 15,
Т.О.2 = 15х6 = 90,
Т.О.1 = 15х24 = 360,
Nw = 15х2 = 30.
Определяем капитальный текущий ремонт:
К-700
.
Текущих ремонтов:
,
N Т.О.х3 = П х П = 2х1 = 2,
N Т.О.х2 = П х П = 2х6 = 12,
N Т.О.х1 = П х П = 2х24 = 48,
Nw = 2х2 = 4.
Т-150
,
,
Т.О.3 = 2х1 = 2,
Т.О.2 = 2х24 = 48,
Т.О.1 = 2х6 =12,
N CO = 2x2 = 4.
Т-40
,
,
Т.О.3 = 2х1 = 2,
Т.О.2 = 2х6 = 12,
Т.О.1 = 2х24 =48,
N CO = 2x2 = 4.
Т-25
,
Т.О.3 = 2х1 = 2,
Т.О.2 = 2х6 = 12,
Т.О.1 = 2х24 =48,
N CO = 2x2 = 4.
Определяем капитальных и текущих ремонтов автомобилей:
,
Количество текущих ремонтов для автомобилей не рассчитывается, но трудоемкость в годовом плане учитывается.
,
.
Каминский, „Курсовое проектирование по ремонту машин“, стр. 22.
N Т.О. = 20х5 П х П = 5х20 = 100.
Т.О.-1 определяем коэффициентом охвата ремонтом, который равен 20. Табл. 35, Ульман „Ремонт машин“, стр. 364.
Аналогично рассчитываем для остальных автомобилей и сводим в таблицу.
Распределяем тех. Обслуживание до периода года в процентном отношении.
Капитальный ремонт, I квартал – 35%,
Текущий ремонт, II квартал – 15%,
III квартал – 20%,
IV квартал – 30%.
Определяем количество капитальных и текущих ремонтов для комбайнов:
,
А>К> = 1200 га
Ульман „Ремонт машин“.
.
Определяем количество текущих ремонтов:
,
Ульман „Ремонт машин“.
.
П.С.Т.О. = 1,
N П.С.Т.О. = 1х19 = 19.
Определяем количество капитальных ремонтов для автомобилей.
Текущие ремонты:
I кв. – 35%,
II кв. – 15%,
III кв. –
IV кв. –
Т.О.
I кв. – 12%,
II кв. – 30%,
III кв. – 40%,
IV кв. – 18%.
С.Т.О. – Проводится два раза в год во II и IV квартале.
Распределяем количество капитальных ремонтов для Д.Т.-75.
принимаем
1.
,
, принимаем 1.
.
Распределяем количество текущих ремонтов:
,
принимаем 1.
.
Распределяем таблицу Т.О.-3:
,
принимаем 1.
,
принимаем 4.
,
принимаем 6.
.
Аналогично рассчитываем для ТО-2, ТО-1 и для остальных тракторов и заносим в годовой план.
Определяем трудоёмкость текущего ремонта автомобилей по формуле:
,
Каминский, „Курсовое проектирование по ремонту машин“, стр.30, формула №10.
,
-
трудоёмкость Т.Р. на трудоёмкость
пробега.
Каминский, „Курсовое проектирование по ремонту машин“, стр.30, табл.12.
ГАЗ – 51 – 52 – 8,6 10 часов, средняя трудоёмкость
ГАЗ 53 9,6 от 2 до 5 т, для автомобилей
Свыше 5 т
ЗИЛ – 10,4 час,
Для УАЗ – 13 час.
До 2 т – 9 час
Более 8 т – 12 час
До 2 т
,
От 2 до 5 т
,
От 5 до 8 т
,
Более 8 т

Распределяем трудоёмкость по текущему году (в процентном отношении).
I кв. – 12%,
II кв. – 30%,
III кв. – 40%,
IV кв. – 18%.
.
И так для всех машин.
Заносим в годовой план.
Определяем общую трудоёмкость по капитальному ремонту по трактору ДТ – 75.
Трудоёмкость в чел/час на одну машину составляет:
Капитальный ремонт – 337 час,
Текущий ремонт – 236 час.
Т.О.3 – 20
Т.О.2 –
Т.О.1 –
Ульман, „Ремонт машин“, стр. 438, приложение 14 и 15.
Определяем суммарную и по периодам года трудоёмкость по капитальному ремонту:
.
Определяем трудоёмкость по периодам года.
Капитальный ремонт II – IV кв.
t Iкв. 337х 2 = 674 чел.час
Определяем общую трудоемкость на текущий ремонт:
.
В процессе эксплуатации машин есть место незапланированных отказов и неисправностей машин определяется в процентном отношении от трудоемкости текущего ремонта соответствующего вида машин:
по тракторам принимается 30% от текущего ремонта,
по комбайнам – 20%
.
Трудоемкость текущего ремонта берется из годового плана:
,
.
Полученную трудоемкость распределяем по периодам года в процентном отношении:
по тракторам:
I кв. – 8%,
II кв. – 32%,
III кв. – 40%,
IV кв. – 20%.
По комбайнам устранение неисправностей проводится в период их работы, т.е. в III квартале. По автомобилям устранение неисправностей проводится текущим ремонтом.
Составляем сводный годовой план по хозяйству на 1988 год с распределением ремонта и ТО по местам их выполнения.
|
Наименование или марка машин |
Кол-во машин |
Годовая трудоемкость в чел/час. |
В том числе |
|||
|
Ц.Р.М. |
П.Т.О. |
Автогараж |
Р.Т.П. |
|||
|
Тракторы ДТ-75 М.Т.3 К-700 Т-150 Т-40 Т-25 Автомобили ЗИЛ Комбайны всего Итого: |
14 15 2 2 2 2 28 20 |
1134 1832 1172 1740 356 2136 1650 1133,89 3731,5 147,5 1320 1616 285 18253,8 |
1832 1172 6605 1616 11225 |
1740 356 2136 145,5 285 4664,5 |
6605 3731,5 4288,4 |
1134 1650 1320 4104 |
Расчет трудоемкости на дополнительные ремонтные работы.
Трудоемкость дополнительных ремонтных определяется в процентном отношении от суммарной трудоемкости по основным ремонтным работам в ремонтной мастерской.
Трудоемкость по ремонту собственного оборудования принимаем 8%.
Изготовление инструмента 3%.
Прочих работ 10%.
Изготовление запасных частей 5%.
Трудоемкость определяется по формуле:

,
Трудоемкость по ремонту оборудования:
,
,
,
,
.
Составляем сводную ведомость загрузки Ц.Р.М.
|
№ п/п |
Наименование работ |
Вид ремонта |
Годовая трудоемкость |
В т.ч. по кварталам |
|||
|
I |
II |
III |
IV |
||||
|
1. 2. 3. 4. 5. 6. 7. 8. 9. 10. 11. |
Ремонт тракторов УН по тракторам Т.О. по тракторам Ремонт по комбайнам УН по комбайнам Т ремонт автомобилей Ремонт оборудования Изготовка зап. частейИзготовка приспособ. Ремонт оборуд. МЖФ Прочие ремонты |
Т.Р. ТО-3 Т.Р. - Т.Р. ЦРМ Т.Р. |
1832 549,6 1172 1616 323 6604 898 561 336 1347 1122 |
472 44 57 202 - 792 - - - - 1050 |
326 176 250 404 - 2581 - - - 570 - |
236 219 293 - 323 2042 - - - 477 - |
798 110 182 1010 - 1189 - - 336 300 72 |
|
Итого |
15970 |
4076 |
4307 |
3590 |
3997 |
Определяем количество рабочих в мастерской по формуле:
,
где
- общая трудоемкость по Ц.Р.М,
ф – фонд времени рабочего,
7d – количество 7-часовых рабочих дней в году
6d – количество 6-часовых рабочих дней в году.
6d = 56,
7d= 250.
Ф раб.= (7х250+6х56) 0,95 = 1976
Определяем количество рабочих:
.
Определяем количество И.Т.Р.
Которое принимаем 10% количество рабочих.
,
,
принимаем за 1 итр.
Определяем количество условных ремонтов:
,
где К – коэффициент, равный 300.
.
По количеству условных ремонтов выбираем типовую ремонтную мастерскую с учетом, что в ней будут производится текущие ремонты несложной сельскохозяйственной техники и перспективой на 5 лет.
Выбираем типовой проект ХП – 816 – 128.
Выбираем оборудование для цеха по ремонту топливной аппаратуры.
|
№ п/п |
Наименование |
Тип или марка |
Техническая хар-ка |
Изготовитель |
Кол-во |
Установочная мощность в квт |
Примеч. |
|
|
1 |
2 |
3 |
4 |
5 |
6 |
7 |
8 |
9 |
|
1 2 3 4 5 |
Прибор для проверки топливных насосов Ванна для мойки деталей Стеллаж для деталей и узлов топливной аппаратуры Стенд универсальный для испытания и регулирования Верстак для разборки и сборки |
577 ГАРО 2031 1019-505-00 Кч 92114 Кч 921 |
365 х 320 х 640 640х520 х 1982 1000 х 950 х 500 1300 х 950 х 1730 1850 х 950 |
ПРОМ ПРОМ Собств. изготов ПРОМ - |
1 1 1 - |
- - 1.7 - |
- - 1.7 - |
Киевский 3 –9 ГАРО По чертежу ГИПРО авт. По чертежу ГОСНИТИ Красно устимски |
Определяем площадь отделения по формуле:
,
К = 4:4,5
F = 3 · 4,5 = 13,5 кв. м.
По производственному проекту площади отделения должна быть 18 м2.
Мастерская по типовому проекту 816 – 71, имеется цех топливной аппаратуры. Оборудование имеется согласно проекту. Определяем количество рабочих по отделениям для этого определяем трудоемкость.
Марка машин |
Вид ремонта |
Общая трудоемкость |
% |
Трудоемкость на отделениях |
|
ДТ –75 трактор |
Текущий ТО-3 СТО |
3286 1015 2660 |
2,5 5 5 |
82 50 13.3 |
|
Автомобили |
ТР ТО>2> |
7680 1250 |
2,7 5 |
207 62 |
|
Комбайны |
ТР |
2424 |
1 |
24 |
Определяем количество рабочих по отделениям по формуле:
.
Принимаем одного рабочего, который будет выполнять дополнительную работу в моторно-ремонтном отделении.
Во всех производственных помещениях применяются естественная, а в ряде отделений и цехов также искусственная вентиляция. Расчет естественной вентиляции сводится к определению площадей фрамуг или форточек. Расчет искусственной вентиляции – к выбору её вида, определению воздухообмена, подбору вентилятора и электродвигателя. По нормам промышленного строительства все помещения должны иметь сквозное естественное проветривание. Площадь критического сечения фрамуг или форточек берется в размере 2 – 4% от площади пола. Искусственной вентиляцией оборудуются те помещения, в которых на санитарно-гигиенические требования часовая кратность обмена воздуха установлена более трех (стр. 314, уч. Бобриков). В зависимости от характера производственного процесса выбирают вид вентиляции. При этом руководствуются следующими положениями. Общеобменную механическую вентиляцию проектируют в помещениях без выделений пыли, газов и паров. Местную механическую вентиляцию используют для удаления вредных выделений непосредственно с места их оборудования.
Рассчитываем величину воздухообмена по формуле Wв = Vn·K, где
Wв – производительность вентилятора,
Vn – объем отделения (цеха) в м3,
К – краткость обмена воздуха.
Находим объем помещения по формуле:
В = 1,2 …1,5
Vn = 13,5 м · 4 = 54 м3.
Часовая кратность воздухообмена для цеха топливной аппаратуры дается в учебниках (автор Бобриков стр. 314) и равно 3 – 4. Принимаем 4. Подставляем значение в первую формулу Wв = Vn·K = 54м3·4 = 216 м3/час.
Рассчитываем мощность
электродвигателя потребного для привода
вентилятора по формуле:

,
где
Wв – производительность вентилятора,
Нв – напор вентилятора,
Nв – коэффициент полезного действия вентилятора,
β – коэффициент запаса мощности.
β = 1,2
кВт
Для электродвигателя принимаем мощность 0,44 кВт. По таблице №150 учебника Бобрикова стр. 316, выбираем напор вентилятора, тип, номер, КПД и число оборотов. Берем вентилятор, электродвигатель АОЛ 21-4, КПД-45, напор 425, производительность 300, число оборотов.
|
Отделение, участок |
Площадь, м2 |
Часовая кратность обмена воздуха |
Вид вентилятора |
Марка вентилятора |
Производительность вентилятора |
Установленная мощность электродвигателя, кВт |
Тип электродвигателя |
|
Цех топливной аппаратуры |
13,5 |
4 |
Искусственное |
Э.В.Д |
300 |
0,44 |
АОЛ-21-4 |
Дипломным проектом рассчитано установить в цехе один центробежный вентилятор.
Расчет естественного освещения.
Расчет естественного освещения сводится к подбору окон и их количества.
Определяем высоту окна:
h>окн> = H-(H>под>+h>под>), где
H – высота помещения согласно типовым проектам предприятий.
H = 3,75 …4,25 м,
H>под> – расстояние от пола до подоконника равна 0,8 …1,2 м,
h>под> – размер подоконного пространства равный 0,3 …0,5 м,
h>окн> = 4-(1,2+0,5) = 2,3м.
Принимаем стандартную высоту окна 2,1 м, ширину окна выбираем в зависимости от высоты и конструктивных размеров помещения.
Ширина равна 1,55м.
Определяем световую площадь проемов по формуле:
F>ок> = P>пол> · R(м2), где
F>ок> – площадь световых проемов в цехе,
Р>пол> – площадь пола в отделении,
R – световой коэффициент, значение которого принимаем из таблицы 24 учебника Зайцев, Бобриков Ф.А. „Курсовое и дипломное проектирование“, стр.201.
К = 0,3
F>ok> = 13,5 · 0,3 = 4,05
Определяем количество окон по формуле:
,
где
β – стандартная ширина окна равная 1,55 м.

Принимаем для цеха топливной аппаратуры 1 окно.
Искусственное освещение.
Искусственное освещение помещений производится электрическими лампочками различных конструкций, обеспечивающих достаточную предусмотренную нормами освещенность рабочих мест. Искусственное освещение может быть общим, местным, комбинированным и специальным.
Расчет искусственного освещения заключается в подсчете числа ламп для цеха топливной аппаратуры, высота их подвески и размещения по цеху. Число ламп для общего освещения выбираем по методу „Ветт“ по удельной световой мощности. Общую световую мощность необходимую для освещения цеха определяем из соотношеня:
I = F>пол>·I>0>(Вт), где
I>0> – удельная световая мощность, вт/м2, берется из таблицы №157 уч. Бобрикова Ф.А. „Курсовое и дипломное проектирование“.
I>0> = 12-14, принимаем 13,
I = 13,5·13 = 175,5 вт/м2.
По той же таблице задаюсь мощностью одной лампы для цеха топливной аппаратуры:
I>л> = 100 Вт.
Определяем количество ламп:
(ламп)
Для цеха ремонтно-топливной аппаратуры принимаем 2 лампы.
Рассчитываем высоту подвеса светильника по формуле:
Н>n> = H ( h>c>+h>p>), м, где
Н – высота помещения,
h>c> – расстояние от светильника до потолка (0,2 …0,25) Н>0> (м).
h>р> – расстояние от пола помещения до рабочей плоскости, равная 1,2 м.
Н>0> = Н-h>p> = 4-1,2 = 2,8 м,
h>с> = 0,2-2,8 = 0,56 ≈ 0,6 м,
Н>h> = 4·(0,6+1,2) = 4-1,8 = 2,2 м.












h>c>=0,25
h>c>=2,8



Принимаем два водонепроницаемых светильника типа (ВЗГ) стекло матовое, расположение рядное.
Организация рабочего места по ремонту топливной аппаратуры.
Ремонт и регулировку топливной аппаратуры тракторов, а также устранение неисправностей, возникающих в процессе эксплуатации машин, производят на специализированных рабочих местах, оснащенных необходимым оборудованием, инструментом и приспособлениями.
Оборудование для ремонта, регулировки и обслуживания топливной аппаратуры размещают в изолированных, хорошо освещенных помещениях, в которых полы и стены должны быть покрыты керамической плиткой, а потолок – светлой масляной краской. В помещении для ремонта топливной аппаратуры или рядом с ним должны находиться простейшие противопожарные средства (огнетушители, ведра, закрытый ящик с песком). Оборудование в помещении должно быть размещено в такой технологической последовательности, чтобы рабочий не делал в процессе работы лишних движений и перестановок топливной аппаратуры и технической оснащенности.
Для испытания, регулировки и замены вышедших из строя узлов типовым проектом предусмотрено следующее оборудование: стеллаж для топливной аппаратуры ожидающей ремонта и прошедшей ремонт, моечную ванну для ополаскивания деталей и узлов, верстак с тисками и стендом для разборки топливных насосов, верстак с приспособлением для разборки форсунок, головок топливных насосов, а также для размещения приборов для испытания плунжерных пар, нагнетательных клапанов и форсунок. Стенд для испытания и регулировки дизельной топливной аппаратуры, стол для записи результатов регулировки и для хранения технической документации. Для выполнения операций, связанных с частичной разборкой, сборкой топливной аппаратуры при осмотрах и заменой изношенных деталей и узлов в цехе должен быть комплект приспособлений.
Промышленностью выпускаются два комплекта: комплект „А“ для технического обслуживания и ремонта топливных насосов 4 ТН – 9х10, а также топливных насосов дизелей КДН-100 и комплект „Б“ только для топливных насосов 4 ТН – 9х10. Топливная аппаратура должна поступать в цех комплектации с закрытыми топливо-отводящими каналами, тщательно очищенная и промытая. Ванна, находящаяся в цехе, предназначена для ополаскивания чистым дизельным топливом, узлов топливной аппаратуры при частичной разборке. Топливный перед установкой на стенд тщательно проверяют. При этом вскрывают и проверяют величину зазоров рейки регулятора и механизма привода.
Если величины зазоров не допускают допустимых пределов, а рычаги перемещаются свободно, без заедания и прихватывания, то насос устанавливают на стенд и проверяют техническое состояние плунжерных пар, нагнетательных клапанов, подкачивающего насоса, а также контролирует величину давления в головке топливного насоса.
Узлы не удовлетворяющие техническим условиям, заменяют исправными. Затем проверяют и, в случае необходимости, настраивают регулятор и устанавливают требуемую подачу топлива. Если в топливном насосе износ деталей превышает допустимой, то его ремонтируют.
Организация ремонта топливной аппаратуры
Производственная программа – снизить стоимость ремонта топливной аппаратуры и увеличить срок службы её можно благодаря механизации и специализации труда рабочих. А это возможно лишь при концентрации в одном предприятии большого числа ремонтируемых агрегатов. По мере концентрации производства будут увеличиваться и расходы на доставку агрегатов для ремонта и на получение хозяйством их из ремонта, капитальных затрат на помещение и оборудование, затраты на приобретение и содержание обменного фонда, содержание обменных пунктов.
Оптимальной программой ремонтного предприятия является такая, при которой может быть получена наименьшая себестоимость ремонта, с учетом указанных выше затрат. В настоящее время в стране разработаны проекты специализированных цехов для производственной программы ремонта 6000 и 10000 комплектов дизельной и топливной аппаратуры в год при односменной работе и соответственно 12000 и 20000 комплектов при двухсменной работе.
Основа организации производства по ремонту топливной аппаратуры составляет поточный метод. Рабочие места и оборудование размещают в соответствии с последовательностью выполнения технологических операций и лишь на отдельных участках, например, восстановление и ремонт деталей рабочие места планируют по видам работ и группируют по функциональному признаку.
Поточный метод ремонта.
Основные разновидности потоков движения ремонтируемых узлов, механизмов и деталей, использованные при организации производственного процесса показаны на рисунках:














При выборе той или иной схемы учитываются размеры и формы помещений (соотношение длины и ширины), взаимное расположение технологически связанных участков, наличие и тип транспортных средств. Путь перемещения деталей должен быть кратчайшим. При планировки рабочих мест и размещении оборудования необходимо учитывать ширину проходов, установку стеллажей для узлов и механизмов, составляющих технологический задел, контейнеров, комплектовочной тары с деталями. Большое значение имеет ритмическое перемещение деталей и выполнение технологических операций в процессе всего цикла работ. Длину поточной линии определяют путем умножения протяженности рабочего места на количество рабочих мест.
Приёмка топливной аппаратуры в ремонт.
Топливную аппаратуру необходимо отправлять и принимать из ремонта в комплекте, состоящим из топливного насоса с регулятором и подкачивающим насосом, форсунок, трубок высокого давления и фильтров. При поступлении аппаратуры в ремонт проверяют её комплектность и устанавливают категорию ремонта. Со склада ремонтного фонда топливные насосы транспортируют на рабочее место разборки и мойки. Здесь на приспособлениях насосы разбирают на узлы и детали. Детали укладывают в контейнеры или специальную тару с ячейками. Насосы должны поступать в цех очищенные и вымытые снаружи. В связи с тем, что внутри насоса детали механизма привода и регулятора покрыты загрязненным маслом, топливные насосы сначала разбирают на узлы, а затем узлы моют и только после этого их разбирают на детали.
При разборке не все детали обезличиваются, например, нельзя обезличивать фланец с наружными кольцами этих же подшипников. Узлы разбирают в том случае, если не все детали можно хорошо промыть и продефектовать в собранном узле. Не нужно разъединять на отдельные детали при разборке насоса: вилку, тягу и кронштейны регулятора типа Р.В. Их моют, а затем дефектуют в сборе по величине люфта в сопряжениях. После разборке узлов детали в комплекте укладывают в корзину и направляют в мойку.
Дефектовка и комплектовка.
Вымытые детали из моечной машины поступают на склад, а с него после сушки на стол дефектовщика. При помощи специального, универсального измерительного инструмента и приспособления определяют техническое состояние деталей, сравнивают результаты замера с техническими условиями и сортируют детали на годные, подлежащие ремонту и брак.
Годные детали и узлы укладывают в соответствующие ячейки комплектовочной тары. Детали топливной аппаратуры при поточном методе ремонта, комплектуют на тех же рабочих местах, на которых выполняют дефектовку. Этим самым устраняют повторные измерения рабочих поверхностей. Сокращаются затраты труда на перекладку деталей. Однако при совмещении дефектовки и комплектовки в одном месте труднее организовать четкую работу на этих важнейших рабочих местах. Поэтому на некоторых предприятиях комплектуют на отдельном рабочем месте, что при большой производительности программы ремонта целесообразно.
Сборка топливных насосов
Узлы собирают на верстаке и устанавливают их на корпус насоса, закрепляют их на корпус насоса, закрепленный в тележки линии поточной сборки. Рабочие места сборки и разборки хорошо оснащены инструментом и приспособлениями. После сборки топливные насосы испытывают и регулируют, обкатывают.
Обкатка, испытание и регулирование топливных насосов
Топливный насос устанавливают на стенд СДТА-1. Подсоединяют топливопроводы низкого давления топлива, поступающего в головку испытательного топливного насоса, оно должно быть в пределах 0,6 – 0,9кг/см2. Винт вилки тяги регулятора устанавливают так, чтобы его конец выступал за плоскость вилки на 10 – 15 см. Освобождают систему топлива подачи от воздуха, после чего испытывают и регулируют топливный насос по следующим показателям.
Равномерность подачи топлива на номинальном режиме
Измеряют объем топлива поданного к каждым насосным элементам мензурки также как и при размере производительности уменьшают неравномерности путем изменения производительности насосных элементов, показавших максимальную и минимальную подачу топлива.
Число оборотов кулачкового вала в минуту, в момент
выключения подачи топлива регулятором
Рычаг управления регулятором прижат к боту максимальных оборотов, вращая штурвал вариатора стенда, увеличивают скорость вращения кулачкового вала топливного насоса до такого момента, когда через форсунки прекратится впрыск топлива. По тахометру определяют число оборотов вала в минуту в этот момент, если полученное число оборотов в момент включения подачи топлива не соответствует техническим условиям, то обычно заменяют пружину валика регулятора. Чтобы увеличить число оборотов необходимо поставить более жесткую пружину и наоборот.
Начало действия регулятора
Рычаг управления регулятора переводят до упора в болт-максимальных оборотах. Определяют по тахометру стенда число оборотов кулачкового вала насоса в минуту, при котором начинают отводить винт вилки регулятора от плоскости призмы обогатителя. Регулятором начинают перемешать рейку в сторону уменьшения подачи топлива, замеченное число оборотов соответствует началу действия регулятора. Настраивают действия регулятора на начало действия. Сначала изменение числа шайб под головкой болта максимальных оборотах, предусмотренными техническими условиями, заменяют число прокладок под внутренней и наружными пружинами регулятора.
Угол начала впрыска топлива
Рычаг управления регулятором прижат к болту максимальных оборотов, число оборотов кулачкового вала насоса в минуту номинальное. Стробоскоп стенда включают в электрическую сеть и спустя 1,5 – 2 минуты после нагрева электронной лампы поочередно включают тумблеры датчиков неподвижного диска стробоскопа, находят деление против световой линии вспышками, дает угол начала впрыска топлива насосным элементам в градусах условной шкалы, затем включают одновременно все работающие датчики насосов. Падение световых линий указывает не неточность чередований начала впрыска топлива на отдельном насосном элементе. Несовпадение должно быть не более 10. Изменяют угол начала впрыска путем завертывания или вывертывания регулировочного болта толкателя.
Производительность насосных элементов и равномерность подачи топлива при максимальных холостых оборотах
Эти показатели определяют также как и при номинальном режиме. Но при числе оборотов кулачкового вала, соответствующих максимальным холостым оборотам коленчатого вала двигателя, в тех случаях, в которых отклонение производительности оказалось больше допустимого, заменяют плунжерные пары. После всех регулировок снять топливный насос со стенда и направить на рабочее место, укомплектовки и пломбирования.
Укомплектовка, пломбирование и окраска топливного насоса
Отрегулированные топливные насосы укомплектовывают, закрывают крышку с прокладкой на корпус топливного насоса, навертывают гайки на штуцера головки топливного насоса, вывертывают перепускной клапан из головки топливного насоса, надевают защитную втулку на корпус перепускного клапана и завертывают клапан в головку.
При опломбировании топливного насоса, проволока должна быть мягкой, без скрученных и надломленных мест. Проволока должна быть пропущена в отверстия головок болтов так, чтобы при отвертывании болтов она натягивалась. Концы проволоки после шиплинтования должны быть туго скручены вместе. Опломбирывают верхнюю крышку регулятора, крышки люков топливного насоса, заднюю крышку регулятора, болт жесткого упора и крышку упора рычага регулятора.
После опломбирования насос переносят на верстак - ванну и обезжиривают. Окрашивают топливные насосы в камере – пистолетами-краскораспылителями. Толщина слоя покрытия должна находиться в пределах 45 – 60 мк.
Ремонт форсунок
Ремонт форсунок сводится к их разборке, мойке, дефектовке, сборке, испытанию и регулировки. Разборку и сборку проводят на специальном приспособлении МП-1613А. В основном у форсунки изнашиваются прецизионные детали распылителя, которые ремонтируют, очищая их от нагара и восстанавливая изношенные сопрягаемые поверхности притирочными пластами. Детали распылителя притирают на станке для притирки прецизионных деталей, а рабочие торцы корпуса распылителя и иглы на притирочной плите. Собранную форсунку испытывают и регулируют не герметичность и давление впрыска на приборе КИ-562. Проверяют качество распыления, четкость отсечки и другие параметры на стенде КИ-1404. Термичность форсунки проверяют при затяжке регулировочного вента до давления впрыска – 23 МПа. Время падения давления от 20 до 18 МПа должно составлять 5 – 25 секунд. Подтекание топлива из сопла распылителя не допускается. Все форсунки данного двигателя регулируют на одинаковое давление впрыска, предусмотренное техническими условиями. Одновременно с регулировкой проверяют качество распыления дизельного топлива, выходящего из сопла шлифтового распылителя. Начало и конец впрыска должны быть четкими и сопровождаться резкими звуками. После чего форсунки сортируют по группам пропускной способности, доукомплектовывают, консервируют, надевают на них защитные колпачки.
Контрольные испытания топливной аппаратуры
на двигателе и её упаковка.
В специализированном предприятии должен быть тормозной стенд и контрольные двигатели для моторных испытаний топливной аппаратуры. Из партии отремонтированных насосов и форсунок выбирают несколько комплектов, устанавливают их поочередно на контрольный двигатель, прогревают его и замеряют основные параметры работы двигателя: мощность, удельный расход топлива, максимальный крутящий момент, максимальные холостые обороты. Отремонтированный топливный насос снабжают паспортом, в котором записаны показатели его работы, марки двигателей. К насосу прикладывают комплект форсунок, топливные фильтры.
Разработка технологии ремонта регулятора
топливного насоса 4 ТН 9х10
Восстановление топливных насосов и форсунок производят на специализированных ремонтных предприятиях. Необходимость в разборке и ремонте топливного насоса выявляют при эксплуатации машины предварительным испытанием с помощью диагностических приспособлений (КИ – 4802, максиметр) либо при ремонте на испытательном стенде. Основными деталями топливного насоса, состояние которого влияет на их работоспособность, являются детали регулятора числа оборота двигателя. Технологический процесс ремонта деталей регулятора зависит от наличия оборудования на предприятии, квалификации рабочих. У регулятора топливного насоса изнашивается валик регулятора в месте сопряжения со втулкой скользящей муфты. Это сопряжение восстанавливают перешлифованием валика не уменьшенный размер с постановкой втулки уменьшенного диаметра или хромированием (железнением) части валика. Изношенные посадочные шейки под подшипники качения целесообразно восстанавливать электроискровым наращиванием.
У скользящей муфты повержены износу торцевые поверхности кольцевого паза, сопряженные с пальцами вильчатого рычага. Эти поверхности протачивают или шлифуют, а в рычаг устанавливают пальцы увеличенного диаметра. У грузов регулятора изнашиваются поверхности касания с упорным подшипником скользящей муфты и отверстия втулки под ось крестовины. Изношенные упорные поверхности грузов наплавляют и обрабатывают по шаблону, а втулку рассверливают и развертывают под оси увеличенного размера. В последнем случае по контору рассверливают отверстия под оси и в крестовине грузов. Отверстия грузов в крестовине могут быть также восстановлены на нормальных размер путём рассверливания и постановки промежуточных втулок. Масса груза регулятора в сборе со втулкой у всех двигателей СМД должна быть равна 205…215г., у СМД-17К и СМД-18К-224…228г. Разницы в массе грузов, составляющих пару, не должна превышать 3…5 грамм.
При ремонте регулятора следует обращать внимание на состояние шарнирных соединений рычагов и тяг с осями и пальцами, от усилия не более 5Н. Общую высоту толкателя регулируют вращением болта толкателя. Для насоса 4 ТН 9х10 она должна быть в пределах 36,3…38,5 мм, а у насосов ЯМЗ-238НБ-37,4 ±0,1 мм.
При сборке и установке регулятора топливного насоса проводят предварительную регулировку, обеспечивающую правильную его работу. Так у насосов типа 4ТН 9х10 вращением болта вильчатой тяги регулятора регулируют ход рейки, равный 10,5…11,0 мм. У регулятора насоса при сборке корректора прокладками устанавливают выход штока, равный 1,3 мм, а вращением винта регулируют давление пружины корректора, равное 62+8Н, при положении штока заподлицо с корпусом.
После установки кулачкового и эксцентрикового валиков в корпус насоса и толкателей устанавливают и закрепляют секции. Удаляют монтажную чеку, а зубчатую втулку закрепляют специальным фиксатором, дослав его до упора во впадину зуба. Поворачивают кулачковый валик шпоночным пазом вверх так, чтобы он находился против метки на корпусе насоса. Устанавливают собранный узел валика регулятора так, чтобы риска на торце грузов с осями не допуская увеличения зазоров в этих соединениях выше 0,2 мм. Изношенные шарнирные соединения рычагов и тяг с осями и пальцами восстанавливают аналогично рассмотренному выше сопряжению отверстий грузов с осями.
Большое значение для правильной работы регулятора имеет состояние его пружин. Поэтому при ремонте должно быть проверено соответствие характеристик пружин(число и диаметр витков, упругость и др.) техническим условиям.
Сборка топливного насоса и регулятора
При сборке топливного насоса после установки втулки плунжера и завертывания до отказа стопорящего винта, втулка плунжера должна иметь продольный люфт. После сборки насосных элементов и затяжки всех штуцеров плунжеры должны легко, без прихватывания перемещаться во втулках. Кулачковый валик должен легко вращаться в подшипниках и иметь осевой разбег 0,05-0,10 мм. Осевой разбег валика регулируют кольцевыми прокладками. Продольные перемещения рейки должны быть не менее 25 мм. Рейка топливных насосов должна перемещаться свободно без заеданий.
Экономическая часть
Расчет себестоимости ремонта топливного насоса 4ТН 9х10.
Себестоимость – это затраты предприятия , приходящиеся на единицу выпускаемой продукции (отремонтированная машина, агрегат, восстановленная или изготовленная деталь).
Расчет ведется по формуле, взятой из учебника Ф.А. Бобриков „Курсовое и дипломное проектирование“, стр. 334.
С>Р> = С>З>+С>М>+С>З.Ч.>+С>Э.Н.>+Н, где
С>Р> – стоимость ремонта,
С>З> – стоимость зарплаты,
С>М> – стоимость материалов,
С>З.Ч> – стоимость запасных частей,
С>Э.Н> – стоимость электроэнергии,
Н – накладные расходы.
Стоимость зарплаты рассчитывается по формуле: С>З> = С>0>+С>доп>+С>Н>, где
С>0> – стоимость основной зарплаты,
С>доп> – стоимость дополнительной зарплаты,
С>Н >– стоимость начисления на социальное страхование.
Основная зарплата рассчитывается по формуле:
,
где
Т>Н> – норма времени на операцию,
С>ЧАС> – часовая тарифная ставка в копейках за один час. Норму времени (Т>Н>) на операции берем из ведомости загрузки цеха топливной аппаратуры по видам работ на единицу продукции. Определяем стоимость основной зарплаты на разборке. Разбору выполняет слесарь III разряда. Часовая тарифная ставка 39,3 коп. Заработная плата на разборку:
коп.
Аналогично рассчитываем для остальных работ и результаты заносим в таблицу „Расчет основной зарплаты на ремонт насосов“. Таблица 3.
|
№ п/п |
Наименование операций |
Условия работы |
Разряд работы |
Норма времени в час |
Тарифная ставка коп/час |
Основная зарплата |
|
1 2 3 4 5 6 7 |
Разборка мойкадефектовка комплектовка сборка обкатка, испытание и регулировка окраска |
норм норм норм норм норм норм норм |
III III IV IV IV V III |
1,42 0,24 0,37 0,23 2,61 1,54 0,2 |
39,3 39,3 45,1 45,1 45,1 52,5 39,3 |
55,806 9,432 16,687 10,373 117,711 80,850 7,86 |
|
8 |
Итого |
6,61 |
305,7 |
298,719 |
Рассчитываем стоимость дополнительной зарплаты:
С>доп> = 0,1 · С>0>, где С>0> – общая стоимость основной зарплаты.
С>доп> = 0,1 · 298,719 = 29,8719 (коп)
Определяем стоимость начисления на социальное страхование. Начисление по социальному страхованию определяют в размере 4,4% от основной и дополнительной зарплаты:
коп.
Определяем стоимость зарплаты:
С>з>
= С>0>+С>доп>+С>нач>=
298,719+29,8719+14,46 = 353,0509 = 3 руб. 43 коп.
Определяем стоимость материалов в цехе топливной аппаратуры.
На окраску одного насоса требуется 0,21 кг краски, стоимость 1 кг краски составляет 1р.05коп. С>М> = 1,05 · 0,21 = 0,22 = 22 коп.
Определяем стоимость электроэнергии:
,
где
Т>Н> – норма времени, берется из ведомости загрузки цеха топливной аппаратуры по видам работ на единицу продукции,
N>об> – мощность оборудования,
С>КВТ> – стоимость 1 квт/час, С квт – 1 коп.
Определяем стоимость электроэнергии на испытание и регулировку топливных насосов:
,
где Т>Н> –
0,87; N>об>
= 3 кВт.
коп.
Аналогично рассчитываем стоимость электроэнергии на остальных работах и результаты заносим в таблицу.
Расчет стоимости электрической энергии.
Таблица 4.
|
№ п/п |
Наименование операции при которой требуется электроэнергия |
Потребительская мощность N>об> квт |
Норма времени, Т>Н> час |
Стоимость электро- энергии С>ЭН> коп |
|
1 2 3 4 5 6 |
Испытание и регулировка топливных насосов Обкатка и испытание подкачивающего насоса Окраска топливного насоса Расконсервирование прецизионных деталей Обезжиривание деталей топливной аппаратуры Испытание форсунок |
3 0,4 4,5 1 0,6 0,6 |
0,87 0,18 0,046 0,034 0,24 0,32 |
2,61 0,072 0,207 0,034 0,144 0,192 |
|
Итого |
3,259 |
5. Определяем стоимость накладных расходов по формуле:
Н = Q·С>З>, где
С>З> – стоимость зарплаты.
Q – накладные расходы, Q = 1,95
Н = 1,95х343,0509 = 668,95 (коп) 6 руб. 68 коп.
6. Определяем стоимость частей к топливному насосу.
Таблица 5
|
№ п/п |
Наименование деталей |
Кол-во, шт. |
Стоимость одной детали |
Общая стоимость |
|
1 2 3 4 5 6 7 8 9 10 11 12 13 14 15 16 17 |
Толкатель плунжера в сбореПлунжерная пара Клапан перепускной в сборе Клапан нагнетательный в сборе с прокладкой Прокладка регулировочная кулачкового вала Ось ролика толкателя Прокладка втулки плунжера Штуцер нажимной Пружины плунжера Болт поворотного угольника Клапан подкачивающего насоса Прокладка пробки Сальник корпуса регулятора в сборе Втулка груза регулятора Прокладка регулировочная Прокладка регулировочная внутр. пружины Кулачковый вал с гайкой |
4 4 1 4 10 4 6 4 4 4 2 1 1 4 5 4 1 |
0,80 1-80 0,16 0,40 0,02 0,4 0,07 0,14 0,12 0,07 0,11 0,05 0,03 0,25 0,03 0,04 2-45 |
3-20 7-20 0,16 1-60 0,2 0,16 0,42 0,56 0,48 0,28 0,22 0,05 0,03 1,00 0,015 0,16 2-45 |
|
Итого |
18,115 |
Стоимость ремонта топливного насоса составит:
С>Р> = С>З> + С>М>+С>З.Ч >+ С>Э.Н.>+Н = 3,43 + 0,22 + 3,259 + 6,68 + 18,115 = 31,704
Допустимая стоимость нового насоса типа 4 ТН 9х10, С>нов> = 45 руб.
После ремонта топливный насос должен работать не менее 80%, t>p> = 0,8
Определяем экономическую целесообразность ремонта топливных насосов:
;
.
Так, как неравенство соблюдается то ремонтировать топливные насосы типа 4 ТН – 9х10 целесообразно.
Техника безопасности и противопожарные мероприятия по ремонту топливной аппаратуры.
Рабочие, поступающие на ремонтное предприятие, должны получить инструктаж по общим правилам техники безопасности.
При приемки граждан на работу проводится вводный инструктаж. Проводит инструктаж главный инженер по технике безопасности. Вводный инструктаж необходим для того, чтобы ознакомить поступающего на работу с правилами внутреннего трудового распорядка, с общими мерами предосторожности при нахождении вблизи сельскохозяйственных машин, транспортных средств и оборудования. Вводный инструктаж оформляется с заполнением карточек, без отметки в личной карточки работника о прохождении вводного инструктажа не может подписан приказ о его зачислении на работу. Инструктаж на рабочем месте проводится руководителем производственных участков, бригадирами, механиками. Они должны ознакомить подчиненных со своей спецификой технологического процесса на рабочем участке, особенностями устройства машин и установок, правилами их безопасной эксплуатации. О проведении инструктажа на рабочем месте делается соответствующая запись в журнал „Регистрации инструктажа по технике безопасности“, который хранится у руководителя участка. Повседневный инструктаж заключается в том, что все, без исключения административно-технические работники осуществляют надзор за правильным ведением работ.
При выявлении применения работником опасных приемов работы или нарушения правил и инструкций техники безопасности административно-технические работники обязаны потребовать немедленного работы, разъяснить работнику последствия, к которым могли привести эти нарушения.
Периодический или повторный инструктаж проводится лицом, отвечающим за работу по технике безопасности в целом по предприятию (директор, управляющий, заведующий и т.д.) или по его указанию и под его контролем руководителем участков, производств, цехов и др. Он позволяет проверить и закрепить знания по технике безопасности и проводит его не реже одного раза в шесть месяцев.
При несчастных случаях производится расследование. Результаты расследования несчастных случаев с потерей трудоспособности не менее одного рабочего, оформляется актом Н – 1, который заполняется в четырех экземплярах и должен храниться 45 лет. За технику безопасности в Ц.Р.М. отвечает заведующий мастерской. Меры безопасности при подготовке к работе в цехе ремонта топливной аппаратуры.
Осмотреть и подготовить рабочее место к работе: верстак должен быть устойчив, поверхность стола ровной и гладкой.
Проверить исправность инструмента:
а) зубило, кпейцместеро-бородки должны иметь не сбитые и не скошенные затылки и не поврежденные рабочие части;
б) гаечные ключи должны соответствовать размерам гаек и головок болтов;
в) молотки, напильники, шаберы и прочий инструмент с острыми концами должны иметь исправные ручки с бандажными кольцами;
г) на стендах обкатки, регулировки и испытания топливной аппаратуры проверить пусковое устройство, контрольно-измерительные приборы, магистральные топливопроводы и плотность их соединения.
При мойке топливных насосов в конвейерной машине устанавливать их на специальные подставки, обеспечивающие устойчивые положения. При разборке узлов топливного насоса необходимо надежно закреплять их в кондукторах разборочного верстака.
При выпресовки или снятии отдельных деталей применять съемниеи или прессы. При монтаже узлов и механизмов на верстаках пользоваться приспособлениями, обеспечивающими надежное крепление. При сборке и разборке применять исправные торцовые и накидные ключи. Торцовые ключи должны иметь ручки коловоротного типа. Транспортировку собранного топливного насоса в испытательное отделение производить с помощью подъемно-транспортировочных средств. Перед началом испытаний убедиться в прочности крепления насоса на стенде, плотности крепления, присоединения трубопроводов к форсункам, секциям и шлангам к подкачивающей помпе. При испытании насоса и форсунок впрыск топлива форсунками должен осуществляться в емкости, исключающей разбрызгивание. При сливе его на стенд и пол.
При работе в цехе рабочему запрещается:
а) оставлять работающие испытательные стенды без присмотра;
б) фиксировать тяги рейки случайными предметами;
в) производить обкатку и испытание топливной аппаратуры при наличии течи и разбрызгивания топлива в местах соединения трубопроводов и шлангов.
По окончании работы выключить обкаточные и испытательные стенды и другое оборудование. Очистить инструмент и приспособления и уложить их в отведенное место. Привести в порядок рабочее место. Убрать со стендов и пола пролитые горючесмазочные материалы и отвести на установленные места подъемно-транспортные средства.
Об окончании работы и замеченных неисправностях сообщить сменщику или мастеру цеха.
Использованный отборочный материал убирать в специальные металлические ящики с плотно закрывающимися крышками. В цехах должно быть противопожарное оборудование (огнетушитель, песок, лом и др.), согласно нормам противопожарной безопасности. Рабочий обязан знать расположение средств для тушения пожара и уметь ими пользоваться.
Использование противопожарного инвентаря для других целей запрещается.
В помещении, где производится ремонт топливной аппаратуры, запрещается:
а) хранить огнеопасные материалы (бензин, спирт, лакокрасочные материалы и др.);
б) курить на рабочем месте и в других цехах, где применяется и хранятся легко воспламеняющие материалы.
Разрешается курить только в специально отведенных местах.
По окончании работ тщательно осмотреть рабочее место и принять меры для предотвращения возможности возникновения очага загорания.
В случае возникновения пожара принять меры к ликвидации очага загорания имеющимися средствами и, в случае необходимости вызвать пожарную команду.

























































































Ø 4
Ø 5
Ø 6
Ø 8
Ø 10
Ø 12
340
Описание приспособления
Изношенные концы топливопроводов отрезают и при помощи специального приспособления изготавливают новые рабочие поверхности следующим образом. Отжимают, т.е. нагревают и опускают трубку в воду, затем вставляют её в отверстие зажимных щек, соответствующее диаметру трубки и зажимают стяжными винтами так, чтобы конец трубки выступал на 3…4 мм. Вращая винтом приспособления, развальцовывают конец трубки до необходимого размера.
Литература
Материалы 27 съезда КПСС: Политиздат 1986 г.
Ф.А. Бобриков „Курсовое и дипломное проектирование“, М.: „Колос“,1975 г.
А.М. Туревич “Техническое обслуживание машинно-тракторных агрегатов“, М.: „Росагропромиздат“, 1988 г.
Ф.М. Копарев „Охрана труда“, М.В.О. „Агропромиздат“, 1988 г.
В.И. Добрин „Справочник заведующего машинным двором“, М.: „Росагропромиздат“, 1988 г.
А.Г. Спейтор: Справочник для инженерно-технических работников колхозов и совхозов; „Россельхозиздат“, 1978.
Д.П. Рябиков „Справочник инженера совхозов и колхозов“.
Ульман „Ремонт машин“.
Оглавление
Введение стр.
Расчетно-технологическая часть стр.
Расчет количества рабочих стр.
Расчет отделения стр.
Расчет вентиляции и освещения стр.
Технологический процесс по восстановлению топливной аппаратуры стр.
Экономическая часть стр.
Техника безопасности стр.
Конструктивный узел стр.
|
РСТДП.088.410.0,12 |
Лист |
|||||
|
Изм. |
Лист |
№ документа |
Подпись |
Дата |
|
Формат |
Зона |
Поз. |
Обозначение |
Наименование |
Кол. |
Приме-чание |
||
Документация |
||||||||
|
А1 |
Сборочный чертеж |
|||||||
Детали |
||||||||
|
1 |
Винт установочный |
1 |
||||||
|
2 |
Головка |
|||||||
|
микрометрическая |
1 |
|||||||
|
3 |
Пружина |
1 |
||||||
|
4 |
Корпус |
1 |
||||||
|
5 |
Штуцер |
1 |
||||||
|
6 |
Гайка |
1 |
||||||
|
7 |
Игла распылитель |
1 |
||||||
|
8 |
Корпус |
1 |
||||||
|
9 |
Гайка |
1 |
||||||
|
10 |
Штуцер |
1 |
||||||
|
11 |
Шарик |
1 |
||||||
|
Изм |
Лист |
№ документа |
Подпись |
Дата |
||||
|
Дипломан |
Максиметр |
Лит. |
Лист |
Листов |
||||
|
Консульт. |
у |
3 |
1 |
|||||
|
Рецензер |
||||||||
|
Формат |
Зона |
Поз. |
Обозначение |
Наименование |
Кол. |
Приме-чание |
||
Документация |
||||||||
|
А3 |
Сборочный чертеж |
|||||||
Детали |
||||||||
|
1 |
Корпус |
1 |
||||||
|
2 |
Щека зажимная |
|||||||
|
3 |
Щека зажимная |
1 |
||||||
|
4 |
Винт |
1 |
||||||
|
5 |
Наконечник |
1 |
||||||
|
6 |
Рычаг |
1 |
||||||
Стандартные изделия |
||||||||
|
7 |
Болт М12х100.58 |
|||||||
|
ГОСТ 7798 – 70 |
2 |
|||||||
|
8 |
Гайка М12.35 |
|||||||
|
ГОСТ 3032 – 76 |
2 |
|||||||
|
Изм |
Лист |
№ документа |
Подпись |
Дата |
||||
|
Дипломан |
Приспособление |
Лит. |
Лист |
Листов |
||||
|
Консульт. |
у |
4 |
1 |
|||||
|
Рецензер |
||||||||