Техническое оснащение и охрана труда общественного питания
ЦЕНТРОСОЮЗ РФ
ВЛАДИВОСТОКСКИЙ ГУМАНИТАРНО-КОММЕРЧЕСКИЙ КОЛЛЕДЖ
КАФЕДРА ТЕХНОЛОГИЧЕСКИХ ДИСЦИПЛИН
КУРСОВАЯ РАБОТА
ТЕМА «ЛИНИИ САМООБСЛУЖИВАНИЯ»
ПО ДИСЦИПЛИНЕ
«ТЕХНИЧЕСКОЕ ОСНАЩЕНИЕ И ОХРАНА ТРУДА В О. П.»
СПЕЦИАЛЬНОСТЬ 27.11
«ТЕХНОЛОГИЯ ПРОДУКЦИИ ОБЩЕСТВЕННОГО ПИТАНИЯ»
Выполнил: БУРКОВА Е. В.
ф. и. о. студента
Группы ТОП 4-1
Принял: _________________________
Дроздова Л. С.
ВЛАДИВОСТОК
2003-2003 уч. год
КУРСОВОЕ ЗАДАНИЕ
Курсовым заданием на данную работу является:
Технологические требования к конструкции линий самообслуживания.
Обзор отечественного и зарубежного рынка линий самообслуживания в России.
Описание устройства и принципа действия линий самообслуживания.
Проблемы эксплуатации линий самообслуживания и экономическая эффективность использования их в общественном питании.
ОГЛАВЛЕНИЕ
ВВЕДЕНИЕ 4
1. АНАЛИТИЧЕСКИЙ ОБЗОР 6
1.1. Технологические требования к конструкции линий самообслуживания 6
1.1.1. Теплообменные аппараты. 6
1.1.2. Теплоизоляционные материалы 8
1.1.3. Теплоносители 10
1.1.4. Тематируемый режим работы оборудования. 12
1.1.5. Требования к материалу рабочей поверхности линий самообслуживания (влияние материала на свойства продукта, сохранение витаминов). Способы интенсификации теплового процесса с целью улучшения качества продукта 18
2. КОНСТРУКТОРСКИЙ раздел 22
2.1. Описание устройства и принципа действия линий самообслуживания 22
2.2. Мармиты 27
2.3. Тепловые стойки и шкафы 34
3. Эксплуатационно-экономический раздел 41
3.1. Требования по эксплуатации линий самообслуживания, установка и монтаж линий самообслуживания. Требования техники безопасности, санитарные требования 41
3.2. Технико-экономические показатели линий самообслуживания. 42
СПИСОК ЛИТЕРАТУРЫ 44
ВВЕДЕНИЕ
Предметом дисциплины "Техническое оснащение и охрана труда в общественном питании"является изучение механизации и автоматизации процесса приготовления пищи на предприятиях общественного питания, анализ рынка оборудования, подбор, установка и рациональная эксплуатация всех видов пищевого оборудования предприятий общественного питания. Изучение дисциплины основано на достижениях науки, техники и технологии, мировой практики совершенствования технологии общественного питания.
Актуальность данной работы возросла в связи с переходом страны к рыночным отношениям и изменениями, произошедшими в результате интеграции экономики страны с мировой экономикой. Рынок оборудования для предприятий общественного питания стал интенсивно развиваться по следующим причинам:
во-первых, благодаря развитию внутренней торговли и увеличению спроса на оборудование,
во-вторых, за счет притока наиболее прогрессивного оборудования из промышленно развитых стран.
Такая ситуация способствовала образованию большого числа торгово-посреднических фирм, закупающих оборудование оптом и реализующих его на российском рынке. Одновременно они же предоставляют услуги технологического проектирования, включая разработку дизайн-проектов, проведение монтажных работ и технического обслуживания, все виды сервисных услуг.
Оборудование, попадая на предприятия общественного питания, становится существенной частью материально-технической базы предприятий, важнейшим прогрессивным элементом технологического процесса в целом.
Одним из показателей оценки материально-технической базы является соотношение между активной и пассивной частями основных фондов. Использование достижений научно-технического прогресса, внедрение новых технологий и техники, электронизация, компьютеризация, роботизация способствуют существенному изменению соотношения в структуре основных фондов в пользу их активной части.
В настоящее время благодаря открытости внутреннего рынка и доступа фирм к достижениям мирового рынка стало возможным приобретение любых видов оборудования из любой точки земного шара. Ограничения обусловливаются только финансовыми возможностями заказчиков.
На предприятиях общественного питания сейчас используются следующие основные способы термообработки продуктов: их жарят, запекают, тушат, припускают, выпекают, пассеруют, бланшируют, варят, обжаривают во фритюре. Для того чтобы полученные при термической обработке блюда долго оставались горячими и для большей их доступности при раздаче существуют линии самообслуживания.
Благодаря этому удается без потерь качества увеличить ассортимент и сроки хранения блюд собственного производства, соблюдать самые высокие санитарно-гигиенические требования. С позиций менеджмента это, пожалуй, самый быстрый и надежный путь к интенсификации производства без структурных изменений, дорогостоящих инвестиций в техническое переоснащение с персоналом той же численности и квалификации.
Исходя из вышеизложенного, очевидна актуальность рассмотрения вопросов, связанных с эксплуатацией линий самообслуживания. Подобная попытка наиболее полного рассмотрения всех технологических особенностей эксплуатации таких линий и предпринята в данной работе.
Структура курсовой работы немного не соответствует принятой структуре оформления подобных работ, поскольку линии самообслуживания состоят из нескольких функционально различных типов оборудования для общественного питания, поэтому вторая часть работы скомпонована в соответствии с типами оборудования, составляющего линии самообслуживания.
АНАЛИТИЧЕСКИЙ ОБЗОР
Технологические требования к конструкции линий самообслуживания
Теплообменные аппараты.
Теплообменным аппаратом называется устройство, в котором происходит передача тепла от одного теплоносителя к другому. Каждый теплообменный аппарат должен обеспечивать передачу требуемого количества тепла, при этом один теплоноситель нагревается, а другой — охлаждается.
Теплообменные аппараты можно классифицировать по следующим признакам:
* по способу передачи тепла от одного теплоносителя к другому различают теплообменные аппараты поверхностного типа (пищеварочные котлы, жаровни с косвенным обогревом и др.) и теплообменники смешения, т.е. непосредственного соприкосновения (пароварочные шкафы);
* по виду теплоносителя различают парожидкостные Теплообменные аппараты (теплообмен через стенку между паром и жидкостью происходит во всех аппаратах с паровым обогревом); жидкостно-жидкостные, когда оба теплоносителя являются жидкостями, и газожидкостные. К последним относятся газовые и огневые кипятильники;
* по расположению поверхности нагрева — на рубашечные, кожухотрубные, элементные однокорпусные, элементные многокорпусные, погружные, оросительные (рис. 1.1, а—е);
* по конфигурации поверхности нагрева — на трубчатые горизонтальные, вертикально-кожухотрубные, змеевиковые, комбинированные, пластинчатые, ребристые, спиральные (рис. 1.1, ж—н).
В тепловой аппаратуре предприятий общественного питания наиболее распространены теплообменные аппараты поверхностного типа, в которых тепло от одного теплоносителя к другому передается через разделительную стенку. Поверхность, через которую передается тепло, называется поверхностью нагрева теплообменного аппарата.

Рис. 1.1. Поверхностные теплообменные аппараты:
а — рубашечные, б — кожухотрубные; в — элементные однокорпусные; г — элементные многокорпусные; д — погружные; е — оросительные; ж — трубчатые горизонтальные; з — вертикально-кожухотрубные; и — змеевиковые; к — комбинированные; л — пластинчатые, м — ребристые; н — спиральные
В последнее время все большее применение находят также теплообменные аппараты смешения, в которых отсутствует разделительная стенка, а теплоноситель и термически обрабатываемый продукт имеют непосредственный контакт. К таким аппаратам относят, как отмечалось, пароварочные шкафы. В рабочую камеру, куда загружают продукт, подается водяной насыщенный пар; продукт нагревается и доводится до готовности, а пар охлаждается и конденсируется.
Из поверхностных теплообменных аппаратов на предприятиях общественного питания чаще всего встречаются теплообменники рубашечного типа (у пищеварочных котлов, жаровен с косвенным обогревом). Теплоноситель подается в рубашку — герметически закрытое пространство, образуемое наружной поверхностью рабочей камеры и внутренней поверхностью корпуса. Тепло передается от теплоносителя (водяной насыщенный пар, минеральное масло и др.), имеющего более высокую температуру, через стенку термически обрабатываемому продукту (рис. 1.1, а).
Широко применяются и поверхностные теплообменники змеевикового типа. Такие теплообменники установлены, например, в кофеварках "Омния-Люкс" (рис. 1.1, и).
Теплоизоляционные материалы
Тепловая изоляция в тепловых аппаратах применяется для уменьшения потерь тепла аппаратами и снижения температуры облицовочных поверхностей, а в холодильной технике — для уменьшения притока тепла в холодильные камеры, шкафы, прилавки и т. д. Коэффициент теплопроводности теплоизоляции должен быть в пределах 0,03— 0,05 Вт/(м • К), а объемная масса — 30—250 кг/м3. Материалы должны иметь микропористую структуру с объемом пор 90—98%. Кроме того, такие материалы должны плохо увлажняться, быть достаточно прочными, морозостойкими, не подвержены поражению микроорганизмами и не являться питательной средой для грызунов, не поглощать запахи, а затем их выделять, быть трудносгораемыми, а при воздействии открытого пламени не образовывать токсических веществ. Рыхлые теплоизоляционные материалы с низкой объемной плотностью имеют лучшие теплоизоляционные свойства. Однако чем ниже объемная плотность, тем менее термостойкими они являются. Поэтому для тепловых аппаратов надо применять сравнительно плотные изоляционные материалы: шлаковату, стекловолокно, порошковообразный кизельгур, торф, войлок, альфоль, асботкань, минеральную вату и др. В холодильной технике широко применяются такие материалы, как шлаковата, пенополистерол, полиуретан, пенобетон, минеральные плиты на битумной основе (минеральная пробка), мипора, керамзит, древесно-волокнистые плиты и др.
Пенополистерол ПС-ЕС выпускают в виде плит или фасонных изделий, например, полуцилиндров и сегментов, используемых для теплоизоляции холодильных трубопроводов и аппаратов. Материал изготавливают на основе сырья синтетического происхождения. Он обладает многими ценными свойствами: малой объемной массой, высокой прочностью, низкой теплопроводностью и паропроницаемостью, незначительным увлажнением при контакте с водой, морозостойкостью — все это делает его одним из лучших материалов для низкотемпературной теплоизоляции. Материал легко обрабатывается и распиливается по длине и толщине.
Пенобетон — камневидный пористый материал, выпускающийся в виде плит и блоков различной объемной массы. Его изготавливают на основе цемента. Материал паропроницаем и легко увлажняется.
Керамзит — зернистый засыпной материал с максимальным размером частиц овальной и круглой формы 5— 50 мм; получается путем формовки и обжига глины. В зависимости от размера зерен меняются его объемная масса и коэффициент теплопроводности.
Перспективным материалом для теплоизоляции холодильников являются органические искусственные материалы — пенопласты, поропласты, которые получают путем вспенивания синтетических смол. В качестве пенообразователя применяют бикарбонат натрия, карбонат аммония, хлористый метилен, хладоны.
В данное время применяют пенопласт рипор, который наносят на трубопроводы и строительные конструкции путем заливки и напыления. Напыление смеси производят пистолетом-распылителем. Объем исходной смеси при этом увеличивается в 30—35 раз. Это позволяет получать изоляционные конструкции из готовых плит и выполнять их на месте производства работ путем заливки жидких компонентов материала в изолируемую полость, например, между наружными и внутренними ограждениями стен.
Возможно и напыление исходных жидких материалов на поверхность изолируемых конструкций, где они самопроизвольно вспениваются и затвердевают. Это позволяет получать бесшовную однослойную теплоизоляционную конструкцию любой заданной толщины с минимальным количеством крепежных деталей, так как теплоизоляционный слой имеет высокие прочностные показатели и прекрасное сцепление (адгезию) со строительными конструкциями.
Технология изготовления пенополиуретана позволяет заполнять его поры малотеплопроводными газами (например, хладонами), теплопроводность которых меньше, чем у воздуха. Коэффициент теплопроводности хладононаполненных пенополиуретанов составляет 0,02 Вт/(м • К).
Замена минерального волокна на вспененный полиуретан и стирол снижает удельное энергопотребление на 20— 30%. Наряду с вспенивающимся пенополиуретаном применяют формальдегидно-мочевинный пенопласт (ФМП) "Пиатерм" (мипора). ФМП изготавливают путем смешивания жидких компонентов, в результате чего образуется стабильная пена, в которую впрыскивается эмульсия смолы. В жидкотекучем состоянии пена подается в заполняемое пространство, где затем затвердевает.
Ввиду того что трубопроводы холодильных установок имеют низкую температуру, они увлажняются водяными парами из воздуха, что вызывает их коррозию. Для защиты теплоизоляции от увлажнения применяют паро- и гидроизоляционные материалы: битумы, толь, рубероид, гидроизол, пергамин и др.
Теплоносители
Все теплоносители, используемые на предприятиях общественного питания, в зависимости от класса оборудования могут быть подразделены на три следующие группы:
* теплоносители для непосредственного контакта с пищевыми продуктами — вода, водяной пар, жир, влажный воздух;
* теплоносители для обогрева пищевых продуктов через поверхность нагрева — вода, водяной пар, продукты сгорания топлива;
* так называемые промежуточные теплоносители, служащие для передачи теплоты от источника тепла (газовых горелок, электронагревательных элементов и т. п.) к пищевым продуктам, — вода, водяной пар, высокотемпературные органические теплоносители (ВОТ), минеральные масла и др.
С точки зрения технической и экономической целесообразности применения промежуточные теплоносители должны иметь большую теплоту парообразования, малую вязкость, высокие температуры при малых давлениях и возможность регулирования температуры, а также быть дешевыми и доступными и не вызывать коррозию оборудования, что приводит к снижению эксплуатационных расходов.
Водяной пар как теплоноситель находит большое распространение вследствие высокого коэффициента теплоотдачи при конденсации и большой теплоты парообразования. Кроме того, постоянная температура конденсации при заданном давлении дает возможность поддерживать постоянный температурный режим.
Пар получают при испарении и кипении воды. Испарение происходит с поверхности воды; его интенсивность возрастает с увеличением температуры воды и уменьшением влажности воздуха. При определенной температуре воды парообразование происходит по всей ее массе. Этот процесс называется кипением, а температура, при которой происходит парообразование по всей массе, — температурой кипения. В процессе кипения температуры воды и пара одинаковы. Температура кипения воды зависит от давления: с увеличением давления температура повышается.
Различают пар насыщенный и перегретый. Насыщенный пар может быть сухим и влажным.
Сухим насыщенным паром называется пар, который при температуре насыщения (кипения) не содержит капелек жидкости. Он не устойчив, так как при незначительном охлаждении превращается во влажный пар, а при нагревании при постоянном давлении — в перегретый.
Влажным насыщенным паром называется пар, содержащий в своем составе капельки жидкости. Он характеризуется степенью сухости. Степенью сухости называется отношение массы сухой части насыщенного пара к общей массе данного насыщенного пара.
Влажностью пара называется отношение массы капелек жидкости к общей массе пара.
В качестве промежуточных теплоносителей при нагреве до высокой температуры (выпечка, жарка) используются так называемые высокотемпературные органические теплоносители, к которым относятся дифенильная смесь и диарилметаны: дитолилметан (ДТМ) и дикумилметан (ДКМ).
Минеральные масла — это темные или светло-коричневые жидкости, не имеющие запаха, которые являются продуктами переработки нефти и применяются в качестве теплоносителей в некоторых аппаратах. Это такие масла, как вапор-Т, компрессионные, цилиндровые и др. Температура кипения минеральных масел находится в пределах от 250 до 300°С и в тепловых аппаратах они находятся только в однофазном (жидком) состоянии. К недостаткам минеральных масел относятся значительное возрастание вязкости при длительном использовании и разложение под действием температуры, что приводит к образованию на поверхности нагрева пленки, ухудшающей теплообмен. Интенсивность теплоотдачи от масла к стенке в 4—6 раз ниже, чем от конденсирующихся водяных паров. Чтобы размеры теплового аппарата не были слишком велики по сравнению с аппаратами, обогреваемыми водяным паром, рубашку масляного аппарата заполняют почти полностью. Значительное количество масла в рубашке теплового аппарата увеличивает его инерционность и снижает КПД.
Выбор того или иного вида теплоносителя в тепловом аппарате осуществляется на основе технической и экономической целесообразности. Техническая целесообразность определяется размерами аппарата, возможностью автоматизации процесса нагрева, диапазоном регулирования мощности, скоростью нагрева, безопасностью работы аппарата, КПД, простотой обслуживания и ремонта аппарата.
Экономическая целесообразность определяется дешевизной и доступностью теплоносителя, его нейтральностью к металлам и продуктам, долгосрочностью работы без изменения физико-химических свойств, низкими эксплуатационными расходами.
В конечном итоге окончательный выбор теплоносителя зависит от целевого назначения теплового аппарата, условий его эксплуатации, надежности и профессионального уровня обслуживающего персонала.
Тематируемый режим работы оборудования.
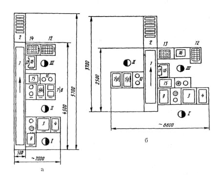
На предприятиях общественного питания используются немеханизированные линии для реализации блюд со свободным выбором (ЛПС — линия прилавков самообслуживания; ЛСБ — линия самообслуживания для буфетов; ЛС — линия самообслуживания) и для реализации комплексных обедов (ЛПС-Г, ЛПС-Д — линии прилавков самообслуживания, ЛРКО — линия для реализации комплексных обедов). Эти линии состоят из секций-прилавков для демонстрации, кратковременного хранения и отпуска холодных закусок, сладких блюд и напитков, мармитов для первых и вторых блюд, расположенных в определенной последовательности, а также из прилавков для подносов, приборов и кассового аппарата.
Линии типа ЛПС для различных типов предприятий комплектуются в следующих вариантах: ЛПС-А, ЛПС-АТ, ЛПС-Б, ЛПС-БТ, ЛПС-В, ЛПС-ВТ (рис. 1.2).
Линии ЛПС-АТ, ЛПС-БТ и ЛПС-ВТ отличаются от линий ЛПС-А, ЛПС-Б и ЛПС-В наличием тележек с выжимными устройствами для тарелок, стаканов и подносов. Секции-прилавки и витрины, входящие в линию, имеют одинаковое оформление: со стороны потребителей облицованы пластиком, вдоль линии установлены направляющие для подносов и барьер.
Варианты линий ЛПС-А (AT) и ЛПС-Б (БТ) рекомендуются для столовых, линии ЛПС-В (ВТ) — для кафе, закусочных, буфетов.

Рис. 1.2. Линия прилавков самообслуживания ЛПС:
а — внешний вид; б — варианты комплектования линий; 1 — ЛПС-1; 2 — ЛПС-2; 3 — ЛПС-3; 4 — ЛПС-5; 5 — ЛПС-6; 6 — ЛПС-7; 7 — ЛПС-10; 8 — ЛПС-11; 9 — ЛПС-16; 10 — ЛПС-17; 11 — ЛПС-20; 12 — ЛПС-21; 13 — ЛПС-22; 14 — ЛПС-23Т; 15 — ЛПС-24
Характеристика оборудования, входящего в состав линии, приведена в табл. 1.1.
Линии типа ЛС предназначены для столовых самообслуживания с последующей оплатой. Линия имеет следующие варианты: ЛС-А, ЛС-Б, ЛC-В и ЛС-Г.
Линия ЛС-А (рис. 1.3, а, б) состоит из комплекта оборудования, размещенного в принятом порядке, для реализации кулинарной продукции с использованием функциональных емкостей. В начале линии устанавливается холодильный прилавок-витрина 8, в конце — прилавок-касса 1. Отдельные секции оборудования ставятся на пол и соединяются одна с другой, но без дополнительного крепления. Прилавок 2 для горячих напитков ЛПС-5 с термостатом 3 и мармит стационарный МСЭ-84 4 устанавливаются на подставки. Котлы передвижные КП-40, КП-60 7, мармит передвижной МП-28 б, шкаф тепловой передвижной электрический ШТПЭ-1 5, тележки ТВС-120-01, ТВТ-120 9 и ТВТ-240 10 закатываются в отсеки, ограниченные с трех сторон двумя прилавками и вставками, состоящими из столов, каркасов и облицовок. Передвижное оборудование в отсеках можно менять местами или заменять другим из сменного комплекта.
Таблица 1.1
Характеристика оборудования линий прилавков самообслуживания типа ЛПС
|
Оборудование |
Тип |
Габариты, мм |
Вместимость |
|
Секции-прилавки: |
|
|
|
|
для подносов |
ЛПС-1 |
600x840x860 |
-- |
|
для холодных и сладких блюд |
ЛПС-2 |
1600x1165x1420 |
Площадь охлаждаемой витрины 0,84 м2 |
|
для вторых блюд |
ЛПС-3 |
1600x1165x1420 |
110 л |
|
|
ЛПС-16 |
1000x1165x1420 |
55 л |
|
|
ЛПС-17 |
1250x1165x1420 |
80 л |
|
для горячих напитков |
ЛПС-5 |
1000x1165x860 |
2 термостата |
|
для столовых приборов |
ЛПС-6 |
600x840x860 |
-- |
|
Касса |
ЛПС-7 |
1250x1165x860 |
-- |
|
ЛПС-24 |
600x1165x860 |
-- |
|
|
Мармит для первых блюд |
ЛПС-10 |
1000x1165x1420 |
2 конфорки |
|
ЛПС-11 |
1600x1165x1420 |
3 конфорки |
|
|
Тележки с выжимным устройством: |
|
|
|
|
для тарелок диаметром 240 мм |
ЛПС-20 |
440x840x860 |
110 тарелок |
|
для тарелок диаметром 200мм |
ЛПС-21 |
440x840x860 |
120 тарелок |
|
для стаканов и чашек |
ЛПС-22 |
440x840x860 |
60 чашек |
|
для подносов |
ЛПС-23Т |
440x840x860 |
|
Внутри отсеков установлены розетки, предназначенные для подключения передвижного теплового оборудования.

Рис. 1.3. Линия самообслуживания ЛС:
а, б — общий вид и вид сверху линии ЛС-А; в — внешний вид линии ЛС-Г
После установки оборудования их рабочие поверхности выравнивают с помощью регулируемых по высоте ножек. Над рабочей поверхностью устанавливается витрина со стеклянными полками, предназначенными для выкладки хлебобулочных и кондитерских изделий. Линия с торцов и вдоль облицована панелями.
Технические характеристики линий типа ЛС приведены в табл. 1.2.
Таблица 1.2
Технические характеристики линий типа ЛС
|
Показатели |
ЛС-А |
ЛС-Б |
ЛС-В |
ЛС-Г |
|
Вместимость функциональных емкостей для первых блюд, дм3 |
68 |
108 |
108 |
68 |
|
Вместимость функциональных емкостей для вторых блюд, дм3 |
84 |
112 |
144 |
84 |
|
Площадь функциональных емкостей тепловых шкафов для основного продукта, м2 |
2,04 |
2,04 |
3,06 |
2,04 |
|
Суммарная номинальная мощность, Вт |
5890 |
6520 |
7150 |
5890 |
|
Габаритные размеры, мм |
|
|
|
|
|
длина |
8000 |
8800 |
9200 |
6600 |
|
ширина |
850 |
850 |
850 |
850 |
|
высота до рабочей поверхности |
850 |
850 |
850 |
850 |
|
Масса, кг |
950 |
1100 |
1150 |
900 |
Преимущества линии типа ЛС перед линиями ЛПС заключаются в следующем: посуду, приборы и подносы загружают в тележки с выжимным устройством непосредственно в моечном отделении и доставляют к линии; первые блюда и гарниры поступают на линию без перегрузки в передвижных котлах, в которых осуществлялась их варка; вторые блюда и соусы загружают в передвижные мармиты в местах приготовления в функциональных емкостях, в которых они приготавливались, без перегрузки; а также повышается производительность и улучшаются условия труда раздатчиков при выдаче обедов со свободным выбором блюд.
Линия ЛРКО (рис. 21.3) предназначена для отпуска комплексных обедов и представляет собой стойку, оснащенную передвижным раздаточным оборудованием. Параллельно стойке устанавливается барьер 2. Раздаточная стойка 5 собирается из секций СР-1350 длиной 1350 мм, секции СР-1560 длиной 1560 мм и вставки В-952. На стойке смонтированы направляющие для подносов и розетки для подключения передвижных мармитов и термостата.
В линию входит следующее передвижное оборудование: мармиты для отпуска вторых 6 и первых 7 блюд, тележки для тарелок 8, стаканов 9, хлеба 10, холодных закусок 11. На раздаточной стойке установлен термостат 3 для горячих напитков. Подносы находятся на тележке 1, а столовые приборы — на тележке 4.

Рис. 1.3. Линия раздачи комплексных обедов ЛРКО
Линию раздачи можно устанавливать не только между производством и залом, но и в глубине зала, т.е. использовать ее в качестве островной раздаточной.
Требования к материалу рабочей поверхности линий самообслуживания (влияние материала на свойства продукта, сохранение витаминов). Способы интенсификации теплового процесса с целью улучшения качества продукта
Тепловые аппараты, применяемые на предприятиях общественного питания отличаются устройством, принципом действия, конструктивным исполнением, назначением и правилами эксплуатации. Однако можно выделить общие требования, предъявляемые к тепловым аппаратам, которые условно группируют на: технологические, эксплуатационные, энергетические, экономические, безопасности и дизайна. Все приведенные группы требований связаны и взаимообусловлены между собой — одна группа требований предопределяет другие.
Технологические требования. Конструкция аппарата должна прежде всего удовлетворять технологическим требованиям процесса тепловой обработки продуктов.
Технологические требования заключаются в максимально возможном соответствии режима работы, параметров, устройства рабочей камеры, загрузочного и разгрузочного устройства аппарата физическим и химическим изменениям, происходящим в пищевых продуктах при их тепловой обработке, которая существенно влияет на качество готового изделия.
Под технологическими параметрами понимают температуру, относительную влажность воздуха, давление в аппарате, скорость движения продукта через аппарат и т. д. При этом необходимо, чтобы конструктивные и эксплуатационные показатели аппарата обеспечивали оптимальные режимы технологического процесса, т.е. процесс должен осуществляться за возможно минимальный промежуток времени с получением наилучшего результата (высокие органолептические показатели, максимальное сохранение пищевых, ароматических веществ и вкусовых качеств, максимальный выход и другие качественные показатели готового продукта).
Соответствие конструкции аппарата требованиям технологического процесса является наиболее важным фактором в повышении качества кулинарной продукции. В связи с этим на предприятиях общественного питания эксплуатируется большое количество специализированных аппаратов, предназначенных для реализации одного или нескольких технологических процессов (котлы, фритюрницы, сковороды, кипятильники, шкафы и др.), наиболее полно удовлетворяющих требованиям конкретного процесса.
Примером несоответствия конструкции аппарата требованиям технологического процесса является варка бульонов в котлах. Так, чрезвычайно важной технологической операцией при варке бульонов является периодический съем жира с поверхности бульона. Однако в пищеварочных котлах данная операция конструктивно не реализована. Это приводит к тому, что качество бульона резко ухудшается за счет большого содержания в нем эмульгированного жира, образуемого в процессе кипения.
К эксплуатационным требованиям относят соответствие режима работы, конструктивных особенностей машины или аппарата его рациональной эксплуатации. Эксплуатационные требования к аппаратам предусматривают в качестве непременного условия простоту их обслуживания с минимальной затратой труда; устойчивость к коррозии, которая может возникнуть при воздействии обрабатываемых продуктов, воздействии окружающей среды (кислорода воздуха) и моющих средств; доступность аппарата для осмотра, чистки, ремонта; высокая надежность и экологичность. Эксплуатационные требования предопределяют необходимость автоматизации контроля и регулирования параметров технологического процесса. Автоматизация обеспечивает более точное проведение технологического режима в аппарате (по сравнению с ручным), упрощает его обслуживание, ведет к уменьшению численности обслуживающего персонала, экономит энергию и способствует повышению качества кулинарной продукции.
Энергетические требования. Энергетические требования отражают возможность машины или аппарата затрачивать минимальное количество энергии на выполнение технологического процесса, т.е. аппараты должны быть энергосберегающими. Существенным резервом улучшения энергетических показателей тепловых аппаратов является снижение потерь теплоты. Одним из основных энергетических показателей работы аппаратов является удельный расход энергии на единицу готовой продукции.
Конструктивные требования. Сущность этих требований заключается в соответствии конструкции аппарата современным условиям машиностроения. Конструктивные требования, предъявляемые к аппаратам, связаны с их проектированием, изготовлением, транспортировкой и монтажом. Важными конструктивными требованиями являются:
* технологичность, т.е. соответствие конструкции технологическому процессу;
* унификация и нормализация деталей и узлов, максимальное использование стандартизированных деталей и изделий. Соблюдение этих требований позволяет организовать поточность производства и контроль качества;
* секционность, которая улучшает условия его эксплуатации, облегчает разборку, а при необходимости и замену, доступность при осмотре и ремонте;
* техническое совершенство, работоспособность и надежность. Техническое совершенство аппарата характеризуется периодом, в течение которого аппарат по своим основным показателям соответствует современному уровню развития техники.
Под надежностью машины или аппарата понимается их способность выполнять свои технологические функции, сохраняя эксплуатационные показатели в заданных пределах в течение требуемой наработки.
Наработка — продолжительность или объем работы машины или аппарата, измеряемые в единицах времени или весовых (объемных) единицах по перерабатываемому сырью.
Надежность машины или аппарата зависит от их безотказности, долговечности, ремонтопригодности и сохраняемости. Количественно она может быть оценена как произведение вероятности безотказной работы всех ее основных частей в течение заданного времени.
Безотказность характеризует способность машины или аппарата сохранять работоспособность в течение некоторой наработки без вынужденных перерывов.
Долговечность — это способность машины или аппарата сохранять работоспособность до предельного состояния с необходимыми перерывами для технического обслуживания и ремонта. Долговечность характеризуется ресурсом или сроком службы до одного из видов ремонта.
Ремонтопригодность характеризует приспособленность машины или аппарата к предупреждению, обнаружению и устранению отказов и неисправностей путем проведения плановых профилактических осмотров и ремонтов.
Сохраняемость отражает свойство машины или аппарата сохранять эксплуатационные показатели в процессе их транспортировки и хранения при соблюдении условий, рекомендуемых заводом-изготовителем.
Конструктивными достоинствами аппарата являются также простота его устройства, небольшая масса и габариты, изготовление из недорогих и доступных материалов, удобство эксплуатации.
Экономические требования. Данные требования отражают минимальные затраты на изготовление, монтаж и эксплуатацию машины или аппарата при сохранении их высоких технико-экономических показателей. К числу таких показателей относятся производительность, удельный расход энергии, коэффициент полезного действия, текущие расходы на обслуживание.
КОНСТРУКТОРСКИЙ раздел
Описание устройства и принципа действия линий самообслуживания
На предприятиях общественного питания при промышленных предприятиях, вузах, техникумах, школах и т.д. широко используются механизированные линии комплектаций и раздачи комплексных обедов ЛККО "Поток"; механизированная линия комплексных обедов МЛКО "Прогресс", механизированный прилавок самообслуживания МПСО; линия комплектации и накопления обедов ЛКНО "Эффект".
Линия ЛККО "Поток" предназначена для комплектации и отпуска одного вида комплексного обеда, в состав которого входят: первое блюдо, основное соусное или несоусное второе блюдо и гарнир; холодная закуска; сладкое блюдо или горячий напиток.
Первые блюда порционируются в фаянсовые тарелки диаметром 240 мм или в супницы из нержавеющей стали, вторые блюда — в тарелки диаметром 200 мм или в одно-порционные баранчики, холодные закуски — в салатники, сладкие блюда — в стаканы, хлеб — на пластмассовые лотки. Обед комплектуется на поднос, на который укладываются и столовые приборы.
Линия состоит из ленточного транспортера комплектации ТКШ и раздаточного передвижного оборудования, которое устанавливается группами и предназначается для выполнения определенных операций.
Линия выпускается в четырех вариантах: ЛККО-1 и ЛККО-2 (рис. 2.1) (300 обедов в час комплектуют три комплектовщицы), ЛККО-3 и ЛККО-4 (600 обедов в час комплектуют пять комплектовщиц).

Рис. 2.1. Линия комплектации комплексных обедов ЛККО "Поток":
а — с односторонним расположением раздаточного оборудования ЛККО-1, б — с двусторонним расположением раздаточного оборудования ЛККО-2
В линиях ЛККО-2 и ЛККО-4 передвижное раздаточное оборудование располагается по обе стороны от транспортера, в линиях ЛККО-1 и ЛККО-3 — с одной стороны.
При обслуживании линии ЛККО-1 выделяется три поста, на которых комплектовщицы выполняют определенные операции. Например, первая комплектовщица (пост I) берет суповые миски из тележки 11, порционирует первые блюда из мармитов 3 и 4, устанавливает миски на верхний поднос в тележке 9, а поднос с мисками — на ленту транспортера 1. Вторая комплектовщица (пост II) берет тарелки (или баранчики) из тележки 10, порционирует гарнир (простой) из мармита 7 или (сложный) из мармита 8, основное второе блюдо (соусное) — из мармита 5 или (несоусное) из мармита 6, устанавливает тарелки (баранчики) на поднос, перемещающийся по ленте конвейера.
Третья комплектовщица (пост III) берет тарелки из тележки 10, укладывает на них хлеб из тележки 15 и ставит на подносы, кладет столовые приборы из кассеты 17, берет сладкое блюдо из тележки 14 и салатники с холодной закуской из тележки 12 и устанавливает на подносы. Эта комплектовщица принимает чек или талоны на оплату за обед от потребителей и контролирует снятие ими подносов с конвейера.
Если на линии ЛККО-1 в состав обеда взамен сладкого блюда будет включен горячий напиток, то тележка 14 заменяется тележкой 13 и добавляется тележка 16 с термоста-| том. Скомплектованный на подносе обед продвигается по транспортеру в зал. Потребители, проходя вдоль транспортера, выходящего в обеденный зал, снимают поднос с обедом и относят его к месту потребления. Если поднос не будет снят с конвейера, то он попадет на рольганг-накопитель 2.
После заполнения всего накопителя крайний поднос нажимает на рычаг концевого выключателя и конвейер останавливается. Линия ЛККО работает эффективно в том случае, если интенсивность входящего потока потребителей равна или близка к пропускной способности линии.
Линия ЛКНО "Эффект" (рис. 2.2) предназначена для комплектации, накопления и реализации двух видов комплексных обедов одинаковой стоимости. Данную линию рекомендуется использовать при обслуживании циклического (периодического) потока посетителей. Обеды на линии комплектуют, накапливают и отпускают на специальных подносах с металлическими чашками-вставками.

Рис. 2.2. Линия комплектации и накопления комплексных обедов ЛКНО "Эффект":
а — внешний вид; б — варианты линии
Линия состоит из раздаточных стоек-накопителей СНР 14, ленточного конвейера комплектации ТКШ 13 и передвижного раздаточного оборудования.
Стойка-накопитель служит для накопления, кратковременного хранения подносов с обедами и поддержания необходимой температуры первых и вторых блюд и устанавливается в зале вдоль транспортера комплектации, выходящего в зал. Стойка-накопитель — это сборно-разборный многосекционный стеллаж, каждая секция которого имеет по четыре полки, прикрепленных к стойкам и закрытых снизу основанием. С боковых сторон стойки закрыты панелями. В полки стойки-накопителя вмонтированы электрические конфорки, на которые устанавливаются подносы. От конфорок теплота через металлические чаши-вставки в подносе передается тарелкам с блюдами.
На поверхности полок имеются направляющие для установки и перемещения подносов; причем при установке подносов их металлическая чаша-вставка должна совмещаться с поверхностями электронагревательных элементов. Вместимость одной стойки-накопителя — 16 обедов. Время разогрева до рабочей температуры — б мин. Над стойкой устанавливают вытяжной воздуховод для отвода тепловыделений.
Передвижное раздаточное оборудование (тележки, мармиты 1—12) устанавливается перпендикулярно транспортеру комплектации и образует рабочие места комплектовщиц. Порядок комплектации комплексных обедов на линии ЛКНО "Эффект" аналогичен порядку на ранее рассмотренных механизированных линиях.
Комплектация обедов на линии осуществляется до прихода потребителей. Подносы с обедом снимаются с транспортера комплектации и устанавливаются на полки стоек-накопителей. Для этого предусматривается рабочее место комплектовщицы у стоек-накопителей. После заполнения всех стоек подносами с обедом они хранятся там в течение непродолжительного времени. Потребители заходят в зал одновременно, снимают со стоек-накопителей подносы с обедом и относят их к обеденному столу. Очереди на линии. "Эффект" отсутствуют. За время потребления обеда на линии вновь комплектуются и накапливаются обеды.
Линия "Эффект" выпускается в трех исполнениях: ЛКНО-1 — для залов на 100 мест; ЛКНО-2 — на 150; ЛКНО-3 — на 200 мест (табл. 2.1).
Таблица 2.1
Технические характеристики линий ЛКНО
|
Показатели |
ЛКНО-1 |
ЛКНО-2 |
ЛКНО-3 |
|
Производительность, обедов/ч |
400-500 |
600-700 |
800-1000 |
|
Установочная мощность, кВт |
36 |
61 |
70 |
|
Количество секций-накопителей, шт. |
8 |
12 |
16 |
|
Установочная мощность накопителей, кВт |
18 |
27 |
36 |
|
Число комплектовщиц |
6 |
9 |
12 |
Мармиты
Мармиты служат для поддержания в горячем состоянии (в пределах 55—80°С) непорционированных блюд и могут быть как раздельными для первых и вторых блюд, так и универсальными (т.е. для первых и вторых блюд одновременно), а также неподвижными или передвижными.
Передвижные мармиты отличаются от неподвижных тем, что каждый передвижной мармит установлен на тележке, снабженной парой поворотных и парой неповоротных обрезиненных колес. Передвижные мармиты поставляются в комплекте с линиями раздачи комплексных обедов типа ЛРКО, ЛККО "Поток" и ЛКНО "Эффект".
Мармиты обогреваются воздушными тэнами, которые при помощи электропроводов и штепсельного трехполюсного разъема подключаются к электрической сети.
Передвижные мармиты выпускаются следующих видов: МП-28М, МЭП-35; МЭП-20; МЭП-60 и МЭП-6. Названные мармиты аналогичны по конструкции.
Мармит для первых блюд ЭПМ-5 (рис. 2.3) представляет собой прилавок, в плите-основании которого имеются отверстия. В последних смонтированы электрические закрытые конфорки, служащие для подогрева наплитных котлов с первыми непорционированными блюдами. Конфорки снабжены регулировочными болтами, позволяющими регулировать их положение в вертикальном направлении. Включение и выключение каждой конфорки регулируется в соотношении 4:2:1 вручную четырехпозиционным пакетным переключателем. Правила эксплуатации мармитов для первых блюд, возможные неисправности этих аппаратов и способы их устранения те же, что и для электроплит.

Рис. 2.3. Мармит для первых блюд ЭПМ-5:
I — болт для присоединения к сети защитного заземления; 2 — щиток для электроподводки; 3 — пакетный переключатель; 4 — конфорка; 5 — стол; 6 — полка
Перед включением исправность защитного заземления проверяют путем определения надежности соединения заземляющего контура (провода) с болтом "Земля" на корпусе аппарата. Затем включают конфорки аппарата для подогрева наплитных котлов с первыми блюдами на максимальную мощность, устанавливая переключатель в положение "Сильный". После того как конфорка разогрелась, ее переключают на средний или слабый нагрев.
При работе продолжительное время на максимальной мощности срок службы конфорок снижается. Кроме того, при работе на максимальной мощности содержимое наплитных котлов будет перегреваться и даже кипеть, что ухудшает качество блюд. Незагруженные конфорки не следует оставлять включенными. Отключают конфорки за 15— 20 мин до окончания порционирования блюд. Оба эти мероприятия не только приводят к экономии электроэнергии, но и снижают тепловыделение в окружающую среду.
Мармиты для вторых блюд предназначены для кратковременного хранения в горячем состоянии вторых блюд, гарниров, соусов с последующей их реализаций на линиях раздачи. Выпускаются с косвенным обогревом.
Мармиты делятся на стационарные и передвижные. К стационарным относятся мармиты МСЭСМ, МСГСМ, МСЭ, а к передвижным — МЭП, МП.
В качестве промежуточного теплоносителя используется вода или водяной пар. Последний вырабатывается в парогенераторе, расположенном в самом мармите и обогреваемом тэнами. Уровень воды в парогенераторе поддерживается с помощью поплавкового клапана. В аппарате предусмотрена защита от "сухого хода" с помощью реле давления РД-4, отключающего автоматически тэны при снижении давления воды в подводящем воду трубопроводе ниже допустимого предела (50 кПа), при этом загорается сигнальная лампа "Нет воды". Мармиты снабжены тепловым шкафом для кратковременного хранения противней с готовыми несоусными изделиями. Шкаф обогревается снизу тэнами, мощность которых регулируется вручную пакетным переключателем в соотношении 1:1/3:1/4. Мармит с водяной ванной отличается тем, что в поддоне для обогрева мармитниц находится вода, обогреваемая тэнами.
В мармите типа МСЭСМ-50, работающем по вышеописанному принципу, обогрев мармитниц осуществляется паром. Верхний стол-поддон имеет крышку с шестью гнездами для установки мармитниц разной вместимости. Снизу к столу-поддону приварен парогенератор. Обогревается мармитница паром, поступающим из парогенератора. Мармит снабжен тепловым шкафом, смонтированным в средней части мармита, который закрывается двумя створчатыми дверцами. Обогрев шкафа обеспечивают три тэна, мощность нагрева которых регулируется переключателем. На лицевой стороне мармита (со стороны дверок шкафа) в верхней части располагается штепсельная розетка для подключения к электросети тепловых аппаратов (обогреваемых тележек с тарелками, термосов и т. п.).
В ближайшее время начнется выпуск газового мармита МСГСМ-50, который имеет аналогичную с МСЭСМ-50 конструкцию и назначение, а отличается лишь теплогенерирующим устройством. Парогенератор обогревается двумя газовыми инжекционными горелками (расход газа 0,4 м3/ч при теплоте сгорания газа QP>H> =35,5 МДж/м3). Тепловой шкаф обогревается одной инжекционной горелкой с трубчатой насадкой (расход газа 0,2 м3/ч при теплоте сгорания газа Qр>H> = 35,5 МДж/м3).
Мармиты стационарные электрические МСЭ-84М, МСЭ-84М-01 (рис. 2.4) используются для поддержания заданной температуры горячих первых, вторых блюд, соусов и гарниров, а также для их раздачи на предприятиях общественного питания.

Рис. 2.4. Мармит стационарный электрический МСЭ-84М-01:
а — общий вид, б — схема; 1 — емкость; 2 — стол
Мармит МСЭ-84М устанавливается на металлоконструкцию технологической или раздаточной линии, мармит МСЭ-84М-01 — на индивидуальную подставку, поставляемую совместно с мармитом.
При длине технологической линии менее 1,6 м рекомендуется использовать мармит МСЭ-84М-01.
Мармит представляет собой паровой поддон с парогенератором, вода в котором нагревается электронагревателем.
Емкости с горячей пищей устанавливаются в гнезда стола. Снаружи мармит закрыт облицовками.
Заданная температура в паровом поддоне поддерживается автоматически с помощью датчика-реле температуры, термобаллон которого установлен на стенке поддона.
Защита электронагревателя от работы при "сухом ходе" осуществляется с помощью другого датчика-реле температуры, термобаллон которого установлен на оболочке электронагревателя.
На панели управления имеются три лампы: первая сигнализирует о включении электронагревателя, вторая загорается при "сухом ходе", третья сигнализирует о готовности мармита к работе.
Мармит стационарный электрический МСЭ-112 предназначен для поддержания заданной температуры вторых блюд, соусов и гарниров, а также для их раздачи потребителю на предприятиях общественного питания.
Мармит представляет собой паровой поддон с парогенератором, вода в котором нагревается электронагревателями. Парогенератор снабжен сливной пробкой. Сверху паровой поддон закрывается столом.
На столе с помощью осей и шайб устанавливаются две стойки, к которым крепится полка для тарелок. Высоту поверхности стола можно выровнять с помощью ножек. Снаружи мармит закрыт облицовками. В гнезде стола устанавливаются шесть емкостей. В нижней части мармита имеется инвентарная полка. Подвод электроэнергии осуществляется через клеммную пробку, которая закрыта крышкой.
Поддержание заданной температуры в паровом поддоне осуществляется автоматически с помощью датчика-реле температуры, термобаллон которого закреплен на стенке поддона. Защита электронагревателей от работы при "сухом ходе" осуществляется с помощью другого датчика-реле температуры, термобаллон которого закреплен на оболочке электронагревателя.
Мармиты настольные электрические МНЭ-22, МНЭ-45 предназначены для сохранения в горячем состоянии первых и вторых блюд на малых предприятиях общественного питания с барным методом обслуживания. Конструктивно эти два мармита не отличаются ничем друг от друга, различие состоит в вместимости мармитниц, потребляемой мощности тэнов и габаритных размерах.
Корпус мармита состоит из стола и двух мармитниц прямоугольной формы. Обогрев мармитниц осуществляется воздушными тэнами, расположенными снизу. Под дном мармитниц располагается съемный поддон для сбора протекшей жидкости и защиты тэнов от контактов с ней. Сверху мармитницы закрываются крышками. Заданный температурный режим поддерживается датчиком-реле температуры.
Мармит передвижной МП-28М (рис. 2.5) используется для кратковременного сохранения в горячем состоянии и транспортирования к линии раздачи первых и вторых блюд, соусов и гарниров, а также для их раздачи на предприятиях общественного питания. Применяются в раздаточных линиях или как самостоятельное оборудование.
Мармит представляет собой замкнутый объем, образованный облицовками 3,15 и коробом 16. Облицовки закрепляются на каркасе 2, установленном на четырех колесах 1. Сверху к облицовкам крепится стол 5, в котором имеется отверстие под емкость, закрытую крышкой.
Обогрев мармита осуществляется трубчатым электронагревателем (тэном) 13, который закрепляется под емкостью. Чтобы на тэн не попадала пища, над ним размещается съемный поддон 14. Термобаллон датчика-реле температуры 9 находится на передней стенке короба, а сигнальная лампа 10 — на панели управления 4. Лампа сигнализирует о включении электронагревателя.
Мармит подключается к сети питания с помощью штепсельной вилки 11 с кабелем, закрепленным скобой 12. В мармите применяется датчик-реле температуры Т32М с пределом регулирования 50 ... 120°С.
Технические характеристики некоторых моделей мармитов приведены в табл. 2.2.

Рис. 21.5. Мармит передвижной МП-28М:
а — общий вид; б — схема: 1 — колесо; 2 — каркас; 3,15 — облицовки; 4 — панель управления; 5 — стол; 6 — емкость; 7 — крышка; 8 — термобаллон; 9 — датчик-реле температуры; 10 — сигнальная лампа; 11 — штепсельная вилка; 12 — скоба; 13 — трубчатый электронагреватель; 14 — поддон; 16 — короб
Таблица 2.2
Технические характеристики мармитов
|
Показатель |
МСЭ-84М |
МСЭ-84М-01 |
МСЭ-112 |
МП-28М |
|
Максимальная вместимость емкостей, дм3 |
84 |
84 |
112 |
28 |
|
Время разогрева воды в парогенераторе, мин, не более |
20 |
20 |
25 |
10 |
|
Время разогрева содержимого мармитов от 4 до 60°С при максимальной их загрузке, мин, не более |
120 |
120 |
100 |
150 |
|
Номинальная мощность, кВт |
2,5 |
2,5 |
4,0 |
0,63 |
|
Номинальное напряжение, В |
220 |
|||
|
Род тока |
Однофазный, переменный |
|||
|
Частота тока, Гц |
50 |
|||
|
Габаритные размеры, мм |
|
|
|
|
|
длина |
1200 |
1200 |
1500 |
695 |
|
ширина |
800 |
800 |
860 |
430 |
|
высота |
850 |
850 |
1080 |
880 |
|
в том числе без металлоконструкции с раздаточной полкой |
330 |
|
|
|
|
Масса, кг |
70 |
110 |
120 |
30 |
Правила эксплуатации мармитов. Перед началом работы проверяют техническое и санитарное состояние мармитов. Затем осматривают регулирующие устройства, приборы автоматики и проверяют исправность заземления. После этого ванны мармитов с водяным обогревом заполняют горячей водой и включают тэны в ванне и тепловом шкафу на сильный нагрев. При включении тэнов должна загореться сигнальная лампа. После достижения требуемой температуры мармит загружают и переводят работу тэнов на слабый нагрев.
По окончании работы мармиты отключают, затем сливают воду из ванны и конденсат из поддона. Ванну, поддон, наружные части мармита промывают теплой водой с мылом и протирают сухой тканью. Мармитницы промывают горячей водой и ошпаривают кипятком. Полки шкафа вынимают и протирают.
Тепловые стойки и шкафы
Шкаф тепловой сквозной ШТС-1 (рис. 2.6) предназначен для поддержания заданной температуры (до раздачи) первых, вторых и третьих блюд, установленных на передвижных системах типа СП-230М или кассетах АК-390 и помещенных в шкаф.
Шкаф представляет собой камеру, имеющую с двух сторон двери 10, снабженные уплотнителем, замком и ручкой. На одной из дверей расположена панель с электроаппаратурой 8.
Шкаф состоит из каркаса, к боковинам которого крепятся облицовки 4. В каждой облицовке имеется перекрытая листами полость с закрепленными в ней электронагревателями 2. На боковинах сверху смонтирован потолок с вентилятором 7.
Шкаф устанавливается на раздаче. Стеллаж с укомплектованными блюдами вкатывается в шкаф со стороны кухни не менее чем за 45 мин до начала обеда и выкатывается в торговый зал во время раздачи блюд.
Шкаф тепловой сквозной ШТС-2 имеет то же функциональное назначение и конструкцию, что и ШТС-1, только состоит из двух камер, работающих независимо друг от друга.
Технические характеристики шкафов ШТС-1 и ШТС-2 приведены в табл. 2.3.
Шкаф тепловой сквозной ШТС-2,7 предназначен для поддержания в горячем состоянии (до раздачи) первых, вторых и третьих блюд, установленных на передвижных стеллажах СП-230М. Используется на предприятиях общественного питания крупных промышленных предприятий и учебных заведений.
Шкаф представляет собой раму, сваренную из швеллеров, к которой крепятся шесть боковин и пол. Каждая боковина состоит из двух стоек, с внутренней стороны к стойкам приварена стенка с закрепленными на ней тэнами. С наружной стороны шкафа к боковине прикреплены винтами съемные облицовки.

Рис. 2.6. Шкаф тепловой сквозной ШТС-1:
а — общий вид; б — схема: 1 — облицовка; 2 — электронагреватель; 3 — лист; 4 — облицовка; 5 — баллон датчика-реле температуры; 6 — потолок; 7 — вентилятор; 8 — панель с электроаппаратурой; 9 — датчик-реле аппаратуры: 10 — двери
Для доступа к тэнам внутренние облицовки шкафа выполнены из двух частей: верхняя приварена к боковинам, а нижняя — съемная.
Боковины между собой скреплены винтами, сверху на них устанавливается потолок. Внутри шкафа на потолке находится вентилятор. Шкаф имеет с двух сторон двери, снабженные резиновым уплотнителем и замком.
Со стороны одной из дверей на потолке размещен отсек с электроаппаратурой. Отсек закрывается съемной панелью, на которую выведены сигнальная лампочка и выключатель.
Таблица 2.3
Технические характеристики тепловых шкафов
|
Показатели |
ШТС-1 |
ШТС-2 |
ШТС-М |
ШТС-2,7 |
|
Суммарный внутренний объем тепловой камеры, м3 |
0,9 |
1,8 |
|
2,7 |
|
Рабочая температура воздуха в тепловой камере, °С |
От 65 до 85 |
От 60 до 75 |
||
|
Время разогрева тепловой камеры до 70°С, мин |
35 |
55 |
40 |
|
|
Номинальная потребляемая мощность, кВт |
2,06 |
4,12 |
|
6,12 |
|
В том числе: электродвигателей |
2 |
4 |
7,7 |
6 |
|
двигателей вентилятора |
0,06 |
0,12 |
|
0,12 |
|
Номинальное напряжение, В |
220 |
380/220 |
380 с нулевым проводом |
|
|
Род тока |
Однофазный, переменный |
Трехфазный, переменный |
||
|
Частота тока, Гц |
50 |
|||
|
Среднечасовое потребление электроэнергии в стационарном режиме, кВт-ч |
1,5 |
3,0 |
5,0 |
4,2 |
|
Внутренние размеры тепловой камеры, мм |
|
|
|
|
|
длина |
700 |
2700 |
2100 |
|
|
ширина |
750 |
750 |
750 |
|
|
высота |
1700 |
1715 |
1715 |
|
|
Габаритные размеры, мм |
|
|
|
|
|
длина |
900 |
1800 |
2980 |
2400 |
|
ширина |
990 |
990 |
950 |
950 |
|
высота |
1900 |
1900 |
1950 |
1950 |
|
Масса, кг |
170 |
300 |
720 |
500 |
Теплообмен в шкафу происходит следующим образом: холодный воздух через щель в нижней части боковины засасывается через электронагреватель в закрытую полость на потолке, а затем вентилятором через отверстие в центре потолка направляется в тепловую камеру.
Тепловой режим шкафа регулируется датчиком-реле температуры, чувствительный баллон которого закреплен внутри шкафа в средней части потолка.
Шкафы устанавливаются на раздаче. Стеллажи со скомплектованными блюдами вкатываются в шкафы со стороны кухни за 30—60 мин до начала обеда и выкатываются в торговый зал во время раздачи блюд.
Шкаф тепловой сквозной ШТС-М находит применение на крупных предприятиях общественного питания и предназначен для поддержания в горячем состоянии первых, вторых и третьих блюд. Блюда устанавливаются на тележках-стеллажах, которые вкатываются в шкаф через двери с двух сторон. Двери располагаются с торцевых сторон шкафа. Боковые и потолочные облицовки представляют собой сварные листы. К потолочным облицовкам с внутренней стороны шкафа на панелях из асбоцемента смонтированы тэны общей мощностью 7,7 кВт, что позволяет направить тепловой поток от тэнов внутрь шкафа. Пол шкафа расположен на уровне пола предприятия общественного питания, что облегчает перемещение тележек-стеллажей при загрузке и разгрузке шкафа. Заданный температурный режим (60— 70 °С) поддерживается автоматически с помощью терморегулятора. Внутренний объем камеры — 3,45 м3, что позволяет разместить две тележки типа ТС-1М или ТС-2М. Время разогрева камеры до рабочей температуры составляет не более 55 мин.
Тепловые стойки предназначены для подогрева тарелок и кратковременного хранения готовых порционированных блюд в горячем состоянии. Они представляют собой прилавок, сверху закрытый гладкой полированной крышкой.
Под крышкой расположены тепловые шкафы со съемными полками. Пространство между крышкой стойки и верхним ограждением теплового шкафа образует нишу, куда можно устанавливать тарелки.
Стойка раздаточная тепловая электрическая секционная модулированная СРТЭСМ представляет собой бескаркасную конструкцию. К сварной раме крепятся облицовки, которые сверху накрываются листом из нержавеющей стали. Лист выполняет роль стола; на него ставят блюда в процессе их реализации. Под столом располагается тепловой шкаф, разделенный на четыре отсека. В каждом из отсеков имеется по три полки, на которые ставят тарелки. Шкаф обогревается четырьмя тэнами, мощность которых регулируется переключателем в соотношении 4:2:1. Стенки шкафа имеют двойную облицовку с воздушной теплоизоляцией. Выше теплового шкафа в двух нишах размещаются тарелки, которые используются для отпуска блюд. Каждый отсек шкафа имеет дверцу, а так как два отсека выходят на одну сторону шкафа, а два других — на другую, то это дает возможность одновременного пользования шкафом и нишей официантами с двух сторон.
Тепловые шкафы снизу обогреваются воздушными тэнами. Включение и регулирование мощности в соотношении 4:2:1 осуществляется вручную пакетным переключателем. До начала работы проверяют санитарное состояние поверхности стола, ниш и шкафов, надежность соединения с контуром защитного заземления, после чего пакетный переключатель устанавливают на включение тэнов на максимальную мощность, при этом должна загореться сигнальная лампа. Когда аппарат разогреется (примерно через 1 ч), переключают нагреватели на среднюю или минимальную мощность.
Стойка раздаточная тепловая электрическая секционная модулированная СРТЭСМ-М используется в ресторанах для выдачи блюд официантам.
Конструкция стойки бескаркасная: к сварной раме, установленной на ножках, регулируемых по высоте, крепятся стальные облицовки, которые сверху накрываются столом из нержавеющей стали.
Обслуживание стойки может производиться с двух сторон. Тепловой шкаф разделен на два отсека и закрывается створчатыми дверьми. В каждом отсеке имеется по три полки, установленные на раме или съемных уголках, с помощью которых можно регулировать расстояние между полками.
Нагрев теплового шкафа и стола осуществляется трубчатыми электронагревателями, расположенными в нижней части стойки на раме.
Включение электронагревателей производится четырехпозиционным переключателем, установка ручки которого в положение "1", "2", "3" соответствует слабому, среднему и сильному нагреву. Отключение стойки производится установкой ручки переключателя в положение "О".
Таблица 2.4
Техническая характеристика СРТЭСМ-М:
|
Площадь рабочей поверхности стола, м2 |
1,2 |
|
Номинальный объем теплового шкафа, м3 |
0,5 |
|
Рабочая температура, °С: |
|
|
на поверхности стола |
от 40 до 50 |
|
в тепловом шкафу |
от 60 до 80 |
|
Время разогрева стойки до рабочей температуры, мин |
60 |
|
Номинальная мощность, кВт |
1,5 |
|
Номинальное напряжение, В |
220 |
|
Род тока |
Однофазный, переменный |
|
Габаритные размеры, мм: |
|
|
длина |
1510 |
|
ширина |
800 |
|
высота |
850 |
|
Масса, кг |
35 |
Эксплуатационно-экономический раздел
Требования по эксплуатации линий самообслуживания, установка и монтаж линий самообслуживания. Требования техники безопасности, санитарные требования
Приведем список нормативных документов, регулирующих эксплуатацию линий самообслуживания:
Таблица 3.1.
Список нормативных документов, регулирующий эксплуатацию электросковород
Код ОКПКод ТН ВЭД |
Наименование испытаний и (или) определяемых характеристик (параметров) |
Обозначение НД на продукцию, содержащую значения определяемых характеристик |
Обозначение НД на методы испытаний |
|
34 6815 34 6825 |
Безопасность |
ГОСТ Р МЭК 60335-2-13-99 |
ГОСТ Р МЭК 60335-2-13-99 |
|
8516 79 800 |
ЭМС |
ГОСТ Р 51318.14.1-99 ГОСТ Р 51317.3.2-99 (с 01.01.2002) ГОСТ Р 51317.3.3-99 (с 01.01.2002) ГОСТ Р 51317.6.3-99 (с 01.01.2002) ГОСТ Р 51317.6.4-99 (с 01.01.2002) ГОСТ Р 51318.14.2-99 (с 01.07.2001) ГОСТ Р 51317.6.1-99 (с 01.01.2002) ГОСТ Р 51317.6.2-99 (с 01.01.2002) ГОСТ Р 50648-94 |
ГОСТ Р 51318.14.1-99 ГОСТ Р 51317.3.2-99 (с 01.01.2002) ГОСТ Р 51317.3.3-99 (с 01.01.2002) ГОСТ Р 51317.6.3-99 (с 01.01.2002) ГОСТ Р 51317.6.4-99 (с 01.01.2002) ГОСТ Р 51318.14.2-99 (с 01.07.2001) ГОСТ Р 51317.6.1-99 (с 01.01.2002) ГОСТ Р 51317.6.2-99 (с 01.01.2002) ГОСТ Р 50648-94 |
Линии самообслуживания относятся к нагревательному оборудованию, поэтому для него применяются правила эксплуатации для подобного оборудования.
Это оборудование может быть причиной ожогов персонала вследствие высокой (80—100°С) температуры рабочей среды, поэтому загрузку продуктов и разгрузку готовых изделий следует производить с особой осторожностью, не касаясь нагретых металлических поверхностей.
Необходимо систематически производить осмотр и ремонт пускорегулирующих устройств, реле температуры, проверять надежность заземления электрических аппаратов.
Технико-экономические показатели линий самообслуживания.
Для определения экономической эффективности оборудования было проведено исследование – сделана фотография рабочего дня на предприятии «Столовая Дальзавода», расположенного в черте г. Владивостока. продолжительность исследования – 1 (один) день
Исследуемое оборудование: Линия комплектации и накопления комплексных обедов ЛКНО "Эффект" (технические характеристики см. выше). Предприятие имеет 2 таких линии. Время работы каждой линии в течение исследуемого промежутка времени, время работы цеха и коэффициент эффективности сведены в таблицу 3.2:
Таблица 3.2
Определение эффективности работы линий самообслуживания
|
Линия раздачи |
Время работы оборудования, Т>0>, ч |
Время работы цеха, Т>см>, ч |
Коэффициент эффективности |
|
№1 |
3+2=5 |
8 |
|
|
№2 |
2+1=3 |
8 |
|
|
Итого |
|
Вывод: коэффициент эффективности оборудования на предприятии имеет среднее значение. Обордование используется неэффективно.
СПИСОК ЛИТЕРАТУРЫ
С. Я. Яковлева, Е. Ф. Школьникова. «Охрана труда в общественном питании». М: «Экономика». 1982
«Технология производства продукции общественного питания». Учебник. М: «Экономика». 1981
«Справочник товароведа». М: «Экономика». 1990.


