Проект балочной площадки
Министерство общего и профессионального образования РФ
Кафедра строительных конструкций
Курсовой проект по дисциплине
"Металлические конструкции"
2009 г.
Реферат
В курсовом проекте выбрана
схема проектируемой балочной площадки;
произведен расчет стального настила;
подобраны и проверены балки настила;
рассчитана наиболее нагруженная главная
балка площадки; определены расчетные
усилия и произведена компоновка сечения
с наибольшим изгибающим моментом и на
расстоянии
от опоры.
Произведена расстановка ребер жесткости и проверена местная устойчивость стенки. Рассчитана опорная часть балки, поясные швы. Произведен расчет монтажного стыка главной балки; наиболее нагруженной колонны; оголовка колонны; базы колонны.
Все расчеты произведены в соответствии с нормативной документацией.
Содержание
Исходные данные
1. Выбор схемы балочной клетки
2. Расчет стального настила
3. Компоновка балочной клетки
4. Определение высоты и размеров главной балки
5. Расчет соединения поясов со стенкой
6. Изменение сечения балки по длине
7. Правка местной и общей устойчивости элементов главной балки
8. Расстановка ребер жесткости
9. Расчет монтажного стыка главной балки
10. Расчет опорной части главной балки
11. Подбор и компоновка сечения сквозной колонны
12. Расчет базы колонны
13. Расчет оголовка колонны
Литература
Исходные данные
Шаг колонн в продольном направлении, А = 15 м.
Шаг колонн в поперечном направлении, В = 6 м.
Габариты площадки в плане, 3А×3В.
Отметка верха настила – 11 м.
Величина полезной нагрузки, р = 22 кН/м2.
Допустимый относительный прогиб настила 1/>200>.
Тип колонны: сквозная.
1. Выбор схемы балочной клетки
Балочная клетка представляет собой систему пересекающихся несущих балок, предназначенных для опирания настила перекрытий. В зависимости от схемы расположения балок балочные клетки подразделяются на 3 типа: упрощенные, нормальные и усложненные. В упрощенной балочной клетке нагрузка от настила передается непосредственно на балки, располагаемые параллельно короткой стороне перекрытия, затем на вертикальные несущие конструкции (стены, стойки). В балочной клетке нормального типа балки настила опираются на главные балки, а те на колонны или другие конструкции. В усложненной балочной клетке балки настила опираются на вспомогательные, которые крепятся к главным балкам.
Толщина настила зависит от полезной нагрузки:
при полезной нагрузке 10 кПа – t>н> = 6 мм
при полезной нагрузке 10 – 20 кПа – t>н> = 8 мм
при полезной нагрузке более 20 кПа – t>н> = 10 мм.
Тип балочной клетки выбирают путем анализа различных вариантов, сравнивая расход металла, технологические требования.
2. Расчет стального настила

t>н> – толщина настила; f – прогиб; l>н> – допустимый пролет; а.б.н. – шаг балок настила
При временной распределенной нагрузке 22 кПа принимаем толщину настила 10 мм.
Толщина настила на изгиб с распором можно вычислить приближенно из условия заданного предельного прогиба по формуле:
где

Е>1> – цилиндрическая жесткость настила.
При коэффициенте Пуассона ν = 0,3 (для стали) Е>1>> >определяется по формуле:



3. Компоновка балочной клетки
Сравним 2 варианта компоновки балочной клетки:
I вариант.
Пролет главной балки делим на 19 промежутков по 78,9 см.
Определяем вес настила, зная, что 1м2 стального листа толщиной 10 мм весит 78,5 кг.
g
= 78,5 кг/м2
= 0,785 кН/м2
Нормативная нагрузка на балку настила:
qn = (pn + gn)·a = (22 + 0,785)·0,789 = 28,88 кН/м = 0,29 кН/см
Расчетная нагрузка на балку настила:
q = (n>p>·pn +n>g>·gn)·a = (1,2·22 + 1,05·0,785)·0,789 = 21,48 кН/м
Расчетный изгибающий момент для балки настила длинной 6 м:

Требуемый момент сопротивления балки:

Принимаем двутавр №30 по ГОСТ 8239–72, имеющий: I = 7080 см4, W =472, вес g = 36,5 кг/м, ширину полки 13,5 см.
Проверяем на прогиб:
f = (5/384)·ql4/EI

Принятое сечение балки удовлетворяет условиям прогиба и прочности, т. к. W = 597 см3 > W>тр> = 390,5 см3.
Общую устойчивость балок настила проверять не надо т. к. их сжатые пояса надежно закреплены в горизонтальном направлении приваренным к ним настилом.
Определяем расход металла на 1м2 перекрытия: настил – 78,5 кг/м2, балки настила g/a = 42,2/0,789 = 53,5 кг/м2.
Весь расход металла: 78,5 + 53,5 = 132 кг/м2 = 1,32 кН/м2.

Рисунок 1 – Схема блочной клетки (нормальный вариант)
II вариант (усложненная компоновка)

Рисунок 2 – Схема блочной клетки (усложненный вариант)
Принимаем настил, как и в I варианте.
Расстояние между балками настила а = 600/8 = 75 см < 78 см.
Пролет балки настила l = 3,75 м.
Нормативная и расчетная нагрузка на нее:
qн = (22 + 0,785)·0,750 = 17,1 кН/м = 0,171 кН/см.
q = (1,2·22 + 1,05·0,785)·0,75 = 20,42 кН/м
Расчетный изгибаемый момент и требуемый момент сопротивления балки


Примем I 20, имеющий: I = 1840 см4, W = 184 см3, g = 21 кг/м.
Проверяем только прогиб балки, т. к. W = 184 см3 > W>тр> = 145 см3.

Принятое сечение удовлетворяет условиям прочности и прогиба.
Определяем нормативную и расчетную нагрузку на вспомогательную балку:


Определяем расчетный изгибающий момент и требуемый момент сопротивления вспомогательной балки:


Принимаем I 55, имеющий: I = 55150см4; W = 2000 см3
ширину и толщину полки
b = 18 см, t = 1,65 см, g = 89,8 кг/м
Т.к. W = 2000см3 > W>тр> = 1873 см3, проверяем балку на прогиб

Затем проверяем общую устойчивость вспомогательных балок в середине пролета, в сечении с наибольшими нормальными напряжениями. Их сжатый пояс закреплен от поперечных смещений балками настила, которые вместе с приваренным к ним настилом образуют жесткий диск. В этом случае за расчетный пролет следует принимать расстояние между балками настила l>0> = 75 см.
Исходя из условий формулы
в сечение l/2;
при τ = 0 и с>1> = с получаем

Подставляя значения δ в формулу, получаем:

Поскольку 5,62 > 4,17, принятое сечение удовлетворяет требованиям прочности, устойчивости и прогиба.
Суммарный расход металла
78,5 + 21/0,75 + 89,8/3,75 = 133,455 кг/м2
По расходу материала I вариант выгоднее.
4. Определение высоты и размеров главной балки

Рисунок 3 – Расчетная схема и усилия в главной балке


Найдем усилия:



Минимальная высота сечения сварной балки из условия жесткости при f/l =1/200 должна быть (см. с. 91 (II)):
h>min>/l = 1/30, откуда
h>min> = 1500/30 = 50 см
При расчете по эмпирической формуле толщина стенки составит
t>ст> = 7 + 3·500/1000 = 8,5 мм.
Принимаем таблицу стенки 10 мм (четного размера).
Оптимальная высота балки при t>ст >= 10 мм будет:

где k = 1,15 – для сварных балок.
Назначаем высоту балки 170 см.
Проверяем принятую толщину стенки из условия действия касательных напряжений:
t>ст> = 3Q/2hR>s>γ>c> = 3·1275000/2·170·13500·1 = 0,8 см < 1 см,
т.е. условие удовлетворяется.
Проверяем условие, при соблюдении которого не требуется постановка продольных ребер в стенке

Принятая стенка толщиной 10 мм удовлетворяет прочности на действие касательных напряжений и не требует постановки продольного ребра для обеспечения местной устойчивости.
Подбираем сечение сварной балки:
I = W (h/2) = 20787·(170/2) = 1766895 см4
I>ст> = t>ст>·h>ст>3/12 = 1·(170 – 2t>n>)3/12 = 1·(170 – 2·2)3/12 = 381191 см4 –
момент инерции стенки.
где h>ст> = h – 2t>n> = 170 – 2·2 = 166 см.
t>n> = 2 см – принимаемая толщина полки.
Момент инерции полок:
I>n> = I – I>ст> = 1766895 – 381191 = 1385704 см4.
h>0 >= h – t>n> = 170 – 2 = 168 см –
расстояние между центрами тяжести полок.
Площадь сечения одной полки
A>n> = 2I>n>/h>0>2 = 2·1385704/1682 = 98 см2.
Ширина полки b>n> = A>n>/t>n> = 98/2 = 49 см.
Принимаем сечение полок 500×20 мм.
Проверяем принятую ширину (свес) поясов b>n> по формуле, исходя из обеспечения их местной устойчивости:

условие удовлетворяется тоже, при упругопластической работе сечения балки

где h>cn> = h – 2t>n> = 170 – 2·2 = 166 см.
Проверяем принятое сечение на прочность
Фактический момент инерции
I = (t>ст> – h>ст>3/12) + 2a2A>n> = (1·1663/12) + 2·842 ·100 = 1792391 см4,
где a = h>0>/2 = 168/2 = 84 см.
Фактический момент сопротивления
W = I/(h/2) = 1792391/85 = 21087 см3.
Напряжение по формуле составит
σ = M/W = 4781·105/21087 = 226,7 < 230 МПа = R>y>γ>c>,
условие удовлетворяется.
Проверяем касательные напряжения по нейтральной оси сечения у опоры балки
τ = QS/It>ст> = 1275000·11844/1792391·1 = 8425 Н/см2 = 84 МПа < R>s>γ>c> = =135 МПа.
где S – статический момент полусечения
S = A>n>·(h>0>/2) + (A>ст>/2)·(h>ст>/4) = 100·84 + (1·166·166/2·4) = 11844 см3
Полная площадь сечения баки
А = 166·1 + 2·100 = 366 см2
Масса 1 м балки (без ребер жесткости):
а = 366·100 (7850/106) = 287 кг/м, а с ребрами жесткости 1,03·287 =
= 296 кг/м.
5. Расчет соединения поясов со стенкой
Сдвигающее усилие Т, приходящееся на 1 см длины балки составит:
T = τ·t>ст> =QS>n>/I = 1275·8400/1792391 = 6 кН,
где S>n> – статический момент пояса (сдвигаемого по стыку со стенкой) относительно нейтральной оси:
S>n> = A>n>·(h>0>/2) = 10·84 = 8400 см3.
Сдвигающая сила Т воспринимается двумя швами, тогда минимальная толщина этих швов при длине l>w> = 1 см, будет
k>f> ≥ QS>n>/n·I·(βR>w>)·γ>c> = T/2·(βR>w>)·γ>c> = 6000/2·1·1·16200 = 0,185 см,
где (βR>w>) – меньшее из произведений коэффициента глубины проплавления (β>f> или β>z>) на расчетное сопротивление, принимаемое по условному срезу металла на границе сплавления шва (Rwzγwz); при γwt = γwz = = 1 и для автоматической сварки проволокой d = 2 мм марки СВ – 08А (по ГОСТ 2246 – 70*) βf = 0,9 имели
βfRwfγwf = 0,9·180·1 = 162 МПа.
Принимаем конструктивно минимальную толщину шва kf = 7 мм, рекомендуемую при толщине пояса 17 – 22 мм (см. табл. 3.3. с. 62 [II]).
6. Изменение сечения балки по длине

Рисунок 4 – К изменению сечения по длине
Место изменения сечения принимаем на расстоянии 1/>6> пролета от опоры. Сечение изменяем уменьшением ширины поясов. Разные сечения поясов соединяем сварным швом встык электродами Э42 без применения физических методов контроля.
Определяем расчетный момент и перерезывающую силу в сечении:
x = l/6 = 15,6 = 2,5 м
M>1> = [qx·(l – x)]/2 = [170·2,5·(15 – 2,5)]/2 = 2656 кН·м = 265600 кН·см
Q>1> = q·(l/2 – x) = 170·(15/2 – 2,5) = 850 кН
Определяем требуемый момент сопротивления и момент инерции измененного сечения исходя из прочности сварного стыкового шва, работающего на растяжение:


Определяем требуемый момент инерции поясов (I>ст> = 381191 см4)
I>n>>1> = I>1> – I>ст> = 1154725 – 381191 = 773534 см4
Требуемая площадь сечения поясов
A>n>>1> = 2I>n>>1>/h>01> = 2·773534/1682 = 54,8 см2
Принимаем пояс 280×20 мм, A>n>>1> = 56 см2
Принимаемый пояс удовлетворяет рекомендациям
b>n>>1> > 18 см, b>n>>1> >170/10 = 17 cм
Определяем момент инерции и момент сопротивления уменьшенного сечения:
I>1> = I>ст> + 2b>1>t>n>·(h>0>/2)2 = 381191 + 2·28·2·(168/2)2 = 1171463 cм4
W>1> = 2I>1>/h = 2·1171463/170 = 13782 cм3
σ>max> = M>1>/W>1> = 265600/13782 = 19,3 кН/см2 < Rсв = 0,85·23 = 19,55 кН/см2
7. Проверка общей и местной устойчивости элементов главной балки
1) Проверка прочности балки.
Проверяем максимальные нормальные напряжения в поясах в середине балки:
σ = M>max>/C>1>W = 478100/1,1 = 20,6 кН/см2 < R = 23 кН/см2
Проверяем максимальное касательное напряжение в стенке на опоре балки:


Проверяем местные напряжения в стенке под балкой настила
σ>m> = F/t>ст>·l>м> =128,88/1·17,5 = 7,36 кН/см2 < R,
где F = 2·21,48·6/2 = 128,88 кН – опорные реакции балок настила
l>м> = b + 2t>n> = 13,5 + 2·2 = 17,5 см – длина передачи нагрузки на стенку банки.
Проверяем приведенные напряжения в месте изменения сечения балки (где они будут максимальны):

где



Проверки показали, что прочность балки обеспечена.
2) Проверяем общую устойчивость балки в месте действия максимальных нормальных напряжений, принимая за расчетный пролет l>0> – расстояние между балками настила в середине пролета балки, где учтены пластические деформации:
и


где
,
так как τ = 0
и С>1>
= С
В месте уменьшенного сечения балки (балка работает упруго и δ = 1)

Проверки показали, что общая устойчивость балки обеспечена.
3) Проверка прогиба не производится, так как h = 170 > 50 см = h>min>

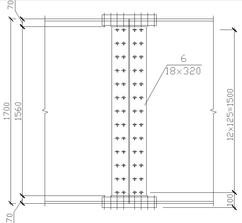
Рисунок 5 – Схема монтажного стыка главной балки
8. Расстановка ребер жесткости
Определяем необходимость постановки ребер жесткости:

λ>ст> = 2,2 – при действии местной нагрузки на пояс балки.
Вертикальные ребра жесткости необходимы. Кроме того, в зоне учета пластических деформаций необходима постановка ребер жесткости под каждой балкой настила, т. к. местные напряжения в стенке в этой зоне не допустимы. Определяем длину зоны использования пластических деформаций в стенке по формуле:

Определяем средние значения М и Q на расстоянии х = 157,9 см. от опоры под балкой настила
M>2> = [qx·(l – x)]/2 = [170·1,579 (15 – 1,579)]/2 = 1801 кН·м = 180100 кН·см
Q = q·(l/2 – x) = 170·(15/2 – 1,579) = 1006,5 кН
Определяем действующие напряжения:

где W = 20787 см3 из определения высоты и размеров главной балки.

σ>м> = 7,36 кН/см2 (из расчета балки на устойчивость)
Определяем критические напряжения:

где h>0> = h>c>>т>, λ>усл> = λ>ст> = 4,9
R>ср>
= 13,5 кН/см2
Размеры отсека a>1>/h>0> = M = 0,95 и δ>м>/σ = 7,36/8,46 = 0,86

По таблице 7.6. (с. 158 [I]) при δ = 1,9; a/h>0> = 0,9 предельное значение σ>м>/σ = 0,109
Расчетное значение σ>м>/σ = 0,86 > 0,109
σ>кр>> >определяем по формуле:
>
>
где с>кр> = 33,1 по табл. 7.4 (с. 155 [I]) при δ = 1,9
Определяем σ>мкр>

где

с>1> = 11 по табл. 7.5 (с. 156 [I]) при δ = 1,9
a>1>/2h>ст> = 157,9/2·166 = 0,47
Подставляем все значения в формулу

Устойчивость стенки обеспечена и постановка ребер жесткости на расстоянии а>1> = 157,9 см возможна.
Определяем размеры ребер жесткости ширина b>p> = h>ст>/30+40 = 1660/30 + 40 = 95 мм
Примем b>p> = 120 мм
толщина

Примем t>p> = 7 мм
9. Расчет монтажного стыка главной балки

Рисунок 6 – Схема опорной части главной балки
Стык делаем в середине пролета балки, где М = 4781 кН·м и Q = 0.
Стык осуществляем
высокопрочными болтами d
= 20 мм из стали
«селект», имеющий по таблице 6.2
;
обработка поверхности газопламенная.
Несущая способность болта, имеющего
две плоскости трения:

где

γ>б>
= 0,85:
т. к. разница в номинальных диаметрах отверстия и болта больше 1 мм;
М = 0,42 и γ>н> = 1,02;
Принимая способность регулирования натяжения болта по углу закручивания, k = 2 – две плоскости трения.
Стык поясов. Каждый пояс балки перекрываем тремя накладками сечениями 500×12 мм и 2×220×12 мм, общей площадью сечения
A>n>> >= 1,2·(50 + 2·22) = 112,8 см2 > A>n> = 100 см2
Усилие в поясе определяем по формуле:
M>n> = MI>n>/I = 4781·1385704/1792391 = 3696 кН·м
N>n> = M>n>/h>0> = 3696/1,68 = 2200 кН
где I, I>n>, h>0> – из расчета главной балки
Количество болтов для прикрепления накладок рассчитываем по формуле:
n = N>n>/QВБ = 2200/132 = 16,6
Принимаем 16 болтов.
Стык стенки. Стенку перекрываем двумя вертикальными накладками сечением 320×1560×8 мм.
Определяем момент, действующий на стенку
М>ст> = MI>ст>/I = 4781·381191/1792391 = 1016 кН·м
Принимаем расстояние между крайними по высоте рядами болтов:
a>max> = 1660·2·80 = 1500
Находим коэффициент стыка

= M>ст>/ma>max>QВБ
= 101600/2·150·132 = 2,56
Из таблицы 7.8 (с. 166 [I]) находим количество рядов болтов по вертикали k.
при
= 2,56
k
= 13
Принимаем 13 рядов с шагом 125 мм.
Проверяем стык стенки по формуле:


Проверяем ослабление нижнего растянутого пояса
А>п.нт> = 2,0·(50 – 2·5,785) = 86,86 см2 > 0,85 А>n> = 0,85·100 = 85 см2
Ослабление пояса можно не учитывать.
Проверяем ослабление накладок в середине стыка четырьмя отверстиями
= 112,8 – 4·2·1,2·5,785 = 57,2 см2
< 0,85A>n>
= 85 см2.
Принимаем накладки толщиной 18 мм
= 1,8·(50+2·22) –
4,2·1,8·5,785=85,9 cм2
>0,85A>n>
= 85 см2
10. Расчет опорной части главной балки
Опорная реакция балки F = 1275 кН
Определяем площадь смятия торца ребра

где R>см.т.> = 35,5 кН/см2 = 355 МПа (прил. 4 [I]).
Принимаем ребро 280×14 мм,
А>р> = 28·1,4 = 39,2 см2 >35,9 см2. Проверяем опорную стойку балки на устойчивость относительно оси Z. Ширина участка стенки, включенной в работу опорной стойки:

А>ст> = А>Р> + t>c>>т>·b>ст> = 39,2 + 1·19,45 = 58,65 см2
I>z> = 1,4·283/12 + 19,45·13/12 = 2562 cм4

λ = h>ст>/iz = 166/6,6 = 25,1 по приложению 7 (I) φ = 0,947

Рассчитываем прикрепление
опорного ребра к стенке балки двусторонними
швами полуавтоматической сваркой
проволокой С>В>
– 08Г>2>.
Предварительно находим параметры
сварных швов и определяем минимальное
значение β
.
По таблице 5.1 (I)
принимаем
= 215 МПа = 21,5 кН/см2;
по прилож. 4 (I)
–
=165
МПа = 16б5 кН/см2,
по табл. 5.4. (I)
β>ш> = 0,9; β>с> = 1,05
β>ш>·
= 0,9·21,5 = 19,3 кН/см2
> β>c>·
= 1,05·16,5 = 17,32 кН/см2
Определяем катет сварных швов по формуле:

Принимаем швов k>м> = 7 мм.
Проверяем длину рабочей части шва:
l>м> = 85·β>с>·k>м> = 85·1,05·0,7 = 62,5 см < h>c>>т> = 166 см
Ребро привариваем к стенке по всей высоте сплошными швами.
11. Подбор и компоновка сечения сквозной колонны
Постоянная нагрузка от собственного веса колонны – 1,5 кПа. Расчетное усилие в стержне колонны:
N = 1,01·(n>p>·p + n>g>·g) ·A·B = 1,01·(1,2·22 + 1,05·1,5) ·15·6 = 2540 кН
Длина колонны: l>0 >= 11 – 0,01 – 0,3 – 1,72 = 8,97 м
Зададимся гибкостью λ = 60 и находим φ = 0,785 (по прил 7 [1]), площадь сечения
A>тр> = N/(φ·R) =2540/0,785·28 = 115,5 см2,
где R = 28 кН/м2 – расчетное сопротивление для стали марки В>ст> 3nc6 – 2 радиус инерции:
i>mp> = l>0>/λ = 897/60 = 14,95
По сортаменту ГОСТ 8240 – 72* принимаем два швеллера 40 со значениями А = 2·61,5 = 123 см3; i>x> = 15,7 см.
Рассчитываем гибкость относительно оси х
λ>х> = 897/15,7 = 57; φ>х> = 0,800 (прил. 7)
Проверяем устойчивость относительно оси х
σ = N/φA = 2540/0,8·123 = 25,8 кН/м2 < R = 28 кН/см2

Рисунок 7 – Сечение сквозной колонны
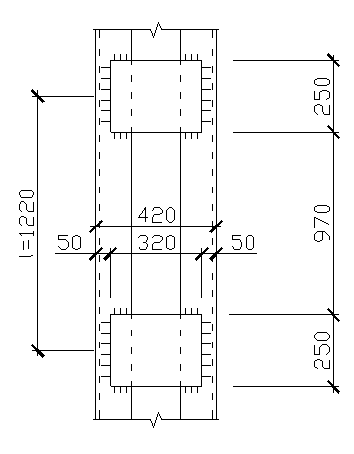
Расчет относительно свободной оси.
Определяем расстояние между ветвями колонны из условий равноустойчивости колонны в двух плоскостях λ>пр> = λ>х>, затем требуемую гибкость относительно свободной оси у-у по формуле:

Принимаем гибкость ветви
равной 30 и находим

Полученной гибкости соответствуют радиус инерции i>y> = 897/48 = 18,7 см; и требуемое расстояние между ветвями b = i·y/0,44 = 18,7/0,44 = 42 см
Полученное расстояние должно быть не менее двойной ширины полок швеллеров плюс зазор, необходимый для оправки внутренних поверхностей стержня b>тр> = 2·115 + 100 = 330 мм < 42 см, следовательно принимаем ширину колонны = 420 мм.
Проверка сечения относительно свободной оси.
Из сортамента имеет: I>1> = 642 см4; i>1> = 3,23 см; z>0> = 2,68 см.
I>y> = 2·[642 + 61,5·(21 – 2,75)2] = 42250 см4
Расчетная длина ветви l>b> = λ>1>·i>1> = 30·3,23> >= 97 см
Принимаем расстояние между планками 97 см м сечение планок 10×250 мм, тогда
I>пл> = 1·253/12 = 1302 см4
Радиус инерции сечения стержня относительно свободной оси

Гибкость стержня относительно свободной оси
λ>у> = 897/18,5 = 48,5
Для вычисления приведенной гибкости относительно свободной оси надо проверить отношение погонных жесткостей планки и ветви
I>пл>/b>0:> I>1>/l>в> = I>пл>·l>в>/I>1>b>0> = 1302·122/642·36,5 = 6,7 >5
Здесь b>0> = 42 – 2·2,75 = 36,5 см – расстояние между ветвями в осях.
Приведенную гибкость вычисляем по формуле при отношении погонных жесткостей планки и ветвей более 5.

Т.к. λ>пр> = λ>х>, напряжение можно не проверять, колонна устойчива в двух плоскостях.

Рисунок 8 – К проверке сечения относительно свободной оси
Расчет планок
Расчетная поперечная сила:
Q>усл> = 0,27А = 0,27·123 = 33,21 кН
Поперечная сила, приходящаяся на планку одной грани.
Q>пл> = Q>усл>/2 = 33,21/2 = 16,6 кН
Изгибающий момент и поперечная сила в месте прикрепления планки
М>пл> = Q>пл>·l>b>/2 = 16,6·122/2 = 1012 кН·см
F>пл> = Ql>b>/b>a> = 16,6·122/36,5 = 55,5 кН
Принимаем приварку планок к полкам швеллеров угловыми швами с катетом шва k>ш> = 0,8 см.
=
200 МПа, β>ш>
= 0,8
Необходима проверка по металлу шва. Расчетная площадь шва
А>уш> = k>ш>·l>ш> = 0,8·(25 – 2·0,8) = 18,72 см2
Момент сопротивления шва
W>ш> = k>ш>·l2>ш>/6 = 0,8·(25 – 2·0,8)2/6 = 73 см3
Напряжение в шве от момента и поперечной силы:
σ>уш> = М>пл>/W>ш> = 1012/73 = 13,86 кН/см2
τ>уш> = F>пл>/А>уш> = 55,5/18,72 = 2,9 кН/см2
Проверяем прочность шва по равнодействующему напряжению:

Размеры планки 320×250×10
12. Расчет базы колонны
Требуемая площадь плиты из условия смятия бетона найдем по формуле:

где R>см.б >= γ·R>b>, для В 12,5 => R>b> = 7,5 МПа: γ = 1,2
R>c>>м.б.> = 1,2·7,5 = 9 МПа
Принимаем плиту размером 55×60 см
А>пл> = 55×60 = 3300 см2; σ>ф> = N/A>пл>
σ>ф> = N/A>пл> = 2540/3300·10-1 = 7,7 МПа < R>см.б> = 9 МПа
Толщину плиты принимаем из расчета отдельных участков.
М = σ>ф>·а2/2 = 770·92/2 = 31185 Н·см = 0,31 кН·м
Проверим работу среднего участка плиты 1, заключенного между ветвями и опертыми по четырем сторонам. Отношение сторон составит
b/a = 404/400 = 1,01
Требуемый момент сопротивления сечения плиты составит W = M/R>y>γ>c> = = 31185/20500 = 1,52 см3,
где R>y> = 205 МПа – при толщине листов 21 – 40 мм.
При толщине табл. 5.5 (с. 137 II) вычисляем изгибающие моменты для полос шириной 1 см
М>а> = α>1>·σ>ф>·а2 = 0,05·770·402 = 61600 Н·см
М>в> = α>2>·σ>ф>·а2 = 0,048·770·402 = 59136 Н·см
при b/a = 1,01; α>1> = 0,05; α>2> = 0,048
Требуемую толщину плиты определяем по М>а>:

Принимаем плиту толщиной 40 мм.
Высота листов траверсы:
h = N/β>f>·k>ш>·R>уш>γ>с>·n>ш> = 2540000/0,7·1·18000·1·1·4 = 50,3 см
где k>ш> = 10 мм, n = 4 – число швов.
Принимаем высоту траверсы = 50 см.
Анкерные болты принимаем конструктивно диаметром 24 мм.
Размеры фундамента в плане принимают на 15 – 20 см в каждую сторону от опорной плиты.
L>Ф>×В>Ф> = 80×90 см

условие прочности фундамента соблюдаются. Глубина заделки анкеров диаметром 24 мм должна быть не менее 850 мм.

Рисунок 9 – Схема базы колонны
13. Расчет оголовка колонны

Рисунок 10 – Схема оголовка колонны
Принимаем толщину опорной плиты оголовка 20 мм.
При k>ш> = 0,8 см, высота ребра составит:
h>p> = N/4β>f>·k>ш>·R>уш>·γ>уш>·γ>с> = 2540000/4·0,7·0,8·18000·1·1 = 62 см.
Принимаем высоту ребра 62 см.
Длина ребра l>p> = 320 мм = z
l>p> = 28 + 2 + 2 = 32 см
Толщина ребра:
t>p> = N/l>p>·R>s> = 2540000/0,32·33200 = 2,4 см
Принимаем t>p> = 25 мм
R>s> = 332 МПа
z – расчетная длина распределения местного давления опорных ребер балки.
Проверяем напряжение в швах, прикрепляющих ребра оголовка к плите при k>ш> = 12 мм.
σ = N/β>f>·h>ш>·Σl>ш> = 2540000/0,7·1,2·154 = 19635 Н/см2 = 196,35 МПа < < R>уш>·γ>уш>·γ>с> = 200 МПа,
где Σl>ш> = 2·42 + 2·(40 – 5) = 154 см
Ветви колонны приваривают к опорной плите швами толщиной 6 – 8 мм.
Размер плиты оголовка назначаем конструктивно 500×460 мм.
Литература
Металлические конструкции. Учебник для вузов. Под редакцией Е.И. Беленя – М.: Стройиздат, 1986 г.
Примеры расчета металлических конструкций. Учебное пособие для техникумов. Мандриков А.П. – М.: Стройиздат, 2001 г.
Методические указания. Сост. И.В. Слепнев. Краснодар, 2006 г.