Проектирование двухэтажного спального корпуса дома отдыха "Меркурий" здания в Омской области
Омский колледж отраслевых технологий строительства и транспорта
Пояснительная записка к курсовому проекту по дисциплине:
«Архитектура зданий»
Тема
Проектирование двухэтажного спального корпуса дома отдыха
«Меркурий» здания в Омской области
Выполнил: студент группы Гр. 931
Тимофеев В.А.
Омск-2009
1.Общая часть
1.1 Исходные данные для проектирования
Проект “спального корпуса” санатория “Меркурии” разработан для строительства в Омской области.
На основании задания на проектирование чертежи проекта и пояснительная записка выполнены в соответствии с действующими строительными нормами и правилами и государственными стандартами.
1.2 Климатические характеристики района строительства
Омская область относится к строительно-климатическому району I В.
Расчетная температура воздуха наиболее холодных суток -41ºС. Расчетная температура наиболее холодной пятидневки -37ºС.
Расчетная температура внутреннего воздуха +20ºС.
Относительная влажность внутреннего воздуха 55%.
Влажностный режим помещения - нормальный.
Преобладающее направление ветра ЮЗ.
Продолжительность отопительного периода 221 суток.
Средняя температура отопительного периода -8,4ºС.
Глубина сезонного промерзания грунта 2,20 м.
Нормативная снеговая нагрузка 70 кг/м².
Средняя скорость ветра 5 м/с.
Зона влажности района строительства – сухая.
1.3 Геологические данные площадки строительства
1 слой - почвенно-растительный, мощность 0,2-0,5 м
2 слой - суглинок твердый, мощностью 2,5-3,5 м
Коэффициент пористости - е=0,55
Удельный вес грунта - γ=18 кН/м³
Показатель текучести - I>L>=0,30
Модуль деформации - Е=17 МПа
Угол внутреннего трения грунта - φn=24º
Удельное сцепление грунта - С>n>=0,015 МПа
3 слой – супесь твердая, мощностью 3,0-5,0 м
Коэффициент пористости - е=0,45
Удельный вес грунта - γ=19,3 кН/м³
Показатель текучести - I>L>=0,24
Модуль деформации - Е=16 МПа
Угол внутреннего трения грунта- φ>n>=30º
Удельное сцепление грунта - С>n>=0,021 МПа
Грунтовые воды скрыты на глубине 3,0м от поверхности земли. По отношению к бетону грунтовые воды агрессией не обладают. Тип режима грунтовых вод - террасовый, характер питания инфильтрационный, в связи, с чем уровень подземных вод подвержен сезонным колебаниям
1.4 Характеристики здания
Степень долговечности – III
Степень огнестойкости – II
Класс здания – III
Класс функциональной пожарной опасности – Ф 1.2
2. Генеральный план участка
Двухэтажный спальный корпус дома отдыха запроектирован на территории санатория “Меркурий”. Главный фасад здания обращен на березовую рощу. Проектируемый участок свободен от застройки.
Рельеф территории застройки ровный, спокойный; площадка для строительства спланирована с уклоном 5% для естественного стока атмосферных осадков.
Проектируемый спальный корпус расположен в сложившейся капитальной жилой застройке. Здание размещено с учетом розы ветров, инсоляции и противопожарных требований. Этажность проектируемого здания, конфигурация в плане, архитектурный образ не нарушают общего архитектурно-планировочного решения.
На участке запроектировано: площадка для автомобилей на 10 машин со стороны главного фасада. Покрытие проезда и площадок предусмотрено из щебня и песка по уплотненному грунту с верхним слоем из мелкозернистого асфальтобетона.
Площадка спального корпуса здания озеленена газонами, клумбами, деревьями, кустарника в виде живой изгороди.
Для защиты окружающей среды в проекте предусмотрены:
1. Защита почвы организованным отводом поверхностных вод.
2. Уменьшение пылеобразования применением твердых покрытий на проездах, площадках и устройствах газонов.
3. Объемно-планировочные решения
Размер здания в координационных осях 1-4 составляет 22,6м., а ширина в осях А-В составляет 11,1м.
Высота этажа составляет 2,8м. максимальная высота здания 10,3м.
Лестничные клетки располагается в осях 1-2,3-4 и А-Б, размеры лестничных клеток 2,4×2м.
Планировочная система – коридорно-рекреационная.
На первом этаже находятся следующие помещения:
Комната 1 (1-2,Б-В), комната 2 (2-3,Б-В) комната 3 (2-3,Б-В), комната 4 (2-3,Б-В), комната 5 (2-3,Б-В), комната 6 (2-3,Б-В), санузел (2-3,А-Б), комната 8 (2-3,А-Б), комната 9 (2-3А-Б), комната 10 (2-3 А-Б), санузел(2-3,А-Б), столовая (2-3 А-Б).
На втором этаже находятся следующие помещения:
Кино зал (1-3,Б-В), комната 15 (2-3,Б-В), комната 16 (2-3,Б-В), комната17 (2-3,Б-В), комната 18 (2-3,Б-В), комната 19 (2-,А-Б), комната 20 (2-3,А-Б), комната 20 (2-3,А-Б), подсобная(2-3,А-Б), Спорт зал (2-3,А-Б), санузел (2-4,Б-В). Каждое помещение в здание основное по функциональному назначению имеет оконный проем, площадь которого соответствует требованиям СНиП, оконный проем служит для освещения в здании естественным светом.
3.1 Технико-экономические показатели по зданию
Таблица №1. Т.Э.П. по зданию
|
№ |
Наименование |
Ед.изм. |
Количество |
|
1 |
Площадь застройки |
м² |
250,86 |
|
2 |
Строительный объём. |
м³ |
1730,93 |
|
3 |
Общая площадь здания |
м² |
501,72 |
|
4 |
Полезная площадь здания |
м² |
284,53 |
|
5 |
Нормируемая площадь здания |
м² |
237,15 |
|
6 |
Плоскостной коэффициент К>1> |
_ |
0,64 |
|
7 |
Объёмный коэффициент К>2> |
_ |
3,45 |
F>з>=22,60∙11,10=250,86 (м²)
V>стр>=250,86∙6,9=1730,93 (м³)
F>общ> =2∙(22,60∙11,10)=501,72 (м²)
F>пол>=(12,42*3)+14,26+(10,53*5)+(12,42*3)+(14,26*2)+(10,53*6)+14,26+(16,56*2)+38,42=318,93 (м²)
F>норм>=318,93-16,56-16,56 -14,26=271,55 (м²)
K>1>=318,93/501,72=0,64
K>2>=1730,93/501,72=3,45
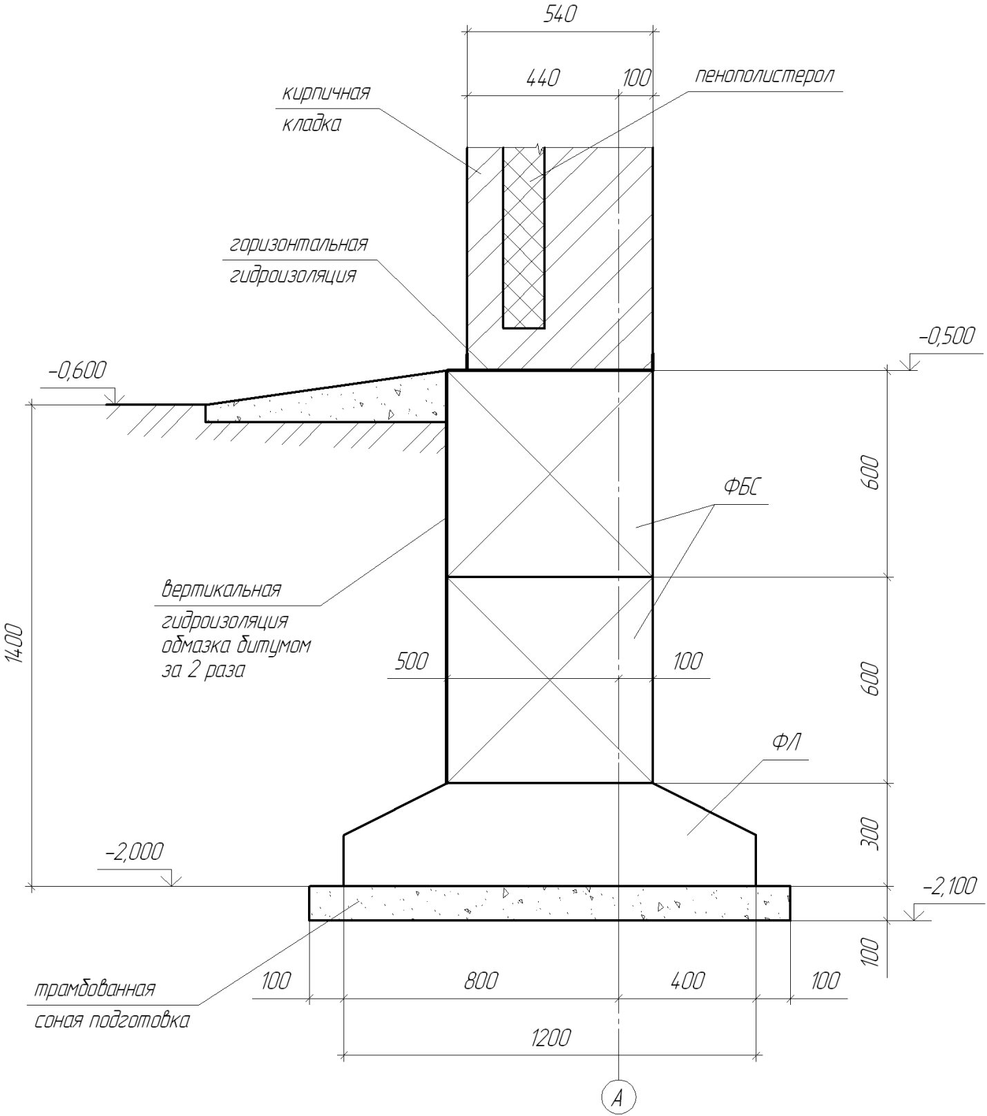
Сечение фундамента

4. Конструктивное решение
4.1 Конструктивная схема и конструктивные элементы здания
Конструктивная система проектируемого здания с продольными несущими стенами. Плиты перекрытия, опираясь на них, образуют жесткий пространственный каркас. Дополнительную пространственную жесткость зданию предают стены лестничной клетки.
ФУНДАМЕНТЫ ленточные сборные из железобетонных плит по ГОСТ 13580-68 и бетонных блоков по ГОСТ 13579-78
СТЕНЫ НАРУЖНЫЕ из обыкновенного глиняного кирпича ГОСТ 530-95 с эффектным утеплителем на гибких связях; Утеплитель – пенополистирол λ = 40 кг/м³
СТЕНЫ ВНУТРЕННИЕ из обыкновенного глиняного кирпича ГОСТ 530-90, толщ. 250, 380мм.
ПЕРЕГОРОДКИ кирпичные, толщ. 120 мм.
ПЕРЕКРЫТИЕ – сборные железобетонные многопустотные плиты по серии 1.141.-3 в. 63.64.
ЛЕСТНИЦА из крупноразмерных железобетонных элементов; марши по серии 1.251-3 в.1; площадки по серии 1.252-1 в.1. Ограждение лестниц металлическое с пластиковыми поручнями по серии 1.256-1, высота ограждения 900 мм.
КРЫША чердачная скатная по деревянным стропилам.
Гидроизоляционный кровельный материл – асбоцементные волнистые листы.
ОКНА с тройным остеклением по ГОСТ 16289-86.
ДВЕРИ наружные по ГОСТ 24698-81, двери внутренние по ГОСТ 6629-88.
СТУПЕНИ по ГОСТ 27171-84.
4.2 Определение глубины заложения фундамента
При определении глубины заложения фундамента здания учитываются следующие факторы:
1. конструктивные особенности здания под наружные и внутренние несущие стены за проектирован ленточный фундамент;
2. эксплуатационные – здание отапливаемое, инженерно-геологические условия района строительства в Омской области.
Подошва фундамента должна обязательно располагаться ниже ввода в здание необходимых инженерных коммуникаций: водопровода, канализации, и тепловых сетей
4.2.1 Определяем нормативную глубину промерзания грунта по формуле (2) СНиП 2.02.0-85* «Основания зданий и сооружений».
d>fn>=d>0>√M>t>,
где
d>0>=0,23 – безразмерный коэффициент для грунтов суглинков;
M>t> – коэффициент равный сумме абсолютных значений среднемесячных температур в данном районе в течение зимнего периода в районе строительства Омской области.
M>t>=|-19,0|+|-17,6|+|-10,1|+|-8,5|+|-16,0|=71,2
d>fn>=0,23∙√71,2=0,23*8,4=1,93
4.2.2 Определяем расчетную глубину промерзания грунта по формуле (3) СНиП 2.02.0-83*
d>f>=K>h>∙d>fn>
K>h>=0,7 – коэффициент учитывающий влияние теплового режима здания.
d>f>=0,7∙1,93=1,4 м
Принимаем глубину заложения фундамента в проекте 1,4 м.
5. Отделка здания
5.1 Внутренняя отделка здания
Таблица№4. Ведомость отделки помещений.
|
Наименование помещения |
Виды отделки элементов помещения |
Примечание |
|||
|
Пол |
S(м²) |
Cтены |
S(м²) |
||
|
Комнаты; 1-3 4 5-10 11-13 14-15 16-21 Комната администратора |
Ламинат |
12,42 14,26 10,53 12,42 14,26 10,53 14,26 |
Обои под окраску |
27,54 27,94 23,76 27,54 27,94 23,76 27,94 |
|
|
|
Водоэмульсионная окраска |
16,56 |
Отделка плиткой |
28,44 |
|
|
Коридор |
Водоэмульсионная окраска |
38,42 |
Панели пластиковые |
31,78 |
Спецификация бетонных и железобетонных элементов
|
марка |
Обозначение |
Наименование |
Кол. |
Масса, кг |
Прим. |
|
Фундаменты |
|||||
|
ФП-1 |
Серия 1.112.-5 в. 1,2 |
ФЛ 12.24-1 |
37 |
||
|
ФП-2 |
Серия 1.112.-5 в. 1,2 |
ФЛ 12.12-1 |
4 |
||
|
ФП-3 |
Серия 1.112.-5 в. 1,2 |
ФЛ 12.6-1 |
2 |
||
|
ФБ-1 |
ГОСТ 13579-78* |
ФБС 24.6.6-Т |
76 |
||
|
ФБ-2 |
ГОСТ 13579-78* |
ФБС 12.6.6-Т |
6 |
||
|
Плиты перекрытия |
|||||
|
П-1 |
Серия 1.141-1 в. 63 |
ПК 63.15-6 АТУТ |
21 |
||
|
П-2 |
Серия 1.141-1 в. 63 |
ПК 48.15-6 АТУТ |
3 |
||
|
П-3 |
Индивидуальное изготовление |
Плита входа |
2 |
||
|
А-1 |
ГОСТ 5781-85 |
Ø10 А1 l=900 |
|||
|
А-2 |
ГОСТ 5781-85 |
Ø10 А1 l=700 |
|||
|
Лестница |
|||||
|
ЛМ-1 |
Серия 1.251-3 в. 1 |
2 ЛМФ 36-14.17-5 |
2 |
||
|
ЛП-1 |
индивидуальное |
2 |
|||
|
ЛС-1 |
ГОСТ 8717 |
Ступени ЛС-14 |
8 |
||
|
Ограждение лестницы |
|||||
|
ОЛ-1 |
Серия 1.256-1 |
ОЛ-33-1 |
2 |
||
|
ОЛ-2 |
Серия 1.256-1 |
ОЛ-27-1 |
2 |
Спецификация деревянных элементов:
|
марка |
Обозначение |
Наименование |
Кол. |
Масса, кг |
Прим. |
|
Окна |
|||||
|
ОК-1 |
ГОСТ 16289-86 |
ОРС 15-18 В |
20 |
||
|
ОК-2 |
ГОСТ 16289-86 |
ОРС 15-9 В |
4 |
||
|
Двери внутренние |
|||||
|
Д-2 |
ГОСТ 6629-88 |
ДГ 21-9 |
12 |
||
|
Д-3 |
ГОСТ 6629-88 |
ДГ 21-7 |
5 |
||
|
Двери наружные |
|||||
|
Д-1 |
ГОСТ 24698-81 |
ДН 21-12 |
2 |
|
№ помещ. |
Тип пола |
Схема пола или тип по серии |
Данные элементов пола, мм |
Площ. м² |
|
Комната администрации |
1 |
|
Ламинат-5, подложка цементно-песчаная-30, звукоизоляция – жесткие минераловатные плиты-30, слой толя, железобетонная плита-220 |
14,26 |
|
Комнаты |
2 |
|
Ламинат-5, подложка цементно-песчаная-30, звукоизоляция – жесткие минераловатные плиты-30, слой толя, железобетонная плита-220 |
198,73 |
|
Санузел |
3 |
|
Керамическая плитка -5, цементно-песчаная стяжка - 30, утеплитель – минераловатные плиты-30, слой толя, железобетонная плита - 220 |
33,12 |
|
Коридор |
4 |
|
Ламинат-5, подложка цементно-песчаная-30, звукоизоляция – жесткие минераловатные плиты-30, слой толя, железобетонная плита-220 |
38,42 |
6. Технологический расчет ограждающих конструкций
Расчетные условия - климатические характеристики района строительства приняты согласно СНиП 23-01-99* «Строительная климатология».
|
№ |
Наименование параметра |
Обознач., ед. изм. |
Расчетное значение |
|
1 |
Расчетная температура внутреннего воздуха |
t>int>, ºС |
+20 |
|
2 |
Расчетная температура наружного воздуха |
t>ext>,ºС |
-41 |
|
5 |
Продолжительность отопительного периода |
Z>ht>, сут |
221 |
|
6 |
Средняя температура отопительного периода |
Z>hr>, ºС |
-8,4 |
|
7 |
Условия эксплуатации ограждающих конструкций |
I В |
Согласно пункта СНиП 5.3 23-02-2003 «Тепловая защита зданий», приведенное сопротивление теплопередачи ограждающих конструкций, а также окон, следует принимать не менее нормируемых значений, определяемых в зависимости от градуса суток отопительного периода.
R>0> ≥ R>reg> (м²∙С/Вт)
Градуса сутки отопительного периода определяем по формуле 2 СНиП 23-02-2003
D>d> = (t>int>-t>ht>)∙Z>th >
D>d> = (20+8,4)∙221=6276,4 (ºС∙сут)
Согласно таблице 4 СНиП 23-02-2003
1. R>reg> =3,74 (м²∙ºС/Вт) - для стен
2. R>reg> =3,77(м²∙ºС/Вт) - для окон и балконных дверей
3. R>reg> =4,95 (м²∙ºС/Вт) - для чердачных перекрытий
6.1 Теплотехнический расчет стенового ограждения
Сечение наружной стены:

1. Кирпич глиняный ГОСТ 530-95.
2. Сибит-блоки
3. Гибкая связь
4. Цементно-песчаный раствор (штукатурка)
Приведенное сопротивление теплопередачи стенового ограждения:

α>int> = 8,7 (Вт/м²∙ºС) – коэффициент теплоотдачи внутренней поверхности ограждающей конструкции.
α>ext> = 23 (Вт/м²∙ºС) - коэффициент теплоотдачи наружной поверхности ограждающей конструкции.
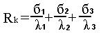
R>k> – термическое сопротивление ограждающей конструкции

б - толщина слоя в м
λ – расчетный коэффициент теплопроводности слоя

R>k> = 2,48 (м²∙ºС/Вт)

R>о> = 2,99 (м²∙ºС/Вт)
R>о> - стенового ограждения больше R>reg>> >для стен, то конструкция стенового ограждения запроектирована верно.
6.2 Теплотехнический расчет чердачного перекрытия
Сечение чердачного перекрытия:

1.Ж/Б плита
2.Пароизоляция слой рубероида
3.Утеплитель плиты URSA
4. Плита ДВП
R>k>=0,22/2,04+0,15/0,037+0,02/0,29=4,84 (м²∙ºС/Вт)
R>0>= 1/8,7+4,84+1/12=5,03 (м²∙ºС/Вт)
R>о = >5,03 (м²∙ºС/Вт) чердачного перекрытия больше чем Rк=4,84(м²∙ºС/Вт)
6.3 Теплотехнический расчет окон
Для окон двухкамерный стеклопакет из стекла с твердым покрытием в ПВХ переплетах принимаемых в курсовом проекте:
Rо = 0,6 (м²∙ºС/Вт) ,что более Rreg = 0,55 (м²∙ºС/Вт)
Следовательно, принятая в проекте конструкция окон соответствует требованиям СНиП 23-02-2003.
Литература
1. СНиП 2.08.02-89* Общественные здания.
2. СНиП 2.09.04-87* Административные и бытовые здания.
3. СНиП 31-01-2003 Здания жилые многоквартирные.
4. СНиП 31-05-2003 Общественные здания административного назначения.
5. СНиП 2.01.07-85 Нагрузки и воздействия.
6. СНиП 2.02.01-83* Основания зданий и сооружений.
7. СНиП 2.03.13-88* Полы.
8. СНиП 23-02-2003 Тепловая защита зданий.
9. СНиП II 26-76 Кровли.
10. СНиП III-10.75 Благоустройство территорий.
11. ГОСТ 21.101-97 С НДС. Основные требования к проектной и рабочей документации.
12. ГОСТ 21.501-93 СПДС. Правила выполнения архитектурно-строительных рабочих чертежей.
13. ГОСТ 24698-81 Двери деревянные наружные для жилых и общественных зданий. Типы, конструкция и размеры.
14. ГОСТ 24699-2002 Блоки оконные деревянные со стеклами и стеклопакетами. Технические условия.
15. ГОСТ 24700-99 Блоки оконные деревянные со стеклопакетами. Технические условия.
16. СНиП 21-01-97 (1999) Пожарная безопасность зданий и сооружений.
17. СНиП 23-01-99* Строительная климатология.
18. СНиП 11-4-79 Естественное и искусственное освещение.
19. СНиП 11-25-80 Деревянные конструкции.
20. ГОСТ Р21.1501-92 Архитектурные решения. Рабочие чертежи.
21. Белоконев Е.Н. Основы архитектуры зданий и сооружений / Белоконев Е.Н., Абуханов А. З. – Ростов на Дону: Феникс. 2005.
22. Брилинг И. С. Справочник по строительному черчению. – М.: Стройидат, 1998.
23. Короев К.И. Строительное черчение и рисование. – М.: Высшая школа, 2002.
24. Маклакова Т.Е. и др. Конструкции гражданских зданий. – М.:Стройиздат, 2004.
25. Маклакова Т.Е., Манасова С.М., П.Тараненко В. Е. Проектирование жилых и общественных зданий ⁄ Маклакова Т.Е., Манасова С.М., П.Тараненко В.Е.: Учебное пособие для вузов. – М.: Высш.шк.. 1998.
26.Методические указания к архитектурно-конструктивному проекту многоэтажного крупнопанельного каркасного здания ⁄ Сост.М.В. Максимова; СибАДИ. - Омск,2003.
27.Сербинович П.П. Архитектура гражданских и промышленных зданий. Т.2.Гражданские здания массового строительства. М.: Высш.шк.2000.
28.Территориальный каталог бетонных и железобетонных конструкций и изделий, изготавливаемых предприятиями стройиндустрии Омской области г. Омска-2004г.
29.Шерешевский И.А. Конструирование гражданских зданий. Учебное пособие для техникумов. - «Архитектура-С»,2005.
Санузел
