Проектирование жилых домов
ВВЕДЕНИЕ
В зависимости от градостроительных, природных, строительно-технических (условий мест строительства, а также от особенностей вида трудовой деятельности и быта населения применяют жилые здания с различной этажностью, планировочной и объемно-пространственной структурой, характером связи с окружающей средой.
Правильный выбор этажности жилых домов и их объемно-планировочной структуры имеет важное значение как в экономическом, так градостроительном и архитектурном отношении, так и для решения социальных значимых проблем. Обеспечения необходимых благоприятных условий жизни и жизнедеятельности населения.
В последнее время все большей популярностью пользуется тип застройки средней и малой этажности.
При выборе этажности многоквартирных жилых домов наряду с градостроительно-архитектурными первостепенное значение имеют экономические факторы (устройство лифтов, мусоропроводов и др., существенно удорожающих возведение и в особенности эксплуатацию жилых зданий). В домах до 5 этажей (в климатических северных районах и южном до 4 этажей) не требуется устройства лифтов, целесообразно используются конструкции фундаментов, стен, покрытий. Застройку 5 (4)-этажными домами широко применяют в малых, средних и частично в больших городах (с населением 50 - 250 тыс. чел.) и в поселках (на 10 и более тыс. чел.), что позволяет достаточно целесообразно использовать территорию, инженерные сети, благоустройство и транспорт населенных мест такой величины.
ТИПОЛОГИЯ ЖИЛЫХ ЗДАНИЙ
Типология жилища активно разрастается. Понятие «социальные нормы» редуцировалось, зато значение потребительской привлекательности жилья в глазах застройщиков, строителей, да и проектировщиков возросло. Пока в России типологическая палитра жилья бедна. Это социальное (муниципальное жилье, ведомственные и институтские общежития) и коммерческое жилье, в котором существует классификация с достаточно расплывчатыми границами: «эконом», «бизнес» и «люкс».
По своему назначению, т.е. по контингенту заселения, для которого они предназначены, и времени проживания жилые здания подразделяют на четыре основные вида:
жилые квартирные дома для посемейного заселения и постоянного проживания;
общежития для временного (длительного) проживания рабочих на период работы и учащейся молодежи на время учебы;
гостиницы для кратковременного проживания периодически сменяющихся контингентов приезжающих из других населенных мест;
интернаты для постоянного проживания инвалидов а престарелых
В массовом жилищном строительстве основной вид жилых зданий (более 90%) - квартирные дома, предназначенные для посемейного заселения.
По этажности жилые дома подразделяют на:
малоэтажные (1 - 2 этажа);
средней этажности (3 - 5 этажей);
многоэтажные (6 и более этажей);
повышенной этажности (11 - 16 этажей);
высотные (более 16 этажей).
По числу квартир:
на одноквартирные (индивидуальные),
двухквартирные, многоквартирные.
Жилые многоквартирные дома по своей объемно-планировочной структуре могут быть подразделены на:
секционные;
коридорные;
галерейные;
коридорно- и галерейно-секционные;
блокированные.
Наиболее массовые - секционные дома, составляющие 80 % всего объема жилищного строительства (в России). В секционных домах группы квартир размещены поэтажно в связи с узлом вертикальных коммуникаций (лестницы, лифты) и имеют входы с лестничных площадок или из лифтовых холлов.
По материалам несущих конструкций (стен, покрытий, колонн) жилые здания подразделяют на:
каменные;
деревянные;
смешанного типа.
ТРЕБОВАНИЯ К ГЕНЕРАЛЬНОМУ ПЛАНУ
Основные положения
Градостроительные характеристики территорий жилищного строительства средней этажности (величина, этажность застройки, размеры приквартирного участка и др.) должны определяться местом размещения территории в планировочной и функциональной структуре городских, сельских и других поселений, типы которых определены ст. 5 Градостроительного кодекса РФ.
При решении генерального плана застройки средней этажности по природным показателям следует различать территории:
Благоприятные для застройки;
Требующие проведения инженерных защитных мероприятий в соответствии с указаниями СНиП 2.07.01, СНиП 2.01.15;
Недопустимые для строительства.
При размещении и планировочной организации территории жилищного строительства средней этажности должны соблюдаться требования по:
Охране окружающей среды;
Защите территории от шума и выхлопных газов транспортных магистралей, электрических и электромагнитных излучений, от выделяемого из земли радона.
Комплексные мероприятия по охране природы и оздоровлению окружающей среды от вредных воздействий, связанных с хозяйственной и иной деятельностью, следует предусматривать в соответствии с нормативными актами, регулирующими природоохранную деятельность.
Инсоляция территорий и помещений малоэтажной застройки должна обеспечивать непрерывную 3-часовую продолжительность в весенне-летний период или суммарную 3,5-часовую продолжительность.
Мусороудаление территорий малоэтажной жилой застройки, как правило, следует проводить путем вывозки бытового мусора от площадок с контейнерами, расстояние от которых до границ участков жилых домов, детских учреждений, озелененных площадок следует устанавливать не менее 50, но не более 100 м.
Для обеспечения пожаротушения отдельных зданий на территориях малоэтажного жилищного строительства следует предусматривать гидранты.
Между длинными сторонами жилых зданий высотой 4 этажа - не менее 20 м, между длинными сторонами и торцами этих же зданий с окнами из жилых комнат - не менее 10 м. Указанные расстояния могут быть сокращены при соблюдении норм инсоляции и освещенности, если обеспечивается непросматриваемость жилых помещений (комнат и кухонь) из окна в окно.
Жилые здания с квартирами в первых этажах следует располагать, как правило, с отступом от красных линий. По красной линии допускается размещать жилые здания с встроенными в первые этажи или пристроенными помещениями общественного назначения, а на жилых улицах в условиях реконструкции сложившейся застройки - и жилые здания с квартирами в первых этажах.
Высоту этажей от пола до пола для жилых домов социального назначения рекомендуется принимать не более 2,8 м, для климатических подрайонов IА, IБ, IГ, IД, IIА - не более 3,0 м.
Улично-дорожная сеть
Улично-дорожную сеть территорий малоэтажного жилищного строительства следует формировать во взаимоувязке с системой улиц и дорог, предусмотренной генеральным планом поселений.
При проектировании и организации улично-дорожной сети территорий малоэтажной жилой застройки необходимо учитывать:
Местоположение территорий в структуре поселения;
Тип территории, согласно приведенной в табл. 1 классификации;
Тип жилого дома (домов);
Размеры и конфигурацию территорий.
Планировочное решение малоэтажной жилой застройки должно обеспечивать проезд автотранспорта ко всем зданиям и сооружениям.
Число полос движения на жилых улицах и проездах должно приниматься:
- для жилых улиц - не менее 2-х полос;
- для проездов - 1 полоса.
Ширину полос следует принимать 3,5 м.
На проездах следует предусматривать разъездные площадки длиной не менее 15 м и шириной не менее 7 м, включая ширину проезжей части.
Расстояние между разъездными площадками, а также между разъездными площадками и перекрестками должно быть не более 200 м.
Максимальная протяженность тупикового проезда, согласно требованиям СНиП 2.07.01, не должна превышать 150 м. Тупиковые проезды обеспечиваются разворотными площадками размером не менее 12х12 м. Использование разворотной площадки для стоянки автомобилей не допускается.
На территории малоэтажной жилой застройки, как правило, следует предусматривать 100-процентную обеспеченность машино-местами для хранения и парковки легковых автомобилей и других транспортных средств.
Тротуары и велосипедные дорожки следует устраивать приподнятыми на 15 см над уровнем проездов.
Гаражи-стоянки, обслуживающие многоквартирные дома различной планировочной структуры, размещаемые на общественных территориях, следует принимать в соответствии с табл. 10* СНиП 2.07.01.
Автостоянки
При устройстве под многоквартирными жилыми зданиями (кроме блокированных) автостоянок следует предусматривать мероприятия в соответствии с требованиями 5.5 СНиП 21-02 по изоляции вышележащих жилых этажей от выхлопных газов, в том числе:
- устройство въездов (выездов) вне зон окон жилых комнат;
- устройство козырьков над въездами;
- отделение жилой части от автостоянки этажом с нежилыми помещениями, в том числе техническим этажом;
- устройство козырька по всему периметру технического этажа шириной не менее 1 м при размещении под жилым зданием открытой автостоянки.
Входная группа помещений
Входную группу помещений многоквартирных жилых зданий (кроме блокированных) рекомендуется проектировать, включая:
- тамбур (одинарный или двойной в зависимости от климатического района строительства);
- вестибюльную зону;
- помещения для дежурного по подъезду.
По заданию на проектирование в составе входной группы предусматриваются помещения колясочных (для хранения детских и уличных кресел-колясок).
Планировка входной группы должна обеспечивать доступность жилища для маломобильных групп населения с учетом установленных в СНиП 35-01 требований (к устройству пандусов при входах, входных площадок, к параметрам тамбуров, подъемников в вестибюльной зоне и т.п.).
Помещения вестибюля в многоквартирных жилых зданиях (кроме блокированных) могут быть:
- встроенными (или встроенно-пристроенными) и пристроенными;
- размещаемыми в отдельном объеме;
- размещаемыми в пространстве частично незастроенного первого этажа.
Расположение вестибюля может быть различным в плане жилого здания. Применяются варианты размещения вестибюля по отношению к узлу вертикальных коммуникаций в смежной с лестнично-лифтовым узлом (ЛЛУ) конструктивно-планировочной ячейке или в противоположной ему.
Помещение для дежурного по подъезду (или помещение охраны) следует располагать таким образом, чтобы из него был обеспечен визуальный обзор двери, ведущей из тамбура в вестибюль жилого здания (при отсутствии вестибюля - обзор проходов к лестничной клетке). Возможно устройство видеонаблюдения для наружного обзора входа в жилое здание и прилегающей территории.
В помещении дежурного по подъезду следует предусматривать телефонную связь с помещениями объединенной диспетчерской службы (ОДС), переговорную связь через домофон, а по заданию на проектирование - также с квартирами.
На первом этаже рекомендуется предусматривать кладовую для хранения уборочного инвентаря, оборудованную раковиной. Располагать кладовую рекомендуется смежно с помещением дежурного по подъезду, допускается ее размещение в цокольном или подвальном этаже с устройством входа снаружи.
В многоквартирных жилых зданиях (кроме блокированных) абонентские шкафы рекомендуется размещать при отсутствии лифтов - в вестибюлях, на основной или промежуточной лестничной площадке первого этажа и в проходах к лестницам.
При размещении почтовых абонентских шкафов следует руководствоваться их габаритами, при этом должны быть обеспечены нормативные параметры проходов.
Абонентские шкафы навешивают непосредственно на стены или устанавливают в нишах на высоте не менее 0,6 м от пола. Как правило, шкафы не следует навешивать на стены, примыкающие к жилым помещениям квартир. Места установки абонентских шкафов должны быть освещены.
Индивидуальные абонентские шкафы в блокированных жилых домах рекомендуется устанавливать рядом со входами в квартиры или на приквартирные участки, а объединенные абонентские шкафы - на границе участков.
В первом, цокольном или подвальном этажах многоквартирных жилых зданий могут устраиваться внеквартирные хозяйственные кладовые для жильцов дома, число их определяется в задании на проектирование. Ширина коридоров перед ними должна быть не менее 1,1 м.
В помещениях внеквартирных хозяйственных кладовых рекомендуется предусматривать систему спринклерного пожаротушения или другие системы противопожарной защиты по согласованию с местными отделами государственного пожарного надзора.
В блокированных жилых домах, расположенных по красной линии улицы, уровень пола квартир рекомендуется делать выше тротуара (или осевой линии проезда при отсутствии тротуара) на высоте не менее 0,5 м. Определение конкретного уровня пола зависит от величины снежного покрова района строительства.
ТИПОЛОГИЯ КВАРТИР
Квартира – главный элемент жилища, в ней человек проводит 40 – 100 % своего времени, основной строительный элемент (жилая ячейка) жилого дома, предназначенного для заселения семьи.
Квартира состоит из жилых, подсобных и открытых помещений.
В квартире следует предусматривать жилые коммуникации и подсобные помещения: кухни, передние, ванные или душевые, уборные, кладовые. Допускается устройство помещений для хозяйственных работ, холодной кладовой, вентиляционного сушильного шкафа для верхней одежды и обуви. В составе квартир социального назначения допускается, а для других видов жилищ рекомендуется, устройство открытых (летних) помещений: балконов, лоджий, террас, веранд и т.п.
Жилые комнаты – помещения, предназначенные для проживания людей, основная часть квартиры. Выделяются жилые комнаты для общесемейной деятельности (общая комната) и личные (персональные) жилые комнаты для 1-2 человек (спальни). В многокомнатной квартире при высокой норме жилищной обеспеченности дополнительно могут быть предусмотрены столовая, гостиная, кабинет для работы и занятий, рабочая комната, игровая, комната для отдыха и др.
Квартира должна удовлетворять потребностям отдельного человека и семьи в целом, отсюда двойственность требований – изоляции и объединения – исходная позиция для проектирования любой квартиры. Квартира должна служить местом самореализации личности и одновременно быть местом гармоничного развития семейных контактов.
Примеры планировочного решения квартир
Планировка квартир отличается в первую очередь количеством комнат и размерами общей площади, состоящей из жилой и подсобной. Тип квартиры определяется численным составом семьи и расчетной нормой общей площади на одного члена семьи. В городской застройке наибольшее распространение получили 1-, 2-, 3-й 4-комнатные квартиры.
Однокомнатные квартиры предназначены для семей из одного или двух человек. Их размещение предусматривается в секционных и коридорных домах гостиничного типа.


Рис. 1 - Примеры планировочных решений однокомнатных квартир
Однокомнатная квартира включает комнату, кухню, прихожую, санитарно-технический узел. Комната служит местом для различных занятий, отдыха, сна. Кухню и совмещенный санузел располагают со входом из передней (прихожей) (рис. 1).
Двухкомнатные квартиры предназначены для заселения семей из двух-трех человек. Они могут иметь планировку с изолированными или смежными комнатами. Санитарный узел, как правило, раздельный. Большую комнату используют как гостиную, меньшую - как спальню (рис. 2).


Рис. 2 - Примеры планировочных решений двухкомнатных квартир
Трехкомнатные квартиры предназначены для заселения семей из трех-четырех человек. Комнаты могут быть изолированные или одна из них смежная. Санитарный узел - раздельный. Одну из комнат используют как гостиную, другую (изолированную) как спальню, третью как детскую (рис. 3).
Для больших семей из четырех-шести человек предусматривают четырехкомнатные и пятикомнатные квартиры (рис. 4). Возможно расположение комнат в подобных квартирах в двух уровнях на двух верхних этажах секционных домов. Общая комната располагается смежно с передней и в удобной связи с кухней. Такую связь осуществляют через раздвижную перегородку или специальное передаточное окно в шкафу-буфете, являющемся перегородкой между комнатой и кухней. Многокомнатные квартиры ориентируются на две противоположные стороны здания (квартиры со сквозным проветриванием).


Рис. 3 - Примеры планировочных решений трехкомнатных квартир

Рис 4 - Примеры планировочных решений четырехкомнатных и пятикомнатных квартир
В последнее время стали проектировать квартиры с гибкой планировкой, которая позволяет удовлетворить требования различных семей.
При гибкой планировке помещения квартиры разделяются сборно-разборными перегородками. Стационарное положение в таких квартирах занимают кухни и санитарные узлы.
При проектировании квартир в
двух уровнях их площадь увеличивается
на 6 м
для размещения внутриквартирных лестниц.
Жилые комнаты
Жилые комнаты являются основной частью квартиры. Они имеют различное назначение и подразделяются на общую (гостиную) и спальные комнаты. Наиболее удобны жилые комнаты с соотношением ширины и глубины от 1:1 до 1:1,5. Глубину (длину от окна) жилых комнат следует принимать не менее 3 м и не более 6 м, ширину - не менее 2,4 м.
Передняя (прихожая) обеспечивает комфорт входного узла и связь с помещениями квартиры. Ширина передней должна быть не менее 1,4 м, минимальная площадь - 3 м2. Внутриквартирные коридоры, соединяющие переднюю с жилыми помещениями квартиры, принимают шириной не менее 1,1 м, с подсобными - 0,85 м, высота при наличии антресолей - 2 м. Связь прихожей с жилыми комнатами возможна посредством холла.
Общая комната
Общая комната является наибольшей по площади и служит местом отдыха и различных занятий членов семьи, приема гостей, столовой. Размеры общей комнаты назначаются не менее 16 м2, ширина не менее 3 м. Общая комната чаще всего изолирована, в двухкомнатных и многокомнатных квартирах может быть проходной.
Общую комнату, как правило, желательно расположить рядом с передней или кухней. Общая комната может пространственно объединяться дверями с широким проемом или раздвижными перегородками с холлом, столовой или кухней.
Проектирование общей комнаты (гостиной) рекомендуется осуществлять с учетом размещения следующих функциональных зон, предназначенных для дневного пребывания семьи и приема гостей:
- общения и отдыха (в том числе с наличием места для аудио- и видеоинформации);
- хозяйственных работ и размещения вещей бытового назначения общего пользования;
- эпизодического приема пищи;
- индивидуальных, профессиональных или любительских занятий членов семьи.
В жилых зданиях государственного и муниципального жилищных фондов общие комнаты (гостиные) в квартирах с числом жилых комнат 4 и менее следует проектировать непроходными.
Площадь общей комнаты (гостиной)
определяется с учетом возможности
размещения вышеперечисленных зон, а
также расстановки минимального набора
мебели и устройства проходов. В
однокомнатной квартире площадь общей
комнаты должна быть не менее 14 м
;
в квартирах с числом жилых комнат две
и более - не менее 16 м
.
При расстановке мебели в функциональных зонах помещений квартиры рекомендуется предусматривать:
- ширину прохода вдоль кровати и другого спального места не менее 0,5 м с устройством проходов вдоль каждой из кроватей, поставленных смежно изголовьем к стене;
- расстояние от наружной стены со световыми проемами до торца спального места не менее 0,5 м, до его продольной стороны - не менее 0,7 м (примыкание спального места к окну не рекомендуется);
- расстояние от окна до предметов мебели, как правило, не менее 0,1 м, от дверного проема - 0,1 м, а при наличии около него выключателя (или розетки) - 0,25 м;
- ширину прохода между стационарной мебелью соседних зон - не менее 0,5 м;
- размещение рабочего стола не далее 1 м от окна с направлением дневного света прямо или слева;
- размещение в зоне общесемейного отдыха телевизора на расстоянии от мест сидения, как правило, 2,5-3 м с предельным углом наблюдения не более 30°;
- расстояние между сиденьями дивана, кресел и между журнальным столом не менее 0,3 м, сзади и по бокам кресел - не менее 0,2 м;
- размеры стола в обеденной зоне из расчета не менее 0,6 м по фронту на одно посадочное место, расстояние между краем стола и стеной или другим оборудованием - не менее 0,6 м при одном стуле в ряду, 0,7 м - при двух стульях, 0,8 м - при трех и более стульях;
- ширину прохода перед фронтом кухонного оборудования - не менее 1 м;
- ширину прохода вдоль шкафов, тумб и другой мебели с распашными дверцами и выдвижными ящиками - не менее 0,7 м, перед шкафами с раздвижными дверцами - не менее 0,5 м.
Спальня
Спальня предназначена для сна, занятий, хранения одежды, книг, для игр детей. Площадь спален назначается 10-12 м2 для двух человек и 8 м2 - для одного. Желательно, чтобы комнаты для спален были непроходными. При этом допускается вход из этих помещений:
- в кладовую (или гардеробную);
- в кухню и уборную в квартирах для инвалидов (с учетом требований СНиП 35-01);
- в ванную комнату, совмещенный санузел или душевую при наличии в квартире уборной (или совмещенного санузла) со входом в это помещение из коридора, холла или передней.
Проектирование спален рекомендуется с учетом размещения следующих функциональных зон:
- сна, хранения одежды и белья, вещей бытового назначения;
- индивидуальных, профессиональных и любительских занятий членов семьи.
В квартирах, расположенных в двух уровнях, спальни рекомендуется размещать в основном на втором этаже. В квартирах с четырьмя и более жилыми комнатами рекомендуется располагать на первом этаже одну или две спальни для маломобильных членов семьи.
Для каждого члена семьи предусматривается спальное место с габаритами не менее 2х0,8 м. В спальнях, кроме супружеской, может быть размещено не более двух спальных мест. В спальне супругов допускается предусматривать спальное место для ребенка в возрасте до трех лет.
Площади спален квартир жилых
зданий государственного и муниципального
жилищных фондов определяются с учетом
возможности размещения вышеперечисленных
зон, а также расстановки минимального
набора мебели и устройства проходов.
Они должны быть не менее 8 м
и 10 м
(соответственно, для одного или для двух
человек), а при размещении в мансардном
этаже - не менее 7 м
(при общей комнате площадью не менее 16
м
).
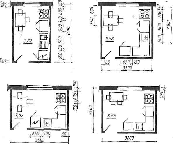
Кухня

Рис. 5 - Габаритные схемы кухни с размещением оборудования
Кухня предназначена для приготовления и приема пищи (рис. 5). Применяют три основных типа кухни: кухня-ниша, рабочая кухня, кухня-столовая. Кухня-ниша организуется в виде ниши жилой комнаты или передней с площадью 0,7-1 м2 в домах гостиничного типа, в однокомнатных малогабаритных квартирах на одного человека, ведущего домашнее хозяйство в минимальном объеме. Этот тип кухни оборудуют электроплитой и вытяжной вентиляцией.
Рабочую кухню устраивают в однокомнатных и в малогабаритных двухкомнатных квартирах. Площадь рабочей кухни принимают в пределах 5 - 8 м2.
Кухню-столовую применяют в современных квартирах, в которой кроме рабочего оборудования размещают обеденный стол и стулья. Площадь такой кухни принимают в зависимости от размеров квартиры в пределах 8-11 м2. В квартире следует предусматривать обеденную зону исходя из численного состава семьи.
Площадь кухни с учетом возможности
размещения вышеперечисленных зон, а
также расстановки минимального набора
мебели и устройства проходов должна
быть: в однокомнатных квартирах - не
менее 5 м
(в том числе кухни-ниши); в квартирах с
числом жилых комнат две и более - не
менее 8 м
(в мансардном этаже - 7 м
),
площадь обеденной (кухонной) зоны в
кухне-столовой - не менее 6 м
.
Санитарный узел

Рис. 6 - Габаритные схемы и размещение оборудования санитарных узлов
Санитарный узел включает помещения, где располагаются ванна или душевой поддон, умывальник и унитаз (рис. 6). В однокомнатных и малогабаритных двухкомнатных квартирах устраивают совмещенные санузлы, где все санитарные приборы размещаются в одном помещении. В квартирах для больших семей санузел раздельный.
Вход в помещение, оборудованное унитазом, непосредственно из кухни и жилых помещений (кроме жилых помещений, предназначенных для семей с инвалидами) не допускается.
Не допускается размещение уборной и ванной (или душевой) непосредственно над жилыми комнатами и кухнями. Размещение уборной и ванной (или душевой) над кухней допускается в квартирах, расположенных в двух уровнях. Не допускается крепление приборов и трубопроводов непосредственно к межквартирным стенам и перегородкам, ограждающим жилые комнаты.
По заданию на проектирование в составе дополнительного оборудования санитарно-гигиенических помещений допускается предусматривать установку биде, сушильных машин, гидромассажных ванн, душевых кабин и другого оборудования, а также предусматривать душевую, оборудованную душевым поддоном или душевой кабиной.
Кроме того обязательного согласно СНиП 31-01 оснащения санитарно-гигиенических помещений квартир, в ванной комнате или в совмещенном санитарном узле рекомендуется предусматривать место для размещения стиральной машины.
Допускается открывание дверей внутрь ванной комнаты и совмещенного санузла, если глубина помещения или расстояние от дверного проема до санитарно-технического оборудования, расположенного напротив, составляет не менее 1,2 м (в чистоте).
Основные требования к квартирам
В реконструируемых или модернизируемых под жилище I и II категорий жилых домах типы квартир (кроме квартир для семей с инвалидами и для престарелых) по числу комнат и их площади (без учета площадей балконов, лоджий, террас, веранд, холодных кладовых, приквартирных тамбуров) следует принимать согласно табл.3 МГСН 3.01-96, а типы квартир для семей с инвалидами и для престарелых (в составе специализированных жилых домов или групп квартир) - согласно табл.4 МГСН 3.01-96.
Примечания
1. В квартирах реконструируемых или модернизируемых под жилище I категории жилых домов: верхние пределы площадей квартир не ограничиваются; нижние пределы площадей квартир допускается уменьшать не более чем на 5%; при числе жилых комнат более 6 нижние пределы площадей квартир следует определять по заданию на проектирование с учетом СНиПа.
2. В квартирах реконструируемых или модернизируемых под жилище II категории жилых домов: верхние пределы площадей квартир следует принимать с увеличением не более чем на 5% от нижнего предела площадей квартир соответствующего типа; при превышении указанной величины по отдельным типам квартир с целью унификации конструктивно-планировочных решений увеличение суммарных показателей площадей квартир по дому не должно быть более 5%; нижние пределы площадей квартир допускается уменьшать не более чем на 7%.
При перепланировке квартир следует, как правило, предусматривать увеличение размеров кухни, передней, санитарно-гигиенических помещений с учетом СНиПа.
В квартирах реконструируемых и модернизируемых под жилище II категории жилых домов следует исключать проход через гостиную (общую комнату) в кухню - в квартирах всех типов (кроме квартир для семей с инвалидами-колясочниками), а также в спальни двух- и трехкомнатных квартир.
Площади помещений квартир в реконструируемых или модернизируемых жилых домах допускается принимать не менее, кв.м: гостиной (общей комнаты) - для квартир типа 2М - 14, для квартир типа 1М - 15, для других типов квартир - 16; спальни для двух человек - 12; спальни для одного человека - 9; кухни - 8 (кроме кухонь площадью 7 кв.м в квартирах типов 1М и 2М).
В квартирах реконструируемых или модернизируемых жилых домов допускается проектировать кухню-нишу (кухню) с учетом пп.3.4 и 4.7 СНиПа площадью не менее 5 кв.м.
Ширина жилых комнат в квартирах допускается не менее, м: гостиной (общей комнаты) - 2,8; одной из спален - 2,25.
На проектирование квартир в реконструируемых или модернизируемых жилых домах распространяются требования. Допускается крепление приборов и трубопроводов санитарно-гигиенических помещений к ограждающим жилые комнаты межквартирным стенам и к их продолжениям вне пределов комнат, если указанные стены выполнены из кирпича и имеют толщину не менее 0,38 м при соблюдении нормативных требований по звукоизоляции и виброизоляции.
При перепланировке ванных комнат и совмещенных санузлов следует предусматривать установку ванных длиной не менее 1,5 м (кроме устройства душевой согласно п.4.12 в квартирах жилища I категории). Кроме того, в каждой квартире в ванной комнате (или в совмещенном санузле) следует предусмотреть одно место для установки стиральной машины.
Дополнительные требования к квартирам для инвалидов и престарелых.
В реконструируемых или модернизируемых жилых домах специализированные квартиры для семей с инвалидами и престарелых следует проектировать согласно пп.4.13-4.20 МГСН 3.01-96.
При этом в реконструируемых или модернизируемых жилых домах квартиры для инвалидов-колясочников следует проектировать на первом этаже со входом с придомового участка. Указанные квартиры допускается также проектировать выше первого этажа в реконструируемых жилых домах с учетом требований п.4.14 МГСН 3.01-96 при устройстве в домах пандусов при входах, лифтов с уровня первого этажа, а также подъемников при наличии перепадов уровней в вестибюлях.
В квартирах для инвалидов-колясочников при использовании гидроподъемника (для перемещения инвалида в ванну) размеры в плане ванной комнаты или совмещенного санузла должны быть не менее 2,3 х 2,3 м.
Хозяйственные помещения в реконструируемых или модернизируемых жилых домах следует проектировать с учетом п.4.31 МГСН 3.01-96.
Пути эвакуации
Отметка пола помещений при входе в здание должна быть выше отметки тротуара перед входом не менее чем на 0,15 м.
Число подъемов в одном лестничном марше или на перепаде уровней должно быть не менее 3 и не более 18.
Лестничные марши и площадки должны иметь ограждения с поручнями, в домах для престарелых и семей с инвалидами - дополнительно пристенные поручни.
В лестничных клетках допускается устанавливать приборы отопления, мусоропроводы, этажные совмещенные электрощиты и почтовые ящики, не уменьшая нормативной ширины прохода по лестничным площадкам и маршам.
В незадымляемых лестничных клетках допускается установка только приборов отопления.
Лестничные клетки и лифтовые холлы должны быть отделены от помещений любого назначения и поэтажных коридоров дверями, оборудованными закрывателями, с уплотнением в притворах.
Графический материал




Список используемой литературы
СНиП 2.08.01-89 Жилые здания.
СП 30-102-99 Планировка и застройка территории.
СНИП 2.07.01-89*. Градостроительство.
Архитектурное проектирование жилых зданий. Под ред. М.В. Лисициана, Е.С. Пронина. – М. 2006.
Ресурсы Интернета.