Проектирование и расчет фундаментов мелкого и глубокого заложения одноэтажного производственного здания
КОСТРОМСКАЯ
ГОСУДАРСТВЕННАЯ
СЕЛЬСКОХОЗЯЙСТВЕННАЯ АКАДЕМИЯ
Кафедра «Строительные конструкции»
Курсовой проект
на тему «Проектирование и расчет
фундаментов мелкого и глубокого заложения одноэтажного
производственного здания»
Выполнил :
студент 4 курса 1 группы
архитектурно-строительного факультета
Виноградов В. С.
Приняла: Примакина Е. И.
Кострома 2003 г.
Оглавление.
1. Краткая характеристика здания
2. Основные сведения о строительной площадке
3. Оценка свойств отдельных пластов грунта
4. Оценка геологического строения площадки
5. Расчет фундаментов мелкого заложения:
расчет первого сечения
расчет второго сечения
6. Расчет фундаментов глубокого заложения:
расчет первого сечения
расчет второго сечения
7. Выбор сваебойного оборудования
8. Устройство котлована
9. Устройство водопонижения
10. Список используемой литературы
1.Краткая характеристика проектируемого здания.
Назначение и основные особенности проектируемого здания.
Данное здание является промышленным. Оно имеет размеры в плане в осях 96x120 м. Количество этажей в данном здании 1. Полная высота здания от спланированной отметки до карниза 13 м. Условная отметка чистого пола первого этажа 0.000 м выше спланированной отметки земли на 0.15 м.
Конструктивное решение здания.
Данное здание с полным каркасом, несущие стены – навесные панели. Толщина наружных стен 300 мм. Несущими конструкциями являются колонны. Фундамент в данном здании является нагруженным с эксцентриситетом.
2.Основные сведения о строительной площадке.
Местные условия строительной площадки.
Абсолютные отметки поверхности строительной площадки: 142.99 м, 143.95 м, 144.91 м. Рельеф площадки ровный, спокойный и имеет уклон 1.8 %.
Геологическое строение площадки.
Геологическое строение площадки характеризуется геологическими выработками – скважинами №1, №2, №3 из которых с глубины 1.5 м, 3.5 м, 8 м, 13.5 м, отобраны образцы грунта для лабораторных испытаний.
3.Оценка свойств отдельных пластов грунта
1слой - насыпь.
2слой - пылевато-глинистый грунт.
Определяем число пластичности по формуле
I>p>=W>L>-W>p>=23.5-17.0=6.5 по таблице 1.8 [1]- грунт супесь
т.к. 1 < I>p > 7
W>L> – влажность на границе текучести;
W>p> – влажность на границе пластичности.
Определяем показатель текучести:
I>L>=(W-W>p>)/I>p>=(15.4-17)/6.5= -0.246
В соответствии с табл. 1.9 [1] тип грунта супесь, разновидность которого по показателю текучести - твердая т.к. I>L><0.
По степени влажности S>r> определяем водонасыщенность грунта.
>
>
>
>
>
>т/м3
e=(2.68-1.716)/1.716=0.56 - коэффициент пористости грунта.
S>r>=0.154*2.68/(0.56*1)=0.737 - грунт влажный, т.к. 0.5< S>r>> >0.8 по табл. 1.6 [1].
W - природная влажность грунта;
- природная плотность грунта т/м3;
>s>> > - плотность частиц т/м3;> >
>d> - плотность сухого грунта т/м3;
>w>=1 т/м3 - плотность воды.
Для предварительной оценки набухаемости грунта находим показатель просадочности. Этим свойством обладают только пылевато-глинистые грунты. Грунт считается просадочным, если S>r><0.8 и показатель просадочности находится в диапозоне:
>
>
>
>

>
>
>
>

>
>
>
>

>
>

П=(0.616-0.56)/(1+0.56)=0.036
e>L>- коэффициент, соответствующий влажности на границе текучести.
e - коэффициент пористости природного грунта.
Грунт считается набухающим, если П>0.3(п.10.2.1[1]).
Вывод: грунт- супесь твердая, влажная, непросадочная, ненабухающая, малопучинистая.
3 слой -пылевато-глинистый грунт.
Определяем число пластичности по формуле
I>p>=W>L>-W>p>=34.3-18.0=16.3 по таблице 1.8 [1] – грунт суглинок т.к. 7 < I>p> 17
Определяем показатель текучести:
I>L>=(W-W>p>)/I>p>=(30-18)/16.3= 0.736
В соответствий с табл. 1.9 [1] тип грунта суглинок, разновидность
которого по показателю текучести - мягкопластичный т.к. 0.5 < I>L> 0.75
Oпределяем
коэфициент пористости грунта.
>
>
т/м3
e=(2.54-1.4769)/1.4769=0.7198
Определяем степень влажности грунта. По степени влажности определяем водонасыщенность грунта.

S>r>=0.3*2.54/(0.7198*1)=1.058 - грунт насыщенный водой т.к. S>r>> >>0.8 по табл. 1.6 [1].
Находим показатель просадочности.
>
>

П=(0.66-0.7198)/(1+0.7198)= -0.035
В соответствие с п.10.2.1[1] – грунт не просадочен.
Вывод: грунт- суглинок мягкопластичный, насыщенный водой, не просадочный, не набухаемый, сильнопучинистый.
4 слой - пылевато-глинистый грунт.
Определяем число пластичности по формуле
I>p>=W>L>-W>p>=40.8-19.8=21 по таблице 1.8 [1] – грунт глина т.к. I>p> >17
Определяем показатель текучести:
I>L>=(W-W>p>)/I>p>=(26.3-19.8)/21= 0.3095
В соответствий с табл. 1.9 [1] тип грунта глина, разновидность, которой по показателю текучести – тугопластичная т.к. 0.25 < I>L> 0.5
Oпределяем
коэффициент пористости грунта.
>
>
т/м3
e=(2.47-1.59)/1.59=0.55
Определяем степень влажности грунта. По степени влажности определяем водонасыщенность грунта.

S>r>=0.263*2.47/(0.55*1)=1.181 - грунт насыщенный водой т.к. S>r>> >>0.8 по табл. 1.6 [1].
Находим показатель просадочности.
>
>

П=(0.82-0.55)/(1+0.55)=0.17
В соответствие с п.10.2.1[1] – грунт не просадочен.
Вывод: грунт- глина тугопластичная, насышенная водой, не просадочная, не набухаемая, среднепучинистая.
5 слой - песок
Для определения типа грунта по крупности частиц необходимо суммировать данные процентного содержания частиц по табл.1.5 [1]
Частиц >2 мм - 12.3% в то время как для гравелистого песка частиц должно быть более 25%.
Частиц 2 - 0.5 мм - 12.3+31.9=44.2% - в то время как для крупного песка частиц должно быть более 50%.
Частиц 0.5 - 0.25 мм - 12.3+31.9+22.8=67% >50% - находят песок средней крупности.
Определяем коэффициент пористости грунта.
>
>
т/м3
e=(2.74-1.645)/1.645=0.67 – по e - средней плотности т.к. 0.55<0.67<0.7 по табл. 1.7 [1].
Определяем степень влажности:

S>r>=0.24*2.74/(0.67*1)=0.988 – грунт насыщенный водой т.к. S>r>> >>0.8 по табл. 1.16 [1].
Вывод: грунт- песок средней крупности, средней плотности, насышенный водой, практически непучинистый.
Сводная таблица физических свойств грунтов.
|
Физические хар-ки |
Наименование инженерно-геолог. элементов |
супесь твердая, влажная, непросадочная, ненабухающая, малопучинистая. |
суглинок мягкопластичный, насыщенный водой, не просадочный, не набухаемый, сильнопучинистый. |
глина тугопластичная, насышенная водой, не просадочная, не набухаемая, среднепучинистая. |
Песок средней крупности, средней плотности, насышенный водой, практически непучинистый. |
|
1. , т/м3 |
1.98 |
1.92 |
2.01 |
2.04 |
|
|
2. > >>d> , т/м3 |
1.716 |
1.4769 |
1.59 |
1.645 |
|
|
3. > s> , т/м3 |
2.68 |
2.54 |
2.47 |
2.74 |
|
|
4. , кН/м3 |
19.8 |
19.2 |
20.1 |
20.4 |
|
|
5. >d> , кН/м3 |
17.16 |
14.769 |
15.9 |
16.45 |
|
|
6. >s> , кН/м3 |
26.8 |
25.4 |
24.7 |
27.4 |
|
|
7.W, % |
15.4 |
30 |
26.3 |
24 |
|
|
8.W>p> , % |
17.0 |
18 |
19.8 |
- |
|
|
9. W>L> , % |
23.5 |
34.3 |
40.8 |
- |
|
|
10.e |
0.56 |
0.7198 |
0.55 |
0.67 |
|
|
11.S>r> |
0.737 |
1.058 |
1.181 |
0.988 |
|
|
12.I>p> |
6.5 |
16.3 |
21 |
- |
|
|
13.I>L> |
-0.246 |
0.736 |
0.3095 |
- |
Сводная таблица механических характеристик грунтов.
|
Мехаческие хар-ки |
Наименование инженерно-геолог. Элементов |
супесь твердая, влажная, непросадочная, ненабухающая, малопучинистая. |
суглинок мягкопластичный, насыщенный водой, не просадочный, не набухаемый, сильнопучинистый. |
глина тугопластичная, насышенная водой, не просадочная, не набухаемая, среднепучинистая. |
песок средней крупности, средней плотности, насышенный водой, практически непучинистый. |
|
- деформационные- |
|||||
|
14.E , Мпа |
28.86 |
14.54 |
17.756 |
24.892 |
|
|
15.m>o> по комп. Исп. Мпа-1 |
0.03 |
0.073 |
- |
- |
|
|
- прочностные- |
|||||
|
16.с>II> (уд.сцеп.) кПа |
12 |
18 |
55 |
- |
|
|
17.>II> (уг.вн.трен.) град |
23 |
16 |
18 |
30 |
|
|
18.R>o> (ус.рас.соп.) кПа |
288.69 |
200.859 |
488.1 |
400 |
4. Оценка геологического строения площадки.
Грунт строительной площадки имеет слоистое напластование, с залеганием слоев, близких к горизонтальным и выдержанным по мощности. В толще грунтов залегают подземные воды.
Геологические изыскания производились в июле.
Абсолютные отметки подземных вод:
Скв.N 1 – 140.30 м
Скв.N 2 – 141.90 м
Скв.N 3 – 143.00 м
Уровень грунтовых вод 2.69, 2.05, 1.91 м, т.е. в неблагоприятный период фундаменты здания могут оказатся в подтоплении, в таком случае необходимо будет предусмотреть усиленную гидроизоляцию и подсыпку из непучинистых материалов.
5.Расчет фундамента мелкого заложения.
Расчет первого сечения под колонну среднего ряда.
Определяем глубину заложения фундаментов.
По конструктивным: особенностям здания и сечению колонны 1400х500 подбираем тип подколонника Д с сечением 2100х1200, с размерами стакана 1500х600 по низу, 1650х650 по верху и глубиной 1250.
П
=2.04 т/м3
>II>=30o
о климатическим: нормативная глубина промерзания для данного района строительства 1.8 м – определена по карте рис. 5.15 [1].Определим расчетную глубину промерзания
d>f>=d>fn>k>n>; k>n> =0.56 (т. 5.9 [1]) d>f>=1.80.56=1.008 м. d 1.008 м.
По геологическим: в качестве естественного основания принимаем 2 слой супесь твердая, влажная, непросадочная, ненабухающая, малопучинистая. d 0.78 м.
По гидрогеологическим: d 2.69 м.
Окончательная глубина заложения фундамента 2.4 м от спланированной отметки земли. Рабочим слоем является грунт – супесь твердая, подстилающими грунтами – суглинок, глина и песок.
Предварительно определяем размеры фундамента условно считая его центрально нагруженным квадратной формы.
>
>кН
>
>кПа
>
>кН/м3
>
>м

=1.58 т/м3
=1.98 т/м3
c>II>=12 кПа
>II>=23o
=1.92 т/м3
c>II>=18 кПа
>II>=16o
=2.01 т/м3
c>II>=55 кПа
>II>=18o
=2.04 т/м3
>II>=30o
Учтем прямоугольность фундамента
м
> >
>
>
м
принимаем ФД11-3
>
>м
>
>м
>
>м3
Учитываем что фундамент внецентренно нагружен и определяем эксцентриситет.
>
>кНм
>
>кН
>
>кН/м3
>Приводим нагрузку к подошве фундамента>
>Вес
фундамента >
>
>
кН
>Объем
грунта >
>
>
м3
>Момент
у подошвы фундамента >
>
>
кНм
найдем средний удельный вес грунта выше подошвы фундамента

>
>
кН/м3
-вес грунта
>
>
кН
>
>
м
>определим относительный эксцентриситет и сравним его с допустимым>
>
>

>
>
>
>
>
>
>2 – я комбинация>
>
>кНм>
>
>
>кН

>
>
кН
>
>
м
>
>


Определяем
вид эпюры контактных давлений. Эпюра
имеет трапециевидную форму т.к.
>
>
> >
>моменты сопротивлений>
>
>
>
>
кПа
>
>
кПа
q – нагрузка от оборудования, людей, складируемых материалов и изделий. Согласно п.3.2 [4] принимается не менее 2 кПа.
Проверка под углом подошвы фундамента

>
>
т/м3
– удельный
вес грунтов залегающих выше подошвы
фундамента.

т/м3
– удельный вес грунтов залегающих ниже
подошвы фундамента на глубину 0.5b.
>
>кПа>
>
>
>
>
>
>
>
>
>
>
>
>
>
>
>м>
>

>с1>, >с2> – коэф. условий работы таб.5.11[1].
к – коэф. зависящий от того как были определены с и .
М, Мс и Мq коэф. принимаемые по таб.5.12[1].
k>z> – коэф. зависящий от b.
d>1> – глубина заложения фундаментов.
кПа
кПа>
>
>
>

Следовательно проверка прочности основания выполняется т.е. размеры фундамента подобраны верно.
Расчет по несущей способности основания.
,
где F=2734.231 кН – расчетная нагрузка на основание; F>u> – сила предельного сопротивления основания; >с> – коэф. условий работы принимаемый для глинистых грунтов – 0.9; >n> – коэф. надежности по назначению сооружений принимаемый для сооружения II класса равным 1.15.
F>u>=b`l`(N>>>>l`>I>+N>q>>q>>I>`d+N>c>>c>c>I>),
где b`=b-2e>b>=3-20.086=2.828 м – приведенные ширина и длина фундамента
l`=l-2e>l>=3.6-20.2=3.2 м
e>b>, e>l> – эксцентриситеты приложения нагрузок.
N>>, N>q>, N>c> – безразмерные коэф. определяемые по таб.5.28[1]
N>>=5.87; N>q>=10.66; N>c>=20.72
>>=1-0.25/=1-0.25/(l`/b`)=1-0.25/(3.2/2.828)=0.779 – коэф. формы подошвы фундамента
>q>=1+1.5/=1+1.5/1.13=2.33
>c>=1+0.3/=1+0.3/1.13=1.27
F>u>=2.8283.2(5.870.7793.211.052+10.662.3318.52.4+20.721.2712)=14301.012 кН
14301.0120.9/1.15=11192.096 кН>2734.231 кН, т.е. несущая способность основания при принятых размерах фундамента обеспечена.
Расчет осадки основания методом эквивалентного слоя.
>Построим э>>>>zp>> и э>>>>zg>

>
>
кПа
>zp>
>zg>
>>>zgi>> >>= >>>>i>>>>h>>i>> >>– где >>>>i>> >>- удельный вес грунта(при наличии подземных вод определяется с учетом взвешивающего действия воды), >>h>>i>>-мощность слоя.>
с учетом взвешивающего
действия воды.
>
>
кПа
>
>
кПа
>
>
кПа
>
>
кПа
>
>
кПа
>
>
кПа

>
>
кПа>
>

>
>Aw=f(l/b;)
- таб.5.6[5]
>
>
>
>м
>
>
>
>
м
>Определим модуль деформации>
2
слой-супесь
>
>

>
>кПа>
>
кПа
>
>кПа>
>
кПа
>
>
кПа
>
>
>
>кПа>
>


>
>

>
>
>
>
кПа
3 слой-суглинок
>
>
>
>
>
>кПа>
>
>
>кПа>
>
>
>кПа>
>
>
>кПа
>
>
кПа
>
>
кПа


>
>

>
>
>
>
кПа
4
слой-глина
>
>
>
>м

кПа>
>
кПа
>
>кПа>
>
>
>кПа
>
>
кПа


>
>
кПа
>
>м
м
>
>> >
кПа
d – диаметр штампа d=0.277 м, =0.79 – коэффициент, , – т. 1.15 [1]
м
м> >
м
м>
>
м> >
м
>
>
>
>
>
>
>h>> – мощность сжимаемого слоя, >>z>>- расстояние от середины сжим. слоя до конца распространения осадки.>
>
>
>
>


>
>
м
Что гораздо меньше предельной 8 см таб.5.26[1].
Проверяем прочность подстилающего слоя.
>
>
кПа>
>
кПа> >
кПа
>
>
>
>
>
>
м
>
>
кН/м3
>
>
кН/м3
>
>кПа>
>
>
>
>
>
>
>
>
>
>
>
>
>

м
>
>
кПа
>
>условие
выполняется
Расчет второго сечения под колонну крайнего ряда.

Первая комбинация
Предварительно определяем размеры фундамента условно считая его центрально нагруженным квадратной формы.
>
>кН
>
>кПа
>
>кН/м3
>
>м
>
>
м
Учтем прямоугольность фундамента
>
>
м
принимаем
ФД11-3
>
>м
>
>м
>
>м3
Учитываем что фундамент внецентренно нагружен и определяем эксцентриситет.
>
>кНм
>
>кН
>
>кН/м3
>
>
кН
>
>
м3
>
>
кНм
>
>
кН/м3
>
>
кН
>
>
кН
>
>
м
>
>
>
>
>
>


Вторая комбинация
>
>кНм
>
>кН
>
>
кНм
>
>
м
>
>
>
>

Определяем вид эпюры контактных давлений.
>
>
кПа
>
>
кПа
Проверка под углом подошвы фундамента
>
>

>
>кПа
>
>
>
>
>
>
>
>
>
>

>
>
>
>м
>
>
кПа
кПа
>
>

Следовательно проверка прочности основания выполняется т.е. размеры фундамента подобраны верно.
Расчет осадки основания методом эквивалентного слоя.
>Построим э>>>>zp>> и э>>>>zg>

>
>
кПа


>
>
кПа
>
>
>
>
м
>
>
м
>
>м>
>
>
>м
>
>м
>
>м
>
>м
>
>м
>
>кПа
>
>кПа
>
>кПа
>
>
>
>

>
>
>
>


>
>
м
Что гораздо меньше предельной 8 см таб.5.26[1].
Проверяем прочность подстилающего слоя.

>
> кПа
> >
>
>кПа
кПа
>
>

>
>
м
>
>кН/м3
>
>кН/м3
>
>кПа
>
>
>
>
>
>
>
>
>
>
>
>

>
>м
>
>
кПа

Условие выполняется т.е. размеры фундамента подобраны верно.
6. Расчет фундамента глубокого заложения.
Расчет фундамента под первое сечение.
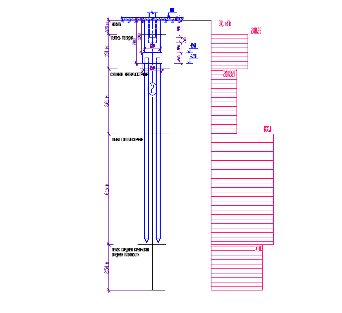
Проектируем свайный фундамент с забивными железобетонными сваями и монолитным ростверком. Глубину заложения верха ростверка принимаем из конструктивных соображений 1.8 м. Высоту ростверка принимаем равной 0.6 м. Величина заделки сваи в ростверк принимаем 0.3 м. В качестве естественного основания принимаем глину тугопластичную.
Предварительно принимаем сваю С10 – 30 длиной 10 м квадратного сечения 0.3х0.3 м. Определим несущую способность одной сваи
>
>кН
>
>кНм
кН
>
>кНм
>
>кН
>
>кН/м3
>
>м
>
>
длина сваи
>
>длина
сваи без учета защемления в ростверке
>
>несущая
способность одной сваи
>
>м
>
>м
>
>м
>
>м >
>
>
>м>
>
>
>м
>
>м
>
>м
>
>м
>
>м
>
>м
>
>м
>
>кПа
>
>кПа>
>
>
>кПа
>
>кПа
>
>кПа
кПа

>
>
>
>
>
>
>
>
м2
>
>
м
>
>кПа
>
>м
>
>
кН
h>i> – мощность итого слоя.
z>i> – глубина заложения итого слоя с поверхности до середины слоя.
По т. 9.1 [2] R кПа.
По т. 9.2 [2] f>i> кПа
По т. 9.3 [2] >c>> >= 1, >с>>R>> >= 1, >cf>> >= 1,
u – периметр одной сваи.
А – площадь поперечного сечения.
Определяем допустимую расчетную нагрузку на одну сваю
P>CB>=766.105>
>кН >g>=1
- коэф. надежности по грунту.
Определяем необходимое число свай
>
>n=3.508>
>шт.
принимаем>
>
>
>шт.

Определим нагрузку приходящуюся на каждую сваю во внецентренно нагруженном фундаменте.
>
>
кН - вес подколонника;
>
>
кН – вес ростверка;
>
>
>
>
>
>- коэф.
надежности по нагрузке;
>
>
м3
>
>
м3
>
>
м3
>
>
м3
>
>
кН/м3
>
>
кН
>
>
кН
>
>
кНм
>
>
кНм
>
>м
>
>м –расстояния
от центра сваи до осей соответственно.
>
>
кН
>
>
кН
1.2P>CB>=919.326
кН > P>max>
Неравенства выполняются, следовательно проверка условий работы крайних свай показала, что свайный фундамент запроектирован рационально.
Свайный фундамент с висячими сваями условно принимают за массивный жесткий фундамент глубокого заложения, контур которого ограничен размерами ростверка, свай и некоторым объемом грунта.
>
>
>
>
град.
>
>
кН
>
>
м
>
>
м
>
>
м3
>
>
м3
>
>
кН/м3
>
>
кН
>
>
кН
>
>
кНм
>
>
кНм
>
>

>
>
кПа
>
>
кПа
>
>

кН/м3
кН/м3>
>
>
>
>
>кПа
>
>
>
>
>
>
>
>
>
>

>
>
кПа

>
>> >

Неравенства выполняются, значит размеры фундамента подобраны верно.
Расчет осадки основания
>
>
>
>
кПа
кПа

>
>
кПа
>
>
м
>
>
м

>Определим модуль деформации.>
4 слой-глина
>
>кПа;
>
>кПа;
>
>кПа;
>
>кПа
>
>;
>
>м;

>
>
кПа
>
>
кПа


>
>м;
м
>
>
кПа
5 слой-песок
>
>;>
>
>
>м;

>
>кПа;
>
>кПа;
>
>кПа;
>
>кПа
>
>
кПа
>
>
кПа


>
>м;
м
>
>
кПа
>
>м;>
>
м;
>
>м;
>
>м
>
>;>
>
;
>
>кПа;
кПа
>
>;>
>


>
>
м
Что гораздо меньше предельной 8 см таб.5.26[1].
Расчет фундамента под второе сечение.
Проектируем свайный фундамент с забивными железобетонными сваями и монолитным ростверком. Глубину заложения верха ростверка принимаем из конструктивных соображений 1.8 м. Высоту ростверка принимаем равной 0.6 м. Величина заделки сваи в ростверк принимаем 0.3 м. В качестве естественного основания принимаем глину тугопластичную.
Предварительно принимаем сваю С8 – 30 длиной 8 м квадратного сечения 0.3х0.3 м. Определим несущую способность одной сваи.
>
>кН;
кНм;
>
>кН;
>
>кНм;
>
>кН;
>
>кН/м3
>
>
м
>
>
м

>
>м;
>
>м;
>
>м;>
>
м;

>
>м;
>
>м;
>
>м;
м;
>
>м;
>
>кПа;
>
>кПа;
>
>кПа;
>
>кПа;
кПа
>
>;
;
>
>;
>
>
м2
>
>
м
>
>кПа
>
>м
>
>
кН
Определяем допустимую расчетную нагрузку на одну сваю
>
> P>CB>=617.696
кН
>Определяем необходимое число свай.>
>
>n=2.3
шт.
принимаем
>
>шт.

Определим нагрузку приходящуюся на каждую сваю во внецентренно нагруженном фундаменте.
>
>
кН
>
>
кН
;
>
>;

>
>
м3
>
>
м3
>
>
м3
>
>
м3
>
>
кН/м3
>
>
кН
>
>
кН
>
>
кНм
>
>
кНм
>
>м
>
>м
>
>
кН
>
>
кН
; 1.2P>CB>=741.24
кН > P>max>
Неравенства выполняются, следовательно проверка условий работы крайних свай показала, что свайный фундамент запроектирован рационально.
Свайный фундамент с висячими сваями условно принимают за массивный жесткий фундамент глубокого заложения, контур которого ограничен размерами ростверка, свай и некоторым объемом грунта.
>
>
>
>град.
> >

>
>
кН
>
>
м
>
>
м
>
>
м3
>
>
м3
>
>
кН/м3
>
>
кН
>
>
кН
>
>
кНм
>
>
кНм
>
>

>
>
кПа
>
>
кПа
>
>кН/м3
>
>
кН/м3
;
>
>кПа;
;
>
>;

;
>
>;

>
>
кПа
кПа
>
>

Расчет осадки основания



>
>
м
>
>
м
>
>м
>
>м
>
>м>
>
>
>м
>
>
>
>
>
>кПа
>
>кПа
>
>

>
>
>
>
м
Что гораздо меньше предельной 8 см таб.5.26[1].
7. Выбор оборудования для забивки свай.
Определяем минимальную энергию удара по формуле 8.21 [1].
Дж
а=25 Дж/кН – коэф.;
F>v> – расчетная нагрузка, допускаемая на одну сваю.
Из т. 9.5 [5] выбираем дизель молот С – 995 с энергией удара 33 кДж.
Расчет отказа сваи.
формула 9.12 [5]
= 1500 кН/м2 стр. 207 [5], M = 1 стр. 207 [5],
A = 0.09 м2, площадь поперечного сечения сваи
m>1> = 2600 кг, масса молота
m>2> = 2250 кг, масса сваи
m>3> = 1250 кг, масса ударной части
E2 = 0.2 коэффициент восстановления удара
м
Что больше допустимого 0.002 м, т.е. сваебойное оборудование подобрано верно.
8. Устройство котлована.
Глубина котлована 2.4 м. При устройстве котлована запроектированы естественные откосы с уклоном 1:1. Размеры котлована понизу – 100.2х123.6 м2, по верху – 105х128.4 м2. На основании стр.26[10] и гл.7 [6] подобрана следующая землеройная машина:
Экскаватор с гидравлическим приводом при работе обратной лопатой ЭО-4121 мощностью 95 кВт, объемом ковша 1 м3.
9. Защита котлована от подземных вод.
Водопонижение осуществляем с помощью открытого водоотлива и производим в течение всего времени устройства фундаментов и других подземных частей здания, расположенных ниже уровня подземных вод, до тех пор, пока нагрузки от конструкции не превысят возникающее гидростатическое давление и не обеспечат устойчивость подземных сооружений от всплывания.
Открытый водоотлив осуществляется прямо из котлована насосами. Для сохранения природного сложения грунтов оно должно вестись с опережением земляных работ в определенной последовательности. Вода откачивается из приямков, куда она поступает из канавок глубиной 0.3-0.5 м, расположенных по периметру котлована с уклоном i=0.01-0.02 в сторону приямков. Приямки устраивают не ближе 1 метра от граней фундамента. По мере разработки котлована приямки заглубляются вместе с канавками. Приямки заглубляются не менее чем на 0.7-1 м, и уровень воды в них поддерживается на 0.3-0.5 м ниже дна вырытого котлована.
10. Список используемой литературы.
1. Справочник проектировщика «Основания,фундаменты и подземные сооружения ». Под редакцией Е.А. Сорочана, Ю.Г. Трофименкова. М.,1985.
нова, М., Стройиздат, 1984.
2. СНиП 2.02.01 – 83 «Основания зданий и сооружений», М., 1985.
3. СНиП 2.02.03 – 85 «Свайные фундаменты», М., 1986.
4. СНиП 2.01.07 – 85 «Нагрузки и воздействия», М., 1988.
5. Н.А. Цытович «Механика грунтов. Краткий курс», М., 1983.
6. В.А. Веселов «Проектирование оснований и фундаментов» М.,1990.
7. Руководство по выбору проектных решений фундаментов НИИОСП им. Н.М. Герсева
8. Е.Г. Кутухтин «Конструкции промышленных и сельскохозяйственных зданий и сооружений», М., 1995.
9. Примакина Е. И. «Методические указания на расчет оснований под ФМЗ и свайные»
10. Цыбакин С.В. «Методические указания на производство земляных работ»