Проектирование основания и фундамента 13-этажного жилого дома в городе Великий Устюг
Курсовой проект
«Проектирование основания и фундамента 13 этажного жилого дома в городе Великий Устюг»
Краткая характеристика проектируемого здания
Назначение здания – здание жилое с подвальным помещением. Вариант конструкций №3. Размер здания в плане 12х95,2 м2.
Количество этажей – 13 эт.
Несущие конструкции:
Наружные кирпичные стены. Толщина стен; верхних этажей – 51 см, пяти нижних этажей – 64 см.
Внутренний каркас из сборных железобетонных колонн продольных ригелей. Сечение колонн 40х40 см.
Перекрытия сборный ж/б многопустотный настил.
Крыша – чердачная, полупроходная из сборного железобетонного настила с внутренним водостоком.
Здание во всех осях имеет подвал. Отметка пола подвала – 2,20 м. Отметка пола первого этажа 0,00 на 0,6 м выше отметки спланированной поверхности земли.
Ввод коммуникаций (водопровод и канализация) расположен около поперечных стен (оси 3–4) со стороны, противоположной лестничным клеткам.
Высота здания от спланированной отметки поверхности земли DL до карниза составляет 42,6 м.
Конструктивная схема здания – здание со смешанным каркасом. Наружные продольные стены и внутренний ряд колонн являются несущими.
Город строительства Великий Устюг.
При наличие в здании подвала постоянные и временные нагрузки соответственно увеличиваются: На стену А – постоянные – на 14 и временные – 2 кН/м; на колонну Б – постоянные – на 65 и временные – 3 кН/м
Нагрузки на фундаменты
|
Нагрузки |
Без учета подвала 13 |
|
|
Стена А |
Постоянная кН/м |
477 |
|
Временная кН/м |
29 |
|
|
Колонна Б |
Постоянная кН/м |
1278 |
|
Временная кН/м |
206 |




Определение физико-механических характеристик грунтов
Классификация глинистых грунтов
О
пределение
типа пылевато-глинистого грунта по
числу пластичности (Iр)
Ip = WL – Wp;
1 слой – насупь неслежавшаяся
2 слой:
Ip = WL – Wp = 30 – 23 = 7%
Вывод: тип грунта – супесь.
3 слой:
Ip = WL – Wp = 29 – 16 = 13%
В
ывод:
тип грунта – суглинок.
Определение состояния пылевато-глинистого грунта по показателю консистенции (IL)

2 слой:
=

Вывод: супесь пластичная.
3 слой:
=

Вывод: суглинок текучепластичный.
Определение коэффициента пористости (е)

2 слой (супесь):


3 слой:


Определение условно-расчетного сопротивления грунта (Ro) Ro = f (Ip; IL; е)
Ro для 2-го слоя (супеси) не нормируется, так как коэффициент пористости (е) больше 0,7.
Вывод: вторым слоем является супесь пластичная с коэффициентом пористости (е) равным 0,77 и с ненормируемым расчетным сопротивлением грунта (Ro). А третьим слоем является суглинок текучепластичный, с коэффициентом пористости (е) равным 0,80 и с расчетным сопротивлением грунта (Ro) равным 155 кПа.
Классификация песчаного слоя
Определение вида песчаного грунта по гранулометрическому составу.
Вес частиц крупнее 0,25 мм составляет более 50%, а именно 62,0%, следовательно, песчаный грунт средней крупности.
Определение плотности песчаного грунта по коэффициенту пористости.

4 слой:


Вывод: плотность песчаного грунта – средняя.
Определение влажности песчаного грунта по степени влажности Sr.

4 слой:


Вывод: песчаный грунт насыщенный водой.
Определение условно-расчетного сопротивления грунта (Ro).
Ro = 400 кПа, по табл. так как средняя плотность и пески средней крупности, независимо от влажности.
Вывод: четвертым слоем является песчаный грунт средней плотности средней крупности насыщенный водой с коэффициентом пористости (е) равным 0,60 и с расчетным сопротивлением грунта (Ro) равным 400 кПа.
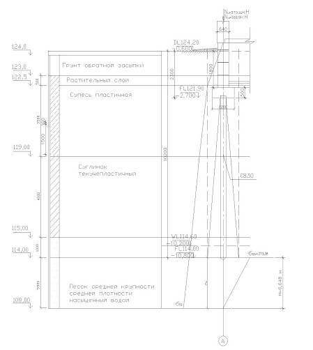
Послойная оценка грунтов:
1-й слой – насыпь неслежавшаяся – слабый грунт супесь пластичная не имеющая расчетное сопротивление, толщиной 0,5 м.
2-й слой – супесь, пластичная. Толщина слоя 3.5 м с коэффициентом пористости (е) равным 0,77 и с ненормируемым расчетным сопротивлением грунта (Ro), и может служить хорошим естественным основанием. (С глубины 119.00–120.00 м)
3-й слой – суглинок текучепластичный, с коэффициентом пористости (е) равным 0,80 и с расчетным сопротивлением грунта (Ro) равным 155 кПа.
4-й слой – песчаный грунт средней плотности средней крупности насыщенный водой с коэффициентом пористости (е) равным 0,60 и с расчетным сопротивлением грунта (Ro) равным 400 кПа. (С глубины 115.00–116.50)
Рекомендуем прорезать слабый грунт сваями до песка средней крупности, средней плотности насыщенный водой с высоким расчетным сопротивление R>0>=0.4МПа и посадить сваи на нормальный грунт.
2. Определение нагрузок на фундаменты
2.1 Определение расчетных нагрузок по второй группе предельных состояний

(коэффициент
перегрузки для II
группы предельных состояний)
(коэффициент
перегрузки для II
группы предельных состояний)
(коэффициент
сочетания постоянных и временных
нагрузок)
Нагрузка на стену А:


Нагрузка на колонну Б:


2.2 Определение расчетной нагрузки по первой группе предельных состояний
(коэффициент
перегрузки для I
группы предельных состояний)
(коэффициент
перегрузки для I
группы предельных состояний)
(коэффициент
сочетания постоянных и временных
нагрузок)




|
Расчетная нагрузка по II группе предельных состояний (кН) |
Расчетная нагрузка по I группе предельных состояний (кН) |
|
|
Стена А |
518,9 |
579,16 |
|
Колонна Б |
1531,1 |
1740,64 |
3. Определение глубины заложения фундаментов 13-ти этажного жилого дома
А. Под наружную стену кирпичного дома
Б. Под внутренний ряд колонн

3.1 Определяем глубину заложения исходя из конструктивных особенностей сооружений.
При отметки пола подвала равной – 2,2 м. и толщине конструкции пола подвала 0,2 м. глубина заложения подошвы фундамента мелкого заложения равна:
d = d>в>+ h>s> + h>cf> – h>ц> = 2,2 + 0,3 + 0,2 – 0,6 = 2,1 м
где
d>в>= 2,2 м – размер от чистого пола подвала до пола 1-го этажа
h>s> =0,3 м – величина заглубления подошвы фундамента от низа пола подвала
h>cf> = 0,2 – высота пола подвала
h>ц> = 0,6 – высота цокольной части здания
3.2 Определяем расчетную глубину сезонного промерзания в гор. Великий Устюг

нормативная глубина сезонного промерзания
d>o>= 0,3 м (для песка)

K>n>> >= 0,6 (жилое здание)
Вывод:
Глубина залегания фундамента равна 2,1 м, т. к. расчетная глубина сезонного промерзания состовляет 0,87 м., >т.е. по наибольшей величине, исходя из конструктивных особенностей здания.>
4. Определение размеров фундамента мелкого заложения на естественном основании для жилого здания с подвалом
Определение ширины ленточного сборного фундамента под наружную стену 13 этажного здания
Определяем ориентировочную ширину ленточного фундамента.
Основные характеристики песчаной подушки, которая является рабочим слоем.
Удельный
вес грунта

Для песчаной подушки примем песок средней крупности средней плотности (СНиП 2.01–83)
|
Угол внутреннего |
Коэффициенты |
Угол внутреннего |
Коэффициенты |
||||
|
трения j >II> град. |
Mg |
M>q> |
M>c> |
трения j >II> град. |
Мg |
M>q> |
M>c> |
|
0 |
0 |
1 |
3,14 |
23 |
0,69 |
3,65 |
6,24 |
|
1 |
0,01 |
1,06 |
3,23 |
24 |
0,72 |
3,87 |
6,45 |
|
2 |
0,03 |
1,12 |
3,32 |
25 |
0,78 |
4,11 |
6,67 |
|
3 |
0,04 |
1,18 |
3,41 |
26 |
0,84 |
4,37 |
6,9 |
|
4 |
0,06 |
1,25 |
3,51 |
27 |
0,91 |
4,64 |
7,14 |
|
5 |
0,08 |
1,32 |
3,61 |
28 |
0,98 |
4,93 |
7,4 |
|
6 |
0,1 |
1,39 |
3,71 |
29 |
1,06 |
5,25 |
7,67 |
|
7 |
0,12 |
1,47 |
3,82 |
30 |
1,15 |
5,59 |
7,95 |
|
8 |
0,14 |
1,55 |
3,93 |
31 |
1,24 |
5,95 |
8,24 |
|
9 |
0,16 |
1,64 |
4,05 |
32 |
1,34 |
6,34 |
8,55 |
|
10 |
0,18 |
1,73 |
4,17 |
33 |
1,44 |
6,76 |
8,88 |
|
11 |
0,21 |
1,83 |
4,29 |
34 |
1,55 |
7,22 |
9,22 |
|
12 |
0,23 |
1,94 |
4,42 |
35 |
1,68 |
7,71 |
9,58 |
|
13 |
0,26 |
2,05 |
4,55 |
36 |
1,81 |
8,24 |
9,97 |
|
14 |
0,29 |
2,17 |
4,69 |
37 |
1,95 |
8,81 |
10,37 |
|
15 |
0,32 |
2,3 |
4,84 |
38 |
2,11 |
9,44 |
10,8 |
|
16 |
0,36 |
2,43 |
4,99 |
39 |
2,28 |
10,11 |
11,25 |
|
17 |
0,39 |
2,57 |
5,15 |
40 |
2,46 |
10,85 |
11,73 |
|
18 |
0,43 |
2,73 |
5,31 |
41 |
2,66 |
11,64 |
12,24 |
|
19 |
0,47 |
2,89 |
5,48 |
42 |
2,38 |
12,51 |
12,79 |
|
20 |
0,51 |
3,06 |
5,66 |
43 |
3,12 |
13,46 |
13,37 |
|
21 |
0,56 |
3,24 |
5,84 |
44 |
3,38 |
14,5 |
13,98 |
|
22 |
0,61 |
3,44 |
6,04 |
45 |
3,66 |
15,64 |
14,64 |
Угол
внутреннего трения



Где b – ширина фундаментной плиты (м)
N>a>II - расчетная нагрузка от массы сооружения на 1 пог. м. (кН)
R>o>> >– табличное значение расчетного сопротивления грунта основания под подошвой фундамента, (кПа)
-
усредненный удельный вес стеновых
блоков, фундамента и грунта
d – глубина заложения фундамента, м
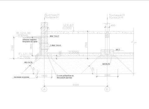
Полученная ширина подошвы ленточного фундамента b=1,44 м. является предварительной. Так как ширина определена, исходя из табличного значения расчетного сопротивления основания. По этому размеру принимаем типовую фундаментную подушку ФЛ 14.24. с h>s>=0,3 м, b=1400 мм (так как b=0,8–1,6)

L=2,4 м
Определяем расчетное сопротивление грунта основания по формуле СНиПа

M>g>M>q>Mc-f(
)
Коэффициент
,
так как рабочий слой песок средней
крупности средней плотности.
Коэффициент
-
зависит как от вида грунтов, залегающих
непосредственно под подошвой фундамента,
так и от отношения длины здания к его
высоте.
Так как l/h= 95200/42600=2,24

-
угол внутреннего трения



– коэффициенты,
принимаемые по табл. 4 СНиПа, в зависимости
от расчетного значения угла внутреннего
трения
грунта, находящегося непосредственно
под подошвой фундамента
Kz=1 – коэффициент надежности (так как ширина ленточного фундамента b≤10 м)
b=1400 мм – меньшая сторона подошвы фундамента.
-
расчетное значение удельного веса
грунта, залегающего ниже подошвы
фундамента.
d>1>=h>s>+h>sf>x(γ>cf>/γ>II>’)= 0,3+0,2х (22/18)=0,54 – приведенная глубина заложения наружных и внутренних фундаментов от пола подвала.
d>B>=2,1–0,5=1,6 м – глубина подвала – расстояние от уровня планировки до пола подвала.
осредненное
расчетное значение удельного веса
грунтов, залегающих выше отметки
заложения подошвы фундамента



Проверяем фактическое среднее давление P, действующее под подошвой фундамента при принятом размере и заданных нагрузках:


Gф – собственный вес 1 м фундамента из подушек ФЛ-14.24, 3 стеновых блоков ФБС-6 и одного блока ФБС-3.
Gф=(1,4х0,3х1х24)+(3х(0,6х0,6х1х22))+(0,6х0,3х1х22)=10,08+23,76+3,96=37,8 кН/м3
Gгр=γх (0,7–0,3)=18х0,4=7,2 кН/м3 - вес грунта на обрезе фундамента с наружной стороны.
А=bх1=1,4х1=1,4 м2
P=402,8 кПа≤ R=413,5 кПа
Определяем разницу между R и P.
%
>Вывод: Разница между средним давлением, действующим по подошве ленточного фундамента P, и расчетным сопротивлением R составляет меньше 2.66% < 10%, ширина подошвы фундамента запроектирована достаточно экономично.>
Определение ширины столбчатого фундамента под колонну 13 этажного здания
Определяем ориентировочную ширину столбчатого фундамента.
Основные
характеристики песчаной подушки, которая
является рабочим слоем. Удельный вес
грунта

Для песчаной подушки примем песок средней крупности средней плотности (СНиП 2.01–83)
Угол
внутреннего трения



Где b – ширина фундаментной плиты (м)
N>a>II - расчетная нагрузка от массы сооружения на 1 пог. м. (кН)
R>o>> >– табличное значение расчетного сопротивления грунта основания под подошвой фундамента, (кПа)
-
усредненный удельный вес стеновых
блоков, фундамента и грунта
d – глубина заложения фундамента, м
Полученная ширина подошвы столбчатого фундамента b=2,06 м. является предварительной. Так как ширина определена, исходя из табличного значения расчетного сопротивления основания. По этому размеру принимаем раздельный столбчатый фундамент с типовой фундаментной подушкой ФП 20.20. с h>s>=0,3 м, b=2000 мм и подколонником БК2 (1200х1200х600).

Определяем расчетное сопротивление грунта основания по формуле СНиПа

M>g>M>q>Mc-f(
)
Коэффициент
,
так как рабочий слой песок средней
крупности средней плотности.
Коэффициент
– зависит как от вида грунтов, залегающих
непосредственно под подошвой фундамента,
так и от отношения длины здания к его
высоте.
Так как l/h= 95200/42600=2,24

– угол
внутреннего трения



– коэффициенты,
принимаемые по табл. 4 СНиПа, в зависимости
от расчетного значения угла внутреннего
трения
грунта, находящегося непосредственно
под подошвой фундамента.
Kz=1 (так как ширина ленточного фундамента b≤10 м)
b=2000 мм – меньшая сторона подошвы фундамента.
– расчетное
значение удельного веса грунта,
залегающего ниже подошвы фундамента.
d>1>=h>s>+h>sf>x(γ>cf>/γ>II>’)= 0,3+0,2х (22/18)=0,54 – приведенная глубина заложения наружных и внутренних фундаментов от пола подвала.
d>B>=2,1–0,5=1,6 м – глубина подвала – расстояние от уровня планировки до пола подвала.



Проверяем фактическое среднее давление P, действующее под подошвой фундамента при принятом размере и заданных нагрузках:


Gф – собственный вес 1 м фундамента
Gф=(2х2х0,3х1х24)+(1,2х1,2х0,6х1х22)= 28,8+19,008=47,8кН/м3
А=bх1=2х2=4 м2
P=394,73 кПа≤ R=439,46 кПа
Определяем разницу между R и P.
%
>Вывод: Разница между средним давлением, действующим по плите столбчатого фундамента P, и расчетным сопротивлением R составляет меньше 11.3% < 20%, ширина плиты фундамента запроектирована достаточно экономично.>


с – зазор между блоками
Ro – расчетное сопротивление
Определение размеров песчаной подушки для ленточного фундамента под наружную стену 13 этажного здания




Согласно СНиП, находим коэффициент затухания -, по кровле подстилающего слоя:




Принимаем ширину песчаной подушки 1.5 м (опирается на слой – супесь пластичная).
Так
как
,
то
.
Угол заложения песчаной подушки









Kz=1 (так как ширина ленточного фундамента b≤10 м)
b=4400 мм

d>1>=h>s>+h>g>x(γ>cf>/γ>II>’)= 0,3+2,7х (22/18)=3,6
d>B>=2,1–0,5=1,6 м
Определяем расчетное сопротивление грунта подстилающего песчаную подушку:







Следовательно, запроектированные размеры фундамента и принятая толщина песчаной подушки удовлетворяют требованиям СНиП.
5. Расчет свайного фундамента
5.1 Расчет свайного фундамента под наружную стену 13 этажного здания
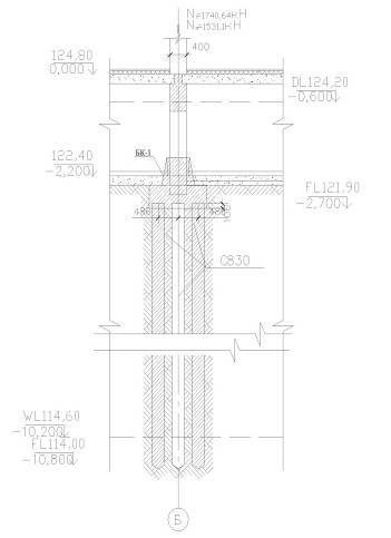
Принимаем сваи забивные С 8 30, где l=8 м, сечение 30х30 см, толщина ростверка -500 мм.
Ориентировочная длина сваи с учетом глубины заложения ростверка и величины задки сваи в него (100 мм):

Определяем несущую способность забивной сваи:

– коэффициенты
условия работы сваи в грунте
– коэффициенты
условия работы сваи в грунте
А=0,3х0,3=0,09 м2, где А – площадь опирания на грунт
R=4200 кПа (табл)

Z1=2,28 м
Z2=3,44 м
Z3=4,60 м
Z4=6,20 м
Z5=8,20 м
Z6=10,075 м
Fi >1>= 44
Fi >2>= 50
Fi >3>= 55
Fi >4>= 59
Fi >5>= 62
Fi >6>= 65

Расчетная нагрузка, допускаемая на сваю по грунту:

-
коэффициент безопасности по грунту.
-
расчетная нагрузка на фундамент по 1
п.с.


-
коэффициент, зависящий от вида свайного
фундамента, для ленточного под стену
-7,5, для отдельно стоящего -9
n – количество свай
Так
как
,
однорядная.
Расчетное расстояние между осями свай на 1 пог. м. стены:
Lp=1/n=1/0,81=1,2 м
Ширина ростверка:
Bp=(0,3+2х0,1+0,7)=1,2 м
Фактическая нагрузка на одну сваю:

1,2 – коэффициент перехода от 2 группе предельных состояний к 1 группе п.с.
G=(3х (0,6х0,6х1х22))= 23,76кН – вес грунтовой пригрузки ростверка
Qp=0,7х0,5х1х24=8,4 – вес ростверка


следовательно подбираем другое количество свай (n)





5.2 Расчет свайного фундамента под колонну 13 этажного здания
Ширина ростверка:
bp=(0,9+2х0,1+0,3)=1,4 м


-
коэффициент, зависящий от вида свайного
фундамента, для ленточного под стену
-7,5, для отдельно стоящего -9
n – количество свай
Фактическая нагрузка на одну сваю:

1,2 – коэффициент перехода от 2 группе предельных состояний к 1 группе п.с.
Qp=1,3х1,3х24х0,5=20,28
Qк=0,4х0,4х24х2,3=8,83
Qn=0,82х0,6х22=8,44





5.3 Расчет свайного фундамента под наружную стену 12-ти этажного жилого дома по II предельному состоянию
Определяем ширину условного фундамента под наружную стену 13 этажного здания:
Вусл=d+2l>св>хtgα>ср>+С>р>
Где d=0,03 – диаметр сваи, м
l>св>=7,9 – длина сваи, м


tgα>ср>=tg6o=0,105
С>р>=0, так как однорядная
Вусл=d+2l>св>хtgα>ср>+С>р>=0,03+2х7,9х0,105+0=1,68 м
Объем условного свайного фундамента:
V=1,4х10,2=14,28 м3
Объем ростверка:
V=0,5х1,2х1=0,6 м3
Объем стеновой части стены:
V=0,6х2,4 =1,44м3
Объем ростверка и объем стеновой части стены:
Vр=1,44+0,6=2,04 м3
Объем сваи на 1 пог. м. свайного фундамента:
Vсв=0,824х0,09х7,9=0,585 м3
Vобщ=0,585+2,04=2,62 м3
Объем грунта на 1 пог. м. условного свайного фундамента:
Vобщ=V-Vобщ=14,28–2,62=11,66 м3

Вес грунта на 1 пог. м. свайного фундамента:
Gгр=
Gф=2,62х24=62,88кН
Аусл=1,68х1=1,68 м2
Расчетная нагрузка, допускаемая на сваю по:


Расчетное давление:




Kz=1 (так как ширина ленточного фундамента b≤10 м)
b=1680 мм

d>1>=h>s>+h>sf>x(γ>cf>/γ>II>’)= 7,9+0,2х (22/19,25)=8,13 м
d>B>=2,1–0,5+0,2=1,8 м





6. Расчет осадок свайного фундамента методом послойного суммирования
= 20 кН/м3 – для песка средней крупности и плотности
Так как, нижележащие грунты не обладают расчетным сопротивлением Ro, принимаем угол откоса – = 450.
6.1 Расчет осадки ленточного фундамента под наружную стену
Ширина условного фундамента:



По эпюре природных давлений определяем природное давление в уровне условного свайного фундамента >zgo>> >и >zgo>:
>zgo>=10,2х20,6=210,12 кПа.
>zgo>=483,5–210,12=273,38кПа.



=0,98
Результаты расчета осадки фундамента песчаного слоя
|
№п.п. |
ξ |
|
hi, см |
α |
σzp кПа |
σzg, o кПа |
0,2σzg кПа |
|
|
1 |
0 |
0 |
33,6 |
1 |
273,38 |
210,12 |
42,024 |
|
|
2 |
0,4 |
0,336 |
0,977 |
267,0923 |
210,12 |
42,024 |
||
|
3 |
0,8 |
0,672 |
0,881 |
240,8478 |
210,12 |
42,024 |
||
|
4 |
1,2 |
1,008 |
0,755 |
206,4019 |
210,12 |
42,024 |
||
|
5 |
1,6 |
1,344 |
0,642 |
175,51 |
210,12 |
42,024 |
||
|
6 |
2 |
1,68 |
0,55 |
150,359 |
210,12 |
42,024 |
||
|
7 |
2,4 |
2,016 |
0,477 |
130,4023 |
210,12 |
42,024 |
||
|
8 |
2,8 |
2,352 |
0,42 |
114,8196 |
210,12 |
42,024 |
||
|
9 |
3,2 |
2,688 |
0,374 |
102,2441 |
210,12 |
42,024 |
||
|
10 |
3,6 |
3,024 |
0,337 |
92,12906 |
210,12 |
42,024 |
||
|
11 |
4 |
3,36 |
0,306 |
83,65428 |
210,12 |
42,024 |
||
|
12 |
4,4 |
3,696 |
0,28 |
76,5464 |
210,12 |
42,024 |
||
|
13 |
4,8 |
4,032 |
0,258 |
70,53204 |
210,12 |
42,024 |
||
|
14 |
5,2 |
4,368 |
0,239 |
65,33782 |
210,12 |
42,024 |
||
|
15 |
6 |
5,04 |
0,223 |
60,96374 |
210,12 |
42,024 |
||
|
16 |
6,4 |
5,376 |
0,208 |
56,86304 |
210,12 |
42,024 |
||
|
17 |
6,8 |
5,712 |
0,196 |
53,58248 |
210,12 |
42,024 |
||
|
18 |
7,2 |
6,048 |
0,185 |
50,5753 |
210,12 |
42,024 |
||
|
19 |
7,6 |
6,384 |
0,175 |
47,8415 |
210,12 |
42,024 |
||
|
20 |
8 |
6,72 |
0,166 |
45,38108 |
210,12 |
42,024 |
||
|
21 |
8,2 |
6,888 |
0,158 |
43,19404 |
210,12 |
42,024 |
||
|
22 |
8,38 |
7,0392 |
0,154 |
42,10052 |
210,12 |
42,024 |
||
|
23 |
8,39 |
7,0476 |
0,15372 |
42,02397 |
210,12 |
42,024 |
||
|
24 |
8,4 |
7,056 |
0,15 |
41,007 |
210,12 |
42,024 |

6.2 Определение деформационных характеристик грунтов, входящих в активную зону сжатия для фундамента под наружную стену 13 этажного здания
Определение модуля деформации по штамповым испытаниям.


W = 0.88 – безразмерный коэффициент, зависящий от жесткости и формы штампа.
=0.3
коэффициент относительной поперечной
деформации для песка.
d = 1000 мм – диаметр штампа.

=
16.00 – 7.98 – приращение осадки, соответствующее
принятому интервалу напряжений.

Вывод: Модуль деформации по штамповым испытаниям для песка средней плотности средней крупности насыщенного водой – 9985,03 кПа.
Определение модуля деформации по компроссионным испытаниям

По эпюре природных напряжений:
>zgo>=210,12кПа.
>zp>=273,38 кПа.
P=483,5 кПа
Коэффициент сжимаемости m>o>=(lz-l’)/>zp>> >=(0,5857–0,5838)/273,38=6,9х10-5 кПа-1

6.3 Расчет осадки свайного фундамента под наружную стену 13 этажного жилого дома
(0,8/10724)*((273,38+267,09)/2+(267,09+240,84)/2+(240,84+206,4)/2+(206,4+175,51)/2+(175,51+150,35)/2+(150,35+130,4)/2+(130,4+114,81)/2+(114,81+102,24)/2+(102,24+92,13)/2+(92,13+83,65)/2+(83,65+76,54)/2+(76,54+70,53)/2+(70,53+65,33)/2+(65,33+60,96)/2+(60,96+56,86)/2+(56,86+53,58)/2+(53,58+50,75)/2+(50,57+47,84)/2+(47,84+45,38)/2+(45,38+43,19)/2+(43,19+42,10)/2+(42,10+42,024))*33,6=5,9 см
≤ 8 см.
S=5,9 см ≤ 8 см.
Что удовлетворяет требованиям СНиП для данного типа зданий.
6.4 Расчет осадок методом эквивалентного слоя свайного фундамента под наружную стену 13 этажного здания. (Расчет осадок методом Цытовича Н.А.)

кПа-1
м
-для
средней жесткости



Список использованной литературы
СНиП 2.01.07–85. Нагрузки и воздействия. Госстрой СССР, 1986 г.
СНиП 3.02.01–87. Земляные сооружения, основания и фундаменты, Госстрой СССР, 1987 г.
СНиП 2.02.03–85. Свайные фундаменты, М, 1986 г. – 48 с.
Методическое пособие Часть 1, Часть 2.
Количество
этажей