Обґрунтування процесу внесення твердих органічних добрив
ЗМІСТ
1. Виробнича характеристика підприємства
1.1 Ґрунтові та кліматичні умови
1.1.1 Клімат
1.1.2 Ґрунти
1.2 Спеціалізація
1.3 Обсяги виробництва продукції рослинництва
1.3.1 Сівозміни
1.3.2 Структура посівних площ
2. Машиновикористання при виконанні заданого технологічного процесу
2.1 Вибір раціонального складу машинно-тракторного агрегату
2.2 Організація внесення твердих органічних добрив роторними розкидачами
2.3 Виконання розрахунків, пов’язаних із підготовкою поля
3. Розрахунок транспортних процесів
3.1 Розрахунок транспортних процесів при внесенні органічних
добрив
4. Аналіз технічних систем
4.1 Побудова структурної схеми технічного комплексу для оцінки його безвідмовності і надійності
4.2 Визначення показників безвідмовності технічного комплексу
4.3 Визначення показників надійності технічного комплексу
4.4 Визначення необхідної кількості запасних елементів сільськогосподарських машин (вузлів чи деталей) для безвідмовної
роботи технічного комплексу
5. Конструкторська розробка
5.1 Властивості твердих добрив
5.2 Будова та робота валкувала
5.3 Розрахунок деталі на міцність
6. Охорона праці
6.1 Вимоги по техніці безпеки до тракторів та самохідних машин
6.2 Безпека праці при роботі на агрегатах
6.3 Пожежна безпека
Висновки
Список використаних джерел
Додатки
ВСТУП
Сільське господарство - одна з провідних галузей народного господарства країни. Продукція сільськогосподарського виробництва - це, насамперед, продукти харчування людей, сировина для різних галузей промисловості. Стабільне і ефективне функціонування аграрного виробництва - основа економічної стабільності держави і добробуту громадян. Актуальним завданням сільського господарства є забезпечення нашої країни продовольством за умови збереження і підвищення родючості ґрунтів, зменшення енергоспоживання, охорони навколишнього середовища. Вирішення його сприятиме впровадження новітніх технологій і машин, зокрема комплексної механізації рослинництва на базі науково обґрунтованої системи машин.
Оснащення сільськогосподарських підприємств сучасною високопродуктивною і надійною технікою - одна з головних умов подальшого індустріального розвитку сільського господарства, росту продуктивності праці підвищення врожайності сільськогосподарських культур, скороченню трудових, матеріальних і грошових витрат на виробництво продукції рослинництва і тваринництва.
Виникають значні труднощі при впровадженні нових машин в господарствах. Машини, що потребують особливого підходу, високої культури землеробства, попадаючи в старий технологічний процес, не приносять очікуваного ефекту, не досягають запланованої продуктивності, дають продукцію низької якості. Тому вимагається впровадження нових технологічних процесів і корінне підвищення ефективності застосування нової техніки і, насамперед, по тих культурах, де рівень механізації наближається до 100%.
1. ВИРОБНИЧА ХАРАКТЕРИСТИКА ПІДПРИЄМСТВА
Філія «Надія» ДП «Агрофірма «Шахтар» знаходиться на території Хрестищанської сільської Ради Слов’янського району Донецької області і працює на засадах колективної форми власності. Філія «Надія» заснована у відповідності з статутом ДП «Агрофірма «Шахтар».
Центральна садиба філії знаходиться в селі Хрестище. До філії «Надія» входять села: Хрестище, Адамівка, Макатиха.
Віддаленість філії:від обласного центру м. Донецьк – 135 км;
від районного центру м. Слов’янськ – 20 км;
до найближчої залізничної станції – 20 км
Господарство спеціалізується на виробництві зерна, м’яса, молока. Землекористування філії «Надія» розташоване компактно в 2-х масивах, які розділені ставками Донрибкомбіната. Його конфігурація представлена багатокутником неправильної форми.
Відстань від господарських центрів до найвіддаленіших ділянок 8 км Основна земельна рілля розташована поблизу виробничих центрів. Пасовища розкидані окремими ділянками різної величини по всьому землекористуванню і розміщені в основному по балках.
Природні умови не зовсім сприятливі для сільськогосподарських культур, влітку часті південно-східні і східні вітри, що викликають ґрунтову засуху, що веде до зниження врожайності, нерівномірний розподіл опадів в період вегетації. Взимку часта різка зміна погоди призводить до того, що при незначному сніжному покриві часто вимерзають озимі, багаторічні насадження.
Рельєф господарства – плато, порізане балками в різних напрямах. Ґрунти в міжбалочних просторах чорноземні, звичайні і слабо змиті. У господарстві є: механічний тік, майстерня, авто гараж, пункт для заправки машин нафтопродуктами, дві ферми, які розташовані в різних кутках с. Хрестище, холодильник для зберігання надоєного молока, який розміщений біля ферми №2 переганяють на ферму, яка розташована в с. Адамівка. На центральній садибі є середня школа, дитячій сад, амбулаторія, будинок культури, перукарня, столова, магазини, кафе, будівля контори, аптека. По селу проходить водопровід. Протяжність доріг з твердим покриттям 23 км
Найближчі пункти збуту продукції:
зерно 18 км;
молоко 10 км;
м'ясо 70 км;
цукрові буряки 25 км
1.1 Ґрунтові та кліматичні умови
1.1.1 Клімат
Слов’янський район Донецької області знаходиться в східній частині лісостепу. По кількості опадів район відноситься до середньо зволожених. Середня багаторічна кількість опадів по даним Слов’янської метеорологічної станції - 503 мм. Розподіл на протязі року нерівномірний: влітку - 192 мм (31,2%), а зимою - 82 мм (16,3%), весною - 116 мм (23,1%), восени - 113 мм (22,4%). Виникає нестача вологи в період вегетації. Основні глибинні запаси накопичуються в осінньо-зимовий період, а поверхневе зволоження - в весняно-літній період за рахунок дощів, а іноді ливнів. Зимою сніговий шар складає більше 17 см.
Характерна особливість клімату - перевага сильних південно-східних вітрів. В літній період бувають суховії, при цьому, відносна вологість ґрунту знижується до 30% та нижче, а температура повітря на поверхні ґрунту - до +40°С. Кількість таких днів за вегетаційний період складає 8-10 днів.
Середньорічна температура повітря +6,5°С. Найхолодніші місяці - грудень та січень, найтепліші - липень, серпень. Ранні заморозки трапляються 22 вересня (на поверхні ґрунту) та 10 жовтня (в повітрі), а пізні - 30 квітня та 1 травня відповідно. Безморозний період, в середньому, складає 162 дня (в повітрі) та 143 дня (на поверхні ґрунту). Середньорічні дані свідчать, що період з температурою вище +5 °С починається 31 березня і закінчується 31 жовтня, тобто триває 215 діб. З 9 квітня по 26 вересня триває період з температурою вище +10°С (триває 171 добу)
Сума позитивних температур (вище +10°С) складає 2700-2900°С, що дає змогу вирощувати всі основні сільськогосподарські культури.
В деякі роки спостерігалися значні відхилення в ту чи іншу сторону в залежності від суворості зими, або навпаки від раннього настання теплого періоду.
Кінець вересня початок жовтня характерні частими дощами, що вимагає оперативного проведення збиральних робіт та основного обробітку ґрунту.
1.1.2 Ґрунти
Господарства має в своєму користуванні 3210,3 га сільськогосподарських угідь в тому числі орна земля (3015,4 га), пасовища (135,1 га), сінокоси (30,4 га) та госпбудівлі (29,4 га). Більшість полів мають форму подібну прямокутнику, кут ухилу місцевості не перевищує 3°, а площа складає 80-150 га.
Серед польових ґрунтів переважають чорноземи потужні середньогумусні не змиті, а на схилах - слабко- та середньозмиті. Потужність гумусного профілю чорноземів не змитих 110-120 см, а верхнього гумусного шару - до 42-45 см. Верхній горизонт ґрунту містить гумус 5,3-5,5%. Показник рН = 6,6 - самі родючі ґрунти лісостепу.
Переважно невеликі площі займають чорноземи опідзолені та темно-сірі опідзолені. Ці ґрунти кислі рН = 5,4-6,3, тому потребують внесення вапна та дефекатів.
На схилах балок мають місце чорноземи підзолисті та темно-сірі змиті різного ступеня. Інколи зустрічаються глина та пісок.
1.2 Спеціалізація
Ґрунтові та кліматичні умови господарства дозволяють вирощувати всі основні сільськогосподарські культури. Тому рослинництво відіграє важливу роль в спеціалізації господарства. На сьогоднішній день склалася така ситуація, що під час збирання врожаю на ринку пропозиція перевищує попит, тому закупівельні ціни на вирощену продукцію знижуються, навіть, до рівня собівартості, а ціни на продукти харчування залишаються на досить високому рівні. Ці обставини сприяють економічній доцільності переробки та реалізації вирощеної продукції. Крім того низькі ціни на зерно та високі на м'ясо підвищують актуальність тваринництва, яке також забезпечує рослинництво дешевим добривом - перегноєм. Існуючі обсяги виробництва молока змушують шукати ринок його збуту, який переповнений продукцією місцевих присадибних та фермерських господарств. Для вирішення цієї проблеми було прийнято рішення про переробку молока в умовах господарства на молокопродукти (сметана сир і т.д.) і реалізації її в продовольчих магазинах. Виходячи з цього господарство спеціалізується на таких видах діяльності:
вирощування зернових, технічних та інших культур рослинництва;
вирощування ВРХ та свиней для виробництва м'яса та молока;
переробка сільськогосподарської продукції (виробництво пшеничного борошна та соняшникової олії, переробка молока та випічка хліба);
роздрібна та оптова торгівля сільськогосподарською продукцією;
роздрібна торгівля в неспеціалізованих магазинах продовольчими товарами.
1.3 Обсяги виробництва продукції рослинництва
1.3.1 Сівозміни
Проаналізувавши спеціалізацію господарства робимо висновок, що провідною галуззю господарства є рослинництво, яке повинно забезпечувати, насамперед, тваринництво кормами, а переробну галузь сировиною. Для виконання вище викладених умов, необхідне раціональне, з урахуванням агротехнічних особливостей, співвідношення між обсягами виробництва сільськогосподарських культур. Для вирішення цих питань в господарстві запроваджено декілька сівозмін, які приведемо в таблиці 1.1.
Таблиця 1.1- Польові сівозміни господарства
-
Номер
поля
Сівозміна
10-ти пільна
8-ми пільна
6-ти пільна
1
2
3
4
1
Пар
Пар
Ярі + багаторічні трави
2
Озимі зернові
Озимі зернові
Багаторічні трави
3
Цукрові буряки
Цукрові буряки
Багаторічні трави
4
Кукурудза на силос
Ярі зернові
Озимі зернові
5
Ярі зернові
Однорічні трави
Кормові буряки
6
Горох
Кукурудза на силос
Кукурудза на силос
7
Озимі зернові
Гречка
8
Ярі зернові
Кукурудза на зерно
9
Кукурудза на зерно
10
Соняшник
1.3.2 Структура посівних площ
Обсяги виробництва сільськогосподарських культур повинні визначатися сівозмінами, але в реальних умовах структуру посівних площ корегують погодні умови та своєчасність виконання агрооперацій. Велику роль, також, відіграють нові культури, які до цього часу не вирощувалися в господарстві. Такі обновлення спричинені коректуванням спеціалізації господарства, а також зміною ринку попиту, тобто господарство збільшує площі посівів культур з більш високим рівнем рентабельності за рахунок зменшення виробництва менш рентабельних культур. Для наглядного і об'єктивного зображення фактичних обсягів вирощування с. г. культур приведемо в таблиці 1.2 структуру посівних площ за останні три роки.
Таблиця 1.2 - Структура посівних площ
-
Культура
Площа, га
2006 р.
2007 р.
2008 р.
1
2
3
4
Чистий пар
290
300
270
Озима пшениця
608
618
700
Озиме жито
115
100
130
Яра пшениця
90
80
102
Ярий ячмінь
392
400
302
Овес
45
50
56
Горох
74
60
50
Гречка
52
40
50
Соя
—
80
100
Кукурудза на зерно
145
130
160
Кукурудза на силос
405
412
380
Соняшник
310
250
300
Цукровий буряк
261
250
170
Кормовий буряк
53
50
45
Однорічні трави
45
50
60
Багаторічні трави
130
145
140
Всього
3015
3015
3015
Технічний стан тракторів на початок планового періоду заносимо в таблицю 1.3.
Таблиця1.3 - Технічний стан тракторів на початок планового періоду
|
Марка трактора |
Рік випуску |
Господарчий номер |
Витрата палива від початку експлуатації або останнього капітального ремонту, кг (л) |
|
1 |
2 |
3 |
4 |
|
Т-150 |
2000 |
013-70ЕГ |
2500 |
|
Т-150 |
2000 |
013-68ЕГ |
7300 |
|
Т-150 |
2000 |
013-69ЕГ |
4900 |
|
Т-150К |
2001 |
057-27ЕГ |
3000 |
|
Т-150К |
2001 |
04-008ЕГ |
12300 |
|
МТЗ-82 |
1990 |
106-27ЕК |
23200 |
|
МТЗ-82 |
2002 |
02-555ЕК |
16700 |
|
МТЗ-80 |
1992 |
106-25ЕК |
1000 – 1200 |
|
МТЗ-80 |
1992 |
106-26ЕК |
14270 |
|
МТЗ-80 |
1996 |
106-28ЕК |
12450 |
|
МТЗ-80 |
1993 |
106-85ЕК |
13960 |
|
МТЗ-80 |
1993 |
126-86ЕК |
14650 |
|
ЮМЗ погруз. |
1984 |
126-71ЕК |
1000 |
|
К701 А |
2002 |
013-65ЕК |
2000 |
|
ДЖОН-ДІР |
2000 |
011-56ЕК |
до 5000 |
|
ДЖОН-ДІР |
2000 |
011-58ЕК |
до 5000 |
Перелік нескладних сільськогосподарських машин заносимо в таблицю 1.4.
Таблиця 1.4 - Перелік нескладних сільськогосподарських машин
-
Назва машини
Марка машини
Кількість
1
2
3
Сіялки зернові
СЗ-3,6
3
СД-6000
1
Сіялки просапні
Плантер
3
Максима
1
СПЧ-6
1
Плуги
ПЛН-3-35
1
ПЛН-8-40
1
Культиватори
КПС-4
4
КРН-5,6
2
КПЭ-8
1
КПЭ-9,5
1
АКШ-5,6
1
Дискові борони
БД-5
2
Жатки
ЖВН-6
1
Пробірник
Викон
2
ПРП-110
1
Комбайни кормозбиральні
КСК-100
1
Косилки
Е-6000
1
Кормороздавачі
КТУ-10
3
Граблі
КУНГ
1
Розкидачі добрив
РМ-1-071
2
Зчіпки
СПУ-21
1
Оприскувачі
ОП-2000
2
2. МАШИНОВИКОРИСТАННЯ ПРИ ВИКОНАННІ ЗАДАНОГО ТЕХНОЛОГІЧНОГО ПРОЦЕСУ
2.1 Вибір раціонального складу машинно-тракторного агрегату
Задача вибору раціонального складу машинно-тракторного агрегату є багато варіантною. Із числа можливих варіантів складу машинно-тракторного агрегату потрібно сформувати вихідну множину альтернативних варіантів, які, в свою чергу, оцінюються відповідною множиною критеріїв. При обґрунтуванні множини критеріїв вважливо уникати наявності водному наборі величин із тісними функціональними чи кореляційними зв’язками, тобто – взаємозалежних критеріїв. Багатокритеріальну оцінку варіантів доцільно здійснювати по методу Парето. Суть методу полягає у виявленні варіантів, які домінують над іншими за прийнятими критеріями.
Вибираємо склад агрегату за такими критеріями: продуктивність W, питомі витрати палива на одиницю виконаної роботи g>га>, затрати сукупної не поновлюваної енергії E>нп> і собівартість години роботи технічного засобу С>тз>. Технічні характеристики агрегатів заносимо у таблицю 2.1.
Таблиця 2.1 - Технічні характеристики агрегатів
-
Агрегат
Номінальна ефективна
потужність
двигуна
Nен, кВт
Маса технічного
засобу Мтз, кг
Продуктивність за годину
основного часу
W0, га/год.
Питомі витрати палива
gen, г./кВт·год.
Трактора
С-г машини
Т-150К; РОУ-30
121,3
7600
2000
17,5
252
Т-150; РУН-15Б
110,4
7110
2000
8,4
252
ДТ-75; РОУ-30
74,3
6660
2000
15
252
Продуктивність технічного засобу:
,
га/год.,(2.1)
де τ>зм >= 0,7,
га/год.,
га/год.,
га/год.
Витрати палива на один гектар при номінальному завантаженні двигуна технічного засобу:
,
кг/га,(2.2)
деN>ен> - номінальна ефективна потужність двигуна, кВт;
g>ен> - питомі витрати палива двигуна, г./кВт·год.;
кг/га,
кг/га,
кг/га.
Затрати сукупної не поновлюваної енергії:
,
МДж/га,(2.3)
де α>n> – енергетичні еквіваленти витраченого палива, МДж/кг;
α>n >= 52,8 МДж/кг;
g>га> – витрати палива на одиницю роботи, кг/га;
α>мі >– енергетичні еквіваленти технологічних матеріалів, МДж/кг;
α>мі>=1,7;
g>мі> – витрати технологічних матеріалів, кг/га;
α>тр>, α>пр>, α>р> – енергетичні еквіваленти години роботи трактора, причепів, робочих машин, МДж/кг·год.;
α>тр> =0,0243 МДж/кг·год.;
α>р> =0,0580 МДж/кг·год.;
М>тр>, М>тр>, М>тр> – маса трактора причепів, робочих машин, кг;
α>і> – енергетичний еквівалент години праці персоналу МДж/люд.·год.;
α>і> =60,8 МДж/люд.·год.;
Ni – кількість працюючих і-тої категорії, люд.;
Ni =1 люд.;
МДж/га,
МДж/га,
МДж/га.
Собівартість години роботи технічного засобу:
,
грн./год.,(2.4)
де К – витрати на погашення кредиту, грн./год.;
З>б> – витрати на зберігання технічних засобів, грн./год.;
П – податок на технічні енергетичні засоби, грн./год.;
С>т> – страхові внески, грн./год.;
З>п> – витрати на оплату праці персоналу, грн./год.;
В>п> – вартість паливо мастильних матеріалів, грн./год.;
В>м> – вартість технологічних матеріалів, грн./год.;
В>то> – вартість технічного обслуговування, грн./год.;
А – амортизаційні відрахування, грн./год.:
,
грн./год., (2.5)
де Ц>н> – вартість нового технічного засобу, грн.;
Ц>к> – вартість технічного засобу в кінці експлуатації:
,
грн.,(2.6)
деЦ>мб> – Вартість металобрухту, грн./кг;
М>тз> – маса технічного засобу, кг;
Т>р> – строк служби технічного засобу, роки;
Т>з>> >– нормативне завантаження технічного засобу на протязі року, год.;
Технічні характеристики агрегатів заносимо у таблицю 2.2.
Таблиця 2.2 - Технічні характеристики агрегатів
-
Назва і марка технічного засобу
Цн,
грн.
,грн.
Тр,
роки
Тз, год.
А, грн./год.
1 варіант
Трактор Т-150К
138295
1140
10
1600
8,57
Роб. машина РОУ-30
15000
300
10
450
3,3
2 варіант
Трактор Т-150
128000
1066,5
10
1350
9,4
Роб. машина РУН-15Б
13000
300
10
450
2,8
3 варіант
Трактор ДТ-75
106380
999
10
1350
7,8
Роб. машина РОУ-30
15000
300
10
450
3,3
грн./год.,
грн./год.,
грн./год.
Витрати на погашення кредиту:
,
грн./год., (2.7)
де k – доля відрахувань на погашення кредиту (k=0,27…0,3);
Т-150К:
грн./год.,
РОУ-30:
грн./год.,
Т-150:
грн./год.,
РУН-15Б:
грн./год.,
ДТ-75:
грн./год.,
РОУ-30:
грн./год.
Витрати на зберігання технічних засобів:
,
грн./год.,
(2.8)
де а – доля вартості технічних засобів, яка витрачається на організацію зберігання (а=0,01);
Т-150К:
грн./год.,
РОУ-30:
грн./год.,
Т-150:
грн./год.,
РУН-15Б:
грн./год.,
ДТ-75:
грн./год.,
РОУ-30:
грн./год.
Податок на технічні засоби:
, грн./год., (2.9)
де
-
річний податок, грн. (трактори Т-150 – 200
грн.; МТЗ – 120 грн.; ДТ – 75 – 158 грн.)
грн.,
грн.,
грн.,
Витрати на оплату праці персоналу:
, грн./год.,(2.10)
де
- годинна тарифна ставка механізаторів
і обслуговуючого персоналу, грн./год.;
=
8 грн./год.,
=8
грн./год.,
=8
грн./год.
Вартість паливо мастильних матеріалів:
,
грн./год., (2.11)
де Ц>п> – ціна палива, грн./л (Ц>п>=6 грн./л);
γ>п> – питомий об’єм палива, л/кг (для дизельного – >п>=1,2 л/кг)
грн./год.,
грн./год.,
грн./год.
Вартість технічного обслуговування:
грн./год., (2.12)
де α>то >– норма річних відрахувань на технічне обслуговування в долях одиниці, грн./год.;
,
грн./год.,
грн./год.,
грн./год.,
грн./год.
Собівартість години роботи транспортного засобу:
грн./год.,
грн./год.,
грн./год.
Технічні характеристики агрегатів заносимо у таблицю 2.3.
Таблиця 2.3 - Технічні характеристики агрегатів
-
Назва і марка технічного засобу
Цн,
грн.
,грн.
Тр, роки
Тз,
год.
αто
Вто
1
2
3
4
5
7
8
1 варіант
Трактор Т-150К
138295
1140
10
1600
6
45,8
Роб. машина РОУ-30
15000
300
10
450
11
17,97
2 варіант
Трактор Т-150
128000
1066,5
10
1350
9,1
42,5
Роб.машина РУН-15Б
13000
300
10
450
11
12,1
3 варіант
Трактор ДТ-75
106380
999
10
1350
13,3
51,87
Роб. машина РОУ-30
15000
300
10
450
11
17,97
Розраховані дані множини Парето заносимо у таблицю 2.4.
Таблиця 2.4 - Формування множини Парето по розрахованим критеріям технічних засобів
-
Варіант
,
га/год.
,
кг/га
,
МДж/га
,
грн./год.1
12,25
2,49
160
328,26
2
5,88
4,7
59,45
295,7
3
10,5
1,78
126,23
238,83
Для виявлення домінуючого варіанта необхідно порівняти чисельні значення розрахованих критеріїв. Кращій варіант складу МТА повинен мати найкращі значення критеріїв
Для цього складаємо
нову таблицю і в колонку продуктивності
заносимо значення обернені до розрахованих,
тобто
.
Розраховані дані множини Парето заносимо у таблицю 2.5.
Для наочності процесу вибору застосовуємо графічний метод. Для цього відкладаємо на радіально розташованих шкалах значення критеріїв. Шкали будуємо таким чином, щоб покрашення критерію йшло до центру, з’єднуючи точки на шкалах для і-того варіанта, отримуємо багатокутник кращого варіанту.
Таблиця 2.5 - Формування множини Парето по розрахованим критеріям технічних засобів
-
Варіант

,
кг/га
,
МДж/га
,
грн./годПj
1
0,081
2,49
160
328,26
26472,69
2
0,17
4,7
59,45
295,7
8954,93
3
0,095
1,78
126,23
238,83
15197,5
В останню колонку таблиці заносимо значення площі багатокутників кожного варіанту, що відповідає значенням критеріїв.
,(2.13)
,
,
.
Кращому варіанту відповідає багатокутник з найменшим значенням площі П>j>.
Вибір раціонального складу машинно-тракторного агрегату по методу відстані до цілі потребує додаткових розрахунків, результати яких заносимо в таблицю 2.6.
Суть методу полягає в порівнянні критеріїв j-го варіанту з деяким ідеалізованим варіантом.
Малюнок графічного методу зображено на рисунку 1.1.

Рисунок 1.1- Малюнок графічного методу
Для ідеалізованого варіанту вибираємо кращі показники із всіх вище наведених варіантів і заносимо їх в останній рядок таблиці.
Розраховуємо площу ідеалізованого варіанту
В останню колонку таблиці заносимо узагальнений критерій відстані до цілі, який розраховується для кожного варіанта.
.
(2.14)
Критерії технічних засобів для вибору ідеалізованого варіанту складу МТА по методу відстані до цілі заносимо у таблицю 2.6.
Таблиця 2.6 - Критерії технічних засобів для вибору ідеалізованого варіанту складу МТА по методу відстані до цілі
-
Варіант

,
кг/га
,
МДж/га
,
грн./год.Пj
μ
1
0,081
2,49
160
328,26
26472,69
3,06
2
0,17
4,7
59,45
295,7
8954,93
1,04
3
0,095
1,78
126,23
238,83
15197,5
1,76
ідеал
0,081
1,78
59,45
238,83
8637,37
Порівнюємо значення μ>j> різних варіантів технічних засобів з ідеальним значенням μ>0> знаходимо остаточний кращій варіант, який має найменшу відстань до цілі [1-3].
Висновки: за результатами багатокритеріального аналізу кращій агрегат для заданих умов роботи: трактор Т-150, робоча машина РУН-15Б.
2.2 Організація внесення твердих органічних добрив роторними розкидачами
Обґрунтовуємо оптимальний склад агрегату і режим його роботи для заданих умов виконання технологічної операції. Вибираємо по технічним характеристикам марку трактора і робочої машини.
Трактор Т-150, робоча машина РУН-15Б.
Обґрунтування робочої швидкості виконуємо в такій послідовності:
розраховуємо робочу швидкість руху агрегату обумовлену потужністю двигуна:
,
км/год., (2.15)
де
- ефективна номінальна потужність
двигуна трактора, кВт;
=110,4
кВт;
- раціональне значення
ступеня використання ефективної
потужності двигуна (
=0,9);
- потужність, яка
передається на привід робочих органів
від ВВП трактора, кВт;
=25
кВт;
- ККД приводу ВВП
(
=0,94…0,96);
- ККД трансмісії
трактора (колісний -
=0,9;
гусеничний –
=0,86);
- коефіцієнт, що враховує
втрати на подолання буксування трактора,
%;
,
(2.16)
- буксування, %; (допустиме
буксування для гусеничних
тракторів – 3%; для колісних 4К4 – 12%; для колісних 4К2 – 16%)
.
- сумарний опір начіпного
агрегату:
,
кН,(2.17)
- тяговий опір подолання
підйому і переміщення начіпного агрегату:
,
кН, (2.18)
де
- вага трактора, кН;
=71,1кН;
- вага валкувача –
розкидача, кН;
=20
кН;
- коефіцієнт опору
кочення трактора;
=0,08;
- коефіцієнт, який
враховує величину довантаження ходової
системи трактора начіпними машинами
(
=1);
кН.
де
- опір зрушення купи добрив, кН;
,
кН, (2.19)
де
- прискорення сили земного тяжіння
(
=9,8
м/с2);
- коефіцієнт внутрішнього
тертя-ковзання перегною;
=0,5…1,0
(при більшій вологості значення
коефіцієнту нижчі);
- маса купи добрив, т.;
Кількість добрив у
купі (
)
залежить від вантажності транспортного
засобу.
Марка транспортного
засобу ЗИЛ-130, об’єм кузова
=6м3.
Вантажність транспортного засобу
,
т.,(2.20)
де
- об’ємна маса добрив, т./м3;
=0,75
т./м3
Вага купи
=
т.
(При купах масою 2…3т. розподілення органічних добрив виконується за один прохід агрегату, якщо маса купи 3…4т. – за два проходи: спочатку – формування валка, а потім – розкидання).
кН,
кН,
км/год.
По розрахункова ній
швидкості із тягової характеристики
трактора з урахуванням агрофону вибираємо
передачу на якій робоча швидкість матиме
найближче значення до розрахованої і
записуємо тягове зусилля (
кН)
Розраховуємо приведений опір тягово-привідної машини, який виникає при роботі на вибраній передачі.
,
кН,(2.21)
де
- додаткове зусилля, яке виникає в
результаті передачі потужності на
привід робочих органів розкидача від
ВВП трактора:
,
кН,(2.22)
де
- пропускна здатність робочої машини,
т/год;
=364
т./год.;
- ширина внесення
добрив, м
=15м;
кН.
=30,89+14,95=45,84
кН.
Оцінка правильності вибору робочої швидкості агрегату виконується при визначенні коефіцієнта використання тягового зусилля трактора:
,(2.23)
.
Коефіцієнт використання
тягового зусилля може мати значення
0,8…0,96. В тому випадку, коли значення
коефіцієнта (
)
перевищують допустимі, то процес
розподілення добрив виконують в два
етапи. За першим проходом агрегат формує
валок (при цьому роторний розкидач
піднято в транспортне положення), а за
другим – виконує процес розкидання
добрив роторним робочим органом із
сформованого валка.
Перераховуємо значення робочої швидкості по етапах:
формування валка
,
км/год.,(2.24)
км/год.
- розкидання добрив
,
км/год.,(2.25)
км/год.
В результаті розрахунків
укомплектовано агрегат у складі трактора
Т-150, робочої машини РУН-15Б, який виконує
технологічну операцію на І передачі,
=7,2
км/год.
2.3 Виконання розрахунків, пов’язаних із підготовкою поля
Купи розташовують рядами в шаховому порядку. Відстань між рядами залежить від ширини захвату розкидача. Відстань між купами в ряду в залежності від норми внесення і маси добрив у купі розраховується по формулі:
,
м, (2.26)
де
- маса купи добрив, т.;
м.
Схему поля приводимо на рисунку 1.2.

Рисунок 1.2 - Схема поля
Оцінка досконалості прийнятого способу руху і виду поворотів виконується при визначені коефіцієнту використання довжини гону:
,
(2.27)
де
- довжина гону, м;
- довжина холостого
ходу, м; при безпетлевому повороті по
колу
;
- довжина петлі повороту,
м;
,
м,(2.28)
де
- коефіцієнт пропорційності;
=3,5;
- радіус повороту, м.;
15м;
=
м.
.
Виконуємо розрахунки режиму роботи агрегату із визначенням складових елементів часу зміни:
,
год., (2.29)
де
- тривалість зміни (
=10),
год.;
- тривалість чистої
(корисної) роботи за зміну, год.;
- час на холості повороти
агрегату протягом зміни, год.;
- час на
організаційно-технологічне обслуговування;
(технологічне регулювання в процесі роботи, усунення несправностей, підтягування кріплення, очищення робочих органів, перевірку якості роботи і т.ін.);
=0,75
год.;
- підготовчо-заключний
час (
=0,08
),
год.;
- час на відпочинок та
особисті потреби (
=0,048
),
год.;
Сума (
+
)=
- час технологічного руху, а сума
(
+
+
)=
- час зупинок.
год.
Коефіцієнт використання часу руху
,(2.30)
Із співвідношення
знаходимо залежності по визначенню
і
:
- тривалість чистої (корисної роботи за зміну:
,
год., (2.31)
- час на холості повороти, заїзди, переїзди:
,
год., (2.32)
Для розрахунку
необхідно враховувати, що швидкість
повороту
(
)
може мати такі значення:
-
=
при
підставці його у формулу, маємо:
=
=0,96;
-
- ,, - ,, - маємо:
,

.
,

.
,
год.
год.
Оцінка ступеня використання часу зміни на виконання корисної роботи визначається при розрахунку коефіцієнту:
,(2.33)
.
Розраховуємо продуктивність агрегату за годину змінного часу.
,
га/год., (2.34)
га/год.
Визначаємо виробіток агрегату за зміну:
,
га, (2.35)
га.
Виконуємо розрахунки по визначенню експлуатаційних витрат.
Розрахувати витрати пального на одиницю виробітку тягово-привідного агрегату:
,
кг/га, (2.36)
де
,
,
- витрати палива відповідно при робочому
ході, на поворотах, зупинках:
=
24 кг/год
=12
кг/год
=2,2
кг/год
кг/га.
Розраховуємо витрати праці на одиницю виконаної роботи:
,
люд.-год./га,(2.37)
де
- кількість працівників, що обслуговують
агрегат,
=1;
люд.-год./га.
Розраховуємо прямі витрати енергії палива:
,
Дж/га,(2.38)
де
- питома теплота згорання палива, Дж/кг:
(дизельне паливо –
Дж/кг; бензин -
Дж/кг).
Дж/га.
Якщо врахувати, що 1
кВт·год. =
Дж,
то повну питому енергоємність можна
виразити в кВт·год./га.
Для забезпечення системної цілісності комплексу машин для внесення добрив і максимального завантаження всіх його ланок необхідно виконати умову поточності технологічного процесу:
,
(2.39)
де
,
- продуктивність агрегатів, відповідно,
для внесення добрив і заробки їх у грунт;
,
- відповідно, кількість агрегатів для
внесення добрив і заробки їх у грунт
[4].
Кількість агрегатів
для заробки добрив у грунт (
):
,(2.40)
;
приймаємо 7 агрегатів.
3. РОЗРАХУНОК ТРАНСПОРТНИХ ПРОЦЕСІВ
3.1 Розрахунок транспортних процесів при внесенні органічних добрив
Транспортування – ГАЗ-53 (вантажопідйомність – 3500 кг). Відстань від гноєсховища до поля – 3 км Швидкість по полю: з вантажем – 5 км/год.; без вантажу – 10 км/год.
Дорожні умови: поле, польова дорога, профільована дорога Середня швидкість: на польовій – 10 км/год.;






















t
>nn>
t>м>t>п. дор>t>м> Т>п. пр.
д>Т>м>Т>пер.п>Т>в>
ВУО Транспортні зв’язки ВПО
Т>м>Т>п. дор> Т>ппр> Т>м> Т>пер.п> Т>м >Т>з.б> Т>тех> Т>разгр>
на профільованій – 25 км/год.;
,
год.,(3.1)
де
- час в пункті погрузки, год.;
– час навантаження автомобіля,
год.;
–
допоміжний час.
,
год., (3.2)
де
- вантажопідйомність автомобіля, т.;
- коефіцієнт заповнення кузова
автомобіля;
- продуктивність навантажувача
ГГЗА-1,0 .
год.
,
год., (3.3)
де
- час маневру до ВУО, год.;
- коефіцієнт маневру.
год.
год.
Транспортні зв’язки
,
год., (3.4)
де
- час руху на лінії, год.;
- час руху автомобіля з ВУО до
ВПО і назад, год.
,
год., (3.5)
де
,
- відстань перевезень на польовій та
профільованій дорозі, км;
,
-
швидкість на польовій та профільованій
дорозі, км/год.
год.
год.
Робота в ВПО:
,
год.,(3.6)
де
-
час в пункті розвантаження, год.;
-
час роботи, год.;
,
год.,(3.7)
де
-
час на підйом кузова, год.;
- час на опускання кузова, год.
год.
год.
Час обороту транспортного засобу:
,
год., (3.8)
год.
Кількість транспортних засобів:
,(3.9)
де
- кількість автомобілів;
- продуктивність навантажувача.

Отже один навантажувач може обслуговувати 26 машин. Приймаємо 4 машини.
Час очікування транспортного засобу навантажувачем:
,
год., (3.10)
де
- кількість навантажувачів.
год.
Навантажувач очікує транспортний засіб 0,574 год., тобто кожен з чотирьох технічних засобів він очікує 0,1435 год.
4. АНАЛІЗ ТЕХНІЧНИХ СИСТЕМ
4.1 Побудова структурної схеми технічного комплексу для оцінки його безвідмовності і надійності
Продуктивність Українського сільськогосподарського сектору може бути значним чином підвищена, що в свою чергу може призвести до покращення економіки виробництва.
Виробництво зернових культур може бути у 3-4 рази вищім за рахунок правильного виробництва, зберігання та застосування найбільш екологічного безпечного органічного добрива – гною.
В одній тоні якого міститься 9-12 кг поживних речовин, з них 4-5 кг азоту, 1-2 кг фосфору і 5-6 кг калію. Якщо такі цінні добривні ресурси тваринного гною використовувати краще, це не тільки надасть переваг економічному стану сільського господарства, але також збереже навколишнє середовище від забруднення (особливо забруднення азотом через випаровування та проникнення у стічні води).
Призначення кожної ланки технічного комплексу і порядок їх взаємодії.
Підготовча ланка призначена для підготування органічних добрив. За нею йде погрузочна ланка, яка навантажує добрива у транспорт. Транспортна ланка транспортує добрива безпосередньо на поле, де укладає їх у купи. Ланка виконання основної операції розкидає добрива по поверхні поля. І ланка заробки, яка зароблює добрива у ґрунт.
Приводимо склад кожної ланки комплексу:
Підготовча ланка: МТЗ-80; 2-ПТС-4.
Погрузочна ланка: Т-150К з ковшем 3м3.
Транспортна ланка: Т-150К; 9-ПТС; ЗИЛ; КАМАЗ.
Виконання основної операції: Т-150; РУН-15Б.
Заробка добрив у ґрунт: Т-150; ПЛН-6-35.
Складаємо структурну схему технічного комплексу.
Технічний комплекс машин для виконання технологічної операції є набір ланок, які мають змогу виконувати її при послідовному, паралельному, або послідовно-паралельному з’єднанні. Кожна ланка виконує визначену долю технологічного процесу, в складі якої є набір спеціальних машин, які також можуть бути зібрані у послідовні, паралельні, або паралельно – послідовні схеми.
Приводимо технічний комплекс для внесення органічних добрив, який в своєму складі має ланку підготовки добрив, навантаження добрив в агрегат, ланку транспортування добрив, ланку розподілу добрив по поверхні поля, і ланку заробки добрив у грунт.
Схему взаємодії ланок технічного комплексу для внесення органічних добрив приводимо на рисунку 4.1.

Рисунок 4.1 - Схема взаємодії ланок технічного комплексу для внесення органічних добрив
4.2 Визначення показників безвідмовності технічного комплексу
Згідно із структурною схемою технічного комплексу складаємо таблицю, в якій приводимо марочний і кількісний склад машин, які входять в агрегати і ланки, (колонки 1, 2, 3), а також підготовлюємо колонки для показників безвідмовності, які надалі будуть розраховуватися. і технологічні характеристики машин комплексу заносимо у таблицю 4.1.
Таблиця 4.1 - Склад і технологічні характеристики машин комплексу
-
Ланки технічного комплексу
Марка машини, знаряддя
Кількість, шт.
Наробіток на відмову
Т0, год
Інтенсивність відмов, м, год-1
Імовірність безвідмовної роботи
машини,
Рм
агрегату,
Ра
ланки,
Рл
1
2
3
4
5
6
7
8
Виконання основної
операції
Т-150
1
82
0,012
0,6188
0,3263
0,3263
РУН-15Б
1
62
0,016
0,5273
Визначаємо показники безвідмовності всіх складових технічного комплексу (тракторів, зчіпок, робочих машин, самохідних агрегатів і ланок).
Інтенсивність відмов при роботі тракторів, зчіпок, робочих машин, самохідних агрегатів, год-1
,(4.1)

.
Розраховані значення
всіх складових технічного комплексу
заносимо в колонку 5 таблиці 4.1.
Нормативний час тривалості виконання технологічної операції.
,
год.,(4.2)
год.
Імовірність безвідмовної роботи тракторів, зчіпок, робочих машин, самохідних агрегатів.
.(4.3)
Виконаємо заміну виразу
на (-х) тоді залежність (4.3) матиме вид:
.(4.4)
Чисельні значення імовірності
визначаємо із таблиці і заносимо в
колонку 6 таблицю 4.1.
Імовірність безвідмовної роботи агрегатів
,(4.5)
.
де
- імовірність безвідмовної роботи
трактора, зчіпки, робочої машини (із
колонки 6 таблиці 4.1);
і – кількість різнотипних машин в агрегаті.
Розраховані значення імовірності
заносимо в колонку 7 таблиці 4.1.
Імовірність безвідмовної роботи ланки:
- ланка складається із агрегатів з однотипними машинами, які паралельно виконують технологічну операцію
.(4.6)
- ланка складається із агрегатів з різнотипними машинами, які послідовно виконують технологічну операцію
.(4.7)
Результати розрахунків по залежностях (4.6) і (4.7) заносимо в колонку 8 таблиці 4.1.
Визначаємо середній час безвідмовної роботи ланки
,(4.8)
де
-
логарифм
при
основі е це показник степені х,
тобто:
.(4.9)
Чисельні значення степені х визначаємо по таблиці.
По розрахованій величині часу
можна зробити висновок про достатність
середнього часу безвідмовної роботи
ланки для виконання заданого обсягу
роботи.
Коли
<
то
ланка заданий обсяг роботи за
годин не виконає. В такому випадку
необхідно проаналізувати розраховані
значення імовірності безвідмовної
роботи (колонка 6) всіх машин і виявити
показники безвідмовності, які не
задовольняють виконання технологічного
процесу по агротехнічним строкам. Тоді
необхідно підвищити імовірність
безвідмовної роботи менш надійної
складової ланки за рахунок введення в
агрегат резервної машини.
4.3 Визначення показників надійності технічного комплексу
Згідно із структурною схемою технічного комплексу складаємо таблицю, в якій приводимо марочний і кількісний склад машин, які входять в агрегати і ланки, (колонки 1, 2, 3), а також підготовлюємо колонки для показників надійності, які надалі будуть розраховуватися. Склад і технологічні характеристики машин комплексу заносимо у таблицю 4.2.
Таблиця 4.2 - Склад і технологічні характеристики машин комплексу
-
Ланки технічного комплексу
Марка машини,
знаряддя
Кількість, шт..
Наробіток на відмову Т0, год.
Час відновлення
Тв, год.
Продуктивність
Коефіцієнт
готовності
Розрахункова Wa
Фактична
Wаф
Машин КГм
Агрегатів Кга
1
2
3
4
5
6
7
8
9
Виконання основної
операції
Т-150
1
82
5,6
74
66
0,96
0,9
РУН-15Б
1
62
2,3
Визначаємо показники надійності всіх складових технічного комплексу (тракторів, зчіпок, робочих машин, агрегатів і ланок).
Коефіцієнт готовності тракторів, зчіпок, робочих машин, самохідних агрегатів.
.(4.10)
.
Розраховані значення
заносимо в колонку 8 таблиці 4.2.
Коефіцієнт готовності агрегатів
.(4.11)
.
де N – кількість складових елементів агрегату (трактор, зчіпка, робочі машини, знаряддя і т.ін.).
формула (4.11) може мати вид:
.
Розраховані значення
заносимо
в колонку 9 таблиці 4.2.
Машини, які входять до складу агрегатів, можуть виходити із ладу в процесі виконання технологічної операції, що призводить до простоїв агрегатів і зниження їх продуктивності.
Фактична продуктивність агрегатів з урахуванням їх надійності:
,
(4.12)
.
Чисельні значення
заносимо в колонку 7 таблиці 4.2.
Показники надійності ланки, яка складається із агрегатів для виконання основної технологічної операції, при умові, що всі агрегати одинакові і працюють автономно, тобто включені в ланку паралельно.
В даному випадку коефіцієнт готовності ланки буде дорівнювати коефіцієнту готовності агрегату.
.
(4.13)
Виробіток основної ланки за нормативний час виконання технологічної операції без урахування надійності машин:
,
га,(4.14)
га.
де
- нормативний час технологічного процесу,
год.;
k – кількість агрегатів в ланці;
Фактичний виробіток основної ланки з урахуванням надійності машин, га
.(4.15)
Коли фактичний виробіток ланки
за нормативний час
буде
більший, або дорівнювати
,
то приймають, що кількість агрегатів в
ланці і їх надійність достатні для
своєчасного виконання запланованого
обсягу роботи.
В тому випадку, коли
<
,
то необхідно підвищити надійність або
продуктивність ланки. Для цього необхідно:
- проаналізувати розраховані значення коефіцієнту готовності машин, які входять до складу агрегату (колонка 8) і виявити найменш надійну машину;
- для підвищення надійності ланки ввести в агрегат резервну машину (трактор, зчіпка, робоча машина);
- перерахувати показники надійності по формулах (4.10) і (4.11);
- розрахувати фактичну продуктивність агрегату по формулі (4.12);
- визначити фактичний виробіток основної ланки по формулі (4.15)
- порівняти фактичний виробіток із виробітком, який розраховано без урахування надійності машин (формула 4.14) і зробити висновок про надійність нової ланки.
4.4 Визначення необхідної кількості запасних елементів сільськогосподарських машин (вузлів чи деталей) для безвідмовної роботи технічного комплексу
Складаємо таблицю, в якій приводимо перелік запасних елементів сільськогосподарських машин (вузлів чи деталей) і їх кількість, а також підготовлюємо колонки для показників безвідмовної роботи с-г машин, які надалі будуть розраховуватися. Перелік запасних елементів с-г машин і показники їх робото здатності заносимо у таблицю 4.3.
Визначаємо показники безвідмовної роботи запасних елементів сільськогосподарських машин (вузлів чи деталей).
Інтенсивність потоку відмов, год-1:
,(4.15)
Таблиця 4.3 - Перелік запасних елементів с-г машин і показники їх роботоздатності
-
Елементи машин
Кількість, шт
Наробіток на
вімову Т0, год.
Час відновлення Тв, год.
Інтенсивність
Імовірність
Кількість запасних елементів m
Потоку відмов
Потоку відновлення в
Безвідмовної роботи Рел
Відмови q
1
2
3
4
5
6
7
8
9
Шланги
4
90
2,3
0,011
0,43
0,97
0,03
1
Гідроциліндри
2
90
2,3
0,011
0,43
0,97
0,03
1
Ланцюги
2
62
2,3
0,016
0,43
0,96
0,04
1
Паси
2
62
2,3
0,016
0,43
0,96
0,04
1
.
де і – елементи машин (вузли, деталі), які працюють одночасно і можуть виходити з ладу при виконанні роботи;
n – кількість однойменних елементів машин (вузлів, деталей).
Розраховані значення
заносимо
в колонку 5 таблиці 4.3.
Інтенсивність потоку відновлення, год-1:
,(4.16)
.
Розраховані значення
заносимо
в колонку 6 таблиці 4.3.
Імовірність безвідмовної роботи (статистично визначається відношенням середнього наробітку на відмову до сумарного періоду, який включає наробіток на відмову і час відновлення, що імовірно може мати місце на протязі нормативного часу тривалості виконання технологічної операції)
,(4.17)
.
Розраховані значення
заносимо
в колонку 7 таблиці 4.3.
Імовірність відмови
,(4.18)
,
Розраховані значення
заносимо
в колонку 8 таблиці 4.3.
Визначаємо потребу у запасних вузлах чи деталях (m) для забезпечення безвідмовної роботи машин на період виконання технологічного процесу.
Для цього використовують умову, що імовірність того, що кількість відмов буде меншою від кількості запасних і відновлених вузлів чи деталей за цей період є функцією нормального закону розподілу цієї величини.
Для розв’язання нашої задачі
функцією буде імовірність безвідмовної
роботи
,
аргументом -
,
тоді функціональна залежність матиме такий вид:
.
(4.19)
Значення функції нормального закону табульовані і приведені в таблиці.
Задаємо значення
(із
колонки 7 таблиці 4.3) а в таблиці додатків
знаходимо значення аргументу Z.
Приклад: при
=0,9
маємо - Z=
=1,28.
Звідси можна визначити кількість запасних елементів (вузлів чи деталей)
,
.
приймаємо m=1
Розраховані значення
заносимо
в колонку 9 таблиці 4.3.
Зменшити потребу у запасних елементах можна за рахунок кращого технічного обслуговування і відповідної технологічної наладки агрегатів [5].
5. КОНСТРУКТОРСЬКА РОЗРОБКА
5.1 Властивості твердих добрив
Фізико-механічні властивості добрив визначають ступінь механізації робіт по їх зберіганню, переробці, завантажуванні, транспортуванні і внесенню. Важливим показником якості добрив є вміст діючої речовини. По його значенню визначають дози внесення добрив під різноманітні сільськогосподарські культури.
Тверді туки поставляють у вигляді гранул, кристалів чешуєк і порошків. Фізичний стан добрив визначає типи технологічних і транспортних машин, їх робочих органів, а також види сховищ. Для пиловидних добрив використовують закриті ємкості машин і пневматичні робочі органи, для гранульованих відкриті кузова і відцентрові розкидаючи диски. Зберігають гранульовані і кристалічні туки під навісами, пиловидні - в закритих спорудах. Гігроскопічність добрив оказує вплив на їх злежуваність, кут відкосу, розсіюванність, скленоутворення. Гігроскопічність і злежуваність визначають період накопичення туків, тривалість і спосіб їх зберігання, вид упаковки, форму і конструктивне виконання ємкостей і робочих органів машин. Високогігроскопічні і злежуючі добрива випускають в тарі, зберігають короткий проміжок часу тільки під навісами або у закритих складах. Для роботи з таким продуктом в кузовах машин монтують різноманітні ворошилки і склепоруйнівники. Кут природного відкосу і об'ємна маса регламентують форму і параметри ковшів і кузовів машин, а також ступінь заповнення складських ємкостей.
Вологість добрив визначає вибір типу робочих органів машин і форму їх кузовів. Чим вище цей показник, тим трудніше вносити добрива в ґрунт. Такий продукт забиває транспортні системи, налипає на робочі органи, порушує чи припиняє технологічні процеси.
5.2 Будова та робота валкувача
Розкидач органічних добрив приводимо на рисунку 5.1.

Рисунок 5.1 - Валкувач органічних добрив
При такій конструкції валкувача перед дозуючим пристроєм 1 не з'являється переущільнена зона добрив. Відсутність переущільнених зон сприяє рівномірному та постійному протіканню процесу валкування та підвищує експлуатаційну технологічність операцій.
Для більш рівномірного протікання добрив у зоні дозуючого вікна 4 встановлюється крильчатка 5 з приводом від опірного колеса 6, як показано на рисунку.
Зміщення формуючих щитів 2, 3 відповідно вісі трактора дає змогу виключити склепоутворення та переущільнення зон, які виникають перед активним дозуючим пристроєм 1.
Проведені польові випробування валкувача зі зміщеними формуючими щитами показали, що при ширині дозуючого вікна, рівній 0,5 м, формування валка на напівперепрілому навозі проходить стійко та рівномірно, а склепоутворення відсутнє.
5.3 Розрахунок деталі на міцність
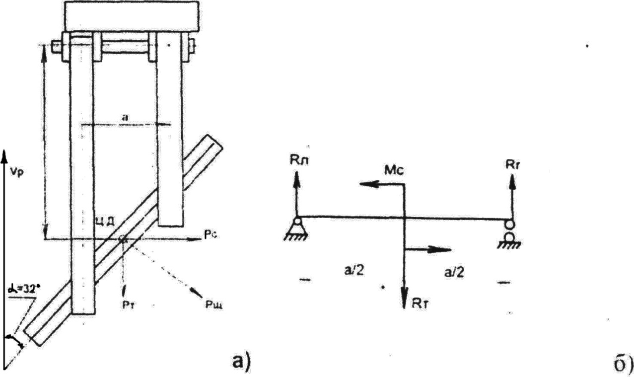
Одним з найбільш навантажених елементів конструкції, показаної на рисунку 5.2, являється палець поворотний 2, за допомогою якого валкувач з’єднується з навіскою трактора. Палець поворотний, що випробує деформацію зрізу у чотирьох перетинах знаходиться між провушинами рами. Причому, зусилля, що виникають у лівій і правій парі провушин будуть різними.
Розглянемо, у результаті дії яких зовнішніх зусиль виникають руйнування навантаження і зробимо розрахунок пальця поворотного на міцність.
Кріплення рами валкувача до навіски трактора приводимо на рисунку 5.2.

Рисунок 5.2 - Кріплення рами валкувача до навіски трактора
Розрахункову схему площини зрізу приводимо на рисунку 5.3.

Рисунок 5.3 Розрахункова схема площини зрізу
Схему опори приводимо на рисунку 5.4.

Рисунок 5.4 Схема опори
При русі агрегату, переміщувана щитом маса чинить на нього тиск Рисунок 5.2. Це зусилля може бути розкладено на дві складові, одна з яких спрямована з вектором швидкості руху агрегату (Р>т>), а друга направлена у поперечному навпрямці (Р>с>). Аналіз природи цих двох зусиль дає можливість визначити їх величину.
При русі агрегату в процесі роботи трактор переборює зусилля Р>т>. Зневажаючи тертям переміщуваною маси о робочу поверхню, будемо вважати, що величина Р>т> не перевищує 10% від величини крюкового зусилля трактора Р>кр>, яке на першій передачі складає 41,1 кН (Пропускна здатність барабана не дозволяє працювати при швидкості V>р>>7,75 км/год.)
Величина опору переміщення щита у продольному напрямі складає:
,
кН, (5.1)
кН.
Тоді зусилля робочої маси на щит буде дорівнювати:
,
кН, (5.2)
кН.
Зусилля, що зрушує щит у напрямку поперечному вектору швидкості руху агрегату буде дорівнювати:
,
кН,(5.3)
кН.
Таким чином, на палець поворотний
зі сторони щита діє два вида зусилля:
сила
і згинаючий момент
,
зображені на розрахунковій схемі рис.
5.3. їх дія призводить до виникнення
реакцій
й
,
дія яких фактично і може призвести до
руйнування пальця. Припускаючи, що рама
щита представляє собою абсолютно жорстку
конструкцію і враховуючи відстань від
центра тиску маси до осі пальця
мм, визначаємо розмір згинаючого моменту.
,
кН·м,(5.4)
кН·м.
Для визначення величини реакцій
і
складемо рівняння статики. Сума моментів
зовнішніх сил відносно лівої опори
повинна дорівнювати нулю.
,
(5.5)
звідси:
,
кН,
кН.
Таким чином, реакція правої опори
спрямована з силою
і
дорівнює по величині 16 кН Записав суму
моментів відносно правої опори і
прирівняв її рівною 0 визначимо величину
реакції лівої опори:
,(5.6)
,
кН,
кН.
Таким чином, враховуючи конструктивну еквівалентність лівої і правої опор, можна стверджувати, що з точки зору міцності найбільш небезпечною являється ліва опора, зусилля на якої складає 20,24 кН Виконаємо розрахунок мінімального діаметру пальця поворотного, який витримає таке навантаження.
Руйнування пальця поворотного в опорі може статися у результаті зрізу по площинам, що лежать між провушинами і стойками рами щита
(Рисунок 5.3). Як відомо, умова міцності при розрахунку на зріз має вигляд:
.
де
- сила зрізу, кН;
- площа зрізу, м2;
- допустиме граничне напруження
у розглянутому випадку у якості руйнівного
навантаження приймається величина
=20,24
кН,
=120мПа.
(для конструкційних сталей). Враховуючи
наявність двох площин зрізу в кожної з
опор, мінімально допустима площа
поперечного перетину пальцю буде
визначатися залежністю:
,
м2,(5.7)
мм2.
Таким чином допустимий діаметр пальця дорівнює:
,
мм, (5.8)
мм.
Із конструктивних розумінь і з
ціллю забезпечення необхідного запасу
міцності, при розробці конструкції було
прийнято значення діаметра пальця
=40
мм.
6. ОХОРОНА ПРАЦІ
Під час завантаження, транспортування, подрібнення, змішування і внесення у ґрунт будь-яких добрив треба суворо додержувати правил техніки безпеки. Не можна допускати до роботи на машинах осіб які не пройшли інструктажу з техніки безпеки, а також додаткового інструктажу про поводженням з добривами різних видів.
Щоб уникнути нещасних випадків і поломок, мащення машин, регулювання робочих органів і підтягування кріплень слід проводити лише після зупинки машини і двигуна трактора.
Виходити з кабіни і залишати трактор працюючим з завантажувачами, дозволяється лише при опущеному на землю ковші. Під час роботи не можна підходити до навантажувачів з боку робочих органів, стояти на штабелі добрив, під грейфером, ковшем або транспортером навантажувача.
Забороняється переїздити навантажувачем з вантажем у грейфері або на гаку, працювати без опорних домкратів і тоді, коли ширина колії трактора або шасі менше ніж 1800мм. Під час виконання навантажувальних робіт грейферним навантажувачем задні колеса трактора або шасі слід загальмовувати. Не можна навантажувачами відривати від землі добрива, що змерзлися - ці добрива попереду треба розпушити. Під час роботи навантажувачів фронтально-перекидного типу особливо обережно слід розвантажувати ківш, прагнути до того, щоб висота розвантаження була мінімальна порівняно до тієї, яка допускається транспортними засобами. Не можна розвантажувати ківш навантажувача, якщо поблизу знаходяться люди. Забороняється піднімати навантажувачем людей. Не можна підчас роботи перекидним способом висовуватися з кабіни. Не дозволяється змащувати деталі при піднятому ковші і розвертати машину, якщо вантаж проходитиме над людьми.
Забороняється перекидним способом вантажити крупно кускові добрива і вапно.
Перед пуском двигуна трактора або шасі важелі гідророзподільника треба встановити в нейтральне положення. Якщо у з'єднаннях вузлів гідросистеми буде підтікання масла, треба перестати користуватися гідросистемою машини до усунення несправності. Неможна навантажувачами піднімати вантажі, вага яких перевищує зазначену в їх технічних характеристиках. Під час переїздів слід стежити за тим, щоб не допускати пошкоджень дротів електропередач і поломок вузлів навантажувача, його ківш повинен бути у транспортному положенні.
Під час роботи навантажувачів і машин для подрібнення і змішування добрив (особливо курних) обслуговуючий персонал повинен користуватися захисними окулярами, респіраторами і марлевими пов'язками.
Робітників, які працюють на навантажувачах, потрібно забезпечувати спецодягом. Працюючи з автомобільними і тракторними самоскидними причепами, не можна включати гідроциліндр підйомного механізму платформи, коли закриті або відкриті всі защіпки її основи, піднімати навантажену платформу із закритим бортом, а також відкривати защіпки борта при піднятій платформі.
Працювати з причепом можна лише при підключених гальмовій системі і системі електрообладнання.
Забороняється перевозити людей у кузові причепа. Перед виїздом у поле треба перевірити положення фіксаторів платформи.
Плавно, без ривків рушати з місця. Всі передавальні механізми повинні бути закриті захисними щитками. Забороняється перевищувати встановлену швидкість руху, перебувати на розкидачах під час роботи і транспортування.
6.1 Вимоги по техніці безпеки до тракторів та самохідних машин
Трактори та самохідні машини повинні бути зручними і безпечними при застосуванні і технічному обслуговуванні. Усі машини повинні мати безпечний доступ на робоче місце. Усі параметри мікроклімату мають відповідати санітарним нормам. Стандартами нормуються зусилля, що прикладаються до органів керування машинами. Усі сільськогосподарські машини не повинні забруднювати навколишнього середовища шкідливими виходами, бути джерелом пожеж і вибухів, а матеріали, які застосовують при експлуатації і і ТО, мають бути безпечними і нешкідливими для людей.
Спеціальними правилами безпеки передбачені вимоги до сидінь, електрообладнання, начіпних та причіпних пристроїв, робочих органів тощо.
До роботи допускаються лише технічно справні машини і знаряддя, що повністю відповідають вимогам безпеки. Нові, відремонтовані, а також машини, що тривалий час на працювали, допускають до роботи лише після їх обкатки і ретельної перевірки роботи всіх органів [10].
6.2 Безпека праці при роботі на агрегатах
Комплектує машинно-тракторний агрегат тракторист-машиніст, при потребі, за допомогою допоміжних робітників під обов’язковим контролем бригадира, механіка або агронома. Довільна заміна машин у складеному агрегаті без дозволу цих осіб не допускається.
До роботи допускаються фізично здорові, навчені за спеціальною програмою і конструктовані (за ГОСТ 12.0.004 – 90) механізатори. Перед виконанням польових робіт поле спочатку оглядає агроном (власник). Після цього його підготовляють: видаляють велике каміння, засипають великі рови, яри, ями та інші перешкоди, а ті що неможливо усунути, позначають віхами, табличками з попереджувальними надписами. Після цього поле розмічають відповідно до операційної карти. Якщо працюватиме група агрегатів, то обов’язково вибирають, обладнують і помічають місце для відпочинку.
На місце роботи агрегатів не допускають сторонніх осіб, які не мають відношення до технологічного процесу.
На ділянках полів і доріг, над якими проходять повітряні лінії електропередач, робота і проїзд машин дозволяється в тому випадку, якщо відстань від найвищої точки машини або вантажу на транспортних засобах до нижчого проводу лінії електропередач не менша за величин, приведених в таблиці 6.1.
Таблиця 6.1- Найменші допустимі відстані від найвищої точки машини або вантажу на транспортних засобах до нижчого проводу лінії електропередач
-
Напруга лінії електропередач, кВ
До 1
1 - 20
35 - 110
154
220
330 - 500
Відстань по горизонталі, м
1,5
2
4
5
6
9
Відстань по вертикалі, м
1
2
3
4
5
5 - 6
6.3 Пожежна безпека
Джерелами загоряння найчастіше бувають іскри випускних систем двигунів внутрішнього згоряння, необережне поводження з вогнем людей, які в цей час перебувають на полі.
Палити в зоні технологічного процесу дозволяється лише у спеціально відведених і позначених місцях.
Під час роботи, уважно стежать, щоб не протікало паливо і мастильні матеріали, не виникали іскри в системах електрообладнання, клеми акумуляторів були закриті ковпаками, а самі акумулятори – кришками.
Тимчасові майданчики для стоянки тракторів і комбайнів повинні бути очищені від сторонніх предметів, оборані смугою шириною 4м і розміщені на відстані не менш як 100м від будівель, токів і полів.
Наявність засобів пожежогасіння. Перевіряти справність електрообладнання трактора, впевнитися що воно забезпечує нормальну роботу стартера, приладів освітлення, сигналізації та контрольних приладів, виключає можливість іскроутворення та втрати струму з проводів і клем. Для усунення механічного пошкодження проводки необхідно зачищати її від залишків мастил і пального, ізолювати від нагрітих частин двигуна. Акумуляторна батарея повинна надійно закріплятися і мати кришку. Клеми генератора стартера повинні мати ізолюючі ковпачки, перевіряти працездатність запобіжників. Перед заправкою агрегатів необхідно очищувати паливний бак від пилу, бруду та поживних решток; перевіряти справність іскрогасників випускної труби двигуна, металевих щитків на колекторі випускної та всмоктувальних труб.
Забороняється використовувати пожежний інвентар не за призначенням, завішувати його одягом, що заважає швидкому доступу у аварійних ситуаціях. Під час заправки пально-мастильними матеріалами необхідно протилежного боку від пункту роздачі. Перед початком заправки відгвинчування пробок бака проводити повільно без ривків з використанням спеціальних ключів. Для запобігання розливу пального заправку проводити лише за допомогою насоса та шланга через лійку з мідною сіткою.
ВИСНОВКИ
Виходячи з теми дипломного проекту: "Удосконалення машиновикористання при внесенні твердих органічних добрив в умовах Філії «Надія» ДП «Агрофірма «Шахтар» Слов’янського району Донецької області" ми можемо сказати, що з вище приведених розрахунків на полі площею 150 га довжиною гона 840м, при операції внесення твердих органічних добрив Н>од>=20 т/га було підібрано склад машини за допомогою якого ми виконували дану технологічну операцію агрегатами Т-150 РУН-15Б, та навантажувачем Т-150К з ковшом 3 м3, та агрегатом для заробки добрив у грунт Т-150 ПЛН-6-35. Для забезпечення виконання необхідного об'єму робіт необхідно мати в наявності запасні частини, а потреби в резервному агрегаті немає. Також в дипломному проекті розроблені необхідні рекомендації з охорони праці.
СПИСОК ВИКОРИСТАНИХ ДЖЕРЕЛ
Довідник з машиновикористання в землеробстві /За ред В.І. Пастухова.- Харків: Веста. - 2001, -347 с.
Машиновикористання в землеробстві/ В. Ю. Ільченка і Ю.П. Нагірного. – К.: Урожай, 1996-282с.
Робочий зошит №3 для виконання лабораторних робіт з дисципліни «Машиновикористання в землеробстві»/П.А. Джолос, А.Г. Чигрин, В.І. Пастухов. – ХНТУСГ, 2008.
Робочий зошит №5 для виконання лабораторних робіт з дисципліни «Машиновикористання в землеробстві»/П.А. Джолос, А.Г. Чигрин, В.І. Пастухов. – ХНТУСГ, 2007.
Робочий зошит №6 для виконання лабораторних робіт з дисципліни «Машиновикористання в землеробстві»/П.А. Джолос, А.Г. Чигрин, В.І. Пастухов. – ХНТУСГ, 2007.
Каталог-довідник машин і обладнання для агропромислового комплексу (видання друге). – К.: Асоціація «Прома» - 2002.
Організація та технологія механізованих робіт. ( 2-ге видання) М. .' «Колос», 1976.-416 с.
Правила виробництва механізованих робіт під просапні культури. Довідник для бригадирів та ланкових / склав К.С. Орманджи.-2-ге видання.,-М.:Россільгоспиздат, 1986,-303 с.
Агрокваліметрія / За ред. Д .І. Мазоренко, Ю.І. Ковтуна.- Харків: РВП «Оригінал», - 2000, -314 с.
Безпека життєдіяльності / І. П. Пістун, В. Ф. Піщенюк, А. П. Березовецький. – Львів: Світ, 1995. 288с.: іл.. – Бібліогр.: с. 284.
ГОСТ 2.105-95 ЕСКД «Загальні вімоги до текстових документів».
ГОСТ 2.307-76 ЕСКД «Нанесення розмірів та граничних відхілень».
ГОСТ 2.109-73 ЕСКД «Основні вимоги до креслень».
ДОДАТОК А
Агровимоги
Таблиця А. 1 - Агровимоги
-
Показник
Нормативи
Вологість підготовлених добрив неповинна
перевищувати
Нерівномірність розподілу добрив по полю
Відхилення дози внесення від заданої
Відхилення від робочої ширини захвату
Огріхи
Час між розкиданням і заробкою добрив
40%
до 15%
±10%
±15%
не допускаються
не більше 3-4год
ДОДАТОК Б
Вибір способу (технології) проведення робіт
Залежно від застосованих технічних засобів для підготовки внесення добрив, наявного транспорту, відстані від складу до поля виконують різні технологічні схеми внесення добрив.
Прямоточна передбачає навантаження добрив на складі господарства в автомобілі, які транспортують їх і вивантажують на полі. Вона ефективна при відстані до поля не більше 2,5...3км і площі поля понад 5га.
Схема найефективніша при високій організації праці, достатній кількості транспортно-навантажувальних засобів і відстані до місця внесення понад 4км.
При перевалочній схемі добрива у транспортні засоби навантажують на складі, транспортують на поля і розвантажують у купи, з яких розкидачі і вносять добрива. Слід враховувати, що на відстанях до 5км доцільно використовувати транспортні засоби малої місткості до 3…5т., а понад 5 км більшої місткості.
ДОДАТОК В
Комплектування агрегатів
Т-150 РУН-15Б;
ширина захвату агрегату: В>р> = 15м;
робоча швидкість: V>р> = 7,1км/год.;
чиста годинна продуктивність:8,1 га/год.
ДОДАТОК Д
Підготовка агрегатів до роботи
Підготовка трактора Т-150
Провести щозмінне технічне обслуговування, яке полягає в тому що проводиться зовнішня очистка, перевірка рівня електроліту і дозаправка мастила, палива, води, перевірка роботи контрольних приладів і механізмів керування і усунення підтікання палива, мастила і води.
Таблиця Д. 1 - Підготовка, регулювання і наладка розкидачів органічних добрив
-
Перевіряємо параметри
Необхідні показники і допустимі відхилення
Комплектність
Повна. Для наявність трубопроводів
високого тиску, карданного валу,
привідних пасів, наявність гідро
крюка на тракторі, наявність мастила
у редукторах
Правильність встановлення змінних зірочок
При нормі внесення до 15000 кг/га.
Частота обертання ВВП трактора
Для РУН-15Б 500 об/хв.
Таблиця Д. 2 - Технологічна наладка
-
Операції наладки та регулювання
Як правило...
Провести всі операції (табл.1)
перевірити параметри й встановити відхилення від необхідних параметрів з використанням інструментів і приладів
Встановити необхідне відкриття дозуючої заслінки
зміною маси валка добрив згідно таблиці вказаної на машині
Провести змащування
усі точки згідно таблиці змащування
ДОДАТОК Ж
Підготовка поля до роботи
Оглянути поле і очистити його від соломи і інших перешкод.
При виборі напрямку руху враховують стан поля. Бажано, щоб вибраний напрям руху розкидачів збігався з напрямком попередньої оранки , а вітер дув перпендикулярно до напрямку руху агрегату.
Основний спосіб руху - човниковий.
Для провішування лінії першого проходу від краю поля на відстані, рівній половині ширині захвату агрегату, встановлюють вішки, які служать трактористу орієнтиром. Першу і останню вішки ставлять в 15м від краю поля, проміжні не частіше чим через 100м.
ДОДАТОК З
Робота агрегату на загінці
Таблиця З. 1 - Регулювання і наладка в полі
-
Операції наладки і
регулювання
Порушення якості робіт
Методи усунення
Перевірка і регулювання
норми внесення добрив
Невідповідність встановленої і необхідної норми
Установка необхідної норми шляхом регулювання вікна і пробного проходу машини в полі
Ширина полоси розподілу добрив (недостатня)
На лопатках роторів напресувалися добрива
Очистити лопатки
ДОДАТОК К
Транспортні роботи
При внесенні твердих органічних добрив (Т-150 РУН-15Б) ми використовуємо перевалочну схему. Відстань перевезень мінеральних добрив S= З км Час який затрачається на підвезення вантажу і переїзди без вантажу до пункту завантаження становить l = 0,4 год.
Схема послідовності виконання операцій при виконанні транспортно-розподільчого технологічного процесу (внесення твердих органічних добрив) зображена на рисунку К.1.

t>nn> t>м> t>п. дор>t>м> Т>п. пр. д> Т>м> Т>пер.п> Т>в>






















ВУО Транспортні зв’язки ВПО
Т>м> Т>п. дор> Т>ппр> Т>м> Т>пер.п> Т>м >Т>з.б> Т>тех> Т>разгр>
ВУО - вантажоутворюючий об'єкт; ВПО - вантажопоглинаючий об'єкт; Т>зав> - час на завантаження розкидача добрив, год.; Т>дв.асф>, Т>дв.гр>, Т>пер.п.> - час, що витрачається на переїзди з вантажем по асфальтованій, ґрунтовій і польовій дорогам відповідно, год.; Т>х.асф> Т>х.ґр>, Т>х.п> - час що витрачається на переїзди без вантажу (холостий хід) по асфальтованій, ґрунтовій і польовій дорогам відповідно, год.; Т>тех >- час, що витрачається на технологічні не робочі операції, год.; Т>роз> - час на розвантаження кузову розкидача, год.
ДОДАТОК Л
Норми виробітку і витрати палива
Продуктивність агрегату за годину змінного часу W>гз> =8,1 га/год.
Погектарна витрата палива при роботі агрегату Т-150 РУН-15Б
g>га>=2,34 кг/га
Необхідна кількість палива для виконання всього обсягу роботи:
,
кг,
де F - площа поля, гa;
кг.
Таблиця Л.1 - Показники якості внесення органічних добрив та способи їх контролю
-
Показник
Кількість
вимірів
Прилади і засоби
Нормативи
Бали
Період контролю
Відхилення
дози внесення
від заданої,%
1
Рулетка,
двометрівка
±5 ±10
Більше ±10
3 2 1
При роботі
агрегату, після закінчення
Нерівномірність розподілу
добрив на полі, %
20...30
Ємкості розмірами
0,5х0,5х0,05м
ваги з точністю
±15 ±20гр
Більше ±20
до 104 кг
3 2 1
При
роботі
агрегату
Відхилення
від робочої
ширини
захвату, %
10...15
Рулетка
±15 ±20
Більше ±20
3 2 1
Теж
саме
ДОДАТОК М
Контроль і оцінка якості роботи
9...8 балів - висока якість виконання операцій;
7...5 балів - середня якість виконання операцій;
4...1 балів - неякісно виконана операція.
ДОДАТОК Н
Облік і оплата праці. Змінна тарифна ставка в залежності від класності механізаторів
Таблиця Н. 1 - тарифна ставка механізаторів
-
Розряд
3
4
5
6
Механізатори
9,80
11,02
12,64
14,68
Інші робочі
7,36
8,02
8,84
9,94
Трактор Т-150 відноситься до 3-ї групи тракторів з класом тяги 3 т і потужністю двигуна для гусеничних тракторів - 100к.с. і більше.
Отже, при внесенні добрив тарифна ставка для механізаторів нараховується по 5-му розряду.
Премія за якісно виконану роботу нараховується 16% від тарифної ставки.
ДОДАТОК П
Безпека життєдіяльності
В агрегаті Т-150 РУН-15Б повинно бути обладнане освітлення, світлові сигнали, звукові сигнали і гальма.
При русі агрегату слід знижувати швидкість на поворотах.
При русі на підйом слід завчасно включати таку передачу, на якій трактор може подолати підйом. Зупинка на підйомі може привести до скочування трактора назад, або до сповзання в бік.
Працюючи на тракторі, тракторист повинен пам'ятати, що він являється старшим і повністю відповідає за безпеку праці всіх людей, які обслуговують агрегат і перебувають в зоні його дії. Перед початком руху необхідно оглянути і оцінити обстановку перед трактором, подати звуковий сигнал і переконатися в тому, що всі люди закінчили виконання роботи на агрегаті і знаходяться на безпечній відстані.
Виконання всіх заходів пожежної і вибухової безпеки.
Дуже необхідно слідкувати за герметичністю кабіни і чистотою двигуна, щоб виключити проникнення в кабіну випускних газів, які містять оксид вуглецю і становлять небезпеку для здоров'я людини, а також пилу і парів речовин, що вносяться у ґрунт або розпилюються по поверхні.
8.Для зберігання і укріплення здоров'я трактористів, зменшення втомлюваності, запобіганню професійних захворювань необхідно суворо додержуватися правил гігієни праці і режиму робочого дня.
9.Рухи тракториста при
роботі одноманітні, робоче місце обмежене
по розмірах, а поза статична. Це призводить
до втомлюваності, затікання кінцівок,
м'язів спини, шиї. Тому велике значення
набуває виробнича гімнастика, котра
істотно зміцнює здоров'я, підвищення
працездатності і виробництва.


