Система запуска двигателя БТР-50
МИНИСТЕРСТВО ОБЩЕГО И ПРОФЕССИОНАЛЬНОГО ОБРАЗОВАНИЯ
ХАБАРОВСКИЙ ГОСУДАРСТВЕННЫЙ ПЕДАГОГИЧЕСКИЙ УНИВЕРСИТЕТ
Курсовая работа по технической подготовке
СИСТЕМА ВОЗДУШНОГО ЗАПУСКА ДВИГАТЕЛЯ В-65 ВОЗДУХОМ, ЕЁ РАБОТА И УХОД ЗА НЕЙ
Выполнил: студент 32 взвода
Сенин П. В.
Руководитель: подполковник Дудко А.И.
ХАБАРОВСК 2000
План:
1. Введение;
2. Назначение, состав системы запуска двигателя воздухом;
3. Работа системы воздушного запуска;
4. Проверка и регулировка установки диска воздухораспределителя;
5. Уход за системой воздушного запуска;
6. Приложение;
1. Введение:
Конструкция системы запуска двигателя у БТР-50ПК представляет собой совокупность двух взаимозаменяемых подсистем. Это система запуска двигателя при помощи аккумуляторных батарей и система запуска двигателя сжатым воздухом. При нормально прогретом двигателе стартер должен проворачивать коленчатый вал со скоростью не менее 200-250 об/мин. А это возможно при ёмкости аккумуляторных батарей не менее 75% номинальной. При эксплуатация аккумуляторных батарей в зимних условиях и при неправильной их эксплуатации ёмкость может опускаться менее номинальной. В этом случаи применяется система запуска сжатым воздухом, как дублирующая система.
2. Назначение, состав системы запуска двигателя воздухом.
Система воздушного запуска предназначена для запуска двигателя сжатым воздухом в случае отказа в работе стартера.
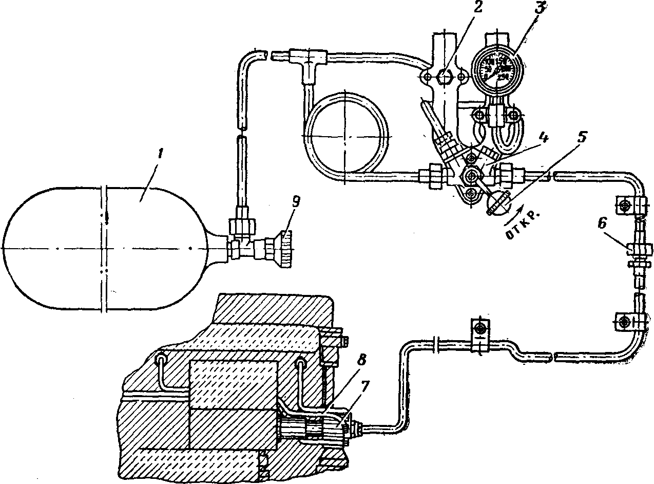
Она состоит из баллона 1 (см.приложение.рис1) со сжатым воздухом, крана редуктора 4 с манометром 3 и зарядным штуцером 2 для зарядки
баллона в бронетранспортере, воздухораспределителя 7, воздухе проводов 8 и шести пусковых клапанов. Баллон крепится к лобовой части корпуса хомутами; емкость его 10 л. На баллоне имеется запорный вентиль 9, посредством которого баллон соединяется с воздухопроводом, идущим к крану-редуктору.
Кран-редуктор установлен на кронштейне справа от механика-водителя и предназначен для регулирования давления воздуха поступающего в цилиндры двигателя. На корпусе крана-редуктора остановлен манометр на 250 кг/с.к2, предназначенный для определения давления воздуха в баллоне. Трубопровод, идущий от крана редуктора к воздухораспределителю, имеет разъемное устройство 6, используемое при консервации двигателя.
3. Работа системы воздушного запуска.
При открытии запорного вентиля 9 воздушного баллона и крана-редуктора рукояткой 5 сжатый воздух из баллона устремляется через кран-редуктор в воздухораспределитель. Через овальное окно в диске воздух попадает к пусковым клапанам, открывает их и поступает в цилиндры. Сжатый воздух, расширяясь в цилиндрах, перемещает поршни, вследствие чего коленчатый вал провертывается. Одновременно провертывается и диск распределителя, осуществляя подачу сжатого воздуха в цилиндры в соответствии с порядком их работы. Если при этом будет в цилиндры подаваться топливо, двигатель быстро запустится.
4. Проверка и регулировка установки диска воздухораспределителя.
Для запуска двигателя воздух должен начать поступать в цилиндры за 6—7° до BМT в такте сжатия. Полностью открывается отверстие в корпусе воздухораспределителя при положении, когда поршень первого цилиндра пройдет на 27° ВМТ в такте рабочего хода. Устанавливать диск надо по первому цилиндру в следующем порядке:
— установить поршень первого цилиндра в ВМТ в такте сжатия;
— провернуть коленчатый вал по направлению вращения на 270;
вывернуть колпак о (рис. 2) из корпуса воздухораспределителя, снять крышку б, вынуть штифт в, снять шайбу, пружину и муфту;
— установить диск так, чтобы отверстие подачи сжатого воздуха к первому цилиндру было открыто полностью и. передняя кромка окна диска совпала с кромкой этого отверстия (диск вращается против хода часовой стрелки);
— подобрать такое положение промежуточной втулки, при котором она войдет в зацепление со шлицами валика и диска;
— провернуть коленчатый вал против направления вращения на 30—40°, а затем установить в прежнее положение и проверить правильность установки диска;
— установить детали на место и закрыть колпак.
5. Уход за системой воздушного запуска.
При ежедневном техническом обслуживании и обслуживаньях № 1 и 2 проверить:
— давление воздуха в баллоне, для чего при закрытом кране-редукторе открыть вентиль; после проверки вентиль надежно закрыть; минимальное давление в баллоне для запуска двигателя должно быть: летом не менее 45 кг/см2, зимой—80 кг/см2; при меньшем давлении баллон зарядить до давления 150 кг/см2;
— нет ли утечки воздуха из системы.
Один раз в год проверить дату осмотра баллона; если со времени последнего осмотра прошло пять лет, то баллон необходимо предъявить на войсковой поверочный пункт.
6. Воздухораспределитель:
Воздухораспределитель (рис. 4) предназначен для распределения сжатого воздуха между цилиндрами в соответствии с порядком их работы.
Воздухораспределитель состоит из корпуса 1, отлитого из алюминиевого сплава, валика 10 и распределительного диска 14. В корпус воздухораспределителя ввернут стальной колпак 3, который вместе с корпусом образует замкнутую полость а. В торец колпака ввернут зажим , присоединяющий поворотный угольник 7 трубки, подводящей сжатый
воздух в полость а. Для герметичности под колпак установлена прокладка 15. В корпусе воздухораспределителя имеется двенадцать каналов б для прохода воздуха. Каналы с одной стороны с помощью зажимов 2 и поворотных угольников 16 соединены трубками с пусковыми
клапанами на головке блока, а с другой стороны выходят на торцевую поверхность корпуса, закрытую фланцем распределительного диска.
Отверстия этих каналов расположены через 30°, что соответствует 60° поворота коленчатого вала. Во фланце распределительного диска вырезано золотниковое окно, расположенное на дуге 60°.
Распределительный диск 14 закреплен на валике 10 с помощью регулировочной втулки 13, которая позволяет регулировать, т. е. устанавливать, золотниковое окно распределительного диска по отношению к отверстиям в корпусе воздухораспределителя. У регулировочной втулки 13 имеется тридцать шесть шлицев на наружной поверхности и тридцать восемь — на внутренней. У воздухораспределительного диска 14 имеется также тридцать шесть шлицев, а у валика воздухораспределителя — тридцать восемь шлицев. Изменяя положение распределительного диска 14, относительно валика 10 и снова соединяя их с помощью регулировочной втулки 13, можно устанавливать необходимый момент начала подачи воздуха в цилиндр с точностью до 1°.
Распределительный диск прижат к корпусу воздухораспределителя пружиной 11. С обеих сторон пружины установлены упорные шайбы 5. Одна из шайб упирается в распределительный диск 14. а другая удерживается на валике штифтом 9. Регулировочная втулка и валик с пружиной закрыты крышкой 6, ввернутой в воздухораспределительный диск и застопоренной штифтом 12.
Воздухораспределитель устанавливается в корпусе привода топливного насоса. При этом хвостовик валика 10 входит в паз горизонтального валика привода.
Детали воздухораспределителя смазываются маслом, забрасываемым из корпуса привода топливного насоса, для доступа которого к валику 10 и распределительному диску просверлены отверстия в.
При запуске двигателя сжатый воздух поступает в полость а между колпаком и распределительным диском, а отсюда через золотниковое отверстие диска и каналы б в корпусе воздухораспределителя в трубопроводы, подсоединенные к цилиндрам.
Распределительный диск устанавливается таким образом, что открытие отверстия в корпусе воздухораспределителя (рис. 3), а следовательно, и подача воздуха в цилиндр начинаются за 6±3° до в.м.т. на такте сжатия, считая по углу поворота коленчатого вала (в процессе эксплуатации воздухораспределитель не регулируется).
Так как золотниковое окно расположено на дуге 60°, то без учета ширины отверстий в корпусе золотник обеспечивает впуск воздуха в цилиндры на протяжении 120° поворота коленчатого вала, причем сразу в два цилиндра, например в Зл и во 2п (положение /). В положении // устанавливают золотник при заливке масла в цилиндры прибором ПЗМ. В этом положении, практически открыто только одно отверстие, что обеспечивает равномерное распределение масла по цилиндрам.
Для установки золотника в указанное положение необходимо:
— проворачивая коленчатый вал вручную по ходу вращения,
совместить деления (
)
на градуированном диске 2 ,
соединительной муфты привода топливного насоса, что соответствует началу подачи топлива в 1л цилиндр. Зафиксировать это положение с помощью стрелки, укрепленной на картере двигателя, для чего подвести стрелку к ближайшему целому делению на шкале муфты, соединяющей двигатель с силовой передачей;


— повернуть
коленчатый вал по ходу на 27° от сделанной
отметки, если соединительная муфта
находится в положении “Зима”, и 30°— в
положении “Лето”. В этом положении в
центре прорези в золотнике будет
находиться отверстие, ведущее в Зп
цилиндр (рис. 3, положение //);
— переместить стрелку-указатель до ближайшего целого деления на шкале муфты, соединяющей двигатель с силовой передачей, разметить шкалу на шесть делений по 60° и пронумеровать их;
— последовательно проворачивая коленчатый вал каждый раз на 60°, залить масло во все цилиндры с соблюдением установленных правил.
Заключение:
Система запуска двигателя сжатым воздухом не является основной, но позволяет более эффективно использовать аккумуляторные батареи. Так, если при первом запуске двигателя в зимних условиях нагрузка на аккумуляторные батареи максимальна, то в этот период эффективнее, на мой взгляд, использовать систему запуска двигателя сжатым воздухом. А уже при повторном запуске использовать аккумуляторные батареи. Эффективное использование системы запуска двигателя сжатым воздухом достигается при соблюдении правил её эксплуатации и своевременного технического обслуживания.
6. Приложение:

Рис. 1. Система воздушного пуска двигателя:
1-баллон; 2-зарядный штуцер; 3 - манометр редуктора; 4 - редуктор- 5 - рукоятка редуктора; 6- разъемное устройство, используемое при консервации двигателя; 7 - воздухораспределитель; 8 - воздухопровод; 9 - запорный вентиль


Рис. 2. Узел воздухораспределителя:
а-колпак; б-крышка; в - штифт; г - муфта валика; д - распределительный диск;
е — валик; 1, 2, 3, 4, 5 и S — отверстия для подачи воздуха в цилиндры

Рис.3. Схема работы воздухораспределителя.
От источника сжатого воздуха
Рис. 4. Воздухораспределитель: 1- корпус воздухораспределителя; 2 и 8- зажимы; 3- колпак; 4- прокладка; 5- упорные шайбы; 6- крышка; 7 и 16- поворотные уголки; 9 и 12- штифты; 10- валик; 11- пружина; 13- регулировочная втулка; 14- распределительный валик; 15- прокладка; а- полость; б- воздушные каналы; в- смазочные отверстия.
Литература:
Танковые двигатели В-2 и В-6, М., Военное издательство МО СССР, 1975 г.
Бронетранспортёры БТР- 50ПК и БТР 50П, М., Военное издательство МО СССР, 1972 г