Водозаборные скважины
Контрольная работа
По геологии
Задача 1
Определить
понижение уровня в центральной скважине
водозабора, состоящего из n=3
скважин, расположенных параллельно
совершенному урезу реки на расстоянии
2
100
м друг от друга. Расход каждой скважины
Q>0>=800
м3/сут,
радиус фильтра r>0>=0.1м.
Водоносные аллювиальные пески имеют
мощность h>ст>=40
м, коэффициент фильтрации К=8 м/сут ;
водоотдача
0.1
Прогноз выполнить для t=700
сут . Рассмотреть два варианта расстояния
скважин до реки d>1>=100м
;и d>2>=500
м. Сопоставить полученные решения.
Решение:
Рассмотрим 1 вариант d>1>=100м Величина уровнепроводности определяется по формуле:
а=
м2/сут
Время наступления стационарного режима фильтрации определим по формуле:
t>с>=
R>к>=2(d+
>н.д>)
т.к река с совершенным урезом то R>к>=2d
t>с>=
31
сут.
Так
как длинна водозаборного ряда
2l=(n-1)*2
=(3-1)*100=200
м и соблюдается условие d
l,
можем использовать формулу Маскета
Лейбензона:
S>0>=
*
*[
]=4.52
м
Так
как S
0.25h>ст>
данное решение не подлежит корректировке.
Рассмотрим 2 вариант при d>2>=500 м.
t>с>=
=
781 сут
Радиус контура питания R>к>=2d>2>=2*500=1000 м .
Так
как расстояние между взаимодействующими
скважинами r>i>=2
0.3R>k>,
можем использовать формулу:
S=
S=
Увеличение расстояния скважины от реки существенно увеличило период нестационарного режима фильтрации, но мало повлияло на величину понижения.
Задача 2
Кольцевой
водозабор ,состоящий из n=8
скважин ,вскрывает напорный пласт
известняков мощностью m=50
м, коэффициент фильтрации К=4 м/сут. Выше
залегает весьма водообильный горизонт
грунтовых вод, отделенный от известняков
слоем суглинков мощностью m>0>=25
м и коэффициентом фильтрации К>0>=10-4
м/сут. Упругая водоотдача известняков
=4*10-5.
Расстояние между скважинами 2
,
суммарный водоотбор Q>сум>=8000м3/сут.
Радиус фильтра скважины r>0>=0.15м,
длина фильтра l>0>=15м.
Фильтр расположен в средней части
пласта. Избыточный напор над кровлей
известняков Н=25 м.
Необходимо определить: время наступления стационарного режима фильтрации в скважинах, величину сработки уровня и остаточный напор.
Решение:
Определим радиус кольцевого водозабора:
R>0>=
=
Оценим величину параметра перетекания по формуле:
В=
7071м
Величина радиуса контура питания:
R>k>=1.12*B=1.12*7071=7919.5м
Условие
r>i>
>
>>k>
соблюдается
Величина пьезопроводности известняков:
а#=
м2/сут
Стационарный режим наступит через время :
t>с>=
=31
сут
Величину понижения уровня в совершенной скважине определим по формуле:
S=
S=
+
*
Величину сопротивления, учитывающего несовершенство скважин, определяем по графику:

=
>нс>=8
, тогда дополнительное понижение за
счет несовершенства определим по
формуле:
м
А общее понижение уровня :
S=23.9+6.37=30.27м
Остаточный напор над кровлей отсутствует.
Понижение ниже кровли :
25-30.27=-5.27
м , что сопоставимо с
.
Задача 3
Водоносный
горизонт мощностью 40 м приурочен к
водоносным аллювиальным пескам с
коэффициентом фильтрации К=15 м/сут,
водоотдачей
0.05.
На расстоянии d=300
м от уреза реки эксплуатируются две
скважины с расходами Q>1>=1500
м3/сут
и Q>2>=1000
м3/сут,
расположенные на расстоянии 2
друг от друга. Радиус фильтра скважин
r>0>=0.1м.
Определить: понижение уровня в скважине
2 на моменты времени 1;3;10;100 и 500 суток.
Качественно описать развитие понижения
во времени. Построить график S-
.
Графически сравнить полученные результаты
с понижением уровня в неограниченном
пласте.
Решение:

Определим величину уровнепроводности пласта:
а
=
=
=12000 м2/сут
Понижение в скважине 2 будет формироваться под воздействием четырех скважин: двух реальных и двух отображенных. Определим расстояние до каждой из них.
До
скв1: r>1>=2
250м; до скв 2: r
>2=>r>0>;
По теореме Пифагора:
=
До отображенной скв 2:

Используя формулы:
r>кв>
;
t
;
Т
=
;
Определим начало влияния каждой скважины на формирование понижения в скважине 2 и время наступления квазистационарного режима от влияния каждой скважины. Вычисления сводим в таблицу 1
Таблица 1
-
Номер скважины
t>вл> , сут
t>кв> ,сут
1


2


1/


2/


Для t= 1сут согласно таблице 1 ,учитывается влияние скважины 1, однако ее режим неустановившийся:
S>0>=

S>0>=
Для t=3 сут, согласно таблице 1, учитывается влияние скважины 1 и скважины 2/, но режим неустановившийся. С учетом того что имеем расчетную схему в виде реки (Н=const), то отображенная скважина задается как нагнетательная (-Q>0>),тогда:
S>0>=

S>0>=
2.27
м
Для t= 10 сут учитывается влияние скважин 1 , 1/ ,и 2/, но режим неустановившийся:
S>0>=

S>0>=
=2.38 м
Для t=100 сут учитывается влияние всех скважин при этом режим во всех скважинах квазистационарный , тогда:


Расчет для t=500 суток аналогичен расчету при t=100сут так как режим квазистационарный, а центральная скважина еще раньше выходит на стационарный режим, что связано с границей постоянного напора.
Отразим полученные результаты расчетов на графике и убедимся, что график для схемы неограниченного пласта является медианным по отношению к схемам полуоткрытого и полузакрытого пласта.

Задача 4
Водозабор
из двух скважин работает в напорном,
неограниченном в плане пласте известняков
с К= 25 м/сут, мощностью m=30
м ,упругой водоотдачей
10-4.
Остаточный напор на начало эксплуатации
Н=20 м . Расходы скважин изменяются во
времени. Первые t>1>=700
сут , 1 скв эксплуатируется с расходом
м3/сут,
а скв 2-
м3/сут;
затем
2000
м3/сут;
м3/сут.
Скважины расположены на расстоянии
2
друг
от друга. Скважины совершенные по степени
вскрытия пласта, r>0>=0.1м.
Определить понижение уровня в СКВ 2 спустя t=1500 сут после начала работы этой скважины.
Решение:
График изменения дебита взаимодействующих водозаборных скважин

Определим величину пьезопроводности пласта:
а#=
м2/сут
Найдем время наступления квазистационарного режима по формуле:

Т.е к расчетному периоду, режим можно считать квазистационарным и используя формулы имеем:
S>2>=
S>2>=
Т.е меньше остаточного напора.
Задача 5
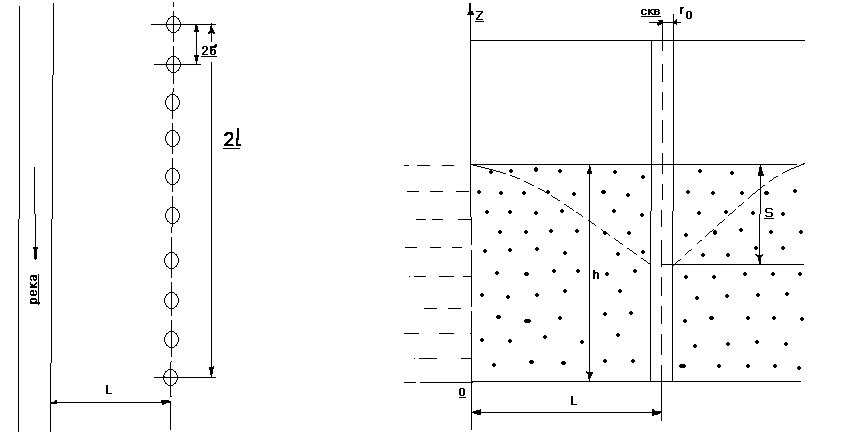
Водозаборный ряд из n = 10 скважин эксплуатирует с суммарным расходом Q>сум> = 20000 м /сут грунтовые воды в долине реки с совершенным врезом. Водоносный горизонт приурочен к аллювиальным пескам. Мощность обводненной толщи h>е> = 40 м, коэффициент фильтрации k=20 м/сут, водоотдача μ= 0,2. Расстояние между скважинами в ряду составляет 2σ=200м. Оценить время наступления стационарного режима фильтрации. Определить понижение уровня в центральной скважине, радиус фильтра которой r>o>=0,1м. Скважина совершенная. Рассмотреть два варианта размещения водозабора относительно реки: параллельно урезу на расстоянии L>1>=300м и L>2> = 1200м от него.
Решение:

1 Определяем величину коэффициента уровнепроводности
а=
=
Время наступления стационарного режима фильтрации для обоих вариантов размещения водозабора составит:
по первому варианту
t>c>=
=
сут,
по второму варианту
t>c>=
=3600сут.
2. Определяем величину понижения уровня в скважине водозабора при его размещении в L>1>=300 м от уреза реки. Учитывая, что длина ряда 2l=2σ·n=200·10=2000 м и L>1><l, воспользуемся формулой (7.15)

Так как S0,25h>е >(6.1<10,0), данное решение не подлежит корректировке.
3. Определяем величину понижения уровня в скважине водозабора при ее размещении на расстоянии L>2>=1200 м от уреза реки. Учитывая что, L>2> > l , можем воспользоваться методом обобщенных систем, используя формулы:
S=S>w>+ΔS>СКВ>;
S>w>=
;
ΔS>СКВ>=
;
R>w>=
r>n>=
Отметим, что полученное решение будет справедливо для периода эксплуатации водозабора, превышающего время наступления стационарного режима, т.е. t>прог> >3600 сут. Предварительно схематизируем пласт как неограниченный, принимая R>k> = 2L, тогда R>отобр> =0.
S>w>=
ΔS>СКВ>=
Суммируя получим:
S=
8.63
м
Так как S> 0,25h>е>, переходим к расчету для грунтовых вод, составляя квадратное уравнение:
2*mS>н>=(2h>e>-S)*S
2*40*8.36=2*40S-S2; S2-80S+668.8=0;
откуда определяем понижение в грунтовых водах:
S=40-
=9.48
м.
Задача 6
Песчаный карьер имеет размеры b х L равные 600 х 1200 м. По контуру карьера пробурены скважины с шагом 2σ =300 м, из которых осуществляется водоотбор с целью водопонижения с расходом Q>о>=1200м3/сут> >из каждой скважины. Водоносный горизонт заключен в песках и имеет мощность h>е>=40м. Коэффициент фильтрации песков k=10 м/сут, водоотдача μ=0,1. Определить величину понижения уровня под карьером и в скважинах, имеющих радиус фильтра r>o>=0,1м. Скважины совершенные. Продолжительность разработки карьера t=5 лет.
Решение:

1. Определим количество скважин по контуру карьера:
n=
Суммарный водоотбор равен:
Q>сум>=n*Q>0>=12*1200=14400 м3/сут
2. Величина коэффициента уровнепроводности пласта:
а=
м2/сут
Проверяем условии:

R>0>=
=479
м.
что
меньше расчетного срока в 1825 сут.
Это означает наступление квазистационарного режима фильтрации к этому времени по всему водозабору, что позволяет использовать для его расчета метод обобщенных систем.
4. Так как режим фильтрации квазистационарный, определим величину понижения уровня под карьером по формулам:
S>w>=
;
R>w>=
;
r>пр>=R>0>;
S>w>=
Дополнительное понижение в скважинах определим по формулам:
ΔS>СКВ>=
;
r>n>=
ΔS>СКВ>=
;
Общее понижение в скважине равно:
S=S>w>+ ΔS>СКВ>=12.26+1.48=13.74 м.
Так как S0.25h>e> , то переходим к расчету для грунтовых вод:
(2h>e>-S)S=2*40*13.74; S2-80S+1099.2=0;
S=40-
=17.6м.