Расчет проектных размеров подземной выработки
ИТОГОВОЕ ЗАДАНИЕ № 1
ТЕМА: «Расчет проектных размеров подземной выработки»
Исходные данные:
-
Показатель
Единицы измерения
Значение
Название выработки
квершлаг
Форма поперечного сечения
ПС
Тип крепи по кровли и бокам
набрызгбетон
Толщина набрызгбетона
мм
50
Применяемое оборудование
Погрузочно-транспортные машины ПД – 5А
Форма поперечного сечения выработок зависит от физико-механических свойств пород, назначения, срока службы выработок, материала и конструкции крепи, а также способа проведения выработок.
Квершлаг – горизонтальная подземная горная выработка, не имеющая непосредственного выхода на поверхность, проведённая по вмещающим породам вкрест простирания месторождения и используемая для транспорта, вентиляции, передвижения людей, водоотлива, прокладки электрических кабелей и линий связи. Устье квершлага, как правило располагается в боковой стенки каменной выработки, ствола или штольни.
Прямоугольно-сводчатые сечения
используются при проходке выработок
без крепи или с возведением облегчённых
конструкций крепи. Высота свода в
сечениях от 2 до 6,8 м2
(однопутные выработки) составляет
,
а в сечениях от 8,3 до 12,1 м2
(участки двухпутных выработок)
.

Размеры и площадь поперечного сечения выработки можно определить на основании расчётов параметров сечений в свету и размеров крепи.
Размеры поперечного сечения горизонтальных выработок в свету крепи устанавливают, исходя из размеров применяемого для погрузки и транспортирования горной массы оборудования. А также, исходя из регламентированных Правилами безопасности при геологоразведочных работах зазоров между наиболее выступающими частями оборудования и стенкой (крепью) выработки.
В соответствии с Правилами безопасности при геологоразведочных работах зазор между наиболее выступающей кромкой габарита подвижного состава и размещённым в выработке оборудованием, трубопроводами должен составлять не менее 0,7 м (свободный проход для людей), а с противоположной стороны – не менее 0,25 м (в выработках без крепи, при деревянной, металлической и рамных конструкциях железобетонной и бетонной крепи) и не менее 0,2 м – при монолитной бетонной, железобетонной и каменной крепи.
Указанная ширина свободного прохода для людей должна быть выдержана по высоте не менее чем на 1,8 м.
При проведении квершлагов применяются комплексы проходческого оборудования, включающие погрузочные машины, вагонетки, аккумуляторные электровозы. В нашем случае применяется погрузочно-транспортная машина ПД – 5А для погрузки и доставки отбитой горной массы.
Техническая характеристика ПД – 5А.
Грузоподъемность, т……………………….……… 6
Скорость движения, км/ч …………………..…….. 15
Габариты, мм ……………………………………. 8000х2200х1850
Масса, т ………………………………………………15
Вместимость ковша, куб.м. ………………………. 3
Привод ……………………………………………. дизельный
Расчёт размеров и площади сечения в свету
Площадь поперечного сечения в свету – это площадь, заключенная между крепью выработки и ее почвой, за исключением площади сечения, занятой насыпанным на почве выработки балластным слоем.

Рассчитаем ширину выработки
:
Для однопутной выработки:
;
Для двухпутной выработки:
, где
- наибольший габарит ПД – 5А по
ширине;
- ширина прохода для людей;
- зазор между оборудованием и
боком выработки;
- зазор между единицами оборудования
на смежных рельсовых путях.
Определим необходимую высоту
выработки по боку (до пяты свода)
и полную высоту
:
,
где
- минимальная высота свободного
прохода шириной 0,7 м;
- высота настила из досок (высота
трапа).
Для однопутной выработки:

Для двухпутной выработки:
, где
- высота свода.
Поверяем, будет ли при рассчитанном значении высоты обеспечена возможность работы у забоя погрузочной машины ковшового типа ПД – 5А.
Минимальная высота выработки в
свету
:
, где
- максимальная высота машины с
поднятым ковшом;
- зазор между кровлей и ковшом в
верхнем положении;
-высота
временного рельсового пути, оборудуемого
для работы машины у забоя.
Для однопутной выработки:


Для двухпутной выработки:


Рассчитанное раннее значение
высоты для однопутной и двухпутной
выработок
, поэтому мы высоту
принимаем равной
.
Теперь рассчитаем площадь сечения в свету:
Для однопутной выработки:

Для двухпутной выработки:

По рассчитанной площади сечения в свету далее следует принять ближайшее большее из стандартных сечений (ГОСТ 22940-85) и по его размерам с учётом размеров крепи определить проектную площадь сечения выработки (площадь вчерне).
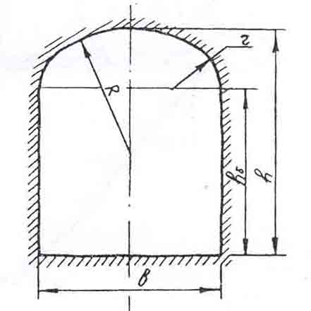
Принимаем типоразмер сечения ПС – 8,7:
ширину выработки …………………………………
высоту стен выработки……………………………

высоту свободного прохода………………………...

радиус R……………………………………………..
радиус r……………………………………………….
площадь сечения выработки………………………..
.
Расчёт размеров и площади сечения вчерне
Для выработок с набрызгбетонной
или комбинированной крепью толщиной
по кровле и бокам:
Для однопутной выработки:
- ширина выработки с учётом
толщины слоя набрызгбетона;
- высота выработки по боку с
учётом выхода анкеров по кровле в
выработку;

Для двухпутной выработки:
- ширина выработки с учётом
толщины слоя набрызгбетона;
- высота выработки по боку с
учётом выхода анкеров по кровле в
выработку;

Далее полученные данные вносятся в паспорт крепления разведочной выработки, который наряду с другими важнейшими документами, является документом в соответствии с которым осуществляется проходка выработки. Он содержит все необходимые сведения о конструкции крепи и материалах, из которых она изготавливается, способе её возведения и оборудовании, которое при этом применяется.