Основание и фундамент подводной части водозаборного сооружения берегового типа
Кафедра "Геотехника и экология в строительстве"
Курсовой проект
"Основание и фундамент подводной части водозаборного сооружения берегового типа"
Выполнил:
Руководитель:
Минск 2009
Содержание
1. Конструирование водозаборного сооружения берегового типа
1.1 Назначение и характеристика проектируемого сооружения
1.2 Расположение берегового колодца в плане
1.3 Высотная привязка
1.4 Водоприемная камера
1.5 Компоновка сооружения
2. Классификация и характеристики грунтов основания
2.1 Песчаный грунт
2.2 Водопроницаемость песчаного грунта
2.3 Критерии, суффозионности песка
2.4 Пылевато-глинистый грунт
2.5 Деформационные характеристики
2.6 Прочностные характеристики
3. Нагрузки и воздействия
3.1 Схема давлений и нагрузок
3.2 Значения давлений и нагрузок
3.3 Равнодействующая горизонтальных сил
3.4 Равнодействующая вертикальных сил
3.5 Расчетная нагрузка на основание
4. Расчет основания по несущей способности
4.1 Вертикальная составляющая силы предельного сопротивления
4.2 Расчет фундамента на сдвиг
4.3 Проверка недопущения опрокидывания
5. Расчет основания по деформациям
5.1. Контактное давление
5.2. Абсолютная осадка фундамента
5.3. Крен сооружения
5.4. Горизонтальное перемещение фундамента
6. Строительный котлован водозабора
6.1. Особенности строительства
6.2. Назначение размеров выемки
6.3. Перемычки
6.4. Грунтовая перемычка на пойме
6.5. Двухрядная шпунтовая перемычка с грунтовой засыпкой
6.6. Элементы котлована
6.7. Производство работ
7. Подземные противофильтрационные преграды
7.1. Цементно-грунтовые секущиеся сваи (оборудование фирмы "Алимак")
Литература
1. Конструирование водозаборного сооружения берегового типа
1.1 Назначение и характеристика проектируемого сооружения
Тип и расположение водозаборного сооружения, через которое вода подается в насосную станцию, определяют следующие факторы:
Природные условия поймы реки;
Режим сработки уровней воды и заиления водохранилища;
Назначение водозабора;
Компоновка водоприемных секций и машинного зала;
Ледовый режим;
Наличие плавающего сора;
Плавное безотрывное обтекание боковых поверхностей.
В процессе эксплуатации сооружение должно обеспечивать:
Бесперебойную подачу воды в водоводы;
Возможность прекращения поступления воды в приемную камеру при ее осмотре, ремонте, а также в случае аварии (оборудование затворами, сороудерживающими решетками, устройствами для их очистки, а при необходимости и средствами обогрева);
Ограничение попадания в приемную секцию донных наносов, поверхностного льда, плавающих тел и топляков;
Недопущение попадания сора, шуги, льда во всасывающие трубопроводы.
1.2 Расположение берегового колодца в плане
При заглублении до 8. .12 м и строительстве открытым способом обычно отдают предпочтение прямоугольной в плане форме сооружения, как обеспечивающей наиболее удобную с позиций эксплуатации компоновку трубопроводов и оборудования. При большем заглублении переходят на цилиндрическую конструкцию подземной части, которая может быть усилена поперечной диафрагмой.
Привязка передней грани водоприемника выполняется относительно линии уреза воды в реке в меженный период (рис 1.1).
Р
исунок
1.1. Расположение сооружения: 1 – бровка
берега; 2 – пойма; 3 – русло; 4 – урез воды
в реке; 5 – контур водозабора.
1.3 Высотная привязка
Верх сооружения должен возвышаться над максимальным уровнем (с учетом высоты волн) не менее чем на 0,15. .0,25 м.
Расположение по высоте кромки и порога водоприемного проема диктуется отметками минимального уровня воды и дна русла реки (рис.1.2). порог предотвращает попадание во входной проем влекомых по дну наносов и сора, а отметка его верха конструктивно устанавливается на 0,15. .0,25 м выше дна.
Заглубление кромки (верхней грани) под уровень воды должно быть таким, чтобы в них не попадал плавающий на поверхности сор.
Д
ля
предупреждения размыва грунта ниже
подошвы фундаментной плиты ее отметка
принимается для естественных оснований
на глубину не менее 1,5. .2,5 м от поверхности
возможного размыва дна русла в паводок
и вследствие стеснения живого сечения.
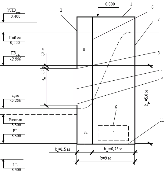
Рисунок 1-2: Разрез берегового колодца.
1 - коробчатая часть со стенами из монолитного железобетона t=0,25 м; 2 - передняя стена с входными проемами; 3 - кромка; 4 - входной проем: 5 - порог; 6 - разделительная стена; 7 - задняя стена; 8 - приемная камера (8а - ее рабочий объем): 9 - габариты насоса: 10 - машинный зал; 11 - фундаментная плита из монолитного железобетона t=0,5...0,7 м.
h>вх> - высота входного проема секций приемной камеры; b>к> и h>рк> - соответственно ее ширина и рабочая (минимальная) глубина; b>мз> - ширина машинного зала в свету.
1.4 Водоприемная камера
Водозабор состоит из водоприемника (береговой колодец) и примыкающего к нему защищенного от размыва участка русла. Вода из реки в секции приемной камеры попадает через входные проемы, расположенные в передней стене. Эти отверстия оборудуются грубыми сороудерживающими решетками, плоскими скользящими щитами или укороченными задвижками. Площадь входного (водоприемного) проема А>вх>=b>вх>h>вх>, м2, определяют по эмпирической зависимости:

где К>сж> - коэффициент, учитывающий сжатие живого сечения прутьями решетки, К>сж> =1,13 - 1,27;
Q>c> - расчетный расход (м3/с) одной секции водозабора (подача насоса согласно [1] приложение 1):

n - число секций приемной камеры водозабора, n2; V - допустимая скорость воды во входном проеме (без учета требований рыбоохраны для средних и тяжелых условий забора рекомендуется принимать в пределах V = 0,2...0,6 м/с).
Q>c> =0,7 м3/с;

Ширина входного проема каждой секции b>вх>, м, определяется по формуле:

Из каждой секции колодца воду к патрубкам насосов подает всасывающая труба диаметром входного отверстия D>вc>, м, устанавливаемым по величине расхода воды Q>c>, В [1] приложении 1 приводится значения величин подачи воды (м3/с), габаритные размеры (LxB, мм), массы агрегатов (m>n>, т), а также D>вc> для центробежных насосов двустороннего входа типа "Д" (ЦНДВ). Ширину водоприемной камеры в свету, b>к>, м, назначают исходя из двух условий - конструкционного и технологического - как большее из значений величин:
b>к> (2...2,5) D>вc>; V>min>= b>к> h>рк>= Q>c> t, м3
где V>min> - минимальный объем воды в секции, м3, t - время работы насоса, t15...20 с.
b>к> (2...2,5) D>в>>c>=20,5=1 м,
V>min>=
Q>c>
t=
0,720=14
м3

Конструктивно принимаем ширину приемной камеры равной 1,5 м.
1.5 Компоновка сооружения
При совмещенном варианте насосы типа "Д" монтируют на фундаментной плите сооружения или опорной плите на металлической раме. При их однорядном расположении достигается компактность размещения оборудования и наименьшая ширина машинного зала (рис.1-3). Ширина прохода между агрегатами принимается не менее 1,0 м. Расстояние от коротких сторон опорных плит насосных агрегатов до разделительной стены должно быть 0,7...0,9 м, а между агрегатами и электрораспределительными щитами - 1,5...2 м.
2. Классификация и характеристики грунтов основания
В строительной практике свойства грунтов оснований оцениваются системой показателей, обусловленных содержанием отдельных фракций, плотностью минеральных частиц ρ>s>, и грунта ρ, естественной влажностью W (%) и пластичностью W>L> и W>p> (%), данными фильтрационных, компрессионных и сдвиговых испытаний. Состояние грунта зависит от степени влажности S>r> и его сопротивления при зондировании (песчаные толщи) или показателя текучести J>L> и сопротивления при зондировании (пылевато-глинистые отложения).
По группам признаков классификация грунтов включает таксономические единицы:
типы по гранулометрическому составу и числу пластичности;
виды по структуре и текстуре, степени неоднородности, пористости;
разновидности по физическим, механическим, химическим свойствам и состоянию.
В курсовом проекте за исходное принимается двухслойное основание, представленное песчаным грунтом, подстилаемым пылевато-глинистым пластом.
2.1 Песчаный грунт
Для установления вида наименования исследуемого грунта последовательно суммируются проценты содержания частиц - сначала крупнее 2 мм, затем 0,5 мм, далее 0,25 мм и 0,1 мм ([1] приложение 2). Наименование грунта принимается по первому удовлетворяющему показателю.
Далее грансостав изображается на графике (Рис.2.1), а необходимые расчеты удобно выполнять в табличной форме (таблица 2.1).
По графику на рисунке 2.1 устанавливаются значения величин характерных диаметров частиц песка (диаметры зерен, мм, меньше которых в данном грунте содержится по массе соответственно 95, 60, 50, 17, 10 и 5%).
Установления вида наименования грунта
Таблица 2.1
|
Гранулометрический состав (100%) |
Содержание частиц |
||
|
Фракции, мм |
Содержание фракций по массе% |
Размером d, мм |
По массе, П>m>,% |
|
Более 2 |
2 |
Менее 2 |
98 |
|
2-1 |
8 |
Менее 1 |
90 |
|
1-0,5 |
11 |
Менее 0,5 |
79 |
|
0,5-0,25 |
19 |
Менее 0,25 |
60 |
|
0,25-0,1 |
41 |
Менее 0,1 |
19 |
|
0,1-0,05 |
11 |
Менее 0,05 |
8 |
|
0,05-0,01 |
8 |
Менее 0,01 |
0 |
Масса частиц крупнее 0,1 мм составляет более 50% следовательно, исследуемый грунт - песок мелкий.

Рисунок 2.1.: Интегральная кривая зернового состава в полу логарифмическом масштабе.
d>95>=1,5; d>60>=0,25; d>50>=0,2 (средний);
d>17>=0,09; d>10>=0,055 (действующий, эффективный);
d>5>=0,035;
Показатель максимальной неоднородности U>max> - мера неоднородности гранулометрического состава песка - определяется по формуле:

По U>max> устанавливается вид песчаного грунта ([1] приложение 2):
4 < U>max> < 20 => песок среднеоднородный.
Показатель неоднородности Us определяют по формуле:

Дополнительные характеристики - плотность высушенного грунта ρ>d>, пористость n и коэффициент пористости е, а также степень влажности S>r> - находят по формулам:




По значению величины S>r> устанавливается разновидность песчаного грунта ([1] приложение 2): 0,5 < S>r> < 0,8 - песок влажный.
Собственный вес песчаного грунта определяется по формуле: γ=ρg=1,89∙9,81=18,54 кH/м3
Ниже уровня грунтовых вод WL частицы взвешиваются в воде и собственный вес взвешенного в воде песчаного грунта γ>sb>, определяется зависимостью:
γ>sb>= (γ>s> - γ>w>) (1-n) =9,81 (ρ>s> - ρ>w>) (1-n) =9,81 (2,61-1) (1-0,36) =10,11 кН/м3
2.2 Водопроницаемость песчаного грунта
При отсутствии данных полевых и лабораторных исследований приближенное значение коэффициента фильтрации kф, может быть определено по формуле Ганзена:
k>ф> = С>а> d2>10> (0, 7 + 0, 03 to) =700 ∙0.0552 (0,7+0,03∙10) =2,12 м/сут
где С>а> - эмпирический коэффициент чистоты и однородности песков (для чистых и однородных песков С>а> =1200...800, а для пылевато-глинистых и неоднородных С>а> =800…400), t - температура грунтовой воды 8...12°С.
2.3 Критерии, суффозионности песка
Гранулометрический состав и структура исследуемого грунта могут претерпеть изменения вследствие перемещения фильтрационным потоком в порах его отдельных частиц вплоть до их выноса (т.е. суффозионных процессов). Различают внутреннюю (мелкие частицы перемещаются только внутри грунта) и внешнюю (вынос частиц из грунта на его поверхность) механическую суффозию. Если отрыв, перемещение и вынос фильтрационным потоком частиц происходит в таком количестве, при котором нарушается прочность грунта, то суффозия называется опасной.
На контакте мелкозернистого и крупнозернистого песков под действием продольной фильтрации может происходить контактный размыв.
При оценке песчаного грунта как основания изучается возможность протекания в нем суффозионных процессов.
С этой целью определяется диаметр фильтрационных пор (ходов) d>ф>, по формуле:

где β>s> - коэффициент локальности суффозии, зависящий от неравномерности распределения частиц в грунте и определяемый по формуле:
β>s>=1+0,05∙U>s>=1+0,05∙4,55=1,23,

Наибольший размер частиц, d>c> которые могут быть вынесены фильтрационным потоком из исследуемого грунта, определяется зависимостью:

Если d>c> окажется больше d>min> = 0,01мм, то из него могут быть вынесены фильтрационным потоком частицы, крупность которых равна и меньше d>c>. В случае d>c> < d>min> грунт следует считать несуффозионным.
d>c> > d>min> - грунт - суффозионный.
2.4 Пылевато-глинистый грунт
Тип такого грунта устанавливают по числу пластичности J>p>% ([1] приложение 3):
J>p>=W>L>-W>p>=24-14=10%
7< J>p> <17 - исследуемый грунт - суглинок.
Если в гранулометрическом составе содержится более 50% пылеватых частиц (0,05…0,005 мм), выделяются низкопористый и пористый виды ([1] приложение 3).
По показателю текучести J>L (>консистенции) выделяют разновидности исследуемого грунта ([1] приложение 3):
J>L>= (W-W>p>) / (W>L>-W>p>) = (17-17) / (24-14) =0,3
0,25< J>L> <0,5 - исследуемый грунт - суглинок тугопластичный.

,
γ=ρg=2,12 ∙9,81=20,8 кH/м3
e=0,47<0,8 - грунт низкопористый.
2.5 Деформационные характеристики
Модуль общей деформации грунтов E>0> определяется по данным компрессионных испытаний грунтов:

е>1> - коэффициент пористости при давлении Р>1>, кПа равном природному в уровне подошвы FL; а>с> - коэффициент сжимаемости

е>2> - коэффициент пористости при давлении Р>2>, кПа равном контактному, β - коэффициент определяемый по формуле:

ν - коэффициент поперечного расширения (Пуассона) принимается равным для грунтов:
крупнообломочных - ν = 0,27;
песков и супесей - ν = 0,3;
суглинков - ν = 0,35;
глин - ν = 0,42;
При отсутствии данных испытаний значения величины Е>0> принимают по табл.1 и 2 приложения 1 СНиП 2.02.01.
Компрессионные зависимости е=f (P)
Таблица 2.2
|
Давление Р, кПа |
Коэффициент пористости е |
|
|
I пласт (песок мелкий) |
II пласт (суглинок тугопластичный) |
|
|
50 |
0,562 |
0,389 |
|
100 |
0,551 |
0,374 |
|
200 |
0,530 |
0,363 |
|
300 |
0,514 |
0,344 |
|
400 |
0,432 |
0,327 |
Рисунок 2.2.: Компрессионные зависимости е=f (P)
еI>1>=0,562; еI>2>=0,541; еII>1>=0,389; еII>2>=0,369;




2.6 Прочностные характеристики
Показатели прочности - угол внутреннего трения φ и удельное сцепление с, кПа, определяют по данным испытаний грунтов в приборах плоскостного сдвига.
При отсутствии опытных данных нормативные значения величин φ>n> и c>n> принимают по табл.1 и 2 приложения 1 СниП 2.02.01.
Песок мелкий:
φ=24о
с=2,8 кПа.
Суглинок тугопластичный:
φ=17о
с=32 кПа.
3. Нагрузки и воздействия
3.1 Схема давлений и нагрузок
В зависимости от продолжительности действия различают постоянные, временные (длительные и кратковременные), а также особые нагрузки.
Рисунок 3.1.: Действующие давления и нагрузки.
К постоянным нагрузкам проектируемого сооружения относятся:
Собственный вес конструкций и оборудования: F>vg1> - фундаментной монолитной железобетонной плиты; F>vg2> - передней стены (за вычетом объема проемов для входа воды); F>vg3> - разделительной стены; F>vg4> - задней стены; F>vg5> и F>vg6> - обеих боковых стен; F>vg7> - межсекционных перегородок.
Равнодействующие давления грунтов (с учетом взвешивания в воде песков): F>ha> - активного (распор); F>ha> - пассивного (отпор);
К длительным нагрузкам относится вес насосных агрегатов F>VHi>, распределительных устройств и электрощитов, а также сороудерживающих решеток и вращающихся сеток.
К кратковременным нагрузкам относится горизонтальная нагрузка F>hq>, вследствие давления подъемно-транспортного оборудования и складирования материалов на площади, прилегающей к задней стене сооружения (т. н. монтажная нагрузка, принимаемая равной 10 кН/м2).
3.2 Значения давлений и нагрузок
Основными характеристиками нагрузок являются их нормативные значения F>n, i>. Расчетное значение нагрузки F>i>, определяется как произведение:
F>i>= F>n, i> ∙γ>f>
γ>f> - коэффициент надежности по нагрузке (для собственного веса железобетонных конструкций и грунтов в природном залегании γ>f> =1,1).
Нормативные значения нагрузок F>vgi>, определяют по формуле:
F>vg> =b>э> l>э> h>э> γ>жб >b>э>, l>э> и h>э> - размеры элемента. γ>жб> =25 кН/м3 - собственный вес железобетона. F>vg1> =9∙12,9∙0,7∙25=2032 кН
F>vg2> = (12,9∙9,1∙0,25-4 (2,5∙2∙0,25)) ∙25=609 кН
F>vg3> =12,4∙9,1∙0,25∙25=705 кН, F>vg4> =12,9∙9,1∙0,25∙25=734 кН
F>vg5> = F>vg6> =8,5∙9,1∙0,25∙25=484 кН, F>vg7> =1,5∙9,1∙0,25∙25=85 кН
Горизонтальные σ>hа> активное и σ>hp> пассивное давления грунта на заднюю и переднюю стены определяют по формулам:
,

где γ>sb> - собственный вес взвешенного в воде песчаного грунта; ξ>а> и ξ>р> - коэффициенты активного и пассивного давления грунта:

,


Равнодействующие активного F>ha> и пассивного F>hp> давления грунтов:


l - размер стены в направлении, перпендикулярном осям насосных агрегатов.
Гидростатическое давление на заднюю стенку в уровне меженных вод:

Равнодействующая гидростатического давления на заднюю стенку:

Равнодействующая F>hq> от действия монтажной равномерно распределенной нагрузки:

Вес насосного агрегата F>VH>:

3.3 Равнодействующая горизонтальных сил
Суммарная горизонтальная сила F>h> определяется алгебраическим суммированием:
F>h> = F>hq> + F>ha> + F>hw> - F>hp>
F>h> =460+2890+2960 -1685=4625 кН
Уравнение моментов всех сил относительно отметки подошвы, включая равнодействующую, запишем в виде:
F>h> l>h>= F>hq> l>hq> + F>ha> l>ha> + F>hw,1> l>hw,1> + F>hw,2> l>hw,2> - F>hp> l>hp>
Из решения этого уравнения получим значение l>h>
Рисунок 3.2.: Расположение горизонтальных сил и их равнодействующей.

3.4 Равнодействующая вертикальных сил
Суммарная вертикальная сила F>v> от собственного веса днища, стен, перегородок и насосов:

Уравнение моментов всех сил относительно центра симметрии подошвы, включая равнодействующую, запишем в виде:

Решив уравнение, получим значение l>v>.
Р
исунок
3.3

3.5 Расчетная нагрузка на основание
После установления положения относительно центра симметрии подошвы равнодействующей горизонтальных и вертикальных нагрузок строят параллелограмм сил (Рис.3.4). В результате определяем эксцентриситет приложения равнодействующей нагрузок в направлении поперечной e>b> и продольной e>l>=0 осей фундаментной плиты.
Угол наклона к вертикали расчетной нагрузки на основание:

δ=39о

Рисунок 3.4.: Расчетная схема фундамента.
4. Расчет основания по несущей способности
Цель расчета - обеспечение прочности и устойчивости основания, а также недопущение сдвига фундамента по подошве и его опрокидывания.
Расчет основания по несущей способности производится исходя из условия:

где Fu - сила предельного сопротивления основания; γ>c> - коэффициент условий работы, принимаемый: для песков, кроме пылеватых γ>c> = 1,0; для песков пылеватых и пылевато-глинистых грунтов γ>c> = 0,9.
4.1 Вертикальная составляющая силы предельного сопротивления
Вертикальная составляющая силы предельного сопротивления F>vu> основания, сложенного нескальными грунтами в стабилизированном состоянии для фундамента с плоской подошвой определяют по формуле:

где b’,l’ соответственно приведенные ширина и длина фундамента, вычисляемые по формулам:
b’=b=2e>b>l’=l-2e>l>
N>y>, N>q>, N>c> - безразмерные коэффициенты несущей способности, определяемые по таблице 7 СНиП 2.02.01-83 в зависимости от расчетного значения угла внутреннего трения φ>1> и угла наклона к вертикали δ равнодействующей внешней нагрузки на основание F в уровне подошвы фундамента; γ>1> γ’>1> - расчетные значения собственного веса грунтов, находящихся в пределах возможной призмы выпирания соответственно ниже и выше подошвы фундамента, d - глубина заложения фундамента, м; расчетное значение удельного сцепления с>1>, КПа; ξ>γ>, ξ>q>, ξ>c> - коэффициенты формы подошвы фундамента, определяемые по формулам:
ξ>γ>=1-0,25/ηξ>q>=1+0,25/η, ξ>c>=1+0,25/ηη=l/b
Здесь l и b - соответственно длина и ширина подошвы фундамента, принимаемые в случае внецентренного приложения равнодействующей нагрузки, равными приведенным значениям l/, и b'.
Такой расчет допускается выполнять, если соблюдается условие: tgδ<sinφ>1, >tgδ=0,82>sinφ>1>=sin24o=0,41. Условие не выполняется.
4.2 Расчет фундамента на сдвиг
Если условие не выполняется, следует производить расчет фундамента на сдвиг по подошве (плоский).
,
,

Где
- суммы проекций на плоскость скольжения
расчетных сдвигающих и удерживающих
сил, определяемых с учетом активного и
пассивного давлений грунта на заднюю
и переднюю стены сооружения.

Условие не выполняется. устойчивость на сдвиг не обеспеченна.
С
целью повышения устойчивости,
предусматриваем "зуб" в подошве
фундамента сооружения.
4.3 Проверка недопущения опрокидывания
Кинематически возможнойсхемой потери устойчивости является опрокидывание сооружения относительно передней грани фундамента.
,

устойчивость на опрокидывание не обеспеченна. С целью повышения устойчивости, предусматриваем "зуб" в задней стенке сооружения.
5. Расчет основания по деформациям
Цель - ограничение абсолютных перемещений здания водозабора. Совместная деформация основания и сооружения характеризуется:
абсолютной осадкой основания S, м;
креном сооружения i;
горизонтальным перемещением фундамента u, м.

где
- предельные значения совместной
деформации основания сооружения.
5.1. Контактное давление
Среднее давление под подошвой фундамента:

не должно превышать расчетного сопротивления грунта основания R, определяемого по формуле:

где γ>с1> и γ>с2> - коэффициенты условий работы, принимаемые по СНиП 2.02.01-83; k - коэффициент, принимаемый равным 1, если прочностные характеристики грунта определены непосредственными испытаниями, и 1,1, если приняты по таблицам; М>γ>, М>q>, М>с - >коэффициенты, принимаемые по СНиП 2.02.01-83; k>z> - коэффициент, принимаемый равным:
при b < 10 м k>z>=1;
при b ≥ 10 м k>z>=z>0>/b + 0,2 (здесь z>0>=8м);
- удельный вес грунта ниже и выше подошвы
фундаментной плиты.



В связи с внецентренностью приложения нагрузки проверяются условия:




Условие
не соблюдается, необходимо увеличить
ширину подошвы b или глубину заложения
d фундамента.
Р
исунок
5.1.: Распределение контактного давления
по подошве.
5.2. Абсолютная осадка фундамента
Осадка основания S, м, с использованием расчетной схемы в виде линейно деформируемого полупространства, определяется методом послойного суммирования по формуле:

где β -
безразмерный коэффициент, равный 0,8;
- среднее значение дополнительного
вертикального напряжения в i-том
слое грунта, равное полусумме на верхней
и нижней границах слоя по вертикали,
проходящей через центр подошвы фундамента;
- толщина и модуль деформации i-го
слоя грунта; n - число слоев, на которые
разбита сжимаемая толща основания.
Расчет выполняется в последовательности:
На чертеже в масштабе М 1: 100 (М 1: 200) наносится поперечное сечение сооружения ниже дна, с указанием отметок FL и LL.
Слева от вертикальной оси, проходящей через центр тяжести подошвы (точка О), строится эпюра давления σ>zg>, от собственного веса с учетом взвешивания песка водой и положения литологической границы LL.
Дополнительное вертикальное давление р>о> непосредственно под подошвой фундамента определяется как разность между контактным давлением р и вертикальным напряжением σ>zg,o> от собственного веса грунта на уровне отметки FL:

Для построения эпюры дополнительного давления σ>zp> толща грунта ниже отметки FL разбивается на ряд слоев мощностью 0,2b. Значение величины σ>zp> для любого сечения, расположенного на глубине z от подошвы, определяется по формуле:

где α - коэффициент затухания давления, принимаемый по таблице 1 приложения 2 СНиП 2.02.01-83.
Расчеты удобно выполнять в табличной форме.
Эпюра σ>zp> откладывается справа от оси в том же масштабе, что и σ>zg>.
Устанавливается
положение отметки ВС из условия:
,
для чего вправо от оси откладывается
эпюра σ>zg>, уменьшенная в 5 раз.
Если найденная по указанному выше условию нижняя граница сжимаемой толщи находится в слое грунта с модулем деформации Е < 5 МПа (5000 кПа) или такой слой залегает непосредственно ниже отметки FL, нижняя граница сжимаемой толщи определяется исходя из условия >zр >= 0,1>zg.. >Устанавливается количество слоев n, шт., в пределах сжимаемой толщи Н>сж>. Определяется значение величины осадки S методом послойного суммирования.

Построение эпюры дополнительного давления
Таблица 5.1.
-
Относительная глубина

Глубина ниже отметки FL z, м
α
σ>zp>, кПа
0
0
1
15,3
0,4
1,8
0,972
14,8716
0,8
3,6
0,848
12,9744
1,2
5,4
0,682
10,4346
1,6
7,2
0,532
8,1396
2
9
0,414
6,3342
n
=1
Рисунок 5.2: Схема к расчету осадки основания

Согласно приложению 4 СНиП 2.02.01. - 83 S>и>=20 см.
Условие
выполняется:
0,09 см < 20 см
5.3. Крен сооружения
Крен фундамента i>b> при действии внецентренной нагрузки определяется по формуле:

где k>e>=0,19 - коэффициент, принимаемый по таблице 5 приложения 2 СНиП 2.02.01. - 83; v - коэффициент поперечного расширения (Пуассона), v=0,3; k>т>=1 - коэффициент, учитываемый при расчете крена фундаментов по схеме линейно деформируемого слоя принимаемый по таблице 3 приложения 2 СНиП 2.02.01. - 83.

Согласно приложению 4 СНиП 2.02.01. - 83 i>u>=0,004<i>b>=0,0077. Условие не выполняется.
5.4. Горизонтальное перемещение фундамента
Расчет горизонтального смещения и следует производить по формуле:

где Ф - функция, определяемая из выражения:

Н>s> - толщина сжимаемого слоя
Расчет предельного горизонтального смещения производится по формуле:


Условие
не выполняется: 1,76 > 0,7.
6. Строительный котлован водозабора
6.1. Особенности строительства
Строительные площадки в поймах рек могут затапливаться поверхностными (паводковыми) водами, что усложняет условия производства работ при возведении сооружений. К числу особенностей в таких случаях можно отнести:
Необходимость защиты строительной площадки от затопления внешними водами с помощью перемычек.
Выполнение мероприятий по закреплению откосов перемычек, обеспечению устойчивости стен котлованов и устройству их ограждений.
Потребность в специальных средствах, технологиях и оборудовании.
Проведение работ по защите котлованов от грунтовых вод или отводу их за пределы застройки.
6.2. Назначение размеров выемки
Рисунок 6.1.: Габариты котлована. 1-пойма, 2-искусственно отсыпаемый полуостров, 3-дно котлована, 4-откос котлована, 5-контур сооружения, 6-ограждающая стена из металлического шпунта.
Строительный котлован со стороны русла и с боков выполняется в ограждающих стенках из металлического шпунта, а со стороны поймы - с естественным откосом. До начала погружения стальных элементов в части русла со стороны берега устраивается искусственный полуостров, по которому впоследствии перемещается копровое устройство с вибропогружателем. Размеры котлована в плане в уровне его дна диктуются габаритами сооружения b x l с запасами, обеспечивающими возможность выполнения необходимых технологических операций во время строительства (рисунок 6.1).
6.3. Перемычки
Это временное сооружение для ограждения места постройки фундамента или подземной части конструкции от поверхностных вод. При возведении береговых водозаборов перемычки устраивают как со стороны русловой части, так и на пойме. В современном водохозяйственном строительстве применяют следующие их основные типы: грунтовые; однорядные шпунтовые с грунтовой обсыпкой; двухрядные шпунтовые с грунтовой засыпкой; из металлического или железобетонного шпунта. На реках с песчаным руслом перемычки могут быть устроены средствами гидромеханизации из местного грунта, как на пойме, так и в русле. При скорости течения воды в русле до 0,5...0,7 м/с песок не уносится при отсыпке его непосредственно в воду, а в результате заиливания взвешенными в воде мелкими частицами его водопроницаемость снижается. Песчаные перемычки применяют при глубине воды в русле до 4 метров, а иногда - до 4... б метров с шириной поверху не менее 2...3 метров и крутизной откосов 3: 1 - 5: 1 (наружный) и 3: 1 (внутренний).
6.4. Грунтовая перемычка на пойме
Этот тип применяется чаще всего при глубине паводковых вод на пойме не более 1,3...1,7 м (рисунок 6.2).
Рисунок 6.2.: Грунтовая перемычка на пойме.
Лучшими грунтами для их отсыпки являются супеси или мелкие суглинки. При скорости течения V = 0,1 м/с наружные откосы оставляют без крепления. Основание перемычки должно быть слабо - или водонепроницаемым. Поэтому пласт песчаного грунта прорезают непроницаемой преградой с заглублением ее ниже отм. LL не менее 0,5. .1,0 м. Грунтовые перемычки рассчитывают на устойчивость против плоского сдвига и фильтрацию воды через ее профиль по схеме плоской задачи - для участка в плане длиной 1 п. м. Расчет на плоский сдвиг на участке 1 п. м. перемычки производится из условия:

где
- суммы проекций на плоскость скольжения
соответственно расчетных сдвигающих
и удерживающих сил.


Воздействие
,
вследствие гидродинамического давления
воды (скоростного напора):


Удерживающая
сила трения
по
основанию перемычки:

Собственный
вес 1 п. м. перемычки
с учетом взвешивания частиц грунта
водой:



Условие выполняется. Сдвига не будет.
Удельный расход воды, q на 1 п. м. просачивающейся через грунт отсыпки, по закону Дарси:

Расход воды Q по всей длине перемычки L>u>, м:

Исходя из значения величины Q, подбирают тип и количество насосов для откачки воды за пределы котлована.
Рисунок 6.3.: Схема двухрядной шпунтовой перемычки с грунтовой засыпкой.
6.5. Двухрядная шпунтовая перемычка с грунтовой засыпкой
Такие перемычки состоят из двух шпунтовых рядов, пространство между которыми заполняется грунтом. Их применяют для защиты котлована не только от поверхностных, но и грунтовых вод (рисунок VI-3).
Внутреннее ограждение служит одновременно для защиты от грунтовых вод и для закрепления стены котлована. Его погружают ниже литологической границы на глубину не менее 0.5...1,5 м с проверкой устойчивости ряда, а также устойчивости основания в целом. Наружный шпунтовой ряд, служащий для удержания грунтовой засыпки и придания перемычке общей жесткости и устойчивости забивают ниже дна реки на глубину 1,5...2,5 м. Головы маячных свай шпунтовых рядов соединяют горизонтальными схватками, обеспечивающими совместную работу стен. Ширину перемычек назначают из конструктивных соображений:


Окончательно
принимаем ширину перемычки
.
Шпунтовые ряды такой перемычки рассчитывают по схемам, соответствующим разным стадиям ее сооружения,
Внешняя стенка снаружи испытывает давление воды с равнодействующей:

Обе стенки
изнутри испытывают давление грунта
заполнителя и воды, равнодействующую
которой
условно принимают в половинном размере:

Кроме этого, на внутреннюю стенку действует гидростатическое давление воды и взвешенного грунта ниже дна реки и котлована (рисунок 6.3).
Примем глубину заделки в грунт ниже дна котлована принимается в первом приближении равной 7,4 м и проверим из соотношения суммы моментов, опрокидывающих и удерживающих сил относительно точки О:
,
,



Из анализа эпюры находим:








Из анализа эпюры находим:





Размеры сечения шпунта находят по изгибающим моментам, определяемым из рассмотрения равновесия верхних отсекаемых частей стены. Наиболее опасное сечение находится на глубине h>0>, ниже дна котлована. Из условия равенства суммы горизонтальных сил, приложенных к шпунту выше искомого сечения, можем приближенно записать:

где р - суммарная величина давления в уровне проектного дна:

предельное
значение углового коэффициента уравнения
линии эпюры результирующего давления
на стену ниже дна котлована:


Решая уравнение относительно h>0>, получим для определения местоположения опасного сечения шпунтового ограждения формулу:

Тогда наибольший изгибающий момент М>max> в опасном сечении определяется по формуле

Профиль стального шпунта (плоский, корытный, зетовый, типа "Ларсен") подбирается по техническим характеристикам. Требуемый момент сопротивления W, шпунта определяется зависимостью:

где R>y> - расчетное сопротивление стали на площадке текучести.
6.6. Элементы котлована
Разработке грунта выемки предшествует отсыпка в примыкающий к берегу части русла искусственного полуострова, с последующим устройством перемычек. На пойменной части стройплощадки для защиты котлована от паводковых вод устраивают грунтовые перемычки. В песчаном основании между дневной поверхностью (отм. NL) и кровлей подстилающего пылевато-глинистого пласта (отм. LL) устраивают противофильтрационные преграды в нашем случае с использованием технологии "стена в грунте. Со стороны русла ограждающие конструкции могут быть представлены различными вариантами в нашем случае - свободностоящая стенка из металлического шпунта с грунтовой засыпкой для уменьшения водопроницаемости.
6.7. Производство работ
Погружение и извлечение металлического или деревянного шпунта осуществляют с помощью специальных машин и оборудования:
Для погружения элементов с относительно небольшими лобовым сопротивлением и массой применяют высокочастотные вибрационный погружатель ВПП-6. Для жесткой связи вибровозбудителя с погружаемой шпунтиной служит наголовник. Более высокие значения статического момента дебалансов, малую частоту колебаний и большую массу имеют низкочастотный вибропогружатель В1-772. Вынуждающая сила у этих механизмов достигает сотен кН, а у В1-722-1250 и 1700 кН.
Свае - и шпунтовыдергиватели это специально сконструированные машины для извлечения забитого в грунт шпунта используем виброударный шпунтовыдергиватель Ш-2. Шпунтовыдергиватель Ш-2 создан на базе вибратора и предназначен для извлечения стальных шпунтин массой до 2 т и длиной до 20 м. При работе удары, направленные вверх, наносят корпусом вибратора о наковальню, расположенную на траверсе над корпусом. Шпунтовыдергиватель подвешивают к крану через пружинный амортизатор.
7. Подземные противофильтрационные преграды
С целью снижения
просачивания воды в котлован со стороны
поймы в песчаной толще основания
устраивают водонепроницаемые преграды.
Для этого используют: инъектирование
грунтов (цементация, битумизация,
химические растворы); искусственное
замораживание грунтов; технологию
"стена в грунте"; струйный способ;
цементно-грунтовые секущиеся сваи
(оборудование шведской фирмы "Алимак").
Толщина преграды
определяется из условия сохранения
фильтрационной прочности материала по
формуле:

где
- действующий напор (перепад уровней),
м, см. п. VI-4; J>cr>
- критический градиент напора, при
котором наступает разрушение материала.
7.1. Цементно-грунтовые секущиеся сваи (оборудование фирмы "Алимак")
Противофильтрационный экран может быть устроен с помощью оборудования, которое разработано шведской фирмой "Алимак". В массиве грунта бурится скважина глубиной до 10 м и диаметром 0,5 м. В момент, когда бур начинает извлекаться из скважины, через его полный вал под давлением подается цемент и перемешивается с разрыхленным грунтом. В грунте образуется цементно-грунтовая свая. Затем на расстоянии, меньшем диаметра сваи, бурится новая скважина, в которой также устраивается цементная колонна. Между двумя колоннами снова бурят скважину, при этом частично захватывая материал двух соседних свай. В результате образуется стенка из сомкнутого ряда свай, обладающая противофильтрационными свойствами. Оборудование позволяет устраивать не только вертикальные, но и наклонные сваи (до 15° во всех направлениях).
Литература
Баранов Н.Н. "Основание и фундамент подводной части водозаборного сооружения берегового типа"-Методическое пособие для курсового проектирования по дисциплине "Механика грунтов, основания и фундаменты" для студентов специальности Т. 19.04. - "Водохозяйственное строительство". Минск 2000 г.
Штоль Т.М. и др. "Технология возведения подземной части зданий и сооружений". "Стройиздат" 1990 г.
СНиП 2.02.01. - 83* "ОСНОВАНИЯ ЗДАНИЙ И СООРУЖЕНИЙ".