АБЗ
Министерство Общего и Профессионального Образования Российской Федерации
Р
остовский
государственный строительный университет
Курсовой проект по дисциплине
Производственные предприятия транспортных сооружений
АБЗ
Расчетно-пояснительная записка
111774 РПЗ
Выполнил студент группы Д-327
Стрижачук А. В.
Руководитель:
Литвинова Л. А.
Заведующий кафедры:
Илиополов С. К.
Ростов-на-Дону
1999 г.
Исходные данные.
Длина участка строительства 10
Ширина проезжей части 7
Толщина асфальтобетона 0,1
Тип асфальтобетона В
Плотность асфальтобетона 2
Число смен 1
Продолжительность работ 4
Длина транспортировки 11
Удельное сопротивление стали 0,12∙10-4 Ом∙м
Содержание:
Климатическая характеристика района. 4
1. Обоснование размещения АБЗ. 5
1.1. Сравнение времени остывания асфальтобетонной смеси со временем ее доставки к месту укладки. 5
1.2. Источники обеспечения АБЗ водой и электроэнергией. Нормативные требования. 5
2. Режим работы завода и его производительность. 5
2.1. Часовая производительность АБЗ, QЧ, т/ч. 5
2.2.Расчет расхода материалов. 6
3. Определение длины железнодорожного пути для прирельсовых АБЗ. 7
3.1.Количество транспортных единиц N, прибывающих в сутки. 7
3.2. Длина фронта разгрузки L, м. 7
4. Склады минеральных материалов. 7
4.1.Расчет щебеночных штабелей. 7
4.2. Выбор и расчет ленточных конвейеров. 7
4.3. Выбор типа бульдозера. 8
5. Битумохранилище. 9
5.1. Расчет размеров битумохранилища. 9
5.2. Количество тепла, необходимое для нагрева битума в хранилище и приямке Q, кДж/ч. 9
5.3. Расчет электрической системы подогрева. 10
6. Определение количества битумоплавильных установок. 11
6.1.Часовая производительность котла ПК, м3/ч. 11
6.2.Расчет количества котлов. 11
7.Расчет склада и оборудования для подачи минерального порошка. 12
7.1.Расчет вместимости силоса в склад. 12
7.2.Расчет пневмотранспортной системы. 12
8. Расчет потребности предприятия в электрической энергии и воде. 16
8.1.Расчет потребного количества электроэнергии. 16
8.2.Определение общего расхода воды. 16
8.3. Определение расхода воды на восстановление запаса в пожарном резервуаре, ВПОЖ, м3/ч. 16
8.4. Определение диаметра трубы водопроводной сети, dТР, м. 16
9. Технологическая схема приготовления модифицированного битума. 17
Литература. 18
Климатическая характеристика района.
Кемеровская область расположена в III-ей дорожно-климатической зоне — зоне со значительным увлажнением грунтов в отдельные периоды годы. Для района проложения автомобильной дороги характерен климат с холодной зимой и теплым летом, что видно из дорожно-климатического графика (рис 1.1).
Лето теплое: среднесуточная температура наиболее жаркого месяца (июля) составляет +18,4˚С; зимы холодные со среднесуточной температурой наиболее холодного месяца (января) –19,2˚С. Отрицательные температуры воздуха бывают с ноября по март, а расчетная длительность периода отрицательных температур Т=179 сут.
Абсолютный максимум температуры воздуха в году достигает +38˚С, минимум -55˚С. Следовательно, амплитуда температуры составляет 93˚С. Годовая средняя суточная амплитуда температуры воздуха бывает в июне (13,2˚С), а максимальная в феврале (30,2˚С).
За год выпадает 476 мм осадков; количество осадков в жидком и смешанном виде 362 мм за год; суточный максимум 46 мм. Средняя за зиму высота снежного покрова составляет 51 см, а число дней со снежным покровом до 162 сут (период 03.11 — 13.04).
Для рассматриваемого района зимой преобладают ветры южного, юго-восточного и юго-западного направлений. Летом преобладают ветры южного и северного направлений (рис 1.2). Средняя скорость ветра за январь равна 3,41 м/с. Максимум из средних скоростей по румбам за январь — 6,8 м/с. Средняя скорость ветра за июль равна 3,55 м/с. Максимум из средних скоростей по румбам за июль — 4,4 м/с.
1. Обоснование размещения АБЗ.
Завод будет размещен вблизи железнодорожных путей, так как все дорожно-строительные материалы будут доставляться по ним.
1.1. Сравнение времени остывания асфальтобетонной смеси со временем ее доставки к месту укладки.
Н
еобходимо
сравнить время остывания смеси t>1>,
ч, со временем ее доставки к месту укладки
t>2>, ч
(t>1>≥t>2>).
г
де G
— количество смеси в кузове самосвала,
для самосвала ЗИЛ-ММЗ-555, G=4500
кг;
С>СМ> — теплоемкость горячей смеси, С>СМ>=1,1 кДж/(кг∙˚С);
F — площадь стенок кузова самосвала, для самосвала ЗИЛ-ММЗ-555 F=11 м2;
h — коэффициент теплопередачи, h=168 кДж/(м2∙ч∙˚С);
Т>АБЗ> — температура смеси при отправке с АБЗ, ˚С;
Т>СМ> — температура смеси при ее укладке, ˚С;

Т>В>
— температура воздуха, ˚С.
г
де L
— дальность транспортировки, км;
v — скорость движения самосвала, v=40…60 км/ч.
1.2. Источники обеспечения АБЗ водой и электроэнергией. Нормативные требования.
Обеспечение АБЗ водой происходит путем водозабора из водопроводной сети. Электроэнергия поступает из городской сети. АБЗ размещают с подветренной стороны к населенному пункту, на расстоянии не ближе 500 м от него. Площадка АБЗ должна быть достаточно ровной, с уклоном 25-30‰, обеспечивающим отвод поверхностных вод. Коэффициент использования площади должен быть не менее 0,6, а коэффициент застройки — не менее 0,4. Уровень грунтовых вод — не выше 4 м.
При размещении зданий и сооружений на территории завода следует учитывать следующее:
Здания и сооружения с повышенной пожарной опасностью следует размещать с подветренной стороны по отношению к другим зданиям;
Здания и сооружения вспомогательного производства должны располагаться в зоне цехов основного производства;
Складские сооружения нужно располагать с учетом максимального использования железнодорожных и других подъездных путей для погрузочных, разгрузочных операций и обеспечения подачи материала к основным цехам кратчайшим путем;
Энергетические объекты нужно располагать по отношению к основным потребителям с наименьшей протяженностью трубопровода и ЛЭП;
При устройстве тупиковых дорог необходимо в конце тупика предусматривать петлевые объезды или площадки размером не менее 12х12 м для разворота автомобилей.
2. Режим работы завода и его производительность.
2
.1. Часовая
производительность АБЗ, Q>Ч>,
т/ч.
где П — необходимое количество асфальтобетонной смеси, т;

Ф
— плановый фонд времени.
г
де 8
ч — продолжительность смены;
n — количество смен;
22,3 — число рабочих дней в месяце;
m — количество месяцев укладки смеси;
0,9 — коэффициент использования оборудования в течение смены;

0,9
— коэффициент использования оборудования
в течении m месяцев.
г
де k
— коэффициент, учитывающий неравномерный
расход смеси, k=1,1…1,5;
F — площадь укладки асфальтобетонной смеси, м2, F=10000∙7=70000 м2;
h — толщина укладки асфальтобетонной смеси, м;
ρ — плотность смеси, ρ=2,0…2,4 т/м3.

Полученное значение округляем до целого числа и принимаем смеситель типа ДС-617.
Расчет расхода материалов.
Требования к материалам.
Д
ля
приготовления горячей смеси применяются
вязкие нефтяные битумы марок БНД 60/90,
БНД 90/130. Щебень следует применять из
естественного камня. Не допускается
применение щебня из глинистых, известковых,
глинисто-песчаных и глинистых сланцев.
Пески применяются природные или
дробленные. Минеральный порошок
применяется активизированный и не
активизированный. Допускается использовать
в качестве минерального порошка
измельченные металлургические шлаки
и пылевые отходы промышленности.
Активизированный минеральный порошок
получают в результате помолки каменных
материалов в присутствии активизирующих
добавок, в качестве которых используются
смеси состоящие из битума и ПАВ в принятом
соотношении 1:1
С
уточная
потребность материалов:
где 8 ч — продолжительность смены;
n — число смен;
Q>Ч> — часовая производительность завода, т/ч (м3/ч);

N>ki>
— потребность в K>i>
компоненте на 100 т асфальтобетонной
смеси.
У
читывая
естественную убыль (2% для щебня, песка,
битума и 0,5% для минерального порошка)
получаем:
Таблица 1. Потребность АБЗ в минеральных материалах.
|
Материал |
Единица измерения |
Суточная потребность |
Норма запаса, дней |
Запас единовременного хранения |
|
Щебень |
м3 |
72,2 |
15 |
1083 |
|
Минеральный порошок |
т |
24,7 |
15 |
387 |
|
Битум |
т |
18,1 |
25 |
452,5 |
3. Определение длины железнодорожного пути для прирельсовых АБЗ.
Количество транспортных единиц N, прибывающих в сутки.
где Q>i> — суточная потребность, т (m=V∙ρ);
k — коэффициент неравномерности подачи груза, k=1,2;
q — грузоподъемность вагона, т;

ρ>щ>
— плотность щебня, ρ>щ>=1,58
т/м3.
3.2. Длина фронта разгрузки L, м.
где l — длина вагона, l=15 м;
n — число подач в сутки, n=1…3.
4. Склады минеральных материалов.
Расчет щебеночных штабелей.
О
бычно
для АБЗ проектируются склады щебня и
песка открытого штабельного типа
небольшой емкости с погрузочно-разгрузочными
механизмами (конвейеры, фронтальные
погрузчики). При проектировании необходимо
предусмотреть бетонное основание или
основание из уплотненного грунта,
водоотвод от штабелей, распределительные
стенки между штабелями, подачу материалов
в штабеля и в агрегат питания ленточными
транспортерами.

4.2. Выбор и расчет ленточных конвейеров.
Н
а
АБЗ для непрерывной подачи минерального
материала используют ленточные и
винтовые конвейеры. Ленточными конвейерами
можно перемещать песок и щебень в
горизонтальном направлении и под углом
не превышающим 22˚. Выполняют ленточные
конвейеры из нескольких слоев прорезиненной
хлопчатобумажной ткани.
Ширина ленты В, м, определяется по
часовой производительности:
где Q — часовая производительность, т/ч;
v — скорость движения ленты, м/с;

ρ
— плотность материала, т/м3.
Выбираем конвейер типа С-382А (Т-44).
4.3. Выбор типа бульдозера.
Таблица 2. Марка бульдозера и его характеристики.
|
Тип и марка машины |
Мощность двигателя, кВт |
Отвал |
|||
|
Тип |
Размеры, мм |
Высота подъема, мм |
Заглубление, мм |
||
|
ДЗ-24А (Д-521А) |
132 |
Неповоротный |
3640х1480 |
1200 |
1000 |
Производительность П>Э>, т/ч выбранного бульдозера:
где V — объем призмы волочения, V=0,5BH2=0,5∙3,64∙(1,48)2=3,987 м3, здесь В — ширина отвала, м; Н — высота отвала, м;
k>Р> — коэффициент разрыхления, k>Р> = 1,05…1,35.
k>ПР> — поправочный коэффициент к объему призмы волочения, зависящий от соотношения ширины В и высоты Н отвала Н/В=0,41, а также физико-механических свойств разрабатываемого грунта, k>ПР>=0,77;
k>В> — коэффициент использования машин по времени, k>В>=0,8;
Т>Ц> — продолжительность цикла, с;
Т>Ц>=t>Н>+t>РХ>+t>ХХ>+t>ВСП>,
з
десь t>Н>
— время набора материала,
где L>Н> — длина пути набора, L>Н>=6…10 м;
v>1> — скорость на первой передаче, v>1>=5…10 км/ч;
t
>РХ>
— время перемещения грунта, с,
где L — дальность транспортировки, м, L=20 м;
v>2> — скорость на второй передаче, v>2>=6…12 км/ч;
t
>ХХ>
— время холостого хода, с,
где v>3> — скорость на третьей передаче, v>3>=7…15 км/ч;
t
>ВСП>
= 20 с;→ Т>Ц >= 3,84 + 7,2 + 9,16 + 20 = 40,2 с;
5. Битумохранилище.
5.1. Расчет размеров битумохранилища.
Для приема и хранения вяжущих устраивают ямные постоянные и временные битумохранилища только закрытого типа. Битумохранилища устраивают на прирельсовых АБЗ с битумоплавильными установками. Современные закрытые битумохранилища ямного типа должны быть защищены от доступа влаги как наружной, так и подземной путем устройства специальных зданий, дренажей или навесов. Глубина ямного хранилища допускается в пределах 1,5-4 м в зависимости от уровня грунтовых вод. Для достижения рабочей температуры применяют электронагреватели. Наиболее перспективный способ нагрева битума — разогрев в подвижных слоях с использованием закрытых нагревателей. Для забора битума из хранилища устраивают приемники с боку или в центре хранилища. Таким образом, битумохранилище состоит из собственно хранилища, приямка и оборудования для подогрева и передачи битума.
З
начение
запаса единовременного хранения битума
округляем до 500, тогда средняя площадь
F, м2 битумохранилища:
где Е — емкость битумохранилища, м3;
h — высота слоя битума, h = 1,5…4 м.
З
атем,
исходя из значения строительного модуля,
равного трем, и отношения длины L
к ширине В битумохранилища, равного L/B
= 1,5, назначаем средние значения длин
L>ср> и
В>ср>.
В
виду
того что стенки битумохранилища
устраивают с откосом:
5.2. Количество тепла, необходимое для нагрева битума в хранилище и приямке Q, кДж/ч.
где Q>1> — количество тепла, затрачиваемое на плавление битума, кДж/ч.
где μ — скрытая теплота плавления битума, μ=126 кДж/кг;
G — количество подогреваемого битума, кг/ч, G = 0,1∙Q>см>>, >где Q>см> — производительность выбранного смесителя, кг/ч.

Q>2> — количество тепла, затрачиваемое на подогрев битума, кДж/ч:
где K — коэффициент, учитывающий потери тепла через стенки хранилища и зеркало битума, K = 1,1;
С>б> — теплоемкость битума, С>б> =1,47…1,66 кДж/(кг∙ºС);
W — содержание воды в битуме, W = 2…5%;
t>1> и t>2> —
для хранилища t>1> = 10ºС; t>2> = 60ºС;

для приемника t>1> = 60ºС; t>2> = 90ºС.


Битумоплавильные агрегаты предназначены для плавления, обезвоживания и нагрева битума до рабочей температуры. Разогрев битума в битумохранилище производится в два этапа:
I этап: Разогрев битума донными нагревателями, уложенными на дне хранилища до температуры текучести (60ºС), дно имеет уклон, битум стекает в приямок в котором установлен змеевик.
II этап: Разогрев битума в приямке до температуры 90ºС. Нагретый битум с помощью насоса перекачивается по трубопроводам в битумоплавильные котлы.
5.3. Расчет электрической системы подогрева.
Потребляемая мощность Р, кВт:
В каждом блоке по шесть нагревателей. Мощность одного блока:
где n
— количество блоков нагревателей, n = 3…4 шт.
Принимаем материал в спирали нагревателя полосовую сталь с ρ=0,12∙10-6 Ом∙м. Сечение спирали S=10∙10-6 м2.
Мощность фазы, кВт:

С
опротивление
фазы, Ом:
где U=380 В.
Длина спирали, м:

Величина тока, А:

Плотность тока, А/мм2:

6. Определение количества битумоплавильных установок.
Часовая производительность котла П>К>, м3/ч.
где n — количество смен;
k>В> — 0,75…0,8;
V>К> — геометрическая емкость котла для выбранного типа агрегата, м3;
k>Н> — коэффициент наполнения котла, k>Н>=0,75…0,8;
t>З> — время заполнения котла, мин:

где П>Н> — производительность насоса (см. таблицу 3).
Таблица 3. Тип насоса и его характеристики.
|
Тип насоса |
Марка насоса |
Производительность, л/мин. |
Давление, кгс/см2 |
Мощность двигателя, кВт |
Диаметр патрубков, мм |
|
передвижной |
ДС-55-1 |
550 |
6 |
10 |
100/75 |
t>Н>=270 мин — время выпаривания и нагрев битума до рабочей температуры;
t>В> — время выгрузки битума, мин:

где ρ — объемная масса битума, ρ=1т/м3;
Q — часовая производительность смесителя, т/ч;
ψ — процентное содержание битума в смеси.

Расчет количества котлов.
где П>Б> — суточная потребность в битуме, т/сутки;


k>П>
— коэффициент неравномерности потребления
битума, k>П>=1,2.
Выбираем тип агрегата:
Таблица 4. Тип агрегата и его характеристики.
|
Тип агрегата |
Рабочий объем, л |
Установленная мощность, кВт |
Расход топлива, кг/ч |
Производи-тельность, т/ч |
|
|
э/дв. |
э/нагр. |
||||
|
ДС-91 |
30000∙3 |
35,9 |
90 |
102,5 |
16,5 |
Расчет склада и оборудования для подачи минерального порошка.
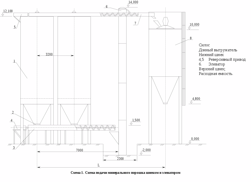
Для подачи минерального порошка используют два вида подачи: механическую и пневмотранспортную. Для механической подачи минерального порошка до расходной емкости применяют шнеко-элеваторную подачу. Применение пневмотранспорта позволяет значительно увеличить производительность труда, сохранность материала, дает возможность подавать минеральный порошок, как по горизонтали, так и по вертикали. Недостаток — большая энергоемкость. Пневматическое транспортирование заключается в непосредственном воздействии сжатого воздуха на перемещаемый материал. По способу работы пневмотранспортное оборудование делится на всасывающее, нагнетательное и всасывающе-нагнетательное. В общем случае пневмотранспортная установка включает компрессор с масло- и влагоотделителем, воздухопроводы, контрольно-измерительные приборы, загрузочные устройства подающие материал к установке, разгрузочные устройства и системы фильтров. Для транспортирования минерального порошка пневмоспособом используют пневмовинтовые и пневмокамерные насосы. Пневмовинтовые насосы используют для транспортирования минерального порошка на расстояние до 400 м. Недостаток — низкий срок службы быстроходных напорных шнеков. Камерные насосы перемещают минеральный порошок на расстояние до 1000 м. Могут применяться в комплекте с силосными складами. Включают в себя несколько герметично закрытых камер, в верхней части которой имеется загрузочное отверстие с устройством для его герметизации. В состав линии подачи входит склад, оборудование, обеспечивающее перемещение минерального порошка от склада до расходной емкости и расходная емкость.
Расчет вместимости силоса в склад.
Р
екомендуется
хранить минеральный порошок в складах
силосного типа с целью избежания
дополнительного увлажнения, которое
приводит к комкованию и снижению его
качества, а также к затруднению
транспортирования. Потребная суммарная
вместимость силосов склада ∑Vс,
м3 составляет:
где G>П> — масса минерального порошка;
ρ>П> — плотность минерального порошка, ρ>П>=1,8 т/м3;

k>П>
— коэффициент учета геометрической
емкости, k>П>=1,1…1,15.
К
оличество
силосов рассчитывается по формуле:
г
де V>C>
— вместимость одного силоса, м3;
V=20, 30, 60, 120.
Расчет пневмотранспортной системы.
Для транспортирования минерального порошка до расходной емкости принимается механическая или пневматическая система.
Для транспортирования минерального порошка можно использовать пневмовинтовые или пневмокамерные насосы. Подача в пневмотранспортную установку сжатого воздуха осуществляется компрессором. Потребная производительность компрессора Q>К>, м3/мин, составляет:

где Q>В> — расход, необходимый для обеспечения требуемой производительности пневмосистемы, м3/мин.
где Q>М> — производительность пневмосистемы, Q>М >= 0,21·Q>Ч >= 0,21·34,6 = 7,3, т/ч, Q>Ч> — часовая производительность АБЗ;
µ — коэффициент концентрации минерального порошка, µ=20…50;

ρ>В>
— плотность воздуха равная 1,2 кг/м3.
Мощность на привод компрессора N>К>, кВт:
где η=0,8 — КПД привода;
Р>0> — начальное давление воздуха, Р>0>=1 атм;
Р>К> — давление, которое должен создавать компрессор, атм.

где α=1,15…1,25;
Р>В>=0,3 атм;

Р>Р>=Н>ПОЛ>+1
— рабочее давление в смесительной
камере подающего агрегата, атм, Н>ПОЛ>
— полное сопротивление пневмотранспортной
системы, атм;
где Н>П> — путевые потери давления в атм;
Н>ПОД> — потери давления на подъем, атм;
Н>ВХ> — потери давления на ввод минерального порошка в трубопровод, атм.
Путевые потери давления:
где k — опытный коэффициент сопротивления:

где v>В> — скорость воздуха зависит от µ; при µ=20…50 соответственно v>В>=12…20 м/с;
d>ТР> — диаметр трубопровода, м:

λ
— коэффициент трения чистого воздуха
о стенки трубы:

где ν — коэффициент кинематической вязкости воздуха, м2/с, ν=14,9·10-6.
L>ПР> — приведенная длина трубопроводов, м:




где ∑l>Г> — сумма длин горизонтальных участков пневмотрассы, м, ∑l>Г>=3+3+4+4+20+20=54;
∑l>ПОВ> — длина, эквивалентная сумме поворотов (колен), м, ∑l>ПОВ>=8·4=32 (каждое колено принимаем равным 8 м);
∑l>КР> — длина, эквивалентная сумме кранов, переключателей. Для каждого крана принимают 8 м, ∑l>КР>=8·2=16;
Потери давления на подъем:
г
де ρ΄>В>
— 1,8 кг/м3 — средняя плотность
воздуха на вертикальном участке;
h — высота подъема материала, м. Принимается 12…15 м, в зависимости от типа асфальто-смесительной установки.
Потери давления при вводе минерального порошка в трубопровод:
где χ — коэффициент, зависящий от типа загрузочного устройства. Для винтовых насосов следует принимать χ = 1, для пневмокамерных χ = 2;
v>ВХ> — скорость воздуха при вводе минерального порошка в трубопровод, м/с:
ρ>ВХ> — плотность воздуха при вводе минерального порошка, кг/м3:
Тогда:
П
о
формуле (29) находим N>К>:
Н
а
основании проведенного расчета
производится подбор подающего агрегата
по табл. 11 [4].
Таблица 5. Тип подающего агрегата и его характеристики.
|
Тип и марка насоса |
Производи-тельность, м3/ч |
Дальность транспортирования, м |
Расход сжатого воздуха |
Диаметр трубопровода, мм |
Установленная мощность, кВт |
|
|
по горизонтали |
по вертикали |
|||||
|
К-2305 |
10 |
200 |
35 |
22 |
100 |
Расчет механической системы подачи минерального порошка. Механическая система представлена в виде шнеко-элеваторной подачи. Подающий агрегат — шнек.
Производительность шнека Q>Ш>, т/ч составляет:
г
де φ
— коэффициент заполнения сечения
желоба, φ=0,3;
ρ>М> — плотность минерального порошка в насыпном виде, ρ>М>=1,1 т/м3;
D>Ш> — диаметр шнека, принимаем 0,2 м;
t
— шаг винта, t=0,5D>Ш>=0,1
м;
n — частота вращения шнека, об/мин ;
k>Н> — коэффициент, учитывающий угол наклона конвейера, k>Н>=1.

Мощность привода шнека N, кВт определяется по формуле:
где L —длина шнека, м L=4 м;
ω — коэффициент, характеризующий абразивность материала, для минерального порошка принимается ω=3,2;
k>3> — коэффициент, характеризующий трансмиссию, k>3>=0,15;
V>М>=t·n/60= 0,1 — скорость перемещения материала, м/с;
ω>В> — коэффициент трения, принимаемый для подшипников качения равным 0,08;

q>М>=80·D>Ш>=16
кг/м — погонная масса винта.
Производительность элеватора Q>Э>, т/ч определяется из выражения:
где i — вместимость ковша, составляет 1,3 л;
ε — коэффициент наполнения ковшей материалом, ε=0,8;
t — шаг ковшей, м (0,16; 0,2; 0,25; 0,3; 0,4; 0,5; 0,6; 0,63);
v>П>=1,0 м/с — скорость подъема ковшей.
Необходимая мощность привода элеватора:
где h — высота подъема материала, м, принимается 14 м;
k>К> — коэффициент, учитывающий массу движущихся элементов, k>К>=0,6;
А=1,1 — коэффициент, учитывающий форму ковша;
С=0,65 — коэффициент, учитывающий потери на зачерпывание.
Таблица 6. Тип элеватора и его характеристики.
|
Тип элеватора |
Ширина ковша, мм |
Вместимость ковша, л |
Шаг ковшей, мм |
Скорость цепи, м/с |
Шаг цепи, мм |
Мощность, кВт |
Произво-дительность м3/ч |
|
ЭЦГ-200 |
200 |
2 |
300 |
0,8…1,25 |
100 |
2,0 |
12…18 |
8. Расчет потребности предприятия в электрической энергии и воде.
Расчет потребного количества электроэнергии.
Потребное количество электроэнергии N>Э>, кВт определяется:
где k>С> — коэффициент, учитывающий потери мощности, k>С>=1,25…1,60;
∑Р>С> — суммарная мощность силовых установок, кВт;

∑Р>В> — то же, внутреннего освещения, кВт, ∑Р>В>=5∙269,89+15∙318+9∙132+20∙72=8,75;
∑Р>Н> — то же, наружного освещения, кВт, ∑Р>Н>=1∙644+3∙837+5∙50=3,41;
Примечание: нормы расхода электроэнергии на 1м2 берем по табл. 12 методических указаний.

cosφ=0,75.
Определение общего расхода воды.
О
бщий
расход воды определяется по формуле,
м3:
где К>У>=1,2;
К>Т>=1,1…1,6;
В>П> — расход воды на производственные нужды, м3/ч, В>П>=10…30;

В>Б>
— расход воды на бытовые нужды,
потребление, м3/ч, В>Б>=0,15…0,45.
8.3. Определение расхода воды на восстановление запаса в пожарном резервуаре, В>ПОЖ>, м3/ч.
Р
асход
В>ПОЖ> определяем по формуле:
где q>ПОЖ>=5…10 л/с;
Т — время заполнения резервуара, Т=24 ч.
8.4. Определение диаметра трубы водопроводной сети, d>ТР>, м.
где V — скорость движения воды, V=1,0…1,5 м/с.
Принимаем диаметр трубы водопроводной сети равный 0,10 м.
9. Технологическая схема приготовления модифицированного битума.
Сама схема приводится в конце РПЗ. Модифицированный битум — органическое вяжущее, полученное путем смешивания битума с сыпучим модификатором и маслом. Его приготавливаю с целью получения органического вяжущего с наиболее лучшими характеристиками (прочность, морозостойкость, пластичность и др.) по сравнению с обычным битумом.
Назначение масла — понизить эластичность битума, что повышает его сопротивление воздействию отрицательных температур. Сыпучий модификатор повышает прочностные характеристики битума и его сдвигоустойчивость.
В технологическую схему приготовления модифицированного битума входят такие элементы как емкости для хранения материалов (масла, битума); емкость для хранения готового модифицированного битума; дозатор масла; четыре насоса; ленточный конвейер; диспергатор; дозатор.
Масло из емкости подается в дозатор при помощи насоса. Из дозатора масло поступает в диспергатор. В него же по ленточному конвейеру подается сыпучий модификатор и из емкости битум. Для того чтобы все это качественно перемешать, необходимо затратить 6-8 часов. Поэтому для ускорения процесса перемешивания в технологическую схему включен дезинтегратор. С помощью насоса из диспергатора в дезинтегратор подается смесь битума с маслом и сыпучим модификатором. Потом эта смесь, прошедшая обработку в дезинтеграторе, снова подается в диспергатор, где опять подвергается перемешиванию. И так этот цикл повторяется в течение часа, после чего мы получаем модифицированный битум. Его мы можем по битумопроводам подавать на разлив в битумовозы, а при их отсутствии в емкость.
Литература.
Проектирование производственных предприятий дорожного строительства: уч. пособие для ВУЗов: Высшая школа, 1975. –351 с.
Асфальтобетонные и цементобетонные заводы: Справочник/ В. И. Колышев, П. П. Костин. – М.: Транспорт, 1982. –207 с.
Вейцман М. И., Соловьев Б. Н. Битумные базы и цехи. – М.: Транспорт, 1977. –104 с.
Проектирование АБЗ: Методические указания/ М. Аннабердиев. – Ростов-на-Дону, 1972. –17 с.
