Проект сети для кафедры информационных технологий и систем
Министерство транспорта РФ
федеральное агентство железнодорожного транспорта
ГОУ ВПО "ДВГУПС"
Кафедра: "Информационные системы и технологии"
Курсовая работа
на тему: "Проект сети для кафедры информационных технологий и систем"
Выполнил: Козенко А. Ж.,
220 группа
Проверил: Файзулин Р.М,
Хабаровск 2007
Оглавление
Введение
Задание
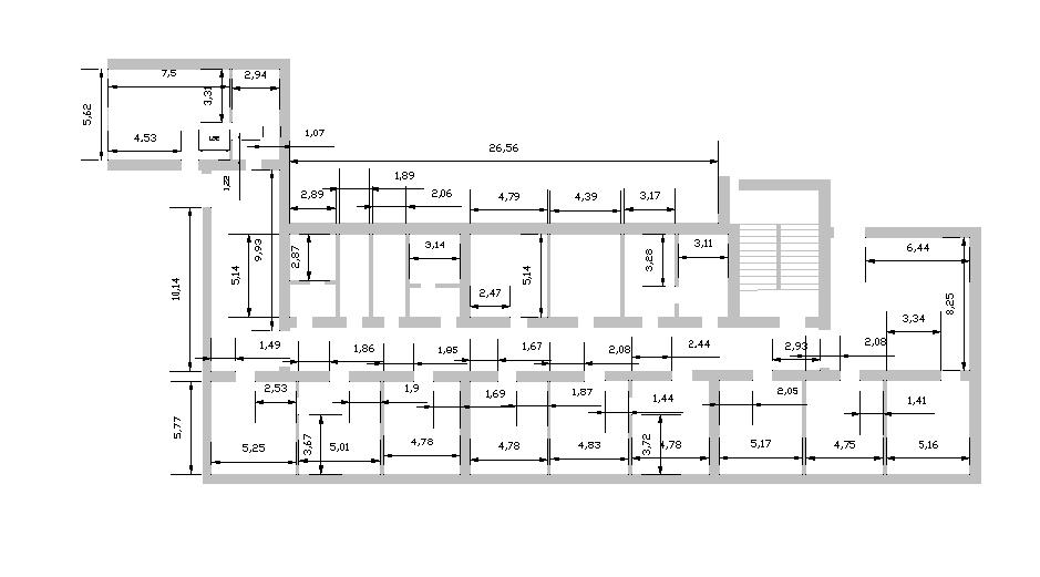
План исходного здания
Распределение ПК по комнатам и отделам
Основные сведения о закладываемой ЛВ
Сетевая технология Token Ring (802.5)
Сетевая технология FDDI
Сетевая технология Ethernet
Параметры спецификаций сетевых архитектур
Выбор пассивного и вспомогательного оборудования сети
Схема размещения оборудования в шкафу
Выбор программного обеспечения
Структура сетевой операционной системы
Программное обеспечение ЛВС
Выбор протоколов и схемы адресации
Организация доступа в Интернет
Экономическая часть
Расчет затрат на внедрение вычислительной сети
Затраты на наладку, монтаж и пуск ЛВС
Заключение
Список литературы
Введение
В настоящее время, каждое предприятие стремится автоматизировать свое производство, создавая локальные вычислительные сети. С каждым годом количество ЛВС по всему миру возрастает, следовательно возрастает и потребность в высококлассных специалистах данного профиля.
Современные сетевые технологии способствовали новой технической революции. Создание ЛВС на предприятии, в учебном заведении, фирме способствует гораздо высокому процессу обмена данными, сведениями между различными объектами, ускорению документооборота, увеличению и ускорению передачи и обмену оперативной информацией.
При создании локально вычислительной сети принимают во внимание несколько фактов, вот основные из них:
производительность сети
надежность сети
степень информационной безопасности
требуемые аппаратные ресурсы
функциональная мощность
возможность объединения с другими ЛВС
стоимость
В процессе проектирования сети, необходимо также учитывать ряд требований прикладного характер, такие как: физическое расположение пользователей, количество оконченных систем, требования к передаче данных (типы данных, среднюю нагрузку), расстояние между оконечными системами, максимальная протяженность сети, показатель надежности сети в целом и отдельных ее частей. Проектирование ЛВС необходимо производить с учетом развития, принимая во внимание возможность увеличения числа рабочих станций в сети.
Исходные данные для проектирования ЛВС могут быть получены в ходе анализа прикладной области, для которой должна быть создана сеть. Данные затем уточняются в результате принятия решений на этапах проектирования ЛВС. На данном этапе необходимо определить цели создания сети, перечень требований и функций пользователей в сети для заданной предметной области.
Задание
Разработать сеть для кафедры информационных технологий и систем.
Организационно штатная структура подразделения:
Зав. Кафедрой – 1 рабочая станция
Зам. Зав.Кафедрой – 1 рабочая станция
Зав. Лабораторией – 1 рабочая станция
Лаборант техник – 1 рабочая станция
Преподаватели (10 штатный единиц) – 10 рабочих станций
Класс компьютерный – 21 рабочая станция
Лаборатория сетевых технологий – 12 рабочих станций
Теоретическая аудитория – 3 рабочих станции, предусмотреть возможность подключения проектора
Главной целью информатизации кафедры является:
Реализация учебного процесса на лабораторных, практических занятиях, выполнение курсового и дипломного проектирования
Обеспечение оперативного доступа студентов и преподавателей к максимально широкому кругу информационных ресурсов, в том числе использование удаленного доступа
Разработка методического обеспечения
Разработка и использование во время занятий электронных учебников, справочников, энциклопедий на CD-ROM
Средняя интенсивность трафика генерируемого одним ПЭВМ = 0,16
Трафик от групп к серверу составляет 60%
Назначение ЛАС: Информационная система для кафедры университета.
План исходного здания

Распределение ПК по комнатам и отделам
|
Номер комнаты |
Площадь помещения |
Наименование отдела |
Наименование пользователей в сети |
Количество ПК (пользователей) |
Кол-во возможных ПК |
|
101 |
120,76 |
Компьютерный класс |
101class |
21 |
26 |
|
102 |
82,137 |
Лаборатория сетевых технологий |
102Lab |
12 |
18 |
|
103 |
27,86 |
Зам. Кафедры |
ZamKaf |
1 |
4 |
|
104 |
16,13 |
Коммутационный узел |
-/- |
-/- |
1 |
|
105 |
27,58 |
Зав. Кафедрой |
ZavKaf |
1 |
6 |
|
106 |
21,38 |
Зав. Лабораторией |
ZavLab |
1 |
4 |
|
107 |
88,91 |
Теоритическая аудитория |
107aud |
3+проектор |
5 |
|
108 |
14,85 |
Лаборант техник |
Laborant |
1 |
3 |
|
109 |
59,45 |
Преподаватели |
Prepod |
10 |
13 |
|
Итог: |
50 |
80 |
Трафик одного ПК в сети составляет:
C>i>=K*C>макс>=0,16*100=16 Мбит/с
Определим суммарный трафик неструктурированной сети:
C>сум >= N*M*C>i>=1*50*16=800 Мбит/с
Определим коэффициент нагрузки неструктурированной сети:
P>н>=C>сум>/C>макс>=800/100=8
Проверим, выполняется ли условие допустимой нагрузки ЛВС (домена колизий): P>н>≤Pethernet=0.35, 8>0,35 => необходимо сделать логическую структуризацию сети. P>дк>=1*16/100=0,16<0.35, в одном сегменте расположен один ПК.
Во многих случаях потоки информации распределены таким образом, что сервер должен обслуживать многочисленных клиентов, поэтому он является "узким местом" сети. Для расчета ЛВС по этому критерию в задании задается, что трафики от групп к серверу и между группами составляют Кs % от суммарного трафика неструктурированной сети.
На основании чего определяем межгрупповой трафик и трафик к серверу:
С>м.гр.>=С>серв.>=K>s>*С>сум>=0,6*800=480 Мбит/с
Определим коэффициент нагрузки по межгрупповому трафику и трафику к серверу:
Р>мгр>=Р>серв>=К>s>*С>сум>/С>макс>≤0,35
С>макс>=1000 Мбит/с
Р>мгр>=480/1000=0,48>0,35
Трафик к серверу составляет 1 Gigabit/s.
Основные сведения о закладываемой ЛВС
|
Компонент / Характеристика |
Реализация |
|
Организационная структура: |
|
|
Количество зданий |
1 |
|
Количество этажей |
1 |
|
Количество помещений |
9 |
|
Количество отделов |
9 |
|
Количество пользователей |
50 |
|
Закладываемое расширение ПК (ограниченно площадью) |
80 |
|
Максимальное расстояние между ПК (по плану здания) |
72,22 |
|
Основные цели создания сети: |
обеспечение оперативного доступа студентов и преподавателей к максимально широкому кругу информационных ресурсов, в т.ч. с использованием удаленного доступа |
|
Расчет нагрузки сети |
|
|
Коэффициент нагрузки неструктурированной сети |
8 |
|
Коэффициент нагрузки структурированной сети для каждого сегмента |
0,16 |
|
Количество логических сегментов |
80 |
|
Количество ПК в каждом сегменте |
1 |
|
Коэффициент нагрузки по трафику к серверу |
0,048 |
|
Управление совместным использованием ресурсов |
Централизованная сеть |
|
Совместное использование периферийных устройств |
Проектор, XDSL модем |
|
Поддерживаемые сетевые приложения |
Электронные учебники |
Сетевая технология Token Ring (802.5)
Сети Token Ring, так же как и сети Ethernet, характеризует разделяемая среда передачи данных, которая в данном случае состоит из отрезков кабеля, соединяющих все станции сети в кольцо. Кольцо рассматривается как общий разделяемый ресурс, и для доступа к нему требуется не случайный алгоритм, как в сетях Ethernet, а детерминированный, основанный на передаче станциям права на использование кольца в определенном порядке. Это право передается с помощью кадра специального формата, называемого маркером или токеном (token).
Технология Token Ring был разработана компанией IBM в 1984 году, а затем передана в качестве проекта стандарта в комитет IEEE 802, который на ее основе принял в 1985 году стандарт 802.5. Компания IBM использует технологию Token Ring в качестве своей основной сетевой технологии для построения локальных сетей на основе компьютеров различных классов - мэйнфреймов, мини-компьютеров и персональных компьютеров. В настоящее время именно компания IBM является основным законодателем моды технологии Token Ring, производя около 60 % сетевых адаптеров этой технологии.
Сети Token Ring работают с двумя битовыми скоростями - 4 и 16 Мбит/с. Смешение станций, работающих на различных скоростях, в одном кольце не допускается. Сети Token Ring, работающие со скоростью 16 Мбит/с, имеют некоторые усовершенствования в алгоритме доступа по сравнению со стандартом 4 Мбит/с.
Технология Token Ring является более сложной технологией, чем Ethernet. Она обладает свойствами отказоустойчивости. В сети Token Ring определены процедуры контроля работы сети, которые используют обратную связь кольцеобразной структуры - посланный кадр всегда возвращается в станцию - отправитель. В некоторых случаях обнаруженные ошибки в работе сети устраняются автоматически, например может быть восстановлен потерянный маркер. В других случаях ошибки только фиксируются, а их устранение выполняется вручную обслуживающим персоналом.
Для контроля сети одна из станций выполняет роль так называемого активного монитора. Активный монитор выбирается во время инициализации кольца как станция с максимальным значением МАС-адреса, Если активный монитор выходит из строя, процедура инициализации кольца повторяется и выбирается новый активный монитор. Чтобы сеть могла обнаружить отказ активного монитора, последний в работоспособном состоянии каждые 3 секунды генерирует специальный кадр своего присутствия. Если этот кадр не появляется в сети более 7 секунд, то остальные станции сети начинают процедуру выборов нового активного монитора.
Сетевая технология FDDI
Технология Fiber Distributed Data Interface - первая технология локальных сетей, которая использовала в качестве среды передачи данных оптоволоконный кабель.
Попытки применения света в качестве среды, несущей информацию, предпринимались давно - еще в 1880 году Александр Белл запатентовал устройство, которое передавало речь на расстояние до 200 метров с помощью зеркала, вибрировавшего синхронно со звуковыми волнами и модулировавшего отраженный свет.
Работы по использованию света для передачи информации активизировались в 1960-е годы в связи с изобретением лазера, который мог обеспечить модуляцию света на очень высоких частотах, то есть создать широкополосный канал для передачи большого количества информации с высокой скоростью. Примерно в то же время появились оптические волокна, которые могли передавать свет в кабельных системах, подобно тому как медные провода передают электрические сигналы в традиционных кабелях. Однако потери света в этих волокнах были слишком велики, чтобы они могли быть использованы как альтернатива медным жилам. Недорогие оптические волокна, обеспечивающие низкие потери мощности светового сигнала и широкую полосу пропускания (до нескольких ГГц) появились только в 1970-е годы. В начале 1980-х годов началось промышленная установка и эксплуатация оптоволоконных каналов связи для территориальных телекоммуникационных систем.
В 1980-е годы начались также работы по созданию стандартных технологий и устройств для использования оптоволокнных каналов в локальных сетях. Работы по обобщению опыта и разработке первого оптоволоконного стандарта для локальных сетей были сосредоточены в Американском Национальном Институте по Стандартизации - ANSI, в рамках созданного для этой цели комитета X3T9.5.
Начальные версии различных составляющих частей стандарта FDDI были разработаны комитетом Х3Т9.5 в 1986 - 1988 годах, и тогда же появилось первое оборудование - сетевые адаптеры, концентраторы, мосты и маршрутизаторы, поддерживающие этот стандарт.
В настоящее время большинство сетевых технологий поддерживают оптоволоконные кабели в качестве одного из вариантов физического уровня, но FDDI остается наиболее отработанной высокоскоростной технологией, стандарты на которую прошли проверку временем и устоялись, так что оборудование различных производителей показывает хорошую степень совместимости.
Стандарт FDDI определяет 100 Mb/сек. LAN с двойным кольцом и передачей маркера, которая использует в качестве среды передачи волоконно-оптический кабель. Он определяет физический уровень и часть канального уровня, которая отвечает за доступ к носителю; поэтому его взаимоотношения с эталонной моделью OSI примерно аналогичны тем, которые характеризуют IEEE 802.3 и IЕЕЕ 802.5.
Хотя она работает на более высоких скоростях, FDDI во многом похожа на Token Ring. Oбe сети имеют одинаковые характеристики, включая топологию (кольцевая сеть), технику доступа к носителю (передача маркера), характеристики надежности.
Одной из наиболее важных характеристик FDDI является то, что она использует световод в качестве передающей среды. Световод обеспечивает ряд преимуществ по сравнению с традиционной медной проводкой, включая защиту данных (оптоволокно не излучает электрические сигналы, которые можно перехватывать), надежность (оптоволокно устойчиво к электрическим помехам) и скорость (потенциальная пропускная способность световода намного выше, чем у медного кабеля).
FDDI устанавливает два типа используемoгo оптического волокна: одномодовое (иногда называемое мономодовым) и многомодовое. Моды можно представить в виде пучков лучей света, входящего в оптическое волокно под определенным углом. Одномодовое волокно позволяет распространяться через оптическое волокно только одному моду света, в то время как многомодовое волокно позволяет распространяться по оптическому волокну множеству мод света. Т.к. множество мод света, распространяющихся по оптическому кабелю, могут проходить различные расстояния (в зависимости от угла входа), и, следовательно, достигать пункт назначения в разное время (явление, называемое модальной дисперсией), одномодовый световод способен обеспечивать большую полосу пропускания и прогoн кабеля на большие расстояния, чем многомодовые световоды. Благодаря этим характеристикам одномодовые световоды часто используются в качестве основы университетских сетей, в то время как многомодовый световод часто используется для соединения рабочих групп. В многомодовом световоде в качестве генераторов света используются диоды, излучающие свет (LED), в то время как в одномодовом световоде обычно применяются лазеры.
Физические соединения
FDDI устанавливает применение двойных кольцевых сетей. Трафик по этим кольцам движется в противоположных направлениях. В физическом выражении кольцо состоит из двух или более двухточечных соединений между смежными станциями. Одно из двух колец FDDI называется первичным кольцом, другое - вторичным кольцом. Первичное кольцо используется для передачи данных, в то время как вторичное кольцо обычно является дублирующим.
"Станции Класса В" или "станции, подключаемые к одному кольцу" (SAS) подсоединены к одной кольцевой сети; "станции класса А" или "станции, подключаемые к двум кольцам" (DAS) подсоединены к обеим кольцевым сетям. SAS подключены к первичному кольцу через "концентратор", который обеспечивает связи для множества SAS. Концентратор отвечает за то, чтобы отказ или отключение питания в любой из SAS не прерывали кольцо. Это особенно необходимо, когда к кольцу подключен РС или аналогичные устройства, у которых питание часто включается и выключается.
На рисунке "Узлы FDDI: DAS, SAS и концентратор" представлена типичная конфигурация FDDI, включающая как DAS, так и SAS.

Сетевая технология Ethernet
Сетевая технология Ethernet была разработана Робертом Меткалфом в 1976 году, была построена сеть пропускной способностью 2,94 Мбит/с.
Технология Ethernet предполагает, что все узлы сети объединяются в единую среду передачи данных. В качестве физической среды передачи может использоваться проводная связь (медные или оптические кабели) или беспроводная (радиоволны). Чаще всего можно столкнуться с сетями Ethernet на медном кабеле – витой паре.
Для того, чтобы из отдельных компьютеров и кабелей образовать общую сеть используются специальные устройства – концентраторы, коммутаторы, маршрутизаторы, мосты и т.д.

Объединяя концентраторы друг с другом можно строить сеть практически любой протяженности. При этом топология связей в сети будет древовидная на основе звезды.

а основе стандарта Ethernet был разработан стандарт IEEE 802.3, который во многом совпадает со своим предшественником, но некоторые различия все же имеются. В то время как в стандарте IEEE 802.3 различаются уровни MAC и LLC, в оригинальном Ethernet оба эти уровня объединены в единый канальный уровень. В Ethernet определяется протокол тестирования конфигурации (Ethernet Configuration Test Protocol), который отсутствует в IEEE 802.3. Несколько отличается и формат кадра, хотя минимальные и максимальные размеры кадров в этих стандартах совпадают.
В зависимости от типа физической среды стандарт IEEE 802.3 имеет различные модификации - 10Base-5, 10Base-2, 10Base-T, 10Base-F, 100 Base T, 100 Base TX, 100 Base TU, 100 Base FX.
Класс 10 Base 5
Сети этого стандарта используют топологию "обща шина" и создаются на основании коаксиального кабеля с волновым сопротивлением 50 Ом и пропускной способностью 10 Мбит/с. Общая шина локальной сети ограничивается с обеих сторон терминалами, однако помимо Т-коннекторов в подобных системах использовались специальные устройства, получившие общее название "трансиверы". Собственно, трансиверы являлись приемниками и передатчиками данных между работающими в сети компьютерами и самой сетью. Помимо функций собственно приемника-передатчика информации, трансиверы обеспечивали надежную электроизоляцию работающих в сети компьютеров, а также выполняли функции устройства, снижающего уровень посторонних электрических помех.
Максимальная длина коаксиального кабеля, протянутого между трансивером и сетевым адаптером компьютера в таких сетях может достигать 25 метров, максимальная длина одного сегмента сети – 500 метров, а минимальное расстояние между точками подключения – 2,5м. Всего в одном сегменте сети может работать не более ста компьютеров, при этом количество совместно работающих сегментов сети не должно превышать пяти.
Класс 10 Base 2
Локальные сети, относящиеся к этому классу, являются прямыми "наследниками" сетей 10Base5. Как и в предыдущем случае, для соединения компьютеров используется тонкий экранированный коаксиальный кабель с волновым сопротивлением 50 Ом, оснащенный Т-коннекторами и терминаторами, однако в такой конфигурации Т-коннекторы подключаются к разъему сетевой карты напрямую, без использования каких-либо промежуточных устройств. Соответственно, такая сеть имеет стандартную конфигурацию "общая шина". Максимальная длина одного сегмента может достигать 185 метров, при этом минимальное расстояние между точками подключения составляет 0,5 м. наибольшее число компьютеров, подключенных к одному сегменту такой сети, не должно превышать 30, максимально допустимое количество сегментов сети составляет 5. Пропускная способность данной сети составляет 10 Мбит/с.
Класс 10 Base T
Одним из наиболее распространенных сегодня классов локальных сетей Ethernet являются сети 10BaseT. Как и стандарт 10Base2, такие сети обеспечивают передачу данных со скоростью 10 Мбит/с, однако используют в своей архитектуре топологию "звезда" и строятся с применением специального кабеля – витая пара. Фактически витая пара представляет собой восьмижильный провод, в котором для обмена информации по сети используется лишь две пары проводников: одна – для приема сигнала, и одна для передачи. В качестве центрального звена в звездообразной структуре локальной сети 10BaseT применяется специальное устройство – концентратор. Для построения распределенной вычислительной системы, состоящей из нескольких сетевых сегментов, возможно подключение нескольких хабов в виде каскада, либо присоединение через хаб к сети 10BaseT локальной сети другого класса, однако следует учитывать то обстоятельство, что общее число точек подключения в такой системе не должно превышать 1024.
Максимально допустимое расстояние между узлами сети составляет 100 метров, но можно сказать, что это значение взято, скорее, из практики построения таких сетей, поскольку стандарт 10BaseT предусматривает иное ограничение: затухание мигнала на отрезке между приемником и источником не должно превышать порога 11,5 децибела.
Класс 10 Base F
К этому классу принято относить распределенные вычислительные сети, сегменты которых соединены посредствам магистрального оптоволоконного кабеля, длина которого может достигать 2км. Очевидно, что в силу высокой стоимости такие сети используются в основном в корпоративном секторе рынка.
Сеть имеет звездообразную топологию, которая, однако, несколько отличается от архитектуры, принятой для сети 10BaseT.
Компьютеры каждого сегмента такой сети подключаются к хабу, который в свою очередь, соединяется с внешним трансивером сети 10BaseF посредствам специального коммутационного шнура, подключаемого к 15-контактному разъему AUI. Задача трансивера состоит в том, чтобы, получив из своего сегмнта сети электрический сигнал, трансформировать его в оптический и передать в оптоволоконный кабель. Приемником оптического сигнала является аналогичное устройство, которое преобразует его в последовательность электрических направляемых в удаленный сегмент сети.
Преимущества оптических линий связи перед традиционными неоспоримы. Прежде всего диэлектрическое волокно, используемое в оптоволоконных кабелях в качестве волноводов, обладает уникальными физическими свойствами, благодаря которым затухание сигнала в такой линии крайне мало: оно составляет величину порядка 0,2 дБ на километр при длине волны 1,55 мкм, что потенциально позволяет передавать информацию на расстояние до 100 км без использования дополнительных усилителей и ретрансляторов. Кроме того, в оптических линиях связи частота несущего сигнала достигает 1014Гц, а это означает, что скорость передачи данных по такой магистрали может составлять 1012 бит/с. Если принять во внимание тот факт, что несколько световых волн может одновременно распространяться в световоде в различных направлениях, то эту скорость можно значительно увеличить, организовав между конечными точками оптоволоконного кабеля двунаправленный обмен данными. Другой способ удвоить пропускную способность оптической линии связи заключается в одновременной передачи по оптоволокну нескольких волн с различной поляризацией. Фактически можно сказать, что на сегодняшний день максимально возможная скорость передач информации по оптическим линиям пока еще не достигнута, поскольку достаточно жесткие ограничения на "быстродействие" подобных сетей накладывает конечное оборудование. Оно же "ответственно" и за относительно высокую стоимость всей системы в целом, поскольку диэлектрический кварцевый светодиод сам по себе значительно дешевле традиционного медного провода. В завершение можно упомянуть и тот факт, что оптическая линия в силу естественных физических законов абсолютно не подвержена воздействию электромагнитных помех, а так же обладает существенно большим ресурсом долговечности, чем линия, изготовленная из стандартного металлического проводника.
Класс 100 Base T, 100 Base TX, 100 Base TU, 100 Base FX
Класс локальных сетей 100BaseT, называемый также Fast Ethernet, появился относительно недавно: он был создан в 1992 году. Фактически Fast Ethernet является "наследником" сетей стандарта 100BaseT, однако в отличие от них позволяет передавать данные со скоростью до 100 Мбит/с. Так же как и стандарт 10BaseT, локальные сети Fast Ethernet имеют звездообразную топологию и могут быть собраны с использованием кабеля различных типов, наиболее часто применяемым из которых является витая пара. В 1995 году данный стандарт был одобрен институтом инженеров по радиотехнике и электронике и вошел в спецификацию IEEE 802.3 обрел тем самым официальный статус.
Поскольку класс сетей 100BaseT является прямым потомком класса 10BaseT, в таких системах используются стандартные для Ethernet протоколы передачи данных, а также стандартное прикладное программное обеспечение, предназначенное для администрирования локальных сетей, что значительно упрощает переход от одного типа сети к другому. Предполагается, что в не столь отдаленном будущем эта технология вытеснит большинство действующих на сегодняшний "устаревших" стандартов, поскольку в процессе разработки данной спецификации одной из основных задач являлось сохранение совместимости новой разновидности локальных сетей с различными типами кабеля, используемого в сетях старого образца, что создано несколько модификаций стандарта Fast Ethernet. Технология 100BaseTX подразумевает использование стандартной витой пары пятой категории, в которой задействовано только четыре проводника из восьми имеющихся: два для приема данных, и два для передачи. Таким образом, в сети обеспечивается двунаправленный обмен информацией и, кроме того, остается потенциальная возможность для дальнейшего наращивания производительности всей распределительной вычислительной системы. В сетях 100BaseT4 также используется витая пара, однако в ней задействованы все восемь жил проводника: одна пара работает только на прием данных, одна – только на передачу, а оставшиеся две обеспечивают двунаправленный обмен информацией. Поскольку технология 100BaseT4 подразумевает разделение всех анодируемых по сети на три независимых логических канала (прием, передача, прием-передача), пропорционально уменьшается частота сигнала, что позволяет прокладывать такие сети с использованием менее качественного и, следовательно, более дешевой категории 3 или 4, наконец, последний стандарт в семействе Fast Ethernet носит название 100BaseFX. Предназначен он для работы с оптоволоконными линиями связи.
Максимальная длина одного сегмента в сетях 100BaseT не превышает 100 м, в качестве конечного оборудования используются сетевые адаптеры и концентраторы, поддерживающие этот стандарт. Существуют также универсальные сетевые адаптеры 10BaseT/100BaseT. Принцип их работы состоит в том, что в локальных сетях этих двух классов используются одинаковые линии связи с одним и тем же типом разъемов, а задача автоматического распознавания пропускной способности каждой конкретной сети (10 Мбит/с или 100 Мбит/с) возлагается на протокол канального уровня, являющийся частью программного обеспечения самого адаптера.
Несмотря на все преимущества спецификации 100BaseT, такие сети по сравнению с более старыми реализациями Ethernet не лишены и ряда недостатков, унаследованных ими от своего прародителя – стандарта 10BaseT. Прежде всего в моменты пиковой нагрузки, то есть в случае возникновения ситуации, при которой к ресурсам сети обращается более 50% всех узлов, на линии образуется хорошо знакомый пользователям 10BaseT "затор" - другими словами, сеть начинает заметно "тормозить". И во-вторых, если в распределенной вычислительной системе применяется комбинированная технология сети работает со стандартом 10BaseT, другая – со стандартом 100BaseT, высокая скорость соединения будет возможна только на участке, поддерживающем пропускную способность в 100 Мбит/с. Поэтому даже если компьютер оснащен сетевым адаптером 100BaseT, при обращении к удаленному узлу, оборудованному сетевой картой 10BaseT, скорость соединения не превысит 10 Мбит/с.
Из всех перечисленных сетевых технологий выбираем Ethernet, так как она очень распространена и легка в настройке. Будем использовать стандарт 100BaseTX для соединения компьютеров с сетевыми коммутаторами и коммутационным шкафом.
Параметры спецификаций сетевых архитектур
|
Характеристика |
Стандарты сетевых архитектур |
||
|
Ethernet |
Token Ring |
ArcNet и ArcNet Plus |
|
|
Кабель |
Коаксиальный, витая пара, оптоволокно |
Неэкранированная и экранированная витая пара |
Коаксиальный кабель, витая пара |
|
Максимальная длинна сегмента (м) |
Ethernet – 500, Fast Ethernet – 300, Gigabit Ethernet – 200, Fiber Optic - 2000 |
925 |
2000 – для ArcNet, 7000 – для ArcNet Plus |
|
Максимальное расстояние между узлами сети |
100 метров |
185 метров |
Коаксиальный кабель (600 м. при звезде, 300 м при шине); Витая пара (244 м) |
|
Максимальное число PC в сегменте |
1024 |
96 |
255 – ArcNet, 2047 – ArcNet Plus |
|
Максимальное число повторителей между любыми станциями сети |
Ethernet – 4 Fast Ethernet – 2 Gigabit Ethernet - 1 |
4 |
4 |
|
Максимальная пропускная способность сети Мбит/с |
10, 100, 1000 Мбит/с |
4 Мбит/с |
2,5 Мбит/с и 20 Мбит/с |
|
Метод доступа |
CSMA/CD |
Маркерное кольцо |
Маркерный |
|
Поддерживаемая технология |
Физическая топология: шина, звезда, звезда-шина; Логическая топология: шина |
Физическая топология: звезда; Логическая топология: кольцо |
Физическая топология: шина, звезда, звезда-шина; Логическая топология: упорядоченное кольцо |
Расчет длины кабельного соединения
|
Номер комнаты |
Количество рабочих мест |
Расстояние до главного коммутационного узла |
|
101 |
21 (26) |
40,73 |
|
102 |
12 (18) |
22,04 |
|
103 |
1 (4) |
18,8 |
|
104 |
0 (1) |
6,4 |
|
105 |
1 (6) |
14,91 |
|
106 |
1 (4) |
12,3 |
|
107 |
3 (5) |
27,54 |
|
108 |
1 (3) |
15,9 |
|
109 |
10 (13) |
35,34 |
Из таблицы видно, что максимальное расстояние до главного коммутационного узла составляет 40,73 метра, следовательно можно обойтись без промежуточного коммутационного узла сети.
Перейдем к выбору активного сетевого оборудования.
К активному сетевому оборудованию относятся сетевые адаптеры, серверы, ретрансляторы.
Выбираем сервер. На производительность сервера оказывает много факторов: тип и тактовая частота процессора, объем оперативной памяти, скорость сетевой платы. Будем использовать два сервера. Первый будет самый мощный, он будет использоваться в качестве файлового сервера и сервера приложений, второй сервер в качестве Интернет сервера.
К ретрансляторам относятся: концентраторы, коммутаторы, мосты, маршрутизаторы, они связывают отдельные сегменты сети.
Спецификация компонентов активного оборудования ЛВС.
|
№ |
Тип компонента |
Наименование компонента |
Цена |
Количество |
Стоимость |
Фото |
|
1 |
Коммутатор |
FS750T2 ProSafe2, 48 портов 10/100 Мбит/с и 2порта Gigabit/с. Монтируется в шкаф стойку. |
24320 р. |
2 |
48640р. |
|
|
2 |
Файл сервер, сервер приложений |
Hyperion RS 250 G3. Монтируется в шкаф стойку. Intel 5000P, Intel Xeon 5355 8MB / 2.66 GHz / 1333 MHz, FBDIMM 2Gb, 2 Intel IOAT 10/100/1000 Mbit/s, DVD/CD-RW, RAID, 2x 500 GB SATA 7200 rpm |
82050р. |
1 |
82050р. |
|
|
3 |
Интернет сервер |
Hyperion RS 130 G2. Монтируется в шкаф стойку. NVIDIA nForce Professional 3600MCP + 3050 I/O, AMD Opteron 2216 2.4G dual core, DDRII 2Gb PC5400 ECC, RAID, 2х 250 GB SATA 7200 rpm, 4 - 10/100/1000 Mbit/s, DVD/CD-RW |
67800р. |
1 |
67800р. |
|
|
4 |
Модем DSL внешний |
Cisco SOHO 97 ADSL Router, 1х RJ-11, 4х RJ-45, 10/100BASE-TX |
2520р. |
1 |
2520р. |
|
|
5 |
Проектор |
SONY VPL-ES3, SVGA(800x600), 16:9, 2,3 - 2,8 м, PC: VGA 15-pin Dsub>/ Видео: RCA + miniDIN4/ Аудио: Stereo minijack |
21208р. |
1 |
21208р. |
|
|
Итог: |
222218р. |
Коммутаторы были выбраны на 2х48 портов с расчетом, что в дальнейшем кафедра будет расширяться, и потребуются дополнительные информационные розетки, в последствии они будут подключаться к коммутаторам. Коммутаторы коммутируются между собой по гигабитным портам. Предусмотрено гигабитное подключение серверов к коммутаторам. Модем подключается к Интернет серверу по технологии Fast Ethernet, с тем расчетом, что скорость выхода в интернет 100 Мбит/с.
Логическая схема сети

Выбор пассивного и вспомогательного оборудования сети
К пассивному оборудованию относятся кабели, соединительные разъемы, коммутационные панели. К вспомогательному оборудования – устройства бесперебойного питания, монтажные стойки, шкафы, кабелепроводы.
При составлении спецификации пассивного и вспомогательного оборудования, а также при построении трассы прокладки кабелей использовать следующие условные обозначения:
R** - шкаф коммутационный (* - номер этажа, * - номер шкафа).
Х*** - коммутационная панель (* - номер этажа, * - номер шкафа, * - номер панели в шкафу).
XF*** - коммутационная панель для магистральных связей.
С***_* - компьютерный абонентский кабель (*** - номер комнаты, * - номер розетки).
СВ*/* - магистральный кабель (* - этаж, * - номер провода).
W***_* - розетка (*** - номер комнаты, * номер розетки).
SW*** - активное оборудование (* - номер этажа, * - номер шкафа, * - номер панели в шкафу).
Спецификация пассивного и вспомогательного оборудования
|
№ |
Обозначение |
Наименование |
Цена (руб.) |
Количество |
Стоимость (руб.) |
|
1 |
R11 |
Шкаф 19" напольный, 47U, ширина 640, глубина 800. |
18255 |
1 |
18255 |
|
2 |
X111 |
Панель коммутационная 48 портов |
7828 |
1 |
7828 |
|
3 |
X112 |
Панель коммутационная 48 портов |
7828 |
1 |
7828 |
|
4 |
UBS |
Источник бесперебойного питания, 900Вт, 6 выходов |
19951 |
1 |
19951 |
|
5 |
Все абонентские кабели "С" |
Кабель, витая пара UTP 4, категория 5е. (1м) |
7,46 |
2670 |
19918,07 |
|
6 |
Все абонентские розетки "W" |
Розетка 8-ми контактная RJ-45, категория 5е |
20 |
80 |
1600 |
|
7 |
-/- |
Шнур коммутационный, 1 м., категория 5е, RJ-45 |
50 |
54 |
2700 |
|
8 |
-/- |
Шнур коммутационный, 5 м., категория 5е, RJ-45 |
190 |
50 |
9500 |
|
9 |
-/- |
Кабельный канал 20х12,5 (5п) 1метр |
25 |
91 |
2275 |
|
10 |
-/- |
Внутренний угол 20х12,5 |
28,30 |
13 |
367,9 |
|
11 |
-/- |
Внешний угол 20х12,5 |
8 |
5 |
40 |
|
12 |
-/- |
Ответвление Т-образное, 20х12,5 |
9 |
5 |
45 |
|
13 |
-/- |
Заглушка 20х12,5 |
19 |
11 |
209 |
|
14 |
-/- |
Кабельный канал 32х12,5 (6-8 п) 1метр |
51 |
65 |
3315 |
|
15 |
-/- |
Внутренний угол 32х12,5 |
34 |
4 |
136 |
|
16 |
-/- |
Внешний угол 32х12,5 |
11 |
1 |
11 |
|
17 |
-/- |
Ответвление Т-образное, 32х12,5 |
51 |
1 |
51 |
|
18 |
-/- |
Заглушка 32х12,5 |
30 |
5 |
150 |
|
19 |
-/- |
Кабельный канал 40х16 (10п) 1метр |
45 |
26 |
1170 |
|
20 |
-/- |
Внутренний угол 40х16 |
45 |
2 |
90 |
|
21 |
-/- |
Заглушка 40х16 |
29 |
1 |
29 |
|
22 |
-/- |
Кабельный канал 40х20 (14-16 п) 1метр |
45 |
19 |
855 |
|
23 |
-/- |
Внешний угол 40х20 |
13 |
4 |
52 |
|
24 |
-/- |
Внутренний угол 40х20 |
47 |
2 |
94 |
|
25 |
-/- |
Ответвление Т-образное 40х20 |
73 |
1 |
73 |
|
26 |
-/- |
Кабельный канал 60х16 (16-18 п) 1метр |
95 |
37 |
3515 |
|
27 |
-/- |
Внутренний угол 60х16 |
90 |
2 |
180 |
|
28 |
-/- |
Заглушка 60х16 |
29 |
2 |
58 |
|
29 |
-/- |
Кабельный канал 75х20 (20-22п) 1метр |
243 |
18 |
4374 |
|
30 |
-/- |
Внешний угол 75х20 |
70 |
2 |
140 |
|
31 |
-/- |
Заглушка 75х20 |
33 |
1 |
33 |
|
32 |
-/- |
Кабельный канал 50х75 (50п) 1метр |
200 |
3 |
600 |
|
33 |
-/- |
Внешний угол 50х75 |
178 |
2 |
356 |
|
34 |
-/- |
Ответвление Т-образное 50х75 |
300 |
4 |
1200 |
|
35 |
-/- |
Кабельный канал 100х50 (100п) 1метр |
295 |
8 |
2360 |
|
36 |
-/- |
Внешний угол 100х50 |
202 |
1 |
202 |
|
37 |
-/- |
Внутренний угол 100х50 |
190 |
1 |
190 |
|
38 |
-/- |
Ответвление Т-образное 100х50 |
357 |
1 |
357 |
|
39 |
-/- |
Саморезы |
116 |
Упаковка 1000шт. |
116 |
|
Итог: |
110223,97 |
Схема размещения оборудования в шкафу

При проектировании кабельной системы для передачи данных следует использовать раскладку проводов Т568А или Т568В – единую по всей кабельной сети.
-
Т568А
Т568В


Каждая розетка подключается к соответствующему разъему патч-панели.
Таблица соединений
-
Коммутационная панель
Кабель
Розетка
Активное оборудование
Х111
1
C101_1
W101_1
SW111_1
2
C101_2
W101_2
3
C101_3
W101_3
SW111_2
4
C101_4
W101_4
SW111_3
5
C101_5
W101_5
6
C101_6
W101_6
SW111_4
7
C101_7
W101_7
SW111_5
8
C101_8
W101_8
9
C101_9
W101_9
SW111_6
10
C101_10
W101_10
SW111_7
11
C101_11
W101_11
SW111_8
12
C101_12
W101_12
SW111_9
13
C101_13
W101_13
SW111_10
14
C101_14
W101_14
SW111_11
15
C101_15
W101_15
16
C101_16
W101_16
SW111_12
17
C101_17
W101_17
SW111_13
18
C101_18
W101_18
SW111_14
19
C101_19
W101_19
SW111_15
20
C101_20
W101_20
SW111_16
21
C101_21
W101_21
22
C101_22
W101_22
SW111_17
23
C101_23
W101_23
SW111_18
24
C101_24
W101_24
SW111_19
25
C101_25
W101_25
SW111_20
26
C101_26
W101_26
SW111_21
27
C102_1
W102_1
SW111_22
28
C102_2
W102_2
SW111_23
29
C102_3
W102_3
30
C102_4
W102_4
SW111_24
31
C102_5
W102_5
SW111_25
32
C102_6
W102_6
33
C102_7
W102_7
SW111_26
34
C102_8
W102_8
35
C102_9
W102_9
SW111_27
36
C102_10
W102_10
SW111_28
37
C102_11
W102_11
38
C102_12
W102_12
SW111_29
39
C102_13
W102_13
SW111_30
40
C102_14
W102_14
SW111_31
41
C102_15
W102_15
42
C102_16
W102_16
SW111_32
43
C102_17
W102_17
44
C102_18
W102_18
SW111_33
45
C103_1
W103_1
46
C103_2
W103_2
SW111_34
47
C103_3
W103_3
48
C103_4
W103_4
Х112
1
C104_1
W104_1
2
C105_1
W105_1
3
C105_2
W105_2
SW111_35
4
C105_3
W105_3
5
C105_4
W105_4
6
C105_5
W105_5
7
C105_6
W105_6
8
C106_1
W106_1
9
C106_2
W106_2
SW111_36
10
C106_3
W106_3
11
C106_4
W106_4
12
C107_1
W107_1
13
C107_2
W107_2
14
C107_3
W107_3
SW111_37
15
C107_4
W107_4
SW111_38
16
C107_5
W107_5
SW111_39
17
C108_1
W108_1
18
C108_2
W108_2
19
C108_3
W108_3
SW111_40
20
C109_1
W109_1
SW111_41
21
C109_2
W109_2
22
C109_3
W109_3
SW111_42
23
C109_4
W109_4
SW111_43
24
C109_5
W109_5
SW111_44
25
C109_6
W109_6
SW111_45
26
C109_7
W109_7
27
C109_8
W109_8
SW111_46
28
C109_9
W109_9
SW111_47
29
C109_10
W109_10
SW111_48
30
C109_11
W109_11
SW112_1
31
C109_12
W109_12
SW112_2
32
C109_13
W109_13
Выбор программного обеспечения
Структура сетевой операционной системы
Сетевая операционная система составляет основу любой вычислительной сети. Каждый компьютер в сети в сети в значительной степени автономен, поэтому под сетевой операционной системой в широком смысле понимается совокупность операционных систем отдельных компьютеров, взаимодействующих с целью обмена сообщениями и разделения ресурсов по единым правилам – протоколам.
В сетевой ОС отдельные машины можно выделить несколько частей: средства управления локальными ресурсами компьютера: функции распределения оперативной памяти между процессами и мультипроцессорных машинах, управления периферийными устройствами и другие функции управления ресурсами локальных ОС.
Средства предоставления собственных ресурсов и услуг в общее пользование – серверная часть ОС (сервер). Эти средства обеспечивают, например, блокировку файлов и записей, что необходимо для их совместного использования; ведение справочников имен сетевых ресурсов; обработку запросов удаленного доступа к собственной файловой системе и базе данных; управление очередями запросов удаленных пользователей к своим периферийным устройствам.
Средства запроса доступа к удаленным ресурсам и услугам и их использования – клиентская часть ОС. Эта часть выполняет распознавание и перенаправление в сеть запросов к удаленным ресурсам от приложений и пользователей, при этом запрос поступает от приложения в локальной форме, а передается в сеть в другой форме, соответствующей требованиям сервера. Клиентская часть так же осуществляет прием ответов от серверов и преобразование их в локальный формат, так что для приложения выполнение локальных и удаленных запросов неразличимо.
Коммуникационные средства ОС, с помощью которых происходит обмен сообщениями в сети. Эта часть обеспечивает адресацию и буферизацию сообщений, выбор маршрута передачи сообщения по сети, надежность передачи и т.п., то есть является средством транспортировки сообщений. В зависимости от функций, возлагаемых на конкретный компьютер, в его операционной системе может отсутствовать либо клиентская, либо серверная части.
Первые сетевые ОС представляли собой совокупность существующей локальной ОС и надстроенной над ней сетевой оболочки. При этом в локальную ОС встраивался минимум сетевых функций, необходимых для работы сетевой оболочки, которая выполняла основные сетевые функции. Примером такого подхода является использование на каждой машине сети операционной системы MS DOS. Принцип построения сетевых ОС в виде сетевой оболочки над локальной ОС используется и в современных ОС.
Программное обеспечение ЛВС
|
№ |
Наименование |
Тип поставки |
Цена |
Кол-во |
Стоимость |
|
1 |
Novell Netware 6.5 |
Продукт + лицензия |
13000 руб. |
1 |
13000 руб. |
|
2 |
Dr.Web для файлового сервера Novell Netware |
Продукт + лицензия |
12500 руб. |
1 |
12500 руб. |
|
3 |
Microsoft Exchange Server 2007 Russian Open License Pack Nolevel |
Продукт + лицензия |
19034 руб. |
1 |
19034 руб. |
|
4 |
KAV 6.02 |
Продукт + лицензия |
1400 руб. |
1 |
1400 руб. |
|
5 |
UserGate 4.0 |
Продукт + лицензия |
2000 руб. |
1 |
2000 руб. |
|
Итог: |
47934 руб. |
Выбор протоколов и схемы адресации
Взаимодействие компьютеров в сетях происходит в соответствии с определенными правилами обмена сообщениями и их форматами, то есть в соответствии с определенными протоколами. Иерархически организованная совокупность протоколов, решающих задачу взаимодействия узлов сети, называется стеком коммуникационных протоколов. Существует достаточно много стеков протоколов, широко применяемых в сетях. Это и стеки, являющиеся международными и национальными стандартами, и фирменные стеки, получившие распространение благодаря распространенности оборудования той или иной фирмы. Примерами популярных стеков протоколов могут служить стек IPX/SPX фирмы Novell, стек TCP/IP, используемый в сети Internet и во многих локальных сетях, стек OSI международной организации по стандартизации, стек DECnet корпорации Digital Equipment и некоторые другие.
Использование в сети того или иного стека коммуникационных протоколов во многом определяет лицо сети и ее характеристики. В небольших однородных сетях может использоваться исключительно один стек. В крупных корпоративных сетях, объединяющих различные сети, параллельно используются, как правило, несколько стеков. В контексте межсетевого взаимодействия понятие "сеть" можно определить как совокупность компьютеров, общающихся друг с другом с помощью единого стека протоколов. Здесь компьютеры могут быть отнесены к разным сетям, если у них различаются протоколы верхних уровней, например, сеть Windows NT, сеть NetWare. Конечно, эти сети могут спокойно сосуществовать, не мешая друг другу и мирно пользуясь общим транспортом. Однако, если потребуется обеспечить доступ к данным файл-сервера NetWare для клиентов Windows NT, администратор сети столкнется в необходимостью согласования сетевых сервисов.
Проблема межсетевого взаимодействия может возникнуть и в однородной сети Ethernet, в которой установлено несколько сетевых ОС. В этом случае, все компьютеры и все приложения используют для транспортировки сообщений один и тот же набор протоколов, но взаимодействие клиентских и серверных частей сетевых сервисов осуществляется по разным протоколам.
Выбираем стек протоколов TCP/IP. Все компьютеры, включая серверы расположенные в сети должны иметь статические адреса. Необходимо выбрать класс сети и маску сети.
Схема адресации ПК в сети.
-
Комната
Адреса
Назначение
101
192.168.0.1/24
101class_1
192.168.0.2/24
101class_2
192.168.0.3/24
101class_3
192.168.0.4/24
101class_4
192.168.0.5/24
101class_5
192.168.0.6/24
101class_6
192.168.0.7/24
101class_7
192.168.0.8/24
101class_8
192.168.0.9/24
101class_9
192.168.0.10/24
101class_10
192.168.0.11/24
101class_11
192.168.0.12/24
101class_12
192.168.0.13/24
101class_13
192.168.0.14/24
101class_14
192.168.0.15/24
101class_15
192.168.0.16/24
101class_16
192.168.0.17/24
101class_17
192.168.0.18/24
101class_18
192.168.0.19/24
101class_19
192.168.0.20/24
101class_20
192.168.0.21/24
101class_21
102
192.168.0.27/24
102Lab_1
192.168.0.28/24
102Lab_2
192.168.0.29/24
102Lab_3
192.168.0.30 /24
102Lab_4
192.168.0.31 /24
102Lab_5
192.168.0.32 /24
102Lab_6
192.168.0.33 /24
102Lab_7
192.168.0.34 /24
102Lab_8
192.168.0.35 /24
102Lab_9
192.168.0.36 /24
102Lab_10
192.168.0.37 /24
102Lab_11
192.168.0.38 /24
102Lab_12
103
192.168.0.45 /24
ZamKaf
105
192.168.0.49 /24
ZavKaf
106
192.168.0.55 /24
ZavLab
107
192.168.0.59 /24
107aud_1
192.168.0.60 /24
107aud_2
192.168.0.61 /24
107aud_3
108
192.168.0.64 /24
Laborant
109
192.168.0.67 /24
Prepod_1
192.168.0.68 /24
Prepod_2
192.168.0.69 /24
Prepod_3
192.168.0.70 /24
Prepod_4
192.168.0.71 /24
Prepod_5
192.168.0.72 /24
Prepod_6
192.168.0.73 /24
Prepod_7
192.168.0.74 /24
Prepod_8
192.168.0.75 /24
Prepod_9
192.168.0.76 /24
Prepod_10
104
192.168.0.80/24
Fail_Server
192.168.0.81 /24
Internet_Server (шлюз по умолчанию)
Организация доступа в Интернет
Для подключения локальных сетей к глобальным связям используются специальные выходы (WAN-порты) маршрутизаторов, а также аппаратура передачи данных по длинным линиям - модемы (при работе по аналоговым линиям) или же устройства подключения к цифровым каналам (TA - терминальные адаптеры сетей ISDN, устройства обслуживания цифровых выделенных каналов типа CSU/DSU и т.п.).
В глобальной сети строго описан и стандартизован интерфейс взаимодействия пользователей с сетью - User Network Interface, UNI. Это необходимо для того, чтобы пользователи могли без проблем подключаться к сети с помощью коммуникационного оборудования любого производителя, который соблюдает стандарт UNI.
При передаче данных через глобальную сеть маршрутизаторы работают точно так же, как и при соединении локальных сетей - если они принимают решение о передаче пакета через глобальную сеть, то упаковывают пакеты принятого в локальных сетях сетевого протокола (например, IP) в кадры канального уровня глобальной сети (например, frame relay) и отправляют их в соответствии с интерфейсом UNI ближайшему коммутатору глобальной сети через устройство DTE. Каждый пользовательский интерфейс с глобальной сетью имеет свой собственный адрес в формате, принятом для технологии этой сети.
Маршрутизаторы с выходами на глобальные сети характеризуются типом физического интерфейса (RS-232, RS-422, RS-530, HSSI, SDH), а также поддерживаемыми протоколами территориальных сетей - протоколами коммутации каналов для телефонных сетей или протоколами коммутации пакетов для компьютерных глобальных сетей.
При организации доступа в Internet в офисе или предприятии встает проблема "сетефикации" - контроль прав доступа пользователей, дабы нерадивые сотрудники не "сидели" в Internet постоянно. Proxy-серверы - это программы-посредники, которые устанавливаются на компьютере-шлюзе, их задача - ретранслировать пакеты соответствующей службы (например, FTP или HTTP) в Internet и проверять (а при необходимости - ограничивать) права доступа клиента. Заметим, что для всех популярных служб Internet существуют свои proxy-серверы. Кроме того, создан один универсальный proxy-сервер, называемый Socks. С его помощью можно подключить к Internet такие программы, как ICQ, IRC и др. В данном случае при настройке компьютеров-клиентов во вкладке Подключение диалогового окна свойств браузера необходимо указать IP-адрес proxy-сервера HTTP ( адрес компьютера с Proxy) и номер порта.
Однако установка и настройка такого выделенного сервера это дополнительные расходы, в случае с NT стоимость компьютера, операционной системы, специализированной программы и услуг по конфигурированию. Другим решением для небольшого офиса или предприятия является применение специализированного Internet Serverа. Большинство компаний, занимающихся сетевым оборудованием, имеют в своем арсенале подобные продукты. По своей сути это маршрутизатор, т. е. специализированный мини-сервер, реализующий передачу IP-пакетов из одной подсети в другую. Обычно он представляет собой компактное устройство, оснащенное одним или двумя последовательными портами для подсоединения модема и портом Ethernet для включения в локальную сеть. Большинство Internet-серверов поддерживают работу с выделенной линией. Типичный набор функций, реализуемых IS, выглядит как работа с большинством Internet-протоколов (HTTP, FTP, NAT, PPP, PAP/CHAT, Telnet, ARP, ICMP, DHCP), обеспечение функций firewall для локальной сети и поддержка таблицы маршрутизации, практически полноценный proxy-сервер с достаточной для большинства пользователей функциональностью.
Технология подключения к Internet.
|
Технология подключения |
Скорость передачи |
Тип линии |
Число одновременных подключений |
|
Традиционный телефонный сервер |
28,8-56 Кбит/с |
Аналоговая коммутируемая линия |
1 - 10 |
|
ISDN |
64 Кбит/с – 2,04 Мбит/с |
Цифровая коммутируемая линия |
10 - 500 |
|
VSDL, VSDL 2 |
13 Мбит/с – 55 Мбит/с |
Ассиметричная коммутируемая линия |
10 - 500 |
|
HDSL, SDSL, SHDSL |
1544 Кбит/с – 2048 Кбит/с |
Симметричная коммутируемая линия |
10 - 500 |
|
ADSL, RADSL, ADSL G.Lite, ADSL 2 |
64 Кбит/с – 12 Мбит/с |
Ассиметричная коммутируемая линия |
10 - 500 |
Проведя анализ исходных данных, принимаем решение об установке DSL модема Cisco SOHO 97 ADSL Router, 1х RJ-11, 4х RJ-45, 10/100BASE-TX, который производит подключение к интернету по технологии ADSL.
Для разграничения пользователей к подключению к Internet, организуем прокси-сервер UserGate 4.0, который ведет точный учет трафика, имеет встроенный межсетевой экран, систему интернет статистики.
Выбор Internet оператора
Доступ в глобальную сеть Internet будет представлять ОАО "Дальсвязь". Подключение к данному провайдеру обойдется в 1550 рублей, не включая стоимость модема. Тариф выбран безлимитный, абонентская плата в месяц составляет 1500 руб.
Экономическая часть
Расчет затрат на внедрение вычислительной сети
Затраты на внедрение вычислительной сети рассчитываются по следующей формуле:
К=К>ао>+К>по>+К>пл>+К>мн>
где:
К>ао> – стоимость аппаратного обеспечения ВС
К>по> – стоимость программного обеспечения ВС
К>пл> – стоимость дополнительных площадей
К>мн> – единовременные затраты на наладку, монтаж и пуск ВС.
Затраты на приобретение недостающего для организации локальной информационной сети оборудования и программного обеспечения были приведены ранее в таблицах.
Рассчитаем затраты на наладку, монтаж и пуск ЛВС, сведя все данные в таблицу, а затем рассчитаем затраты на внедрение вычислительной сети, по формуле приведенной ранее.
Затраты на наладку, монтаж и пуск ЛВС.
|
№ |
Перечень выполняемых работ |
Ед.изме-рения |
Цена за ед. руб. |
Количество |
Стоимость, руб. |
|
1 |
Трассировка кабеля |
метр |
6,2 |
2670 |
16554 |
|
2 |
Тестирование кабельной системы |
порт |
155,3 |
80 |
12424 |
|
3 |
Монтаж пластикового канала |
метр |
46,6 |
267 |
12442,2 |
|
4 |
Монтаж розетки |
штука |
28,5 |
80 |
2280 |
|
5 |
Монтаж шкафа |
штука |
286 |
1 |
286 |
|
6 |
Монтаж патч-панели |
штука |
33,6 |
2 |
67,2 |
|
7 |
Подключение розетки RJ-45 |
штука |
31 |
80 |
2480 |
|
8 |
Разделка патч-панели, кроссовой панели |
порт |
31 |
80 |
2480 |
|
9 |
Маркировка розеток, патч-панелей |
порт |
13 |
160 |
2080 |
|
10 |
Подключение ПК к ЛВС |
штука |
258,8 |
50 |
12940 |
|
11 |
Подключение телефона к УАТС |
штука |
51,8 |
1 |
51,8 |
|
12 |
Подключение интернета |
штука |
1550 |
1 |
1550 |
|
Итог: |
65635,2 руб. |
Откуда общие затраты на внедрение:
К=(222218+110223,97)+47934+0+65635,2=446011,17 руб.
После расчета общих затрат на внедрение определим затраты на одно рабочее место:
К>на одно место>=446011,17 /50=8920,22 руб.

Заключение
В ходе выполнения курсовой работы был выбран комплекс технических средств, соответствующий постановленной задачи, с учетом приобретения нового оборудования как пассивного, так и активного и вспомогательного. Так же были выбраны два сервера: файловый сервер, который выполняет и функции сервера приложений, и интернет сервер. Для серверов также было выбрано программное обеспечение. Выполнена трассировка кабеля, произведен расчет кабелепроводов.
Хотелось бы отметить, что для многих информационных систем изначально не преследуется цель сокращения рабочих мест, экономии средств, отводимы на трудовой процесс, а установка вычислительной сети проводится с целью повышения качества принимаемых решений, установки единого регламента деловых процессов, повышения качества обслуживания клиентов, обеспечить коллективную работу как служащих, так и обучающихся.
Список литературы
В.Г. Олифер, Н.А. Олифер "Компьютерные сети. Принципы, технологии, протоколы: Учебник для вузов" 2-е издание – СПБ.: Питер, 2003
www.offt.ru
www.microsoft.com
www.publish.khv.ru
www.planetashop.ru
www.dcom.com
www.colan.ru




