Кондиционирование универсама
Содержание
1. Исходные данные. 2
2. Определение количества выделяющихся вредностей и расчет необходимых воздухообменов 3
2.1. Воздухообмен по избыткам явной теплоты 3
2.2. Воздухообмен по ассимиляции выделяющейся влаги 3
2.3. Воздухообмен по вредным выделениям 4
2.4. Количество рециркуляционного воздуха 4
3. Построение процессов обработки воздуха на ID диаграмме 5
4. Расчет основных рабочих элементов кондиционера и подбор оборудования 6
4.1. Расчет фильтра 6
4.2. Камера орошения 7
4.3. Воздухонагреватели 8
4.4. Холодильные установки 9
4.5. Вентиляторные агрегаты 10
Список литературы. 10
Схема компоновки кондиционера 11
1. Исходные данные
Схема СКВ - 1
Место строительства г.ЯЛТА.
Помещение – УНИВЕРСАМ
Размеры помещения 38х20х5 м.
Число людей – n = 400 чел.
Теплопоступления
от солнечной радиации Q>ср> = 14,5 кВт,
от освещения Q>осв> =12,6 кВт,
от оборудования Q>об> = 0
Влаговыделения от оборудования W>об> = 0
Теплоноситель – горячая вода для ХПГ >1>=150 оС, >2>=70 оС, для ТПГ `>1>=70 оС, `>2>=50 оС.
табл. 1
|
период года |
холодный и п.у. |
теплый |
|
расчетные параметры наружного воздуха |
||
|
температура t>ext>, оС |
tБ>ext> = -6 |
tБ>ext> = 30,5 |
|
энтальпия I>ext>, кДж/кг |
IБ>ext> = -2,5 |
IБ>ext> = 64,5 |
|
скорость ветра >ext>>, >м/с |
8,7 |
1 |
|
барометрич. давление P>ext>> , >ГПа |
1010 |
1010 |
|
расчетные параметры внутреннего воздуха. |
||
|
температура воздуха, t>в> оС |
20 |
24 |
|
относительная влажность, >в>,> >% |
60 |
60 |
|
влагосодержание d>в>, г/кг |
8,7 |
11,2 |
Выбор параметров наружного воздуха производен по параметрам Б (прил. 8 [1]).
2. Определение количества выделяющихся вредных веществ
и расчет необходимых воздухообменов
2.1. Воздухообмен по избыткам явной теплоты
Теплопоступления от людей для ТПГ:
Q>л>яТ = q>я> • n = 0,075 • 400 = 30 кВт,
где q>я> – поток теплоты, выделяемый одним человеком,
q>я>=0,075 кВт – при легкой работе и t=24оС.
Теплопоступления от людей для ХПГ:
Q>л>яХ = q>я> • n = 0,1 • 400 = 40 кВт,
где q>я> = 0,1 кВт – при легкой работе и t=20оС.
Теплоизбытки помещения для ТПГ:
Q>я>Т = Q>л>я + Q>ср> + Q>осв> + Q>об> = 30 + 14,5 + 12,6 + 0 = 57,1 кВт
Теплоизбытки помещения для ХПГ:
Q>я>Х = Q>л>я + Q>осв> + Q>об> = 40 + 12,6 + 0 = 52,6 кВт
Температура приточного воздуха для ТПГ:
t>п> = t>в> - t = 24 – 6 = 18 оС,
где t – температурный перепад в зависимости от помещения и подачи воздуха
t = 6 оС – для общественных зданий при высоте притока 5 м.
Температура приточного воздуха для ХПГ:
t>п> = t>в> - t = 20 – 6 = 14 оС,
Воздухообмен по избыткам явной теплоты для ТПГ:
G>1>Т = 3600 • Q>я> / с>в> (t>в> – t>п>) = 3600 • 57,1 / 1 • (24-18) = 34 260 кг/ч
где с>в> – удельная теплоемкость воздуха с>в> = 1 кДж/(кг оС)
Воздухообмен по избыткам явной теплоты для ХПГ:
G>1>Х = 3600 • Q>я> / с>в> (t>в> – t>п>) = 3600 • 52,6 / 1 • (20-14) = 31 560 кг/ч
2.2. Воздухообмен по ассимиляции выделяющейся влаги
Избыточные влаговыделения в помещении для ТПГ:
WТ = g>w> • n + 1000 • Wоб = 105 • 400 + 1000 • 0 = 42 000 г/ч
где g>w> – влаговыделения одним человеком
g>w> = 105 г/ч – при легкой работе и t=24оС.
Избыточные влаговыделения в помещении для ХПГ:
WХ = g>w> • n + 1000 • Wоб = 75 • 400 + 1000 • 0 = 30 000 г/ч
где g>w> = 75 г/ч – при легкой работе и t=20оС.
Воздухообмен по ассимиляции выделяющейся влаги для ТПГ:
G>2>Т = WТ / (d>в> – d>п>) = 42 000 / (11,2-6,2) = 8 400 кг/ч
Воздухообмен по ассимиляции выделяющейся влаги для ХПГ:
G>2>Х = WХ / (d>в> – d>п>) = 30 000 / (11,2-1) = 2 940 кг/ч
2.3. Воздухообмен по вредным выделениям
Количество вредных веществ поступающих в воздух:
Z = n • z` = 400 • 60 = 24000 г/ч
где z` - выделения 1 человеком СО>2> при легкой работе z` = 45 г/ч
Воздухообмен по вредным выделениям:
G>3> = • Z / (z>в> – z>п>) = 1,2 • 24000 / (3,2 – 0,6) = 11 000 кг/ч
где z>в> – ПДК СО>2> в удаляемом воздухе для помещений с кратковременным
пребыванием людей z>в> =3,2 г/м3
z>п> - концентрация СО>2> в приточном воздухе для малых городов z>п> =0,6 г/м3
К расчету принимается наибольший воздухообмен по избыткам явной теплоты для теплого периода.
G = G>1>Т = 34 260 кг/ч
L = G/ =34260/1,2 = 28 550 м3/ч
2.4. Количество рециркуляционного воздуха
Минимально необходимое количество наружного воздуха:
G>н>min = • n • l = 1,2 • 400 • 20 = 9600 кг/ч
где l – количество наружного воздуха на 1 чел,
при кратковременном пребывании l = 20 м3/ч
Сравнение минимально необходимого количества наружного воздуха и воздухообмена по ассимиляции выделяющейся влаги:
G>н>min < G>3> принимаем G>н> = G>3>= 11 000 кг/ч
Количество рециркуляционного воздуха
G>р> = G – G>н> = 34 260 – 11 000 = 23 260 кг/ч
3. Построение процессов обработки воздуха на ID диаграмме
Избыточный поток скрытой теплоты от людей для ТПГ:
Q>с>Т
=
= q>с> • n
= 0,08 • 400 = 32 кВт,
где q>я> – поток теплоты, выделяемый одним человеком,
q>с>=0,08 кВт – при легкой работе и t=24оС.
Теплопоступления от людей для ХПГ:
Q>с>Х = q>с> • n = 0,05 • 400 = 20 кВт,
где q>с> = 0,05 кВт – при легкой работе и t=20оС.
Угловой коэффициент угла процесса для ТПГ:
EТ = 3600 • (Q>я>Т + Q>с>Т) / WТ = 3600 • (57,1 + 32) / 42 = 7600 кДж/кг влаги
Угловой коэффициент угла процесса для ХПГ:
EХ = 3600 • (Q>я>Х + Q>с>Т) / WХ = 3600 • (52,6 + 20) / 30 = 8700 кДж/кг влаги
Влагосодержание смеси наружного и рециркуляционного воздуха для ТПГ
d>с> = (G>н> • d>н> + G>р> • d>в>) / G = (11 000 • 13,2 + 23260 • 11,2) / 34260 = 12 г/кг
Влагосодержание смеси наружного и рециркуляционного воздуха для ХПГ
d>с> = (G>н> • d>н> + G>р> • d>в>) / G = (11 000 • 2,4 + 23260 • 8,7) / 34260 = 6,8 г/кг
После построения I-d диаграммы полученные данные сведены в табл.2
табл.2
|
воздух |
обозн. |
t, оС |
I, кДж/кг |
|
ТПГ |
|||
|
наружный |
НТ |
30,5 |
64,5 |
|
смесь |
СТ |
28,2 |
59 |
|
камера орошения |
ОТ |
14,8 |
39,5 |
|
приточный |
ПТ |
18 |
43 |
|
внутренний |
ВТ |
24 |
52,5 |
|
удаляемый |
В`Т |
27 |
55,8 |
|
ХПГ |
|||
|
наружный |
НХ |
-6 |
-2,5 |
|
смесь |
СХ |
11 |
25,8 |
|
первый подогреватель |
КХ |
16,3 |
31 |
|
камера орошения |
ОХ |
11 |
31 |
|
приточный |
ПХ |
14 |
33,8 |
|
внутренний |
ВХ |
20 |
42 |
|
удаляемый |
В`Т |
23 |
45 |
4. Расчет основных рабочих элементов кондиционера и подбор оборудования
Подбор оборудования выполнен на основании [2].
К установке принимаем центральный кондиционер КТЦЗ-31,5 с номинальной производительностью L=31 500 м3/ч.
4.1. Расчет фильтра.
Для проектируемой системы центрального кондиционирования воздуха, выбираем рулонный фильтр, расположенный за смесительной секцией.
Максимальная концентрация пыли в рабочей зоне общественных зданий z>wz> = 0,5 мг/м3
Содержание пыли в наружном воздухе непромышленного города z>ext> = 0,6 мг/м3
Степень очистки приточного воздуха
>тр>= 100% • (z>ext> - z>wz>) / z>ext> = 100 • (0,6- 0,5)/0,6 = 17%
класс фильтра – III (предел эффективности 60%)
Фильтр подобран по табл. 4.2 [2]:
тип фильтра: волокнистый, замасляный ячейковый ФяУБ
фильтрующий материал - ФСВУ
номинальная воздушная нагрузка на входное сечение q = 7000 м3/(ч•м2)
площадь ячейки f>я> = 0,22 м2
начальное сопротивление P>ф.н> =40 Па
конечное сопротивление P>ф.к> = 150 Па
удельная пылемкость П = 570 г/м2
способ регенерации – замена фильтрующего материала.
Требуемая площадь фильтрации:
F>ф>тр = L> >/ q = 28550/7000=4,01 м2,
Необходимое количество ячеек:
n>я >= F>ф>тр / f>я> = 4,01 / 0,22 = 18,23
к установке принимаем 18 ячеек
Действительная степень очистки
по номограмме 4.4 [2] 1-Е = 18% => >д>=82%
>д >> >тр>
Количество пыли, осаждаемой на 1 м2 площади фильтрации в течении 1 часа.
m>уд >= L • z>ext>> >• >n>> >/ F>ф >= 28550 • 0,6•10-3 • 0,82 / 4,01 = 3,4 г/м2ч
Периодичность замены фильтрующей поверхности:
>рег >= П / m>уд>=570 / 3,4 = 167 ч = 7 сут.
4.2. Камера орошения.
К установке принимается форсуночная камера орошения ОКФ-3 03.01304 исп.1
всего форсунок 63 шт., всего стояков – 7 шт.
4.2.1. ХПГ
процесс обработки воздуха – адиабатный
Коэффициент адиабатной эффективности:
Е>А>
=
=
=0,96
где t>вк> – температура воздуха конечная (после камеры орошения) t>вк> =11 оС
t>вн> – температура воздуха начальная (до камеры орошения) t>вк> =16,3 оС
t>мвн> – температура по мокрому термометру t>мвн> =10,8 оС
Коэффициент орошения =2,0 – по графику на рис. 15.27 [2].
Расход воды на орошение:
G>ж> = • G = 2,0 • 34260 = 68 520 кг/с
Давление воды перед форсункой:
p>ж> = 80 кПа – по графику на рис. 15.32 [2].
4.2.2. ТПГ
процесс обработки воздуха – политропный – охлаждение и осушение.
Коэффициент адиабатной эффективности:
Е>А>
=
=
=0,38
где I>вк> – энтальпия воздуха конечная (после камеры орошения) I>вк> =39,5 кДж/кг
t>вн> – энтальпия воздуха начальная (до камеры орошения) I>вк> =59 кДж/кг
Iпр>в> – предельная энтальпия для данного процесса Iпр>в> =38,5 кДж/кг
Iпр>вн> – предельная энтальпия для начального состояния Iпр>вн> =90 кДж/кг
Коэффициент орошения =0,7 – по графику на рис. 15.27 [2].
Коэффициент политропной эффективности Е>П> = 0,25 – по номограмме на рис. 15.27 [2].
Расход воды на орошение:
G>ж> = • G = 0,7 • 34260 = 23980 кг/с
Относительная разность температур воздуха:
= b • c • • (1/Е>П> – 1/Е>А>) = 0,33 • 4,19 • 0,7 • (1/0,25 – 1/0,38) = 1,32 оС
где b – коэффициент аппроксимации b=0,33 (кг•оС)/кДж;
с>ж> – удельная теплоемкость воды с=4,19 кДж/(кг•оС)
Температура воды начальная:
t>жн>
=
=
= 6 оС
где tпр>в> – предельная температура для данного процесса tпр>в> =13,8 оС
Температура воды конечная:
t>жн>
=
=
= 11,6 оС
Давление воды перед форсункой:
p>ж> = 30 кПа – по графику на рис. 15.34 [2].
4.3. Воздухонагреватели.
Первый воздухонагреватель подбирается для ХПГ, второй – для ТПГ.
К установке принимается воздухонагреватели 03.10114
площадь фасадного сечения F>ф> = 3,31 м2.
Относительный перепад температур:
>В1> = (t>вн >- t>вк>) / (t>вн >- t>жн>) = (11-16,3) / (11-95) = 0,06– для 1-го подогревателя
где t>жн> – начальная температура теплоносителя t>жн> =95 оС
t>вн> , t>вк> – начальная и конечная температура обрабатываемого воздуха
>В2> = (14,8-18) / (14,8-95) = 0,04– для 2-го подогревателя
Относительный расход воздуха:
G` = G / G>ном> = 34260 / 37800 = 0,9
где G>ном >– номинальный расход воздуха для данного кондиционера
По табл.15.18 [2] принимаем тип и схему обвязки базовых теплообменников:
6, параллельно.
По номограмме рис.15.41а [2] определяем:
>Ж1> = 0,75 при количестве рядов n=1. – для 1-го подогревателя
>Ж1> = 0,8 при количестве рядов n=1. – для 2-го подогревателя
Б = 0,623 – коэф. гидравлического сопротивления нагревателя.
Расход теплоносителя
G>Ж1> = G•с>в>•>В1>/с>ж>•>Ж1> = 34260 • 1,005 •0,06 / 4,19 •0,75 = 687 кг/ч– для 1-го подогревателя
G>Ж2> = 34260 • 1,005 •0,04 / 4,19 •0,8 = 411 кг/ч– для 2-го подогревателя
Конечная температура теплоносителя:
t>жк1> = t>жн> + >Ж1> • (t>вн> – t>жн>) = 95 + 0,75 (11 – 95) = 32 оС
t>жк2> = 95 + 0,8 (14,8 – 95) = 31 оС
Массовая скорость воздуха в фасадном сечении установки:
V) = G / 3600 • F>ф> = 34260 / 3600 • 3,31 = 2,9 кг/(м2с)
Потери давления по воздуху:
P>В> = 25 Па – по номограмме рис. 15.43 [2].
Потери давления по воде:
P>Ж1> = Б • (>В1> / >Ж1>)2 • G`2 •98,1 = 0,623 • (0,06 / 0,75)2 • 0,92 • 98,1 = 0,32 кПа.
P>Ж2> = 0,623 • (0,04 / 0,75)2 • 0,92 • 98,1 = 0,14 кПа.
4.4. Холодильные установки.
Холодопроизводительность установки в рабочем режиме:
Q>хр> = А>х> • G • (I>н> – I>к>) / 3600 = 1,2 • 34260 • (59-39,5) / 3600 = 213 кВт
где: А>х> – коэффициент запаса, учитывающий потери холода на тракте хладагента,
холодоносителя и вследствие нагревании воды в насосах, А>х> = 1,12 ÷ 1,15;
I>н> , I>к> – энтальпия воздуха на входе в камеру орошения и выходе из неё.
Температура кипения хладагента:
t>их> = (t>жк> + t>жн>)/2-(4÷6) = (6+11,6) / 2 - 5 = 3,3 °С
температура конденсации хладагента:
t>конд >= t>к.к > + (3÷4) = 24 + 4 = 28 °С
температура
переохлаждения холодильного агента
t>п.х >= t>к.н > + (1÷2) = 20 + 2 = 22 °С
где: t>к.н > – температура охлаждающей воды перед конденсатором,
ориентировочно принимаемая t>к.н> = 20°С;
t>к.к > – температура воды на выходе из конденсатора,
принимаемая на 3÷4°С больше t>к.н> ,°С.
Температуру кипения хладагента в испарителе следует принимать не ниже 2°С, причем температура воды, выходящей из испарителя, не должна быть ниже 6 °С.
Объемная холодопроизводительность при рабочих условиях:
q>v>>р> =(i>их> – i>пх>) / V>их> = (574,6-420,6)/0,053 = 2905 кДж/м3
где: i>и.х> – энтальпия паровой фазы хладагента при t>и.х> , кДж/кг;
i>п.х> – энтальпия жидкой фазы хладагента при t>п.х> , кДж/кг;
v>и.х> – удельный объем паров хладагента при t>и.х> , кг/м3.
Холодопроизводительность холодильной машины в стандартном режиме
(t>н.х >=5°C, > >t>конд>=35°С, t>п.х >=30°С):
=
= 190 кВт
где: λ>с> – коэффициенты подачи компрессора при стандартном режиме λ>с>=0,76
λ>р> – коэффициенты подачи компрессора при рабочем режиме по табл. 4.6 [3].
q>vc> – объемная холодопроизводительность при стандартном режиме,
q>vc>=2630 кДж/м3.
К установке принимаются холодильные машины ХМ-ФУ40/1РЭ холодопроизводительностью 94,7 кВт, в количестве 2 шт.
4.5. Вентиляторные агрегаты.
Аэродинамическое сопротивление:
Р = Р>маг> + Р>к> + Р>ф> + Р>ко> +2 • Р>вн> = 100 + 50 + 150 + 50 + 2• 25 = 400 Па
где Р>маг> –сопротивление магистрального воздуховода принимаем 100 Па
Р>к> – сопротивление приемного клапана принимаем 50 Па
Р>ф> – сопротивление с фильтра Р>ф> =150 Па
Р>ко> – сопротивление камеры орошения принимаем 50 Па
Р>вн> – сопротивление воздухонагревателя Р>вн> = 25 Па
Принимаем вентилятор ВЦ4-75 № 10 Е10.095-1 ГОСТ 5976-90
частота n=720 об/мин;
КПД =0,7;
Потребляемая мощность N = 5,5 кВт
D = 0,95 D>ном>
Двигатель 4А132М8; m=438 кг
Литература
1. СНиП 2.04.05-91* Отопление, вентиляция и кондиционирование. М.: ГУП ЦПП, 2001. 74с.
2. Справочник проектировщика. Под ред. Павлова Н.Н. Внутренние санитарно-технические устройства. Часть 3. Вентиляция и кондиционирование воздуха. М.: Стройиздат. 1985.
3. Иванов Ю.А., Комаров Е.А., Макаров С.П. Методические указания по выполнению курсовой работы "Проектирование кондиционирования воздуха и холодоснабжение". Свердловск: УПИ, 1984. 32 с.

Министерство образования РФ
Уральский государственный технический университет
кафедра "Теплогазоснабжение и вентиляция"
КОНДИЦИОНИРОВАНИЕ ВОЗДУХА
И ХОЛОДОСНАБЖЕНИЕ
КУРСОВАЯ РАБОТА
ПОЯСНИТЕЛЬНАЯ ЗАПИСКА
преподаватель: Н.П.
студент: С.Ю.
1851929
группа: ТГВ-6 (Екатеринбург)
Екатеринбург
2
004
Министерство образования Российской Федерации
Уральский государственный технический университет - УПИ
кафедра "Теплогазоснабжение и вентиляция"
Оценка_____________
КОНДИЦИОНИРОВАНИЕ ПРОДОВОЛЬСТВЕННОГО МАГАЗИНА
в г.Саратове
Курсовая работа
2907.61127.005 ПЗ
Руководитель: Н.П.
Студент Т.А.
ТГВ-6
Екатеринбург
Екатеринбург 2004
СОДЕРЖАНИЕ
Исходные данные…………………………………………………….……………………3
Определение количества выделяющихся вредных веществ и расчет необходимых воздухообменов
Необходимая величина воздухообмена при расчете по избыткам явной теплоты……………………………………………………………………………….4
Воздухообмен по ассимиляции выделяющейся влаги….………………….…..5
Воздухообмен по борьбе с выделяющимися в помещении вредными газами и парами……………………………………………….……………………...5
Определение расчетного воздухообмена……………………………………….6
Определение количества рециркуляционного воздуха……………………….6
Построение процессов обработки воздуха на I-d диаграмме
Определение величины углового коэффициента луча процесса.…..…...…7
Построение на I-d диаграмме процессов обработки воздуха в кондиционере с первой рециркуляцией для теплого периода года ……….8
Построение на I-d диаграмме процессов обработки воздуха в кондиционере с первой рециркуляцией для холодного периода года…..….8
Расчет основных рабочих элементов установки кондиционирования воздуха и подбор оборудования
Фильтр………………………………………………………………………………..10
Камера орошения……………………………………………………………………10
Воздухонагреватели и воздухоохладители…………………………………...12
Холодильные установки…………………………………………………………..18
Вентиляторные агрегаты……………………………………………………… 19
Компоновка и теплохолодоснабжение центральных кондиционеров…………20
Библиографический список…………………………………………………………….…..23
ИСХОДНЫЕ ДАННЫЕ
В данной работе расчетным объектом является помещение продовольственного магазина, расположенного в городе Саратове.
Размеры помещения – 42х12х4 м.
Число людей – 200.
Теплопоступления:
- от солнечной радиации Q>с.р.>=8,4 кВт;
- от освещения Q>осв.>=10,5 кВт;
- от оборудования Q>об>=12,1 кВт.
Влаговыделения от оборудования W>об >=3,9 кг/ч.
Расчетный теплоносителя – вода, с параметрами:
для теплого периода – 70/50 °С;
для холодного периода – 150/70 °С.
Расчетные климатические параметры для г.Саратова при разработке системы кондиционирования приняты:
для теплого периода года (Приложение 8 [1]):
tБ>ext>=30,5°С; IБ>ext>=53,6 кДж/кг;
для холодного периода года (Приложение 8 [1]:)
tБ>ext>= -27°С; IБ>ext>= -26,3 кДж/кг.
Барометрическое давление 990 ГПа.
Расчетные параметры внутреннего воздуха помещения продовольственного магазина приняты:
для теплого периода года:
t>в>=24°С; I>в>=43 кДж/кг; φ=40%;
для холодного периода года:
t>в>= 22°С; I>в>= 39 кДж/кг; φ=40%.
ОПРЕДЕЛЕНИЕ КОЛИЧЕСТВА ВЫДЕЛЯЮЩИХСЯ ВРЕДНЫХ ВЕЩЕСТВ И РАСЧЕТ НЕОБХОДИМЫХ ВОЗДУХООБМЕНОВ.
Необходимая величина воздухообмена при расчете
по избыткам явной теплоты.
,
кг/ч, (2.1)
где: Q>я> – избыточный поток явной теплоты в помещение, кВт;
t>в> – температура в рабочей зоне, °С;
t>п> – температура приточного воздуха, °С;
с>в> – удельная теплоемкость воздуха, с>в>=1 кДж/(кг°С).
Температура приточного воздуха t>п> определяется по формуле:
t>п >= t>в >– Δt , °С (2.2)
где: Δt – температурный перепад, согласно [2] принимаем Δt = 3°С.
Расчет теплоизбытков производится следующим образом.
Т е п л ы й п е р и о д
Q>я> = Qя>л> + Q>с.р.> + Q>осв> + Q>об> , кВт, (2.3)
где: Qя>л> – теплопоступления от людей, кВт;
Qя>л> = q>я>n, (2.4)
q>я> – поток явной теплоты, выделяемой одним человеком, кВт.
Qя>л> = 0,071х200=14,2 кВт
Q>я> = 14,2+8,4+10,5+12,1=45,2 кВт
t>п> = 24-3=21°С
кг/ч
Х о л о н ы й п е р и о д
Q>я> = Qя>л> + Q>осв> + Q>об> , кВт (2.5)
Qя>л> = 0,085х200=17,0 кВт
Q>я> = 17,0+10,5+12,1=39,6 кВт
t>п> = 22-3=19°С
кг/ч
Воздухообмен по ассимиляции выделяющейся влаги.
,
кг/ч, (2.6)
где: d>в> – влагосодержание удаляемого воздуха, г/кг;
d>п> – влагосодержание приточного воздуха, г/кг;
W – избыточные влаговыделения в помещении, г/ч
W = g>w>n + 1000W>об> , (2.7)
где: d>w> – влаговыделение одним человеком, г/ч
Т е п л ы й п е р и о д
W =107х200 + 1000х3,9 = 25300 г/ч
кг/ч
Х о л о н ы й п е р и о д
W =91х200 + 1000х3,9 = 22100 г/ч
кг/ч
2.3 Воздухообмен по борьбе с выделяющимися в помещении
вредными газами и парами.
,
кг/ч, (2.8)
где: ρ>в> – плотность воздуха, ρ>в> = 1,2 кг/м3;
z>п> – предельно допустимая концентрация вредных веществ в воздухе, удаляемом из помещения, г/м3;
z>в> – концентрация вредных веществ в приточном воздухе, г/м3;
Z – количество вредных веществ, поступающих в воздух помещения, г/ч.
,
кг/ч
Результаты расчета воздухообменов сведены в таблицу 2.1.
Таблица2.1.
Воздухообмен для расчетного помещения.
-
Период года
Расход приточного воздуха, кг/ч
По
избыткам явной теплоты
G>1>
По
избыткам влаги
G>2>
По
избыткам вредных газов и паров
G>3>
Теплый период
54240
16867
6000
Холодный период
47520
17000
6000
2.4. Определение расчетного воздухообмена.
В качестве расчетного воздухообмена принимается максимальное значение из G>1>, G>2> , G>3.>
G = 54240 кг/ч
2.5. Определение количества рециркуляционного воздуха
G>р> = G – G>н> , кг/ч (2.9)
где: G>н> – количество наружного воздуха.
Для нахождения G>н> определяется минимальное количество наружного воздуха, подаваемого в помещение:
Gmin>н> =ρ>в>nl, кг/ч, (2.10)
где: l – количество наружного воздуха на 1 человека, м3/ч.
Gmin>н> =1,2х200х20 = 4800 кг/ч
Полученное значение Gmin>н> сравнивается с величиной расчетного воздухообмена по борьбе с выделяющимися газами и парами G>3>:
Gmin>н> < G>3>
4800 < 6000
Принимаем G>н> = 6000 кг/ч
G>р> = 54240 – 6000 =48240 кг/ч
ПОСТРОЕНИЕ ПРОЦЕССОВ ОБРАБОТКИ ВОЗДУХА
НА I-d ДИАГРАММЕ.
Исходными данными для построения процесса тепловлажностной обработки воздуха являются расчетные параметры наружного воздуха – t>н> и I>н> (точка Н), заданные параметры внутреннего воздуха – t>в> и I>в> (точка В).
3.1. Определение величины углового коэффициента луча процесса.
,
кДж/кг влаги, (3.1)
где: Q>п> – избыточный поток полной теплоты в помещении, кВт;
Qс – избыточный поток скрытой теплоты в помещении, кВт
, кВт,
(3.2)
где: I>в.п> – энтальпия водяного пара при температуре t>в> ,кДж/кг,
I>в.п> =2500 + 1,8 t>в> , кДж/кг, (3.3)
q>с> – поток скрытой теплоты, выделяемой 1 человеком, кВт.
Т е п л ы й п е р и о д
I>в.п> =2500 + 1,8 х 24 = 2543,2 кДж/кг
,кВт
кДж/кг
влаги
Х о л о н ы й п е р и о д
I>в.п> =2500 + 1,8 х 22 = 2539,6 кДж/кг
,кВт
кДж/кг
влаги
Процесс обработки воздуха в кондиционере осуществляется по схеме с первой рециркуляцией.
3.2. Построение на I-d диаграмме процессов обработки воздуха в кондиционере с первой рециркуляцией для теплого периода года.
Исходными
данными для построения процесса
тепловлажностной обработки воздуха
являются расчетные параметры наружного
воздуха – t>н>
и I>н>
(точка Н); заданные параметры внутреннего
воздуха – t>в>
и I>в>
(точка В); расчетный воздухообмен – G;
количество рециркуляционного воздуха
- G>р>;
количество наружного воздуха – G>н>;
величина углового коэффициента –
.
Через
точку В проводится луч процесса
до
пересечения с изотермой температуры
приточного воздуха t>п>
. Из точки П проводится линия d>п>=Сonst
до пересечения с кривой I=95%
в точке О, параметры которой соответствуют
состоянию обрабатываемого воздуха на
выходе из камеры орошения. Отрезок ОП'
характеризует процесс нагревания
воздуха в воздухонагревателе второго
подогрева, П'П – подогрев воздуха на
1÷1,5°С в вентиляторе и приточных
воздуховодах.
Из точки В вверх по линии d>в>=Сonst откладывается отрезок ВВ', соответствующий нагреванию воздуха, удаляемого из помещения рециркуляционной системой, в вентиляторе и воздуховоде. Отрезок В'Н характеризует процесс смешения наружного и рециркуляционного воздуха. Влагосодержание смеси находится из выражения:
,
г/ч (3.4)
г/ч
Пересечение линий В'Н и d>с>=Сonst определяет положение точки С, характеризующей параметры воздуха на входе в камеру орошения.
3.3. Построение на I-d диаграмме процессов обработки воздуха в кондиционере с первой рециркуляцией для холодного периода года.
Исходными
данными для построения процесса
тепловлажностной обработки воздуха
являются расчетные параметры наружного
воздуха – t>н>
и I>н>
(точка Н); заданные параметры внутреннего
воздуха – t>в>
и I>в>
(точка В); расчетный воздухообмен – G;
величина углового коэффициента –
.
9Для определения параметров приточного воздуха находится его ассимилирущая способность по влаге:
,г/кг
(3.5)
и вычисляется влагосодержание приточного воздуха:
d>п> = d>в> – Δd ,г/кг (3.6)
г/кг
d>п> = 6,8 – 0,4 =6,4,г/кг
Через
точку В проводится луч процесса
до
пересечения с линией d>п>=Сonst
в точке П, которая характеризует состояние
приточного воздуха при условии сохранения
в холодный период года расчетного
воздухообмена. Пересечение линии
d>п>=Сonst
с кривой I
= 95% определяет точку О, соответствующую
параметрам воздуха на выходе из камеры
орошения. Отрезок ОП характеризует
процесс в воздухонагревателе второго
подогрева. По аналогии с п.3.2 строится
процесс смешения наружного и
рециркуляционого воздуха (отрезок НВ)
и определяются параметры смеси:
г/ч
Из точки С проводится луч процесса нагревания воздуха в воздухонагревателе первого подогрева до пересечения с адиабатой I>о>=Const в точке К, соответствующей параметрам воздуха на входе в камеру орошения.
РАСЧЕТ ОСНОВНЫХ РАБОЧИХ ЭЛЕМЕНТОВ УСТАНОВКИ КОНДИЦИОНИРОВАНИЯ ВОЗДУХА И ПОДБОР ОБОРУДОВАНИЯ.
4.1. Фильтр.
Для проектируемой системы центрального кондиционирования воздуха, с расходом 54240 кг/ч, выбираем кондиционер КТЦ60, с масляным самоочищающимся фильтром.
Характеристики фильтра:
площадь рабочего сечения - 6,31 м2
удельная воздушная нагрузка – 10000 м3 ч на 1м2
максимальное сопротивление по воздуху ~10 кгс/м2
количество заливаемого масла – 585 кг
электродвигатель АОЛ2-21-4, N=1,1 кВт, n=1400 об/мин
4.2. Камера орошения.
Расчет:
1. Выбор камеры орошения по производительности воздуха:
м3/ч
(4.1)
Принимаем форсуночную двухрядную камеру орошения типа Кт длинной 1800мм.
Конструктивные характеристики:
номинальная производительность по воздуху 60 тыс. м3/ч
высота и ширина сечения для прохода воздуха 2003х3405 мм
площадь поперечного сечения 6,81 м2
номинальная весовая скорость воздуха в поперечном сечении 2,94 кгс/(м2 °С)
общее число форсунок при плотности ряда 24шт/м2 ряд) – 312 шт./м2
2. Определяем массовую скорость воздуха в поперечном сечении камеры орошения:
, кг/(м2с)
(4.2)
3. Определяем универсальный коэффициент эффективности:
(4.3)
Согласно [3] выбираем коэффициент орошения В, коэффициент полного орошения Е и диаметр выпускного отверстия форсунок:
В=1,8
Е=0,95
Ø=3,5 мм
Так как (pv) < 3 кг/(м2 с), то для Е´ вводим поправочный коэффициент 0,96:
5. Вычисляем начальную и конечную температуру воды t>w>>н> t>w>>к> , совместно решая систему уравнений:

t>w>>н> = 6,1°С
t>w>>к> = 8,5°С
6. Вычисляем массовый расход воды:
G>w>> >= BxG = 1,8х54240 = 97632 кг/ч (4.4)
7. Определяем пропускную способность одной форсунки:
кг/ч
(4.5)
8. По диаметру выпускного отверстия и пропускной способности форсунки определяем давление воды перед форсункой, согласно [3]:
Р>ф> = 2,1 кгс/см2
9. Определяем аэродинамическое сопротивление форсуночной камеры орошения:
ΔР = 1,14 (pv)1,81 = 1,14 х 1,841,81 = 3,43 кгс/м2 (4.6)
4.3. Воздухонагреватели и воздухоохладители.
Воздухонагревательные и воздухоохладительные установки собираются из одних и тех же базовых унифицированных теплообменников, конструктивные характеристики представлены в [2]. Число и размеры теплообменников, размещаемых во фронтальном сечении установки, однозначно определяются производительностью кондиционера.
Базовые теплообменники могут присоединятся к трубопроводам тепло-холодоносителя по различным схемам согласно [2].
Расчет воздухонагревательных и воздухоохладительных установок состоит из следующих операций:
По известной величине расчетного воздухообмена G, согласно [2], выбирается марка кондиционера и определяется площадь фасадного сечения F>ф> ,м2.
Вычисляется массовая скорость воздуха в фасадном сечении установки:
, кг/(м2с)
(4.7)
Определяются температурные критерии:
при нагревании воздуха
,
(4.8)
,
(4.9)
расход теплоносителя
, кг/ч
(4.10)
где: t>н> , t>к> – начальная и конечная температура обрабатываемого воздуха, °С, t>г>,t>о>–температура теплоносителя на входе и выходе из воздухонагревателя,°С,
t>w>>г>,t>w>>о>–температура охлажденной воды на входе и выходе из воздухоохладителя, °С.
Согласно
[2] находятся все возможные схемы
компоновки и присоединения, базовых
теплообменников к трубопроводам
тепло-холодоносителя, соответствующие
производительности принятой марки
кондиционера. Для каждой схемы
определяется величина компоновочного
фактора
.
Для каждой выбранной схемы определяется общее число рядов теплообменников по глубине установки:
(4.11)
При этом для воздухонагревателей принимается D=7,08; для воздухоохладителей – D=8,85.
Полученные значения Z>у> округляются до ближайших больших Z'>у> .
Для каждого компоновочного варианта установки находится общая площадь поверхности теплообмена:
F>у> = F>р> Z'>у> ,м2 (4.12)
и вычисляется запас в площади по сравнению с её расчетным значением:
,
(4.13)
Для всех принятых схем определяется величина площади живого сечения для прохода тепло-холодоносителя:
, м2 ,
(4.14)
и находится скорость воды в трубках хода и присоединительных патрубках:
,
м/с, (4.15)
,
м/с, (4.16)
где:
– значение компоновочного фактора для
выбранной схемы, уточненное для
фактического числа рядов труб Z'>у>
;
ρ>w> – средняя плотность воды в теплообменнике, принимаемая для воздухонагревателей первого и второго подогрева соответственно951 и 988 кг/м3 и для воздухоохладителей ρ>w> = 998 кг/м3;
d>п.п> – внутренний диаметр присоединительных патрубков, равный для всех типов теплообменников d>п.п> = 0,041 м;
Х – число параллельно присоединенных входящих патрубков в ряду.
Последующие расчеты производятся для схемы компоновки базовых теплообменников с наибольшим запасом площади теплообмена. Но если при этом скорость воды в трубках или в присоединительных патрубках будет превышать 2÷2,5 м/с, то в качестве расчетной следует принять схему с меньшим значением компоновочного фактора.
Находится гидродинамическое сопротивление теплообменной установки (без соединительных и подводящих патрубков):
ΔН>у> = Аω2 , кПа, (4.17)
где: А – коэффициент, зависящий от количества труб в теплообменнике и его высоте и принимаемый согласно [2].
Определяется аэродинамическое сопротивление установки:
с однорядными теплообменниками
ΔР>у> = 7,5(ρν)>ф>1,97R2 Z'>у> ,Па, (4.18)
с двухрядными теплообменниками
ΔР>у> = 11,7(ρν)>ф>1,15R2 Z'>у> ,Па, (4.19)
Значение R определяется по [2] в зависимости от среднеарифметической температуры воздуха.
Расчет водухонагревателя.
F>ф> = 6,63 м2
кг/(м2с)

Выбираем:
Схема
1:
Схема
2:
Схема
4:
Схема 1:
Z>у> = 0,59 ; Z'>у> = 1
Схема 2:
Z>у> = 0,63 ; Z'>у> = 1
Схема 4:
Z>у> = 0,54 ; Z'>у> = 1
F>у> = 113 х 1 =113 м2
Схема 1:
Схема 2:
Схема 4:
Схема 1:

м2
м/с
м/с
Схема 2:

м2
м/с
м/с
Схема 4:

м2
м/с
м/с
Для дальнейших расчетов выбираем схему 4.
ΔН>у> = 26,683 х 0,372 =3,65 кПа,
ΔР>у> = 7,5 х 2,271,97 х 0,982 х 1 = 36,2,Па
4.4. Холодильные установки.
В центральных и местных системах кондиционирования воздуха для получения холода широко применяются агрегатированные фреоновые холодильные машины, объединяющие компрессор, испаритель, конденсатор, внутренние коммуникации, арматуру, электрооборудование и автоматику. Их технические характеристики приведены [2]. Расчет холодильной установки сводится к определению её холодопроизводительности и подбору соответствующей ей марки машины.
Расчет производится в следующем порядке:
Вычисляется холодопроизводительность установки в рабочем режиме:
,
кВт, (4.20)
где: А>х> – коэффициент запаса, учитывающий потери холода на тракте хладагента, холодоносителя и вследствие нагревании воды в насосах и и принимаемый для машин с холодопроизводительностью до 200 кВт А>х> = 1,15 ÷ 1,2 , более 200 кВт А>х> = 1,12 ÷ 1,15;
I>н> , I>к> – энтальпия воздуха на входе в камеру орошения и выходе из неё.
Определяются основные температуры, характеризующие режим работы холодильной установки:
температура
кипения холодильного агента
, °С,
(4.21)
температура
конденсации холодильного агента
t>конд >= t>к.к > + (3÷4) , °С, (4.22)
температура
переохлаждения холодильного агента
t>п.х >= t>к.н > + (1÷2) , °С, (4.23)
где: t>н.х >– температура воды на входе в испаритель и на выходе из него, °С;
t>к.н > – температура охлаждающей воды перед конденсатором, ориентировочно принимаемая t>к.н> = 20°С;
t>к.к > – температура воды на выходе из конденсатора, принимаемая на 3÷4°С больше t>к.н> ,°С.
Температуру кипения хладагента в испарителе следует принимать не ниже 2°С, причем температура воды, выходящей из испарителя, не должна быть ниже 6 °С.
Хоодопроизводительность установки, требуемая в рабочем режиме, приводится к стандартным условиям (t>н.х >=5°C, > >t>конд>=35°С, t>п.х >=30°С):> >
, кВт,
(4.24)
где: Q>х.с> – холодопроизводительность холодильной машины в стандартном режиме, кВт;
λ>с> , λ>р> – коэффициенты подачи компрессора при стандартном и рабочем режимах;
q>vc> , q>vp> – объемная холодопроизводительность при стандартном и рабочем режимах, кДж/м3.
Коэффициент λ>с> принимается равным λ>с>=0,76, а величина λ>р> определяется согласно [2].
Объемная холодопроизводительность при стандартных условиях принимается равной q>vc>=2630 кДж/м3, а величина q>vp> определяется по формуле:
, кДж/м3
, (4.25)
где: i>и.х> – энтальпия паровой фазы хладагента при t>и.х> , кДж/кг;
i>п.х> – энтальпия жидкой фазы хладагента при t>п.х> , кДж/кг;
v>и.х> – удельный объем паров хладагента при t>и.х> ,кг/м3.
Согласно [2] подбирается 2 ÷ 4 однотипных холодильных машины и из них компонуется общая установка. При этом суммарная холодопроизводительность принятого числа машин должна равняться вычесленному по формуле (2.19) значению Q>х.с> .
Вентиляторные агрегаты.
Для комплектации центральных систем кондиционирования воздуха используют вентиляторные агрегаты одностороннего и двустороннего всасывания.
Принимаем вентилятор ВР-86-77-5:
Диаметр колеса D = D>ном>;
Потребляемая мощность N = 2,2 кВт;
Число оборотов n = 1420 об./мин;
Двигатель АИР90L4.
КОМПОНОВКА И ТЕПЛОХОЛОДОСНАБЖЕНИЕ
ЦЕНТРАЛЬНЫХ КОНДИЦИОНЕРОВ.
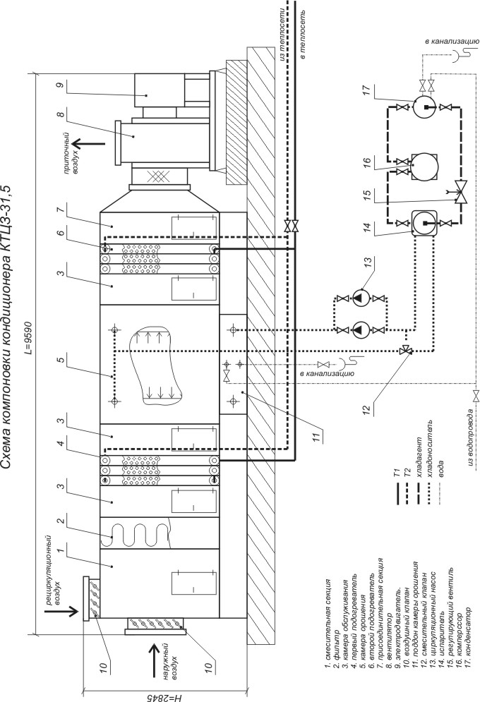
Центральные кондиционеры КД и КТЦ собираются из типовых рабочих и вспомогательных секций. На рис.5.1 показана компоновка кондиционера, работающего с первой рециркуляцией. Наружный воздух через приемный клапан поступает в смесительную секцию, где смешивается с удаляемым из помещения рециркуляционным воздухом. Смесь воздуха очищается от пыли в фильтре и поступает в воздухонагреватель первой ступени. Подогретый воздух подвергается тепловлажностной обработке в секции оросительной камеры и нагревается в секции воздухонагревателя второго подогрева. Обработанный в кондиционере воздух подается в обслуживаемое помещение с помощью вентиляторного агрегата.
Рабочие секции (воздухонагреватели, фильтр, камера орошения) соединяются между собой с помощью секций обслуживания, а вентиляторный агрегат – с помощью присоединительной секции. Рабочие и вспомогательные секции устанавливаются на подставках. Расход рециркуляционного воздуха регулируется воздушным клапаном, а количество наружного – приемным клапаном. Регулирование расхода теплоносителя через секции воздухонагревателей производится регуляторами расхода. Удаление воздуха из системы теплоснабжения осуществляется через воздухосборники.
В теплый период года для охлаждения поступающей в камеру орошения воды используется холодильная установка, в состав которой входят: компрессор, конденсатор, испаритель и регулирующий вентиль. Циркуляция холодоносителя обеспечивается насосной группой. Переключение камеры орошения с политропического режима на диабатический производится трехходовым смесительным клапаном.
Библиографический список
1. СНиП 2.04.05-91* Отопление, вентиляция и кондиционирование. М.: ГУП ЦПП, 2001. 74 с.
2. Иванов Ю.А., Комаров Е.А., Макаров С.П. Методические указания по выполнению курсовой работы "Проектирование кондиционирования воздуха и холодоснабжение". Свердловск: УПИ, 1984. 32 с.
3. Справочник проектировщика. Под ред. Староверова И.Г. Внутренние санитарно-технические устройства. Часть2. Вентиляция и кондиционирование воздуха. М.: Стройиздат. 1978. 502с.