Безопасность эксплуатации системы учета электроэнергии
1. Анализ опасных и вредных факторов при эксплуатации системы учета электроэнергии
1.1 Анализ опасных факторов
При эксплуатации системы учета электроэнергии опасным фактором является возможность поражения работников электрическим током при прикосновении к токоведущим частям трансформатора тока ТПОЛ-10 и трансформатора напряжения НОМ-10, находящихся под напряжением.
Расчет токов, которые протекают через человека в случае прикосновения к токоведущим частям, сведем в таблицу 1.1 и 1.2.
Табл. 1.1. Оценка опасности при эксплуатации трансформатора тока напряжением 10 кВ
|
Вид прикосновения |
Схема |
Расчет |
|
Однофазное прикосновение к токоведущим частям трансформатора в нормальном режиме работы сети напряжением 10 кВ |
|
> |
|
Однофазное прикосновение к токоведущим частям трансформатора в аварийном режиме работы сети напряжением 10 кВ |
|
> |
|
Двухфазное прикосновение к токоведущим частям трансформатора в нормальном режиме к сети 10 кВ |
|
> |
В таблице приняты
следующие обозначения:
- фазное напряжение трансформатора
тока; х>с> – емкостное
сопротивление фазы относительно земли;
R>Ч >= 2103
Ом – сопротивление цепи человека при
однофазном прикосновении;
U>Л >= 10103
В - линейное напряжение трансформатора
тока; R>Д >= 1500 Ом –
сопротивление электрической дуги;
R>К >= 100 Ом – сопротивление
контакта в месте замыкания на земле;
R'>Ч >= 1103
Ом – сопротивление цепи человека при
двухфазном прикосновении.
Табл. 1.2. Оценка опасности при эксплуатации трансформатора напряжения напряжением 10/0,1 кВ
|
Вид прикосновения |
Схема |
Расчет |
|
Однофазное прикосновение к токоведущим частям трансформатора в нормальном режиме работы сети напряжением 10 кВ |
|
> |
|
Однофазное прикосновение к токоведущим частям трансформатора в аварийном режиме работы сети 10 кВ |
|
> |
|
Двухфазное прикосновение к токоведущим частям трансформатора в нормальном режиме к сети 10 кВ |
|
> |
В таблице приняты
следующие обозначения:
- фазное напряжение трансформатора
напряжения; х>с> –
емкостное сопротивление фазы относительно
земли; R>Ч >= 2103
Ом – сопротивление цепи человека при
однофазном прикосновении;
U>Л >= 10103
В-линейное напряжение трансформатора
напряжения; R>Д >= 1500
Ом – сопротивление электрической дуги;
R>К >= 100 Ом – сопротивление
контакта в месте замыкания на земле;
R'>Ч >= 1103
Ом – сопротивление цепи человека при
двухфазном прикосновении.
На основании анализа произведенных расчетов вариантов включения человека в электрическую цепь для сети напряжением 10 кВ можно сделать вывод, что величины расчетных токов превышают допустимые значения во всех случаях:
1. Однофазное прикосновение к токоведущим частям трансформатора в нормальном режиме работы сети, I>Ч> =2,88 А
2. Однофазное прикосновение к токоведущим частям трансформатора в аварийном режиме работы сети, I>Ч> =2,78 А
3. Двухфазное прикосновение к токоведущим частям трансформатора в нормальном режиме работы сети, I>Ч> =4 А
1.2 Анализ вредных факторов
При эксплуатации измерительных трансформаторов тока и напряжения напряжением 10 кВ вредными факторами являются: шум, возникающий из-за неплотного стягивания пакетов стальных сердечников; плохое освещение при выполнении работ в темное время суток и при недостаточной видимости.
2. Профилактические меры для нормализации условий труда
2.1 Меры защиты от электрического напряжения
Контроль изоляции измерительного трансформатора тока напряжением 10 кВ представлен в таблице 2.1.
опасный вредный трансформатор напряжение
Таблица 2.1
|
Контролируемый параметр |
Температура обмоток трансформатора тока напряжением 10 кВ, С° |
||||||
|
10 |
20 |
30 |
40 |
50 |
60 |
70 |
|
|
Сопротивление изоляции R>60>, МОм |
450 |
300 |
200 |
130 |
90 |
60 |
40 |
|
tgδ, % |
1,2 |
1,5 |
2 |
2,5 |
3,4 |
4,5 |
6 |
|
Коэффициент абсорбции: R>60>/ R>15> |
Не ниже 1,3 |
||||||
|
Повышенное напряжение, кВ |
Для обмотки напряжением 10 кВ = 14,4 кВ |
R>60> и R>15> измеряются мегомметрами на напряжении 2500 В, а tgδ – мостами переменного тока.
Контроль изоляции измерительного трансформатора напряжения напряжением 10/0,1 кВ представлен в таблице 2.2.
Таблица 2.2
|
Контролируемый параметр |
Температура обмоток трансформатора напряжения напряжением 10 и 0,1 кВ, С° |
||||||
|
10 |
20 |
30 |
40 |
50 |
60 |
70 |
|
|
Сопротивление изоляции R>60>, МОм |
450 |
300 |
200 |
130 |
90 |
60 |
40 |
|
tgδ, % |
1,2 |
1,5 |
2 |
2,5 |
3,4 |
4,5 |
6 |
|
Коэффициент абсорбции: R>60>/ R>15> |
Не ниже 1,3 |
||||||
|
Повышенное напряжение, кВ |
Для обмотки напряжением 0,1 кВ = 2,7 кВ Для обмотки напряжением 10 кВ = 14,4 кВ |
R>60> и R>15> измеряются мегомметрами на напряжении 2500 В, а tgδ – мостами переменного тока.
Методы ориентации: маркировка каждого трансформатора тока и напряжения, наносится на корпуса трансформаторов условными обозначениями (буквы, цифры – ТТ1,…, ТТ3; ТН1,…, ТН3); знак безопасности «Осторожно! Электрическое напряжение» наносится на корпуса трансформаторов; соответствующее расположение и окраска токоведущих частей: фаза L1 – левая желтого цвета, фаза L2 – средняя зеленого цвета, фаза L3 – правая красного цвета; световая сигнализация, указывает на включенное (отключенное) состояние трансформатора тока и напряжения.
Сеть напряжением 10 кВ выполняется с изолированной нейтралью. В этих сетях необходимый постоянный контроль замыкания на землю.
Мерой защиты от электрического напряжения так же является защитное заземление, которое защищает от напряжения прикосновения. Расчеты защитных заземлений выполнены в пунктах 2.2 и 2.3.
Электрозащитные средства, используемые при работе с трансформатором тока напряжением 10 кВ, представлены в таблице 2.3.
Основные ЭЗС
|
Название |
Тип |
Количество |
|
10 кВ |
10 кВ |
|
|
Изолирующая штанга |
ШПК-10 |
2 шт. |
|
Изолирующие клещи |
1 шт. |
|
|
Электроизмерительные клещи |
Ц4502 |
1 шт. |
|
Указатели напряжения |
УВН-10 |
2 шт. |
|
Дополнительные ЭЗС |
||
|
Название |
Тип |
Количество |
|
10 кВ |
10 кВ |
|
|
Диэлектрические: – перчатки – боты – ковры |
со швом |
≥ 2 пар |
|
1 пара |
||
|
2 шт. |
||
|
Изолирующие подставки, накладки |
||
|
Переносное заземление |
25 мм2 |
≥ 2 шт. |
|
Оградильные устройства |
≥ 2 шт. |
|
|
Плакаты безопасности |
4 шт. |
Электрозащитные средства, используемые при работе с трансформатором напряжения напряжением 10 кВ, представлены в таблице 2.4.
Основные ЭЗС
|
Название |
Тип |
Количество |
||
|
0,1 кВ |
10 кВ |
0,1 кВ |
10 кВ |
|
|
Изолирующая штанга |
ШПК-10 |
ШПК-10 |
2 шт. |
2 шт. |
|
Изолирующие клещи |
К-1000 |
1 шт. |
1 шт. |
|
|
Электроизмерительные клещи |
Ц4501 |
Ц4502 |
1 шт. |
1 шт. |
|
Указатели напряжения |
УНН1 |
УВН-10 |
2 шт. |
2 шт. |
|
Диэлектрические перчатки |
со швом |
- |
2 пары |
- |
|
Дополнительные ЭЗС |
||||
|
Название |
Тип |
Количество |
||
|
0,4 кВ |
6,3 кВ |
0,4 кВ |
6,3 кВ |
|
|
Диэлектрические: – перчатки – боты – ковры |
- |
со швом |
- |
≥ 2 пар |
|
1 пара |
||||
|
2 шт. |
||||
|
Изолирующие подставки, накладки |
||||
|
Переносное заземление |
16 мм2 |
25 мм2 |
≥ 2 шт. |
≥ 2 шт. |
|
Оградильные устройства |
≥ 2 шт. |
≥ 2 шт. |
||
|
Плакаты безопасности |
2 шт. |
4 шт. |
2.2 Расчет заземления для трансформатора тока напряжением 10 кВ
Исходные данные для расчета:
– напряжение обмотки трансформатора тока = 10 кВ = 10000 В;
– ток замыкания на землю:
;
т.к.
,
а
- длина кабельной линии, то
;
– измерительный трансформатор
тока напряжением 10 кВ расположен в
ячейке КРУ и занимает площадь:
;
– тип грунта – суглинок
Ом м;
– естественные заземлители отсутствуют.
Расчет
Так как заземлению подлежит
установка напряжением до 1 кВ и выше 1
кВ, то сопротивление искусственного
заземлителя рассчитывается по формуле
и оно должно быть
=10
Ом.

Конфигурация заземлителя – прямоугольник.
В качестве вертикальных электродов
выбираем стальной электрод диаметром
и длиной 3 метра.
В качестве соединительной полосы
выбираем полосу у которой
.
Определим сопротивление току растекание с одного вертикального заземлителя:
Ом
Определим количество параллельно соединенных вертикальных заземлителей:

где
-
коэффициент использования заземлителей,
для вертикальных стержневых, расположенных
по контуру при
метра (расстояние между электродами) и
метра.
Полученное
округлим до целого числа
штук и пересчитаем
.
Определим длину полосы, применяемой
для связи вертикальных электродов: при
расположении заземлителей по контуру
метров
Определим сопротивление току растекания горизонтального электрода:
Ом
Эквивалентное сопротивление току растекания искусственных заземлителей:
Ом,
где
-
коэффициент использования горизонтального
электрода с учетом вертикальных при
расположении вертикального по контуру.
Полученное сопротивление
искусственного электродов не превышает
требуемого, т.е.
(6,32Ом<8.33Ом<10Ом),
значит, расчет удовлетворяет условиям.
Заземление ложем в грунт на t>0>=0,8 метра.
Расчет заземления для трансформатора напряжения напряжением 10/0,1 кВ
Исходные данные для расчета:
– напряжение высшей обмотки трансформатора напряжения = 10 кВ = 10000 В;
– ток замыкания на землю:
;
т.к.
,
а
-
длина кабельной линии, то
;
– измерительный трансформатор
напряжения напряжением 10/0,1 кВ расположен
в ячейке КРУ и занимает площадь:
;
– тип грунта – суглинок
Ом м;
– естественные заземлители отсутствуют.
Расчет
Так как заземлению подлежит
установка напряжением до 1 кВ и выше 1
кВ, то сопротивление искусственного
заземлителя рассчитывается по формуле
и оно должно быть
=10
Ом.

Конфигурация заземлителя – прямоугольник.
В качестве вертикальных электродов
выбираем стальной электрод диаметром
и длиной 3 метра.
В качестве соединительной полосы
выбираем полосу у которой
.
Определим сопротивление току растекание с одного вертикального заземлителя:
Ом
Определим количество параллельно соединенных вертикальных заземлителей:

где
-
коэффициент использования заземлителей,
для вертикальных стержневых, расположенных
по контуру при
метра (расстояние между электродами) и
метра.
Полученное
округлим до целого числа
штук и пересчитаем
.
Определим длину полосы, применяемой
для связи вертикальных электродов: при
расположении заземлителей по контуру
метров
Определим сопротивление току растекания горизонтального электрода:
Ом
Эквивалентное сопротивление току растекания искусственных заземлителей:
Ом,
где
-
коэффициент использования горизонтального
электрода с учетом вертикальных при
расположении вертикального по контуру.
Полученное сопротивление
искусственного электродов не превышает
требуемого, т.е.
(6,32
Ом<8.33 Ом<10 Ом), значит расчет
удовлетворяет условиям.
Заземление ложем в грунт на t>0>=0,8 метра.
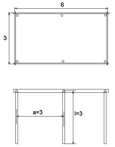
Схема заземления представлена на рисунке 1.

Рис. 1
2.4 Защита от вредных факторов
Защита от шума достигается с помощью снижения шума самих трансформаторов – применение малошумных трансформаторов, рационального размещения трансформаторов и рабочих мест работников, а так же индивидуальных средств защиты (противошумные наушники, шлемы и каски). Защитой от плохого освещения или его отсутствия, служат независимые источники питания аварийного освещения.
3. Пожарная безопасность
Горючими веществами у измерительных трансформаторов тока и напряжения являются:
– трансформаторное масло;
– краска бака трансформатора;
– изоляция обмоток.
Причинами пожара могут быть: систематические перегрузки; токи короткого замыкания; токовые перегрузки проводников; местный перегрев сердечника; несоблюдение работниками правил пожарной безопасности.
Площадка, на которой установлены трансформаторы тока и напряжения, оборудована стационарной установкой пожаротушения. Тушение пожаров осуществляется водой. Для тушения пожаров в измерительных трансформаторах применяют дренчерные установки.
Профилактические меры пожарной безопасности: защита, отключающая поврежденный трансформатор от сети со всех сторон; стационарная установка пожаротушения.

>
>
>