Оценка пожара
Курсовая работа на тему:
«Оценка пожара»
Содержание
Часть 1.Аналитическая оценка параметров пожаровзрывобезопасности веществ и материалов
1.1 Описание физико-химических свойств вещества
1.2 Определение теоретического количества воздуха, необходимого для горения исследуемого вещества
1.3 Определение объема и состава продуктов, выделяющихся при горении вещества
1.4 Определение теплоты горения веществ и материалов
1.5 Определение теоретической температуры горения, давления взрыва
1.6 Определение концентрационных пределов воспламенения газов и паров горючей жидкости
1.7 Определение температуры вспышки и температурных пределов воспламенения паров горючей жидкости
1.8 Сравнительная таблица расчетных и справочных данных по показателям пожаровзрывобезопасности вещества
Часть 2.Динамика развития пожара.
2.1 Расчет площади пожара в заданные моменты времени
2.2 Расчет температуры пожара в заданные моменты времени
Часть 3.Определение характеристик поражающих факторов и степени их воздействия на людей и окружающую среду, а также прогнозирование масштабов возможного заражения территории СДЯВ.
3.1 Определение глубины возможного заражения на заданный момент времени от начала аварии
3.2 Определение продолжительности действия источника заражения
3.3 Определение площади зоны возможного заражения
3.4 Определение времени подхода зараженного облака к поселку
Литература
Введение
В нынешнее время, когда происходит рост различных новых производств и следующее за этим распространение пожароопасных технологий, что значительно повышает пожароопасность объектов, в связи с чем и возрастает ответственность подразделений пожарной аварийно-спасательной службы МЧС Беларуси.
Успех тушения пожара достигается комплексом служебных и оперативно-тактических действий. Среди них особое значение имеют – умение анализировать явления, происходящие на пожаре, факторы способствующие и препятствующие распространению огня а так же тушению пожара.
Для оценки реальной обстановки и ее прогнозирования на пожаре, разработке мероприятий по тушению и управлению боевыми действиями подразделений необходимо знать закономерности развития пожара, его параметры, характеристику огнетушащих средств, возможности подразделений и многие другие вопросы пожаротушения.
Таким образом, работники пожарной аварийно-спасательной службы должны в совершенстве владеть методикой расчета сил и средств, необходимых для тушения пожаров, проектирования стандартных систем пожаротушения, проведения исследования процессов горения а так же тушения различных веществ и материалов, что изучает дисциплина «Физико-химические основы теории горения и взрыва».
Исходные данные для выполнения 1 части.
Наименование горючей жидкости: гептан
Химическая формула: С7H16
Смесь газов:
Н2 – 20%
С4Н10– 30%
С2Н2 – 17%
H2S – 13%
Параметры окружающей среды:
t = 40С
Р = 740 мм.рт.ст.
Коэффициент избытка воздуха:
В = 1,2
Характеристика вещества
Гептан - С7H16
ЛВЖ
Молекулярная масса: 100,203
Температура кипения: 98,43 0С
Температура плавления:-90,6 0С
Температура воспламенения: -4 0С
Температура вспышки: -4 0С
Температура самовоспламенения: 223 0С
Коэффициент
диффузии пара в воздухе: 0,0609 см
/с
Плотность: 683,76 кг/м3
Теплота образования: -187,7 кДж/моль.
Теплота сгорания: -4501 кДж/моль
Концентрационные пределы распространения пламени:
нижний: 1,07%
верхний: 6,7%
Температурные пределы распространения пламени:
нижний: -7 0С
верхний:26 0С
Водород Н2
Молекулярная масса: 2,016
Температура кипения: 252,8 0С
Температура самовоспламенения: 510 0С
Плотность по воздуху: 0,0695 кг/м3
Концентрационные пределы распространения пламени
нижний 4,12 %
верхний 75,0 %
Водород Н2
Молекулярная масса: 2,016
Плотность при 200С: 0,0695 кг/м3
Температура кипения: 252,8 0С
Температура самовоспламенения: 510 0С
Пропан – С3Н8
Бутан С4Н10
Молекулярная масса: 58,123
Температура кипения: -0,5 0С
Температура самовоспламенения: 4050С
Теплота сгорания:-2657 кДж/моль
Температура вспышки:-69 0С
Максимальное давление взрыва:843 кПа
Нормальная скорость распространения пламени:0,45 м/с
Концентрационные пределы распространения пламени в воздухе
нижний 1,8 %
верхний 9,1 %
Ацетилен С2Н2
Молекулярная масса: 26,04
Температура кипения: 83,6 0С
Температура самовоспламенения: 335 0С
Плотность по воздуху: 0,9107 кг/м3
Концентрационные пределы распространения пламени
нижний 2,5 %
верхний 81 %
Молекулярная масса: 44
Сероводород – Н2S
Молекулярная масса: 34,08
Плотность в воздухе: 1,19 кг/м3
= 2,60
Температура кипения: 319,25 0С
Температура плавления: 160,9 0С
Часть 1.Аналитическая оценка параметров пожароопасности веществ
1.1 определение теоретического количества воздуха, необходимого для горения исследуемого вещества
а) Индивидуальное химическое соединение:
С7Н16+ 11
О2+
11
3,76
N2 = 7
CO2
+8
H2O
+ 11
3,76
N2
Определение объема 1-го киломоля воздуха при заданных условиях:
м3/кмоль.
Определение объема воздуха, необходимого для горения 1 кг горючего вещества при нормальных условиях:
м3/кг.
Определение объема воздуха, необходимого для горения 1 кг горючего вещества при заданных условиях:


м3/кг.
Определение объема воздуха, необходимого для горения 1 кг горючего вещества при нормальных условиях с учетом коэффициента избытка воздуха:
м3/кг.
Определение объема воздуха, необходимого для горения 1 кг горючего вещества при заданных условиях с учетом коэффициента избытка воздуха:
м3/кг.
б) Горение смеси газов
Н2+ 0,5О2+
0,5
3,76
N2 = H2O
+ 0,5
3,76
N2
С4Н10+
6,5
О2+
6,5
3,76
N2 = 4CO2 + 5H3O + 6,5
3,76
N2
C2H3
+ 2,5O2 + 2,5
3,76N2
= 2CO2 + H3O +2,5
3,76N2
H3S+
1,5О2 + 1,5
3,76N2=
SО2 + H3O + 1,5
3,76N2
Определение объема воздуха, необходимого для горения 1 м3 смеси при нормальных условиях:
м3/ м3
Определение объема воздуха, необходимого для горения 1 м3 смеси при заданных условиях:
м3/кмоль.
Определение объема воздуха, необходимого для горения 1 м3 смеси при нормальных условиях с учетом коэффициента избытка воздуха:
12,711,2
= 15,25 м3
Определение объема воздуха, необходимого для горения 1 м3 смеси при заданных условиях с учетом коэффициента избытка воздуха:
13,241,2
= 15,89 м3
1.2 Определение объема и состава продуктов горения в единице объема
а) Индивидуальное химическое соединение: С7Н16
С7Н16+ 11
О2+
11
3,76
N2 = 7
CO2
+8
H2O
+ 11
3,76
N2
Определение объемных долей продуктов горения в единице объема:
(12,4 %)
(14,2 %)
(73,4 %)
Определение объема продуктов горения для 1 кг вещества при нормальных условиях:
12,62
м3/кг.
Определение объема продуктов горения для 1 кг вещества при заданных условиях:
13,15
м3/кг.
Определение объемов компонентов продуктов горения для 1 кг вещества при нормальных условиях:
12,62
0,124
= 1,56 м3/кг;
12,62
0,142 = 1,79 м3/кг;
12,62
0,734 = 9,26 м3/кг.
Определение объемов компонентов продуктов горения для 1 кг вещества при заданных условиях:
13,15
0,124= 1,63 м3/кг;
13,15
0,142= 1,87 м3/кг;
13,15
0,734 = 9,65 м3/кг.
Определение объема продуктов горения для 1 кг вещества при нормальных условиях с учетом коэффициента избытка воздуха:
11,72
(1,2 - 1) = 2,34 м3/кг;
12,62
+ 2,34= 14,96 м3/кг.
Определение объема продуктов горения для 1 кг вещества при заданных условиях с учетом коэффициента избытка воздуха:
12,22
(1,2 - 1) = 2,44 м3/кг;
13,15
+2,44 = 15,59 м3/кг.
Определение объемов компонентов продуктов горения для 1 кг вещества при нормальных условиях с учетом коэффициента избытка воздуха:
1,56
м3/кг;
1,79
м3/кг;
9,26
+2,34
0,79 = 11,10
м3/кг;
2,34
0,21 = 0,49 м3/кг.
Определение объемов компонентов продуктов горения для 1 кг вещества при заданных условиях с учетом коэффициента избытка воздуха:
1,63
м3/кг;
1,87
м3/кг;
9,65
+ 2,44
0,79 = 11,57 м3/кг;
2,44
0,21 = 0,51 м3/кг.
Определение объемных процентов компонентов продуктов горения с учетом коэффициента избытка воздуха:




б) Смесь газов
Н2 – 20%
С4Н10 – 30%
С2Н2 – 17%
Н2S – 13%
Н2+ 0,5О2+
0,5
3,76
N2 = H2O
+ 0,5
3,76
N2
С4Н10+
6,5
О2+
6,5
3,76
N2 = 4CO2 + 5H3O + 6,5
3,76
N2
C2H3+
2,5O2 + 2,5
3,76N2
= 2CO2 + H3O +2,5
3,76N2;
Н2S
+ 1,5
О2
+ 1,5
3,76N2=
SО2 + H3O +1,5
3,76N2.
Определение объемов компонентов продуктов горения для 1 м3 смеси при нормальных условиях:
4
0,30
+ 2
0,17=
1,54 м3/м3
1
0,20
+ 5
0,30+
1
0,17
+ 1
0,13=
2 м3/м3
1,880,2+24,44
0,3 + 9,4
0,17+ 5,64 0,13
= 10,04 м3/м3
1
0,13
= 0,13 м3/м3
Определение объема продуктов горения для 1 м3 смеси при нормальных условиях:
1,54+2+10,04+0,13=13,71
м3/м3
Определение объемов компонентов продуктов горения для 1 м3 смеси при заданных условиях:
м3/м3
м3/м3
м3/м3
м3/м3
Определение объема продуктов горения для 1 м3 смеси при заданных условиях:
м3/м3
Определение объемных процентов компонентов продуктов горения без учета коэффициента избытка воздуха:




Определение объема продуктов горения для 1 м3 смеси при нормальных условиях с учетом коэффициента избытка воздуха:
=
12,71
(1,2
– 1) = 2,54м3/м3
13,71+
2,54 = 16,25 м3/м3
Определение объемов компонентов продуктов горения для 1 м3 смеси при нормальных условиях с учетом коэффициента избытка воздуха:
2
м3/м3
1,54
м3/м3
10,04
+ 2,54
0,79
= 12,05 м3/м3
2,54
0,21
= 0,53 м3/м3
0,13
м3/м3
Определение объема продуктов горения для 1 м3 смеси при заданных условиях с учетом коэффициента избытка воздуха:
=
13,24
(1,2
– 1) = 2,65м3/м3
14,29+2,65=
16,94 м3/м3
Определение объемов компонентов продуктов горения для 1 м3 смеси при заданных условиях с учетом коэффициента избытка воздуха:
2,08
м3/м3
1,6
м3/м3
10,46+2,65
0,79
= 12,55 м3/м3
2,65
0,21
= 0,56 м3/м3
0,13
м3/м3
Определение объемных процентов компонентов продуктов горения с учетом коэффициента избытка воздуха:





Теоретическое количество воздуха, необходимого для горения веществ, объем и состав продуктов горения.
|
№ п/п |
Показатель |
Инд. хим. соединение |
Смесь газов |
||
|
|
|
|
|
||
|
|
|
11,72 |
14,06 |
12,71 |
15,25 |
|
|
|
12,22 |
14,66 |
13,24 |
15,89 |
|
|
|
12,62 |
14,96 |
13,71 |
16,25 |
|
|
|
13,15 |
15,59 |
14,29 |
16,94 |
|
|
|
1,79 |
1,79 |
2,00 |
2,00 |
|
|
|
1,56 |
1,56 |
1,54 |
1,54 |
|
|
|
9,26 |
11,10 |
10,04 |
12,05 |
|
|
|
- |
0,49 |
- |
0,53 |
|
|
|
- |
- |
0,13 |
0,13 |
|
|
|
1,87 |
1,87 |
2,08 |
2,08 |
|
|
|
1,63 |
1,63 |
1,6 |
1,6 |
|
|
|
9,65 |
11,57 |
10,46 |
12,55 |
|
|
|
- |
0,51 |
- |
0,56 |
|
|
|
- |
- |
0,13 |
0,13 |
|
|
|
14,2 |
11,96 |
14,59 |
12,3 |
|
|
|
12,4 |
10,43 |
11,23 |
9,5 |
|
|
|
73,4 |
74,2 |
73,23 |
74,15 |
|
|
|
- |
- |
0,95 |
0,8 |
|
|
|
- |
3,27 |
- |
3,26 |
Определяем QН по закону Гесса:
С7Н16+ 11
О2+
11
3,76
N2 = 7
CO2
+8
H2O
+ 11
3,76
N2

Из справочной литературы находим:
кДж/моль;
кДж/моль;
кДж/моль;
=
4528,2кДж/моль = 45282кДж/кг.
б) Смесь газов:
Определяем QH для Н2:
Н2+ 0,5О2+
0,5
3,76
N2 = H2O
+ 0,5
3,76
N2
кДж/моль;
242,2
кДж/моль =10812,5кДж/ м3
Определяем QН для С4Н10 по формуле Менделеева:
С4Н10+
6,5
О2+
6,5
3,76
N2 = 4CO2 + 5H2O
+ 6,5
3,76
N2
;

2483160,38
кДж/моль =110855,37кДж/ м3
Определяем QН для С2Н2 по формуле Менделеева:
С2Н2+2,5O2 +2,5 3,76 N2 = 2CO2 + H2O +2,5 3,76N2
кДж/моль;
1262,75
кДж/моль = 1262750 кДж/кмоль =
= 56372,77 кДж/м3
Определяем
QН для Н2S по формуле
Менделеева из-за отсутствия в справочной
литературе значения
:
;
;
16312,54
кДж/моль == 24760,11 кДж/м3
Определяем QН для смеси по формуле:
=10812,5
0,2+110855,37
0,3+56372,77
0,17+24760,11
0,13=
45322,3кДж/м3
1.4 Определение теоретической температуры горения, давления взрыва паров горючего вещества
а) Индивидуальное химическое соединение:
Определяем среднее теплосодержание продуктов горения гептана:
кДж/м3
Принимаем
Т1 по
из
приложения 2 и при Т1 определяем
теплосодержание продуктов горения:
Т1 = 22000С
1,56
5392,5+1,79
4405,8+9,26
3306,3=46915,02
кДж/м3
Так как
>
QН, принимаем Т2 < Т1:
Т2 = 21000С
1,56
5118,2+1,79
4166,1+9,26
3142,9=44544,97
кДж/м3
Так как
<
QН <
,
температуру горения определяем по
методу линейной интерполяции:
=
0С
Определяем давление взрыва:
атм.
б) Смесь газов:
Определяем среднее теплосодержание продуктов горения смеси газов:

=45322,3/13,71
= 3035,78 кДж/м3
Принимаем
Т1 по
из приложения 2 и при Т1 определяем
теплосодержание продуктов горения:
Т1 = 2000 0С

1,544847,8+23928,5+10,042979,9+0,134667,6=45847,6
кДж/м3
Так как
,
принимаем Т2 <Т1
Т2 = 1900 0С
1,544579,7+23693,5+10,042818,2+0,134529,8=43323,34
кДж/м3
Так как
<
<
,
температуру горения определяем по
методу линейной интерполяции:
=
1979
Определяем давление взрыва:
атм
1.5 Определение концентрационных пределов воспламенения газов и паров горючей жидкости
а) Индивидуальное химическое соединение:
φН(В) = 100/ (а n + в)
φН = 100/(8,684 11+4,679 ) =1,0%
φВ = 100/(0,768 11 + 6,554) = 6,66 %
б) Смесь газов:

100/(8,684
6,5
+ 4,679) = 1,64
%
100/(8,684
0,5
+ 4,679) =
11,09%
100/(8,684
2,5 + 4,679) = 3,79
%
100/(8,684
1,5
+ 4,679) = 5,65
%
%
100/(1,55
6,5
+ 0,56) =9,69
%
100/(1,55
0,5
+ 0,56) =74,9
%
100/(1,55
2,5
+ 0,56) =22,55
%
100/(1,55
1,5 + 0,56) =34,66
%

1.6 Определение температуры вспышки и температурных пределов воспламенения паров горючей жидкости
а) Определение температуры вспышки.


Определим Р по уравнению Антуана:
,
где А = 6,07647 (кПа);
В = 1295,405 (кПа);
СА = 219,819 (кПа) – постоянные Антуана для гептана.
Берем:
t1 = 10 0C; Т1 =283 0К
=
2753 Па
Р1 Т1 = 2753 283 = 779157 Па К
Выбираем:
t2 = 2 0C; Т2 = 275 0К
= 1724 Па
Р2 Т2=1724 275= 487907 Па К
Так как Т2 Р2 < Твсп Рвсп < Т1 Р1, то методом линейной интерполяции определяем Твсп:


б) Определение температурных пределов воспламенения.



|
Показатель |
Размерность |
Расчетные значения |
Справочные значения |
Относительная ошибка,% |
|
Теплота горения QН |
кДж/кг |
45282 |
45010 |
0,6 |
|
Температура горения Тгор |
0С |
2131,1 |
- |
- |
|
Давление взрыва Рвзр |
атм. |
6,96 |
- |
- |
|
НКПВ (φн) |
% |
1,0 |
1,07 |
6,5 |
|
ВКПВ (φв) |
% |
6,66 |
6,7 |
0,6 |
|
НТПВ (tн) |
0С |
-6,87 |
- |
- |
|
ВТПВ (tв) |
0С |
26,5 |
- |
- |
|
Температура вспышки Твсп |
0С |
5,75 |
5 |
15 |
Определение относительных ошибок:




Часть 2. Динамика развития пожара

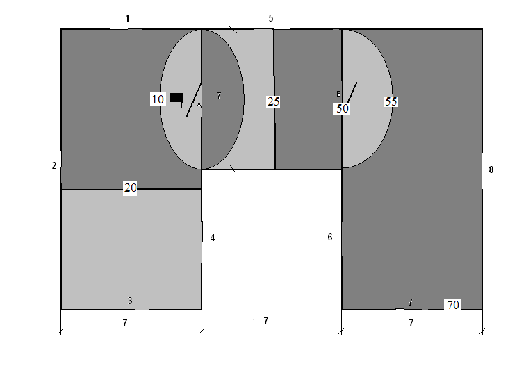
План помещения
пожар горение заражение
Исходные данные для выполнения 2 части.
Размеры проёмов: а = 7м;
h = 3 м;
Предел огнестойкости дверей:QД.В. = 0,3 часа;
Проемы (дверные): 3 2,2 м
Проемы (оконные): 1,2 1,1 м
Расстояние от пола до оконных проёмов: Нн 1,2 м;
Линейная скорость распространения пламени:Vлин = 0,7 м/мин.
2.1 Расчет площади пожара
Предположим, что в момент возникновения пожара дверные проемы были закрыты, распространение пожара во все стороны происходит с одинаковой скоростью.
В первые 10 минут развитие пожара принимаем скорость равной 0,5 VЛ. Проемы в стенах расположены симметрично.
Определим расстояние, которое пройдет фронт пламени за 10 минут:
L = 0,5VЛ = 0,5 0,7 10 =3,5 м
Определим, через какое время вскроется оконные проемы 1и2 ,расстояние до которых составляет 3,5м:
Τ1и2 = τ1 +
= 10 + 5 = 15 мин
Определим площадь пожара на 15 минуте:
м2
Площадь пожара в помещении 1 примет прямоугольную форму и пройдет оставшиеся 7 метров за 10 минут :
7*14=98
м2 τ = 25 мин.
В момент времени, τ =25 минут фронт пламени вскроет дверной проем А, т.к. фронт пламени достигнет сразу дверной проём А и вскроется он на 20 минуте, потому что предел огнестойкости составляет 0,3 минут. Следовательно, через вскрытую дверь пожар попадет из помещения 1 в помещение 2,дойдет до стены, примет прямоугольную форму, вскроет оконный проем 5 и на 25минуте площадь пожара будет равна:
7
=
122,5 м2
Оставшиеся 3,5 метра до вскрытия двери Б фронт пламени будет распространяться со скоростью 0,7 м/мин и пройдет это расстояние за время 5 минут. Тогда площадь пожара примет прямоугольную форму и будет равна:
122,5
+ 7
= 147м2
В момент времени, τ =50 минут фронт пламени вскроет дверной проем Б, т.к. фронт пламени достигнув дверной проём Б на 30 минуте и вскроет его на 50, потому что предел огнестойкости составляет 20 минут. И пламя попадет в помещение 3.:
В момент времени, когда огонь дойдет до ближайшей стены в помещении 3, форма пожара станет прямоугольной. Расстояние в 7м фронт пламени пройдет за 10 мин, и на 60 мин (в этот момент времени вскроются оконные проёмы №6,8 ) площадь пожара будет равна:
м2
Определим время, за которое все III помещение будет охвачено огнем, т.к. ближайшее расстояние до стены 7м., то время за которое фронт пламени охватит всё помещение будет равным70 минут. Определим площадь пожара на момент времени70 мин:
м2
Время, за которое все здание будет охвачено огнём и вскроются все проёмы составит 70 мин.:
м2

Рис. 2. План развития пожара.
Строим график изменения площади пожара во времени:

Рис. 3. Изменение площади пожара во времени.
2.2 Определение температуры пожара
Температуру пожара будем вычислять для четырех моментов времени: 15; 25; 35 и 70минуты.
На момент времени τ = 15 минуты фронт пламени достигнет оконных проемов № 1и2, оконные проемы вскроются . Определим площадь проемов:
Fпр(15) = 2
1,2
1,1
= 2,64 м2
F1 = 2,64/3 = 0,88 м2
На момент времени τ = 25 минут фронт горения достигнет дверных проема А и оконныt проемs №1,2,3,4,5.:
Fпр(25) = 5
=
7,2 м2
F1 = 7,2/3 = 2,4 м2
На момент времени τ = 35 минуты фронт гоения достигнет оконных проемов1,2,3,4,5и дверных проемов А и Б:
Fпр(35) =5
=
7,2 м2
F1 = 7,2/3 = 2,4 м2
На момент времени τ = 70 минут фронт пламени заполнит полностью все помещение и в газообмене будут участвовать оконные проемы 1,2,3, 4,5,6,7, 8 и дверные проемы А и Б:
Fпр(70)= 8
=10,56
м2
F1
= 10,56/3 = 3,52 м
Для удобства все необходимые данные сводим в таблицу:
Таблица 3:
|
Время, мин |
15 |
25 |
35 |
70 |
|
FПОЛА, м2 |
98 |
147 |
147 |
245 |
|
SП, м2 |
49 |
122,5 |
147 |
245 |
|
F1, м2 |
0,88 |
2,4 |
2,4 |
3,52 |
|
F1/ SП |
0,88/49 |
2,4/122,5 |
2,4/147 |
3,52/245 |
|
SП/ FПОЛА |
49/98 |
122,5/147 |
1 |
1 |
|
В |
1,9 |
1,8 |
1,8 |
1,8 |
|
FПР, м2 |
2,64 |
7,2 |
7,2 |
10,56 |
|
FПР/SП |
0,05 |
0,06 |
0,045 |
0,04 |
|
V’М, кг/(м2с) |
0,015 |
0,013 |
0,012 |
0,011 |
|
FОГР, м2 |
322 |
504 |
504 |
826 |
|
q, кВт/м2 |
37,286 |
51,61 |
57,172 |
53,296 |
|
t, 0С |
750 |
850 |
970 |
890 |
Значения в находим по графику (рис. 1. приложения к Методическим указаниям к выполнению курсовой работы)
Плотность теплового потока (кВт/м2), воспринимаемого поверхностями ограждающих конструкций на соответствующие моменты времени определяется по формуле:

Приведенная массовая скорость выгорания (V’М) в процессе развития пожара изменяется. Ее определяем по графику (рис. 3. приложения к Методическим указаниям к выполнению курсовой работы).
FОГР находим по формуле: FОГР = FПОЛА + FПОТОЛКА + FСТЕН:
τ = 15: FОГР = 322 м2
τ = 25: FОГР = 504 м2
τ = 35: FОГР = 504 м2
τ = 70: FОГР = 826 м2
Плотность теплового потока на данные моменты времени составит:




Пользуясь номограммой (рис. 2 приложения к Методическим указаниям к выполнению курсовой работы), по полученным значениям q и В определяем температуру пожара.
По полученным данным строим график изменения температуры пожара во времени:

Рис. 4. Изменение температуры пожара во времени.
Часть 3. Определение характеристик поражающих факторов и степени их воздействия на людей и окружающую среду
Исходные данные :
Масса хранящихся на объекте ГСМ (СУГ): Q=63 тонн
Плотность рабочего персонала на объекте: Пр=0,3 тыс.чел./км2
Плотность населения в посёлке: Пн = 2,2 тыс.чел./км2
Расстояние от объекта до посёлка: Х=1,2км
Наименование СДЯВ: ацетонциангидрид
Количество выброшенного СДЯВ: Q0=15 тонн
Степень вертикальной устойчивости воздуха: инверсия
Температура воздуха: t=110С
Скорость ветра: Vв=11 м/с
Характер розлива: в поддон высотой Н=0,9 м
Решение
) При выходе в окружающую среду сжиженных углеводородных газов или топлива.
1.1. В очаге взрыва газовоздушной смеси (ГВС) выделяются зоны, имеющие форму полусфер.1 зона (детонационной волны) радиусом
=17,5 •
=
69,6 м;
2 зона (действия продуктов взрыва) , радиус которой
R2=1,7 R1=1,7 • 69,6=118,4 м
1.2 производственное здание находиться за пределами этих двух зон и оказалось в третьей зоне ударной воздушной волны. По графику(рис.8) находим, что при массе взрывоопасной ГВС 63 тонны на расстоянии 300м от центра взрыва величина избыточного давления должна составить 30 кПа
1.3 Избыточное давление величиной 30 кПа вызовет сильные разрушения производственного кирпичного здания.
2.1 При мгновенном и полном разрушении резервуара во взрыве участвует вся масса СУГ (63 тонн ) . По таблице определяем, что число погибших из числа персонала 14 человек, а радиус смертельного поражения достигнет 119,4 м.
Хотя среди населения жертв нет, так как расстояние от объекта экономики до посёлка больше 119,4 м, объект при полном разрушении резервуара является потенциально опасным (погибло больше 10 человек). Аналогичные результаты даёт расчёт по формулам:
- число погибших
N=3*П*Q2/3=3*0,3*632/3=14 чел.
где П- плотность персонала (населения) , тыс.чел/км2;
Q- масса СУГ, т;
- радиус смертельного поражения
R= 30*Q1/3=30*631/3=119,4 м
2.2 При неполном разрушении резервуара облако ТВС образуется из 50% массы СУГ, то есть Q=31,5. Среди населения в этом случае так же жертв нет, а среди персонала объекта экономики они достигнут 9 человек, а радиус смертельных поражений составит 94,7 м. Таким образом, при неполном разрушении резервуара ОЭ не является потенциально опасным. м

Зоны в очаге поражения при взрыве ГВС
б) При выходе в окружающую среду СДЯВ.
Определим эквивалентное количество вещества во вторичном облаке
QЭ1=(1-К1)*К2*К3*К4*К5*К6*
К7*
=(1-0)*0,002*0,316*4,112*1*33*1*
=1,79
кг
Определим время испарения ацетонциангидрид:
Т=
=(0,7*0,932)/(0,002*4,112*1)=79,3
мин
Так как N
T,
то К6=T0.8=79,30.8=33
По таблице находим глубину зоны заражения для вторичного облака:
Г2=1,25 км
Полная глубина зоны заражения равна :
Г= 1,25 км
Рассчитаем площадь зоны возможного заражения:
Sв=8,72·10-3*Г2*φ
где : Sв- площадь зоны возможного заражения, км2
Г- глубина зоны заражения, км
φ- угловые размеры зоны возможного заражения, град
Sв=8,72·10-3*1,252*45=0,61 км2
Рассчитаем площадь фактического заражения:
SФ=К8*Г2*N0,2=0,81*1,252*10,2=1,26 км2
Находим время подхода облака заражённого воздуха к городу:
t= Х/ν
где: Х- расстояние от источника заражения до заданного объекта, км
ν- скорость переноса переднего фронта облака зараженного облака, км/ч
t= 1,2/1=1,2 ч
Вывод: таким образом , глубина заражения ацетонциангидрид в результате аварии может составить 1,25 км, площадь возможного заражения составит около 0,61 км2, фактическая площадь заражения будет равна 1,26 км2 и время подхода облака зараженного воздуха к населенному пункту будет около 1,2 часа.
Зона заражения .

Литература
1. Абдурагимов И.М., Говоров В.Ю., Макаров В.Е. Физико-химические основы развития и тушения пожаров
2. Абдурагимов И.М., Андросов А.С., Исаева Л.К., Крылов Е.В. Процессы горения
3. Баратов А.Н., Корольченко А.Я., Кравчук Г.Н. и др. Пожаровзрывобезопасность веществ и материалов и средства их тушения. Справочник Ч1,2.
4. Врублевский А.В., Котов Г.В., Гороховик М.В., Степанов Р.А., Иоффе А.А. Учебно-методическое пособие по выполнению курсовой работы.
5.РД 52.04.253-90.Методика прогнозирования масштабов заражения сильнодействующими ядовитыми веществами при авариях (разрушениях ) на химически опасных объектах и транспорте.-Л.:Гидрометеоиздат,1991.-23c


м3/кг, м3/м3
м3/кг, м3/м3
м3/кг, м3/м3
м3/кг, м3/м3
м3/кг, м3/м3
м3/кг, м3/м3
м3/кг, м3/м3
м3/кг, м3/м3
м3/кг, м3/м3
м3/кг, м3/м3
м3/кг, м3/м3
м3/кг, м3/м3
м3/кг, м3/м3
м3/кг, м3/м3
%
%
%
%
%