Корпоративная локальная компьютерная сеть на предприятии по разработке программного обеспечения
РЕФЕРАТ
Пояснительная записка к дипломному проекту: 13 страниц, 16 рисунков, 12 таблиц, 24 источника, 3 листа чертежей формата А1.
Объект исследований: корпоративная локальная компьютерная сеть на предприятии по разработке программного обеспечения.
Предмет исследования: локальная компьютерная сеть.
В первом разделе рассмотрены общие принципы построения локальных сетей, одноранговые и многоранговые сети, дана характеристика базовым технологиям ЛВС, проанализированы существующие топологи и структура ЛВС, сделан обзор существующего сетевого оборудования, рассмотрены типы соединительных линий и выполнен и описаны сетевые операционные системы.
Во втором разделе выполнено описание программно-аппаратного комплекса локальной сети предприятия по разработке программного обеспечения, проанализирована структура локальной сети, даны рекомендации по планированию информационной безопасности.
В третьем разделе выполнен экономический расчет объекта анализа, а именно расчет на создание проекта ЛВС, расчет материальных затрат, расчет технологический себестоимости ЛВС, расчет капитальных затрат на создание и эксплуатацию ЛВС и экономический эффект от использования ЛВС на данном предприятии.
В четвертом разделе проведены расчеты отопления, вентиляции, природного и искусственного освещения, полученные значения сопоставлены с нормативными.
КАБЕЛЬНАЯ СИСТЕМА, КОНФИГУРАЦИЯ, КОНЦЕНТРАТОР, КОММУТАТОР, ЛОКАЛЬНАЯ СЕТЬ, РАБОЧАЯ СТАНЦИЯ, СЕРВЕР, ТЕХНОЛОГИЯ, ТОПОЛОГИЯ
Содержание
Перечень условных обозначений, символов, единиц, сокращений и терминов
Введение
1. Основы построения локальных вычислительных сетей
1.1 Основные сведения о локальных компьютерных сетях
1.1.1 Виды компьютерных сетей
1.1.2 Классификация локальных вычислительных сетей
1.2 Технические средства локально-вычислительных сетей
1.2.1 Модель взаимодействия OSI
1.2.2 Базовые технологии локальных сетей
1.2.3 Топология локальной вычислительной сети
1.2.4 Среда передачи данных
1.2.5 Сетевое оборудование локальных вычислительных сетей
1.2.6 Протокол TCP
1.3 Сетевое программное обеспечение
2. Разработка компьютерной сети на предприятии по разработке программного обеспечения
2.1 Постановка задачи
2.2 Выбор оборудования и программного обеспечения
2.2.1 Краткое описание технических средств
2.2.2 DWL-2210AP
2.2.3 D-Link ANT24-1201
2.4 Программное обеспечение
2.4.1 Windows Small Business Server 2003
2.4.2 Microsoft Windows Server 2003
2.4.3 Microsoft Windows XP
2.5 Требования к оборудованию
2.6 Расчет количества кабеля и кабель-канала
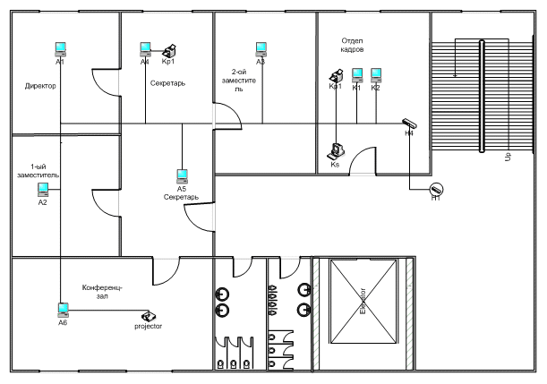
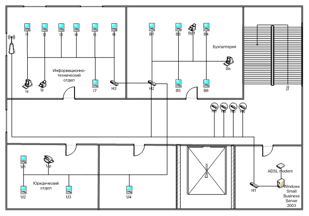
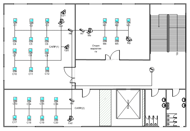
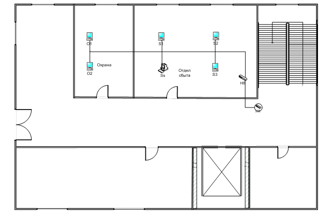
2.7 Схемы сети
3. Экономическая часть
4. Охрана труда
4.1 Производственный микроклимат
4.2 Производственное освещение
4.2.1 Расчет искусственного освещения
4.2.2 Расчет естественного освещения помещений
4.3 Расчет вентиляции
4.4 Организация и расчет отопления
4.5 Воздействие шума
4.6 Электромагнитные излучения
4.7 Электропожаробезопасность
4.8 Эргонометрические характеристики рабочего места
Выводы
Список источников
Приложения
Перечень условных обозначений, символов, единиц, сокращений и терминов
ГВС – глобальные вычислительные сети
ЛВС - локальная вычислительная сеть
ЛС – локальные сети
ПЗУ – постоянное запоминающее устройство
САПР - системы автоматизированного проектирования
СКС – система кабельных сетей
Введение
В дипломной проекте рассматривается тема «Анализ функционирования корпоративной локальной вычислительной сети на предприятии по разработке программного обеспечения».
Объектом исследования является предприятие по разработке программного обеспечения.
Предметом исследования является локальная сеть.
Цель дипломного проекта является выбор технологии, топологии и сетевого оборудования для построения локальной сети.
Актуальность проекта состоит в том, что данная локальная сеть является средством для организации эффективного функционирования предприятия по разработке программного обеспечения. Данная локальная сеть проектируется с целью совместного использования общих ресурсов, таких как локальные диски, сетевой принтер, Интернет.
Для достижения поставленных целей и задач необходимо выполнить следующие этапы работы:
- подбор литературы и изучение материалов по данной тематике;
- изучение базовых технологий построения сетей;
- рассмотрение программных и технических характеристик предприятия;
- выбор технологии сети;
- подбор сетевого оборудования;
- проектирование схемы прокладки кабеля;
- планирование информационной безопасности сети;
- выполнение расчета экономического эффекта на создание и эксплуатацию локальной сети;
- анализ плана помещения предприятия и расчет уровня шума, вентиляции, естественного и искусственного освещения предприятия.
Теоретическая значимость состоит в анализе существующих технологий и применении одной из них для реализации на практике.
Практическая значимость состоит в реализации на практике проекта по проектированию локальной сети, а также мер по настройке доступа к общим ресурсам данной локальной сети, таким как совместное использование дисковых ресурсов, подключение сетевого принтера и сетевого диска, обновление программного обеспечение для удобства пользования и защиты локальной сети.
1. Основы построения локальных вычислительных сетей
1.1 Основные сведения о локальных компьютерных сетях
Локальная сеть представляет собой набор компьютеров, периферийных устройств (принтеров и т. п.) и коммутационных устройств, соединенных кабелями. В качестве кабеля используются «толстый» коаксиальный кабель, «тонкий» коаксиальный кабель, витая пара, волоконно-оптический кабель. «Толстый» кабель, в основном, используется на участках большой протяженности при требованиях высокой пропускной способности. Волоконно-оптический кабель позволяет создавать протяженные участки без ретрансляторов при недостижимой с помощью других кабелей скорости и надежности. Однако стоимость кабельной сети на его основе высока, и поэтому он не нашел пока широкого распространения в локальных сетях. В основном локальные компьютерные сети создаются на базе «тонкого» кабеля или витой пары.
Первоначально сети создавались по принципу "тонкого" Ethernet. В основе его — несколько компьютеров с сетевыми адаптерами, соединенные последовательно коаксиальным кабелем, причем все сетевые адаптеры выдают свой сигнал на него одновременно. Недостатки этого принципа выявились позже.
С ростом размеров сетей параллельная работа многих компьютеров на одну единую шину стала практически невозможной: очень велики стали взаимные влияния друг на друга. Случайные выходы из строя коаксиального кабеля (например, внутренний обрыв жилы) надолго выводили всю сеть из строя. А определить место обрыва или возникновения программной неисправности, "заткнувшей" сеть, становилось практически невозможно.
Поэтому дальнейшее развитие компьютерных сетей происходит на принципах структурирования. В этом случае каждая сеть складывается из набора взаимосвязанных участков — структур.
Каждая отдельная структура представляет собой несколько компьютеров с сетевыми адаптерами, каждый из которых соединен отдельным проводом — витой парой — с коммутатором. При необходимости развития к сети просто добавляют новую структуру.
При построении сети по принципу витой пары можно проложить больше кабелей, чем установлено в настоящий момент компьютеров. Кабель проводится не только на каждое рабочее место, независимо от того, нужен он сегодня его владельцу или нет, но даже и туда, где сегодня рабочего места нет, но возможно появление в будущем. Переезд или подключение нового пользователя в итоге потребует лишь изменения коммутации на одной или нескольких панелях.
Структурированная система несколько дороже традиционной сети за счет значительной избыточности при проектировании. Но зато она обеспечивает возможность эксплуатации в течение многих лет.
Для сетей, построенных по этому принципу, появляется необходимость в специальном электронном оборудовании. Одно из таких устройств - хаб - является коммутационным элементом сети. Каждый хаб имеет от 8 до 30 разъемов (портов) для подключения либо компьютера, либо другого хаба. К каждому порту подключается только одно устройство. При подключении компьютера к хабу оказывается, что часть электроники сетевого интерфейса находится в компьютере, а часть - в хабе. Такое подключение позволяет повысить надежность соединения. В обычных ситуациях, помимо усиления сигнала, хаб восстанавливает преамбулу пакета, устраняет шумовые помехи и т. д.
Хабы являются сердцем системы и во многом определяют ее функциональность и возможности. Даже в самых простых хабах существует индикация состояния портов. Это позволяет немедленно диагностировать проблемы, вызванные плохими контактами в разъемах, повреждением проводов и т. п. Существенным свойством такой структурированной сети является ее высокая помехоустойчивость: при нарушении связи между двумя ее элементами, остальные продолжают сохранять работоспособность. Задача соединения компьютерных сетей различных организаций, зачастую созданных на основе различных стандартов, вызвала появление специального оборудования (мостов, маршрутизаторов, концентраторов и т. п.), осуществляющего такое взаимодействие.
1.1.1 Виды компьютерных сетей
Компьютерная сеть – это совокупность компьютеров и различных устройств, обеспечивающих информационный обмен между компьютерами в сети без использования каких-либо промежуточных носителей информации.
Все многообразие компьютерных сетей можно классифицировать по группе признаков:
- территориальная распространенность;
- ведомственная принадлежность;
- скорость передачи информации;
- тип среды передачи.
По территориальной распространенности сети могут быть локальными, глобальными, и региональными. Локальные – это сети, перекрывающие территорию не более 10 м2, региональные – расположенные на территории города или области, глобальные на территории государства или группы государств, например, всемирная сеть Internet.
По принадлежности различают ведомственные и государственные сети. Ведомственные принадлежат одной организации и располагаются на ее территории. Государственные сети – сети, используемые в государственных структурах.
По скорости передачи информации компьютерные сети делятся на низко-, средне- и высокоскоростные.
По типу среды передачи разделяются на сети коаксиальные, на витой паре, оптоволоконные, с передачей информации по радиоканалам, в инфракрасном диапазоне.
Компьютеры могут соединяться кабелями, образуя различную топологию сети (звездная, шинная, кольцевая и др.).
1.1.2 Классификация локальных вычислительных сетей
Локальные вычислительные сети подразделяются на два кардинально различающихся класса: одноранговые (одноуровневые или Peer to Peer) сети и иерархические (многоуровневые).
Одноранговая сеть представляет собой сеть равноправных компьютеров, каждый из которых имеет уникальное имя (имя компьютера) и обычно пароль для входа в него во время загрузки ОС. Имя и пароль входа назначаются владельцем ПК средствами ОС. Одноранговые сети могут быть организованы с помощью таких операционных систем, как LANtastic, Windows’3.11, Novell NetWare Lite. Указанные программы работают как с DOS, так и с Windows. Одноранговые сети могут быть организованы также на базе всех современных 32-разрядных операционных систем – Windows’95 OSR2, Windows NT Workstation версии, OS/2) и некоторых других.
В иерархических локальных сетях имеется один или несколько специальных компьютеров – серверов, на которых хранится информация, совместно используемая различными пользователями.
Сервер в иерархических сетях – это постоянное хранилище разделяемых ресурсов. Сам сервер может быть клиентом только сервера более высокого уровня иерархии. Поэтому иерархические сети иногда называются сетями с выделенным сервером. Серверы обычно представляют собой высокопроизводительные компьютеры, возможно, с несколькими параллельно работающими процессорами, с винчестерами большой емкости, с высокоскоростной сетевой картой (100 Мбит/с и более). Компьютеры, с которых осуществляется доступ к информации на сервере, называются станциями или клиентами.
ЛКС классифицируются по назначению:
- Сети терминального обслуживания. В них включается ЭВМ и периферийное оборудование, используемое в монопольном режиме компьютером, к которому оно подключается, или быть общесетевым ресурсом.
- Сети, на базе которых построены системы управления производством и учрежденческой деятельности. Они объединяются группой стандартов МАР/ТОР. В МАР описываются стандарты, используемые в промышленности. ТОР описывают стандарты для сетей, применяемых в офисных сетях.
- Сети, которые объединяют системы автоматизации, проектирования. Рабочие станции таких сетей обычно базируются на достаточно мощных персональных ЭВМ, например фирмы Sun Microsystems.
По классификационному признаку локальные компьютерные сети делятся на кольцевые, шинные, звездообразные, древовидные;
- по признаку скорости – на низкоскоростные (до 10 Мбит/с), среднескоростные (до 100 Мбит/с), высокоскоростные (свыше 100 Мбит/с);
- по типу метода доступа – на случайные, пропорциональные, гибридные;
- по типу физической среды передачи – на витую пару, коаксиальный или оптоволоконный кабель, инфракрасный канал, радиоканал.
1.2 Технические средства локально-вычислительных сетей
1.2.1 Модель взаимодействия OSI
Модель OSI (Open System Interconnect Reference Model, Эталонная модель взаимодействия открытых систем) представляет собой универсальный стандарт на взаимодействие двух систем (компьютеров) через вычислительную сеть.
Эта модель описывает функции семи иерархических уровней и интерфейсы взаимодействия между уровнями. Каждый уровень определяется сервисом, который он предоставляет вышестоящему уровню, и протоколом - набором правил и форматов данных для взаимодействия между собой объектов одного уровня, работающих на разных компьютерах.
Идея состоит в том, что вся сложная процедура сетевого взаимодействия может быть разбита на некоторое количество примитивов, последовательно выполняющихся объектами, соотнесенными с уровнями модели. Модель построена так, что объекты одного уровня двух взаимодействующих компьютеров сообщаются непосредственно друг с другом с помощью соответствующих протоколов, не зная, какие уровни лежат под ними и какие функции они выполняют. Задача объектов - предоставить через стандартизованный интерфейс определенный сервис вышестоящему уровню, воспользовавшись, если нужно, сервисом, который предоставляет данному объекту нижележащий уровень.
Например, некий процесс отправляет данные через сеть процессу, находящемуся на другом компьютере. Через стандартизованный интерфейс процесс-отправитель передает данные нижнему уровню, который предоставляет процессу сервис по пересылке данных, а процесс-получатель через такой же стандартизованный интерфейс получает эти данные от нижнего уровня. При этом ни один из процессов не знает и не имеет необходимости знать, как именно осуществляет передачу данных протокол нижнего уровня, сколько еще уровней находится под ним, какова физическая среда передачи данных и каким путем они движутся.
Эти процессы, с другой стороны, могут находиться не на самом верхнем уровне модели. Предположим, что они через стандартный интерфейс взаимодействуют с приложениями вышестоящего уровня и их задача (предоставляемый сервис) - преобразование данных, а именно фрагментация и сборка больших блоков данных, которые вышестоящие приложения отправляют друг другу. При этом сущность этих данных и их интерпретация для рассматриваемых процессов совершенно не важны.
Возможна также взаимозаменяемость объектов одного уровня (например, при изменении способа реализации сервиса) таким образом, что объект вышестоящего уровня не заметит подмены.
Вернемся к примеру: приложения не знают о том, что их данные преобразуются именно путем фрагментации/сборки, им достаточно знать то, что нижний уровень предоставляет им некий “правильный” сервис преобразования данных. Если же для какой-то другой сети понадобится не фрагментация/сборка пакетов, а, скажем, перестановка местами четных и нечетных бит, то процессы рассматриваемого уровня будут заменены, но приложения ничего не заметят, так как их интерфейсы с нижележащим уровнем стандартизованы, а конкретные действия нижележащих уровней скрыты от них.
Объекты, выполняющие функции уровней, могут быть реализованы в программном, программно-аппаратном или аппаратном виде. Как правило, чем ниже уровень, тем больше доля аппаратной части в его реализации.
Организация сетевого взаимодействия компьютеров, построенного на основе иерархических уровней, как описано выше, часто называется протокольным стеком.
Ниже перечислены (в направлении сверху вниз) уровни модели OSI и указаны их общие функции.
Уровень приложения (Application) - интерфейс с прикладными процессами.
Уровень представления (Presentation) - согласование представления (форматов, кодировок) данных прикладных процессов.
Сеансовый уровень (Session) - установление, поддержка и закрытие логического сеанса связи между удаленными процессами.
Транспортный уровень (Transport) - обеспечение безошибочного сквозного обмена потоками данных между процессами во время сеанса.
Сетевой уровень (Network) - фрагментация и сборка передаваемых транспортным уровнем данных, маршрутизация и продвижение их по сети от компьютера-отправителя к компьютеру-получателю.
Канальный уровень (Data Link) - управление каналом передачи данных, управление доступом к среде передачи, передача данных по каналу, обнаружение ошибок в канале и их коррекция.
Физический уровень (Physical) - физический интерфейс с каналом передачи данных, представление данных в виде физических сигналов и их кодирование (модуляция).
1.2.2 Базовые технологии локальных сетей
В 1995 году комитет IEEE принял спецификацию Fast Ethernet в качестве стандарта. Сетевой мир получил технологию, с одной стороны, решающую самую болезненную проблему- нехватку пропускной способности на нижнем уровне сети, а с другой стороны, очень легко внедряющуюся в существующие сети Ethernet.
Легкость внедрения Fast Ethernet объясняется следующими факторами:
- общий метод доступа позволяет использовать в сетевых адаптерах Fast Ethernet до 80% микросхем адаптеров Ethernet;
- драйверы также содержат большую часть кода для адаптеров Ethernet, а отличия вызваны новым методом кодирования данных на линии (4B/5B или 8B/6T) и наличием полнодуплексной версии протокола;
- формат кадра остался прежним, что дает возможность анализаторам протоколов применять к сегментам Fast Ethernet те же методы анализа, что и для сегментов Ethernet, лишь механически повысив скорость работы.
Отличия Fast Ethernet от Ethernet сосредоточены в основном на физическом уровне. Разработчики стандарта Fast Ethernet учли тенденции развития структурированных кабельных систем.
Они реализовали физический уровень для всех популярных типов кабелей, входящих в стандарты на структурированные (такие как EIA/TIA 568A) и реально выпускаемые кабельные системы.
Существует три варианта физического уровня Fast Ethernet:
- 100Ваsе-ТХ для двух парного кабеля на неэкранированной витой паре UTP Category 5 (или экранированной витой паре STP Туре1);
- 100Ваsе-Т4 для четырех парного кабеля на неэкранированной витой паре UTP Category 3,4,5;
- 100Ваsе-FХ для многомодового оптоволоконного кабеля.
При создании сегментов Fast Ethernet с разделяемой средой нужно использовать концентраторы. При этом максимальный диаметр сети колеблется от 136 до 205 метров, а количество концентраторов в сегменте ограничено одним или двумя, в зависимости от их типа.
При использовании двух концентраторов расстояние между ними не может превышать 5—10 метров. Так что существование 2-х устройств мало что дает, кроме увеличения количества портов - расстояние между компьютерами сегмента от добавления второго концентратора практически не изменяется.
В разделяемом сегменте Fast Ethernet нет возможности обеспечить какие-либо преимущества при обслуживании трафика приложений реального времени. Любой кадр получает равные шансы захватить среду передачи данных в соответствии с логикой алгоритма CSMA/CD.
Коммутируемый вариант Fast Ethernet позволяет увеличить связи между узлами, работающими в полнодуплексном режиме и использующими многомодовый оптоволоконный кабель, до 2 км.
У технологии Fast Ethernet есть несколько ключевых свойств, которые определяют области и ситуации ее эффективного применения.
К этим свойствам относятся:
- большая степень преемственности по отношению к классическому 10-мегабитному Ethernet;
- высокая скорость передачи данных - 100 Мбит/с;
- возможность работать на всех основных типах современной кабельной проводки – UTP Category 5, UTP Category 3, STP Tуре 1, многомодовом оптоволокне.
Наличие многих общих черт у технологий Fast Ethernet и Ethernet дает простую общую рекомендацию. Fast Ethernet, следует применять в тех организациях и в тех частях сетей, где до этого широко применялся 10-мегабитный Ethernet. Однако сегодняшние условия или же ближайшие перспективы требуют более высокой пропускной способности в таких частях сетей. При этом сохраняется весь опыт обслуживающего персонала, привыкшего к особенностям и типичным неисправностям сетей Ethernet. Кроме того, можно по-прежнему использовать средства анализа протоколов, работающие с агентами MIB-II, RMON MIB и привычными форматами кадров.
В семействе Ethernet технология Fast Ethernet занимает промежуточное положение между Ethernet 10 Мбит/с и Gigabit Ethernet.
Поэтому в крупной локальной сети, в которой оправдано создание трех уровней иерархии сетевых устройств, технологии Fast Ethernet отведен средний уровень - сетей отделов. Но это, конечно, не исключает ее применения и на нижних этажах, в сетях рабочих групп, причем не только для подключения серверов, но и быстрых рабочих станций.
При использовании агрегированных транковых соединений, обеспечивающих скорости N x 100 Мбит/с, технология Fast Ethernet может применяться и для создания магистральных связей в сетях масштаба здания и даже кампуса.
Что же касается разделяемых сегментов Fast Ethernet, то они конкурируют по стоимости и возможностям с коммутируемыми сегментами Ethernet 10 Мбит/с. При наличии 10 рабочих станций в сегменте и в том, и в другом случаях каждой рабочей станции достается в среднем по 10 Мбит/с.
Преимущественная область применения разделяемых сегментов Fast Ethernet достаточно ясна.
Это объединение близко расположенных друг от друга компьютеров, трафик которых имеет ярко выраженный пульсирующий характер с большими, но редкими всплесками.
Большие всплески хорошо передаются незагруженным каналом 100 Мбит/с, а редкое их возникновение приводит к возможности совместного использования канала без частого возникновения коллизий. Типичным примером такого трафика является трафик файлового сервиса, электронной почты, сервиса печати, Коммутируемые сегменты Ethernet 10 Мбит/с могут предоставить каждому узлу гарантированные 10 Мбит/с, но не больше. Так что для тех случаев, когда важно изредка предоставлять конечному узлу больше 10 Мбит/с, разделяемые сегменты Fast Ethernet оказываются предпочтительным решением.
Выходит, что переход от технологии Ethernet 10 Мбит/с к технологии Fast Ethernet 100 Мбит/с все таки необходим.
Сеть Arcnet (или ARCnet от английского Attached Resource Computer Net, компьютерная сеть соединенных ресурсов) – это одна из старейших сетей. Она была разработана компанией Datapoint Corporation еще в 1977 году. Международные стандарты на эту сеть отсутствуют, хотя именно она считается родоначальницей метода маркерного доступа. Несмотря на отсутствие стандартов, сеть Arcnet до недавнего времени (в 1980 – 1990 г.г.) пользовалась популярностью, даже серьезно конкурировала с Ethernet. Большое количество компаний (например, Datapoint, Standard Microsystems, Xircom и др.) производили аппаратуру для сети этого типа. Но сейчас производство аппаратуры Arcnet практически прекращено.
Среди основных достоинств сети Arcnet по сравнению с Ethernet можно назвать ограниченную величину времени доступа, высокую надежность связи, простоту диагностики, а также сравнительно низкую стоимость адаптеров. К наиболее существенным недостаткам сети относятся низкая скорость передачи информации (2,5 Мбит/с), система адресации и формат пакета.
Для передачи информации в сети Arcnet используется довольно редкий код, в котором логической единице соответствует два импульса в течение битового интервала, а логическому нулю – один импульс. Очевидно, что это самосинхронизирующийся код, который требует еще большей пропускной способности кабеля, чем даже манчестерский.
В качестве среды передачи в сети используется коаксиальный кабель с волновым сопротивлением 93 Ом, к примеру, марки RG-62A/U. Варианты с витой парой (экранированной и неэкранированной) не получили широкого распространения. Были предложены и варианты на оптоволоконном кабеле, но и они также не спасли Arcnet.
В качестве топологии сеть Arcnet использует классическую шину (Arcnet-BUS), а также пассивную звезду (Arcnet-STAR). В звезде применяются концентраторы (хабы). Возможно объединение с помощью концентраторов шинных и звездных сегментов в древовидную топологию (как и в Ethernet). Главное ограничение – в топологии не должно быть замкнутых путей (петель). Еще одно ограничение: количество сегментов, соединенных последовательной цепочкой с помощью концентраторов, не должно превышать трех.
Концентраторы бывают двух видов:
- Активные концентраторы (восстанавливают форму приходящих сигналов и усиливают их). Количество портов – от 4 до 64. Активные концентраторы могут соединяться между собой (каскадироваться).
- Пассивные концентраторы (просто смешивают приходящие сигналы без усиления). Количество портов – 4. Пассивные концентраторы не могут соединяться между собой. Они могут связывать только активные концентраторы и/или сетевые адаптеры.
- Шинные сегменты могут подключаться только к активным концентраторам.
Сетевые адаптеры также бывают двух видов:
- Высокоимпедансные (Bus), предназначенные для использования в шинных сегментах;
- Низкоимпедансные (Star), предназначенные для использования в пассивной звезде.
Низкоимпедансные адаптеры отличаются от высокоимпедансных тем, что они содержат в своем составе согласующие 93-омные терминаторы. При их применении внешнее согласование не требуется. В шинных сегментах низкоимпедансные адаптеры могут использоваться как оконечные для согласования шины. Высокоимпедансные адаптеры требуют применения внешних 93-омных терминаторов. Некоторые сетевые адаптеры имеют возможность переключения из высокоимпедансного состояния в низкоимпедансное, они могут работать и в шине, и в звезде.
Основные технические характеристики сети Arcnet следующие.
- Среда передачи – коаксиальный кабель, витая пара.
- Максимальная длина сети – 6 километров.
- Максимальная длина кабеля от абонента до пассивного концентратора – 30 метров.
- Максимальная длина кабеля от абонента до активного концентратора – 600 метров.
- Максимальная длина кабеля между активным и пассивным концентраторами – 30 м.
- Максимальная длина кабеля между активными концентраторами – 600 метров.
- Максимальное количество абонентов в сети – 255.
- Максимальное количество абонентов на шинном сегменте – 8.
- Минимальное расстояние между абонентами в шине – 1 метр.
- Максимальная длина шинного сегмента – 300 метров.
- Скорость передачи данных – 2,5 Мбит/с.
При создании сложных топологий необходимо следить за тем, чтобы задержка распространения сигналов в сети между абонентами не превышала 30 мкс. Максимальное затухание сигнала в кабеле на частоте 5 МГц не должно превышать 11 дБ.
В сети Arcnet используется маркерный метод доступа (метод передачи права), но он несколько отличается от аналогичного в сети Token-Ring. Ближе всего этот метод к тому, который предусмотрен в стандарте IEEE 802.4. Последовательность действий абонентов при данном методе:
- Абонент, желающий передавать, ждет прихода маркера.
- Получив маркер, он посылает запрос на передачу абоненту-приемнику информации (спрашивает, готов ли приемник принять его пакет).
- Приемник, получив запрос, посылает ответ (подтверждает свою готовность).
- Получив подтверждение готовности, абонент-передатчик посылает свой пакет.
- Получив пакет, приемник посылает подтверждение приема пакета.
- Передатчик, получив подтверждение приема пакета, заканчивает свой сеанс связи. После этого маркер передается следующему абоненту по порядку убывания сетевых адресов.
Таким образом, в данном случае пакет передается только тогда, когда есть уверенность в готовности приемника принять его. Это существенно увеличивает надежность передачи.
Так же, как и в случае Token-Ring, конфликты в Arcnet полностью исключены. Как и любая маркерная сеть, Arcnet хорошо держит нагрузку и гарантирует величину времени доступа к сети (в отличие от Ethernet). Полное время обхода маркером всех абонентов составляет 840 мс. Соответственно, этот же интервал определяет верхний предел времени доступа к сети.
Маркер формируется специальным абонентом – контроллером сети. Им является абонент с минимальным (нулевым) адресом.
Если абонент не получает свободный маркер в течение 840 мс, то он посылает в сеть длинную битовую последовательность (для гарантированного уничтожения испорченного старого маркера). После этого производится процедура контроля сети и назначения (при необходимости) нового контроллера.
Размер пакета сети Arcnet составляет 0,5 Кбайта. Помимо поля данных в него входят также 8-битные адреса приемника и передатчика и 16-битная циклическая контрольная сумма (CRC). Такой небольшой размер пакета оказывается не слишком удобным при высокой интенсивности обмена по сети.
Адаптеры сети Arcnet отличаются от адаптеров других сетей тем, что в них необходимо с помощью переключателей или перемычек установить собственный сетевой адрес . Контроль уникальности каждого адреса сети полностью возлагается на пользователей сети. Подключение новых абонентов становится при этом довольно сложным, так как необходимо задавать тот адрес, который еще не использовался. Выбор 8-битного формата адреса ограничивает допустимое количество абонентов в сети – 255, что может быть недостаточно для крупных компаний.
В результате все это привело к практически полному отказу от сети Arcnet. Существовали варианты сети Arcnet, рассчитанные на скорость передачи 20Мбит/с, но они не получили широкого распространения.
1.2.3 Топология локальной вычислительной сети
Термин «топология сети» относится к пути, по которому данные перемещаются по сети. Важно отметить, что понятие топологии относится, прежде всего, к локальным сетям, в которых структуру связей можно легко проследить. В глобальных сетях структура связей обычно скрыта от пользователей и не слишком важна, так как каждый сеанс связи может производиться по собственному пути.
Топология определяет требования к оборудованию, тип используемого кабеля, допустимые и наиболее удобные методы управления обменом, надежность работы, возможности расширения сети. И хотя выбирать топологию пользователю сети приходится нечасто, знать об особенностях основных топологий, их достоинствах и недостатках надо.
Существуют три основных вида топологий: «звезда», «кольцо» и «общая шина».
Т
опология
вида «звезда». Концепция топологии сети
в виде звезды пришла из области больших
ЭВМ, в которой главная машина получает
и обрабатывает все данные с периферийных
устройств как активный узел обработки
данных.
Рисунок 1.1 - Топология вида «звезда»
Этот принцип применяется в системах передачи данных, например, в электронной почте сети RelCom. Вся информация между двумя периферийными рабочими местами проходит через центральный узел вычислительной сети.
Пропускная способность сети определяется вычислительной мощностью узла и гарантируется для каждой рабочей станции. Коллизий (столкновений) данных не возникает.
Кабельное соединение довольно простое, мак как каждая рабочая станция связана с узлом. Затраты на прокладку кабелей высокие, особенно когда центральный узел географически расположен не в центре топологии.
При расширении вычислительных сетей не могут быть использованы ранее выполненные кабельные связи: к новому рабочему месту необходимо прокладывать отдельный кабель из центра сети.
Топология в виде «звезды» является наиболее быстродействующей из всех топологий вычислительных сетей, поскольку передача данных между рабочими станциями проходит через центральный узел (при его хорошей производительности) по отдельным линиям, используемым только этими рабочими станциями. Частота запросов передачи информации от одной станции к другой невысокая по сравнению с достигаемой в других топологиях.
Производительность вычислительной сети в первую очередь зависит от мощности центрального файлового сервера. Он может быть узким местом вычислительной сети. В случае выхода из строя центрального узла нарушается работа всей сети.
Центральный узел управления - файловый сервер реализует оптимальный механизм защиты против несанкционированного доступа к информации. Вся вычислительная сеть может управляться из ее центра.
П
ри
кольцевой топологии сети рабочие станции
связаны одна с другой по кругу, т.е.
рабочая станция 1 с рабочей станцией 2,
рабочая станция3 с рабочей станцией 4 и
т.д. Последняя рабочая станция связана
с первой. Коммуникационная связь
замыкается в кольцо.
Рисунок 1.2 - Топология вида «Кольцо»
Прокладка кабелей от одной рабочей станции до другой может быть довольно сложной и дорогостоящей, особенно если географическое расположение рабочих станций далеко от формы кольца.
Сообщения циркулируют регулярно по кругу. Рабочая станция посылает по определенному конечному адресу информацию, предварительно получив из кольца запрос. Пересылка сообщений является очень эффективной, мак как большинство сообщений можно сделать кольцевой запрос на все станции. Продолжительность передачи информации увеличивается пропорционально количеству рабочих станций, входящих в вычислительную сеть.
Основная проблема при кольцевой топологии заключается в том, что каждая рабочая станция должна активно участвовать в пересылке информации, и в случае выхода из строя хотя бы одной из них вся сеть парализуется. Неисправности в кабельных соединениях локализуются легко.
Подключение новой рабочей станции требует краткосрочного выключения сети, мак как во время установки кольцо должно быть разомкнуто. Ограничения на протяженность вычислительной сети не существует, мак как оно, в конечном счете, определяется исключительно расстоянием между двумя рабочими станциями.
Рисунок 1.3 -Топология вида «шина»
При шинной топологии среда передачи информации представляется в форме коммуникационного пути, доступного для всех рабочих станций, к которому они все должны быть подключены. Все рабочие станции могут непосредственно вступать в контакт с любой рабочей станцией, имеющейся в сети.
Рабочие станции в любое время, без прерывания работы всей вычислительной сети, могут быть подключены к ней или отключены. Функционирование вычислительной сети не зависит от состояния отдельной рабочей станции.
В стандартной ситуации для шинной сети Ethernet часто используют тонкий кабель или Cheapernet – кабель с тройниковым соединителем. Отключение и особенно подключение к такой сети требуют разрыва шины, что вызывает нарушение циркулирующего потока информации и зависание системы.
Новые технологии предлагают пассивные штепсельные коробки, через которые можно отключать и/или подключать рабочие станции во время работы вычислительной сети.
Благодаря тому, что рабочие станции можно подключать без прерывания сетевых процессов и коммуникационной среды, очень легко прослушивать информацию, т.е. ответвлять информацию из коммуникационной среды.
В ЛВС с прямой (не модулируемой) передачей информации всегда может существовать только одна станция, передающая информацию. Для предотвращения коллизий в большинстве случаев применяется временной метод разделения, согласно которому для каждой подключенной рабочей станции в определенные моменты времени предоставляется исключительное право на использование канала передачи данных. Поэтому требования к пропускной способности вычислительной сети при повышенной нагрузке повышаются, например, при вводе новых рабочих станций. Рабочие станции присоединяются к шине посредством устройств ТАР (англ. Terminal Access Point – точка подключения терминала). ТАР представляет собой специальный тип подсоединения к коаксиальному кабелю. Зонд игольчатой формы внедряется через наружную оболочку внешнего проводника и слой диэлектрика к внутреннему проводнику и присоединяется к нему.
1.2.4 Среда передачи данных
Промышленностью выпускается огромное количество типов кабелей, например, только одна крупнейшая кабельная компания Belden предлагает более 2000 их наименований. Но все кабели можно разделить на три большие группы:
электрические (медные) кабели на основе витых пар проводов (twisted pair), которые делятся на экранированные (shielded twisted pair, STP) и неэкранированные (unshielded twisted pair, UTP);
электрические (медные) коаксиальные кабели (coaxial cable);
оптоволоконные кабели (fibre optic).
Каждый тип кабеля имеет свои преимущества и недостатки, так что при выборе надо учитывать как особенности решаемой задачи, так и особенности конкретной сети, в том числе и используемую топологию.
Можно выделить следующие основные параметры кабелей, принципиально важные для использования в локальных сетях:
Полоса пропускания кабеля (частотный диапазон сигналов, пропускаемых кабелем) и затухание сигнала в кабеле. Два этих параметра тесно связаны между собой, так как с ростом частоты сигнала растет затухание сигнала. Надо выбирать кабель, который на заданной частоте сигнала имеет приемлемое затухание. Или же надо выбирать частоту сигнала, на которой затухание еще приемлемо. Затухание измеряется в децибелах и пропорционально длине кабеля.
Помехозащищенность кабеля и обеспечиваемая им секретность передачи информации. Эти два взаимосвязанных параметра показывают, как кабель взаимодействует с окружающей средой, то есть, как он реагирует на внешние помехи, и насколько просто прослушать информацию, передаваемую по кабелю.
Скорость распространения сигнала по кабелю или, обратный параметр – задержка сигнала на метр длины кабеля. Этот параметр имеет принципиальное значение при выборе длины сети. Типичные величины скорости распространения сигнала – от 0,6 до 0,8 от скорости распространения света в вакууме. Соответственно типичные величины задержек – от 4 до 5 нс/м.
Для электрических кабелей очень важна величина волнового сопротивления кабеля. Волновое сопротивление важно учитывать при согласовании кабеля для предотвращения отражения сигнала от концов кабеля. Волновое сопротивление зависит от формы и взаиморасположения проводников, от технологии изготовления и материала диэлектрика кабеля. Типичные значения волнового сопротивления – от 50 до 150 Ом.
В настоящее время действуют следующие стандарты на кабели:
EIA/TIA 568 (Commercial Building Telecommunications Cabling Standard) – американский;
ISO/IEC IS 11801 (Generic cabling for customer premises) – международный;
CENELEC EN 50173 (Generic cabling systems) – европейский.
Эти стандарты описывают практически одинаковые кабельные системы, но отличаются терминологией и нормами на параметры. В данном курсе предлагается придерживаться терминологии стандарта EIA/TIA 568.
Витые пары проводов используются в дешевых и сегодня, пожалуй, самых популярных кабелях. Кабель на основе витых пар представляет собой несколько пар скрученных попарно изолированных медных проводов в единой диэлектрической (пластиковой) оболочке. Он довольно гибкий и удобный для прокладки. Скручивание проводов позволяет свести к минимуму индуктивные наводки кабелей друг на друга и снизить влияние переходных процессов.
Обычно в кабель входит две или четыре витые пары.
Р
исунок
1.4 - Кабель с витыми парами
Неэкранированные витые пары характеризуются слабой защищенностью от внешних электромагнитных помех, а также от подслушивания, которое может осуществляться с целью, например, промышленного шпионажа. Причем перехват передаваемой по сети информации возможен как с помощью контактного метода (например, посредством двух иголок, воткнутых в кабель), так и с помощью бесконтактного метода, сводящегося к радиоперехвату излучаемых кабелем электромагнитных полей. Причем действие помех и величина излучения во вне увеличивается с ростом длины кабеля. Для устранения этих недостатков применяется экранирование кабелей.
В случае экранированной витой пары STP каждая из витых пар помещается в металлическую оплетку-экран для уменьшения излучений кабеля, защиты от внешних электромагнитных помех и снижения взаимного влияния пар проводов друг на друга (crosstalk – перекрестные наводки). Для того чтобы экран защищал от помех, он должен быть обязательно заземлен. Естественно, экранированная витая пара заметно дороже, чем неэкранированная. Ее использование требует специальных экранированных разъемов. Поэтому встречается она значительно реже, чем неэкранированная витая пара.
Основные достоинства неэкранированных витых пар – простота монтажа разъемов на концах кабеля, а также ремонта любых повреждений по сравнению с другими типами кабеля. Все остальные характеристики у них хуже, чем у других кабелей. Например, при заданной скорости передачи затухание сигнала (уменьшение его уровня по мере прохождения по кабелю) у них больше, чем у коаксиальных кабелей. Если учесть еще низкую помехозащищенность, то понятно, почему линии связи на основе витых пар, как правило, довольно короткие (обычно в пределах 100 метров). В настоящее время витая пара используется для передачи информации на скоростях до 1000 Мбит/с, хотя технические проблемы, возникающие при таких скоростях, крайне сложны.
Согласно стандарту EIA/TIA 568, существуют пять основных и две дополнительные категории кабелей на основе неэкранированной витой пары (UTP):
Кабель категории 1 – это обычный телефонный кабель (пары проводов не витые), по которому можно передавать только речь. Этот тип кабеля имеет большой разброс параметров (волнового сопротивления, полосы пропускания, перекрестных наводок).
Кабель категории 2 – это кабель из витых пар для передачи данных в полосе частот до 1 МГц. Кабель не тестируется на уровень перекрестных наводок. В настоящее время он используется очень редко. Стандарт EIA/TIA 568 не различает кабели категорий 1 и 2.
Кабель категории 3 – это кабель для передачи данных в полосе частот до 16 МГц, состоящий из витых пар с девятью витками проводов на метр длины. Кабель тестируется на все параметры и имеет волновое сопротивление 100 Ом. Это самый простой тип кабелей, рекомендованный стандартом для локальных сетей. Еще недавно он был самым распространенным, но сейчас повсеместно вытесняется кабелем категории 5.
Кабель категории 4 – это кабель, передающий данные в полосе частот до 20 МГц. Используется редко, так как не слишком заметно отличается от категории 3. Стандартом рекомендуется вместо кабеля категории 3 переходить сразу на кабель категории 5. Кабель категории 4 тестируется на все параметры и имеет волновое сопротивление 100 Ом. Кабель был создан для работы в сетях по стандарту IEEE 802.5.
Кабель категории 5 – в настоящее время самый совершенный кабель, рассчитанный на передачу данных в полосе частот до 100 МГц. Состоит из витых пар, имеющих не менее 27 витков на метр длины (8 витков на фут). Кабель тестируется на все параметры и имеет волновое сопротивление 100 Ом. Рекомендуется применять его в современных высокоскоростных сетях типа Fast Ethernet и TPFDDI. Кабель категории 5 примерно на 30—50% дороже, чем кабель категории 3.
Кабель категории 6 – перспективный тип кабеля для передачи данных в полосе частот до 200 (или 250) МГц.
Кабель категории 7 – перспективный тип кабеля для передачи данных в полосе частот до 600 МГц.
Стандарт определяет также максимально допустимую величину рабочей емкости каждой из витых пар кабелей категории 4 и 5. Она должна составлять не более 17 нФ на 305 метров (1000 футов) при частоте сигнала 1 кГц и температуре окружающей среды 20°С.
Для присоединения витых пар используются разъемы (коннекторы) типа RJ-45, похожие на разъемы, используемые в телефонах (RJ-11), но несколько большие по размеру. Разъемы RJ-45 имеют восемь контактов вместо четырех в случае RJ-11. Присоединяются разъемы к кабелю с помощью специальных обжимных инструментов. При этом золоченые игольчатые контакты разъема прокалывают изоляцию каждого провода, входят между его жилами и обеспечивают надежное и качественное соединение. Надо учитывать, что при установке разъемов стандартом допускается расплетение витой пары кабеля на длину не более одного сантиметра.
Чаще всего витые пары используются для передачи данных в одном направлении (точка-точка), то есть в топологиях типа звезда или кольцо. Топология шина обычно ориентируется на коаксиальный кабель. Поэтому внешние терминаторы, согласующие неподключенные концы кабеля, для витых пар практически никогда не применяются.
Кабели выпускаются с двумя типами внешних оболочек:
Кабель в поливинилхлоридной (ПВХ, PVC) оболочке дешевле и предназначен для работы в сравнительно комфортных условиях эксплуатации.
- Кабель в тефлоновой оболочке дороже и предназначен для более жестких условий эксплуатации.
- Кабель в ПВХ оболочке называется еще non-plenum, а в тефлоновой – plenum. Термин plenum обозначает в данном случае пространство под фальшполом и над подвесным потолком, где удобно размещать кабели сети. Для прокладки в этих скрытых от глаз пространствах как раз удобнее кабель в тефлоновой оболочке, который, в частности, горит гораздо хуже, чем ПВХ – кабель, и не выделяет при этом ядовитых газов в большом количестве.
Примером кабеля с экранированными витыми парами может служить кабель STP IBM типа 1, который включает в себя две экранированные витые пары AWG типа 22. Волновое сопротивление каждой пары составляет 150 Ом. Для этого кабеля применяются специальные разъемы, отличающиеся от разъемов для неэкранированной витой пары (например, DB9). Имеются и экранированные версии разъема RJ-45.
Коаксиальный кабель представляет собой электрический кабель, состоящий из центрального медного провода и металлической оплетки (экрана), разделенных между собой слоем диэлектрика (внутренней изоляции) и помещенных в общую внешнюю оболочку.

Рисунок 1.5 - Коаксиальный кабель
Коаксиальный кабель до недавнего времени был очень популярен, что связано с его высокой помехозащищенностью (благодаря металлической оплетке), более широкими, чем в случае витой пары, полосами пропускания (свыше 1ГГц), а также большими допустимыми расстояниями передачи (до километра). К нему труднее механически подключиться для несанкционированного прослушивания сети, он дает также заметно меньше электромагнитных излучений вовне. Однако монтаж и ремонт коаксиального кабеля существенно сложнее, чем витой пары, а стоимость его выше (он дороже примерно в 1,5 – 3 раза). Сложнее и установка разъемов на концах кабеля. Сейчас его применяют реже, чем витую пару. Стандарт EIA/TIA-568 включает в себя только один тип коаксиального кабеля, применяемый в сети Ethernet.
Основное применение коаксиальный кабель находит в сетях с топологией типа шина. При этом на концах кабеля обязательно должны устанавливаться терминаторы для предотвращения внутренних отражений сигнала, причем один (и только один!) из терминаторов должен быть заземлен. Без заземления металлическая оплетка не защищает сеть от внешних электромагнитных помех и не снижает излучение передаваемой по сети информации во внешнюю среду. Но при заземлении оплетки в двух или более точках из строя может выйти не только сетевое оборудование, но и компьютеры, подключенные к сети. Терминаторы должны быть обязательно согласованы с кабелем, необходимо, чтобы их сопротивление равнялось волновому сопротивлению кабеля. Например, если используется 50-омный кабель, для него подходят только 50-омные терминаторы.
Реже коаксиальные кабели применяются в сетях с топологией звезда (например, пассивная звезда в сети Arcnet). В этом случае проблема согласования существенно упрощается, так как внешних терминаторов на свободных концах не требуется.
Волновое сопротивление кабеля указывается в сопроводительной документации. Чаще всего в локальных сетях применяются 50-омные (RG-58, RG-11, RG-8) и 93-омные кабели (RG-62). Распространенные в телевизионной технике 75-омные кабели в локальных сетях не используются. Марок коаксиального кабеля немного. Он не считается особо перспективным. Не случайно в сети Fast Ethernet не предусмотрено применение коаксиальных кабелей. Однако во многих случаях классическая шинная топология (а не пассивная звезда) очень удобна. Как уже отмечалось, она не требует применения дополнительных устройств – концентраторов.
Существует два основных типа коаксиального кабеля:
тонкий (thin) кабель, имеющий диаметр около 0,5 см, более гибкий;
- толстый (thick) кабель, диаметром около 1 см, значительно более жесткий. Он представляет собой классический вариант коаксиального кабеля, который уже почти полностью вытеснен современным тонким кабелем.
Тонкий кабель используется для передачи на меньшие расстояния, чем толстый, поскольку сигнал в нем затухает сильнее. Зато с тонким кабелем гораздо удобнее работать: его можно оперативно проложить к каждому компьютеру, а толстый требует жесткой фиксации на стене помещения. Подключение к тонкому кабелю (с помощью разъемов BNC байонетного типа) проще и не требует дополнительного оборудования. А для подключения к толстому кабелю надо использовать специальные довольно дорогие устройства, прокалывающие его оболочки и устанавливающие контакт как с центральной жилой, так и с экраном. Толстый кабель примерно вдвое дороже, чем тонкий, поэтому тонкий кабель применяется гораздо чаще.
Как и в случае витых пар, важным параметром коаксиального кабеля является тип его внешней оболочки. Точно так же в данном случае применяются как non-plenum (PVC), так и plenum кабели. Естественно, тефлоновый кабель дороже поливинилхлоридного. Обычно тип оболочки можно отличить по окраске (например, для PVC кабеля фирма Belden использует желтый цвет, а для тефлонового – оранжевый).
Типичные величины задержки распространения сигнала в коаксиальном кабеле составляют для тонкого кабеля около 5 нс/м, а для толстого – около 4,5 нс/м.
Существуют варианты коаксиального кабеля с двойным экраном (один экран расположен внутри другого и отделен от него дополнительным слоем изоляции). Такие кабели имеют лучшую помехозащищенность и защиту от прослушивания, но они немного дороже обычных.
В настоящее время считается, что коаксиальный кабель устарел, в большинстве случаев его вполне может заменить витая пара или оптоволоконный кабель. И новые стандарты на кабельные системы уже не включают его в перечень типов кабелей.
Оптоволоконный (он же волоконно-оптический) кабель – это принципиально иной тип кабеля по сравнению с рассмотренными двумя типами электрического или медного кабеля. Информация по нему передается не электрическим сигналом, а световым. Главный его элемент – это прозрачное стекловолокно, по которому свет проходит на огромные расстояния (до десятков километров) с незначительным ослаблением.

Рисунок 1.6 - Структура оптоволоконного кабеля
Структура оптоволоконного кабеля очень проста и похожа на структуру коаксиального электрического кабеля. Только вместо центрального медного провода здесь используется тонкое (диаметром около 1 – 10 мкм) стекловолокно, а вместо внутренней изоляции – стеклянная или пластиковая оболочка, не позволяющая свету выходить за пределы стекловолокна. В данном случае речь идет о режиме так называемого полного внутреннего отражения света от границы двух веществ с разными коэффициентами преломления (у стеклянной оболочки коэффициент преломления значительно ниже, чем у центрального волокна). Металлическая оплетка кабеля обычно отсутствует, так как экранирование от внешних электромагнитных помех здесь не требуется. Однако иногда ее все-таки применяют для механической защиты от окружающей среды (такой кабель иногда называют броневым, он может объединять под одной оболочкой несколько оптоволоконных кабелей).
Оптоволоконный кабель обладает исключительными характеристиками по помехозащищенности и секретности передаваемой информации. Никакие внешние электромагнитные помехи в принципе не способны исказить световой сигнал, а сам сигнал не порождает внешних электромагнитных излучений. Подключиться к этому типу кабеля для несанкционированного прослушивания сети практически невозможно, так как при этом нарушается целостность кабеля. Теоретически возможная полоса пропускания такого кабеля достигает величины 1012 Гц, то есть 1000 ГГц, что несравнимо выше, чем у электрических кабелей. Стоимость оптоволоконного кабеля постоянно снижается и сейчас примерно равна стоимости тонкого коаксиального кабеля.
Типичная величина затухания сигнала в оптоволоконных кабелях на частотах, используемых в локальных сетях, составляет от 5 до 20 дБ/км, что примерно соответствует показателям электрических кабелей на низких частотах. Но в случае оптоволоконного кабеля при росте частоты передаваемого сигнала затухание увеличивается очень незначительно, и на больших частотах (особенно свыше 200 МГц) его преимущества перед электрическим кабелем неоспоримы, у него просто нет конкурентов.
Однако оптоволоконный кабель имеет и некоторые недостатки.
Самый главный из них – высокая сложность монтажа (при установке разъемов необходима микронная точность, от точности скола стекловолокна и степени его полировки сильно зависит затухание в разъеме). Для установки разъемов применяют сварку или склеивание с помощью специального геля, имеющего такой же коэффициент преломления света, что и стекловолокно. В любом случае для этого нужна высокая квалификация персонала и специальные инструменты. Поэтому чаще всего оптоволоконный кабель продается в виде заранее нарезанных кусков разной длины, на обоих концах которых уже установлены разъемы нужного типа. Следует помнить, что некачественная установка разъема резко снижает допустимую длину кабеля, определяемую затуханием.
Также надо помнить, что использование оптоволоконного кабеля требует специальных оптических приемников и передатчиков, преобразующих световые сигналы в электрические и обратно, что порой существенно увеличивает стоимость сети в целом.
Оптоволоконные кабели допускают разветвление сигналов (для этого производятся специальные пассивные разветвители (couplers) на 2—8 каналов), но, как правило, их используют для передачи данных только в одном направлении между одним передатчиком и одним приемником. Ведь любое разветвление неизбежно сильно ослабляет световой сигнал, и если разветвлений будет много, то свет может просто не дойти до конца сети. Кроме того, в разветвителе есть и внутренние потери, так что суммарная мощность сигнала на выходе меньше входной мощности.
Оптоволоконный кабель менее прочен и гибок, чем электрический. Типичная величина допустимого радиуса изгиба составляет около 10 – 20 см, при меньших радиусах изгиба центральное волокно может сломаться. Плохо переносит кабель и механическое растяжение, а также раздавливающие воздействия.
Чувствителен оптоволоконный кабель и к ионизирующим излучениям, из-за которых снижается прозрачность стекловолокна, то есть увеличивается затухание сигнала. Резкие перепады температуры также негативно сказываются на нем, стекловолокно может треснуть.
Применяют оптоволоконный кабель только в сетях с топологией звезда и кольцо. Никаких проблем согласования и заземления в данном случае не существует. Кабель обеспечивает идеальную гальваническую развязку компьютеров сети. В будущем этот тип кабеля, вероятно, вытеснит электрические кабели или, во всяком случае, сильно потеснит их. Запасы меди на планете истощаются, а сырья для производства стекла более чем достаточно.
Существуют два различных типа оптоволоконного кабеля:
многомодовый или мультимодовый кабель, более дешевый, но менее качественный;
одномодовый кабель, более дорогой, но имеет лучшие характеристики по сравнению с первым.
В многомодовом кабеле траектории световых лучей имеют заметный разброс, в результате чего форма сигнала на приемном конце кабеля искажается). Центральное волокно имеет диаметр 62,5 мкм, а диаметр внешней оболочки 125 мкм (это иногда обозначается как 62,5/125). Для передачи используется обычный (не лазерный) светодиод, что снижает стоимость и увеличивает срок службы приемопередатчиков по сравнению с одномодовым кабелем. Длина волны света в многомодовом кабеле равна 0,85 мкм, при этом наблюдается разброс длин волн около 30 – 50 нм. Допустимая длина кабеля составляет 2 – 5 км. Многомодовый кабель – это основной тип оптоволоконного кабеля в настоящее время, так как он дешевле и доступнее. Затухание в многомодовом кабеле больше, чем в одномодовом и составляет 5 – 20 дБ/км.
Типичная величина задержки для наиболее распространенных кабелей составляет около 4—5 нс/м, что близко к величине задержки в электрических кабелях.
Оптоволоконные кабели, как и электрические, выпускаются в исполнении plenum и non-plenum.
1.2.5 Сетевое оборудование локальных вычислительных сетей
Вне зависимости от используемого кабеля для каждой рабочей станции необходимо иметь сетевой адаптер. Сетевой адаптер – это плата, которая вставляется в материнскую плату компьютера. Она имеет два разъема для подключения к сетевому кабелю.
Сетевые адаптеры могут быть рассчитаны на архитектуру ISA/EISA или Micro Channel. Первая архитектура используется в серии компьютеров IBM AT и совместимых с ними, вторая – в мощных станциях на базе процессоров 80486, третья – в компьютерах PS/2 серии IBM. Конструктивно эти типы адаптеров отличаются друг от друга. Для ускорения работы на плате сетевого адаптера может находиться буфер. Размер этого буфера различен для адаптеров разных типов и может составлять от 8 Кб для 8-битовых адаптеров до 16 Кб и солее для 16- и 32-битовых адаптеров.
Сетевые адаптеры Ethernet используют порты ввода/вывода и один канал прерывания. Некоторые адаптеры могут работать с каналами прямого доступа к памяти (DMA).
На плате адаптера может располагаться микросхема постоянного запоминающего устройства (ПЗУ) для создания так называемых бездисковых рабочих станций. Это компьютеры, в которых нет ни винчестера, на флоппидисков. Загрузка операционной системы выполняется из сети, и выполняет ее программа, записанная в микросхеме дистанционной загрузки.
Перед тем как вставить сетевой адаптер в материнскую плату компьютера, необходимо с помощью переключателей (расположенных на плате адаптера) задать правильные значения для портов ввода/вывода, канала прерывания, базовый адрес ПЗУ дистанционной загрузки бездисковой станции.
Если длина сети превышает максимальную длину сегмента сети, необходимо разбить сеть на несколько (до пяти) сегментов, соединив их через репитер.
Конструктивно репитер может быть выполнен либо в виде отдельной конструкции со своим блоком питания, либо в виде платы, вставляемой в слот расширения материнской платы компьютера.
Репитер в виде отдельной конструкции стоит дороже, но он может быть использован для соединения сегментов Ethernen, выполненных как на тонком, так и на толстом кабеле, мак как он имеет и коаксиальные разъемы, и разъемы для подключения трансиверного кабеля. С помощью этого репитера можно даже соединить в единую сеть сегменты, выполненные и на тонком, и на толстом кабеле.
Репитер в виде платы имеет только коаксиальные разъемы и поэтому может соединять только сегменты на тонком коаксиальном кабеле. Однако он стоит дешевле, и не требует отдельной розетки для подключения электропитания.
Один из недостатков встраиваемого в рабочую станцию репитера заключается в том, чтобы для обеспечения круглосуточной работы сети станция с репитером также должна работать круглосуточно. При выключении питания связь между сегментами сети будет нарушена.
Функции репитера заключаются в физическом разделении сегментов сети и обеспечении восстановления пакетов, передаваемых из одного сегмента сети в другой.
Репитер повышает надежность сети, так как отказ одного сегмента (например, обрыв кабеля) не сказывается на работе других сегментов. Однако через поврежденный сегмент данные проходить не могут.
Для обеспечения функционирования локальной сети часто выделяется специальный компьютер – сервер, или несколько таких компьютеров. На дисках серверов располагаются совместно используемые программы, базы данных и т.д. Остальные компьютеры локальной сети часто называются рабочими станциями. На тех рабочих станциях, где требуется обрабатывать только данные на сервере, часто для экономии, не устанавливают жестких дисков. В сетях, состоящих более чем из 20-25 компьютеров, наличие сервера обязательно – иначе, как правило, производительность сети будет неудовлетворительной. Сервер необходим и при совместной интенсивной работе с какой –либо базой данных.
Иногда серверам назначается определенная специализация (хранение данных, программы, обеспечение модемной и факсимильной связи, вывод на печать и т.д.). Серверы, как правило, не используются в качестве рабочих мест пользователей. Серверы, обеспечивающие работу с ценными данными, часто размещаются в изолированном помещении, доступ в которое имеют только специально уполномоченные люди.
1.2.6 Протокол TCP
TCP/IP - это средство для обмена информацией между компьютерами, объединенными в сеть. Не имеет значения, составляют ли они часть одной и той же сети или подключены к отдельным сетям. Не играет роли и то, что один из них может быть компьютером Cray, а другой Macintosh. TCP/IP - это не зависящий от платформы стандарт, который перекидывает мосты через пропасть, лежащую между разнородными компьютерами, операционными системами и сетями. Это протокол, который глобально управляет Internet, и в значительной мере благодаря сети TCP/IP завоевал свою популярность.
Понимание TCP/IP главным образом подразумевает способность разбираться в наборах таинственных протоколов, которые используются главными компьютерами TCP/IP для обмена информацией. Давайте рассмотрим некоторые из этих протоколов и выясним, что составляет оболочку TCP/IP.
TCP/IP - это аббревиатура термина Transmission Control Protocol/Internet Protocol (Протокол управления передачей/Протокол Internet). В терминологии вычислительных сетей протокол - это заранее согласованный стандарт, который позволяет двум компьютерам обмениваться данными. Фактически TCP/IP не один протокол, а несколько. Именно поэтому вы часто слышите, как его называют набором, или комплектом протоколов, среди которых TCP и IP - два основных.
Программное обеспечение для TCP/IP, на вашем компьютере, представляет собой специфичную для данной платформы реализацию TCP, IP и других членов семейства TCP/IP. Обычно в нем также имеются такие высокоуровневые прикладные программы, как FTP (File Transfer Protocol, Протокол передачи файлов), которые дают возможность через командную строку управлять обменом файлами по Сети.
TCP/IP - зародился в результате исследований, профинансированных Управлением перспективных научно-исследовательских разработок (Advanced Research Project Agency, ARPA) правительства США в 1970-х годах. Этот протокол был разработан с тем, чтобы вычислительные сети исследовательских центров во всем мире могли быть объединены в форме виртуальной "сети сетей" (internetwork). Первоначальная Internet была создана в результате преобразования существующего конгломерата вычислительных сетей, носивших название ARPAnet, с помощью TCP/IP.
Причина, по которой TCP/IP столь важен сегодня, заключается в том, что он позволяет самостоятельным сетям подключаться к Internet или объединяться для создания частных интрасетей. Вычислительные сети, составляющие интрасеть, физически подключаются через устройства, называемые маршрутизаторами или IP-маршрутизаторами. Маршрутизатор - это компьютер, который передает пакеты данных из одной сети в другую. В интрасети, работающей на основе TCP/IP, информация передается в виде дискретных блоков, называемых IP-пакетами (IP packets) или IP-дейтаграммами (IP datagrams). Благодаря программному обеспечению TCP/IP все компьютеры, подключенные к вычислительной сети, становятся "близкими родственниками". По существу оно скрывает маршрутизаторы и базовую архитектуру сетей и делает так, что все это выглядит как одна большая сеть. Точно так же, как подключения к сети Ethernet распознаются по 48-разрядным идентификаторам Ethernet, подключения к интрасети идентифицируются 32-разрядными IP-адресами, которые мы выражаем в форме десятичных чисел, разделенных точками (например, 128.10.2.3). Взяв IP-адрес удаленного компьютера, компьютер в интрасети или в Internet может отправить данные на него, как будто они составляют часть одной и той же физической сети.
TCP/IP дает решение проблемы данными между двумя компьютерами, подключенными к одной и той же интрасети, но принадлежащими различным физическим сетям. Решение состоит из нескольких частей, причем каждый член семейства протоколов TCP/IP вносит свою лепту в общее дело. IP - самый фундаментальный протокол из комплекта TCP/IP - передает IP-дейтаграммы по интрасети и выполняет важную функцию, называемую маршрутизацией, по сути дела это выбор маршрута, по которому дейтаграмма будет следовать из пункта А в пункт B, и использование маршрутизаторов для "прыжков" между сетями.
TCP - это протокол более высокого уровня, который позволяет прикладным программам, запущенным на различных главных компьютерах сети, обмениваться потоками данных. TCP делит потоки данных на цепочки, которые называются TCP-сегментами, и передает их с помощью IP. В большинстве случаев каждый TCP-сегмент пересылается в одной IP-дейтаграмме. Однако при необходимости TCP будет расщеплять сегменты на несколько IP-дейтаграмм, вмещающихся в физические кадры данных, которые используют для передачи информации между компьютерами в сети. Поскольку IP не гарантирует, что дейтаграммы будут получены в той же самой последовательности, в которой они были посланы, TCP осуществляет повторную "сборку" TCP-сегментов на другом конце маршрута, чтобы образовать непрерывный поток данных. FTP и telnet - это два примера популярных прикладных программ TCP/IP, которые опираются на использование TCP.
Другой важный член комплекта TCP/IP - User Datagram Protocol (UDP, протокол пользовательских дейтаграмм), который похож на TCP, но более примитивен. TCP - "надежный" протокол, потому что он обеспечивает проверку на наличие ошибок и обмен подтверждающими сообщениями чтобы данные достигали своего места назначения заведомо без искажений. UDP - "ненадежный" протокол, ибо не гарантирует, что дейтаграммы будут приходить в том порядке, в котором были посланы, и даже того, что они придут вообще. Если надежность - желательное условие, для его реализации потребуется программное обеспечение. Но UDP по-прежнему занимает свое место в мире TCP/IP, и испльзуется во многих программах. Прикладная программа SNMP (Simple Network Management Protocol, простой протокол управления сетями), реализуемый во многих воплощениях TCP/IP, - это один из примеров программ UDP.
Другие TCP/IP протоколы играют менее заметные, но в равной степени важные роли в работе сетей TCP/IP. Например, протокол определения адресов (Address Resolution Protocol, ARP) ппреобразует IP-адреса в физические сетевые адреса, такие, как идентификаторы Ethernet. Родственный протокол - протокол обратного преобразования адресов (Reverse Address Resolution Protocol, RARP) - выполняет обеспечивает обратное действие, преобразуя физические сетевые адреса в IP-адреса. Протокол управления сообщениями Internet (Internet Control Message Protocol, ICMP) представляет собой протокол сопровождения, который использует IP для обмена управляющей информацией и контроля над ошибками, относящимися к передаче пакетов IP. Например, если маршрутизатор не может передать IP-дейтаграмму, он использует ICMP, с тем чтобы информировать отправителя, что возникла проблема. Краткое описание некоторых других протоколов, которые "прячутся под зонтиком" TCP/IP, приведено во врезке.
Проектировщики вычислительных сетей часто используют семиуровневую модель ISO/OSI (International Standards Organization/Open Systems Interconnect, Международная организация по стандартизации/ Взаимодействие открытых систем), которая описывает архитектуру сетей. Каждый уровень в этой модели соответствует одному уровню функциональных возможностей сети. В самом основании располагается физический уровень, представляющий физическую среду, по которой "путешествуют" данные, - другими словами, кабельную систему вычислительной сети. Над ним имеется канальный уровень, или уровень звена данных, функционирование которого обеспечивается сетевыми интерфейсными платами. На самом верху размещается уровень прикладных программ, где работают программы, использующие служебные функции сетей.
На рисунке показано, как TCP/IP согласуется с моделью ISO/OSI. Этот рисунок также иллюстрирует уровневое строение TCP/IP и показывает взаимосвязи между основными протоколами. При переносе блока данных из сетевой прикладной программы в плату сетевого адаптера он последовательно проходит через ряд модулей TCP/IP. При этом на каждом шаге он доукомплектовывается информацией, необходимой для эквивалентного модуля TCP/IP на другом конце цепочки. К тому моменту, когда данные попадают в сетевую плату, они представляют собой стандартный кадр Ethernet, если предположить, что сеть основана именно на этом интерфейсе. Программное обеспечение TCP/IP на приемном конце воссоздает исходные данные для принимающей программы путем захвата кадра Ethernet и прохождения его в обратном порядке по набору модулей TCP/IP. Если браузер и сервер работают на компьютерах, подключенных к различным физическим сетям (как это обычно бывает), дейтаграммы передаются от сети к сети до тех пор, пока не достигнут той, к которой физически подключен сервер. В конце концов дейтаграммы достигают пункта своего назначения и вновь собираются таким образом, чтобы Web-сервер, который считывает цепочки данных из своего гнезда, получал непрерывный поток данных. Для браузера и сервера данные, записанные в гнездо на одном конце, как по волшебству, "всплывают" на другом конце. Но между этими событиями происходят все виды сложных взаимодействий для создания иллюзии непрерывной передачи данных между вычислительными сетями.
И это практически все, чем занимается TCP/IP: превращением множества небольших сетей в одну большую и предоставлением услуг, которые нужны прикладным программам для обмена информацией друг с другом по получающейся в итоге Internet.
Таким образом, TCP/IP - это набор протоколов, которые позволяют физическим сетям объединяться вместе для образования Internet. TCP/IP соединяет индивидуальные сети для образования виртуальной вычислительной сети, в которой отдельные главные компьютеры идентифицируются не физическими адресами сетей, а IP-адресами.
В TCP/IP используется многоуровневая архитектура, которая четко описывает, за что отвечает каждый протокол. TCP и UDP обеспечивают высокоуровневые служебные функции передачи данных для сетевых программ, и оба опираются на IP при передаче пакетов данных. IP отвечает за маршрутизацию пакетов до их пункта назначения.
Данные, перемещающиеся между двумя прикладными программами, работающими на главных компьютерах Internet, "путешествуют" вверх и вниз по стекам TCP/IP на этих компьютерах. Информация, добавленная модулями TCP/IP на стороне отправителя, "разрезается" соответствующими TCP/IP-модулями на принимающем конце и используется для воссоздания исходных данных.
1.3 Сетевое программное обеспечение
При работе с Windows XP Professional доступны многие новые более эффективные средства и технологии. При помощи дистанционного управления рабочим столом можно получить доступ к сеансу Windows с другого компьютера, также как и при работе за своим компьютером. При помощи средства «Помощник по поиску» можно быстро найти необходимые сведения. Средства «Защита файлов Windows» и «Восстановление системы» предотвращают случайное удаление важных файлов и возвращают систему в исходное состояние в случае возникновения проблем. В случае ошибки системы или программы можно отправить в корпорацию Майкрософт отчет, а также можно использовать компонент NetMeeting для проведения собрания по сети с другими пользователями в любое время. При работе на компьютере с плоскоэкранным монитором (как у переносных компьютерах) можно использовать технологию ClearType для отображения экранных шрифтов. (Эта передовая технология корпорации Майкрософт, обеспечивающая четкость отображения шрифтов.) Помимо этого технология Dualview позволяет использовать отдельный монитор с переносным компьютером.
Windows XP предлагает множество средств, которые необходимы в современных высокоскоростных коммуникационных сетях для работы и развлечения. В этот пакет инструментов входят средства, помогающие устанавливать и настраивать конфигурацию системных ресурсов, пользователей и групп пользователей, а также плановых системных задач. Набор стандартных программ позволяет полностью выполнить любое задание, в чем бы оно ни заключалось. Вы можете создавать документы и изображения, производить вычисления, планировать свое рабочее время и проводить интерактивные совещания со своими сотрудниками. Когда настанет пора отдыха, вы можете послушать музыку, найденную в Интернете, или поиграть в игры. Средства связи и развлекательные программы помогут вам хорошо отдохнуть.
Windows XP Professional обладает улучшенными возможностями для работы программ в фоновом режиме. Общая защита значительно улучшена, поэтому теперь можно более безопасно использовать обозреватель Интернета и совершать в нем покупки. Можно также общаться с другими пользователями по сетям, не беспокоясь о сохранении конфиденциальности файлов личных данных. Быстродействие позволяет запускать большее количество программ одновременно, при этом программы работают с максимальной скоростью. Windows XP Professional надежна и устойчива, поэтому всегда можно рассчитывать на быстродействие и эффективную работу компьютера. Помимо этого достигнут максимально возможный уровень совместимости с другими программами.
Очевидно, что средства Windows XP Professional позволяют упростить использование компьютера, обеспечивают эффективность работы и возможность использования компьютера для развлечений. Например, можно при помощи средства «Дистанционное управление рабочим столом» получить доступ к рабочему компьютеру и его ресурсам из дома, а также просматривать файлы и документы на рабочем столе своего компьютера, находясь за компьютером сотрудника. При помощи программы NetMeeting можно устраивать виртуальные собрания по сети с пользователями, расположенными в любой точке земного шара, а также участвовать в обсуждениях, используя аудио- и видеоустройства и программу «Разговор». Получение справки теперь максимально упрощено. При помощи средства «Удаленный помощник» можно отправить по электронной почте сообщение специалисту по компьютерам или сотруднику службы поддержки, который поможет решить возникшую проблему со своего расположения. При работе в Windows XP Professional возможно использование расширенной интерактивной справочной системы, содержащей сведения о всех средствах операционной системы, а также электронный учебник, который поможет получить дополнительные сведения о возможном решении проблемы.
Windows XP Professional доступно множество других новых средств.
Windows XP включает последнюю версию программы MSN Explorer с полным пакетом служб Microsoft, а также последний выпуск программы Internet Explorer. Пользователи получают больше возможностей контролировать конфиденциальность и безопасность при просмотре Интернета.
При использовании Windows XP Professional работа с домашней сетью максимально упрощена. Для быстрой настройки сети используется мастер настройки сети. Для всех компьютеров в сети можно использовать общее подключение к Интернету. При этом ваш компьютер будет защищен брандмауэром подключения к Интернету.
При использовании Windows XP Professional работа с файлами и папками выполняется более эффективно. Теперь можно выполнять задачи с более понятным интерфейсом веб-страниц и просматривать сведения о файлах и папках еще продуктивнее. Имеется больше возможностей сопоставления определенных типов файлов с определенными программами. Помимо этого максимально упрощена автономная работа с файлами и папками. Сжатие файлов и папок с целью экономия места на компьютере выполняется просто и быстро.
При использовании Windows XP имеется возможность воспроизводить музыку, просматривать и печатать изображения, а также записывать сведения на компакт-диски. Можно также создавать фильмы.
Системные требования для Windows XP Professional одно- или двухпроцессорный ПК с процессором 233 МГц. Рекомендуется процессор 300 МГц или более мощный (*рекомендуется использовать процессоры семейства Intel Pentium/Celeron или AMD K6/Athlon/Duron или совместимые с данными типами процессоров).
Рекомендуется не менее 128 МБ ОЗУ (минимально допустимый объем памяти составляет 64 МБ, но при этом быстродействие и некоторые возможности системы могут быть ограничены).
Жесткий диск не менее 1,5 ГБ свободного места на жестком диске. Фактические требования могут меняться в зависимости от конфигурации системы и устанавливаемых компонентов. Если установка производится через сеть, может потребоваться дополнительное свободное место на жестком диске. Более подробные сведения можно получить по адресу www.microsoft.com/windowsxp.
Дисковод для компакт-дисков или DVD-дисков.
Видеоплата и монитор Super VGA (800 x 600 точек) или с более высоким разрешением. Для воспроизведения DVD-фильмов необходимы дисковод DVD, плата или программное обеспечение DVD-декодера, а также 8 МБ видеопамяти.
Работа с приложением Windows Movie Maker. Для использования функций видеозаписи потребуется соответствующее цифровое или аналоговое устройство видеозаписи, а также процессор 400 МГц (или более мощный) для записи видео с помощью цифровой видеокамеры.
Windows XP Home Edition - это операционная система со множеством новых функций, предоставляющих расширенные возможности для работы, средства для более быстрого и простого доступа в Интернет и для общения с друзьями и коллегами. Это наиболее надежная и стабильная операционная система в семействе Windows, которую можно использовать и для работы, и для развлечений.
Операционная система Windows XP Home Edition создана на основе Windows 2000. В ней используется 32-разрядная компьютерная архитектура и полностью защищенная модель памяти. Благодаря этому Windows XP Professional является на сегодняшний день самой надежной операционной системой. Наряду с этим, Windows XP Home Edition включает в себя все лучшие качества семейства потребительских операционных систем Windows 9х. В результате пользователь получает в свое распоряжение не только удобную в пользовании, но и высоконадежную операционную систему.
Преимущества Windows XP Home Edition:
- производительность, безопасность и надежность Windows 2000;
- лучшие качества предыдущих версий потребительских операционных систем Windows;
- удобная в пользовании операционная система, которая отличается от всех предыдущих версий потребительских операционных систем Windows повышенной надежностью;
- интегрированные дополнительные функции для повышения надежности и предотвращения неполадок в системе;
- операционная система, которой легко и приятно пользоваться и которая не подведет;
- операционная система Windows XP Home Edition более удобная и более быстрая.
2. Разработка компьютерной сети на предприятии по разработке программного обеспечения
2.1 Постановка задачи
Необходимо разработать локальную сеть из 70 компьютеров. Выбор технологии подключения к Интернет произволен. Удаленный участок сети необходимо разместить в диаметре 1 км с центром в основном здании.
В качестве примера будет разработана сеть для предприятия по разработке программного обеспечения. Предприятие осуществляет разработку программного обеспечения для химической промышленности. Поэтому одним из отделов предприятия будет САПР(Системы автоматизированного проектирования), остальные - типовые отделы предприятий: информационно-технический, юридический, отдел маркетинга, отдел сбыта, производственный отдел, бухгалтерия, директор, заместители, секретари.
Главное здание состоит из четырех этажей (Приложение Д – Ж).
На удалении пятисот метров будет располагаться одноэтажное здание - производственный отдел.
Распределение компьютеров между отделами:
Первый этаж:
Охрана - 2 компьютера;
Отдел сбыта - 4 компьютера.
Второй этаж:
Отдел маркетинга - 6 компьютеров;
САПР(1) - 13 компьютеров;
САПР(2) - 9 компьютеров.
Третий этаж:
Бухгалтерия - 6 компьютеров;
Юридический отдел - 4 компьютера;
Информационно-технический отдел - 8 компьютеров.
Четвертый этаж:
Отдел кадров - 3 компьютера;
Директор - 1 компьютер;
1-ый заместитель - 1 компьютер;
2-ой заместитель - 1 компьютер;
Секретарь - 1 компьютер;
Секретарь - 1 компьютер;
Конференц-зал - 1 компьютер.
Второй корпус:
производственный отдел - 9 компьютеров.
Сеть будет построена по топологии - звезда, и по распространенной в наше время технологии Ethernet.
Преимущества топологии "звезда":
- недорогой кабель и быстрая установка;
- легкое объединение рабочих групп;
- простое расширение сети.
Использования коммутатора или моста улучшает производительность "поперек" сети.
Неисправность одного узла не приводит к остановке работы всей сети.
Кабельная система обеспечивает подачу сигнала на контрольные лампы концентратора, что позволяет легко проводить диагностику и определять неисправные узлы.
В центре каждой "звезды" - концентратор или коммутатор, который непосредственно соединен с каждым отдельным узлом сети через тонкий гибкий кабель UTP, часто называемый "витой парой". Кабель соединяет сетевой адаптер с ПК, с одной стороны, с концентратором или коммутатором - с другой. Устанавливать сеть с топологией "звезда" просто и недорого. Число узлов, которые можно подключить к концентратору, определяется возможным количеством портов самого концентратора. Однако имеется ограничение по числу узлов: сеть может иметь максимум 1024 узла. Рабочая группа, созданная по схеме "звезда", может функционировать независимо или может быть связана с другими рабочими группами.
2.2 Выбор оборудования и программного обеспечения
Подразумевается наличие на предприятии нужного количества персональных компьютеров и серверов с установленным лицензионным программным обеспечением, указанным в разрабатываемом проекте локальной сети предприятия. Предполагается, что в каждом персональном компьютере и сервере установлены сетевые платы для подключения к сети. В дальнейшем затраты на приобретение компьютерной техники и программного обеспечения учтены не будут, так как предполагают составление специальной сметы на приобретение, настройку и установку программного обеспечения, что не является целю данной конкретной работы по проектированию локальной сети предприятия.
В качестве коммуникаторов будут использоваться гигабитные и 100 мегабитные свитчи фирмы D-Link. Выбор фирмы-производителя обусловлен оптимальным соотношением цена/качество. Кабель - используется как экранированный(FTP), так и неэкранированный (UTP) кабель типа "витая пара" категории 5.
Для обеспечения доступа в Интернет, будет использоваться технология ADSL, которая позволит получить скорость потока данных в пределах от 1,5 до 8 Мбит/с. Технология ADSL позволяет телекоммуникационным компаниям предоставлять частный защищенный канал для обеспечения обмена информацией между пользователем и провайдером. Кроме того, ADSL эффективна с экономической точки зрения хотя бы потому, что не требует прокладки специальных кабелей, а использует уже существующие двухпроводные медные телефонные линии. ADSL открывает совершенно новые возможности в тех областях, в которых в режиме реального времени необходимо передавать качественный видеосигнал. К ним относится, например, организация видеоконференций, обучение на расстоянии и видео по запросу. Технология ADSL позволяет провайдерам предоставлять своим пользователям услуги, скорость передачи данных которых более чем в 100 раз превышает скорость самого быстрого на данный момент аналогового модема (56 Кбит/с) и более чем в 70 раз превышает скорость передачи данных в ISDN (128 Кбит/с). Решено использовать ADSL - модем производства фирмы D-Link, а именно модель DSL-500T (Рис.2.1). Он отвечает всем современным требованиям к сетевому оборудованию и наиболее оптимален по соотношению цена/качество.
Для связи с удаленным участком сети будет применяться беспроводная технология стандарта 802.11g, обеспечивающая скорость передачи до 54 мегабит в секунду. Т.к. удаленный участок будет находиться на расстоянии 500 метров необходимо применить направленные антенны для беспроводных точек доступа. Преимущество беспроводной связи заключается в удобстве монтажа и более дешевой реализации, нежели кабельный вариант. 54 Мбит вполне достаточно для обмена документами и прочими данными, а также для доступа в Интернет.
В качестве операционной системы сервера была выбрана Windows Server 2003 Edition.
2.2.1 Краткое описание технических средств
В этом подразделе приведён список технических устройств, которые будут использоваться в разработанной сети:
а) DGS-1016D Коммутатор 16х 10ХХMbps портов, неуправляемый. Благодаря новому настольному коммутатору Gigabit Ethernet от D-Link переход к сетям Gigabit Ethernet никогда не был более экономически эффективен и прост. Данный настольный гигабитный коммутатор предлагает рабочим группам экономичный способ извлечения выгоды из увеличенной пропускной способности сети Gigabit Ethernet.
Имея 16 портов Gigabit Ethernet, этот компактный настольный коммутатор обеспечивают быстрый доступ к серверам, удовлетворяя возрастающие потребности пользователей сети. Благодаря установке plug-and-play и медным портам Gigabit Ethernet, использующим для подключения существующую витую пару категории 5, данное устройство позволяет сразу же увеличить производительность рабочей группы без необходимости прокладки дорогого оптического кабеля или полного переконфигурирования сети. Все порты поддерживают автоопределение скорости 10/100/1000Mбит/с и автосогласование полуду/ полнодуплексного режима работы.
Порты Gigabit Ethernet предоставляют выделенную полосу пропускания в 2000Мбит/с в режиме полного дуплекса для подключения серверов. Это позволяет устранить узкие места в сети и повысить ее производительность.
Управление потоком IEEE 802.3x позволяет подключать серверы напрямую к коммутатору с целью получения высокоскоростного и сверхнадежного канала связи. Работая на скорости 2000Мбит/с в режиме полного дуплекса, коммутатор предоставляет высокоскоростной канал для передачи данных серверам с минимальной потерей данных.
Все порты поддерживают автоматическое определение полярности MDI/MDIX. Это исключает необходимость в использовании перекрестных кабелей или портов uplink. Любой порт можно подключить к серверу, маршрутизатору или коммутатору, используя прямой кабель на основе витой пары.
Коммутатор без проблем работает с любым существующим сетевым оборудованием, будь то Ethernet, Fast Ethernet или Gigabit Ethernet. Заменять оборудование или программное обеспечение при его установке не потребуется.
Автоопределение скоростей 10/100/1000 Мбит/с, автосогласование режима полный/полудуплекс, плюс возможность подключить ранее проложенный кабель 5-й категории - все эти факторы делают инсталляцию устройства на редкость необременительной. Все что требуется - подключить кабели сетевого оборудования к устройству, и в считанные минуты сеть начнет свою работу.
б) DES-1018DG (Коммутатор 16х10х Mbps + 2х10хх Mbps портов) - настольный коммутатор с высокой плотностью портов 10/100 Мбит/с (Рис.2.3). Он имеет 16 портов 10/100BASE-TX Fast Ethernet с автоматическим определением скорости и 2 порта 1000BASE-T Gigabit Ethernet в компактном корпусе в настольном исполнении. Поддерживая установку plug-and-play и медные порты Gigabit Ethernet, позволяющие подключать кабель на основе витой пары категории 5, коммутатор значительно увеличивает производительность рабочей группы, не требуя прокладки дорогого оптического кабеля или сложной переконфигурации сети.
Коммутатор имеет 16 портов 10/100 Мбит/с, которые позволяют гибко интегрировать рабочую группу в существующую сеть Ethernet и Fast Ethernet. Эти порты поддерживают автосогласование скоростей 100BASE-TX и 10BASE-T и автоопределение режимов полного и полудуплекса .
2 порта 1000BASE-T Gigabit Ethernet обеспечивают более дешевую альтернативу решению на оптике. Использование существующей витой пары категории 5 в качестве среды передачи позволяет сразу же подключить серверы к портам Gigabit Ethernet без необходимости прокладки нового оптического кабеля.
Порты Gigabit Ethernet предоставляют выделенную полосу пропускания в 2000 Мбит/с для подключения серверов. Это позволяет устранить узкие места в сети и повысить ее производительность.
Все порты поддерживают управление потоком методом "обратного давления" и IEEE 802.3x. Эти функции позволяют избежать потери пакетов при переполнении буфера порта принимающего устройства.
Все порты поддерживают автоматическое определение полярности MDI/MDIX. Это исключает необходимость в использовании кроссированных кабелей или портов uplink. Любой порт можно подключить к серверу, маршрутизатору или коммутатору, используя прямой кабель на основе витой пары.
Коммутатор может быть использован для непосредственного подключения компьютеров, так как обладает малой стоимостью подключения на порт. Это предотвращает возможность образования "узких мест", так как каждый компьютер имеет выделенную полосу пропускания сети.
в) D-Link DES-1016D является неуправляемым коммутатором 10/100 Мбит/с 2 уровня, предназначенным для повышения производительности работы небольшой группы пользователей, обеспечивая при этом высокую пропускную способность (Рис.2.4). Мощный и одновременно с этим простой в использовании, DES-1016D позволяет пользователям не задумываясь подключать в любой порт сетевое оборудование работающее на скоростях 10 Мбит/с или 100 Мбит/с, понизить время отклика и удовлетворить потребности в большой пропускной способности сети.
Коммутатор снабжен 16 портами 10/100 Мбит/с, позволяющими небольшой рабочей группе гибко подключаться сетям к Ethernet и Fast Ethernet, а также интегрировать их. Это достигается благодаря свойству портов автоматически определять сетевую скорость, согласовывать стандарты 10Base-T и 100Base-TX, а также режим передачи полу/полный дуплекс.
Коммутатор может быть использован для непосредственного подключения компьютеров к нему, так как обладает малой стоимостью подключения на порт. Это предотвращает возможность образования "узких мест", так как каждый компьютер имеет выделенную полосу пропускания сети.
Функция управления потоком предотвращает потерю (пакетов) данных при передаче пакетов(данных), посредством передачи сигнала о возможном переполнении порта, буфер которого полон. Приостановка передачи пакетов продолжается до тех пор, пока буфер порта не будет готов принимать новые данные. Управление потоком реализовано для режимов полного и полудуплекса.
г) D-Link DES-1008D является неуправляемым коммутатором 10/100 Мбит/с предназначенным для повышения производительности работы малой группы пользователей, обеспечивая при этом высокий уровень гибкости (Рис.2.5). Мощный и одновременно с этим простой в использовании, DES-1008D позволяет пользователям без труда подключить к любому порту сетевое оборудование, работающее на скоростях 10 Мбит/с или 100 Мбит/с, понизить время отклика и удовлетворить потребности в большой пропускной способности сети.
Коммутатор снабжен 8 портами 10/100 Мбит/с, позволяющими небольшой рабочей группе гибко подключаться к сетям Ethernet и Fast Ethernet, а также интегрировать их. Это достигается благодаря свойству портов автоматически определять сетевую скорость, согласовывать стандарты 10Base-T и 100Base-TX, а также режим передачи полу-/полный дуплекс.
Функция управления потоком предотвращает пакеты от передачи, которая может привести к их потере, посредством передачи сигнала о возможном переполнении портом, буфер которого полон. Приостановка передачи пакетов продолжается до тех пор, пока буфер порта не будет готов принимать новые данные. Управление потоком реализовано для режимов полного и полудуплекса.
Все порты поддерживают автоматическое определение полярности MDI/MDIX. Это исключает необходимость в использовании кроссированных кабелей или портов uplink. Любой порт можно подключить к серверу, маршрутизатору или коммутатору, используя прямой кабель на основе витой пары.
Имея 8 портов plug-and-play, коммутатор является идеальным выбором для сетей малых рабочих групп для увеличения производительности между рабочими станциями и серверами. Порты могут быть подключены к серверам в режиме полного дуплекса, либо к концентратору в режиме полудуплекса.
Коммутатор может быть использован для непосредственного подключения компьютеров, так как обладает малой стоимостью подключения на порт. Это предотвращает возможность образования "узких мест" благодаря предоставлению каждому компьютеру сети выделенной полосы пропускания.
д) Маршрутизатор ADSL DSL-500T разработан для сетей малых офисов и дома. Он позволяет быстро и просто получить широкополосный доступ к Интернет и совместно использовать канал связи ADSL несколькими пользователями (Рис.2.6). Благодаря встроенному интерфейсу ADSL, поддерживающему скорость нисходящего потока до 24 Мбит/с и расширенным функциям маршрутизатора, это устройство предоставляет малым офисам и домашним пользователям удобный и экономичный способ создания безопасной, высокоскоростной сети, со свободным от "узких" мест каналом связи к внешнему миру.
Простое, экономичное широкополосное подключение к Интернет. Используя этот маршрутизатор, можно легко организовать совместное использование широкополосного канала связи дома или в офисе. После процедуры регистрации, устройство автоматически создаст и назначит IP-адрес каждому пользователю, упростив операцию регистрации.
Маршрутизатор обеспечивает защиту пользователей домашних и офисных сетей от атак из Интернет с помощью NAT, плюс к этому, для еще большей защиты поддерживаются VPN в режиме pass-through. Устройство также блокирует и перенаправляет определенные порты, ограничивая сервисы во внутренней сети предприятия, к которым внешние пользователи могут получить доступ. Виртуальный сервер используется для перенаправления сервисов на несколько серверов.
Маршрутизатор может быть настроен таким образом, что отдельные FTP, Web и игровые серверы смогут совместно использовать один, видимый извне IP-адрес, и в тоже время останутся защищены от атак хакеров.
Маршрутизатор поддерживает ограниченную функцию DMZ для перенаправления неизвестных пакетов на выделенный сервер или рабочую станцию, находящуюся за ним, позволяя обращаться к клиенту (такому как Web-сервер) из сети Интернет и гарантируя полную совместимость приложений Интернет. Это дает возможность поддерживать Web-сервер и использовать средства электронной коммерции, обеспечивая безопасность локальной офисной сети.
Таблица 2.1 - Технические параметры маршрутизатора D-Link DSL-500T/RU ADSL
|
Порты |
1 RJ-11 ADSL порт |
|
Тип маршрутизируемых пакетов |
IP-пакеты |
|
Протоколы и методы маршрутизации |
RIP-1, RIP-2 Статическая маршрутизация |
|
Поддержка DHCP |
DHCP сервер (для автоматического назначения IP-адресов) |
|
Безопасность |
Поддержка VPN: PPTP/L2TP/ IPSec pass-through Network Address/Port translation (NAPT) Аутентификация PAP и CHAP DoS (UDP/TCP), определение известных атак Защита межсетевым экраном SPI Аутентификация на основе логина/пароля |
|
Настройка и управление |
Web-интерфейс управления Удаленное управление через HTTP Журнал системных событий Поддержка UPnP 1.0 Резервирование и восстановление конфигурации Сброс к заводским настройкам |
|
Статистическое наблюдение |
Статистики Ethernet, ATM и ADSL |
|
Обновление ПО |
Через Web-браузер |
|
Стандарты |
Стандарт ADSL: ANSI T1.413 Issue 2, ITU G.992.1 (G.dmt) Annex A, ITU G.992.2 (G.lite) Annex A |
|
Скорость |
ADSL2: до 12 Мбит/с нисходящий поток, до1 Мбит/с восходящий поток ADSL2+: до 24 Мбит/с нисходящий поток, до1 Мбит/с восходящий поток |
|
ATM/ADSL |
Сигнализация ATM: UNI3.0, 3.1 и 4.0 |
|
Поддержка Bridged/PPP |
Bridged Ethernet over ATM Classical IP over ATM |
|
Питание |
Через внешний адаптер питания переменного тока 9В, 1.0A |
|
Размер |
142 x 117 x 31 мм |
|
Вес |
200 г. |
|
Рабочая температура |
0o до 40o C |
|
Влажность |
От 5% до 95% без образования конденсата |
|
Электромагнитное излучение |
FCC Class B CE Class B |
|
Безопасность |
CSA International (CSA950, EN60950, IEC60950, UL1950) |
2.2.2 DWL-2210AP
Адаптивная точка доступа D-Link AirPremier® DWL-2210AP стандарта 802.11g с поддержкой кластеризации разработана для построения беспроводных сетей малых и средних предприятий (Рис.2.7).
Точка доступа поддерживает расширенный набор функций, включая 802.3af Power over Ethernet (PoE), встроенную базу данных аутентификации, балансировку нагрузки, WDS и качество обслуживания (QoS). Для удобства настройки и управления, DWL-2210AP поддерживает технологию кластеризации точек доступа (AP Clustering) - "адаптивную" технологию, которая позволяет объединять до 8 точек доступа по проводной сети Fast Ethernet и организовать их взаимодействие непосредственно друг с другом. Взаимодействие заключается в следующем: как только в сети появляется одна настроенная DWL-2210AP, все остальные вновь подключаемые к проводной сети DWL-2210AP синхронизируются с ней и автоматически создают новые конфигурации - это устраняет необходимость в управлении каждой DWL-2210AP в отдельности.
Дополнительно к поддержке высокоскоростного беспроводного стандарта 802.11g, в DWL-2210AP реализовано несколько новых развитых функций. Во-первых, это поддержка качества обслуживания сетевого трафика (Quality of Service). Чувствительные к полосе пропускания приложения, такие как VoIP или потоковое видео, будут иметь более высокий приоритет по сравнению с менее критичными к задержкам приложениями. Следующая развитая функция - функция обнаружения незарегистрированных в сети точек доступа (Rogue AP detection).
Кроме того, в DWL-2210AP реализована технология WDS (Wireless Distribution System), которая позволяет точке доступа одновременно работать в режимах "Access Point" и "Bridge": находясь в мостовом соединении с другой точкой доступа, исходная точка может подключать к себе беспроводных клиентов. И ещё одна функция - это балансировка нагрузки, оптимально распределяющая нагрузку между несколькими точками доступа DWL-2210AP.
DWL-2210AP поддерживает следующие технологии для обеспечения безопасности беспроводной сети: WEP-шифрование 64/128-бит, WPA-Personal и WPA-Enterprise. DWL-2210AP имеет небольшую интегрированную базу данных RADIUS, которая может быть использована для аутентификации пользователей вместо дорогого внешнего сервера RADIUS.
При работе DWL-2210AP в режиме WDS, каждое мостовое соединение может быть защищено 64- или 128-битным WEP шифрованием. Для обеспечения дополнительной сетевой безопасности, DWL-2210AP поддерживает теги VLAN на интерфейсе Fast Ethernet, а также Multiple SSID. Эти функции позволяют обеспечивать доступ в Интернет гостевым пользователям, при этом полностью изолируя от них внутриофисную частную сеть.
DWL-2210AP поддерживает стандарт 802.3af Power over Ethernet (PoE), что позволяет подавать питание на точку через обычный кабель Ethernet. Эта функция обеспечивает возможность подачи электропитания на точки доступа даже в те места, где нет доступных силовых розеток. DWL-2210AP комплектуется съёмной всенаправленной антенной с высоким коэффициентом усиления 5 dBi.
2.2.3 D-Link ANT24-1201
Направленная внешняя антенна типа Яги D-Link ANT24-1201 подключается к беспроводным устройствам, работающим в частотном диапазоне 2,4 ГГц для увеличения площади покрытия беспроводной сети (Рис. 2.8).
Корпус антенны сделан из устойчивого к погодным явлениям материала.
Антенна поставляется с кабелем - переходником, позволяющим подключать антенну к беспроводным устройствам с реверсным разъемом SMA.
Комплект поставки состоит из набора крепежа, блока грозозащиты и заземления, кабеля - переходника.
2.4 Программное обеспечение
Приведем список программного обеспечения, а именно операционных систем, разработанных компанией Microsoft:
2.4.1 Windows Small Business Server 2003
Часто организации принимают решение развивать компьютерную сеть поэтапно, приобретая продукты по мере развития. То есть сначала просто объединяют компьютеры в сеть под управлением сервера, через год добавляют сервер электронной почты, затем задумываются о повышении безопасности и т.п. К сожалению, это оказывается наиболее сложный и дорогой вариант, который требует с, одной стороны, суммарных инвестиций во все продукты, а с другой, высокой квалификации персонала, т.к. ему приходится решать многие задачи "промежуточными" методами (например, организовать электронную почту до появления полноценного почтового сервера). Но, главное, этот подход приводит к тому, что организация не полностью использует все возможности для бизнеса, которые могла бы предоставить ей грамотно работающая компьютерная инфраструктура.
Возможности и функции:
- Электронная почта и сетевые возможности ;
- Подключение к Интернету с обеспечением безопасности сети;
- Интрасеть предприятия;
- Подключения удаленного доступа ;
- Поддержка мобильных устройств;
- Общий доступ к файлам и принтерам ;
- Средства наблюдения и составления отчетов;
- Возможности архивации и восстановления;
- Упрощенная установка;
- Платформа для запуска приложений для совместной работы.
Windows Small Business Server 2003 представляет собой полное серверное решение, включающее службы сообщений и совместной работы, доступ к Интернету с обеспечением повышенной безопасности, защищенное хранение данных, надежную печать и факс, возможность запускать рабочие приложения. Комплексные средства администрирования помогают поставщикам технологий обеспечивать эффективность и продуктивность работы сетей.
При помощи Windows Small Business Server 2003 достигается:
- Автоматическая защита бизнес-данных. В Windows Small Business Server 2003 защита данных обеспечивается несколькими способами. Например, мастер архивации регулярно создает резервные копии данных согласно расписанию.
- Повышение производительности. Использование Windows Small Business Server 2003 позволяет значительно увеличить производительность труда за счет средств совместной работы и управления информацией, а также стабильной и надежной инфраструктуры, поддерживающей мобильных пользователей.
- Привлечение с каждым днем все большего количества клиентов и улучшение качества обслуживания. Надежный обмен сообщениями, возможность создать веб-узел компании в Интернете, использование защищенных средств связи - все это помогает поддерживать взаимовыгодные отношения с заказчиками.
- Быстрая установка и настройка сервера, специально разработанного для малых предприятий. Надежный и быстрый метод развертывания Windows Small Business Server 2003 помогает сэкономить время и деньги. Дальнейшее управление работой сети малого предприятия осуществляется также просто при помощи удаленного администрирования и средств наблюдения и создания отчетов.
Windows Small Business Server 2003 предлагается в двух вариантах: стандартный выпуск (Standard Edition) и расширенный выпуск (Premium Edition). В стандартный выпуск включено два серверных продукта: Microsoft Windows Server 2003 и Microsoft Exchange Server 2003. В расширенный выпуск входят: Windows Server 2003, Exchange Server 2003, Microsoft SQL Server 2000 и Microsoft Internet Security and Acceleration Server (ISA Server) 2000.
Стандартный выпуск (Standard Edition):
Windows Server 2003. Надежная операционная система, объединяющая средства и технологии, которые обеспечивают совместное использование, управление, архивацию и защиту данных во внутренней сети. Включает службу каталогов Microsoft Active Directory® и ее средства.
Windows SharePoint Services. Среда для взаимодействия сотрудников и совместной работы
Exchange Server 2003. Инфраструктура взаимодействия, обмена сообщениями и совместной работы, которая помогает увеличить производительность. Microsoft Outlook® Web Access обеспечивает доступ к электронной почте через интернет.
Microsoft Office Outlook 2003. Единый интерфейс для управления электронной почтой, календарями, записями контактов и другими личными и общими сведениями.
Microsoft Shared Fax Service. Отправление факсов с рабочего стола в установленное пользователем время, используется меньшее число телефонных линий. Получение факсов через SharePoint, электронную почту или принтер.
Службы маршрутизации и удаленного доступа (RRAS). Технология, обеспечивающая безопасное подключение к Интернету.
Расширенный выпуск (Premium Edition):
Windows Server 2003. Надежная операционная система, объединяющая средства и технологии, которые обеспечивают совместное использование, управление, архивацию и защиту данных во внутренней сети. Включает службу каталогов Microsoft Active Directory® и ее средства.
Windows SharePoint Services. Среда для взаимодействия сотрудников и совместной работы
Exchange Server 2003. Инфраструктура взаимодействия, обмена сообщениями и совместной работы, которая помогает увеличить производительность. Outlook Web Access обеспечивает доступ к электронной почте через Интернет.
Microsoft Office Outlook 2003. Единый интерфейс для управления электронной почтой, календарями, записями контактов и другими личными и общими сведениями.
Microsoft Shared Fax Service. Отправление факсов с рабочего стола в установленное пользователем время, используется меньшее число телефонных линий. Получение факсов через SharePoint, электронную почту или принтер.
ISA Server 2000. Технология, обеспечивающая безопасное подключение к Интернету.
SQL Server 2000. Быстродействующий и надежный сервер управления реляционными базами данных, а также платформа для широкого спектра бизнес-приложений.
Microsoft Office FrontPage® 2003. Средства разработки веб-узлов и создания специализированных решений для Windows SharePoint Services.
2.4.2 Microsoft Windows Server 2003
Возможности и функции:
Технология Windows Server 2003 содержит все функции, ожидаемые пользователями от серверной ОС Windows, используемой для выполнения ответственных задач, такие как безопасность, надежность, доступность и масштабируемость. Кроме того, корпорация Microsoft усовершенствовала и расширила серверную ОС Windows для того, чтобы ваша организация могла оценить преимущества технологии Microsoft .NET, разработанной для связи людей, систем, устройств и обмена данными.
Windows Server 2003 является многозадачной операционной системой, способной централизовано или распределено управлять различными наборами ролей, в зависимости от потребностей пользователей. Некоторые из ролей сервера:
- файловый сервер и сервер печати;
- веб-сервер и веб-сервер приложений;
- почтовый сервер;
- сервер терминалов;
- сервер удаленного доступа/сервер виртуальной частной сети (VPN);
- служба каталогов, система доменных имен (DNS), сервер протокола динамической настройки узлов (DHCP) и служба Windows Internet Naming Service (WINS);
- сервер потокового мультимедиа-вещания.
Windows Server 2003, основанная на технологиях надежности ОС Windows 2000 Server, является превосходной и экономичной серверной операционной системой. Познакомьтесь со множеством новых возможностей и технологий, делающих Windows Server 2003 идеальной серверной платформой для организаций любого размера. Узнайте о том, как данная надежная серверная операционная система может помочь в повышении производительности и улучшении качества связи в организации и между ее сотрудниками.
Безотказность в работе, доступность, масштабируемость и безопасность делают Windows Server 2003 платформой высокой надежности.
2.4.3 Microsoft Windows XP
Возможности и функции:
В основе операционной системы Windows® XP Professional лежит основной программный код, используемый в Windows 2000 и Windows NT® Workstation. Благодаря этому коду, называемому ядром NT или новым ядром Windows, операционная система Windows XP становится более эффективной, безопасной и стабильной по сравнению с системами Windows Me, Windows 98 и Windows 95. Пользователи, работавшие в прошлом с этими операционными системами, смогут по достоинству оценить огромное преимущество, которым обладает Windows XP: даже если происходит сбой в программе, компьютер в большинстве случаев продолжает работать.
Небрежно написанные программы и содержащие ошибки драйверы устройств часто являются причиной неполадок в работе компьютера. Операционная система Windows® XP Professional позволяет избежать этих проблем, обеспечивая защиту важных системных файлов. Защита системных файлов обеспечивается за счет защиты файлов операционной системы Windows XP и блокирование драйверов, содержащих ошибки.
Windows Update - это оперативное расширение Windows XP обеспечивается с помощью сайта, на котором размещаются различные усовершенствования продуктов, например пакеты обновлений, обновления драйверов устройств и обновления системы безопасности. При установке нового устройства операционная система Windows XP ищет драйвер на компьютере и на сайте Windows Update (при наличии подключения к интернету). Если обновленный драйвер доступен на веб-странице Windows Update, и если для работы требуется более новая версия драйвера, Windows Update загрузит и установит ее. Организациям предоставляется возможность отключить эту функцию и запретить использование Windows Update. Для этого необходимо обратиться к системному администратору. На сайте Windows Update существует раздел для системных администраторов, предназначенный для поиска, сбора и загрузки обновлений, которые могут устанавливаться на компьютеры организации.
Самонастройка устройств (Plug and Play), имеющаяся в операционной системе Windows XP, используется для поиска нового оборудования и установки соответствующего драйвера. В Windows XP включены драйверы для значительно большего количества устройств, чем в Windows 2000 Professional. С помощью функции автозапуска Windows XP определяется вид содержимого, хранящегося на новых устройствах, и тип носителя (например, Zip-диски или компакт-диски). В зависимости от вида содержимого - графика, музыка или видео - функция автозапуска открывает программу, предназначенную для работы с соответствующим типом файлов.
Одним из основных преимуществ операционной системы Windows® XP Professional является поддержка файловой системы NTFS. Под файловой системой подразумевается способ именования, хранения и упорядочивания файлов на компьютере. Благодаря возможности шифровать файлы и папки, и устанавливать запрет на доступ к ним использование файловой системы NTFS повышает безопасность компьютера. Файловая система NTFS безопасна и надежна. Она обеспечивает более высокое быстродействие, чем файловые системы FAT16 и FAT32, используемые в Windows Me, Windows 98 и Windows 95. Файловая система NTFS поддерживается в операционных системах Windows NT® Workstation и Windows 2000 Professional, но не поддерживается в Windows Me, Windows 98 и Windows 95.
2.5 Требования к оборудованию
Рекомендуется компьютер с процессором, тактовая частота которого составляет не менее 300 МГц; допустимый минимум - 233 МГц (система с одним или двумя процессорами); использоваться могут процессоры семейств Intel Pentium/Celeron, AMD K6/Athlon/Duron, или другие совместимые процессоры.
Рекомендуется не менее 128 МБ ОЗУ (допустимый минимум - 64 МБ, при этом быстродействие и некоторые возможности операционной системы могут быть ограничены).
1,5 ГБ свободного места на жестком диске.
Видеоплата и монитор Super VGA, с разрешением не менее 800x600 точек.
Дисковод для компакт-дисков или дисков DVD.
Клавиатура и мышь Microsoft Mouse, или совместимое устройство ввода.
2.6 Расчет количества кабеля и кабель-канала
При расчете длины горизонтального кабеля учитываются следующие очевидные положения. Каждая телекоммуникационная розетка связывается с коммутационным оборудованием в кроссовой этажа одним кабелем. В соответствии со стандартом ISO/IEC 11801 длина кабелей горизонтальной подсистемы не должна превышать 90 м. Кабели прокладываются по кабельным каналам. Принимаются во внимание также спуски, подъемы и повороты этих каналов.
Существует два метода вычисления количества кабеля для горизонтальной подсистемы:
- метод суммирования;
- эмпирический метод.
Метод суммирования заключается в подсчете длины трассы каждого горизонтального кабеля с последующим сложением этих длин. К полученному результату добавляется технологический запас величиной до 10%, а также запас для выполнения разделки в розетках и на кроссовых панелях. Достоинством рассматриваемого метода является высокая точность. Однако при отсутствии средств автоматизации и проектировании СКС с большим количеством портов такой подход оказывается чрезмерно трудоемким, что практически исключает, в частности, просчет нескольких вариантов организации кабельной системы. Он может быть рекомендован для использования только в случае наличия у разработчика специализированных программ автоматического проектирования (например, пакета CADdy), когда выполнение рутинных операций учета всех спусков, поворотов и т.д., а также подсчета общей длины каждого проброса перекладывается на средства вычислительной техники.
В своей работе я решил воспользоваться эмпирическим методом, т.к. он реализует на практике положение известной центральной предельной теоремы теории вероятностей и, как показывает опыт разработки, дает хорошие результаты для кабельных систем с числом рабочих мест свыше 30. Его сущность заключается в применении для подсчета общей длины горизонтального кабеля, затрачиваемого на реализацию конкретной кабельной системы, обобщенной эмпирической формулы.
На основании сделанных предположений средняя длина Lav кабельных трасс принимается равной:
(2.1)
где L min и L max - длина кабельной трассы от точки ввода кабельных каналов в кроссовую до телекоммуникационной розетки соответственно самого близкого и самого далекого рабочего места, рассчитанная с учетом особенностей прокладки кабеля, всех спусков, подъемов, поворотов, межэтажных сквозных проемов (при их наличии) и т.д.;
K s - коэффициент технологического запаса - 1.1 (10%);
X = Х1 + Х2
- запас для выполнения разделки кабеля. Со стороны рабочего места (Х1) он принимается равным 30 см. Со стороны кроссовой - Х2 - он зависит от ее размеров и численно равен расстоянию от точки входа горизонтальных кабелей в помещение кроссовой до самого дальнего коммутационного элемента опять же с учетом всех спусков, подъемов и поворотов. Далее рассчитывается общее количество Ncr кабельных пробросов, на которые хватает одной катушки кабеля:
(2.2)
где Lcb - длина кабельной катушки (стандартные значения 305, 500 и 1000 м), причем результат округляется вниз до ближайшего целого. На последнем шаге получаем общее количество кабеля Lc, необходимое для создания кабельной системы:
(2.3)
где Nt0 - количество телекоммуникационных розеток.
Приведенный алгоритм может быть использован в электронной таблице Excel. Используемая формула имеет вид:

где Nt0, Lcb, Lav, X - числовые значения, или ссылки на ячейки, в которых содержатся цифровые значения соответствующих параметров.
Исходя из эмпирического метода расчетов, я пришел к следующим результатам: длина максимального сегмента кабеля 35 метров, минимального - 1.5, количество кабелей - 81.
Используя вышеупомянутые формулы расчета, я получил примерную длину требуемого кабеля 1123 метра.
Глядя на эту цифру, делаем вывод, что для реализации проекта потребуется 4 бухты витой пары UTP (по 305 метров) и 1 бухта FTP (305 метров). Кабель учитывается с небольшим запасом, который потребуется при прокладке кабеля и в процессе эксплуатации.
Расчет кабель-канала проводился по периметру каждой комнаты, затем все суммируется. Потребуется примерно 707.5 метров кабель-канала. Углы будут браться в процентном соотношении - 20% от общей длины кабель-канала.
2.7 Схемы сети
Логическая схема сети представлена в Приложении Г.
Далее приведены схемы сети поэтажно (Приложения Д- Л). На всех схемах подписаны отделы и сетевые узлы. Каждой подсети на схеме присвоены буквенные обозначения для удобства ориентирования, например, отдел сбыта - S, или бухгалтерия - B.
Все свитчи отмечены буквой H и пронумерованы. Всего 9 свитчей: один - 16 портов по 1Гбит, четыре - 16 п ортов по 100Мбит + 2 порта по 1Гбит, три - 16 портов по 100Мбит, один - 8 портов 100Мбит. Также для наглядности на схеме приведены сетевые принтеры.
3. Экономическая часть
Произведем расчет величины затрат на проектирование и монтаж корпоративной вычислительной сети на предприятии по разработке программного обеспечения.
Все вышеупомянутое оборудование и его расценки на сегодняшний день будут приведены в таблице 3.1.
Таблица 3.1 – Стоимость оборудования проектируемой сети
|
Наименование |
Модель |
Цена за ед., грн. |
Кол. |
Общ. Цена, грн. |
|
Коммутаторы |
||||
|
D-Link Switch 16port 10/100/1000 |
DGS-1016D |
1243,2 |
1 |
1243,2 |
|
D-Link Switch 16port 10/100 Base-TX + 2 port 10/100/ 1000Base-T |
DES-1018DG |
540,8 |
4 |
2163,2 |
|
D-Link Switch 16port 10/100 |
DES-1016D |
252,2 |
3 |
756,6 |
|
D-Link Switch 8port 10/100 |
DES-1008D |
104,0 |
1 |
104,0 |
|
Интернет |
||||
|
D-Link DSL-500T/RU ADSL |
|
184,6 |
1 |
184,6 |
|
ADSL сплиттер |
D-Link DSL-30F |
18,2 |
1 |
18,2 |
|
Кабели |
||||
|
FTP 4 пары solid кат. 5e , PCnet, (бухта 305 м.) |
789,2 |
1 |
789,2 |
|
|
UTP 4 пары solid, кат. 5e, Сарансккабель (305м.) |
419,8 |
4 |
1679,2 |
|
|
RG-58 подготовленный (5 м,300 МГц) |
|
54,00 |
2 |
108,00 |
|
Патч-корд UTP, Категория 5е, 2 метра |
|
5,20 |
70 |
364,00 |
|
Коннекторы |
||||
|
RJ45 под UTP кабель, кат. 5, 50m" gold ун. без вставки |
1,00 |
82 |
82,00 |
|
|
RJ45 под одножильный экр., кат. 5е 50 m" gold |
3,8 |
10 |
38,00 |
|
|
Кабель-канал |
||||
|
Короб 40*40мм., с крышкой (1м) |
U060806020 |
7.00 |
708 |
4956,00 |
|
Угол внутренний изменяемый, 40х40мм |
13022 CBR |
8.00 |
142 |
1136,00 |
|
Розетки |
||||
|
Розетка внешн., Категория 5е |
1xRJ-45 UTP |
10,0 |
70 |
700,00 |
|
Беспроводное оборудование |
||||
|
Внешняя антенна |
D-Link ANT24-1201 |
307,8 |
2 |
615,6 |
|
Точка доступа 802.11bg 1хLAN, RPSMA |
DWL-2100AP |
397,4 |
2 |
794,8 |
|
Программное обеспечение |
||||
|
Windows XP Professional SP2b Russian |
|
868,8 |
62 |
53865,6 |
|
Win SBS Prem 2003 R2 Russian |
|
6294,8 |
1 |
6294,8 |
|
Windows Svr Std 2003 R2a Win32 Russian |
|
3796,6 |
8 |
30372,8 |
|
Итого: |
|
|
106265,8 |
Примечание. Стоимость сервера в смету включаться не будет, т.к. его выбор в поставленные задачи не входит.
Сетевые технологии значительно повышают эффективность делового применения компьютеров. Они определяют не только способы использования офисного оборудования, но и стиль работы сотрудников. Сетевые технологии позволяют создавать информационные системы, обеспечивающие решение таких задач предприятия, как хранение информации, документооборот, обмен сообщениями и организация групповой работы над проектами. Этот факт влечёт за собой следующие источники экономической эффективности:
- Уменьшение затрат на обработку единицы информации;
- Повышение точности расчётов;
- Способность автоматически собирать, запоминать и накапливать разрозненные данные;
- Систематическое ведение баз данных;
- Уменьшение объёмов хранимой информации и стоимости хранения данных;
- Стандартизация ведения документов;
- Существенное уменьшение времени поиска необходимых данных;
- Возможность использования вычислительных сетей при обращении к базам данных.
- Увеличение скорости выполнения вычислительных и печатных работ;
- Возможность моделирования некоторых переменных и анализа результатов.
Расчёт суммы затрат на текущую эксплуатацию ЛВС.
Рассчитаем капитальные затраты:
К=КАО+ КПО +Кмонтажа ,
где К - капитальные затраты;
КАО - стоимость аппаратного обеспечения;
КПО - стоимость ПО;
Кмонтажа - стоимость монтажа.
Таблица 3.2 - Расчет стоимости монтажа
|
Наименование |
Цена за ед., грн. |
Кол-во |
Стоимость, грн. |
|
Монтаж кабель-канала |
6,00 |
708 |
4248 |
|
Укладка кабеля в кабель-канал |
3,00 |
710 |
2130 |
|
Монтаж розетки |
6,00 |
70 |
420 |
|
Обжим коннектора |
3,00 |
84 |
252 |
|
Настройка рабочей станции Windows SP2b |
60,00 |
62 |
3720 |
|
Генерация сервера |
500,00 |
1 |
500 |
|
Итого |
11270,00 |
Подставляем в формулу числовые значения, получаем сумму капитальных затрат:
К=КАО+ КПО + Кмонтажа = 15732,60 + 90533,2 + 11270,00 = 117535,80 грн.
Т.к. КАО= 15732,60 грн., КПО = 90533,2 грн. (Согласно таблицы 3.1), а Кмонтажа = 11270,00 грн. (Таблица 3.2).
Рассчитаем эксплуатационные расходы на ВС:
Рэ=Рзп+ Ротч+ Рнакл+ Рам+ Рэл
где Рзп - расходы на суммарную заработную плату;
Ротч - расходы по отчислению из заработной платы;
Рнакл - расходы по отчислению из зар. платы на содержание АУП;
Рам - амортизационные отчисления;
Рэл - расходы на электроэнергию в год при использовании ВС.
Рассчитаем затраты Рзп, Ротч и Рнакл .
Таблица 3.3 –Расчет заработной платы и отчислений
|
Статьи затрат |
Сумма(грн.) |
|
Оклад сотрудника |
2000,00 |
|
Зар. Плата с учетом надбавки (25%) |
2000(1+0,25)= 2500 |
|
Начисления из зар. платы (39%) |
975,00 |
|
Итого затраты на зар. Плату (в месяц) |
3475,00 |
|
Итого затраты в год (Рзп) |
41700,00 |
|
Расходы по отчислению (Ротч), отчисления=38% |
15846,00 |
|
Расходы на содержание АУП (Рнакл), нак.расходы=37.5% |
15637,50 |
Рассчитаем затраты на электроэнергию (Рэл )(стоимость 1кВТ/ч=0,5 грн.):
Таблица 3.4 – Затраты на электроэнергию в год
|
Устройство |
Кол-во |
Мощность (Вт*/ч.) |
Время работы Ч/сут. |
Время работы Ч/год |
Мощность (кВт*ч/год) |
Сумма ( руб.) |
|
Рабочая станция |
70 |
400 |
10 |
2700 |
75600 |
37800 |
|
Сервер |
1 |
410 |
12 |
3240 |
1328,4 |
664,2 |
|
Коммутатор |
4 |
200 |
12 |
3240 |
2592 |
1296 |
|
Принтер |
7 |
420 |
5 |
1350 |
3969 |
1984,5 |
|
Итого 41744,70 |
Рассчитаем сумму амортизационных отчислений (норма амортизации 20%).
Рам=106265,8*0,2=21253,16 грн.
Рэ=41700,00+15846,00+15637,50+21253,16+41744,70 = 136181,36 (грн.)
Общая стоимость проекта будет составлять:
Р общ = Рэ + К;
Р общ = 136181,36 + 106265,8 = 242447,16 грн.
Как видим сумма проектируемой сети и стоимости монтажа и обслуживания сети в течении одного года, сумма достаточно велика, но при соединении компьютеров в локальную сеть упрощается множество решаемых задач, в частности, экономятся средства на оборудовании (количество принтеров существенно сокращается), на времени решения поставленных задач (обмен информации через компьютерную сеть, решает вопрос оперативности). Все эти факторы доказывают эффективность предлагаемого внедрения локальной сети на предприятии по разработке программного обеспечения.
4. Охрана труда
Совокупность факторов производственной среды, оказывающей влияние на здоровье и работоспособность человека в процессе труда называется условиями труда. Организация и улучшение условий труда на рабочем месте является одним из важных резервов производительности и эффективности труда.
Основными, при определении условий труда являются следующие вопросы:
- производственный микроклимат помещения;
- производственное освещение;
- воздействие шума и вибрации;
- электромагнитные излучения
- электропожаробезопасность;
- эргонометрические характеристики рабочего места.
4.1 Производственный микроклимат
Нормы производственного микроклимата определяют оптимальные условия для рабочей зоны и нормируются в соответствии с ГОСТ 12.1.005-88 ССБТ (Общие санитарно-гигиенические требования к воздуху рабочей зоны). Контроль параметров воздушной среды осуществляется соответствующими специалистами с помощью следующих приборов:
- термометр (температура воздуха);
- психрометр (относительная влажность);
- анемометр (скорость движения воздуха);
- актинометр (интенсивность теплового излучения);
- газоанализатор (концентрация вредных веществ).
С целью создания комфортных условий труда, для поддержания влажности и оптимальной температуры в помещениях установлены кондиционеры (вентиляция, охлаждение, увлажнение воздуха). Система кондиционирования воздуха обеспечивает поддержание необходимых параметров микроклимата, осуществляет очистку воздуха от пыли и вредных веществ.
4.2 Производственное освещение
Освещение рабочего места - важнейший фактор создания нормальных условий труда. Правильно спроектированное и выполненное освещение обеспечивает высокий уровень работоспособности, оказывает положительное психологическое воздействие на работающего, способствует повышению производительности труда. О важности вопросов производственного освещения говорит и тот факт, что условия деятельности операторов в системе «человек -машина» связаны с явным преобладанием зрительной информации – до 90% общего объема.
Зрительную работу оператора следует отнести к 1-й категории, следовательно, освещенность должна быть не менее 300 лк (в соответствии с ДНБ В 25.28.2006).
По конструктивному выполнению искусственное освещение может быть общим или комбинированным. При общей освещенности все рабочие места получают рабочее освещение от общей установки. Комбинированное освещение наряду с общим включает местное освещение рабочего места. Исходя из требований отсутствия бликов и равномерности освещения, целесообразно выбрать общее искусственное освещение.
В соответствии с ДНБ В 25.28.2006 для искусственного освещения помещений следует применять главным образом люминесцентные лампы, у которых высокая световая отдача, продолжительный срок службы, малая яркость светящейся поверхности, близкий к естественному спектральный состав. Наиболее приемлемы лампы ЛБ (белый свет) и ЛТБ (тепло-белый свет) мощностью 20, 40 или 80 Вт. Система общего искусственного освещения должна быть выполнена потолочными или подвесными лампами, размещенными параллельно светопроемам и равномерно по потолку.
4.2.1 Расчет искусственного освещения
Светотехнические расчеты являются основой при проектировании осветительных установок. Целью расчета является определение нужного светового потока светильников, по которым в справочных таблицах находят наиболее близкое значение мощности стандартной лампы нужного типа. Считается допустимым, если световой поток выбранной стандартной лампы отличается от расчетного не более чем на -10 или +20%.
В данной дипломной работе для организации освещения серверной комнаты (Приложение Ж) нужно рассчитать площадь помещения в соответствии с предоставленным в ТЗ планом, а также основными санитарно гигиеническими нормами и требованиями.
Размер серверной комнаты: длина – 3,0 м, ширина – 5,0 м, высота – 3,0 м; разряд зрительной работы – 4.
Высота подвеса светильника над рабочей поверхностью:
.
(4.1)
Высота помещения
.
Высота рабочей поверхности стола
.
Высота свеса светильника от потолка
.
Итоговая высота подвеса
м
Освещаемая площадь серверной комнаты:
Sмин=15 м2
Индекс помещения серверной комнаты:

С учетом индекса помещения, коэффициентов отражения потолка стен и пола и типа выбранного светильника следует определить коэффициент светового потока η:
η =25
Световой поток
принятой лампы Фл, лм: необходимо выбрать
характеристики, соответствующие типу
лампы - ЛБ: напряжение – 220±22 В,
продолжительность горения – 5200 ч
(минимальная) и 13 000 ч (средняя), световой
поток после 100 ч горения 4800+/–250 лм. Таким
образом, световой поток
лм.
Необходимое количество светильников:
(4.2)
Emin – минимальная освещенность рабочего места оператора, в соответствии со СНиП, Emin=300 лм,
,
(коэффициент затенения для
помещений с фиксированным положением
оператора),
(коэффициент неравномерности
освещения),
-
количество люминесцентных ламп в
светильнике. В данном случае выбран
светильник с двумя люминесцентными
лампами
.
Для серверной комнаты:
≈
4,0
Из расчетов
видно, что для серверной комнаты требуется
минимум 4 светильника типа
.
Полученные значения принимаем к
размещению светильников.
Наилучшими
вариантами размещения светильников в
помещении является шахматное размещение
или расположение светильников по
сторонам квадрата (расстояние
между светильниками в ряду и между
рядами светильников равны) при четном
числе светильников. При размещении
светильников с люминесцентными лампами
последние располагают рядами –
параллельно рядам оборудования или
оконным проемам. Так же могут быть
предусмотрены разрывы между светильниками.
Характеристики выбранного светильника:
Длина


Ширина


Высота


Две лампы типа
мощностью по 80
каждая.
Размеры помещения серверной комнаты – 5х3 м. С учетом характеристик светильника можно получить схему рационального расположения светильников в помещении. Следует воспользоваться разработанной методикой, позволяющей рационально разместить светильники с люминесцентными лампами в помещении. По конструктивным особенностям помещение предусматривает разрывы между светильниками, если невозможно разместить все светильники в один ряд:
,
(4.3)
где
,
-
длина светильника,
,
-
общая суммарная длина светильников,
расположенных в ряд.
Для серверной комнаты:
LΣ = 4·1.4=5,6 м >5 м
Таким образом, из анализа величины LΣ следует, рациональным будет размещение светильников в серверной комнате в два ряда по 2 светильника в каждом.
Рассчитанную систему можно проектировать.
4.2.2 Расчет естественного освещения помещений
Освещение производственных помещений влияет на состояние здоровья, продуктивность работы, качество продукции и уровень производственного травматизма. Организация правильного освещения рабочих мест, зон обработки и производственных помещений имеет большое санитарно-гигиеническое значение, способствует повышению продуктивности работы, снижения травматизма, улучшения качества выполняемых работ. И наоборот, недостаточное освещение усложняет исполнения технологического процесса и может быть причиной несчастного случая и заболевания органов зрения.
Освещение должно удовлетворять основные требования:
- быть равномерным и довольно сильным;
- не создавать различных теней на местах работы, контрастов между освещенным рабочем местом и окружающей обстановкой;
- не создавать ненужной яркости и блеска в поле зрения работников;
- давать правильное направление светового потока.
Все производственные помещения необходимо иметь светлопрорезы, которые дают достаточное естественное освещение. Без природного освещения могут быть конференц-залы заседаний, выставочные залы, раздевалки, санитарно-бытовые помещения, помещения ожидания медицинских учреждений, помещений личной гигиены, коридоры и проходы.
Коэффициент естественного освещения в соответствии с ДНБ В 25.28.2006, для III пояса светового климата составляет 1,5.
Исходя из этого произведем расчет необходимой площади оконных проемов.
Расчет площади окон при боковом освещении определяется, по формуле:
Sо = (Ln*Кз.*N0*Sn*Кзд.)/(100 *T0*r1) (4.4)
где Ln – нормированное значение КЕО;
Кз – коэффициент запаса (равен 1,2);
N0 – световая характеристика окон;
Sn – площадь достаточного естественного освещения;
Кзд. – коэффициент, учитывающий затенение окон противостоящими зданиями;
r1 – коэффициент, учитывающий повышение КЕО при боковом освещении;
T0 – общий коэффициент светопропускания, который рассчитывается по формуле:
T0 = T1 * T2 * T3 * T4 * T5, (4.5)
где T1 – коэффициент светопропускания материала;
T2 – коэффициент, учитывающий потери света в переплетах светопроема;
T3 – коэффициент, учитывающий потери света в несущих конструкциях;
T4 – коэффициент, учитывающий потери света в солнцезащитный устройствах;
T5 – коэффициент, учитывающий потери света в защитной сетке, устанавливаемой под фонарями, принимается равным 1.
Теперь следует рассчитать боковое освещение для зоны, примыкающей к наружной стене. По разряду зрительной работы нужно определить значение КЕО. КЕО = 1,5 нормированное значение КЕО с учетом светового климата необходимо вычислить по формуле
Ln=l*m*c, (4.6)
где l – значение КЕО (l=1.5);
m – коэффициент светового климата (m=1);
c – коэффициент солнечности климата (c=1)
Ln=1,5
Теперь следует определить отношение длины помещения Ln к глубине помещения B для серверной комнаты:
Ln/B=5/3 =1,6
Отношение глубины помещения В к высоте от уровня условной рабочей поверхности до верха окна H2 (в данном случае H2=0,3) для серверной комнаты:
B/H2=5/0,3 = 16,6.
Световая характеристика световых проемов N0=9.
Кзд=1
Значение T0=0,8*0,7*1*1*1=0,56.
Ln для 4 разряда зрительных работ равен 1,5 при мытье окон два раза в год.
Определяем r1, r1=1,5.
Кз.=1,2.
Теперь следует определить значение Sп для серверной комнаты:
Sп=Ln*В=5*3=15 м2.
Кзд.=1.
На данном этапе следует рассчитать необходимую площадь оконных проемов для каждого помещения:
Sо = (Ln* Кз.*N0*Sn*Кзд.) / (100*T0*r1) (4.7)
Sо = (1,5*1,2*9*15*1)/(100*0,56*1,5)=243/84= 2,89 м2;
Принимаем количество окон 1 штука:
S1=2,89 м2 площадь одного окна
Высота одного окна составляет – 1,5 м, ширина 2,0 м.
4.3 Расчет вентиляции
В зависимости от способа перемещения воздуха вентиляция бывает естественная и принудительная.
Параметры воздуха, поступающего в приемные отверстия и проемы местных отсосов технологических и других устройств, которые расположены в рабочей зоне, следует принимать в соответствии с ГОСТ 12.1.005-76. При размерах помещения 3 на 5 метров и высоте 3 метра, его объем 45 куб.м. Следовательно, вентиляция должна обеспечивать расход воздуха в 90 куб.м/час. В летнее время следует предусмотреть установку кондиционера с целью избежания превышения температуры в помещении для устойчивой работы оборудования. Необходимо уделить должное внимание количеству пыли в воздухе, так как это непосредственно влияет на надежность и ресурс эксплуатации ЭВМ.
Мощность (точнее мощность охлаждения) кондиционера является главной его характеристикой, от неё зависит на какой объем помещения он рассчитан. Для ориентировочных расчетов берется 1 кВт на 10 м2 при высоте потолков 2,8 – 3 м (в соответствии со СНиП 2.04.05-86 "Отопление, вентиляция и кондиционирование").
Для расчета теплопритоков данного помещения использована упрощенная методика:
Q=S·h·q (4.8)
где:Q – Теплопритоки;
S – Площадь помещения;
h – Высота помещения;
q – Коэффициент равный 30-40 вт/м3 (в данном случае 35 вт/м3)
Для данного проекта будет целесообразным использование отдельного кондиционера для каждой комнаты, поэтому, соответственно, и расчеты следует проводить для каждой комнаты в отдельности.
Для серверной комнаты теплопритоки будут составлять:
Q=15·3·35=1575 Вт.
Кроме этого следует учитывать тепловыделение от оргтехники и людей, считается (в соответствии со СНиП 2.04.05-86 "Отопление, вентиляция и кондиционирование") что в спокойном состоянии человек выделяет 0,1 кВт тепла, компьютер или копировальный аппарат 0,3 кВт, прибавив эти значения к общим теплопритокам можно получить необходимую мощность охлаждения.
Qдоп=(H·Sопер)+(С·Sкомп)+(P·Sпринт) (4.9)
где:Qдоп – Сумма дополнительных теплопритоков;
C – Тепловыделение компьютера;
H – Тепловыделение оператора;
D – Тепловыделение принтера;
Sкомп – Количество рабочих станций;
Sпринт – Количество принтеров;
Sопер – Количество операторов.
Дополнительные теплопритоки для серверной комнаты:
Qдоп1=(0,1·1)+(0,3·1)+(0,3·1)=0,7;
Итого сумма теплопритоков равна:
Qобщ1=1575+700=2275 (Вт).
В соответствии с данными расчетами необходимо выбрать целесообразную мощность и количество кондиционеров.
Для серверной комнаты будем использовать кондиционер с номинальной мощностью 2,5 кВт.
4.4 Организация и расчет отопления
Отопление предназначено для обеспечения температурных условий в помещении соответственно требований санитарных норм в холодное и переходное времена года. Обогреваться может все помещение, а также отдельные рабочие места.
Отопительные системы состоят из таких основных элементов: генератор тепла – установка, в которой тепло, полученное за счет горения или преобразованное электрической силой передается воде, пару, воздуху, нагревательные приборы, которые передают тепло воздуху, трубопроводы, по которым теплоносители передаются от генератора к нагревательным приборам.
При водяном отоплении теплоносителем являеется нагретая вода температурой до 100оС и выше. В паровых системах теплоноситель – пар – перемещается к отопительным приборам под собственным давлением.
Теплоноситель в воздушных системах – этот горячий воздух, который нагревается в калорифере, по строению различают центральное или местное воздушное отопление. В центральных системах нагретый воздух подается к помещениям по трубопроводам. Из существующих систем центрального отопления самым распространненым является система водяного отопления низкого давления. Она имеет такие санитарно-гигиенические и эксплуатационные свойства: возможность регуляции теплоотдачи отопительных приборов в зависимости от температуры внешнего воздуха, изменения температуры или расходы горячей воды; пожарная безопасность; долговечность системы (срок эксплуатации 30-50 лет); возможность размещения отопительных приборов вдоль внешних стен и под окнами; простота эксплуатации.
Эти системы используют преимущественно для отопления бытовых и общественных помещений.
Системы водяного отопления высокого давления используют для отопления производственных помещений. В таких системах температура воды составляет 130-145оС. Относительно санитарно-гигиенических характеристик водяного отопления высокого давления, то они уступают системам низкого давления.
Для отопления общественных зданий также применяют комбинируемые пароводяные системы.
Чтоб предотвратить проникновение холодного воздуха к помещениям, ворота, двери или технологические прорези оборудуют воздушными или воздушно-тепловыми завесами.
Расчет потери воды (в соответствии со СНиП 2.04.05-86 "Отопление, вентиляция и кондиционирование") содержит в себе такие разделы: производственные потребности и отопление.
Потери воды на производственные нужды рассчитываются:
Qп =((40·N+1,5·S)·1,2·Др)/1000 м3, (4.10)
где N – количество человек, N=1,
Др. – дни роботы за год, Др.=240 дня
S =15 м2
Qп = ((40·1+1,5·15) ·1,2·240)/1000 = 18 м3
Расчет отопления.
Годовая потребность пара на отопление рассчитывается по формуле:
Qo = ((gT·t·V)/(E·1000)) ·2,826 м3 (4.11)
где gт – расходы тепла на 1 м3 помещение, gт = 30, ккал/год;
t – количество часов отопления, t = 240·24 = 5760 час;
V – объем сооружения, V = S·H = 15∙3 = 45 м3;
Е – теплота испарения, Е = 540, Гкал/год.
Qo = ((30·5760·45)/(540·1000) ·2,682=5,37 м3
4.5 Воздействие шума
Шум - всякий нежелательный для человека звук, мешающий восприятию полезных сигналов. Для измерения шума служат шумомеры типа ШВК с фильтром ФЭ-2, а так же виброакустическая аппаратура типа RFT. Нормативным документом является ГОСТ 12.1.003-83 ССБТ.
Допустимые уровни звукового давления, уровни звука и эквивалентные им уровни шума на рабочем месте не должны превышать 20 дБ, что является областью звукового комфорта.
Источниками шума в рассматриваемых помещениях являются кондиционер, компьютер, принтер. Уровень шума - порядка 20 дБ, что не превышает допустимых уровней.
Внешний шум и вибрации в рассматриваемом помещении отсутствуют практически полностью, так как отделка выполнена с учетом требований звукоизоляции.
4.6 Электромагнитные излучения
Мониторы являются основным источником различных видов излучений (электромагнитного, ионизирующего, неионизирующего) и статического электричества. Электронно-лучевая трубка (ЭЛТ) монитора является потенциальным источником рентгеновского излучения.
В данном случае на рабочем месте установлен ПК типа IBM-PC с монитором 17" LG L1742S-SF . Монитор удовлетворяет стандарту ТСО 92.95.99 и MPR – II.
Тем не менее, в течение рабочего дня необходимо равномерно распределять и чередовать различную по степени напряженности нагрузку (ввод данных, редактирование программ, печать документов или чтение информации с экрана). При этом непрерывная работа за монитором не должна превышать четырех часов при 8 часовом рабочем дне, а количество обрабатываемых символов (знаков) 30 тыс. за 4 часа работы.
Таким образом, при использовании вышеуказанной аппаратуры и соблюдении изложенных требований условия работы за дисплеем выполнены в соответствии с основными требованиями санитарных норм и правил.
4.7 Электропожаробезопасность
Для обеспечения электробезопасности в помещении должны проверены следующие показатели:
- соответствие напряжения в сети тому на которое рассчитан ПК;
- наличие защитного заземления;
- меры защиты от перепадов в сети.
Приборы, находящиеся в помещении работают от номинального напряжения 220 В. В нашем случае применим заземление с изолированной нейтралью. Заземление выведено на заземляющий контур с сопротивлением 4 Ома. Заземление дисплеев осуществляется через системный блок ЭВМ.
Соединение ПК с сетью выполнено с помощью трехжильного медного силового кабеля с вилкой, имеющей клеммы заземления. Все провода в рабочем помещении имеют характеристики, соответствующие токам и напряжениям в сети.
При эксплуатации ЭВМ возможны возникновения следующих аварийных ситуаций:
- короткие замыкания;
- перегрузки;
- повышение переходных сопротивлений в электрических контактах;
- перенапряжение;
- возникновение токов утечки.
Обязательно наличие порошкового огнетушителя в помещении серверной станции.
4.8 Эргонометрические характеристики рабочего места
Большое значение в создании оптимальных условий труда имеет планировка рабочего места, которая должна удовлетворять требованиям удобства выполнения работ, экономии энергии и времени оператора.
Сидячая продолжительная работа вредна человеку в принципе: работник сутулится или подается вперед и его позвоночник деформируется, травмируя диски; он поднимает плечи и сгибает руки, держа их в напряжении - и естественно они начинают болеть. Пережимая сосуды, он перегружает сердце; ну а о хронических растяжениях сухожилий кистей рук и постоянно ухудшающемся зрении можно не говорить. Поза, а следовательно и здоровье, зависят, в конечном итоге, от размеров и дизайна рабочего места.
Рабочее пространство.
Научная
организация рабочего пространства
(Рис.4.1) базируется на данных о средней
зоне охвата рук человека - 35-40 см. Ближней
зоне соответствует область, охватываемая
рукой с прижатым к туловищу локтем,
дальней зоне - область вытянутой руки.
Тонкой линией изображено фактическое
положение монитора на рабочем столе
сотрудника – на углу стола с левой
стороны. Это приводит к значительному
неудобству при работе. При работе с
компьютером приходится постоянно
поворачивать г
олову
влево, что ведет к усталости шейных
мышц.
Рисунок 4.1- Организация рабочего пространства
Внутренний объем.
З
начимым
фактором является пространство под
столешницей. Высота столов, использующихся
на предприятии соответствует общепринятым
стандартам, и составляет 74 см. Конструкция
столов обеспечивает требования СанПин
2.2.2.542-96 по ширине и высоте необходимого
пространства для ног.
Рисунок 4.2 - Необходимое пространство для ног
Взаимное расположение предметов на рабочем месте :
1 - угол обзора по вертикали, 35
2 - угол наклона клавиатуры, 10
H2 - высота рабочей поверхности, 79 см
H3 - высота сиденья стула, регулируется под конкретного человека
h3 - расстояние от края стола до клавиатуры, 10 см
h4 - расстояние от органов зрения оператора до экрана, 65 см
Взгляд человека направлен перпендикулярно центру экрана монитора.
При компоновке рабочего места не следует забывать о том, что наиболее важные из орудий труда следует располагать спереди и справа от человека.
Клавиатура, как наиболее часто используемое устройство ввода. Параметры этой зоны: угол - 70, глубина - 30-40 см.
Остальные устройства - угол - 130 градусов, глубина 70-80 см.
С учетом выше приведенных данных об углах обзора, а так же зная максимальный размер зоны досягаемости правой руки (70-100 см), можно считать, что расположение рабочих предметов в моторном поле правильное.
Выводы
В данном дипломном проекте были сформулированы технико-экономическое обоснование проектирования ЛВС, спроектирована структурная схема и схема прокладки кабеля ЛВС, спланировали информационную безопасность и произвели экономические расчеты.
В связи с тем, что оптимальное функционирование предприятия по разработке программного обеспечения возможно лишь при условии существования локальной сети, то в результате анализа необходимо было спроектировать такую структуру локальной сети, при которой бы обеспечивалась совместная обработка информации, совместное использование файлов, централизованное управление компьютерами, контроль за доступом к информации, централизованное копирование всех данных, совместный доступ в Интернет.
Так как работники предприятия по разработке программного обеспечения могут воспользоваться либо всеми ресурсами сети, либо только их частью, мною было произведено деление доступа на категории. Для каждой категории пользователей был выделен определенный перечень функций и прав доступа.
Далее была разработана конфигурация сети, которая удовлетворяет критериям по быстродействию, надежности, информационной безопасности.
Технология Fast Ethernet отвечает всем требованиям и подходит для данной сети. Используется топология звезда, в которой каждый компьютер через специальный сетевой адаптер (с пропусной способностью 100 Mbit/s) подключается отдельным кабелем к объеденяещему устройству. За счет этого обеспечивается защита от разрыва кабеля, т.е. если кабель рабочей станции будет поврежден, это не приведет к выходу из строя всего сегмента сети, что обеспечивает надежность всей сети. В данном случае используется недорогой кабель типа витая пара.
В локальную сеть объединены следующие устройства:
рабочие станции;
серверная станция;
коммутаторы;
сетевые принтеры;
ОС сервера Windows Server 2003;
ОС рабочей станции Windows XP SP2.
Была разработана схема прокладки кабеля - внутренняя и внешняя прокладка кабеля. Внутренняя прокладка осуществляется в коридоре под коммутационными панелями. Внешняя проводка проводится в самих комнатах с помощью коробов из пластика в 10 см над плинтусом. Огибание кабеля рядом с дверьми делается с помощью желоба.
Для защиты информации в сети рекомендуется устанавливать бездисковые компьютеры; ограничить доступ паролями и ключами активации, затем информацию нужно зашифровать; установить антивирусы на все рабочие станции и особенно на сервер.
В будущем нужно будет обменять старые компьютеры на новые или увеличить их, то при выбранной конфигурации, нужно только поменять коммутаторы или добавить последние. При моделировании видно, что соединение в 100 Мбит/сек, используется не на всю мощность, что позволяет развивать и увеличивать сеть, не задумываясь о скорости передачи.
Локальная компьютерная сеть на предприятии по разработке компьютерного обеспечения вносит множество решаемых вопросов, как оперативность и надежность.
Произведен расчет затрат на проектирование, расширение, эксплуатацию и монтаж локальной компьютерной сети на предприятии, а также анализ ее функционирования.
В разделе охраны труда был произведен расчет отопления, вентиляции, естественного и искусственного освещений. Сравнив их с нормативными значениями, сделан вывод, что все нормы охраны труда соблюдаются.
Список источников
1. Сергеев, А. П., "Офисные локальные сети. Самоучитель"- М.: "Вильямс", 2003. - 320 с.
2. Рошан, Педжман, Лиэри, Джонатан "Основы построения беспроводных локальных сетей стандарта 802.11": Пер. англ. - М.: "Вильямс", 2004. - 304с.
3. Прайс-лист с ценами на сетевое оборудование -http://www.nl.com.ru/index.php
4. Цены на ОS Windows - http://www.rarus.nn.ru/prices/ms/index.htm
5. Прайс-лист с ценами на сетевое оборудование - http://www.rnd.sunrise.ru/catalog.asp?reg=4
6. Расчет количества кабеля - http://www.networkmaster.ru/fparticle.php?cat=8&sort=0&id=93
7. Коммутаторы - http://dlink.ru/products/switches.php
8. Каталог операционных систем фирмы Microsoft - http://www.usk.ru/catalog/4/category-item.html
9. Направленная внешняя антенна - http://dlink.ru/products/prodview.php?type=17&id=229
10.ГОСТ 12.3.002-75-ССБТ. Процессы производственные. Общие требования безопасности (с изменениями по И-1-V-80; И-2-II-91).
11.Минаев И.Я. Локальная сеть своими руками. 100% Самоучитель – М., ТЕХНОЛОГИИ- 3000, 2004 – 368 с.
12.ГОСТ 12.1.005-88-ССБТ. Общие санитарно-гигиенические требования к воздуху рабочей зоны.
13.СНиП 2.04.05 – 91 – Отопление, вентиляция, кондиционирование (с изменениями по И-1-94).
14. ГОСТ 12.1.003 – 88 – ССБТ. Общие санитарно-гигиенические требования к воздуху рабочей зоны.
15.СНиП 23-05-95. Естественное и искусственное освещение. – К.: Держстандарт, 2005 – 129с.
16. СанПин 2.2.2.542-96. Гигиенические требования к видеодисплейным терминалам, персональным электронно–вычислительным машинам и организация работы (Постановление Держнагляду от 14.07.1996г. №14). Санитарные правила и нормы. – К.: Информационно-издательский центр Дерстандарт, 1996.
17.Холмогоров В. Компьютерная сеть своими руками. Самоучитель – СПб, Питер, 2009 – 171с.
18.Сергеев А.П. Офисные локальные сети. Самоучитель – М., Вильямс, 2006 – 320с.
19.Кульгин М.С. Компьютерные сети. Практика построения – СПб, Питер, 2007 – 462с.
20.Жидецкий В.Ц., Джигирей В.С., Мельников А.В. Основы охраны труда. Учебник – Львов, Афиша, 2000 – 351с.
21. Компьютерные сети. Принципы, технологии, протоколы: Учебник для вузов 2-е издание./ В.Г. Олифер, Н.А. Олифер. - Спб.: Питер,2009. - 864 с.:ил.
22. www.ixbt.ru
23. http://ermak.cs.nstu.ru
24. Ю.А.Кулаков, Г.М.Луцкий ”Компьютерные сети” М. – К. “Юниор”, 2008. – 384с.
Приложение А
Сравнительный анализ топологий локально-вычислительных сетей
|
Характеристики |
Топологии вычислительных сетей |
||
|
Звезда |
Кольцо |
Шина |
|
|
Стоимость расширения |
Незначительная |
Средняя |
Средняя |
|
Присоединение абонентов |
Пассивное |
Активное |
Пассивное |
|
Защита от отказов |
Незначительная |
Незначительная |
Высокая |
|
Размеры системы |
Любые |
Любые |
Ограниченны |
|
Защищенность от прослушивания |
Хорошая |
Хорошая |
Незначительная |
|
Стоимость подключения |
Незначительная |
Незначительная |
Высокая |
|
Поведение системы при высоких нагрузках |
Хорошее |
Удовлетворительное |
Плохое |
|
Возможность работы в реальном режиме времени |
Очень хорошая |
Хорошая |
Плохая |
|
Разводка кабеля |
Хорошая |
Удовлетворительная |
Хорошая |
|
Обслуживание |
Очень хорошее |
Среднее |
Среднее |
Приложение Б
Сравнительный анализ технологий локально-вычислительных сетей
|
Характеристики |
Методы передачи информации |
||
|
Ethernet |
Token Ring |
ArcNet |
|
|
Топология |
Локальная типа «шина» |
Кольцевая или типа «звезда-кольцо» |
Наборы сегментов типа «звезда» |
|
Тип кабеля |
RG–58 |
Экранированная или не-экранированная витая пара |
RG–62 или RG–59 |
|
Импеданс |
50 Ом |
— |
— |
|
Сопротивление терминаторов |
50 Ом, ± 2 Ом |
100 – 200 Ом UTP, 150 Ом TP |
RG–59: 75 Ом RG–62: 93 Ом |
|
Максимальная длина кабеля в сегменте |
185 м |
45 – 200 м (в зависимости от используемого кабеля) |
В среднем: W–W: 120 м A–A: 606 м P–W или P–A: 30 м |
|
Минимальный промежуток между компьютерами |
0,5 м |
2,5 м |
В зависимости от используемого кабеля |
|
Максимальное количество сегментов |
5 |
33 устройства MAU |
Не поддерживает соединения сегментов |
|
Максимальное количество компьютеров в сегменте |
30 |
Неэкранированная овитая пара: 72 рабочих станции, Экранированной витая пара: 260 рабочих станций |
В зависимсти от используемого кабеля |
Приложение В
Сравнительный анализ сетевых операционных систем
|
Характеристика |
Сетевая операционная система |
||
|
Windows 2000 |
Windows NT |
Windows Server 2003 |
|
|
Производительность |
++ |
+ |
+++ |
|
Тип процессора |
Pentium 200Мгц (лучше 350Мгц) |
Pentium 200Mгц и выше |
1,4 ГГц (процессор с архитектурой x64) или Intel Itanium 2. |
|
Объём ОЗУ необходимый для нормальной работы |
128Мб (лучше 256 или 512Мб) |
16Мб (лучше 24Мб) |
8 Гбайт |
|
Необходимый для инсталяции объём на жёстком диске |
900Мб |
50Мб |
32 Гбайт |
|
Совместимость с другими типами сетей |
+ |
+ |
+ |
|
Разрядность |
32 бит |
32 бит |
32/64 бит |
|
Многозадачность |
+ |
+ |
+ |
|
Защита и надёжность |
Система аутэтенди-фикации, система прослеживания тран-закций, поддержка протокола безопас-ности IP Security Protocol зеркализация дисков, поддержи-вает кластеризацию с интегрированной балансировкой нагрузки, контроль сигналов от UPS |
Система аутэтендификации, файловая система основанная на транзакциях, поддержка RAID 5 уровня, возможность распознавания сигналов от UPS |
Система аутэтендификации, система прослеживания транзакций, зеркализация дисков, «горячее» резервирование дорожек диска, каналов и целых серверов, контроль сигналов от UPS |
|
Простота управления |
+++ |
++ |
+++ |
|
Интерфейс |
Графический |
Графический |
Графический |
|
Простота установки |
+++ |
++ |
+++ |
Приложение Г
Логическая схема сети

Приложение Д
План помещений и размещения оборудования сети (четвертый этаж)

Приложение Ж
План помещений и размещения оборудования сети (третий этаж)

Приложение И
План помещений и размещения оборудования сети (второй этаж)

Приложение К
План помещений и размещения оборудования сети (первый этаж)

Приложение Л
План помещений и размещения оборудования сети (второй корпус - производственный отдел)
