Передающее устройство для оптической сети
3. Выбор и обоснование структурной
схемы передатчика
3.1. Методы построения структурных схем одно-волоконных оптических систем передачи
Как упоминалось в предыдущей главе, на сетях связи находят широкое применение волоконнооптические системы передачи со спектральным уплотнением. Кроме того, на низких скоростях передачи, до 140 Мбит\сБ где наблюдается взаимодействие между противонаправленными сигналами из-за обратного рассеяния, могут быть эффективно использованы системы с разделением по времени.
Ниже рассмотрены несколько методов и схем построения одно-волоконных оптических систем передачи различных типов и различного назначения.
Волоконнооптические системы передачи на основе различных способов разветвления
оптических сигналов.
Данная группа схем включает в себя одноволоконные оптические системы передачи с оптическими разветвителями, с оптическими циркуля-торами, устройствами спектрального уплотнения, а также фильтрами разделения мод оптического излучения. На рисунке 3.1 показана схема оптической системы передачи с модуляцией сигнала по интенсивности, содержащая блоки оптического передатчика (ОП), оптического приемника (ОП) устройства соединения станционного и линейного кабеля (УССЛК), разъемные соединители (РС), устройства объединения и разветвления оптических сигналов (УОРС).
Оптический передатчик (ОП) содержит преобразователь кода (ПК), преобразующий стыковой код в код, используемый в линии; усилитель (УC), усиливающий электрический сигнал до уровня, необходимого для модуляции полупроводникового лазера (ПЛ); лазерный генератор (ЛГ), включающий в себя устройство термостабилизации и прямой модулятор; согласующие устройства (С) полупроводникового лазера с оптическим волокном.
Оптический приёмник (ОПр) содержит согласующие устройства (С) оптического волокна с фотодиодом; фотодетектор (ФД); малошумящий транзисторный усилитель (У); фильтр (Ф), формирующий частотную характеристику приёмника, обеспечивающую квазиоптимальный приём сигнала; устройство линейной коррекции (ЛК), компенсирующее частотные

искажения электрической цепи на стыке фотодиода и первого транзистора усилителя; решающее устройство (РУ), устройство выделения тактовой частоты (ВТЧ) и преобразователь кода (ПК), преобразующий код линии в стыковой код.
Устройства объединения и разветвления оптических сигналов, в зависимости от типа одноволоконной оптической системы передачи, может представлять собой: оптический разветвитель или циркулятор при работе на одной оптической частоте в обоих направлениях; устройство спектрального уплотнения при работе на разных оптических частотах; модовый фильтр при работе на разных модах излучения оптического волокна.
С целью оценки основных характеристик одноволоконной оптической системы передачи можно использовать приближенные соотношения для расчета длины регенерационного участка (РУ).
М
аксимальная
длина регенерационного участка
волоконнооптической системы передачи
данного типа определяется соотношением:
где Эми – энергетический потенциал одноволоконной оптической системы передачи , ДБ;
ов – затухание сигнала на одном километре оптического волокна, ДБ/км;
уорс- то же, в устройстве объединения и разветвления сигналов, ДБ;
усслк – то же, в УССЛК, ДБ;
рс, нс – то же, в разъемных и неразъемных соединителях, ДБ;
l
с – строительная длина оптического
кабеля, км. При этом:
где Эми’ – энергетический потенциал, ДБ, волоконнооптическая система передачи при отсутствии шума обратного рассеяния излучения в оптическом волокне;
Ршор/Рш – доля шума обратного рассеяния в полном шуме на входе решающего устройства.
Рассчитаем длину регенерационного участка одноволоконной оптической системы передачи первого типа при следующих исходных данных: Эми=35 ДБ, Зэ=6 ДБ, ов=1 ДБ, нс=усслк=0.1 ДБ, рс=1 ДБ, lс=2 км. Так по формуле (2.1), при использовании оптических разветвителей с уорс=4ДБ:
Волоконнооптическая система передачи, основанная на использовании разделения разнонаправленных
сигналов по времени.
Во второй группе схем для разделения разнонаправленных сигналов по времени используются оптические разветвители, переключатели и оптические усилители (ОУ). В схеме одноволоконной оптической системы передачи сигнала с модуляцией по интенсивности, в отличие от первой группы схем, вместо устройства объединения и разветвления оптических сигналов использованы устройства оптического переключения УОП (рисунок 3.2).

Будем рассматривать устройства оптического переключения двух вариантов – оптические переключатели (П) и соединение оптического разветвителя ОР с оптическим усилителем ОУ. Управляющий сигнал поступает в первом случае на управляющий вход переключателя, во втором – по цепи управления направлением оптической волны накачки оптического усилителя.
Максимальная длина регенерационного участка для второй группы схем определяется соотношением:
,
где
уоп
– затухание сигнала в УОП, ДБ;
Эми” – энергетический потенциал одноволоконнооптической системы передачи , определяемый соотношениями:
Эми”=Эми’ при использовании оптических переключателей (Эми’–
энергетический потенциал обычной волоконнооптической системы
передачи с учётом специального кодирования).
Эми”=Эми’-10lg(1+Ршоу/РШ) при использовании оптического разветвителя с оптическим усилителем, где Ршор и Рш – мощности эквивалентного шума на входе оптического приемника и шума оптического усилителя на его выходе, ДБ.
Затухание сигнала в устройстве оптического переключения определяется соотношениями:
уоп=п при использовании оптического переключателя, где п – затухание сигнала в оптическом переключателе;
уоп=ор-Коу при использовании оптического разветвителя с оптическим усилителем, где Коу – коэффициент усиления ОУ, ДБ.
Длина регенерационного участка l2 для приведённых выше значений параметров аппаратуры и использовании оптических переключателей (уоп=3.5ДБ), согласно формуле (2.3), составляет:

На стоимость одноволоконнооптической системы передачи второй группы существенно влияет выбор типа устройства оптического переключения, особенно в случае использования оптических усилителей. Надежность волоконнооптической системы передачи этой группы, в отличие от рассмотренной выше, существенно зависит от надежности устройства оптического переключения в случае применения оптического усилителя, так как для накачки таких усилителей применяются полупроводниковые лазеры.
Волоконнооптическая система передачи, на основе использования различных видов модуляции.
Третья группа схем одноволоконных оптических систем передачи основана на использовании разных видов модуляции оптических и электрических сигналов. И соответствующих методов обработки сигналов с целью устранения взаимного влияния разнонаправленных сигналов.
В схеме этой группы (рисунок 3.3) применены когерентные методы передачи и приема оптического сигнала, амплитудная (для одного направления передачи) и частотная (для другого направления) модуляция сигнала. В отличие от волоконнооптической системы передачи первой группы (рисунок 3.1), оптические передатчики – когерентные (КОП) и содержат системы стабилизации оптической частоты и формирования узкой линии излучения (СЧУЛ) и блоки, обеспечивающие обработку сигналов с заданной модуляцией.

В когерентных оптических приемниках (КОПр) используется местный лазерный генератор (МЛГ) с узкой линией излучения и устройство автоматической подстройки его частоты (АПЧ), оптический сумматор (ОС), усилитель промежуточной частоты (УПЧ), а также демодулятор (ДМ), амплитудный или частотный, в зависимости от вида модуляции принимаемого сигнала. В такой схеме достигается максимальная длина регенерационного участка.
Кроме того возможна другая схема одноволоконной оптической системы передачи третьей группы, в которой в одном направлении передачи использована модуляция по интенсивности, а в другом – когерентная модуляция (КОИ-АМ или КОИ-ЧМ) оптического сигнала.
На рисунке 3.4 приведена схема, в которой использована модуляция по интенсивности оптических сигналов электрическими сигналами, описываемыми ортогональными (на тактовом интервале) функциями. В отличие от волокон-нооптической системы передачи первой группы (рисунок 3.1), оптические передатчики таких систем содержат генераторы ортогональных сигналов (ГОС1 и ГОС2), а в оптических приёмниках использованы корреляционные демодуляторы (КДМ). Для подстройки генератора ГОС2 используется выделитель ортогонального сигнала (ВОС) и компаратор (КОМ).

Для передачи информационного сигнала может быть использована поднесущая частота, расположенная выше диапазона частот, где несущественно влияние обратного рассеяния в оптическом волокне на характеристики одноволоконной оптической системы передачи (выше 200 Мгц). Таким образом, устраняется шум обратного рассеяния и тем самым повышается энергетический потенциал. В отличие от волоконнооптической системы передачи первой группы, в данной системе используются генераторы поднесущей частоты, полосовые фильтры и устройства восстановления поднесущей частоты.
Максимальная длина регенерационного участка одноволоконной оптической системы передачи третьей группы определяется выражением:
г
де:
n=11;22;33;
Э11’=Экои-ам, Э22’=Экои-чм, Э33’=Эми’ – энергетический потенциал когерентных волоконнооптической системы передачи с амплитудной и частотной модуляцией и волоконнооптической системы передачи с модуляцией по интенсивности.
В отличие от рассмотренных выше одноволоконных оптических систем передачи первой и второй групп, системы данной группы могут быть несимметричными, а максимальные длины регенерационных участков для передачи в разных направлениях – различными. В частности Э11’больше Э33’ на 10..15 ДБ, а Э22’ больше Э11’ на 3 ДБ.
Длина регенерационного участка для направления передачи, где используется КОИ-АМ (Э11’=45ДБ) составляет:
Стоимость когерентных полупроводниковых лазеров и систем стабилизации частоты лазеров, используемых в волоконнооптических системах передачи третьей группы, пока ещё высока, что в значительной степени ограничивает область применения одноволоконных оптических системах передачи с использованием когерентных методов передачи и обработки сигнала. Показатели надежности определяются главным образом надежностью работы полупроводниковых лазеров и систем стабилизации их частоты.
Волоконнооптическая система передачи с одним
источником излучения.
В особых условиях эксплуатации могут быть использованы методы построения одноволоконных оптических систем передачи по схеме на рис.3.5 В оптическом передатчике на одном конце линии вместо полупроводникового лазера используется модулятор отраженного излучения (МОИ), устройство снятия модуляции (УСМ) и оптический разветвитель с большим отношением мощности на выходах 1 и 2. Большая мощность поступает в модулятор отраженного излучения, а меньшая – в оптический приёмник. В оптическом передатчике принятый сигнал подвергается модуляции вторым информационным сигналом. И через устройство объединения и разветвления оптических сигналов (УОРС) поступает в оптический кабель и далее в оптический приёмник на другом конце линии.

Такие волоконнооптические системы передачи могут быть использованы в экстремальных условиях эксплуатации на одном конце линии, так как полупроводниковые лазеры чрезвычайно чувствительны к нестабильности условий эксплуатации.
Максимальная длина регенерационного участка рассматриваемой одноволоконнооптической системы передачи значительно меньше, чем у систем, описанных выше, и определяется соотношением:
Где ор1, мои – соответственно затухание сигнала в оптическом разветвителе на выходе 1 и в модулятор отраженного излучения, ДБ.
Длина l4 для ор1=1 ДБ, мои=3 ДБ и приведенных в пункте 2.1.1 значений других параметров аппаратуры согласно формуле (2.6) составляет:
П
оказатели
надежности одноволоконной оптической
системы в данном случае определяются
главным образом надежностью оптоэлектронных
элементов оборудования, находящегося
в экстремальных условиях эксплуатации.
3.2.Окончательный выбор структурной схемы передатчика.
Выбор способа организации одноволоконного оптического тракта.
При проектировании одноволоконных оптических систем передачи с оптимальными характеристиками выбор структурной схемы системы и используемых технических средств определяется критериями оптимальности. Если критерием является минимальная стоимость, то в оптимальной системе должны использоваться оптические разветвители.
Максимальная длина регенерационного участка требует применения оптических циркуляторов, переключателей, оптических усилителей, когерентных методов передачи сигнала. Требования высокой надежности и стойкости к внешним воздействиям определяют выбор системы с оптическим источником на одном конце линии, а требование максимального объема передаваемой информации – системы со спектральным уплотнением или с когерентными методами передачи.
С учётом того, что проектируемый оптический передатчик предназначен для использования на соединительных линиях городской телефонной сети, для него характерны следующие критерии оптимальности:
- Стоимость и простота реализации;
- Длина регенерационного участка не менее 8 км;
- Относительно низкая скорость передачи (8.5 Мбит\с).
Наилучшим вариантом реализации одноволоконной оптической системы передачи, с точки зрения приведённых критериев оптимальности, является схема волоконнооптической системы связи с модуляцией по интенсивности, с применением оптических разветвителей (рисунок 3.1). Данная схема отличается простотой реализации оптического передатчика и приемника, невысокой стоимостью устройств объединения и разветвления оптических сигналов (оптических разветвителей). Схема обеспечивает длину регенерацион-ного участка до 18 км, что удовлетворяет вышеприведённым критериям оптимальности.
Структурная схема оптического передатчика.
Структурная схема оптического передатчика представлена на рис.3.6. Сигнал в коде HDB от цифровой системы уплотнения каналов поступает на преобразователь кода (ПК), в котором код HDB преобразуется в линейный код оптической системы передачи CMI. Полученный электрический сигнал поступает на усилитель (УС), состоящий из двух каскадов: предварительного каскада усиления (ПКУ) и оконечного каскада усиления (ОКУ), где усиливается до уровня, необходимого для модуляции оптической несущей. Усиленный сигнал поступает на прямой модулятор (МОД), состоящий из устройства смещения (УСМ), служащего для задания рабочей точки на ватт - амперной характеристике излучателя и, собственно, самого прямого модулятора, собранного по классической схеме из полупроводникового оптического излучателя V1 и транзистора V2. Для обеспечения стабильности работы излучателя, в схему лазерного генератора (ЛГ) введены устройство обратной связи (УОС) и система термостабилизации (СТС). С выхода модулятора оптический сигнал, промодулированный по интенсивности цифровым электрическим сигналом в коде CMI, поступает на устройство согласования полупроводникового излучателя с оптическим волокном (СУ).

В следующей главе, на основании структурной схемы передатчика, будет разрабатываться его принципиальная схема и электрический расчет основных узлов.
8. Мероприятия по охране труда
В данном дипломном проекте требуется разработать передающее устройство одноволоконной оптической системы передачи, рассчитанной на работу с длиной волны 0.85 мкм, которая относится к ближнему инфракрасному диапазону излучения.
Поскольку передающее устройство рассчитано на работу в составе многоканальных систем связи на соединительных линиях городской телефонной сети, то в главе освещены вопросы организации охраны труда на предприятиях.
8.1 Лазерная безопасность
Воздействие лазерного излучения на органы зрения
Основной элемент зрительного аппарата человека - сетчатка глаза - может быть поражена лишь излучением видимого ( от 0.4 мкм ) и ближнего ИК-диапазонов ( до 1.4 мкм ), что объясняется спектральными характеристиками человеческого глаза. При этом хрусталик и глазное яблоко, действуя как дополнительная фокусирующая оптика, существенно повышают концентрацию энергии на сетчатке, что, в свою очередь, на несколько порядков понижает максимально допустимый уровень ( МДУ ) облучения зрачка.
Технико-гигиеническая оценка лазерных изделий
В нашей стране на базе проведенных комплексных исследований и современных представлений о влиянии лазерного излучения на организм человека разработан и утвержден ряд нормативных документов, обеспечивающих безопасную эксплуатацию лазерных изделий. Эти документы устанавливают единую систему обеспечения лазерной безопасности. В такую систему входят: технические средства снижения опасных и вредных производственных факторов, организационные мероприятия, контроль условий труда на лазерных установках. В современной отечественной научно-технической и нормативной литературе дано несколько вариантов классификации лазерных изделий. С позиции обеспечения лазерной безопасности их классифицируют по основным физико-техническим параметрам и степени опасности генерируемого излучения.
В зависимости от конструкции лазера и конкретных условий его эксплуатации обслуживающий его персонал может быть подвержен воздействию опасных и вредных производственных факторов. Уровни опасных и вредных производственных факторов на рабочем месте не должны превышать значений, установленных по электробезопасности, взрывоопасности, шуму, уровням ионизирующего излучения, концентрации токсических веществ и др.
Классы опасности лазерного излучения
Степень воздействия лазерного излучения на оператора зависит от физико-технических характеристик лазера — плотности мощности (энергии излучения), длины волны, времени облучения, длительности и периодичности импульсов, площади облучаемой поверхности. Биологический эффект лазерного облучения зависит как от вида воздействия излучения на ткани организма (тепловое, фотохимическое), так и от биологических и физико-химических особенностей самих тканей и органов.
Наиболее опасно лазерное излучение с длиной волны:
3801400 нм — для сетчатки глаза,
180380 нм и свыше 1400 нм — для передних сред глаза,
180105 нм (т.е. во всем рассматриваемом диапазоне) — для кожи.
Гигиенистами выдвинуты требования, в соответствии с которыми, в основу проектирования, разработки и эксплуатации лазерной техники должен быть положен принцип исключения воздействия на человека (кроме лечебных целей) лазерного излучения, как прямого, так и зеркально или диффузно отраженного.
Лазерные изделия по степени опасности генерируемого излучения подразделяют на 4 класса. При этом класс опасности лазерного изделия определяется классом опасности используемого в нем лазера. Классификацию лазеров с точки зрения безопасности проводит предприятие-изготовитель путем сравнения выходных характеристик излучения с предельно допустимыми уровнями (ПДУ) при однократном воздействии. Определяя принадлежность лазерного изделия к тому или иному классу по степени опасности лазерного излучения, необходимо учитывать воздействие прямого или отраженного лазерного пучка на глаза и кожу человека и пространственные характеристики лазерного излучения (при этом различают коллимированное излучение, то есть заключенное в ограниченном телесном угле, и неколлимированное, то есть рассеянное или диффузно отраженное). Использование дополнительных оптических систем не входит в понятие "коллимация", а оговаривается отдельно. Лазерные изделия с точки зрения техники безопасности классифицируют в основном по степени опасности генерируемого излучения. Установлены следующие 4 класса лазеров:
1. Полностью безопасные лазеры, выходное излучение которых не представляет опасности для глаз и кожи человека;
2. Лазеры, выходное излучение которых представляет опасность при облучении кожи или глаз человека коллимированным пучком. В то же время диффузно отраженное излучение лазеров этого класса безопасно как для кожи, так и для глаз;
3. Лазерные устройства, работающие в видимой области спектра и выходное излучение которых представляет опасность при облучении как глаз (коллимированным и диффузно отраженным излучением на расстоянии менее 10 см от отражающей поверхности), так и кожи (только коллимированным пучком);
4. Наиболее опасный — к нему относят лазерные устройства, даже диффузно отраженное излучение которых представляет опасность для глаз и кожи на расстоянии менее 10 см.
При определении класса опасности лазерного излучения учитываются три спектральных диапазона.
Таблица 8.1 – Диапазоны лазерного излучения
|
Класс |
|||
|
опасности |
180380 нм |
3801400 нм |
1400105 нм |
|
лазерного |
Диапазон |
||
|
излучения |
I |
II |
III |
|
1 |
+ |
+ |
+ |
|
2 |
+ |
+ |
+ |
|
3 |
— |
+ |
— |
|
4 |
+ |
+ |
+ |
Гигиеническое нормирование лазерного излучения
Для каждого режима работы лазера и его спектрального диапазона регламентируют предельно допустимый уровень излучения. Нормируемыми параметрами с точки зрения опасности лазерного излучения являются энергия W и мощность P излучения, прошедшего ограничивающую апертуру диаметрами d>а>=1.1 мм (в спектральных диапазонах I и II) и d>а>=7 мм (в диапазоне II); энергетическая экспозиция H и облученность E, усредненные по ограничивающей апертуре:
H=W/S>a>; E=P/S>a> , (3.1)
где S>a> — площадь ограничивающей апертуры.
Таблица 8.2 - Предельные дозы при однократном воздействии на глаза коллимированного лазерного излучения
|
Длина волны , нм |
Длительность воздействия t, с |
W>ПДУ>, Дж |
|
380600 |
t2.310-11 |
|
|
2.310-11t510-5 |
810-8 |
|
|
510-5t1 |
|
|
|
600750 |
t6.510-11 |
|
|
6.510-11t510-5 |
1.610-7 |
|
|
510-5t1 |
|
|
|
7501000 |
t2.510-10 |
|
|
2.510-10t510-5 |
410-7 |
|
|
510-5t1 |
|
|
|
10001400 |
t10-9 |
|
|
10-9t510-5 |
10-6 |
|
|
510-5t1 |
|
Примечания: 1. Длительность воздействия меньше 1 с.
2. Ограничивающая апертура = 710-3 м.
Предельно допустимый уровень лазерного излучения устанавливают для двух условий - однократного и хронического облучения. Под хроническим понимают "систематически повторяющееся воздействие, которому подвергаются люди, профессионально связанные с лазерным излучением".
Предельно допустимый уровень при этом определяют как:
1. Уровни лазерного излучения, при которых "существует незначительная вероятность возникновения обратимых отклонений в организме" человека;
2. Уровни излучения, которые "при работе установленной продолжительности в течение всего трудового стажа не приводят к травме (повреждению), заболеванию или отклонению в состоянии здоровья как самого работающего, так и последующих его поколений".
Предельно допустимый уровень хронического воздействия рассчитывают путем уменьшения в 510 раз ПДУ однократного воздействия.
8.2 Требования безопасности при эксплуатации лазерных изделий
Требования к размещению лазерных изделий
Размещение лазерных изделий в каждом конкретном случае производится с учётом класса опасности изделий, условий и режима труда персонала, особенностей технологического процесса, подводка коммуникаций.
Требования для класса 3Б:
Расстояние между лазерными изделиями должно обеспечивать безопасные условия труда и удобство эксплуатации, ремонта и обслуживания. Рекомендуется для класса 3Б:
- Со стороны органов управления: при однорядном расположении–1,5 м;
- при двухрядном не менее - 2,0 м;
- c других сторон не менее – 1,0 м;
- траектория прохождения лазерного пучка должна быть заключена в оболочку из несгораемого материала или иметь ограждение, снижающие уровень лазерного излучения к допустимому уровню и исключающие попадание лазерного пучка на зеркальную поверхность. Открытые траектории в зоне возможного нахождения человека должны располагаться значительно выше уровня глаз. Минимальная высота траектории 2,2 м.
- Рабочее место должно быть организовано таким образом, чтобы исключать возможность воздействия на персонал лазерного излучения или чтобы его величина не превышала допустимый уровень для первого класса;
- рабочее место обслуживающего персонала, взаимное расположение всех элементов (органов управления, средств отображения информации и др.) должна обеспечивать рациональность рабочих движений и максимально учитывать энергетические, скоростные, силовые и психофизические возможности человека.
- Следует предусматривать наличие мест для размещения съемных деталей, переносной измерительной аппаратуры, хранения заготовок, готовых изделий.
Классификация условий и характера труда
По степени зашиты персонала от воздействия лазерного излучения условия и характер труда при эксплуатации лазерных изделий независимо от класса изделия подразделяются:
А) оптимальные – исключающие воздействие на персонал лазерного излучения;
Б) допустимые – уровень лазерного излучения, воздействующего на персонал, меньше предельно допустимого уровня.
В) вредные и опасные – уровень лазерного излучения, воздействующего на персонал, превышает предельно допустимый уровень.
Требования безопасности при эксплуатации и обслуживании лазерных изделий
Выполнение следующих требований безопасности должно обеспечивать исключение или максимальное уменьшение возможности облучения персонала лазерным излучением, а также воздействия на него других опасных факторов:
- К ремонту, наладке и испытаниям лазерных изделий допускаются лица,
имеющие соответствующую квалификацию и прошедшие инструктаж по
технике безопасности в установленном порядке.
К работе с лазерными изделиями допускаются лица, достигшие восем-надцати лет, не имеющие медицинских противопоказаний,
прошедшие курс специального обучения в установленном порядке работе
с конкретными лазерными изделиями и аттестацию на группу по охране
труда при работе на электроустановках с соответствующим напряжением.
При эксплуатации изделий выше класса 2 должно назначаться лицо, ответственное за охрану труда при их эксплуатации.
Лазерные изделия, находящиеся в эксплуатации, должны подвергаться регулярной профилактической проверке. При проведении профилактической проверки следует обращать особое внимание на безотказность работы всех защитных устройств, надёжность заземления.
8.3 Мероприятия по производственной санитарии
Обоснование вида пайки
В связи с незначительным объемом производства (предполагаемый объем производства составляет 100 штук за год), а также учитывая форму и размеры печатного узла, количество радио элементов на печатной плате устройства, при изготовлении данного блока целесообразно применять ручную пайку. А для обеспечения электробезопасности необходимо применить электропаяльник мощностью 20-40Вт при напряжении питания 36В.
В соответствии со сборочным чертежом волоконнооптического передающего устройства, пайку печатных плат нужно производить припоем ПОС-61 ГОСТ 21931-76. Химический состав этого припоя приведён в таблице8.3
Таблица 8.3. Химический состав низкотемпературных припоев
|
Марка припоя |
Олово |
Свинец |
Висмут |
Примеси |
|
ПОС-61 |
60-62% |
37,7 –39,7% |
нет |
0,29% |
Пайка в атмосфере обычными припоями производится, обычно, с применением флюсов. В качестве флюсов применяются канифоль, стеарин, их спиртовые растворы, а также флюсы содержащие солянокислый гидразин.
Для пайки выше вышеперечисленными низкотемпературными припоями применим наиболее распространённый и дешёвый смолосодержащий флюс марки ФКСП по ОСТ4.ГО.033.000. Состав флюса:
70-60% сосновой канифоли.
30-40% спирта этилового.
В качестве моющего средства для удаления остатков флюса применим
смесь бензина и этилового спирта в соотношении 1:1.
Опасные и вредные воздействия, вызванные
процессами пайки
Потенциально опасные и вредные производственные факторы при пайке:
Запыленность и загазованность воздуха рабочей зоны;
Наличие инфракрасных излучений;
Неудовлетворительная освещенность рабочих мест или повышенная яркость;
Неудовлетворительные метеорологические условия в рабочей зоне;
Воздействия брызг и капель расплавленного припоя;
Возможное поражение электрическим током;
Психофизиологические перегрузки.
Описание биологического действия опасных и вредных веществ находящихся в воздухе рабочей зоны
Процессы пайки сопровождаются загрязнением воздушной среды аэрозолями припоя, флюса, парами различных жидкостей, применяемых для флюса, смывки и растворения лаков.
Находясь в запыленной атмосфере, рабочие подвергаются воздействию пыли и паров. Вредные вещества оседают на кожном покрове, попадают на слизистые оболочки полости рта, глаз, верхних дыхательных путей, заглаты-ваются в пищеварительный тракт, вдыхаются в лёгкие.
Особенно вредны при пайке оловяно-свинцовыми припоями пары свинца. Свинец и его соединения ядовиты. Часть поступившего в организм свинца выводится из него через кишечник и почки, а часть задерживается в костном веществе, мышцах, печени. При неблагоприятных условиях свинец начинает циркулировать в крови, вызывая явления свинцового отравления. Для предотвращения острых заболеваний и профессиональных заболеваний содержание свинца не должно превышать предельно допустимых концентраций. Биологическое действие и предельно допустимые концентрации компонентов входящих в состав используемых припоев приведены в табл.8.4.
Применение флюсов при пайке также оказывает вредное влияние на организм человека. Компоненты входящие в состав флюса, обладают раздражающим, наркотическим действием.
Таблица 8.4. Биологическое действие, класс опасности и ПКД в воздухе рабочей зоны исходных компонентов входящих в состав припоев.
|
Компонент |
Характер токсичности и действие |
Класс опасности |
ПКД в воздухе рабочей зоны |
|
Олово |
Поражение бронхов, вызывает профилактивно-креточную реакцию в легких. При длительном воздействии возможен пневмокониоз. |
3 |
10мг\ |
|
Свинец |
При отравлении наблюдается поражение нервной системы, крови, желудочно-кишечного тракта, сердечно-сосудистой системы, половой системы, нарушение течения беременности. |
1 |
0.01мг\ |
|
Висмут |
Подобно действию других металлов вызывает угнетение активности ферментов, оказывает эмбриотропное и гонадотропное действие. |
__ |
__ |
Достаточно высокую токсичность имеют компоненты, входящие в состав флюса и моющих средств.
Токсические действия и предельно допустимые концентрации для компонентов входящих в состав флюсов и моющего средства приведены в таблицах 8.4 и 8.6 соответственно.
Таблица 8.5. Токсичное действие компонентов, входящих в состав флюса марки ФКСП.
|
Компонент |
Токсичность и характер действия |
Класс опасности |
ПДК
в воздухе рабочей зоны, мг\ |
|
Канифоль сосновая |
Обладает раздражающим действием. При длительном воздействии на кожу вызывает дерматит. |
__ |
__ |
|
Спирт этиловый |
Обладает наркотическим и раздражающим действием. Вызывает изменения печени, сердечно-сосудистой и нервной системы, сухость кожи при длительном контакте. |
4 |
1000 |
Таблица 8.6. Токсические свойства моющих средств, класс опасности и ПДК в воздухе рабочей зоны.
Компонент |
Токсичность и характер действия |
Класс опасности |
ПДК
в воздухе рабочей зоны, мг\ |
Бензин |
Обладает раздражающим действием и как наркотик… Функциональные нервные расстройства, сопровождаемые мышечной слабостью, вялостью, сонливостью или бессонницей. Расстройства пищеварительного тракта, печени, дрожание пальцев и языка, поражение кожи. Характерно развитие судорог, понижается кровяное давление, пульс замедляется. |
4 |
300 (в пересчёте на углерод) |
Биологическое действие инфракрасного излучения на организм человека.
По физической основе инфракрасное излучение представляет собой поток энергии, обладающий волновыми и корпускулярными свойствами. На человека инфракрасное излучение оказывает в основном тепловое воздействие. Эффект действия инфракрасных излучений зависит от длинны волны ИК излучения и подразделяется на три области: А,В,С, (таблица 8.7)
Таблица 8.7 Области инфракрасного излучения.
Область ИК излучения |
Длинна волны, нм |
А |
760…15000 |
|
В |
1500…3000 |
|
С |
3000…10000 |
Эффект действия зависит от принадлежности излучения к одной из областей инфракрасного излучения. Наиболее опасным является излучение области А, т.к. обладает большой проницаемостью через кожу. Действие инфракрасных лучей при поглощении их в различных слоях кожи приводит к её перегреванию, что обуславливает переполнение кровеносных сосудов кровью и усиление обмена веществ. Увеличивается содержание фосфора и натрия в крови человека, происходит повышение максимального давлений, повышение температуры тела, заболеваемость середчно-сосудистой системы и органов пищеварения.
Определение интенсивности ИК излучения
И
нтенсивность
облучения Е
от нагретой поверхности определяем по
формуле:
,(7.1)
где l – расстояние до источника теплового излучения (принимаем l=100мм);
F
– площадь излучающей поверхности
(F=300
);
А=85 для кожи человека и хлопчатобумажной ткани;
Т – температура излучающей поверхности, складывающейся из температуры плавления припоя Тпп=483 К, избыточной температуры жала паяльника Тж=70 К, тогда Т=Тпп + Тж=483 + 70=553 К.
По закону Вина находим длину волны ИК излучения тела с температурой 553 К.
Д
анное
излучение относится к области С.
Допустимая плотность потока энергии
для нашего случая в соответствии с
требованиями составляет 85
.
Приходим к выводу, что инфракрасное
излучение не будет оказывать
вредного действия на организм человека.
Определение концентрации аэрозолей свинца
в воздухе рабочей зоны
Количество аэрозоля свинца, выделяемое при пайке в атмосферу составляет 0.02-0.04мг на 100 паек.
Исходными данными для расчета концентрации свинца при пайке является:
N – количество рабочих мест, на которых ведётся пайка; N=4;
Размеры помещения, 5х5х3м,
n – количество паек в минуту, n=10;
Концентрация аэрозоля
свинца в атмосфере при ручной пайке
определяется по формуле:

y – удельное образование аэрозоля свинца; y=0.03мг/100паек.
t – длительность смены; t=8ч;
V
– объём помещения,
Тогда:

Концентрация свинца в воздухе рабочей зоны в 7 раз превышает предельно допустимую концентрацию, поэтому необходимо предусмотреть местную вентиляцию, расчёт которой приведен далее.
8.4 Требование к освещению и расчёт освещённости
При монтаже печатных плат уровень освещённости должен быть оптимальным. При излишне ярком освещении возникает быстрое утомление рабочего, что может привести к потере работоспособности и травмы.
Естественное освещение помещения осуществляется боковым светом через световые проёмы в наружных стенах или через прозрачные части стен.
Основная величина для расчёта освещения (КЕО). Он зависит от широты местности, времени года и погоды. По нему производится нормирование естественного освещения.
При одностороннем боковом освещении нормируется минимальное значение КЕО в точке, расположенной на расстоянии 1 метр от наиболее удаленной от световых проёмов стены, на пересечении характерного размера помещения и условной рабочей поверхности.
Методика расчёта изложена
в [8]. Согласно СНиП ІІ-4-79/85
нормированное значение КЕО для работ
высокой точности(объект различения от
0.3 до 0.5мм) со средним контрастом объекта
различения с фоном и средним фоном для
ІІІ-го
пояса
.Для
г.Киев (ІV
пояс светового климата)
КЕО:
(7.2) ,где
-КЕО
для ІІІ-го
пояса;
m – коэффициент светового климата; по таблице 1.2 из [8] находим m=0.9
c- коэффициент солнечности климата по табл. 1.3. [8], для световых проёмов ориентированных по азимуту 70град. коэффициент с=0.8
(7.3)
Фактичесоке
значение КЕО для бокового овещения
расчитываем по формуле:
(7.4), где
-
геометрические КЕО в расчётной точке
при боковом освещении, учитывающие
прямой свет неба и свет отражённый от
противостоящего здания соответсвенно;
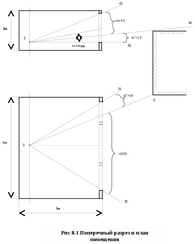
n1,n1`,n2,n2` -количество лучей по графикам І и ІІ [8] проходящим от неба и противостоящего здания в расчётную точку на поперечном разрезе и плане помещения;
(7.5)
(7.6)
q –коэффициент, учитывающий неравномерную яркость облачного неба из таблицы 2.4. [8] для угловой высоты середины светового проёма над рабочей поверхностью (рис.8.1);
R – коэффициент учитывающий относительную яркость противосто-ящего здания, для здания из кирпича с учётом индексов противостоящего здания в плане Z1 и в разрезе Z2.
;
;
(7.7)
-
соответственно длинна
и высота противостоящего здания ;
-расстояние
от расчётной точки в помещении до внешней
поверхности наружной стены здания;
р –расстояние между рассматриваемыми зданиями;
а –ширина окна в плане;
r1-
коэффициент учитывающий увеличение
КЕО при боковом освещении из-за отражения
от поверхностей помещения и подстилающего
слоя. Зависит от отношения глубины В
к высоте верха окна до уровня рабочей
поверхности h1,
отношения l
к В, и отношения
длинны помещения длинны помещения
к его глубине В,
средневзвешенного коэфициента отражения
поверхностей помещения
:
(7.8)
-
коэффициенты отражения соответственно
потолка, стен, пола из таблицы 1.7 [8]

- площади
соответсвенно потолка, пола и стен;
- общий коэффициент
светопропускания;
(7.9)
- коэффициент
светопропускания материала остекления,
берётся из таблицы 1.8 [8]
для двойного оконного листового стекла;
- коэффициент
учитываующий потери в переплётах
светопроёма из таблицы 1.9. [8]
- коэффициент
запаса, определяемый по таблице 1.12 [8].
Значения параметров определяемые по таблицам [8], а также по плану и разрезу помещения, результаты промежуточных вычислений сведены в таб. 8.7 подставляя численные значения находим:


Таюлица 8.7 Исходные данные и значения коэффициентов необходиых для расчёта КЕО.
|
Исходные данные коэффициенты |
Значение |
Исходные данные коэффициенты |
Значение |
|
n1 n1` n2 n2`
q
p a H2` H2 B
Z1 Z2
|
4 1 31 19 1.24 0.19 14 0.64 30м 10м 4,25м 40м 3,6м 2,8м 2,1м 5м 5м 0,8 0,27 0,7 |
B/H2
R |
0,7 0,1 25 49 25 0,55 2,4 0,8 1 2,5 0,8 0,7 1 1 1 0,56 1,5 0,25 |
,

В результате получаем:

Расчитанный КЕО
в 2 раза меньше нормированного.
Следовательно рабочие места следует
располагать ближе к окнам помещения,
так чтобы они находились в зоне, в
пределах которой фактичесоке значение
КЕО больше или равно нормированному,
либо нужно применить совмещённое
освещение при соответсвующей ему норме
КЕО
при этом по формуле (7.2) определяем:
При этом нормы СНиП ІІ-4-79/85 будут выполнятся в пределах всего помещения.
Произведём проверочный расчёт искусственного освещения по методике изложенной в [9]. На рисунке 8.2 Представлена схема для определения условий применения методов расчёта . При рядах небольшой протяжённости (ln/n <3), фактическую освещенность рабочей поверхности определяем по формуле:
(7.10)
N – количество светильников в помещении;
n – количество ламп в светильнике;
- Световой поток
лампы, лм;
- коэффициент
учитывающий увеличение освещённости;

-
относительная освещённость в расчётной
точке, создаваемая
i-м
полурядом светильников.
- коэффициент
запаса;
h – высота подвесов светильника;
lp – длинна ряда светильников;
Высота подвеса светильников h=3-0.3-0.8=3м
Длинна ряда светильников lp=3.4м
Для ламп типа ЛБ40,
применяемых для освещения данного
помещения, световой поток по таблице
1.1.[9]
=3120лм
Имеем n=4,
N=4,
=1.5,
=1.2,
m=2
Для
определения табличного значения функции
находим отношение
p` и l` :
p`=p/n , p – расстояние от расчётной точки до проекции ряда светильников на горизонтальную плоскость.
l`=l2/n, l2 – расстояние до расчётной точки от стены.
p`=1/4=0.25 l`=2.5/4=0.62
Для угла =25 под которым падает свет У=162лм. По табл.1.10 [9] по У, для светильников 9-й группы определяем f(p`,l`)=0.55
Тогда
=
f(p`,l`)
У=0.55*162=89
Поставляя численные значения в формулу (7.10), получаем:

По таблице П1 [9] определяем значение нормированной освещённости. Для работ высокой точности (объект различения от 0.3 до 0.5 мм) со средним контрастом объекта различения с фоном при среднем фоне находим Ен=400лк.
Так как рассчитанное фактическое значение освещенности больше нормированного, делаем вывод о пригодности системы освещения в помещении.
8.5 Мероприятия по улучшению условий труда
8.5.1 Расчёт местного отсоса
Поскольку концентрация аэрозоля свинца в воздухе превышает предельно допустимую норму, то необходимо применить местную вентиляцию.
Вентиляционная установка включается до начала работы и выключается после её окончания. Работа вентиляционных установок контролируется с помощью световой сигнализации.
Разводка вентиляционной сети и конструкция местных отсосов обеспечивает возможность регулярной очистки воздуховодов.
Электропаяльник в рабочем состоянии находится в зоне действия вытяжной вентиляции.
Метеорологические условия на рабочих местах должны соответствовать ГОСТ 12.1 005-88.
Местная вентиляция при пайке является наиболее эффективным и экономическим средством обеспечения санитарно-гигиенических параметров воздушной среды в рабочей зоне. Широкое применение при пайке имеет местная вытяжная вентиляция , которая условно разделяется на местные отсосы открытого и закрытого типа.
В данном случае, для улавливания выделяющихся при пайке вредных паров используем местный отсос в виде прямоугольного отверстия (рис.8.3)

Определяем количество отсасываемого воздуха [11]:
(7.12)
S
– площадь высасывающего отверстия,
;
Е – большая сторона отверстия, м;
Х – расстояние от плоскости всасывающего отверстия до зоны пайки;
- скорость воздуха
в зоне пайки.
Задаёмся
=0.6
Величины Е и Х выбираем в соответствии со сборочным чертежом волоконнооптического передатчика как наибольшую и меньшую стороны соответствующего блока. Габариты блока одноволоконного оптического передатчика 304,5 х101мм. Принимаем Е=0.31м, а Х=0.11м. Определим оптимальный размер наименьшей стороны всасывающего отверстия [11]:
(7.13)
Площадь всасывающего отверстия:

По формуле (7.12) определяем количество отсасываемого воздуха:

Определим допустимую концентрацию пыли в удаляемом воздухе. Так как для всех рабочих мест помещения общее количество отсасываемого воздуха:
<15000

то в соответствии с [11]
(7.14), где
К – коэффициент зависящий от ПДК пыли в воздухе рабочей зоны (для аэрозоля свинца К=0.3);
L
– объём удаляемого воздуха, тыс.
;
(7.15)
y
– удельное образование свинца
;
y=0.03;
n – количество паек в минуту, n=10;
N – количество рабочих мест.

Так как
>>
,
то в применении специальных мероприятий
по охране окружающей среды нет
необходимости.
8.6 Мероприятия по пожарной безопасности
Некоторые вещества и материалы, применяемые на участке монтажа пожаровзрывоопасны. Эти вещества, некоторые их характеристики и средства пожаротушения приведены в таблице 8.8.
Для того чтобы определить категорию помещения по взрывопожарной и пожарной опасности в соответствии с ОНТП 24-86, необходимо рассчитать избыточное давление взрыва в помещении. Избыточное давление взрыва определим по формуле [8]:
Таблица 8.8 Пожаровзрывоопасные вещества применяемые при производстве печатного узла
-
Наименование вещества
Температура воспламенения
Температура самовоспламе-нения
Пределы взрываемости
Средства пожаротушения
Нижний
Верхний
Канифоль
-
850

12,6

-
Химическая и воздушно-механическая пена, распыленная вода
Спирт этиловый бензиновый
18

104

3,6%; 68

19%;
340

Химическая пена, вода, инертные газы
бензины
17-44

255-474

0,76-1,1%
5,16-8,12%
Пена, водяной пар, инертные газы
Стекло-текстолит
-
-
-
-
Вода, химическая пена
(7.16), где
- максимальное
давление взрыва стехиометрической
газо-воздушной или паро-воздушной смеси
в замкнутом объёме (
=750кПА);
- начальное
давление,
=101кПа;
m – масса горючего вещества, кг;
Z
– площадь испарения,
;
- Свободный
объём помещения;
- плотность газа
и пара (
)
Сст – стехиометрическая концентрация горючего газа или
паров ЛВЖ, %;
Ки - коэффициент учитывающий негерметичность помещения и недиабатность процесса горения, Ки=3;
Свободный объём помещения определяем по формуле:
(7.17)
Стехиометрическая концентрация попределяется по формуле:
- стехиометрический
коэффициент кислорода в реакции горения.

- число атомов С,
Н, О и галоидов в молекуле горючего;
Расчитываем
по вышеуказанной методике принимая

Ежедневно на участке монтажа расходуется 0.3л спирта; расчёт произведён для самого неблагоприятного случая; все содержимое поступает в помещение (для 0.3л легко воспламеняющейся жидкости площадь
разлива
0.3
);
Массу паров жидкости определим по формуле:
- интенсивность
испарения,
;
- площадь испареня,
;
- длительность
испарения (
)
Интенсивность испарения определим так:
(7.18)
- коэффициент
выбираемый из [8] в
зависимости от скорости и температуры
над поверхностью жидкости (
);
- молекулярная
масса (
);
- давление
насыщенности пара
(
);
Из справочных
данных для
:

Тогда:
,
,
,
,

В результате расчёта делаем вывод о принадлежности помещения к категории В пожароопасное (табл 10 [11]). Поскольку в помещении взрывчатые смеси горючих газов и паров с воздухом не образуется, а образуются они только в результате аварии или неисправности, то помещение можно отнести к классу В-lб взрывоопасных зон [11].
Основными причинами возникновения пожара являются:
-Нарушение установленных правил пожарной безопасности и неосторожное обращение с огнём;
-неисправность и перегрузка электрических устройств (короткое замыкание);
-неисправность вентиляционной системы, вызывающая самовозгорания или взрыв пыли;
-халатное и неосторожное обращение с огнём;
-самовоспламенение хлопчатобумажной ткани пропитанной маслом, бензином или спиртом;
-статическое электричество, образующееся от трения пыли или газов в вентиляционных установках;
-грозовые разряды при отсутствии или неисправности молниеотводов.
В помещениях, где производится монтаж печатных плат предусматриваем электрическую пожарную сигнализацию (пять извещателей типа ПОСТ-1), которая служит для быстрого извещения службы пожаротушения о возникновении пожара.
Количество размещённых огнетушителей в рабочем помещении соответствует требованиям ISO 3941-77.
В рабочем помещении выполнены все требования по пожарной безопасности в соответствии с требованиями НАПБ А.01.001-95 «Правил пожежної безпеки в Україні».
Вход в помещение, проходы между столами и коридоры не разрешается загромождать различными предметами и оборудованием. Для хранения всех веществ и материалов предусматриваем специальные шкафы и ёмкости.
С рабочими и обслуживающим персоналом предусматриваем проведение противопожарного инструктажа, занятий и бесед.
8.7 Мероприятия по молниезащите здания
Здание по молниезащите можно отнести к категории 2, как здание помещения в которых относятся к классу В-1б.
Ожидаемое число поражений молнией в год зданий и сооружений высотой не более 60м, не оборудованных молниезащитой, определяют по формуле [12]:
(7.19), где
S –ширина защищаемого здания, м;
h –высота здания по его боковым сторонам, м;
L – длинна защищаемого здания, м;
n – среднее число поражений молнией на 1кв.км. земной пов. за год;
В нашем случае имеем S=20м; L=150м; h=20m; n=9; (так как годовая продолжительность гроз для Киева – 60-80часов, что соответствует 9-ти поражениям на 1кв.км. за год)

Согласно таблице 2 [12] тип защиты – зона Б, так как здание относится к категории 2, а ожидаемое число поражений молнией в год N<1.
Здание должно быть защищено от прямых ударов молнии электростатической и электромагнитной индукции и заноса высоких потенциалов через наземные и подземные металлические коммуникации. Используются сетчатые молниеотводы. Защита зданий от электростатической индукции обеспечивается присоединением всего оборудования и аппаратов, находящихся в здании к защитному заземлению оборудования.
Приложение




Техническое задание
Тема проекта:
Передающее устройство одноволоконной
оптической сети
Входные данные к проекту:
Оптическая мощность 1,5мВт
Длинна волны 0,85мкм
Рабочая частота 8,5МГц.
Пропускная способность 8,5Мбит/сек.
Уровень входного логического сигнала –0,7 В /5,0 В.
Рецензія
на дипломний проект студента групи РТ-51
Андріюка Ростислава Володимировича
“Передавальний пристрій одноволоконної
оптичної мережі”
Дипломний проект студента Андріюка Ростислава Володимировича присвячений актуальному питанню проектування волоконнооптичних ліній зв’язку. Сучасні засоби телекомунікацій базуються на широкому впровадженні волоконнооптичних елементів та систем для швидкого обміну великих обсягів інформації між абонентами. Дипломний проект складається з пояснювальної записки (96 сторінок) та семи листів графічного матеріалу, формату А1. Пояснювальна записка містить розділи:
Введення.
Принципи побудови та основні особливості волоконнооптичних ситем передачі у міських телефонних мережах.
Вибор та обгрунтування структурної схеми передавача.
Розрахунок електричної принципової схеми.
Конструктивний розрахунок печатної плати.
Розрахунок надійності передавального пристрою.
Техніко-економічний розрахунок.
Заходи по охороні праці.
До переваг дипломного проекту відноситься глибокий науково-технічний аналіз сучасних структурних схем волоконнооптичних систем зв’язку та досконалий розрахунок електричної принципової схеми передавального пристрою одноволоконної оптичної мережі. Висока якість оформлення текстової, та графічної документації.
Недоліком проекта є відсутність перевірочних експерементальних досліджень запропонованих електричних схем. Відзначений недолік не знижує загальний високий рівень дипломного проекту.
Вважаю, що дипломний проект “Передавальний пристрій одноволоконної оптичної мережі” заслуговує оцінки “відмінно”, а студент Андріюк Р.В. присвоєння кваліфікації спеціаліста з радіотехніки.
К.т.н., доцент кафедри КіВРА _____________________ (Богомолов М.Ф.)

21


























