Расчет структурированной кабельной системы офисных помещений 3-этажного здания
МОСКОВСКИЙ ТЕХНИЧЕСКИЙ УНИВЕРСИТЕТ СВЯЗИ И ИНФОРМАТИКИ
КАФЕДРА МУЛЬТИМЕДИЙНЫЕ СЕТИ И УСЛУГИ СВЯЗИ
Курсовой проект
Дисциплина: «Проектирование структурированных кабельных систем»
Тема: «Расчет структурированной кабельной системы офисных помещений 3-этажного здания»
Выполнила: Фокеева Л. А.
Группа: ИТ0501
Вариант: 35
Проверил: Запорощенко Е.К.
Москва
2009
Содержание
Исходные данные 3
1. Расчёт компонентов СКС 4
1.1 Расчёт горизонтальной подсистемы 4
1.2 Расчёт магистральной подсистемы 8
2. Схемы 12
3. Перечень оборудования для СКС 16
3.1 Перечень оборудования горизонтальной подсистемы 16
3.2 Перечень оборудования магистральной подсистемы 17
4. Схемы размещения оборудования в шкафах 19
4.1 1 этаж 19
4.2 2 этаж 21
4.3 3 этаж 23
Вывод по курсовому проектированию 25
Исходные данные
-
Вариант
Масштаб 1 см= Х(м)
Класс СКС
Типовая высота этажа с перекрытием (м)
5
3,5
ОМ3
4,3
-
Вариант
Места РМ на 1-м этаже
Места РМ на 2-м этаже
Места РМ на 3-м этаже
(3+5) 8
2, 4, 5, 8, 9, 12, 13, 17, 19, 20, 21, 27-47
3, 5, 6, 7, 8, 9, 10, 11, 14-47
2, 4, 6, 8, 10, 12, 16, 18-45
1. Расчёт компонентов СКС
1.1 Расчёт горизонтальной подсистемы
Определение количества портов:
Кол-во портов = кол-во РМ * кол-во портов на 1 РМ
1 этаж: 2*27+1*5=59 портов
2 этаж: 2*36+1*6=78 портов
3 этаж: 2*30+1*5=65 портов
Определение средней длины установочного кабеля:
Средняя длина = (min+max)/2+5м, где
min – количество метров кабеля от телекоммуникационного шкафа до ближайшего РМ
max – количество метров кабеля от телекоммуникационного шкафа до самого удалённого РМ
1 этаж: (5,25+88,55)/2+5=46,9+5= 51,9 м
2 этаж: (5,95+88,55)/2+5= 47,25+5= 52,3 м
3 этаж: (5,25+89,25)/2+5=47,25+5= 52,3 м
Проложить кабель по этажу так, чтобы до самого удалённого РМ было меньше 90 м по стандарту ISO 11801, с использованием 1-ого FD не удается, поэтому я принимаю решение использовать 2-й FD на каждом этаже.
Определение общей длины кабеля:
Общая длина = средняя длина * кол-во портов
1 катушка=500 м
1 этаж: 51,9·59= 3062 м – 7 катушек
2 этаж: 52,3·78=4079 (м) – 9 катушек
3 этаж: 52,3·65=3400 (м) – 7 катушек
В качестве кабеля для внутренней прокладки буду использовать оптоволоконный кабель ёмкостью 2 волокна для дуплексной передачи LANmark-OF3, ZC, 2хMM50/125, LSZH, предназначенный для подключения рабочих мест пользователей и отвечающий самым высоким требованиям пожаробезопасности (LSZH-FR).
Определение общего количества коммутационных панелей:
Кол-во коммутационных панелей = кол-во портов на этаже / кол-во портов в выбранной коммутационной панели
Из предлагаемых Nexans коммутационных панелей выбираю универсальную выдвижную оптическую коммутационную панель LANmark-OF, 1U с возможностью установки 24 дуплексных адаптеров LC. Панель предназначена для использования в распределительных пунктах магистральных и горизонтальной подсистем.
1 этаж:
FD1_1 обслуживает 24 порта: 24/24=1 комм. панель
FD1_2 обслуживает 35 портов: 35/24=1,45=> 2 комм. панели
Всего 3 комм. панели
2 этаж:
FD2_1 обслуживает 35 портов: 35/24=1,45=> 2 комм. панели
FD2_2 обслуживает 43 порта: 43/24= 1,8=> 2 комм. Панели
Всего 4 комм. панели
3 этаж:
FD3_1 обслуживает 31 порт: 31/24=1,3 => 2 комм. панели
FD3_2 обслуживает 34 порта: 34/24=1,4 => 2 комм. Панели
Всего 4 комм. панели
Кол-во органайзеров 1U = кол-во используемых коммутационных панелей:
1 этаж – 3 шт.
2 этаж – 4 шт.
3 этаж – 4 шт.
Определение необходимой высоты телекоммуникационного шкафа FD:
Высота = (кол-во коммутационных панелей x 1U) + (кол-во органайзеров x 1U)
1 этаж:
FD1_1 1·1U+1·1U=2U
FD1_2 2·1U+2·1U=4U
2 этаж:
FD2_1 2·1U+2·1U=4U
FD2_2 2·1U+2·1U=4U
3 этаж:
FD3_1 2·1U+2·1U=4U
FD3_2 2·1U+2·1U=4U
Из предлагаемых телекоммуникационных шкафов выбираю настенный шкаф Nexans 19", 18U, 3-х секционный, 892х500х650 мм, так как самая большая расчетная величина высоты телекоммуникационного шкафа равна 4U. И еще требуется место для установки активного оборудования и коммутационных панелей вертикальной подсистемы.
Определение количества адаптеров:
Кол-во адаптеров = кол-во адаптеров для РМ + кол-во адаптеров для коммутационных панелей
1 этаж: 59+59=118 адаптеров
2 этаж: 78+78=156 адаптеров
3 этаж: 65+65=130 адаптеров
Выбираю проходной адаптер разъемного соединителя LANmark-OF Snap-in MM, LC-LC Duplex
Определение количества коммутационных шнуров:
Кол-во коммутационных шнуров = кол-во задействованных портов РМ + кол-во задействованных портов в коммутационной панели = 2 * кол-во портов РМ
1 этаж: 59·2=118 комм. шнуров
2 этаж: 78·2=156 комм. шнуров
3 этаж: 65·2=130 комм. шнуров
Выбираю коммутационный шнур LANmark-OF 50/125, OM3, 2LC-2LC, 2 м, LSZH, Оранжевый
Определение необходимого количества коннекторов:
Кол-во коннекторов = 4*кол-во портов
1 этаж: 4*59=236 коннектора
2 этаж: 4*78=312 коннекторов
3 этаж: 4*65=260 коннекторов
Выбираю коннекторы LANmark-OF LC Simplex MM.
Кол-во розеток = кол-во РМ
Кол-во однопортовых розеток =16 шт. Кол-во двухпортовых розеток =93 шт.
Из предложенных розеток я считаю целесообразным выбрать однопортовые розетки рабочей зоны LANmark 45x45 и двухпортовые розетки Modular OF Splicing Outlet 45X45 for 2 Snap-in adaptors. Они обеспечивают быстрый и надежный монтаж оптических проходных адаптеров LC.
1.2 Расчёт магистральной подсистемы
Определение количества ОВ на этаж:
Кол-во ОВ = кол-во рабочих мест * 0,2
1 этаж:
0,2·13=2,6 ОВ
0,2·18=3,6 ОВ
2 этаж:
0,2·18=3,6 ОВ
0,2·23=4,6 ОВ
3 этаж:
0,2·17=3,4 ОВ
0,2·18=3,6 ОВ
Рекомендуется использовать минимум 6 волокон на этаж (2 рабочих волокна, 2 резервных и 2 на расширение системы), но это по минимуму, поэтому для магистральной подсистемы считаю лучшим выбрать оптоволоконный кабель ёмкостью 12 волокон: кабель ВО, LANmark-OF3, TBW+, 12х50/125, LSZH
Для каждого из FD на этажах буду ставить по 1 универсальной выдвижной оптической коммутационной панели LANmark-OF 1U с возможностью установки 24 дуплексных адаптеров LC .
Всего получается 6 коммутационных панелей, и соответственно, 6 органайзеров.
Определение длины магистрального оптоволоконного кабеля:
Длина магистрального кабеля = Сумма всех кабелей, приходящих с каждого этажа + 2 *3 м на этаж = 3* длина кабеля от каждого FD до прохода м/у этажами + типовая высота этажа *кол-во FD на 2 этаже + 2* типовая высота этажа *кол-во FD на 3 этаже + (кол-во FDи BD)*3м
Длина магистрального кабеля = 3*1,75+3*27,3+4,3*2+2*4,3*2+(6+1)*3=134 м
Т.е. закупать нужно 1 катушку (500м).
Определение общего количества ОВ:
Общее кол-во ОВ = кол-во этажей * кол-во ОВ на этаж
Общее кол-во ОВ = 3·2·12=72 ОВ
Определение количества ОВ коммутационных панелей (для BD):
Ранее я уже выбрала универсальную выдвижную оптическую коммутационную панель LANmark-OF, 1U с возможностью установки 24 дуплексных адаптеров LC.
Кол-во ОВ комм. панелей = кол-во ОВ / кол-во портов комм. панели
Кол-во ОВ комм. панелей = 36/24= 2 комм. панели.
К 3-м комм. панелям необходимы 2 кабельных органайзера.
Определение высоты шкафа распределителя здания:
Высота шкафа расп. здания = кол-во комм. панелей* 1U + кол-во кабел. огранайзеров* 1U
Высота шкафа = 2·1 U+2·1 U=4U
Из предлагаемых телекоммуникационных шкафов выбираю настенный шкаф Nexans 19", 18U, 3-х секционный, 892х500х650 мм, т.к. расчетная высота телекомм. шкафа гориз. подсистемы равна 4U+ расчетная высота шкафа распределителя здания 4U, итого 8U.
Определение количества дуплексных адаптеров:
Кол-во адаптеров = кол-во FD *кол-во волокон на FD/2 + общее кол-во ОВ/2
Кол-во адаптеров =6*12/2+72/2=36+36=72 адаптера.
Из предлагаемых адаптеров выбираю адаптер разъемного соединителя LANmark-OF Snap-in MM, LC-LC Duplex
Определение количества коммутационных шнуров:
Количество комм. шнуров = общее кол-во ОВ/2/6
т.к. из шести пар ОВ от каждого FD рабочая пара только 1
Количество комм. шнуров =72/2/6=6 комм. шнуров.
Выбираю коммутационный шнур LANmark-OF 50/125, OM3, 2LC-2LC, 2 м, LSZH, Оранжевый
Определение необходимого количества коннекторов:
Кол-во коннекторов = 2*общее кол-во ОВ
Кол-во коннекторов =72·2=144 коннекторов.
Выбираю коннекторы LANmark-OF LC Simplex MM.
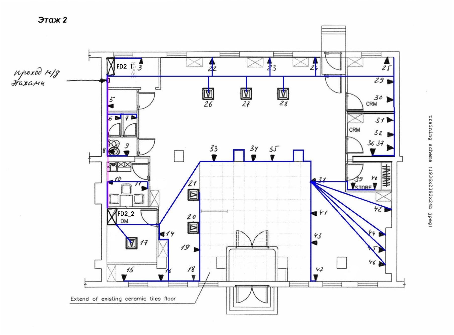
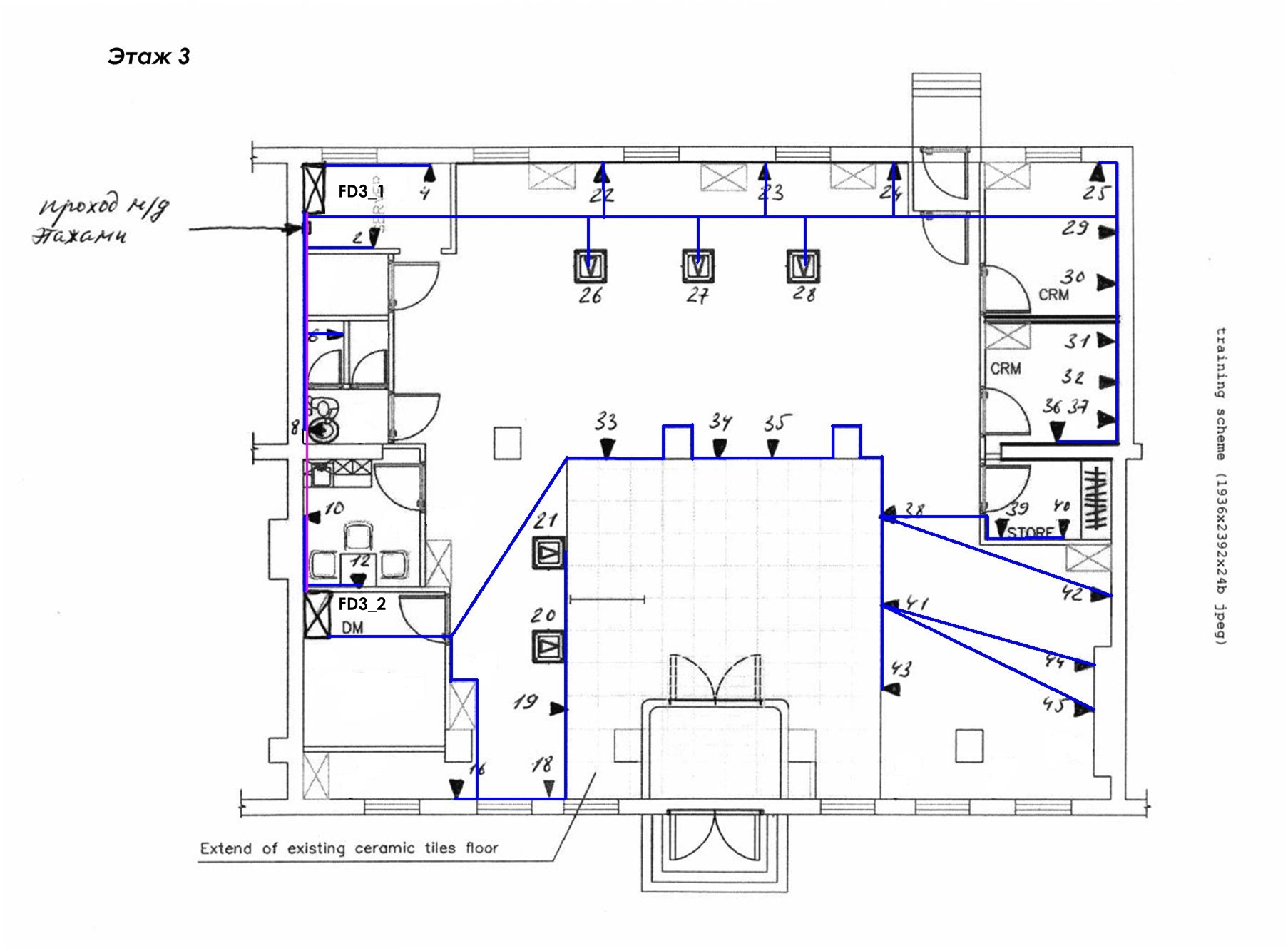
2. Схемы
Обозначения:
Горизонтальная
подсистема, кабель проложен в фальшполу.
Там, где кабель упирается в стену, нужно
сделать отверстие в стене.
Вертикальная
подсистема



3. Перечень оборудования для СКС
3.1 Перечень оборудования горизонтальной подсистемы
1 этаж:
-
Артикул
Наименование
Кол-во
Ед. изм.
N165.001
Волоконно-оптический кабель LANmark-OF3, ZC, 2хMM50/125, LSZH,
7
катушка
N441.203
Коммутационная панель, оптическая, LANmark-OF, выдвижная
3
шт
N965.311
Коммутационный шнур LANmark-OF 50/125, OM3, 2LC-2LC, 2 м, LSZH, Оранжевый
118
шт
N102.117
Организатор кабеля 19", 1U, закрытый, Г=80мм;
3
шт
N102.118
Настенный шкаф Nexans 19", 18U, 3-х секционный 892х500х650 мм
2
шт
N205.630
Коннекторы LANmark-OF LC Simplex MM
236
шт
N205.611
Адаптер LANmark-OF Snap-in MM, LC-LC Duplex
118
шт
N423.520.
Однопортовые розетки рабочей зоны LANmark 45x45.
5
шт.
N420.035
Modular OF Splicing Outlet 45X45 for 2 Snap-in adaptors
27
шт
2 этаж:
-
Артикул
Наименование
Кол-во
Ед. изм.
N165.001
Волоконно-оптический кабель LANmark-OF3, ZC, 2хMM50/125, LSZH,
9
катушка
N441.203
Коммутационная панель, оптическая, LANmark-OF, выдвижная
4
шт
N965.311
Коммутационный шнур LANmark-OF 50/125, OM3, 2LC-2LC, 2 м, LSZH, Оранжевый
156
шт
N102.117
Организатор кабеля 19", 1U, закрытый, Г=80мм;
4
шт
N102.118
Настенный шкаф Nexans 19", 18U, 3-х секционный 892х500х650 мм
2
шт
N205.630
Коннекторы LANmark-OF LC Simplex MM
312
шт
N205.611
Адаптер LANmark-OF Snap-in MM, LC-LC Duplex
156
шт
N423.520.
Однопортовые розетки рабочей зоны LANmark 45x45.
6
шт.
N420.035
Modular OF Splicing Outlet 45X45 for 2 Snap-in adaptors
36
шт
3 этаж:
-
Артикул
Наименование
Кол-во
Ед. изм.
N165.001
Волоконно-оптический кабель LANmark-OF3, ZC, 2хMM50/125, LSZH,
7
катушка
N441.203
Коммутационная панель, оптическая, LANmark-OF, выдвижная
4
шт
N965.311
Коммутационный шнур LANmark-OF 50/125, OM3, 2LC-2LC, 2 м, LSZH, Оранжевый
130
шт
N102.117
Организатор кабеля 19", 1U, закрытый, Г=80мм;
4
шт
N102.118
Настенный шкаф Nexans 19", 18U, 3-х секционный 892х500х650 мм
2
шт
N205.630
Коннекторы LANmark-OF LC Simplex MM
260
шт
N205.611
Адаптер LANmark-OF Snap-in MM, LC-LC Duplex
130
шт
N423.520.
Однопортовые розетки рабочей зоны LANmark 45x45.
5
шт.
N420.035
Modular OF Splicing Outlet 45X45 for 2 Snap-in adaptors
30
шт
Итого:
-
Артикул
Наименование
Кол-во
Ед. изм.
N165.001
Волоконно-оптический кабель LANmark-OF3, ZC, 2хMM50/125, LSZH,
23
катушка
N441.203
Коммутационная панель, оптическая, LANmark-OF, выдвижная
11
шт
N965.311
Коммутационный шнур LANmark-OF 50/125, OM3, 2LC-2LC, 2 м, LSZH, Оранжевый
404
шт
N102.117
Организатор кабеля 19", 1U, закрытый, Г=80мм;
11
шт
N102.118
Настенный шкаф Nexans 19", 18U, 3-х секционный 892х500х650 мм
6
шт
N205.630
Коннекторы LANmark-OF LC Simplex MM
808
шт
N205.611
Адаптер LANmark-OF Snap-in MM, LC-LC Duplex
404
шт
N423.520.
Однопортовые розетки рабочей зоны LANmark 45x45.
16
шт.
N420.035
Modular OF Splicing Outlet 45X45 for 2 Snap-in adaptors
93
шт
Перечень оборудования магистральной подсистемы.
-
Артикул
Наименование
Кол-во
Ед. изм.
N165.605
Кабель ВО, LANmark-OF3, TBW+, 12х50/125, LSZH
1
катушка
N441.203
Коммутационная панель, оптическая, LANmark-OF, выдвижная
2
шт
N965.311
Коммутационный шнур LANmark-OF 50/125, OM3, 2LC-2LC, 2 м, LSZH, Оранжевый
6
шт
N102.117
Организатор кабеля 19", 1U, закрытый, Г=80мм;
2
шт
N102.118
Настенный шкаф Nexans 19", 18U, 3-х секционный 892х500х650 мм
1
шт
N205.630
Коннекторы LANmark-OF LC Simplex MM
144
шт
N205.611
Адаптер LANmark-OF Snap-in MM, LC-LC Duplex
72
шт
4. Схемы размещения оборудования в шкафах
4.1 1 этаж
BD/FD1_1:
Магистральная подсистема (6U):
3 коммутационные панели 24 дуплексных LC адаптера и
3 кабельных органайзера
Горизонтальная подсистема (2U):
1 коммутационная панель 24 дуплексных адаптера LC и
1 кабельный органайзер
BD
FD1_1
FD1_2:
Магистральная подсистема (2U):
1 коммутационная панель 24 дуплексных LC адаптера и
1 кабельный органайзер
Горизонтальная подсистема (4U):
2 коммутационные панели 24 дуплексных LC адаптера и
2 кабельных органайзера
4.2 2 этаж
FD2_1:

Горизонтальная подсистема (4U):
2 коммутационные панели 24 дуплексных LC адаптера и
2 кабельных органайзера
Магистральная подсистема (2U):
1 коммутационная панель 24 дуплексных LC адаптера и
1 кабельный органайзер
FD2_2:

Горизонтальная подсистема (4U):
2 коммутационные панели 24 дуплексных LC адаптера и
2 кабельных органайзера
Магистральная подсистема (2U):
1 коммутационная панель 24 дуплексных LC адаптера и
1 кабельный органайзер
4.3 3 этаж
FD3_1:

Горизонтальная подсистема (4U):
2 коммутационные панели 24 дуплексных LC адаптера и
2 кабельных органайзера
Магистральная подсистема (2U):
1 коммутационная панель 24 дуплексных LC адаптера и
1 кабельный органайзер
FD3_2:

Горизонтальная подсистема (4U):
2 коммутационные панели 24 дуплексных LC адаптера и
2 кабельных органайзера
Магистральная подсистема (2U):
1 коммутационная панель 24 дуплексных LC адаптера и
1 кабельный органайзер
Вывод по курсовому проектированию
В результате выполнения курсового проекта была спроектирована структурированная кабельная система офисных помещений трёхэтажного здания для обслуживания 109 рабочих мест на основе оптоволоконного кабеля OM3 с использованием оборудования фирмы Nexans. На каждом этаже располагаются по 2 этажных распределителя FD, на 1 этаже также расположен и распределитель здания BD, который установлен в один шкаф с FD1_1. В горизонтальной подсистеме используется кабель LANmark-OF3, ZC, 2хMM50/125, LSZH, ёмкостью 2 волокна, а в вертикальный подсистеме – ВО кабель LANmark-OF3, TBW+, 12х50/125, LSZH ёмкостью 12 волокон. По условию задания розетки рабочих мест 17, 20, 21, 26, 27, 28 должны находиться в полу, поэтому такие рабочие места оборудуются напольным лючком с однопортовой розеткой.
Кабель прокладывается в фальшполу.
1