Разработка метрологической лаборатории
СОДЕРЖАНИЕ
Введение
1.Техническое задание
2. Разработка и описание задач метрологической лаборатории
2.1. Разработка должностных инструкций
3. Разработка приборов лаборатории и методик их поверки
3.1. Разработка средств поверки установки У300
3.2. Проведение поверки установки У300
3.3. Разработка мер безопасности при работе с установкой У300
3.4. Порядок работы на установке У300
3.5. Характерные неисправности установки У300 и методы их устранения
3.6. Правила хранения и перевозки У300
3.7. Разработка манометра грузопоршневого типа МП-60
3.8. Проведение поверки манометром грузопоршневым типа МП-60
4. Литература
Приложение 1. Схема электрическая принципиальная установки У300
Приложение 2. Перечень элементов установки У300
Приложение 3. Технические данные трансформаторов и дросселей
ВВЕДЕНИЕ
В практической жизни человек всюду имеет дело с измерениями. На каждом шагу встречаются измерения таких величин, как длина, объем, вес, время и др.
Измерения являются одним из важнейших путей познания природы человеком. Они дают количественную характеристику окружающего мира, раскрывая человеку действующие в природе закономерности. Все отрасли техники не могли бы существовать без развернутой системы измерений, определяющих как все технологические процессы, контроль и управление ими, так и свойства и качество выпускаемой продукций.
Велико значение измерений в современном обществе. Они служат не только основой научно-технических знаний, но имеют первостепенное значение для учета материальных ресурсов и планирования, для внутренней и внешней торговли, для обеспечения качества продукции, взаимозаменяемости узлов и деталей и совершенствования технологии, для обеспечения безопасности труда и других видов человеческой деятельности.
Особенно возросла роль измерений в век широкого внедрения новой техники, развития электроники, автоматизации, атомной энергетики, космических полетов. Высокая точность управления полетами космических аппаратов достигнута благодаря современным совершенным средствам измерений, устанавливаемым как на самих космических аппаратах, так и в управляющих центрах.
Большое разнообразие явлений, с которыми приходится сталкиваться, определяет широкий круг величин, подлежащих измерению. Во всех случаях проведения измерений, независимо от измеряемой величины, метода и средства измерений, есть общее, что составляет основу измерений - это сравнение опытным путем данной величины с другой подобной ей, принятой за единицу. При всяком измерении мы с помощью эксперимента оцениваем физическую величину в виде некоторого числа принятых для нее единиц, т.е. находим ее значение.
В настоящее время, установлено следующее определение измерения: измерение есть нахождение значения физической величины опытным путем с помощью специальных технических средств.
Отраслью науки, изучающей измерения, является метрология.
Слово "метрология" образовано из двух греческих слов: метрон - мера и логос - учение. Дословный перевод слова "метрология" - учение о мерах. Долгое время метрология оставалась в основном описательной наукой о различных мерах и соотношениях между ними. С конца прошлого века благодаря прогрессу физических наук метрология получила существенное развитие. Большую роль в становлении современной метрологии как одной из наук физического цикла сыграл Д. И. Менделеев, руководивший отечественной метрологией в период 1892 - 1907 гг.
Метрология в ее современном понимании - наука об измерениях, методах, средствах обеспечения их единства и способах достижения требуемой точности.
1. Техническое задание
Установка для поверки и градуировки электроизмерительных приборов У300 предназначена для поверки амперметров и вольтметров постоянного и переменного тока всех систем методом сличения с показаниями образцовых приборов классов точности 0,2 и менее точных. Установка У300 предназначена для эксплуатации в диапазоне температур от 10°С до 35°С и относительной влажности до 80% при температуре окружающего воздуха 25°С.
Питание установки должно осуществляется от сети переменного тока напряжением (220±22)В, частотой (50±1)Гц. Установка может питаться от сети переменного тока напряжением (220±22)В повышенной частоты, до 500Гц. Коэффициент нелинейных искажений выходных переменных напряжений не превышает 2%.
2.Разработка и описание задач метрологической лаборатории
В нашей стране поверке подлежат все средства измерений, применяемые в производстве и торговле.
Основной метрологической характеристикой средства измерения, определяемой при поверке, является его погрешность. Как правило, она находится на основании сравнения поверяемого средства измерений с образцовым средством измерений или эталоном, т. е. с более точным средством, предназначенным для проведения поверки. Часто при поверке проводится градуировка поверяемого средства по образцовому. Этим самым осуществляется передача размера единицы „сверху вниз" - от эталона через образцовое средство измерений рабочему средству измерений. Техническое состояние средства измерений определяется путем внешнего осмотра и опробования.
Различают поверки: государственную и ведомственную, периодическую и независимую, внеочередную и инспекционную, комплексную, поэлементную и др.
Поверка выполняется метрологическими службами, которым дано на это право в установленном порядке.
Поверка проводится в соответствии с требованиями, установленными нормативно-техническими документами по поверке. К ним относятся государственные стандарты методов и средств поверки, методические указания по поверке государственного и ведомственного применения. Поверку проводят специально обученные специалисты, имеющие удостоверение на право проведения поверки.
Результаты поверки средств измерений, признанных годными к применению, оформляются выдачей свидетельства о поверке, нанесением поверительного клейма или иными способами, установленными нормативно-техническими документами на методы и средства поверки. Средство измерений, признанное не годным к применению, изымается из употребления и подлежит ремонту или списанию. После ремонта средство измерений подлежит повторной поверке.
Единство измерений - такое состояние измерений, при котором их результаты выражены в узаконенных единицах и погрешности измерений известны с заданной вероятностью. Единство измерений необходимо для того, чтобы можно было сопоставить результаты измерений, выполненных в разных местах, в разное время, с использованием разных методов и средств измерений.
Таким образом, важнейшей задачей метрологии является усовершенствованием эталонов, разработкой новых методов точных измерений, обеспечение единства и необходимой точности измерений.
Измерение является важнейшим понятием в метрологии. Это организованное действие человека, выполняемое для количественного познания свойств физического объекта с помощью определения опытным путем значения какой-либо физической величины. По характеру зависимости измеряемой величины от времени измерения разделяются на статические измерения, при которых измеряемая величина остается постоянной во времени и динамические измерения, в процессе которых измеряемая величина изменяется и является непостоянной во времени.
По способу получения результатов измерений их разделяют на следующие типы: прямые; косвенные; совокупные; совместные.
Прямые - это измерения, при которых искомое значение физической величины находят непосредственно из опытных данных. При прямых измерениях экспериментальным операциям подвергают измеряемую величину, которую сравнивают с мерой непосредственно или же с помощью измерительных приборов, градуированных в требуемых единицах. Прямые измерения широко применяются в машиностроении, а также при контроле технологических процессов (измерение давления, температуры и др.).
Косвенные - это измерения, при которых искомую величину определяют на основании известной зависимости между этой величиной и величинами, подвергаемыми прямым измерениям, т.е. измеряют не собственно определяемую величину, а другие, функционально с ней связанные. Значение измеряемой величины находят путем вычисления. Косвенные измерения широко распространены в тех случаях, когда искомую величину невозможно или слишком сложно измерить непосредственно или когда прямое измерение дает менее точный результат. Роль их особенно велика при измерении величин, недоступных непосредственному экспериментальному сравнению, например размеров астрономического или внутриатомного порядка.
Совокупные - это производимые одновременно измерения нескольких одноименных величин, при которых искомую величину определяют решением системы уравнений, получаемых при прямых измерениях различных сочетаний этих величин.
Совместные - это производимые одновременно измерения двух или нескольких неодноименных величин для нахождения зависимостей между ними.
Перед каждым крупным предприятием встает вопрос, каким образом производить поверку используемых на производстве приборов. Из данной ситуации есть два выхода либо проводить проверку в государственной метрологии либо создавать свою метрологическую центральную заводскую лабораторию, которая после прохождения государственной аттестации будет пригодна для проведения метрологической проверки приборов.
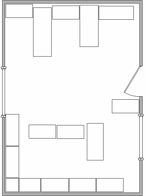
Метрологическая лаборатория должна располагаться либо в отдельном здании, либо находиться в отдельном помещении. План лаборатории изображен на рисунке 1. Расположения лаборатории в отдельном помещении (здании) связанно с необходимостью создания оптимальных условий для проведения поверки (калибровки) средств измерений (влажности, температуры и т.д.)

Р
ПК
Рабочее место
слесаря КИПиА
Рабочее место
слесаря КИПиА
Рабочее место
слесаря КИПиА
Стол
Инженер
метролог
Начальник
ЦЗЛ
Стеллаж
ПК
шкаф с документами
шкаф с документами
Принтер
ПК
ПК
ис. 1. Примерный план ЦЗЛ.

2.1. Разработка должностных инструкций
Разработка инструкции для слесаря КИПиА
1. Общая часть
Слесарь КИПиА является исполнителем группы метрологии ЦЗЛ и подчиняется непосредственно руководителю группы метрологии.
Назначение, перемещение в должности и увольнение слесаря КИПиА производится приказом директора или по представлению начальника ЦЗЛ и (или) на основании решения аттестационной комиссии.
Слесарь КИПиА руководствуется в своей работе Законом РФ "Об обеспечении единства измерений", стандартами системы качества по метрологическому обеспечению, "Положением о группе метрологии ЦЗЛ", "Политикой в области качества", приказами и распоряжениями по ЦЗЛ, нормативной и технической документацией на контрольно-измерительные проборы, указаниями начальника ЦЗЛ и инженера-метролога - руководителя группы метрологии..
2. Квалификационные требования.
Слесарь КИПиА 6-го разряда должен иметь среднее специальное техническое образование и стаж работы в должности слесаря КИПиА 5-го разряда не менее одного года.
Слесарь КИПиА 5-го разряда должен иметь среднее специальное техническое образование и стаж работы в должности слесаря КИПиА 4-го разряда не менее одного года.
3. Должностные обязанности.
Слесарь КИПиА обязан:
осуществлять ежедневный осмотр и техническое обслуживание, закрепленных за ним средств измерений;
проводить профилактические работы по предотвращению неполадок в приборах;
принимать срочные меры по замене неисправных приборов, находящихся в подразделениях предприятия;
производить своевременный ремонт неисправных средств измерений и контроля;
подготавливать приборы для поверки и калибровки согласно графикам (или по указанию инженеров-метрологов);
производить проверку приборов на соответствие их классу точности 1 раз в квартал;
соблюдать правила техники безопасности при обслуживании контрольно-измерительных приборов;
следить за исправностью заземляющего провода прибора;
-производить смазку трущихся частей приборов 2раза в год приборным маслом;
содержать в чистоте и исправности приборы, необходимые для производства работ самим слесарем КИПиА;
следить за обеспечением искробезопасности приборов согласно инструкциям по эксплуатации;
соблюдать правила внутреннего распорядка и поддерживать чистоту и порядок на рабочем месте;
выполнять указания инженера-метролога по соответствующей группе приборов.
4. Права.
Слесарь КИПиА имеет право:
производить изъятие из обращения неисправных или используемых не по назначению контрольно-измерительных приборов;
участвовать в аттестации технологического и испытательного оборудования;
вносить предложения по организации труда, внедрению передовых методов работы.
5. Ответственность.
Слесарь КИПиА несет ответственность за исполнение служебных обязанностей в соответствии с требованиями настоящей инструкции.
Разработка инструкции для инженера-метролога.
(Руководителя группы метрологии центральной заводской лаборатории).
1. Общая часть.
Инженер-метролог - руководитель группы метрологии является ответственным руководителем группы метрологии центральной заводской лаборатории (ЦЗЛ) и подчиняется непосредственно начальнику ЦЗЛ.
Назначение, перемещение в должности и увольнение инженера-метролога - руководителя группы метрологии центральной заводской лаборатории производится приказом директора по представлению начальника ЦЗЛ и (или) на основании решения аттестационной комиссии.
Инженер-метролог руководствуется в своей работе Законом РФ "Об обеспечении единства измерений", стандартами системы качества по метрологическому обеспечению, "Положением о ЦЗЛ", "Положением о группе метрологии ЦЗЛ", "Политикой в области качества", приказами и распоряжениями по ЦЗЛ, нормативной и технической документацией на контрольно-измерительные проборы, указаниями начальника ЦЗЛ и директора по качеству.
2. Квалификационные требования.
Инженером-метрологом - руководителем группы метрологии назначается лицо с высшим метрологическим или высшим техническим образованием и стажем работы в области метрологии не менее одного года, или лицо со среднеспециальным образованием и стажем работы в области метрологии не менее 3-х лет.
3. Должностные обязанности.
Инженер - метролог - руководитель группы метрологии обязан:
выполнять работы по метрологическому обеспечению разработки, производства, испытаний выпускаемой продукции и природоохранной деятельности;
вести учет всех имеющихся средств измерений и контроля, а также регистрировать все вновь поступившие;
разрабатывать и соблюдать графики государственной поверки и калибровки средств измерений и контроля, графики аттестации;
проводить своевременную калибровку средств измерения и контроля согласно области аккредитации;
контролировать состояние образцового оборудования и приборов;
своевременно (согласно графикам) осуществлять сбор и представление средств измерений и контроля на поверку, калибровку и в ремонт;
принимать участие в выборе средств измерений и давать рекомендации по назначению того или иного типа приборов;
осуществлять метрологический контроль правильности хранения, применения и эксплуатации средств измерения и контроля в подразделениях предприятия;
участвовать в разработке техдокументации на измерения специального назначения, а также в разработке программ и (или) методик метрологической аттестации данных средств;
принимать участие в аттестации испытательного оборудования, не стандартизированных средств измерений и контроля;
принимать участие в подготовке заявок на приобретение новых средств измерений;
участвовать в работе комиссии по выявлению причин брака, возникшего в результате применения средств и методов измерений, не обеспечивающих достаточной точности измерений;
разрабатывать и внедрять стандарты предприятия по метрологическому обеспечению производства;
участвовать в определении потребности производства в необходимых средствах измерения и контроля;
составлять ежемесячный отчет о работе группы метрологии;
соблюдать правила внутреннего трудового распорядка и требования инструкций по охране труда и пожарной безопасности.
4. Права.
Инженер-метролог - руководитель группы метрологии имеет право:
проводить регистрацию и учет средств измерений, а также, требовать от работников подразделений предприятия сведений о вновь поступивших средствах измерения и контроля в составе любого технологического, энергетического или другого оборудования;
производить принудительное изъятие из обращения неисправных или используемых не по назначению контрольно-измерительных приборов, любым способом, исключающим их дальнейшую эксплуатацию;
участвовать в аттестации технологического и испытательного оборудования;
требовать своевременной доставки средств измерения и контроля из подразделений предприятия в ЦЗЛ (группа метрологии) для проведения поверки (калибровки) и ремонта;
участвовать в ревизиях метрологического состояния измерений на предприятии.
5. Ответственность.
Инженер-метролог - руководитель группы метрологии несет ответственность за исполнение служебных обязанностей в соответствии с требованиями настоящей инструкции.
Критерием оценки труда инженера-метролога - руководителя группы метрологии является:
- своевременное и качественное проведение калибровки и аттестации испытательного оборудования и НСИ;
- отсутствие нареканий со стороны начальника ЦЗЛ.
Форма оплаты труда - должностной оклад плюс надбавка за профессиональное мастерство.
Возможностью профессионального роста для инженера-метролога - руководителя группы является:
изучение передового отечественного и зарубежного опыта в области метрологии;
курсы повышения квалификации в Академии стандартизации, метрологии и сертификации.
3. Разработка приборов лаборатории и методик их поверки.
В нашей примерной лаборатории используется установка для проверки и градуировки электроизмерительных приборов У300 и манометр грузопоршневой МП-60.
Более подробно рассмотрим установку для проверки и градуировки электроизмерительных приборов У300.
Установка для поверки и градуировки электроизмерительных приборов У300 предназначена для поверки амперметров и вольтметров постоянного и переменного тока всех систем методом сличения с показаниями образцовых приборов классов точности 0,5 и менее точных. Установка У300 предназначена для эксплуатации в диапазоне температур от 10°С до 35°С и относительной влажности до 80% при температуре окружающего воздуха 25°С.
Номинальные значения выходных напряжений, токов и действующее значение переменной составляющей выходного постоянного напряжения соответствует значениям, указанным в таблице 1.
Максимальное значение напряжения каждого предела регулирования при номинальной нагрузке превышает номинальное, указанное в таблице 1, не менее чем на 5%. Питание установки осуществляется от сети переменного тока напряжением (220±22)В, частотой 50Гц. Установка может питаться от сети переменного тока напряжением (220±22)В повышенной частоты, до 500Гц. Коэффициент нелинейных искажений выходных переменных напряжений не превышает 2%.
Изменение выходного напряжения, вызванное изменением напряжения питающей сети на ±10% от номинального значения, не должно превышать 1% от конечного значения предела регулирования.
Таблица 1.
-
Наименование
параметра
Пределы регулирования
Низковольтный блок
Высоковольтный блок
Номинальное значение выходного постоянного напряжения
0,15
1
1
2
3
4
-
100
350
1000
Тока, А
0,2
50
30
20
10
5
-
1
0,2
0,1
Значение перемен
ной составляющей выходного посто-
янного напряжения мВ, не более.
-
30
30
60
90
120
-
1000
3500
10000
Номинальное значение выходного переменного напряжения, В.
0,5
1,5
3
6
9
12
15
100
350
1000
Тока, А
300
50
50
30
20
10
2
1
0,2
0,1
Мощность, потребляемая установкой от сети, не превышает 750ВА.
В установке применена релейная защита полупроводниковых выпрямителей высоковольтного блока от перегрузки. Изоляция между электрическими деталями и корпусом установки выдерживает в течение 1 минуты без пробоя действие испытательного напряжения синусоидальной формы и частоты 50Гц, в 1,5кВ - для электрически соединенных между собой всех выходных зажимов блоков: высоковольтного, низковольтного и стабилизатора и в ЗкВ - для электрически соединенных между собой выходными зажимами «образцовый» и «поверяемый».Сопротивление изоляции электрических цепей установки относительно корпуса при температуре (20 ± 5°С) и относительной влажности до 80% должно быть не менее 40МОм.
Органы плавной регулировки выходного напряжения обеспечивают плавность, необходимую при применении образцового прибора класса 0,5 при поверочных и градировочных работах. Установка снабжена выносным делителем, погрешность коэффициента, деления которого не превышает ±20%. Время непрерывной работы установки без выключения не менее 8 часов, так же установка допускает непрерывную работу при неизменном положении органов плавного регулирования не менее 4 часов.
Габаритные размеры установки 520x1040x720мм, со съемным столиком - 980x1040x720мм, масса установки - 100 кг.
Установка представляет собой многопредельный источник питания, в котором стабильность выходного напряжения и тока обеспечивается феррорезонансным стабилизатором; чистота формы кривой напряжения переменного тока - двухступенчатой фильтрацией стабилизированного напряжения; плавность регулирование выходного параметра обеспечивается применением вариатора с двумя подвижными контактами и понижающего трансформатора, повышающего плавность регулирования в 15 раз; малое содержание переменной составляющей в выпрямленном напряжении и токе обеспечивается высокой добротностью фильтров на выходе выпрямителей. Принципиальная электрическая схема приведена в приложении 2. Блок феррорезонансного стабилизатора с дополнительными фильтрами выполнен на двух монтажных панелях, скрепленных между собой жесткими скобами. На вход стабилизатора напряжение сети подается через переключатель «сеть», нормально закрытый контакт реле защиты и переключатель "50Гц до 500Гц", когда он находится в положении "50Гц". Блок регулировки выполнен на двухщеточном регулировочном вариаторе с двумя коаксиальными ручками. Вольтодобавочный трансформатор, понижающий напряжение в 15 раз, обеспечивает высокую плавность регулировки. Ручки вариатора выведены на лицевую панель установки. Плавная регулировка осуществляется внутренней ручкой меньшего диаметра. Низковольтный блок расположен в нижней части установки. Выпрямитель блока выполнен по двухполупериудной схеме выпрямления. Для сглаживания пульсации применен фильтр. Последовательно с дополнительным дросселем сглаживающего фильтра включен резистор, служащий для снятия с него низких напряжений до 150мВ. Переключатель пределов регулирования расположен в центре блока и имеет шесть фиксированных положений. В 6- положении переключателя ("0,2 A" "0.I5V ") на выходные зажимы блока, подается напряжение до 150мВ, служащее для поверки милливольтметров с наиболее часто встречающимися напряжениями 45, 75, 150мВ. Напряжение на обмотке 300А имеется в любом положении переключателя и может быть использовано при поверке амперметров переменного тока от 50 до 300А. Блок высоковольтный расположен в средней части установки. Переключатель пределов регулирования, расположенный в центре блока, имеет семнадцать фиксированных положений. В первых девяти положениях переключателя напряжение на выходе блока и установки изменяется от единиц вольт в положении от 1В до 100В в девятом (при введенной ручке «грубо»), при этом наибольший ток при нагрузке 1А. В положениях 10-13 наибольший допустимый ток 0,2А при напряжении в тринадцатом положении до 350В. Наибольший допустимый ток в положениях с четырнадцатого по семнадцатое - 0,1А при напряжении в последнем положении до 1000В. На лицевую панель блока коммутации, кроме ручек переключателей, выбирающих род тока, блок питания, поверяемый прибор (амперметр или вольтметр) и полярность, вынесены:
переключатель «сеть» и лампочка, сигнализирующая о включении установки;
предохранитель на 5А;
переключатель "1000В", без включения которого нельзя на выходных зажимах установки получать напряжение при переключателе пределов высоковольтного блока, установленном в положении "350В /200мА" или "100V/1000мА".
При включении переключателя "I000В" загорается знак "молния", предупреждающий о возможности подачи на выходные зажимы установки высокого напряжения;
зажимы «поверяемый» и «образцовый», расположенные в левой части панели, дублируют соответствующие зажимы, расположенные в правой части. Зажим «поверяемый» подключаются последовательно с зажимом «образцовый». При переключателе «поверяемый прибор» установленном в положении "А" и параллельно - при положения переключателя "Б";
зажимы "300А", на которые подается переменное напряжение до 0,5В при переключателе «блок питания» в положения «низковольтный» сигнальная лампочка, сигнализирующая о перегрузке выпрямителей высоковольтного блока. С целью обеспечения поверки милливольтметров с пределами измерения до 1000мВ и микроамперметров с пределами измерения от 0,1мА и малым внутренним сопротивлением к установке придается выносной делитель напряжения с коэффициентами деления: 1/3; 1/10; 1/30; 1/100; 1/300; 1/1000, который подключается к выходным зажимам установки.
Поверяемый прибор при этом подключается к общему зажиму «-» и к зажиму с требуемым коэффициентом деления. Максимальное напряжение, подаваемое на вход делителя, не должно превышать 1В. Установка имеет шнур питания для подключения установки к сети и соединительные проводники для подключения поверяемых и образцовых приборов. Данные трансформаторов и дросселей указаны в приложении 4.
При проведении поверки должны выполняться следующие операции:
Определение номинального и максимального значения выходных величин. Определение действующего значения переменной составляющей выходного постоянного напряжения. Определение коэффициента нелинейных искажений выходных переменных напряжений.
3.1. Разработка средств поверки установки У300.
При проведении поверки установки У300 на постоянном токе по схеме рис.1 применяются следующие средства:

Рис. 1. Схема поверки установки на постоянном токе.
V1 - вольтметр для измерения напряжения сети, 250В, кл.2,5;
A1 - амперметр для измерения тока потребления установкой, 5А, класс2,5;
V2 - вольтметр для измерения постоянного напряжения на клеммах установки «поверяемый», до 1000В, класс 1,5;
А2 - амперметр для измерения тока в нагрузке, до 300А, (в зависимости от поверяемого предела), кл.1,5;
Rэкв. - эквивалент нагрузки;
AT - автотрансформатор для регулировки напряжения сети;
mV - ламповый милливольтметр для измерения напряжения пульсаций, до 10В.
При проведении поверки установки У300 на переменном токе по схеме изображенной на рис.2 применяются следующие средства:
Р
ис.
2 Схема поверки установки на переменном
токе
V1- вольтметр для измерения напряжения сети, 250В, класс 2,5;
A1 - амперметр для измерения тока потребления установкой, 5А, класс 2,5;
V2 - вольтметр для измерения переменного напряжении на клеммах установки «проверяемый», до 1000В, класс 1,5;
А2 - амперметр для измерения тока в нагрузке, до 300А (в зависимости от поверяемого предела), класс 1,5;
Rэкв. - эквивалент нагрузки;
AT - автотрансформатор для регулировки напряжения сети;
UН - измеритель нелинейных искажений, до 3%.
3.1. Условия поверки
При проведении поверки соблюдайте следующие условия:
температура окружающего воздуха должна быть (20±5)°С при относительной влажности до 80%;
питание должно бить от сети переменного тока напряжением (220±22)В и частотой (50±0,5)Гц (при проверке приборов на частоте, отличной от 50Гц, питание осуществляется от источника с частотой до 500Гц напряжением. 220В);
должны практически отсутствовать магнитные и электрические поля, кроме земного магнитного поля;
все металлические панели блоков и каркас установки должны быть надежно электрически соединены между собой и заземлены.
Подготовка к поверке.
Перед проведением поверки выполните следующие подготовительные работы:
установите и заземлите установку;
проверьте цепь сигнализации высокого напряжения;
установите переключатель «сеть» и переключатель "I000V" в положение «выключено»;
установите переключатель пределов и ручки регулировки в крайнее левое положение;
соберите схему поверки установки согласно рис. 1,2.
3.2. Проведение поверки установки У300
Внешний осмотр: при проведении внешнего осмотра установите соответствие установки требованиям комплектности, маркировки, покрытий и наличию органов управления.
Установки, находящиеся в эксплуатации или выпускаемые из ремонта, не допускают к дальнейшей проверке, если в них: отсутствуют, расшатаны или повреждены ручки управления или обнаружены отсоединившиеся части или посторонние предметы.
Плавность регулирования органов регулирования проверяйте по схеме рис.2 вольтметром (амперметром) класса точности не ниже 0,2 на любом пределе регулирования.
Конечная отметка шкалы прибора долина соответствовать номинальному значению предела регулирования. Изменяя выходное напряжение, проверьте возможность установки стрелки образцового прибора, подключенного к выходным зажимам установки, на каждую числовую отметку шкалы. Стрелка должна устанавливаться плавно, без видимых скачков.
При проверке работоспособности установки по схемам рис. 1,2 соблюдайте следующие условия:
1поверку установки на постоянном токе производите по схеме рис.1, а на переменном по схеме рис.2;
при питании выхода от низковольтного блока питания измерение параметров производите в каждом положении переключателя блока;
при питании от высоковольтного блока измерение производите на пределе каждого поддиапазона ("I00В","350В", "I000В").
Случаи, когда измерения производятся не на всех пределах регулирования, оговорены в методике поверки с указанием пределов;
выходное напряжение устанавливайте ручками автотрансформатора на блоке регулирования установки, а ток в нагрузке изменением сопротивления нагрузка (Rэкв).
Определение номинального и максимального значения выходных величин.
Проверку выходных напряжений и токов установки производите по схемам рис.1 и. рис.2 путем измерения напряжения на нагрузке (Rэкв) при соответствующих токах в нагрузке. Нагрузку рассчитайте на ток и мощность проверяемого предела. Измерения производится на всех пределах.
Определение действующего значения переменной составляющей выходного постоянного напряжения. Измерение эффективных значений переменных составляющих выходных постоянных напряжений установки производите ламповым вольтметром по схеме рис.1 на всех пределах. Величина пульсаций не должна превышать значений, указанных в таблице 1.
Определение коэффициента нелинейных искажений выходных переменных напряжений. Проверку величины коэффициента нелинейных искажений выходных переменного напряжения и тока производите по схеме рис.2 измерителем нелинейных искажений на всех пределах при частоте питающей сети (50±1)Гц. Измерения производите при номинальном токе и напряжении, соответствующем пределу, а также при номинальном напряжении и отключенной нагрузке. Коэффициент нелинейных искажений должен быть не более 2%
3.3. Разработка мер безопасности при работе с установкой
Образцовый прибор и поверяемый прибор подключается к установке только соединительными проводами, входящими в комплект установки. О возможности подачи на выходные зажимы установки напряжения свыше 1000В сигнализирует загорание знака "молния " при включении переключателя "1000В". К работе на установке допускаются лица, изучившие настоящее техническое описание, инструкцию по эксплуатации и допущенные к эксплуатации электротехнических установок с напряжением до 1000В. Расположение, подключение и работу на установке необходимо производить с соблюдением правил техники безопасности, распространяемых на электротехнические установки с напряжением до 1000В. Контроль заземления установки и неисправность цепи сигнализации высокого напряжения "молния" производите регулярно перед началом работы на установке. Включать переключатель "1000В" следует только при необходимости. Подключение приборов к установке и переключение переключателей производите только при отключении от сети установки (выключатель «сеть» - в положении «выключено», ручки автотрансформатора - в крайнем левом положении). Блокирующее устройство отключает питание высоковольтного блока при открытии двери установки.
Подготовка к работе.
Не снимая полиэтиленового чехла, выдержите установку в помещении не менее 12часов.
Разрежьте и снимите чехол, снимите установку с рамы.
Расположите установку на рабочем месте и подключите ее к заземляющему контуру.
Клеммы " земля " расположены внизу слева и справа на корпусе установки. При необходимости смонтируйте на установке съемный столик с подставкой, для поверяемого прибора.
Для установки столика оба стержня ручек на боковой стенке установки с той стороны, на которой намечено установить съёмный столик, оттяните к центру, поверните вокруг оси и зафиксируйте.
В открывшиеся пазы на боковых бобышках вставьте большие кронштейны (по одному), а стержни ручек через отверстия в кронштейнах верните в прежнее положение.
На кронштейны установите столешницу так, чтобы четыре штыря вошли в отверстия в кронштейнах. Снизу на штыри наверните гайки М4 с шайбами.
На столешницу установите малые кронштейны, чтобы их пазы плотно обхватили край столешницы. Кронштейны в торец прикрепите винтами МЗ к большим кронштейнам.
На малые кронштейны установите изоляционную подставку широкими пазами вверх. Подставку через пазы закрепите винтами МЗ с шайбами к кронштейнам
Пазы в изоляционной подставке служат для регулировки её в горизонтальной плоскости.
Проверьте и при необходимости установите:
переключатель «сеть» в положение «выключено»;
переключатель "1000В" - в положение «выключено»;
переключатели пределов - в нужное положение.
Ввод установки в эксплуатацию осуществляет потребитель.
Особенности эксплуатации.
Питание установки при необходимости (при поверке приборов на частоте, отличной от 50Гц) осуществляться от источника с частотой до 500Гц и напряжением 220В.
Для переключения установки на повышенную частоту откройте заднюю дверцу установки и переведите переключатель на распаечной планке блока коммутации в положение "до 500Гц"
Следует иметь в виду, что стабилизатор в установке будет в этом случае отключен, поэтому стабильность напряжения на выходных зажимах установки и коэффициент нелинейных искажений будут определяться параметрами источника питания питающего установку. При выпуске с завода-изготовителя переключатель установлен в положение "50Гц".
Изменение положения переключателей блока коммутации и блоков питания производите при обесточенных блоках питания.
Снятие напряжения производите переключателем «сеть» при работе с низковольтным блоком или высоковольтным в первых девяти положениях переключателя (до "100В "). При работе с высоковольтным блоком на пределе свыше 100В снятие напряжения производите переключателем "1000В".
3.4. Порядок работы на установке У300
Поверку приборов производите методом сличения показаний поверяемого прибора с показаниями образцового прибора. Подключение приборов производите к соответствующим зажимам на установке с соблюдением полярности.
Поверка вольтметров
Вольтметры с пределами измерения от 1 до 45мВ и током потребления до 0,2А поверяйте от высоковольтного блока питания с использованием делителя напряжения.
Вольтметры с пределами измерения от 1 до 45мВ и током потребления свыше 0,2А поверяйте без выносного делителя напряжения от высоковольтного блока на первых пределах регулирования.
Наиболее распространенные милливольтметры с пределами измерения 45, 75 и 150мВ поверяйте с низковольтного блока питания, при переключателе пределов регулирования блока в положении "0,2А"/"0,15В".
Вольтметры с пределами измерения от 1 до 1000В поверяйте от высоковольтного блока, за исключением низковольтных вольтметров, ток потребления которых в сумме с током потребления образцового вольтметра превышает 1А.
Низковольтные вольтметры с током потребления свыше 1A поверяйте от низковольтного блока питания.
Поверка амперметров.
Амперметры с пределами измерения от 10-7 до 0,2А поверяйте от выносного делителя напряжения в том случае, когда падение напряжения на поверяемом и образцовом амперметрах не превышает 1В.
Амперметры с пределами измерения до1А, поверяйте от высоковольтного блока питания, причем выбор необходимого предела регулирования производите последовательным переключением переключателя пределов, начиная с первого, до требуемого предела регулирования.
Амперметры постоянного тока с пределами измерения от 1А до 50А поверяйте от низковольтного блока питания.
При этом следует иметь в виду, что предел регулирования на переключателе должен быть близок к пределу измерения прибора.
Пример. Нельзя амперметр с пределом измерения до 5А поверять на пределе 50А, т.к. эффективность действия дросселя фильтра, подключенного в блоке на пределе 50А будет недостаточна для тока 5А и переменная составляющая в выпрямленном токе может возрасти выше допустимой нормы.
Амперметры переменного тока с пределами измерения от 1 до 50А поверяйте от низковольтного блока питания на любом из пределов регулирования. Выбор предела регулирования определяется падением напряжения на поверяемом и образцовом приборах.
Амперметры переменного тока с пределами измерения от 50А до 300А поверяйте от отдельных зажимов "300A"
3.5. Характерные неисправности установки У300 и методы их устранения
В процессе эксплуатации установка может подвергаться мелкому (текущему) ремонту.
Наиболее часто встречающиеся неисправности приведены в таблице 2.
По вопросам среднего ремонта рекомендуется (при необходимости) обращаться на предприятие-изготовитель.
Таблица 2.
-
Неисправность
Вероятная причина
Методы устранения
При включении переключателя «сеть» не горит сигнальная лампочка.
Перегорела лампа, перегорел предохранитель, неисправен шнур питания.
Замените лампочку или предохранитель, исправьте шнур питания.
При включении переключателя «1000V» не загорается знак «молния».
Перегорели сигнальные лампочки.
Замените лампочки.
При перегрузке выпрямителей высоковольтного блока не загорается лампочка «перегрузка», но напряжение отключается
Перегорела сигнальная лампочка.
Замените лампочку.
3.6. Правила хранения и перевозки установки У300
Установка хранится в закрытом помещении при температуре от 5 до 40°С и относительной влажности воздуха не более 80%.
Установка, предварительно запаянная в чехол из полиэтиленовой или аналогичной по своим свойствам синтетической пленки вместе с влагопоглотителем или упакованная во влагонепроницаемую бумагу, закрепляется на специальной раме и транспортируется в деревянном ящике. Вместе с установкой должны транспортироваться отдельно упакованные в одну коробку принадлежности и запасные части, входящие в комплект установки. Дата консервации совпадает с датой упаковывания. Транспортирование установки может производиться любым видом закрытого наземного или водного транспорта при температуре от минус 50°С до плюс 60°С и относительной влажности воздуха 95% при температуре 40°С.
3.7. Разработка манометра грузопоршневого типа МП-60
Грузопоршневые манометры являются наиболее точными и стабильными приборами давления, дающую наилучшую повторяемость результатов измерений.
Манометр грузопоршневой МП-60 класса точности 0,05 (в дальнейшем - манометр) предназначен для проверки и калибровки измерительных приборов давления.
Технические характеристики манометра грузопоршневого МП-60:
Верхний предел измерения – 60 кгс/см2
Нижний предел измерения – 1 кгс/см2
Номинальное значение площади поршня – 0,5 см
Номинальное значение массы поршня с грузоприемным устройством – 0,5х0,98кг
Давление, создаваемое поршнем с грузоприемным устройством – 1 кгс/см2
Габаритные размеры – 790х440х620мм.
Масса манометра без грузов – 42,5кг.
Масса манометра с грузами – 73,5кг
Манометр (рис. 3) состоит: из устройства для создания давления и колонки грузопоршневой измерительной (в дальнейшем - колонка), представляющей собой неуплотнённую поршневую пару с комплектом грузов.
Колонка состоит из; цилиндра; ограничительной втулки; поршня с грузоприёмным устройством; чашки с прокладкой; винта с прокладкой. На поршне имеются круговые риски - указатели границы рабочего хода поршня.
Во время работы, при снятии показаний, поршень с грузоприёмным устройством должен вращаться от руки по часовой стрелке со скоростью не менее 30 об/мин для равномерного распределения рабочей жидкости в зазоре между поршнем и цилиндром.
При низких давлениях (в диапазоне до 10% от верхнего значения) для увеличения продолжительности вращения поршня необходимо увеличить скорость вращения во избежание быстрой остановки.
Устройство для создания давления (рис.3) состоит из станины 1, на которой расположены: центральная стойка 2 для установки колонки 3, левый безрезьбовой захват 4, правый безрезьбовой захват 5, ручной скальчатый насос 6, вентиль для сброса давления 7, опоры 9 с регулировочными винтами 8.
Гидравлическая схема устройства для создания давления состоит из:
- бачка для рабочей жидкости с фильтром и вентилем для сброса давления в системе;
- ручного скальчатого насоса с обратным клапаном, нагнетательным клапаном, рукояткой 6 и запорным вентилем;
- пресса с поршнем и рукояткой;
- центрального корпуса со стойкой для установки колонки с запорным вентилем;
- безрезьбовых захватов;
- левого и правого корпусов запорными вентилям;
- сливной пробки.
При помощи вышеописанного устройства можно создать необходимое эталонное давление путём уравновешивания колонки необходимым количеством грузов, отградуированных в единицах давления, поддерживая поршень в рабочем положении.
1. Запрещается работать на манометре до заполнения бачка рабочей жидкостью.
2. Не допускать попадания воздуха в систему трубопроводов.
3. Для закрывания вентилей, нельзя применять какие - либо приспособления.
3.8. Проведение поверки манометром грузопоршневым типа МП-60
Поверка – это установление пригодности средства измерения на которое распространяется Государственный Метрологический надзор к применению, на основании контроля их метрологических характеристик. Проводить поверку необходимо в нормальных условиях (температура t=200C, атмосферное давление 760мм.рт.ст., влажность = 85%).
Внешний осмотр. При проведении внешнего осмотра необходимо проверить четкость фиксации переключателя, плавность регулировки элементов, расположенных на передней панели.
Общий принцип поверки.
1 Поверка манометров образцовых проводятся по действующим ГОСТам и методическим указаниям сличением показаний деформационных манометров и других деформационных измерительных преобразователей давления с величиной давления, создаваемого подвижной частью колонки и грузами, подогнанными под номинальное значение давления.
2 Приборы для поверки и калибровки подключают к безрезьбовым захватам 4, 5 манометра (рис.3) с помощью шайб или переходных втулок из комплекта поставки, устанавливая предварительно под поверяемые приборы уплотнительные прокладки. При этом поверяемые приборы разворачивают лицевой стороной, удобной для наблюдения. Следим чтобы был выставлен ноль, если ноль не стоит то корректором нуля выставляем ноль.
3. После подключения приборов необходимо открыть вентили 11, 12 и 13.
На колонку 3 помешаем 4 груза, подогнанных под номинальное значение давления – 1 кгс/см2.
4. Закрываем вентиль 7 и с помощью скальчатого ручного насоса 6 создаем начальное избыточное давление 5 кгс/см2. Закрываем вентиль 11.
5. При работе, вращая по часовой стрелке рукоятку 10 пресса, плавно повышаем давление в гидросистеме манометра, вращая рукоятку против часовой стрелки, плавно понижаем давление.
6. Необходимое эталонное давление задаётся комплектом грузов, подогнанных под номинальное значение давления, плюс давление, создаваемое самим поршнем с грузоприёмным устройством.
С помощью пресса поршень колонки во время измерений необходимо поддерживать в рабочем положении (верхняя кромка ограничительной втулки находится между рисками - указателями рабочего хода поршня, желательно, в среднем положении).
Во время снятия показаний поршень вращаем со скоростью, не менее 30 об/мин. По окончании работы вращением рукоятки 6 против часовой стрелки, опускаем поршень колонки в крайнее нижнее положение, закрываем вентиль 7 и сбрасываем давление.
Поверку проводят манометром МП-60, по общему принципу. Снятие показаний проводиться добавлением одного груза, подогнанных под номинальное значение давления – 5 кгс/см2, при повышение давления до придела. Затем понижая давления и снимаем по одному грузу, до нуля. Результат записываем в таблицу 1. Из таблицы переносятся в «Свидетельство о поверке»
Таблица 1. Результаты измерений.
-
Действительное значение
При повышение
При понижение
0
5
10
15
20
25
30
35
40
45
50
55
60
0
8,50
16,90
25,00
32,70
41,00
49,30
57,90
66,50
74,90
83,20
91,20
99,50
0
8,60
16,90
24,90
32,70
41,00
49,50
58,00
66,50
75,00
83,30
91,20
99,50
В МО погрешность не рассчитывается, а смотрят чтобы интервал между показаниями не превышал 1 кгс/см2 , а придел не выходил за 100.
4.Литература
1. Метрология, уч. пособие, Москва, Логос, 2000
2. Информационно-измерительная техника и технологии: учеб. для вузов. – М.: Высш. шк., 2002
3. Методы и средства измерений: М.: Издательский центр «Академия», 2003
4. Инструкция по эксплуатации установки У300.
Приложение. Технические данные трансформаторов и дросселей
|
Обозначение. |
Обозначение обмотки. |
Количество витков. |
Марка и диаметр провода. |
|
ТР1 |
W1 |
935±4 |
ПЭВ-2; ø0,135 |
|
W2 |
65±1 |
ПЭВ-2; ø1 |
|
|
ТР2 |
W1-2 |
2970 |
ПЭВ-2; ø0,125 |
|
W3-4 |
94 |
ПЭВ-2; ø0,63 |
|
|
ТР3 |
W27-28 |
5 |
ПБ-Д; ø4 |
|
W28-29 |
5 |
||
|
W29-30 |
6 |
||
|
W30-25 |
2 |
||
|
W25-31 |
8 |
||
|
W31-32 |
10 |
||
|
W22-23 |
450 |
ПЭВ-2 ø0,85; |
|
|
W101-101 |
4 |
||
|
ТР4 |
W1-2 |
520±5 |
ПЭВ-2; ø0,56 |
|
W3-4 |
670±5 |
ПЭВ-2; ø0,224 |
|
|
W4-5 |
550±5 |
||
|
W5-6 |
443±4 |
||
|
W6-7 |
137±1 |
||
|
W7-8 |
500±5 |
ПЭВ-2; ø0,356 |
|
|
W8-9 |
320±2 |
||
|
W9-10 |
265±2 |
||
|
W10-11 |
155±1 |
||
|
W11-12 |
148±1 |
ПЭВ-2; ø0,75 |
|
|
W12-13 |
97±1 |
||
|
W13-14 |
55 |
||
|
W14-15 |
32 |
||
|
W15-16 |
23 |
||
|
W16-17 |
11 |
||
|
W17-18 |
6 |
ПЭВ-2; ø0,75 |
|
|
W18-19 |
3 |
||
|
W19-20 |
5 |
||
|
ДР1 |
W1А-3А |
173 |
ПЭВ-1; ø1,32 |
|
W3А-5А |
5 |
||
|
W5А-6А |
31 |
||
|
W6А-8А |
20 |
||
|
W8А-10А |
15 |
||
|
W10А-1Б |
15 |
||
|
W1Б-3Б |
8 |
||
|
W3Б-6Б |
273 |
||
|
ДР2 |
W1-2 |
495±3 |
ПЭВ-1; ø1,32 |
|
W3-4 |
30 |
||
|
W4-5 |
28 |
||
|
W6-7 |
20 |
||
|
W7-8 |
10 |
||
|
W8-9 |
10 |
||
|
W9-10 |
5 |
||
|
Обозначение. |
Обозначение обмотки. |
Количество витков. |
Марка и диаметр провода. |
|
ДР3 |
420 |
ПЭВ-1; ø1,32 |
|
|
ДР5- ДР6 |
800 |
ПЭВ-2; ø1 |
|
|
ДР7 |
350 |
ПЭВ-2; ø1,6 |
|
|
ДР8 |
550 |
ПЭВ-1; ø0,56 |
|
|
ДР9 |
W34-35 |
100 |
Шина медная 3,55*5,6 |
|
W35-36 |
90±1 |
ПЭВ-2; ø1,6 |
|
|
W36-37 |
60±1 |
ПЭВ-1; ø2,36 |
|
|
W37-38 |
60±1 |
||
|
W38-39 |
60±1 |
||
|
ДР10 |
W |
800 |
ПЭВ-2; ø0,85 |
|
ДР11- ДР12 |
W |
700 |
ПЭВ-2; ø0,63 |
|
ДР13- ДР14 |
W |
4000 |
ПЭВ-2; ø0,28 |