Практикум по криминалистической тактике и методике расследования отдельных видов преступлений
Государственный Комитет РФ по высшему образованию
Факультет договорных форм обучения при ГОУ ЮИ МВД РФ
Адрес: 300000, г. Тула, пр. Ленина, 53
Адрес местожительства Кафедра __криминалистики_
Индекс___300065________________ __________________________
Город____Тула__________________ Ф._____Троицкий__________
Улица____Кв.М.Гончары__________ И.______Геннадий__________
дом_____11_____кв.____76_______ О._____Владимирович______
тел.сл.______42-20-18___________ Вид обучения – заочное
тел.дом.____77-69-65 ___________ Курс___5_____набор__1997__
№ гр.__73___№ зач.кн._487_
Курсовая /контрольная/ работа __по___Криминалистике____________
Практикум по криминалистической тактике и методике расследования отдельных видов преступлений. Тема 7.
Содержание
I. |
ЗАДАНИЕ №1 |
С.2 |
1. |
а) План подготовительных мероприятий |
С.2 |
|
б) Перечень технико – криминалистических средств. |
С.5 |
|
2. |
А) Осмотр места происшествия |
С.7 |
|
б) протокол осмотра МЕСТА ПРОИСШЕСТВИЯ. |
С.11 |
|
3. |
А) Схематический план |
С.14 |
II. |
ЗАДАНИЕ №2. |
С.15 |
1. |
Возбуждение уголовного дела. |
С.15 |
2. |
Обстоятельства, подлежащие доказыванию. |
С.16 |
3. |
А) Общий план расследования. |
С.17 |
|
|
Б) Форма общего плана расследования. |
С.20 |
4. |
План проведения осмотра места происшествия. |
С.21 |
|
|
Литература |
С.22 |
ЗАДАНИЕ №1
1-а. План подготовительных мероприятий
При получении сообщения о происшествии, до проведения осмотра следователь должен:
Выяснить у сообщившего, что произошло, где находится место происшествия, есть ли необходимость в срочном прибытии следователя;
Выяснить, приняты ли меры по охране места происшествия, в ином случае дать указание должностным лицам об организации охраны;
Вызвать для участия в осмотре необходимых сотрудников, а также специалистов (сотрудников экспертно-криминалистических подразделений, экспертов учреждений системы министерства юстиции);
Пригласить понятых, выяснить при этом, отвечают ли данные лица требованиям, предъявляемым к понятым;
Сообщить начальнику следственного отдела о предстоящем осмотре места происшествия, выехать со следователем, который примет это дело к производству;
При выезде на место происшествия обязательно взять следственный портфель и фотокомплекс.
По прибытии на место происшествия следователю необходимо:
Зафиксировать время своего прибытия на место происшествия;
Проверить, охраняемо ли место кражи;
Удалить всех посторонних лиц;
Убедиться в том, что понятые отвечают всем требованиям;
На основании сообщения работников милиции, находящихся на месте происшествия, и опроса потерпевшего, свидетелей (по одиночке) получить краткую информацию о краже;
Назначить нужные экспертизы.
В случае кражи из квартиры должно быть произведено криминалистическое исследование следов – трасологическое исследование. В целях раскрытия и расследования преступления, все объекты (следы, окурки, орудия преступления и т.п.) должны быть выявлены и изъяты. На месте происшествия проводится их предварительное изучение для получения розыскной и доказательственной информации, которая используется в раскрытии кражи «по горячим следам».
До осмотра при необходимости используется служебно-розыскная собака. Это помогает выдвинуть версии о путях подхода и отхода преступников, правильно определить границы осмотра, обнаружить похищенные ценности, предметы, брошенные преступниками.
Выявление следов преступления предполагает обнаружение видимых, проявление маловидимых или невидимых следов кражи: следы рук, ног, орудие взлома и др.
Фиксация следов преступления – это их закрепление на объекте-следоносителе или изготовление слепков, копий, фотоснимков с использованием соответствующих средств, слепочных масс и других материалов, веществ, химических реактивов. Необходимо выявить и отразить в протоколе такие характерные признаки предмета как t, запах, цвет, материал, из которого он сделан, наличие надписей, маркировки, имеющиеся дефекты.
Изъятие следов кражи предполагает их упаковку, процессуальное оформление и приобщение к уголовному делу, обеспечение сохранности и подлинности. На упаковке указывается наименование предмета и место его изъятия, наименование уголовного дела, дата изъятия, должность и фамилию следователя, проводившего осмотр места кражи, его подпись и подписи свидетелей.
Задачи выявления, фиксации и изъятия следов преступления охватываются единым понятием – собирание доказательств. Очень важно для расследования и раскрытия преступления, чтобы следы и иные доказательства были выявлены полностью, зафиксированы точно и наглядно.
1-б. Перечень технико – криминалистических средств.
Средства освещения - это разнообразные источники искусственного света, которые мы будем применять при недостаточном освещении, а также для освещения объектов в соответствии с задачами и приёмами осмотра или фотосъёмки. В качестве источника света будут использоваться бытовые, промышленные и специальные средства освещения (переносные фотоосветители, бытовые фонарики, электрические фотовспышки и др.).
Фотографические средства – это фотоаппараты различных модификаций. В ходе осмотра в соответствии с задачами могут быть использованы методы измерительной (масштабная линейка), узловой, детальной, косопадающей, комбинированной фотосъемки.
Узловая фотосъемка – фиксация отдельных крупных предметов и наиболее важных частей места проведения следственного действия (в данном случае – это место взлома). По снимку можно определить форму, размер, и характер повреждений.
Детальная фотосъемка будет производиться для того, чтобы запечатлеть отдельные детали места проведения следственного действия и его результаты, т.е. обнаруженные вещи, следы и объекты, а также индивидуальные признаки таких объектов.
Оптические приборы – это всевозможные увеличительные приспособления, позволяющие расширить естественные границы восприятия глаза и применяемые для обнаружения и осмотра незначительных по размеру вещественных доказательств или их отдельных частей (лупы, микроскопы).
Средства измерения – линейки, рулетки, транспортиры, штангенциркули, микрометры, угломеры с нониусом и др. – будут применены для определения количественных характеристик местонахождения и истинных размеров объектов фиксации.
Материалы для изготовления слепков, копий – гипс, воск, парафин, стенс, стеарин, силиконовая паста «к», а также низкомолекулярный синтетический каучук и т.д. – используем для фиксации и изъятия вдавленных следов.
2-а. Осмотр места происшествия
Поводом к проведению осмотра места происшествия является сообщение о совершении кражи, поступившее в дежурную часть отдела внутренних дел.
При получении сообщения о происшествии, в связи с которым необходим выезд для проведения осмотра, следователь должен дать указания об охране места происшествия и о сохранении обстановки места происшествия по возможности в первозданном виде.
До осмотра при необходимости применяется служебно-розыскная собака. Результаты применения служебно-розыскной собаки помогают в ряде случаев выдвинуть версии о путях подхода и отхода преступников, правильно определить границы осмотра, обнаружить похищенные ценности, предметы, брошенные преступниками.
Перед проведением осмотра следователь должен позаботиться о вызове понятых (ст. 135 УПК РСФСР). Понятые вызываются в количестве не менее двух, ими могут быть любые граждане, которые не имеют в деле личного (прямого или косвенного) интереса. Также следует соблюсти иные ограничения при выборе понятых (нежелательно привлечение водителей или других технических работников органов внутренних дел, совмещение в одном лице функций понятого и другого лица, выполняющего при производстве осмотра какие-либо функции) 1.
При необходимости от понятых может быть получена расписка с обязательством не разглашать данные, которые стали им известны в ходе осмотра места происшествия. При этом они предупреждаются об уголовной ответственности по ст. 310 УК РФ.
Перед началом осмотра следует провести краткий опрос лиц, которые могут дать какую-либо информацию о событии. Результаты опроса фиксируются следователем письменно, либо с помощью магнитофона. Определяя границы осмотра, необходимо включить в территорию осмотра площадку четвертого этажа, а также подъезд.
Осматривая место кражи со взломом, произведенной из квартиры, мы должны согласовать свои действия с потерпевшим, которому в необходимых случаях следует разъяснить, почему возникает необходимость в определенных исследованиях и изъятии конкретных предметов, которые по миновании необходимости будут возвращены потерпевшему. Присутствие потерпевших при осмотре необходимо также потому, что без них нередко трудно определить относимость к делу обнаруженных на месте происшествия следов и предметов.
Особое внимание надо уделить замкам, которые подлежат изъятию для экспертного исследования. В ходе анализа результатов осмотра не должна быть исключена версия об инсценировке кражи, которая может быть совершена по различным причинам.
Если устанавливается, что похищены сберегательные книжки, ценные бумаги, различного рода квитанции и другие документы, дающие право на получение материальных ценностей (например, квитанции о сдаче вещей в ремонт или в химчистку),
В данном случае осмотр квартиры целесообразно проводить, начиная с места взлома; далее: прихожая, комната, кухня и ванная комната. Поскольку объектом основного интереса предполагаемого преступника (преступников) является жилая комната, ее мы примем за центр осмотра.
На лестничной площадке, в 45 см. от входной двери, обнаружено орудие взлома – гвоздодер, которым был произведен отжим ригеля врезного замка. Один конец гвоздодера заострен, другой («лапа») плоский, раздвоенный. На ригеле замка остались хорошо видимые объемные следы-отображения в виде трасс. Это говорит о том, что в процессе отжима орудие взлома соскальзывало, отчего и образовались динамические следы – трассы. Дополнительно следует осмотреть запорную планку, переднюю планку короба замка, деревянные части короба и брусьев обвязки на предмет наличия следов взлома. До осмотра и фиксации данных следов рекомендуется не закрывать дверь, не отпирать и не запирать замок, который подлежит изъятию для проведения трасологической экспертизы. Для фиксации следов взлома в заключение проводится узловая (при необходимости и детальная) фотосъемка места взлома с использованием сочетаний прямого и бокового освещения.
Параллельно с осмотром места взлома выбирается позиция (позиции) для производства ориентирующей обзорной съемки и делаются снимки (один или несколько).
Согласно фабуле, на полу в прихожей обнаружен окрашенный след обуви предполагаемого преступника. Мы идентифицируем обувь, выяснив:
конструкцию подошвы;
размер подошвы и ее частей;
общую характеристику поверхности подошвы и ее частей;
способ крепления подошвы и ее частей;
количество рядов шпилек, гвоздей, винтов;
наличие на подошве подковок, шипов, клейм и обозначений.
наличие признаков, свидетельствующих о степени износа обуви.
По следу обуви возможно приближенное определение роста человека по формуле: Р = (Д - д) 100/15,5(15,8), где Р – рост человека, Д – длина следа, д – превышение длины подошвы над длиной стопы (составляет 1-1,5 см). Для определения размера обуви используется формула: Н = (Д – д)/ Ш, где Н – размер обуви, Д – длина следа подошвы, д – превышение длины следа над длиной стопы, Ш – штих (равен 2/3 см).1
Необходимо сфотографировать обнаруженный след по правилам масштабной фотосъемки. Так как след окрашенный, следует взять на анализ частицы красящего вещества. Поскольку след поверхностный, его можно скопировать на липкую крупноформатную пленку или соответствующего размера увлажненную фотобумагу.
Важную роль в расследовании может сыграть идентификация преступника по следам пальцев рук. Кроме прямой идентификации, существует возможность установить особенности руки, приблизительно определить пол и возраст человека, оставившего след. Поэтому следует особое внимание уделить обнаружению, фиксации и изъятию этих следов. При осмотре замкнутого места происшествия (например, квартиры) прежде всего, обращают внимание на поверхности, которых преступник мог касаться, проникая в помещение и удаляясь из него. Это – двери, оконные рамы, стекла, подоконники, ограждения балкона и т.п. При краже особенно тщательно осматриваются поверхности различных хранилищ ценностей: сервантов, гардеробов, шкатулок и т.д. В нашем случае отпечатки пальцев рук являются поверхностными, слабо видимыми следами отображения. Соблюдая меры предосторожности, используем различные способы выявления, фиксации и изъятия следов рук. Во всех случаях обязательна фиксация следов рук при помощи описания в протоколе осмотра (ст. 182 УПК РСФСР), но могут быть использованы фотографирование, закрепление следов на объектах, различные способы копирования выявленных следов.
Согласно фабуле, на полу около платяного шкафа лежит несколько окурков сигарет. На окурках отображаются следы зубов, а также слюна, которая может служить самостоятельным предметом исследования. По следам зубов можно идентифицировать человека, по слюне – выяснить групповую принадлежность. Окурки упаковываются в небольшую коробку, заполненную ватой. Каждый окурок кладется в пробирку или завертывается в чистую бумагу, на которой делается соответствующая надпись. Необходимо зафиксировать обнаруженные следы, сделав их описание в протоколе.
2-б. Протокол осмотра места происшествия
Протокол
осмотра места происшествия
г. Тула_______________________ " 10_"__сентября_______ 2001_г.
(место составления) Начат в _9_ час. _30_ мин.
Окончен в _11_ час. _45_ мин.
Следователь ___________Зареченского ___РОВД______________________________
(наименование органа)
___ст. лейтенант Иванов И. И.________________, получив _10.09.01 г. в 9.00 ч.
(звание, фамилия, и.о.) (когда и от кого
_______от гр-на Троицкого Геннадия Владимировича_______________________________
поступило сообщение, заявление о совершенном преступлении)
прибыл ___кв. М. Гончары, д. 11, кв. 76________________________________________
(указывается место происшествия)
и, руководствуясь ст.ст. 178, 179 и 182 УПК РСФСР, произвел осмотр места
происшествия, о чем и составлен настоящий протокол.
Осмотр производился с участием понятых:
1. __Белоусовой Н.А., кв. М.Гончары, 11-77______________________________________
(ф. и. о., место службы или место жительства)
2. __Федорова А.И., кв. М.Гончары, 11-75________________________________________
3. _____________________________________________________________________________
(ф. и. о., место службы или место жительства)
которым была разъяснена их обязанность, предусмотренная ст. 135 УПК
РСФСР, удостоверить факт, содержание и результаты действий, при произ-
водстве которых они присутствовали.
В производстве осмотра места происшествия участвовал специалист
__Андреев В.Ф.__________________, которому разъяснены его права и обязаннос-
(ф. и. о. специалиста)
ти, предусмотренные ст. 133.1 УПК РСФСР, и он предупрежден об ответст-венности за отказ или уклонение от выполнения своих обязанностей.
Андреев .
(подпись специалиста)
Осмотр
производился с участием подозреваемого
(обвиняемого) _________
___________________________, а также __гр. Троицкого Г.В._____________________
(ф. и. о.)
_
_________________________________________________________________________________
(ф. и. о. участвовавших лиц)
Перед началом осмотра всем лицам, участвующим в следственном действии, было разъяснено их право присутствовать при всех действиях, производимых при осмотре места происшествия, и делать замечания, подлежащие занесению в протокол.
К
роме
этого, они были уведомлены о применении
при осмотре фотоаппаратуры и принадлежностей
к ней, оптических приборов, светофильтров,
средств выявления следов кожных узоров,
материалов для изготовления слепков и
иных технических средств, содержащихся
в следственном и экспертных чемоданах.
Осмотр производился при ___естественном___________________________________

(естественном,
искусственном)
о
свещении,
____________________________________погоде, ___________________
(состояние погоды) (слабом, сильном)
ветре, при температуре воздуха __20С_______ градусов С.
_Перед началом осмотра проведен краткий опрос следующих лиц:_1.гр-ки Белоусовой Н.А.;_2.гр-на Белоусова И.Н.;__3.гр-на Федорова А.Т. Результаты опроса зафиксированы следователем с помощью магнитофона. Аудиокассета в коробке упакована в полиэтиленовый пакет, оклеенный скотчем с биркой: «Аудиокассета “Sony-HF90” с записью краткого опроса соседей по поводу кражи из квартиры М. Гончары 11-76 10.09.01»._______
В границы осмотра включена площадка четвертого этажа, а также подъезд и территория в радиусе 10 метров от входа в подъезд._____________ _
__До осмотра использовалась служебно-розыскная собака, которая_______ взяла__ след, оборвавшийся в 3,5 метрах от входа в подъезд.___________
Обстановка места происшествия:
__Квартира № 76, 1-комнатная, на 4-этаже 5-этажного дома. На момент начала осмотра зафиксирована следующая обстановка: входная дверь приоткрыта; в коридоре и комнате дверцы шкафов, тумбочек открыты, содержимое разбросано по полу; на кухне и в ванной комнате некоторые шкафы также открыты, но беспорядок меньше.____________________________
При осмотре обнаружено:
1) На лестничной площадке, в 45 см. от входной двери кв.76 и в 50___
(все обнаруженное при осмотре в той последовательности,
см. от двери кв. 77, обнаружено орудие взлома – гвоздодер, которым__
в которой производился осмотр, и в том виде, в каком обнаруженное
был произведен отжим ригеля врезного замка. Один конец гвоздодера____
наблюдалось в момент осмотра; все изъятое при осмотре,
заострен, другой («лапа») плоский, раздвоенный. Длина гвоздодера – 55
как упаковано и опечатано)
см., длина рабочей части - 12 см. «Лапа» деформирована во внешнюю сторону. Предмет изъят, упакован в полиэтиленовый пакет, обвязанный веревкой с биркой: «Орудие взлома – гвоздодер, изъятый с места кражи из квартиры М. Гончары 11-76 10.09.01»._______________________________
На ригеле замка остались хорошо видимые объемные следы-отображения в виде трасс. Осмотр запорной планки, передней планки короба замка, деревянных частей короба и брусьев обвязки на предмет наличия следов__
взлома также выявил на брусьях обвязки отчетливые объемные следы______ отображения_ в виде трасс глубиной 0,1-0,5мм. Для фиксации следов_____ взлома в заключение была проведена узловая и детальная фотосъемка ____ места взлома_ с использованием сочетания прямого и бокового освещения. Замок изъят, упакован в пакет из плотной бумаги, обвязан веревкой, на_ бирке сделана надпись: «Замок, изъятый с места кражи из квартиры _ М._ Гончары 11-76 10.09.01».______________________________________________
2
)
На
полу в прихожей обнаружен поверхностный
окрашенный след______ обуви предполагаемого
преступника. Носок круглый широкий,
передний____ край каблука вогнутый. Длина
подошвы 30 см, что приблизительно________
соответствует 43 размеру обуви, которую
мог носить человек ростом_____ приблизительно
180 см. Рисунок косвенно говорит о том,
что обувь имеет глубокий протектор:
возможно, это ботинки военного______
образца. Обнаруженный след
сфотографирован по правилам____ масштабной
фотосъемки. Взяты на анализ частицы
красящего___ вещества, которые упакованы
в широкогорлую бутылочку из коричневого___
стекла, закрытую завинчивающейся
пробкой, приклеена бирка с надписью:_
«Частицы красящего вещества со следа
обуви, изъятые с места кражи из__ квартиры
М. Гончары 11-76 10.09.01». След скопирован
на_______________ соответствующего размера
увлажненную фотобумагу, которая упакована
и__ запечатана в конверт из плотной
бумаги, сделана надпись: «Копия следа_
обуви, изъятая с места кражи из квартиры
М. Гончары 11-76 10.09.01».__
3) Был проведен тщательный осмотр (в особ. стеклянных, прозрачных поверхностей) на предмет наличия следов рук, в результате, обнаружены следующие поверхностные, бесцветные, слабо видимые следы отображения:______________
1) При осмотре в косо падающих лучах зеркала шкафа в прихожей - отпечаток большого пальца правой руки в 20см. от верхнего и в 8см. от правого края зеркала. Длина следа 1см., ширина – 0,7см._______________________
2) При осмотре на просвет стеклянной дверцы бара в 1см. от нижнего левого угла дверцы – а)отпечаток среднего пальца левой руки (с внутренней стороны, длина следа – 0,8см, ширина – 0,5 см.); б)большого пальца левой руки (с наружной стороны, длина следа – 0,9см, ширина – 0,6см).Оба отпечатка имеют петлевой узор._____________________________
Была произведена фотосъемка следов в отраженном (1) и в проходящем (2) свете. Оба следа были скопированы при помощи силиконового компаунда, упакованы в картонные коробки путем приклеивания к дну, коробки обвязаны шпагатом и скреплены сургучной печатью, на бирках, прикрепленных к печати сделаны надписи: «След руки № 1 с зеркала прихожей (№ 2 с дверцы бара) с места кражи из квартиры М. Гончары 11-76 10.09.01.»___________________________________________
4) На полу около платяного шкафа были обнаружены 2 окурка сигарет с фильтром, одна из которых не докурена наполовину и является сигаретой марки «LM». Фильтры сильно смяты зубами, сплюснуты в средней части и слегка изжеваны на конце. На фильтрах сигарет наблюдаются следы зубов в виде углублений. Хотя следы неотчетливые, видно, что на каждом окурке отобразились следы 4 зубов (2 верхних и 2 нижних). Окурки помещены в стеклянные пробирки, которые закрыты ватными тампонами. Пробирки упакованы в картонную коробку. На коробке сделана надпись: «Пробирки с окурками сигарет, изъятыми с места кражи из квартиры М. Гончары, 11-76 10.09.01.» ___________________________.
К протоколу осмотра прилагается:
1)_Схема квартиры № 76, кв. М. Гончары________________________________
2)_Аудиозапись краткого опроса:_1.гр-ки Белоусовой Н.А.;_2.гр-на Белоусова И.Н.;_3.гр-на Федорова А.Т._________________________________
на аудиокассете “Sony-HF90”_________________________________________ _
3)_Орудие взлома - гвоздодер__________________________________________
3)_Замок врезной со следами взлома____________________________________
4)_Бутылочка с частицами красящего вещества_______________________________________
5) Копия со следа обуви___________________________________________________________
6) Копии следов рук (2 шт.)_______________________________________________________
7) Окурки сигарет (2 шт.)_________________________________________________________
При осмотре производилось фотографирование фотоаппаратом Зенит ТТL L
с объективом _ «Индустар-61»____________________________________ на пленку
чувствительностью 65 ___________________ единиц ГОСТ с применением фото-
вспышки _«Фил-11 М»_____________________________. Измерения производились _____________рулеткой, линейкой, микрометром _
(чем производились)
П
ротокол
прочитан всем участникам осмотра
следователем. От участников осмотра по
поводу порядка производства осмотра,
содержания протокола поступили следующие
замечания:
.
.
Никаких замечаний не поступило. В протоколе все записано правильно.
Следователь
_Зареченского РОВД, г. Тулы _
(наименование органа)
_Следователь_______________ Иванов _Иванов______
(должность) (подпись) (фамилия)
Специалист Андреев _Андреев_____
(подпись) (фамилия)
Понятые Белоусова _Белоусова___
(подпись) (фамилия)
Федоров _Федоров_____
(подпись) (фамилия)
Подозреваемый _______________ _____________
(подпись) (фамилия)
Иные участники Троицкий _Троицкий____
осмотра
(подпись) (фамилия)
_______________
_____________
(подпись) (фамилия)
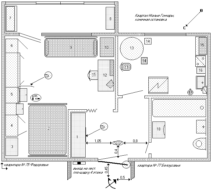
3-а. Схематический план.
СХЕМА
Квартиры № 76, расположенной на четвертом этаже дома № 11, Квартал Малые Гончары (г. Тула), принадлежащей гр. Троицкому Геннадию Владимировичу.
Приложение к протоколу осмотра места происшествия от 10 сентября 2001 года. Дело № ____________.

ОБОЗНАЧЕНИЯ
Следователь: |
1.шкаф |
10.тумбочка |
|
Иванов _ |
2.кровать |
11.стулья |
|
3.стол |
12.письменный стол |
|
|
Понятые: |
4.платяной шкаф |
13.обеденный стол |
|
Белоусова _ |
5.бар |
14.табуретки |
|
|
6.пенал |
15.навесной шкаф |
|
_______________ |
7.буфет |
16.кухонный пенал |
|
|
8.книжный шкаф |
17.мусорное ведро |
|
----------------------- |
9.диван-кровать |
18.стиральная машина |
ЗАДАНИЕ №2.
1. Возбуждение уголовного дела.
Уголовное дело должно быть возбуждено по статье 105 УК РФ, поскольку налицо признаки умышленного убийства. Диспозиция части 1 данной статьи гласит: «Убийство, то есть умышленное причинение смерти другому человеку, - наказывается лишением свободы на срок от шести до пятнадцати лет». В дальнейшем, при обнаружении квалифицирующих признаков, перечисленных в части 2 ст. 105 формулировка может быть уточнена более детально. 1
Убийство, т.е. умышленное причинение смерти другому человеку (ст. 105-108 УК РФ), является тяжелым преступлением против личности. Поводом для возбуждения уголовного дела стало заявление заместителя директора школы Петренко. Основанием является обнаружение на территории средней общеобразовательной школы 21 сентября 199… в 7 часов 30 мин автомашины ГАЗ-51 МАК 66-14, в кузове которой находился труп мужчины с признаками насильственной смерти.
2. Обстоятельства, подлежащие доказыванию.
Согласно статье 68 УПК РСФСР, подлежат доказыванию по уголовному делу следующие обстоятельства:
1) событие преступления (время, место, способ и другие обстоятельства совершения преступления);
2) виновность обвиняемого в совершении преступления и мотивы преступления;
3) обстоятельства, влияющие на степень и характер ответственности обвиняемого, указанные в статьях 61 и 63 Уголовного кодекса Российской Федерации, а также иные обстоятельства, характеризующие личность обвиняемого;
4) характер и размер ущерба, причиненного преступлением.
Подлежат выявлению также причины и условия, способствовавшие совершению преступления.1
При расследовании убийства в данном случае подлежат доказыванию следующие обстоятельства:
имело ли место убийство;
когда, где и при каких обстоятельствах было совершено преступление;
кто совершил убийство; не совершено ли оно группой лиц, если да – какова степень участия в преступлении каждого из них; как характеризуется преступник; имеются ли обстоятельства, отягчающие или смягчающие ответственность обвиняемого;
кто является потерпевшим; как характеризуется потерпевший;
каковы характер и размер ущерба, причиненного преступлением (в частности, при убийстве с ограблением, при убийстве единственного кормильца семьи и т.д.);
если налицо умышленное убийство (кроме убийства с превышением пределов необходимой обороны или совершенного в состоянии сильного душевного волнения), имело ли место заранее обещанное укрывательство;
какие обстоятельства способствовали совершению преступления.
3-а. Общий план расследования.
В нашем случае неясны мотивы убийства, поэтому первоначальные следственные действия вытекают непосредственно из сложившихся обстоятельств.
В первую очередь произведем тщательный осмотр места нахождения трупа, т.е. автомашины, с целью обнаружения следов, оставленных преступником или преступниками, следы борьбы, орудия преступления и другие вещественные доказательства, их обнаружение, фиксация и изъятие, с последующим направлением на экспертизы.
Произведем безотлагательно допрос заместителя директора школы Петренко, первым обнаружившего автомашину и гр. Стоцкого, видевшего автомашину в 4 часа утра из своей комнаты. В ходе допроса составим протокол, в котором подробно опишем все следственные действия, зафиксируем показания осведомленных лиц. Протокол подписывается всеми участниками осмотра с указанием даты и времени осмотра.
Осмотр места происшествия производится в присутствии судебно-медицинского эксперта, а при его отсутствии – иного врача. Эксперт выявляет все повреждения на трупе, посмертные явления (температура, окоченение), загрязнения; разжимает и осматривает ладони, берет соскобы из-под ногтей, образцы грязи с обуви. Производятся также другие необходимые виды осмотра трупа. Затем труп оправляют на судебно-медицинскую экспертизу для разрешения следующих вопросов:
а) какова причина смерти;
б) когда наступила смерть;
в) какие повреждения имеются на трупе, каков их характер, расположение и механизм образования, каким орудием причинены повреждения, каковы последовательность и время их нанесения;
г) наступила ли смерть сразу после причинения повреждений или через определенный промежуток времени;
д) в каком положении находился потерпевший в момент нанесения ему повреждений;
е) способен ли был потерпевший после причинения ему телесных повреждений совершать какие-либо самостоятельные действия;
ё) не изменялась ли поза трупа;
ж) какова группа крови потерпевшего;
з) принимал ли потерпевший незадолго до смерти алкоголь, наркотики.
По адресу проживания потерпевшего Голутвина Виктора Ивановича необходимо расспросить соседей, взять показания у сожительницы А.И. Ионовой. Следует внести в протокол ответы на следующие вопросы:
не враждовал ли убитый с кем-либо?
не высказывал ли угроз в чей-либо адрес?
не опасался ли мести?
каков был его образ жизни, а также поведение, особенно незадолго до гибели?
выяснить, где находилась и чем была занята Ионова А.И. в предполагаемое время убийства; при допросе установить связи погибшего, гражданки Ионовой.
На левой бортовой скамейке были найдены два скомканных, грязных листа бумаги с типографским текстом, прочесть который трудно. Эти вещественные доказательства должны быть незамедлительно направлены на криминалистическое исследование документов.
Произвести и внести в протокол допрос водителя Шишкова П.С., работника ЖЭКа Перовского района, с выяснением следующих вопросов:
Знал ли Шишков потерпевшего?
где находился Шишков в предполагаемое время убийства?;
кто еще знал код наборного замка?;
каким образом вверенная ему автомашина очутилась во дворе школы?
Необходимо снять отпечатки пальцев рук для дактилоскопического исследования; получить характеристику с места работы.
Носовой платок, выпачканный веществом оранжевого цвета, обнаруженный в кармане одежды – отправить на криминалистическое исследование, чтобы выяснить, что это за вещество.
Выяснить, принадлежат ли два билета в летний сад «Эрмитаж» на 10 сентября 199… г. потерпевшему Голутвину и связанные с этим обстоятельства.
На правой бортовой скамейке обнаружены несколько седых волос и 2 пятна бурого цвета, похожие на кровь. В ходе криминалистической экспертизы необходимо выяснить следующее:
принадлежат ли волосы человеку, вырваны они или выпали, принадлежат ли они мужчине или женщине, сходны ли они с волосами потерпевшего;
являются ли обнаруженные пятна кровью человека, какова группа, тип и другие особенности крови, какова давность образования следов.
Следует выяснить, где находится обувь и носок желтого цвета, принадлежавшие убитому Голутвину В.И.
Попытаться определить по следам шин автомашины направление ее движения (откуда она прибыла во двор школы).
3-б.Форма общего плана расследования.
План расследования
по уголовному делу № _3501__ по обвинению в умышленном убийстве__
по статье 105 УК РФ
|
Следственные версии |
Следственные действия и другие мероприятия, подлежащие проведению (по каждой версии) |
Сроки проведения |
Исполнители Ф.И.О. |
Отметка об исполнении |
|
Общая версия – имело место убийство |
1) Осмотр места обнаружения трупа 2) Допрос Петренко, Стоцкого, Шишкова, Ионовой |
21сентября 199… г. |
исполнено 21.09. |
|
|
Мотив убийства – 1) корыстная заинтересованность; 2) убийство в ссоре. |
Опрос соседей Допрос Ионовой Выяснить: а) не враждовал ли убитый с кем-либо? б) не высказывал ли угроз в чей-либо адрес? в) не опасался ли мести? г) каковы были его образ жизни и поведение? д) где находилась и чем была занята гр-ка Ионова в предполагаемое время убийства? е) установить связи погибшего, Ионовой |
21 сентября 199… г. |
исполнено 21.09. исполнено 21.09. |
|
|
Место убийства - 1) квартира Ионовой; 2) иное место |
1) Допрос Стоцкого, Шишкова, Ионовой; 2) Обыск квартиры Ионовой (при наличии санкции). |
21-22 сентября 199… г. |
1)исполнено 21.09. 2)исполнено 22.09. |
Старший следователь прокуратуры Перовского р-на г. _ Санкт-Петербурга_________
__Абрамов А.Д.___________ _ Абрамов_________
Ф.И.О. подпись
4. План проведения осмотра места происшествия.
План проведения осмотра места происшествия
Дата проведения осмотра «21» _сентября__ 199_ г.
|
I.Подготовка к осмотру |
|
1. при получении сообщения |
|
А) принять меры к охране места происшествия |
|
Б) вызвать необходимых оперативных сотрудников, а также специалистов, экспертов |
|
В) позаботиться о вызове понятых |
|
2. по прибытии на место происшествия: |
|
А) зафиксировать время |
|
б) проверить охрану, удалить всех посторонних |
|
в) найти понятых на месте, если не удалось доставить их вместе со следователем |
|
г) получить информацию у работников, прибывших ранее; опросить очевидцев (каждого отдельно) |
|
II.Наружный осмотр трупа и его месторасположения |
|
а) исследование одежды и обуви |
|
б) осмотр наружных повреждений |
|
в) принятие мер к сохранению микроследов на одежде и теле трупа (взятие соскобов из-под ногтей, образцов грязи с обуви) |
|
г) фотографирование трупа без изменения позы, относительно окружающей обстановки |
|
д) осмотр и фотографирование особых примет |
|
е) дактилоскопирование трупа |
|
ж) определение степени охлаждения и температуры |
|
з) выявление трупных пятен |
|
и) выявление окоченения |
|
к) выявление реакции поперечно-полосатых мышц |
|
л) выявление зрачковой реакции на пилокарпин и атропин |
|
III.Осмотр автомашины |
|
а) наружный осмотр и фотографирование автомашины |
|
б) осмотр и фотографирование кабины водителя |
|
в) обнаружение, фиксация и изъятие следов рук на рулевом колесе, дверях и других деталях |
|
г) осмотр и фотографирование кузова |
|
д) осмотр и фотографирование следов автомашины |
|
IV.Осмотр местности |
|
а) осмотр местности вблизи автомашины (следы ног, предметы и т.д.) |
Старший следователь прокуратуры Перовского р-на г. _ Санкт-Петербурга_________
__Абрамов А.Д.___________ _ Абрамов_________
Ф.И.О. подпись
Литература
Конституция РФ. Научно-практический комментарий. Под ред. Акад. Б.Н. Топорнина, - М.: Юристъ, 1997.
Уголовный Кодекс РФ.- М.: 1996.
Научно-практический комментарий к Уголовно-процессуальному кодексу РСФСР. Под общ. ред. Лебедева В.М., - М., 1999.
Криминалистика: Учебник / Под ред. проф. А.Г. Филиппова и проф. А.Ф. Волынского. - М.: Издательство «Спарк», 1998.
Криминалистика: Учебник / Под ред. Р.С. Белкина, В.П. Лаврова, И.М. Лузгина. - М.: 1988.
Осмотр места происшествия. Справочник следователя. – М.: «Юридическая литература», 1982.
Васильев А.Н. Тактика следственных действий. – М., 1981.
1Научно-практический комментарий к Уголовно-процессуальному кодексу РСФСР. Под общ. ред. Лебедева В.М., - М., 1999, С.205.
1 Осмотр места происшествия. Справочник следователя. – М.: «Юридическая литература», 1982, С.132.
1 Уголовный Кодекс РФ.- М.: 1996.
1 Научно-практический комментарий к Уголовно-процессуальному кодексу РСФСР. Под общ. ред. Лебедева В.М., - М., 1999, С.185.
Федоров
_
_______________