Организация работы детского кафе на 50 мест (работа 1)
Содержание
Характеристика предприятия. Детское кафе на 50 мест
Расчет загрузки торгового зала
Определение количества блюд для реализации
Составление меню
Составление графика реализации блюд
Расчет потребленного сырья
Подбор оборудования
Расчет общей и занятой площади
Подбор инструментов и инвентаря
Подбор рабочей силы и составление графика
выхода на работу
План производственного цеха с расстановкой оборудования
Список использованных источников
Приложение
Характеристика предприятия (детское кафе на 50 мест)
Кафе – предприятие общественного питания, предназначенное для организации отдыха потребителей. Ассортимент реализуемой продукции по сравнению с рестораном ограниченный. Реализует фирменные, заказные блюда, мучные кондитерские изделия, напитки, покупные товары. Блюда в основном несложного приготовления, расширенный ассортимент горячих напитков (чай, кофе, молоко, шоколад).
Кафе различают:
По ассортименту реализуемой продукции – кафе-мороженое, кафе-кондитерская, кафе-молочная;
По контингенту потребителей – кафе молодежное, кафе детское;
По методу обслуживания – самообслуживание, обслуживание официантами.
Ассортимент блюд зависит от специализации кафе.
Универсальные кафе с самообслуживанием реализуют несложные прозрачные бульоны из первых блюд, вторые блюда несложного приготовления: блинчики с различными начинками, яичница, сосиски, сардельки с несложным гарниром.
Кафе с обслуживанием официантами в своем меню имеют фирменные, заказные блюда, но в основном быстрого приготовления.
Меню состоит из горячих напитков, холодных напитков, мучных кондитерских изделий, горячих блюд, холодных блюд; мучные и кондитерские изделия поступают в кафе готовыми изделиями.
Кафе предназначено для отдыха посетителей, в частности, детей с родителями, поэтому целесообразно использовать в оформлении сюжеты детских сказок и авторских книг, оборудовать игровую комнату.
Кроме торговых залов в кафе есть вестибюль, гардеробная, туалетные комнаты.
Расчет загрузки торгового зала
Технологический расчет начинается с определения числа питающихся, которое устанавливают с помощью графика загрузки залов. При составлении графика учитывают режим работы зала, примерные коэффициенты загрузки в разные часы работы предприятия.
Коэффициент загрузки зала в различные часы определяют на основе изучения пропускной способности зала действующих предприятий общего питания.
Число посетителей, обслуживаемых за каждый час работы зала, рассчитывают по формуле:
Nчас = Р * n * d, где Р - число мест в зале, n- оборачиваемость мест за 1 час, d -коэффициент загрузки зала за данный час.
Наше кафе рассчитано на 50 мест. Согласно учебнику Аграновского «Основы проектирования предприятий общественного питания» таблице 14 оборачиваемость места за 1 час в детском кафе составляет 2 раза, при условии работы с 9 до 17 часов без перерыва на обед.
N 9-10 = 50*2*40/100 = 40
N 10-11 = 50*2*40/100 = 40
N 11-12 = 50*2*50/100 = 50
N 12-13 = 50*2*80/100 = 80
N 13-14 = 50*2*80/100 = 80
N 14-15 = 50*2*70/100 = 70
N 15-16 = 50*2*50/100 = 50
N 16-17 = 50*2*20/100 = 20
Число посетителей за день N определяют как сумму числа посетителей за каждый час работы обеденного зала.
Таблица 1
График загрузки зала детского кафе на 50 мест
|
Часы работы |
Число посадок в час |
Коэффициент загрузки зала, % |
Число посетителей |
|
9-10 |
2 |
40 |
40 |
|
10-11 |
2 |
40 |
40 |
|
11-12 |
2 |
50 |
50 |
|
12-13 |
2 |
80 |
80 |
|
13-14 |
2 |
80 |
80 |
|
14-15 |
2 |
70 |
70 |
|
15-16 |
2 |
40 |
50 |
|
16-17 |
2 |
20 |
20 |
|
Итого |
450 |
Оборачиваемость места 450 / 50 = 9.
Определение количества блюд, реализуемых на предприятии
После определения числа питающихся разрабатываем производственную программу предприятия (составляем меню, устанавливаем количество блюд и напитков каждого наименования).
Расчет блюд, реализуемых за день, производится по формуле:
nд = Nд*m,
где Nд – число потребителей в течение дня, m – коэффициент потребления блюд, указывающий, какое количество блюд в среднем приходится на одного человека на предприятии (состоит из коэффициента потребления отдельных видов обеденной продукции собственного производства — супов, холодных закусок, вторых блюд и сладких блюд).
Для детского кафе коэффициент потребления составляет 1,5.
Таким образом, nд = 450*1,5 = 675.
Далее рассчитываем количество блюд в каждой категории, используя процентное соотношение к общему количеству блюд, реализуемых за день, и процентное соотношение в группе:
Холодные закуски – 30 %, 675/100*30 = 202,
Из них в группе
Гастрономические продукты – 10 %, 202/100*10 = 20
Салаты – 40 %, 202/100*40 = 81
Кисломолочные продукты – 40 %, 202/100*40 = 81
Бутерброды – 10 %, 202-100*10 = 20;
Супы – 5 %, 675/100*5 = 34
Вторые горячие блюда – 40 %, 675/100*40 = 270,
Из них в группе
Мясные - 40 %, 270/100*40 = 108
Овощные, крупяные и мучные – 30 %, 270/100*30 = 81
Яичные и творожные – 30 %, 270/100*30 = 81;
Сладкие блюда – 25 %, 675/100*25 = 169.
Итого: 202+34+270+169 = 675
Таблица 2.
Количество блюд для реализации.
|
Наименование группы блюд |
Процент от общего количества |
Процент от данной группы |
Количество порций |
|
Холодные блюда: |
30 |
202 |
|
|
Гастрономические продукты |
10 |
20 |
|
|
Салаты |
40 |
81 |
|
|
Кисломолочные продукты |
40 |
81 |
|
|
Бутерброды |
10 |
20 |
|
|
Супы: |
5 |
34 |
|
|
Вторые горячие блюда: |
40 |
270 |
|
|
Мясные |
40 |
108 |
|
|
Овощные, крупяные и мучные |
30 |
81 |
|
|
Яичные и творожные |
30 |
81 |
|
|
Сладкие блюда |
25 |
169 |
Далее рассчитываем количество горячих и холодных напитков, мучных кондитерских и булочных изделий, хлеба, которое определяется по нормам потребления перечисленной выше продукции на одного человека в день (согласно Никуленковой, приложение 6, стр.202) на общее количество посетителей:
n>гор.нап. >=Nm>гор.нап. и т.д.>
Таблица 3.
Количество напитков для реализации.
|
Наименование изделия |
Единица измерения |
Количество посетителей за день. |
Норма потребления блюд. |
Общее количество |
|
Горячие напитки, в том числе: |
л |
450 |
0,1 |
45 |
|
чай |
л |
450 |
10% |
4,5 |
|
кофе |
л |
450 |
80% |
36 |
|
какао |
л |
450 |
10% |
4,5 |
|
Холодные напитки, в том числе: |
л |
450 |
0,09 |
41 |
|
фруктовая вода |
л |
450 |
0,02 |
9 |
|
минеральная вода |
л |
450 |
0,02 |
9 |
|
натуральный сок |
л |
450 |
0,02 |
9 |
|
напиток собственного производства |
л |
450 |
0,03 |
14 |
|
Хлеб и хлебобулочные изделия, в том числе: |
г |
450 |
75 |
33,750 |
|
хлеб ржаной |
г |
450 |
25 |
11,250 |
|
хлеб пшеничный |
г |
450 |
50 |
22,500 |
|
Мучные и кондитерские изделия |
шт |
450 |
0,5 |
225 |
|
Конфеты, печенье |
кг |
450 |
0,03 |
13,5 |
|
Фрукты |
кг |
450 |
0,03 |
13,5 |
Составление плана меню
Составление меню является очень важным этапом в жизни предприятия.
Само слово «меню» происходит от франц. menu и означает расписание блюд и напитков на завтрак, обед и ужин, а также рационы (трехразового питания), составленные в столовых и ресторанах, перечисление блюд для приемов и другого вида обслуживания.
Меню представляет собой перечень всевозможных блюд, закусок, кулинарных изделий и напитков, предлагаемых посетителям на данный день. Составляют его с учетом ассортиментного минимума и программы работы предприятия. Каждое предприятие самостоятельно определяет ассортиментный минимум в соответствии со специализацией, имеющимся сырьем, сезоном года.
Таблица 4.
Ассортиментный минимум в детском кафе
|
Блюда, напитки, кулинарные изделия |
Примерное число наименований в меню |
|
Горячие напитки |
2-3 |
|
Коктейли или напитки собственного производства |
3-4 |
|
Сладкие блюда , мороженое |
4-5 |
|
Холодные закуски |
3-4 |
|
Горячие блюда |
3-4 |
|
Соки |
5-6 |
|
Булочные изделия |
В кафе в меню указываются наименования блюд, закусок и другой продукции и цены.
Как правило, любое уважающее себя предприятие общественного питания, особенно коммерческого характера, оформляет меню логотипом заведения либо печатает на фирменном бланке. Меню помимо своего прямого назначения служит средством рекламы, поэтому целесообразно использовать все его преимущества. Меню должно быть отпечатано четким, ясным, удобочитаемым шрифтом, на хорошей бумаге. Информация о фирменных блюдах, закусках, напитках должна размещаться в правой верхней части раскрытого меню. В левой нижней части лучше поместить яркий рисунок, историческую справку о том или ином блюде, чтобы привлечь к нему внимание потребителя.
Все блюда в меню перечисляют в последовательности, соответствующей порядку приема пищи. Фирменные и порционные блюда в общем меню выделяются в особый раздел. Порядок перечисления блюд должен соответствовать ассортиментному минимуму — определенному количеству блюд и напитков, которые ежедневно должны быть в реализации.
Ассортимент может быть расширен за счет включения в меню сезонных и фирменных блюд.
Блюда и закуски, включенные в меню, должны быть в наличии в течение всего дня работы ресторана или в течение времени, указанного в меню для завтрака, обеда или ужина. Одним из способов соблюдения этого правила являются составление графика реализации блюд и расчетно-сырьевой ведомости.
При составлении меню должно быть достигнуто разнообразие закусок, блюд, кулинарных изделий как по видам сырья (рыбные, мясные, из птицы, дичи, овощные), так и по способам кулинарной обработки (отварные, припущенные, жареные, тушеные, запеченные), а также правильное сочетание гарнира с основным продуктом.
Блюда и закуски в меню располагаются в следующем порядке:
фирменные блюда и закуски;
холодные закуски — овощные, рыбные, мясные;
горячие закуски;
первые блюда — бульоны, заправочные супы (борщ, лапша, солянка и т.д.), пюреобразные супы (из овощей, птицы, субпродуктов и т.д.), холодные супы (окрошка, ботвинья, фруктовые супы и т.д.);
вторые блюда — рыбные, мясные, из овощей, яиц, молочных продуктов, мучные. Из рыбных блюд вначале в меню вписывают отварные, затем блюда в соусе, жареные, запеченные. Из мясных вначале вписываются блюда из мяса натуральные, блюда в соусе, блюда из птицы и дичи. Заканчивается перечень вторых блюд овощными блюдами, различными омлетами, яичницами, блинчиками со всевозможными наполнителями;
сладкие блюда — вначале горячие блюда, затем холодные;
напитки — горячие, холодные;
кондитерские изделия — пирожные, торты, фрукты.
Таблица 5.
Кафе «Ярославна», план - меню
|
Выход одного блюда, г |
№ рецептуры по сборнику |
Наименование блюда |
Количество блюд (порций) |
|
Холодные блюда и закуски: |
202 |
||
|
105 |
146 |
Рыба под маринадом |
20 |
|
150 |
100 |
Салат мясной |
27 |
|
150 |
77 |
Салат картофельный с яблоками |
27 |
|
150 |
85 |
Салат витаминный |
27 |
|
50 |
3 |
Бутерброд с сыром |
20 |
|
200 |
1032 |
Кефир |
81 |
|
Первые блюда: |
34 |
||
|
150 |
175 |
Борщ |
12 |
|
150 |
239 |
Суп рисовый с мясом |
12 |
|
150 |
257 |
Солянка грибная |
10 |
|
Горячие блюда: |
270 |
||
|
150 |
547 |
Тефтели рыбные |
36 |
|
150 |
627 |
Мясо тушеное |
36 |
|
135/150 |
660 |
Котлета московская |
36 |
|
115/15 |
471 |
Омлет с сыром |
81 |
|
170/30 |
1083 |
Блинчики с творогом и сметаной |
81 |
|
Сладкие блюда: |
169 |
||
|
170/30 |
992 |
Шарлотка с яблоками с абрикосовым соусом |
57 |
|
300 |
982 |
Суфле плодовое |
55 |
|
155 |
987 |
Яблоки печеные со сливками взбитыми |
57 |
|
Горячие напитки: |
45 л |
||
|
200 |
1018 |
Кофе с молоком сгущенным |
45 |
|
100/25/15 |
1016 |
Кофе со сливками |
180 |
|
200 |
1014 |
Кофе черный |
45 |
|
100/25/15 |
1022 |
Кофе по-венски |
180 |
|
200 |
1025 |
Какао с молоком |
22 |
|
200/15/7 |
1010 |
Чай с лимоном |
23 |
|
Холодные напитки: |
41 л |
||
|
200 |
Сок вишневый |
20 порций |
|
|
200 |
Сок яблочный |
25 порций |
|
|
500 |
Минеральная вода «Бонаква» |
18 |
|
|
500 |
Фруктовая вода «Биола» |
18 |
|
|
200 |
1052 |
Коктейль молочно- шоколадный |
70 |
|
Мучные и кондитерские изделия: |
|||
|
85 |
1099 |
Ватрушка венгерская |
57 |
|
100 |
1103 |
Кулебяка с капустой |
57 |
|
75 |
1094 |
Пирожки печеные с яблоками |
57 |
|
50 |
1101 |
Расстегаи с повидлом |
54 |
|
100 |
Хлеб ржаной |
113 |
|
|
100 |
Хлеб пшеничный |
225 |
|
|
Фрукты в ассортименте |
13,5 кг |
Составление графика реализации блюд
Количество блюд определенного вида, реализуемых в каждый час работы предприятия, определяется по формуле 7,8 (стр.191, учебник Е.Д.Аграновского «Организация производства в общественном питании):
Ач = Ад*К,
Где Ад – общее количество блюд данного вида,
К –коэффициент пересчета блюд.
Коэффициент пересчета блюд определяется по формуле:
К = Nч / Nд,
где Nч – количество потребителей за 1 час,
Nд – количество потребителей за 1 день.
Таблица 6.
Пересчет блюд
|
Часы работы |
Число посетителей |
Коэффициент пересчета блюд |
|
9-10 |
40 |
0,09 |
|
10-11 |
40 |
0,09 |
|
11-12 |
50 |
0,11 |
|
12-13 |
80 |
0,18 |
|
13-14 |
80 |
0,18 |
|
14-15 |
70 |
0,16 |
|
15-16 |
50 |
0,11 |
|
16-17 |
20 |
0,04 |
|
450 |
Таблица 7.
График реализации блюд
|
Наименование блюда |
Количество блюд (порций), реализованных за день |
Часы реализации |
|||||||
|
9-10 |
10-11 |
11-12 |
12-13 |
13-14 |
14-15 |
15-16 |
16-17 |
||
|
Коэффициент пересчета |
|||||||||
|
0,09 |
0,09 |
0,11 |
0,18 |
0,18 |
0,16 |
0,11 |
0,04 |
||
|
Количество блюд, реализуемых за 1 час |
|||||||||
|
Холодные блюда и закуски: |
202 |
||||||||
|
Рыба под маринадом |
20 |
2 |
2 |
2 |
4 |
4 |
3 |
2 |
1 |
|
Салат мясной |
27 |
2 |
2 |
3 |
5 |
5 |
4 |
3 |
1 |
|
Салат картофельный с яблоками |
27 |
2 |
2 |
3 |
5 |
5 |
4 |
3 |
1 |
|
Салат витаминный |
27 |
2 |
2 |
3 |
5 |
5 |
4 |
3 |
1 |
|
Бутерброд с сыром |
20 |
2 |
2 |
2 |
4 |
4 |
3 |
2 |
1 |
|
Кефир |
81 |
7 |
7 |
9 |
15 |
15 |
13 |
9 |
3 |
|
Первые блюда: |
34 |
||||||||
|
Борщ |
12 |
1 |
1 |
1 |
2 |
2 |
2 |
1 |
- |
|
Суп рисовый с мясом |
12 |
1 |
1 |
1 |
2 |
2 |
2 |
1 |
- |
|
Солянка грибная |
10 |
1 |
1 |
1 |
2 |
2 |
2 |
1 |
- |
|
Горячие блюда: |
270 |
||||||||
|
Тефтели рыбные |
36 |
3 |
3 |
4 |
6 |
6 |
6 |
4 |
1 |
|
Мясо тушеное |
36 |
3 |
3 |
4 |
6 |
6 |
6 |
4 |
1 |
|
Котлета московская |
36 |
3 |
3 |
4 |
6 |
6 |
6 |
4 |
1 |
|
Омлет с сыром |
81 |
7 |
7 |
9 |
15 |
15 |
13 |
9 |
3 |
|
Блинчики с творогом и сметаной |
81 |
7 |
7 |
9 |
15 |
15 |
13 |
9 |
3 |
|
Сладкие блюда: |
169 |
||||||||
|
Шарлотка с яблоками с абрикосовым соусом |
57 |
5 |
5 |
6 |
10 |
10 |
9 |
6 |
2 |
|
Суфле плодовое |
55 |
5 |
5 |
6 |
10 |
10 |
9 |
6 |
2 |
|
Яблоки печеные со сливками взбитыми |
57 |
5 |
5 |
6 |
10 |
10 |
9 |
6 |
2 |
|
Горячие напитки: |
45 л |
||||||||
|
Кофе с молоком сгущенным |
45 |
4 |
4 |
5 |
8 |
8 |
7 |
5 |
2 |
|
Кофе со сливками |
180 |
16 |
16 |
20 |
32 |
32 |
29 |
20 |
7 |
|
Кофе черный |
45 |
4 |
4 |
5 |
8 |
8 |
7 |
5 |
2 |
|
Кофе по-венски |
180 |
16 |
16 |
20 |
32 |
32 |
29 |
20 |
7 |
|
Какао с молоком |
22 |
2 |
2 |
2 |
4 |
4 |
4 |
2 |
1 |
|
Чай с лимоном |
23 |
2 |
2 |
3 |
4 |
4 |
4 |
3 |
1 |
|
Холодные напитки: |
41 л |
||||||||
|
Сок вишневый |
20 порций |
2 |
2 |
2 |
4 |
4 |
3 |
2 |
1 |
|
Сок яблочный |
25 порций |
2 |
2 |
3 |
5 |
5 |
4 |
3 |
1 |
|
Минеральная вода «Бонаква» |
18 |
2 |
2 |
2 |
3 |
3 |
3 |
2 |
1 |
|
Фруктовая вода «Биола» |
18 |
2 |
2 |
2 |
3 |
3 |
3 |
2 |
1 |
|
Коктейль молочно- шоколадный |
70 |
6 |
6 |
8 |
13 |
13 |
11 |
8 |
3 |
|
Мучные и кондитерские изделия: |
|||||||||
|
Ватрушка венгерская |
57 |
5 |
5 |
6 |
10 |
10 |
9 |
6 |
2 |
|
Кулебяка с капустой |
57 |
5 |
5 |
6 |
10 |
10 |
9 |
6 |
2 |
|
Пирожки печеные с яблоками |
57 |
5 |
5 |
6 |
10 |
10 |
9 |
6 |
2 |
|
Расстегаи с повидлом |
54 |
5 |
5 |
6 |
6 |
6 |
9 |
6 |
2 |
|
Хлеб ржаной |
113 |
10 |
10 |
12 |
20 |
20 |
18 |
12 |
5 |
|
Хлеб пшеничный |
225 |
20 |
20 |
25 |
41 |
41 |
36 |
25 |
9 |
|
Фрукты в ассортименте |
13,5 кг |
Расчет потребленного количества сырья
Расчет количества сырья и продуктов, необходимых для приготовления блюд, производится на основании плана-меню и Сборника рецептур блюд и кулинарных изделий. Кроме расчета сырья для приготовления блюд, реализуемых на предприятии, отдельно производится расчет сырья для производства мучных кондитерских изделий, а затем составляется сводная таблица расчета сырья.
Формула расчета:
Q = q3Aдн ,
где Q – количество продукта данного вида,
Адн – количество соответствующих блюд, реализуемых предприятием за день,
q3-норма закладки продукта по Сборнику рецептур.
Таблица 8.
Расчет сырья
|
№ рецептуры |
Наименование блюда / |
Выход по рецептуре |
Количество порций |
Вес брутто 1 п. |
Вес брутто n п. |
|
Холодные блюда и закуски |
|||||
|
146 |
Жареная рыба под маринадом |
105 |
20 |
2100 |
|
|
Окунь морской |
85 |
1700 |
|||
|
Мука пшеничная |
3 |
60 |
|||
|
Масло растительное |
50 |
1000 |
|||
|
Лук зеленый |
6 |
120 |
|||
|
892 |
Маринад овощной с томатом |
1000 |
20 |
50 |
1000 |
|
Морковь |
750 |
750 |
|||
|
Лук репчатый |
179 |
179 |
|||
|
Томатное пюре |
150 |
150 |
|||
|
Масло растительное |
100 |
100 |
|||
|
Уксус 3%-ный |
300 |
300 |
|||
|
Сахар |
25 |
25 |
|||
|
Вода |
120 |
120 |
|||
|
100 |
Салат мясной |
150 |
27 |
4050 |
|
|
Говядина |
43 |
1161 |
|||
|
Картофель |
76 |
2052 |
|||
|
Огурцы свежие |
38 |
1026 |
|||
|
Яйца |
1/4 |
38 |
|||
|
Салат |
8 |
216 |
|||
|
Майонез |
30 |
810 |
|||
|
Соус Южный |
5 |
135 |
|||
|
77 |
Салат картофельный с яблоками |
1000 |
27*150 |
4050 |
|
|
Картофель |
495 |
2005 |
|||
|
Яблоки свежие |
286 |
1158 |
|||
|
Сельдерей молодой (корень) |
122 |
494 |
|||
|
Салат |
208 |
842 |
|||
|
Сметана |
200 |
810 |
|||
|
85 |
Салат витаминный |
1000 |
27 |
4050 |
|
|
Капуста белокочанная |
313 |
1268 |
|||
|
Морковь |
125 |
506 |
|||
|
Лук зеленый |
125 |
506 |
|||
|
Перец сладкий |
200 |
810 |
|||
|
Горошек зеленый консервированный |
308 |
1247 |
|||
|
Лимон |
100 |
405 |
|||
|
Сметана |
150 |
608 |
|||
|
Сахар |
50 |
202 |
|||
|
3 |
Бутерброды с сыром |
50 |
20 |
50 |
1000 |
|
Сыр советский |
16 |
320 |
|||
|
Масло сливочное |
5 |
100 |
|||
|
Хлеб |
30 |
600 |
|||
|
1032 |
Кефир |
200 |
81 |
200 |
16200 |
|
Кефир |
207 |
16767 |
|||
|
Первые блюда |
|||||
|
175 |
Борщ |
1000 |
12 |
150 |
1800 |
|
Свекла |
200 |
360 |
|||
|
Капуста свежая |
150 |
270 |
|||
|
Морковь |
50 |
90 |
|||
|
Петрушка корень |
13 |
23 |
|||
|
Лук репчатый |
48 |
86 |
|||
|
Томатное пюре |
30 |
54 |
|||
|
Кулинарный жир |
20 |
36 |
|||
|
Сахар |
10 |
18 |
|||
|
Уксус 3%-ный |
16 |
29 |
|||
|
Вода |
800 |
1440 |
|||
|
239 |
Суп рисовый с мясом |
1000 |
12 |
150 |
1800 |
|
Крупа рисовая |
60 |
108 |
|||
|
Лук репчатый |
48 |
86 |
|||
|
Томатное пюре |
20 |
36 |
|||
|
Кулинарный жир |
10 |
18 |
|||
|
Чеснок |
3 |
5 |
|||
|
Перец красный |
0,2 |
0,3 |
|||
|
Вода |
1000 |
1800 |
|||
|
257 |
Солянка грибная |
1000 |
12 |
150 |
1800 |
|
Грибы белые свежие |
88 |
158 |
|||
|
Лук репчатый |
93 |
167 |
|||
|
Огурцы соленые |
100 |
180 |
|||
|
Каперсы |
40 |
72 |
|||
|
Томатное пюре |
20 |
36 |
|||
|
Масло сливочное |
16 |
29 |
|||
|
Грибной отвар |
900 |
1620 |
|||
|
Сметана |
40 |
72 |
|||
|
547 |
Тефтели рыбные |
150 |
36 |
150 |
5400 |
|
Треска |
51 |
1836 |
|||
|
Хлеб пшеничный |
10 |
360 |
|||
|
Молоко |
15 |
540 |
|||
|
Лук репчатый |
12 |
432 |
|||
|
Мука пшеничная |
6 |
216 |
|||
|
Мало растительное |
5 |
180 |
|||
|
747 |
Гарнир |
1000 |
36 |
150 |
5400 |
|
Крупа рисовая |
360 |
1944 |
|||
|
Масло сливочное |
45 |
243 |
|||
|
857 |
Соус томатный |
1000 |
36 |
50 |
1800 |
|
Бульон рыбный |
900 |
1620 |
|||
|
Маргарин столовый |
45 |
81 |
|||
|
Мука пшеничная |
45 |
81 |
|||
|
Морковь |
60 |
108 |
|||
|
Петрушка корень |
10 |
18 |
|||
|
Томатное пюре |
250 |
450 |
|||
|
Маргарин столовый |
15 |
27 |
|||
|
Сахар |
10 |
18 |
|||
|
851 |
Бульон рыбный |
1000 |
36 |
1620 |
|
|
Пищевые отходы (головы, кости, плавники) |
500 |
810 |
|||
|
Вода |
1250 |
2025 |
|||
|
Петрушка корень |
16 |
26 |
|||
|
Лук репчатый |
14 |
23 |
|||
|
658 |
Котлеты |
205 |
36 |
205 |
7380 |
|
Говядина |
50 |
1800 |
|||
|
Хлеб пшеничный |
9 |
324 |
|||
|
Молоко |
12 |
432 |
|||
|
Сухари |
5 |
180 |
|||
|
Жир животный |
3 |
108 |
|||
|
757 |
Гарнир |
1000 |
36 |
150 |
5400 |
|
Картофель |
1333 |
7198 |
|||
|
Масло сливочное |
35 |
189 |
|||
|
Масло сливочное |
5 |
27 |
|||
|
665 |
Зразы из говядины, фаршированные рисом |
223 |
36 |
8028 |
|
|
Говядина (котлетное мясо) |
52 |
1872 |
|||
|
Хлеб пшеничный |
8 |
288 |
|||
|
Молоко |
11 |
396 |
|||
|
748 |
Рис припущенный |
1000 |
36 |
26 |
936 |
|
Крупа рисовая |
350 |
329 |
|||
|
Вода |
735 |
690 |
|||
|
Масло сливочное |
35 |
33 |
|||
|
757 |
Гарнир |
1000 |
36 |
150 |
5400 |
|
Картофель |
1333 |
7198 |
|||
|
Масло сливочное |
35 |
189 |
|||
|
Масло сливочное |
5 |
27 |
|||
|
471 |
Омлет с сыром |
115 |
81 |
115 |
|
|
467 |
Омлетная смесь |
81 |
110 |
8910 |
|
|
Яйца |
2 шт. |
162 шт. |
|||
|
Молоко |
30 |
2430 |
|||
|
Маргарин столовый |
2 |
162 |
|||
|
Масло сливочное |
5 |
405 |
|||
|
Сыр |
16,5 |
1336,5 |
|||
|
Маргарин столовый |
5 |
405 |
|||
|
Масло сливочное |
5 |
405 |
|||
|
1083 |
Блинчики с творогом и сметаной |
81 |
|||
|
Блинчики (полуфабрикат) |
1000 |
81 |
200 |
16200 |
|
|
Мука пшеничная |
416 |
6739 |
|||
|
Молоко |
1040 |
16848 |
|||
|
Яйца |
2 1/13 |
34 |
|||
|
Сахар |
25 |
405 |
|||
|
Соль |
8 |
130 |
|||
|
Жир кулинарный |
16 |
259 |
|||
|
1136 |
Фарш (1000) |
89*2*81 |
1000 |
14418 |
|
|
Творог |
909 |
13107 |
|||
|
Яйца |
9/10 |
131 |
|||
|
Сахар |
90 |
1297 |
|||
|
Маргарин столовый |
12 |
173 |
|||
|
Сметана |
30 |
2430 |
|||
|
Сладкие блюда |
|||||
|
992 |
Шарлотка с яблоками и абрикосовым соусом |
170 |
57 |
1000 |
9690 |
|
Яблоки |
500 |
4845 |
|||
|
Хлеб пшеничный |
325 |
3149 |
|||
|
Молоко |
150 |
1453 |
|||
|
Яйца |
1 ¼ шт. |
12 |
|||
|
Сахар |
100 |
969 |
|||
|
Корица |
1 |
9,7 |
|||
|
Масло сливочное |
50 |
484,5 |
|||
|
903 |
Соус |
30 |
57 |
1000 |
1710 |
|
Курага |
110 |
188,1 |
|||
|
Вода для кураги |
400 |
684 |
|||
|
Сахар |
600 |
1026 |
|||
|
982 |
Суфле плодовое |
300 |
55 |
300 |
16500 |
|
Яйца |
3 ½ шт. |
192,5 |
|||
|
Сахар |
40 |
2200 |
|||
|
Масло сливочное |
2 |
110 |
|||
|
Пюре плодовое |
50 |
2750 |
|||
|
Рафинадная пудра |
5 |
275 |
|||
|
Молоко |
158 |
8690 |
|||
|
987 |
Яблоки печеные со сливками взбитыми |
155 |
57 |
155 |
|
|
Яблоки |
120 |
6840 |
|||
|
Сахар |
15 |
855 |
|||
|
Миндаль очищенный |
6 |
342 |
|||
|
979 |
Сливки взбитые |
1000 |
57 |
20 |
1140 |
|
Сливки 35 %-ные |
900 |
1026 |
|||
|
Рафинадная пудра |
150 |
171 |
|||
|
903 |
Соус |
1000 |
57 |
30 |
1710 |
|
Курага |
110 |
188,1 |
|||
|
Вода для кураги |
400 |
684 |
|||
|
Сахар |
600 |
1026 |
|||
|
1014 |
Кофе черный (кофеварка Эспрессо) |
100 |
45 |
200 |
9000 |
|
Кофе натуральный |
6 |
540 |
|||
|
1016 |
Кофе со сливками |
100 |
180 |
||
|
1014 |
Кофе черный |
100 |
18000 |
||
|
Кофе натуральный |
6 |
1080 |
|||
|
Сахар |
15 |
2700 |
|||
|
Молоко |
25 |
4500 |
|||
|
1018 |
Кофе на молоке сгущенном |
1000 |
45 |
200 |
9000 |
|
1014 |
Кофе натуральный |
40 |
360 |
||
|
Кофе натуральный |
6 |
54 |
|||
|
Молоко цельное сгущенное с сахаром (консервы) |
140 |
1260 |
|||
|
Сахар |
60 |
540 |
|||
|
Вода |
955 |
8595 |
|||
|
1022 |
Кофе черный со взбитыми сливками по –венски |
150 |
180 |
27000 |
|
|
1014 |
Кофе черный |
100 |
18000 |
||
|
Кофе натуральный |
6 |
1080 |
|||
|
Сахар |
15 |
2700 |
|||
|
979 |
Сливки взбитые |
1000 |
30 |
5400 |
|
|
Сливки 35 %-ные |
900 |
4860 |
|||
|
Рафинадная пудра |
150 |
810 |
|||
|
1025 |
Какао с молоком |
1000 |
22 |
200 |
4400 |
|
Какао-порошок |
35 |
154 |
|||
|
Молоко |
900 |
3960 |
|||
|
Вода |
140 |
616 |
|||
|
Сахар-песок |
150 |
660 |
|||
|
1010 |
Чай с лимоном |
225 |
23 |
225 |
5175 |
|
Чай-заварка |
50 |
1150 |
|||
|
1008 |
Чай –заварка |
1000 |
|||
|
Чай «экстра» и высшего сорта |
40 |
46 |
|||
|
Вода |
1100 |
1265 |
|||
|
Вода |
150 |
3450 |
|||
|
Сахар |
22,5 |
517,5 |
|||
|
Лимон |
10 |
230 |
|||
|
1052 |
Коктейль молочно-шоколадный |
200 |
70 |
200 |
14000 |
|
Молоко |
120 |
8400 |
|||
|
Сироп шоколадный |
30 |
2100 |
|||
|
911 |
Сироп шоколадный |
1000 |
|||
|
Сахарный песок |
525 |
1102,5 |
|||
|
Какао-порошок |
110 |
231 |
|||
|
Ванилин |
0,5 |
1,05 |
|||
|
Вода |
500 |
1050 |
|||
|
Хлеб ржаной |
113 |
100 |
11300 |
||
|
Хлеб пшеничный |
225 |
100 |
22500 |
||
|
Фрукты |
13500 |
По расчетам составляют расчетно-сырьевую ведомость.
Таблица 9.
Расчетно-сырьевая ведомость
|
№ |
Наименование продукта |
Количество, г |
|
Говядина |
2961 |
|
|
Говядина котлетное мясо |
1872 |
|
|
Окунь морской |
1700 |
|
|
Треска |
1836 |
|
|
Пищевые отходы (головы, кости, плавники) |
810 |
|
|
Яйца |
569,5 |
|
|
Майонез |
810 |
|
|
Молоко |
47649 |
|
|
Мука пшеничная |
7096 |
|
|
Огурцы свежие |
1026 |
|
|
Огурцы соленые |
180 |
|
|
Каперсы |
72 |
|
|
Капуста белокочанная |
1538 |
|
|
Перец красный |
0,3 |
|
|
Морковь |
1454 |
|
|
Перец сладкий |
810 |
|
|
Сметана |
3920 |
|
|
Соус Южный |
135 |
|
|
Лук репчатый |
973 |
|
|
Лук зеленый |
626 |
|
|
Салат зеленый |
1058 |
|
|
Петрушка корень |
67 |
|
|
Сельдерей корень |
494 |
|
|
Картофель |
18453 |
|
|
Сахар |
16261 |
|
|
Соль |
130 |
|
|
Горошек зеленый консервированный |
1247 |
|
|
Масло растительное |
1280 |
|
|
Уксус 3%-ный |
329 |
|
|
Лимон |
230 |
|
|
Маргарин столовый |
848 |
|
|
Томатное пюре |
726 |
|
|
Миндаль очищенный |
342 |
|
|
Яблоки свежие |
12843 |
|
|
Сыр советский |
320 |
|
|
Грибы белые свежие |
158 |
|
|
Кефир |
16767 |
|
|
Свекла |
1656,5 |
|
|
Кулинарный жир |
421 |
|
|
Крупа рисовая |
2381 |
|
|
Чеснок |
5 |
|
|
Сухари |
180 |
|
|
Творог |
13107 |
|
|
Корица |
9,7 |
|
|
Пюре плодовое |
2750 |
|
|
Курага |
376,2 |
|
|
Рафинадная пудра |
1256 |
|
|
Масло сливочное |
1809,5 |
|
|
Сливки 35%-ные |
5886 |
|
|
Кофе натуральный |
2754 |
|
|
Какао-порошок |
385 |
|
|
Ванилин |
1,05 |
|
|
Хлеб пшеничный |
27221 |
|
|
Хлеб ржаной |
11300 |
|
|
Чай «экстра» и высшего класса |
46 |
|
|
Молоко цельное сгущенное с сахаром (консервы) |
1260 |
Подбор оборудования
Согласно Приложению 2 учебника Радченко составляем список необходимого оборудования для оснащения кафе. Подбор осуществляется с указанием производительности машины по справочнику «торгово-технологического оборудования» определяют их тип и марку.
Таблица 10 .
Технологическое оборудования для кафе на 50 мест
|
Количество, шт. |
Наименование оборудования |
Тип. марка |
Размеры в м. |
|
1 |
Машина (привод) универсальная с комплектом сменных механизмов |
ПУ-1,1 |
0,58х0,38 |
|
1 |
Смесительная установка для молочных коктейлей |
МВ-60 |
0,73х1,2 |
|
2 |
Шкаф холодильный среднетемпературный |
ШХ-0,80 М |
1,5х0,75 |
|
1 |
Прилавок холодильный среднетемпературный с открытой охлаждаемой наприлавочной емкостью |
ПХН-2-2М |
2,5-1,2 |
|
2 |
Прилавок холодильный низкотемпературный |
ПХН-1-0,4М |
2х0,8 |
|
1 |
Охладитель напитков |
«Джоли», Италия |
0,24х0,36 |
|
1 |
Плита электрическая одноконфорочная |
ПЭ-0,17 |
0,5х0,8 |
|
1 |
Шкаф жарочный электрический |
ЩЖЭ-0,51 |
0,5х0,8 |
|
1 |
Сковорода электрическая |
СЭ-0,22 |
0,5х0,8 |
|
1 |
Фритюрница электрическая |
ФЭ-20 |
0,5х0,8 |
|
1 |
Кофеварка электрическая в комплекте с кофемолкой |
«Будапешт» |
|
|
1 |
Кипятильник электрический непрерывного действия |
КНЭ-50 |
0,7х0,43 |
|
1 |
Водонагреватель электрический |
НЭ-1Б |
0,6х0,3 |
|
1 |
Котел пищеварочный |
КЭ-100 |
0,8х0,8 |
|
2 |
Стол производственный |
СПСМ-1 |
1,05х0,84 |
|
1 |
Хлеборезательная машина |
АХМ-300Т |
1,05х0,54 |
Расчет занятой и общей площади
Площадь торгового зала рассчитывается по формуле
Sз = f*P,
Где S –расчетная площадь зала, м2,
f – норма площади на одно место (1,6 м),
P- количество мест в зале.
S = 1,6*50 = 80 м2.
Площадь производственных помещений рассчитывается по формуле
Sобщ. = S пол / Ксп.,
Где Sобщ. – общая площадь цеха м2,
S пол - полезная площадь, занятая под оборудование, м 2,
Ксп – коэффициент использования площади, учитывающий проходы между оборудованием.
Таблица 13.
Расчет занятой площади
|
Количество |
Наименование оборудования |
Тип. марка |
Размеры в м. |
Ёмкость производственной деятельности / занимаемая площадь , м2 |
|
1 |
Машина (привод) универсальная с комплектом сменных механизмов |
ПУ-1,1 |
0,58х0,38 |
/ 0,15 |
|
1 |
Смесительная установка для молочных коктейлей |
МВ-60 |
0,73х1,2 |
300 порц./ч /0,88 |
|
2 |
Шкаф холодильный среднетемпературный |
ШХ-0,80 М |
1,5х0,75 |
160 кг / 1,13 |
|
1 |
Прилавок холодильный среднетемпературный с открытой охлаждаемой наприлавочной емкостью |
ПХН-2-2М |
2,5-1,2 |
0,28 м3 / 3,0 |
|
2 |
Прилавок холодильный низкотемпературный |
ПХН-1-0,4М |
2х0,8 |
0,15 м3 / 1,6 |
|
1 |
Охладитель напитков |
«Джоли», Италия |
0,24х0,36 |
30 дм 3 / 0,09 |
|
1 |
Плита электрическая одноконфорочная |
ПЭ-0,17 |
0,5х0,8 |
0,17 м 3 / 0,4 |
|
1 |
Шкаф жарочный электрический |
ЩЖЭ-0,51 |
0,5х0,8 |
0,51 м 2 / 0,4 |
|
1 |
Сковорода электрическая |
СЭ-0,22 |
0,5х0,8 |
0,22 м 2 / 0,4 |
|
1 |
Фритюрница электрическая |
ФЭ-20 |
0,5х0,8 |
20 л / 0,4 |
|
1 |
Кофеварка электрическая в комплекте с кофемолкой |
«Будапешт» |
4 крана |
|
|
1 |
Кипятильник электрический непрерывного действия |
КНЭ-50 |
0,7х0,43 |
50 л/ч / 0,3 |
|
1 |
Водонагреватель электрический |
НЭ-1Б |
0,6х0,3 |
80 л/ч / 0,18 |
|
1 |
Котел пищеварочный |
КЭ-100 |
0,8х0,8 |
100 л / 0,64 |
|
2 |
Стол производственный |
СПСМ-1 |
1,05х0,84 |
/ 0,88 |
|
1 |
Хлеборезательная машина |
АХМ-300Т |
1,05х0,54 |
85 б/ч / 0,57 |
|
Итого |
11,02 |
Sобщ. = 11,02/0,4 = 27,55 м2.
Следовательно, общая площадь производственных помещений составит 27,55 м2.
Подбор инструментов и инвентаря
Подбор инвентаря и посуды осуществляется согласно «Нормам оснащения предприятий общественного питания посудой, столовыми приборами и кухонным инвентарем, утвержденным министерством торговли РФ».
Таблица 14.
Инвентарь и посуда для кафе на 50 мест.
|
Наименование инвентаря |
Единица измерения |
Норма оснащения с учетом количества мест |
|
Бак для пищевых отходов |
Шт. |
2 |
|
Ведро |
Шт. |
2 |
|
Венчик |
Шт. |
2 |
|
Вилка поварская малая и большая |
Шт. |
2 |
|
Горка для специй |
Шт. |
1 |
|
Держатель для кухонных ножей |
Шт. |
3 |
|
Держатель для разливательных ложек |
Шт. |
1 |
|
Доска разделочная |
Шт. |
15 |
|
Доска для резки лимонов |
Шт. |
1 |
|
Дуршлаги разные |
Шт. |
2 |
|
Кастрюли: |
||
|
1,5-2, 3 л. |
Шт. |
5 |
|
4-6 л |
Шт. |
5 |
|
8-10 |
Шт. |
6 |
|
Котлы: |
Шт. |
|
|
20-30 л |
Шт. |
2 |
|
40-50 л |
Шт. |
2 |
|
Котел для варки рыбы |
Шт. |
1 |
|
Консервовскрыватель |
Шт. |
1 |
|
Лимоновыжималка |
Шт. |
1 |
|
Ложка разливательная 200-250 мл |
Шт. |
4 |
|
Ложка разливательная 500 мл |
Шт. |
2 |
|
Ложки порционные: |
||
|
Для сахара |
комплект |
2 |
|
Для жира |
Комплект |
2 |
|
Для рассыпчатых каш, картофеля и капусты |
Шт. |
2 |
|
Для соусов |
комплект |
2 |
|
Лопатки |
||
|
Для котлет |
Шт. |
2 |
|
Для рыбы |
Шт. |
2 |
|
Для кондитерских изделий |
Шт. |
2 |
|
Для полуфабрикатов |
Шт. |
2 |
|
Мусат |
Шт. |
1 |
|
Лоток |
Шт. |
16 |
|
Ножи: |
||
|
Для кореньев |
Шт. |
2 |
|
Поварская тройка |
Комплект |
2 |
|
Для обвалки мяса |
комплект |
1 |
|
Для колбасы |
Комплект |
1 |
|
Для ветчины |
Комплект |
1 |
|
Для сыра |
Комплект |
1 |
|
Для лимона |
комплект |
1 |
|
Для хлеба |
комплект |
1 |
|
Приспособление для резки масла |
комплект |
1 |
|
Приспособление для процеживания бульона |
Шт. |
1 |
|
Противень |
Шт. |
5 |
|
Сотейники: |
||
|
8 л |
Шт. |
1 |
|
Сковороды |
||
|
Диаметр 290-335 мл |
Шт. |
1 |
|
210 мм |
Шт. |
6 |
|
440 мл |
Шт. |
1 |
|
Скребок формовочный для масла |
Шт. |
1 |
|
Сита разные |
Шт. |
2 |
|
Ступка с пестиком |
Шт. |
1 |
|
Тарталетница |
Шт. |
19 |
|
Терка для сыра |
Шт. |
1 |
|
Терка ручная |
Шт. |
1 |
|
Формы разные: |
Шт. |
|
|
Для мусса, желе, самбука |
Шт. |
11 |
|
Штопор |
Шт. |
2 |
|
Шумовка |
Шт. |
1 |
|
Щипцы: |
||
|
Для кондитерских изделий |
Шт. |
2 |
|
Для рыбы |
Шт. |
1 |
|
Для сосисок |
Шт. |
1 |
|
Для льда |
Шт. |
1 |
|
яблокорезка |
Шт. |
1 |
|
яйцерезка |
Шт. |
1 |
Подбор рабочей силы, составление графика выхода на работу
Важнейшей задачей нормирования труда является определение численности работников. Различают следующие основные методы определения необходимого количества работников: по нормам выработки, нормам времени; рабочим местам на основании норм обслуживания.
Численность работников предприятий общественного питания непосредственно зависит от объема товарооборота, выпуска продукции, форм обслуживания, степени механизации производственных процессов. Чем больше товарооборот и выпуск продукции собственного производства, тем выше численность работников.
Расчет рабочей силы производится на основании плана-меню и норм времени для приготовления блюд каждого вида по формуле (согласно учебнику Л.А.Радченко «Организация производства на предприятиях общественного питания», приложение 6):
N=n*t/3600*Т*λ
где n - величина трудозатрат, чел-сек;
t - норма времени на приготовление 1 блюда,
λ- коэффициент производительности труда = 1,14;
Т - продолжительность рабочего дня повара, ч.
Таблица 15.
Расчет общего количества времени, необходимого для приготовления ежедневной нормы блюд.
|
Наименование блюда |
Количество блюд, реализуемых за 1 день |
Норма времени на приготовление 1 блюда (с чисткой и резкой) |
Время, необходимое для выпуска блюд, с |
|
Холодные блюда и закуски: |
|||
|
Рыба под майонезом |
20 |
130 |
2600 |
|
Салат мясной |
27 |
200 |
5400 |
|
Салат картофельный с яблоками |
27 |
120 |
3240 |
|
Салат витаминный |
27 |
110 |
2970 |
|
Бутерброд с сыром |
20 |
30 |
600 |
|
Кефир |
81 |
20 |
1620 |
|
Первые блюда: |
|||
|
Борщ |
12 |
100 |
1200 |
|
Суп рисовый с мясом |
12 |
180 |
2160 |
|
Солянка грибная |
10 |
180 |
1800 |
|
Горячие блюда: |
|||
|
Тефтели рыбные |
36 |
70 |
2520 |
|
Мясо тушеное |
36 |
50 |
1800 |
|
Котлета московская |
36 |
100 |
3600 |
|
Омлет с сыром |
81 |
60 |
4860 |
|
Блинчики с творогом и сметаной |
81 |
70 |
5670 |
|
Сладкие блюда: |
|||
|
Шарлотка с яблоками с абрикосовым соусом |
57 |
70 |
3990 |
|
Желе лимонное |
55 |
60 |
3300 |
|
Яблоки печеные со сливками взбитыми |
57 |
50 |
2850 |
|
Горячие напитки: |
|
||
|
Кофе с молоком сгущенным |
45 |
20 |
900 |
|
Кофе со сливками |
180 |
20 |
3600 |
|
Кофе черный |
45 |
10 |
450 |
|
Кофе по-венски |
180 |
20 |
3600 |
|
Какао с молоком |
22 |
20 |
440 |
|
Чай с лимоном |
23 |
10 |
230 |
|
Холодные напитки: |
|||
|
Сок вишневый |
20 |
10 |
200 |
|
Сок яблочный |
25 |
10 |
250 |
|
Минеральная вода «Бонаква» |
18 |
10 |
180 |
|
Фруктовая вода «Биола» |
18 |
10 |
180 |
|
Коктейль молочно- шоколадный |
70 |
20 |
1400 |
|
Мучные и кондитерские изделия: |
|||
|
Ватрушка венгерская |
57 |
80 |
4560 |
|
Кулебяка с капустой |
57 |
80 |
4560 |
|
Пирожки печеные с яблоками |
57 |
80 |
4560 |
|
Расстегаи с повидлом |
54 |
80 |
4320 |
|
Хлеб ржаной |
113 |
10 |
1130 |
|
Хлеб пшеничный |
225 |
10 |
2250 |
|
Итого |
78670 |
N=n*t/3600*Т*λ
78670/(3600*8*1,14) = 78670/32832 = 2,4 ~ 2 (человека).
Таким образом, в кафе будет работать два повара.
На предприятии общественного питания применяются следующие виды графиков выхода на работу: линейный, ступенчатый (ленточный), двухбригадный, комбинированный и суммированный.
Линейный график выхода на работу – означает одновременное начало и окончание смены работниками. Данный график используется на предприятиях, работающих в одну смену. Наше кафе работает в одну смену, выходной – понедельник, следовательно, применим линейный график.
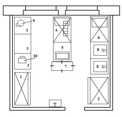
11. План производственного цеха с расстановкой оборудования



1

3
5

2 8
1
4
6
7
7
стол производственный
привод универсальный с комплектом сменных механизмов
шкаф жарочный электрический
плита электрическая одноконфорная
кипятильник электрический непрерывного действия
секция-стол с охлаждаемым шкафом СОЭСМ-2;
холодильный шкаф ШХ-0.8;
хлеборезательная машина
Список использованных источников
Правила оказания услуг общественного питания. Утв. Постановлением Правительства РФ от 15.08.97 № 1036.
ГОСТ Р 50647-94 «Общественное питание. Классификация предприятий»
ГОСТ Р 50763-95 «Общественное питание. Кулинарная продукция, реализуемая населению. Общие технические условия».
ГОСТ Р 50764-95 «Услуги общественного питания».
ГОСТ Р 50935-96 «Общественное питание. Требование к обслуживающему персоналу».
ОСТ 28-1-95 «Общественное питание. Требование к производственному персоналу».
ГОСТ Р 50647-94 «Общественное питание. Термины и определения».
Богушева В.И. Технология приготовления пищи: учебно-методическое пособие / В.И. Богушева. – Ростов н/Д: Феникс, 2007. – 374 с.
Васюков А.Т., Пивоваров В.И.. Пивоваров К.В. Организация производства и управление качеством продукции в общественном питании: Учебное пособие. – М.: Издательско-торговая корпорация «Дашков и К», 2006. – 296 с.
Елхина В.Д. Механическое оборудование предприятий общественного питания: учеб. пособие для нач. проф. образования: справочник / В.Д. Елхина. – М.: Издательский центр «Академия», 2006. – 336.
Кулинария: теоретические основы профессиональной деятельности. Учебное пособие : в 2 ч. / О.М. Соловьева, Г.К. Миронова, А.П. Елепин. – М: Академкнига / Учебник, 2007. – Ч.2: 205 с.: ил.
Радченко Л.А. Организация производства на предприятиях общественного питания: учебник / Л.А. Радченко. – Изд. 8-е. Ростов н/Д: Феникс, 2008г .- 373 с.
Сборник рецептур блюд и кулинарных изделий для предприятий общественного питания. – М.: Экономика, 1982. – 720 с. –(Министерство торговли СССР).
Никуленкова Т.Т. Маргелов В.Н. «Проектирование предприятия общественного питания» М. «Экономика», 1987г.
Строительные нормы и правила проектирования СниП 2-л.8-71 «Предприятия общественного питания»
Нормы оснащения предприятий общественного питания столовой посудой, приборами, мебелью и кухонным инвентарём. Утв. Приказом МТ СССР № 38 от 09.022.73г.
1