Товароведная экспертиза хлебобулочных изделий
ОГЛАВЛЕНИЕ
1. Введение
2. Состояние рынка хлебобулочной промышленности
3 Ассортимент булочных изделий из пшеничной муки
4. Технология
5. Упаковка и маркировка
6. Отбор проб и экспертиза качества
7. Органолептическая оценка качества хлебобулочный изделий
8. Определение качества хлебобулочных изделий по физико-химическим показателям булочный маркировка упаковка качество дефект
9. Безопасность хлебобулочных изделий
10. Дефекты и болезни хлеба
11. Пищевая ценность хлебобулочных изделий
11. Список литературы
1. ВВЕДЕНИЕ
Хлеб и хлебобулочные изделия относятся к продуктам повседневного спроса. В настоящее время хлебопекарный бизнес располагает большими возможностями для увеличения количества предприятий, создания развитой конкурентной среды, новых рабочих мест.
Хлебопечение является социально значимой отраслью экономики. Большинство хлебозаводов, выпускающих основные сорта хлеба, решают важную стратегическую задачу обеспечения дешевым хлебом как можно большего количества человек. Потребление хлеба и хлебобулочных изделий связано в первую очередь с благосостоянием населения, с ростом которого российский потребитель переходит от дешевой и калорийной пищи к более дорогим продуктам [3]
2. СОСТОЯНИЕ РЫНКА ХЛЕБОБУЛОЧНОЙ ПРОМЫШЛЕННОСТИ
В 2008 г. продолжилась тенденция падения производства хлеба и хлебобулочных изделий. За 9 мес., по оперативным статистическим данным, выработка составила 98,0% к уровню предыдущего периода. Снижение происходило по всем федеральным округам, за исключением Сибирского. При использовании производственных мощностей только на 40% усилилась конкуренция на рынке, вследствие чего многие предприятия обанкротились и прекратили выпуск хлеба.
Результаты социологических исследований и экспертные оценки показали, что общей тенденцией изменения спроса является увеличение доли высокосортной продукции, упакованного и нарезанного хлеба, замороженных хлебобулочных изделий[2].
Увеличение выпуска хлебобулочных изделий из муки высшего сорта массой свыше 500 г, например, произошло везде, кроме Дальневосточного федерального округа. В то же время производство хлеба из муки первого сорта и смеси ржаной и пшеничной уменьшилось соответственно на 4,5 и 3,0%. Последняя группа держится в среднем на уровне 34%.
Основную долю хлебобулочных изделий по-прежнему составляют массовые сорта. В общем объеме производства их удельный вес продолжает превышать 70%. Они остаются наиболее доступным и востребованным продуктом питания малообеспеченных слоев населения, у которых ценовые колебания вызывают естественное чувство тревоги [1].
По данным маркетингового агентства Step by Step, московский рынок хлебобулочных изделий продолжает набирать обороты, несмотря на падение общероссийских показателей. Годовое производство хлеба и хлебобулочных изделий в столице составляет 657 тыс. тонн, годовой объем рынка хлебобулочной продукции Москвы составляет примерно $230 млн в денежном выражении.
По данным Росстата, среднесуточный объем московского рынка хлебобулочных изделий составляет 1,8 тыс. тонн.
Доминирующую роль в столице еще с советского периода продолжают играть хлебозаводы: в сложившихся рыночных условиях у крупных комбинатов выше рентабельность и шансы сохранить рецепты традиционного хлебопечения. Тем не менее, в Москве в данной отрасли достаточно развит малый бизнес.
Структура московского рынка представлена примерно 20 крупнейшими хлебозаводами, в числе которых МБКК "Коломенское", АОЗТ "Пеко", ОАО "Пролетарец", "Черемушки", группа "Черкизово", Хлебозавод №22, Хлебозавод №27, суммарная доля которых составляет около 85% рынка, и свыше 300 пекарен, на которые приходится около 15% рынка.
Согласно исследованию агентства Profdata, крупнейшими производителями хлеба в Москве являются группа "Черемушки", хлебозавод №22, группа "Черкизово", КБК "Коломенское"[3].
3. АССОРТИМЕНТ БУЛОЧНЫХ ИЗДЕЛИЙ ИЗ ПШЕНИЧНОЙ МУКИ
К булочным изделиям из пшеничной муки высшего, 1 и 2 сортов относят подовые штучные изделия в виде батонов, булок и булочек, хал, плетенок, витушек, подковок, калачей массой 500г и менее. В рецептуру которых входит менее 7% жира и 7% сахара на 100кг муки.
Рецептура батонов представлена ниже в таблице 1[4].
Таблица 1
Рецептура булочных изделии из пшеничной муки
-
Наименование
Сорт муки
Дрожжи
Соль
Сахар
Жир
Батон простой
1-й, 2-й
0,7
1,3
-
Растительное масло - 0,15
Городской
Высший
1,5
2,5
1
Столичный
Высший
5
2
1
Растительно масло – 0,15
Батон нарезной
Высший
1
1,5
6
Маргарин – 3,5
Растительное масло – 0,15
1-й
1
1,5
5
Маргарин – 3,5
Растительное масло – 0,15
Батон подмосковный
Высший
1,5
1,5
6
Маргарин – 3
Растительное масло – 0,15
Столовый
2
2
2
Маргарин – 8
Растительное масло – 0,1
4. ТЕХНОЛОГИЯ
Прием, хранение и подготовка хлебопекарного сырья
Свежесмолотую пшеничную муку в производство не применяют. После известного периода хранения муки в нормальных условиях, хлебопекарные свойства муки улучшаются. В процессе хранения нормализуется влажность, цвет, кислотность муки. В результате созревания мука становится сильнее, соответственно этому улучшаются показатели качества хлеба.
Подготовка муки заключается в составлении смеси, проведении смешивания, просеивания и магнитной очистки муки.
Соль в тесто поступает в растворенном виде. Дрожжи перед поступлением в тесто грубо измельчаются и хорошо размешиваются в теплой воде (t=30-350С). Сахар так же предварительно растворяется. Маргарин перед внесением в тесто должен быть предварительно растоплен[6].
Дозирование сырья
При порционном приготовлении теста в отдельных дежах дозирование сырья сводится к обвешиванию или отмериванию по объему порции сырья, необходимых для приготовления одной дежи теста.
Мука обычно дозируется с помощью автоматических мучных весов – автомукомеров.
Жидкие компоненты для порционного приготовления опары или теста (вода, раствор сахара и соли, жидкие дрожжи, водная суспензия прессованных дрожжей, жидкие или растопленные твердые жиры и их эмульсии) отмериваются с помощью соответствующих дозирующих устройств, в том числе и автоматизированных. Точность работы дозирующих устройств должна систематически контролироваться технологическим персоналом предприятия[4].
Приготовление теста
Тесто для батонов можно готовить любым способом, применяемым для приготовления изделий из пшеничной муки. Для приготовления теста при выработке булочных и сдобных изделий из муки высшего и первого сорта рекомендуется применять безопарный или ускоренный способ.
Безопарный способ
Безопарный способ приготовления теста рекомендуется применять при выработке булочных и сдобных изделий из пшеничной муки высшего и первого сортов.
Сущность данного способа заключается в приготовлении теста в одну стадию из всего количества муки и сырья по рецептуре. Приготовление теста безопарным способом для булочных и сдобных изделий производят как непрерывно, так и порционно. Непрерывный способ рекомендуется для выработки булочных изделий, порционный - для выработки булочных я сдобных изделий.
Таблица 2.
Рецептура и режим приготовления теста безопарным способом
-
Наименование сырья, полуфабрикатов и показателей процесса
Расход сырья и параметры процесса
Мука пшеничная хлебопекарная, кг
Дрожжи хлебопекарные прессованные,
Соль поваренная пищевая, кг
Вода, кг
Дополнительное сырье, кг
Влажность, %, не более
Температура начальная, °С
Продолжительность брожения, мин
Кислотность конечная, град
100
по рецептуре
по рецептуре
по расчету
по рецептуре
W>хл> + (0,5-1,0)
28-32
120-240
К>хл >+ 0,5
Непрерывное приготовление теста
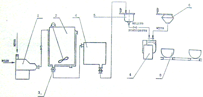
Непрерывное приготовление теста из пшеничной муки безопарным способом осуществляют в соответствии с аппаратурной схемой, приведенной на рисунке 1 ниже. Схема включает дозатор для жидких компонентов Ш2-ХДМ, дозирующее устройство для сыпучих компонентов, тестомесильную машину непрерывного действия И2-ХТА-12/1 и др. и бункер для брожения теста И8-ХТА-12/2, И8-ХТА-6/2 и др.

Рис.1.. Аппаратурная схема приготовления теста из пшеничной муки безопарным способом
1- дозировочная станция Ш2-ХДМ; 2 — тестомесильная машина И8-ХТА-12/1; 3 - нагнетатель теста И8-ХТА-12/5; 4 - бункер для брожения теста И8-ХТА-12/2; 5 — тестоделитель.
Замешанное тесто из тестомесильной машины нагнетателем теста марки Й8-ХТА-12/5 направляют в бункер для брожения. Загрузку секций секционного бункера осуществляют последовательно, рассчитывая время загрузки и брожения теста таким образом, чтобы к моменту готовности теста в первой секции последняя поступала под загрузку новой порции теста.
Готовность теста к разделке определяют по его объему и Кислотности, установленной технологическим режимом.
Порционное приготовление теста
При порционном приготовлении теста замес его производят в тестомесильных машинах периодического действия А2-ХТБ, Ш2-ХТ2-И и др.
При замесе теста в тестомесильных машинах типа А2-ХТБ в дежу вносят все сырье, полагающееся по рецептуре, кроме муки и дрожжей, заливают воду и перемешивают в течение 2—3 мин. Затем засыпают муку, вносят дрожжевую суспензию и замешивают тесто. Продолжительность замеса теста должна быть не менее 10 мин. Брожение теста производят в дежах в течение 150-240 мин, через 60—90 мин после замеса желательно тесто обмять. При использовании муки с сильной клейковиной тесто желательно подвергнуть 2-кратной обминке, причем последний раз за 20—25 мин до конца брожения.
При замесе теста в тестомесильной машине Ш2-ХТ2-И из-за невозможности корректировки доз сырья в процессе замеса особое внимание должно быть обращено на точность дозирования сырья и последовательность загрузки его в тестомесильную машину (вначале жидкие компоненты, а затем мука).
Рекомендуемая продолжительность замеса теста в машине Ш2-ХТ2-И составляет 3-4 мин, продолжительность брожения - 120-150 мин.
Из тестомесильной машины Ш-ХТ2-И замешенное тесто выгружают в подкатные дежи, емкости цепного конвейера Ш2-ХББ, дежи кольцевого конвейера Ш2-ХБВ или секции бункера брожения И8-ХТА-6/2.
Готовность теста определяют по достижению кислотности, предусмотренной технологическим режимом, и органолептическим показателям.
Приготовление теста ускоренными способами
Сущность ускоренных способов приготовления теста заключается в интенсификации микробиологических, коллоидных и биохимических процессов, происходящих при созревании теста, что достигается путем:
применения усиленной механической обработки теста при замесе - использования подкисляющих или активированных полуфабрикатов;
повышения температуры теста;
увеличения дозировки дрожжей.
Преимущества ускоренных способов заключаются в сокращении до минимума емкостей для брожения теста, в возможности перехода предприятий на работу в две смены и с неполной рабочей неделей, в снижении затрат муки при брожении, в повышении культуры производства и т. д.
Наиболее целесообразно использовать ускоренные способы приготовления теста при выработке хлеба, булочных и сдобных изделий из муки высшего и первого сортов.
В хлебопекарной промышленности применяются ускоренные способы приготовления теста на молочной сыворотке, на концентрированной молочнокислой закваске, на диспергированной жидкой фазе.
Ускоренный способ приготовления теста с использованием молочной сыворотки
Особенностью данного способа является интенсификация процесса созревания теста за счет внесения молочной сыворотки наряду с увеличением дозировки дрожжей на 0,5—1,0% и применением усиленной механической обработки при замесе. Внесение молочной сыворотки при замесе теста способствует увеличению бродильной активности дрожжей за счет повышения кислотности теста сразу после замеса и улучшения азотного питания. Рекомендуется использовать сыворотку молочную натуральную или сывороточные концентраты.
Сыворотку молочную натуральную можно использовать при выработке по этому способу всех сортов хлеба, булочных и сдобных изделий. Сывороточные концентраты целесообразно применять для производства изделий, содержащих по рецептуре сахар, с целью одновременного использования их на замену 0,5-1,0% сахара, предусмотренного рецептурой.
Таблица 3.
Рецептура и режим приготовления теста ускоренным способом на молочной сыворотке для производства булочных изделий
-
Наименование сырья, полуфабрикатов и
показателей процесса
Расход сырья и параметры процесса
Мука пшеничная хлебопекарная, кг
100
Дрожжи хлебопекарные прессованные, кг
по рецептуре + (0,5-1,0)
Соль поваренная пищевая, кг
по рецептуре
Вода, кг
по расчету
Дополнительное сырье, кг
по рецептуре
Молочная сыворотка, кг
10-15
Влажность, %
W>хл>+(0,5 – 1,0)
Температура начальная, °С
30-34
Продолжительность замеса, мин
3-4 (15-20)
Продолжительность брожения, мин
40-90
Кислотность молочной сыворотки.° Т, не более
75
Кислотность конечная теста, град
Кхл + 0,5
Молочную сыворотку вносят при замесе теста в таком количестве, чтобы получить готовые изделия кислотностью, соответствую щей требованиям нормативно-технической документации на вырабатываемое изделие.
При замесе теста воду дозируют с учетом внесения сыворотки, чтобы получить изделие заданной влажности. При выработке сдобных изделий, в рецептуру которых входит большое количество дополнительного сырья, с целью получения изделий требуемой влажности часть сырья, главным образом сахар; вносят при замесе в сухом виде.
Ускоренный способ приготовления теста на концентрированной молочнокислой закваске
Концентрированная молочнокислая закваска (КМКЗ) представляет собой полуфабрикат влажностью 63-66% с конечной кислотностью 14-18 град. Введение КМКЗ при замесе теста обеспечивает повышение кислотности теста до уровня, способствующего быстрому протеканию коллоидных и биохимических процессов, а также активации жизнедеятельности дрожжей. Наличие предшественников вкуса и аромата в закваске позволяет получить хлеб высокого качества при сокращенной продолжительности брожения теста. Высокая кислотность концентрированной молочнокислой закваски обеспечивает ее самоконсервирование на время перерывов в работе на 16 - 24 ч, а также способствует предотвращению заболевания пшеничного хлеба картофельной болезнью. Разрешено увеличивать на 1 град кислотность хлеба при выработке его ускоренным способом на концентрированной молочнокислой закваске.
Приготовление теста ускоренным способом с применением кисломолочной закваски целесообразно осуществлять в агрегате Ш2-ХТД-О1, в комплект которого входит оборудование для приготовления и созревания закваски, для замеса и брожения теста, а также на линиях с использованием тестомесильной машины Ш2-ХТ2-И в сочетании с серийно выпускаемым или нестандартизированным оборудованием. Параметры логического процесса приготовления теста приведены в таблице.
Таблица 4.
Рецептура и режим приготовления теста ускоренным способом на молочнокислой закваске
-
Наименование сырья, полуфабрикатов и показателей процесса
Расход сырья и параметры процесса при выработке булочных изделий
Мука пшеничная хлебопекарная, кг
95—97
Дрожжи хлебопекарные прессованные, кг
по рецептуре + (0,5—1,0)
Соль поваренная пищевая, кг
по рецептуре
Вода, кг
по расчету
Дополнительное сырье, кг
по рецептуре
КМКЗ, кг*
7,5—12,5
Влажность, %, не более
W>хл> + (03—1,0)
Продолжительность замеса, мин
3-4
Температура начальная, °С
30-34
Кислотность КМКЗ, град
14-18
продолжительность брожения теста, мин
40-90
кислотность теста конечная, град, не более
К>хл> + 1,0
Аппаратурная схема приготовления теста ускоренным способом с использованием КМКЗ на агрегате Ш2-ХТД-01

Рис. 2. Аппаратурная схема приготовления теста из пшеничной муки ускоренным способом с использованием КМКЗ в агрегате Ш2-ХТД-01
1 - смеситель винтовой Ш2-ХВ2-Б; 2 - аппарат для выбраживания КМКЗ Ш2-ХТД-01.01; 3 - насос шестеренчатый Ш2-ХДН; 4 - расходная емкость Ш2-ХТД-01.02; 5 - дозатор жидких компонентов Ш2-ХД2-Б; 6- дозатор сыпучих компонентов Ш2-ХД2-А; 7- тестомесильная машина Ш2-ХТ2-И; 8 - конвейер для брожения теста Ш-ХБВ.
В винтовой смеситель Ш2-ХВ2-Б, предназначенный для приготовления питательной смеси, дозируют воду и муку. Полученную гомогенную смесь насосом подают в емкость Ш-ХТД-01.01, предназначенную для брожения КМКЗ, в которой находится выброженная закваска разводочного цикла. После поступления в емкость заданного количества питательной смеси закваску перемешивают и оставляют для созревания. Во время созревания закваску периодически перемешивают мешалкой, которой оснащена емкость.
Готовую закваску в количестве, необходимом для работы в течение смены, перекачивают насосом Ш2-ХДН в расходную емкость Ш-ХТД-Ш.02, а в оставшуюся закваску снова подают питательную смесь.
Из расходной емкости насосом Ш2-ХДН закваску перекачивают в дозатор жидких компонентов Щ-ХДБ. Этим же дозатором последовательно набирают дозы всех жидких компонентов (воду, жир, дрожжи, соль, сахар). Смесь жидких компонентов сливают в месильную емкость тестомесильной машины Щ2-ХГ2-И, после чего через дозатор сыпучих компонентов И2-ХШ-А подают муку и в течение 3—4 мин замешивают тесто.
Из тестомесильной машины замешенное тесто выгружают в дежи кольцевого конвейера для брожения Ш-ХБВ или емкость конвейера Ш-ХББ, где оно бродит 40-90 минут [7].
Разделка теста
При производстве пшеничного хлеба и хлебобулочных изделий разделка теста включает: деление теста на куски, округление этих кусков, предварительную, или промежуточную, расстойку, окончательное формование изделий и окончательную расстойку тестовых заготовок.
Деление теста на куски
На хлебозаводах деление теста на куски, как правило, производится на тестоделительных машинах.
Масса куска теста устанавливается исходя из заданной массы штуки хлеба или хлебобулочного изделия. При этом учитывают потери в массе куска теста при его выпечке (упек) и штуки хлеба при остывании и хранении (усыхание). Отклонения массы отдельных кусков теста от установленной должны быть минимальными. Значительные отклонения недопустимы даже при выработке хлеба, продаваемого не штуками, а по массе. Резко разнящиеся по массе куски теста будут расстаиваться и выпекаться с различной скоростью, что неминуемо вызовет и заметные различия в качестве хлеба. Точность работы тестоделительных машин приобретает особое значение при выработке штучного хлеба и хлебобулочные изделий.
На отклонения в массе штучного хлеба, помимо отклонения в массе кусков теста, влияют еще и такие факторы, как неравномерность упека при выпечке хлеба и усыхания его при хранении. По этому тестоделительные машины, предназначаемые для выработки штучного хлеба, должны давать куски теста, отклонения в массе которых не будут превышать ±1,5%.
Округление кусков теста
При производстве многих видов изделий из пшеничной муки высшего, I и II сортов (батонов, булок, плетеных и витых изделий, розанчиков, рожков, подковок и т. п.) округление является лишь первой, промежуточной стадией формования изделия, за которой следует промежуточная, или предварительная, расстойка округленных кусков теста.
В этом случае операция округления (при ручном осуществлении носящая название подкатки) имеет целью улучшение структуры теста, способствующее получению изделий с более мелкой и равномерной пористостью мякиша.
Предварительная расстойка
Между операциями округления и окончательного формования кусков пшеничного теста должна иметь место предварительно или промежуточная расстоика. Округленные куски теста должны находиться в состоянии покоя в течение 5—8 мин.
Цель предварительной расстойки – улучшение свойств реологических свойств хлеба. Улучшается структура и газообразующая способность. Это приводит к некоторому увеличению объема готовых изделий и улучшению структуры и характера пористости мякиша.
На тесторазделочных поточных линиях предварительная расстойка производится в ленточных или цепных люлечных шкафах для расстойки непрерывного действия. Иногда первая расстойка осуществляется на длинных ленточных транспортерах, передающих куски теста от округлителя к закаточной машине.
Придание кускам теста требуемой формы
После предварительной расстойки округленным кускам теста придают форму, характерную для готовых изделий данного сорта. Так для получения обычных батонов из круглого куска теста необходимо сформировать цилиндрический кусок теста с тупыми округлыми концами. Для формования уже округленных кусков пшеничного теста после их предварительной расстойки применяются закаточные ма шины ряда марок, в которых кусок теста сначала раскатывается валками в продолговатый блин, затем свертывается в трубку, которая позже подвергается раскатке. Прямое раскатывание округ ленных кусков пшеничного теста до приобретения ими формы ба тонов без предварительной раскатки куска теста в блин и свертывания его в трубку не обеспечивает достаточной проработки теста. Такие батоны имеют заметно худшую, менее однородную и неравномерную пористость.
Окончательная расстойка
В процессе формования кусков теста из них почти полностью вытесняется углекислый газ (диоксид углерода). Если сформованный кусок теста сразу же посадить в печь, то хлеб выйдет с плотным, очень плохо разрыхленным мякишем, с разрывами и трещи нами на корке. Для получения хлеба с хорошо разрыхленным мякишем сформованные куски теста подвергаются расстойке.
Для кусков пшеничного теста, уже прошедших предварительную расстойку, это будет вторая, окончательная расстойка.
В отличие от предварительной расстойки окончательная рас стойка должна проводиться в атмосфере воздуха определенной температуры (в пределах 35—40°С) и относительной влажности (в пределах 75—85%). Повышенная температура воздуха ускоряет брожение в расстаиваюшихся кусках теста. Достаточно высокая. относительная влажность необходима для предотвращения образования на поверхности кусков теста высохшей пленочки[4].
Продолжительность окончательной расстойки столичных батонов 30—45 минут[5].
Выпечка хлеба
Перед посадкой в печь на тестовых заготовках делают надрезы с помощью специального устройства или вручную. Цель надрезания – не только украсить поверхность изделия, но и предохранить от возникновения трещин при выпечке.
Изделия выпекают на поду или листах. Наиболее благоприятными условиями являются относительная влажность в начальной зоне пекарной камеры 80—85% и температуры 220—2500С.
Продолжительность выпечки батонов Столичных массой 0,4кг составляет 18—20 минут[7].
5. УПАКОВКА И МАРКИРОВКА
Для упакованных и бумагу с полиэтиленовым покрытием изделий наносят маркировку, содержащую:
товарный знак;
наименование предприятия-изготовителя, его подчиненность, местонахождение;
наименование изделия;
массу нетто;
дату н час выработки:
срок реализации;
обозначение настоящего стандарта;
информационные сведения об энергетической ценности, содержании белка, жира и углеводов на 104) г изделий.
Булочные изделия вырабатываются упакованными и без упаковки. Остывшие булочные изделия упаковывают в пищевую полиэтиленовую пленку по ГОСТ 10354 иди полиэтиленовую термоусадочную пленку по ГОСТ 25951.
Батоны упаковывают по I шт.
Отклонение массы нетто каждого изделия передней массы нетто 10 изделий с меньшую сторону в конце срока реализации не должно превышать соответственно 3,0 и 2.5 % от установленной массы нетто одного изделия. Отклонение массы нетто изделий с большую сторону не ограничено[9].
6. ОТБОР ПРОБ И ЭКСПЕРТИЗА КАЧЕСТВА
О качестве готовой продукции хлебопекарного предприятия судят по данным анализа отбираемых средних проб готовых хлебобулочных изделий. О качестве изделий судят по показателям, определяемым органолептическими и физико-химическими методами, определяется также масса изделия. Органолептически определяемыми показателями являются: форма изделия, цвет и состояние поверхности его корок, состояние мякиша, вкус, запах; физико-химическими — влажность мякиша, кислотность, пористость, массовая доля жира, сахара, поваренной соли, при добавлении витаминов — их массовая доля.
В соответствии с ГОСТ 5667—65 "Хлеб и хлебобулочные изделия. Правила приёмки, методы отбора образцов, методы определения органолептических показателей и массы изделий" продукция, вырабатываемая хлебопекарными предприятиями, принимается и контролируется партиями.
Такие показатели как форма, поверхность, цвет и масса контролируется на 2.-.3 лотках от каждой вагонетки, контейнера или 10% изделий от каждой полки или стеллажа. Результаты контроля распространяются на вагонетку, контейнер, стеллаж, полку, от которых отбирались изделия. При получении неудовлетворительных результатов производят сплошной контроль (разбраковывание). Для контроля органолептических показателей (кроме формы, поверхности и цвета) и физико-химических показателей составляют представительную выборку способом "россыпью" в соответствии с ГОСТ 18321.
Объём представительной выборки представляют следующим образом. В процессе выработки партии изделий на предприятии или партии, поступившей в торговую сеть, из вагонеток, контейнеров, стеллажей, полок, корзин, лотков или ящиков отбирают отдельные изделия в количестве 0,2% всей партии, но не менее 5 шт. - при массе изделия от 1 до 3 кг; 0,3% всей партии, но не менее 10 шт. - при массе отдельного изделия менее 1кг. результаты анализа представительной выборки распространяют на всю партию.
Для контроля органолептических и физико-химических показателей отбор образцов производят по представительной выборке методом "вслепую" в соответствии с ГОСТ 18321.
Для контроля органолептических показателей (кроме формы, поверхности и цвета), а также наличия посторонних включений, хруста от минеральной примеси, признаков болезней от представительной выборки отбирают пять единиц продукции.
Для контроля физико-химических показателей от представительной выборки отбирают лабораторные образцы в количестве:
♦1 шт. — для весовых и штучных изделий массой более 400 г;
♦не менее 2 шт. — для штучных изделий массой от 400 до 200 г включительно;
♦не менее 3 шт. — для штучных изделий массой менее 200 до 100 г включительно;
♦ не менее 6 шт. — для штучных изделий массой 100 г.
При проверке качества изделий контролирующими организациями отбор проб, их упаковка и контроль лабораторных проб осуществляется по ГОСТУ 5667-65.
Физико-химические показатели определяют в течение установленных сроков реализации продукции, но не ранее чем через час для мелкоштучных изделий массой 200 г и менее и не ранее, чем через три часа для остальных изделий [товароведение].
Данная курсовая работа представляет товароведную экспертизу 2х образцов Столичных батонов:
1.Батон Столичный. Производитель: ОАО "Хлебкомбинат "Пролетарец"
115088, Россия, ул. Новоостаповская, д.12.
2. Батон Столичный. Производитель: ЗАО Хлебзавод № 18, Москва, Часовая улица, 6, корпус 3
Определение массы изделия и размеров батона
Для определения массы изделия применяют весы среднего класса точности по ГОСТ 2329 с ценой деления не более 2 г для массы до 200г включительно; не более 5 г для массы более 200 г, гири 5-го класса точности по ГОСТ 7328. Перед проведением измерения проверяют правильность установки весов.
Определение массы отдельного изделия производят взвешиванием не менее 10 шт. изделий без упаковки, отобранных из 2.- 3 лотков от каждой вагонетки, контейнера или стеллажа: 10% изделий от каждой полки.
Среднюю массу изделия определяют как среднеарифметическую величину одновременного взвешивания 10 шт. изделий без упаковки из отобранных с вышеописанными требованиями. Допускается взвешивать изделия поштучно или несколько штук на одних и тех же весах с суммированием результатов отдельных взвешиваний.
Отклонение массы отдельного изделия и средней массы определяют как разность между результатами измерений и установленной массой, отнесённую к установленной массе и выраженную в процентах. Отклонения массы не должны превышать отклонений, допускаемых нормативными документами на хлебобулочные изделия[8].
Фактические результаты определения массы нетто и размеров батонов
Образец 1: Масса нетто – 438г. Размеры: длина – 40см, ширина – 8,5 см.
Отклонения по массе - +9,5%
Образец 2: Масса нетто – 410г. Размеры: длина – 41см, ширина – 7 см.
Отклонения по массе - +2,5%
Заключение: Оба образца соответствуют требованиям ГОСТ 27844-88 "Изделия булочные. Технические условия" (масса – 0,2; 0,4; длина – 39-43см, ширина – 6-8см).
7. ОРГАНОЛЕПТИЧЕСКАЯ ОЦЕНКА КАЧЕСТВА ХЛЕБОБУЛОЧНЫХ ИЗДЕЛИЙ
Органолептическая оценка пищевых продуктов, в том числе и хлебобулочных изделий, в оценке их качества имеет очень большое значение. Результаты органолептического анализа должны быть решающими при определении качества новых изделий, при разработке новых технологий получения основных продуктов питания населения.
К органолептически определяемым показателям качества хлебобулочных изделий относят внешний вид (состояние поверхности, окраска и состояние корки, отсутствие или наличие отслоения корки от мякиша и форма изделия), состояние мякиша (свежесть, пропеченность). При оценке пористости изделия обращают внимание на величину пор (мелкие, средние, крупные), равномерность их распределения на всём пространстве среза мякиша (равномерная, достаточно равномерная, недостаточно равномерная, неравномерная) и толщину стенок пор (тонкостенные, средней толщины, толстостенные), наличие пустот и уплотнений.
При оценке запаха обращается внимание на наличие или отсутствие у изделия посторонних, несвойственных ему и особенно неприятных запахов.
Вкус определяется при разжёвывании мякиша изделия. Обращается внимание на наличие вкуса не свойственного хлебобулочному изделию. Вкус может быть нормальным, сладким, кислым, пресным, горьковатым и т. д. Иногда изделие имеет посторонние запахи, влияющие на его вкус[8].
Фактические результаты органолептической оценки
Таблица 5.
Органолептические показатели Столичных батонов
|
Наименова-ние показателя |
Характеристика |
||
|
Требования ГОСТ 27844-88 |
Образец 1 |
Образец 2 |
|
|
Состояние поверхности |
|||
|
Форма |
Не расплывчатая, без притисков. Продолговато-овальная |
Соотв. |
Соотв. |
|
Поверхность |
У столичных батонов - с косыми надрезами. Для упакованных изделий допускается незначительная морщинистость |
Соотв. |
Соотв. |
|
Цвет |
От светло-желтого до коричневого |
Соотв. |
Соотв. |
|
Состояние мякиша |
|||
|
Пропеченость |
Пропеченный, невлажный на ощупь. Эластичный. После легкого надавливания пальцами мякиш должен принимать первоначальную форму |
Соотв. |
Соотв. |
|
Промес |
Без комочков и следов непромеса |
Соотв. |
Не соответствует |
|
Пористость |
Развитая, без пустот и уплотнений. Допускается неравномерная |
Соотв. |
Не соответствует. Наблюдаются уплотнения и крупные пустоты |
|
Вкус |
Свойственный данному виду изделий, без постороннего привкуса |
Соотв. |
Соотв. |
|
Запах |
Свойственный данному виду изделий, без постороннего запаха. |
Соотв. |
Соотв. |
Заключение: Образец 1 полностью отвечает требованиям ГОСТ 27844-88. Образец 2 не соответсвует ГОСТ 27844-88 по показателями "промес" и "Пористость"
8. ОПРЕДЕЛЕНИЕ КАЧЕСТВА ХЛЕБОБУЛОЧНЫХ ИЗДЕЛИЙ ПО ФИЗИКО-ХИМИЧЕСКИМ ПОКАЗАТЕЛЯМ
В соответствии с требованиями стандартов основными физико-химическими показателями качества хлебобулочных изделий являются: влажность; кислотность; пористость; массовая доля жира; массовая доля сахара; массовая доля поваренной соли; для витаминизированных изделий — массовая доля витаминов В, (тиамина), В2 (рибофлавина), РР (никотиновой кислоты).
В данной работе будут определены влажность, кислотность и пористость Столичных батонов.
Влажность хлебобулочных изделий
Влажность хлебобулочного изделия определяют: для расчёта выхода; для проверки соблюдения режима технологического процесса, рецептуры; для учёта энергетической ценности. При повышении влажности изделия повышается его выход, снижается энергетическая ценность, могут изменяться и такие показатели качества изделия, как форма, внешний вид (подовые изделия могут расплываться, а у формовых верхняя корка может быть плоской, менее выпуклой), цвет корки. структура мякиша и др.
Получить точное представление о влажности хлеба можно высушиванием навески изделия до постоянной массы при 100-105оС. Стандартом на хлебобулочные изделия предусмотрен ускоренный метод определения влажности (ГОСТ 21094-75) не целого хлеба, а лишь его мякиша.
Методика определения влажности.
При подготовке к анализу лабораторный образец разрезают примерно пополам и из одной части отрезают ломоть толщиной 1—3 см. Отделяют мякиш от корок на расстоянии 1 см. Масса выделенной пробы должна быть не менее 20 г.
Подготовленную пробу быстро и тщательно измельчают ножом, теркой или механическим измельчителем, перемешивают и тотчас же берут две навески. Если образец состоит из части хлеба, то с него сначала срезают заветренную часть толщиной около 0,5 см.
Определение массовой доли влаги в мякише хлеба ведут в электрических сушильных шкафах с терморегуляторами. Высушивание осуществляют в металлических бюксах высотой 2,0 см и диаметром 4,5 см.
В предварительно высушенных и взвешенных бюксах с крышкой взвешивают 5 г мякиша хлеба с точностью ±0,01 г. Шкаф должен быть нагрет до температуры 140—145 °С Подготовленные пробы в открытых бюксах (крышки необходимо поставить под дно бюкс) помешают в сушильный шкаф, при этом температура в шкафу быстро падает, как правило, ниже 130 °С. В течение 10 мин ее доводят до 130 °С и при этой температуре продолжают высушивание в течение 40 мни. (отклонение не должно превышать ±2 °С).
Если необходимая температура (130 °С) в сушильном шкафу устанавливается за 1-2 мин, рекомендуется проводить высушивание в нем в течение 50 мин с момента помещения проб в шкаф.
После высушивания бюксы закрывают крышками, охлаждают в эксикаторе 15-20 мин и взвешивают. Оставлять в эксикаторе бюксы более 2 ч нельзя, т. к. навески будут поглощать влагу.
По разности навески до и после высушивания определяют массу испарившейся влаги и рассчитывают массовую долю влаги (%) с точностью ± 0.5 % [10].
Влажность вычисляют по формуле:
W = 100 · (m1– m2) / m , где
m1 – масса бюксы с навеской до высушивания, г ;
m2 – масса бюксы с навеской после высушивания, г;
m – масса навески, г .
Пористость хлебобулочных изделий
Под пористостью хлебобулочного изделия понимают отношение объёма пор мякиша к общему объёму хлебного мякиша, выраженное в процентах. Пористость изделия с учётом его структуры (размера пор, однородности, толщины стенок) характеризует такое важное свойство продукта, как усвояемость. Низкая пористость обычно присуща изделиям из плохо выброженного теста, с низкой влажностью и др.
Стандартом оговаривается, какой должна быть пористость (приводится нижний предел). Так пористость хлеба ржаного, ржано-пшеничного и пшенично-ржаного должна быть не менее 45—65%; изделий из пшеничной муки — 54—74% в зависимости от вида изделия и способа выпечки.
Пористость хлеба определяется методом Журавлёва.
Методика определения
Из середины изделия вырезают кусок шириной не менее 7 – 8 см. Из куска мякиша на расстоянии не менее 1 см от корок делают выемки цилиндром прибора Журавлева. Острый край цилиндра предварительно смазывают растительным маслом. Цилиндр вводят вращательными движениями в мякиш хлеба.
Заполненный мякишем цилиндр укладывают на лоток так, чтобы ободок, его плотно входил в прорез, имеющийся в лотке. Затем хлебный мякиш выталкивают из цилиндра деревянной втулкой примерно на 1 см и срезают его у края цилиндра острым ножом. Отрезанный кусок мякиша удаляют. Оставшийся в цилиндре мякиш выталкивают втулкой до стенки лотка и так же отрезают у края цилиндра.
Для определения пористости мякиша ржаного хлеба из смеси муки делают четыре цилиндрических выемки объемом 27±(0,5)см3 каждая и одновременно взвешивают[10].
Обработка результатов:
П = 100 · (V – m / p) / V , где
П – пористость, %;
V – общий объем выемок хлеба, см3 ;
m – масса выемок, г;
p – плотность беспористой массы мякиша.
Кислотность хлеба
Показатель кислотности хлебобулочного изделия характеризует его качество с вкусовой стороны. По этому показателю можно также судить о выполнении правил ведения технологического процесса приготовления изделия.
Кислотность хлеба в основном обусловлена продуктами, получаемыми в результате брожения теста. Кислотность выражается в градусах кислотности.
Под градусом кислотности (согласно ГОСТ 5670-96) понимают объём в кубических сантиметрах раствора точной молярной концентрации 1 моль/дм3 гидроокиси натрия или гидроокиси калия, необходимый для нейтрализации кислот, содержащихся в 100 г изделий.
В стандарте указывается, какой должна быть кислотность изделия. Так, для хлеба ржаного, ржано-пшеничного, пшенично-ржаного (указывается верхний предел) кислотность должна быть не более 7,0—11,0 град, булочных изделий из пшеничной муки — 2,5—4,0 град в зависимости от вида изделия[8].
Методика определения
Хлеб разрезают пополам по ширине и из одной половины отрезают кусок массой около 70 г, с которого срезают корки и подкорковый слой толщиной около 1 см.
У образца, состоящего из части изделии, срезают с одной стороны заветренную часть, делая сплошной срез толщиной около 0,5 см. Затем отрезают кусок массой около 70 г, с которого срезают корки и подкорковый слой толщиной около 1 см.
Подготовленные куски быстро измельчают и перемешивают.
Взвешивают 25г измельченного мякиша хлеба с точностью +0,01г и помещают в банку вместимостью 500 см3. Мерную колбу вместимостью 250см наполняют до метки водой комнатной температуры, около 1/4 взятой воды переливают в банку с хлебом и хорошо перетирают деревянной лопаткой. Затем доливают оставшуюся воду, содержимое банки энергично перемешивают в течение 2 мин и оставляют в покое при комнатной температуре на 10 мин. Затем вновь 2 мин перемешивают содержимое и опять оставляют в покое на 8 мин. За это время кислореагирующие вещества из мякиша хлеба переходят в вытяжку.
Затем отстоявшийся слой жидкости сливают через частое сито или марлю в сухой стакан. Из стакана отбирают пипеткой по 50 см' фильтрата в две конические колбы вместимостью 100-150 см3 каждая и титруют 0,1 н. раствором гидроксида натрия или калия при добавлении 2- 3 капель фенолфталеина до появления слабо-розового окрашивания, не исчезающего в течение 1 мин[10].
Кислотность мякиша X (град.) вычисляют с точностью до 0,5 град. по формуле:
Х = 2V · K, где
X – кислотность, град;
V – объем раствора гидроокиси натрия с молярной концентрацией 0,1;
моль/дм3 , израсходованный на титрование исследуемого раствора, см3;
К – поправочный коэффициент приведения используемого раствора
гидроокиси натрия к раствору концентрацией 0,1 моль/ дм3 .
Фактические результаты физико-химических показателей
Таблица 6.
Физико-химические показатели образцов Столичных батонов
-
Показатель
Требования ГОСТ 27844-88
Образец 1
Образец 2
Пористость
Не нормируется
79 %
79%
Кислотность
Не более 2,5
1о
1,6 о
Влажность
Не более 45%
45,1%
41,5%
Заключение: Оба образца по всем физико-химическим показателями соответствуют требованиям ГОСТ 27844-88 "Изделия булочные. Технические условия"
9. БЕЗОПАСНОСТЬ ХЛЕБОБУЛОЧНЫХ ИЗДЕЛИЙ
В соответствии с Федеральным законом РФ "О техническом регулировании" в пищевой отрасли должны быть разработаны технические регламенты - документы, одной из задач применения которых является обеспечение безопасности продукции и, соответственно, защита жизни или здоровья населения
До введения в действие технических регламентов для определения уровня безопасности продукции используется СанПиН 2.3.2. 1078-01 "Гигиенические требования безопасности и пищевой ценности пищевых продуктов".
Для хлебобулочных изделий приведены следующие показатели безопасности:
- допустимые уровни загрязнителей - токсичных элементов (свинец, мышьяк, кадмий, ртуть), микотоксинов (афлатоксин В,, дезоксиниваленол, Т-2 токсин, зеараленон), пестицидов (гексахлорбензол, ртутьорганические и др.), радионуклидов (це-зий-137, стронций-90);
- микробиологические показатели[8].
Таблица 6.
Гигиенические требования безопасности хлебобулочных изделий. (СанПиН 2.3.2.1078-01)
|
Группа хлебобулочных изделий |
Токсичные элементы, мг/кг, не более |
Микотокоины, пестициды, мг/кг, не более |
Радионуклиды, Бк/кг, не более |
||||
|
свинец |
мышьяк |
кадмий |
ртуть |
цезий-137 |
строн-ций-90 |
||
|
Хлеб, булочные и сдобные изделия |
0,35 |
0,15 |
0,07 |
0,015 |
По муке |
40 |
20 |
|
Бараночные, сухарные изделия, хлебные палочки, соломка и др. |
0,5 |
0,2 |
0,1 |
0,02 |
По муке |
50 |
30 |
10. ДЕФЕКТЫ И БОЛЕЗНИ ХЛЕБА
Существуют дефекты вызванные качеством сырья, дефекты вызванные нарушением технологии, дефекты вызванные микроорганизмами.
К дефектам хлеба, вызванным качеством сырья относятся:
посторонние запах и вкус;
хруст на зубах, обусловленный наличием песка в муке;
бледная окраска поверхности корки вследствие недостаточной сахаро- и газообразующей способности муки;
липкость и заминаемость мякиша хлеба; если мука смолота из проросшего или морозобойного зерна;
расплываемость подового хлеба, пониженные объем и пористость мякиша при использовании муки из зерна, пораженного клопом-черепашкой, муки свежесмолотой или слабой вследствие неполноценности белкового комплекса пшеницы, из которой эта мука получена.
Посторонние запах или привкус могут вызываться наличием в муке примесей полыни, горчака или несоблюдением правил хранения муки, дрожжей и жировых продуктов.
Горькополынный вкус и запах могут быть в той или иной степени устранены в процессе подготовки зерна к помолу и во время помола. На хлебозаводе вкус и запах горькополынной муки устранены быть не могут. Горький привкус готовым изделиям придает использование жировых продуктов с просроченным сроком хранения.
Хруст на зубах и не свойственные хлебу запах и вкус могут появиться только при недосмотре работников лаборатории, допустивших в производство муку, вызывающую эти дефекты хлеба.
Такие дефекты хлеба, как бледная окраска корки, липкость и заминаемость мякиша, расплываемость подового хлеба, пониженные объем и пористость мякиша могут быть вызваны переработкой муки с пониженными хлебопекарными свойствами.
Дефекты хлеба, вызванные неправильным приготовлением теста
Повышенная влажность теста может вызвать чрезмерную расплываемость подовых изделий и заминаемость мякиша, кроме того с повышением влажности хлеба снижается его энергетическая ценность. Пониженная влажность теста может привести к получению хлеба недостаточного объема, с плотным, сухим на ощупь, слабо разрыхленным, быстро черствеющим мякишем.
Уменьшение дозы дрожжей на замес теста замедляет брожение и расстойку, в результате чего готовые изделия имеют меньший объем и более плотный мякиш.
Добавление в тесто чрезмерно горячей воды часто вызывает появление темных пятен или колец в мякише хлеба в результате клейстеризации крахмала. Горячая вода может также ухудшить состояние дрожжей, что снижает интенсивность брожения теста.
Отсутствие соли или уменьшение ее количества вызывает образование липкого мякиша и повышенную расплываемость изделий, а также изменяет вкус и приводит к образованию более темноокрашенной корки. Передозировка соли тормозит все процессы, протекающие при созревании теста, в результате чего хлеб получается с бледноокрашенной коркой, низкого объема, с грубой толстостенной пористостью, с резким соленым вкусом.
Дефекты хлеба, вызванные неправильной разделкой теста
Недостаточная механическая проработка пшеничного теста при его округлении и закатке может привести к получению хлеба с неравномерной пористостью мякиша, с отдельными крупными порами или даже пустотами (полостями расслоения).
Неправильная форма кусков теста после закатки или иной завершающей операции формования неизбежно скажется и на форме хлеба или хлебного изделия. При недостаточной продолжительности расстойки форма изделия близка к шаровидной, на боковых корках образуются трещины и подрывы. У формового хлеба верхняя корка сильно выпуклая, подорванная с одной или двух сторон. Мякиш хлеба недостаточно эластичный. При избыточной продолжительности расстойки подовые изделия получаются плоскими и расплывчатыми вследствие ослабления клейковины и пониженного газообразования. Верхняя корка формового хлеба вогнутая, корытообразная. У гребешковых, сдобных и фигурных изделий теряется рельефность гребешка или рисунка.
Дефекты хлеба, вызванные неправильной выпечкой
Слишком высокая температура выпечки может привести к получению хлеба либо с очень толстой и темноокрашенной коркой, либо с нормальной коркой, но недостаточно пропеченным, с заминающимся мякишем.
Низкая температура выпечки является причиной получения хлеба с непропеченным мякишем и бледноокрашенной коркой. Подовые изделия при этом могут быть излишне расплывчатыми.
Недостаточное увлажнение в первой фазе выпечки может привести к получению хлеба с матовой коркой, имеющей подрывы и трещины.
Если капли воды попадают на поверхность тестовой заготовки, то это может быть причиной образования темноокрашенных пятен, а иногда и вздутий на поверхности корки.
Слишком близкая укладка тестовых заготовок на поду или люльке приводит к появлению на боковых корках "притисков" (участков без корки в местах соединения двух тестовых заготовок), или "выплывов" мякиша, или бледноокрашенньх участков боковых корок.
Неравномерное тепловое напряжение по ширине пода приводит к получению изделий с неравномерной окраской, разной толщиной корки и разным объемом. Увеличенная продолжительность выпечки может привести к получению хлеба с чрезмерно толстой и темноокрашенной (горелой) коркой. При недостаточной продолжительности выпечки хлеб получается с заминающимся и влажноватым на ощупь ("сыропеклым") мякишем[4].
11. ПИЩЕВАЯ ЦЕННОСТЬ ХЛЕБА
Пищевая ценность хлеба, как и всякого пищевого продукта - понятие, интегрально отражающее всю полноту его полезных свойств, включая степень обеспечения данным продуктом физиологических потребностей человека в основных пищевых веществах и энергии.
Пищевая ценность хлеба определяется его энергетической ценностью, усвояемостью, содержанием в нем отдельных пищевых веществ (витаминов, минеральных компонентов, незаменимых аминокислот, ненасыщенных жирных кислот и др.), поэтому химический состав хлеба, содержание а нем белков, жиров, углеводов, витаминов группы В, минеральных веществ оказывают значительное влияние на характеристику пищевой ценности хлеба.
В понятие пищевой ценности хлеба включаются также его органолептические показатели: вкус, аромат, пористость, структура мякиша, внешний вид изделий, а также роль хлеба во всей физиологии питания.
Пищевая ценность во многом зависит от сорта муки и рецептуры хлеба. Чем ниже сорт муки, тем больше в ней содержится питательных веществ, и чем выше сорт муки, тем больше в ней крахмала и меньше витаминов и минеральных элементов, что сказывается на пищевой ценности хлеба. В результате введения в рецептуру теста жиров, сахара, молока и других компонентов изменяется пищевая ценность хлеба. Вот химический состав некоторых видов хлеба.
Содержание белка колеблется от 4,7% в хлебе из ржаной муки до 8,35% в хлебе из пшеничной муки. Хлеб из муки грубого помола биологически более полноценен, чем хлеб из муки высоких сортов. В хлебе из пшеничной муки наиболее дефицитны такие аминокислоты, как метионин, триптофан, лизин. В ржаном хлебе лизина содержится больше, но метионина и триптофана в нем недостаточно. В хлебе много глютаминовой кислоты, содержание которой доходит до 40% всех аминокислот. Она участвует в обмене веществ, связывает аммиак, образующийся в результате жизнедеятельности нервных клеток, участвует в синтезе других аминокислот, повышает умственную и физическую работоспособность. Благодаря ей хлеб обладает уникальной способностью не "приедаться" при ежедневном употреблении.
Во всех хлебных изделиях преобладают углеводы. Их количество составляет в среднем 50% (из них 80% — крахмал). Они удовлетворяют потребности организма человека в энергии (56-58% всех суточных затрат) при норме потребления хлеба 450 г в день (280 г пшеничного и 170 г ржаного). Особое место занимают неусвояемые углеводы (клетчатка и гемицеллюлозы), которые почти не расщепляются, но усиливают перестатику кишечника. За счет хлеба на 50% удовлетворяется потребность организма человека в витаминах группы В. Наличие витаминов в хлебе обусловлено сортом муки. Больше всего витаминов в хлебе из обойной муки. Но содержание витаминов уменьшается вследствие их разрушения при выпечке (теряется до 20—30%). Хлеб важен и как источник минеральных элементов. В нем содержатся калий, фосфор, магний, в несколько меньшем количестве — натрий, кальций, хлор и др. Хлеб низших сортов содержит больше минеральных элементов. От химического состава зависит энергетическая ценность хлеба. С повышением сорта муки увеличивается количество выделяемой энергии[6].
Энергетическая ценность хлеба
Характеристика роли хлеба как одного из источников покрытия потребности человека в энергии складывается из суточной потребности человека в энергии и отдельных пищевых веществах; энергетической ценности хлеба и содержания в нем отдельных необходимых организму человека пищевых веществ; суточного потребления хлебобулочных изделий.
Энергетическая ценность - это количество энергии (ккал, кДж), высвобождаемой в организме человека из пищевых веществ продуктов питания для обеспечения его физиологических функций.
Теоретическая энергетическая ценность хлеба рассчитывается, исходя из содержания в 100 г продукта белков, жиров, углеводов, органических кислот и количества калорий, образующихся при полном сгорании 1г этих веществ. Фактическая (или физиологическая) энергетическая ценность хлеба рассчитывается с учетом усвояемости содержащихся в данном продукте белков, жиров и углеводов, то есть коэффициента усвояемости, определяемого опытным путем. Усвояемость человеком белков зависит от многих факторов: возраста, пола, состояния здоровья, времени года, суточного рациона, а так же характеристик пищевого продукта (химического состава, структуры, внешнего вида и т. д.)[6].
СПИСОК ЛИТЕРАТУРЫ
Обзор российского рынка хлеба и хлебобулочных изделий [электронный ресурс]/ Система международных маркетинговых центров — Режим доступа: http://www.marketcenter.ru/
В. Федюкин. О государственной промышленной политике в хлебопекарной отрасли [текст]: пром.журнал : Хлебопечение России / Изд. Пищевая промышленность - №8, 2008 - М. 2008 - с.4-5.
Молодых В. Российский Союз пекарей на служении отечественному хлебопечению [текст]: пром.журнал: Хлебопечение России / Изд. Пищевая промышленность - №3,2008 – М. 2008 – с. 6-7.
Ауэрман Л.Я. Технология хлебопекарного производства [текст]: Учебник. – 9-е изд., перераб и доп. / Под общ. Ред. Л.И. Пучковой. – СПб:Профессия, 2002 – 416с.
Сборник рецептур на хлеб и хлебобулочные изделия / Сост. Ершов П.С. – СПб.
Пучкова Л.И., Поландова Р.Д., Матвеева И.В. Технология хлеба, кондитерских и макаронных изделий. Часть 1. Технология хлеба. – СПб.:ГИОРД,2005- 559с.
Сборник технологических инструкций для производства хлеба и хлебобулочных изделий [текст] / под общ. Ред. А.С,Калмыкова Министерство хлебпродуктов СССР: НПО "ХЛЕБПРОМ" - М:. Прейскурант, 1989 – 493с.
Зверева Л.Ф. Технология и технохимический контроль хлебопекарного производства [текст]/ Зверева Л.Ф, Немцова З.С., Волкова Н.П., - 3-е изд. – М.Лекгая и пищевая промышленность, 1983 – 416с.
ГОСТ 27844-88 "Изделия булочные. Технические условия"
Шебершнева Н.Н., Хабибуллина И.С. Лабораторный практикум по дисциплине "Товароведение и экспертиза зерномучных товаров" [текст] / Шебершнева Н.Н., Хабибуллина И.С – М.: Издательский комплекс МГУПП, 2008. – 160с.
ГОСТ 10354-82 Пленка полиэтиленовая. Технические условия
ГОСТ 25951-83 Пленка полиэтиленовая термоусадочная. Технические условия
ГОСТ 5667-65 Хлеб и хлебобулочные изделия. Правила приемки, методы отбора образцов, методы определения органолептических показателей и массы изделий
ГОСТ 5670-96 Хлебобулочные изделия. Методы определения кислотности
ГОСТ 5669 – 96 "Хлебобулочные изделия. Метод определения пористости".
ГОСТ 21094 – 75 "Хлеб и хлебобулочные изделия. Метод определения влажности".